Trane Xt302C Users Manual 69 1213 Deluxe Programmable Heat Cool Thermostat
xt302c1 614778bd-5448-413a-9b3c-b5a54c28ec8b Trane Thermostat XT302C User Guide |
2015-01-21
: Trane Trane-Xt302C-Users-Manual-236269 trane-xt302c-users-manual-236269 trane pdf
Open the PDF directly: View PDF
.
Page Count: 12

® U.S. Registered Trademark
Copyright © American Standard Inc. 1999
INSTALLER'S GUIDE
XT302C Deluxe Programmable
Heat-Cool Thermostat
18-HD25D7-5
APPLICATION
The XT302C Deluxe Programmable Heat-Cool Thermostat provides electrnic control of 24 Vac single-zone multistage systems.
Refer to Table 1 for a general description of the thermostat. This thermostat requires a common wire to supply power.
Table 1. Description of XT302C.
RECYCLING NOTICE
If this thermostat is replacing a thermostat that
contains mercury in a sealed tube, do not place your
old thermostat in the trash.
Contact your local waste management authority for
instructions regarding recycling and the proper
disposal of the old thermostat.
INSTALLATION
When Installing this Thermostat...
1. Read these instructions carefully. Failure to follow the
instructions can damage the product or cause a
hazardous condition.
2. Check the ratings given in the instructions and on the
product to make sure the product is suitable for your
application.
3. Installer must be a trained, experienced service
technician.
4. After completing installation, use these instructions
to check out the product operation.
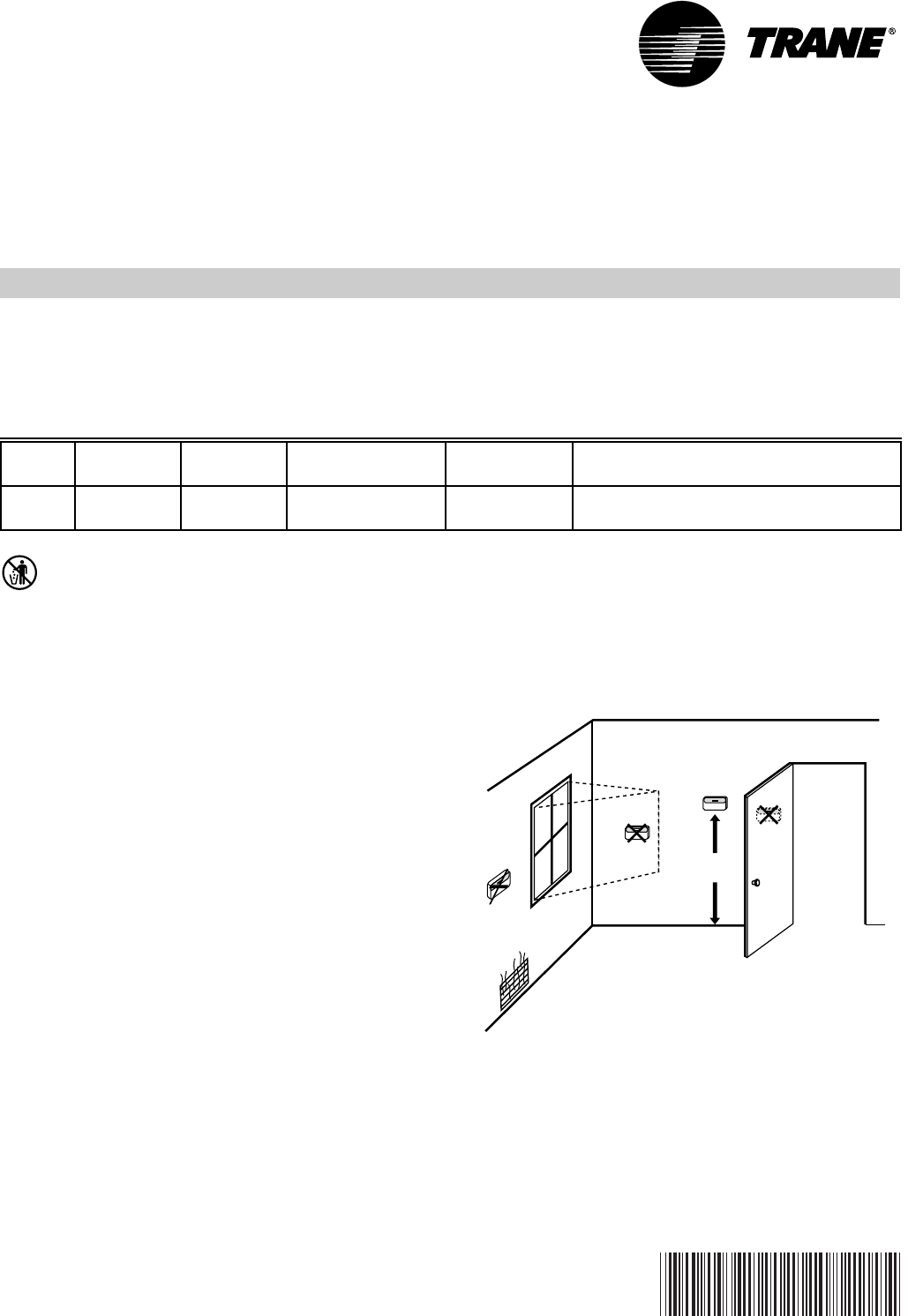
Location
Install the thermostat about 5 ft (1.5m) above the floor in an
area with good air circulation at average temperature. See
Fig. 1. Avoid installing the thermostat where it can be affected
by the following:
• Drafts, or dead spots behind doors and in corners.
• Hot or cold air from ducts.
• Radiant heat from sun or appliances.
• Concealed pipes and chimneys.
• Unheated (uncooled) areas such as an outside wall
behind the thermostat.
Wallplate Installation
Position wallplate horizontally on the wall or on a 2 in. x 4 in.
wiring box.
1. Position and level the wallplate for appearance only (the
thermostat will function properly even when
not level).
Fig. 1. Typical location of thermostat.
5 FEET
[1.5 METERS]
YES NO
NO
NO
M17106
69-1213-1
Model System Changeover System Selection Fan Selection Comments
XT302C Multistage Automatic Heat-Off-Cool-Auto On-Auto System and fan selections are done by
keyboard.

2
XT302C DELUXE PROGRAMMABLE HEAT-COOL THERMOSTAT
69-1213—1 (T8624)
Pub. No. 18-HD25D7-5
Fig. 2. Mounting the wallplate.
2. Use a pencil to mark the mounting holes. See Fig. 2.
3. Remove the wallplate from the wall and drill two 3/16
inch holes in the wall (if drywall) as marked. For firmer
material such as plaster, drill two 7/32 inch holes.
Gently tap anchors (provided) into the drilled holes until
flush with the wall.
4. Position the wallplate over the holes, pulling wires
through the wiring opening.
5. Loosely insert the mounting screws into the holes.
6. Tighten mounting screws.
WIRING
All wiring must comply with local electrical codes and
ordinances. Refer to Fig. 3 for typical hookup diagram. A letter
code is located near each terminal for identification.
WARNING
Electronic Shock or Equipment Damage Hazard.
Can shock individuals or cause equipment
damage.
Disconnect power before wiring to prevent electrical
shock or equipment damage.
1. Loosen the terminal screws on the wallplate and
connect the system wires. See Fig. 4.
NOTE: Use 18 gauge, color-coded thermostat cable
for proper wiring.
2. Securely tighten each terminal screw.
3. Push excess wire back into the hole.
4. Plug the hole with nonflammable insulation to
prevent drafts from affecting the thermostat.
WIRES
THROUGH WALL
WALL
MOUNTING
HOLES
M15044
MOUNTING
SCREWS
WALL
ANCHORS
(2)
M4826
FOR WRAPAROUND
INSERTION STRIP
7/16 IN. (11 MM).
FOR STRAIGHT
INSERTION STRIP
5/16 IN. (8 MM).
Fig. 4. Proper wiring technique.
Mounting Thermostat
1. Engage tabs at the top of the thermostat and wallplate.
See Fig. 5.
2. Press lower edge of case to close and latch.
NOTE: To remove thermostat from wall, first pull out at
bottom of thermostat; remove top last.
M17151
PRESS LOWER
EDGE OF CASE
TO LATCH.
ENGAGE TABS
AT TOP OF
THERMOSTAT
AND WALLPLATE.
A.
B.
COMPRESSOR
CONTACTOR 2
M17116
L1
(HOT)
L2
HEAT
STAGE 1
HEAT
STAGE 2
HUMIDISTAT
OPENS ON RISE
TAYSTAT253A
Y1 Y2 G
THERMOSTAT
B RW2
COMPRESSOR
CONTACTOR 1 FAN
TRANSFORMER
OT OT
OUTDOOR
TEMPERATURE
SENSOR
TAYSENS100A
W1 HH
1
POWER SUPPLY. PROVIDE DISCONNECT MEANS
AND OVERLOAD PROTECTION AS REQUIRED.
1
BLUE
YELLOW
GREEN
WHITE
BLACK
BROWN
RED
Fig. 3. Typical hookup of XT302C in a heat cool system.
Fig. 5. Mounting thermostat on wallplate.

XT302C DELUXE PROGRAMMABLE HEAT-COOL THERMOSTAT
369-1213—1 (T8624)
Pub. No. 18-HD25D7-5
Using Thermostat Keys
The thermostat keys are used to:
• Set current day and time,
• Program times and setpoints for heating and cooling,
• Temporarily override program temperatures,
• Display present setting,
• Configure Installer Setup,
• Check Self-Test,
• Display outdoor temperature (optional accessory),
• Set the system operation, and
• Set the fan operation.
See Fig. 6 for keypad explanation.
SETTINGS
System and Fan Settings
The system default setting is Heat and the fan default setting
is Auto. Use the System and Fan keys to change the settings.
See Figs. 7 and 8. The fan settings can be set for each
program period individually. The system selection is for all the
program periods.
System settings control the thermostat operation as follows:
Heat: The thermostat controls the heating.
Off: Both the heating and cooling are off.
Cool: The thermostat controls the cooling.
Auto: The thermostat automatically changes between
heating and cooling operation, depending on the indoor
temperature.
Fig. 8. Fan key location and display.
NOTE: Always press the keys with your fingertip or similar
blunt tool. Sharp instruments like a pen or pencil
point can damage the keyboard.
Time Set Program
SystemFilter Fan
Run
Program
Hold Temp
Set Current
Day/Time Wake Leave Return Sleep
Day Heat/Cool
Settings
Daylight
Time Copy
M12957
Fan
Auto
Fan On
Time Set Program
SystemFilter Fan
Run
Program
Hold Temp
Set Current
Day/Time Wake Leave Return Sleep
Day Heat/Cool
Settings
Daylight
Time Copy
M12956
System System
Heat
Off Auto
Cool
Fig. 6. XT302C key locations and descriptions.
Time Set Program
SystemFilter Fan
Run
Program
Hold Temp
Set Current
Day/Time Wake Leave Return Sleep
Day Heat/Cool
Settings
Daylight
Time Copy
INCREASE TEMPERATURE SETTING OR SCROLL
FORWARD THROUGH INSTALLER SETUP OPTIONS
DECREASE
TEMPERATURE
SETTING OR
SCROLL BACKWARD
THROUGH INSTALLER
SETUP OPTIONS
DISPLAY
INFORMATION
SUCH AS PRESENT
SETTINGS
AND OUTDOOR
TEMPERATURE
RETURN TO NORMAL
OPERATIONS
ENTER INDEFINITE
OR TIMED HOLD MODE
SET CURRENT
DAY AND TIME
SET CURRENT OR
PROGRAM DAY
CHANGE BETWEEN
DAYLIGHT SAVINGS
AND STANDARD TIME
INCREASE TIME
SETTING OR SCROLL
FORWARD THROUGH
INSTALLER SETUP
AND SYSTEM TEST
DECREASE TIME SETTING
OR SCROLL BACKWARD
THROUGH INSTALLER
SETUP AND SYSTEM TEST
COPY ONE
PROGRAMMED DAY
TO ANOTHER DAY
SET WAKE TIMES
AND SETPOINTS
CHANGE BETWEEN
HEATING AND
COOLING SETPOINTS
SET LEAVE TIMES
AND SETPOINTS
SET RETURN TIMES
AND SETPOINTS
SET SLEEP TIMES
AND SETPOINTS
M17118
SELECT SYSTEM
OPERATION (HEAT,
COOL, OFF, AUTO)
SELECT FILTER
EXPIRATION IN
NUMBER OF DAYS
SELECT FAN
OPERATION
Fig.7. System key location and display.
Fan settings control the system fan as follows:
On: Fan operates continuously.
Auto: Fan operates with equipment.

4
XT302C DELUXE PROGRAMMABLE HEAT-COOL THERMOSTAT
69-1213—1 (T8624)
Pub. No. 18-HD25D7-5
Temperature Settings
Refer to Table 2 for the default program. For 7-Day and
24-Hour Operation, the settings are the same for each day of
the week. Refer to the Owners Guide, Pub. No. 22-5127-04,
for instructions on changing the default settings.
Table 2. Default Program Settings.
The Leave, Return and Sleep periods may be cleared. For
example, the daytime energy-savings period (from Leave to
Return) may not be used by the homeowner. To clear any
period, follow the instructions in the Owners Guide in the
Clearing Schedule Period
section.
Fig. 10. Display of all the segments of the LCD.
INSTALLER SETUP
The Installer Setup is used to customize the thermostat for
specific systems. Some of the options include Comfort-R™
control activation, Fahrenheit vs. Centigrade temperature
display, outdoor temperature display (requires outdoor
sensor installation), and system changeover. Installer Setup
numbers are listed in Table 3. The table includes all the
configuration options and the factory-settings for the
XT302C Deluxe Programmable Multistage Thermostat .
NOTE: For most applications, the thermostat factory-
settings apply. Review the factory settings in Table 2
and if no changes are necessary, go to the Installer
Self-Test section.
IMPORTANT
The chart Customizing Your Thermostat found in the
beginning of the Owners Guide (see Fig. 9) must be
completed. The homeowner identifies the options
you install by referring to this chart.
Installer Setup Procedure
1. Press and hold the Information , Increase ▲,
and Decrease ▼ keys at the same time until all display
segments and the first setup number displays
(all display segments appear for approximately three
seconds before the setup number displays). See
Figs. 11 and 12.
M10349
INSTALLER SETUP
NUMBER DISPLAY
(COLUMN 2 OF TABLE 3)
FACTORY SETTING OR OTHER
CHOICE DISPLAY (COLUMN 3
OR 5 OF TABLE 3)
Comfort-R™
CONTROL OFF ON
AUTO ONLY
(SYSTEM
AUTOMATICALLY
SELECTS HEAT
OR COOL)
PROGRAMMING
OUTDOOR
TEMPERATURE
DISPLAY
SYSTEM
SETTING
(HEATING
AND
COOLING
SETTING)
CLOCK
FORMAT
TEMPERATURE
DISPLAY
COOLING
DROOP
Adaptive
Intelligent
Recovery™
CONTROL
(A HONEYWELL
TRADEMARK)
7-DAY
PROGRAMMING
NO OUTDOOR
TEMPERATURE
IS DISPLAYED
AUTO/MANUAL
(SYSTEM
AUTOMATICALLY
SELECTS
HEAT OR COOL;
YOU CAN
SELECT HEAT,
COOL OR OFF.)
24-HOUR
CLOCK FORMAT
FARENHEIT (°F)
ON
ON
24-HOUR
PROGRAMMING
NO OUTDOOR
TEMPERATURE
IS DISPLAYED
MANUAL ONLY
(YOU SELECT
HEAT, COOL
OR OFF.)
24-HOUR
CLOCK FORMAT
CENTIGRADE (°C)
OFF
OFF
(CONVENTIONAL
RECOVERY)
CONSTANT
TEMPERATURE
SETPOINT
PROGRAMMING
M17110 Fig. 11. Display of Installer Setup number and option.
Aux Ht
Heat
Auto
System Fan
Off Auto
Wake
Mon
Wait
In
Room
Outdoor
Auto
Sav
AM
PM
Hold for
Cool Repl Batt
On
Recovery
DST
Cool
TueWedThuFriSatSun
LeaveReturnSleep
M17111
Set Program
Set Day/Time
Start Time Temporary Setting Enrg
Em Heat
Em Ht
Figure 9. Customizing Your Thermostat chart,
from Owners Guide, Pub. No. 22-5127-04.
Period Time Heat
Setpoint Cool
Setpoint Fan
Setting
Wake 6:00 AM 70°F
(21°C) 78°F
(25.5°C) Auto
Leave 8:00 AM 62°F
(16.5°C) 85°F
(29.5°C) Auto
Return 5:00 PM 70°F
(21°C) 78°F
(25.5°C) Auto
Sleep 10:00 PM 62°F
(16.5°C) 82°F
(28°C) Auto

XT302C DELUXE PROGRAMMABLE HEAT-COOL THERMOSTAT
569-1213—1 (T8624)
Pub. No. 18-HD25D7-5
IMPORTANT
Only configurable numbers display. Example: Installer
Setup Number 1 does not display because it is not
configurable. Review the factory settings in Table 3
and make any desired changes in the Actual Settings
column. When the Installer Setup is complete, review
the settings to confirm that they match the system and
the boxes you checked in the Customizing Your
Thermostat chart located in the Owners Guide.
— To advance to the next Installer Setup, press Time ▲▲.
— To change a setting, press Increase ▲ or Decrease ▼.
— To scroll the Installer Setup numbers backwards, press
Time ▼▼.
— To exit the Installer Setup, press Run Program.
CAUTION
Equipment Damage Hazard.
Can cause permanent equipment damage.
Electric heat systems must be configured to 1 in
Installer Setup number 2 to prevent equipment damage
caused by the system running without the fan.
Table 3. Installer Setup Options for the XT302C.
(continued)
Press Time
▲ or ▼ Press Increase ▲ or Decrease ▼ to change setting
Installer Factory Setting Other Choices Actual
Select Setup Number Display Description Display Description Setting
Programming 42
Press Time ▼ to
bypass 2–41
and go directly
to setup #42
0 7-day programming 1 or 2 1—24-hour programming
2—No programming
Fan operation 2 0 Conventional
applications where
equipment
controls
fan operation in heat
mode
1 Applications where
thermostat
controls fan
operation in heat mode
Number of
heating Stages 3 2 2 heating stages 0 or 1 0—no heating
1—1 heating stage
Stage 1 heating
cycle rate 4 3 3—3 cph
recommended 5, 6, or
9 cph not
recommended
5, 6, or 9 5—5 cph
6—6 cph
9—9 cph
Stage 2 heating
cycle rate 5 5 5—5 cph
recommended
3, 6, or 9 cph not
recommended
3, 6, or 9 3—3 cph
6—6 cph
9—9 cph
Number of
Cooling Stages 8 1 1 cooling stage 0 or 2 0—no cooling
2—2 cooling stages
Stage 1 cooling
cycle rate 9 3 3—3 cph
recommended
2 or 5 cph not
recommended
2 or 5 2—2 cph
5—5 cph
Stage 2 cooling
cycle rate 10 3 3—3 cph
recommended
2 or 5 cph not
recommended
2 or 5 2—2 cph
5—5 cph
System setting
adjustment 12 0 Auto changeover 1 or 2 1—Manual changeover
2—Auto changeover only

6
XT302C DELUXE PROGRAMMABLE HEAT-COOL THERMOSTAT
69-1213—1 (T8624)
Pub. No. 18-HD25D7-5
Table 3. Installer Setup Options for the XT302C (continued).
(continued)
Press Time
▲ or ▼ Press Increase ▲ or Decrease ▼ to change setting
Installer Factory Setting Other Choices Actual
Select Setup Number Display Description Display Description Setting
Adaptive
Intelligent
Recovery™
control
13 0 Adaptive Intelligent
Recovery (a
Honeywell trademark)
control is activated
(system starts early so
setpoint is reached by
start of program
period)
1 Conventional recovery
(system starts recovery at
programmed time)
Degree
temperature
display
14 0 Temperature displays
in °F1 Temperature displays in °C
Clock format 16 0 12-hour clock format 1 24-hour clock format
Extended fan
operation in
heatinga
19 0 No extended fan
operation after the call
for heat ends
1, 2 or 3 1—Fan operation extends
30 seconds after the call
ends.
2—Fan operation extends
60 seconds after the call
ends.
3 —Fan operation extends
90 seconds after the call
ends.
Extended fan
operation in
cooling
20 0 No extended fan
operation after the
call for cool ends
1, 2 or 3 1—Fan operation extends
30 seconds after the call
ends.
2—Fan operation extends
60 seconds after the call
ends.
3 —Fan operation extends
90 seconds after the call
ends.
Outdoor
temperature
display (select
models)
24 0 No outdoor
temperature displays 1 Outdoor temperature
displays. Requires a
TAYSENS100A Outdoor
Sensor.
Comfort-R
Enable 28 0 No fan delay 1 or 2 1—30 seconds
2—15 seconds
Minimum
Deadband
Between
Heating and
Cooling in Auto
Changeover
Mode
30 4 Heating and cooling
setpoints can be set
no closer than 4°F
(2°C)
3 thru 10 Heating and cooling
setpoints can be set no
closer than the chosen
value:
3—3°F (1.5°C)
4—4°F (2°C)
5—5°F (2.5°C)
6—6°F (3°C)
7—7°F (3.5°C)
8—8°F (4°C)
9—9°F (4.5°C)
10—10°F (5°C)
Minimum On
Time (Heat) 32 5 5-minute minimum on
time for compressor 0 thru 15 Minimum number of minutes
(0 thru 15) the compressor
will be on during call for
heat

XT302C DELUXE PROGRAMMABLE HEAT-COOL THERMOSTAT
769-1213—1 (T8624)
Pub. No. 18-HD25D7-5
Table 3. Installer Setup Options for the XT302C (continued).
M12951
Set Current
Day/Time Mon
PM
Set Day/Time
Time Set Program
SystemFilter Fan
Run
Program
Hold Temp
Set Current
Day/Time Wake Leave Return Sleep
Day Heat/Cool
Settings
Daylight
Time Copy
IMPORTANT
Review the settings to confirm that they match the
system. Press Run Program to exit the Installer
Setup. The thermostat saves the Installer Setup
changes and initiates a reset in order to operate
using the new settings.
NOTE: For initial installations only, set the current day and
time following the setup reset.
Setting Current Day and Time
1. Press Set Current Day/Time.
NOTE: On initial power up or after an extended power loss,
1:00 pm flashes on the display until a key is pressed.
Press Time
▲ or ▼ Press Increase ▲ or Decrease ▼ to change setting
Installer Factory Setting Other Choices Actual
Select Setup Number Display Description Display Description Setting
Minimum On
Time (Cool) 33 10 10-minute minimum on
time for compressor 0 thru 15 Minimum number of minutes
(0 thru 15) the compressor
will be on during call for
cool
Temperature
range stops in
heating
34 85 Highest setpoint
heating can be set to 55 to 85 Temperature range (1°F
increments) heating
setpoint can be set to
Temperature
range stops in
cooling
35 65 Lowest setpoint
cooling can be set to 65 to 99 Temperature range (1°F
increments) cooling
setpoint can be set to
Temperature
display
adjustment
37 0 No difference
in displayed
temperature and
actual room
temperature
3, 2, 1, -1,
-2, or
-3
3—Display adjusts to 3°F
higher than actual room
temperature
2—Display adjusts to 2°F
higher than actual room
temperature
1—Display adjusts to 1°F
higher than actual room
temperature
-1—Display adjusts to 1°F
lower than actual room
temperature
-2—Display adjusts to 2°F
lower than actual room
temperature
-3—Display adjusts to 3°F
lower than actual room
temperature
Minimum Off
Time (Heat) 38 5 5 minute minimum off
time for the
compressor
0 thru 15 Minimum number of minutes
(0 thru 15) the compressor
will be off between calls for
heat
Minimum Off
Time (Cool) 39 5 5 minute minimum off
time for the
compressor
0 thru 15 Minimum number of minutes
(0 thru 15) the compressor
will be off between calls for
cool
Cooling Droop 41 1 Cooling droop
activated 0 No cooling droop
Programming 42
Press Time ▼ to
bypass 2–41
and go directly
to setup #42
0 7-day programming 1 or 2 1—24-hour programming
2—No programming

8
XT302C DELUXE PROGRAMMABLE HEAT-COOL THERMOSTAT
69-1213—1 (T8624)
Pub. No. 18-HD25D7-5
2. Press Day until the current day displays.
NOTE: Sun=Sunday, Mon=Monday, Tue=Tuesday,
Wed=Wednesday, Thu=Thursday, Fri=Friday,
Sat=Saturday.
3. Press Time ▲ or Time ▼ until the current time displays.
NOTE: Tapping the Set Current Day/Time will change the
time in one hour increments.
NOTE: If the current time is Daylight Savings Time, press
Daylight Time until DST displays.
Fig. 13. Display of test number.
Refer to Table 5 for the directions and results of the specific tests.
NOTE: Press Time ▲▲ to advance to the next test and Time ▼▼
to go back to the previous test. Press Run Program to
exit the self-test. This mode times out 5 minutes after
the last key press.
NOTE: Press Time ▼▼ to return to the previous test or Time ▲▲
to advance to the next test.
NOTE: To exit, press Time ▲▲ or Time ▼ ▼ then Run Program.
Time Set Program
SystemFilter Fan
Run
Program
Hold Temp
Set Current
Day/Time Wake Leave Return Sleep
Day Heat/Cool
Settings
Daylight
Time Copy
M12954
Daylight
Time
AM
DST
Tue
Set Day/Time
M12955
Run
Program Auto
System Fan
Wake
Room
AM
DST
Tue
Heat
Time Set Program
SystemFilter Fan
Run
Program
Hold Temp
Set Current
Day/Time Wake Leave Return Sleep
Day Heat/Cool
Settings
Daylight
Time Copy
Fig. 12. Display of all the segments of the LCD.
To start the self-test:
Press and hold the Increase ▲ and Decrease ▼ keys at the
same time until all display segments and the number 10
appears (all displays segments appear for approximately
three seconds before the test number displays). See
Figs. 12 and 13.
Table 4. Tests Available In The Installer Self-Test.
Aux Ht
Heat
Auto
System Fan
Off Auto
Wake
Mon
Wait
In
Room
Outdoor
Auto
Sav
AM
PM
Hold for
Cool Repl Batt
On
Recovery
DST
Cool
TueWedThuFriSatSun
LeaveReturnSleep
M17111
Set Program
Set Day/Time
Start Time Temporary Setting Enrg
Em Heat
Em Ht
M10257A
TEST NUMBER
Time Set Program
SystemFilter Fan
Run
Program
Hold Temp
Set Current
Day/Time Wake Leave Return Sleep
Day Heat/Cool
Settings
Daylight
Time Copy
M12952
Day
PM
Tue
Set Day/Time
Time Set Program
SystemFilter Fan
Run
Program
Hold Temp
Set Current
Day/Time Wake Leave Return Sleep
Day Heat/Cool
Settings
Daylight
Time Copy
M12953
Time
AM
Tue
Set Day/Time
4. Press Run Program.
INSTALLER SELF-TEST
Use the Installer Self-Test to check the thermostat operation.
Refer to Table 4 for a list of the available self-tests.
CAUTION
Equipment Damage Hazard.
Equipment damage can occur if the compressor
is cycled too quickly.
The minimum off time is deactivated during the
Installer Self-Test.
Perform the test so that the compressor is cycled
slowly.
Test
Number Self-Test Description
10 Heating Equipment
30 Cooling Equipment
40 Fan Equipment
50 Comfort-R Terminals (H-H)
60 Keyboard Operation
70 Device Information

XT302C DELUXE PROGRAMMABLE HEAT-COOL THERMOSTAT
969-1213—1 (T8624)
Pub. No. 18-HD25D7-5
Table 5. Installer Self-Test Options.
Key to
Press Test
Number Description
Heating Equipment Self-Test (10)
Time ▲10 Enter heating equipment self-test.
Temp ▲ 11 First stage heat turns on. When Installer Setup number 2 is 1, the system fan is also energized.
Temp ▲ 12 Second stage heat turns on.
Temp ▼ 11 Second stage heat turns off.
Temp ▼ 10 First stage heat turns off.
Cooling Equipment Self-Test (30)
Time ▲30 Enter cooling equipment self-test.
Temp ▲ 31 First stage cool and fan turn on.
Temp ▲ 32 Second stage cool turns on.
Temp ▲ 31 Second stage cool turns off.
Temp ▼ 30 First stage cool and fan turn off.
Fan Equipment Self-Test (40)
Time ▲40 Enter fan equipment self-test.
Temp ▲ 41 Fan turns on.
Temp ▼ 40 Fan turns off.
Comfort-R Terminals Self-Test (50)
Temp ▲50 Enter Comfort-R self-test.
Temp ▼ 51 Reads HH terminals. If the terminals are open and Comfort-R is enabled, display reads
% humidity. If the terminals are closed no % humidity displays.
Keyboard Operation Self-Test (60)
Time ▲60 7 Enter keyboard operation self-test.
Temp ▲ 60 9 Increase test number displays.
Temp ▼ 60 8 Decrease test number displays.
Day 60 11 Day test number displays.
Copy 60 12 Copy test number displays.
System 60 3 System test number displays.
Fan 60 10 Fan test number displays.
Set
Current
Day/Time
60 1 Set Current Day/Time test number displays.
Run
Program 60 15 Run Program test number displays.
Daylight
Time 60 19 Daylight Time test number displays.
Heat/ Cool
Settings 60 5 Heat/Cool Settings test number displays.
Wake 60 0 Wake test number displays.
Leave 60 14 Leave test number displays.
Return 60 16 Return test number displays.
Sleep 60 2 Sleep test number displays.
Filter 60 17 Filter test number displays.
i60 13 Information test number displays.
Device Information Self-Test (70) - Refer to following section.

10
XT302C DELUXE PROGRAMMABLE HEAT-COOL THERMOSTAT
69-1213—1 (T8624)
Pub. No. 18-HD25D7-5
DEVICE INFORMATION
SELF-TEST (70)
1. Press Temp ▲ and ▼ keys simultaneously, then press
Time ▼ ▼ to access the thermostat information.
2. Press Increase ▲ to display the production date code
in a 3-digit format. The first two digits represent the
month and the third digit represents the last digit of the
year (Example: 128=December 1998).
3. Press Increase ▲ again to display the software
identification code.
(Example: 200 = software ID code 200)
4. Press Increase ▲ again to display the software revision
number (Example: 001=Revision number 1).
5. Press the Increase ▲ again to display the model
identification number. (Example: 314 = Model ID 314)
6. Press Run Program to exit the self-test. The self-test
mode times out 5 minutes after the last key press.
CHECKOUT
Outdoor Temperature Sensor
(optional accessory)
Expose the outdoor temperature to outdoor air for a minimum
of five minutes before reading.
M4934
M17112
M17113
M10229
M4933A
TROUBLESHOOTING GUIDE
(
continued
)
Symptom Possible Cause Action
Display will not come
on. Thermostat is not being
powered. Check for 24 Vac between R and W terminals.
Check if the circuit breaker is tripped—reset the circuit breaker.
Check if the system fuse is blown—replace the fuse.
Check if the power switch on the HVAC equipment is in the
Off position—set to the On position.
Check wiring between thermostat and HVAC equipment—replace any
broken wires and tighten any loose connections.
If 24 Vac is present, proceed with troubleshooting.
Temperature display is
incorrect. Room temperature
display has been
reconfigured.
Enter Installer Setup number 37 and reconfigure the display.
Thermostat is configured
for °F or °C display. Enter Installer Setup number 14 and reconfigure the display.
Bad thermostat location. Relocate the thermostat.
Temperature
displaying digits as
dashes (---).
Internal temperature
measurement failure. Contact distributor or retailer.
Temperature settings
will not change.
(Example:
The upper or lower
temperature limits were
reached.
Check the temperature setpoints:
Heating limits are 55 to 85°F (13 to 29°C).
Cooling limits are 65 to 99°F (18 to 37°C).
Cannot set the
heating higher or the
cooling lower.)
The setpoint temperature
range stops were
configured.
Check Installer Setup numbers 34 and 35 and reconfigure the
setpoint stops.

XT302C DELUXE PROGRAMMABLE HEAT-COOL THERMOSTAT
11 69-1213—1 (T8624)
Pub. No. 18-HD25D7-5
TROUBLESHOOTING (Continued).
Symptom Possible Cause Action
Heating will not come
on. No power to the
thermostat. Check for 24 Vac between R and W terminals.
If missing 24 Vac:
Check if the circuit breaker is tripped—reset the circuit breaker.
Check if the system fuse is blown—replace the fuse.
Check if the power switch on the HVAC equipment is in the Off
position—set to the On position.
Check wiring between thermostat and HVAC
equipment—replace any broken wires and tighten any loose
connections.
If 24 Vac is present, proceed with troubleshooting.
Heating will not come
on. Thermostat minimum off
time is activated. Wait up to five minutes for the system to respond.
System selection is not
set to Heat. Set system selection to Heat.
Heating setpoint is below
room temperature. Check heating setpoint. Set heating setpoint to desired temperature.
Cooling will not come
on. No power to the
thermostat. Check for 24 Vac between R and W terminals.
If missing 24 Vac:
Check if the circuit breaker is tripped—reset the circuit breaker.
Check if the system fuse is blown—replace the fuse.
Check if the power switch on the HVAC equipment is in the
Off position—set to the On position.
Check wiring between thermostat and HVAC equipment—replace any
broken wires and tighten any loose connections.
If 24 Vac is present, proceed with troubleshooting.
Thermostat minimum off
time is activated. Wait up to five minutes for the system to respond. Enter Installer Setup
number 39. Reconfigure minimum off time (if required).
System selection is not
set to Cool. Set system selection to Cool.
Cool setpoint is above
room temperature. Check cooling setpoint. Set cooling setpoint to desired temperature.
Heating or cooling
come on momentarily
and shut off
Heat or cool circuit is
opening up or becoming
high impedance.
Add resistor in parallel with load or install interface relay.
System on indicator
(flame=heat,
snowflake=cool)
displays, but no
Heating equipment turns
on the fan when the
furnace has warmed up
to a setpoint.
Wait a minute after seeing the on indicator and then check the registers.
warm or cool air is
coming from the
registers.
Heating or cooling
equipment is not
operating.
Verify operation of heating or cooling equipment in self-test.
Outdoor temperature
not displayed
Option not activated. Enter Installer Setup number 24 and set to 1. Thermostat must have OT
terminals and a TAYSENS100A installed.
or is incorrect. Outdoor sensor is
connected incorrectly. Refer to TAYSENS100A installation instructions and check wiring
between the thermostat and sensor.
Wrong sensor. Replace sensor with TAYSENS100A sensor.
Filter expired. Refer to the
Filter Indication
section in the Owner’s Guide, Pub.
No. 22-5127-04
System on indicator
reads Filter and
backlight is flashing.
Filter expired. Refer to the
Filter Indication
section.
Time displaying digits
as three E’s (EEE). Internal memory failure. Contact distributor or retailer.

12
XT302C DELUXE PROGRAMMABLE HEAT-COOL THERMOSTAT
69-1213—1 (T8624)
Pub. No. 18-HD25D7-5
69-1213—1 T. C. Rev. 1-99
American Standard Inc.
Troup Highway
Tyler, TX 75711-9010
Printed in Taiwan R.O.C.