Vision Automobile Electronics Co ZS6101US-5 Wireless Smoke Detector User Manual Federal Communications Commision Statement
Vision Automobile Electronics Industrial Co Ltd Wireless Smoke Detector Federal Communications Commision Statement
User manual

Installation & Operation Manual
ZS 6101 IN-5 ZS 6101 EU-5
ZS 6101 RU-5 ZS 6101 US-5
ZS 6101 JP-5 ZS 6101 BR-5
ZS 6101 KR-5 ZS 6101 IL-5
ZS 6101 MY-5 ZS 6101 HK-5
Wireless Smoke Detector
(w/o FLiRs version)
ZS 6102 IN-5 ZS 6102 EU-5
ZS 6102 RU-5 ZS 6102 US-5
ZS 6102 JP-5 ZS 6102 BR-5
ZS 6102 KR-5 ZS 6102 IL-5
ZS 6102 MY-5 ZS6102 HK-5
Wireless Smoke Detector
(support FLiRs version)
ZS 6101-5/ZS6102-5
V0
1030704
6B1Z-61003

Installation
Notice: If you are installing the entire Z-Wave™ system for the first time, please refer to the
installation guide of Z-Wave™ Interface Controller before installing ZS6101.
1. Remove the bracket from the detector by rotating it counter-clockwise.
2. Place the bracket where you are going to install the detector. In each of key hole slots, draw a
mark to locate plastic anchor and screw. Using a 3/16-inch (5mm) drill bit, drills two holes at the
marks and insert plastic anchor, and attached the bracket by using the screws.
3. Open the battery cover to insert the battery, and then replace the cover. Fix the
detector with bracket by rotating it clockwise.
4. For “Inclusion” in (adding to) a network: Put the Z-Wave™ Interface Controller into “inclusion”
mode, and following its instruction to add the ZS6101-5 to your controller. To get in the
“inclusion” mode, the distance between detector and controller is suggested to be in one meter.
Press the program switch of ZS6101-5 for 1 second at least to be included. After setting, the
LED Setting Lighting should go off, if not, please try again. (After sending one time Z-Wave NIF
and not be included then it will send 4 times NWI in every 4 ~ 6 seconds for auto inclusion. The
red LED will flash again if the siren has not been included or the red LED will go off after
inclusion.)
For “Exclusion” from (removing from) a network: Put the Z-Wave™ Interface Controller into
“exclusion” mode, and following its instruction to delete the ZS6101-5 from your controller.
Press the program switch of ZS6101-5 for 1 second at least to be excluded.
Please note: LED setting light will flash (red) continuously in Exclusion condition.
For “Association”: After Awake (ZS6102-5 will auto wake up every second), then put the
Z-Wave™ Interface Controller into “Association”, and following its instruction to associate the
ZS6101-5 with other device. Afterward the ZS6101-5 will get into “Sleep” mode for power
saving. One association group supports 5 nodes.
For “Awake Mode” (for ZS6101-5, w/o FLiRs version only): Press program switch once, the
detector will send NIF signal first and will also send “Wake Up Notification” after 3 seconds.
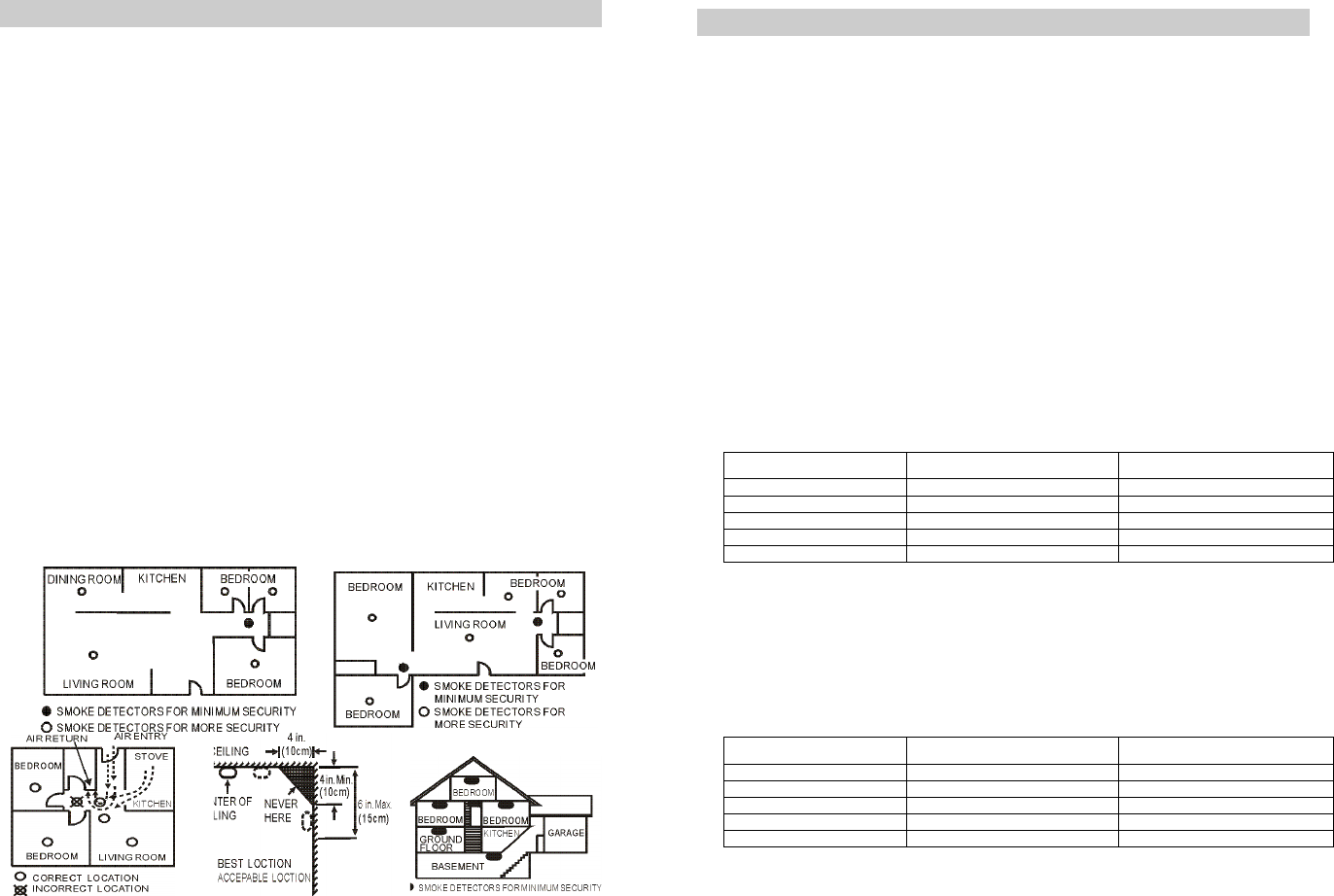
5. Suggestion of the Smoke Detector Location:
Operation
1. Power-on Mode: 1) Install the battery into the module 2) Close the bracket 3) the detector will
take 8 to 12 sec. and emit a beep to confirm and start the burglar system. The detector will
alarm once remove the bracket.
2. STANDBY MODE: The red LED, as the ALARM indicator, are featured with the smoke alarm. It
can be seen through the clear test button on the cover of the unit. When red LED flashes once
334 seconds, it indicates the smoke alarm is under normal operation. When smoke alarm
senses smoke and simultaneously sounds an audible alarm with 3 beeps, pause and 3 beeps.
The red LED will flash continuously and rapidly.
3. SILENCE FEATURE: The silence feature can temporarily quite an alarm for up to 10 minutes.
To use this feature, press test button on the cover when it alarms. However, if the smoke
concentration around the smoke alarm unit is still at alarming level after 10 minutes of silence,
the unit will re-alarm immediately.
4. LOW BATTERY WARNING SIGNAL: If the alarm horn begins to chirp once in 43 seconds with
red and yellow LED flashing, this signal means that the smoke alarm’s battery is weak. This low
battery warning signal should last for up to 30 days, but you should replace the battery
immediately to secure your protection.
5. TAMPER SWITCH FEATURE: If the smoke alarm is not mounted into the bracket properly
within 5 minutes after battery is installed, the tamper function is triggered and the Yellow LED is
steadily on. If the smoke alarm is still not mounted into the bracket properly 5 minutes after
battery is installed, you will hear temporal three sound with yellow LED steadily on until smoke
alarm is mounted back into bracket properly.
6. MALFUNCTION (ERROR) SIGNAL: If you hear 3 “beep” with yellow LED flashing 3 times in 43
seconds, it indicates that the smoke alarm does not work properly, please have it repaired or
serviced.
7. TRIGGER MODE: If detects the smoke, the smoke detector will send a Notification to the
controller.
Alarm Version 1
Notification Version 4
Alarm Type
0x01
Alarm Level
0x00 (Normal) / 0xFF (Trigger)
Notification Type
0x01
Notification Event
0x02(Trigger )/ 0X00(Normal)
Notification Parameter
0x02
*Test the alarm weekly by pushing firmly on the test button with your finger for around 4 seconds
until the horn sounds, the sound pattern is 3 beeps with red LED flashing continuously and
rapidly.If the smoke detector beeps once with red LED flashing 3 times, it indicates the smoke
alarm is not working properly, it requires to be repaired or serviced.
8. Battery Power indicator: The detector will detects battery capacity every hour and send low
battery report if under 2.7±0.1V automatically. Could using “Battery Get” command to have the
battery capacity in percentage(%).
9. Self-Protection Mode: If the detector removed from bracket, the detector will send a
Notification to the Z-Wave Interface Controller
Alarm Version 1
Notification Version 4
Alarm Type
0x07
Alarm Level
0x00 (Close) / 0xFF (Open)
Notification Type
0x07
Notification Event
0x03(Open) / 0x00 (Close)
Notification Parameter
0x03
10. Alarm Mode: Activating the alarm mode after receiving Basic Set ON (0xFF) or Binary Switch
ON (0xFF). It’ll stop the alarm mode after receiving Basic Set OFF (0x00) or Binary Switch OFF
(0x00)
*Note: Alarm Mode for ZS6102 only
Install second-floor alarms at the top of first-to-second floor stairwell.
Install basement alarms at the bottom of the basement stairwell.
-2-
-2-

11. PowerLevel Control: Using “PowerLevel Set” to set up the RF strength. And using
“PowerLevel Test Node Set” to tests the RF signal of specific node.
12. Support “Firmware Update” After firmware update and before using the smoke detector, please
exclude the unit from the gateway first and re-include it back.
Federal Communications Commission Statement
This equipment has been followed to comply with the limits for a Class B digital device, pursuant to Part 15 of the FCC
Rules. These limits are designed to provide reasonable protection against harmful interference in a residential
installation. This equipment generates, uses and can radiate radio frequency energy and, if not installed and used in
accordance with the instruction, may cause harmful interference to radio communications. However, there is no
guarantee that interference will not occur in a particular installation. If this equipment does cause harmful interference
to radio or television reception, which can be determined by turning the equipment off and on, the user is encouraged
to try and correct the interferene by one of the following measures:
-- Reorient or relocate the receiving antenna,
-- Increase the separation between the equipment and receiver,
-- Connect the equipment into and outlet on a circuit different from that to which the receiver is connected.
-- Consult the dealer or an experienced radio/TV technician for help.
This device complies with Part 15 of the FCC Rules. Operation is subject to the following two conditions: (1) this device
may not cause harmful interference, and (2) this device must accept any interference received, including interference
that may cause undersired operation.
FCC Caution: Any changes or modifications not expressly approved by the party responsible for compliance could
void the user’s authority to operate this equipment.
Limited Warranty
Vision Guarantees that every wireless smoke detector is free from physical defects in material and workmanship under
normal use for one year from the date of purchase. If the product proves defective during this one-year warranty period,
Vision will replace it free of charge. Vision does not issue any refunds. This warranty is extended to the original end
user purchase only and is not transferable. This warranty does not apply to: (1) damage to units caused by accident,
dropping or abuse in handling, or any negligent use; (2) units which have been subject to unauthorized repair, opened,
taken apart, or otherwise modified; (3) units not used in accordance with instruction; (4) damages exceeding the cost
of the product; (5) transit damage, initial installation costs, removal cost, or reinstallation cost.
For information on addional devices, plesae visit us at www.visionsecurity.com.tw
Introduction
Thanks for choosing the Vision’s wireless smoke detector of the home security device. This detector is a Z-Wave™
enabled device (interoperable, two-way RF mesh networking technology) and is fully compatible with any Z-Wave™
enabled network. Every mains powered Z-Wave™ enabled device acts as a signal repeater and multiple devices
result in more possible transmission routes which helps eliminate “RF dead-sports”.
Z-Wave™ enabled devices displaying the Z-Wave™ logo can also be used with it regardless of the manufacturer, and
ours can also be used in other manufacturer’s Z-Wave™ enabled networks. This detector is designed to sense smoke
that comes into the detector chamber and send Z-Wave™ signal when the detector detects a certain density of smoke
then the horn of smoke detector will sound.
Product Description and Specification
*** For indoor use only ***
Specification:
Package Content:
Protocol: Z-Wave™ (ZM5202N)
1pc
ZS 6101-5/6102-5 Smoke
Detector
Frequency Range:
1pc
Bracket Holder
865.22MHz (ZS6101/6102IN-5)
1pc
Plastic Anchor
868.42MHz (ZS6101/6102EU-5)
2pcs
Screw
869.00MHz (ZS6101/6102RU-5)
1pc
CR17450E-R Lithium Battery
908.42MHz (ZS6101/6102US-5)
or
(ZS6102-support FLiRs version)
920~928MHz (ZS6101/6102JP-5)
1pc
CR123A Lithium Battery
921.42MHz (ZS6101/6102BR-5)
919~924MHz (ZS6101/6102KR-5)
916.00 MHz (ZS6101/6102IL-5)
868.10MHz (ZS6101/6102MY-5)
919.80MHz (ZS6101/6102HK-5)
1pc
(ZS6101-w/o FLiRs version)
Installation & Operation
Manual
Operating Range: Up to 100 feet line of sight
Operation Temperature: 0℃~49℃
Alarm Audibility: 85dB/3m
Relative Humidity: 10~95%
Size: 120mm diameter x 5.3mm depth
Battery: 3V Lithium Battery
Sensitivity: Meet with both UL217 and EN14604 standard
Z-Wave™ Command Classes:
COMMAND_CLASS_ZWAVEPLUS_INFO
COMMAND_CLASS_ASSOCIATION_V2
COMMAND_CLASS_ASSOCIATION_GRP_INFO
COMMAND_CLASS_BATTERY
COMMAND_CLASS_MANUFACTURER_SPECIFIC_V2
COMMAND_CLASS_NOTIFICATION_V4
COMMAND_CLASS_POWERLEVEL
COMMAND_CLASS_SWITCH_BINARY
COMMAND_CLASS_VERSION_V2
COMMAND_CLASS_WAKE_UP
COMMAND_CLASS_FIRMWARE_UPDATE_MD_V2
*Note: WAKE_UP command for ZS6101 only
-4-
Tamper Switch
-1-