Von Duprin 373L L BE Control For 8827K K F 88 Mortise 44 Installation Instructions 373 L, 107732
User Manual: Von Duprin 373-L, 373-L-BE control for 8827K K-F 88 Mortise 44 Mortise Installation Instructions Installation Instructions
Open the PDF directly: View PDF
.
Page Count: 2

*941108-00*
941108-00
INSTALLATION INSTRUCTIONS
1. Prepare door for exit device. See exit device
instructions for locations of holes, backset (line
X-X), and center lines.
2. Prepare door for control:
a. Transfer line X-X from inside (exit device
side) of door to outside (control side) of door.
Use extra care if edge of door is beveled. Be
sure line X-X is parallel to edge of door.
LNote: See back side of sheet for hole
preparation for metal or wood.
b. Locate and prepare holes as indicated.
3. Install cylinder into control if required (Figures
1 & 2). Insure cylinder cam is set for required
function and replace if necessary.
4. Mortise lock or exit device must be in unlocked
position before installation.
5. Install control and exit device to door.
6. Test key, control, and device action.
Cylinder cam in
this position with
key removed
NL TL
TL Function - Control remains unlocked
when key is removed.
NL Function - Control relocks when key is
removed. Requires use of key to operate.
For NL function replace TL cylinder plate
(std. on all controls) with NL cylinder plate
(included in polybag) replacing screw and
washer.
Note: Control must be in locked position
when installing cylinder plate.
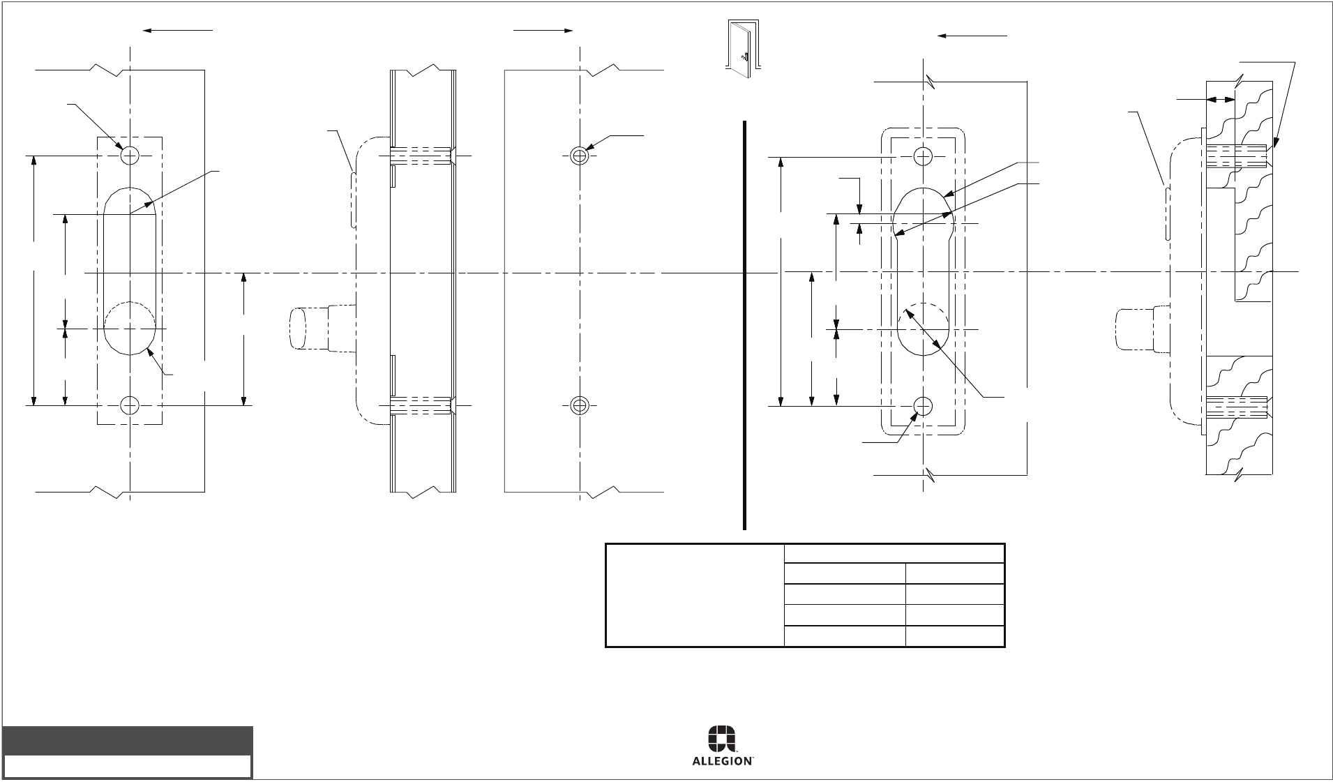
Figure 1
Control for 44/88 Mortise and 8827 Device on Metal or Wood Door
373-L, 373-L-BE
Installation Instructions
Mortise
cylinder
Cylinder locating
washer
Cylinder
nut
Hexagon mounting
extension
Socket set
screw
Figure 2
#10 WDA plate
for wood door
application
1-1/2”
max.
Spindle must be cut
for 1-3/4” door

© Allegion 2014
Printed in U.S.A.
941108-00 Rev. 01/14-c
XX Line X-X corresponds to line X-X on exit device instructions
C
LCorresponds to
center line of exit
device on exit
device instructions
11/16” R, 2 places
(omit for BE)
1/2” dia.
2 places
6-1/2”
Outside
face of
lock stile
Inside
face of
lock stile
LHR shown
RHR opposite
3”
5/16” dia.
c’sink 1/2” dia x 82 degree
2 places
XX
1-3/8” dia.
(BE only)
Omit cylinder
for BE function
Device Application Schedule
For cutouts on inside face
of door see instructions in
device carton.
“A”
Metal Door ApplicationWood Door Application
X
X
3”
11/16” R, 2 places
(omit for BE)
1-3/8” diameter
(BE only)
1/4”
3/4”
Omit cylinder
for BE function
6-1/2”
“A”
1-5/8” diameter
(omit for BE)
5/16” dia.
c’sink 1/2” dia x 82 degree
2 places
1/2” dia.
1-3/8”deep
2 places
Dimension “A”
3-1/2”
3-1/4”
3-3/16”
Device
8827-K, 8827-K-F
88 Mortise
44 Mortise
2” 2”
Outside
face of
lock stile
Line X-X corresponds to line X-X on exit device instructions
Customer Service
1-877-671-7011 www.allegion.com/us