WG security WGFP58 Proximity Deactivator User Manual Manual Fastpad 010704C

WG Security Products, Inc Proximity Deactivator Manual Fastpad 010704C

User Manual

     58kHz FastPadTM II Deactivator Installation Manual  Version: 2003 Sep Manual Part number: WG-FP-IM (092403B)  WG SECURITY PRODUCTS INC.   3031 Tisch Way, Suite 602, San Jose, CA 95128 (USA) Tel: 408-241-8000  ▪  Fax: 408-241-8082 For technical support in your country, visit our web site at www.wgspi.com.
                                        WARRANTY DISCLAIMER WG Security Product Inc. makes no representation orwarranty with respect to the contents hereof andspecifically disclaims any implied warranties ofmerchantability or fitness for any particular purpose.Further, WG Security Product Inc. reserves the right torevise this publication and make changes from time totime in the content hereof without obligation of WGSecurity Product Inc. to notify any person of suchrevision or changes.
 TABLE OF CONTENTS   OVERVIEW....................................................................................................... 1 SYSTEM DESCRIPTION ..................................................................................... 1 FEATURES....................................................................................................... 1 SPECIFICATIONS .............................................................................................. 2 BEFORE-INSTALLATION GUIDE................................................................... 3 CAD DIMENSIONS ........................................................................................... 3 FLUSH MOUNT CUT OUT SUGGESTION ............................................................. 6 INSTALLATION SITE POWER SUPPLY CHECK ...................................................... 7 INSTALLATION................................................................................................ 8 PARTS LIST ..................................................................................................... 8 DEACTIVATOR COMPONENTS AND CONNECTIONS ............................................ 10 POWER CORD NOTICES ................................................................................. 11 FUSE REPLACEMENT ...................................................................................... 12 QUICK START INSTRUCTIONS ................................................................... 13 GENERAL SETUP AND USE ............................................................................. 13 RECORDED MEDIA PRODUCTS DEACTIVATION ................................................. 14 LED ERROR INDICATORS DESCRIPTION .......................................................... 15 IR REMOTE CONTROL KEYPAD DESCRIPTION ....................................... 16 TUNING PROCEDURES & TIPS................................................................... 17 REMOTE CONTROL PROGRAMMING ........................................................ 18
1 OVERVIEW  System Description FastPad is a distance deactivator providing excellent deactivation reliability and high throughput. The FastPad can be easily installed on the counter top or flush mount with our mounting tray. FastPad deactivates labels up to 10 cm (4 in.) above the surface of the pad at a high throughput speed.               Features   Proximity Deactivation The FastPad offers distance deactivation, making it perfect for both source tagged and retailer tagged merchandise.    Compact Size The compact size of the deactivation antenna allows FastPad to easily be integrated into a counter application.    Integrated Audible and Visual Notification.  Label deactivation notification is built into the FastPad.    LAN Accessible  FastPad includes the remote access capability via WG’s optional EAS NetTM software for a variety of remote controls and data mining.   FastPad Antenna FastPad Control Box
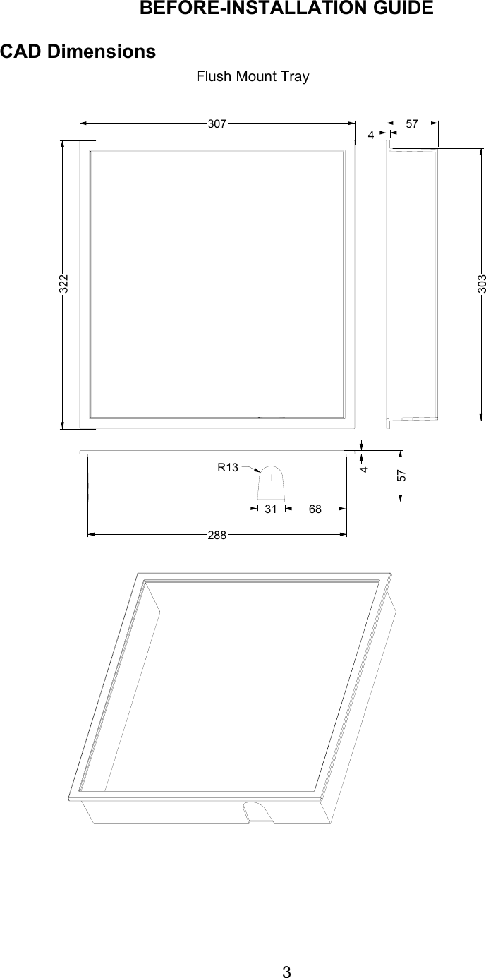
2 Specifications  Electrical Primary Input...................115±10%Vac, 60Hz  230±10%Vac, 50Hz Rated Current .................5A  Ac Operating Phase...........0°, 120°, or 240° Transmitter Output  .........1.6ms burst Transmitter Current.........3A peak (nominal) Operating Frequency  .....58kHz   Mechanical FastPad Antenna Length ............................295mm (11.6") Width ...............................280mm (11") Depth...............................54mm (2.1")        (Include bottom feet) Weight .............................4.5kg (10 lbs)  FastPad Control Box Length ............................275mm (10.8") Width ...............................190mm (7.5") Depth...............................140mm (5.5")       (Include rubber feet) Weight .............................3kg (6.6 lbs)  FastPad Mounting Tray Length ............................322mm (12.7") Width ...............................307mm (12") Depth...............................57mm (2.2") Weight .............................0.4kg (1 lbs)  Environmental Operating Temperature...0 to 30°C (32°–86°F) Relative Humidity:  ..........0 to 85% non-condensing
3 BEFORE-INSTALLATION GUIDE CAD Dimensions 4288R13683130345757307322    Flush Mount Tray
4 280295240.0150.0R6.76.554 FastPad Antenna
5  FAST PADCONTROL BOXTMAN2-HIGH VOLTAGE !HANDLE WITH CAREAN2AN1 ONAC INPUTOFFPOWER                 FastPad Control Box
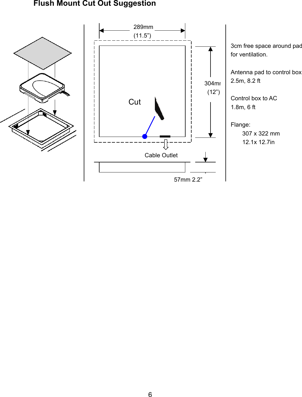
6 Flush Mount Cut Out Suggestion                      304mm (12”)289mm(11.5”)Cut 57mm 2.2” Cable Outlet 3cm free space around padfor ventilation.  Antenna pad to control box2.5m, 8.2 ft  Control box to AC 1.8m, 6 ft  Flange:        307 x 322 mm        12.1x 12.7in
7 Installation Site Power Supply Check  IT’S RECOMMENDED TO HAVE ALL FASTPADS ON THE SAME POWER PHASE,otherwise you need to adjust B sync value step by step to find a best position to sync different FastPads connected to power source with difference phase.   IT’S RECOMMENDED TO HAVE ENOUGH CURRENT SUPPLY FOR FASTPADS IF THERE ARE MULTIPLE FASTPADS SHARE ONE POWER SUPPLY.  The rated current for FastPad is 5A but the suggested current draw for one FastPad is 7-8A for better performance, so a 15 amp power box will better serve 2 FastPads instead of 3 or more.    IT’S RECOMMENDED TO HAVE GOOD GROUNDING FOR POWER SUPPLY OF FASTPAD. (Some time the poor grounding and high noise from power supply will decrease the sensitivity or detection range, check Noise entry D1 and D2, a value over 6-7 will be considered as big noise)
8  INSTALLATION  Parts List                        Part Name Order Number FastPad for 110VAC power voltage             Antenna             Control Box    FastPad for 220VAC power voltage              Antenna              Control Box  FastPad Flush Mounting Tray FastPad Lock Key WG FP-1 WG FP-AT-1 WG FP-CB-1  WG FP-2 WG FP-AT-2 WG FP-CB-2  WG FP-FMT WG-FP-KEY     Control box (1) Mounting tray (1) for Flush Mounting Antenna (1) FastPad Lock Key (1)
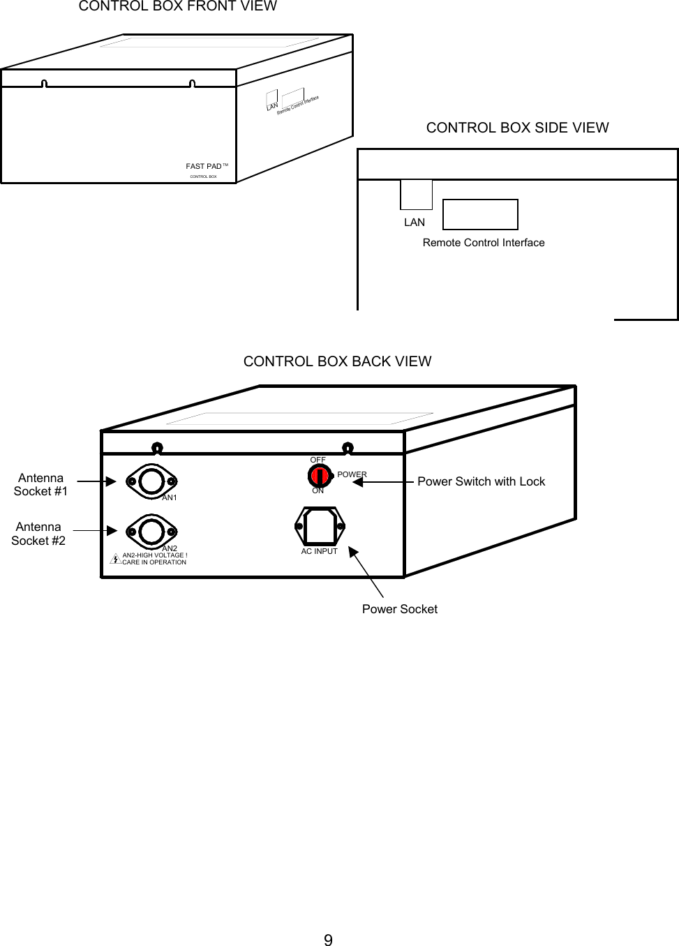
9                             FAST PADCONTROL BOXTMLANRemote Control InterfaceCONTROL BOX FRONT VIEWCONTROL BOX SIDE VIEW Remote Control Interface LANPOWERAN2-HIGH VOLTAGE !CARE IN OPERATIONAN2AN1AC INPUTONOFFAntenna Socket #1 Antenna Socket #2 Power SocketCONTROL BOX BACK VIEWPower Switch with Lock
10 Deactivator Components and Connections  As shown in Figure 1, the deactivator consists of a detect/deactivator antenna pad, power and control box. The cables used and connections are shown in the following diagram. The antenna pad can be installed flush to the counter with the flush mount kit.                                      POWERAN2-HIGH VOLTAGE !CARE IN OPERATIONAN2AN1AC INPUTONOFF7-pin Connector 4-pin Connector Power Plug Always match the antenna type (read the label onthe plastic housing) with control box input voltagetype before connecting them; make sure they arematched.  An 110VAC antenna cannot be connected to a 220VAC control box, nor vice versa. Antenna Control Box An 1An 2HIGH VOLTAGE – HANDLE WITH CARE! Equipment must be electrically disconnected from the branch-circuit supply when connecting the antenna with the control box.
11 Power Cord Notices  North American Power Supply Cords  This equipment is supplied with an external power line at one end and a molded receptacle terminal block at the other end. Conductors are color coded white (neutral), black (line) and green or green/yellow (ground).  Operation of this equipment at voltages exceeding 130 vac will require power supply cords that comply with NEMA configurations.          International Power Supply Cord  This equipment is supplied with an external power line at one end and a molded receptacle terminal block at the other end. Conductors are CEE color-coded—light blue (neutral), brown (line) and green/yellow (ground). Other IEC 320 C-13 type power supply cords can be used if they comply with the safety regulations of the country in which they are installed.          We recommend that you use a CE approved power cord H05 VV-F or H05 VVH2-F2  (Refer to the Electrical code which governs your country for installation of an Anti-Theft Unit to the Main power Supply)
12 Fuse replacement                            Equipment shall be electrically disconnected from the branch-circuit supply when replacing the fuse.  WARNING – TO REDUCE THE RISK OF DAMAGE. REPLACE ONLY WITH SAME TYPE AND RATING OF FUSE.           Fuse replacement Extend fuse (time-delay fuse) 5mmx20mm 6.3A POWERAN2-HIGH VOLTAGE !CARE IN OPERATIONAN2AN1AC INPUTONOFFAntenna socket 1 Antenna socket 2 Power socketControl box back view
13 QUICK START INSTRUCTIONS  General Setup and Use  Equipment must be electrically disconnected from the power supply before connecting the antenna with the control box.  Connect deactivation antenna to the control box as noted in the section named “Deactivator Components and Connections”.  Make sure the connectors are firmly attached to the sockets.    When all connections are ready, connect power and toggle the power switch. The power LED will come on to indicate the unit is active.                      Detection Range (Adjustable)  Deactivation Range DR Labels Vertical.........15cm (5.9 in) Horizontal ....10cm (4 in)  DR Labels Vertical ...........15cm (5.9 in) Horizontal .......10cm (4 in)   Horizontal orientationHorizontal orientationVertical orientation
14  Recorded Media Products Deactivation                                              Instructions: 1.  Access to Programming Mode •  Press [PSW] •  Input password (default is 68 unless previously changed).  •  Press [CON] to enter programming mode.  2. Set TX OFF to enable low power deactivation mode •  Press [Tx OFF] •  Input 1 to enable low power deactivation.  •  Press [CON] to accept the parameter.  3. Save to control box Flash ROM  •  Press  [SA] •  Input 1.  •  Press [CON] to accept the parameter. •  Press  [EX] to exit programming mode.                 Low Power Deactivation is strongly recommended formagnetic media products such as pre-recorded audiotapes, video tapes, floppy disks, etc. Use the remotecontrol to set FastPad to low power deactivation mode. Deactivation Range Change! When setting FastPad to low power deactivation mode formedia products deactivation, the active distance fordeactivation is shortened accordingly. You must now placethe label closer to deactivation antenna surface to ensurecomplete deactivation.  DR labels Vertical Detection  4cm (1.5 in) Horizontal   2cm (1 in)
15 LED Error Indicators Description                   LED Definitions •  L4 (Yellow)  =  Program Running Indicator •  L3 (Green)  =  Over-voltage Detection  (115±10%Vac, 60Hz and 230±10%Vac, 50Hz) •  L2 (Red)   =  Overheat Detection •  L1 (Blue)  =  Continuous 100 times Operation Counting  Error Types Note: If any of following errors occurs, the corresponding LED will turn on and FastPad will lock up. Turn the power switch off/on to reset the unit. •  [Red] = Deactivating coils have overheated. Allow the unit to cool down and reapply power. •  [Green] = Over-voltage detection of the power source (10% tolerance: 115±10%Vac@60Hz and 230±10%Vac@50Hz). Remove power until the power source is brought within required limits. •  [Red]  and  [Yellow] = 100 times continuous deactivation count has been reached. In order to prevent system overheating, allow the system to cool down and reapply the power. •  [All LEDs On] = Deactivator coils current has exceeded the limit. Reapply power to the unit.   FAST PADCONTROL BOXTMLANREMOTE CONTROLL1L2L3L4 CONTROL BOX - FRONT VIEW LED Error Indicators
16 IR REMOTE CONTROL KEYPAD DESCRIPTION                       Control Keys Description & Default Parameters Table Key ID  Button  Parameters Description  Default Value Valid Range  Page   PSW  Activates the Control Box IR Receiver  NA  NA  15 B  SYN  Sync Adjustment  3  0 to 99  16 H MIN Minimum Signal Adjustment (Sensitivity adjustment)  3  0 to 8  19 D  NSE  Noise Display  (2 channels)  NA  0 to 8  17-18 E  DFT  Return to Default Settings  0  0 to 1  19 F  TX OFF  Media Products Deactivation  0  0 to 1  19 L  ARM RST  Alarm Count Reset  0  0 to 1  20 P  PC  Password change  68 (*Note)  0 to 99  20 S  SA  Save Parameters to Flash ROM  NA  NA  20-21   CON  Confirm Parameters Input  NA  NA    EX Exit   NA NA   * NOTE:  The default password (68) can be changed with the PC button. Thereafter the system will use the new number as the default password. The new password will remain saved even after power off. THIS IS A NON-RECOVERABLE ACTION. KEEP THE NEW PASSWORD IN A SAFE LOCATION IN CASE YOU FORGET IT.          SA  EX MIN2 MIN1 RE GN  SYN NSE ARMOFF ARMRST DFT PC TXOFF0 89745621 CON PSW 3
17  TUNING PROCEDURES & TIPS  There are two main potential problems that will affect FastPad’s functioning and performance.   Problem #1 The deactivator’s detection range does not match the deactivation range.   If the detection range is too short (low sensitivity for the receiver), it will decrease the system’s deactivation distance. But if the detection range is bigger than the deactivation range, it will cause false deactivation.  Normally the FastPad deactivates labels 10cm above the antenna surface in all label orientations, so please tune Minimum Signal Adjustment to set the deactivator to the appropriate detection range. This adjustment is described under the heading “Key ID H” on page 19.  Problem #2 The deactivator exhibits false alarms (or causes other systems to do so) without tags or labels in the detection zone.  Usually interference is caused by a phase difference between different AM products at different locations. In this case, try to hunt on an appropriate B value (sync value), eliminating cross talk with nearby AM systems.   Exercise patience in trying every 5 increments of the B value, checking the noise value after confirmation. If other AM systems burst transmissions come into the FastPad tag signal window, you will get a very high noise value (e.g. 6-8). Continue increasing the B value until you get a relatively small noise value (e.g. 1-3) and continue to monitor it until you have confirmed that other AM systems can successfully function without false alarms.   FastPad has a totally adjustable sync value from 0 - 99, each step equaling 34µs, with a total adjustable Tx delay from 0 – 3.366ms. (Refer to page 16, under the heading “Key ID B Sync Adjustment”).
18  REMOTE CONTROL PROGRAMMING              Point the IR Remote Control to the Interface Window at one side of the Control Box to operate the infrared communicator.  The panel normally displays the alarm count when not receiving any control signals from remote control. The alarm count is displayed as in the above picture – total count is 116 in this example. The number indicates the number of times the deactivator has detected labels.     FAST PADCONTROL BOXTMLANREMOTE CONTROLCONTROL BOX - SIDE VIEWLAN  REMOTE CONTROL6 1  1
19  Press [PSW] button to activate the remote control, and then enter the password (factory default is 68).             Input the number 68 (or the new password if you have changed it).  Press [CON] to instruct the Control Box to accept the password.            Note: Entering the wrong password input will disable the panel from further instructions. Exit and re-press PSW to enter the correct password (see the picture below). After THREE successive attempts with the wrong password the remote control will be completely disabled. At this point you must turn the unit on/off and begin again.             LAN  REMOTE CONTROL 0  LAN  REMOTE CONTROL8 0 6 LAN  REMOTE CONTROLr E r
20  When the correct password is verified, the LEDs will display as per the following picture and wait for configuration type input.                Key ID “B” - Sync Adjustment (range: 0-99; increment: 1) This adjustment sets the time from zero crossing point to the start point of burst transmission.  It is used for eliminating cross talk between different systems. In most cases the default b-1 value will achieve system stability with respect to other AM products.  Press [SYN] and the LEDs will display as shown below. Input the number for the parameter.   Press [CON] to see the noise conditions.              Note: The adjustable range is 0-99 (0 – 3.366ms), with each increment equaling 34µs.  (34µs x 99 total increments = 3366µs = 3.366ms)   LAN  REMOTE CONTROL -   LAN  REMOTE CONTROL1 b
21  Under this mode, you can also see the different noise condition at a different phase. If there is a phase problem, other AM systems’ burst transmission will interfere with FastPad’s receiver, and you will see a large noise indication in D1, D2.             Key ID “D” - Noise Condition Display (Valid parameters: 1,2,3,4 - see configuration table below) The LEDs display the signal level number, with a level range from 0-8.  Note: When in the noise condition display mode, the alarm will be deactivated until you exit this mode.  Press [NSE] and the LEDs will display as shown below. Input a number for the parameter.  Press [CON] to accept the parameter.             LAN  REMOTE CONTROL7 -   LAN  REMOTE CONTROL0 d
22  After confirmation, the panel will display a different signal or noise level from the specific antenna channel.              Noise Condition Display Configuration Table Value Function Description  Detection Purpose 0  Shut down tag or noise window display.  D1  Tag window display for channel 1.  Detect tag by antenna CH1. D2  Tag window display for channel 2.  Detect tag by antenna CH2. D3  Average noise window display for channel 1. Monitor long time average noise received by antenna CH1.  D4  Average noise window display for channel 2. Monitor long time average noise received by antenna CH2.   Note: D3/D4 indicate the average noise level and also the weighted Minimum Signal Adjustment value. It gets the MAX value between average noise and MIN value.  Therefore, if MIN (H value) is increased to be bigger than the average noise level, D3/D4 will indicate only H value instead of average noise value.     LAN  REMOTE CONTROL2 -
23 Key ID “H” - Minimum Signal Adjustment (valid range: 0-8, increment 1) Lowering this number will increase the label detection sensitivity of the FastPad, but will also increase the risk of false deactivation. Vice versa, raising it will decrease the sensitivity or detection range to adapt to deactivation range.  While there are two antenna channels, FastPad has only one H value adjustment, and it will apply to both of the antenna channels for minimum signal adjustment.  Press [MIN]. The LEDs will display as shown as below Input number for the parameter.  Press [CON] to accept the parameter.              Key ID “E” – Load Default Settings (default value: 0; valid range: 0-1)  Value Action 0  Initial state, no meaning 1  Load default settings  Input value 1 will load the default settings (refer to the Default Parameters Table on page 10).  LAN  REMOTE CONTROL0 H
24  Key ID “F” – Low Power Deactivation Settings (default value: 0; valid range: 0-1)                              Value Action 0 Normal deactivation strength 1  Low power deactivation for media products  Press [Tx OFF] Input number for the parameter.  Press [CON] to accept the parameter.  (Inputting “1” will lower the deactivation power for magnetic media products)   Key ID “L” – Alarm Count Reset (default value: 0; valid range: 0-1)  Value Action 0  Initial state, no meaning 1  Reset alarm count  Press [ARM RST] Input number for the parameter. Press [CON] to accept the parameter.  (Inputting “1” will reset alarm count to 0)   Key ID “P” - Password Change (default value: 68; valid range: 0-99) The password can be changed in this mode from the factory default to your choice. Press the confirm button after input to activate the password.  Note:  If you change from the default password, save the new one in a safe place because if you forget it there will be no way to access the unit.  Low Power Deactivation is strongly recommended for magnetic media products such as pre-recorded audio tapes, video tapes, floppy disks, etc.
25  Exit button Press [Exit] to return to Alarm counter display status.   Save button This button will save all current parameters to Flash ROM, so when power is shut down the parameters will be saved. Next time the system reboots it will load all the parameters from Flash ROM.  Press [Save]. The LEDs will display as shown below. Input 1   Press [CON] to accept the current parameters.                         ***    LAN  REMOTE CONTROL1 S
  Page: 31         Information on the following pages provides important safety guidelines for both Operator and Service Personnel. Specific warnings and cautions will be found throughout the manual where they apply, but may not appear here. Please read and follow the important safety information, noting especially those instructions related to risk of fire, electric shock or injury to persons.    WARNING Any instructions in this manual that require opening the equipment cover or enclosure are for use by qualified service personnel only. To reduce the risk of electric shock, do not perform any servicing other than that contained in the operating instructions unless you are qualified to do so.      Symbols and Their Meanings The exclamation point within an equilateral triangle alerts the user to the presence of important operating and maintenance (servicing) instructions in the literature accompanying the equipment.   The fuse symbol indicates that the fuse referenced in the text must be replaced with one having the ratings indicated.    Important Safeguards and Regulatory Notices
  Page: 32Danger Electrical potential is still applied to some internal components even when the power switch/breaker is in the off position. To prevent electrical shock when working on this equipment, disconnect the AC line cord from the AC source before working on any internal components.  A residual voltage may be present immediately after unplugging the system due to slow discharge of large power supply capacitors. Wait 30 seconds to allow capacitors to discharge before working on the system.   Warnings  Heed all warnings on the unit and in the operating instructions.  Do not use this equipment in or near water.  Disconnect AC power before installing any options.  The attachment plug receptacles in the vicinity of the equipment are all to be of a grounding type, and the equipment grounding conductors serving these are to be connected to earth ground at the service equipment.  This equipment is grounded through the grounding conductor of the power cord. To avoid electrical shock, connect the power cord to the equipment and plug it into a properly wired receptacle before connecting the equipment inputs and outputs.  Route power cords and other cables so that they are not likely to be damaged.  Do not wear hand jewelry or watches when troubleshooting high current circuits, such as the power supplies.  During installation, do not use the door handles or front panels to lift the equipment as they may open abruptly and injure you.
  Page: 33To avoid fire hazard, use only components of the specified type, voltage and current rating as referenced in the appropriate parts list.  Always refer fuse replacement to qualified service personnel.  To avoid explosion, do not operate this equipment in an explosive atmosphere unless it has been specifically certified for such operation.  Have qualified personnel perform safety checks after any completed service.  Risk of electric shock is present. A grounded circuit conductor (neutral) is provided with over current protection. Test all components before touching.   Cautions To prevent damage to equipment when replacing fuses, locate and correct the trouble that caused the fuse to blow before applying power.  Verify that all power supply lights are off before removing the power supply or servicing equipment.  Use only specified replacement parts.  Leave the base of the system clear for air exhaust cooling and to allow room for cabling. Slots and openings in the system are provided for ventilation. Do not block them.  To prevent damage to this equipment read the instructions in this document for proper input voltage range selection.  Circuit boards in this equipment are densely populated with surface mount and ASIC components. Special tools and techniques are required to safely and effectively troubleshoot and repair modules that use SMT or ASIC components. For this reason, service and repair of products incorporating surface mount technology are supported only on a module exchange basis. Customers should not
  Page: 34attempt to troubleshoot or repair modules that contain SMT components. It assumes no liability for damage caused by unauthorized repairs. This applies to both in- and out-of-warranty products.   Power Cord Notices  North American Power Supply Cords  This equipment is supplied with an external power line at one end and a molded receptacle terminal block at the other end. Conductors are color coded white (neutral), black (line) and green or green/yellow (ground).  Operation of this equipment at voltages exceeding 130 VAC will require power supply cords which comply with NEMA configurations.          International Power Supply Cord  This equipment is supplied with an external power line at one end and a molded receptacle terminal block at the other end. Conductors are CEE color coded—light blue (neutral), brown (line) and green/yellow (ground). Other IEC 320 C-13 type power supply cords can be used if they comply with the safety regulations of the country in which they are installed.
  Page: 35Before You Install   Introduction Congratulations on your purchase of one of the finest EAS systems on the market. This is the Installation Instructions manual.    Receiving Inspection Inspect all shipping containers for any signs of damage. If any is found, notify the shipping company. If there is no obvious damage, continue with the unpacking instructions.   Unpacking Instructions Place the containers on a flat level surface with enough room to move the container around as needed. Remove all the remaining manuals. Compare the manuals against the Inventory sheet and make a note of any discrepancies.   Carefully remove the contents of container and place on a flat level surface. Compare the contents with the Part List to ensure that there no missing items. Make a note of any discrepancies.   Equipment Inspection Inspect all equipment for damage. Items to specifically check, and damage to look for, are listed below: All connectors for bent or broken pins Cables for crimped or broken wires Plastic housing for any obvious signs of damage If any damage is found, contact Customer Service at the telephone number in the front of this manual. If any item is damaged, DO NOT make any power or signal connections to the unit unless otherwise advised to do so by Customer Service.
  Page: 36If there are any discrepancies between the Manual Set Inventory sheet and the manuals received, or between the Packing List and items received, contact Customer Service at the telephone number at the front of this manual. If there are no discrepancies and either no damage, or GVG-advised correction action is made, continue with this manual.     Facility Checklist The following checklist is a synopsis of information found in the appropriate Installation Planning Guide. The Planning Guide should be referred to for detailed site preparation information. Ensure that there are sufficient AC power outlets of the required 3-prong grounded type and amp rating for the intended equipment.

Navigation menu