Wolf Dd36I Users Manual Web DD36_v6
DD36R to the manual 6e00078a-975f-0584-8dcd-f0711b0be1b1
2015-02-03
: Wolf Wolf-Dd36I-Users-Manual-477509 wolf-dd36i-users-manual-477509 wolf pdf
Open the PDF directly: View PDF
.
Page Count: 9

Planning Information
Models DD36I and DD36R Downdraft Systems
Dimensions in parentheses are in
millimeters unless otherwise specified.
9/06
1
The cooktop downdraft unit rises from the counter-
top to whisk away odors and smoke into the easy-to-
clean, five-layer mesh filter. The control module and top
cover are available in the exclusive premium finishes of
platinum or carbon stainless steel, or the standard
classic stainless steel for ease in matching your
cooktop.
Wolf downdraft ventilation systems are recommended
for use with Wolf electric and gas cooktops and
integrated modules, excluding the unframed electric
cooktops and electric grill, steamer and fryer modules.
Wolf downdraft systems cannot be used with Wolf
dual fuel ranges, gas ranges, sealed burner rangetops
and gas rangetops.
Model DD36I 36" (914) downdraft
ventilation system includes a 500 CFM
internal blower. In-line and remote blower
options are available for Model DD36R.
Control module and top cover come in
classic, platinum and carbon stainless
steel finishes.
Top cover available
in three finishes
Remote-mounted
control module
Stainless steel
filter covers
Aluminum mesh
filters
9" (229) chimney
elevation
Model DD36I
Internal Blower
Rating plate
location
Three-speed
blower control
Model DD36R
In-Line or
Remote Blower

Planning Information
Models DD36I and DD36R Downdraft Systems
Dimensions in parentheses are in
millimeters unless otherwise specified.
Dimensions may vary by ±
1
/
8
" (3).
2
FEATURES
Classic, platinum or carbon stainless steel
finishes available on control module and top
cover
Remote mounted control module
Internal, in-line and remote blower options
Three-speed blower control
Filter clean timer lets you know when the
filter needs cleaning
Delay-off feature automatically turns unit off,
chimney remains up
Stainless steel filter cover with dishwasher
safe aluminum mesh filter
LED indicators
9" (229) chimney elevation
Downdraft control kit includes control
module, top cover, mounting brackets, DIN
connector and necessary hardware
UL listed to US and Canadian safety
standards
Two and five year residential warranty –
exclusions apply; warranty information can
be found on our website, wolfappliance.com
OVERALL DIMENSIONS
36"
(914)
321/4"
(819)
23/8"
(60)
91/16"
(230)
11/2" (38)
DEPTH OF
DOWNDRAFT CHIMNEY

Planning Information
Models DD36I and DD36R Downdraft Systems
Dimensions in parentheses are in
millimeters unless otherwise specified.
3
MODEL OPTIONS
Downdraft with 500 CFM
Internal Blower Included DD36I
Downdraft Only — In-Line or
Remote Blower Required DD36R
For Model DD36R see in-line and remote
blower options below.
BLOWER OPTIONS
1100 CFM In-Line Blower 808332
900 CFM Remote Blower 801641
1200 CFM Remote Blower 801642
1500 CFM Remote Blower 804701
Refer to the Wolf Cooktop Ventilation
Recommendations chart at the end of this
section.
TRIM OPTIONS
Classic Stainless DD36CONTROL/S
Platinum Stainless DD36CONTROL/P
Carbon Stainless DD36CONTROL/B
Control module and top cover are available
in these finishes. Control kits also include
mounting brackets, DIN connector and
hardware. They are
available
as sales
accessories
through your Wolf dealer.
ACCESSORIES
Transitions in various sizes
Accessories are available through your
Wolf dealer. To obtain local dealer
information, visit the Locator section of
our website, wolfappliance.com.
SPECIFICATIONS
Overall Width 36" (914)
Overall Height (above countertop) 91/16" (230)
Overall Depth 2 3/8" (60)
Duct Size (Model DD36I) 31/4" (83) x 10" (254)
Duct Size (Model DD36R) 31/4" (83) x 14" (356)
Discharge Adjustable
Electrical Supply Requirements 110 /120 V AC, 60 Hz
15 amp dedicated circuit
Power Cord 21/2' (.8 m) power cord with
3-prong grounded plug
Shipping Weight 80 lbs (36 kg)
Specifications are subject to change without notice.
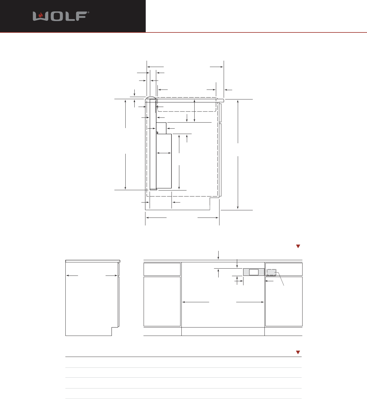
COUNTERTOP CUT-OUT
33" (838)
21/2" MIN
(64)
23/4" (70)
COOKTOP CUT-OUT
WIDTH
251/8" MIN
(638)
FLAT
COUNTERTOP
SPACE
191/4"
(489)

Planning Information
Models DD36I and DD36R Downdraft Systems
Dimensions in parentheses are in
millimeters unless otherwise specified.
4
21/8" (54)
191/4" (489)
COOKTOP CUT-OUT
DEPTH
36"
(914)
23/8" (60)
251/8" MIN (638)
OF FLAT COUNTERTOP*
.344"
295/16"
(745)
COUNTERTOP
TO BOTTOM OF
AIR BOX
18"
(457)
35/8"
(92)
31/4"
(83)
5"
(127)
711/16"
(197)
5/8"
(16) 21/2" MIN
(64)
WITH NO
RAISED LIP*
*AREAS OF POTENTIAL INTERFERENCE
24" MIN (610)
CABINET DEPTH
13/4" MIN (45)
BACK EDGE
OF COOKTOP
TO INSIDE OF
CABINET BACK*
71/8"
(181)
36"min (914)
E
31/2" (89)
4"min (102)
10" (254)
ELECTRICAL LOCATION
IN CABINET BACK
24"min (610)
CABINET DEPTH
OPTIONAL
ELECTRICAL
LOCATION IN
ADJACENT RIGHT
SIDE CABINET
E
LOCATION OF ELECTRICAL
DIMENSIONS
Downdraft Cut-Out Width 33" (838)
Recommended Cabinet Width 39" (991)
Downdraft Cut-Out Depth 2 3/4" (70)
Location of Electrical Within shaded area
See Installation Instructions shipped with unit for detailed specifications.

Planning Information
Models DD36I and DD36R Downdraft Systems
Dimensions in parentheses are in
millimeters unless otherwise specified.
5
INSTALLATION NOTES
Refer to the illustrations and specifications
for overall dimensions and installation specifics.
Wolf downdraft ventilation systems are
recommended for use with Wolf electric and
gas cooktops and integrated modules, excluding
the grill, steamer and fryer modules. The down-
draft should be at least as wide as the cooking
surface.
IMPORTANT NOTE: Wolf downdraft ventilation
systems cannot be used with Wolf dual fuel
ranges, gas ranges, sealed burner rangetops
and gas rangetops. A Wolf Pro ventilation hood
should be used.
The 36" (914) downdraft will fit most 36"
(914) wide cabinets. Cabinet backs may need to
be removed. It is recommended that oversized
cabinets be used for easier installation.
To incorporate a downdraft system and a
Wolf cooktop, you must allow for a minimum
251/8" (638) flat counter space from front to
back. A countertop with a raised lip and/or
backsplash may not allow enough space for
proper installation. 2 3/8" (60) of flat countertop
is required behind the cooktop and 13/4" (44) is
necessary between the back edge of the
cooktop and inside of cabinet back. Follow
dimensions given in the Countertop Cut-out
illustration on page 3.
Model DD36I has a 500 CFM internal blower.
Model DD36R is shipped without the blower
assembly. In-line and remote blower assemblies
are available. Blower options vary with the
volume of air that needs to be moved and the
length of the duct run. Refer to the charts at the
end of this section for cooktop ventilation
recommendations and blower options.
IMPORTANT NOTE: Install this downdraft only
with a Wolf blower.
Wolf downdraft ventilation systems require a
separate, grounded 120 V AC, 60 Hz power
supply. The service should have its own 15
amp circuit breaker and a grounded 3-prong
receptacle should be located within the reach of
the 2' (.6 m) power cord. The specific location
of the outlet is not critical, as long as it is
within reach of the power cord that is located
mid-way, top and bottom on the right side of
the downdraft.
If the 36" (914) downdraft is being installed
in a 36" (914) wide cabinet, the outlet cannot
be located on the back wall of the cabinet. It is
recommended that the outlet be placed in an
adjacent cabinet within reach of the power
cord. Refer to the Location of Electrical illustra-
tion on page 4.
IMPORTANT NOTE: A ground fault circuit
interrupter (GFCI) is not recommended and may
cause interruption of operation.
You must follow all National Electrical Code
regulations. In addition, be aware of local codes
and ordinances when installing your service.
This appliance must be used with a Wolf
approved remote mounted control module and
top cover, which is included in the downdraft
control kit, available as a sales accessory.
Installation of the control module must be
within 10' (3 m) of the downdraft assembly and
a minimum of 4" (102) from the outer edge of
cooktop element or burner. You will be required
to drill three holes and connect the two units
by the provided wire.
Refer to the installation instructions
shipped with each Wolf product for detailed
specifications.

Planning Information
Models DD36I and DD36R Downdraft Systems
6
Dimensions in parentheses are in
millimeters unless otherwise specified.
DUCTING CONSIDERATIONS
Except for Models DD30I, DD36I and DD45I,
which include a 500 CFM internal blower, Wolf
downdrafts are shipped without the blower
assembly. In-line and remote blower assemblies
are available through your Wolf dealer. To obtain
local dealer information, visit the Locator section
of our website, wolfappliance.com.
IMPORTANT NOTE: Install this downdraft
ventilation system only with a Wolf blower.
Wolf downdraft systems have an adjustable
discharge that will allow you to negotiate
ducting around floor joists and other obstacles.
Three different discharge locations are available
with side to side adjustment for accurate align-
ment of ductwork. Refer to the illustration below
for discharge location options.
DISCHARGE CUTOUT
DIMENSIONS:
101/4" (260) x 31/2" (89)
INTERNAL BLOWER
141/4" (362) x 31/2" (89)
REMOTE BLOWER
CENTERLINE OF COUNTERTOP CUTOUT 163/8" (416)
INTERNAL BLOWER
211/2" (546)
REMOTE BLOWER
51/2" (140)
INTERNAL BLOWER
41/4" (108)
REMOTE BLOWER
CL
221/8" (562)
INTERNAL BLOWER
19" (483)
REMOTE BLOWER
RIGHT
DISCHARGE
LOCATION
LEFT
DISCHARGE
LOCATION
CENTERLINE OF COUNTERTOP CUTOUT
51/2" (140)
INTERNAL BLOWER
41/4" (108)
REMOTE BLOWER
CL
NOTE: Measurements are to centerline of duct cutouts
ADJUSTMENT:
5" MAX (127)
REMOTE BLOWER
ADJUSTMENT:
1" (25) - 7" (178)
INTERNAL BLOWER
21/2" MAX (165)
REMOTE BLOWER
BOTTOM
DISCHARGE
LOCATION
Discharge location
options for internal and
remote blower models.

Planning Information
Models DD36I and DD36R Downdraft Systems
7
Dimensions in parentheses are in
millimeters unless otherwise specified.
DUCTING CONSIDERATIONS
For best performance, 10" (254) round ductwork
is recommended. The downdraft will operate
most efficiently when ductwork does not exceed
40' (12 m) in length. Consult a qualified HVAC
engineer for specific ducting applications.
IMPORTANT NOTE: All Wolf downdrafts must
be vented to the outside. Use only metal
ductwork.
12" MIN
TO
GROUND
WALL CAP
INTERNAL BLOWER
INSTALLATION THROUGH WALL
REMOTE BLOWER
ROOF MOUNT INSTALLATION
12" MIN
TO
GROUND
INTERNAL BLOWER
INSTALLATION THROUGH WALL
12" MIN
TO
GROUND
10"
ROUND
REMOTE BLOWER
INSTALLATION THROUGH WALL
REMOTE
BLOWER
REMOTE
BLOWER
10"
ROUND
Ducting options for
downdraft Models DD36I
and DD36R.
Choose the ducting option that allows the
shortest length of ductwork and a minimum
number of elbows and transitions. Refer to the
illustration below for ducting options.
Refer to the cooktop ventilation charts at the end
of this section for recommendations and blower
options.

Planning Information
Wolf Ventilation Recommendations
Dimensions in parentheses are in
millimeters unless otherwise specified.
Dimensions may vary by ±
1
/
8
" (3).
8
241/2"
(622)
151/2"
(394)
281/4"
(718)
203/4"
(527)
243/4"
(629)
14"
(356)
43/4"
(121)
10" (254)
Diameter
143/4"
(375)
291/2"
(749)
291/2"
(749)
18" (457)
22"
(559)
101/8"
(257)
71/4"
(184)
10"
(254)
10" (254)
Diameter
Remote BLOWER-60REM and
BLOWER-90REM
143/4"
(375)
291/2"
(749)
291/2"
(749)
21" (533)
25"
(635)
103/8"
(264)
71/4"
(184)
10"
(254)
10" (254)
Diameter
WOLF BLOWER ASSEMBLIES
A ventilation system must include a blower
assembly. With a few exceptions where internal
blowers are included, Wolf ventilation hoods and
downdrafts are shipped without the blower
assembly. An internal, in-line or remote blower
assembly must be selected to accommodate the
cooking appliance, CFM requirements and home-
owner preferences. Internal, in-line and remote
blower assemblies are available as sales acces-
sories through your Wolf dealer.
Wolf internal, in-line and remote blowers are for
use with Wolf cooktop hoods, downdraft
systems and Pro ventilation hoods and hood
liners.
IMPORTANT NOTE: Use only a Wolf blower
with all Wolf ventilation products.
Internal blowers are mounted inside the hood
canopy or downdraft blower box. In-line blowers
are mounted in between the hood and the
exterior of the home. Remote blowers can be
mounted on the roof or in some cases, on an
exterior wall. Refer to the illustrations below for
dimensions of Wolf in-line and remote blowers.
Ventilation recommendation charts on the
following pages provide minimum CFM recom-
mendations according to the cooking appliance
and ventilation system used and blower options
for each specific ventilation hood or downdraft.
Remote BLOWER-120REM Remote BLOWER-150REM
113/4"
(298)
211/2"
(546)
243/8"
(619)
181/2"
(470)
121/4"
(311)
41/2"
(114)
18"
(457)
22"
(559)
247/8"
(632)
12"
(305)
18"
(457)
8"
(203)
In-line BLOWER-60IL In-line BLOWER-110IL

Planning Information
Wolf Cooktop Ventilation Recommendations
9
Dimensions in parentheses are in
millimeters unless otherwise specified.
COOKTOP VENTILATION CFM RECOMMENDATIONS
Cooktop Hoods, Downdrafts and Pro Hoods
CTWH30 CTWH36 IH4227 DD30 DD36 DD45 Pro Hoods
Electric Cooktops
Model CT15E 215* 215* 215* 215* 150* 215*
Model CT30E 450 600 600 500 350 600
Model CT30EU 450 600 600 600
Model CT36E 600 600 500 600
Model CT36EU 600 600 600
CTWH30 CTWH36 IH4227 DD30 DD36 DD45 Pro Hoods
Gas Cooktops
Model CT15G 215* 215* 215* 215* 150* 215*
Model CT30G 450 600 600 500 350 600
Model CT36G 600 600 500 600
CTWH30 CTWH36 IH4227 DD30 DD36 DD45 Pro Hoods
Modules
Model CT15I 215* 215* 215* 215* 150* 215*
Model IG15 215* 215* 215* 215*
Model IS15 215* 215* 215* 215*
Model IF15 215* 215* 215* 215*
Model IM15 215* 215* 215* 215* 150* 215*
*Use these requirements to determine total CFM when installing multiple cooktops or modules.
CFM recommendations are based on total Btu/hr output. Wolf recommends 1 CFM per 100 Btu/hr (.03 kW).
Additional CFM may be required for long duct runs.
COOKTOP VENTILATION BLOWER OPTIONS
Downdraft Systems
Blower Description Blower Number Downdraft Models
500 CFM Internal Included with (I) Models DD30I / DD36I / DD45I
1100 CFM In-Line BLOWER-110IL (808332) DD30R / DD36R / DD45R
900 CFM Remote BLOWER-90REM (801641) DD30R / DD36R / DD45R
1200 CFM Remote BLOWER-120REM (801642) DD30R / DD36R / DD45R
1500 CFM Remote BLOWER-150REM (804701) DD30R / DD36R / DD45R
Adjustable discharge. 3
1
/
4
" (83) x 10" (254) duct for internal blower, no transition required. 3
1
/
4
" (83) x 14" (254) duct for in-line and
remote blowers. TRANS-14-10 required for remote blowers.
Blower configurations are for reference only. Refer to minimum CFM recommendations for your specific cooking product.
Always consult a qualified HVAC Engineer for specific applications.