York Ycal0041 Users Manual Air Cooled Scroll Chiller (Style D) YCAL0041–YCAL0065 (47–60 TON) R 22 (50 & 60HZ)
YCAL0041 to the manual f2e4a920-9955-493f-bd43-b1337a709bdc
2015-02-02
: York Ycal0041-Users-Manual york-ycal0041-users-manual-455205 york pdf
Open the PDF directly: View PDF  .
.
Page Count: 80
- FORM 150.64-EG1 (505)- Introduction
- Specification
- Options and Accessories
- Selection Data
- Design Parameters
- Water Pressure Drop
- Ratings - R-22 (60Hz - English Units)
- Ratings - R-22 (60Hz - English Units) - Cont.
- Ratings - R-22 (60Hz - SI Units)
- Ratings - R-22 (50Hz - English Units)
- Ratings - R-22 (50Hz - English Units) - Cont.
- Ratings - R-22 (50Hz - SI Units)
- Part Load Ratings - R-22 (English Units)
- Part Load Ratings - R-22 (SI)
- Physical Data
- Sound Data
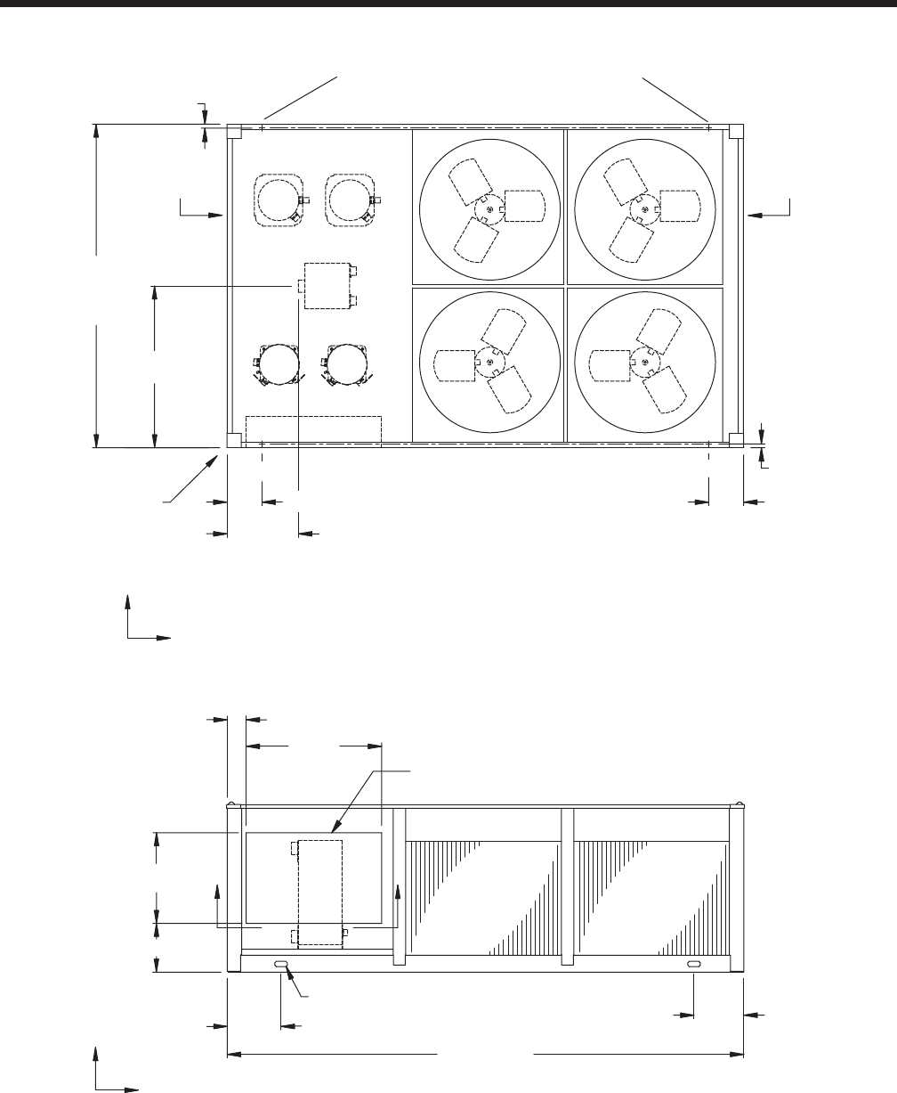
- Dimensions - YCAL0041 (English)
- Dimensions - YCAL0045 (English)
- Dimensions - YCAL0051 (English)
- Dimensions - YCAL0055EC - (English)
- Dimensions - YCAL0061 (English)
- Dimensions - YCAL0065 (English)
- Dimensions - YCAL0041 (SI)
- Dimensions - YCAL0045 (SI)
- Dimensions - YCAL0051 (SI)
- Dimensions -YCAL0055 (SI)
- Dimensions - YCAL0061 (SI)
- Dimensions - YCAL0065 (SI)
- Isolator Selections
- Isolator Details (cont'd)
- Electrical Data
- Electrical Data - 60Hz
- Electrical Data - 50Hz
- Power Wiring
- Control Wiring
- Application Data
- Guide Specifications
 

FORM 150.64-EG1 (505)
AIR-COOLED
SCROLL CHILLERS
STYLE D
YCAL0041 – YCAL0065
50 AND 60HZ
47 – 60 TON
165 – 210 KW
R-22

YORK INTERNATIONAL
2
   
 
 
 
 
 
 
 
 
 
 
Table of Contents
FORM 150.64-EG1 (405) ....................................................................................................................................................................................... 1
Introduction ........................................................................................................................................................................................................... 3
Specification ......................................................................................................................................................................................................... 4
Options and Accessories .................................................................................................................................................................................... 7
Selection Data ......................................................................................................................................................................................................11
Design Parameters ............................................................................................................................................................................................. 13
Water Pressure Drop .......................................................................................................................................................................................... 14
Ratings - R-22 (60Hz - English Units) ............................................................................................................................................................... 16
Ratings - R-22 (60Hz - English Units) - Cont. ................................................................................................................................................... 18
Ratings - R-22 (60Hz - SI Units) ......................................................................................................................................................................... 20
Ratings - R-22 (50Hz - English Units) ............................................................................................................................................................... 22
Ratings - R-22 (50Hz - English Units) - Cont. ................................................................................................................................................... 24
Ratings - R-22 (50Hz - SI Units) ......................................................................................................................................................................... 26
Part Load Ratings - R-22 (English Units) ......................................................................................................................................................... 28
Part Load Ratings - R-22 (SI) ............................................................................................................................................................................. 29
Physical Data  ..................................................................................................................................................................................................... 30
Sound Data .......................................................................................................................................................................................................... 32
Dimensions - YCAL0041 (English) .................................................................................................................................................................... 34
Dimensions - YCAL0045 (English) .................................................................................................................................................................... 36
Dimensions - YCAL0051 (English) .................................................................................................................................................................... 38
Dimensions - YCAL0055EC - (English) ............................................................................................................................................................. 40
Dimensions - YCAL0061 (English) .................................................................................................................................................................... 42
Dimensions - YCAL0065 (English) .................................................................................................................................................................... 44
Dimensions - YCAL0041 (SI) ............................................................................................................................................................................. 46
Dimensions - YCAL0045 (SI) ............................................................................................................................................................................. 48
Dimensions - YCAL0051 (SI) ............................................................................................................................................................................. 50
Dimensions -YCAL0055 (SI) .............................................................................................................................................................................. 52
Dimensions - YCAL0061 (SI) ............................................................................................................................................................................. 54
Dimensions - YCAL0065 (SI) ............................................................................................................................................................................. 56
Isolator Selections ............................................................................................................................................................................................. 58
Isolator Details (cont'd) ...................................................................................................................................................................................... 60
Electrical Data ..................................................................................................................................................................................................... 62
Electrical Data - 60Hz ......................................................................................................................................................................................... 64
Electrical Data - 50Hz ......................................................................................................................................................................................... 66
Power Wiring ....................................................................................................................................................................................................... 68
Control Wiring ..................................................................................................................................................................................................... 71
Application Data ................................................................................................................................................................................................. 72
Guide Specifications .......................................................................................................................................................................................... 74

YORK INTERNATIONAL 3
FORM 150.64-EG1
YORK Air-Cooled Scroll Chillers provide chilled water for all air conditioning applications using 
central station air handling or terminal units. They are completely self-contained and are designed 
for outdoor (roof or ground level) installation. Each unit includes hermetic scroll compressors, 
a liquid cooler, air cooled condenser, and a weather resistant microprocessor control center, all 
mounted on a pressed steel base.
Introduction

YORK INTERNATIONAL
4
Specification
GENERAL
The  47  -  60 Ton  (165  -  210  kW)  YCAL models  are 
shipped complete from the factory ready for installation 
and use.
The unit is pressure-tested, evacuated, and fully charged 
with Refrigerant-22 (HCFC-22) and includes an initial 
oil charge. After assembly, a complete operational test 
is performed with water  flowing  through the cooler to 
assure that the refrigeration circuit operates correctly.
The unit structure is heavy-gauge, galvanized steel. This 
galvanized steel is coated with baked-on powder paint, 
which, when subjected to ASTM B117 1000 hour, salt 
spray testing, yields a minimum ASTM 1654 rating of 
“6”. Corrosion resistant wire mesh panels are added to 
protect the condenser coil from incidental damage and 
restrict  unauthorized  access  to  internal  components. 
Units are designed in accordance with NFPA 70 (Na-
tional Electric Code), ASHRAE/ANSI 15 Safety code for 
mechanical refrigeration, ASME, Listed and labeled  with 
Intertek Testing Services (ETL) and rated in accordance 
with ARI Standard 550/590-2003.
COMPRESSORS
The chiller has suction-gas cooled, hermetic, scroll com-
pressors. The YCAL compressors incorporate a compli-
ant scroll design in both the axial and radial direction. All 
rotating parts are statically and dynamically balanced. A 
large internal volume and oil reservoir provides greater 
liquid tolerance. Compressor crankcase heaters are also 
included for extra protection against liquid migration.
COOLER
The  cooler  is  equipped  with  a  heater  controlled  by  a 
separate thermostat. The heater provides freeze protec-
tion for the cooler down to -20°F (-29°C) ambient. The 
cooler is covered with 3/4” (19mm) flexible, closed-cell, 
foam insulation (K~0.25).
Brazed plate heat exchangers shall be UL (Underwriters 
Laboratories) listed. Installing contractor must include 
accommodations  in  the  chilled  water  piping  to  allow 
proper  drainage  and  venting  of  the  heat  exchanger. 
Water inlet and outlet connections are grooved for com-
patibility with factory supplied victaulic connections.
A strainer with a mesh size between .5 and 1.5 mm (40 
mesh) is recommended upstream of the heat exchanger 
to prevent clogging.
CONDENSER
Coils – Fin and tube condenser coils of seamless, inter-
nally-enhanced, high-condensing-coefficient, corrosion 
resistant copper tubes are arranged in staggered rows, 
mechanically  expanded  into  aluminum  fins.  Integral 
subcooling is included. The design working pressure of 
the coil is 450 PSIG (31 bar).
Low Sound Fans – The condenser fans are composed 
of corrosion resistant aluminum hub and glass-fiberrein-
forced  composite blades molded into a low noise airfoil 
section. They are designed for maximum efficiency and 
are statically and dynamically balanced for vibration free 
operation. They are directly driven by independent mo-
tors, and positioned for vertical air discharge. All blades 
are statically and dynamically balanced for vibration-free 
operation. The  fan  guards  are  constructed  of  heavy-
gauge, rust-resistant, PVCcoated steel wire.
Motors – The fan motors are Totally Enclosed Air-Over, 
squirrel-cage  type,  current  protected.  They  feature 
ball bearings that are double-sealed and permanently 
lubricated.

YORK INTERNATIONAL 5
FORM 150.64-EG1
MILLENNIUM CONTROL CENTER
All  controls  are  contained  in  a  NEMA  3R/12  (and 
equivalent to IP55*) cabinet with hinged outer door and 
includes:
Liquid Crystal Display with Light Emitting Diode back-
lighting for outdoor viewing:
   Two display lines
   Twenty characters per line
 Color coded 12-button non-tactile keypad with sections 
for:
 DISPLAY/PRINT of typical information:
   Chilled liquid temperatures
   Ambient temperature
   System pressures (each circuit)
   Operating hours and starts (each compressor)
   Print calls up to the liquid crystal display:
   Operating data for the systems
   History of fault shutdown data for up to
   the last six  fault shutdown conditions
   An RS-232 port, in conjunction with this    
  press-to-print button, is provided to permit 
   the capability of hard copy print-outs via a    
  separate printer (by others).
 ENTRY section to:
   ENTER setpoints or modify system values
 SETPOINTS updating can be performed to:
   Chilled liquid temperature setpoint and range
   Remote reset temperature range
   Set daily schedule/holiday for start/stop
   Manual override for servicing
   Low and high ambient cutouts
   Number of compressors
   Low liquid temperature cutout
   Low suction pressure cutout
   High discharge pressure cutout
   Anti-recycle timer (compressor start cycle    
    time)
   Anti-coincident timer (delay compressor    
    starts)
 UNIT section to:
   Set time
   Set unit options
 UNIT ON/OFF switch
The  microprocessor  control  center  is  capable  of  dis-
playing the following:
  •  Return and leaving liquid temperature
  •  Low leaving liquid temperature cutout setting
  •  Low ambient temperature cutout setting
  •  Outdoor air temperature
  •  English or Metric data
  •  Suction pressure cutout setting
  •  Each system suction pressure 
  •  Discharge pressure (optional) 
  •  Liquid Temperature Reset via a YORK ISN DDC or 
Building Automation System (by others) via:
    -  a  pulse  width  modulated  (PWM)  input  as  stan-
dard
    - a 4-20 milliamp or 0 -10 VDC input, or contact
    closure with the optional B.A.S. interface option
  •  Anti-recycle timer status for each system
  •  Anti-coincident system start timer condition
  •  Compressor run status
  •  No cooling load condition
  •  Day, date and time
  •  Daily start/stop times
  •  Holiday status
  •  Automatic or manual system lead/lag control
  •   Lead system definition
  •  Compressor starts & operating hours
    (each compressor)
  •  Status of hot gas valves, evaporator heater
    and fan operation
  •   Run permissive status
  •  Number of compressors running
  •  Liquid solenoid valve status
  •  Load & unload timer status
  •  Water pump status 
*  Intensity of Protection European Standard

YORK INTERNATIONAL
6
Provisions  are  included  for:  pumpdown  at  shutdown; 
optional remote chilled water temperature reset and two 
steps of demand load limiting from an external building 
automation system. Unit alarm contacts are standard.
The operating program is stored in non-volatile memory 
(EPROM) to eliminate chiller failure due to AC powered 
failure/battery  discharge.  Programmed  setpoints  are 
retained in lithium battery-backed RTC memory for 5 
years minimum.
POWER PANEL
Each panel contains:
  •  Compressor power terminals
  •  Compressor motor starting contactors per l.E.C.**
  •  Control power terminals to accept incoming for 
    115-1-60 control power
  •  Fan contactors & overload current protection
The power wiring is routed through liquid-tight conduit 
to the compressors and fans.
**   International Electrotechnical Commission

YORK INTERNATIONAL 7
FORM 150.64-EG1
Options and Accessories
POWER OPTIONS:
COMPRESSOR  POWER  CONNECTIONS  –  Single-
point (YCAL0041-0065) terminal block connection(s) are 
provided as standard. The following power connections 
are available as options. (See electrical data for specific 
voltage and options availability.) (Factory-Mounted.)
SINGLE-POINT SUPPLY TERMINAL BLOCK – (stan-
dard on YCAL0041 - 0065 models). Includes enclosure, 
terminal-block and interconnecting wiring  to the com-
pressors. Separate external protection must be supplied, 
by others, in the incoming compressor-power wiring. (Do 
not include this option if either the SinglePoint NonFused 
Disconnect Switch or Single-Point Circuit Breaker op-
tions have been included.)
SINGLE-POINT NON-FUSED DISCONNECT SWITCH 
– Unit-mounted disconnect switch with external, lockable 
handle  (in  compliance  with Article  440-14  of  N.E.C.), 
can  be  supplied  to  isolate  the  unit  power  voltage  for 
servicing. Separate external fusing must be supplied, 
by others in the power wiring, which must comply with 
the National Electrical Code and/or local codes.
SINGLE-POINT CIRCUIT BREAKER – A unit mounted 
circuit breaker with external, lockable handle (in com-
pliance  with  N.E.C. Article  440-14),  can  be  supplied 
to isolate the power voltage for servicing. (This option 
includes the Single-Point Power connection.)
CONTROL  TRANSFORMER  –  Converts  unit  power 
voltage  to  115-1-60  (0.5  or  1.0  KVA  capacity).  Fac-
tory mounting includes primary and secondary wiring 
between the transformer and the control panel. (Fac-
tory-Mounted.)
POWER FACTOR CORRECTION CAPACITORS – Will 
correct unit compressor power factors to a 0.90-0.95. 
(Factory-Mounted.)
CONTROL OPTIONS:
AMBIENT KIT (LOW) – Units will operate to 25°F (-4°C). 
This accessory includes all necessary components to 
permit chiller operation to 0°F (-18°C). (This option in-
cludes the Discharge Pressure Transducer / Readout 
Capability option.) For proper head pressure control in 
applications below 25°F (-4°C), where wind gusts may 
exceed five mph, it is recommended that Optional Con-
denser Louvered Enclosure Panels also be included. 
(Factory-Mounted.)
AMBIENT KIT (HIGH) – Required if units are to operate 
when the ambient temperature is above 115°F (46°C). 
Includes discharge pressure transducers. (This option 
includes the Discharge Pressure Transducer / Readout-
Capability option.) (Field-Mounted.)
BUILDING AUTOMATION SYSTEM INTERFACE – The 
factory addition of a Printed Circuit Board to accept a 
4-20 milliamp, 0-10VDC or contact closure input to reset 
the leaving chiller liquid temperature from a Building Au-
tomation System. (Only one of following options can be 
offered on a unit at a time: BAS, Remote Control Panel 
or  Multi-unit  Sequence  Control.)  (Factory-Mounted.) 
(The standard unit capabilities include remote startstop, 
remote water temperature reset via a PWM input signal 
or up to two steps of demand (load) limiting depending 
on model.) (The standard control panel can be directly 
connected to a YORK Building Automated System via 
the standard onboard RS485 communication port.)
LANGUAGE LCD AND KEYPAD DISPLAY – Spanish, 
French,  and  German  unit  LCD  controls  and  keypad 
display available. Standard language is English.
DISCHARGE  PRESSURE  TRANSDUCERS AND 
READOUT  CAPABILITY  –  The  addition  of  pressure 
transducers  allows  models  to  sense  and  display  dis-
charge pressure. This is recommended for brine chilling 
applications. (This option is included with either the low 
or high ambient kits.) (Factory-Mounted.)
•  Suction  Pressure  Transducers:  Permits  unit  to 
sense and display suction pressure. This capability 
is standard on YCAL0041-0065 models.
MOTOR CURRENT MODULE – Capable of monitoring 
compressor  motor  current.  Provides  extra  protection 
against  compressor  reverse  rotation,  phase-loss  and 
phase imbalance. Option consists  of one module per 
electrical system. (Factory-Mounted.)
OPTIVIEW  REMOTE  CONTROL  PANEL  -  Graphical 
interface panel to remotely control and monitor up to 8 
different units. (Refer to form 201.18-SG4 for detailed 
information)
MULTI-UNIT SEQUENCING – A separate Sequencing 
Control Center is provided to handle sequencing control 
of up to eight chillers in parallel based on mixed liquid 
temperature  (interconnecting  wiring  by  others).  (Only 
one of following options can be offered on a unit at a 
time: BAS, Remote Control Panel or Multi-unit Sequence 
Control.) (Factory-Mounted.)
COMPRESSOR,  PIPING,  EVAPORATOR 
OPTIONS:
LOW  TEMPERATURE  BRINE  –  Required  for  brine 

YORK INTERNATIONAL
8
chilling  below  30°F  (-1°C)  leaving  brine  temperature 
for YCAL0041 - 0065 models. Option includes resized 
thermal expansion valve. (Factory-Mounted)
CHICAGO CODE RELIEF VALVES – Unit will be pro-
vided with relief valves to meet Chicago code require-
ments. (Factory-Mounted)
SERVICE ISOLATION VALVE – Service suction and 
discharge (ball type) isolation valves are added to unit 
per  system.  This  option  also  includes  a  system  high 
pressure relief valve in compliance with ASHRAE 15. 
(Factory-Mounted)
HOT GAS BY-PASS – Permits continuous, stable opera-
tion at capacities below the minimum step of compressor 
unloading to as low as 5% capacity (depending on both 
the  unit  and  operating  conditions)  by  introducing  an 
artificial load on the cooler. Hot gas by-pass is installed 
on  only  refrigerant  system  #1  on  two-circuited  units. 
(Factory-Mounted)
DX COOLER  300  PSIG  (21  bar) DWP WATERSIDE 
– The waterside will be of 300 PSIG (21 bar) instead of 
the standard 150 PSIG DWP. 300 PSIG R.F. flanges are 
included on the DX cooler nozzles. (Factory-Mounted.) 
The  companion  flanges  will  be  field-supplied  by  oth-
ers.
FLANGES (VICTAULIC TYPE) – Consists of two  (2) 
Flange  adapters  for  grooved  end  pipe  (standard  150 
psi [10.5 bar] cooler).
FLOW SWITCH – The flow switch or its equivalent must 
be furnished with each unit.
150 PSIG (10.5 bar) DWP – For standard units. Johnson 
Controls model F61MG-1C Vapor-proof SPDT, NEMA 
4X switch (150 PSIG [10.5 bar] DWP), -20°F to 250°F 
(-29°C to  121°C),  with  1”  NPT connection for upright 
mounting in horizontal pipe. (Field-Mounted.)
300 psig (21 bar) DWP – For units with optional 300 
PSIG  (21  bar)  DX  cooler.  McDonnell  &  Miller  model 
FS74W Vapor-proof SPDT, NEMA 4X switch (300 PSIG 
(21 bar) DWP), -20°F to 300°F (-29°C to 149°C), with 1¼ 
inch MPT connection for upright mounting in horizontal 
pipe. (Field-Mounted.)
DIFFERENTIAL  PRESSURE  SWITCH  – Alternative 
to an above mentioned flow switch. Pretempco model 
DPS300AP40PF-82582-5 (300 psi max. working pres-
sure), SPDT 5 amp 125/250VAC switch, Range 0 - 40 
PSID, deadband 0.5 - 0.8 psi, with 1/4” NPTE Pressure 
Connections.
REMOTE DX COOLER – A split system arrangement 
with the cooler, leaving & return water sensors, liquid 
line solenoid valves, filter driers, sightglasses & TXVs 
shipped loose for field connection to the air-cooled con-
densing section. The DX cooler and outdoor section will 
have a  nitrogen  holding  charge. Interconnecting  rigid 
piping,  wiring  and  refrigerant  are  by  others.  Includes 
YORK Service startup. See Form 150.62-NM1.1 (200) 
for other application information. (This option includes 
the Crankcase Heater option.)(Field-Mounted.)
CONDENSER AND CABINET OPTIONS:
Condenser  coil  protection  against  corrosive  environ-
ments is available by choosing any of the following op-
tions. For additional application recommendations, refer 
to FORM 150.12-ES1. (Factory-Mounted.)
PRE-COATED FIN CONDENSER COILS – The unit's 
coils are  constructed with black epoxy coated aluminum 
fins. This can provide corrosion resistance comparable 
to copper-fin coils in typical seashore locations. Either 
these or the post-coated coils (below), are recommend-
ed for units being installed at the seashore or where salt 
spray may hit the unit.
POST-COATED DIPPED CONDENSER COILS – The 
unit's coils are  constructed with dipped-cured condenser 
coils. This  is  another  choice  for  seashore  and  other 
corrosive applications (with the exception of strong al-
kalies, oxidizers and wet bromine, chlorine and fluorine 
in concentrations greater than 100 ppm).
COPPER FIN CONDENSER COILS – The unit's coils 
are  constructed with  copper fins. (This is not recom-
mended for units in areas where they may be exposed 
to acid rain.)
ENCLOSURE  PANELS  (UNIT)  –  Tamperproof  En-
closure Panels prevent unauthorized access to units. 
Enclosure Panels can provide an aesthetically pleas-
ing  alternative  to  expensive  fencing. Additionally,  for 
proper head pressure control, YORK recommends the 
use of :
LOUVERED  PANELS  (Full  Unit)  –  Louvered  panels 
surround  the  front,  back,  and  sides  of  the  unit. They 
prevent unauthorized access and visually screen unit 
components. Unrestricted air flow is permitted through 
generously sized louvered openings. This option is ap-
plicable for any outdoor design ambient temperature up 
to 115°F (46°C). (Factory-Mounted.)
SOUND ATTENUATION – One or  both of the follow-
ing  sound  attenuation  options  are  recommended  for 

YORK INTERNATIONAL 9
FORM 150.64-EG1
residential  or  other  similar  sound-sensitive  locations. 
Louvered Panels can be ordered for winter applications 
where wind gusts may exceed five miles per hour. The 
following types of enclosure options are available:
COMPRESSOR ACOUSTIC SOUND BLANKET – Each 
compressor  is  individually  enclosed  by  an  acoustic 
sound blanket. The sound blankets are made with one 
layer of acoustical absorbent textile fiber of 5/8” (15mm) 
thickness;  one  layer  of  anti-vibrating  heavy  material 
thickness of 1/8” (3mm). Both are closed by two sheets 
of  welded  PVC,  reinforced  for  temperature  and  UV 
resistance. (Factory-Mounted.)
ULTRA QUIET FANS – Lower RPM, 8-pole fan motors 
are used with steeper-pitch fans. (Factory-Mounted.)
VIBRATION  ISOLATORS  –  Level  adjusting,  spring 
type  1”  (25.4mm)  or  seismic  deflection  or  neoprene 
pad isolators for mounting under unit base rails. (Field-
Mounted.)

YORK INTERNATIONAL
10
This page intentionally left blank.

YORK INTERNATIONAL 11
FORM 150.64-EG1
GUIDE TO SELECTION
Capacity ratings for YORK YCAL  Packaged Air-Cooled 
Liquid Chillers, shown on pages 16 through 39 cover 
the majority of design applications for these units. For 
unusual applications or uses beyond the scope of this 
catalog,  please  consult  your  nearest YORK  Office  or 
representative.
SELECTION RULES
 1.  Ratings – Ratings may be interpolated, but must 
not be extrapolated. The Ratings given on pages 16 
through 39 and the DESIGN PARAMETERS given 
on page 11 indicate the limits of application for these 
chillers.
 2.  Cooler Water – Ratings are based upon 2.4 GPM 
per ton which is equal to a 10°F chilled water range 
and a 0.0001 fouling factor for the cooler at sea level. 
Tables on pages 16 through 39 give capacity, com-
pressor kW required, cooler GPM and unit EER.
 3.  Condenser – Ratings are given in terms of air on 
condenser in degrees Fahrenheit.
 4.  Copper Fin Condenser Ratings – Since the ther-
mal  conductivity  of  copper  is  slightly  higher  than 
aluminum,  apply  the  following  corrections  to  the 
standard ratings. Tons x 0.97 and compressor kW 
x 0.99.
 5.  Performance Data Correction Factors – Ratings 
are  based  on  0.0001  cooler  fouling  factor,  10°F 
chilled water range and at sea level. For operation at 
different conditions, apply the appropriate correction 
factor from the following table.
METHOD OF SELECTION
To select of YORK Packaged Air-Cooled Liquid Chiller, 
the following data must be known:
 1.  Design Capacity in tons refrigeration (TR).
 2.  Entering and Leaving Liquid Temperatures.
 3.  Outside ambient air temperature in degrees F.
 4.  GPM of chilled liquid.
Determine capacity requirements from the following 
formula:
GPM  =    TR x 24
               RANGE (°F)
EXAMPLE – WATER CHILLING
1.   Given: Provide a capacity of 50 tons at 42 F leav-
ing water at 10 F range. 0.0001FF, 85 F air on the 
condenser, at sea level and 60 Hz.
2.   Find: Unit Size, Compressor KW Output
3.   From the ratings on page 18.
Select: YCAL0061 (English Units)
 6.  Ethylene  Glycol  Correction  Factors  –  The  fol-
lowing  factors  are  to  be  applied  to  the  standard 
ratings for units cooling ethylene glycol.
 7.  Propylene Glycol Correction Factors – The fol-
lowing  factors  are  to  be  applied  to  the  standard 
ratings for units cooling propylene glycol.
Selection Data
FOULING FACTOR
ALTITUDE TEMP
SPLIT
0.0001 0.00025
TONS COMPR
kW TONS COMPR
kW
SEA LEVEL
8 0.990 0.998 0.979 0.996
10 1.000 1.000 0.991 0.998
12 1.012 1.003 1.002 1.001
14 1.021 1.005 1.012 1.003
2000 FT.
8 0.987 1.005 0.978 1.003
10 0.997 1.008 0.988 1.006
12 1.009 1.010 1.000 1.008
14 1.018 1.012 1.009 1.010
4000 FT.
8 0.983 1.014 0.975 1.012
10 0.994 1.016 0.985 1.014
12 1.005 1.019 1.111 1.017
14 1.014 1.021 1.006 1.019
6000 FT.
8 0.980 1.023 0.971 1.021
10 0.990 1.025 0.982 1.023
12 1.002 1.028 0.993 1.026
14 1.011 1.030 1.002 1.028
PROPYLENE GLYCOL
% 
WEIGHT TONS COMPR 
KW
GPM 
°F/TON
PRESS 
DROP
FREEZE 
PT
10 0.995 0.999 24.0 1.014 26
20 0.984 0.997 24.3 1.104 19
30 0.973 0.994 24.9 1.234 9
40 0.960 0.992 25.6 1.399 -6
50 0.943 0.989 26.6 1.599 -28
ETHYLENE GLYCOL
% 
WEIGHT TONS COMPR 
KW
GPM 
°F/TON
PRESS 
DROP
FREEZE 
PT
10 0.996 0.999 24.3 1.049 26.2
20 0.991 0.998 25.1 1.124 17.9
30 0.984 0.997 25.9 1.258 6.7
40 0.976 0.995 26.9 1.430 -8.1
50 0.968 0.994 28.0 1.650 -28.9

YORK INTERNATIONAL
12
    a.  56.1 Tons
    b.  55.9 Compressor KW
    c.  10.7 Unit EER
4.   Calculate Compressor kW at 50 Tons:
5.   Calculate GPM:
6.   From page ____, read 6 ft of water cooler pressure 
drop from GPM:
7.   A YCAL0061 is suitable.
EXAMPLE - BRINE CHILLING
Example - Brine Chilling
1.   Given: Provide a capacity of 34 tons cooling 30% by 
weight Ethylene Glycol from 50 F to 40 F, 0.00025FF, 
95 F air on the condenser, 60 Hz and 4000 ft. alti-
tude.
2.   Determine:
    a.  Unit Size
    b.  KW Input
    c.  Ethylene Glycol GPM
    d.  Cooler Pressure Drop
3.   See  E.G.  correction  factors,  for  30%  by  weight 
E.G.
 READ:  0.984 Tons Factor
        0.997 Compr. KW factor
            26.1 Gal,/ F/Tons Factor
4.   See  Performance  Data  Correction  Factors  for 
0.00025 fouling factor and 4,000 ft. altitude.
READ: 0.975 Tons factor
                 1.012 kW factor
5.   From RATINGS on page 16.
SELECT:   YCAL0045 (English Units)
                            35.3 Tons
                            41.1 Compressor kW
6.   Determine  YCAL0045  brine  cooling  capacity  and 
Compressor kW requirement from pg 14:
    a.  TONS: = 35.3 x 0.984 x 0.975 = 33.87
    b.  Compr. KW = 41.1 x 0.997 x 1.012 = 41.77
7.   Determine average full load Compressor kW at 34 
tons
8.   Determine E.G. GPM:
9.   Determine Cooler Pressure Drop:
    a.  See E.G. correction factors for 30% by weight 
E.G.
READ: 1.258 Pressure Drop factor
    b.  See page 14 at 88.7 GPM for YCAL0045
READ:   6.5_Water H2O PD
    c.  Cooler Pressure Drop = 6.5 x 1.258 or 8.17
       A YCAL0045 is suitable.
kWkWxkW 8.499.55
1.56
50 ==
GPM
FRange
Tons
GPM120
10
24
)50( =
°
×
=
kWCompressorx
tons
tons 93
.41)77.41(
87
.33
34 =
Range
TonfactorFGalTons
GPMmin/
/.°×
=
)(7.88
10
1.260.34 GPMGPM =
×
=

YORK INTERNATIONAL 13
FORM 150.64-EG1
NOTES:
1. For leaving brine temperature below 40°F (4.4°C), contact your nearest YORK Office for application requirements.
2. For leaving water temperature higher than 55°F (12.8°C), contact the nearest YORK Office for application guidelines.
3. The evaporator is protected against freezing to -20°F (-28.8°C) with an electric heater as standard.
4. For operation at temperatures below 25°F (-3.9°C), the optional Low Ambient Kit will need to be installed on the system (for YCAL0041-0065 
models only).
5. For operation at temperatures above 115°F (46.1°C), the optional High Ambient Kit will need to be installed on the system.
Design Parameters
ENGLISH
YCAL LEAVING WATER
TEMPERATURE (°F) COOLER FLOW (GPM) AIR ON CONDENSER (°F)
MIN MAX MIN MAX MIN MAX
0041 40 55 40 200 0 125
0045 40 55 40 200 0 125
0051 40 55 40 200 0 125
0055 40 55 60 300 0 125
0061 40 55 60 300 0 125
0065 40 55 60 300 0 125
SI UNITS
YCAL LEAVING WATER
TEMPERATURE (°DC) COOLER FLOW (L/S) AIR ON CONDENSER (°C)
MIN MAX MIN MAX MIN MAX
0041 4.4 12.8 2.5 12.6 -17.7 51.7
0045 4.4 12.8 2.5 12.6 -17.7 51.7
0051 4.4 12.8 2.5 12.6 -17.7 51.7
0055 4.4 12.8 3.8 18.9 -17.7 51.7
0061 4.4 12.8 3.8 18.9 -17.7 51.7
0065 4.4 12.8 3.8 18.9 -17.7 51.7

YORK INTERNATIONAL
14
Water Pressure Drop
Note: Water Pressure Drop Curves may extend past the minimum and maximum water flow ranges. See page 13 for minimum and maximum  
flow points.  
ENGLISH
1
10
100
10 100 1000
FLOW, GPM
Press Drop, Ft H 2O
A
B
C
D

YORK INTERNATIONAL 15
FORM 150.64-EG1
Note: Water Pressure Drop Curves may extend past the minimum and maximum water flow ranges. See page 13 for minimum and maximum 
flow points.  
SI
1
10
100
1000
1 10 100
FLOW, L/S
Press Drop, kPA
B
A C
D

YORK INTERNATIONAL
16
NOTES:
1.  kW = Compressor Input Power
2.  EER = Chiller EER (includes power from compressors, fans, and the control panels 0.8 kW)
3.  LCWT = Leaving Chilled Water Temperature
4.  Ratings are based upon 2.4 GPM cooler water per ton and 0.0001 fouling factor
5.  Rated in accordance with ARI Standard 550/590-98
6.  The shaded points are certified in accordance with ARI Standard 550/590-98 
Ratings - R-22 (60Hz - English Units)
MODEL: YCAL0041EC  IPLV=  13.9
 AIR TEMPERATURE ON - CONDENSER (°F)
LCWT
(°F)
75.0 80.0 85.0 90.0 95.0 100.0
TONS KW EER TONS KW EER TONS KW EER TONS KW EER TONS KW EER TONS KW EER
40.0 35.8 30.3 12.0 35.1 32.0 11.2 34.4 33.8 10.5 33.7 35.7 9.8 32.9 37.7 9.1 32.1 39.9 8.5
42.0 37.0 30.6 12.3 36.2 32.2 11.5 35.5 34.0 10.8 34.8 35.9 10.0 34.0 38.0 9.4 33.2 40.1 8.7
44.0 38.1 30.8 12.6 37.4 32.5 11.8 36.7 34.3 11.0 35.9 36.2 10.3 35.1 38.2 9.6 34.3 40.4 8.9
45.0 38.7 31.0 12.7 38.0 32.6 11.9 37.2 34.4 11.2 36.4 36.3 10.4 35.6 38.4 9.7 34.8 40.6 9.0
46.0 39.3 31.1 12.9 38.6 32.8 12.1 37.8 34.5 11.3 37.0 36.5 10.6 36.2 38.5 9.8 35.3 40.7 9.2
48.0 40.6 31.4 13.2 39.8 33.0 12.4 39.0 34.8 11.6 38.2 36.7 10.8 37.3 38.8 10.1 36.5 41.0 9.4
50.0 41.8 31.7 13.5 41.0 33.3 12.6 40.2 35.1 11.8 39.4 37.0 11.1 38.5 39.1 10.3 37.6 41.2 9.6
MODEL: YCAL0045EC  IPLV=  14.0
 AIR TEMPERATURE ON - CONDENSER (°F)
LCWT
(°F)
75.0 80.0 85.0 90.0 95.0 100.0
TONS KW EER TONS KW EER TONS KW EER TONS KW EER TONS KW EER TONS KW EER
40.0 39.0 33.4 12.0 38.1 35.1 11.2 37.2 37.0 10.5 36.3 39.0 9.8 35.4 41.2 9.1 34.4 43.5 8.4
42.0 40.3 33.7 12.3 39.3 35.4 11.5 38.4 37.3 10.8 37.5 39.3 10.0 36.6 41.5 9.3 35.6 43.8 8.7
44.0 41.5 34.0 12.6 40.6 35.7 11.8 39.7 37.6 11.0 38.7 39.6 10.3 37.8 41.8 9.6 36.8 44.1 8.9
45.0 42.2 34.1 12.7 41.2 35.9 11.9 40.3 37.7 11.2 39.3 39.8 10.4 38.4 41.9 9.7 37.4 44.2 9.0
46.0 42.8 34.3 12.9 41.9 36.0 12.1 40.9 37.9 11.3 40.0 39.9 10.5 39.0 42.1 9.8 38.0 44.4 9.1
48.0 44.1 34.6 13.2 43.2 36.4 12.3 42.2 38.2 11.6 41.2 40.3 10.8 40.2 42.4 10.1 39.2 44.7 9.4
50.0 45.5 35.0 13.4 44.5 36.7 12.6 43.5 38.6 11.8 42.5 40.6 11.0 41.5 42.8 10.3 40.5 45.1 9.6
MODEL: YCAL0051EC  IPLV=  14.3
 AIR TEMPERATURE ON - CONDENSER (°F)
LCWT
(°F)
75.0 80.0 85.0 90.0 95.0 100.0
TONS KW EER TONS KW EER TONS KW EER TONS KW EER TONS KW EER TONS KW EER
40.0 45.0 38.9 12.1 43.9 41.0 11.3 42.8 43.2 10.5 41.8 45.6 9.8 40.7 48.1 9.1 39.7 50.8 8.4
42.0 46.4 39.2 12.4 45.4 41.3 11.6 44.3 43.5 10.8 43.2 45.9 10.1 42.1 48.4 9.4 41.1 51.1 8.7
44.0 47.9 39.5 12.8 46.9 41.6 11.9 45.8 43.8 11.1 44.7 46.2 10.4 43.6 48.7 9.6 42.5 51.4 8.9
45.0 48.7 39.7 12.9 47.6 41.7 12.1 46.5 43.9 11.3 45.4 46.3 10.5 44.3 48.9 9.8 43.2 51.6 9.1
46.0 49.5 39.8 13.1 48.4 41.9 12.2 47.2 44.1 11.4 46.1 46.5 10.6 45.0 49.0 9.9 43.9 51.7 9.2
48.0 51.0 40.1 13.4 49.9 42.2 12.5 48.8 44.4 11.7 47.6 46.8 10.9 46.5 49.3 10.2 45.3 52.1 9.4
50.0 52.6 40.5 13.7 51.4 42.5 12.8 50.3 44.7 12.0 49.1 47.1 11.2 48.0 49.7 10.4 46.8 52.4 9.7

YORK INTERNATIONAL 17
FORM 150.64-EG1
NOTES:
1.  kW = Compressor Input Power
2.  EER = Chiller EER (includes power from compressors, fans, and the control panels 0.8 kW)
3.  LCWT = Leaving Chilled Water Temperature
4.  Ratings are based upon 2.4 GPM cooler water per ton and 0.0001 fouling factor
5.  Rated in accordance with ARI Standard 550/590-98
6.  The shaded points are certified in accordance with ARI Standard 550/590-98 
MODEL: YCAL0041EC  IPLV=  13.9
 AIR TEMPERATURE ON - CONDENSER (°F)
LCWT
(°F)
105 110.0 115.0 120.0 125.0
TONS KW EER TONS KW EER TONS KW EER TONS KW EER TONS KW EER
40.0 31.3 42.2 7.9 30.5 44.7 7.3 29.6 47.4 6.7 28.7 50.2 6.2 27.8 53.2 5.7
42.0 32.4 42.5 8.1 31.5 45.0 7.5 30.6 47.6 6.9 29.7 50.4 6.4 28.7 53.4 5.8
44.0 33.4 42.7 8.3 32.5 45.2 7.7 31.6 47.9 7.1 30.7 50.7 6.5 29.7 53.7 6.0
45.0 34.0 42.9 8.4 33.1 45.3 7.8 32.1 48.0 7.2 31.2 50.8 6.6 30.2 53.8 6.1
46.0 34.5 43.0 8.5 33.6 45.5 7.9 32.7 48.1 7.3 31.7 50.9 6.7 30.7 53.9 6.2
48.0 35.6 43.3 8.7 34.7 45.7 8.1 33.7 48.4 7.5 32.8 51.2 6.9 31.8 54.1 6.4
50.0 36.7 43.6 9.0 35.8 46.0 8.3 34.8 48.6 7.7 33.8 51.4 7.1 32.8 54.4 6.6
MODEL: YCAL0045EC  IPLV=  14.0
 AIR TEMPERATURE ON - CONDENSER (°F)
LCWT
(°F)
105 110.0 115.0 120.0 125.0
TONS KW EER TONS KW EER TONS KW EER TONS KW EER TONS KW EER
40.0 33.5 45.9 7.8 32.5 48.6 7.2 31.5 51.4 6.6 30.4 54.4 6.1 29.3 57.5 5.6
42.0 34.6 46.2 8.0 33.6 48.9 7.4 32.6 51.7 6.8 31.5 54.7 6.3 30.4 57.8 5.7
44.0 35.8 46.5 8.2 34.8 49.2 7.6 33.7 52.0 7.0 32.6 55.0 6.5 31.5 58.1 5.9
45.0 36.4 46.7 8.4 35.4 49.4 7.7 34.3 52.1 7.1 33.2 55.1 6.6 32.0 58.3 6.0
46.0 37.0 46.9 8.5 36.0 49.5 7.8 34.9 52.3 7.2 33.8 55.3 6.7 32.6 58.5 6.1
48.0 38.2 47.2 8.7 37.2 49.8 8.0 36.0 52.7 7.4 34.9 55.6 6.8 33.7 58.8 6.3
50.0 39.4 47.6 8.9 38.4 50.2 8.3 37.2 53.0 7.6 36.1 56.0 7.0 34.9 59.1 6.5
MODEL: YCAL0051EC  IPLV=  14.3
 AIR TEMPERATURE ON - CONDENSER (°F)
LCWT
(°F)
105 110.0 115.0 120.0 125.0
TONS KW EER TONS KW EER TONS KW EER TONS KW EER TONS KW EER
40.0 38.6 53.7 7.8 37.5 56.7 7.2 36.3 59.9 6.7 35.1 63.3 6.1 33.9 66.8 5.6
42.0 39.9 54.0 8.0 38.8 57.0 7.4 37.6 60.2 6.9 36.4 63.6 6.3 35.1 67.2 5.8
44.0 41.3 54.3 8.3 40.1 57.4 7.7 38.9 60.6 7.1 37.7 64.0 6.5 36.4 67.6 6.0
45.0 42.0 54.5 8.4 40.8 57.5 7.8 39.6 60.8 7.2 38.3 64.2 6.6 37.0 67.8 6.1
46.0 42.7 54.6 8.5 41.5 57.7 7.9 40.3 60.9 7.3 39.0 64.4 6.7 37.7 68.0 6.1
48.0 44.1 55.0 8.7 42.9 58.0 8.1 41.6 61.3 7.5 40.3 64.7 6.9 39.0 68.3 6.3
50.0 45.6 55.3 9.0 44.3 58.4 8.3 43.0 61.7 7.7 41.7 65.1 7.1 40.3 68.7 6.5

YORK INTERNATIONAL
18
NOTES:
1.  kW = Compressor Input Power
2.  EER = Chiller EER (includes power from compressors, fans, and the control panels 0.8 kW)
3.  LCWT = Leaving Chilled Water Temperature
4.  Ratings are based upon 2.4 GPM cooler water per ton and 0.0001 fouling factor
5.  Rated in accordance with ARI Standard 550/590-98
6.  The shaded points are certified in accordance with ARI Standard 550/590-98 
Ratings - R-22 (60Hz - English Units) - Cont.
MODEL: YCAL0055EC  IPLV=  13.6
 AIR TEMPERATURE ON - CONDENSER (°F)
LCWT
(°F)
75.0 80.0 85.0 90.0 95.0 100.0
TONS KW EER TONS KW EER TONS KW EER TONS KW EER TONS KW EER TONS KW EER
40.0 48.6 42.1 11.9 47.6 44.4 11.2 46.6 46.8 10.5 45.6 49.4 9.7 44.6 52.2 9.1 43.5 55.1 8.4
42.0 50.2 42.4 12.3 49.2 44.7 11.5 48.2 47.1 10.7 47.1 49.7 10.0 46.1 52.5 9.3 44.9 55.4 8.7
44.0 51.8 42.7 12.6 50.8 44.9 11.8 49.8 47.4 11.0 48.7 50.0 10.3 47.6 52.8 9.6 46.4 55.7 8.9
45.0 52.7 42.8 12.8 51.6 45.1 12.0 50.6 47.5 11.2 49.5 50.2 10.4 48.4 52.9 9.7 47.2 55.9 9.0
46.0 53.5 43.0 12.9 52.5 45.2 12.1 51.4 47.7 11.3 50.3 50.3 10.6 49.1 53.1 9.9 48.0 56.1 9.2
48.0 55.2 43.3 13.3 54.2 45.5 12.4 53.1 48.0 11.6 51.9 50.6 10.9 50.7 53.4 10.1 49.5 56.4 9.4
50.0 57.0 43.6 13.6 55.9 45.9 12.8 54.7 48.3 11.9 53.6 50.9 11.2 52.4 53.7 10.4 51.1 56.7 9.7
MODEL: YCAL0061EC  IPLV=  14.2
 AIR TEMPERATURE ON - CONDENSER (°F)
LCWT
(°F)
75.0 80.0 85.0 90.0 95.0 100.0
TONS KW EER TONS KW EER TONS KW EER TONS KW EER TONS KW EER TONS KW EER
40.0 56.8 49.8 12.1 55.6 52.6 11.3 54.5 55.5 10.5 53.3 58.7 9.8 52.0 62.0 9.1 50.8 65.5 8.4
42.0 58.7 50.2 12.4 57.5 53.0 11.5 56.3 56.0 10.8 55.0 59.1 10.0 53.8 62.5 9.3 52.5 66.0 8.7
44.0 60.6 50.6 12.7 59.4 53.4 11.8 58.1 56.4 11.0 56.9 59.6 10.3 55.6 62.9 9.6 54.2 66.5 8.9
45.0 61.5 50.9 12.8 60.3 53.6 12.0 59.1 56.6 11.2 57.8 59.8 10.4 56.5 63.2 9.7 55.1 66.7 9.0
46.0 62.5 51.1 13.0 61.3 53.9 12.1 60.0 56.8 11.3 58.7 60.0 10.6 57.4 63.4 9.8 56.0 67.0 9.1
48.0 64.5 51.5 13.3 63.2 54.3 12.4 61.9 57.3 11.6 60.6 60.5 10.8 59.2 63.9 10.1 57.8 67.5 9.4
50.0 66.5 52.0 13.6 65.2 54.8 12.7 63.9 57.8 11.9 62.5 61.0 11.1 61.1 64.4 10.3 59.7 68.0 9.6
MODEL: YCAL0065EC  IPLV=  14.5
 AIR TEMPERATURE ON - CONDENSER (°F)
LCWT
(°F)
75.0 80.0 85.0 90.0 95.0 100.0
TONS KW EER TONS KW EER TONS KW EER TONS KW EER TONS KW EER TONS KW EER
40.0 &   &   &   &   &   &   59.9 61.4 10.6 58.5 64.8 9.8 57.2 68.4 9.1 55.8 72.2 8.5
42.0 64.5 55.7 12.4 63.2 58.7 11.6 61.8 61.9 10.8 60.5 65.3 10.1 59.1 68.9 9.4 57.6 72.8 8.7
44.0 66.5 56.2 12.7 65.2 59.2 11.9 63.9 62.5 11.1 62.5 65.9 10.3 61.0 69.5 9.6 59.6 73.4 8.9
45.0 67.6 56.5 12.8 66.3 59.5 12.0 64.9 62.7 11.2 63.5 66.2 10.4 62.0 69.8 9.7 60.5 73.7 9.0
46.0 68.7 56.8 13.0 67.3 59.8 12.1 65.9 63.0 11.3 64.5 66.5 10.6 63.0 70.1 9.8 61.5 74.0 9.1
48.0 70.8 57.3 13.3 69.5 60.4 12.4 68.0 63.6 11.6 66.5 67.1 10.8 65.0 70.8 10.1 63.5 74.7 9.4
50.0 73.1 57.9 13.6 71.6 61.0 12.7 70.2 64.2 11.9 68.7 67.7 11.1 67.1 71.4 10.3 65.5 75.3 9.6

YORK INTERNATIONAL 19
FORM 150.64-EG1
NOTES:
1.  kW = Compressor Input Power
2.  EER = Chiller EER (includes power from compressors, fans, and the control panels 0.8 kW)
3.  LCWT = Leaving Chilled Water Temperature
4.  Ratings are based upon 2.4 GPM cooler water per ton and 0.0001 fouling factor
5.  Rated in accordance with ARI Standard 550/590-98
6.  The shaded points are certified in accordance with ARI Standard 550/590-98 
MODEL: YCAL0055EC  IPLV=  13.6
 AIR TEMPERATURE ON - CONDENSER (°F)
LCWT
(°F)
105 110.0 115.0 120.0 125.0
TONS KW EER TONS KW EER TONS KW EER TONS KW EER TONS KW EER
40.0 42.3 58.2 7.8 41.2 61.4 7.2 39.9 64.8 6.7 29.0 48.0 6.4 28.0 50.6 5.9
42.0 43.8 58.5 8.1 42.6 61.8 7.5 41.3 65.2 6.9 30.0 48.3 6.6 29.0 50.9 6.0
44.0 45.3 58.8 8.3 44.0 62.1 7.7 42.7 65.6 7.1 31.1 48.5 6.8 30.1 51.2 6.2
45.0 46.0 59.0 8.4 44.7 62.3 7.8 43.4 65.8 7.2 31.6 48.6 6.9 30.6 51.3 6.3
46.0 46.8 59.1 8.5 45.5 62.5 7.9 44.2 65.9 7.3 32.2 48.7 7.0 31.1 51.4 6.4
48.0 48.3 59.5 8.8 47.0 62.8 8.1 45.6 66.3 7.5 33.3 49.0 7.2 32.2 51.7 6.6
50.0 49.8 59.9 9.0 48.5 63.2 8.3 47.1 66.7 7.7 34.4 49.2 7.4 33.3 51.9 6.8
MODEL: YCAL0061EC  IPLV=  14.2
 AIR TEMPERATURE ON - CONDENSER (°F)
LCWT
(°F)
105 110.0 115.0 120.0 125.0
TONS KW EER TONS KW EER TONS KW EER TONS KW EER TONS KW EER
40.0 49.5 69.2 7.8 48.2 73.1 7.2 46.8 77.2 6.7 45.4 81.5 6.2 34.7 63.9 5.9
42.0 51.1 69.7 8.0 49.8 73.6 7.4 48.4 77.8 6.9 46.9 82.1 6.3 35.9 64.3 6.1
44.0 52.9 70.2 8.2 51.5 74.1 7.6 50.0 78.3 7.1 48.5 82.7 6.5 37.2 64.7 6.2
45.0 53.7 70.5 8.4 52.3 74.4 7.7 50.9 78.6 7.2 49.3 83.0 6.6 37.8 64.9 6.3
46.0 54.6 70.7 8.5 53.2 74.7 7.8 51.7 78.9 7.2 50.2 83.3 6.7 38.5 65.1 6.4
48.0 56.4 71.3 8.7 54.9 75.3 8.0 53.4 79.4 7.4 51.8 83.9 6.9 39.8 65.6 6.6
50.0 58.2 71.8 8.9 56.7 75.8 8.2 55.1 80.0 7.6 53.5 84.5 7.0 41.1 66.0 6.8
MODEL: YCAL0065EC  IPLV=  14.5
 AIR TEMPERATURE ON - CONDENSER (°F)
LCWT
(°F)
105 110.0 115.0 120.0 125.0
TONS KW EER TONS KW EER TONS KW EER TONS KW EER TONS KW EER
40.0 54.3 76.3 7.9 52.8 80.6 7.3 51.3 85.1 6.7 49.7 89.9 6.2 38.2 73.1 5.7
42.0 56.2 76.9 8.1 54.6 81.2 7.5 53.1 85.8 6.9 51.4 90.6 6.3 39.6 73.6 5.9
44.0 58.0 77.5 8.3 56.5 81.9 7.6 54.9 86.5 7.1 53.2 91.3 6.5 28.9 42.9 7.0
45.0 59.0 77.8 8.4 57.4 82.2 7.7 55.8 86.8 7.2 54.1 91.7 6.6 29.4 43.1 7.1
46.0 59.9 78.2 8.5 58.3 82.5 7.8 56.7 87.2 7.2 55.0 92.1 6.7 29.9 43.2 7.2
48.0 61.9 78.8 8.7 60.3 83.2 8.0 58.6 87.9 7.4 56.8 92.8 6.8 31.0 43.4 7.4
50.0 63.9 79.5 8.9 62.2 83.9 8.2 60.5 88.6 7.6 58.7 93.5 7.0 32.0 43.6 7.6

YORK INTERNATIONAL
20
Ratings - R-22 (60Hz - SI Units)
NOTES:
1.  kW = Compressor Input Power
2.  EER = Chiller EER (includes power from compressors, fans, and the control panels 0.8 kW)
3.  LCWT = Leaving Chilled Water Temperature
4.  Ratings are based upon 2.4 GPM cooler water per ton and 0.0001 fouling factor
5.  Rated in accordance with ARI Standard 550/590-98
6.  The shaded points are certified in accordance with ARI Standard 550/590-98 
MODEL: YCAL0041EC
 AIR TEMPERATURE ON - CONDENSER (°C)
LCWT
(°C)
25.0 30.0 35.0 40.0 45.0 50.0
KW KW COP KW KW COP KW KW COP KW KW COP KW KW COP KW KW COP
5.0 126.9 31.1 3.5 122.4 34.3 3.1 117.6 37.9 2.7 112.5 41.9 2.4 107.1 46.4 2.1 101.3 51.5 1.8
6.0 130.6 31.3 3.5 125.9 34.5 3.1 121.0 38.1 2.8 115.8 42.1 2.4 110.3 46.6 2.1 104.4 51.7 1.8
7.0 134.3 31.6 3.6 129.6 34.7 3.2 124.5 38.3 2.8 119.2 42.3 2.5 113.6 46.9 2.2 107.6 51.9 1.9
8.0 138.1 31.8 3.7 133.2 35.0 3.3 128.1 38.6 2.9 122.7 42.6 2.6 116.9 47.1 2.2 110.9 52.1 1.9
9.0 142.0 32.1 3.8 137.0 35.2 3.4 131.7 38.8 3.0 126.1 42.8 2.6 120.3 47.3 2.3 114.1 52.4 2.0
10.0 145.9 32.3 3.9 140.8 35.5 3.4 135.4 39.1 3.0 129.7 43.1 2.7 123.8 47.6 2.3 117.5 52.6 2.0
11.0 149.9 32.6 3.9 144.6 35.8 3.5 139.1 39.3 3.1 133.3 43.4 2.7 127.3 47.8 2.4 120.9 52.8 2.1
MODEL: YCAL0045EC
 AIR TEMPERATURE ON - CONDENSER (°C)
LCWT
(°C)
25.0 30.0 35.0 40.0 45.0 50.0
KW KW COP KW KW COP KW KW COP KW KW COP KW KW COP KW KW COP
5.0 138.1 34.2 3.5 132.3 37.5 3.1 126.4 41.3 2.7 120.4 45.6 2.4 114.1 50.4 2.0 107.3 55.8 1.8
6.0 142.1 34.5 3.6 136.2 37.8 3.1 130.2 41.6 2.8 124.1 45.8 2.4 117.7 50.6 2.1 110.7 56.0 1.8
7.0 146.1 34.7 3.6 140.1 38.1 3.2 134.1 41.9 2.8 127.9 46.1 2.5 121.4 50.9 2.2 114.3 56.3 1.9
8.0 150.2 35.0 3.7 144.1 38.4 3.3 138.0 42.2 2.9 131.7 46.4 2.5 125.0 51.2 2.2 117.9 56.6 1.9
9.0 154.3 35.3 3.8 148.2 38.7 3.4 142.0 42.5 3.0 135.5 46.7 2.6 128.7 51.5 2.3 121.5 56.9 1.9
10.0 158.5 35.7 3.8 152.3 39.0 3.4 146.0 42.8 3.0 139.4 47.1 2.7 132.5 51.9 2.3 125.2 57.2 2.0
11.0 162.7 36.0 3.9 156.4 39.3 3.5 150.0 43.1 3.1 143.3 47.4 2.7 136.4 52.2 2.4 128.9 57.5 2.0
MODEL: YCAL0051EC
 AIR TEMPERATURE ON - CONDENSER (°C)
LCWT
(°C)
25.0 30.0 35.0 40.0 45.0 50.0
KW KW COP KW KW COP KW KW COP KW KW COP KW KW COP KW KW COP
5.0 159.2 39.9 3.5 152.4 43.8 3.1 145.7 48.3 2.7 138.8 53.2 2.4 131.6 58.8 2.0 123.9 64.8 1.8
6.0 163.9 40.1 3.6 157.0 44.1 3.2 150.2 48.5 2.8 143.2 53.5 2.4 135.8 59.1 2.1 127.9 65.2 1.8
7.0 168.6 40.4 3.7 161.7 44.3 3.2 154.7 48.8 2.8 147.5 53.8 2.5 140.0 59.4 2.2 132.0 65.5 1.9
8.0 173.5 40.7 3.8 166.4 44.6 3.3 159.3 49.1 2.9 152.0 54.1 2.5 144.4 59.7 2.2 136.2 65.8 1.9
9.0 178.3 41.0 3.8 171.2 44.9 3.4 164.0 49.4 3.0 156.5 54.4 2.6 148.7 60.0 2.3 140.4 66.2 2.0
10.0 183.3 41.3 3.9 176.0 45.2 3.5 168.7 49.7 3.1 161.1 54.7 2.7 153.2 60.3 2.3 144.7 66.5 2.0
11.0 188.3 41.6 4.0 180.9 45.5 3.5 173.4 50.0 3.1 165.7 55.0 2.7 157.7 60.7 2.4 149.0 66.9 2.1

YORK INTERNATIONAL 21
FORM 150.64-EG1
NOTES:
1.  kW = Compressor Input Power
2.  EER = Chiller EER (includes power from compressors, fans, and the control panels 0.8 kW)
3.  LCWT = Leaving Chilled Water Temperature
4.  Ratings are based upon 2.4 GPM cooler water per ton and 0.0001 fouling factor
5.  Rated in accordance with ARI Standard 550/590-98
6.  The shaded points are certified in accordance with ARI Standard 550/590-98 
MODEL: YCAL0055EC
 AIR TEMPERATURE ON - CONDENSER (°C)
LCWT
(°C)
25.0 30.0 35.0 40.0 45.0 50.0
KW KW COP KW KW COP KW KW COP KW KW COP KW KW COP KW KW COP
5.0 172.2 43.1 3.5 166.0 47.5 3.1 159.3 52.3 2.7 152.2 57.7 2.4 144.6 63.6 2.1 102.4 49.2 1.8
6.0 177.4 43.4 3.5 170.9 47.7 3.1 164.1 52.6 2.8 156.8 58.0 2.4 149.0 63.9 2.1 105.7 49.4 1.9
7.0 182.6 43.6 3.6 176.0 48.0 3.2 169.0 52.9 2.8 161.6 58.3 2.5 153.6 64.3 2.2 109.0 49.6 1.9
8.0 187.9 43.9 3.7 181.1 48.3 3.3 173.9 53.2 2.9 166.3 58.6 2.6 158.2 64.6 2.2 112.4 49.8 2.0
9.0 193.3 44.2 3.8 186.4 48.5 3.4 179.0 53.4 3.0 171.1 58.9 2.6 162.9 64.9 2.3 115.9 50.1 2.0
10.0 198.8 44.5 3.9 191.7 48.8 3.5 184.1 53.7 3.1 176.1 59.2 2.7 167.7 65.3 2.3 119.4 50.3 2.1
11.0 204.4 44.8 4.0 197.1 49.1 3.5 189.4 54.0 3.1 181.1 59.6 2.7 172.5 65.6 2.4 122.9 50.5 2.2
MODEL: YCAL0061EC
 AIR TEMPERATURE ON - CONDENSER (°C)
LCWT
(°C)
25.0 30.0 35.0 40.0 45.0 50.0
KW KW COP KW KW COP KW KW COP KW KW COP KW KW COP KW KW COP
5.0 201.3 51.1 3.5 193.8 56.4 3.1 186.0 62.2 2.7 177.8 68.7 2.4 169.3 75.8 2.1 160.3 83.6 1.8
6.0 207.2 51.5 3.6 199.6 56.8 3.1 191.6 62.6 2.8 183.2 69.2 2.4 174.4 76.3 2.1 165.2 84.1 1.8
7.0 213.3 51.9 3.6 205.4 57.2 3.2 197.3 63.1 2.8 188.7 69.6 2.5 179.7 76.8 2.2 170.2 84.7 1.9
8.0 219.5 52.3 3.7 211.4 57.6 3.3 203.0 63.5 2.9 194.2 70.1 2.5 185.1 77.3 2.2 175.4 85.2 1.9
9.0 225.7 52.7 3.8 217.5 58.0 3.4 208.9 63.9 3.0 199.9 70.5 2.6 190.5 77.8 2.3 143.0 63.5 2.0
10.0 232.1 53.1 3.9 223.7 58.4 3.4 214.9 64.4 3.0 205.7 71.0 2.7 196.0 78.3 2.3 147.3 63.9 2.1
11.0 238.6 53.5 4.0 230.0 58.9 3.5 221.0 64.8 3.1 211.6 71.5 2.7 201.7 78.8 2.4 151.7 64.2 2.1
MODEL: YCAL0065EC
 AIR TEMPERATURE ON - CONDENSER (°C)
LCWT
(°C)
25.0 30.0 35.0 40.0 45.0 50.0
KW KW COP KW KW COP KW KW COP KW KW COP KW KW COP KW KW COP
5.0 221.3 56.6 3.5 213.0 62.3 3.1 204.4 68.7 2.7 195.3 75.7 2.4 185.7 83.6 2.1 175.5 92.3 1.8
6.0 227.7 57.1 3.6 219.3 62.8 3.2 210.5 69.2 2.8 201.2 76.3 2.4 191.3 84.2 2.1 180.9 92.9 1.8
7.0 234.3 57.6 3.6 225.7 63.3 3.2 216.7 69.7 2.8 207.2 76.9 2.5 197.1 84.8 2.2 186.5 93.6 1.9
8.0 241.1 58.1 3.7 232.2 63.8 3.3 223.0 70.3 2.9 213.3 77.4 2.5 203.0 85.4 2.2 192.1 94.2 1.9
9.0 247.9 58.6 3.8 238.9 64.3 3.4 229.4 70.8 3.0 219.5 78.0 2.6 209.0 86.0 2.3 197.9 94.9 2.0
10.0 254.9 59.1 3.9 245.7 64.9 3.4 236.0 71.4 3.0 225.8 78.6 2.7 215.1 86.7 2.3 162.8 73.4 2.0
11.0 262.1 59.6 4.0 252.6 65.4 3.5 242.7 71.9 3.1 232.3 79.2 2.7 221.3 87.3 2.4 167.7 74.0 2.1

YORK INTERNATIONAL
22
Ratings - R-22 (50Hz - English Units)
NOTES:
1.  kW = Compressor Input Power
2.  EER = Chiller EER (includes power from compressors, fans, and the control panels 0.8 kW)
3.  LCWT = Leaving Chilled Water Temperature
4.  Ratings are based upon 2.4 GPM cooler water per ton and 0.0001 fouling factor
5.  Rated in accordance with ARI Standard 550/590-98
6.  The shaded points are certified in accordance with ARI Standard 550/590-98 
MODEL: YCAL0041EC  IPLV=  16.2
 AIR TEMPERATURE ON - CONDENSER (°F)
LCWT
(°F)
75.0 80.0 85.0 90.0 95.0 100.0
TONS KW EER TONS KW EER TONS KW EER TONS KW EER TONS KW EER TONS KW EER
40.0 30.4 23.6 13.6 29.8 25.1 12.6 29.1 26.7 11.7 28.5 28.4 10.8 27.9 30.2 10.0 27.2 32.2 9.2
42.0 31.4 23.8 13.9 30.8 25.3 12.9 30.1 26.9 12.0 29.5 28.6 11.1 28.8 30.4 10.3 28.1 32.3 9.5
44.0 32.4 24.0 14.3 31.8 25.5 13.3 31.1 27.1 12.3 30.4 28.8 11.4 29.8 30.6 10.6 29.1 32.5 9.7
45.0 33.0 24.1 14.4 32.3 25.6 13.4 31.6 27.2 12.5 30.9 28.9 11.6 30.2 30.7 10.7 29.5 32.6 9.9
46.0 33.5 24.2 14.6 32.8 25.7 13.6 32.1 27.3 12.6 31.4 29.0 11.7 30.7 30.8 10.8 30.0 32.7 10.0
48.0 34.5 24.5 15.0 33.8 25.9 13.9 33.1 27.5 12.9 32.5 29.2 12.0 31.7 31.0 11.1 31.0 33.0 10.3
50.0 35.6 24.7 15.3 34.9 26.2 14.2 34.2 27.7 13.2 33.5 29.4 12.3 32.8 31.2 11.4 32.0 33.2 10.5
MODEL: YCAL0045EC  IPLV=  16.1
 AIR TEMPERATURE ON - CONDENSER (°F)
LCWT
(°F)
75.0 80.0 85.0 90.0 95.0 100.0
TONS KW EER TONS KW EER TONS KW EER TONS KW EER TONS KW EER TONS KW EER
40.0 32.9 25.9 13.6 32.2 27.5 12.6 31.5 29.2 11.7 30.8 31.0 10.8 30.0 32.9 10.0 29.2 35.0 9.2
42.0 34.0 26.2 13.9 33.3 27.8 12.9 32.6 29.4 12.0 31.8 31.2 11.1 31.1 33.2 10.2 30.2 35.3 9.4
44.0 35.1 26.4 14.2 34.4 28.0 13.2 33.7 29.7 12.3 32.9 31.5 11.4 32.1 33.4 10.5 31.3 35.5 9.7
45.0 35.7 26.5 14.4 34.9 28.1 13.4 34.2 29.8 12.4 33.4 31.6 11.5 32.6 33.5 10.6 31.8 35.6 9.8
46.0 36.2 26.7 14.5 35.5 28.2 13.5 34.7 29.9 12.6 34.0 31.7 11.7 33.2 33.7 10.8 32.3 35.7 10.0
48.0 37.4 26.9 14.9 36.6 28.5 13.8 35.9 30.2 12.9 35.1 32.0 11.9 34.2 33.9 11.1 33.4 36.0 10.2
50.0 38.5 27.2 15.2 37.8 28.8 14.2 37.0 30.5 13.2 36.2 32.3 12.2 35.3 34.2 11.3 34.4 36.3 10.5
MODEL: YCAL0051EC  IPLV=  15.7
 AIR TEMPERATURE ON - CONDENSER (°F)
LCWT
(°F)
75.0 80.0 85.0 90.0 95.0 100.0
TONS KW EER TONS KW EER TONS KW EER TONS KW EER TONS KW EER TONS KW EER
40.0 37.9 30.8 13.3 37.1 32.6 12.4 36.3 34.6 11.5 35.5 36.7 10.7 34.6 38.9 9.9 33.8 41.3 9.1
42.0 39.1 31.0 13.7 38.3 32.9 12.7 37.5 34.8 11.8 36.7 36.9 11.0 35.8 39.1 10.1 34.9 41.5 9.4
44.0 40.4 31.3 14.0 39.6 33.1 13.1 38.8 35.1 12.2 37.9 37.1 11.3 37.0 39.4 10.4 36.1 41.7 9.6
45.0 41.0 31.4 14.2 40.2 33.2 13.2 39.4 35.2 12.3 38.5 37.3 11.4 37.6 39.5 10.6 36.7 41.9 9.8
46.0 41.7 31.5 14.4 40.9 33.4 13.4 40.0 35.3 12.5 39.2 37.4 11.6 38.3 39.6 10.7 37.3 42.0 9.9
48.0 43.0 31.8 14.7 42.2 33.6 13.7 41.3 35.6 12.8 40.4 37.6 11.9 39.5 39.9 11.0 38.5 42.2 10.2
50.0 44.4 32.1 15.1 43.5 33.9 14.1 42.6 35.8 13.1 41.7 37.9 12.2 40.8 40.1 11.3 39.8 42.5 10.4

YORK INTERNATIONAL 23
FORM 150.64-EG1
NOTES:
1.  kW = Compressor Input Power
2.  EER = Chiller EER (includes power from compressors, fans, and the control panels 0.8 kW)
3.  LCWT = Leaving Chilled Water Temperature
4.  Ratings are based upon 2.4 GPM cooler water per ton and 0.0001 fouling factor
5.  Rated in accordance with ARI Standard 550/590-98
6.  The shaded points are certified in accordance with ARI Standard 550/590-98 
MODEL: YCAL0041EC  IPLV=  16.2
 AIR TEMPERATURE ON - CONDENSER (°F)
LCWT
(°F)
105 110.0 115.0 120.0 125.0
TONS KW EER TONS KW EER TONS KW EER TONS KW EER TONS KW EER
26.5 40.0 34.3 8.5 25.7 36.5 7.8 25.0 39.0 7.1 24.1 41.6 6.5 23.2 44.4 5.8
27.4 42.0 34.5 8.7 26.6 36.7 8.0 25.8 39.2 7.3 25.0 41.8 6.7 24.1 44.6 6.0
28.3 44.0 34.7 9.0 27.5 36.9 8.2 26.7 39.4 7.5 25.9 42.0 6.9 24.9 44.8 6.2
28.8 45.0 34.8 9.1 28.0 37.0 8.4 27.2 39.5 7.6 26.3 42.1 7.0 25.4 44.9 6.3
29.3 46.0 34.9 9.2 28.5 37.1 8.5 27.6 39.6 7.8 26.8 42.2 7.1 25.8 45.0 6.4
30.2 48.0 35.1 9.5 29.4 37.3 8.7 28.6 39.8 8.0 27.7 42.4 7.3 26.7 45.2 6.6
31.2 50.0 35.3 9.7 30.4 37.5 8.9 29.5 40.0 8.2 28.6 42.6 7.5 27.6 45.4 6.8
MODEL: YCAL0045EC  IPLV=  16.1
 AIR TEMPERATURE ON - CONDENSER (°F)
LCWT
(°F)
105 110.0 115.0 120.0 125.0
TONS KW EER TONS KW EER TONS KW EER TONS KW EER TONS KW EER
28.4 40.0 37.3 8.4 27.6 39.7 7.7 26.6 42.2 7.0 25.7 45.0 6.4 24.7 47.9 5.8
29.4 42.0 37.5 8.7 28.5 39.9 7.9 27.6 42.5 7.2 26.6 45.2 6.6 25.6 48.2 6.0
30.4 44.0 37.7 8.9 29.5 40.1 8.2 28.6 42.7 7.5 27.6 45.4 6.8 26.5 48.4 6.2
30.9 45.0 37.8 9.0 30.0 40.2 8.3 29.1 42.8 7.6 28.1 45.6 6.9 27.0 48.5 6.3
31.4 46.0 38.0 9.2 30.5 40.4 8.4 29.6 42.9 7.7 28.5 45.7 7.0 27.5 48.6 6.4
32.5 48.0 38.2 9.4 31.5 40.6 8.6 30.6 43.2 7.9 29.5 45.9 7.2 28.4 48.9 6.6
33.5 50.0 38.5 9.6 32.6 40.9 8.9 31.6 43.4 8.1 30.5 46.2 7.4 29.4 49.1 6.7
MODEL: YCAL0051EC  IPLV=  15.7
 AIR TEMPERATURE ON - CONDENSER (°F)
LCWT
(°F)
105 110.0 115.0 120.0 125.0
TONS KW EER TONS KW EER TONS KW EER TONS KW EER TONS KW EER
32.8 40.0 43.8 8.4 31.9 46.4 7.7 30.9 49.3 7.1 29.8 52.3 6.5 28.7 55.4 5.9
34.0 42.0 44.0 8.6 33.0 46.7 7.9 32.0 49.5 7.3 30.9 52.5 6.7 29.8 55.7 6.1
35.1 44.0 44.3 8.9 34.2 46.9 8.2 33.1 49.8 7.5 32.0 52.8 6.9 30.9 56.0 6.3
35.7 45.0 44.4 9.0 34.7 47.0 8.3 33.7 49.9 7.6 32.6 52.9 7.0 31.4 56.1 6.4
36.3 46.0 44.5 9.1 35.3 47.2 8.4 34.2 50.0 7.7 33.1 53.0 7.1 32.0 56.2 6.5
37.5 48.0 44.7 9.4 36.5 47.4 8.6 35.4 50.3 7.9 34.3 53.3 7.3 33.1 56.5 6.6
38.8 50.0 45.0 9.6 37.7 47.7 8.9 36.6 50.5 8.2 35.4 53.6 7.5 34.2 56.8 6.8

YORK INTERNATIONAL
24
Ratings - R-22 (50Hz - English Units) - Cont.
NOTES:
1.  kW = Compressor Input Power
2.  EER = Chiller EER (includes power from compressors, fans, and the control panels 0.8 kW)
3.  LCWT = Leaving Chilled Water Temperature
4.  Ratings are based upon 2.4 GPM cooler water per ton and 0.0001 fouling factor
5.  Rated in accordance with ARI Standard 550/590-98
6.  The shaded points are certified in accordance with ARI Standard 550/590-98 
MODEL: YCAL0055EC  IPLV=  15.0
 AIR TEMPERATURE ON - CONDENSER (°F)
LCWT
(°F)
75.0 80.0 85.0 90.0 95.0 100.0
TONS KW EER TONS KW EER TONS KW EER TONS KW EER TONS KW EER TONS KW EER
40.0 41.2 33.8 13.1 40.4 35.7 12.2 39.6 37.8 11.4 38.7 40.0 10.6 37.8 42.4 9.8 36.9 44.9 9.1
42.0 42.6 34.0 13.5 41.7 36.0 12.6 40.9 38.0 11.7 40.0 40.3 10.9 39.1 42.6 10.1 38.2 45.1 9.4
44.0 44.0 34.3 13.8 43.1 36.2 12.9 42.3 38.3 12.0 41.4 40.5 11.2 40.4 42.8 10.4 39.5 45.4 9.6
45.0 44.7 34.4 14.0 43.8 36.3 13.1 43.0 38.4 12.2 42.1 40.6 11.3 41.1 43.0 10.5 40.1 45.5 9.8
46.0 45.4 34.5 14.2 44.5 36.4 13.3 43.7 38.5 12.4 42.7 40.7 11.5 41.8 43.1 10.7 40.8 45.6 9.9
48.0 46.9 34.7 14.6 46.0 36.7 13.6 45.1 38.8 12.7 44.1 40.9 11.8 43.1 43.3 11.0 42.1 45.8 10.2
50.0 48.4 35.0 14.9 47.5 36.9 14.0 46.5 39.0 13.0 45.6 41.2 12.1 44.5 43.6 11.3 43.5 46.1 10.4
MODEL: YCAL0061EC  IPLV=  15.7
 AIR TEMPERATURE ON - CONDENSER (°F)
LCWT
(°F)
75.0 80.0 85.0 90.0 95.0 100.0
TONS KW EER TONS KW EER TONS KW EER TONS KW EER TONS KW EER TONS KW EER
40.0 48.0 40.0 13.1 47.0 42.3 12.2 46.0 44.8 11.3 45.0 47.5 10.5 44.0 50.3 9.8 43.0 53.3 9.0
42.0 49.6 40.3 13.5 48.6 42.6 12.5 47.6 45.1 11.6 46.6 47.8 10.8 45.5 50.6 10.0 44.4 53.6 9.3
44.0 51.2 40.6 13.8 50.2 42.9 12.9 49.1 45.5 12.0 48.1 48.1 11.1 47.0 51.0 10.3 45.9 54.0 9.5
45.0 52.0 40.7 14.0 51.0 43.1 13.0 49.9 45.6 12.1 48.9 48.3 11.2 47.8 51.1 10.4 46.7 54.2 9.7
46.0 52.9 40.9 14.2 51.8 43.3 13.2 50.8 45.8 12.3 49.7 48.5 11.4 48.6 51.3 10.6 47.4 54.3 9.8
48.0 54.6 41.2 14.5 53.5 43.6 13.5 52.4 46.1 12.6 51.3 48.8 11.7 50.2 51.6 10.8 49.0 54.7 10.0
50.0 56.3 41.6 14.9 55.2 43.9 13.8 54.1 46.5 12.9 52.9 49.1 12.0 51.8 52.0 11.1 50.6 55.1 10.3
MODEL: YCAL0065EC  IPLV=  15.8
 AIR TEMPERATURE ON - CONDENSER (°F)
LCWT
(°F)
75.0 80.0 85.0 90.0 95.0 100.0
TONS KW EER TONS KW EER TONS KW EER TONS KW EER TONS KW EER TONS KW EER
40.0 52.5 44.2 13.1 51.4 46.7 12.2 50.3 49.4 11.3 49.2 52.3 10.5 48.1 55.4 9.7 46.9 58.7 9.0
42.0 54.2 44.5 13.4 53.1 47.1 12.5 52.0 49.8 11.6 50.9 52.7 10.8 49.7 55.8 10.0 48.5 59.1 9.2
44.0 55.9 44.9 13.8 54.8 47.5 12.8 53.7 50.2 11.9 52.5 53.1 11.1 51.3 56.2 10.2 50.1 59.6 9.5
45.0 56.8 45.1 13.9 55.7 47.7 13.0 54.6 50.4 12.1 53.4 53.3 11.2 52.2 56.4 10.4 50.9 59.8 9.6
46.0 57.7 45.3 14.1 56.6 47.9 13.1 55.4 50.6 12.2 54.2 53.5 11.3 53.0 56.7 10.5 51.7 60.0 9.7
48.0 59.6 45.7 14.4 58.4 48.3 13.4 57.2 51.0 12.5 56.0 54.0 11.6 54.7 57.1 10.8 53.4 60.4 10.0
50.0 61.4 46.1 14.7 60.2 48.7 13.7 59.0 51.5 12.8 57.7 54.4 11.9 56.5 57.5 11.0 55.1 60.9 10.2

YORK INTERNATIONAL 25
FORM 150.64-EG1
NOTES:
1.  kW = Compressor Input Power
2.  EER = Chiller EER (includes power from compressors, fans, and the control panels 0.8 kW)
3.  LCWT = Leaving Chilled Water Temperature
4.  Ratings are based upon 2.4 GPM cooler water per ton and 0.0001 fouling factor
5.  Rated in accordance with ARI Standard 550/590-98
6.  The shaded points are certified in accordance with ARI Standard 550/590-98 
MODEL: YCAL0055EC  IPLV=  15.0
 AIR TEMPERATURE ON - CONDENSER (°F)
LCWT
(°F)
105 110.0 115.0 120.0 125.0
TONS KW EER TONS KW EER TONS KW EER TONS KW EER TONS KW EER
36.0 40.0 47.5 8.4 35.0 50.3 7.7 33.9 53.3 7.1 32.8 56.4 6.5 31.7 59.7 6.0
37.2 42.0 47.8 8.6 36.2 50.6 8.0 35.1 53.6 7.3 34.0 56.7 6.7 32.8 60.0 6.2
38.5 44.0 48.0 8.9 37.4 50.9 8.2 36.3 53.8 7.6 35.2 57.0 6.9 34.0 60.3 6.4
39.1 45.0 48.2 9.0 38.1 51.0 8.3 36.9 54.0 7.7 35.8 57.1 7.0 34.6 60.5 6.4
39.8 46.0 48.3 9.1 38.7 51.1 8.4 37.6 54.1 7.8 36.4 57.3 7.1 35.2 60.6 6.5
41.1 48.0 48.5 9.4 40.0 51.4 8.7 38.8 54.4 8.0 37.6 57.6 7.3 36.4 60.9 6.7
42.4 50.0 48.8 9.7 41.3 51.7 8.9 40.1 54.7 8.2 38.9 57.9 7.6 37.6 61.2 6.9
MODEL: YCAL0061EC  IPLV=  15.7
 AIR TEMPERATURE ON - CONDENSER (°F)
LCWT
(°F)
105 110.0 115.0 120.0 125.0
TONS KW EER TONS KW EER TONS KW EER TONS KW EER TONS KW EER
41.9 40.0 56.5 8.3 40.7 59.9 7.7 39.5 63.5 7.0 38.2 67.3 6.4 36.8 71.3 5.9
43.3 42.0 56.8 8.6 42.1 60.3 7.9 40.9 63.8 7.2 39.5 67.7 6.6 38.1 71.7 6.1
44.8 44.0 57.2 8.8 43.6 60.6 8.1 42.3 64.3 7.4 40.9 68.1 6.8 39.5 72.2 6.2
45.5 45.0 57.4 8.9 44.3 60.8 8.2 43.0 64.5 7.5 41.6 68.3 6.9 40.2 72.4 6.3
46.3 46.0 57.6 9.0 45.0 61.0 8.3 43.7 64.7 7.6 42.3 68.5 7.0 40.8 72.6 6.4
47.8 48.0 57.9 9.3 46.5 61.4 8.5 45.1 65.1 7.9 43.7 68.9 7.2 42.2 73.0 6.6
49.3 50.0 58.3 9.5 48.0 61.8 8.8 46.6 65.5 8.1 45.2 69.4 7.4 43.7 73.5 6.8
MODEL: YCAL0065EC  IPLV=  15.8
 AIR TEMPERATURE ON - CONDENSER (°F)
LCWT
(°F)
105 110.0 115.0 120.0 125.0
TONS KW EER TONS KW EER TONS KW EER TONS KW EER TONS KW EER
45.6 40.0 62.2 8.3 44.3 65.9 7.6 42.8 69.9 7.0 41.3 74.2 6.3 39.6 78.7 5.8
47.2 42.0 62.7 8.5 45.8 66.4 7.8 44.3 70.4 7.2 42.8 74.7 6.5 41.1 79.2 5.9
48.8 44.0 63.1 8.7 47.4 66.9 8.0 45.9 70.9 7.4 44.3 75.2 6.7 42.6 79.8 6.1
49.6 45.0 63.3 8.8 48.2 67.1 8.1 46.7 71.2 7.5 45.1 75.5 6.8 43.4 80.1 6.2
50.4 46.0 63.6 9.0 49.0 67.4 8.2 47.4 71.4 7.6 45.8 75.7 6.9 44.1 80.3 6.3
52.0 48.0 64.0 9.2 50.6 67.9 8.5 49.0 72.0 7.8 47.4 76.3 7.1 35.1 54.3 7.2
53.7 50.0 64.5 9.4 52.2 68.4 8.7 50.6 72.5 8.0 49.0 76.8 7.3 36.3 54.6 7.4

YORK INTERNATIONAL
26
Ratings - R-22 (50Hz - SI Units)
NOTES:
1.  kW = Compressor Input Power
2.  EER = Chiller EER (includes power from compressors, fans, and the control panels 0.8 kW)
3.  LCWT = Leaving Chilled Water Temperature
4.  Ratings are based upon 2.4 GPM cooler water per ton and 0.0001 fouling factor
5.  Rated in accordance with ARI Standard 550/590-98
6.  The shaded points are certified in accordance with ARI Standard 550/590-98 
MODEL: YCAL0041EC
 AIR TEMPERATURE ON - CONDENSER (°C)
LCWT
(°C)
25.0 30.0 35.0 40.0 45.0 50.0
KW KW COP KW KW COP KW KW COP KW KW COP KW KW COP KW KW COP
5.0 107.8 24.3 3.9 103.7 27.1 3.4 99.6 30.3 3.0 95.2 33.9 2.6 90.4 38.1 2.2 85.1 42.8 1.9
6.0 111.0 24.5 4.0 106.9 27.3 3.5 102.6 30.5 3.0 98.1 34.1 2.6 93.3 38.2 2.3 87.8 43.0 1.9
7.0 114.2 24.7 4.1 110.0 27.5 3.6 105.7 30.6 3.1 101.1 34.3 2.7 96.1 38.4 2.3 90.6 43.2 2.0
8.0 117.5 24.9 4.2 113.2 27.6 3.7 108.8 30.8 3.2 104.1 34.5 2.8 99.1 38.6 2.4 93.4 43.3 2.0
9.0 120.8 25.1 4.3 116.4 27.9 3.7 112.0 31.0 3.3 107.2 34.6 2.8 102.0 38.8 2.4 96.3 43.5 2.1
10.0 124.2 25.3 4.4 119.7 28.1 3.8 115.2 31.2 3.3 110.3 34.8 2.9 105.0 39.0 2.5 99.2 43.7 2.1
11.0 127.6 25.5 4.5 123.1 28.3 3.9 118.4 31.4 3.4 113.5 35.0 3.0 108.1 39.2 2.6 102.2 43.9 2.2
MODEL: YCAL0045EC
 AIR TEMPERATURE ON - CONDENSER (°C)
LCWT
(°C)
25.0 30.0 35.0 40.0 45.0 50.0
KW KW COP KW KW COP KW KW COP KW KW COP KW KW COP KW KW COP
5.0 116.7 26.7 3.9 112.2 29.7 3.4 107.4 33.1 3.0 102.2 36.9 2.6 96.7 41.3 2.2 90.6 46.3 1.8
6.0 120.2 26.9 4.0 115.6 29.9 3.5 110.7 33.3 3.0 105.4 37.1 2.6 99.7 41.5 2.2 93.5 46.5 1.9
7.0 123.7 27.1 4.1 119.0 30.1 3.6 114.0 33.5 3.1 108.6 37.3 2.7 102.8 41.7 2.3 96.5 46.7 1.9
8.0 127.2 27.3 4.2 122.4 30.3 3.7 117.3 33.7 3.2 111.9 37.6 2.7 106.0 41.9 2.4 99.6 46.9 2.0
9.0 130.8 27.6 4.2 125.9 30.6 3.7 120.7 33.9 3.3 115.2 37.8 2.8 109.2 42.2 2.4 102.7 47.1 2.0
10.0 134.4 27.8 4.3 129.4 30.8 3.8 124.2 34.2 3.3 118.6 38.0 2.9 112.4 42.4 2.5 105.8 47.3 2.1
11.0 138.1 28.1 4.4 133.0 31.1 3.9 127.7 34.4 3.4 122.0 38.2 2.9 115.7 42.6 2.5 109.0 47.6 2.2
MODEL: YCAL0051EC
 AIR TEMPERATURE ON - CONDENSER (°C)
LCWT
(°C)
25.0 30.0 35.0 40.0 45.0 50.0
KW KW COP KW KW COP KW KW COP KW KW COP KW KW COP KW KW COP
5.0 134.2 31.6 3.9 129.2 35.1 3.4 123.9 39.0 2.9 118.2 43.4 2.5 112.0 48.2 2.2 105.3 53.6 1.9
6.0 138.2 31.9 3.9 133.1 35.3 3.5 127.7 39.2 3.0 121.8 43.6 2.6 115.5 48.5 2.2 108.7 53.9 1.9
7.0 142.3 32.1 4.0 137.1 35.5 3.5 131.5 39.4 3.1 125.5 43.8 2.7 119.1 48.7 2.3 112.1 54.1 2.0
8.0 146.4 32.3 4.1 141.1 35.8 3.6 135.4 39.6 3.2 129.3 44.0 2.7 122.7 48.9 2.4 115.6 54.3 2.0
9.0 150.6 32.5 4.2 145.2 36.0 3.7 139.3 39.9 3.2 133.1 44.3 2.8 126.4 49.1 2.4 119.2 54.6 2.1
10.0 154.9 32.8 4.3 149.3 36.2 3.8 143.4 40.1 3.3 137.0 44.5 2.9 130.1 49.4 2.5 122.8 54.8 2.1
11.0 159.2 33.0 4.4 153.5 36.5 3.9 147.4 40.4 3.4 140.9 44.7 2.9 134.0 49.6 2.5 126.5 55.1 2.2

YORK INTERNATIONAL 27
FORM 150.64-EG1
NOTES:
1.  kW = Compressor Input Power
2.  EER = Chiller EER (includes power from compressors, fans, and the control panels 0.8 kW)
3.  LCWT = Leaving Chilled Water Temperature
4.  Ratings are based upon 2.4 GPM cooler water per ton and 0.0001 fouling factor
5.  Rated in accordance with ARI Standard 550/590-98
6.  The shaded points are certified in accordance with ARI Standard 550/590-98 
MODEL: YCAL0055EC
 AIR TEMPERATURE ON - CONDENSER (°C)
LCWT
(°C)
25.0 30.0 35.0 40.0 45.0 50.0
KW KW COP KW KW COP KW KW COP KW KW COP KW KW COP KW KW COP
5.0 146.1 34.7 3.8 140.9 38.4 3.3 135.3 42.5 2.9 129.3 47.1 2.5 122.9 52.2 2.2 115.9 57.8 1.9
6.0 150.5 34.9 3.9 145.1 38.6 3.4 139.4 42.7 3.0 133.3 47.3 2.6 126.7 52.5 2.3 119.6 58.1 1.9
7.0 155.0 35.1 4.0 149.5 38.8 3.5 143.6 42.9 3.1 137.4 47.6 2.7 130.6 52.7 2.3 123.3 58.4 2.0
8.0 159.5 35.3 4.1 153.9 39.0 3.6 147.9 43.1 3.2 141.5 47.8 2.7 134.6 53.0 2.4 127.1 58.7 2.0
9.0 164.2 35.5 4.2 158.3 39.2 3.7 152.2 43.3 3.2 145.6 48.0 2.8 138.6 53.2 2.4 131.0 58.9 2.1
10.0 168.9 35.7 4.3 162.9 39.4 3.8 156.6 43.6 3.3 149.9 48.2 2.9 142.7 53.4 2.5 134.9 59.2 2.1
11.0 173.7 36.0 4.4 167.5 39.6 3.9 161.1 43.8 3.4 154.2 48.5 2.9 146.8 53.7 2.6 138.9 59.5 2.2
MODEL: YCAL0061EC
 AIR TEMPERATURE ON - CONDENSER (°C)
LCWT
(°C)
25.0 30.0 35.0 40.0 45.0 50.0
KW KW COP KW KW COP KW KW COP KW KW COP KW KW COP KW KW COP
5.0 170.1 41.1 3.8 163.9 45.5 3.3 157.4 50.5 2.9 150.5 56.0 2.5 143.0 62.2 2.2 134.7 69.0 1.9
6.0 175.2 41.3 3.9 168.8 45.8 3.4 162.2 50.7 3.0 155.1 56.3 2.6 147.5 62.5 2.2 139.0 69.4 1.9
7.0 180.3 41.6 4.0 173.8 46.1 3.5 167.0 51.1 3.0 159.8 56.7 2.6 152.0 62.9 2.3 143.3 69.8 2.0
8.0 185.6 41.9 4.1 178.9 46.4 3.6 171.9 51.4 3.1 164.6 57.0 2.7 156.6 63.3 2.3 147.8 70.2 2.0
9.0 190.9 42.2 4.1 184.0 46.7 3.6 176.9 51.7 3.2 169.4 57.3 2.8 161.2 63.6 2.4 152.2 70.6 2.0
10.0 196.4 42.5 4.2 189.3 47.0 3.7 182.0 52.0 3.3 174.3 57.6 2.8 165.9 64.0 2.4 156.7 71.0 2.1
11.0 201.9 42.8 4.3 194.7 47.3 3.8 187.2 52.3 3.3 179.3 58.0 2.9 170.7 64.3 2.5 161.3 71.4 2.1
MODEL: YCAL0065EC
 AIR TEMPERATURE ON - CONDENSER (°C)
LCWT
(°C)
25.0 30.0 35.0 40.0 45.0 50.0
KW KW COP KW KW COP KW KW COP KW KW COP KW KW COP KW KW COP
5.0 186.0 45.4 3.8 179.1 50.2 3.3 171.9 55.6 2.9 164.0 61.7 2.5 155.3 68.5 2.1 145.5 76.2 1.8
6.0 191.4 45.7 3.9 184.4 50.5 3.4 177.0 56.0 3.0 169.0 62.1 2.6 160.2 69.0 2.2 150.2 76.7 1.9
7.0 197.0 46.0 4.0 189.8 50.9 3.5 182.2 56.4 3.0 174.1 62.5 2.6 165.1 69.4 2.3 155.0 77.2 1.9
8.0 202.7 46.4 4.0 195.3 51.3 3.5 187.6 56.7 3.1 179.3 62.9 2.7 170.1 69.9 2.3 159.9 77.7 2.0
9.0 208.4 46.8 4.1 200.9 51.6 3.6 193.0 57.1 3.2 184.5 63.3 2.7 175.2 70.3 2.4 164.8 78.1 2.0
10.0 214.3 47.1 4.2 206.6 52.0 3.7 198.5 57.5 3.2 189.8 63.8 2.8 180.3 70.8 2.4 169.8 78.6 2.1
11.0 220.3 47.5 4.3 212.4 52.4 3.8 204.1 58.0 3.3 195.2 64.2 2.9 185.6 71.3 2.5 174.9 79.2 2.1

YORK INTERNATIONAL
28
Part Load Ratings - R-22 (English Units)
YCAL0041  
% FULL 
LOAD 
DISPL.
TONS KW Ambient 
°F
UNIT 
EER
100.0 35.0 38.2 95.0 9.6
75.0 28.2 24.5 83.3 11.2
50.0 20.2 14.0 69.7 14.4
25.0 10.6 6.1 55.0 17.0
IPLV: 14.0 EER
YCAL0045  
% FULL 
LOAD 
DISPL.
TONS KW Ambient 
°F
UNIT 
EER
100.0 37.8 41.8 95.0 9.6
73.2 30.3 26.0 83.0 11.5
50.0 22.1 15.5 70.0 14.5
23.2 10.8 6.2 55.0 17.0
IPLV: 14.1 EER
YCAL0051  
% FULL 
LOAD 
DISPL.
TONS KW Ambient 
°F
UNIT 
EER
100.0 43.5 48.7 95.0 9.6
69.2 33.7 28.3 81.4 11.9
48.3 24.4 17.2 68.6 14.6
20.9 13.3 7.2 55.0 18.7
IPLV: 14.4 EER
YCAL0055  
% FULL 
LOAD 
DISPL.
TONS KW Ambient 
°F
UNIT 
EER
100.0 47.6 52.8 95.0 9.6
73.5 37.2 32.3 81.9 11.4
47.0 25.0 17.2 66.5 14.6
23.5 13.0 7.8 55.0 16.3
IPLV: 13.6 EER
YCAL0061  
% FULL 
LOAD 
DISPL.
TONS KW Ambient 
°F
UNIT 
EER
100.0 55.7 62.9 95.0 9.6
69.3 42.4 35.8 80.7 11.9
46.2 30.1 20.4 67.5 15.2
23.1 15.7 9.1 55.0 17.5
IPLV: 14.3 EER
YCAL0065  
% FULL 
LOAD 
DISPL.
TONS KW Ambient 
°F
UNIT 
EER
100.0 60.0 68.3 95.0 9.6
71.5 47.4 40.3 82.4 12.1
50.0 34.7 25.3 69.6 14.5
21.5 16.2 9.0 55.0 18.2
IPLV: 14.5 EER

YORK INTERNATIONAL 29
FORM 150.64-EG1
Part Load Ratings - R-22 (SI)
YCAL0041  
% FULL 
LOAD 
DISPL.
KW Comp
KW
Ambient 
°C
UNIT
COP
100.0 123.0 38.2 35.0 2.8
75.0 99.0 24.5 28.5 3.3
50.0 71.2 14.0 21.0 4.2
25.0 37.4 6.1 12.8 5.0
IPLV: 4.10 COP
YCAL0045  
% FULL 
LOAD 
DISPL.
KW Comp
KW
Ambient 
°C
UNIT
COP
100.0 133.1 41.8 35.0 2.8
73.2 106.5 26.0 28.3 3.4
50.0 77.6 15.5 21.1 4.2
23.2 37.9 6.2 12.8 5.0
IPLV: 4.12 COP
YCAL0051  
% FULL 
LOAD 
DISPL.
KW Comp
KW
Ambient 
°C
UNIT
COP
100.0 153.1 48.7 35.0 2.8
69.2 118.5 28.3 27.5 3.5
48.3 85.7 17.2 20.3 4.3
20.9 46.8 7.2 12.8 5.5
IPLV: 4.23 COP
YCAL055  
% FULL 
LOAD 
DISPL.
KW Comp
KW
Ambient 
°C
UNIT
COP
100.0 167.3 52.8 35.0 2.8
73.5 130.8 32.3 27.7 3.4
47.0 87.8 17.2 19.2 4.3
23.5 45.6 7.8 12.8 4.8
IPLV: 4.00 COP
YCAL0061  
% FULL 
LOAD 
DISPL.
KW Comp
KW
Ambient 
°C
UNIT
COP
100.0 195.8 62.9 35.0 2.8
69.3 149.0 35.8 27.0 3.5
46.2 106.0 20.4 19.7 4.5
23.1 55.3 9.1 12.8 5.1
IPLV: 4.18 COP
YCAL0065  
% FULL 
LOAD 
DISPL.
KW Comp
KW
Ambient 
°C
UNIT
SCOP
100.0 211.1 68.3 35.0 2.8
71.5 166.6 40.3 28.0 3.6
50.0 121.9 25.3 20.9 4.3
21.5 56.9 9.0 12.8 5.3
IPLV: 4.24 COP

YORK INTERNATIONAL
30
Physical Data 
YCAL 
Model 
No.
Dimension General Unit Data Nominal Compressor Capacity Condenser Condenser Fans, Low Sound Condenser Fans, Ultra Quiet Evaporator
Length Width Height
Nomi-
nal 
Tons, 
R-22
Num-
ber of 
Refrig-
erant 
Circuits
Refrigerant 
Charge, 
Operating, 
R-22 (lbs)
Oil Charge, 
gallons
Shipping
Weight
Operating 
Weight Circuit 1 Ciruict 2
Total Face 
Area ft2
Number of 
Rows
Fins 
per 
Inch
Number of 
Fans
Fan 
Power 
hp/fan
Fan 
RPM
Total 
Chiller 
CFM
Number of 
Fans
Fan hp Fan 
RPM
Total 
Chiller 
CFM
Water 
Volume, 
gallons
Maxi-
mum 
Water 
Side 
Pres-
sure, 
PSIG
Maxi-
mum 
Refrig-
erant 
Side 
Pres-
sure, 
PSIG
Mini-
mum 
Chiller 
Water 
Flow 
Rate, 
gpm
Maxi-
mum 
Chiller 
Water 
Flow 
Rate, 
gpm
Nomi-
nal 
Water 
Con-
nec-
tions 
Size, 
inches
ckt1/ckt2 ckt1/ckt2
Alumi-
num 
Fin 
Coils, 
lbs
Copper 
Fin 
Coils, 
lbs
Alumi-
num 
Fin 
Coils, 
lbs
Copper 
Fin 
Coils, 
lbs
Com-
pres-
sor 1
Com-
pres-
sor 2
Com-
pres-
sor 3
Com-
pres-
sor 4
Com-
pres-
sor 5
Com-
pres-
sor 6
Ckt. 1/Ckt. 2 Ckt. 1/Ckt. 2 ckt1/ckt2
0041 144.8 90.6 47.8 34.9 2 35/35 1.7/1.7 2942 3300 2967 3325 10 10 - 10 10 - 87.0 2/2 17 2/2 2 1140 47400 2/2 2 838 47400 2.7 300 450 40 200 3
0045 144.8 90.6 47.8 38.0 2 40/35 1.7/1.7 2968 3326 3001 3359 12 12 - 10 10 - 87.0 2/2 17 2/2 2 1140 47400 2/2 2 838 47400 3.5 300 450 40 200 3
0051 144.8 90.6 47.8 43.4 2 40/45 1.7/2.2 3448 3985 3480 4017 12 12 - 13 15 - 87.0 3/3 17 2/2 2 1140 47400 2/2 2 838 47400 3.5 300 450 40 200 3
0055 144.8 90.6 62.6 47.4 2 50/50 2.2/2.2 3558 4035 3595 4073 15 13 - 13 15 - 116.0 2/2 17 2/2 2 1140 52000 2/2 2 838 52000 4.1 300 450 60 300 3
0061 144.8 90.6 62.6 56.0 2 55/55 2.3/2.2 3863 4436 3908 4481 20 15 - 15 15 - 116.0 3/2 17 2/2 2 1140 52000 2/2 2 838 52000 4.9 300 450 60 300 3
0065 153.6 90.6 62.6 60.1 2 60/55 2.3/2.2 4097 4703 4142 4748 20 20 - 15 15 - 128.0 3/3 13 2/2 2 1140 52000 2/2 2 838 52000 4.9 300 450 60 300 3
YCAL 
Model 
No.
Dimension General Unit Data Nominal Compressor Capacity Condenser Condenser Fans, Low Sound Condenser Fans, Ultra Quiet Evaporator
Length Width Height
Nomi-
nal 
KW, 
R-22
Num-
ber of 
Refrig-
erant 
Circuits
Refrigerant 
Charge, 
Operating, 
R-22 (kg)
Oil Charge, 
liters Shipping Weight Operating 
Weight Circuit 1 Circuit 2
Total 
Face 
Area 
m2
Number of 
Rows
Fins 
per cm
Number of 
Fans
Fan 
Power 
kw/fan
Fan 
RPM
Total 
Chiller 
fpm
Number of Fans
Fan 
Power 
kw/fan
Fan 
RPM
Total 
Chiller 
CFM
Water 
Volume, 
gallons
Maxi-
mum 
Water 
Side 
Pres-
sure, 
psig
Maxi-
mum 
Refrig-
erant 
Side 
Pres-
sure, 
psig
Mini-
mum 
Chiller 
Water 
Flow 
Rate, 
gpm
Maxi-
mum 
Chiller 
Water 
Flow 
Rate, 
gpm
Nominal 
Water Con-
nections 
Size, inches
ckt1/ckt2 ckt1/ckt2
Alumi-
num Fin 
Coils, lb
Cop-
per Fin 
Coils, lb
Alumi-
num Fin 
Coils, lb
Cop-
per Fin 
Coils, lb
Com-
pres-
sor 1
Com-
pres-
sor 2
Com-
pres-
sor 3
Com-
pres-
sor 4
Com-
pres-
sor 5
Com-
pres-
sor 6
Ckt. 1/Ckt. 2 Ckt. 1/Ckt. 2 ckt1/ckt2
0041 145.8 91.20 47.75 29.6 2.0 35.0 / 35.0 1.7 / 1.7 2942.0 3300.0 2967.0 3325.0 8.3 8.3 - 8.3 8.3 - 87.0 2.0 / 2.0 17.0 2.0 / 2.0 1.2 950.0 39500.0 2.0 / 2.0 1.2 698.3 39500.0 2.7 300.0 450.0 40.0 200.0 3.0
0045 145.8 91.20 47.75 32.3 2.0 40.0 / 35.0 1.7 / 1.7 2968.0 3326.0 3001.0 3359.0 10.0 10.0 - 8.3 8.3 - 87.0 2.0 / 2.0 17.0 2.0 / 2.0 1.2 950.0 39500.0 2.0 / 2.0 1.2 698.3 39500.0 3.5 300.0 450.0 40.0 200.0 3.0
0051 145.8 91.20 47.75 37.3 2.0 40.0 / 45.0 1.7 / 2.2 3448.0 3985.0 3480.0 4017.0 10.0 10.0 - 10.8 12.5 - 87.0 3.0 / 3.0 17.0 2.0 / 2.0 1.2 950.0 39500.0 2.0 / 2.0 1.2 698.3 39500.0 3.5 300.0 450.0 40.0 200.0 3.0
0055 145.8 91.20 62.73 40.2 2.0 50.0 / 50.0 2.2 / 2.2 3558.0 4035.0 3595.0 4073.0 12.5 10.8 - 10.8 12.5 - 116.0 2.0 / 2.0 17.0 2.0 / 2.0 1.2 950.0 43333.3 2.0 / 2.0 1.2 698.3 43333.3 4.1 300.0 450.0 60.0 300.0 3.0
0061 145.8 91.20 62.73 47.6 2.0 55.0 / 55.0 2.3 / 2.2 3863.0 4436.0 3908.0 4481.0 16.7 12.5 - 12.5 12.5 - 116.0 3.0 / 2.0 17.0 2.0 / 2.0 1.2 950.0 43333.3 2.0 / 2.0 1.2 698.3 43333.3 4.9 300.0 450.0 60.0 300.0 3.0
0065 154.6 91.20 62.73 50.9 2.0 60.0 / 55.0 2.3 / 2.2 4097.0 4703.0 4142.0 4748.0 16.7 16.7 - 12.5 12.5 - 128.0 3.0 / 3.0 13.0 2.0 / 2.0 1.2 950.0 43333.3 2.0 / 2.0 1.2 698.3 43333.3 4.9 300.0 450.0 60.0 300.0 3.0
60Hz
50Hz

YORK INTERNATIONAL 31
FORM 150.64-EG1
YCAL 
Model 
No.
Dimension General Unit Data Nominal Compressor Capacity Condenser Condenser Fans, Low Sound Condenser Fans, Ultra Quiet Evaporator
Length Width Height
Nomi-
nal 
Tons, 
R-22
Num-
ber of 
Refrig-
erant 
Circuits
Refrigerant 
Charge, 
Operating, 
R-22 (lbs)
Oil Charge, 
gallons
Shipping
Weight
Operating 
Weight Circuit 1 Ciruict 2
Total Face 
Area ft2
Number of 
Rows
Fins 
per 
Inch
Number of 
Fans
Fan 
Power 
hp/fan
Fan 
RPM
Total 
Chiller 
CFM
Number of 
Fans
Fan hp Fan 
RPM
Total 
Chiller 
CFM
Water 
Volume, 
gallons
Maxi-
mum 
Water 
Side 
Pres-
sure, 
PSIG
Maxi-
mum 
Refrig-
erant 
Side 
Pres-
sure, 
PSIG
Mini-
mum 
Chiller 
Water 
Flow 
Rate, 
gpm
Maxi-
mum 
Chiller 
Water 
Flow 
Rate, 
gpm
Nomi-
nal 
Water 
Con-
nec-
tions 
Size, 
inches
ckt1/ckt2 ckt1/ckt2
Alumi-
num 
Fin 
Coils, 
lbs
Copper 
Fin 
Coils, 
lbs
Alumi-
num 
Fin 
Coils, 
lbs
Copper 
Fin 
Coils, 
lbs
Com-
pres-
sor 1
Com-
pres-
sor 2
Com-
pres-
sor 3
Com-
pres-
sor 4
Com-
pres-
sor 5
Com-
pres-
sor 6
Ckt. 1/Ckt. 2 Ckt. 1/Ckt. 2 ckt1/ckt2
0041 144.8 90.6 47.8 34.9 2 35/35 1.7/1.7 2942 3300 2967 3325 10 10 - 10 10 - 87.0 2/2 17 2/2 2 1140 47400 2/2 2 838 47400 2.7 300 450 40 200 3
0045 144.8 90.6 47.8 38.0 2 40/35 1.7/1.7 2968 3326 3001 3359 12 12 - 10 10 - 87.0 2/2 17 2/2 2 1140 47400 2/2 2 838 47400 3.5 300 450 40 200 3
0051 144.8 90.6 47.8 43.4 2 40/45 1.7/2.2 3448 3985 3480 4017 12 12 - 13 15 - 87.0 3/3 17 2/2 2 1140 47400 2/2 2 838 47400 3.5 300 450 40 200 3
0055 144.8 90.6 62.6 47.4 2 50/50 2.2/2.2 3558 4035 3595 4073 15 13 - 13 15 - 116.0 2/2 17 2/2 2 1140 52000 2/2 2 838 52000 4.1 300 450 60 300 3
0061 144.8 90.6 62.6 56.0 2 55/55 2.3/2.2 3863 4436 3908 4481 20 15 - 15 15 - 116.0 3/2 17 2/2 2 1140 52000 2/2 2 838 52000 4.9 300 450 60 300 3
0065 153.6 90.6 62.6 60.1 2 60/55 2.3/2.2 4097 4703 4142 4748 20 20 - 15 15 - 128.0 3/3 13 2/2 2 1140 52000 2/2 2 838 52000 4.9 300 450 60 300 3
YCAL 
Model 
No.
Dimension General Unit Data Nominal Compressor Capacity Condenser Condenser Fans, Low Sound Condenser Fans, Ultra Quiet Evaporator
Length Width Height
Nomi-
nal 
KW, 
R-22
Num-
ber of 
Refrig-
erant 
Circuits
Refrigerant 
Charge, 
Operating, 
R-22 (kg)
Oil Charge, 
liters Shipping Weight Operating 
Weight Circuit 1 Circuit 2
Total 
Face 
Area 
m2
Number of 
Rows
Fins 
per cm
Number of 
Fans
Fan 
Power 
kw/fan
Fan 
RPM
Total 
Chiller 
fpm
Number of Fans
Fan 
Power 
kw/fan
Fan 
RPM
Total 
Chiller 
CFM
Water 
Volume, 
gallons
Maxi-
mum 
Water 
Side 
Pres-
sure, 
psig
Maxi-
mum 
Refrig-
erant 
Side 
Pres-
sure, 
psig
Mini-
mum 
Chiller 
Water 
Flow 
Rate, 
gpm
Maxi-
mum 
Chiller 
Water 
Flow 
Rate, 
gpm
Nominal 
Water Con-
nections 
Size, inches
ckt1/ckt2 ckt1/ckt2
Alumi-
num Fin 
Coils, lb
Cop-
per Fin 
Coils, lb
Alumi-
num Fin 
Coils, lb
Cop-
per Fin 
Coils, lb
Com-
pres-
sor 1
Com-
pres-
sor 2
Com-
pres-
sor 3
Com-
pres-
sor 4
Com-
pres-
sor 5
Com-
pres-
sor 6
Ckt. 1/Ckt. 2 Ckt. 1/Ckt. 2 ckt1/ckt2
0041 145.8 91.20 47.75 29.6 2.0 35.0 / 35.0 1.7 / 1.7 2942.0 3300.0 2967.0 3325.0 8.3 8.3 - 8.3 8.3 - 87.0 2.0 / 2.0 17.0 2.0 / 2.0 1.2 950.0 39500.0 2.0 / 2.0 1.2 698.3 39500.0 2.7 300.0 450.0 40.0 200.0 3.0
0045 145.8 91.20 47.75 32.3 2.0 40.0 / 35.0 1.7 / 1.7 2968.0 3326.0 3001.0 3359.0 10.0 10.0 - 8.3 8.3 - 87.0 2.0 / 2.0 17.0 2.0 / 2.0 1.2 950.0 39500.0 2.0 / 2.0 1.2 698.3 39500.0 3.5 300.0 450.0 40.0 200.0 3.0
0051 145.8 91.20 47.75 37.3 2.0 40.0 / 45.0 1.7 / 2.2 3448.0 3985.0 3480.0 4017.0 10.0 10.0 - 10.8 12.5 - 87.0 3.0 / 3.0 17.0 2.0 / 2.0 1.2 950.0 39500.0 2.0 / 2.0 1.2 698.3 39500.0 3.5 300.0 450.0 40.0 200.0 3.0
0055 145.8 91.20 62.73 40.2 2.0 50.0 / 50.0 2.2 / 2.2 3558.0 4035.0 3595.0 4073.0 12.5 10.8 - 10.8 12.5 - 116.0 2.0 / 2.0 17.0 2.0 / 2.0 1.2 950.0 43333.3 2.0 / 2.0 1.2 698.3 43333.3 4.1 300.0 450.0 60.0 300.0 3.0
0061 145.8 91.20 62.73 47.6 2.0 55.0 / 55.0 2.3 / 2.2 3863.0 4436.0 3908.0 4481.0 16.7 12.5 - 12.5 12.5 - 116.0 3.0 / 2.0 17.0 2.0 / 2.0 1.2 950.0 43333.3 2.0 / 2.0 1.2 698.3 43333.3 4.9 300.0 450.0 60.0 300.0 3.0
0065 154.6 91.20 62.73 50.9 2.0 60.0 / 55.0 2.3 / 2.2 4097.0 4703.0 4142.0 4748.0 16.7 16.7 - 12.5 12.5 - 128.0 3.0 / 3.0 13.0 2.0 / 2.0 1.2 950.0 43333.3 2.0 / 2.0 1.2 698.3 43333.3 4.9 300.0 450.0 60.0 300.0 3.0
60Hz
50Hz

YORK INTERNATIONAL
32
Sound Data
60Hz Line Frequency
Low Noise Fan R-22
63 125 250 500 1000 2000 4000 8000 dBA
YCAL0041 92  91 92  90  86  81  77 74  92 
YCAL0045 92 91 92  90 86 81  77 74  92 
YCAL0051 91 92 92  91 87 82 78 75 92 
YCAL0055 93 95 95 93 90 85 81  77 95
YCAL0061 93 95 95 93 90 86 82 77 95
YCAL0065 94 94 95 93 90 86 82 77 95
60Hz Line Frequency
Low Noise Fan with compressor sound blankets installed R-22
63 125 250 500 1000 2000 4000 8000 dBA
YCAL0041 92 91 92 90 86 81  77 73  91
YCAL0045 92 91 92 90 86 81  77 73  91
YCAL0051 91 92 92 90 86 81  77 73  91
YCAL0055 93 95 95 93 89 84 80 76 94
YCAL0061 93 95 95 93 89 84 80 76 94
YCAL0065 94 94 95 93 89 84 80 75 94
60Hz Line Frequency
Ultra Quiet Fan R-22
63 125 250 500 1000 2000 4000 8000 dBA
YCAL0041 94  88 88 87 83 79  75  74 88
YCAL0045 94 88 88 87 83 79  75  74 88
YCAL0051 94 90 89 88 84 80 76  75 90
YCAL0055 96 93 91 90 87 83 79 77 92
YCAL0061 96 93 91 90 87 84 80 77 92
YCAL0065 96 92 91 90 87 84 81  77 92
60Hz Line Frequency
Ultra Quiet Fan with compressor sound blankets installed R-22
63 125 250 500 1000 2000 4000 8000 dBA
YCAL0041 94  88 88 85  82  77 74 73 87
YCAL0045 94 88 88 85  82  77 74 73 87
YCAL0051 94 90 89 86  83  78 74 73 88
YCAL0055 96 93 91 89 85  81  77 76 91
YCAL0061 96 93 91 89 85  81  78  76 91
YCAL0065 96 92 91 89 86 81  78  75 91

YORK INTERNATIONAL 33
FORM 150.64-EG1
50Hz Line Frequency
Low Noise Fan R-22
63 125 250 500 1000 2000 4000 8000 dBA
YCAL0041 88 87 88 87 83 78 74 71  88
YCAL0045 88 87 88 87 83 78 74 71  88
YCAL0051 88 89 89 87 83 79 75 72  89
YCAL0055 89 92 92 90 86 82 78 74 91
YCAL0061 90 91 91 90 86 82  78 74 92
YCAL0065 90 91 91 90 86 83  79 73 92
50Hz Line Frequency
Low Noise Fan with compressor sound blankets installed R-22
63 125 250 500 1000 2000 4000 8000 dBA
YCAL0041 88 87 88 86 82 77  73 69  87
YCAL0045 88 87 88 86 82 77  73 69  87
YCAL0051 88 89 89 86 82 77  73 69  88
YCAL0055 89 92 92 89 85 80 76 72 90
YCAL0061 90 91 91 89 85 80 76 72 90
YCAL0065 90 91 91 89 85 80 77 72 90
50Hz Line Frequency
Ultra Quiet Fan R-22
63 125 250 500 1000 2000 4000 8000 dBA
YCAL0041 90  84 84 84  80  75 72 71 85
YCAL0045 90 84 84 84  80  75 72 71 85
YCAL0051 90 88 86 85  81  78 73 72 87
YCAL0055 92 90 88 87 84 80 76  74 89
YCAL0061 92 90 88 87 84 81 77  74 89
YCAL0065 92 89 87 87 84 81 78 73 89
50Hz Line Frequency
Ultra Quiet Fan with compressor sound blankets installed R-22
63 125 250 500 1000 2000 4000 8000 dBA
YCAL0041 90  84 84 82  78 73 70 69  84
YCAL0045 90 84 84 82  78 73 70 69  84
YCAL0051 90 88 86 82  79 74 71 69  84
YCAL0055 92 90 88 85  82 77 74 72 87
YCAL0061 92 90 88 85  82 77 74 72  87
YCAL0065 92 89 87 85  82 77 74 72  87

YORK INTERNATIONAL
34
Dimensions - YCAL0041 (English)
NOTE:
   Placement on a level surface of free of obstructions (including snow, for winter operation) or air circulation ensures rated performance, reli-
able operation, and ease of maintenance. Site restrictions may compromise minimum clearances indicated below, resulting in unpredictable 
airflow patterns and possible diminished performance. YORK’s unit controls will optimize operation without nuisance high-pressure safety 
cutouts; however, the system designer must consider potential performance degradation. Recommended minimum clearances: front to wall  
–  6'; rear to wall  –  6'; cooler end to wall  –  4'0"; coil end to wall - 6'; top  –  no obstructions allowed; distance between adjacent units  –  10'. 
No more than one adjacent wall may be higher than the unit. 1" nominal deflection isolators (not shown) will increase  overall unit height by 
6".
VIEW B-B
3 15/16"
3 1/4"
6 3/4"
BOTTOM OF PANEL
 7/8" TYP.
47 3/4"
46 15/16"
45 1/8"
12 5/8"
3" VICTAULIC (typ)
90 1/4" BASE WIDTH
LEFT END
LIQUID OUT
34 5/8"
15 3/4"
9 15/16"
ELECTRICAL ACCESS 
PANEL
LIQUID IN
Aluminum Copper
YCAL Center of Gravity (in.) YCAL Center of Gravity (in.)
X Y X Y
0041 59.6 43.6 0041 63.6 43.7

YORK INTERNATIONAL 35
FORM 150.64-EG1
90 9/16"
45 5/16"
Y
C
G
X
1 1/16"
ORIGIN
END CAP
WIDTH
21 13/16" TOP VIEW
9 13/16"
1 1/16"
9 13/16"
9/16" DIA MOUNTING HOLES(typ)
144 13/16"
15 1/16" 13 15/16"
TWO LIFTING HOLES 
BOTH SIDES   
FRONT VIEW
C
GX
Z
38"
5 5/16"
25 3/8"
13 5/8"
BB
COIL
END
COOLER
END
CONTROL PANEL 

YORK INTERNATIONAL
36
Dimensions - YCAL0045 (English)
VIEW B-B
3 15/16"
3 1/4"
6 3/4"
BOTTOM OF PANEL
 7/8" TYP.
47 3/4"
46 15/16"
45 1/8"
12 5/8"
3" VICTAULIC (typ)
90 1/4" BASE WIDTH
LEFT END
LIQUID OUT
34 5/8"
15 3/4"
9 15/16"
ELECTRICAL ACCESS 
PANEL
LIQUID IN
Aluminum Copper
YCAL Center of Gravity (in.) YCAL Center of Gravity (in.)
X Y X Y
0045 59.2 43.5 0045 63.2 43.7
NOTE:
   Placement on a level surface of free of obstructions (including snow, for winter operation) or air circulation ensures rated performance, reli-
able operation, and ease of maintenance. Site restrictions may compromise minimum clearances indicated below, resulting in unpredictable 
airflow patterns and possible diminished performance. YORK’s unit controls will optimize operation without nuisance high-pressure safety 
cutouts; however, the system designer must consider potential performance degradation. Recommended minimum clearances: front to wall  
–  6'; rear to wall  –  6'; cooler end to wall  –  4'0"; coil end to wall - 6'; top  –  no obstructions allowed; distance between adjacent units  –  10'. 
No more than one adjacent wall may be higher than the unit. 1" nominal deflection isolators (not shown) will increase  overall unit height by 
6".

YORK INTERNATIONAL 37
FORM 150.64-EG1
90 9/16"
45 5/16"
Y
C
G
X
1 1/16"
ORIGIN
END CAP
WIDTH
20 1/16" TOP VIEW
9 13/16"
1 1/16"
9 13/16"
9/16" DIA MOUNTING HOLES(typ)
144 13/16"
15 1/16" 13 15/16"
TWO LIFTING HOLES 
BOTH SIDES   
FRONT VIEW
C
GX
Z
38"
5 5/16"
25 3/8"
13 5/8"
BB
COIL
END
COOLER
END
CONTROL PANEL 

YORK INTERNATIONAL
38
Dimensions - YCAL0051 (English)
VIEW B-B
3 15/16"
3 1/4"
6 3/4"
BOTTOM OF PANEL
 7/8" TYP.
47 3/4"
46 15/16"
45 1/8"
12 5/8"
3" VICTAULIC (typ)
90 1/4" BASE WIDTH
LEFT END
LIQUID OUT
34 5/8"
15 3/4"
9 15/16"
ELECTRICAL ACCESS 
PANEL
LIQUID IN
Aluminum Copper
YCAL Center of Gravity (in.) YCAL Center of Gravity (in.)
X Y X Y
0051 59.2 42.6 0051 64.3 42.9
NOTE:
   Placement on a level surface of free of obstructions (including snow, for winter operation) or air circulation ensures rated performance, reli-
able operation, and ease of maintenance. Site restrictions may compromise minimum clearances indicated below, resulting in unpredictable 
airflow patterns and possible diminished performance. YORK’s unit controls will optimize operation without nuisance high-pressure safety 
cutouts; however, the system designer must consider potential performance degradation. Recommended minimum clearances: front to wall  
–  6'; rear to wall  –  6'; cooler end to wall  –  4'0"; coil end to wall - 6'; top  –  no obstructions allowed; distance between adjacent units  –  10'. 
No more than one adjacent wall may be higher than the unit. 1" nominal deflection isolators (not shown) will increase  overall unit height by 
6".

YORK INTERNATIONAL 39
FORM 150.64-EG1
90 9/16"
45 5/16"
Y
C
G
X
1 1/16"
ORIGIN
END CAP
WIDTH
20 1/16" TOP VIEW
9 13/16"
1 1/16"
9 13/16"
9/16" DIA MOUNTING HOLES(typ)
144 13/16"
15 1/16" 13 15/16"
TWO LIFTING HOLES 
BOTH SIDES   
FRONT VIEW
C
GX
Z
38"
5 5/16"
25 3/8"
13 5/8"
BB
COIL
END
COOLER
END
CONTROL PANEL 

YORK INTERNATIONAL
40
Dimensions - YCAL0055EC - (English)
VIEW B-B
3 15/16"
3 1/4"
6 3/4"
BOTTOM OF PANEL
 7/8" TYP.
62 5/8"
61 7/8"
45 1/8"
12 5/8"
3" VICTAULIC (typ)
90 1/4" BASE WIDTH
LEFT END
LIQUID OUT
34 11/16"
15 3/4"
9 15/16"
ELECTRICAL ACCESS 
PANEL
LIQUID IN
Aluminum Copper
YCAL Center of Gravity (in.) YCAL Center of Gravity (in.)
X Y X Y
0055 57.9 43.0 0055 62.5 43.2
NOTE:
   Placement on a level surface of free of obstructions (including snow, for winter operation) or air circulation ensures rated performance, reli-
able operation, and ease of maintenance. Site restrictions may compromise minimum clearances indicated below, resulting in unpredictable 
airflow patterns and possible diminished performance. YORK’s unit controls will optimize operation without nuisance high-pressure safety 
cutouts; however, the system designer must consider potential performance degradation. Recommended minimum clearances: front to wall  
–  6'; rear to wall  –  6'; cooler end to wall  –  4'0"; coil end to wall - 6'; top  –  no obstructions allowed; distance between adjacent units  –  10'. 
No more than one adjacent wall may be higher than the unit. 1" nominal deflection isolators (not shown) will increase  overall unit height by 
6".

YORK INTERNATIONAL 41
FORM 150.64-EG1
90 9/16"
45 5/16"
Y
C
G
X
1 1/16"
ORIGIN
END CAP
WIDTH
18 7/16" TOP VIEW
9 13/16"
1 1/16"
9 13/16"
9/16" DIA MOUNTING HOLES(typ)
144 13/16"
15 1/16" 14"
TWO LIFTING HOLES 
BOTH SIDES   
FRONT VIEW
C
GX
Z
38"
5 3/16"
25 3/8"
28 9/16"
BB
COIL
END
COOLER
END
CONTROL 
   PANEL

YORK INTERNATIONAL
42
Dimensions - YCAL0061 (English)
VIEW B-B
3 15/16"
3 1/4"
6 3/4"
BOTTOM OF PANEL
 7/8" TYP.
62 5/8"
61 7/8"
43 1/8"
12 5/8"
3" VICTAULIC (typ)
90 1/4" BASE WIDTH
LEFT END
LIQUID OUT
34 11/16"
15 3/4"
9 15/16"
ELECTRICAL ACCESS 
PANEL
LIQUID IN
Aluminum Copper
YCAL Center of Gravity (in.) YCAL Center of Gravity (in.)
X Y X Y
0061 56.6 45.2 0061 61.8 45.8
NOTE:
   Placement on a level surface of free of obstructions (including snow, for winter operation) or air circulation ensures rated performance, reli-
able operation, and ease of maintenance. Site restrictions may compromise minimum clearances indicated below, resulting in unpredictable 
airflow patterns and possible diminished performance. YORK’s unit controls will optimize operation without nuisance high-pressure safety 
cutouts; however, the system designer must consider potential performance degradation. Recommended minimum clearances: front to wall  
–  6'; rear to wall  –  6'; cooler end to wall  –  4'0"; coil end to wall - 6'; top  –  no obstructions allowed; distance between adjacent units  –  10'. 
No more than one adjacent wall may be higher than the unit. 1" nominal deflection isolators (not shown) will increase  overall unit height by 
6".

YORK INTERNATIONAL 43
FORM 150.64-EG1
90 9/16"
43 5/16"
Y
C
G
X
1 1/16"
ORIGIN
END CAP
WIDTH
16 11/16" TOP VIEW
9 13/16"
1 1/16"
9 13/16"
9/16" DIA MOUNTING HOLES(typ)
144 13/16"
15 1/16" 14"
TWO LIFTING HOLES 
BOTH SIDES   
FRONT VIEW
C
GX
Z
38"
5 3/16"
25 3/8"
28 9/16"
BB
COIL
END
COOLER
END
CONTROL 
   PANEL

YORK INTERNATIONAL
44
Dimensions - YCAL0065 (English)
62 5/8"
61 7/8"
34 11/16"
15 3/4"
9 15/16"
43 1/8"
12 5/8"
3" VICTAULIC (typ)
ELECTRICAL ACCESS
 PANEL
90 1/4" BASE WIDTH
LEFT END
LIQUID OUT
LIQUID IN
VIEW B-B
 7/8" TYP.
3 15/16"
3 1/4"
6 3/4"
BOTTOM OF PANEL
Aluminum Copper
YCAL Center of Gravity (in.) YCAL Center of Gravity (in.)
X Y X Y
0065 59.7 44.9 0065 65.2 44.9
NOTE:
   Placement on a level surface of free of obstructions (including snow, for winter operation) or air circulation ensures rated performance, reli-
able operation, and ease of maintenance. Site restrictions may compromise minimum clearances indicated below, resulting in unpredictable 
airflow patterns and possible diminished performance. YORK’s unit controls will optimize operation without nuisance high-pressure safety 
cutouts; however, the system designer must consider potential performance degradation. Recommended minimum clearances: front to wall  
–  6'; rear to wall  –  6'; cooler end to wall  –  4'0"; coil end to wall - 6'; top  –  no obstructions allowed; distance between adjacent units  –  10'. 
No more than one adjacent wall may be higher than the unit. 1" nominal deflection isolators (not shown) will increase  overall unit height by 
6".

YORK INTERNATIONAL 45
FORM 150.64-EG1
90 9/16"
43 5/16"
16 11/16"
38"
5 3/16"
153 5/8"
15 1/16"
16"
25 3/8"
28 9/16"
CONTROL 
   PANEL
TWO LIFTING HOLES 
BOTH SIDES
Y
TOP VIEW
C
GX
FRONT VIEW
C
G
X
Z
1 1/16"
1 1/16"
ORIGIN
9 13/16"
9 13/16"
BB
9/16" DIA MOUNTING HOLES(typ)
END CAP
WIDTH
COIL
END
COOLER
END

YORK INTERNATIONAL
46
NOTE:
   Placement on a level surface of free of obstructions (including snow, for winter operation) or air circulation ensures rated performance, reliable 
operation, and ease of maintenance. Site restrictions may compromise minimum clearances indicated below, resulting in unpredictable airflow 
patterns and possible diminished performance. YORK’s unit controls will optimize operation without nuisance high-pressure safety cutouts; 
however, the system designer must consider potential performance degradation.  Recommended minimum clearances: front to wall  –  2m; 
rear to wall  –  2m; cooler end to wall  –  1.2m; coil end to wall - 2m; top  –  no obstructions allowed; distance between adjacent units  –  3m. 
No more than one adjacent wall may be higher than the unit. 1" nominal deflection isolators (not shown) will increase  overall unit height by 
152mm.
Dimensions - YCAL0041 (SI)
NOTE: All dimensions are in mm unless specified otherwise.
VIEW B-B
100
82
171
BOTTOM OF PANEL
22 TYP.
1213
1192
1146
321
76 VICTAULIC (typ)
2292 BASE WIDTH
LEFT END
LIQUID OUT
879
401
252
ELECTRICAL ACCESS 
PANEL
LIQUID IN
Aluminum Copper
YCAL Center of Gravity (in.) YCAL Center of Gravity (in.)
X Y X Y
0041 1513.7 1107.0 0041 1616.1 1111.1

YORK INTERNATIONAL 47
FORM 150.64-EG1
2301
1150
Y
C
G
X
28
ORIGIN
END CAP
WIDTH
554 TOP VIEW
249
28
249
14 DIA MOUNTING HOLES(typ)
3678
383 355
TWO LIFTING HOLES 
BOTH SIDES   
FRONT VIEW
C
GX
Z
965
135
645
346
BB
COIL
END
COOLER
END
CONTROL PANEL 

YORK INTERNATIONAL
48
Dimensions - YCAL0045 (SI)
VIEW B-B
100
82
171
BOTTOM OF PANEL
22 TYP.
1213
1192
1146
321
76 VICTAULIC (typ)
2292 BASE WIDTH
LEFT END
LIQUID OUT
879
401
252
ELECTRICAL ACCESS 
PANEL
LIQUID IN
Aluminum Copper
YCAL Center of Gravity (in.) YCAL Center of Gravity (in.)
X Y X Y
0045 1503.5 1105.5 0045 1605.9 1109.7
NOTE:
   Placement on a level surface of free of obstructions (including snow, for winter operation) or air circulation ensures rated performance, reliable 
operation, and ease of maintenance. Site restrictions may compromise minimum clearances indicated below, resulting in unpredictable airflow 
patterns and possible diminished performance. YORK’s unit controls will optimize operation without nuisance high-pressure safety cutouts; 
however, the system designer must consider potential performance degradation.  Recommended minimum clearances: front to wall  –  2m; 
rear to wall  –  2m; cooler end to wall  –  1.2m; coil end to wall - 2m; top  –  no obstructions allowed; distance between adjacent units  –  3m. 
No more than one adjacent wall may be higher than the unit. 1" nominal deflection isolators (not shown) will increase  overall unit height by 
152mm.
NOTE: All dimensions are in mm unless specified otherwise.

YORK INTERNATIONAL 49
FORM 150.64-EG1
2301
1150
Y
C
G
X
28
ORIGIN
END CAP
WIDTH
509 TOP VIEW
249
28
249
14 DIA MOUNTING HOLES(typ)
3678
383 355
TWO LIFTING HOLES 
BOTH SIDES   
FRONT VIEW
C
GX
Z
965
135
645
346
BB
COIL
END
COOLER
END
CONTROL PANEL 

YORK INTERNATIONAL
50
Dimensions - YCAL0051 (SI)
VIEW B-B
100
82
171
BOTTOM OF PANEL
22 TYP.
1213
1192
1146
321
76 VICTAULIC (typ)
2292 BASE WIDTH
LEFT END
LIQUID OUT
879
401
252
ELECTRICAL ACCESS 
PANEL
LIQUID IN
Aluminum Copper
YCAL Center of Gravity (in.) YCAL Center of Gravity (in.)
X Y X Y
0051 1504.6 1082.4 0051 1633.0 1090.8
NOTE:
   Placement on a level surface of free of obstructions (including snow, for winter operation) or air circulation ensures rated performance, reliable 
operation, and ease of maintenance. Site restrictions may compromise minimum clearances indicated below, resulting in unpredictable airflow 
patterns and possible diminished performance. YORK’s unit controls will optimize operation without nuisance high-pressure safety cutouts; 
however, the system designer must consider potential performance degradation.  Recommended minimum clearances: front to wall  –  2m; 
rear to wall  –  2m; cooler end to wall  –  1.2m; coil end to wall - 2m; top  –  no obstructions allowed; distance between adjacent units  –  3m. 
No more than one adjacent wall may be higher than the unit. 1" nominal deflection isolators (not shown) will increase  overall unit height by 
152mm.
NOTE: All dimensions are in mm unless specified otherwise.

YORK INTERNATIONAL 51
FORM 150.64-EG1
2301
1150
Y
C
G
X
28
ORIGIN
END CAP
WIDTH
509 TOP VIEW
249
28
249
14 DIA MOUNTING HOLES(typ)
3678
383 355
TWO LIFTING HOLES 
BOTH SIDES   
FRONT VIEW
C
GX
Z
965
135
645
346
BB
COIL
END
COOLER
END
CONTROL PANEL 

YORK INTERNATIONAL
52
Dimensions -YCAL0055 (SI)
VIEW B-B
100
82
171
BOTTOM OF PANEL
22 TYP.
1590
1572
1146
321
76 VICTAULIC (typ)
2292 BASE WIDTH
LEFT END
LIQUID OUT
880
401
252
ELECTRICAL ACCESS 
PANEL
LIQUID IN
Aluminum Copper
YCAL Center of Gravity (in.) YCAL Center of Gravity (in.)
X Y X Y
0055 1470.3 1092.0 0055 1586.9 1098.3
NOTE:
   Placement on a level surface of free of obstructions (including snow, for winter operation) or air circulation ensures rated performance, reliable 
operation, and ease of maintenance. Site restrictions may compromise minimum clearances indicated below, resulting in unpredictable airflow 
patterns and possible diminished performance. YORK’s unit controls will optimize operation without nuisance high-pressure safety cutouts; 
however, the system designer must consider potential performance degradation.  Recommended minimum clearances: front to wall  –  2m; 
rear to wall  –  2m; cooler end to wall  –  1.2m; coil end to wall - 2m; top  –  no obstructions allowed; distance between adjacent units  –  3m. 
No more than one adjacent wall may be higher than the unit. 1" nominal deflection isolators (not shown) will increase  overall unit height by 
152mm.
NOTE: All dimensions are in mm unless specified otherwise.

YORK INTERNATIONAL 53
FORM 150.64-EG1
2301
1151
Y
C
G
X
28
ORIGIN
END CAP
WIDTH
468 TOP VIEW
249
28
249
14 DIA MOUNTING HOLES(typ)
3678
383 356
TWO LIFTING HOLES 
BOTH SIDES   
FRONT VIEW
C
GX
Z
965
131
645
726
BB
COIL
END
COOLER
END
CONTROL 
   PANEL

YORK INTERNATIONAL
54
Dimensions - YCAL0061 (SI)
VIEW B-B
100
82
171
BOTTOM OF PANEL
22 TYP.
1590
1572
1095
321
76 VICTAULIC (typ)
2292 BASE WIDTH
LEFT END
LIQUID OUT
880
401
252
ELECTRICAL ACCESS 
PANEL
LIQUID IN
Aluminum Copper
YCAL Center of Gravity (in.) YCAL Center of Gravity (in.)
X Y X Y
0061 1438.0 1147.1 0061 1569.3 1162.9
NOTE:
   Placement on a level surface of free of obstructions (including snow, for winter operation) or air circulation ensures rated performance, reliable 
operation, and ease of maintenance. Site restrictions may compromise minimum clearances indicated below, resulting in unpredictable airflow 
patterns and possible diminished performance. YORK’s unit controls will optimize operation without nuisance high-pressure safety cutouts; 
however, the system designer must consider potential performance degradation.  Recommended minimum clearances: front to wall  –  2m; 
rear to wall  –  2m; cooler end to wall  –  1.2m; coil end to wall - 2m; top  –  no obstructions allowed; distance between adjacent units  –  3m. 
No more than one adjacent wall may be higher than the unit. 1" nominal deflection isolators (not shown) will increase  overall unit height by 
152mm.
NOTE: All dimensions are in mm unless specified otherwise.

YORK INTERNATIONAL 55
FORM 150.64-EG1
2301
1100
Y
C
G
X
28
ORIGIN
END CAP
WIDTH
424 TOP VIEW
 R1
249
28
 R2
249
 L1  L2
14 DIA MOUNTING HOLES(typ)
3678
383 356
TWO LIFTING HOLES 
BOTH SIDES   
FRONT VIEW
C
GX
Z
965
131
645
726
BB
COIL
END
COOLER
END
CONTROL 
   PANEL

YORK INTERNATIONAL
56
Dimensions - YCAL0065 (SI)
1590
1572
880
401
252
1095
321
76 VICTAULIC (typ)
ELECTRICAL ACCESS
 PANEL
2292 BASE WIDTH
LEFT END
LIQUID OUT
LIQUID IN
VIEW B-B
22 TYP.
100
82
171
BOTTOM OF PANEL
Aluminum Copper
YCAL Center of Gravity (in.) YCAL Center of Gravity (in.)
X Y X Y
0065 1517.6 1140.3 0065 1655.5 1141.1
NOTE:
   Placement on a level surface of free of obstructions (including snow, for winter operation) or air circulation ensures rated performance, reliable 
operation, and ease of maintenance. Site restrictions may compromise minimum clearances indicated below, resulting in unpredictable airflow 
patterns and possible diminished performance. YORK’s unit controls will optimize operation without nuisance high-pressure safety cutouts; 
however, the system designer must consider potential performance degradation.  Recommended minimum clearances: front to wall  –  2m; 
rear to wall  –  2m; cooler end to wall  –  1.2m; coil end to wall - 2m; top  –  no obstructions allowed; distance between adjacent units  –  3m. 
No more than one adjacent wall may be higher than the unit. 1" nominal deflection isolators (not shown) will increase  overall unit height by 
152mm.
NOTE: All dimensions are in mm unless specified otherwise.

YORK INTERNATIONAL 57
FORM 150.64-EG1
2301
1100
Y
C
G
X
28
ORIGIN
END CAP
WIDTH
424 TOP VIEW
 R1
249
28
 R2
249
 L1  L2
14 DIA MOUNTING HOLES(typ)
3678
383 356
TWO LIFTING HOLES 
BOTH SIDES   
FRONT VIEW
C
GX
Z
965
131
645
726
BB
COIL
END
COOLER
END
CONTROL 
   PANEL

YORK INTERNATIONAL
58
Isolator Selections
FOR UNITS WITH ALL POINT LOADS LESS THATN 1404 LBS (637 KG)
Weight Range (lbs) Weight Range (kg) Model Number Color
239 to 384 lbs 108 to 174 kg CIP-B- Red
384 to 639 lbs 174 to 290 kg CIP-B- White
639 to 851 lbs 290 to 386 kg CIP-B- Blue
851 to 1064 lbs 386 to 483 kg CIP-B- Gray
1064 to 1404 lbs 483 to 637 kg CIP-B- Black
FOR UNITS WITH ANY POINT LOAD ABOVE 1404 LBS (637 KG)
Weight Range (lbs) Weight Range (kg) Model Number Color
Up to 851 lbs  Up to 386 kg  CIP-C- Black
851 to 1149 lbs 386 to 521 kg CIP-C- Yellow
1149 to 1489 lbs 521 to 675 kg CIP-C- Black
1489 to 1786 lbs 675 to 910 kg CIP-C- Yellow w/ 
Red
1786 to 2028 lbs 910 to 920 kg CIP-C- Yellow w/ 
Green
2028 to 2254 lbs 920 to 1022 kg CIP-C- Red w/ Red
2254 to 2936 lbs 1022 to 1332 kg CIP-C- Red w/ Green
CIP-X-
ONE INCH DEFLECTION SPRING ISOLATOR CROSS-REFERENCE
E
Illustration shows single spring CIP-B or CIP-C mount. 
HCL
SBC
Slot Width - SW HCW
MAX BOLT
DIA. - MBD
BASE PLATE DIMENSIONS
NON-SKID NEOPRENE
A
COUSTICAL ISOLATION PAD
(Bolting to floor is not necessary for
 indoor applications)
All springs have additional
travel to solid equal to 50%
of the rated deflection.
A
L
FREE &
OPERATING
HEIGHT
TW
FERROUS HOUSING
SIDE ACCESS INTERNAL
ADJUSTMENT BOLT
Turn clockwise to load
spring and maintain Free
& Operating Height.
Dowel Pin is 3/8" dia. for
CIP-A & 1/2" thereafter
Mounting may be
operated 1/2" above
Free & Operating
Height.
NOTE-
CIP Mounts are not
to be used in seismic 
or wind load
applications.
EQUIPMENT BASE
TYPE CIP DIMENSIONS (inches)†
†Casting dimensions may vary ±1/8"
Size A L T W SW HCL HCW MBD SBC
Free
Ht.
CIP-B    8 /4/2/16 8
CIP-C 6 /8/16 /8
5
117
7
3
3
/8
1
  6 /4
3
/
5/4
3
8/8
7/16
9
2/4
3
3/2
1
/2
/4
1
1
6
7
/2
/4
1
3
1
1
/4
/8
1
7
7
7
Min
Ht.
  5 /4
1
  6 /4
3
  6

YORK INTERNATIONAL 59
FORM 150.64-EG1
Weight Range 
(lbs)
Weight Range 
(kg) Model Number Color
Up to 751 lbs Up to 341 kg ND-C Yellow
751 to 1651 lbs 341 to 749 kg ND-D Yellow
1651 to 3226 lbs 749 to 1463 kg ND-E Yellow
"CS" Cap Screw
BC
"MBD" Max. Bolt Dia.
Steel Plate - Top &
Bottom Neoprene
covered to prevent
corrosion
L
T
H
W
D
ENGLISH
Size D H L T W BC CS MBD
ND-C 2  9/16 2  3/ 4 5  1/ 2   1/ 4 2  5/16 4  1/80 1/2- 13 x 1”   1/ 2"
ND-D 3  3/ 8 2  3/ 4 6  1/ 4   5/16 4       5       1/2- 13 x 1”   1/ 2"
ND-E 4  1/ 2 4  3/ 4 7  3/ 8   1/ 4 5  1/80 6  1/80 1/2- 13 x 1”   1/ 2"
SI
ND-C 65.1 69.9 139.7 6.4 58.7 101.9 1/2- 13 x 1”   1/ 2"
ND-D 85.7 69.9 158.8 7.9 101.6 127.0 1/2- 13 x 1”   1/ 2"
ND-E 114.3 120.7 187.3 6.4 127.3 152.7 1/2- 13 x 1”   1/ 2"
ND-X
NEOPRENE ISOLATOR CROSS-REFERENCE

YORK INTERNATIONAL
60
Isolator Details (cont'd)
ENGLISH
SIZE H T D E L HCL W HCW MBD
2-C2 8  1/2   3/8   5/8 1  3/8 14       12  1/4 5  1/4 3  1/ 2   5/8"
SI
SIZE H T D E L HCL W HCW MBD
2-C2 215.9 9.5 15.9 34.9 355.6 311.2 133.4 88.9 5/8"
SLRS
*Weight Range 
(lbs)
Weight Range 
(kg) Model Number Color
Up to 358 lbs Up to 162 kg SLRS-2-C2- Red
358 to 443 lbs 162 to 201 kg SLRS-2-C2- White
443 to 582 lbs 201 to 264 kg SLRS-2-C2- Black
582 to 783 lbs 264 to 335 kg SLRS-2-C2- Blue
783 to 1038 lbs 335 to 471 kg SLRS-2-C2- Green
1038 to 1497 lbs 471 to 679 kg SLRS-2-C2- Gray
1497 to 2058 lbs 679 to 933 kg SLRS-2-C2- Silver
2058 to 2619 lbs 933 to 1188 kg SLRS-2-C2- Gray w/ red
2619 to 3180 lbs 1188 to 1442 kg SLRS-2-C2- Silver w/ red
TWO INCH DEFLECTION, SEISMIC SPRING ISOLATOR CROSS-REFERENCE
‡‡
‡‡
SLRS-2-C2 has 2 springs. 
E
E
E
E
H
T
HCW
WL
HCL
"D" Tap - 4 Holes unless
  otherwise requested
Adjustment
Bolt
Vertical Limit
Stops-Out of
contact during
normal operation
Non-Skid Neoprene Pad-
Pad can be removed if
mounts are welded
into position.
Enclosed
Steel
Housing
Internal
Neoprene
Acoustical
Pad
Lower
Restraining
Nut
Rubber
Snubbing
Collar
MBD -Max
Bolt
Diameter

YORK INTERNATIONAL 61
FORM 150.64-EG1
INTENTIONALLY LEFT BLANK

YORK INTERNATIONAL
62
Electrical Data
1.  Minimum Circuit Ampacity (MCA) is based on 125% of the rated load amps for the largest motor plus 100% of 
the rated load amps for all other loads included in the circuit, per N.E.C. Article 430-24. If the optional Factory 
Mounted Control Transformer is provided, add the following MCA values to the electrical tables for the system 
providing power to the transformer: -17, add 2.5 amps; -28, add 2.3 amps; -40, add 1.5 amps, -46, add 1.3 amps; 
-58, add 1 amps.
2.  The minimum recommended disconnect switch is based on 115% of the rated load amps for all loads included 
in the circuit, per N.E.C. Article 440.
3.  Minimum fuse size is based upon 150% of the rated load amps for the largest motor plus 100% of the rated load 
amps for all other loads included in the circuit to avoid nuisance trips at start-up due to lock rotor amps. It is not 
recommended in applications where brown outs, frequent starting and stopping of the unit, and/or operation at 
ambient temperatures in excess of 95ºF (35ºC) is anticipated.
4.  Maximum fuse size is based upon 225% of the rated load amps for the largest motor plus 100% of the rated 
load amps for all other loads included in the circuit, per N.E.C. Article 440-22.
5.  Circuit breakers must be UL listed and CSA certified and maximum size is based on 225% of the rated load amps 
for the largest motor plus 100% of the rated load amps for all other loads included in the circuit. Otherwise, an 
HACR-type circuit breakers must be used. Maximum HACR circuit breaker rating is based on 225% of the rated 
load amps for the largest motor plus 100% of the rated load amps for all other loads included in the circuit.
6.  The “INCOMING WIRE RANGE” is the minimum and maximum wire size that can be accommodated by the 
unit wiring lugs. The (2) preceding the wire range indicates the number of termination points available per phase 
of the wire range specified. Actual wire size and number of wires per phase must be determined based on the 
National Electrical Code, using copper connectors only. Field wiring must also comply with local codes.
7.  A ground lug is provided for each compressor system to accommodate a field grounding conductor per N.E.C. 
Table 250-95. A control circuit grounding lug is also supplied.
8.  The supplied disconnect is a “Disconnecting Means” as defined in the N.E.C. 100, and is intended for isolating the 
unit for the available power supply to perform maintenance and troubleshooting. This disconnect is not intended 
to be a Load Break Device.
9.  Field Wiring by others which complies to the National Electrical Code & Local Codes.
NOTES:

YORK INTERNATIONAL 63
FORM 150.64-EG1
LEGEND   
ACR-LINE  ACROSS  THE LINE START 
C.B.  CIRCUIT BREAKER 
D.E.  DUAL ELEMENT FUSE 
DISC SW  DISCONNECT SWITCH 
FACT MOUNT CB  FACTORY MOUNTED CIRCUIT BREAKER 
FLA  FULL LOAD AMPS 
HZ  HERTZ 
MAX  MAXIMUM 
MCA  MINIMUM CIRCUIT AMPACITY 
MIN  MINIMUM  
MIN NF  MINIMUM NON FUSED  
RLA  RATED LOAD AMPS 
S.P. WIRE  SINGLE POINT WIRING 
UNIT MTD SERV SW  UNIT MOUNTED SERVICE (NON-FUSED DISCONNECT  
    SWITCH) 
LRA  LOCKED ROTOR AMPS
VOLTAGE RANGE
VOLTAGE CODE UNIT POWER MIN. MAX.
-17 200-3-60 180 220
-28 230-3-60 207 253
-40 380/415-3-60 342 440
-46 460-3-60 414 506
-50 380/415-3-50 342 440
-58 575-3-60 517 633
UNIT VOLTAGE
UNIT 
VOLTAGE
CONTROL 
POWER MCA
NOTE A
OVER CURRENT PROTECTION,
SEE NOTE B NF DISC Sw
MIN MAX
MODELS w/o
CONTROL 
TRANS
115-1-60/50 15A 10A 15A 30 A / 240V
MODELS w/
CONTROL 
TRANS
-17 200-1-60 15A 10A 15A 30 A / 240V
-28 230-1-60 15A 10A 15A 30 A / 240V
-40 380-1-60 15A 10A 15A 30 A / 480V
-46 460-1-60 15A 10A 15A 30 A / 480V
-50 380/415-1-60 15A 10A 15A 30A / 415V
-58 575-1-60 15A 10A 15A 30 A / 600V
A. Minimum #14 AWG, 75°C, Copper Recommended
B. Minimum and Maximum Over Current Protection, Dual Element Fuse or Circuit Breaker

YORK INTERNATIONAL
64
Electrical Data - 60Hz
YCAL0041 - YCAL0065
SINGLE POINT FIELD SUPPLIED POWER WIRING (See Fig. 2)
(One Field Provided Power Supply to the chiller.  Field connections to Factory Provided Power Terminal Block (standard), Non-Fused Discon-
nect Switch (optional) or Circuit Breaker (optional).) 
See Notes on page 100.
MODEL 
YCAL VOLT MCA1
MIN N/F 
DISC 
SW2
D.E. FUSE CKT. BKR.5FIELD WIRING LUGS6 
TERMINAL BLOCK (std)
FIELD WIRING LUGS6 
NF DISC. SWITCH (opt)
REC. MAX4REC. MAX LUGS/  
PHASE LUG WIRE RANGE LUGS/  
PHASE LUG WIRE RANGE
0041
200 197 250 225 225 225 225 1 6awg - 500MCM 1 6awg - 350MCM
230 184 250 200 200 200 200 1 6awg - 500MCM 1 6awg - 350MCM
380 107 150 125 125 125 125 1 6awg - 500MCM 1 6awg - 350MCM
460 90 100 100 100 100 100 1 6awg - 500MCM 1 6awg - 350MCM
575 71 100 80 80 80 80 1 6awg - 500MCM 1 6awg - 350MCM
0045
200 199 250 225 225 225 225 1 6awg - 500MCM 1 6awg - 350MCM
230 186 250 200 200 200 200 1 6awg - 500MCM 1 6awg - 350MCM
380 108 150 125 125 125 125 1 6awg - 500MCM 1 6awg - 350MCM
460 91 100 100 100 100 100 1 6awg - 500MCM 1 6awg - 350MCM
575 71 100 80 80 80 80 1 6awg - 500MCM 1 6awg - 350MCM
0051
200 228 250 250 250 250 250 1 6awg - 500MCM 2 3/0 - 250MCM
230 212 250 225 250 225 250 1 6awg - 500MCM 2 3/0 - 250MCM
380 123 150 150 150 150 150 1 6awg - 500MCM 1 6awg - 350MCM
460 103 150 110 110 110 110 1 6awg - 500MCM 1 6awg - 350MCM
575 81 100 90 90 90 90 1 6awg - 500MCM 1 6awg - 350MCM
0055
200 250 400 300 300 300 300 1 6awg - 500MCM 2 3/0 - 250MCM
230 233 400 250 300 250 300 1 6awg - 500MCM 2 3/0 - 250MCM
380 135 150 150 150 150 150 1 6awg - 500MCM 1 6awg - 350MCM
460 113 150 125 125 125 125 1 6awg - 500MCM 1 6awg - 350MCM
575 89 100 100 100 100 100 1 6awg - 500MCM 1 6awg - 350MCM
0061
200 274 400 300 300 300 300 1 6awg - 500MCM 1 250MCM - 500MCM
230 255 400 300 300 300 300 1 6awg - 500MCM 1 250MCM - 500MCM
380 148 200 175 175 175 175 1 6awg - 500MCM 1 6awg - 350MCM
460 125 150 150 150 150 150 1 6awg - 500MCM 1 6awg - 350MCM
575 98 150 110 110 110 110 1 6awg - 500MCM 1 6awg - 350MCM
0065
200 292 400 350 350 350 350 1 6awg - 500MCM 1 250MCM - 500MCM
230 272 400 300 300 300 300 1 6awg - 500MCM 1 250MCM - 500MCM
380 158 200 175 175 175 175 1 6awg - 500MCM 1 6awg - 350MCM
460 132 150 150 150 150 150 1 6awg - 500MCM 1 6awg - 350MCM
575 104 150 110 125 110 125 1 6awg - 500MCM 1 6awg - 350MCM

YORK INTERNATIONAL 65
FORM 150.64-EG1
YCAL0041 - YCAL0065
SINGLE POINT FIELD SUPPLIED POWER WIRING (See Fig. 2)
(One Field Provided Power Supply to the chiller.  Field connections to Factory Provided Power Terminal Block (standard), Non-Fused Discon-
nect Switch (optional) or Circuit Breaker (optional).) 
FIELD WIRING LUGS6 
CIRCUIT BREAKER (opt)
SYSTEM #1 COMPRESSOR & FAN SYSTEM #2 COMPRESSOR & FAN
COMPR. #1 COMPR. #2 FANS COMPR. #1 COMPR. #2 FANS
LUGS/  PHASE LUG WIRE RANGE RLA LRA RLA LRA QTY FLA(EA) RLA LRA RLA LRA QTY FLA(EA)
1 6awg - 350MCM 39.1 250 39.1 250 2 7.6 39.1 250 39.1 250 2 7.6
1 6awg - 350MCM 36.2 250 36.2 250 2 7.4 36.2 250 36.2 250 2 7.4
1 6awg - 350MCM 20.9 155 20.9 155 2 4.5 20.9 155 20.9 155 2 4.5
1 6awg - 350MCM 17.2 125 17.2 125 2 4 17.2 125 17.2 125 2 4
1 6awg - 350MCM 13.8 100 13.8 100 2 2.9 13.8 100 13.8 100 2 2.9
1 6awg - 350MCM 40.0 250 40.0 250 2 7.6 39.1 250 39.1 250 2 7.6
1 6awg - 350MCM 37.0 250 37.0 250 2 7.4 36.2 250 36.2 250 2 7.4
1 6awg - 350MCM 21.3 155 21.3 155 2 4.5 20.9 155 20.9 155 2 4.5
1 6awg - 350MCM 17.6 125 17.6 125 2 4 17.2 125 17.2 125 2 4
1 6awg - 350MCM 14.1 100 14.1 100 2 2.9 13.8 100 13.8 100 2 2.9
2 3/0 - 250MCM 40.0 350 40.0 350 2 7.6 49.4 316 53.8 374 2 7.6
2 3/0 - 250MCM 37.0 350 37.0 350 2 7.4 45.8 316 49.8 374 2 7.4
1 6awg - 350MCM 21.3 195 21.3 195 2 4.5 26.4 199 28.7 235 2 4.5
1 6awg - 350MCM 17.6 167 17.6 167 2 4 21.8 158 23.7 187 2 4
1 6awg - 350MCM 14.1 125 14.1 125 2 2.9 17.4 126 19.0 150 2 2.9
2 3/0 - 250MCM 53.8 374 49.4 316 2 7.6 49.4 316 53.8 374 2 7.6
2 3/0 - 250MCM 49.8 374 45.8 316 2 7.4 45.8 316 49.8 374 2 7.4
1 6awg - 350MCM 28.7 235 26.4 199 2 4.5 26.4 199 28.7 235 2 4.5
1 6awg - 350MCM 23.7 187 21.8 158 2 4 21.8 158 23.7 187 2 4
1 6awg - 350MCM 19.0 150 17.4 126 2 2.9 17.4 126 19.0 150 2 2.9
1 250MCM - 500MCM 68.3 505 53.8 425 2 7.6 53.8 425 53.8 425 2 7.6
1 250MCM - 500MCM 63.3 505 49.8 425 2 7.4 49.8 425 49.8 425 2 7.4
1 6awg - 350MCM 36.5 280 28.7 239 2 4.5 28.7 239 28.7 239 2 4.5
1 6awg - 350MCM 30.1 225 23.7 198 2 4 23.7 198 23.7 198 2 4
1 6awg - 350MCM 24.1 180 19.0 148 2 2.9 19.0 148 19.0 148 2 2.9
1 250MCM - 500MCM 68.3 505 68.3 505 2 7.6 53.8 425 53.8 425 2 7.6
1 250MCM - 500MCM 63.3 505 63.3 505 2 7.4 49.8 425 49.8 425 2 7.4
1 6awg - 350MCM 36.5 280 36.5 280 2 4.5 28.7 239 28.7 239 2 4.5
1 6awg - 350MCM 30.1 225 30.1 225 2 4 23.7 198 23.7 198 2 4
1 6awg - 350MCM 24.1 180 24.1 180 2 2.9 19.0 148 19.0 148 2 2.9

YORK INTERNATIONAL
66
Electrical Data - 50Hz
MODEL
YCAL  VOLT MCA1
MIN 
N/F DISC 
SW2
D.E. FUSE CKT. BKR.5FIELD WIRING LUGS6  FIELD WIRING LUGS6  FIELD WIRING LUGS6  SYSTEM #1 COMPRESSOR & FAN SYSTEM #2 COMPRESSOR & FAN
TERMINAL BLOCK (std) NF DISC. SWITCH (opt) CIRCUIT BREAKER (opt) COMPR. #1 COMPR. #2 FANS COMPR. #1 COMPR. #2 FANS
REC. MAX4REC. MAX LUGS/  
PHASE LUG WIRE RANGE LUGS/  
PHASE LUG WIRE RANGE LUGS/  
PHASE LUG WIRE RANGE RLA LRA RLA LRA QTY FLA
(EA) RLA LRA RLA LRA QTY FLA
(EA)
0041 380/415 90 100 100 100 100 100 1 6awg - 500MCM 1 6awg - 350MCM 1 6awg - 350MCM 17.2 125 17.2 125 2 4 17.2 125 17.2 125 2 4
0045 380/415 91 100 100 100 100 100 1 6awg - 500MCM 1 6awg - 350MCM 1 6awg - 350MCM 17.6 125 17.6 125 2 4 17.2 125 17.2 125 2 4
0051 380/415 103 150 110 110 110 110 1 6awg - 500MCM 1 6awg - 350MCM 1 6awg - 350MCM 17.6 158 17.6 158 2 4 21.8 127 23.7 187 2 4
0055 380/415 113 150 125 125 125 125 1 6awg - 500MCM 1 6awg - 350MCM 1 6awg - 350MCM 23.7 187 21.8 127 2 4 21.8 127 23.7 187 2 4
0061 380/415 124 150 150 150 150 150 1 6awg - 500MCM 1 6awg - 350MCM 1 6awg - 350MCM 30.1 225 23.7 198 2 4 23.7 167 23.7 167 2 4
0065 380/415 132 150 150 150 150 150 1 6awg - 500MCM 1 6awg - 350MCM 1 6awg - 350MCM 30.1 225 30.1 225 2 4 23.7 198 23.7 198 2 4
YCAL0041 - YCAL0065
SINGLE POINT FIELD SUPPLIED POWER WIRING (See Fig. 2)
(One Field Provided Power Supply to the chiller.  Field connections to Factory Provided Power Terminal Block (standard), Non-Fused Discon-
nect Switch (optional) or Circuit Breaker (optional).) 

YORK INTERNATIONAL 67
FORM 150.64-EG1
MODEL
YCAL  VOLT MCA1
MIN 
N/F DISC 
SW2
D.E. FUSE CKT. BKR.5FIELD WIRING LUGS6  FIELD WIRING LUGS6  FIELD WIRING LUGS6  SYSTEM #1 COMPRESSOR & FAN SYSTEM #2 COMPRESSOR & FAN
TERMINAL BLOCK (std) NF DISC. SWITCH (opt) CIRCUIT BREAKER (opt) COMPR. #1 COMPR. #2 FANS COMPR. #1 COMPR. #2 FANS
REC. MAX4REC. MAX LUGS/  
PHASE LUG WIRE RANGE LUGS/  
PHASE LUG WIRE RANGE LUGS/  
PHASE LUG WIRE RANGE RLA LRA RLA LRA QTY FLA
(EA) RLA LRA RLA LRA QTY FLA
(EA)
0041 380/415 90 100 100 100 100 100 1 6awg - 500MCM 1 6awg - 350MCM 1 6awg - 350MCM 17.2 125 17.2 125 2 4 17.2 125 17.2 125 2 4
0045 380/415 91 100 100 100 100 100 1 6awg - 500MCM 1 6awg - 350MCM 1 6awg - 350MCM 17.6 125 17.6 125 2 4 17.2 125 17.2 125 2 4
0051 380/415 103 150 110 110 110 110 1 6awg - 500MCM 1 6awg - 350MCM 1 6awg - 350MCM 17.6 158 17.6 158 2 4 21.8 127 23.7 187 2 4
0055 380/415 113 150 125 125 125 125 1 6awg - 500MCM 1 6awg - 350MCM 1 6awg - 350MCM 23.7 187 21.8 127 2 4 21.8 127 23.7 187 2 4
0061 380/415 124 150 150 150 150 150 1 6awg - 500MCM 1 6awg - 350MCM 1 6awg - 350MCM 30.1 225 23.7 198 2 4 23.7 167 23.7 167 2 4
0065 380/415 132 150 150 150 150 150 1 6awg - 500MCM 1 6awg - 350MCM 1 6awg - 350MCM 30.1 225 30.1 225 2 4 23.7 198 23.7 198 2 4
YCAL0041 - YCAL0065
SINGLE POINT FIELD SUPPLIED POWER WIRING (See Fig. 2)
(One Field Provided Power Supply to the chiller.  Field connections to Factory Provided Power Terminal Block (standard), Non-Fused Discon-
nect Switch (optional) or Circuit Breaker (optional).) 

YORK INTERNATIONAL
68
Power Wiring
FIG. 1 – STANDARD POWER SUPPLY  WIRING – (YCAL 0014 - 0080)

YORK INTERNATIONAL 69
FORM 150.64-EG1
FIG. 1 – STANDARD POWER SUPPLY  WIRING – (YCAL 0014 - 0080)

YORK INTERNATIONAL
70

YORK INTERNATIONAL 71
FORM 150.64-EG1
CTB1
21
13
20
13
14
13
FLOW SW REMOTE START/STOP
PWM INPUT
LOAD LIMIT INPUT
*
* Factory wired with optional transformer.
Control Wiring
LD03611

YORK INTERNATIONAL
72
Application Data
UNIT LOCATION
The YCAL chillers are designed for outdoor installation. 
When selecting a site for installation, be guided by the 
following conditions:
1.   For  outdoor  locations  of  the  unit,  select  a  place 
having an adequate supply of fresh air for the con-
denser.
2.   Avoid  locations  beneath  windows  or  between 
structures where normal operating sounds may be 
objectionable.
3.  Installation sites may be either on a roof, or at ground 
level. (See FOUNDATION.)
4.   The  condenser  fans  are  the  propeller-type,  and 
are not recommended for use with duct work in the 
condenser air stream.
5.   When  it  is  desirable  to  surround  the  unit(s),  it  is 
recommended that the screening be  able  to pass 
the required chiller CFM without exceeding 0.1” of 
water external static pressure.
6.   Protection against corrosive environments is avail-
able by supplying the units with  either copper fin, 
cured  epoxy-dipped,  or  epoxy-coated  fins  on  the 
condenser coils. The epoxy-dipped or epoxy-coated 
coils should be offered with any units being installed 
at  the  seashore  or  where  salt  spray  may  hit  the 
unit.
In installations where winter operation is intended and 
snow  accumulations  are  expected,  additional  height 
must  be  provided  to  ensure  normal  condenser  air 
flow.
Recommended  clearances  for  units  are  given  in  DI-
MENSIONS.  When  the  available  space  is  less,  the 
unit(s) must be equipped with the discharge pressure 
transducer option to permit high pressure unloading in 
the event that air recirculation were to occur.
FOUNDATION
The unit should be mounted on a flat and level founda-
tion,  ground  or  roof,  capable  of  supporting  the  entire 
operating weight of the equipment. Operating weights 
are given in the PHYSICAL DATA tables.
ROOF  LOCATIONS  –  Choose  a  spot  with  adequate 
structural strength to safely support the entire weight
of the unit and service personnel. Care must be taken 
not to damage the roof during installation. If the roof is 
“bonded”,  consult  the  building  contractor  or  architect 
for special installation requirements. Roof installations 
should incorporate the use of spring-type isolators to 
minimize the transmission of vibration into the building 
structure.
GROUND LEVEL INSTALLATIONS – It is important that 
the units be installed on a substantial base that will not 
settle, causing strain on the liquid lines and resulting in 
possible leaks. A one-piece concrete slab with footers 
extending below the frost line is highly recommended. 
Additionally,  the  slab  should  not  be  tied  to  the  main 
building foundation, as noises will telegraph.
Mounting holes (11/16” diameter)  are  provided  in  the 
steel channel for bolting the unit to its foundation. See 
DIMENSIONS.
For  ground  level  installations,  precautions  should  be 
taken  to  protect  the  unit  from  tampering  by  or  injury 
to  unauthorized  persons.  Screws  on  access  panels 
will prevent casual tampering; however, further safety 
precautions, such as unit enclosure options, a fenced-in 
enclosure, or locking devices on the panels may be ad-
visable. Check local authorities for safety regulations.
CHILLED LIQUID PIPING
The chilled liquid piping system should be laid out so 
that  the  circulating  pump  discharges  into  the  cooler. 
The inlet and outlet cooler liquid connections are given 
in DIMENSIONS.
Hand stop valves are recommended for use in all lines 
to  facilitate  servicing.  Drain  connections  should  be 
provided at all low points to permit complete drainage 
of the cooler and system piping. Additionally, a strainer 
(40 mesh) is recommended for use on the INLET line 
to the cooler.
Pressure  gauge  connections  are  recommended  for 
installation in the inlet and outlet water lines. Gauges 
are not furnished with the unit and are to be furnished 
by other suppliers.
The chilled liquid lines that are exposed to outdoor am-
bients should be wrapped with a supplemental heater 
cable  and  covered  with  insulation. As  an  alternative, 
ethylene  glycol  should  be  added  to  protect  against 
freezeup during low ambient periods.
A flow switch is available as an accessory on all units. 
The flow switch (or its equivalent) must be installed in 
the leaving water piping of the cooler and must not be

YORK INTERNATIONAL 73
FORM 150.64-EG1
Typical Piping for Brazed-Plate
Coolers
Notes:
1.   Placement on a level surface free of obstructions 
(including snow, for winter operation) or air recircula-
tion ensures rated performance, reliable operation 
and ease of maintenance.
2.   Piping and wiring shown is for reference use only 
and is not in accordance with any national or local 
standards.
3.   All wiring and piping must comply with applicable 
local and national codes.
4.   All  wiring  and  piping  must  follow  standard  piping 
techniques  as  discussed  in  the ASHRAE hand-
book.
5.   A strainer with a mesh size between .5 and 1.5 mm 
is recommended upstream of the heat exchanger to 
prevent clogging.
Pressure
Gauge
INLET
OUTLET
Drain
Vibration
Eliminators
Vibration
Eliminators
Shut Off
Valves
Strainer Vent
Flow
Switch
Isolation
Valves

YORK INTERNATIONAL
74
Guide Specifications
PART 1 – GENERAL
1.01  SCOPE
 A.  The requirements of the General Conditions, Sup-
plementary  Conditions,  Division  1,  and  Drawings 
apply to all Work herein.
 B.  Provide  Microprocessor  controlled,  multiple-scroll 
compressor, air-cooled, liquid chillers of the sched-
uled  capacities  as  shown  and  indicated  on  the 
Drawings, including but not limited to:
    1.   Chiller package
    2.   Electrical power and control connections
    3.   Chilled water connections
    4.  Change of refrigerant oil (for factory mounted  
  evaporator) or (evaporator shipped separately  
  for field installation and piping by contractor)
1.02  QUALITY ASSURANCE
 A.  Products  shall  be  Designed,  Tested,  Rated  and 
Certified in accordance with, and installed in com-
pliance  with  applicable  sections  of  the  following 
Standards and Codes:
    1.  ANSI/ASHRAE Standard 15 – Safety Code for 
  Mechanical Refrigeration
    2.  ASHRAE 90.1– Energy Efficiency compli 
  ance.
    3.  ANSI/NFPA Standard 70 – National Electrical 
      Code (N.E.C.).
    4.  ASME Boiler & Pressure Vessel Code, Sec 
  tion VIII, Division 1.
    5.  ARI Standard 550/590 – Positive Displacement 
 Compressors  and Air  Cooled  Rotary  Screw 
  Water-Chilling Packages.
    6.  Conform to Intertek Testing Services, formerly 
  ETL,  for  construction  of  chillers  and  provide 
  ETL/cETL Listing label.
    7.  Manufactured in facility registered to ISO  
  9002.
    8.   OSHA - Occupational Safety and Health Act
 B.  Factory Test: Chiller shall be pressure-tested, evac-
uated and fully charged with refrigerant and oil, and 
shall be factory operational run tested with water 
flowing through the vessel.
 C.  Chiller  manufacturer  shall  have  a  factory  trained 
and supported service organization that is within a 
50 mile radius of the site.
 D.  Warranty: Manufacturer shall Warrant all equipment 
and material of its manufacture against defects in 
workmanship and material for a period of one year 
from date of initial start-up or eighteen (18) months 
from date of shipment, whichever occurs first.
1.03  DELIVERY AND HANDLING
 A.  Unit shall be delivered to job site fully assembled, 
and charged with refrigerant and oil by the Manu-
facturer. (Contractor is responsible for providing and 
installing the refrigerant charge including the charge 
required for the field installed interconnecting piping. 
Chiller components shall ship with a dry nitrogen 
holding charge – Remote Evaporator option).
 B.  Unit shall be stored and handled per Manufacturer’s 
instructions.
PART 2 - PRODUCTS
2.01  CHILLER MATERIALS AND COMPONENTS
 A.  General: Install and commission, as shown on the 
schedules and plans, factory assembled, charged, 
and tested air cooled scroll compressor chiller(s) as 
specified herein. Chiller shall be designed, selected, 
and constructed using a refrigerant with Flamma-
bility  rating  of  “1”,  as  defined  by ANSI/ASHRAE 
STANDARD - 34 Number Designation and Safety 
Classification of Refrigerants. Chiller shall include, 
but is not limited to: a complete system with a single 
refrigerant circuit 35 tons (123kW) and below, and 
not less than two refrigerant circuits above 35 tons 
(123kW),  scroll  compressors,  direct  expansion 
type evaporator, air-cooled condenser, refrigerant, 
lubrication  system,  interconnecting  wiring,  safety 
and operating controls including capacity controller, 
control  center,  motor  starting  components,  and 
special features as specified herein or required for 
safe, automatic operation.
 B.  Cabinet: External structural members shall be con-
structed of heavy gauge, galvanized steel coated 
with baked on powder paint which, when subject to 
ASTM B117, 1000 hour, 5% salt spray test, yields 
minimum ASTM 1654 rating of “6”. Add Wire Panels 
of heavy gauge, welded wire-mesh, coated to resist 
corrosion, to protect condenser coils from incidental 
damage and restrict unauthorized access to internal 
components. Factory installed.
2.02  COMPRESSORS
Compressors:  Shall  be  hermetic,  scroll-type,  in-
cluding:
 1.  Compliant design for axial and radial sealing

YORK INTERNATIONAL 75
FORM 150.64-EG1
 2.  Refrigerant flow through the compressor with 100% 
suction cooled motor.
 3.  Large  suction  side  free  volume  and  oil  sump  to 
provide liquid handling capability.
 4.  Compressor  crankcase  heaters  to  provide  extra 
liquid  migration protection.
 5.  Annular  discharge  check  valve  and  reverse  vent 
assembly to provide low pressure drop, silent shut-
down and reverse rotation protection.
 6.  Initial Oil charge.
 7.  Oil Level sightglass.
 8.  Vibration isolator mounts for compressors.
 9.   Brazed-type  connections  for  fully  hermetic  refrig-
erant circuits.
2.03  REFRIGERANT CIRCUIT COMPONENTS
Each refrigerant circuit shall include: liquid line shutoff 
valve with charging port, low side pressure relief device, 
filter-drier, solenoid valve, sight glass with moisture indi-
cator, expansion valves, and flexible, closed-cell foam 
insulated suction line.
2.04  HEAT EXCHANGERS
 A.  Evaporator:
    1.  Evaporator shall be brazed-plate stainless  
  steel construction, single or dual circuit heat  
  exchangers capable of refrigerant working  
  pressure of 450 psig (3103 kPa) and    
  liquid side pressure of 150 psig (1034 kPa)  
  (Option  for  300  psig  [2068  kPa]  available.)
    2.  Evaporator shall be covered in 3/4" (19mm)  
  flexible, closed cell insulation, thermal conduc 
  tivity of 0.26k (BTU/HR-FT2-°F]/in.) maximum.
   3.  Cooler  shall  have  thermostati 
  cally  controlled  heaters  to  protect  to  -20°F  
  (29°C) ambient in off-cycle.
    4.  Brazed plate heat exchangers shall be UL  
  listed.
    5.  Installing contractor must include accomoda 
  tions in the chilled water piping to allow prop 
  er drainage and venting of the heat exchang 
  er. A strainer with a mesh size between 0.5  
  and 1.5mm (40 mesh) is recommended up 
  stream of the heat exchanger to prevent clog 
  ging.
 B.  Air Cooled Condenser:
    1.  Coils:  Internally  enhanced,  seamless  copper 
  tubes,  mechanically  expanded  into  aluminum 
  alloy fins with full height collars. Subcooling coil 
  an integral part of condenser. Design working 
  pressure shall be 450 PSIG (31 bar).
    2.  Low Noise Fans: Shall be dynamically and  
  statically bal anced, direct drive, corrosion re 
  sistant glass fiber reinforced composite blades 
molded into  a  low  noise,  full-airfoil  cross section, 
providing     vertical air discharge and low 
sound. Each fan     in its own compartment 
to prevent crossflow     d u r i n g   f a n 
cycling. Guards of heavy gauge,     P V C 
(polyvinylchloride) coated or galvanized    
steel.
    3.  Fan Motors: High efficiency, direct drive, 6 pole, 
  3 phase, insulation class “F”, current protected, 
  Totally  Enclosed Air-Over  (TEAO),  rigid 
  mounted, with double sealed, permanently lu- 
  bricated, ball bearings.
2.05  CONTROLS
 A.  General: Automatic start, stop, operating, and pro-
tection sequences across the range of scheduled 
conditions and transients.
 B.  Microprocessor  Enclosure:  Rain  and  dust  tight 
NEMA 3R/12 (IP55) powder painted steel cabinet 
with hinged, latched, and gasket sealed door.
 C.  Microprocessor Control Center:
  1.  Automatic  control  of  compressor  start/stop, 
anti-coincidence  and  anti-recycle  timers,  au-
tomatic  pumpdown  on  shutdown,  condenser 
fans, evaporator pump, evaporator heater, unit 
alarm contacts, and chiller operation from 0°F 
to 125°F  (-18°C  to  52°C)  ambient. Automatic 
reset  to  normal  chiller operation    after  power 
failure.   
  2.  Remote  water  temperature  reset  via  a  Pulse  
Width Modulated (PWM) input signal or up to 
two steps of demand (load) limiting.
    3.  Software  stored  in  non-volatile  memory,  with 
  programmed setpoints retained in lithium bat- 
  tery backed real time clock (RTC) memory for 
  minimum 5 years.
    4.  Forty character liquid crystal display, descrip- 
  tions in English (or Spanish, French, Italian, or 
  German),  numeric  data  in  English  (or  Metric) 
  units. Sealed keypad with sections for Setpoints, 
  Display/Print, Entry, Unit Options & clock, and 
  On/Off Switch.
    5.  Programmable Setpoints (within Manufacturer 
  limits): display language; chilled liquid tempera- 
  ture setpoint and range, remote reset tempera- 
  ture range, set daily schedule/holiday for start/ 
  stop, manual override for servicing, low and high 
  ambient cutouts, number of compressors, low 

YORK INTERNATIONAL
76
  liquid temperature cutout, low suction pressure 
  cutout, high discharge pressure cutout, anti-re- 
  cycle timer (compressor start cycle time), and 
  anti-coincident timer (delay compressor   
  starts).
6.  Display  Data:  Return  and  leaving  liquid  tem- 
 peratures, low leaving liquid temperature cut- 
 out setting, low ambient temperature cutout set- 
 ting, outdoor air temperature, English or metric 
 data, suction pressure cutout setting, each  
 system  suction  pressure,discharge  pres-
sure  (standard  on  YCAL0041-0065  models), 
 liquid temperature reset via a YORK ISN DDC 
 or Building Automation System (by others) via 
 PWM input as standard or a 4-20milliamp or 0- 
 10 VDC input or contact closure with optional 
 BAS interface, anti-recycle timer status for each 
 compressor, anti-coincident system start timer 
 condition,  compressor  run  status,  no  cooling 
 load condition, day, date and time, daily start/ 
 stop times, holiday status, automatic or manual 
 system lead/lag control, lead system definition, 
 compressor starts/operating hours (each), sta- 
 tus of hot gas valves, evaporator heater and  
 fan operation, run permissive status, number  
 of compressors running, liquid solenoid valve 
 status, load & unload timer status, water pump 
 status.
    7.  System  Safeties:  Shall  cause  individual  com 
  pressor  systems  to  perform  auto  shut  down; 
  manual reset required after the third trip in 90 
  minutes. Includes: high discharge pressure, low 
  suction  pressure,  high  pressure  switch,  and 
  motor  protector.  Compressor  motor  protector 
  shall protect against damage due to high input 
  current or thermal overload of windings.
    8.  Unit  Safeties:  Shall  be  automatic  reset  and  
  cause compressors to shut down if low ambi- 
  ent, low leaving chilled liquid temperature, un- 
  der voltage, and flow switch operation. Contrac- 
  tor shall provide flow switch and wiring per chiller 
  manufacturer requirements.
    9.  Alarm  Contacts:  Low  ambient,  low  leaving 
  chilled  liquid  temperature,  low  voltage,  low  
  battery, and (per compressor circuit): high dis- 
  charge pressure, and low suction pressure.
 D.  Manufacturer shall provide any controls not listed 
above,  necessary  for  automatic  chiller  operation. 
Mechanical  Contractor  shall  provide  field  control 
wiring necessary to interface sensors to the chiller 
control system.
2.06  POWER  CONNECTION  AND  DISTRI-
BUTION
 A.  Power Panels:
    1.  NEMA  3R/12  (IP55)  rain/dust  tight,  powder 
  painted steel cabinets with hinged, latched, and 
  gasket sealed outer doors. Provide main power 
  connection(s), control power connections, com- 
  pressor and fan motor start contactors, current 
  overloads, and factory wiring.
  2.  Power supply shall enter unit at a single loca- 
tion,  be  3  phase  of  scheduled  voltage,  and  
connect to individual terminal blocks per com- 
pressor.  Separate  disconnecting  means  and/ 
or external branch circuit protection (by Con- 
tractor) required per applicable local or national 
codes.
 B.  Exposed compressor, control and fan motor power 
wiring shall be routed through liquid tight conduit.
2.07  ACCESSORIES AND OPTIONS
Some  accessories  and  options  supercede  standard 
product  features. Your YORK  representative  will  be 
pleased to provide assistance.
 A.  Microprocessor controlled, Factory installed Across-
the-Line type compressor motor starters as stan-
dard.
 B.  Outdoor Ambient Temperature Control
    1.  Low Ambient Control: Permits unit operation to 
  0°F ambient.  .
    2.  High Ambient Control:  Permits  unit  operation 
  above 115°F ambient. 
 C.  Power Supply Connections: 
  1.  Single Point Power Supply: Single point Termi- 
nal Block for field connection and interconnect- 
ing wiring to the compressors. Separate exter- 
nal protection must be supplied, by others, in 
the incoming power wiring, which must comply 
with  the  National  Electric  Code  and/or  local 
codes.  Standard  unit  controls  to  25°F 
ambient. Low Ambient Control standard on 
YCAL0041-0065 models 
  2.   Single Point Power Supply with individual Sys-
tem Breakers: Single  or Terminal Block(s) for 
field  connection  and  factory  interconnecting 
wiring  to  factory  supplied  system  breakers  . 
Available on YCAL0090-0134 models.   
  3.  Single Point or Disconnect: Single or Dual point  
Non-Fused Disconnect(s) and lockable  exter-
nal handle (in compliance with Article 440-14 

YORK INTERNATIONAL 77
FORM 150.64-EG1
of N.E.C.) can be supplied to isolate the unit 
power voltage for servicing. Separate external 
fusing  must  be  supplied,  by  others,  in  the  in 
coming power wiring, which must comply with 
the National Electric Code and/or local codes.
  4.  Single Point Disconnect with Individual System 
Breakers: Single point Terminal Block with Non-
Fused Disconnect  and lockable external handle 
(in  compliance  with Article  440-14  of  N.E.C.) 
can  be  supplied  to  isolate  power  voltage  for 
servicing. Factory interconnecting wiring from 
disconnect to factory supplied circuit breakers. 
Available on YCAL0041-0065.
  5.    Single Point Circuit Breaker: Single point Ter- 
  minal Block with Circuit Breaker and lockable 
  external handle (in compliance with Article 440 
  14 of N.E.C.) can be supplied to isolate power 
  voltage  for  servicing.  Incoming  power  wiring 
  must  comply  with  the  National  Electric  Code 
  and/or local codes. Single Point Circuit Break 
  ers available on YCAL0041-0065 models.
 D.  Pressure Transducers and Readout Capability
1.  Discharge Pressure Transducers: Permits unit 
to sense and display discharge pressure. Stan-
dard on YCAL0080-0134 models.
 E.  Control  Power  Transformer:  Converts  unit  power 
voltage  to  120-1-60  (500  VA  capacity).  Factory- 
mounting  includes  primary  and  secondary  wiring 
between the transformer and the control panel.
  F.  Motor Current Module: Capable of monitoring com-
pressor  motor  current.  Provides  extra  protection 
against  compressor  reverse  rotation,  phase-loss 
and phase imbalance. Option consists of one mod-
ule per electrical system. (Factory-mounted.)
 G.  Power  Factor  Correction  Capacitors:  Provided  to 
correct unit compressor factors to a 0.90-0.95.
 H.  Condenser Coil Environmental Protection: 
    1.  Pre-Coated: Epoxy coated aluminum fin stock to 
  guard  from  corrosive  agents  and  insulate 
  against  galvanic  potential.  For  mild  seashore 
  or industrial locations.
    2.  Copper Fin: Provide copper fins in lieu of alumi- 
  num.
3.  Post-Coated Dipped: Dipped-cured coating on 
condenser coils for seashore and other corro- 
sive applications (with the exception of strong 
alkalis, oxidizers, and wet bromine, chlorine and 
fluorine  in  concentrations  greater  than 
100ppm).
I.    Protective Chiller Panels (Factory or Field Mounted
    1.  Louvered  Panels  (condenser  coils  only): 
  Painted steel as per remainder of unit cabinet, 
  over external condenser coil faces.
    2.  Wire  Panels  (full  unit):  Heavy  gauge,  welded 
  wire-mesh, PVC -coated to resist corrosion, to pro- 
  tect  condenser  coils  from  incidental  damage 
  and  restrict  unauthorized  access  to  internal 
  components.
    3.  Louvered Panels (full unit): Painted steel as per 
  remainder of unit cabinet, to protect condenser 
  coils  from  incidental  damage,  visually  screen 
  internal components, and prevent unauthorized 
  access to internal components.
    4.  Louvered/Wire Panels: Louvered steel panels 
  on  external  condenser  coil  faces,  painted  as 
  per  remainder  of  unit  cabinet.  Heavy  gauge, 
  welded wire-mesh, coated to resist corrosion, 
  around base of machine to restrict unauthorized 
  access.
  J.  Flow Switch (Field-mounted):  Vapor proof SPDT, 
NEMA 4X switch ( ___150 PSIG or ___300 PSIG), 
-20°F to 250°F.
 K.  Differential  Pressure  Switch:   Alternative to  an 
above  mentioned  flow  switch.  Pretempco  model 
DPS300A-P40PF-82582-5 (300 psi max. working 
pressure) SPDT 5 amp 125/250VAC switch, Range 
0 - 40 PSID, deadband 0.5 - 0.8 psi, with 1/4” NPTE 
Pressure Connections.
 L.  Evaporator options:
1.  Provide 1½" cooler insulation in lieu of standard 
¾".
2.  Provide DX Cooler with 300 PSIG water-side 
design working pressure in lieu of standard 150 
PSIG.
3.  Provide  Raised  Face  Flanges  for  field  instal-
lation on cooler nozzles and field piping:
a.  150 PSIG, welded Flanges.
b.  300 PSIG, welded Flanges.
M.   Service Isolation valves:  Service suction and dis 
charge (ball type) isolation valves are added to unit 
per system. This option also includes a system high 
pressure relief valve in compliance with ASHRAE 
15. (Factory-mounted.)
N.  Remote  Cooler:  Manufacturer  shall  provide  sep-
arately: chiller less evaporator, leaving and return 

YORK INTERNATIONAL
78
water sensors, and liquid line components (solenoid 
valves,  filter  driers,  sight  glasses,  and  TXVs),  as 
discrete  elements  of  a  complete  factory  system. 
Contractor shall be field erect system and provide 
interconnecting  refrigerant  piping  and  wiring  in 
accordance with Manufacturer recommendations, 
and project plans and schedules. Where not oth-
erwise specified, Contractor provided system piping 
shall be in accordance with applicable sections of 
ASHRAE Handbook.
O.  Hot Gas By-Pass: Permits continuous, stable op-
eration  at  capacities  below  the  minimum  step  of 
unloading to as low as 5% capacity (depending on 
both the unit & operating conditions) by introducing 
an artificial load on the cooler. Hot gas by-pass is 
installed  on  only  one  refrigerant  circuit  (System 
#1).
P.  Microprocessor Membrane Keypad Graphics on in 
lieu of Standard English:
  1.  French language.
  2.  German language.
  3.  Spanish language.
  4.  Italian language.
Q.  Thermal  Storage:  Leaving  chilled  liquid  setpoint 
range for charge cycle from 25°F to 20°F minimum, 
with automatic reset of the leaving brine temperature 
up to 40°F above the setpoint. (Works with Option 
T)
R.  Low Temperature Process Brine:  Leaving chilled 
liquid setpoint range 20°F to 30°F.
S.  Chicago Code Relief Valves to meet Chicago Code 
requirements.
T.  Building Automation System (EMS) Reset Interface: 
Chiller to accept 4 to 20mA, 0 to 10 VDC, or discrete 
contact  closure  input  to  reset  the  leaving  chilled 
liquid temperature.
U.  Remote  Control  Panel  (Field-mounted): Auxiliary 
panel for  remote  user  interface  for  functions  nor-
mally made at the unit control center. Available on 
YCAL0014-0080 models.
V.  OptiView Remote Control  Panel  (Field-mounted): 
Graphical interface panel to remotely control and 
monitor up to 8 different units.
W.  Multi-Unit  Sequencing  Panel  (Field-mounted): 
Separate Sequencing control center is provided to 
permit control of up to eight chillers in parallel based 
on mixed liquid temperature.
X.  Sound Reduction (Factory-mounted):
1.  Ultra quiet, low speed, reduced noise fans
2.  Compressor Acoustic Sound Blankets
Y.  Vibration Isolation (Field-mounted):
1.  Neoprene Pad Isolators.
2.  1  Inch  Deflection  Spring  Isolators:  Level  ad-
justable,  spring  and  cage  type  isolators  for 
mounting under the unit base rails.
3.  2 Inch Deflection Seismic Isolators: Level ad-
justable, restrained mounts in  rugged welded 
steel housing with vertical and horizontal limit 
stops. Housings shall be designed to withstand 
a minimum 1.0g accelerated force in all direc-
tions to 2 inches.
PART 3 - EXECUTION
3.01  INSTALLATION
A.  General:  Rig  and  Install  in  full  accordance  with 
Manufacturers requirements, Project drawings, and 
Contract documents.
B.  Location: Locate chiller as indicated on drawings, 
including cleaning and service maintenance clear-
ance per Manufacturer instructions. Adjust and level 
chiller on support structure. If equipment provided 
exceeds height of scheduled chiller, installing con-
tractor is responsible for additional costs associated 
with extending the height of parapet or screening 
walls/enclosures
C.  Components: Installing Contractor shall provide and 
install all auxiliary devices and accessories for fully 
operational chiller.
D.  Electrical: Coordinate electrical requirements and 
connections for all power feeds with Electrical Con-
tractor (Division 16).
E.  Controls: Coordinate all control requirements and 
connections with Controls Contractor.
F.  Finish: Installing Contractor shall paint damaged and 
abraded factory finish with touch-up paint matching 
factory finish.

YORK INTERNATIONAL 79
FORM 150.64-EG1

ALL RIGHTS RESERVED
P.O.Box 1592 York, Pennsylvania USA 17405-1592
Copyright © by York International Corporation 2004
Subject to change without notice. Printed in the USA
Form 150.62-EG1 (103)
Supersedes: 150.62-EG1 (102)
RPC 3M 303 9.28
Codes: DXL, ET2