York Air Conditioner R 410A Zh Zj Zr Series Users Manual 528150 YTG G 1210
R-410A ZHZJZR Series to the manual 1bac44e6-e526-4e06-a605-16b64416feff
2015-02-02
: York York-Air-Conditioner-R-410A-Zh-Zj-Zr-Series-Users-Manual york-york-air-conditioner-r-410a-zh-zj-zr-series-users-manual-455242 york pdf
Open the PDF directly: View PDF
.
Page Count: 206 [warning: Documents this large are best viewed by clicking the View PDF Link!]
- Description
- Table of Contents
- Component Location
- Nomenclature
- Features and Benefits
- Guide Specifications
- Physical Data
- ZH037-061 Single Stage Gas Physical Data
- ZH037-061 Two Stage Gas Physical Data
- ZH078-150 Physical Data
- ZJ037-061 Single Stage Gas Heat Physical Data
- ZJ037-061 Two Stage Gas Heat Physical Data
- ZJ078-150 Physical Data
- ZR037-061 Single Stage Gas Heat Physical Data
- ZR078-150 Physical Data
- ZH/ZJ/ZR078-150 Unit Limitations
- Capacity Performance
- ZH037-150 Cooling Capacities
- ZJ037-150 Cooling Capacities
- ZR037-150 Cooling and Reheat Capacities
- Airflow Performance
- Altitude/Temperature Correction Factors
- Indoor Blower Specifications
- Power Exhaust Specifications
- RPM Selection
- Additional Static Resistance - ZH037 thru 061
- Additional Static Resistance - ZJ/ZR037 thru 061
- Additional Static Resistance - ZH/ZR078 thru 150
- Additional Static Resistance - ZJ078-150
- Gas Heat Minimum Supply Air
- Electric Heat Minimum Supply Air
- Airflow Performance
- Sound Performance
- Indoor Sound Power Levels (3 thru 5 Ton)
- Indoor Sound Power Levels (Horizontal Ducted Inlet, Standard Static Belt Drive)
- Indoor Sound Power Levels (Horizontal Ducted Discharge, Standard Static Belt Drive)
- Indoor Sound Power Levels (Vertical Ducted Inlet, Standard Static Belt Drive)
- Indoor Sound Power Levels (Vertical Ducted Discharge, Standard Static Belt Drive)
- Indoor Sound Power Levels (Horizontal Ducted Inlet, High Static Belt Drive)
- Indoor Sound Power Levels (Horizontal Ducted Discharge, High Static Belt Drive)
- Indoor Sound Power Levels (Vertical Ducted Inlet, High Static Belt Drive)
- Indoor Sound Power Levels (Vertical Ducted Discharge, High Static Belt Drive)
- Indoor Sound Power Levels (6.5 thru 12.5 Ton)
- Outdoor Sound Power Levels ZH/ZJ/ZR037-150
- Electrical Data
- ZH037-061 Standard Indoor Blower - Without Powered Convenience Outlet
- ZH078-150 Standard Motor - Without Powered Convenience Outlet
- ZH037-061 Hi Static Indoor Blower - Without Powered Convenience Outlet
- ZH078-150 Hi Static Motor - Without Powered Convenience Outlet
- ZH037-061 Standard Indoor Blower - With Powered Convenience Outlet
- ZH078-150 Standard Motor - With Powered Convenience Outlet
- ZH037-061 Hi Static Indoor Blower - With Powered Convenience Outlet
- ZH078-150 Hi Static Motor - With Powered Convenience Outlet
- ZJ037-061 Standard Indoor Blower - Without Powered Convenience Outlet
- ZJ037-061 Hi Static Indoor Blower - Without Powered Convenience Outlet
- ZJ037-061 Standard Indoor Blower - With Powered Convenience Outlet
- ZJ037-061 Hi Static Blower - With Powered Convenience Outlet
- ZJ078-150 Hi Static Motor - With Powered Convenience Outlet
- ZR037-061 Standard Indoor Blower - Without Powered Convenience Outlet
- ZR037-061 Hi Static Indoor Blower - Without Powered Convenience Outlet
- ZR037-061 Standard Indoor Blower - With Powered Convenience Outlet
- ZR037-061 Hi Static Indoor Blower - With Powered Convenience Outlet
- Electric Heat Multipliers
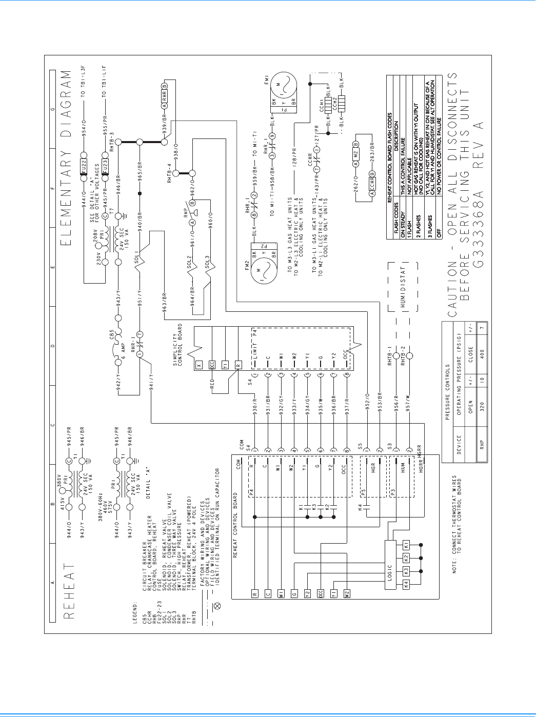
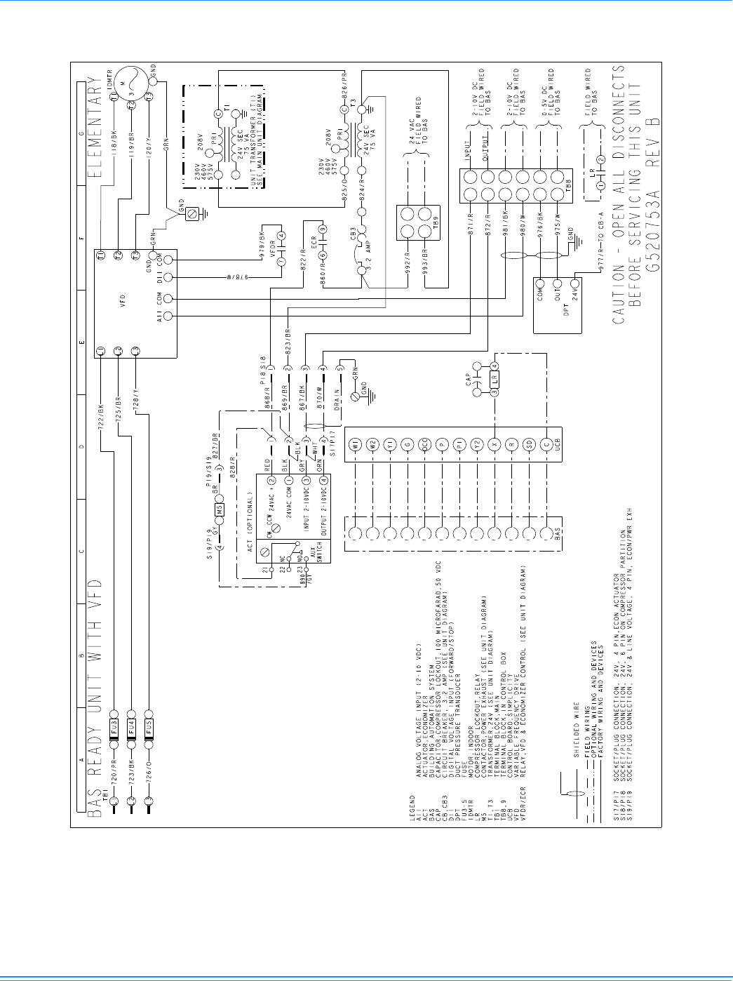
- Typical Wiring Diagrams
- ZH/ZJ037-150 Typical Wiring Diagrams
- Typical ZH/ZJ037-061 Cooling Unit with Gas Heat 230 Volt Wiring Diagram
- Typical ZR037-061 Reheat Unit with Gas Heat 230 Volt Wiring Diagram
- Typical ZH/ZJ037-061 Cooling Unit with Gas Heat 460/575 Volt Wiring Diagram
- Typical ZR037-061 Reheat Unit with Gas Heat 460/575 Volt Wiring Diagram
- Typical ZH/ZJ037-061 Cooling Unit with/without Electric Heat Wiring Diagram
- Typical ZR037-061 Reheat Unit with/without Electric Heat Wiring Diagram
- Typical ZH/ZJ/ZR078-120 Cooling Unit with Gas Heat 230 Volt Wiring Diagram
- Typical ZH/ZJ/ZR078-120 Cooling Unit with Gas Heat 460/575 Volt Wiring Diagram
- Typical ZH/ZJ/ZR078-120 Cooling Unit with/without Electric Heat Wiring Diagram
- Typical ZH/ZJ/ZR150 Cooling Unit with Gas Heat 230 Volt Wiring Diagram
- Typical ZH/ZJ/ZR150 Cooling Unit with Gas Heat 460/575 Volt Wiring Diagram
- Typical ZR037-061 Reheat Wiring Diagram
- Typical ZR078-120 Reheat Wiring Diagram
- Typical ZR150 Reheat Wiring Diagram
- Typical ZH/ZJ078-150 Factory Installed VFD (Option)
- Typical ZH/ZJ078-150 Factory Installed VFD with Manual Bypass (Option)
- Typical ZH/ZJ078-150 BAS Ready Unit with Factory Installed VFD (Option)
- Typical ZH/ZJ078-150 BAS Ready Unit with Factory Installed VFD and Manual Bypass (Option)
- Typical ZH/ZJ078-150 VFD Ready Unit (Option)
- ZH/ZJ037-150 Typical Wiring Diagrams
- Weights and Dimensions
- Weights and Dimensions
- ZR037-150 Unit Weights
- ZH/ZJ/ZR037-150 Unit Accessory Weights
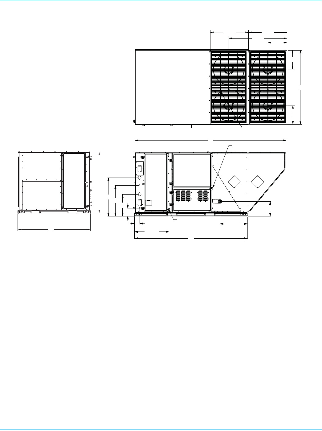
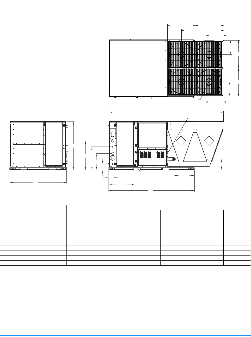
- ZH/ZJ/ZR037-150 Unit Dimensions
- ZH037-061 and ZJ/ZR037
- ZJ/ZR049 thru 061 and ZH/ZJ/ZR078 thru 120
- ZH150
- ZJ/ZR150
- ZH/ZJ/ZR037-150 Unit Physical Dimensions
- ZH/ZJ/ZR037-150 Unit Clearances
- ZH/ZJ/ZR037-150 Unit Bottom Duct Openings
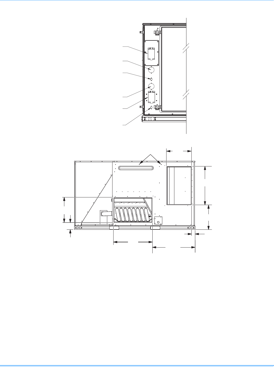
- ZH/ZJ/ZR037-150 Unit Electrical Entry
- ZH/ZJ/ZR037-120 Unit Side Duct Openings
- ZH150 Unit Side Duct Openings
- ZJ/ZR150 Unit Side Duct Openings
- ZH/ZJ/ZR037-150 Unit Left Duct Opening
- ZH/ZJ/ZR037-150 Unit Accessory Dimensions
- Economizer Options

®
FOR DISTRIBUTION USE ONLY - NOT TO BE USED AT POINT OF RETAIL SALE
528150-YTG-G-1210
TECHNICAL GUIDE Description
ASHRAE 90.1 COMPLIANT
YORK® Predator® units are convertible single packages with a
common footprint cabinet and common roof curb for all 3
through 12-1/2 ton models. All 6-1/2 through 12-1/2 ton units
have two compressors with independent refrigeration circuits to
provide 2 stages of cooling. The units were designed for light
commercial applications and can be easily installed on a roof
curb, slab, or frame.
All Predator® units are self-contained and assembled on rigid
full perimeter base rails allowing for 3-way forklift access and
overhead rigging. Every unit is completely charged, wired,
piped, and tested at the factory to provide a quick and easy field
installation.
All units are convertible between side and down airflow.
Independent economizer designs are used on side and down
discharge applications, as well as all tonnage sizes.
Predator® units are available in the following configurations:
cooling only, cooling with electric heat, cooling with gas heat,
reheat only, reheat with electric heat and reheat with gas heat.
Electric heaters are available as factory-installed options or
field-installed accessories.
All units provide constant supply air volume. A variable air
volume (VAV) option, featuring a variable frequency drive, is
available on 6-1/2 through 12-1/2 ton ZH/ZJ models only.
Tested in accordance with:
R-410A
ZH/ZJ/ZR SERIES
3 - 12-1/2 TON
60 Hertz
ZH/ZJ/ZR 3 THROUGH 10 TON
ZH 12-1/2 TON
ZJ/ZR 12-1/2 TON

528150-YTG-G-1210
2Johnson Controls Unitary Products
Table of Contents
Description . . . . . . . . . . . . . . . . . . . . . . . . . . . . . . . . . . . . . . . . . . . . . . . . . . . . . . . . . . . . . . . . . . . . . . . . . . . . . . . . . . . . . . . . . . . . 1
Table of Contents . . . . . . . . . . . . . . . . . . . . . . . . . . . . . . . . . . . . . . . . . . . . . . . . . . . . . . . . . . . . . . . . . . . . . . . . . . . . . . . . . . . . . . . 2
Component Location . . . . . . . . . . . . . . . . . . . . . . . . . . . . . . . . . . . . . . . . . . . . . . . . . . . . . . . . . . . . . . . . . . . . . . . . . . . . . . . . . . . . 2
Nomenclature . . . . . . . . . . . . . . . . . . . . . . . . . . . . . . . . . . . . . . . . . . . . . . . . . . . . . . . . . . . . . . . . . . . . . . . . . . . . . . . . . . . . . . . . . . 4
Features and Benefits . . . . . . . . . . . . . . . . . . . . . . . . . . . . . . . . . . . . . . . . . . . . . . . . . . . . . . . . . . . . . . . . . . . . . . . . . . . . . . . . . . . . 5
Guide Specifications . . . . . . . . . . . . . . . . . . . . . . . . . . . . . . . . . . . . . . . . . . . . . . . . . . . . . . . . . . . . . . . . . . . . . . . . . . . . . . . . . . . . 12
Physical Data . . . . . . . . . . . . . . . . . . . . . . . . . . . . . . . . . . . . . . . . . . . . . . . . . . . . . . . . . . . . . . . . . . . . . . . . . . . . . . . . . . . . . . . . . . 16
Capacity Performance . . . . . . . . . . . . . . . . . . . . . . . . . . . . . . . . . . . . . . . . . . . . . . . . . . . . . . . . . . . . . . . . . . . . . . . . . . . . . . . . . . 35
Airflow Performance . . . . . . . . . . . . . . . . . . . . . . . . . . . . . . . . . . . . . . . . . . . . . . . . . . . . . . . . . . . . . . . . . . . . . . . . . . . . . . . . . . . 104
Sound Performance . . . . . . . . . . . . . . . . . . . . . . . . . . . . . . . . . . . . . . . . . . . . . . . . . . . . . . . . . . . . . . . . . . . . . . . . . . . . . . . . . . . 122
Electrical Data . . . . . . . . . . . . . . . . . . . . . . . . . . . . . . . . . . . . . . . . . . . . . . . . . . . . . . . . . . . . . . . . . . . . . . . . . . . . . . . . . . . . . . . . 136
Typical Wiring Diagrams . . . . . . . . . . . . . . . . . . . . . . . . . . . . . . . . . . . . . . . . . . . . . . . . . . . . . . . . . . . . . . . . . . . . . . . . . . . . . . . 172
Weights and Dimensions . . . . . . . . . . . . . . . . . . . . . . . . . . . . . . . . . . . . . . . . . . . . . . . . . . . . . . . . . . . . . . . . . . . . . . . . . . . . . . . 192
Weights and Dimensions . . . . . . . . . . . . . . . . . . . . . . . . . . . . . . . . . . . . . . . . . . . . . . . . . . . . . . . . . . . . . . . . . . . . . . . . . . . . . . . 193
Economizer Options . . . . . . . . . . . . . . . . . . . . . . . . . . . . . . . . . . . . . . . . . . . . . . . . . . . . . . . . . . . . . . . . . . . . . . . . . . . . . . . . . . . 204
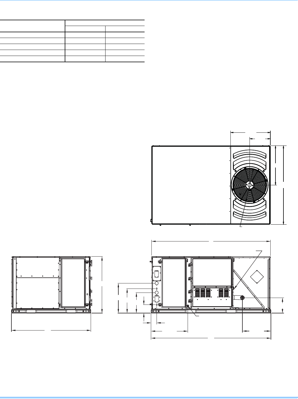
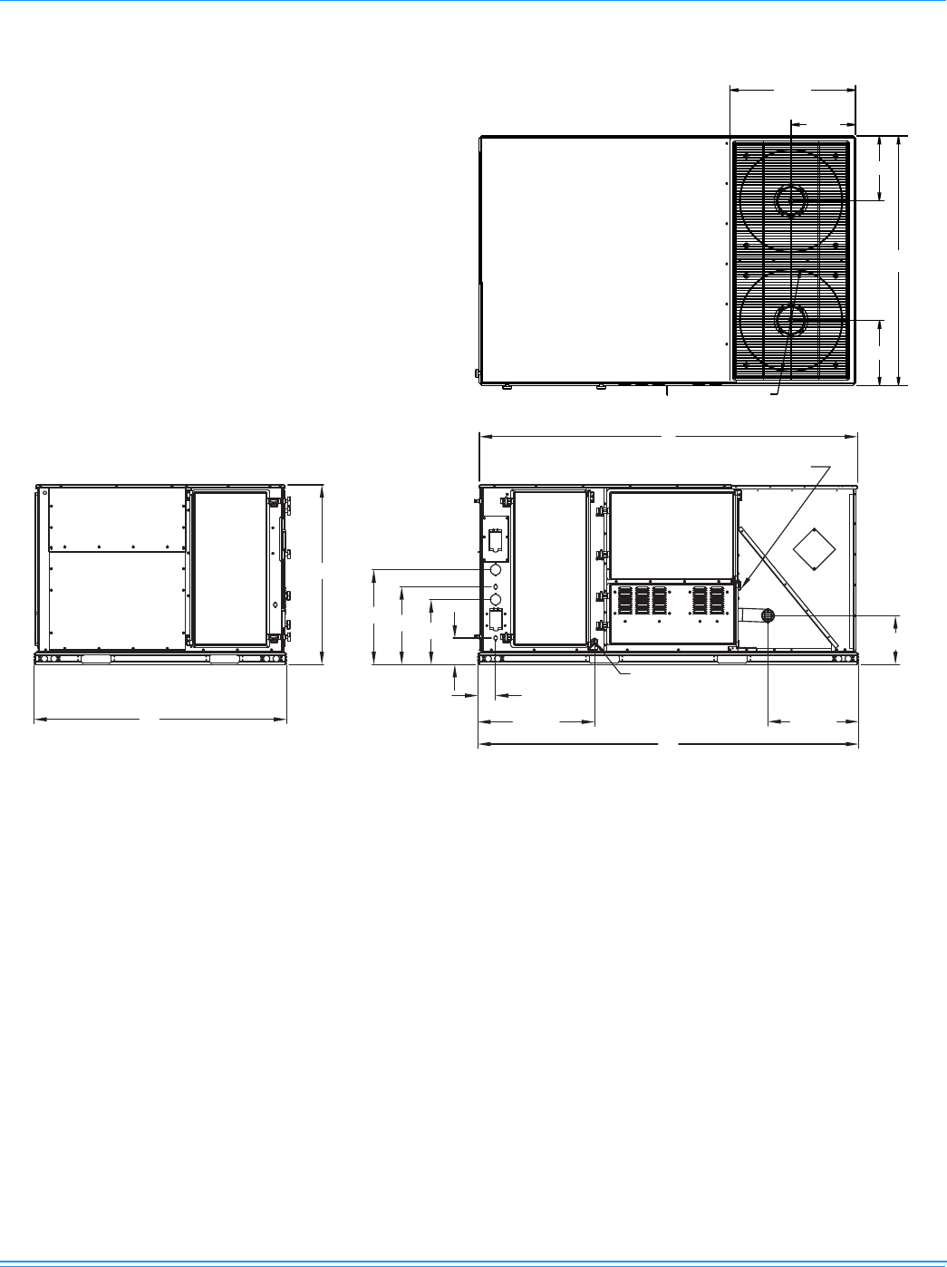
Component Location
Cooling With Gas Heat (3 Through 5 Ton)
Intelligent control board
for safe and efficient
operation
“Simplicity®” Control board w/
screw connectors for T-stat
wiring and Network
Connections
Disconnect location
(optional disconnect switch)
Filter access
(2" or 4”
filter options)
Filter drier (solid core)
3-5 Ton Cooling
Slide out motor and
blower assembly for
easy adjustment
and service
Base rails w/
forklift slots
(three sides)
and lifting
holes
Toolless door
latch
Side entry power
and control wiring
knockouts
Belt-drive blower
motor
Power ventor
motor
20-gauge aluminized
steel tubular heat
exchanger for long life
(stainless steel option)
One or Two stage gas heating to
maintain warm, comfortable
temperature
Slide-out drain pan
with ¾" NPT
connection
Compressor access (high-
efficiency compressor)
Second model nameplate
inside hinged access
panel
Roof curbs in eight-and
fourteen-inch heights.
Roof curbs for transitioning
from York Sunline™ footprint
to the ZH/ZJ/ZR Series footprint
are available
(field-installed accessory)
Micro-Channel Aluminum
Tube/Aluminum Fin
Condenser
(Single Orifice System shown.
See Actual Model Physical Data for details)
Filter drier (solid core)
3-5 Ton Reheat

528150-YTG-G-1210
Johnson Controls Unitary Products 3
Cooling With Gas Heat (6 1/2 Through 10 Tons)
Roof curbs in eight- and
fourteen-inch heights. Roof
curbs for transitioning from
York Sunline™ footprint to
the ZH/ZJ/ZR Series footprints
are also available (field
installed accessory)
Base rails w/forklift
slots (three sides)
and lifting holes
Compressor #2
access (high-
efficiency
compressor)
Dual stage
cooling for
maximum
comfort
Second model
nameplate
inside hinged
access panel
Terminal block for
hi-voltage connection
Simplicity® control board
w/screw connector for T-stat
wiring and network connections
Disconnect location
(optional disconnect switch)
Filter access
(2” or 4” filter options)
Filter drier
(solid core)
Slide-out motor and
blower assembly for
easy adjustment
and service
Belt-drive
blower motor
Power ventor motor
20-gauge alumi-
nized steel tubular
heat exchanger for
long life (stainless
steel option)
Two-stage gas
heating to maintain
warm, comfortable
temperature
Intelligent control
board for safe and
efficient operation
Compressor #1 access
(high-efficiency compressor)
Toolless
door latch
Side entry power
and control wiring
knockouts
VFD location (optional)
Slide-out drain pan
with 3/4” NPT,
female connection
Micro-Channel Aluminum
Tube/Aluminum Fin
Condenser

528150-YTG-G-1210
4Johnson Controls Unitary Products
Nomenclature
Z H 090 N10 A 2 A AA 5 0 1 2 4 A
Product Category
Z = A/C, Single Pkg., R-410A
A = Std. Motor
Airflow
B = Std. Motor/Econo./Barometric Relief (Downflow
Only)
C = Std. Motor/Econo./Power Exhaust (Downflow Only)
D = Std. Motor/Motorized Damper (Downflow Only)
E = Std. Motor/Horizontal Economizer (No Baro.)
F = Std. Motor/Slab Econo./Power Exhaust
(Downflow Only)
G = Std. Motor/Slab Econo./Barometric Relief
(Downflow Only)
N = Hi Static
P = Hi Static/Econo./Barometric Relief
(Downflow Only)
Q = Hi Static/Econo./Power Exhaust
(Downflow Only)
R = Hi Static/Motorized Damper (Downflow Only)
S = Hi Static/Horizontal Economizer (No Baro.)
T = Hi Static/Slab Econo./Power Exhaust
(Downflow Only)
U = Hi Static/Slab Econo./Barometric Relief
(Downflow only)
Product Generation
5 = Fifth Generation
C00 = Cooling Only. No heat installed
Heat Type and Nominal Heat Capacity
(Unit Size Allowed)
A05 = 49 MBH Output Aluminized Steel,
Single Stage (037, 049)
A07 = 65 MBH Output Aluminized Steel,
Single Stage (037, 049, 061)
A09 = 97 MBH Output Aluminized Steel,
Single Stage (037, 049, 061)
A13 = 129 MBH Output Aluminized Steel,
Single Stage (061)
B05 = 49 MBH Output Stainless Sleel,
Single Stage (037, 049)
B07 = 65 MBH Output Stainless Steel,
Single Stage (037, 049, 061)
B09 = 97 MBH Output Stainless Steel,
Single Stage (037, 049, 061)
B13 = 129 MBH Output Stainless Steel,
Single Stage (061)
N10 = 100 MBH Output Aluminized Steel,
Two Stage (078, 090, 102)
N15 = 150 MBH Output Aluminized Steel,
Two Stage (078, 090, 102, 120, 150)
N20 = 200 MBH Output Aluminized Steel,
Two Stage (120, 150)
S10 = 100 MBH Output Stainless Steel,
Two Stage (078, 090, 102)
S15 = 150 MBH Output Stainless Steel,
Two Stage (078, 090, 102, 120, 150)
S20 = 200 MBH Output Stainless Steel,
Two Stage (120, 150)
E03 = 3 KW (037)
E06 = 6 KW (037, 049, 061)
E08 = 9 KW (037, 049, 061)
E09 = 9 KW (078, 090, 102)
E15 = 15 KW (037, 049, 061)
E18 = 18 KW (078, 090, 102, 120, 150)
E20 = 20 KW (049, 061)
E23 = 24 KW (061)
E24 = 24 KW (078, 090, 102, 120, 150)
E36 = 36 KW (078, 090, 102, 120, 150)
E54 = 54 KW (120, 150)
Single Stage Natural Gas Heat Options
Electric Heat Options
078 = 6.5 Ton
Nominal Cooling Capacity
090 = 7.5 Ton
102 = 8.5 Ton
037 = 3 Ton
049 = 4 Ton
061 = 5 Ton
120 = 10.0 Ton
150 = 12.5 Ton
Product Identifier
H = 11.7-11.8 EER
Voltage
2 = 208/230-3-60
4 = 460-3-60
5 = 575-3-60
Product Style
A = Style A
B = Style B
C = Style C
A = No Options Installed
Installation Options
B = Option 1
C = Option 2
D = Options 1 & 2
E = Option 3
F = Option 4
G = Options 1 & 3
H = Options 1 & 4
J = Options 1, 2 & 3
K = Options 1, 2, & 4
L = Options 1,3 & 4
M = Options 1, 2, 3, & 4
N = Options 2 & 3
P = Options 2 & 4
Q = Options 2, 3, & 4
R = Options 3 & 4
S = Option 5
T = Options 1 & 5
U = Options 1, 3, & 5
V = Options 1, 4, & 5
W = Options 1, 3, 4, & 5
X = Options 3 & 5
Y = Options 4 & 5
Z = Options 3, 4 & 5
1 = Disconnect
2 = Non-Pwr'd Conv. Outlet
3 = Smoke Detector S.A.
4 = Smoke Detector R.A.
5 = Pwr'd Conv. Outlet
Options
SS Drain Pan
Configuration Options (not required for all units)
These four digits will not be assigned until a quote is requested, or an order placed.
CPC Controller, DFS, APS
Johnson Controller UNT 1126 (N2 protocol), DFS, APS
Honeywell Controller, DFS, APS
Novar Controller, DFS, APS
Simplicity IntelliComfort Controller
Simplicity IntelliComfort Controller w/Simplicity®LINC
2" Pleated filters
BAS Ready Economizer (2-10 V.D.C. Actuator without a Controller)
York Commercial Comfort System (YCCS) Rtu Controller
Hot Gas Bypass (Standard on VAV, Optional on CV)
Variable Air Volume, VFD (not available with factory installed BAS options)
Variable Air Volume, VFD with Simplicity®LINC (not available with factory installed BAS options)
Variable Air Volume, VFD (BAS ready)
Variable Air Volume, VFD and Manual Bypass (BAS ready)
Variable Air Volume, VFD Ready (for customer-provided, field-installed drive)
Variable Air Volume, VFD Ready with Simplicity®LINC
(for customer-provided, field-installed drive)
Variable Air Volume, VFD and Manual Bypass with Simplicity®LINC
(not available with factory installed BAS options)
Variable Air Volume, VFD and Manual Bypass
(not available with factory installed BAS options)
Any Combination of Additional Options that Don’t Have an Option Code Pre-assigned
AA = None
AB = Phase Monitor
AC = Coil Guard
AD = Dirty Filter Switch
AE = Phase Monitor & Coil Guard
AF = Phase Monitor & Dirty Filter Switch
Additional Options
RC = Coil Guard, Shipping Bag & American Flag
TA = Technicoat Condenser Coil
TJ = Technicoat Evaporator Coil
TS = Technicoat Evaporator & Condenser Coils
3-12.5 Ton York® Model Number Nomenclature
ZZ = If desired option combination is not listed above, ZZ will be assigned and configuration options will be
located in digits 15-18.
J = 12.2 EER
Two Stage Natural Gas Heat Options
N05 = 49 MBH Output Aluminized Steel,
Two Stage (037, 049)
N07 = 65 MBH Output Aluminized Steel,
Two Stage (037, 049, 061)
N09 = 97 MBH Output Aluminized Steel,
Two Stage (037, 049, 061)
N13 = 129 MBH Output Aluminized Steel,
Two Stage (061)
S05 = 49 MBH Output Stainless Sleel,
Two Stage (037, 049)
S07 = 65 MBH Output Stainless Steel,
Two Stage (037, 049, 061)
S09 = 97 MBH Output Stainless Steel,
Two Stage (037, 049, 061)
S13 = 129 MBH Output Stainless Steel,
Two Stage (061)
AG = Coil Guard & Dirty Filter Switch
AH = Phase Monitor, Coil Guard & Dirty Filter Switch
4" Pleated filters
R = Reheat

528150-YTG-G-1210
Johnson Controls Unitary Products 5
Features and Benefits
Standard Features
•High Efficiency – High efficiency units reach as high as
12.2 EER. Gas/electric units have electronic spark ignition
and power vented combustion with steady state efficiencies
of 80%. These efficiencies exceed all legislated minimum
levels and provide low operating costs.
•Service Friendly – The Predator® incorporates a number
of enhancements which improve serviceability.
The motor and blower slide out of the unit as a common
assembly. This facilitates greater access to all the indoor
airflow components, thus simplifying maintenance and
adjustment.
Service time is reduced through the use of hinged,
toolless panels. Such panels provide access to frequently
inspected components and areas, including the control
box, compressors, filters, indoor motor & blower, and the
heating section. The panels are screwed in place at the
factory to prevent access by children or other
unauthorized persons. It is recommended that the panels
be secured with screws once service is complete.
Service windows have been placed in both condenser
section walls. Rotation of the cover allows easy access to
the condenser coils for cleaning or inspection.
Both the unit control board and ignition control board utilize
flash codes to aid in diagnosis of unit malfunctions. Unique
alarm codes quickly identify the source of the unit alarm.
All units use four filters of the same standard size. This
standardization simplifies selections for filter replacement.
The non-corrosive drain pan slides out of the unit to permit
easy cleaning. The drain pan is accessed by removing the
drain pan cover plate on the rear of the unit. Once the plate is
removed, the drain pan slides out through the rear of the unit.
All Predator® units have a second model nameplate
located inside the control access door. This is to prevent
deterioration of the nameplate through weathering.
•Coil Technology – All ZH/ZJ condensers utilize Micro-
Channel “all-aluminum” condensers which provide
improved heat transfer capabilities and reduced charge
volumes. All evaporators utilize a conventional copper
tube/aluminum fin design for proven reliability and
performance. ZR037 thru 061 models utilize Micro-
Channel condenser coils, ZR078 thru 150 models utilize
copper tube/aluminum fin condenser coils.
•Environmentally Aware – For improved Indoor Air
Quality, a combination of foil faced and elastometric
rubber insulation is used exclusively throughout the units.
•Balanced Heating – The Predator® two stage gas heating
offers “Ultimate Heating Comfort” with a balance between
1st and 2nd stage gas heating. The first stage of a gas heat
Predator® unit provides 70% or 75% of the heating capacity
3 thru 5 tons and 60% heating capacity 6-1/2 thru 12-1/2
tons. Balanced heating allows the unit to better maintain
desired temperatures.
•Convertible Airflow Design – The side duct openings
are covered when they leave the factory. If a side supply/
return is desired, the installer simply removes the two side
duct covers from the outside of the unit and installs them
over the down shot openings. No panel cutting is required.
Convertible airflow design allows maximum field flexibility
and minimum inventory.
•System Protection - Suction line freezestats are supplied
on all units to protect against loss of charge and coil frosting
when the economizer operates at low outdoor air
temperatures while the compressors are running. Every unit
has solid-core liquid line filter-driers and high and low-
pressure switches. Internal compressor protection is
standard on all compressors. Scroll compressors do not
require crankcase heaters. Phase Monitors are standard on
units with scroll compressors. This accessory monitors the
incoming power to the unit and protects the unit from phase
loss and reversed phase rotation.
•Advanced Controls - Simplicity® control boards have
standardized a number of features previously available
only as options or by utilizing additional controls.
•Low Ambient - An integrated low-ambient control
allows all units to operate in the cooling mode down to
0F outdoor ambient without additional assistance.
Optionally, the control board can be programmed to
lockout the compressors when the outdoor air temper-
ature is low or when free cooling is available.
•Anti-Short Cycle Protection - To aid compressor life,
an anti-short cycle delay is incorporated into the stan-
dard controls. Compressor reliability is further ensured
by programmable minimum run times. For testing, the
anti-short cycle delay can be temporarily overridden
with the push of a button.
•Fan Delays - Fan on and fan off delays are fully pro-
grammable. Furthermore, the heating and cooling fan
delay times are independent of one another. All units
are programmed with default values based upon their
configuration of cooling and heat.
•Safety Monitoring - The control board monitors the
high and low-pressure switches, the freezestats, the
gas valve, if applicable, and the temperature limit
switch on gas and electric heat units. The unit control
The Simplicity® control board used in this product
will effectively operate the cooling system down to
0°F when this product is applied in a comfort cooling
application for people. An economizer is typically
included in this type of application. When applying
this product for process cooling applications (com-
puter rooms, switchgear, etc.), please reference
applications bulletin AE-011-07 or call the applica-
tions department for Unitary Products @ 1-877-
UPG-SERV for guidance. Additional accessories
may be needed for stable operation at temperatures
below 30° F.

528150-YTG-G-1210
6Johnson Controls Unitary Products
board will alarm on ignition failures, compressor lock-
outs and repeated limit switch trips.
•Nuisance Trip Protection and Strikes - To prevent
nuisance trouble calls, the control board uses a “three
times, you’re out” philosophy. The high and low-pres-
sure switches and the freezestats must trip three times
within two hours before the unit control board will lock
out the associated compressor.
•On Board Diagnostics - Each alarm will energize a
trouble light on the thermostat, if so equipped, and
flash an alarm code on the control board LED. Each
high and low-pressure switch alarm as well as each
freezestat alarm has its own flash code. The control
board saves the five most recent alarms in memory,
and these alarms can be reviewed at any time.
Alarms and programmed values are retained through
the loss of power.
•Reliable – From the beginning – All units undergo
computer automated testing before they leave the factory.
Units are tested for refrigerant charge and pressure, unit
amperage, and 100% functionality. For the long term – All
Predator® units are painted with a long lasting, powder
paint that stands up over the life of the unit. The paint
used has been proven by a 1000 hour salt spray test.
•Flexible Placement – All models and configurations
share the same cabinet/footprint and thus the same roof
curb. You have the flexibility to set one curb and choose
the correct tonnage size and heating option after the
internal loads have been determined.
To further simplify planning and installation, Predator®
cabinets are designed to fit your roof. With the optional
roof curb, the unit ductwork is designed to fit around 24”
on-center joists or between 48” on-center joists.
The drain pan can be rotated to drain to either the front or
the rear of the unit. Additionally, the drain pan can be
fitted to drain through the roof curb. As it is sometimes
difficult to have a level installation, the drain pan features
a generous slope to ensure proper drainage.
•Full Perimeter Base Rails – The permanently attached
base rails provide a solid foundation for the entire unit and
protect the unit during shipment. The rails offer forklift
access from 3 sides, and rigging holes are available so that
an overhead crane can be used to place the units on a roof.
•Easy Installation – Gas and electric utility knockouts are
supplied in the unit underside as well as the side of the unit.
A clearly identified location is provided to mount a field
supplied electrical disconnect switch. Utility connections can
be made quickly and with a minimum amount of field labor.
All units are shipped with 2” throw-away filters installed.
•Wide Range of Indoor Airflows – All indoor fan motors
are belt-drive type providing maximum flexibility to handle
most airflow requirements. For high static applications,
factory installed alternate indoor fan motors are available.
With the optional indoor fan motor, all units can supply
nominal airflow at a minimum of 1.5” ESP.
A variable air volume (VAV) option using a variable
frequency drive is available on 6-1/2 through 12-1/2 ton
models for applications requiring a constant supply duct
pressure. A differential pressure transducer is used to
monitor supply duct static pressure while a VAV control
board provides a speed reference signal to the VFD to
control the output of the indoor blower motor.
•Warranty - All models include a 1-year limited warranty
on the complete unit. Compressors and electric heater
elements each carry a 5-year warranty. Aluminized steel
and stainless steel tubular heat exchangers carry a 10-
year warranty.
Factory Installed Options
YORK® offers several equipment options factory installed, for
the Predator®line.
•Optional Factory Installed Economizers - Predator units
offer a variety of optional factory installed economizers
with low leak dampers. The outdoor air enthalpy sensor
enables economizer operation if the outdoor enthalpy is
less than the setpoint of the economizer logic module. See
economizer options section to determine the correct
economizer for your application.
•Downflow Economizer - (With barometric relief) -
The economizer is provided with a single enthalpy input.
The economizer is 2% low leakage type, and is shipped
installed and wired. The installer needs only to
assemble the outdoor air hood, attach the enthalpy
control to the hood and mount the hood to the unit
(Hood and control are provided). The economizer has
spring return, fully modulating damper actuators and is
capable of introducing up to 100% outdoor air. As the
outdoor air intake dampers open, the return air dampers
close. The changeover from mechanical refrigeration to
economizer operation is regulated by the standard
single enthalpy input. To meet regulated air standards,
the economizer control accepts an optional CO2 input
for demand ventilation. With single enthalpy input, the
economizer control monitors outdoor air. The dual
enthalpy kit provides a second input used to monitor the
return air. With a dual input kit installed, the economizer
control compares the values of the two enthalpy or
temperature inputs and positions the dampers to
provide the maximum efficiency possible.
•Horizontal Economizer - (Without barometric relief) -
All features of the downflow economizer exist except you
must order the duct mount barometric relief separately.
You must order a 1EH0408 if you are installing a
power exhaust. You can order a 1RD0411 Barometric
Relief for horizontal flow economizers only.
•BAS Ready Economizer -(With barometric relief) -
The economizer is provided with an actuator that
requires a 2-10V DC input from an external source (i.e.,
field installed building automation system controller).
Power exhaust options are available. The economizer is
2% low leakage type with spring return and fully
modulating dampers capable of introducing up to 100%
outside air. Also include 2” pleated filters. BAS ready

528150-YTG-G-1210
Johnson Controls Unitary Products 7
actuators have an adjustable auxiliary end-switch for
optional power exhaust control.
•VAV or Simplicity® Intelli-Comfort™ control, a
factory-installed dry bulb sensor determines if outdoor
air temperature is low enough to provide free-cooling
operation. (Field-installed humidity sensors for either
outdoor air or outdoor & return air streams are available
for single enthalpy and differential enthalpy
configurations, respectively.)
•Slab Economizer for Energy Recovery Ventilators-
(With barometric relief and Fresh Air Hood) - The
economizer is provided with a single enthalpy input. The
economizer is 2% low leakage type, and is shipped
installed and wired. The economizer has spring return,
fully modulating damper actuators and is capable of
introducing up to 100% outdoor air. As the outdoor air
intake dampers open, the return air dampers close. The
changeover from mechanical refrigeration to
economizer operation is regulated by the standard
single enthalpy input. To meet regulated air standards,
the economizer control accepts an optional CO2 input
for demand ventilation.With single enthalpy input, the
economizer control monitors outdoor air. The dual
enthalpy kit provides a second input used to monitor the
return air. With a dual input kit installed, the economizer
control compares the values of the two enthalpy or
temperature inputs and positions the dampers to
provide the maximum efficiency possible.
•Power Exhaust (Downflow only) - This accessory
installs in the unit with a down flow economizer.
•Motorized Outdoor Air Damper - The motorized outdoor
air damper includes a slide-in/plug-in damper assembly
with an outdoor air hood and filters. The outdoor air
dampers open to the preset position when the indoor fan
motor is energized. The damper has a range of 0% to
100% outdoor air entry. Factory installed option or field
installed accessory.
•Alternate Indoor Blower Motor - For applications with
high static restrictions, units are offered with optional
indoor motors that provide higher static output and/or
higher airflow, depending upon the installer’s needs.
•Variable Air Volume (VAV; 6-1/2 through 12-1/2 ton,
only - A factory-installed variable frequency drive (VFD),
mounted in the Blower Access compartment, is used to
control the speed of the indoor blower motor in order to
maintain a constant static pressure in the supply duct. A
pressure transducer and VAV control board are mounted
inside the control box. The drive comes completely wired
and pre-programmed from the factory.
An optional, factory-installed manual bypass switch
available with factory-installed VFD can be found in the
Blower Motor Access compartment. The switch can be
used to either route power to the VFD for modulating
control of the blower motor, to bypass the drive and
operate the motor at full speed, or to power the drive (and
not the motor) for diagnostic purposes.
Due to space limitations, VAV is not available with any of
the factory-installed BAS options, but is available with
'BAS-ready' models. Terminal blocks are provided in the
control box for field wiring of the customer-installed BAS.
A 'VFD-ready' option provides the provisions for a
customer-installed drive. The unit comes with a mounting
bracket installed in the Blower Access compartment which
may accommodate other vendor's drives depending on
their size. In order to utilize the unit's mounting bracket,
the maximum recommended drive dimensions are limited
to approximately 9" H x 5" W x 7.5" D.
If the drive will not fit in the allotted space, then it will have
to be mounted elsewhere; either within the building on a
perpendicular wall which is not subjected to excessive
temperature, vibration, humidity, dust, corrosive gas,
explosive gas, etc., or within an appropriate enclosure
rated for outside installation to safeguard against
moisture, dust and excessive heat. A terminal block
located in the control box is provided for field connection
of the VFD controls.
•Aluminized Steel Gas Heat Exchanger - For
applications in non-corrosive environments.
•Stainless Steel Gas Heat Exchanger - For applications
in corrosive environments, this option provides a full
stainless steel heat exchanger assembly.
•Stainless Steel Drain Pan - An optional rust-proof
stainless steel drain pan is available to provide years of
trouble-free operation in corrosive environments.
•Electric Heaters - The electric heaters range from 3kW to
54kW and are available in all the voltage options of the
base units. All heaters are intended for single point power
supply.
•Disconnect Switch - For gas heat units and cooling units
with electric heat, a HACR breaker sized to the unit is
provided. For cooling only units, a switch sized to the
largest electric heat available for the particular unit is
provided. Factory installed option only.
•Convenience Outlet - (Non-Powered/Powered) - This
option locates a 120V single-phase GFCI outlet with cover,
on the corner of the unit housing adjacent to the
compressors. The “Non-powered” option requires the
installer to provide the 120V single-phase power source and
wiring. The “Powered” option is powered by a stepdown
transformer in the unit. Factory installed option only.
•Smoke Detectors - The smoke detectors stop operation
of the unit by interrupting power to the control board if
smoke is detected within the air compartment. Available
for both the supply and/or return air configurations.
•Filters - 2” Pleated MERV 7 or 4” Pleated MERV 13 are
available to meet LEED requirements. A 2” Throwaway is
shipped as standard.

528150-YTG-G-1210
8Johnson Controls Unitary Products
•Phase Monitors - Designed to prevent unit damage. The
phase monitor will shut the unit down in an out-of phase
condition. (Standard on units with Scroll Compressors.)
•Coil Guard - Customers can purchase a coil guard kit to
protect the condenser coil from damage. Additionally, this
kit stops animals and foreign objects from entering the
space between the inner condenser coil and the main
cabinet. This is not a hail guard kit.
•Dirty Filter Switch - This kit includes a differential
pressure switch that energizes the fault light on the unit
thermostat, indicating that there is an abnormally high
pressure drop across the filters. Factory installed option or
field installed accessory.
•Technicoat Condenser Coils - The condenser coils are
coated with a phenolic coating for protection against
corrosion due to harsh environments.
•Technicoat Evaporator Coil - The evaporator coils are
coated with a phenolic coating for protection against
corrosion due to harsh environments.
•Hot Gas Bypass - Allows operation during low load
conditions while avoiding coil frosting and damage to
compressor. When suction pressure falls below valve
setpoint, the valve modulates hot gas to the inlet of the
evaporator. HGBP is standard on all units with VAV and
optional with constant-volume units.
Control Options
•Simplicity® INTELLI-Comfort™ Control communicates
on a MODBUS RTU protocol network - The York®
Simplicity® INTELLI-Comfort™ control is factory installed. It
includes a supply air sensor, a return air sensor, and an
outside air sensor. There are provisions for a field installed
dirty filter indicator switch, an air-proving switch, an Outside
Air Humidity sensor, a Return Air Humidity sensor, an
Inside IAQ sensor, and an Outside Air IAQ sensor.
Construction mode operation, 365-day real time clock with
7 day programming plus holiday scheduling is built-in. Two
different modes of demand ventilation are achieved through
the INTELLI-Comfort™ using CO2 sensors. It uses an
inside CO2 sensor to perform Demand Ventilation. It can
also use an Outside CO2 sensor to perform Differential
Demand Ventilation. It uses a Patented Comfort Ventilation
algorithm to provide comfortable ventilation air
temperature. The patented economizer-loading algorithm
will protect the equipment when harsh operating conditions
exist. Humidity in the occupied space or return duct can be
monitored and controlled via humidity sensors and the on-
board connection for hot gas re-heat system. It uses the
INTELLI-Start™ algorithm to maximize energy savings by
recovering the building from the Unoccupied Setpoints to
the Occupied Setpoints just in time for the Occupied Time
Period to begin. The Simplicity® INTELLI-Comfort™
balances space temperature, ventilation air temperature,
CO2 and humidity for ultimate comfort.
•Simplicity® INTELLI-Comfort™ with Simplicity®LINC
Control - The York® Simplicity® INTELLI-Comfort™ with
Simplicity®LINC control is factory installed. It includes all
the features of the INTELLI-Comfort™ control with an
additional control to translate communications from
MODBUS to the BACnet MSTP protocol.
•Novar® BAS Control - The Novar® building automation
system controller is factory installed. Includes supply air
sensor, return air sensor, dirty filter indicator switch, and
air proving switch.
•Johnson Controls BAS Control - The Johnson Control
YK-UNT-1126 building automation system controller is
factory installed. Includes supply air sensor, return air
sensor, dirty filter indicator switch, and air proving switch.
•CPC BAS Control - The Computer Process Controls
Model 810-3060 ARTC Advanced Rooftop building
automation system controller is factory installed. Includes
supply air sensor, return air sensor, dirty filter indicator
switch and air proving switch.
•Honeywell BAS Control - The Honeywell W7750C
building automation system controller is factory installed.
Includes air supply sensor, return air sensor, dirty filter
indicator switch, and air proving switch.
•York Commercial Comfort System (YCCS) - Provides
rooftop system integration for YCCS single zone and
change-over bypass systems.
Field Installed Accessories
YORK® offers several equipment accessories for field
installation, for the Predator® line.
•Downflow Economizer - (With barometric relief) - The
economizer is provided with a single enthalpy input. The
economizer is 2% low leakage type. The economizer has
spring return, fully modulating damper actuators and is
capable of introducing up to 100% outdoor air. As the
outdoor air intake dampers open, the return air dampers
close. The changeover from mechanical refrigeration to
economizer operation is regulated by the standard single
enthalpy input. There is an optional input dual dry bulb
sensor available. To meet regulated air standards, the
economizer control accepts an optional CO2 input for
demand ventilation. With single enthalpy input, the
economizer control monitors outdoor air. The dual enthalpy
kit provides a second input used to monitor the return air.
With a dual input kit installed, the economizer control
compares the values of the two enthalpy or temperature
inputs and positions the dampers to provide the maximum
efficiency possible.
•Horizontal Economizer - (Without barometric relief) -
All features of the downflow economizer exist except you
must order the duct mount barometric relief separately.
You must order a 1EH0408 if you are installing a
power exhaust. You can order a 1RD0411 Barometric
Relief for horizontal flow economizer.
Factory-installed smoke detectors may be subjected to
extreme temperatures during "off" times due to outside air
infiltration. These smoke detectors have an operational
limit of -4°F to 158°F. Smoke detectors installed in areas
that could be outside this range will have to be relocated to
prevent false alarms.

528150-YTG-G-1210
Johnson Controls Unitary Products 9
•Slab Economizer for Energy Recovery Ventilator-
(Without barometric relief or Fresh Air Hood) - The
economizer is provided with a single enthalpy input. The
economizer is 2% low leakage type. The economizer has
spring return, fully modulating damper actuators and is
capable of introducing up to 100% outdoor air. As the
outdoor air intake dampers open, the return air dampers
close. The changeover from mechanical refrigeration to
economizer operation is regulated by the standard single
enthalpy input. There is an optional input dual dry bulb
available. To meet regulated air standards, the economizer
control accepts an optional CO2 input for demand
ventilation.With single enthalpy input, the economizer control
monitors outdoor air. The dual enthalpy kit provides a
second input used to monitor the return air. With a dual input
kit installed, the economizer control compares the values of
the two enthalpy or temperature inputs and positions the
dampers to provide the maximum efficiency possible.
You can order 1EH0409 Barometric Relief/FA Hood for
field installations without an ERV.
•Dual Enthalpy Control, Accessory - This kit contains
the required components to convert a single enthalpy
economizer to dual enthalpy.
•Barometric Relief Damper - Zero to 100% capacity
barometric relief dampers for use with horizontal flow, or
field installed slab economizers.
•Power Exhaust - This accessory installs in the unit with a
down flow economizer. Power exhaust plugs into the
connector in the unit bulkhead. You must purchase
1EH0408 barometric relief when applying to a
horizontal flow application.
•Manual Outdoor Air Damper - Like the motorized outdoor
air damper, each manual outdoor air damper includes a
slide-in damper assembly with an outdoor air hood and
filters. Customers have a choice of dampers with ranges of
0% to 100% or 0% to 35% outdoor air entry.
•Motorized Outdoor Air Damper - The motorized outdoor
air damper includes a slide-in/plug-in damper assembly with
an outdoor air hood and filters. The outdoor air dampers
open to the preset position when the indoor fan motor is
energized. The damper has a range of 0% to 100% outdoor
air entry. Factory installed option or field installed accessory.
•Smoke Detectors - The smoke detectors stop operation
of the unit by interrupting power to the control board if
smoke is detected within the air compartment.
•CO2 Sensor - Senses CO2 levels and automatically
overrides the economizer when levels rise above the
preset limits.
•Dirty Filter Switch - This kit includes a differential
pressure switch that energizes the fault light on the unit
thermostat, indicating that there is an abnormally high
pressure drop across the filters.
•Coil Guard - Field installed decorative wire coil guard.
•Hail Guard - This kit includes a sloped hood which installs
over the outside condenser coil and prevents damage to
the coil fins from hail strikes. Field installed accessory only.
•Flue Exhaust Extension Kit - In locations with wind or
weather conditions which may interfere with proper
exhausting of furnace combustion products, this kit can be
installed to prevent the flue exhaust from entering nearby
fresh air intakes.
•-60°F Gas Heat Kit - For installations which require gas
heat units to perform in low ambient temperatures, a gas
section heating kit is available. This kit provides electric
heat in the gas heat controls section to ensure the gas
valve and controls will continue to function properly at
extremely low temperatures.
•Gas Heat High Altitude Kit - This kit converts a gas heat
unit to operate at high altitudes, 2,000 to 6,000 feet.
Conversion kits are available for natural gas and propane.
•Gas Heat Propane Conversion Kit - This kit converts a
gas-fired heater from natural gas to propane. It contains the
main burner orifices and gas valve replacement springs.
•Gas Piping Kit - Contains pipe nipples, fittings and gas cock
required for gas supply connection with external shut off.
•Electric Heaters - The electric heaters range from 3kW to
54kW and are available in all the voltage options of the
base units. The 54kW/208-240 volt, field-installed heater
kit is not available with VAV units due to a lack of space to
accommodate the heater’s fuse block accessory.
All heaters are dual staged. Cooling units include an
adapter panel for easy installation of the electric heaters.
Necessary hardware and connectors are included with the
heaters. All heaters are intended for single point power
supply.
• Low Limit / Compressor Lockout Kit
•Compressor Lockout (CLO): To prevent mechanical
(compressorized) operation of the unit during cold
outdoor conditions where there is a risk of returning
liquid refrigerant back to the compressors.
•Low Limit Control (LLC): To prevent the supply air
from dropping below a specified setpoint by utilizing the
units first stage heating means when there is a demand
for cooling during cold outside conditions.
•Metal Frame Filter Kit - Metal frame with polyester filter
medium.
•Permanent Filters - Permanent filters are available.
•Roof Curbs - The roof curbs have insulated decks and are
shipped disassembled The roof curbs are available in 8” and
14” heights. For applications with security concerns, burglar
bars are available for the duct openings of the roof curbs.
•Roof Curb Transition - Single Piece Adapter (10” High) -
Roof curbs for transitioning from Sunline™ units to
Predator® units. Fits 7.5 to 12.5 Sunline™ roof curbs only.
•Burglar Bars - Mount in the supply and return openings
to prevent entry into the duct work.
•Thermostat - The units are designed to operate with 24-
volt electronic and electro-mechanical thermostats. All 6.5
thru 12.5 ton ZH,ZJ units and all 3 thru 12.5 ton ZR units
(with or without an economizer) operate with two-stage
heat/two-stage cool or two-stage cooling only
thermostats, depending upon unit configuration.

528150-YTG-G-1210
10 Johnson Controls Unitary Products
Accessories
Field Installed Acessories - Non-Electrical
MODEL VOLTAGE DESCRIPTION WHERE USED
1BD0408 All Burglar Bars, Downflow All Cabinets
1CG0419 All Coil Guard (Electric / Electric Models), 50” Tall Standard Cabinets
1CG0420 All Coil Guard (Gas / Electric Models), 50" Tall Standard Cabinets
1CG0427 All Coil Guard (Electric / Electric Models), 42” Tall Cabinets
1CG0428 All Coil Guard (Gas / Electric Models), 42" Tall Cabinets
1HG0411 All Hail Guard Kit
All Tall (50") Standard Cabinets, (Excludes 12.5T "V"
cabinets)
1HG0415 All Hail Guard Kit All Short (42") Standard Cabinets
1FE0412 All Flue Exhaust Extension Kit All Cabinets
1FF0414 All 2" only Metal Filter Frame Kit All Tall 50" Cabinets
1FF0415 All 2" only Metal Filter Frame Kit All Tall 42" Cabinets
1FL0402 All Permanent 2" only Filter Kit Includes (4) Four Filters) All Tall 50" Cabinets
1FL0423 All Permanent 2" only Filter Kit (Includes (4) four Filters) All Tall 42" Cabinets
1GP0405 All Gas Piping Kit All Cabinets
1HA0442 All High Altitude Kit for Natural Gas All 6 - 12T Cabinets
1HA0450 All High Altitude Kit for Natural Gas 3 - 5T (80, 120 & 160 MBH Input)
1HA0451 All High Altitude Kit for Natural Gas 3 - 4T (60 MBH Input)
1HA0443 All High Altitude Kit for Propane All 6 - 12T Cabinets
1HA0452 All High Altitude Kit for Propane 3 - 5T (80, 120 & 160 MBH Input)
1HA0453 All High Altitude Kit for Propane 3 - 4T (60 MBH Input)
1NP0442 All Propane Conversion Kit All 6 - 12T Cabinets
1NP0454 All Propane Conversion Kit 3 - 5T (80, 120 & 160 MBH Input)
1NP0455 All Propane Conversion Kit 3 - 4T (60 MBH Input)
1RC0470 All Roof Curb, 8" Height All Cabinets
1RC0471 All Roof Curb, 14" Height All Cabinets
1RC0472 All
Roof Curb, Transition (7.5 T thru 12.5T Sunline to
Predator 3- 12T) All Cabinets
1WC0412 All
Wooden Crate for extra protection during shipping and
handling
Standard Cabinets Only (not applicable to units 119" in
length)
1LN0407 All Low NOx Kit 3 - 5T (80, 120 & 160 MBH Input)
1LN0408 All Low NOx Kit 3 - 5T (60 MBH Input)

528150-YTG-G-1210
Johnson Controls Unitary Products 11
Field Installed Acessories - Electric Heat
MODEL VOLTAGE DESCRIPTION WHERE USED
2TP04520925 230
9kW Electric Heat All 50" Cabinet 6.5 and 8.5 Ton Models2TP04520946 460
2TP04520958 575
2TP04531825 230
18kW Electric Heat All 50" Cabinet 6.5, 8.5, 10 and 12.5 Ton Models2TP04531846 460
2TP04521858 575
2TP04532425 230
24kW Electric Heat All 50" Cabinet 6.5, 8.5, 10 and 12.5 Ton Models2TP04532446 460
2TP04522458 575
2TP04533625 230
36kW Electric Heat All 50" Cabinet 6.5, 8.5, 10 and 12.5 Ton Models2TP04533646 460
2TP04523658 575
2TP04525425 230
54kW Electric Heat All 50" 10 and 12.5 Ton Models2TP04525446 460
2TP04525458 575
2TP04540925 230
9kW Electric Heat All 42" Cabinet 6.5, 7.5 and 8.5 Ton Models2TP04540946 460
2TP04540958 575
2TP04541825 230
18kW Electric Heat All 42" 6.5, 7.5 and 8.5 Ton Models2TP04541846 460
2TP04541858 575
2TP04542425 230
24kW Electric Heat All 42" Cabinet 6.5, 7.5 and 8.5 Ton Models2TP04542446 460
2TP04542458 575
2TP04543625 230
36kW Electric Heat All 42" Cabinet 6.5, 7.5 and 8.5 Ton Models2TP04543646 460
2TP04543658 575
2TP04510325 230 3kW Electric Heat All 42" Cabinet 3 Ton Models
2TP04510346 460
2TP04510625 230 6kW Electric Heat All 42" Cabinet 3, 4 and 5 Ton Models
2TP04510646 460
2TP04510825 230
9kW Electric Heat All 42" Cabinet 3, 4 and 5 Ton Models2TP04510846 460
2TP04510858 575
2TP04511525 230
15kW Electric Heat All 42" Cabinet 3, 4 and 5 Ton Models2TP04511546 460
2TP04511558 575
2TP04512025 230
20kW Electric Heat All 42" 4 and 5 Ton Models2TP04512046 460
2TP04512058 575
2TP04512325 230
24kW Electric Heat All 42" Cabinet 5 Ton Models2TP04512346 460
2TP04512358 575
Accessories (Continued)

528150-YTG-G-1210
12 Johnson Controls Unitary Products
Guide Specifications
GENERAL
Units shall be manufactured by Unitary Products in an ISO
9001 certified facility. YORK® Predator® units are convertible
single packages with a common footprint cabinet and common
roof curb for all 3 through 12-1/2 ton models. All 6-1/2 through
12-1/2 ton units have two compressors with independent R-
410A refrigeration circuits to provide 2 stages of cooling. The
units were designed for light commercial applications and can
be easily installed on a roof curb, slab, or frame. All Predator®
units are self-contained and assembled on rigid full perimeter
base rails allowing for 3-way forklift access and overhead
rigging. Every unit is completely charged with R-410A, wired,
piped, and tested at the factory to provide a quick and easy
field installation. All units are convertible between side and
down airflow. Independent economizer designs are used on
side and down discharge applications, as well as all tonnage
sizes. Predator® units are available in the following
configurations: cooling only, cooling with electric heat, cooling
with gas heat, reheat only, reheat with electric heat and reheat
with gas heat. Electric heaters are available as factory-installed
options or field-installed accessories.
DESCRIPTION
Units shall be factory assembled, single package, (Elec/Elec, Gas/
Elec), designed for outdoor installation. They shall have built in
field convertible duct connections for down discharge supply/return
or horizontal discharge supply/return and be available with factory
installed options or field installed accessories. The units shall be
Field Installed Acessories - Fresh Air
MODEL VOLTAGE DESCRIPTION WHERE USED
1EH0407 All Barometric Relief Kit for Power Exhaust, Downflow
Application (Includes Hood) All Cabinets
1EH0408 All
Barometric Relief Kit for Power Exhaust, Horizontal
Application All Cabinets
1EH0409 All
Barometric Relief/Hood Kit - Required for field installed
slab economizer without ERV All Cabinets
1FA0413 All Manual Outside Air Damper 0-35%, Downflow All Cabinets
1FA0414 All Manual Outside Air Damper 0-100%, Downflow All Cabinets
1RD0411 All Barometric Relief Kit for Horizontal Applications All Cabinets
2EC04700924 All Dual Enthalpy Control All Cabinets
2EE04705724 All
Downflow Economizer, Slab type for ERV, (no
Barometric Relief or FA hood) All 50" Cabinets
2EE04705824 All
Downflow Economizer, Slab type for ERV, (no
Barometric Relief or FA hood) All 42" Cabinets
2EE04705924 All Downflow Economizer with Barometric Relief All Cabinets
2EE04706024 All Horizontal Economizer without Barometric Relief All Cabinets
2MD04703224 All Motorized Damper, Downflow without Barometric Relief All Cabinets
2MD04703724 All Motorized Damper, Horizontal All Cabinets
2PE04703225* 230 Power Exhaust 230V Downflow or Horizontal All Cabinets
2PE04703246* 460 Power Exhaust 460V Downflow or Horizontal All Cabinets
2PE04703258* 575 Power Exhaust 575V Downflow or Horizontal All Cabinets
* Must be installed in return Duct on Horizontal Applications and a 1EH0408 is required.
Field Installed Acessories - Controls
MODEL VOLTAGE DESCRIPTION WHERE USED
2AP0401 All Air Proving Switch All Units
2AQ04700324B All CO² Space Accessory All Units
2AQ04700424C All CO² Unit Accessory All Units
2DF0402 All Dirty Air Switch All Units
2DH04700024 All Humidistat All Units
2SD04700624 All Smoke Detector for Supply or Return
All Gen 4 or older units with 2" Filter only capable
Cabinets
2SD04700824 All Smoke Detector for Supply All Gen 5 units with 2" & 4" Filters
2SD04700924 All Smoke Detector for Return All Gen 5 units with 2" & 4" Filters
2SD04701024 All Smoke Detector for Supply and Return All Gen 5 units with 2" & 4" Filters
Field Installed Acessories - Electrical
MODEL VOLTAGE DESCRIPTION WHERE USED
2BC04700106 230 Gas heat kit, -60ºF All Units
2BC04700151 460 Gas heat kit, -60ºF All Units
2BC04700154 575 Gas heat kit, -60ºF All Units
2LA04704632 All Low Ambient Kit All 3 - 10T units (excludes 12.5T "V" cabinets)
2LA04704634 All Low Ambient Kit All 3 - 5T Reheat Units (Only)
Accessories (Continued)

528150-YTG-G-1210
Johnson Controls Unitary Products 13
factory wired, piped and charged with R-410A refrigerant and
factory tested prior to shipment. All unit wiring shall be both
numbered and color coded. The cooling performance shall be
rated in accordance with DOE and ARI test procedures. Units shall
be CSA certified to ANSI Z21.47 and UL 1995/CAN/CSA No. 236-
M90 standards.
UNIT CABINET
Unit cabinet shall be constructed of galvanized steel with
exterior surfaces coated with a non-chalking, powder paint
finish, certified at 1000 hour salt spray test per ASTM-B117
standards. Indoor blower sections shall be insulated with up to
1” thick insulation coated on the airside. Either aluminum foil
faced or elastometric rubber insulation shall be used in the
unit’s compartments and be fastened to prevent insulation from
entering the air stream. Cabinet doors shall be hinged with
toolless access for easy servicing and maintenance. Full
perimeter base rails shall be provided to assure reliable transit
of equipment, overhead rigging, fork truck access and proper
sealing on roof curb applications. Disposable 2” filters shall be
furnished as standard and be accessible through hinged access
door. Fan performance measuring ports shall be provided on
the outside of the cabinet to allow accurate air measurements
of evaporator fan performance without removing panels or
creating bypass of the coils. Condensate pan shall be slide out
design, constructed of a non corrosive material, internally
sloped and conforming to ASHRAE 62-B9 standards.
Condensate connection shall be a minimum of ¾” I.D. female
and be rigid mount connection.
INDOOR (EVAPORATOR) FAN ASSEMBLY
Fan shall be a belt drive assembly and include an adjustable
pitch motor pulley. Job site selected brake horsepower shall not
exceed the motors nameplate horsepower rating plus the ser-
vice factor. Units shall be designed to operate within the service
factor. Fan wheel shall be double inlet type with forward curve
blades, dynamically balanced to operate smoothly throughout
the entire range of operation. Airflow design shall be constant
volume. Bearings shall be sealed and permanently lubricated
for longer life and no maintenance. Entire blower assembly and
motor shall be slide out design.
OUTDOOR (CONDENSER) FAN ASSEMBLY
The outdoor fans shall be of the direct drive type, discharge air
vertically, have aluminum blades riveted to corrosion resistant
steel spider brackets and shall be dynamically balanced for
smooth operation. The outdoor fan motors shall have permanently
lubricated bearings internally protected against overload
conditions and staged independently. A cleaning window shall be
provided on two sides of the units for coil cleaning.
REFRIGERANT COMPONENTS
Compressors:
a. Shall be fully hermetic type, direct drive, internally
protected with internal high-pressure relief and over
temperature protection. The hermetic motor shall be
suction gas cooled and have a voltage range of + or –
10% of the unit nameplate voltage.
b. Shall have internal spring isolation and sound muffling to
minimize vibration and noise, and be externally isolated
on a dedicated, independent mounting.
Coils:
a. Evaporator coils shall have aluminum plate fins
mechanically bonded to seamless internally enhanced
copper tubes with all joints brazed. Special Phenolic
coating shall be available as a factory option.
b. Evaporator coils shall be of the direct expansion, draw-
thru design.
c. Condenser coils shall have aluminum plate fins
mechanically bonded to seamless internally enhanced
copper tubes with all joints brazed or Micro-Channel
aluminum tube, aluminum fins.
d. Condenser coils shall be of the draw-thru design.
Refrigerant Circuit and Refrigerant Safety Components shall
include:
a. Independent fixed-orifice or thermally operated
expansion devices.
b. Solid core filter drier/strainer to eliminate any moisture or
foreign matter.
c. Accessible service gage connections on both suction
and discharge lines to charge, evacuate, and measure
refrigerant pressure during any necessary servicing or
troubleshooting, without losing charge.
d. The 6-1/2 through 12-1/2 ton unit shall have two
independent refrigerant circuits, equally split in 50%
capacity increments.
Unit Controls:
a. Unit shall be complete with self-contained low-voltage
control circuit protected by a resettable circuit breaker on
the 24-volt transformer side.
b. Unit shall incorporate a lockout circuit which provides
reset capability at the space thermostat or base unit
should any of the following standard safety devices trip
and shut off compressor:
• Loss-of-charge/Low-pressure switch.
• High-pressure switch.
• Freeze-protection thermostat, evaporator coil. If any of
the above safety devices trip, an LED (light-emitting
diode) indicator shall flash a diagnostic code that
indicates which safety switch has tripped.
c. Unit shall incorporate “AUTO RESET” compressor over
temperature, over current protection.
d. Unit shall operate with conventional thermostat designs
and have a low voltage terminal strip for easy hook-up.
e. Unit control board shall have on-board diagnostics and
fault code display.
f. Standard controls shall include anti-short cycle and low
voltage protection, and permit cooling operation down to
0 ºF.

528150-YTG-G-1210
14 Johnson Controls Unitary Products
g. Control board shall monitor each refrigerant safety switch
independently.
h. Control board shall retain last 5 fault codes in non-
volatile memory, which will not be lost in the event of a
power loss.
GAS HEATING SECTION (IF EQUIPPED)
Heat exchanger and exhaust system shall be constructed of
aluminized steel and shall be designed with induced draft com-
bustion with post purge logic, energy saving direct spark igni-
tion, and redundant main gas valve. The heat exchanger shall
be of the tubular type, constructed of T1-40 aluminized steel for
corrosion resistance and allowing minimum mixed air entering
temperature of 40 ºF. Burners shall be of the in-shot type, con-
structed of aluminum-coated steel. All gas piping shall enter the
unit cabinet at a single location, through either the side or bot-
tom, without any field modifications. An integrated control board
shall provide timed control of evaporator fan functioning and
burner ignition. Heating section shall be provided with the fol-
lowing minimum protection:
a. Primary and auxiliary high-temperature limit switches.
b. Induced draft pressure sensor.
c. Flame roll out switch (manual reset).
d. Flame proving controls.
e. All two stage gas units shall have two independent
stages of capacity (70% or 75% 1st stage, 100% 2nd
stage) 3 through 5 ton and (60% 1st stage, 100% 2nd
stage) 6-1/2 through 12-1/2 ton.
ELECTRIC HEATING SECTION (IF EQUIPPED)
An electric heating section, with nickel chromium elements,
shall be provided in a range of 3 thru 54KW. The heating sec-
tion shall have a primary limit control(s) (automatic reset) to pre-
vent the heating element system from operating at an
excessive temperature. The Heating Section assembly shall
slide out of the unit for easy maintenance and service. Units
with Electric Heating Sections shall be wired for a single point
power supply with branch circuit fusing (where required).
UNIT OPERATING CHARACTERISTICS
Unit shall be capable of starting and running at 125 ºF outdoor
temperature, exceeding maximum load criteria of ARI Standard
340/360. The compressor, with standard controls, shall be
capable of operation down to 0 ºF outdoor temperature. Unit
shall be provided with fan time delay to prevent cold air delivery
before heat exchanger warms up. (Gas heat only)
ELECTRICAL REQUIREMENTS - All unit power wiring shall
enter unit cabinet at a single factory provided location and be
capable of side or bottom entry to minimize roof penetrations
and avoid unit field modifications. Separate side and bottom
openings shall be provided for the control wiring.
STANDARD LIMITED WARRANTIES - Compressor – 5 Years,
Heat Exchanger – 10 Years, Elect. Heat Elem. – 5 Years,
Parts – 1 Year
FACTORY INSTALLED OPTIONAL OUTDOOR AIR (Shall be
made available by either/or):
•ELECTRONIC ENTHALPY AUTOMATIC ECONOMIZER
– Outdoor and return air dampers that are interlocked and
positioned by a fully-modulating, spring-return damper
actuator. The maximum leakage rate for the outdoor air
intake dampers shall not exceed 2% when dampers are
fully closed and operating against a pressure differential
of 0.5 IWG. A unit-mounted potentiometer shall be
provided to adjust the outdoor and return air damper
assembly to take in outdoor air to meet the minimum
ventilation requirement of the conditioned space during
normal operation. During economizer operation, a mixed-
air temperature control shall modulate the outdoor and
return air damper assembly to prevent the supply air
temperature from dropping below 55 ºF. Changeover from
compressor to economizer operation shall be provided by
an integral electronic enthalpy control that feeds input into
the basic module. The outdoor intake opening shall be
covered with a rain hood that matches the exterior of the
unit. Water eliminator/filters shall be provided.
Simultaneous economizer/compressor operation is also
possible. Dampers shall fully close on power loss.
Available with barometric relief or power exhaust.
•MOTORIZED OUTDOOR AIR DAMPERS – Outdoor and
return air dampers that are interlocked and positioned by
a 2-position, spring-return damper actuator. The
maximum leakage rate for the outdoor air intake dampers
shall not exceed 2% when dampers are fully closed and
operating against a pressure differential of 0.5 IWG. A
unit-mounted potentiometer shall be provided to adjust
the outdoor and return air damper assembly to take in the
design CFM of outdoor air to meet the ventilation
requirements of the conditioned space during normal
operation. Whenever the indoor fan motor is energized,
the dampers open up to one of two pre-selected positions
– regardless of the outdoor air enthalpy. Dampers return
to the fully closed position when the indoor fan motor is
de-energized. Dampers shall fully close on power loss.
ADDITIONAL FACTORY INSTALLED OPTIONS
•ALTERNATE INDOOR BLOWER MOTOR – For
applications with high restrictions, units are available with
optional indoor blower motors that provide higher static
output and/or higher airflow.
•VARIABLE AIR VOLUME (VAV) - The VAV option using
a variable frequency drive (VFD) shall be available on
6-1/2 through 12-1/2 ton models for applications requiring
a constant supply-duct static pressure. Units equipped for
VAV shall be controlled by a duct pressure transducer
with a 0 - 5" WC pressure range. The pressure transducer
shall provide a 0 - 5 VDC output signal to a VAV control
board which, in turn shall provide a 2 - 10 VDC speed
reference signal to the VFD. The VAV control board shall
operate using factory-installed Supply Air, Return Air and
Outside Air Temperature Sensors with a nominal
resistance of 10,000 Ohms. Units equipped with VFD's
shall have factory-installed manual bypass as an option.

528150-YTG-G-1210
Johnson Controls Unitary Products 15
•CONVENIENCE OUTLET (POWERED/NON-POWERED)–
Unit can be provided with an optional 120VAC GFCI outlet
with cover on the corner of the unit housing the compressors.
•ELECTRIC HEAT - Electric Heaters range from 3kW to
54kW and are available in all the voltage options of the
base unit.
•PHASE MONITOR - Designed to prevent damage in out-
of-phase condition.
•COIL GUARD - Designed to prevent condenser coil
damage.
•BAS CONTROLS - Include supply air sensor, return air
sensor, dirty filter indicator and air proving switch.
•DIRTY FILTER SWITCH – This kit includes a differential
pressure switch that energizes the fault light on the unit
thermostat, indicating that there is an abnormally high-
pressure drop across the filters.
•BREAKER – An HACR breaker can be factory installed
on gas heat units or cooling units with electric heat.
•DISCONNECT SWITCH - A disconnect can be factory
installed on a cooling only units sized for the largest
electric heat available.
•STAINLESS STEEL HEAT EXCHANGER – For
applications in a corrosive environment, this option
provides a full stainless steel heat exchanger assembly.
•SMOKE DETECTOR – A smoke detector can be factory
mounted and wired in the supply and/or return air
compartments.
OTHER PRE-ENGINEERED ACCESSORIES AVAILABLE
•ROOF CURB - 14” and 8” high, full perimeter knockdown
curb, with hinged design for quick assembly.
•BAROMETRIC RELIEF DAMPER – (Unit mounted –
Downflow, Duct Mounted – Horizontal) – Contains a rain
hood, air inlet screen, exhaust damper and mounting
hardware. Used to relieve internal air pressure through
the unit during economizer operation.
•PROPANE CONVERSION KIT – Contains new orifices
and gas valve springs to convert from natural to L.P. gas.
•-60ºF GAS HEAT KIT – Provides an electric heat kit for
the gas compartment for use in extreme low ambient
conditions.
•ECONOMIZER (Downflow and Horizontal flow)
•POWER EXHAUST – (Unit mount – Downflow, Duct
mount – Horizontal flow)
•DUAL ENTHALPY KIT - Provides a second input to
economizer to monitor return air.

528150-YTG-G-1210
16 Johnson Controls Unitary Products
Physical Data
ZH037-061 Single Stage Gas Physical Data
Component Models
ZH037 ZH049 ZH061
Nominal Tonnage 3.0 4.0 5.0
ARI COOLING PERFORMANCE
Gross Capacity @ ARI A point (MBh) 37000 50000 62000
ARI net capacity (MBh) 36000 48000 60000
EER 11.8 11.8 11.8
SEER 14 14 14
IPLV ---
Nominal CFM 1200 1600 2000
System power (KW) 3.05 4.07 5.10
Refrigerant type R-410A R-410A R-410A
Refrigerant charge (lb-oz)
System 1 7-4 6-14 7-12
System 2 ---
ARI HEATING PERFORMANCE
Heating model A05 A07 A09 A05 A07 A09 A07 A09 A13
Heat input (K Btu) 60 80 120 60 80 120 80 120 160
Heat output (K Btu) 49 65 97 49 65 97 65 97 129
AFUE % - - - - - -
Steady state efficiency (%) 81.5 81 81 81.5 81 81 81 81 80.5
No. burners 446446468
No. stages 1 1 1 1 1 1 1 1 1
Temperature Rise Range (ºF) 20-50°F 25-65°F 50-80°F 20-50°F 25-65°F 40-70°F 25-65°F 35-65°F 45-75°F
Gas Limit Setting (ºF) 235°F 200°F 255°F 235°F 200°F 255°F 200°F 245°F 240°F
Gas piping connection (in.) 3/4 3/4 3/4 3/4 3/4 3/4 3/4 3/4 3/4
DIMENSIONS (inches)
Length 89 89 89
Width 595959
Height 42 42 42
OPERATING WT. (lbs.) 723 763 772
COMPRESSORS
Type Recip Recip Recip
Quantity 1 1 1
Unit Capacity Steps (%) 100 100 100
CONDENSER COIL DATA
Face area (Sq. Ft.) 11.9 18.5 18.5
Rows 111
Fins per inch 23 23 23
Tube diameter (in./MM) 1/25 .71/18 .71/18
Circuitry Type 2-pass Microchannel 2-pass Microchannel 2-pass Microchannel
EVAPORATOR COIL DATA
Face area (Sq. Ft.) 8 8 10.6
Rows 333
Fins per inch 15 15 15
Tube diameter 0.375 0.375 0.375
Refrigerant control TXV TXV TXV

528150-YTG-G-1210
Johnson Controls Unitary Products 17
CONDENSER FAN DATA
Quantity of fans 1 1 1
Fan diameter (Inch) 24 24 24
Type Prop Prop Prop
Drive type Direct Direct Direct
Quantity of motors 1 1 1
Motor HP each 1/3 1/3 1/3
No. speeds 1 1 1
RPM 850 850 850
Nominal total CFM 3300 3700 3700
BELT DRIVE EVAP FAN DATA
Quantity 1 1 1
Fan Size (Inch) 12 x 9 12 x 9 12 x 9
Type Centrifugal Centrifugal Centrifugal
Motor Sheave 1VM34 1VL44 1VM34 1VL44 1VL40 1VP56
Blower Sheave AK69 AK69 AK56 AK56 AK61 AK74
Belt A47 A47 A47 A47 A47 A51
Motor HP each 1-1/2 1-1/2 1-1/2 1-1/2 1-1/2 2
RPM 1725 1725 1725 1725 1725 1725
Frame size 56 56 56 56 56 56
FILTERS
Quantity - Size 4 - (24 x 16 x 2)1,2 4 - (24 x 16 x 2)1,2 4 - (24 x 16 x 2)1,2
4 - (24 x 16 x 4)34 - (24 x 16 x 4)34 - (24 x 16 x 4)3
1. 2 In. Throwaway, Standard, MERV (Minimum Efficiency Reporting Value) 3.
2. 2 In. Pleated, Optional, MERV 7.
3. 4 In. Pleated, Optional, MERV 13.
ZH037-061 Single Stage Gas Physical Data (Continued)
Component Models
ZH037 ZH049 ZH061
Nominal Tonnage 3.0 4.0 5.0

528150-YTG-G-1210
18 Johnson Controls Unitary Products
ZH037-061 Two Stage Gas Physical Data
Component Models
ZH037 ZH049 ZH061
Nominal Tonnage 3.0 4.0 5.0
ARI COOLING PERFORMANCE
Gross Capacity @ ARI A point (MBh) 37000 50000 62000
ARI net capacity (MBh) 36000 48000 60000
EER 11.8 11.8 11.8
SEER 14 14 14
IPLV ---
Nominal CFM 1200 1600 2000
System power (KW) 3.05 4.07 5.10
Refrigerant type R-410A R-410A R-410A
Refrigerant charge (lb-oz)
System 1 7-4 6-14 7-12
System 2 ---
ARI HEATING PERFORMANCE
Heating model N05 N07 N09 N05 N07 N09 N07 N09 N13
Heat input (K Btu) 60 80 120 60 80 120 80 120 160
Heat output (K Btu) 49 65 97 49 65 97 65 97 129
AFUE % - - - - - -
Steady state efficiency (%) 81.5 81 81 81.5 81 81 81 81 80.5
No. burners 446446468
No. stages 212222212222222222
Temperature Rise Range (ºF) 20-50°F 25-65°F 50-80°F 20-50°F 25-65°F 40-70°F 25-65°F 35-65°F 45-75°F
Gas Limit Setting (ºF) 235°F 200°F 255°F 235°F 200°F 255°F 200°F 245°F 240°F
Gas piping connection (in.) 3/4 3/4 3/4 3/4 3/4 3/4 3/4 3/4 3/4
DIMENSIONS (inches)
Length 89 89 89
Width 595959
Height 42 42 42
OPERATING WT. (lbs.) 723 763 772
COMPRESSORS
Type Recip Recip Recip
Quantity 1 1 1
Unit Capacity Steps (%) 100 100 100
CONDENSER COIL DATA
Face area (Sq. Ft.) 11.9 18.5 18.5
Rows 111
Fins per inch 23 23 23
Tube diameter (in./MM) 1/25 .71/18 .71/18
Circuitry Type 2-pass Microchannel 2-pass Microchannel 2-pass Microchannel
EVAPORATOR COIL DATA
Face area (Sq. Ft.) 8 8 10.6
Rows 333
Fins per inch 15 15 15
Tube diameter 0.375 0.375 0.375
Refrigerant control TXV TXV TXV

528150-YTG-G-1210
Johnson Controls Unitary Products 19
1. 1st Stage Capacity is 75% of Full Capacity.
2. 1st Stage Capacity is 70% of Full Capacity.
3. 2 In. Throwaway, Standard, MERV (Minimum Efficiency Reporting Value) 3.
4. 2 In. Pleated, Optional, MERV 7.
5. 4 In. Pleated, Optional, MERV 13.
CONDENSER FAN DATA
Quantity of fans 1 1 1
Fan diameter (Inch) 24 24 24
Type Prop Prop Prop
Drive type Direct Direct Direct
Quantity of motors 1 1 1
Motor HP each 1/3 1/3 1/3
No. speeds 1 1 1
RPM 850 850 850
Nominal total CFM 3300 3700 3700
BELT DRIVE EVAP FAN DATA
Quantity 1 1 1
Fan Size (Inch) 12 x 9 12 x 9 12 x 9
Type Centrifugal Centrifugal Centrifugal
Motor Sheave 1VM34 1VL44 1VM34 1VL44 1VL40 1VP56
Blower Sheave AK69 AK69 AK56 AK56 AK61 AK74
Belt A47 A47 A47 A47 A47 A51
Motor HP each 1-1/2 1-1/2 1-1/2 1-1/2 1-1/2 2
RPM 1725 1725 1725 1725 1725 1725
Frame size 56 56 56 56 56 56
FILTERS
Quantity - Size 4 - (24 x 16 x 2)3,4 4 - (24 x 16 x 2)3,4 4 - (24 x 16 x 2)3,4
4 - (24 x 16 x 4)54 - (24 x 16 x 4)54 - (24 x 16 x 4)5
ZH037-061 Two Stage Gas Physical Data (Continued)
Component Models
ZH037 ZH049 ZH061
Nominal Tonnage 3.0 4.0 5.0

528150-YTG-G-1210
20 Johnson Controls Unitary Products
ZH078-150 Physical Data
Component Models
ZH078 ZH090 ZH102 ZH120 ZH150
Nominal Tonnage 6.5 7.5 8.5 10 12.5
ARI COOLING PERFORMANCE
Gross Capacity @ ARI A point (Btu) 81000 93000 104000 125000 155000
ARI net capacity (Btu) 78000 90000 102000 120000 150000
EER 11.7 11.7 11.7 11.7 11.7
SEER - - - - -
IEER 13.6 13.1 13 12.6 14.1
IPLV 13.7 13 13.5 12.9 14.1
Nominal CFM 2600 2700 2800 3700 3750
System power (KW) 6.69 7.70 8.71 10.25 12.91
Refrigerant type R-410A R-410A R-410A R-410A R-410A
Refrigerant charge (lb-oz)
System 1 7-0 6-0 5-12 7-14 8-12
System 2 6-0 6-0 5-12 7-12 8-0
ARI HEATING PERFORMANCE
Heating model 10 15 10 15 10 15 15 20 15 20
Heat input (K Btu) 120 180 120 180 120 180 180 240 180 240
Heat output (K Btu) 96 144 96 144 96 144 144 192 144 192
AFUE % ----------
Steady state efficiency (%) 80808080808080808080
No. burners 4646466868
No. stages 21212121212121212121
Temperature Rise Range (ºF) 20-50 35-65 15-45 30-60 10-40 25-55 20-50 35-65 10-40 25-55
Gas Limit Setting (ºF) 165 165 165 165 215 195 195 160 195 160
Gas piping connection (in.) 3/4 3/4 3/4 3/4 3/4 3/4 3/4 3/4 3/4 3/4
DIMENSIONS (inches)
Length 89 89 89 89 119-1/2
Width 5959595959
Height 42 42 50-3/4 50-3/4 50-3/4
OPERATING WT. (lbs.) 910 910 1030 1090 1215
COMPRESSORS
Type Recip Recip Recip Scroll Scroll
Quantity 2 2 2 2 2
Unit Capacity Steps (%) 50 / 100 50 / 100 50 / 100 50 / 100 50 / 100
CONDENSER COIL DATA
Face area (Sq. Ft.) 23.8 23.8 23.8 29.0 29.0
Rows 11111
Fins per inch 23 23 23 23 23
Tube diameter (in./MM) 1/25 1/25 .71/18 1/25 1/25
Circuitry Type 2-pass Microchannel 2-pass Microchannel 2-pass Microchannel 2-pass Microchannel 2-pass Microchannel
EVAPORATOR COIL DATA
Face area (Sq. Ft.) 10.6 10.6 13.2 13.2 13.2
Rows 33344
Fins per inch 15 15 15 15 15
Tube diameter 0.375 0.375 0.375 0.375 0.375
Circuitry Type Intertwined Intertwined Intertwined Intertwined Intertwined
Refrigerant control TXV TXV TXV TXV TXV

528150-YTG-G-1210
Johnson Controls Unitary Products 21
CONDENSER FAN DATA
Quantity of fans 2 2 2 2 4
Fan diameter (Inch) 24 24 24 24 24
Type Prop Prop Prop Prop Prop
Drive type Direct Direct Direct Direct Direct
Quantity of motors 2 2 2 2 4
Motor HP each 1/3 3/4 3/4 3/4 1/3
No. speeds 1 1 1 1 1
RPM 850 1110 1110 1110 850
Nominal total CFM 6700 8600 9000 9400 11500
BELT DRIVE EVAP FAN DATA
Quantity 1 1 1 1 1
Fan Size (Inch) 12 x 12 12 x 12 15 x 15 15 x 15 15 x 15
Type Centrifugal Centrifugal Centrifugal Centrifugal Centrifugal
Motor Sheave 1VM50 1VM50 1VM50 1VM50 1VM50 1VM50 1VM50 1VM50 1VM50 1VP56
Blower Sheave AK74 AK64 AK74 AK61 AK94 AK74 AK84 AK74 AK74 BK77
Belt A49 A49 A49 A49 A56 A54 A56 A54 A54 BX55
Motor HP each 1-1/221-1/23232335
RPM 1725 1725 1725 1725 1725 1725 1725 1725 1725 1725
Frame size 56 56 56 56 56 56 56 56 56 184T
FILTERS
Quantity - Size 4 - (24 x 16 x 2)2,3 4 - (24 x 16 x 2)2,3 4 - (24 x 20 x 2)2,3 4 - (24 x 20 x 2)2,3 4 - (24 x 20 x 2)2,3
4 - (24 x 16 x 4)44 - (24 x 16 x 4)44 - (24 x 20 x 4)44 - (24 x 20 x 4)44 - (24 x 20 x 4)4
1. 1st Stage 60% of Full Capacity.
2. 2 In. Throwaway, Standard, MERV (Minimum Efficiency Reporting Value) 3.
3. 2 In. Pleated, Optional, MERV 7.
4. 4 In. Pleated, Optional, MERV 13.
ZH078-150 Physical Data (Continued)
Component Models
ZH078 ZH090 ZH102 ZH120 ZH150
Nominal Tonnage 6.5 7.5 8.5 10 12.5

528150-YTG-G-1210
22 Johnson Controls Unitary Products
ZJ037-061 Single Stage Gas Heat Physical Data
Component Models
ZJ037 ZJ049 ZJ061
Nominal Tonnage 3.0 4.0 5.0
ARI COOLING PERFORMANCE
Gross Capacity @ ARI A point (MBh) 37000 50000 62000
ARI net capacity (MBh) 36000 48000 60000
EER 12.2 12.2 12.2
SEER 15 15 15
IPLV ---
Nominal CFM 1300 1600 2000
System power (KW) 2.95 3.95 4.90
Refrigerant type R-410A R-410A R-410A
Refrigerant charge (lb-oz)
System 1 6-12 8-8 8-4
System 2 ---
ARI HEATING PERFORMANCE
Heating model A05 A07 A09 A05 A07 A09 A07 A09 A13
Heat input (K Btu) 60 80 120 60 80 120 80 120 160
Heat output (K Btu) 49 65 97 49 65 97 65 97 129
AFUE % - - - - - -
Steady state efficiency (%) 81.5 81 81 81.5 81 81 81 81 80.5
No. burners 446446468
No. stages 1 1 1 1 1 1 1 1 1
Temperature Rise Range (ºF) 20-50°F 25-65°F 50-80°F 20-50°F 25-65°F 40-70°F 25-65°F 35-65°F 45-75°F
Gas Limit Setting (ºF) 235°F 200°F 255°F 235°F 200°F 255°F 200°F 245°F 240°F
Gas piping connection (in.) 3/4 3/4 3/4 3/4 3/4 3/4 3/4 3/4 3/4
DIMENSIONS (inches)
Length 89 89 89
Width 595959
Height 42 42 42
OPERATING WT. (lbs.) 740 762 770
COMPRESSORS
Type Recip Recip Recip
Quantity 1 1 1
Unit Capacity Steps (%) 100 100 100
CONDENSER COIL DATA
Face area (Sq. Ft.) 18.5 18.5 23.8
Rows 111
Fins per inch 23 23 23
Tube diameter (in./MM) .71/18 .71/18 .71/18
Circuitry Type 2-pass Microchannel 2-pass Microchannel 2-pass Microchannel
EVAPORATOR COIL DATA
Face area (Sq. Ft.) 7.9 10.5 10.5
Rows 333
Fins per inch 15 15 15
Tube diameter 0.375 0.375 0.375
Refrigerant control TXV TXV TXV

528150-YTG-G-1210
Johnson Controls Unitary Products 23
CONDENSER FAN DATA
Quantity of fans 1 2 2
Fan diameter (Inch) 24 24 24
Type Prop Prop Prop
Drive type Direct Direct Direct
Quantity of motors 1 2 2
Motor HP each 1/3 1/3 1/3
No. speeds 1 1 1
RPM 850 850 850
Nominal total CFM 3300 5500 6300
BELT DRIVE EVAP FAN DATA
Quantity 1 1 1
Fan Size (Inch) 12 x 9 12 x 9 12 x 9
Type Centrifugal Centrifugal Centrifugal
Motor Sheave 1VM34 1VL44 1VM34 1VL44 1VL40 1VP56
Blower Sheave AK69 AK69 AK56 AK56 AK61 AK74
Belt A47 A47 A47 A47 A47 A51
Motor HP each 1-1/2 1-1/2 1-1/2 1-1/2 1-1/2 2
RPM 1725 1725 1725 1725 1725 1725
Frame size 56 56 56 56 56 56
FILTERS
Quantity - Size 4 - (24 x 16 x 2)1,2 4 - (24 x 16 x 2)1,2 4 - (24 x 16 x 2)1,2
4 - (24 x 16 x 4)34 - (24 x 16 x 4)34 - (24 x 16 x 4)3
1. 2 In. Throwaway, Standard, MERV (Minimum Efficiency Reporting Value) 3.
2. 2 In. Pleated, Optional, MERV 7.
3. 4 In. Pleated, Optional, MERV 13.
ZJ037-061 Single Stage Gas Heat Physical Data (Continued)
Component Models
ZJ037 ZJ049 ZJ061
Nominal Tonnage 3.0 4.0 5.0

528150-YTG-G-1210
24 Johnson Controls Unitary Products
ZJ037-061 Two Stage Gas Heat Physical Data
Component Models
ZJ037 ZJ049 ZJ061
Nominal Tonnage 3.0 4.0 5.0
ARI COOLING PERFORMANCE
Gross Capacity @ ARI A point (MBh) 37000 50000 62000
ARI net capacity (MBh) 36000 48000 60000
EER 12.2 12.2 12.2
SEER 15 15 15
IPLV ---
Nominal CFM 1300 1600 2000
System power (KW) 2.95 3.95 4.90
Refrigerant type R-410A R-410A R-410A
Refrigerant charge (lb-oz)
System 1 6-12 8-8 8-4
System 2 ---
ARI HEATING PERFORMANCE
Heating model N05 N07 N09 N05 N07 N09 N07 N09 N13
Heat input (K Btu) 60 80 120 60 80 120 80 120 160
Heat output (K Btu) 49 65 97 49 65 97 65 97 129
AFUE % - - - - - -
Steady state efficiency (%) 81.5 81 81 81.5 81 81 81 81 80.5
No. burners 446446468
No. stages 212222212222222222
Temperature Rise Range (ºF) 20-50°F 25-65°F 50-80°F 20-50°F 25-65°F 40-70°F 25-65°F 35-65°F 45-75°F
Gas Limit Setting (ºF) 235°F 200°F 255°F 235°F 200°F 255°F 200°F 245°F 240°F
Gas piping connection (in.) 3/4 3/4 3/4 3/4 3/4 3/4 3/4 3/4 3/4
DIMENSIONS (inches)
Length 89 89 89
Width 595959
Height 42 42 42
OPERATING WT. (lbs.) 740 762 770
COMPRESSORS
Type Recip Recip Recip
Quantity 1 1 1
Unit Capacity Steps (%) 100 100 100
CONDENSER COIL DATA
Face area (Sq. Ft.) 18.5 18.5 23.8
Rows 111
Fins per inch 23 23 23
Tube diameter (in./MM) .71/18 .71/18 .71/18
Circuitry Type 2-pass Microchannel 2-pass Microchannel 2-pass Microchannel
EVAPORATOR COIL DATA
Face area (Sq. Ft.) 7.9 10.5 10.5
Rows 333
Fins per inch 15 15 15
Tube diameter 0.375 0.375 0.375
Refrigerant control TXV TXV TXV

528150-YTG-G-1210
Johnson Controls Unitary Products 25
1. 1st Stage Capacity is 75% of Full Capacity.
2. 1st Stage Capacity is 70% of Full Capacity.
3. 2 In. Throwaway, Standard, MERV (Minimum Efficiency Reporting Value) 3.
4. 2 In. Pleated, Optional, MERV 7.
5. 4 In. Pleated, Optional, MERV 13.
CONDENSER FAN DATA
Quantity of fans 1 2 2
Fan diameter (Inch) 24 24 24
Type Prop Prop Prop
Drive type Direct Direct Direct
Quantity of motors 1 2 2
Motor HP each 1/3 1/3 1/3
No. speeds 1 1 1
RPM 850 850 850
Nominal total CFM 3300 5500 6300
BELT DRIVE EVAP FAN DATA
Quantity 1 1 1
Fan Size (Inch) 12 x 9 12 x 9 12 x 9
Type Centrifugal Centrifugal Centrifugal
Motor Sheave 1VM34 1VL44 1VM34 1VL44 1VL40 1VP56
Blower Sheave AK69 AK69 AK56 AK56 AK61 AK74
Belt A47 A47 A47 A47 A47 A51
Motor HP each 1-1/2 1-1/2 1-1/2 1-1/2 1-1/2 2
RPM 1725 1725 1725 1725 1725 1725
Frame size 56 56 56 56 56 56
FILTERS
Quantity - Size 4 - (24 x 16 x 2)3,4 4 - (24 x 16 x 2)3,4 4 - (24 x 16 x 2)3,4
4 - (24 x 16 x 4)54 - (24 x 16 x 4)54 - (24 x 16 x 4)5
ZJ037-061 Two Stage Gas Heat Physical Data (Continued)
Component Models
ZJ037 ZJ049 ZJ061
Nominal Tonnage 3.0 4.0 5.0

528150-YTG-G-1210
26 Johnson Controls Unitary Products
ZJ078-150 Physical Data
Component Models
ZJ078 ZJ090 ZJ102 ZJ120 ZJ150
Nominal Tonnage 6.5 7.5 8.5 10 12.5
ARI COOLING PERFORMANCE
Gross Capacity @ ARI A point (Btu) 80000 93000 106000 124000 155000
ARI net capacity (Btu) 78000 90000 102000 120000 150000
EER 12.2 12.2 12.2 12.2 12.2
SEER - - - - -
IEER 14.9 14.44 13.2 12.9 12.9
IPLV 14.9 14.18 13.6 13.4 14.1
Nominal CFM 2600 2500 3400 3400 3500
System power (KW) 6.40 7.38 8.30 9.80 12.25
Refrigerant type R-410A R-410A R-410A R-410A R-410A
Refrigerant charge (lb-oz)
System 1 5-10 7-12 7-0 7-14 8-0
System 2 5-12 7-10 6-12 7-14 7-8
ARI HEATING PERFORMANCE
Heating model 10 15 10 15 10 15 15 20 15 20
Heat input (K Btu) 120 180 120 180 120 180 180 240 180 240
Heat output (K Btu) 96 144 96 144 96 144 144 192 144 192
AFUE % ----------
Steady state efficiency (%) 80808080808080808080
No. burners 4646466868
No. stages 21212121212121212121
Temperature Rise Range (ºF) 20-50 35-65 15-45 30-60 10-40 25-55 20-50 35-65 10-40 25-55
Gas Limit Setting (ºF) 165 165 165 165 215 195 195 160 195 160
Gas piping connection (in.) 3/4 3/4 3/4 3/4 3/4 3/4 3/4 3/4 3/4 3/4
DIMENSIONS (inches)
Length 89 89 89 89 119-1/2
Width 5959595959
Height 50-3/4 50-3/4 50-3/4 50-3/4 50-3/4
OPERATING WT. (lbs.) 1030 1081 1060 1070 1280
COMPRESSORS
Type Recip Recip Recip Scroll Scroll
Quantity 2 2 2 2 2
Unit Capacity Steps (%) 50 / 100 50 / 100 50 / 100 50 / 100 50 / 100
CONDENSER COIL DATA
Face area (Sq. Ft.) 29.0 23.8 23.8 29.0 47.5
Rows 11111
Fins per inch 23 23 23 23 23
Tube diameter (in./MM) .71/18 1/25 .71/18 1/25 .71/18
Circuitry Type 2-pass Microchannel 2-pass Microchannel 2-pass Microchannel 2-pass Microchannel 2-pass Microchannel
EVAPORATOR COIL DATA
Face area (Sq. Ft.) 13.2 13.2 13.2 13.2 13.2
Rows 34444
Fins per inch 15 15 15 15 15
Tube diameter 0.375 0.375 0.375 0.375 0.375
Circuitry Type Intertwined Intertwined Intertwined Intertwined Intertwined
Refrigerant control TXV TXV TXV TXV TXV

528150-YTG-G-1210
Johnson Controls Unitary Products 27
CONDENSER FAN DATA
Quantity of fans 2 2 2 2 4
Fan diameter (Inch) 24 24 24 24 24
Type Prop Prop Prop Prop Prop
Drive type Direct Direct Direct Direct Direct
Quantity of motors 2 2 2 2 4
Motor HP each 1/3 3/4 3/4 3/4 1/3
No. speeds 1 1 1 1 1
RPM 850 1110 1110 1110 850
Nominal total CFM 7400 8000 9000 9400 14000
BELT DRIVE EVAP FAN DATA
Quantity 1 1 1 1 1
Fan Size (Inch) 15 x 15 15 x 15 15 x 15 15 x 15 15 x 15
Type Centrifugal Centrifugal Centrifugal Centrifugal Centrifugal
Motor Sheave 1VL40 1VM50 1VL40 1VM50 1VM50 1VM50 1VM50 1VM50 1VM50 1VP56
Blower Sheave AK74 AK74 AK69 AK69 AK89 AK74 AK84 AK74 AK74 BK77
Belt A53 A54 A52 A54 A56 A54 A56 A54 A54 BX55
Motor HP each 1-1/221-1/23232335
RPM 1725 1725 1725 1725 1725 1725 1725 1725 1725 1725
Frame size 56 56 56 56 56 56 56 56 56 184T
FILTERS
Quantity - Size 4 - (24 x 20 x 2)2,3 4 - (24 x 20 x 2)2,3 4 - (24 x 20 x 2)2,3 4 - (24 x 20 x 2)2,3 4 - (24 x 20 x 2)2,3
4 - (24 x 20 x 4)44 - (24 x 20 x 4)44 - (24 x 20 x 4)44 - (24 x 20 x 4)44 - (24 x 20 x 4)4
1. 1st Stage 60% of Full Capacity.
2. 2 In. Throwaway, Standard, MERV (Minimum Efficiency Reporting Value) 3.
3. 2 In. Pleated, Optional, MERV 7.
4. 4 In. Pleated, Optional, MERV 13.
ZJ078-150 Physical Data (Continued)
Component Models
ZJ078 ZJ090 ZJ102 ZJ120 ZJ150
Nominal Tonnage 6.5 7.5 8.5 10 12.5

528150-YTG-G-1210
28 Johnson Controls Unitary Products
ZR037-061 Single Stage Gas Heat Physical Data
Component Models
ZR037 ZR049 ZR061
Nominal Tonnage 3 4 5
ARI COOLING PERFORMANCE
Gross Capacity @ ARI A point (Btu) 36500 49000 62000
ARI net capacity (Btu) 35500 47500 60000
EER 12.2 12.2 12.2
SEER 15 15 14.7
IPLV - --
Nominal CFM 1200 1600 2000
System power (KW) 2.88 3.32 4.83
Refrigerant type R-410A R-410A R-410A
Refrigerant charge (lb-oz)
System 1 12-8 12-0 11-0
System 2 - - -
ARI HEATING PERFORMANCE
Heating model A05 A07 A09 A05 A07 A09 A07 A09 A13
Heat input (K Btu) 60 80 120 60 80 120 80 120 160
Heat output (K Btu) 49 65 97 49 65 97 65 97 129
AFUE % - - - - - -
Steady state efficiency (%) 81.5 81 81 81.5 81 81 81 81 80.5
No. burners 4 4 6 4 4 6 4 6 8
No. stages 1 1 1 1 1 1 1 1 1
Temperature Rise Range (ºF) 20-50°F 25-65°F 35-80°F 20-50°F 25-65°F 35-80°F 25-65°F 35-80°F 45-75°F
Gas Limit Setting (ºF) 200°F 235°F 290°F 200°F 235°F 290°F 235°F 290°F 240°F
Gas piping connection (in.) 3/4 3/4 3/4 3/4 3/4 3/4 3/4 3/4 3/4
DIMENSIONS (inches)
Length 89 89 89
Width 59 59 59
Height 42 42 42
OPERATING WT. (lbs.) 867 880 867
COMPRESSORS
Type Recip Recip Recip
Quantity 1 1 1
Unit Capacity Steps (%) 100 100 100
CONDENSER COIL DATA
Face area (Sq. Ft.) 11.9 11.9 11.9
Rows 1 1 1
Fins per inch 23 23 23
Tube diameter (in./MM) .98/25 .98/25 .71/18 - .98/25
Circuitry Type 2-pass Microchannel 2-pass Microchannel 2-pass Microchannel
EVAPORATOR COIL DATA
Face area (Sq. Ft.) 10.56 10.56 10.56
Rows 3 3 4
Fins per inch 15 15 12
Tube diameter 0.375 0.375 0.375
Refrigerant control TXV TXV TXV
REHEAT COIL DATA
Face area (Sq. Ft.) 8.9 8.9 8.9
Rows 2 2 2
Fins per inch 15 15 15
Tube diameter 0.375 0.375 0.375
Refrigerant control Solenoid Solenoid Solenoid

528150-YTG-G-1210
Johnson Controls Unitary Products 29
Component Models
ZR037 ZR049 ZR061
Nominal Tonnage 3 4 5
CONDENSER FAN DATA
Quantity of fans 1 2 2
Fan diameter (Inch) 24 24 24
Type Prop Prop Prop
Drive type Direct Direct Direct
Quantity of motors 1 2 2
Motor HP each 1/3 1/3 1/3
No. speeds Var. Var. Var.
RPM (max.) 850 850 850
Nominal total CFM 3500 7000 7000
BELT DRIVE EVAP FAN DATA
Quantity 1 1 1
Fan Size (Inch) 12 x 9 12 x 9 12 x 9
Type Centrifugal Centrifugal Centrifugal
Motor Sheave 1VP34 1VL44 1VP34 1VL44 1VP34 1VL44
Blower Sheave AK61 AK59 AK61 AK59 AK61 AK59
Belt A47 A47 A47 A47 A47 A47
Motor HP each 1-1/2 1-1/2 1-1/2 1-1/2 1-1/2 2
RPM 1725 1725 1725 1725 1725 1725
Frame size 56 56 56 56 56 56
FILTERS
Quantity - Size 4 - (25 x 16 x 2)1, 2 4 - (25 x 16 x 2) 1, 2 4 - (25 x 16 x 2)1, 2
4 - (25 x 16 x 4) 34 - (25 x 16 x 4) 34 - (25 x 16 x 4) 3
1. 2 In. Throwaway, Standard, MERV (Minimum Efficiency Reporting Value) 3.
2. 2 In. Pleated, Optional, MERV 7.
3. 4 In. Pleated, Optional, MERV 13.
ZR037-061 Single Stage Gas Heat Physical Data (Continued)

528150-YTG-G-1210
30 Johnson Controls Unitary Products
ZR037-061 Two Stage Gas Heat Physical Data
Component Models
ZR037 ZR049 ZR061
Nominal Tonnage 3 4 5
ARI COOLING PERFORMANCE
Gross Capacity @ ARI A point (Btu) 36500 49000 62000
ARI net capacity (Btu) 35500 47500 60000
EER 12.2 12.2 12.2
SEER 15 15 14.7
IPLV - - -
Nominal CFM 1200 1600 2000
System power (KW) 2.88 3.32 4.83
Refrigerant type R-410A R-410A R-410A
Refrigerant charge (lb-oz)
System 1 12-8 12-0 11-0
System 2 - - -
ARI HEATING PERFORMANCE
Heating model N05 N07 N09 N05 N07 N09 N07 N09 N13
Heat input (K Btu) 60 80 120 60 80 120 80 120 160
Heat output (K Btu) 49 65 97 49 65 97 65 97 129
AFUE % - - - - - -
Steady state efficiency (%) 81.5 81 81 81.5 81 81 81 81 80.5
No. burners 4 4 6 4 4 6 4 6 8
No. stages 212222212222222222
Temperature Rise Range (ºF) 20-50°F 25-65°F 35-80°F 20-50°F 25-65°F 35-80°F 25-65°F 35-80°F 45-75°F
Gas Limit Setting (ºF) 200°F 235°F 290°F 200°F 235°F 290°F 235°F 290°F 240°F
Gas piping connection (in.) 3/4 3/4 3/4 3/4 3/4 3/4 3/4 3/4 3/4
DIMENSIONS (inches)
Length 89 89 89
Width 59 59 59
Height 42 42 42
OPERATING WT. (lbs.) 867 880 867
COMPRESSORS
Type Recip Recip Recip
Quantity 1 1 1
Unit Capacity Steps (%) 100 100 100
CONDENSER COIL DATA
Face area (Sq. Ft.) 11.9 11.9 11.9
Rows 1 1 1
Fins per inch 23 23 23
Tube diameter (in./MM) .98/25 .98/25 .71/18 - .98/25
Circuitry Type 2-pass Microchannel 2-pass Microchannel 2-pass Microchannel
EVAPORATOR COIL DATA
Face area (Sq. Ft.) 10.56 10.56 10.56
Rows 3 3 4
Fins per inch 15 15 12
Tube diameter 0.375 0.375 0.375
Refrigerant control TXV TXV TXV
REHEAT COIL DATA
Face area (Sq. Ft.) 8.9 8.9 8.9
Rows 2 2 2
Fins per inch 15 15 15
Tube diameter 0.375 0.375 0.375
Refrigerant control Solenoid Solenoid Solenoid

528150-YTG-G-1210
Johnson Controls Unitary Products 31
Component Models
ZR037 ZR049 ZR061
Nominal Tonnage 3 4 5
CONDENSER FAN DATA
Quantity of fans 1 2 2
Fan diameter (Inch) 24 24 24
Type Prop Prop Prop
Drive type Direct Direct Direct
Quantity of motors 1 2 2
Motor HP each 1/3 1/3 1/3
No. speeds Var. Var. Var.
RPM 850 850 850
Nominal total CFM 3500 7000 7000
BELT DRIVE EVAP FAN DATA
Quantity 1 1 1
Fan Size (Inch) 12 x 9 12 x 9 12 x 9
Type Centrifugal Centrifugal Centrifugal
Motor Sheave 1VP34 1VL44 1VP34 1VL44 1VP34 1VL44
Blower Sheave AK61 AK59 AK61 AK59 AK61 AK59
Belt A47 A47 A47 A47 A47 A47
Motor HP each 1-1/2 1-1/2 1-1/2 1-1/2 1-1/2 2
RPM 1725 1725 1725 1725 1725 1725
Frame size 56 56 56 56 56 56
FILTERS
Quantity - Size 4 - (25 x 16 x 2)3,4 4 - (25 x 16 x 2)3,4 4 - (25 x 16 x 2)3,4
4 - (25 x 16 x 4)54 - (25 x 16 x 4)54 - (25 x 16 x 4)5
1. 1st Stage Capacity is 75% of Full Capacity.
2. 1st Stage Capacity is 70% of Full Capacity.
3. 2 In. Throwaway, Standard, MERV (Minimum Efficiency Reporting Value) 3.
4. 2 In. Pleated, Optional, MERV 7.
5. 4 In. Pleated, Optional, MERV 13.
ZR037-061 Two Stage Gas Heat Physical Data (Continued)

528150-YTG-G-1210
32 Johnson Controls Unitary Products
ZR078-150 Physical Data
Component Models
ZR078 ZR090 ZR102 ZR120 ZR150
Nominal Tonnage 6.5 7.5 8.5 10 12.5
ARI COOLING PERFORMANCE
Gross Capacity @ ARI A point (Mbh) 80000 91000 106000 125000 156000
ARI net capacity (Mbh) 78000 88000 102000 120000 150000
EER 11.2 11.2 11.2 11.2 11.2
IEER 13.0 11.5 12.3 11.5 11.1
IPLV 13.0 12.3 12.3 12.3 12.7
Nominal CFM 2200 2800 3400 3900 3800
System power (KW) 6.96 7.86 9.11 10.71 13.39
Refrigerant type R-410A R-410A R-410A R-410A R-410A
Refrigerant charge (lb-oz)
System 1 9-0 9-12 12-0 12-0 18-8
System 2 5-8 8-8 11-0 10-8 18-8
ARI HEATING PERFORMANCE
Heating model 10 15 10 15 10 15 15 20 15 20
Heat input (K Btu) 120 180 120 180 120 180 180 240 180 240
Heat output (K Btu) 96 144 96 144 96 144 144 192 144 192
AFUE % ----------
Steady state efficiency (%) 80808080808080808080
No. burners 4646466868
No. stages 21212121212121212121
Temperature Rise Range (ºF) 20-50 35-65 15-45 30-60 10-40 25-55 20-50 35-65 10-40 25-55
Gas Limit Setting (ºF) 165 165 165 165 215 195 195 160 195 160
Gas piping connection (in.) 3/4 3/4 3/4 3/4 3/4 3/4 3/4 3/4 3/4 3/4
DIMENSIONS (inches)
Length 89 89 89 89 119-7/16
Width 5959595959
Height 42 42 50-3/4 50-3/4 50-3/4
OPERATING WT. (lbs.) 965 965 1200 1200 1465
COMPRESSORS
Type Scroll Scroll Scroll Scroll Scroll
Quantity 2 2 2 2 2
Unit Capacity Steps (%) 50 / 100 50 / 100 50 / 100 50 / 100 50 / 100
CONDENSER COIL DATA
Face area (Sq. Ft.) 23.8 23.8 29.0 29.0 47.5
Rows 2 / 122222
Fins per inch 20 20 20 20 15
Tube diameter (in.) 3/8 3/8 3/8 3/8 3/8
Circuitry Type Split-face Split-face Split-face Split-face Split-face
EVAPORATOR COIL DATA
Face area (Sq. Ft.) 10.6 10.6 13.2 13.2 13.2
Rows 33444
Fins per inch 15 15 15 15 15
Tube diameter 3/8 3/8 3/8 3/8 3/8
Circuitry Type Split-face Split-face Split-face Split-face Split-face
Refrigerant control TXV TXV TXV TXV TXV

528150-YTG-G-1210
Johnson Controls Unitary Products 33
REHEAT COIL DATA
Face area (Sq. Ft.) 6.66 6.66 10 10 10
Rows 22222
Fins per inch 13 13 13 13 13
Tube diameter (in.) 3/8 3/8 3/8 3/8 3/8
CONDENSER FAN DATA
Quantity of Fans 2 2 2 2 4
Fan diameter (Inch) 24 24 24 24 24
Type Prop Prop Prop Prop Prop
Drive type Direct Direct Direct Direct Direct
Quantity of motors 2 2 2 2 4
Motor HP each 1/3 1/3 1/3 1/3 1/3
No. speeds 1 1 1 1 1
RPM 850 850 850 850 850
Nominal total CFM 6800 6800 6800 6800 14000
BELT DRIVE EVAP FAN DATA
Quantity 1 1 1 1 1
Fan Size (Inch) 12 x 12 12 x 12 15 x 15 15 x 15 15 x 15
Type Centrifugal Centrifugal Centrifugal Centrifugal Centrifugal
Motor Sheave 1VM50 1VM50 1VM50 1VM50 1VM50 1VM50 1VM50 1VM50 1VM50 1VP56
Blower Sheave AK74 AK64 AK74 AK61 AK89 AK74 AK84 AK74 AK74 BK77
Belt A49 A49 A49 A49 A56 A54 A56 A54 A54 BX55
Motor HP each 1-1/2 2 1-1/2 3 2 3 2 3 3 5
RPM 1725 1725 1725 1725 1725 1725 1725 1725 1725 1725
Frame size 56 56 56 56 56 56 56 56 56 184T
FILTERS
Quantity - Size 4 - (24 x 16 x 2)2,3 4 - (24 x 16 x 2)2,3 4 - (24 x 20 x 2)2,3 4 - (24 x 20 x 2)2,3 4 - (24 x 20 x 2)2,3
4 - (24 x 16 x 4)44 - (24 x 16 x 4)44 - (24 x 20 x 4)44 - (24 x 20 x 4)44 - (24 x 20 x 4)4
1. 1st Stage 60% of 2nd Stage
2. 2 In. Throwaway, Standard, MERV (Minimum Efficiency Reporting Value) 3.
3. 2 In. Pleated, Optional, MERV 7.
4. 4 In. Pleated, Optional, MERV 13.
ZR078-150 Physical Data (Continued)
Component Models
ZR078 ZR090 ZR102 ZR120 ZR150
Nominal Tonnage 6.5 7.5 8.5 10 12.5

528150-YTG-G-1210
34 Johnson Controls Unitary Products
ZH/ZJ/ZR078-150 Unit Limitations
Size
(Tons) Model Unit Voltage
Unit Limitations
Applied Voltage Outdoor DB Temp
Min Max Max (°F)
037
(3) ZH/ZJ/ZR
208/230-3-60 187 252 125
460-3-60 432 504 125
575-3-60 540 630 125
049
(4) ZH/ZJ/ZR
208/230-3-60 187 252 125
460-3-60 432 504 125
575-3-60 540 630 125
061
(5) ZH/ZJ/ZR
208/230-3-60 187 252 125
460-3-60 432 504 125
575-3-60 540 630 125
078
(6.5) ZH/ZJ/ZR
208/230-3-60 187 252 125
460-3-60 432 504 125
575-3-60 540 630 125
090
(7.5) ZH/ZJ/ZR
208/230-3-60 187 252 125
460-3-60 432 504 125
575-3-60 540 630 125
102
(8.5) ZH/ZJ/ZR
208/230-3-60 187 252 125
460-3-60 432 504 125
575-3-60 540 630 125
120
(10) ZH/ZJ/ZR
208/230-3-60 187 252 125
460-3-60 432 504 125
575-3-60 540 630 125
150
(12.5) ZH/ZJ/ZR
208/230-3-60 187 252 125
460-3-60 432 504 125
575-3-60 540 630 125

528150-YTG-G-1210
Johnson Controls Unitary Products 35
Capacity Performance
ZH037-150 Cooling Capacities
ZH037 (3.0 Ton)
Air on
Evaporator Coil
Temperature of Air on Condenser Coil
Total
Capacity1
(MBh)
Total
Input
(kW)2
Sensible Capacity (MBh) Total
Capacity1
(MBh)
Total
Input
(kW)2
Sensible Capacity (MBh)
CFM WB
(°F)
Return Dry Bulb (°F) Return Dry Bulb (°F)
90 85 80 75 70 65 90 85 80 75 70 65
75°F 85°F
750
77 49.1 2.3 20.2 16.8 13.4 - - - 46.5 2.5 19.1 15.7 12.4 - - -
72 44.4 2.2 25.1 21.7 18.4 15.0 - - 41.7 2.5 23.9 20.5 17.2 13.8 - -
67 39.6 2.2 30.0 26.6 23.3 19.9 16.5 - 36.9 2.5 28.7 25.3 22.0 18.6 15.2 -
62 35.4 2.3 35.4 32.8 27.8 24.5 21.1 17.8 32.6 2.5 32.6 31.3 26.3 22.9 19.6 16.2
900
77 51.2 2.2 22.9 18.8 14.8 - - - 48.2 2.5 21.6 17.6 13.6 - - -
72 46.2 2.2 28.2 24.2 20.2 16.1 - - 43.2 2.5 26.8 22.8 18.9 14.9 - -
67 41.3 2.2 33.6 29.6 25.6 21.5 17.5 - 38.2 2.5 32.1 28.1 24.1 20.2 16.2 -
62 36.9 2.3 36.9 35.1 30.6 26.5 22.5 18.5 33.7 2.5 33.7 32.9 28.9 24.9 20.9 17.0
57 35.4 2.3 35.4 35.4 32.4 28.4 24.3 20.3 33.2 2.5 33.2 33.2 30.2 26.2 22.3 18.3
1050
77 53.3 2.2 25.5 20.8 16.1 - - - 49.9 2.5 24.0 19.4 14.8 - - -
72 48.1 2.2 31.4 26.7 22.0 17.3 - - 44.7 2.5 29.8 25.2 20.6 16.0 - -
67 43.0 2.2 37.3 32.6 27.9 23.2 18.5 - 39.5 2.5 35.5 30.9 26.3 21.7 17.1 -
62 38.3 2.3 38.3 37.5 33.3 28.6 23.9 19.2 34.9 2.5 34.9 34.5 31.5 26.9 22.3 17.7
57 36.8 2.3 36.8 36.8 35.3 30.6 25.9 21.2 34.3 2.5 34.3 34.3 32.9 28.3 23.7 19.2
1200
77 55.4 2.2 28.2 22.8 17.5 - - - 51.5 2.5 26.5 21.3 16.1 - - -
72 50.0 2.2 34.6 29.2 23.8 18.4 - - 46.2 2.5 32.7 27.5 22.3 17.1 - -
67 44.6 2.2 41.0 35.6 30.2 24.8 19.4 - 40.8 2.5 38.9 33.7 28.5 23.3 18.1 -
62 39.8 2.3 39.8 39.8 36.1 30.7 25.3 19.9 36.1 2.5 36.1 36.1 34.1 28.9 23.7 18.5
57 38.3 2.2 38.3 38.3 38.3 32.9 27.5 22.1 35.5 2.5 35.5 35.5 35.7 30.5 25.2 20.0
1350
72 50.1 2.2 37.2 31.3 25.4 19.5 - - 46.5 2.5 35.4 29.6 23.8 18.1 - -
67 44.7 2.2 42.9 38.1 32.2 26.3 20.4 - 41.1 2.5 40.1 36.3 30.5 24.7 19.0 -
62 39.9 2.3 39.9 39.9 38.0 32.1 26.3 20.4 36.3 2.5 36.3 36.3 35.3 29.6 23.8 18.0
57 38.3 2.2 38.3 38.3 38.3 32.4 26.6 20.7 35.7 2.5 35.7 35.7 35.8 30.0 24.3 18.5
1500
72 50.1 2.2 39.7 33.4 27.0 20.6 - - 46.8 2.5 38.0 31.7 25.4 19.1 - -
67 44.8 2.2 44.8 40.6 34.2 27.8 21.5 - 41.3 2.5 41.3 38.8 32.5 26.2 19.9 -
62 39.9 2.3 39.9 39.9 39.9 33.6 27.2 20.8 36.5 2.5 36.5 36.5 36.5 30.2 23.9 17.6
57 38.4 2.3 38.4 38.4 38.4 32.0 25.6 19.2 35.9 2.5 35.9 35.9 35.9 29.6 23.3 17.0
95°F 105°F
750
77 44.0 2.7 18.0 14.7 11.3 - - - 40.2 3.0 15.8 13.5 10.2 - - -
72 39.0 2.7 22.7 19.3 16.0 12.6 - - 35.5 2.9 21.2 18.0 14.7 11.4 - -
67 34.1 2.7 27.4 24.0 20.7 17.3 13.9 - 30.8 2.9 26.6 22.4 19.2 15.9 12.7 -
62 29.8 2.6 29.8 29.8 24.7 21.4 18.0 14.7 27.0 2.8 27.0 27.0 23.2 20.0 16.7 13.5
900
77 45.2 2.7 20.3 16.3 12.4 - - - 41.2 3.0 18.9 15.0 11.2 - - -
72 40.1 2.7 25.4 21.5 17.6 13.6 - - 36.4 3.0 23.8 20.0 16.2 12.4 - -
67 35.1 2.7 30.5 26.6 22.7 18.8 14.9 - 31.5 2.9 28.7 24.9 21.1 17.3 13.5 -
62 30.6 2.7 30.6 30.6 27.2 23.3 19.4 15.4 27.7 2.9 27.7 27.7 25.6 21.8 17.9 14.1
57 30.9 2.7 30.9 30.9 28.0 24.1 20.2 16.2 28.2 2.9 28.2 28.2 26.0 22.2 18.4 14.6
1050
77 46.5 2.8 22.5 18.0 13.5 - - - 42.2 3.0 21.9 16.6 12.3 - - -
72 41.2 2.7 28.1 23.6 19.1 14.7 - - 37.2 3.0 26.4 22.0 17.6 13.3 - -
67 36.0 2.7 33.7 29.2 24.8 20.3 15.8 - 32.3 3.0 30.9 27.4 23.0 18.7 14.3 -
62 31.5 2.7 31.5 31.5 29.7 25.2 20.7 16.2 28.3 2.9 28.3 28.3 27.9 23.5 19.2 14.8
57 31.8 2.7 31.8 31.8 30.5 26.1 21.6 17.1 28.9 2.9 28.9 28.9 28.4 24.0 19.7 15.3
1200
77 47.7 2.8 24.7 19.7 14.7 - - - 43.2 3.1 24.9 18.2 13.3 - - -
72 42.3 2.8 30.8 25.8 20.7 15.7 - - 38.1 3.0 28.9 24.0 19.1 14.2 - -
67 37.0 2.8 36.9 31.8 26.8 21.8 16.7 - 33.1 3.0 33.0 29.9 25.0 20.1 15.1 -
62 32.3 2.7 32.3 32.3 32.1 27.1 22.0 17.0 29.0 2.9 29.0 29.0 30.2 25.3 20.4 15.5
57 32.6 2.7 32.6 32.6 33.1 28.0 23.0 17.9 29.6 2.9 29.6 29.6 30.7 25.8 20.9 16.0
1350
72 42.9 2.8 33.6 27.9 22.3 16.6 - - 38.5 3.0 31.7 26.2 20.7 15.2 - -
67 37.5 2.7 37.4 34.4 28.8 23.2 17.5 - 33.4 3.0 33.4 31.6 27.0 21.5 16.0 -
62 32.7 2.7 32.7 32.7 32.6 27.0 21.3 15.7 29.3 2.9 29.3 29.3 29.9 24.4 18.9 13.4
57 33.0 2.7 33.0 33.0 33.3 27.6 22.0 16.4 29.9 2.9 29.9 29.9 30.5 25.0 19.5 14.0
1500
72 43.4 2.8 36.3 30.1 23.8 17.6 - - 39.0 3.0 34.4 28.3 22.2 16.1 - -
67 37.9 2.7 37.9 37.1 30.8 24.6 18.4 - 33.8 3.0 33.8 33.4 29.0 22.9 16.8 -
62 33.1 2.7 33.1 33.1 33.1 26.9 20.7 14.4 29.6 2.9 29.6 29.6 29.6 23.6 17.5 11.4
57 33.5 2.7 33.5 33.5 33.5 27.2 21.0 14.8 30.2 2.9 30.2 30.2 30.2 24.1 18.0 11.9

528150-YTG-G-1210
36 Johnson Controls Unitary Products
115°F 125°F
750
77 36.4 3.3 13.7 12.3 9.1 - - - 32.6 3.5 12.4 10.7 8.1 - - -
72 31.9 3.2 19.7 16.6 13.4 10.3 - - 28.4 3.4 18.2 15.2 12.2 9.1 - -
67 27.4 3.1 25.8 20.9 17.7 14.6 11.4 - 24.1 3.4 24.1 19.3 16.3 13.2 10.2 -
62 24.2 3.0 24.2 24.2 21.7 18.6 15.4 12.3 21.4 3.2 21.4 21.4 21.4 17.2 14.1 11.1
900
77 37.2 3.3 17.4 13.8 10.1 - - - 33.1 3.6 16.7 12.5 8.9 - - -
72 32.6 3.2 22.2 18.5 14.8 11.1 - - 28.8 3.5 20.6 17.0 13.4 9.8 - -
67 28.0 3.2 26.9 23.2 19.5 15.8 12.1 - 24.5 3.4 24.5 21.5 17.9 14.4 10.8 -
62 24.7 3.1 24.7 24.7 23.9 20.2 16.5 12.8 21.7 3.3 21.7 21.7 21.7 18.7 15.1 11.5
57 25.4 3.1 25.4 25.4 24.0 20.3 16.6 12.9 22.7 3.3 22.7 22.7 22.0 18.4 14.8 11.3
1050
77 37.9 3.3 21.2 15.2 11.0 - - - 33.7 3.6 20.9 14.2 9.7 - - -
72 33.2 3.2 24.6 20.4 16.2 11.9 - - 29.2 3.5 22.9 18.8 14.7 10.6 - -
67 28.6 3.2 28.0 25.6 21.3 17.1 12.9 - 24.8 3.4 24.8 23.7 19.6 15.5 11.4 -
62 25.2 3.1 25.2 25.2 26.1 21.9 17.6 13.4 22.1 3.3 22.1 22.1 22.1 20.2 16.1 12.0
57 26.0 3.1 26.0 26.0 26.2 22.0 17.7 13.5 23.0 3.3 23.0 23.0 23.0 19.9 15.8 11.7
1200
77 38.7 3.3 25.0 16.7 11.9 - - - 34.2 3.6 25.2 15.9 10.5 - - -
72 33.9 3.3 27.1 22.3 17.5 12.7 - - 29.7 3.5 25.2 20.6 15.9 11.3 - -
67 29.1 3.2 29.1 27.9 23.1 18.3 13.6 - 25.2 3.4 25.2 25.2 21.3 16.6 12.0 -
62 25.7 3.1 25.7 25.7 28.3 23.5 18.8 14.0 22.4 3.3 22.4 22.4 22.4 21.8 17.1 12.5
57 26.5 3.1 26.5 26.5 28.4 23.6 18.9 14.1 23.4 3.3 23.4 23.4 23.4 21.5 16.8 12.2
1350
72 34.2 3.3 29.8 24.4 19.1 13.7 - - 29.9 3.6 27.9 22.7 17.4 12.2 - -
67 29.4 3.2 29.4 28.8 25.2 19.8 14.4 - 25.4 3.5 25.4 25.4 23.3 18.1 12.9 -
62 25.9 3.1 25.9 25.9 27.2 21.9 16.5 11.2 22.5 3.3 22.5 22.5 22.5 19.3 14.1 8.9
57 26.7 3.1 26.7 26.7 27.7 22.3 17.0 11.6 23.5 3.4 23.5 23.5 23.5 19.7 14.4 9.2
1500
72 34.5 3.3 32.5 26.5 20.6 14.7 - - 30.1 3.6 30.1 24.8 19.0 13.2 - -
67 29.7 3.2 29.7 29.7 27.2 21.2 15.3 - 25.5 3.5 25.5 25.5 25.4 19.6 13.8 -
62 26.2 3.2 26.2 26.2 26.2 20.2 14.3 8.3 22.7 3.4 22.7 22.7 22.7 16.9 11.1 5.3
57 26.9 3.2 26.9 26.9 26.9 21.0 15.1 9.1 23.7 3.4 23.7 23.7 23.7 17.9 12.1 6.3
1. These capacities are gross ratings. For net capacity, deduct air blower motor, MBh = 3.415 x kW. Refer to the appropriate Blower
Performance Table for the kW of the supply air blower motor.
2. These ratings include the condenser fan motors (total 1 kW) and the compressor motors but not the supply air blower motor.
ZH037 (3.0 Ton) (Continued)
Air on
Evaporator Coil
Temperature of Air on Condenser Coil
Total
Capacity1
(MBh)
Total
Input
(kW)2
Sensible Capacity (MBh) Total
Capacity1
(MBh)
Total
Input
(kW)2
Sensible Capacity (MBh)
CFM WB
(°F)
Return Dry Bulb (°F) Return Dry Bulb (°F)
90 85 80 75 70 65 90 85 80 75 70 65

528150-YTG-G-1210
Johnson Controls Unitary Products 37
ZH049 (4.0 Ton)
Air on
Evaporator Coil
Temperature of Air on Condenser Coil
Total
Capacity1
(MBh)
Total
Input
(kW)2
Sensible Capacity (MBh) Total
Capacity1
(MBh)
Total
Input
(kW)2
Sensible Capacity (MBh)
CFM WB
(°F)
Return Dry Bulb (°F) Return Dry Bulb (°F)
90 85 80 75 70 65 90 85 80 75 70 65
75°F 85°F
1000
77 65.4 3.0 28.0 23.5 19.1 - - - 60.3 3.3 25.1 20.8 16.4 - - -
72 59.2 3.0 34.8 30.3 25.9 21.4 - - 54.5 3.3 31.8 27.5 23.2 18.9 - -
67 53.0 2.9 41.6 37.1 32.7 28.3 23.8 - 48.8 3.2 38.6 34.2 29.9 25.6 21.3 -
62 47.0 2.9 47.0 47.0 40.3 35.9 31.4 27.0 43.1 3.2 43.1 43.1 37.1 32.8 28.5 24.1
1200
77 68.3 3.0 30.8 25.6 20.4 - - - 62.9 3.3 27.9 22.9 17.8 - - -
72 61.8 3.0 38.0 32.9 27.7 22.5 - - 56.9 3.3 35.2 30.2 25.1 20.1 - -
67 55.3 2.9 45.3 40.1 35.0 29.8 24.6 - 50.9 3.2 42.5 37.5 32.4 27.4 22.3 -
62 49.1 2.9 49.1 49.1 43.1 38.0 32.8 27.6 45.0 3.2 45.0 45.0 40.2 35.2 30.1 25.1
57 48.9 2.9 48.9 48.9 47.1 42.0 36.8 31.6 44.8 3.2 44.8 44.8 42.3 37.2 32.2 27.1
1400
77 71.2 3.0 33.6 27.7 21.8 - - - 65.5 3.3 30.7 25.0 19.2 - - -
72 64.4 3.0 41.3 35.4 29.5 23.6 - - 59.2 3.3 38.6 32.9 27.1 21.3 - -
67 57.7 2.9 49.0 43.1 37.3 31.4 25.5 - 52.9 3.2 46.5 40.7 35.0 29.2 23.4 -
62 51.1 2.9 51.1 51.1 46.0 40.1 34.2 28.3 46.8 3.2 46.8 46.8 43.3 37.6 31.8 26.0
57 51.0 2.9 51.0 51.0 50.3 44.4 38.5 32.6 46.6 3.2 46.6 46.6 45.5 39.8 34.0 28.2
1600
77 74.1 3.0 36.4 29.8 23.2 - - - 68.1 3.4 33.6 27.1 20.6 - - -
72 67.1 3.0 44.6 38.0 31.4 24.7 - - 61.5 3.3 42.0 35.5 29.0 22.5 - -
67 60.0 2.9 52.8 46.1 39.5 32.9 26.3 - 55.0 3.3 50.5 44.0 37.5 31.0 24.5 -
62 53.2 2.9 53.2 53.2 48.8 42.1 35.5 28.9 48.7 3.2 48.7 48.7 46.5 40.0 33.5 27.0
57 53.1 2.9 53.1 53.1 53.4 46.8 40.2 33.5 48.4 3.2 48.4 48.4 48.8 42.3 35.8 29.3
1800
72 69.2 3.0 48.1 40.9 33.6 26.4 - - 63.4 3.4 45.4 38.3 31.2 24.0 - -
67 62.0 3.0 58.3 49.6 42.4 35.2 28.0 - 56.7 3.3 54.4 47.4 40.2 33.1 26.0 -
62 54.9 3.0 54.9 54.9 52.7 45.5 38.3 31.1 50.1 3.3 50.1 50.1 49.0 41.9 34.8 27.7
57 54.8 2.9 54.8 54.8 54.9 47.7 40.5 33.3 49.9 3.2 49.9 49.9 50.1 43.0 35.8 28.7
2000
72 71.4 3.1 51.6 43.7 35.9 28.1 - - 65.2 3.4 48.8 41.0 33.3 25.6 - -
67 63.9 3.0 63.9 53.1 45.3 37.5 29.7 - 58.3 3.3 58.3 50.7 43.0 35.2 27.5 -
62 56.6 3.0 56.6 56.6 56.6 48.8 41.0 33.2 51.6 3.3 51.6 51.6 51.6 43.9 36.1 28.4
57 56.5 3.0 56.5 56.5 56.5 48.6 40.8 33.0 51.4 3.3 51.4 51.4 51.4 43.6 35.9 28.1
95°F 105°F
1000
77 55.3 3.6 22.2 18.0 13.8 - - - 50.6 4.0 19.3 16.2 12.1 - - -
72 49.9 3.6 28.9 24.7 20.5 16.3 - - 45.4 3.9 26.7 22.7 18.6 14.5 - -
67 44.5 3.5 35.5 31.3 27.1 22.9 18.7 - 40.1 3.8 34.2 29.1 25.1 21.0 16.9 -
62 39.3 3.4 39.3 39.3 33.9 29.7 25.5 21.3 36.2 3.7 36.2 36.2 30.9 26.9 22.8 18.7
1200
77 57.5 3.6 25.1 20.1 15.2 - - - 52.4 4.0 22.9 18.2 13.4 - - -
72 51.9 3.6 32.4 27.5 22.6 17.6 - - 47.0 3.9 30.1 25.3 20.5 15.7 - -
67 46.4 3.5 39.8 34.8 29.9 25.0 20.0 - 41.5 3.8 37.3 32.5 27.7 22.9 18.1 -
62 40.9 3.4 40.9 40.9 37.3 32.4 27.4 22.5 37.5 3.7 37.5 37.5 34.2 29.4 24.6 19.8
57 40.6 3.5 40.6 40.6 37.4 32.4 27.5 22.6 37.1 3.7 37.1 37.1 33.8 29.0 24.2 19.4
1400
77 59.8 3.7 27.9 22.3 16.6 - - - 54.3 4.0 26.6 20.1 14.6 - - -
72 54.0 3.6 35.9 30.3 24.6 19.0 - - 48.6 3.9 33.5 28.0 22.5 17.0 - -
67 48.2 3.6 44.0 38.3 32.6 27.0 21.3 - 43.0 3.8 40.4 35.8 30.3 24.8 19.3 -
62 42.5 3.5 42.5 42.5 40.7 35.1 29.4 23.7 38.8 3.8 38.8 38.8 37.4 31.9 26.4 20.9
57 42.2 3.5 42.2 42.2 40.8 35.1 29.5 23.8 38.4 3.8 38.4 38.4 37.0 31.4 25.9 20.4
1600
77 62.0 3.7 30.8 24.4 18.0 - - - 56.1 4.1 30.3 22.1 15.9 - - -
72 56.0 3.6 39.5 33.1 26.7 20.3 - - 50.2 4.0 36.9 30.6 24.4 18.2 - -
67 50.0 3.6 48.2 41.8 35.4 29.0 22.6 - 44.4 3.9 43.5 39.2 32.9 26.7 20.5 -
62 44.1 3.5 44.1 44.1 44.1 37.8 31.4 25.0 40.1 3.8 40.1 40.1 40.7 34.4 28.2 22.0
57 43.8 3.5 43.8 43.8 44.2 37.8 31.5 25.1 39.7 3.8 39.7 39.7 40.2 33.9 27.7 21.5
1800
72 57.6 3.7 42.7 35.7 28.7 21.7 - - 51.6 4.0 40.1 33.2 26.3 19.5 - -
67 51.4 3.6 50.5 45.1 38.0 31.0 24.0 - 45.6 3.9 45.2 41.9 35.5 28.6 21.8 -
62 45.3 3.5 45.3 45.3 45.3 38.3 31.3 24.3 41.2 3.8 41.2 41.2 41.5 34.6 27.7 20.8
57 45.0 3.6 45.0 45.0 45.2 38.2 31.2 24.2 40.8 3.8 40.8 40.8 41.0 34.1 27.2 20.4
2000
72 59.1 3.7 46.0 38.3 30.7 23.0 - - 53.0 4.1 43.3 35.8 28.3 20.7 - -
67 52.7 3.7 52.7 48.3 40.7 33.0 25.3 - 46.8 4.0 46.8 44.6 38.1 30.6 23.1 -
62 46.5 3.6 46.5 46.5 46.5 38.9 31.2 23.6 42.2 3.9 42.2 42.2 42.2 34.7 27.2 19.6
57 46.2 3.6 46.2 46.2 46.2 38.6 30.9 23.2 41.8 3.9 41.8 41.8 41.8 34.3 26.8 19.2

528150-YTG-G-1210
38 Johnson Controls Unitary Products
115°F 125°F
1000
77 46.0 4.3 16.4 14.3 10.4 - - - 41.4 4.7 13.7 12.1 8.7 - - -
72 40.8 4.2 24.6 20.6 16.7 12.7 - - 36.3 4.5 22.4 18.6 14.8 11.0 - -
67 35.6 4.1 32.8 26.9 23.0 19.0 15.1 - 31.2 4.3 31.2 24.7 20.9 17.1 13.2 -
62 33.1 4.0 33.1 33.1 28.0 24.1 20.1 16.2 29.9 4.3 29.9 29.9 25.1 21.3 17.5 13.7
1200
77 47.4 4.4 20.8 16.2 11.5 - - - 42.3 4.7 19.1 14.2 9.7 - - -
72 42.0 4.2 27.8 23.1 18.5 13.8 - - 37.1 4.5 25.5 21.0 16.5 11.9 - -
67 36.7 4.1 34.8 30.1 25.5 20.8 16.2 - 31.9 4.4 31.9 27.8 23.3 18.7 14.2 -
62 34.0 4.0 34.0 34.0 31.1 26.4 21.8 17.1 30.6 4.3 30.6 30.6 28.0 23.5 19.0 14.4
57 33.6 4.0 33.6 33.6 30.2 25.5 20.8 16.2 30.1 4.3 30.1 30.1 26.6 22.0 17.5 13.0
1400
77 48.7 4.4 25.3 18.0 12.6 - - - 43.2 4.8 24.6 16.2 10.7 - - -
72 43.2 4.3 31.0 25.7 20.3 14.9 - - 37.9 4.6 28.6 23.4 18.1 12.9 - -
67 37.8 4.1 36.8 33.3 28.0 22.6 17.2 - 32.5 4.4 32.5 30.8 25.6 20.4 15.2 -
62 35.0 4.1 35.0 35.0 34.1 28.8 23.4 18.0 31.3 4.3 31.3 31.3 30.9 25.6 20.4 15.2
57 34.6 4.1 34.6 34.6 33.1 27.8 22.4 17.0 30.7 4.3 30.7 30.7 29.3 24.1 18.8 13.6
1600
77 50.1 4.4 29.7 19.9 13.8 - - - 44.1 4.8 30.1 18.3 11.7 - - -
72 44.4 4.3 34.3 28.2 22.1 16.0 - - 38.7 4.6 31.7 25.7 19.8 13.9 - -
67 38.8 4.2 38.8 36.5 30.5 24.4 18.3 - 33.2 4.4 33.2 33.2 28.0 22.1 16.2 -
62 36.0 4.1 36.0 36.0 37.2 31.1 25.0 19.0 31.9 4.4 31.9 31.9 31.9 27.8 21.9 16.0
57 35.5 4.1 35.5 35.5 36.1 30.0 23.9 17.9 31.4 4.4 31.4 31.4 31.4 26.1 20.2 14.2
1800
72 45.6 4.4 37.5 30.7 24.0 17.2 - - 39.7 4.7 34.8 28.2 21.6 15.0 - -
67 39.9 4.2 39.9 38.7 33.0 26.3 19.6 - 34.1 4.5 34.1 34.1 30.5 23.9 17.3 -
62 37.0 4.1 37.0 37.0 37.6 30.8 24.1 17.4 32.8 4.4 32.8 32.8 32.8 27.1 20.5 13.9
57 36.5 4.1 36.5 36.5 36.8 30.0 23.3 16.5 32.2 4.4 32.2 32.2 32.2 25.9 19.3 12.7
2000
72 46.8 4.4 40.6 33.2 25.8 18.4 - - 40.7 4.8 38.0 30.7 23.4 16.2 - -
67 40.9 4.3 40.9 40.9 35.6 28.2 20.8 - 35.0 4.6 35.0 35.0 33.0 25.8 18.5 -
62 37.9 4.2 37.9 37.9 37.9 30.5 23.1 15.7 33.6 4.5 33.6 33.6 33.6 26.4 19.1 11.8
57 37.4 4.2 37.4 37.4 37.4 30.0 22.6 15.2 33.1 4.5 33.1 33.1 33.1 25.8 18.5 11.2
1. These capacities are gross ratings. For net capacity, deduct air blower motor, MBh = 3.415 x kW. Refer to the appropriate Blower
Performance Table for the kW of the supply air blower motor.
2. These ratings include the condenser fan motors (total 1 kW) and the compressor motors but not the supply air blower motor.
ZH049 (4.0 Ton) (Continued)
Air on
Evaporator Coil
Temperature of Air on Condenser Coil
Total
Capacity1
(MBh)
Total
Input
(kW)2
Sensible Capacity (MBh) Total
Capacity1
(MBh)
Total
Input
(kW)2
Sensible Capacity (MBh)
CFM WB
(°F)
Return Dry Bulb (°F) Return Dry Bulb (°F)
90 85 80 75 70 65 90 85 80 75 70 65

528150-YTG-G-1210
Johnson Controls Unitary Products 39
ZH061 (5.0 Ton)
Air on
Evaporator Coil
Temperature of Air on Condenser Coil
Total
Capacity1
(MBh)
Total
Input
(kW)2
Sensible Capacity (MBh) Total
Capacity1
(MBh)
Total
Input
(kW)2
Sensible Capacity (MBh)
CFM WB
(°F)
Return Dry Bulb (°F) Return Dry Bulb (°F)
90 85 80 75 70 65 90 85 80 75 70 65
75°F 85°F
1250
77 78.2 3.8 32.8 26.4 20.4 - - - 73.3 4.2 30.6 24.8 19.0 - - -
72 71.8 3.7 41.4 35.5 29.5 23.5 - - 67.1 4.1 39.5 33.7 27.9 22.1 - -
67 65.4 3.7 50.0 44.5 38.5 32.5 26.6 - 60.9 4.1 48.4 42.6 36.8 31.0 25.2 -
62 60.4 3.7 60.4 56.6 46.9 41.0 35.0 29.0 56.0 4.0 56.0 54.1 45.2 39.4 33.6 27.8
1500
77 80.7 3.8 36.2 29.3 22.5 - - - 75.7 4.2 34.3 27.6 20.9 - - -
72 74.1 3.7 46.1 39.3 32.4 25.6 - - 69.3 4.2 44.2 37.4 30.7 24.0 - -
67 67.5 3.7 56.1 49.2 42.4 35.5 28.7 - 62.9 4.1 54.0 47.3 40.6 33.9 27.1 -
62 62.3 3.7 62.3 59.8 51.6 44.8 37.9 31.1 57.8 4.0 57.8 56.5 49.8 43.1 36.4 29.7
57 60.9 3.6 60.9 60.2 53.3 46.5 39.6 32.8 57.1 4.0 57.1 56.7 50.0 43.2 36.5 29.8
1750
77 83.2 3.8 39.5 32.3 24.5 - - - 78.0 4.3 38.1 30.4 22.8 - - -
72 76.4 3.7 50.9 43.1 35.4 27.6 - - 71.4 4.2 48.8 41.2 33.6 25.9 - -
67 69.6 3.7 62.2 54.0 46.2 38.5 30.7 - 64.9 4.1 59.6 51.9 44.3 36.7 29.0 -
62 64.2 3.7 64.2 62.9 56.3 48.6 40.9 33.1 59.6 4.1 59.6 59.0 54.4 46.8 39.1 31.5
57 62.8 3.6 62.8 62.4 58.2 50.4 42.7 35.0 58.9 4.0 58.9 58.7 54.6 46.9 39.3 31.7
2000
77 85.6 3.8 42.9 35.2 26.6 - - - 80.4 4.3 41.8 33.3 24.7 - - -
72 78.6 3.7 55.6 46.9 38.3 29.7 - - 73.6 4.2 53.5 44.9 36.4 27.8 - -
67 71.6 3.7 68.3 58.7 50.1 41.5 32.8 - 66.8 4.1 65.1 56.6 48.0 39.5 31.0 -
62 66.1 3.7 66.1 66.1 61.0 52.4 43.8 35.2 61.4 4.1 61.4 61.4 59.0 50.4 41.9 33.3
57 64.7 3.6 64.7 64.7 63.0 54.4 45.8 37.2 60.7 4.0 60.7 60.7 59.2 50.6 42.1 33.5
2250
72 80.8 3.8 59.9 50.4 41.0 31.6 - - 75.2 4.2 57.7 48.3 38.9 29.6 - -
67 73.6 3.7 72.0 63.0 53.6 44.2 34.7 - 68.2 4.1 67.4 60.8 51.4 42.0 32.7 -
62 68.0 3.7 68.0 68.0 65.4 56.0 46.6 37.1 62.7 4.1 62.7 62.7 61.5 52.1 42.8 33.4
57 66.5 3.7 66.5 66.5 65.7 56.2 46.8 37.4 62.0 4.1 62.0 62.0 61.2 51.8 42.5 33.1
2500
72 83.1 3.8 64.2 53.9 43.7 33.5 - - 76.7 4.2 61.9 51.7 41.5 31.3 - -
67 75.6 3.7 75.6 67.3 57.1 46.9 36.6 - 69.7 4.1 69.7 65.0 54.8 44.6 34.4 -
62 69.8 3.7 69.8 69.8 69.8 59.6 49.4 39.1 64.0 4.1 64.0 64.0 64.0 53.8 43.6 33.4
57 68.3 3.7 68.3 68.3 68.3 58.1 47.8 37.6 63.3 4.1 63.3 63.3 63.3 53.1 42.9 32.7
95°F 105°F
1250
77 68.4 4.7 28.3 23.1 17.5 - - - 63.0 5.1 24.9 21.4 15.9 - - -
72 62.4 4.6 37.6 31.9 26.3 20.7 - - 57.2 5.0 35.4 29.9 24.4 18.9 - -
67 56.5 4.5 46.9 40.8 35.2 29.5 23.9 - 51.5 4.8 45.9 38.5 33.0 27.5 22.0 -
62 51.6 4.4 51.6 51.6 43.5 37.9 32.3 26.7 47.3 4.7 47.3 47.3 40.6 35.1 29.6 24.1
1500
77 70.7 4.7 32.4 25.9 19.3 - - - 65.0 5.1 30.5 24.0 17.6 - - -
72 64.5 4.6 42.2 35.6 29.0 22.5 - - 59.1 5.0 40.0 33.5 27.0 20.6 - -
67 58.3 4.5 51.9 45.3 38.8 32.2 25.6 - 53.1 4.8 49.4 43.0 36.5 30.1 23.6 -
62 53.3 4.4 53.3 53.3 48.0 41.4 34.9 28.3 48.9 4.8 48.9 48.9 44.9 38.5 32.0 25.5
57 53.3 4.4 53.3 53.1 46.6 40.0 33.5 26.9 49.9 4.7 49.9 49.2 42.7 36.3 29.8 23.4
1750
77 72.9 4.7 36.6 28.6 21.1 - - - 67.1 5.2 36.1 26.7 19.3 - - -
72 66.5 4.6 46.8 39.3 31.7 24.2 - - 60.9 5.0 44.5 37.1 29.7 22.2 - -
67 60.2 4.5 57.0 49.9 42.4 34.9 27.4 - 54.8 4.9 53.0 47.5 40.1 32.6 25.2 -
62 55.0 4.4 55.0 55.0 52.5 44.9 37.4 29.9 50.4 4.8 50.4 50.4 49.3 41.9 34.4 27.0
57 55.0 4.4 55.0 54.9 50.9 43.4 35.9 28.4 51.5 4.8 51.5 51.1 46.9 39.5 32.0 24.6
2000
77 75.1 4.7 40.7 31.3 22.9 - - - 69.1 5.2 41.6 29.3 21.0 - - -
72 68.6 4.6 51.4 42.9 34.4 26.0 - - 62.8 5.1 49.1 40.7 32.3 23.9 - -
67 62.0 4.5 62.0 54.5 46.0 37.5 29.1 - 56.5 4.9 56.5 52.0 43.6 35.2 26.8 -
62 56.7 4.5 56.7 56.7 56.9 48.5 40.0 31.5 51.9 4.8 51.9 51.9 53.6 45.3 36.9 28.5
57 56.7 4.4 56.7 56.7 55.3 46.8 38.3 29.9 53.0 4.8 53.0 53.0 51.0 42.7 34.3 25.9
2250
72 69.5 4.7 55.5 46.2 36.8 27.5 - - 63.4 5.1 53.1 43.9 34.6 25.4 - -
67 62.8 4.5 62.8 58.5 49.2 39.9 30.6 - 57.0 4.9 57.0 54.5 46.8 37.6 28.3 -
62 57.4 4.5 57.4 57.4 57.6 48.3 38.9 29.6 52.5 4.8 52.5 52.5 53.3 44.1 34.9 25.6
57 57.5 4.4 57.5 57.5 56.8 47.4 38.1 28.8 53.5 4.8 53.5 53.5 52.6 43.3 34.1 24.9
2500
72 70.4 4.7 59.6 49.4 39.2 29.1 - - 64.1 5.1 57.1 47.1 37.0 26.9 - -
67 63.7 4.6 63.7 62.6 52.4 42.2 32.1 - 57.6 4.9 57.6 57.0 50.0 39.9 29.8 -
62 58.2 4.5 58.2 58.2 58.2 48.1 37.9 27.7 53.0 4.8 53.0 53.0 53.0 42.9 32.8 22.8
57 58.3 4.5 58.3 58.3 58.3 48.1 37.9 27.8 54.1 4.8 54.1 54.1 54.1 44.0 33.9 23.9

528150-YTG-G-1210
40 Johnson Controls Unitary Products
115°F 125°F
1250
77 57.6 5.5 21.5 19.6 14.2 - - - 52.1 6.0 20.7 17.0 12.6 - - -
72 52.0 5.3 33.3 27.9 22.5 17.1 - - 46.8 5.7 31.1 25.8 20.6 15.3 - -
67 46.5 5.2 45.0 36.1 30.8 25.4 20.0 - 41.5 5.5 41.5 33.8 28.6 23.3 18.0 -
62 43.1 5.0 43.1 43.1 37.6 32.2 26.8 21.4 38.8 5.4 38.8 38.8 36.3 29.4 24.1 18.8
1500
77 59.4 5.6 28.5 22.2 15.8 - - - 53.8 6.0 28.3 20.3 14.1 - - -
72 53.7 5.4 37.7 31.4 25.0 18.7 - - 48.3 5.8 35.5 29.3 23.0 16.8 - -
67 48.0 5.2 47.0 40.6 34.2 27.9 21.5 - 42.8 5.6 42.8 38.2 32.0 25.7 19.5 -
62 44.5 5.1 44.5 44.5 41.8 35.5 29.1 22.8 40.0 5.4 40.0 40.0 38.8 32.5 26.3 20.0
57 46.5 5.1 46.5 45.3 38.9 32.5 26.2 19.8 43.0 5.5 43.0 41.3 35.1 28.8 22.6 16.3
1750
77 61.3 5.6 35.5 24.8 17.4 - - - 55.4 6.1 35.8 23.6 15.6 - - -
72 55.4 5.4 42.2 34.9 27.6 20.3 - - 49.8 5.8 40.0 32.7 25.5 18.3 - -
67 49.5 5.2 49.0 45.1 37.7 30.4 23.1 - 44.1 5.6 44.1 42.6 35.4 28.2 20.9 -
62 45.8 5.1 45.8 45.8 46.1 38.8 31.4 24.1 41.3 5.5 41.3 41.3 41.3 35.7 28.5 21.2
57 47.9 5.1 47.9 47.3 42.9 35.5 28.2 20.9 44.3 5.5 44.3 43.5 38.8 31.6 24.4 17.1
2000
77 63.1 5.7 42.5 27.3 19.0 - - - 57.1 6.1 43.4 26.9 17.1 - - -
72 57.0 5.5 46.7 38.4 30.1 21.8 - - 51.3 5.9 44.4 36.2 28.0 19.8 - -
67 51.0 5.3 51.0 49.5 41.2 32.9 24.6 - 45.4 5.7 45.4 45.4 38.8 30.6 22.4 -
62 47.2 5.2 47.2 47.2 50.4 42.1 33.8 25.5 42.5 5.5 42.5 42.5 42.5 38.9 30.6 22.4
57 49.3 5.2 49.3 49.3 46.8 38.5 30.2 21.9 45.7 5.6 45.7 45.7 42.6 34.4 26.2 17.9
2250
72 57.4 5.5 50.7 41.6 32.4 23.3 - - 51.3 5.9 48.3 39.3 30.2 21.2 - -
67 51.2 5.3 51.2 50.5 44.4 35.2 26.1 - 45.4 5.7 45.4 45.4 42.0 32.9 23.9 -
62 47.5 5.2 47.5 47.5 49.1 39.9 30.8 21.6 42.5 5.5 42.5 42.5 42.5 35.7 26.7 17.6
57 49.6 5.2 49.6 49.6 48.4 39.2 30.1 20.9 45.7 5.6 45.7 45.7 44.2 35.1 26.0 17.0
2500
72 57.7 5.5 54.7 44.7 34.8 24.8 - - 51.3 5.9 51.3 42.4 32.5 22.6 - -
67 51.5 5.3 51.5 51.5 47.5 37.6 27.6 - 45.4 5.7 45.4 45.4 45.1 35.2 25.3 -
62 47.7 5.2 47.7 47.7 47.7 37.8 27.8 17.8 42.5 5.6 42.5 42.5 42.5 32.6 22.7 12.9
57 49.9 5.2 49.9 49.9 49.9 39.9 29.9 20.0 45.7 5.6 45.7 45.7 45.7 35.8 25.9 16.1
1. These capacities are gross ratings. For net capacity, deduct air blower motor, MBh = 3.415 x kW. Refer to the appropriate Blower
Performance Table for the kW of the supply air blower motor.
2. These ratings include the condenser fan motors (total 1 kW) and the compressor motors but not the supply air blower motor.
ZH061 (5.0 Ton) (Continued)
Air on
Evaporator Coil
Temperature of Air on Condenser Coil
Total
Capacity1
(MBh)
Total
Input
(kW)2
Sensible Capacity (MBh) Total
Capacity1
(MBh)
Total
Input
(kW)2
Sensible Capacity (MBh)
CFM WB
(°F)
Return Dry Bulb (°F) Return Dry Bulb (°F)
90 85 80 75 70 65 90 85 80 75 70 65

528150-YTG-G-1210
Johnson Controls Unitary Products 41
ZH078 (6.5 Ton)
Air on
Evaporator Coil
Temperature of Air on Condenser Coil
Total
Capacity1
(MBh)
Total
Input
(kW)2
Sensible Capacity (MBh) Total
Capacity1
(MBh)
Total
Input
(kW)2
Sensible Capacity (MBh)
CFM WB
(°F)
Return Dry Bulb (°F) Return Dry Bulb (°F)
90 85 80 75 70 65 90 85 80 75 70 65
75°F 85°F
1625
77 100.1 4.7 38.5 33.6 28.8 - - - 98.1 5.3 39.7 32.9 26.1 - - -
72 92.7 4.7 49.4 44.5 39.7 34.9 - - 89.4 5.3 50.8 44.0 37.2 30.4 - -
67 85.4 4.7 60.2 55.4 50.6 45.7 40.9 - 80.6 5.2 61.9 55.1 48.3 41.5 34.7 -
62 74.8 4.7 74.8 69.6 61.2 56.4 51.6 46.7 72.6 5.2 72.6 68.6 58.8 52.1 45.3 38.5
1950
77 105.7 4.7 47.6 39.7 31.8 - - - 102.0 5.3 44.7 36.8 28.8 - - -
72 97.9 4.7 59.7 51.8 43.9 35.9 - - 92.9 5.3 57.0 49.0 41.0 33.1 - -
67 90.1 4.7 71.7 63.8 55.9 48.0 40.1 - 83.9 5.3 69.2 61.2 53.3 45.3 37.3 -
62 79.0 4.7 79.0 75.6 67.6 59.7 51.8 43.9 75.5 5.2 75.5 72.8 64.9 56.9 48.9 41.0
57 77.8 4.7 77.8 79.4 72.1 64.2 56.3 48.4 75.3 5.2 75.3 75.3 67.7 59.7 51.7 43.8
2275
77 111.4 4.7 56.8 45.8 34.8 - - - 105.9 5.3 49.8 40.6 31.5 - - -
72 103.1 4.7 70.0 59.0 48.0 37.0 - - 96.5 5.3 63.1 54.0 44.8 35.7 - -
67 94.8 4.8 83.2 72.2 61.2 50.2 39.2 - 87.1 5.3 76.5 67.3 58.2 49.1 39.9 -
62 83.3 4.7 83.3 81.5 74.1 63.1 52.1 41.1 78.4 5.2 78.4 77.1 70.9 61.7 52.6 43.5
57 82.0 4.7 82.0 82.8 78.9 67.9 56.9 46.0 78.2 5.2 78.2 78.2 74.0 64.8 55.7 46.5
2600
77 117.0 4.7 66.0 51.9 37.8 - - - 109.8 5.3 54.8 44.5 34.1 - - -
72 108.3 4.7 80.3 66.2 52.2 38.1 - - 100.1 5.3 69.3 58.9 48.6 38.3 - -
67 99.5 4.8 94.6 80.5 66.5 52.4 38.4 - 90.3 5.3 83.8 73.4 63.1 52.8 42.5 -
62 87.5 4.7 87.5 87.5 80.5 66.4 52.4 38.3 81.3 5.2 81.3 81.3 76.9 66.6 56.3 45.9
57 86.2 4.7 86.2 86.2 85.7 71.7 57.6 43.6 81.1 5.2 81.1 81.1 80.2 69.9 59.6 49.3
2925
72 110.3 4.7 82.3 69.0 55.6 42.3 - - 102.7 5.3 74.5 63.2 51.8 40.5 - -
67 101.4 4.8 99.0 84.2 70.9 57.6 44.2 - 92.7 5.3 89.4 78.6 67.3 55.9 44.6 -
62 89.1 4.7 89.1 89.1 85.6 72.3 58.9 45.6 83.4 5.3 83.4 83.4 81.2 69.9 58.5 47.2
57 87.7 4.7 87.7 87.7 87.5 74.2 60.9 47.5 83.3 5.2 83.3 83.3 82.8 71.5 60.1 48.8
3250
72 112.3 4.7 84.4 71.7 59.1 46.5 - - 105.4 5.3 79.8 67.4 55.0 42.7 - -
67 103.3 4.7 103.3 88.0 75.3 62.7 50.1 - 95.1 5.3 95.1 83.8 71.4 59.1 46.7 -
62 90.7 4.7 90.7 90.7 90.7 78.1 65.5 52.8 85.6 5.3 85.6 85.6 85.6 73.2 60.8 48.4
57 89.3 4.7 89.3 89.3 89.3 76.7 64.1 51.4 85.4 5.3 85.4 85.4 85.4 73.1 60.7 48.3
95°F 105°F
1625
77 96.1 5.9 41.0 32.2 23.5 - - - 87.2 6.5 36.1 29.5 21.5 - - -
72 86.0 5.8 52.3 43.5 34.8 26.0 - - 78.4 6.3 48.5 40.4 32.4 24.4 - -
67 75.9 5.8 63.6 54.8 46.1 37.3 28.6 - 69.5 6.2 60.8 51.4 43.4 35.4 27.4 -
62 70.3 5.8 70.3 67.6 56.5 47.7 39.0 30.2 63.1 6.1 63.1 61.7 53.8 45.8 37.8 29.8
1950
77 98.3 6.0 41.8 33.8 25.8 - - - 89.3 6.5 39.9 31.7 23.6 - - -
72 88.0 5.9 54.3 46.2 38.2 30.2 - - 80.2 6.4 51.9 43.8 35.7 27.6 - -
67 77.7 5.8 66.7 58.7 50.6 42.6 34.6 - 71.2 6.3 64.0 55.9 47.8 39.7 31.5 -
62 71.9 5.8 71.9 70.1 62.1 54.1 46.0 38.0 64.6 6.2 64.6 63.7 59.2 51.1 43.0 34.8
57 72.8 5.7 72.8 71.3 63.3 55.3 47.2 39.2 67.1 6.2 67.1 66.3 58.2 50.1 41.9 33.8
2275
77 100.5 6.0 42.7 35.4 28.1 - - - 91.3 6.5 43.6 34.0 25.8 - - -
72 89.9 5.9 56.3 49.0 41.7 34.4 - - 82.1 6.4 55.4 47.2 38.9 30.7 - -
67 79.4 5.8 69.8 62.5 55.2 47.9 40.6 - 72.8 6.3 67.2 60.4 52.1 43.9 35.7 -
62 73.5 5.8 73.5 72.6 67.7 60.4 53.1 45.8 66.1 6.2 66.1 65.6 64.6 56.4 48.1 39.9
57 74.5 5.7 74.5 73.7 69.0 61.7 54.4 47.1 68.7 6.2 68.7 68.3 63.5 55.3 47.0 38.8
2600
77 102.6 6.0 43.6 37.0 30.4 - - - 93.4 6.5 47.4 36.3 27.9 - - -
72 91.9 5.9 58.2 51.7 45.1 38.5 - - 83.9 6.4 58.9 50.6 42.2 33.8 - -
67 81.1 5.8 72.9 66.3 59.8 53.2 46.6 - 74.5 6.3 70.4 64.8 56.5 48.1 39.8 -
62 75.1 5.8 75.1 75.1 73.3 66.7 60.2 53.6 67.5 6.2 67.5 67.5 70.0 61.6 53.3 44.9
57 76.1 5.8 76.1 76.1 74.7 68.1 61.6 55.0 70.2 6.2 70.2 70.2 68.8 60.5 52.1 43.7
2925
72 95.2 5.9 66.8 57.4 48.0 38.7 - - 86.3 6.5 65.6 55.3 45.1 34.8 - -
67 84.0 5.8 79.9 73.0 63.7 54.3 45.0 - 76.6 6.3 74.5 69.9 60.4 50.1 39.9 -
62 77.8 5.8 77.8 77.8 76.9 67.5 58.2 48.8 69.4 6.2 69.4 69.4 70.7 60.4 50.2 39.9
57 78.8 5.8 78.8 78.8 78.1 68.8 59.4 50.1 72.2 6.3 72.2 72.2 71.5 61.2 51.0 40.7
3250
72 98.5 5.9 75.3 63.1 51.0 38.8 - - 88.6 6.5 72.3 60.1 48.0 35.8 - -
67 87.0 5.9 87.0 79.7 67.6 55.4 43.3 - 78.6 6.4 78.6 75.0 64.2 52.1 40.0 -
62 80.5 5.9 80.5 80.5 80.5 68.4 56.2 44.1 71.3 6.3 71.3 71.3 71.3 59.2 47.1 34.9
57 81.6 5.8 81.6 81.6 81.6 69.4 57.3 45.1 74.1 6.3 74.1 74.1 74.1 62.0 49.9 37.7

528150-YTG-G-1210
42 Johnson Controls Unitary Products
115°F 125°F
1625
77 78.3 7.0 31.2 26.7 19.5 - - - 69.4 7.5 24.9 23.7 17.5 - - -
72 70.7 6.8 44.7 37.4 30.1 22.9 - - 63.1 7.3 40.9 34.3 27.8 21.3 - -
67 63.2 6.7 58.1 48.0 40.8 33.5 26.2 - 56.8 7.1 56.8 44.7 38.1 31.6 25.1 -
62 55.8 6.5 55.8 55.8 51.1 43.9 36.6 29.3 48.6 6.9 48.6 48.6 48.6 41.9 35.4 28.9
1950
77 80.3 7.0 37.9 29.7 21.4 - - - 71.3 7.6 36.4 27.6 19.3 - - -
72 72.5 6.9 49.6 41.4 33.2 24.9 - - 64.8 7.4 47.3 39.0 30.7 22.3 - -
67 64.7 6.7 61.4 53.1 44.9 36.7 28.5 - 58.3 7.2 58.3 50.4 42.1 33.7 25.4 -
62 57.2 6.6 57.2 57.2 56.3 48.1 39.9 31.6 49.9 6.9 49.9 49.9 49.9 45.1 36.8 28.5
57 61.4 6.6 61.4 61.3 53.1 44.9 36.7 28.4 55.7 7.1 55.7 55.7 48.0 39.7 31.4 23.1
2275
77 82.2 7.1 44.6 32.6 23.4 - - - 73.1 7.6 47.8 31.5 21.1 - - -
72 74.2 6.9 54.6 45.4 36.2 27.0 - - 66.4 7.4 53.8 43.6 33.5 23.4 - -
67 66.3 6.8 64.6 58.2 49.1 39.9 30.7 - 59.7 7.3 59.7 56.1 46.0 35.9 25.7 -
62 58.6 6.6 58.6 58.6 61.5 52.3 43.1 34.0 51.2 7.0 51.2 51.2 51.2 48.3 38.2 28.0
57 62.9 6.7 62.9 62.9 58.0 48.8 39.6 30.5 57.1 7.1 57.1 57.1 52.5 42.4 32.3 22.1
2600
77 84.1 7.1 51.3 35.5 25.4 - - - 74.9 7.7 59.3 35.4 22.9 - - -
72 76.0 7.0 59.6 49.4 39.3 29.1 - - 68.1 7.5 60.2 48.3 36.4 24.5 - -
67 67.9 6.8 67.9 63.3 53.2 43.1 32.9 - 61.2 7.3 61.2 61.2 49.9 38.0 26.0 -
62 60.0 6.6 60.0 60.0 66.7 56.6 46.4 36.3 52.4 7.1 52.4 52.4 52.4 51.5 39.6 27.6
57 64.4 6.7 64.4 64.4 62.9 52.8 42.6 32.5 58.5 7.2 58.5 58.5 57.0 45.1 33.1 21.2
2925
72 77.4 7.0 64.4 53.3 42.1 31.0 - - 68.5 7.5 63.2 51.2 39.2 27.2 - -
67 69.1 6.8 69.1 66.8 57.0 45.9 34.8 - 61.6 7.3 61.6 61.6 53.7 41.7 29.7 -
62 61.1 6.7 61.1 61.1 64.4 53.3 42.2 31.0 52.7 7.1 52.7 52.7 52.7 46.2 34.2 22.1
57 65.6 6.7 65.6 65.6 64.8 53.7 42.5 31.4 58.9 7.2 58.9 58.9 58.2 46.1 34.1 22.1
3250
72 78.8 7.0 69.2 57.1 45.0 32.9 - - 68.9 7.6 66.2 54.1 42.0 29.9 - -
67 70.3 6.9 70.3 70.3 60.9 48.8 36.6 - 62.0 7.4 62.0 62.0 57.6 45.5 33.3 -
62 62.2 6.7 62.2 62.2 62.2 50.0 37.9 25.8 53.0 7.1 53.0 53.0 53.0 40.9 28.8 16.7
57 66.7 6.8 66.7 66.7 66.7 54.6 42.5 30.3 59.3 7.2 59.3 59.3 59.3 47.2 35.1 23.0
1. These capacities are gross ratings. For net capacity, deduct air blower motor, MBh = 3.415 x kW. Refer to the appropriate Blower
Performance Table for the kW of the supply air blower motor.
2. These ratings include the condenser fan motors (total 1 kW) and the compressor motors but not the supply air blower motor.
ZH078 (6.5 Ton) (Continued)
Air on
Evaporator Coil
Temperature of Air on Condenser Coil
Total
Capacity1
(MBh)
Total
Input
(kW)2
Sensible Capacity (MBh) Total
Capacity1
(MBh)
Total
Input
(kW)2
Sensible Capacity (MBh)
CFM WB
(°F)
Return Dry Bulb (°F) Return Dry Bulb (°F)
90 85 80 75 70 65 90 85 80 75 70 65

528150-YTG-G-1210
Johnson Controls Unitary Products 43
ZH090 (7.5 Ton)
Air on
Evaporator Coil
Temperature of Air on Condenser Coil
Total
Capacity1
(MBh)
Total
Input
(kW)2
Sensible Capacity (MBh) Total
Capacity1
(MBh)
Total
Input
(kW)2
Sensible Capacity (MBh)
CFM WB
(°F)
Return Dry Bulb (°F) Return Dry Bulb (°F)
90 85 80 75 70 65 90 85 80 75 70 65
75°F 85°F
1875
77 113.8 5.8 49.0 41.0 33.1 - - - 112.1 6.5 46.6 38.6 30.6 - - -
72 106.0 5.8 62.6 54.6 46.7 38.7 - - 102.9 6.4 59.9 51.9 43.9 35.9 - -
67 98.1 5.8 76.2 68.3 60.3 52.3 44.4 - 93.8 6.4 73.2 65.2 57.2 49.2 41.2 -
62 86.5 5.8 86.5 80.4 71.9 64.0 56.0 48.1 83.9 6.4 83.9 79.0 68.5 60.5 52.5 44.4
2250
77 121.4 5.8 54.8 45.5 36.3 - - - 116.8 6.5 51.9 42.7 33.5 - - -
72 112.9 5.8 69.7 60.4 51.2 41.9 - - 107.3 6.4 66.5 57.2 48.0 38.8 - -
67 104.5 5.8 84.6 75.3 66.1 56.8 47.5 - 97.7 6.4 81.0 71.8 62.6 53.3 44.1 -
62 92.2 5.8 92.2 88.1 78.8 69.6 60.3 51.0 87.5 6.4 87.5 84.1 74.9 65.7 56.5 47.3
57 90.4 5.8 90.4 91.7 85.4 76.2 66.9 57.6 87.7 6.4 87.7 87.7 80.0 70.7 61.5 52.3
2625
77 128.9 5.8 60.6 50.0 39.4 - - - 121.5 6.5 57.2 46.8 36.3 - - -
72 119.9 5.8 76.8 66.2 55.6 45.0 - - 111.6 6.5 73.0 62.6 52.1 41.7 - -
67 110.9 5.9 93.0 82.4 71.9 61.3 50.7 - 101.7 6.4 88.8 78.4 67.9 57.5 47.1 -
62 97.9 5.9 97.9 95.8 85.7 75.1 64.5 54.0 91.0 6.4 91.0 89.3 81.4 70.9 60.5 50.1
57 96.1 5.8 96.1 96.8 92.9 82.3 71.7 61.1 91.2 6.4 91.2 91.2 86.8 76.4 66.0 55.5
3000
77 136.5 5.8 66.4 54.5 42.6 - - - 126.2 6.5 62.5 50.8 39.2 - - -
72 126.9 5.8 83.9 72.0 60.1 48.2 - - 115.9 6.5 79.5 67.9 56.3 44.6 - -
67 117.3 5.9 101.4 89.5 77.6 65.7 53.8 - 105.6 6.5 96.6 85.0 73.3 61.7 50.0 -
62 103.6 5.9 103.6 103.6 92.6 80.7 68.8 56.9 94.5 6.4 94.5 94.5 87.8 76.1 64.5 52.9
57 101.8 5.9 101.8 101.8 100.4 88.5 76.6 64.6 94.8 6.4 94.8 94.8 93.7 82.1 70.4 58.8
3375
72 128.9 5.8 88.3 75.7 63.2 50.6 - - 118.6 6.5 84.9 72.3 59.8 47.2 - -
67 119.1 5.8 110.1 94.1 81.6 69.0 56.4 - 108.1 6.5 103.0 90.4 77.9 65.3 52.8 -
62 105.2 5.9 105.2 105.2 99.6 87.0 74.4 61.8 96.7 6.4 96.7 96.7 93.2 80.7 68.1 55.6
57 103.4 5.8 103.4 103.4 102.6 90.1 77.5 64.9 96.9 6.4 96.9 96.9 96.4 83.9 71.3 58.8
3750
72 130.9 5.8 92.7 79.5 66.2 53.0 - - 121.2 6.5 90.2 76.7 63.3 49.8 - -
67 121.0 5.8 118.7 98.7 85.5 72.2 59.0 - 110.5 6.5 109.4 95.9 82.4 69.0 55.5 -
62 106.8 5.8 106.8 106.8 106.5 93.2 80.0 66.7 98.9 6.4 98.9 98.9 98.7 85.2 71.8 58.3
57 104.9 5.8 104.9 104.9 104.9 91.7 78.4 65.2 99.1 6.4 99.1 99.1 99.1 85.7 72.2 58.7
95°F 105°F
1875
77 110.3 7.1 44.2 36.2 28.1 - - - 103.5 7.7 38.5 33.2 25.2 - - -
72 99.9 7.0 57.2 49.2 41.1 33.0 - - 93.1 7.6 54.2 46.2 38.2 30.3 - -
67 89.5 7.0 70.2 62.2 54.1 46.0 37.9 - 82.7 7.5 69.8 59.2 51.2 43.3 35.3 -
62 81.3 6.9 81.3 77.5 65.0 57.0 48.9 40.8 78.3 7.4 78.3 75.8 62.2 54.2 46.2 38.3
2250
77 112.2 7.1 49.0 39.8 30.7 - - - 103.5 7.8 45.5 36.5 27.4 - - -
72 101.6 7.1 63.2 54.0 44.9 35.7 - - 93.1 7.7 59.6 50.6 41.5 32.5 - -
67 91.0 7.0 77.4 68.2 59.1 49.9 40.7 - 82.7 7.5 73.7 64.7 55.7 46.6 37.6 -
62 82.7 6.9 82.7 80.2 71.0 61.8 52.7 43.5 78.2 7.4 78.2 76.6 67.5 58.5 49.5 40.4
57 84.9 6.9 84.9 83.7 74.5 65.3 56.1 47.0 80.0 7.4 80.0 78.7 69.7 60.7 51.6 42.6
2625
77 114.1 7.2 53.8 43.5 33.2 - - - 103.5 7.8 52.4 39.7 29.6 - - -
72 103.3 7.1 69.2 58.9 48.6 38.4 - - 93.1 7.7 65.0 54.9 44.8 34.7 - -
67 92.5 7.0 84.6 74.3 64.0 53.8 43.5 - 82.7 7.6 77.6 70.2 60.1 50.0 39.9 -
62 84.1 6.9 84.1 82.8 77.0 66.7 56.4 46.2 78.2 7.5 78.2 77.4 72.9 62.8 52.7 42.6
57 86.3 6.9 86.3 85.7 80.8 70.5 60.2 49.9 79.9 7.5 79.9 79.3 75.2 65.1 55.0 44.9
3000
77 115.9 7.2 58.6 47.2 35.8 - - - 103.4 7.9 59.4 43.0 31.8 - - -
72 105.0 7.1 75.2 63.8 52.4 41.0 - - 93.1 7.7 70.5 59.3 48.1 37.0 - -
67 94.0 7.1 91.7 80.4 69.0 57.6 46.3 - 82.7 7.6 81.6 75.7 64.5 53.3 42.1 -
62 85.5 7.0 85.5 85.5 83.0 71.6 60.2 48.8 78.1 7.5 78.1 78.1 78.2 67.1 55.9 44.7
57 87.8 7.0 87.8 87.8 87.0 75.7 64.3 52.9 79.9 7.5 79.9 79.9 80.8 69.6 58.4 47.2
3375
72 108.3 7.1 81.4 68.9 56.4 43.8 - - 97.2 7.8 76.7 64.4 52.1 39.8 - -
67 97.0 7.1 95.9 86.7 74.2 61.7 49.1 - 86.4 7.6 85.8 81.1 69.8 57.5 45.2 -
62 88.2 7.0 88.2 88.2 86.9 74.4 61.9 49.3 81.6 7.5 81.6 81.6 81.7 69.4 57.1 44.8
57 90.5 7.0 90.5 90.5 90.2 77.7 65.1 52.6 83.5 7.5 83.5 83.5 83.9 71.6 59.3 47.0
3750
72 111.6 7.2 87.7 74.0 60.3 46.6 - - 101.3 7.8 82.8 69.4 56.0 42.6 - -
67 100.0 7.1 100.0 93.1 79.4 65.7 52.0 - 90.0 7.7 90.0 86.6 75.0 61.6 48.2 -
62 90.9 7.0 90.9 90.9 90.9 77.2 63.5 49.9 85.1 7.5 85.1 85.1 85.1 71.7 58.3 44.9
57 93.3 7.0 93.3 93.3 93.3 79.7 66.0 52.3 87.0 7.5 87.0 87.0 87.0 73.6 60.2 46.8

528150-YTG-G-1210
44 Johnson Controls Unitary Products
115°F 125°F
1875
77 96.7 8.4 32.9 30.3 22.4 - - - 89.9 9.0 27.0 24.2 19.6 - - -
72 86.3 8.2 51.1 43.3 35.4 27.5 - - 79.5 8.8 48.1 40.3 32.5 24.8 - -
67 75.9 8.0 69.4 56.2 48.4 40.5 32.6 - 69.1 8.5 69.1 53.3 45.5 37.8 30.0 -
62 75.3 7.9 75.3 74.0 59.3 51.5 43.6 35.7 72.2 8.4 72.2 72.2 56.5 48.7 40.9 33.2
2250
77 94.8 8.4 42.0 33.1 24.2 - - - 86.1 9.1 38.7 29.7 20.9 - - -
72 84.6 8.2 56.0 47.1 38.2 29.3 - - 76.1 8.8 52.4 43.7 34.9 26.1 - -
67 74.4 8.1 70.0 61.1 52.2 43.3 34.4 - 66.1 8.6 66.1 57.6 48.8 40.1 31.3 -
62 73.8 7.9 73.8 73.0 64.1 55.2 46.3 37.4 69.3 8.4 69.3 69.3 60.6 51.8 43.1 34.3
57 75.0 7.9 75.0 73.8 64.9 56.0 47.1 38.2 70.1 8.5 70.1 68.9 60.1 51.3 42.6 33.8
2625
77 92.9 8.5 51.1 35.9 26.0 - - - 82.3 9.1 50.5 35.2 22.3 - - -
72 82.9 8.3 60.9 51.0 41.0 31.1 - - 72.7 8.9 56.8 47.0 37.2 27.5 - -
67 72.9 8.1 70.7 66.0 56.1 46.2 36.2 - 63.1 8.6 63.1 61.9 52.1 42.4 32.6 -
62 72.3 8.0 72.3 71.9 68.8 58.9 48.9 39.0 66.4 8.5 66.4 66.4 64.7 54.9 45.2 35.4
57 73.5 8.0 73.5 72.9 69.7 59.8 49.8 39.9 67.1 8.5 67.1 66.5 64.2 54.4 44.6 34.8
3000
77 91.0 8.5 60.2 38.7 27.8 - - - 78.5 9.2 62.2 40.6 23.7 - - -
72 81.2 8.3 65.8 54.8 43.9 32.9 - - 69.3 8.9 61.2 50.4 39.6 28.8 - -
67 71.4 8.2 71.4 70.9 60.0 49.0 38.0 - 60.1 8.7 60.1 60.1 55.5 44.7 33.9 -
62 70.8 8.0 70.8 70.8 73.5 62.6 51.6 40.6 63.5 8.5 63.5 63.5 63.5 58.1 47.3 36.5
57 72.0 8.0 72.0 72.0 74.5 63.5 52.5 41.6 64.1 8.6 64.1 64.1 64.1 57.5 46.7 35.9
3375
72 86.1 8.4 71.9 59.9 47.8 35.7 - - 75.0 9.0 67.2 55.3 43.5 31.7 - -
67 75.7 8.2 75.7 75.5 65.3 53.3 41.2 - 65.1 8.7 65.1 65.1 60.9 49.1 37.2 -
62 75.1 8.1 75.1 75.1 76.5 64.4 52.3 40.3 68.6 8.6 68.6 68.6 68.6 59.4 47.5 35.7
57 76.4 8.1 76.4 76.4 77.6 65.5 53.5 41.4 69.3 8.6 69.3 69.3 69.3 59.5 47.6 35.8
3750
72 91.0 8.4 78.0 64.9 51.7 38.5 - - 80.7 9.0 73.2 60.3 47.4 34.5 - -
67 80.1 8.2 80.1 80.1 70.7 57.5 44.4 - 70.1 8.8 70.1 70.1 66.3 53.4 40.5 -
62 79.4 8.1 79.4 79.4 79.4 66.2 53.1 39.9 73.6 8.6 73.6 73.6 73.6 60.7 47.8 34.9
57 80.7 8.1 80.7 80.7 80.7 67.6 54.4 41.2 74.4 8.6 74.4 74.4 74.4 61.5 48.6 35.7
1. These capacities are gross ratings. For net capacity, deduct air blower motor, MBh = 3.415 x kW. Refer to the appropriate Blower
Performance Table for the kW of the supply air blower motor.
2. These ratings include the condenser fan motors (total 1 kW) and the compressor motors but not the supply air blower motor.
ZH090 (7.5 Ton) (Continued)
Air on
Evaporator Coil
Temperature of Air on Condenser Coil
Total
Capacity1
(MBh)
Total
Input
(kW)2
Sensible Capacity (MBh) Total
Capacity1
(MBh)
Total
Input
(kW)2
Sensible Capacity (MBh)
CFM WB
(°F)
Return Dry Bulb (°F) Return Dry Bulb (°F)
90 85 80 75 70 65 90 85 80 75 70 65

528150-YTG-G-1210
Johnson Controls Unitary Products 45
ZH102 (8.5 Ton)
Air on
Evaporator Coil
Temperature of Air on Condenser Coil
Total
Capacity1
(MBh)
Total
Input
(kW)2
Sensible Capacity (MBh) Total
Capacity1
(MBh)
Total
Input
(kW)2
Sensible Capacity (MBh)
CFM WB
(°F)
Return Dry Bulb (°F) Return Dry Bulb (°F)
90 85 80 75 70 65 90 85 80 75 70 65
75°F 85°F
2125
77 136.1 6.8 56.6 47.5 38.5 - - - 129.5 7.6 53.8 44.5 35.3 - - -
72 125.7 6.8 71.8 62.8 53.7 44.6 - - 118.8 7.4 68.7 59.5 50.2 41.0 - -
67 115.3 6.7 87.0 78.0 68.9 59.8 50.8 - 108.2 7.3 83.6 74.4 65.2 55.9 46.7 -
62 103.0 6.6 103.0 97.7 85.4 76.4 67.3 58.2 97.7 7.2 97.7 94.4 80.6 71.4 62.1 52.9
2550
77 141.0 6.8 62.8 52.3 41.7 - - - 133.2 7.6 59.7 49.1 38.4 - - -
72 130.2 6.8 79.3 68.7 58.2 47.7 - - 122.3 7.5 75.9 65.3 54.7 44.0 - -
67 119.4 6.7 95.8 85.2 74.7 64.1 53.6 - 111.3 7.3 92.1 81.5 70.9 60.3 49.6 -
62 106.7 6.6 106.7 103.2 92.6 82.1 71.5 61.0 100.5 7.2 100.5 98.3 87.7 77.1 66.4 55.8
57 109.6 6.7 109.6 109.0 91.7 81.2 70.6 60.1 100.7 7.3 100.7 100.4 89.8 79.1 68.5 57.9
2975
77 145.8 6.8 69.0 57.0 45.0 - - - 137.0 7.6 65.6 53.6 41.5 - - -
72 134.6 6.8 86.7 74.7 62.7 50.7 - - 125.7 7.5 83.1 71.1 59.1 47.1 - -
67 123.4 6.7 104.5 92.5 80.5 68.5 56.5 - 114.4 7.4 100.7 88.7 76.6 64.6 52.6 -
62 110.3 6.6 110.3 108.6 99.8 87.8 75.8 63.8 103.3 7.2 103.3 102.2 94.8 82.8 70.7 58.7
57 113.4 6.7 113.4 113.1 98.8 86.8 74.8 62.8 103.5 7.3 103.5 103.3 97.0 85.0 73.0 60.9
3400
77 150.6 6.8 75.2 61.7 48.2 - - - 140.7 7.6 71.5 58.1 44.7 - - -
72 139.1 6.8 94.2 80.7 67.2 53.8 - - 129.1 7.5 90.4 76.9 63.5 50.1 - -
67 127.5 6.7 113.2 99.8 86.3 72.8 59.3 - 117.5 7.4 109.2 95.8 82.4 69.0 55.5 -
62 114.0 6.6 114.0 114.0 107.0 93.5 80.0 66.5 106.1 7.3 106.1 106.1 101.9 88.5 75.0 61.6
57 117.1 6.7 117.1 117.1 105.9 92.4 78.9 65.4 106.3 7.3 106.3 106.3 104.3 90.9 77.4 64.0
3825
72 142.2 6.8 100.6 85.8 71.0 56.1 - - 131.7 7.5 96.9 82.0 67.2 52.3 - -
67 130.4 6.7 123.2 105.9 91.1 76.2 61.4 - 119.9 7.4 115.7 102.0 87.1 72.3 57.5 -
62 116.6 6.7 116.6 116.6 113.1 98.2 83.4 68.6 108.3 7.3 108.3 108.3 106.1 91.3 76.4 61.6
57 119.7 6.8 119.7 119.7 114.1 99.3 84.4 69.6 108.4 7.3 108.4 108.4 107.4 92.6 77.7 62.9
4250
72 145.3 6.8 107.1 90.9 74.7 58.5 - - 134.2 7.6 103.4 87.1 70.9 54.6 - -
67 133.2 6.7 133.2 112.0 95.9 79.7 63.5 - 122.2 7.4 122.2 108.2 91.9 75.6 59.4 -
62 119.1 6.7 119.1 119.1 119.1 103.0 86.8 70.6 110.4 7.3 110.4 110.4 110.4 94.1 77.8 61.6
57 122.3 6.8 122.3 122.3 122.3 106.1 90.0 73.8 110.5 7.4 110.5 110.5 110.5 94.3 78.0 61.8
95°F 105°F
2125
77 122.9 8.3 50.9 41.5 32.2 - - - 112.3 9.0 44.9 38.3 29.0 - - -
72 112.0 8.1 65.5 56.2 46.8 37.4 - - 102.1 8.8 61.8 52.6 43.3 34.1 - -
67 101.1 8.0 80.2 70.8 61.4 52.0 42.6 - 92.0 8.5 78.8 66.9 57.7 48.4 39.2 -
62 92.4 7.8 92.4 91.1 75.7 66.4 57.0 47.6 85.3 8.4 85.3 84.7 69.3 60.1 50.9 41.6
2550
77 125.5 8.3 56.6 45.9 35.1 - - - 114.6 9.0 53.2 42.5 31.9 - - -
72 114.4 8.2 72.5 61.8 51.1 40.4 - - 104.2 8.8 68.9 58.3 47.6 36.9 - -
67 103.2 8.0 88.5 77.8 67.1 56.4 45.7 - 93.9 8.6 84.7 74.0 63.3 52.7 42.0 -
62 94.4 7.8 94.4 93.5 82.8 72.0 61.3 50.6 87.1 8.4 87.1 86.6 76.1 65.5 54.8 44.1
57 91.7 7.8 91.7 91.7 87.8 77.1 66.4 55.7 85.4 8.4 85.4 85.3 78.0 67.3 56.7 46.0
2975
77 128.1 8.3 62.2 50.2 38.1 - - - 116.8 9.1 61.5 46.8 34.7 - - -
72 116.7 8.2 79.5 67.5 55.5 43.4 - - 106.3 8.8 76.0 63.9 51.9 39.8 - -
67 105.4 8.0 96.9 84.8 72.8 60.8 48.7 - 95.7 8.6 90.6 81.1 69.0 56.9 44.8 -
62 96.3 7.9 96.3 95.9 89.8 77.7 65.7 53.7 88.8 8.5 88.8 88.6 82.9 70.8 58.8 46.7
57 93.6 7.8 93.6 93.6 95.3 83.2 71.2 59.1 87.1 8.4 87.1 87.1 84.9 72.8 60.8 48.7
3400
77 130.7 8.4 67.8 54.5 41.1 - - - 119.1 9.1 69.8 51.1 37.5 - - -
72 119.1 8.2 86.5 73.2 59.8 46.4 - - 108.4 8.9 83.1 69.6 56.1 42.6 - -
67 107.5 8.0 105.2 91.9 78.5 65.1 51.8 - 97.6 8.7 96.5 88.2 74.7 61.2 47.6 -
62 98.3 7.9 98.3 98.3 96.8 83.4 70.1 56.7 90.5 8.5 90.5 90.5 89.7 76.2 62.7 49.2
57 95.5 7.8 95.5 95.5 102.7 89.3 76.0 62.6 88.8 8.5 88.8 88.8 91.9 78.4 64.9 51.3
3825
72 121.1 8.3 93.1 78.3 63.4 48.5 - - 108.7 8.9 89.2 74.3 59.4 44.5 - -
67 109.3 8.1 108.2 98.1 83.2 68.4 53.5 - 97.9 8.7 97.3 91.4 79.1 64.2 49.3 -
62 99.9 7.9 99.9 99.9 99.2 84.3 69.5 54.6 90.7 8.5 90.7 90.7 90.3 75.4 60.5 45.6
57 97.2 7.9 97.2 97.2 100.7 85.9 71.0 56.2 89.0 8.5 89.0 89.0 90.6 75.7 60.8 45.9
4250
72 123.2 8.3 99.7 83.3 67.0 50.6 - - 108.9 9.0 95.3 79.0 62.7 46.4 - -
67 111.2 8.2 111.2 104.3 87.9 71.6 55.2 - 98.1 8.8 98.1 94.7 83.5 67.2 50.9 -
62 101.6 8.0 101.6 101.6 101.6 85.3 68.9 52.6 91.0 8.6 91.0 91.0 91.0 74.7 58.4 42.1
57 98.8 8.0 98.8 98.8 98.8 82.4 66.1 49.7 89.3 8.6 89.3 89.3 89.3 73.0 56.7 40.4

528150-YTG-G-1210
46 Johnson Controls Unitary Products
115°F 125°F
2125
77 101.7 9.7 38.8 35.0 25.9 - - - 91.0 10.3 34.9 30.1 22.7 - - -
72 92.3 9.4 58.1 49.0 39.9 30.8 - - 82.4 10.0 54.4 45.4 36.5 27.5 - -
67 82.9 9.1 77.4 63.0 53.9 44.8 35.7 - 73.8 9.7 73.8 59.2 50.2 41.3 32.3 -
62 78.3 8.9 78.3 78.3 62.9 53.8 44.7 35.6 71.2 9.5 71.2 71.2 56.5 47.6 38.6 29.7
2550
77 103.6 9.7 49.8 39.2 28.6 - - - 92.7 10.4 48.3 35.8 25.3 - - -
72 94.1 9.4 65.3 54.7 44.1 33.5 - - 83.9 10.1 61.7 51.1 40.5 30.0 - -
67 84.5 9.2 80.8 70.2 59.6 49.0 38.3 - 75.2 9.7 75.2 66.4 55.8 45.2 34.7 -
62 79.7 9.0 79.7 79.7 69.5 58.9 48.3 37.6 72.4 9.6 72.4 72.4 62.9 52.3 41.7 31.2
57 79.2 9.0 79.2 78.8 68.2 57.6 46.9 36.3 72.9 9.6 72.9 72.3 58.4 47.8 37.2 26.6
2975
77 105.6 9.8 60.8 43.4 31.3 - - - 94.3 10.5 61.6 41.6 27.8 - - -
72 95.8 9.5 72.5 60.4 48.2 36.1 - - 85.4 10.2 69.0 56.8 44.6 32.4 - -
67 86.1 9.2 84.3 77.4 65.2 53.1 40.9 - 76.5 9.8 76.5 73.6 61.4 49.2 37.0 -
62 81.2 9.0 81.2 81.2 76.1 63.9 51.8 39.7 73.7 9.6 73.7 73.7 69.2 57.0 44.9 32.7
57 80.7 9.1 80.7 80.5 74.6 62.5 50.3 38.2 74.2 9.7 74.2 73.9 64.3 52.1 39.9 27.7
3400
77 107.5 9.8 71.8 47.6 34.0 - - - 95.9 10.6 74.9 47.3 30.4 - - -
72 97.6 9.6 79.7 66.1 52.4 38.7 - - 86.8 10.2 76.3 62.5 48.7 34.9 - -
67 87.7 9.3 87.7 84.5 70.9 57.2 43.5 - 77.8 9.9 77.8 77.8 67.0 53.2 39.4 -
62 82.7 9.1 82.7 82.7 82.7 69.0 55.3 41.7 75.0 9.7 75.0 75.0 75.0 61.8 48.0 34.2
57 82.1 9.1 82.1 82.1 81.1 67.4 53.7 40.1 75.4 9.8 75.4 75.4 70.3 56.5 42.6 28.8
3825
72 96.2 9.6 85.3 70.4 55.4 40.5 - - 83.7 10.3 81.4 66.4 51.4 36.4 - -
67 86.4 9.3 86.4 84.8 74.9 60.0 45.0 - 74.9 9.9 74.9 74.9 70.8 55.8 40.8 -
62 81.5 9.2 81.5 81.5 81.5 66.5 51.6 36.6 72.3 9.8 72.3 72.3 72.3 57.6 42.6 27.6
57 80.9 9.2 80.9 80.9 80.4 65.5 50.5 35.6 72.8 9.8 72.8 72.8 70.2 55.2 40.2 25.2
4250
72 94.7 9.7 90.9 74.7 58.4 42.2 - - 80.5 10.3 80.5 70.3 54.1 38.0 - -
67 85.1 9.4 85.1 85.1 79.0 62.8 46.5 - 72.1 10.0 72.1 72.1 72.1 58.3 42.2 -
62 80.3 9.2 80.3 80.3 80.3 64.1 47.8 31.6 69.7 9.8 69.7 69.7 69.7 53.5 37.3 21.1
57 79.7 9.2 79.7 79.7 79.7 63.5 47.3 31.0 70.2 9.9 70.2 70.2 70.2 54.0 37.8 21.7
1. These capacities are gross ratings. For net capacity, deduct air blower motor, MBh = 3.415 x kW. Refer to the appropriate Blower
Performance Table for the kW of the supply air blower motor.
2. These ratings include the condenser fan motors (total 1 kW) and the compressor motors but not the supply air blower motor.
ZH102 (8.5 Ton) (Continued)
Air on
Evaporator Coil
Temperature of Air on Condenser Coil
Total
Capacity1
(MBh)
Total
Input
(kW)2
Sensible Capacity (MBh) Total
Capacity1
(MBh)
Total
Input
(kW)2
Sensible Capacity (MBh)
CFM WB
(°F)
Return Dry Bulb (°F) Return Dry Bulb (°F)
90 85 80 75 70 65 90 85 80 75 70 65

528150-YTG-G-1210
Johnson Controls Unitary Products 47
ZH120 (10 Ton)
Air on
Evaporator Coil
Temperature of Air on Condenser Coil
Total
Capacity1
(MBh)
Total
Input
(kW)2
Sensible Capacity (MBh) Total
Capacity1
(MBh)
Total
Input
(kW)2
Sensible Capacity (MBh)
CFM WB
(°F)
Return Dry Bulb (°F) Return Dry Bulb (°F)
90 85 80 75 70 65 90 85 80 75 70 65
75°F 85°F
2500
77 156.8 7.2 67.5 56.5 45.5 - - - 148.8 8.0 62.9 51.9 41.0 - - -
72 143.5 7.1 84.0 73.0 62.0 50.9 - - 136.5 8.0 80.1 69.2 58.3 47.3 - -
67 130.3 7.0 100.5 89.4 78.4 67.4 56.4 - 124.3 7.9 97.4 86.4 75.5 64.6 53.7 -
62 118.3 6.9 118.3 107.9 94.1 83.1 72.1 61.1 112.4 7.8 112.4 105.8 90.3 79.4 68.4 57.5
3000
77 162.2 7.2 75.3 62.4 49.6 - - - 153.1 8.1 70.1 57.4 44.8 - - -
72 148.5 7.1 93.2 80.4 67.5 54.7 - - 140.4 8.0 88.9 76.3 63.6 51.0 - -
67 134.8 7.0 111.2 98.3 85.5 72.7 59.8 - 127.8 7.9 107.8 95.1 82.5 69.8 57.2 -
62 122.4 6.9 122.4 115.5 102.6 89.8 76.9 64.1 115.6 7.9 115.6 111.2 98.6 85.9 73.3 60.6
57 110.3 7.0 110.3 110.6 114.0 101.2 88.4 75.5 111.0 7.9 111.0 111.0 106.5 93.9 81.2 68.6
3500
77 167.6 7.2 83.0 68.4 53.7 - - - 157.3 8.1 77.3 62.9 48.5 - - -
72 153.5 7.1 102.5 87.8 73.1 58.5 - - 144.3 8.0 97.7 83.3 69.0 54.6 - -
67 139.3 7.0 121.9 107.2 92.6 77.9 63.3 - 131.3 7.9 118.1 103.8 89.4 75.0 60.6 -
62 126.5 7.0 126.5 123.0 111.1 96.5 81.8 67.1 118.8 7.9 118.8 116.6 106.9 92.5 78.1 63.7
57 114.1 7.0 114.1 114.2 123.5 108.8 94.2 79.5 114.1 7.9 114.1 114.1 115.5 101.1 86.7 72.3
4000
77 173.0 7.2 90.8 74.3 57.8 - - - 161.6 8.1 84.5 68.4 52.3 - - -
72 158.4 7.1 111.7 95.2 78.7 62.3 - - 148.2 8.0 106.5 90.4 74.3 58.2 - -
67 143.8 7.0 132.6 116.1 99.7 83.2 66.7 - 134.9 8.0 128.5 112.4 96.3 80.2 64.1 -
62 130.6 7.0 130.6 130.6 119.6 103.1 86.6 70.2 122.0 7.9 122.0 122.0 115.2 99.1 83.0 66.8
57 117.9 7.0 117.9 117.9 132.9 116.4 100.0 83.5 117.2 7.9 117.2 117.2 124.4 108.3 92.2 76.1
4500
72 162.4 7.2 119.8 102.0 84.1 66.2 - - 151.6 8.1 114.4 96.9 79.4 61.8 - -
67 147.4 7.1 141.8 124.3 106.5 88.6 70.7 - 137.9 8.0 134.8 120.4 102.9 85.3 67.8 -
62 133.8 7.0 133.8 133.8 128.4 110.5 92.6 74.8 124.8 7.9 124.8 124.8 121.3 103.8 86.3 68.8
57 120.9 7.1 120.9 120.9 128.4 110.5 92.7 74.8 119.8 7.9 119.8 119.8 123.4 105.9 88.4 70.9
5000
72 166.4 7.2 127.9 108.7 89.5 70.2 - - 154.9 8.1 122.3 103.3 84.4 65.5 - -
67 151.0 7.1 151.0 132.5 113.3 94.0 74.8 - 141.0 8.0 141.0 128.3 109.4 90.5 71.5 -
62 137.1 7.0 137.1 137.1 137.1 117.9 98.6 79.4 127.5 7.9 127.5 127.5 127.5 108.6 89.6 70.7
57 123.8 7.1 123.8 123.8 123.8 104.6 85.4 66.1 122.5 7.9 122.5 122.5 122.5 103.5 84.6 65.7
95°F 105°F
2500
77 140.9 8.9 58.2 47.4 36.5 - - - 129.5 10.0 53.3 44.3 33.6 - - -
72 129.6 8.9 76.2 65.4 54.6 43.8 - - 120.0 10.0 72.8 62.1 51.4 40.8 - -
67 118.3 8.8 94.3 83.4 72.6 61.8 51.0 - 110.5 9.9 92.3 80.0 69.3 58.6 48.0 -
62 106.5 8.8 106.5 103.8 86.4 75.6 64.8 54.0 99.9 9.9 99.9 98.5 83.2 72.6 61.9 51.2
3000
77 143.9 9.0 64.9 52.4 40.0 - - - 132.3 10.1 61.4 49.1 36.8 - - -
72 132.4 8.9 84.6 72.1 59.7 47.2 - - 122.6 10.0 80.9 68.6 56.3 44.0 - -
67 120.8 8.8 104.3 91.9 79.4 67.0 54.5 - 112.9 10.0 100.5 88.2 75.9 63.6 51.3 -
62 108.8 8.8 108.8 107.0 94.5 82.1 69.6 57.2 102.0 9.9 102.0 101.1 91.1 78.8 66.5 54.2
57 111.7 8.7 111.7 111.4 99.0 86.5 74.1 61.6 104.8 9.9 104.8 104.6 93.2 80.9 68.6 56.3
3500
77 147.0 9.0 71.6 57.5 43.4 - - - 135.1 10.1 69.4 53.9 39.9 - - -
72 135.2 8.9 93.0 78.9 64.8 50.7 - - 125.2 10.0 89.0 75.1 61.2 47.3 - -
67 123.4 8.9 114.4 100.3 86.2 72.1 58.0 - 115.3 10.0 108.7 96.4 82.4 68.5 54.6 -
62 111.1 8.8 111.1 110.2 102.6 88.5 74.4 60.3 104.2 10.0 104.2 103.8 99.0 85.1 71.1 57.2
57 114.1 8.8 114.1 114.0 107.4 93.3 79.3 65.2 107.0 9.9 107.0 106.9 101.3 87.4 73.4 59.5
4000
77 150.1 9.0 78.2 62.5 46.8 - - - 137.9 10.1 77.4 58.7 43.1 - - -
72 138.0 9.0 101.3 85.6 69.9 54.2 - - 127.8 10.1 97.2 81.6 66.1 50.5 - -
67 126.0 8.9 124.4 108.7 93.0 77.3 61.6 - 117.7 10.0 116.9 104.5 89.0 73.4 57.9 -
62 113.4 8.9 113.4 113.4 110.7 95.0 79.3 63.5 106.4 10.0 106.4 106.4 106.9 91.3 75.8 60.2
57 116.5 8.8 116.5 116.5 115.9 100.2 84.5 68.7 109.2 9.9 109.2 109.2 109.4 93.8 78.3 62.7
4500
72 140.8 8.9 109.0 91.8 74.6 57.4 - - 129.8 10.1 104.4 87.5 70.6 53.7 - -
67 128.5 8.9 127.7 116.5 99.3 82.1 64.9 - 119.5 10.0 119.2 111.3 95.2 78.2 61.3 -
62 115.7 8.9 115.7 115.7 114.3 97.1 79.9 62.8 108.1 10.0 108.1 108.1 108.3 91.4 74.5 57.6
57 118.8 8.8 118.8 118.8 118.5 101.3 84.1 67.0 111.0 9.9 111.0 111.0 111.0 94.1 77.2 60.3
5000
72 143.5 8.9 116.6 98.0 79.3 60.7 - - 131.8 10.1 111.7 93.5 75.2 57.0 - -
67 131.0 8.9 131.0 124.2 105.6 86.9 68.3 - 121.4 10.0 121.4 118.0 101.3 83.1 64.8 -
62 117.9 8.8 117.9 117.9 117.9 99.3 80.6 62.0 109.8 10.0 109.8 109.8 109.8 91.5 73.2 55.0
57 121.1 8.8 121.1 121.1 121.1 102.5 83.8 65.2 112.7 9.9 112.7 112.7 112.7 94.4 76.2 57.9

528150-YTG-G-1210
48 Johnson Controls Unitary Products
115°F 125°F
2500
77 118.1 11.1 48.5 41.2 30.6 - - - 106.7 12.3 43.2 38.1 27.7 - - -
72 110.4 11.1 69.4 58.8 48.3 37.8 - - 100.8 12.2 65.9 55.6 45.2 34.8 - -
67 102.7 11.1 90.2 76.5 66.0 55.5 44.9 - 95.0 12.2 88.2 73.0 62.7 52.3 41.9 -
62 93.3 11.1 93.3 93.3 80.0 69.5 59.0 48.5 86.7 12.2 86.7 86.7 78.2 66.5 56.1 45.7
3000
77 120.6 11.2 57.9 45.7 33.6 - - - 109.0 12.3 54.4 42.4 30.4 - - -
72 112.8 11.1 77.2 65.1 52.9 40.8 - - 103.0 12.2 73.6 61.6 49.6 37.6 - -
67 104.9 11.1 96.6 84.5 72.3 60.2 48.0 - 97.0 12.2 92.7 80.8 68.8 56.8 44.8 -
62 95.3 11.1 95.3 95.3 87.7 75.6 63.4 51.3 88.5 12.2 88.5 88.5 84.3 72.3 60.3 48.3
57 97.8 11.0 97.8 97.8 87.5 75.4 63.2 51.1 90.9 12.1 90.9 90.9 81.8 69.8 57.8 45.8
3500
77 123.2 11.2 67.3 50.3 36.5 - - - 111.2 12.3 65.5 46.7 33.1 - - -
72 115.1 11.2 85.1 71.3 57.6 43.8 - - 105.1 12.3 81.2 67.6 54.0 40.4 - -
67 107.1 11.1 103.0 92.4 78.6 64.9 51.1 - 99.0 12.2 97.3 88.5 74.9 61.2 47.6 -
62 97.3 11.1 97.3 97.3 95.4 81.6 67.8 54.1 90.4 12.3 90.4 90.4 90.4 78.1 64.5 50.9
57 99.9 11.0 99.9 99.9 95.2 81.4 67.6 53.9 92.8 12.2 92.8 92.8 89.0 75.4 61.8 48.2
4000
77 125.7 11.2 76.7 54.8 39.5 - - - 113.5 12.3 76.6 51.0 35.8 - - -
72 117.5 11.2 93.0 77.6 62.2 46.8 - - 107.3 12.3 88.8 73.6 58.4 43.1 - -
67 109.3 11.1 109.3 100.4 85.0 69.6 54.2 - 101.0 12.3 101.0 96.2 80.9 65.7 50.5 -
62 99.3 11.1 99.3 99.3 103.1 87.7 72.3 56.9 92.2 12.3 92.2 92.2 92.2 84.0 68.8 53.5
57 101.9 11.1 101.9 101.9 102.8 87.4 72.0 56.7 94.7 12.2 94.7 94.7 94.7 81.1 65.8 50.6
4500
72 118.9 11.2 99.9 83.3 66.6 50.0 - - 107.9 12.3 95.4 79.0 62.7 46.3 - -
67 110.6 11.1 110.6 106.1 91.0 74.4 57.8 - 101.7 12.3 101.7 100.9 86.9 70.5 54.2 -
62 100.5 11.1 100.5 100.5 102.3 85.7 69.1 52.4 92.8 12.3 92.8 92.8 92.8 80.0 63.6 47.3
57 103.1 11.1 103.1 103.1 103.6 86.9 70.3 53.7 95.3 12.2 95.3 95.3 95.3 79.7 63.4 47.0
5000
72 120.2 11.2 106.8 89.0 71.1 53.2 - - 108.6 12.3 101.9 84.4 67.0 49.5 - -
67 111.9 11.1 111.9 111.9 97.1 79.2 61.4 - 102.3 12.3 102.3 102.3 92.9 75.4 57.9 -
62 101.6 11.1 101.6 101.6 101.6 83.7 65.9 48.0 93.4 12.3 93.4 93.4 93.4 76.0 58.5 41.0
57 104.3 11.1 104.3 104.3 104.3 86.4 68.6 50.7 95.9 12.2 95.9 95.9 95.9 78.4 60.9 43.4
1. These capacities are gross ratings. For net capacity, deduct air blower motor, MBh = 3.415 x kW. Refer to the appropriate Blower
Performance Table for the kW of the supply air blower motor.
2. These ratings include the condenser fan motors (total 1 kW) and the compressor motors but not the supply air blower motor.
ZH120 (10 Ton) (Continued)
Air on
Evaporator Coil
Temperature of Air on Condenser Coil
Total
Capacity1
(MBh)
Total
Input
(kW)2
Sensible Capacity (MBh) Total
Capacity1
(MBh)
Total
Input
(kW)2
Sensible Capacity (MBh)
CFM WB
(°F)
Return Dry Bulb (°F) Return Dry Bulb (°F)
90 85 80 75 70 65 90 85 80 75 70 65

528150-YTG-G-1210
Johnson Controls Unitary Products 49
ZH150 (12.5 Ton)
Air on
Evaporator Coil
Temperature of Air on Condenser Coil
Total
Capacity1
(MBh)
Total
Input
(kW)2
Sensible Capacity (MBh) Total
Capacity1
(MBh)
Total
Input
(kW)2
Sensible Capacity (MBh)
CFM WB
(°F)
Return Dry Bulb (°F) Return Dry Bulb (°F)
90 85 80 75 70 65 90 85 80 75 70 65
75°F 85°F
3125
77 204.4 9.6 82.4 68.5 54.6 - - - 192.2 10.6 77.2 63.6 50.0 - - -
72 186.6 9.3 106.6 92.6 78.7 64.8 - - 176.1 10.4 100.7 87.2 73.6 60.0 - -
67 168.8 9.1 130.7 116.8 102.9 88.9 75.0 - 159.9 10.2 124.3 110.7 97.1 83.6 70.0 -
62 153.0 9.0 153.0 143.5 127.2 113.3 99.4 85.5 144.9 10.0 144.9 138.4 120.1 106.6 93.0 79.4
3750
77 210.2 9.7 89.0 73.6 58.1 - - - 197.5 10.7 84.3 69.1 53.9 - - -
72 191.8 9.4 114.7 99.3 83.9 68.4 - - 180.9 10.5 109.7 94.4 79.2 64.0 - -
67 173.5 9.1 140.4 125.0 109.6 94.2 78.7 - 164.3 10.2 135.0 119.8 104.6 89.4 74.2 -
62 157.2 9.0 157.2 150.9 135.5 120.1 104.7 89.3 148.9 10.1 148.9 144.5 129.3 114.1 98.9 83.7
57 152.9 8.9 152.9 152.9 144.1 128.7 113.3 97.8 146.9 10.0 146.9 146.9 135.2 120.0 104.8 89.6
4375
77 215.9 9.7 95.5 78.6 61.7 - - - 202.8 10.8 91.4 74.5 57.7 - - -
72 197.1 9.4 122.8 105.9 89.0 72.1 - - 185.7 10.5 118.6 101.7 84.9 68.0 - -
67 178.3 9.2 150.1 133.2 116.3 99.4 82.5 - 168.6 10.3 145.8 128.9 112.0 95.2 78.3 -
62 161.5 9.1 161.5 158.4 143.8 126.9 110.0 93.1 152.8 10.1 152.8 150.7 138.5 121.7 104.8 88.0
57 157.1 9.0 157.1 157.1 152.9 136.0 119.1 102.2 150.8 10.1 150.8 150.8 144.8 128.0 111.1 94.3
5000
77 221.6 9.8 102.1 83.7 65.3 - - - 208.0 10.8 98.5 80.0 61.5 - - -
72 202.3 9.5 130.9 112.6 94.2 75.8 - - 190.5 10.6 127.5 109.0 90.5 72.0 - -
67 183.0 9.2 159.8 141.4 123.0 104.6 86.2 - 173.0 10.4 156.5 138.0 119.5 101.0 82.5 -
62 165.8 9.1 165.8 165.8 152.1 133.7 115.3 96.9 156.8 10.2 156.8 156.8 147.8 129.3 110.8 92.3
57 161.2 9.0 161.2 161.2 161.8 143.4 125.0 106.6 154.8 10.1 154.8 154.8 154.5 136.0 117.5 99.0
5625
72 206.6 9.5 140.7 121.0 101.3 81.6 - - 193.5 10.6 136.3 116.5 96.7 76.9 - -
67 186.9 9.2 174.9 152.0 132.3 112.6 92.9 - 175.7 10.4 167.3 147.5 127.7 107.9 88.1 -
62 169.3 9.2 169.3 169.3 162.5 142.8 123.1 103.4 159.3 10.2 159.3 159.3 154.7 135.0 115.2 95.4
57 164.7 9.0 164.7 164.7 165.0 145.3 125.6 105.8 157.2 10.1 157.2 157.2 157.0 137.2 117.5 97.7
6250
72 210.9 9.5 150.5 129.4 108.4 87.4 - - 196.5 10.6 145.1 124.0 102.9 81.8 - -
67 190.8 9.3 190.0 162.7 141.6 120.6 99.6 - 178.4 10.4 178.0 157.0 135.9 114.8 93.7 -
62 172.9 9.2 172.9 172.9 172.9 151.8 130.8 109.8 161.7 10.2 161.7 161.7 161.7 140.6 119.6 98.5
57 168.1 9.0 168.1 168.1 168.1 147.1 126.1 105.0 159.6 10.2 159.6 159.6 159.6 138.5 117.4 96.4
95°F 105°F
3125
77 180.0 11.6 71.9 58.7 45.5 - - - 169.2 13.1 68.8 56.1 43.0 - - -
72 165.5 11.4 94.9 81.7 68.5 55.2 - - 155.1 13.0 91.6 78.5 65.5 52.4 - -
67 151.0 11.3 117.8 104.6 91.4 78.2 65.0 - 140.9 12.8 114.3 100.9 87.9 74.9 61.8 -
62 136.9 11.0 136.9 133.3 113.0 99.8 86.6 73.4 128.7 12.5 128.7 126.9 108.9 95.8 82.8 69.8
3750
77 184.8 11.7 79.6 64.6 49.6 - - - 173.5 13.2 76.3 61.6 46.8 - - -
72 169.9 11.5 104.6 89.6 74.6 59.6 - - 159.0 13.0 100.7 86.0 71.2 56.5 - -
67 155.0 11.4 129.6 114.6 99.6 84.6 69.6 - 144.5 12.8 125.1 110.4 95.6 80.9 66.1 -
62 140.5 11.1 140.5 138.1 123.1 108.1 93.1 78.1 131.9 12.6 131.9 130.7 118.4 103.7 88.9 74.1
57 141.0 11.0 141.0 141.0 126.3 111.3 96.3 81.3 131.4 12.6 131.4 131.4 118.3 103.5 88.8 74.0
4375
77 189.6 11.8 87.3 70.5 53.7 - - - 177.8 13.2 83.9 67.1 50.6 - - -
72 174.3 11.6 114.3 97.5 80.7 63.9 - - 162.9 13.1 109.9 93.4 77.0 60.5 - -
67 159.0 11.5 141.4 124.6 107.8 91.0 74.2 - 148.1 12.9 135.9 119.8 103.3 86.9 70.4 -
62 144.2 11.2 144.2 143.0 133.3 116.5 99.7 82.9 135.2 12.6 135.2 134.6 128.0 111.5 95.0 78.5
57 144.6 11.1 144.6 144.6 136.7 119.9 103.1 86.3 134.6 12.6 134.6 134.6 127.8 111.4 94.9 78.4
5000
77 194.4 11.9 94.9 76.3 57.7 - - - 182.0 13.3 91.5 72.6 54.4 - - -
72 178.7 11.7 124.1 105.5 86.9 68.3 - - 166.8 13.1 119.1 100.9 82.7 64.5 - -
67 163.0 11.6 153.2 134.6 116.0 97.4 78.8 - 151.6 12.9 146.7 129.2 111.0 92.9 74.7 -
62 147.8 11.3 147.8 147.8 143.4 124.8 106.2 87.6 138.4 12.7 138.4 138.4 137.5 119.3 101.1 82.9
57 148.3 11.2 148.3 148.3 147.1 128.5 109.9 91.3 137.8 12.7 137.8 137.8 137.4 119.2 101.0 82.8
5625
72 180.4 11.7 131.9 112.0 92.2 72.3 - - 168.0 13.2 127.6 107.9 88.2 68.6 - -
67 164.5 11.6 159.6 142.9 123.1 103.2 83.3 - 152.7 13.0 150.2 137.8 118.5 98.8 79.1 -
62 149.2 11.3 149.2 149.2 147.0 127.1 107.3 87.4 139.4 12.7 139.4 139.4 138.9 119.3 99.6 80.0
57 149.7 11.2 149.7 149.7 149.1 129.2 109.4 89.5 138.8 12.7 138.8 138.8 138.6 118.9 99.3 79.6
6250
72 182.1 11.8 139.7 118.6 97.4 76.3 - - 169.2 13.2 136.0 114.9 93.8 72.6 - -
67 166.1 11.6 166.1 151.3 130.1 109.0 87.9 - 153.7 13.0 153.7 146.3 125.9 104.8 83.6 -
62 150.6 11.3 150.6 150.6 150.6 129.5 108.3 87.2 140.4 12.7 140.4 140.4 140.4 119.2 98.1 77.0
57 151.1 11.3 151.1 151.1 151.1 130.0 108.8 87.7 139.8 12.7 139.8 139.8 139.8 118.6 97.5 76.4

528150-YTG-G-1210
50 Johnson Controls Unitary Products
115°F 125°F
3125
77 158.4 14.6 65.6 53.5 40.6 - - - 147.6 16.1 60.0 50.8 38.1 - - -
72 144.6 14.5 88.2 75.4 62.5 49.6 - - 134.2 16.0 84.9 72.2 59.5 46.8 - -
67 130.9 14.3 110.9 97.3 84.4 71.5 58.7 - 120.9 15.8 107.4 93.6 80.9 68.2 55.5 -
62 120.5 14.0 120.5 120.5 104.7 91.9 79.0 66.1 112.3 15.6 112.3 112.3 100.7 87.9 75.2 62.5
3750
77 162.2 14.7 73.1 58.6 44.1 - - - 150.8 16.1 69.9 55.6 41.3 - - -
72 148.1 14.5 96.9 82.4 67.9 53.3 - - 137.2 16.0 93.0 78.7 64.5 50.2 - -
67 134.0 14.3 120.6 106.1 91.6 77.1 62.6 - 123.5 15.8 116.2 101.9 87.6 73.4 59.1 -
62 123.3 14.1 123.3 123.3 113.7 99.2 84.7 70.2 114.8 15.6 114.8 114.8 109.0 94.7 80.5 66.2
57 121.8 14.1 121.8 121.8 110.3 95.8 81.2 66.7 112.1 15.6 112.1 112.1 102.2 88.0 73.7 59.4
4375
77 165.9 14.7 80.6 63.7 47.6 - - - 154.1 16.1 79.7 60.3 44.5 - - -
72 151.5 14.5 105.5 89.4 73.2 57.1 - - 140.1 15.9 101.1 85.3 69.5 53.6 - -
67 137.1 14.3 130.4 115.0 98.9 82.7 66.6 - 126.2 15.8 125.0 110.2 94.4 78.6 62.7 -
62 126.2 14.1 126.2 126.2 122.7 106.5 90.4 74.2 117.2 15.5 117.2 117.2 117.2 101.6 85.7 69.9
57 124.6 14.1 124.6 124.6 119.0 102.8 86.7 70.5 114.6 15.6 114.6 114.6 110.1 94.3 78.4 62.6
5000
77 169.7 14.7 88.1 68.8 51.0 - - - 157.3 16.1 89.6 65.1 47.7 - - -
72 155.0 14.5 114.2 96.4 78.6 60.8 - - 143.1 15.9 109.2 91.8 74.4 57.0 - -
67 140.2 14.3 140.2 123.9 106.1 88.3 70.5 - 128.9 15.7 128.9 118.6 101.1 83.7 66.3 -
62 129.1 14.1 129.1 129.1 131.7 113.9 96.1 78.3 119.7 15.5 119.7 119.7 119.7 108.4 91.0 73.6
57 127.4 14.2 127.4 127.4 127.7 109.9 92.1 74.3 117.0 15.6 117.0 117.0 117.0 100.6 83.2 65.7
5625
72 155.6 14.6 123.2 103.8 84.3 64.9 - - 143.2 16.0 118.9 99.7 80.4 61.2 - -
67 140.8 14.4 140.8 132.6 113.9 94.4 74.9 - 128.9 15.8 128.9 127.5 109.3 90.0 70.8 -
62 129.6 14.1 129.6 129.6 130.9 111.4 92.0 72.5 119.8 15.6 119.8 119.8 119.8 103.6 84.3 65.1
57 127.9 14.2 127.9 127.9 128.1 108.6 89.1 69.7 117.0 15.6 117.0 117.0 117.0 98.3 79.0 59.8
6250
72 156.2 14.6 132.3 111.2 90.1 69.0 - - 143.3 16.0 128.6 107.5 86.4 65.3 - -
67 141.4 14.4 141.4 141.4 121.6 100.5 79.4 - 129.0 15.8 129.0 129.0 117.4 96.3 75.2 -
62 130.1 14.2 130.1 130.1 130.1 109.0 87.9 66.8 119.9 15.6 119.9 119.9 119.9 98.8 77.7 56.5
57 128.4 14.2 128.4 128.4 128.4 107.3 86.2 65.1 117.1 15.7 117.1 117.1 117.1 96.0 74.9 53.8
1. These capacities are gross ratings. For net capacity, deduct air blower motor, MBh = 3.415 x kW. Refer to the appropriate Blower
Performance Table for the kW of the supply air blower motor.
2. These ratings include the condenser fan motors (total 1 kW) and the compressor motors but not the supply air blower motor.
ZH150 (12.5 Ton) (Continued)
Air on
Evaporator Coil
Temperature of Air on Condenser Coil
Total
Capacity1
(MBh)
Total
Input
(kW)2
Sensible Capacity (MBh) Total
Capacity1
(MBh)
Total
Input
(kW)2
Sensible Capacity (MBh)
CFM WB
(°F)
Return Dry Bulb (°F) Return Dry Bulb (°F)
90 85 80 75 70 65 90 85 80 75 70 65

528150-YTG-G-1210
Johnson Controls Unitary Products 51
ZJ037-150 Cooling Capacities
ZJ037 (3.0 Ton)
Air on
Evaporator Coil
Temperature of Air on Condenser Coil
Total
Capacity1
(MBh)
Total
Input
(kW)2
Sensible Capacity (MBh) Total
Capacity1
(MBh)
Total
Input
(kW)2
Sensible Capacity (MBh)
CFM WB
(°F)
Return Dry Bulb (°F) Return Dry Bulb (°F)
90 85 80 75 70 65 90 85 80 75 70 65
75°F 85°F
750
77 49.2 2.1 19.7 16.4 13.1 - - - 45.1 2.3 18.0 14.8 11.6 - - -
72 43.8 2.0 24.5 21.2 17.9 14.6 - - 40.2 2.3 22.8 19.6 16.4 13.2 - -
67 38.4 2.0 29.4 26.1 22.8 19.5 16.2 - 35.2 2.2 27.5 24.3 21.1 17.9 14.7 -
62 33.2 2.0 33.2 33.2 27.2 23.9 20.6 17.3 30.4 2.2 30.4 30.4 25.3 22.0 18.8 15.6
900
77 51.6 2.0 22.2 18.3 14.5 - - - 47.4 2.3 20.6 16.8 13.0 - - -
72 45.9 2.0 27.6 23.7 19.8 15.9 - - 42.2 2.3 25.9 22.1 18.3 14.4 - -
67 40.3 2.0 33.0 29.1 25.2 21.3 17.4 - 37.0 2.2 31.1 27.3 23.5 19.7 15.9 -
62 34.8 2.0 34.8 34.8 30.1 26.2 22.3 18.4 31.9 2.2 31.9 31.9 28.2 24.4 20.6 16.8
57 29.4 2.0 29.4 29.4 31.7 27.8 23.9 20.0 28.9 2.2 28.9 28.9 28.9 25.1 21.3 17.5
1050
77 54.0 2.0 24.8 20.3 15.8 - - - 49.7 2.3 23.1 18.7 14.3 - - -
72 48.1 2.0 30.7 26.2 21.7 17.3 - - 44.2 2.3 28.9 24.5 20.1 15.7 - -
67 42.2 2.0 36.6 32.1 27.6 23.2 18.7 - 38.7 2.2 34.8 30.4 26.0 21.6 17.2 -
62 36.4 2.0 36.4 36.4 33.0 28.5 24.0 19.5 33.5 2.2 33.5 33.5 31.1 26.7 22.3 17.9
57 30.8 2.0 30.8 30.8 38.9 32.1 29.9 25.4 30.3 2.2 30.3 30.3 33.9 28.4 25.1 20.7
1200
77 56.4 2.0 27.4 22.3 17.2 - - - 52.0 2.3 25.6 20.6 15.6 - - -
72 50.2 2.0 33.8 28.7 23.7 18.6 - - 46.3 2.3 32.0 27.0 22.0 17.0 - -
67 44.1 2.0 40.2 35.2 30.1 25.0 19.9 - 40.5 2.2 38.4 33.4 28.4 23.4 18.4 -
62 38.1 2.0 38.1 38.1 35.9 30.8 25.7 20.6 35.0 2.2 35.0 35.0 34.0 29.0 24.0 19.0
57 32.2 2.0 32.2 32.2 46.0 36.4 35.8 30.7 31.7 2.2 31.7 31.7 38.9 31.7 28.9 23.9
1350
72 51.5 2.0 36.7 31.0 25.4 19.7 - - 47.2 2.3 34.8 29.2 23.6 18.1 - -
67 45.1 2.0 43.2 37.9 32.3 26.6 20.9 - 41.3 2.2 40.3 36.1 30.5 24.9 19.4 -
62 39.0 2.0 39.0 39.0 37.9 32.2 26.6 20.9 35.7 2.2 35.7 35.7 35.2 29.6 24.1 18.5
57 33.0 2.0 33.0 33.0 39.9 31.9 28.6 22.9 32.3 2.2 32.3 32.3 35.9 29.3 24.8 19.3
1500
72 52.7 2.0 39.6 33.3 27.1 20.9 - - 48.1 2.3 37.5 31.4 25.3 19.2 - -
67 46.2 2.0 46.2 40.7 34.4 28.2 22.0 - 42.2 2.2 42.2 38.7 32.6 26.5 20.4 -
62 39.9 2.0 39.9 39.9 39.9 33.7 27.4 21.2 36.4 2.2 36.4 36.4 36.4 30.3 24.2 18.1
57 33.8 2.0 33.8 33.8 33.8 27.5 21.3 15.0 32.9 2.2 32.9 32.9 32.9 26.8 20.7 14.6
95°F 105°F
750
77 41.1 2.6 16.4 13.3 10.2 - - - 36.8 2.8 13.8 11.6 8.6 - - -
72 36.5 2.5 21.0 17.9 14.8 11.7 - - 32.9 2.7 19.3 16.3 13.3 10.3 - -
67 31.9 2.4 25.6 22.5 19.4 16.3 13.2 - 28.9 2.7 24.9 21.0 18.0 15.0 12.0 -
62 27.6 2.4 27.6 27.6 23.3 20.2 17.1 14.0 24.9 2.6 24.9 24.9 21.8 18.8 15.8 12.8
900
77 43.3 2.6 18.9 15.2 11.5 - - - 38.6 2.8 16.9 13.3 9.7 - - -
72 38.5 2.5 24.1 20.4 16.7 13.0 - - 34.5 2.7 22.2 18.6 15.0 11.4 - -
67 33.6 2.4 29.3 25.6 21.9 18.1 14.4 - 30.3 2.7 27.6 24.0 20.4 16.8 13.2 -
62 29.0 2.4 29.0 29.0 26.2 22.5 18.8 15.1 26.1 2.6 26.1 26.1 24.6 21.0 17.4 13.8
57 28.3 2.4 28.3 28.3 26.0 22.3 18.6 14.9 25.5 2.6 25.5 25.5 23.6 20.0 16.4 12.8
1050
77 45.4 2.6 21.4 17.1 12.7 - - - 40.4 2.8 20.0 15.0 10.8 - - -
72 40.4 2.5 27.2 22.8 18.5 14.2 - - 36.1 2.8 25.1 20.9 16.8 12.6 - -
67 35.3 2.5 32.9 28.6 24.3 20.0 15.7 - 31.7 2.7 30.2 26.9 22.7 18.5 14.3 -
62 30.5 2.4 30.5 30.5 29.1 24.8 20.5 16.2 27.3 2.6 27.3 27.3 27.4 23.3 19.1 14.9
57 29.7 2.4 29.7 29.7 29.0 24.6 20.3 16.0 26.7 2.6 26.7 26.7 26.4 22.2 18.0 13.8
1200
77 47.6 2.6 23.9 19.0 14.0 - - - 42.2 2.9 23.1 16.7 11.9 - - -
72 42.3 2.5 30.2 25.3 20.4 15.5 - - 37.7 2.8 28.0 23.3 18.5 13.7 - -
67 37.0 2.5 36.6 31.7 26.8 21.8 16.9 - 33.1 2.7 32.9 29.8 25.0 20.3 15.5 -
62 32.0 2.4 32.0 32.0 32.1 27.2 22.2 17.3 28.5 2.6 28.5 28.5 30.3 25.5 20.7 15.9
57 31.2 2.4 31.2 31.2 31.9 27.0 22.0 17.1 27.9 2.7 27.9 27.9 29.1 24.3 19.5 14.7
1350
72 43.0 2.5 32.8 27.4 21.9 16.5 - - 38.2 2.8 30.5 25.2 19.9 14.6 - -
67 37.6 2.5 37.4 34.2 28.7 23.3 17.9 - 33.6 2.7 33.5 31.6 27.0 21.7 16.4 -
62 32.4 2.4 32.4 32.4 32.5 27.1 21.6 16.2 28.9 2.7 28.9 28.9 29.8 24.5 19.2 13.9
57 31.6 2.4 31.6 31.6 32.0 26.6 21.1 15.7 28.3 2.7 28.3 28.3 28.9 23.6 18.3 13.0
1500
72 43.6 2.5 35.4 29.4 23.4 17.5 - - 38.7 2.8 32.9 27.1 21.3 15.5 - -
67 38.1 2.5 38.1 36.7 30.7 24.8 18.8 - 34.0 2.7 34.0 33.3 28.9 23.0 17.2 -
62 32.9 2.4 32.9 32.9 32.9 27.0 21.0 15.1 29.3 2.7 29.3 29.3 29.3 23.5 17.6 11.8
57 32.1 2.4 32.1 32.1 32.1 26.2 20.2 14.2 28.7 2.7 28.7 28.7 28.7 22.9 17.0 11.2

528150-YTG-G-1210
52 Johnson Controls Unitary Products
115°F 125°F
750
77 32.6 3.1 11.2 9.9 7.0 - - - 28.3 3.3 9.2 7.9 5.4 - - -
72 29.2 3.0 17.7 14.8 11.8 8.9 - - 25.6 3.2 16.0 13.2 10.3 7.5 - -
67 25.9 2.9 24.2 19.6 16.6 13.7 10.8 - 22.9 3.1 22.9 18.1 15.3 12.4 9.6 -
62 22.2 2.8 22.2 22.2 20.3 17.4 14.4 11.5 19.5 3.0 19.5 19.5 19.5 16.0 13.1 10.3
900
77 34.0 3.1 14.9 11.4 7.9 - - - 29.4 3.4 13.4 9.6 6.2 - - -
72 30.5 3.0 20.4 16.9 13.4 9.9 - - 26.5 3.2 18.6 15.2 11.8 8.4 - -
67 27.0 2.9 25.9 22.4 18.9 15.4 11.9 - 23.7 3.1 23.7 20.8 17.4 14.0 10.6 -
62 23.1 2.8 23.1 23.1 23.0 19.5 16.0 12.5 20.2 3.0 20.2 20.2 20.2 18.0 14.7 11.3
57 22.8 2.8 22.8 22.8 21.2 17.8 14.3 10.8 20.0 3.1 20.0 20.0 18.8 15.5 12.1 8.7
1050
77 35.4 3.1 18.7 12.9 8.9 - - - 30.4 3.4 17.6 11.3 7.0 - - -
72 31.8 3.0 23.1 19.1 15.0 10.9 - - 27.5 3.3 21.1 17.2 13.2 9.3 - -
67 28.1 2.9 27.5 25.2 21.1 17.0 13.0 - 24.5 3.1 24.5 23.4 19.5 15.6 11.7 -
62 24.1 2.8 24.1 24.1 25.7 21.7 17.6 13.6 20.9 3.0 20.9 20.9 20.9 20.1 16.2 12.2
57 23.7 2.9 23.7 23.7 23.8 19.7 15.6 11.6 20.7 3.1 20.7 20.7 20.7 17.2 13.3 9.4
1200
77 36.8 3.1 22.4 14.5 9.8 - - - 31.4 3.4 21.9 12.9 7.7 - - -
72 33.0 3.0 25.8 21.2 16.6 12.0 - - 28.4 3.3 23.6 19.1 14.7 10.2 - -
67 29.2 2.9 29.2 28.0 23.3 18.7 14.1 - 25.4 3.1 25.4 25.4 21.6 17.2 12.7 -
62 25.0 2.8 25.0 25.0 28.5 23.8 19.2 14.6 21.6 3.0 21.6 21.6 21.6 21.6 17.7 13.2
57 24.7 2.9 24.7 24.7 26.3 21.6 17.0 12.4 21.4 3.1 21.4 21.4 21.4 19.0 14.5 10.0
1350
72 33.4 3.0 28.2 23.0 17.9 12.7 - - 28.6 3.3 25.9 20.9 15.9 10.9 - -
67 29.6 2.9 29.6 28.9 25.2 20.0 14.9 - 25.6 3.2 25.6 25.6 23.4 18.4 13.4 -
62 25.3 2.9 25.3 25.3 27.0 21.9 16.7 11.6 21.8 3.1 21.8 21.8 21.8 19.3 14.3 9.3
57 24.9 2.9 24.9 24.9 25.7 20.6 15.4 10.3 21.6 3.1 21.6 21.6 21.6 17.6 12.6 7.6
1500
72 33.8 3.1 30.5 24.8 19.2 13.5 - - 28.9 3.3 28.1 22.6 17.0 11.5 - -
67 29.9 3.0 29.9 29.9 27.0 21.3 15.6 - 25.8 3.2 25.8 25.8 25.1 19.6 14.0 -
62 25.6 2.9 25.6 25.6 25.6 19.9 14.3 8.6 22.0 3.1 22.0 22.0 22.0 16.4 10.9 5.4
57 25.2 2.9 25.2 25.2 25.2 19.6 13.9 8.2 21.8 3.2 21.8 21.8 21.8 16.2 10.7 5.2
1. These capacities are gross ratings. For net capacity, deduct air blower motor, MBh = 3.415 x kW. Refer to the appropriate Blower
Performance Table for the kW of the supply air blower motor.
2. These ratings include the condenser fan motors (total 1 kW) and the compressor motors but not the supply air blower motor.
ZJ037 (3.0 Ton) (Continued)
Air on
Evaporator Coil
Temperature of Air on Condenser Coil
Total
Capacity1
(MBh)
Total
Input
(kW)2
Sensible Capacity (MBh) Total
Capacity1
(MBh)
Total
Input
(kW)2
Sensible Capacity (MBh)
CFM WB
(°F)
Return Dry Bulb (°F) Return Dry Bulb (°F)
90 85 80 75 70 65 90 85 80 75 70 65

528150-YTG-G-1210
Johnson Controls Unitary Products 53
ZJ049 (4.0 Ton)
Air on
Evaporator Coil
Temperature of Air on Condenser Coil
Total
Capacity1
(MBh)
Total
Input
(kW)2
Sensible Capacity (MBh) Total
Capacity1
(MBh)
Total
Input
(kW)2
Sensible Capacity (MBh)
CFM WB
(°F)
Return Dry Bulb (°F) Return Dry Bulb (°F)
90 85 80 75 70 65 90 85 80 75 70 65
75°F 85°F
1000
77 63.4 2.7 27.1 22.3 17.7 - - - 59.7 3.1 25.2 20.6 16.0 - - -
72 58.0 2.7 33.7 29.0 24.4 19.7 - - 54.2 3.1 31.8 27.3 22.7 18.1 - -
67 52.7 2.7 40.2 35.7 31.0 26.4 21.7 - 48.6 3.1 38.5 33.9 29.3 24.7 20.2 -
62 45.3 2.7 45.3 45.3 37.4 32.7 28.0 23.4 42.5 3.1 42.5 42.5 35.9 31.3 26.7 22.1
1200
77 66.8 2.6 30.6 25.2 19.7 - - - 62.5 3.1 28.6 23.2 17.9 - - -
72 61.1 2.7 38.1 32.6 27.2 21.7 - - 56.7 3.1 36.0 30.6 25.3 19.9 - -
67 55.4 2.7 45.5 40.1 34.6 29.2 23.7 - 50.9 3.1 43.4 38.0 32.6 27.3 21.9 -
62 47.7 2.7 47.7 47.7 41.7 36.3 30.8 25.4 44.5 3.1 44.5 44.5 39.9 34.6 29.2 23.9
57 45.7 2.7 45.7 45.7 42.8 37.4 31.9 26.5 43.0 3.1 43.0 43.0 39.9 34.6 29.2 23.8
1400
77 70.1 2.6 34.1 28.0 21.8 - - - 65.3 3.1 31.9 25.8 19.7 - - -
72 64.2 2.7 42.5 36.3 30.0 23.8 - - 59.2 3.1 40.1 34.0 27.8 21.7 - -
67 58.2 2.7 50.9 44.5 38.3 32.0 25.8 - 53.2 3.1 48.2 42.1 36.0 29.8 23.7 -
62 50.1 2.7 50.1 50.1 46.1 39.8 33.6 27.3 46.5 3.1 46.5 46.5 44.0 37.9 31.7 25.6
57 48.0 2.7 48.0 48.0 47.3 41.0 34.8 28.6 44.9 3.1 44.9 44.9 44.0 37.8 31.7 25.6
1600
77 73.5 2.6 37.6 30.9 23.8 - - - 68.1 3.1 35.3 28.4 21.5 - - -
72 67.2 2.7 46.9 39.9 32.9 25.8 - - 61.8 3.1 44.2 37.3 30.4 23.5 - -
67 61.0 2.7 56.2 48.9 41.9 34.8 27.8 - 55.5 3.1 53.1 46.2 39.3 32.4 25.5 -
62 52.5 2.7 52.5 52.5 50.4 43.4 36.3 29.3 48.5 3.1 48.5 48.5 48.0 41.1 34.2 27.3
57 50.3 2.7 50.3 50.3 51.7 44.7 37.7 30.6 46.9 3.1 46.9 46.9 48.0 41.1 34.2 27.3
1800
72 68.4 2.7 50.4 42.5 34.7 26.8 - - 62.8 3.1 47.5 39.9 32.2 24.5 - -
67 62.0 2.7 59.6 52.0 44.2 36.3 28.5 - 56.4 3.1 55.3 49.3 41.6 33.9 26.2 -
62 53.4 2.7 53.4 53.4 52.4 44.5 36.7 28.8 49.3 3.1 49.3 49.3 49.1 41.4 33.8 26.1
57 51.2 2.7 51.2 51.2 51.9 44.0 36.2 28.4 47.7 3.0 47.7 47.7 48.3 40.6 32.9 25.2
2000
72 69.6 2.6 53.8 45.2 36.5 27.8 - - 63.9 3.0 50.9 42.4 34.0 25.5 - -
67 63.1 2.7 63.1 55.2 46.5 37.8 29.2 - 57.4 3.0 57.4 52.4 43.9 35.5 27.0 -
62 54.4 2.7 54.4 54.4 54.4 45.7 37.0 28.4 50.2 3.1 50.2 50.2 50.2 41.7 33.3 24.8
57 52.1 2.7 52.1 52.1 52.1 43.4 34.7 26.1 48.5 3.0 48.5 48.5 48.5 40.0 31.6 23.1
95°F 105°F
1000
77 55.9 3.5 23.3 18.9 14.4 - - - 50.7 3.9 20.2 17.0 12.6 - - -
72 50.3 3.4 30.0 25.5 21.0 16.5 - - 45.2 3.8 27.9 23.5 19.1 14.6 - -
67 44.6 3.4 36.7 32.1 27.6 23.1 18.6 - 39.7 3.7 35.7 30.0 25.5 21.1 16.7 -
62 39.7 3.4 39.7 39.7 34.4 29.9 25.4 20.9 34.7 3.8 34.7 34.7 30.7 26.3 21.9 17.4
1200
77 58.1 3.5 26.5 21.3 16.0 - - - 52.6 3.9 24.6 19.2 14.0 - - -
72 52.3 3.4 33.8 28.6 23.3 18.1 - - 46.9 3.8 31.5 26.4 21.2 16.1 - -
67 46.4 3.4 41.2 35.9 30.6 25.4 20.1 - 41.2 3.7 38.5 33.6 28.4 23.3 18.1 -
62 41.3 3.4 41.3 41.3 38.1 32.9 27.6 22.4 36.0 3.8 36.0 36.0 34.2 29.1 23.9 18.8
57 40.3 3.4 40.3 40.3 37.0 31.7 26.5 21.2 36.7 3.7 36.7 36.7 33.4 28.3 23.1 18.0
1400
77 60.4 3.5 29.8 23.6 17.6 - - - 54.6 3.9 29.0 21.4 15.5 - - -
72 54.3 3.4 37.7 31.6 25.6 19.6 - - 48.6 3.8 35.2 29.3 23.4 17.5 - -
67 48.2 3.4 45.6 39.7 33.7 27.6 21.6 - 42.7 3.7 41.3 37.2 31.3 25.5 19.6 -
62 42.9 3.4 42.9 42.9 41.9 35.9 29.9 23.9 37.4 3.8 37.4 37.4 37.7 31.9 26.0 20.1
57 41.8 3.4 41.8 41.8 40.7 34.6 28.6 22.6 38.0 3.7 38.0 38.0 36.9 31.0 25.1 19.2
1600
77 62.6 3.5 33.0 25.9 19.2 - - - 56.5 3.9 33.4 23.5 16.9 - - -
72 56.3 3.4 41.5 34.7 27.9 21.1 - - 50.3 3.8 38.8 32.2 25.6 19.0 - -
67 50.0 3.4 50.0 43.5 36.7 29.9 23.1 - 44.2 3.7 44.2 40.9 34.3 27.7 21.1 -
62 44.4 3.4 44.4 44.4 45.7 38.9 32.1 25.3 38.7 3.8 38.7 38.7 41.2 34.6 28.0 21.4
57 43.4 3.4 43.4 43.4 44.3 37.5 30.7 24.0 39.4 3.7 39.4 39.4 40.3 33.7 27.1 20.5
1800
72 57.3 3.5 44.7 37.2 29.7 22.2 - - 51.2 3.8 41.9 34.6 27.3 19.9 - -
67 50.9 3.4 50.9 46.5 39.0 31.5 24.0 - 45.0 3.8 45.0 42.8 36.5 29.2 21.8 -
62 45.2 3.5 45.2 45.2 45.8 38.3 30.8 23.3 39.4 3.8 39.4 39.4 40.7 33.3 26.0 18.6
57 44.2 3.4 44.2 44.2 44.6 37.1 29.6 22.1 40.1 3.7 40.1 40.1 40.5 33.2 25.9 18.5
2000
72 58.3 3.5 47.9 39.7 31.5 23.2 - - 52.1 3.8 45.1 37.0 28.9 20.9 - -
67 51.7 3.4 51.7 49.6 41.3 33.1 24.9 - 45.7 3.8 45.7 44.7 38.8 30.7 22.6 -
62 46.0 3.5 46.0 46.0 46.0 37.8 29.5 21.3 40.1 3.8 40.1 40.1 40.1 32.0 23.9 15.8
57 44.9 3.4 44.9 44.9 44.9 36.7 28.4 20.2 40.8 3.7 40.8 40.8 40.8 32.7 24.6 16.6

528150-YTG-G-1210
54 Johnson Controls Unitary Products
115°F 125°F
1000
77 45.6 4.3 17.0 15.2 10.8 - - - 40.4 4.7 17.9 11.7 9.0 - - -
72 40.1 4.2 25.9 21.5 17.1 12.8 - - 35.0 4.6 23.8 19.5 15.2 10.9 - -
67 34.7 4.1 34.7 27.8 23.4 19.1 14.7 - 29.7 4.4 29.7 26.4 21.4 17.1 12.8 -
62 29.8 4.2 29.8 29.8 27.1 22.7 18.4 14.0 24.8 4.5 24.8 24.8 24.8 19.2 14.9 10.6
1200
77 47.2 4.3 22.6 17.1 12.1 - - - 41.7 4.7 23.3 15.1 10.1 - - -
72 41.5 4.2 29.3 24.2 19.2 14.1 - - 36.1 4.6 27.0 22.0 17.1 12.1 - -
67 35.9 4.1 35.9 31.3 26.2 21.2 16.1 - 30.6 4.4 30.6 29.0 24.0 19.1 14.1 -
62 30.8 4.2 30.8 30.8 30.3 25.3 20.2 15.2 25.6 4.5 25.6 25.6 25.6 21.5 16.5 11.6
57 33.1 4.0 33.1 33.1 29.9 24.8 19.8 14.7 29.5 4.3 29.5 29.5 26.3 21.4 16.5 11.5
1400
77 48.8 4.3 28.2 19.1 13.4 - - - 42.9 4.7 28.8 18.4 11.3 - - -
72 42.9 4.2 32.7 26.9 21.2 15.5 - - 37.2 4.6 30.2 24.6 19.0 13.4 - -
67 37.1 4.1 37.1 34.8 29.0 23.3 17.6 - 31.6 4.4 31.6 31.6 26.7 21.1 15.5 -
62 31.9 4.2 31.9 31.9 33.6 27.8 22.1 16.3 26.4 4.5 26.4 26.4 26.4 23.8 18.2 12.6
57 34.2 4.0 34.2 34.2 33.1 27.3 21.6 15.9 30.4 4.3 30.4 30.4 29.3 23.7 18.1 12.5
1600
77 50.4 4.3 33.8 21.1 14.7 - - - 44.2 4.7 34.2 21.8 12.4 - - -
72 44.3 4.2 36.1 29.7 23.2 16.8 - - 38.4 4.6 33.4 27.1 20.9 14.6 - -
67 38.3 4.1 38.3 38.2 31.8 25.4 19.0 - 32.5 4.4 32.5 32.5 29.4 23.1 16.9 -
62 32.9 4.2 32.9 32.9 36.8 30.4 23.9 17.5 27.2 4.5 27.2 27.2 27.2 26.1 19.8 13.6
57 35.4 4.0 35.4 35.4 36.2 29.8 23.4 17.0 31.3 4.3 31.3 31.3 31.3 26.0 19.7 13.5
1800
72 45.2 4.2 39.2 32.0 24.8 17.7 - - 39.1 4.6 36.4 29.4 22.4 15.4 - -
67 39.0 4.1 39.0 39.0 34.0 26.8 19.7 - 33.1 4.4 33.1 33.1 31.5 24.5 17.5 -
62 33.5 4.2 33.5 33.5 35.5 28.3 21.1 14.0 27.7 4.5 27.7 27.7 27.7 23.3 16.3 9.3
57 36.0 4.0 36.0 36.0 36.5 29.3 22.1 15.0 31.9 4.3 31.9 31.9 31.9 25.4 18.4 11.4
2000
72 46.0 4.2 42.2 34.3 26.4 18.5 - - 39.8 4.5 39.4 31.6 23.9 16.1 - -
67 39.7 4.1 39.7 39.7 36.2 28.3 20.3 - 33.7 4.4 33.7 33.7 33.6 25.8 18.1 -
62 34.1 4.2 34.1 34.1 34.1 26.2 18.3 10.4 28.2 4.5 28.2 28.2 28.2 20.5 12.7 5.0
57 36.7 4.0 36.7 36.7 36.7 28.8 20.9 12.9 32.5 4.3 32.5 32.5 32.5 24.8 17.1 9.3
1. These capacities are gross ratings. For net capacity, deduct air blower motor, MBh = 3.415 x kW. Refer to the appropriate Blower
Performance Table for the kW of the supply air blower motor.
2. These ratings include the condenser fan motors (total 1 kW) and the compressor motors but not the supply air blower motor.
ZJ049 (4.0 Ton) (Continued)
Air on
Evaporator Coil
Temperature of Air on Condenser Coil
Total
Capacity1
(MBh)
Total
Input
(kW)2
Sensible Capacity (MBh) Total
Capacity1
(MBh)
Total
Input
(kW)2
Sensible Capacity (MBh)
CFM WB
(°F)
Return Dry Bulb (°F) Return Dry Bulb (°F)
90 85 80 75 70 65 90 85 80 75 70 65

528150-YTG-G-1210
Johnson Controls Unitary Products 55
ZJ061 (5.0 Ton)
Air on
Evaporator Coil
Temperature of Air on Condenser Coil
Total
Capacity1
(MBh)
Total
Input
(kW)2
Sensible Capacity (MBh) Total
Capacity1
(MBh)
Total
Input
(kW)2
Sensible Capacity (MBh)
CFM WB
(°F)
Return Dry Bulb (°F) Return Dry Bulb (°F)
90 85 80 75 70 65 90 85 80 75 70 65
75°F 85°F
1250
77 79.8 3.1 35.0 28.5 22.5 - - - 74.2 3.6 32.0 26.2 20.4 - - -
72 72.2 3.1 42.9 36.9 30.9 24.9 - - 67.2 3.6 40.3 34.4 28.6 22.8 - -
67 64.6 3.2 50.8 45.3 39.3 33.2 27.2 - 60.1 3.6 48.5 42.7 36.9 31.1 25.3 -
62 57.1 3.1 57.1 57.1 47.4 41.4 35.4 29.4 53.6 3.5 53.6 53.6 44.7 38.9 33.0 27.2
1500
77 83.4 3.1 38.6 31.7 24.8 - - - 77.3 3.6 36.0 29.3 22.5 - - -
72 75.5 3.2 47.8 40.9 34.0 27.1 - - 70.0 3.6 45.1 38.4 31.6 24.9 - -
67 67.5 3.2 57.1 50.1 43.2 36.3 29.3 - 62.7 3.6 54.3 47.5 40.8 34.0 27.3 -
62 59.7 3.1 59.7 59.7 52.2 45.2 38.3 31.4 55.9 3.5 55.9 55.9 49.4 42.6 35.9 29.1
57 59.9 3.2 59.9 59.9 55.9 49.0 42.0 35.1 54.8 3.6 54.8 54.8 50.3 43.6 36.9 30.1
1750
77 87.0 3.2 42.3 34.9 27.0 - - - 80.4 3.7 40.0 32.3 24.7 - - -
72 78.8 3.2 52.8 44.9 37.1 29.2 - - 72.8 3.7 50.0 42.3 34.7 27.0 - -
67 70.5 3.2 63.3 55.0 47.1 39.3 31.4 - 65.2 3.6 60.0 52.3 44.7 37.0 29.3 -
62 62.3 3.1 62.3 62.3 56.9 49.1 41.2 33.4 58.1 3.6 58.1 58.1 54.1 46.4 38.7 31.0
57 62.4 3.2 62.4 62.4 61.0 53.2 45.3 37.5 57.0 3.6 57.0 57.0 55.1 47.5 39.8 32.1
2000
77 90.6 3.2 45.9 38.0 29.3 - - - 83.5 3.7 44.0 35.4 26.8 - - -
72 82.0 3.2 57.7 48.9 40.2 31.4 - - 75.6 3.7 54.9 46.3 37.7 29.1 - -
67 73.4 3.2 69.5 59.8 51.1 42.3 33.6 - 67.7 3.7 65.7 57.1 48.5 39.9 31.3 -
62 64.9 3.2 64.9 64.9 61.7 52.9 44.2 35.4 60.4 3.6 60.4 60.4 58.8 50.2 41.5 32.9
57 65.0 3.2 65.0 65.0 66.1 57.4 48.6 39.9 59.2 3.6 59.2 59.2 59.9 51.3 42.7 34.1
2250
72 84.2 3.2 62.2 52.6 43.0 33.4 - - 77.4 3.7 59.3 49.9 40.4 30.9 - -
67 75.4 3.2 73.4 64.3 54.7 45.1 35.5 - 69.3 3.7 68.3 61.5 52.0 42.6 33.1 -
62 66.6 3.2 66.6 66.6 65.0 55.4 45.8 36.2 61.8 3.6 61.8 61.8 61.0 51.5 42.1 32.6
57 66.8 3.2 66.8 66.8 67.3 57.7 48.1 38.5 60.7 3.6 60.7 60.7 61.0 51.5 42.1 32.6
2500
72 86.4 3.2 66.8 56.3 45.9 35.5 - - 79.2 3.7 63.7 53.4 43.1 32.8 - -
67 77.3 3.2 77.3 68.8 58.3 47.9 37.5 - 70.9 3.7 70.9 65.9 55.6 45.2 34.9 -
62 68.4 3.2 68.4 68.4 68.4 57.9 47.5 37.1 63.2 3.6 63.2 63.2 63.2 52.9 42.6 32.3
57 68.5 3.2 68.5 68.5 68.5 58.1 47.6 37.2 62.1 3.6 62.1 62.1 62.1 51.8 41.5 31.1
95°F 105°F
1250
77 68.5 4.1 29.0 23.9 18.2 - - - 63.5 4.5 25.6 22.1 16.6 - - -
72 62.1 4.1 37.6 32.0 26.4 20.8 - - 57.3 4.4 35.7 30.1 24.6 19.1 - -
67 55.7 4.0 46.2 40.1 34.5 28.9 23.3 - 51.0 4.4 45.7 38.1 32.6 27.1 21.5 -
62 50.1 4.0 50.1 50.1 41.9 36.3 30.7 25.1 46.7 4.3 46.7 46.7 38.4 32.8 27.3 21.8
1500
77 71.1 4.1 33.4 26.8 20.3 - - - 65.8 4.5 31.5 25.0 18.5 - - -
72 64.5 4.1 42.4 35.9 29.3 22.7 - - 59.3 4.5 40.4 33.9 27.4 20.9 - -
67 57.8 4.1 51.5 44.9 38.3 31.8 25.2 - 52.8 4.4 49.3 42.8 36.3 29.8 23.3 -
62 52.0 4.0 52.0 52.0 46.6 40.0 33.4 26.9 48.4 4.3 48.4 48.4 42.7 36.2 29.7 23.2
57 49.8 4.0 49.8 49.8 44.8 38.2 31.7 25.1 46.4 4.3 46.4 46.4 41.7 35.2 28.7 22.2
1750
77 73.7 4.2 37.8 29.8 22.3 - - - 68.1 4.6 37.3 27.8 20.4 - - -
72 66.8 4.1 47.3 39.7 32.2 24.7 - - 61.4 4.5 45.1 37.7 30.2 22.7 - -
67 59.9 4.1 56.7 49.7 42.2 34.7 27.2 - 54.7 4.5 52.9 47.5 40.0 32.5 25.1 -
62 53.9 4.0 53.9 53.9 51.2 43.7 36.2 28.7 50.1 4.4 50.1 50.1 47.1 39.6 32.1 24.7
57 51.6 4.0 51.6 51.6 49.3 41.8 34.2 26.7 48.1 4.4 48.1 48.1 45.9 38.5 31.0 23.5
2000
77 76.3 4.2 42.2 32.8 24.3 - - - 70.4 4.6 43.1 30.7 22.3 - - -
72 69.2 4.1 52.1 43.6 35.2 26.7 - - 63.5 4.5 49.8 41.4 33.0 24.6 - -
67 62.0 4.1 62.0 54.5 46.0 37.5 29.1 - 56.5 4.5 56.5 52.1 43.7 35.3 26.9 -
62 55.8 4.0 55.8 55.8 55.9 47.4 38.9 30.5 51.8 4.4 51.8 51.8 51.4 43.0 34.6 26.2
57 53.4 4.0 53.4 53.4 53.7 45.3 36.8 28.4 49.7 4.4 49.7 49.7 50.2 41.7 33.3 24.9
2250
72 70.6 4.2 56.4 47.1 37.7 28.4 - - 64.6 4.6 54.1 44.8 35.5 26.2 - -
67 63.3 4.1 63.3 58.7 49.4 40.1 30.7 - 57.6 4.5 57.6 55.0 47.0 37.8 28.5 -
62 57.0 4.0 57.0 57.0 57.0 47.7 38.3 29.0 52.8 4.4 52.8 52.8 52.6 43.3 34.0 24.7
57 54.5 4.0 54.5 54.5 54.7 45.4 36.0 26.7 50.6 4.4 50.6 50.6 50.8 41.6 32.3 23.0
2500
72 72.0 4.2 60.7 50.5 40.3 30.1 - - 65.8 4.6 58.3 48.2 38.0 27.9 - -
67 64.6 4.1 64.6 63.0 52.8 42.6 32.4 - 58.6 4.5 58.6 57.8 50.4 40.2 30.1 -
62 58.1 4.0 58.1 58.1 58.1 48.0 37.8 27.6 53.7 4.4 53.7 53.7 53.7 43.6 33.4 23.3
57 55.7 4.0 55.7 55.7 55.7 45.5 35.3 25.1 51.5 4.4 51.5 51.5 51.5 41.4 31.2 21.1

528150-YTG-G-1210
56 Johnson Controls Unitary Products
115°F 125°F
1250
77 58.5 4.9 22.3 20.4 14.9 - - - 53.4 5.3 21.9 17.7 13.3 - - -
72 52.4 4.8 33.7 28.3 22.8 17.4 - - 47.6 5.2 31.8 26.4 21.0 15.6 - -
67 46.3 4.7 45.1 36.1 30.7 25.2 19.8 - 41.7 5.1 41.7 34.1 28.7 23.4 18.0 -
62 43.3 4.7 43.3 43.3 34.8 29.3 23.9 18.4 40.0 5.0 40.0 40.0 31.2 25.8 20.5 15.1
1500
77 60.5 4.9 29.6 23.1 16.7 - - - 55.1 5.3 29.6 21.3 14.9 - - -
72 54.2 4.9 38.3 31.9 25.5 19.0 - - 49.1 5.3 36.3 29.9 23.6 17.2 - -
67 47.9 4.8 47.1 40.7 34.3 27.8 21.4 - 43.0 5.2 43.0 38.6 32.2 25.8 19.5 -
62 44.8 4.7 44.8 44.8 38.9 32.4 26.0 19.6 41.2 5.1 41.2 41.2 35.0 28.6 22.3 15.9
57 43.1 4.7 43.1 43.1 38.5 32.1 25.7 19.2 39.7 5.1 39.7 39.7 35.4 29.0 22.6 16.3
1750
77 62.5 5.0 36.8 25.9 18.4 - - - 56.8 5.4 37.4 24.8 16.5 - - -
72 56.0 4.9 43.0 35.6 28.1 20.7 - - 50.6 5.3 40.8 33.5 26.1 18.7 - -
67 49.5 4.8 49.1 45.3 37.8 30.4 23.0 - 44.3 5.2 44.3 43.0 35.7 28.3 20.9 -
62 46.3 4.7 46.3 46.3 42.9 35.5 28.1 20.7 42.5 5.1 42.5 42.5 38.8 31.4 24.1 16.7
57 44.5 4.7 44.5 44.5 42.6 35.1 27.7 20.3 40.9 5.1 40.9 40.9 39.2 31.8 24.5 17.1
2000
77 64.5 5.0 44.1 28.6 20.2 - - - 58.5 5.5 45.1 28.4 18.1 - - -
72 57.8 5.0 47.6 39.2 30.8 22.4 - - 52.1 5.4 45.4 37.0 28.6 20.3 - -
67 51.1 4.9 51.1 49.8 41.4 33.0 24.6 - 45.6 5.3 45.6 45.6 39.2 30.8 22.4 -
62 47.8 4.8 47.8 47.8 47.0 38.6 30.2 21.8 43.8 5.2 43.8 43.8 42.6 34.2 25.9 17.5
57 45.9 4.8 45.9 45.9 46.6 38.2 29.8 21.4 42.2 5.2 42.2 42.2 42.2 34.7 26.3 17.9
2250
72 58.7 5.0 51.8 42.5 33.3 24.0 - - 52.7 5.4 49.5 40.2 31.0 21.8 - -
67 51.9 4.9 51.9 51.3 44.7 35.5 26.2 - 46.2 5.3 46.2 46.2 42.4 33.1 23.9 -
62 48.6 4.8 48.6 48.6 48.2 38.9 29.6 20.4 44.3 5.2 44.3 44.3 43.7 34.5 25.3 16.1
57 46.7 4.8 46.7 46.7 47.0 37.7 28.5 19.2 42.7 5.2 42.7 42.7 42.7 33.9 24.7 15.5
2500
72 59.6 5.0 55.9 45.8 35.7 25.6 - - 53.4 5.4 53.4 43.4 33.4 23.3 - -
67 52.7 4.9 52.7 52.7 48.0 37.9 27.7 - 46.8 5.3 46.8 46.8 45.6 35.5 25.4 -
62 49.3 4.8 49.3 49.3 49.3 39.2 29.1 19.0 44.9 5.2 44.9 44.9 44.9 34.8 24.7 14.6
57 47.4 4.8 47.4 47.4 47.4 37.3 27.1 17.0 43.3 5.2 43.3 43.3 43.3 33.2 23.1 13.0
1. These capacities are gross ratings. For net capacity, deduct air blower motor, MBh = 3.415 x kW. Refer to the appropriate Blower
Performance Table for the kW of the supply air blower motor.
2. These ratings include the condenser fan motors (total 1 kW) and the compressor motors but not the supply air blower motor.
ZJ061 (5.0 Ton) (Continued)
Air on
Evaporator Coil
Temperature of Air on Condenser Coil
Total
Capacity1
(MBh)
Total
Input
(kW)2
Sensible Capacity (MBh) Total
Capacity1
(MBh)
Total
Input
(kW)2
Sensible Capacity (MBh)
CFM WB
(°F)
Return Dry Bulb (°F) Return Dry Bulb (°F)
90 85 80 75 70 65 90 85 80 75 70 65

528150-YTG-G-1210
Johnson Controls Unitary Products 57
ZJ078 (6.5 Ton)
Air on
Evaporator Coil
Temperature of Air on Condenser Coil
Total
Capacity1
(MBh)
Total
Input
(kW)2
Sensible Capacity (MBh) Total
Capacity1
(MBh)
Total
Input
(kW)2
Sensible Capacity (MBh)
CFM WB
(°F)
Return Dry Bulb (°F) Return Dry Bulb (°F)
90 85 80 75 70 65 90 85 80 75 70 65
75°F 85°F
1625
77 106.7 4.6 46.4 38.6 31.0 - - - 98.2 5.1 42.4 35.0 27.6 - - -
72 97.0 4.5 57.0 49.4 41.7 34.1 - - 89.3 5.0 53.2 45.8 38.4 31.0 - -
67 87.2 4.5 67.6 60.1 52.4 44.8 37.2 - 80.3 5.0 63.9 56.5 49.1 41.7 34.3 -
62 78.3 4.6 78.3 71.0 62.1 54.4 46.8 39.1 72.1 5.0 72.1 67.6 57.7 50.3 42.9 35.5
1950
77 109.7 4.6 50.9 42.2 33.4 - - - 101.0 5.1 47.1 38.5 30.0 - - -
72 99.7 4.6 62.4 53.7 45.0 36.2 - - 91.8 5.1 58.7 50.2 41.7 33.2 - -
67 89.6 4.5 73.9 65.2 56.5 47.8 39.1 - 82.6 5.0 70.4 61.9 53.3 44.8 36.3 -
62 80.4 4.6 80.4 75.6 66.9 58.1 49.4 40.7 74.1 5.0 74.1 71.1 62.6 54.1 45.6 37.1
57 83.1 4.6 83.1 83.1 72.0 63.2 54.5 45.8 74.2 5.0 74.2 74.2 66.9 58.4 49.9 41.4
2275
77 112.6 4.6 55.3 45.7 35.9 - - - 103.8 5.1 51.7 42.0 32.4 - - -
72 102.3 4.6 67.8 58.0 48.2 38.4 - - 94.4 5.1 64.2 54.6 45.0 35.4 - -
67 92.1 4.5 80.3 70.4 60.6 50.8 41.0 - 84.9 5.0 76.8 67.2 57.6 47.9 38.3 -
62 82.6 4.6 82.6 80.2 71.7 61.9 52.1 42.3 76.2 5.0 76.2 74.7 67.6 58.0 48.3 38.7
57 85.3 4.6 85.3 85.3 77.1 67.3 57.5 47.7 76.3 5.0 76.3 76.3 72.2 62.6 53.0 43.4
2600
77 115.6 4.6 59.8 49.2 38.3 - - - 106.6 5.2 56.3 45.5 34.8 - - -
72 105.0 4.6 73.2 62.3 51.4 40.6 - - 96.9 5.1 69.8 59.0 48.3 37.6 - -
67 94.5 4.5 86.6 75.5 64.6 53.7 42.9 - 87.2 5.1 83.3 72.5 61.8 51.1 40.3 -
62 84.8 4.6 84.8 84.8 76.5 65.6 54.7 43.8 78.2 5.1 78.2 78.2 72.6 61.8 51.1 40.3
57 87.6 4.6 87.6 87.6 82.3 71.4 60.6 49.7 78.4 5.0 78.4 78.4 77.6 66.8 56.1 45.3
2925
72 107.5 4.6 78.5 66.6 54.8 43.0 - - 99.1 5.1 74.7 63.0 51.4 39.7 - -
67 96.7 4.6 92.7 80.7 68.8 57.0 45.2 - 89.2 5.1 87.2 77.4 65.7 54.1 42.5 -
62 86.7 4.6 86.7 86.7 82.6 70.8 58.9 47.1 80.0 5.1 80.0 80.0 77.2 65.5 53.9 42.2
57 89.6 4.6 89.6 89.6 87.0 75.2 63.3 51.5 80.1 5.1 80.1 80.1 79.7 68.1 56.4 44.8
3250
72 109.9 4.6 83.7 70.9 58.2 45.4 - - 101.3 5.1 79.5 67.0 54.5 41.9 - -
67 98.8 4.6 98.8 85.8 73.1 60.3 47.5 - 91.2 5.1 91.2 82.2 69.7 57.2 44.6 -
62 88.7 4.6 88.7 88.7 88.7 75.9 63.2 50.4 81.8 5.1 81.8 81.8 81.8 69.2 56.7 44.1
57 91.6 4.6 91.6 91.6 91.6 78.9 66.1 53.3 81.9 5.1 81.9 81.9 81.9 69.3 56.8 44.3
95°F 105°F
1625
77 89.6 5.6 38.5 31.4 24.3 - - - 80.9 6.2 33.0 28.4 21.5 - - -
72 81.5 5.5 49.3 42.2 35.0 27.9 - - 73.1 6.1 45.5 38.6 31.8 25.0 - -
67 73.4 5.5 60.2 52.9 45.8 38.6 31.5 - 65.3 6.0 57.9 48.9 42.1 35.2 28.4 -
62 65.8 5.4 65.8 64.2 53.3 46.1 39.0 31.8 58.3 5.9 58.3 57.5 47.9 41.1 34.2 27.4
1950
77 92.3 5.6 43.2 34.9 26.6 - - - 83.8 6.2 40.0 31.9 23.9 - - -
72 84.0 5.6 55.0 46.7 38.4 30.1 - - 75.7 6.1 51.4 43.3 35.3 27.2 - -
67 75.6 5.5 66.8 58.5 50.2 41.9 33.6 - 67.7 6.0 62.8 54.7 46.7 38.6 30.5 -
62 67.8 5.5 67.8 66.7 58.4 50.1 41.8 33.5 60.4 5.9 60.4 59.9 53.1 45.0 37.0 28.9
57 65.4 5.4 65.4 65.4 61.9 53.6 45.3 37.0 61.0 5.9 61.0 61.0 55.7 47.7 39.6 31.6
2275
77 95.0 5.7 48.0 38.4 29.0 - - - 86.7 6.3 46.9 35.5 26.2 - - -
72 86.4 5.6 60.7 51.2 41.8 32.3 - - 78.4 6.1 57.2 48.0 38.7 29.4 - -
67 77.8 5.5 73.4 64.0 54.6 45.1 35.7 - 70.1 6.0 67.6 60.5 51.2 42.0 32.7 -
62 69.8 5.5 69.8 69.2 63.5 54.1 44.6 35.2 62.5 5.9 62.5 62.2 58.3 49.0 39.7 30.5
57 67.2 5.5 67.2 67.2 67.3 57.9 48.4 39.0 63.2 6.0 63.2 63.2 61.2 51.9 42.6 33.4
2600
77 97.6 5.7 52.7 41.9 31.3 - - - 89.7 6.3 53.8 39.0 28.5 - - -
72 88.8 5.6 66.4 55.8 45.1 34.5 - - 81.0 6.2 63.1 52.6 42.2 31.7 - -
67 80.0 5.6 80.0 69.6 59.0 48.4 37.8 - 72.4 6.1 72.4 66.3 55.8 45.3 34.8 -
62 71.7 5.5 71.7 71.7 68.7 58.1 47.5 36.8 64.6 6.0 64.6 64.6 63.5 53.0 42.5 32.0
57 69.1 5.5 69.1 69.1 72.8 62.2 51.6 40.9 65.3 6.0 65.3 65.3 66.6 56.1 45.7 35.2
2925
72 90.7 5.7 70.9 59.4 47.9 36.5 - - 82.6 6.2 67.2 55.9 44.7 33.4 - -
67 81.7 5.6 81.7 74.1 62.7 51.2 39.7 - 73.8 6.1 73.8 69.5 59.1 47.8 36.6 -
62 73.3 5.5 73.3 73.3 71.7 60.3 48.8 37.4 65.9 6.0 65.9 65.9 65.3 54.0 42.7 31.5
57 70.6 5.5 70.6 70.6 72.5 61.0 49.5 38.1 66.6 6.0 66.6 66.6 67.2 55.9 44.7 33.4
3250
72 92.7 5.7 75.4 63.1 50.7 38.4 - - 84.2 6.2 71.3 59.2 47.2 35.1 - -
67 83.5 5.6 83.5 78.6 66.3 54.0 41.7 - 75.2 6.1 75.2 72.8 62.4 50.4 38.3 -
62 74.8 5.5 74.8 74.8 74.8 62.5 50.2 37.9 67.1 6.0 67.1 67.1 67.1 55.1 43.0 30.9
57 72.1 5.5 72.1 72.1 72.1 59.8 47.5 35.2 67.8 6.0 67.8 67.8 67.8 55.7 43.7 31.6

528150-YTG-G-1210
58 Johnson Controls Unitary Products
115°F 125°F
1625
77 72.1 6.8 27.6 25.3 18.8 - - - 63.3 7.3 26.5 21.1 16.1 - - -
72 64.6 6.6 41.6 35.1 28.6 22.1 - - 56.2 7.1 37.8 31.6 25.4 19.2 - -
67 57.2 6.4 55.6 44.9 38.4 31.9 25.4 - 49.1 6.9 49.1 40.9 34.7 28.5 22.3 -
62 50.7 6.3 50.7 50.7 42.5 36.0 29.5 23.0 43.2 6.8 43.2 43.2 37.2 31.0 24.8 18.6
1950
77 75.3 6.8 36.7 28.9 21.1 - - - 66.8 7.4 36.3 25.9 18.4 - - -
72 67.5 6.6 47.7 39.9 32.1 24.3 - - 59.3 7.2 44.1 36.5 29.0 21.4 - -
67 59.8 6.5 58.7 50.9 43.1 35.3 27.5 - 51.8 7.0 51.8 47.1 39.6 32.1 24.5 -
62 53.0 6.4 53.0 53.0 47.8 40.0 32.2 24.4 45.6 6.8 45.6 45.6 42.5 34.9 27.4 19.8
57 56.6 6.4 56.6 56.6 49.6 41.8 34.0 26.2 52.3 6.9 52.3 52.3 43.4 35.9 28.4 20.8
2275
77 78.5 6.8 45.8 32.5 23.4 - - - 70.2 7.4 46.1 30.7 20.7 - - -
72 70.4 6.7 53.8 44.7 35.6 26.6 - - 62.4 7.2 50.3 41.5 32.6 23.7 - -
67 62.3 6.5 61.8 56.9 47.8 38.8 29.7 - 54.6 7.0 54.6 53.4 44.5 35.6 26.7 -
62 55.3 6.4 55.3 55.3 53.0 43.9 34.9 25.8 48.0 6.8 48.0 48.0 47.8 38.9 30.0 21.1
57 59.1 6.4 59.1 59.1 55.0 46.0 36.9 27.8 55.0 6.9 55.0 55.0 48.9 40.0 31.1 22.2
2600
77 81.7 6.9 54.9 36.1 25.7 - - - 73.7 7.5 56.0 35.5 23.0 - - -
72 73.3 6.7 59.9 49.5 39.2 28.8 - - 65.5 7.2 56.6 46.4 36.2 25.9 - -
67 64.9 6.6 64.9 62.9 52.6 42.2 31.9 - 57.3 7.0 57.3 57.3 49.4 39.1 28.9 -
62 57.5 6.4 57.5 57.5 58.3 47.9 37.5 27.2 50.4 6.9 50.4 50.4 50.4 42.8 32.6 22.3
57 61.5 6.5 61.5 61.5 60.5 50.1 39.7 29.4 57.6 7.0 57.6 57.6 54.3 44.1 33.8 23.6
2925
72 74.5 6.7 63.6 52.5 41.4 30.3 - - 66.4 7.3 59.9 49.0 38.1 27.2 - -
67 65.9 6.6 65.9 65.0 55.6 44.5 33.4 - 58.0 7.1 58.0 58.0 52.0 41.1 30.2 -
62 58.5 6.5 58.5 58.5 58.8 47.7 36.6 25.5 51.1 6.9 51.1 51.1 51.1 41.5 30.6 19.6
57 62.5 6.5 62.5 62.5 62.0 50.9 39.8 28.7 58.4 7.0 58.4 58.4 56.8 45.8 34.9 24.0
3250
72 75.7 6.8 67.3 55.4 43.6 31.8 - - 67.2 7.3 63.2 51.6 40.0 28.4 - -
67 67.0 6.6 67.0 67.0 58.5 46.7 34.9 - 58.8 7.1 58.8 58.8 54.7 43.1 31.5 -
62 59.4 6.5 59.4 59.4 59.4 47.6 35.8 23.9 51.7 7.0 51.7 51.7 51.7 40.1 28.5 16.9
57 63.5 6.5 63.5 63.5 63.5 51.7 39.8 28.0 59.2 7.1 59.2 59.2 59.2 47.6 36.0 24.4
1. These capacities are gross ratings. For net capacity, deduct air blower motor, MBh = 3.415 x kW. Refer to the appropriate Blower
Performance Table for the kW of the supply air blower motor.
2. These ratings include the condenser fan motors (total 1 kW) and the compressor motors but not the supply air blower motor.
ZJ078 (6.5 Ton) (Continued)
Air on
Evaporator Coil
Temperature of Air on Condenser Coil
Total
Capacity1
(MBh)
Total
Input
(kW)2
Sensible Capacity (MBh) Total
Capacity1
(MBh)
Total
Input
(kW)2
Sensible Capacity (MBh)
CFM WB
(°F)
Return Dry Bulb (°F) Return Dry Bulb (°F)
90 85 80 75 70 65 90 85 80 75 70 65

528150-YTG-G-1210
Johnson Controls Unitary Products 59
ZJ090 (7.5 Ton)
Air on
Evaporator Coil
Temperature of Air on Condenser Coil
Total
Capacity1
(MBh)
Total
Input
(kW)2
Sensible Capacity (MBh) Total
Capacity1
(MBh)
Total
Input
(kW)2
Sensible Capacity (MBh)
CFM WB
(°F)
Return Dry Bulb (°F) Return Dry Bulb (°F)
90 85 80 75 70 65 90 85 80 75 70 65
75°F 85°F
1875
77 125.0 5.7 53.1 44.4 35.6 - - - 116.4 6.3 49.2 40.5 31.7 - - -
72 113.1 5.6 65.8 57.1 48.3 39.5 - - 105.3 6.2 62.2 53.5 44.7 36.0 - -
67 101.1 5.6 78.5 69.8 61.0 52.2 43.5 - 94.3 6.1 75.2 66.5 57.7 49.0 40.3 -
62 88.8 5.5 88.8 88.8 73.3 64.6 55.8 47.0 83.0 6.1 83.0 83.0 70.3 61.5 52.8 44.0
2250
77 131.0 5.7 59.5 49.2 39.0 - - - 121.4 6.4 55.1 45.0 34.8 - - -
72 118.5 5.7 73.4 63.2 52.9 42.7 - - 109.8 6.3 69.4 59.2 49.0 38.8 - -
67 106.0 5.6 87.3 77.1 66.8 56.6 46.4 - 98.3 6.2 83.6 73.4 63.3 53.1 42.9 -
62 93.1 5.6 93.1 93.1 80.4 70.2 59.9 49.7 86.5 6.1 86.5 86.5 77.0 66.8 56.6 46.4
57 93.6 5.5 93.6 93.6 87.2 77.0 66.8 56.5 87.3 6.1 87.3 87.3 79.8 69.6 59.4 49.2
2625
77 137.0 5.7 65.8 54.1 42.4 - - - 126.3 6.4 61.1 49.4 37.8 - - -
72 123.9 5.7 80.9 69.3 57.6 45.9 - - 114.3 6.3 76.5 64.9 53.3 41.7 - -
67 110.8 5.6 96.1 84.4 72.7 61.0 49.3 - 102.3 6.2 92.0 80.4 68.8 57.1 45.5 -
62 97.3 5.6 97.3 97.3 87.5 75.8 64.1 52.4 90.0 6.1 90.0 90.0 83.7 72.0 60.4 48.8
57 97.8 5.6 97.8 97.8 94.9 83.2 71.5 59.8 90.9 6.1 90.9 90.9 86.8 75.1 63.5 51.9
3000
77 142.9 5.8 72.1 59.0 45.8 - - - 131.3 6.5 67.0 53.9 40.8 - - -
72 129.3 5.7 88.5 75.4 62.2 49.1 - - 118.8 6.4 83.7 70.6 57.6 44.5 - -
67 115.7 5.7 104.9 91.7 78.6 65.4 52.3 - 106.3 6.3 100.4 87.4 74.3 61.2 48.1 -
62 101.6 5.6 101.6 101.6 94.5 81.3 68.2 55.0 93.6 6.2 93.6 93.6 90.4 77.3 64.2 51.2
57 102.1 5.6 102.1 102.1 102.5 89.4 76.2 63.1 94.5 6.2 94.5 94.5 93.7 80.6 67.6 54.5
3375
72 132.4 5.7 95.5 80.9 66.2 51.6 - - 121.6 6.4 90.7 76.2 61.6 47.0 - -
67 118.4 5.7 113.0 98.3 83.7 69.0 54.4 - 108.8 6.3 105.8 94.1 79.5 65.0 50.4 -
62 104.0 5.6 104.0 104.0 100.5 85.8 71.2 56.6 95.7 6.2 95.7 95.7 94.1 79.6 65.0 50.5
57 104.6 5.6 104.6 104.6 104.8 90.1 75.5 60.9 96.7 6.2 96.7 96.7 96.3 81.7 67.2 52.6
3750
72 135.5 5.7 102.5 86.4 70.3 54.2 - - 124.3 6.4 97.7 81.7 65.7 49.6 - -
67 121.2 5.7 121.2 104.8 88.7 72.7 56.6 - 111.2 6.3 111.2 100.8 84.7 68.7 52.7 -
62 106.4 5.6 106.4 106.4 106.4 90.3 74.2 58.2 97.9 6.2 97.9 97.9 97.9 81.9 65.8 49.8
57 107.0 5.6 107.0 107.0 107.0 90.9 74.8 58.7 98.8 6.2 98.8 98.8 98.8 82.8 66.8 50.7
95°F 105°F
1875
77 107.8 7.0 45.3 36.6 27.9 - - - 99.1 7.6 39.5 33.4 24.8 - - -
72 97.6 6.9 58.6 49.9 41.2 32.5 - - 89.4 7.5 55.1 46.5 37.9 29.3 - -
67 87.4 6.7 71.9 63.2 54.5 45.8 37.1 - 79.6 7.3 70.7 59.6 51.0 42.4 33.8 -
62 77.1 6.6 77.1 77.1 67.2 58.4 49.7 41.0 70.5 7.1 70.5 70.5 63.1 54.5 45.9 37.3
2250
77 111.8 7.1 50.8 40.7 30.5 - - - 102.3 7.7 47.3 37.3 27.3 - - -
72 101.2 6.9 65.4 55.2 45.1 35.0 - - 92.2 7.5 61.7 51.7 41.7 31.6 - -
67 90.6 6.8 79.9 69.8 59.7 49.5 39.4 - 82.2 7.3 76.1 66.0 56.0 46.0 36.0 -
62 79.9 6.7 79.9 79.9 73.5 63.4 53.2 43.1 72.7 7.2 72.7 72.7 69.3 59.3 49.3 39.3
57 81.1 6.6 81.1 81.1 72.4 62.2 52.1 42.0 75.0 7.2 75.0 75.0 66.9 56.9 46.9 36.9
2625
77 115.7 7.1 56.3 44.7 33.2 - - - 105.4 7.8 55.1 41.1 29.7 - - -
72 104.8 7.0 72.1 60.6 49.0 37.4 - - 95.1 7.6 68.3 56.8 45.4 34.0 - -
67 93.8 6.8 88.0 76.4 64.8 53.3 41.7 - 84.7 7.4 81.4 72.5 61.1 49.6 38.2 -
62 82.8 6.7 82.8 82.8 79.9 68.3 56.8 45.2 75.0 7.2 75.0 75.0 75.5 64.1 52.7 41.2
57 84.0 6.7 84.0 84.0 78.6 67.1 55.5 43.9 77.3 7.2 77.3 77.3 72.9 61.5 50.1 38.6
3000
77 119.7 7.2 61.8 48.8 35.8 - - - 108.6 7.8 62.9 45.0 32.2 - - -
72 108.3 7.0 78.9 65.9 52.9 39.9 - - 97.9 7.6 74.8 62.0 49.1 36.3 - -
67 97.0 6.9 96.0 83.0 70.0 57.0 44.0 - 87.3 7.4 86.7 79.0 66.1 53.3 40.4 -
62 85.6 6.8 85.6 85.6 86.3 73.3 60.3 47.3 77.2 7.3 77.2 77.2 81.8 68.9 56.0 43.2
57 86.8 6.7 86.8 86.8 84.9 71.9 58.9 45.9 79.6 7.3 79.6 79.6 78.9 66.1 53.2 40.4
3375
72 110.7 7.0 86.0 71.5 57.0 42.5 - - 99.7 7.7 81.7 67.4 53.0 38.6 - -
67 99.2 6.9 98.6 89.9 75.4 60.9 46.4 - 88.9 7.5 88.6 83.6 71.3 57.0 42.6 -
62 87.5 6.8 87.5 87.5 87.8 73.3 58.8 44.3 78.7 7.3 78.7 78.7 80.9 66.6 52.2 37.9
57 88.8 6.7 88.8 88.8 87.8 73.3 58.8 44.3 81.1 7.3 81.1 81.1 80.7 66.4 52.0 37.7
3750
72 113.1 7.0 93.0 77.0 61.0 45.0 - - 101.6 7.7 88.6 72.8 56.9 41.0 - -
67 101.3 6.9 101.3 96.7 80.7 64.7 48.7 - 90.5 7.5 90.5 88.2 76.5 60.7 44.8 -
62 89.4 6.8 89.4 89.4 89.4 73.4 57.4 41.4 80.1 7.3 80.1 80.1 80.1 64.3 48.4 32.5
57 90.7 6.8 90.7 90.7 90.7 74.7 58.7 42.7 82.5 7.3 82.5 82.5 82.5 66.7 50.8 34.9

528150-YTG-G-1210
60 Johnson Controls Unitary Products
115°F 125°F
1875
77 90.4 8.3 33.6 30.2 21.8 - - - 81.7 8.9 32.0 25.5 18.7 - - -
72 81.1 8.0 51.6 43.1 34.6 26.2 - - 72.9 8.6 48.1 39.7 31.4 23.0 - -
67 71.9 7.8 69.5 56.0 47.5 39.0 30.6 - 64.1 8.3 64.1 52.4 44.0 35.7 27.3 -
62 63.9 7.6 63.9 63.9 59.0 50.5 42.0 33.6 57.3 8.1 57.3 57.3 57.3 46.5 38.2 29.8
2250
77 92.7 8.3 43.8 33.9 24.0 - - - 83.2 9.0 43.2 30.5 20.7 - - -
72 83.2 8.1 58.0 48.1 38.2 28.3 - - 74.3 8.7 54.3 44.5 34.8 25.0 - -
67 73.7 7.9 72.2 62.3 52.4 42.5 32.6 - 65.3 8.4 65.3 58.5 48.8 39.0 29.3 -
62 65.6 7.7 65.6 65.6 65.1 55.2 45.3 35.4 58.4 8.2 58.4 58.4 58.4 51.1 41.3 31.6
57 68.8 7.7 68.8 68.8 61.5 51.6 41.7 31.8 62.7 8.3 62.7 62.7 56.0 46.3 36.5 26.8
2625
77 95.1 8.4 53.9 37.5 26.3 - - - 84.8 9.1 54.4 35.5 22.8 - - -
72 85.4 8.2 64.4 53.1 41.8 30.5 - - 75.7 8.8 60.5 49.3 38.2 27.0 - -
67 75.6 7.9 74.8 68.6 57.3 46.0 34.7 - 66.5 8.5 66.5 64.7 53.5 42.4 31.2 -
62 67.2 7.7 67.2 67.2 71.2 59.9 48.6 37.3 59.5 8.2 59.5 59.5 59.5 55.6 44.5 33.3
57 70.6 7.8 70.6 70.6 67.2 55.9 44.6 33.3 63.9 8.4 63.9 63.9 61.5 50.4 39.2 28.0
3000
77 97.5 8.5 64.0 41.2 28.5 - - - 86.4 9.1 65.7 40.5 24.8 - - -
72 87.5 8.2 70.8 58.1 45.4 32.6 - - 77.1 8.8 66.7 54.1 41.6 29.0 - -
67 77.5 8.0 77.5 74.9 62.2 49.5 36.8 - 67.8 8.6 67.8 67.8 58.3 45.8 33.2 -
62 68.9 7.8 68.9 68.9 77.2 64.5 51.8 39.1 60.6 8.3 60.6 60.6 60.6 60.2 47.6 35.0
57 72.3 7.9 72.3 72.3 73.0 60.3 47.6 34.8 65.1 8.4 65.1 65.1 65.1 54.4 41.9 29.3
3375
72 88.7 8.3 77.5 63.3 49.1 34.8 - - 77.7 8.9 73.3 59.2 45.1 31.0 - -
67 78.6 8.0 78.6 77.3 67.3 53.1 38.8 - 68.3 8.6 68.3 68.3 63.3 49.2 35.1 -
62 69.9 7.8 69.9 69.9 74.1 59.8 45.6 31.4 61.1 8.4 61.1 61.1 61.1 53.1 39.0 24.9
57 73.4 7.9 73.4 73.4 73.7 59.5 45.2 31.0 65.7 8.5 65.7 65.7 65.7 52.5 38.4 24.3
3750
72 90.0 8.3 84.3 68.5 52.8 37.0 - - 78.4 8.9 78.4 64.3 48.6 33.0 - -
67 79.7 8.1 79.7 79.7 72.4 56.6 40.9 - 68.9 8.6 68.9 68.9 68.2 52.6 37.0 -
62 70.9 7.9 70.9 70.9 70.9 55.1 39.4 23.6 61.6 8.4 61.6 61.6 61.6 46.0 30.4 14.8
57 74.4 7.9 74.4 74.4 74.4 58.7 42.9 27.2 66.3 8.5 66.3 66.3 66.3 50.6 35.0 19.4
1. These capacities are gross ratings. For net capacity, deduct air blower motor, MBh = 3.415 x kW. Refer to the appropriate Blower
Performance Table for the kW of the supply air blower motor.
2. These ratings include the condenser fan motors (total 1 kW) and the compressor motors but not the supply air blower motor.
ZJ090 (7.5 Ton) (Continued)
Air on
Evaporator Coil
Temperature of Air on Condenser Coil
Total
Capacity1
(MBh)
Total
Input
(kW)2
Sensible Capacity (MBh) Total
Capacity1
(MBh)
Total
Input
(kW)2
Sensible Capacity (MBh)
CFM WB
(°F)
Return Dry Bulb (°F) Return Dry Bulb (°F)
90 85 80 75 70 65 90 85 80 75 70 65

528150-YTG-G-1210
Johnson Controls Unitary Products 61
ZJ102 (8.5 Ton)
Air on
Evaporator Coil
Temperature of Air on Condenser Coil
Total
Capacity1
(MBh)
Total
Input
(kW)2
Sensible Capacity (MBh) Total
Capacity1
(MBh)
Total
Input
(kW)2
Sensible Capacity (MBh)
CFM WB
(°F)
Return Dry Bulb (°F) Return Dry Bulb (°F)
90 85 80 75 70 65 90 85 80 75 70 65
75°F 85°F
2125
77 136.0 6.1 61.5 49.5 38.6 - - - 127.6 6.8 56.3 45.7 35.0 - - -
72 124.0 6.0 74.1 63.2 52.4 41.5 - - 116.0 6.7 70.2 59.6 48.9 38.3 - -
67 112.1 5.9 86.7 77.0 66.1 55.3 44.4 - 104.3 6.6 84.1 73.5 62.8 52.2 41.5 -
62 99.3 6.2 99.3 95.1 77.6 66.8 55.9 45.0 91.6 6.7 91.6 89.5 74.0 63.3 52.7 42.0
2550
77 141.0 6.1 67.2 54.7 42.3 - - - 132.1 6.8 63.0 50.7 38.4 - - -
72 128.6 6.0 82.2 69.8 57.4 44.9 - - 120.0 6.7 78.2 65.9 53.6 41.3 - -
67 116.2 5.9 97.3 84.9 72.5 60.0 47.6 - 107.9 6.6 93.5 81.2 68.9 56.6 44.3 -
62 102.9 6.2 102.9 100.1 85.0 72.6 60.1 47.7 94.8 6.7 94.8 93.4 81.1 68.8 56.5 44.2
57 99.4 8.7 99.4 99.4 91.2 78.7 66.3 53.8 93.6 6.5 93.6 93.6 85.3 73.0 60.7 48.4
2975
77 146.0 6.1 72.8 60.0 46.0 - - - 136.5 6.8 69.7 55.7 41.8 - - -
72 133.1 6.0 90.4 76.4 62.4 48.4 - - 124.0 6.7 86.3 72.3 58.4 44.4 - -
67 120.3 5.9 107.9 92.8 78.8 64.8 50.8 - 111.6 6.6 102.9 88.9 75.0 61.0 47.0 -
62 106.5 6.1 106.5 105.1 92.4 78.4 64.4 50.4 98.0 6.7 98.0 97.3 88.3 74.3 60.4 46.4
57 102.9 8.7 102.9 102.9 99.1 85.1 71.1 57.1 96.7 6.5 96.7 96.7 92.9 78.9 65.0 51.0
3400
77 151.0 6.0 78.5 65.2 49.7 - - - 141.0 6.8 76.4 60.8 45.2 - - -
72 137.7 5.9 98.5 82.9 67.4 51.8 - - 128.1 6.7 94.3 78.7 63.1 47.5 - -
67 124.4 5.8 118.5 100.6 85.1 69.5 53.9 - 115.2 6.6 112.3 96.6 81.0 65.4 49.8 -
62 110.2 6.1 110.2 110.2 99.8 84.3 68.7 53.1 101.2 6.8 101.2 101.2 95.4 79.8 64.2 48.6
57 106.5 8.7 106.5 106.5 107.0 91.5 75.9 60.3 99.9 6.5 99.9 99.9 100.4 84.8 69.2 53.6
3825
72 141.1 6.0 105.2 88.2 71.1 54.0 - - 131.1 6.7 101.2 84.1 67.1 50.0 - -
67 127.5 5.9 124.6 106.8 89.8 72.7 55.6 - 117.9 6.6 116.4 103.2 86.1 69.1 52.0 -
62 112.9 6.2 112.9 112.9 107.7 90.6 73.6 56.5 103.5 6.8 103.5 103.5 100.7 83.6 66.5 49.5
57 109.1 8.7 109.1 109.1 109.4 92.3 75.2 58.2 102.2 6.6 102.2 102.2 102.4 85.4 68.3 51.3
4250
72 144.5 6.1 112.0 93.4 74.8 56.3 - - 134.0 6.8 108.0 89.5 71.0 52.5 - -
67 130.6 6.0 130.6 113.0 94.5 75.9 57.3 - 120.6 6.7 120.6 109.7 91.2 72.7 54.2 -
62 115.6 6.2 115.6 115.6 115.6 97.0 78.4 59.9 105.9 6.8 105.9 105.9 105.9 87.4 68.9 50.4
57 111.7 8.8 111.7 111.7 111.7 93.2 74.6 56.0 104.5 6.6 104.5 104.5 104.5 86.0 67.5 49.0
95°F 105°F
2125
77 119.3 7.4 51.1 41.8 31.4 - - - 108.3 8.2 44.7 38.5 28.3 - - -
72 107.9 7.3 66.3 55.9 45.4 35.0 - - 97.7 8.0 62.2 52.0 41.8 31.6 - -
67 96.5 7.2 81.5 69.9 59.5 49.1 38.6 - 87.1 7.8 79.6 65.5 55.3 45.1 34.9 -
62 84.0 7.3 84.0 84.0 70.3 59.9 49.5 39.1 77.3 7.9 77.3 77.3 65.1 54.9 44.7 34.5
2550
77 123.1 7.5 58.8 46.7 34.5 - - - 111.8 8.2 55.2 43.2 31.2 - - -
72 111.4 7.4 74.2 62.1 49.9 37.7 - - 100.9 8.1 70.1 58.1 46.2 34.2 - -
67 99.7 7.2 89.7 77.5 65.3 53.1 41.0 - 90.0 7.9 85.0 73.0 61.1 49.1 37.2 -
62 86.7 7.3 86.7 86.7 77.2 65.1 52.9 40.7 79.8 7.9 79.8 79.8 71.9 60.0 48.0 36.1
57 87.7 7.1 87.7 87.7 79.5 67.4 55.2 43.0 80.7 7.8 80.7 80.7 72.5 60.5 48.6 36.6
2975
77 127.0 7.5 66.6 51.5 37.6 - - - 115.3 8.3 65.6 47.9 34.2 - - -
72 114.9 7.4 82.2 68.3 54.4 40.5 - - 104.1 8.1 78.0 64.3 50.6 36.9 - -
67 102.8 7.3 97.8 85.1 71.2 57.2 43.3 - 92.8 7.9 90.3 80.6 66.9 53.2 39.5 -
62 89.5 7.4 89.5 89.5 84.1 70.2 56.3 42.4 82.3 7.9 82.3 82.3 78.8 65.1 51.4 37.6
57 90.5 7.2 90.5 90.5 86.6 72.7 58.8 44.9 83.2 7.8 83.2 83.2 79.4 65.7 51.9 38.2
3400
77 130.9 7.6 74.3 56.3 40.7 - - - 118.9 8.3 76.1 52.6 37.2 - - -
72 118.5 7.4 90.2 74.5 58.8 43.2 - - 107.3 8.1 85.9 70.4 55.0 39.5 - -
67 106.0 7.3 106.0 92.7 77.0 61.3 45.7 - 95.7 8.0 95.7 88.2 72.7 57.3 41.8 -
62 92.2 7.4 92.2 92.2 91.0 75.4 59.7 44.1 84.8 8.0 84.8 84.8 85.6 70.2 54.7 39.2
57 93.3 7.2 93.3 93.3 93.8 78.1 62.4 46.8 85.8 7.8 85.8 85.8 86.3 70.8 55.3 39.9
3825
72 121.0 7.5 97.1 80.1 63.0 46.0 - - 109.5 8.2 92.8 75.9 59.0 42.1 - -
67 108.3 7.3 108.3 99.5 82.5 65.4 48.4 - 97.7 8.0 97.7 92.9 78.1 61.2 44.3 -
62 94.2 7.4 94.2 94.2 93.6 76.5 59.5 42.5 86.6 8.0 86.6 86.6 87.0 70.1 53.2 36.3
57 95.3 7.2 95.3 95.3 95.5 78.5 61.4 44.4 87.5 7.9 87.5 87.5 87.8 70.9 54.0 37.1
4250
72 123.5 7.5 104.1 85.6 67.2 48.8 - - 111.7 8.2 99.6 81.3 63.0 44.7 - -
67 110.5 7.4 110.5 106.4 87.9 69.5 51.1 - 99.6 8.0 99.6 97.6 83.4 65.1 46.8 -
62 96.2 7.5 96.2 96.2 96.2 77.7 59.3 40.8 88.4 8.0 88.4 88.4 88.4 70.1 51.7 33.4
57 97.3 7.3 97.3 97.3 97.3 78.8 60.4 41.9 89.3 7.9 89.3 89.3 89.3 71.0 52.7 34.4

528150-YTG-G-1210
62 Johnson Controls Unitary Products
115°F 125°F
2125
77 97.3 9.0 38.3 35.1 25.1 - - - 86.3 9.7 39.4 29.5 21.9 - - -
72 87.5 8.7 58.0 48.0 38.1 28.1 - - 77.4 9.4 53.9 44.1 34.4 24.6 - -
67 77.8 8.5 77.8 61.0 51.1 41.1 31.1 - 68.4 9.1 68.4 56.6 46.8 37.1 27.4 -
62 70.6 8.4 70.6 70.6 59.8 49.8 39.8 29.9 63.9 9.0 63.9 63.9 54.5 44.8 35.0 25.3
2550
77 100.5 9.0 51.5 39.7 28.0 - - - 89.1 9.8 52.8 36.2 24.7 - - -
72 90.4 8.8 65.9 54.1 42.4 30.7 - - 79.9 9.5 61.7 50.2 38.7 27.1 - -
67 80.3 8.5 80.3 68.6 56.9 45.1 33.4 - 70.6 9.2 70.6 64.2 52.6 41.1 29.6 -
62 72.9 8.4 72.9 72.9 66.6 54.9 43.1 31.4 66.0 9.0 66.0 66.0 61.3 49.8 38.2 26.7
57 73.6 8.4 73.6 73.6 65.4 53.7 41.9 30.2 66.6 10.4 66.6 66.6 58.3 46.8 35.3 23.8
2975
77 103.6 9.1 64.7 44.3 30.8 - - - 91.9 9.8 66.2 42.9 27.4 - - -
72 93.2 8.8 73.7 60.2 46.7 33.2 - - 82.4 9.5 69.5 56.2 42.9 29.6 - -
67 82.8 8.6 82.8 76.2 62.7 49.2 35.7 - 72.8 9.2 72.8 71.7 58.4 45.2 31.9 -
62 75.2 8.5 75.2 75.2 73.4 59.9 46.4 32.9 68.0 9.0 68.0 68.0 68.0 54.7 41.5 28.2
57 75.9 8.4 75.9 75.9 72.1 58.6 45.1 31.6 68.7 10.4 68.7 68.7 64.8 51.5 38.2 24.9
3400
77 106.8 9.1 77.9 48.9 33.7 - - - 94.7 9.9 79.6 49.5 30.2 - - -
72 96.1 8.9 81.6 66.3 51.1 35.8 - - 84.9 9.6 77.3 62.3 47.2 32.1 - -
67 85.3 8.6 85.3 83.8 68.5 53.2 38.0 - 75.0 9.3 75.0 75.0 64.2 49.2 34.1 -
62 77.5 8.5 77.5 77.5 80.2 64.9 49.7 34.4 70.1 9.1 70.1 70.1 70.1 59.7 44.7 29.6
57 78.3 8.4 78.3 78.3 78.8 63.5 48.2 33.0 70.7 10.5 70.7 70.7 70.7 56.2 41.1 26.1
3825
72 98.0 8.9 88.4 71.7 55.0 38.2 - - 86.5 9.6 84.0 67.5 50.9 34.4 - -
67 87.0 8.7 87.0 86.3 73.7 57.0 40.3 - 76.4 9.3 76.4 76.4 69.3 52.8 36.2 -
62 79.0 8.6 79.0 79.0 80.4 63.7 46.9 30.2 71.4 9.1 71.4 71.4 71.4 57.2 40.7 24.1
57 79.8 8.5 79.8 79.8 80.1 63.4 46.6 29.9 72.1 10.5 72.1 72.1 72.1 55.8 39.2 22.7
4250
72 99.9 8.9 95.2 77.0 58.8 40.7 - - 88.1 9.7 88.1 72.7 54.7 36.6 - -
67 88.8 8.7 88.8 88.8 78.9 60.7 42.5 - 77.9 9.4 77.9 77.9 74.4 56.3 38.3 -
62 80.6 8.6 80.6 80.6 80.6 62.4 44.2 26.0 72.8 9.2 72.8 72.8 72.8 54.7 36.7 18.6
57 81.4 8.5 81.4 81.4 81.4 63.2 45.0 26.9 73.5 10.6 73.5 73.5 73.5 55.4 37.4 19.3
1. These capacities are gross ratings. For net capacity, deduct air blower motor, MBh = 3.415 x kW. Refer to the appropriate Blower
Performance Table for the kW of the supply air blower motor.
2. These ratings include the condenser fan motors (total 1 kW) and the compressor motors but not the supply air blower motor.
ZJ102 (8.5 Ton) (Continued)
Air on
Evaporator Coil
Temperature of Air on Condenser Coil
Total
Capacity1
(MBh)
Total
Input
(kW)2
Sensible Capacity (MBh) Total
Capacity1
(MBh)
Total
Input
(kW)2
Sensible Capacity (MBh)
CFM WB
(°F)
Return Dry Bulb (°F) Return Dry Bulb (°F)
90 85 80 75 70 65 90 85 80 75 70 65

528150-YTG-G-1210
Johnson Controls Unitary Products 63
ZJ120 (10 Ton)
Air on
Evaporator Coil
Temperature of Air on Condenser Coil
Total
Capacity1
(MBh)
Total
Input
(kW)2
Sensible Capacity (MBh) Total
Capacity1
(MBh)
Total
Input
(kW)2
Sensible Capacity (MBh)
CFM WB
(°F)
Return Dry Bulb (°F) Return Dry Bulb (°F)
90 85 80 75 70 65 90 85 80 75 70 65
75°F 85°F
2500
77 159.5 7.3 63.5 52.6 41.7 - - - 148.2 8.2 61.1 50.3 39.4 - - -
72 145.9 7.2 83.1 72.2 61.3 50.4 - - 136.1 8.1 80.2 69.3 58.4 47.6 - -
67 132.2 7.1 102.7 91.8 80.9 70.0 59.1 - 124.0 8.0 99.3 88.4 77.5 66.6 55.8 -
62 123.1 7.0 123.1 118.4 99.0 88.1 77.2 66.3 114.8 7.9 114.8 112.5 95.6 84.8 73.9 63.0
3000
77 164.8 7.4 71.2 58.4 45.5 - - - 153.7 8.2 68.6 55.9 43.1 - - -
72 150.7 7.2 92.6 79.8 67.0 54.2 - - 141.1 8.1 89.5 76.7 64.0 51.3 - -
67 136.6 7.1 114.0 101.2 88.4 75.6 62.8 - 128.6 8.0 110.4 97.6 84.9 72.2 59.5 -
62 127.2 7.0 127.2 124.1 108.2 95.4 82.6 69.8 119.0 7.9 119.0 117.5 104.8 92.1 79.3 66.6
57 125.9 7.0 125.9 125.9 113.4 100.6 87.8 75.0 118.5 7.9 118.5 118.5 107.1 94.4 81.7 69.0
3500
77 170.1 7.4 78.9 64.2 49.4 - - - 159.1 8.2 76.0 61.5 46.9 - - -
72 155.5 7.3 102.1 87.4 72.7 57.9 - - 146.1 8.1 98.7 84.2 69.6 55.0 - -
67 140.9 7.1 125.4 110.6 95.9 81.2 66.5 - 133.1 8.1 121.5 106.9 92.3 77.7 63.2 -
62 131.2 7.1 131.2 129.7 117.5 102.7 88.0 73.3 123.3 8.0 123.3 122.5 113.9 99.3 84.8 70.2
57 129.9 7.0 129.9 129.9 123.1 108.3 93.6 78.9 122.7 7.9 122.7 122.7 116.5 101.9 87.3 72.8
4000
77 175.4 7.4 86.6 70.0 53.3 - - - 164.5 8.3 83.5 67.1 50.7 - - -
72 160.3 7.3 111.7 95.0 78.4 61.7 - - 151.1 8.2 108.0 91.6 75.2 58.8 - -
67 145.3 7.2 136.7 120.1 103.4 86.8 70.1 - 137.6 8.1 132.5 116.1 99.7 83.3 66.9 -
62 135.3 7.1 135.3 135.3 126.7 110.0 93.4 76.7 127.5 8.0 127.5 127.5 123.0 106.6 90.2 73.8
57 133.9 7.1 133.9 133.9 132.7 116.1 99.4 82.8 126.9 8.0 126.9 126.9 125.8 109.4 93.0 76.6
4500
72 164.1 7.4 118.0 100.1 82.2 64.4 - - 154.0 8.2 115.6 97.7 79.8 61.9 - -
67 148.7 7.2 144.4 126.4 108.5 90.7 72.8 - 140.3 8.1 137.7 123.7 105.8 87.9 70.1 -
62 138.4 7.1 138.4 138.4 134.1 116.3 98.4 80.5 129.9 8.0 129.9 129.9 127.7 109.8 91.9 74.0
57 137.0 7.1 137.0 137.0 136.4 118.6 100.7 82.8 129.3 8.0 129.3 129.3 128.8 110.9 93.0 75.1
5000
72 167.8 7.4 124.3 105.2 86.1 67.0 - - 156.8 8.2 123.1 103.7 84.4 65.0 - -
67 152.0 7.3 152.0 132.7 113.6 94.5 75.5 - 142.9 8.1 142.9 131.3 111.9 92.6 73.2 -
62 141.6 7.2 141.6 141.6 141.6 122.5 103.4 84.3 132.3 8.0 132.3 132.3 132.3 112.9 93.6 74.2
57 140.1 7.2 140.1 140.1 140.1 121.0 101.9 82.9 131.7 8.0 131.7 131.7 131.7 112.4 93.0 73.7
95°F 105°F
2500
77 136.9 9.0 58.8 47.9 37.1 - - - 125.0 10.0 52.9 44.3 33.5 - - -
72 126.4 8.9 77.3 66.5 55.6 44.8 - - 115.5 10.0 73.3 62.5 51.7 40.9 - -
67 115.8 8.9 95.9 85.0 74.1 63.3 52.4 - 105.9 10.0 93.6 80.7 69.9 59.1 48.3 -
62 106.6 8.8 106.6 106.6 92.2 81.4 70.5 59.7 98.2 9.9 98.2 98.2 86.0 75.2 64.5 53.7
3000
77 142.5 9.0 66.0 53.4 40.7 - - - 131.1 10.1 62.3 49.7 37.2 - - -
72 131.5 9.0 86.3 73.7 61.1 48.5 - - 121.1 10.0 82.5 69.9 57.3 44.7 - -
67 120.5 8.9 106.7 94.1 81.4 68.8 56.2 - 111.1 10.0 102.6 90.0 77.5 64.9 52.3 -
62 110.9 8.8 110.9 110.9 101.3 88.7 76.0 63.4 102.9 9.9 102.9 102.9 95.3 82.7 70.2 57.6
57 111.2 8.8 111.2 111.2 100.9 88.2 75.6 63.0 103.1 9.9 103.1 103.1 93.2 80.6 68.0 55.5
3500
77 148.1 9.1 73.2 58.8 44.4 - - - 137.1 10.1 71.7 55.1 40.8 - - -
72 136.7 9.0 95.4 80.9 66.5 52.1 - - 126.7 10.1 91.6 77.3 62.9 48.5 - -
67 125.3 9.0 117.5 103.1 88.7 74.3 59.9 - 116.2 10.1 111.6 99.4 85.0 70.7 56.3 -
62 115.3 8.9 115.3 115.3 110.4 96.0 81.6 67.2 107.7 10.0 107.7 107.7 104.6 90.3 75.9 61.5
57 115.6 8.9 115.6 115.6 109.9 95.5 81.1 66.7 107.9 9.9 107.9 107.9 102.3 87.9 73.5 59.2
4000
77 153.7 9.1 80.4 64.2 48.0 - - - 143.2 10.2 81.1 60.5 44.4 - - -
72 141.9 9.0 104.4 88.2 72.0 55.8 - - 132.3 10.2 100.8 84.7 68.5 52.3 - -
67 130.0 9.0 128.3 112.2 96.0 79.8 63.7 - 121.4 10.1 120.5 108.8 92.6 76.4 60.3 -
62 119.6 8.9 119.6 119.6 119.4 103.3 87.1 70.9 112.5 10.0 112.5 112.5 113.9 97.8 81.6 65.4
57 120.0 8.9 120.0 120.0 118.9 102.7 86.6 70.4 112.6 10.0 112.6 112.6 111.3 95.2 79.0 62.8
4500
72 143.9 9.1 113.1 95.2 77.3 59.4 - - 133.6 10.1 109.0 91.2 73.5 55.7 - -
67 131.8 9.0 131.0 121.0 103.1 85.2 67.3 - 122.6 10.1 122.2 115.3 99.4 81.6 63.8 -
62 121.3 8.9 121.3 121.3 121.2 103.3 85.4 67.5 113.6 10.0 113.6 113.6 114.3 96.6 78.8 61.1
57 121.7 8.9 121.7 121.7 121.1 103.2 85.3 67.5 113.8 10.0 113.8 113.8 113.1 95.4 77.6 59.8
5000
72 145.9 9.1 121.9 102.3 82.7 63.1 - - 134.9 10.1 117.2 97.8 78.5 59.1 - -
67 133.7 9.0 133.7 129.8 110.2 90.6 71.0 - 123.8 10.1 123.8 121.9 106.1 86.8 67.4 -
62 123.0 8.9 123.0 123.0 123.0 103.4 83.8 64.2 114.7 10.0 114.7 114.7 114.7 95.4 76.1 56.7
57 123.4 8.9 123.4 123.4 123.4 103.7 84.1 64.5 114.9 10.0 114.9 114.9 114.9 95.5 76.2 56.8

528150-YTG-G-1210
64 Johnson Controls Unitary Products
115°F 125°F
2500
77 113.0 11.0 47.0 40.7 30.0 - - - 101.1 12.1 44.1 37.0 26.4 - - -
72 104.5 11.0 69.2 58.5 47.8 37.1 - - 93.6 12.1 65.1 54.5 43.9 33.3 - -
67 96.0 11.0 91.4 76.3 65.6 55.0 44.3 - 86.1 12.1 86.1 72.0 61.4 50.8 40.2 -
62 89.7 11.0 89.7 89.7 79.8 69.1 58.4 47.7 81.3 12.1 81.3 81.3 74.1 63.0 52.3 41.7
3000
77 119.6 11.1 58.6 46.1 33.6 - - - 108.1 12.1 57.2 42.5 30.0 - - -
72 110.6 11.1 78.6 66.1 53.5 41.0 - - 100.1 12.2 74.7 62.2 49.8 37.3 - -
67 101.6 11.1 98.5 86.0 73.5 61.0 48.5 - 92.1 12.2 92.1 82.0 69.5 57.1 44.6 -
62 94.9 11.0 94.9 94.9 89.3 76.8 64.3 51.8 87.0 12.2 87.0 87.0 83.3 70.9 58.4 46.0
57 94.9 11.0 94.9 94.9 85.5 73.0 60.5 47.9 86.7 12.0 86.7 86.7 77.8 65.3 52.9 40.4
3500
77 126.1 11.2 70.2 51.5 37.2 - - - 115.1 12.2 70.3 47.9 33.6 - - -
72 116.6 11.2 87.9 73.6 59.3 44.9 - - 106.6 12.3 84.2 69.9 55.6 41.3 - -
67 107.2 11.2 105.6 95.7 81.4 67.0 52.7 - 98.1 12.3 98.1 92.0 77.7 63.4 49.1 -
62 100.1 11.1 100.1 100.1 98.9 84.6 70.2 55.9 92.6 12.3 92.6 92.6 92.6 78.8 64.6 50.3
57 100.1 11.0 100.1 100.1 94.6 80.3 66.0 51.6 92.3 12.1 92.3 92.3 87.0 72.7 58.4 44.1
4000
77 132.7 11.3 81.8 56.9 40.8 - - - 122.2 12.3 83.4 53.3 37.1 - - -
72 122.7 11.3 97.3 81.1 65.0 48.8 - - 113.1 12.4 93.7 77.6 61.5 45.3 - -
67 112.7 11.3 112.7 105.4 89.2 73.1 56.9 - 104.1 12.4 104.1 102.0 85.8 69.7 53.6 -
62 105.3 11.2 105.3 105.3 108.4 92.3 76.1 60.0 98.2 12.4 98.2 98.2 98.2 86.8 70.7 54.5
57 105.3 11.1 105.3 105.3 103.7 87.6 71.5 55.3 98.0 12.2 98.0 98.0 96.2 80.0 63.9 47.8
4500
72 123.4 11.2 104.9 87.3 69.6 52.0 - - 113.1 12.3 100.8 83.3 65.8 48.3 - -
67 113.3 11.2 113.3 109.7 95.6 78.0 60.4 - 104.1 12.3 104.1 104.0 91.9 74.4 56.9 -
62 105.9 11.2 105.9 105.9 107.5 89.8 72.2 54.6 98.2 12.3 98.2 98.2 98.2 83.1 65.6 48.1
57 105.9 11.1 105.9 105.9 105.1 87.5 69.9 52.2 98.0 12.2 98.0 98.0 97.1 79.6 62.1 44.6
5000
72 124.0 11.2 112.5 93.4 74.3 55.2 - - 113.1 12.3 107.8 89.0 70.1 51.3 - -
67 113.9 11.2 113.9 113.9 102.0 82.9 63.8 - 104.1 12.3 104.1 104.1 97.9 79.1 60.3 -
62 106.5 11.2 106.5 106.5 106.5 87.4 68.3 49.2 98.2 12.3 98.2 98.2 98.2 79.4 60.6 41.7
57 106.4 11.1 106.4 106.4 106.4 87.3 68.3 49.2 98.0 12.1 98.0 98.0 98.0 79.1 60.3 41.5
1. These capacities are gross ratings. For net capacity, deduct air blower motor, MBh = 3.415 x kW. Refer to the appropriate Blower
Performance Table for the kW of the supply air blower motor.
2. These ratings include the condenser fan motors (total 1 kW) and the compressor motors but not the supply air blower motor.
ZJ120 (10 Ton) (Continued)
Air on
Evaporator Coil
Temperature of Air on Condenser Coil
Total
Capacity1
(MBh)
Total
Input
(kW)2
Sensible Capacity (MBh) Total
Capacity1
(MBh)
Total
Input
(kW)2
Sensible Capacity (MBh)
CFM WB
(°F)
Return Dry Bulb (°F) Return Dry Bulb (°F)
90 85 80 75 70 65 90 85 80 75 70 65

528150-YTG-G-1210
Johnson Controls Unitary Products 65
ZJ150 (12.5 Ton)
Air on
Evaporator Coil
Temperature of Air on Condenser Coil
Total
Capacity1
(MBh)
Total
Input
(kW)2
Sensible Capacity (MBh) Total
Capacity1
(MBh)
Total
Input
(kW)2
Sensible Capacity (MBh)
CFM WB
(°F)
Return Dry Bulb (°F) Return Dry Bulb (°F)
90 85 80 75 70 65 90 85 80 75 70 65
75°F 85°F
3125
77 191.5 9.8 80.3 66.9 53.5 - - - 184.5 10.7 76.0 62.6 49.3 - - -
72 178.7 9.5 103.3 89.9 76.4 63.0 - - 171.3 10.5 99.0 85.7 72.3 59.0 - -
67 165.9 9.2 126.3 112.8 99.4 86.0 72.6 - 158.1 10.2 122.1 108.8 95.4 82.1 68.7 -
62 149.9 9.1 149.9 139.5 122.9 109.5 96.1 82.7 143.1 10.1 143.1 135.8 117.5 104.2 90.8 77.5
3750
77 201.3 9.8 89.4 74.2 58.9 - - - 193.5 10.7 85.1 69.8 54.5 - - -
72 187.9 9.5 114.7 99.5 84.2 69.0 - - 179.6 10.5 110.6 95.3 80.0 64.6 - -
67 174.5 9.3 140.0 124.8 109.5 94.3 79.1 - 165.8 10.3 136.1 120.8 105.5 90.1 74.8 -
62 157.6 9.1 157.6 150.7 135.4 120.2 105.0 89.7 150.1 10.1 150.1 145.2 129.9 114.6 99.3 83.9
57 152.3 9.1 152.3 152.3 140.7 125.5 110.2 95.0 145.8 10.1 145.8 145.8 134.0 118.7 103.3 88.0
4375
77 211.1 9.8 98.5 81.5 64.4 - - - 202.4 10.8 94.2 76.9 59.6 - - -
72 197.0 9.6 126.2 109.1 92.0 75.0 - - 187.9 10.6 122.1 104.9 87.6 70.3 - -
67 183.0 9.3 153.8 136.7 119.7 102.6 85.5 - 173.5 10.3 150.1 132.8 115.5 98.2 80.9 -
62 165.3 9.1 165.3 161.8 148.0 130.9 113.8 96.8 157.0 10.1 157.0 154.6 142.3 125.0 107.7 90.4
57 159.7 9.1 159.7 159.7 153.7 136.6 119.6 102.5 152.6 10.2 152.6 152.6 146.7 129.4 112.2 94.9
5000
77 221.0 9.9 107.6 88.8 69.9 - - - 211.4 10.9 103.3 84.1 64.8 - - -
72 206.2 9.6 137.6 118.7 99.8 80.9 - - 196.3 10.6 133.7 114.4 95.2 75.9 - -
67 191.5 9.3 167.5 148.7 129.8 110.9 92.0 - 181.2 10.4 164.1 144.8 125.5 106.3 87.0 -
62 173.0 9.1 173.0 173.0 160.5 141.6 122.7 103.8 164.0 10.2 164.0 164.0 154.6 135.4 116.1 96.9
57 167.2 9.1 167.2 167.2 166.7 147.8 129.0 110.1 159.3 10.2 159.3 159.3 159.5 140.2 121.0 101.7
5625
72 215.4 9.6 150.0 129.1 108.3 87.5 - - 204.6 10.7 146.0 124.7 103.5 82.2 - -
67 200.0 9.3 185.5 161.6 140.8 119.9 99.1 - 188.8 10.4 179.0 157.7 136.5 115.2 93.9 -
62 180.7 9.2 180.7 180.7 174.4 153.6 132.8 111.9 170.9 10.2 170.9 170.9 166.3 145.0 123.7 102.4
57 174.6 9.1 174.6 174.6 174.4 153.5 132.7 111.9 166.1 10.3 166.1 166.1 166.2 144.9 123.6 102.3
6250
72 224.6 9.6 162.3 139.5 116.7 94.0 - - 212.9 10.7 158.4 135.1 111.7 88.4 - -
67 208.5 9.3 203.5 174.5 151.8 129.0 106.2 - 196.5 10.5 194.0 170.7 147.4 124.1 100.8 -
62 188.4 9.2 188.4 188.4 188.4 165.6 142.8 120.0 177.9 10.3 177.9 177.9 177.9 154.6 131.3 108.0
57 182.0 9.2 182.0 182.0 182.0 159.2 136.5 113.7 172.8 10.3 172.8 172.8 172.8 149.5 126.2 102.9
95°F 105°F
3125
77 177.5 11.6 71.6 58.3 45.1 - - - 168.0 12.8 67.5 55.1 42.0 - - -
72 163.9 11.4 94.8 81.5 68.2 55.0 - - 154.2 12.7 90.8 77.7 64.5 51.4 - -
67 150.3 11.2 118.0 104.7 91.4 78.1 64.9 - 140.3 12.6 114.2 100.2 87.1 73.9 60.8 -
62 136.4 11.0 136.4 132.1 112.1 98.9 85.6 72.3 128.6 12.4 128.6 126.4 106.8 93.6 80.5 67.3
3750
77 185.6 11.7 80.8 65.4 50.0 - - - 175.2 12.9 77.1 61.9 46.7 - - -
72 171.4 11.5 106.5 91.1 75.7 60.3 - - 160.8 12.8 102.2 86.9 71.7 56.5 - -
67 157.2 11.3 132.2 116.8 101.4 86.0 70.6 - 146.4 12.7 127.2 112.0 96.8 81.6 66.4 -
62 142.6 11.1 142.6 139.7 124.3 109.0 93.6 78.2 134.1 12.5 134.1 132.7 118.7 103.5 88.2 73.0
57 139.4 11.1 139.4 139.4 127.2 111.8 96.5 81.1 131.5 12.5 131.5 131.5 118.9 103.7 88.5 73.3
4375
77 193.7 11.8 89.9 72.4 54.9 - - - 182.4 13.0 86.7 68.6 51.3 - - -
72 178.9 11.6 118.1 100.6 83.1 65.6 - - 167.4 12.9 113.5 96.2 78.9 61.6 - -
67 164.0 11.4 146.4 128.8 111.3 93.8 76.3 - 152.4 12.8 140.3 123.8 106.5 89.2 71.9 -
62 148.8 11.2 148.8 147.4 136.6 119.1 101.5 84.0 139.6 12.6 139.6 138.9 130.6 113.3 96.0 78.7
57 145.4 11.2 145.4 145.4 139.7 122.2 104.7 87.2 136.9 12.6 136.9 136.9 130.9 113.6 96.3 79.0
5000
77 201.8 11.9 99.1 79.4 59.8 - - - 189.6 13.1 96.3 75.4 56.0 - - -
72 186.3 11.7 129.8 110.2 90.5 70.9 - - 174.0 13.0 124.8 105.5 86.1 66.8 - -
67 170.8 11.5 160.6 140.9 121.3 101.7 82.0 - 158.5 12.9 153.3 135.6 116.2 96.9 77.5 -
62 155.0 11.3 155.0 155.0 148.8 129.2 109.5 89.9 145.1 12.7 145.1 145.1 142.5 123.2 103.8 84.5
57 151.5 11.3 151.5 151.5 152.2 132.6 113.0 93.4 142.3 12.7 142.3 142.3 142.8 123.4 104.1 84.7
5625
72 193.8 11.8 142.1 120.4 98.6 76.9 - - 180.7 13.1 136.9 115.4 94.0 72.5 - -
67 177.7 11.6 172.5 153.9 132.1 110.4 88.7 - 164.5 13.0 161.9 148.3 126.8 105.3 83.9 -
62 161.2 11.3 161.2 161.2 158.1 136.4 114.6 92.9 150.7 12.8 150.7 150.7 149.3 127.9 106.4 84.9
57 157.6 11.4 157.6 157.6 157.9 136.2 114.5 92.7 147.8 12.8 147.8 147.8 148.0 126.5 105.0 83.6
6250
72 201.2 11.9 154.4 130.6 106.7 82.9 - - 187.3 13.2 149.0 125.4 101.8 78.2 - -
67 184.5 11.7 184.5 166.8 143.0 119.2 95.3 - 170.5 13.1 170.5 161.0 137.4 113.8 90.2 -
62 167.4 11.4 167.4 167.4 167.4 143.6 119.7 95.9 156.2 12.9 156.2 156.2 156.2 132.6 109.0 85.4
57 163.6 11.5 163.6 163.6 163.6 139.8 116.0 92.1 153.2 12.9 153.2 153.2 153.2 129.6 106.0 82.4

528150-YTG-G-1210
66 Johnson Controls Unitary Products
115°F 125°F
3125
77 158.4 14.0 63.3 51.9 38.9 - - - 148.8 15.3 56.6 48.7 35.8 - - -
72 144.4 14.0 86.9 73.8 60.8 47.8 - - 134.6 15.3 82.9 70.0 57.1 44.2 - -
67 130.4 14.0 110.4 95.8 82.7 69.7 56.7 - 120.4 15.4 106.6 91.3 78.4 65.5 52.6 -
62 120.7 13.8 120.7 120.7 101.4 88.4 75.3 62.3 112.9 15.2 112.9 112.9 96.0 83.1 70.2 57.3
3750
77 164.8 14.1 73.4 58.4 43.3 - - - 154.3 15.4 69.8 54.9 40.0 - - -
72 150.2 14.1 97.9 82.8 67.8 52.7 - - 139.6 15.4 93.6 78.7 63.8 48.9 - -
67 135.6 14.1 122.3 107.3 92.2 77.2 62.1 - 124.8 15.5 117.4 102.5 87.6 72.7 57.9 -
62 125.6 13.9 125.6 125.6 113.0 98.0 82.9 67.9 117.1 15.3 117.1 117.1 107.3 92.5 77.6 62.7
57 123.7 13.9 123.7 123.7 110.6 95.6 80.5 65.5 115.8 15.3 115.8 115.8 102.3 87.4 72.5 57.7
4375
77 171.1 14.2 83.5 64.8 47.8 - - - 159.8 15.5 82.9 61.1 44.2 - - -
72 156.0 14.2 108.8 91.8 74.7 57.7 - - 144.5 15.5 104.2 87.4 70.5 53.7 - -
67 140.8 14.2 134.2 118.7 101.7 84.6 67.6 - 129.2 15.6 128.1 113.7 96.9 80.0 63.2 -
62 130.4 14.0 130.4 130.4 124.6 107.6 90.5 73.4 121.2 15.4 121.2 121.2 118.6 101.8 85.0 68.1
57 128.4 14.0 128.4 128.4 122.0 104.9 87.9 70.8 119.9 15.5 119.9 119.9 113.1 96.3 79.4 62.6
5000
77 177.5 14.4 93.6 71.3 52.2 - - - 165.3 15.6 96.0 67.2 48.5 - - -
72 161.8 14.3 119.8 100.8 81.7 62.6 - - 149.5 15.7 114.8 96.1 77.3 58.5 - -
67 146.1 14.3 146.1 130.2 111.2 92.1 73.0 - 133.7 15.7 133.7 124.9 106.1 87.3 68.5 -
62 135.3 14.1 135.3 135.3 136.2 117.2 98.1 79.0 125.4 15.5 125.4 125.4 125.4 111.1 92.4 73.6
57 133.2 14.1 133.2 133.2 133.3 114.3 95.2 76.1 124.1 15.6 124.1 124.1 123.9 105.1 86.3 67.5
5625
72 167.6 14.4 131.7 110.5 89.3 68.1 - - 154.5 15.8 126.5 105.6 84.6 63.6 - -
67 151.3 14.4 151.3 142.7 121.5 100.3 79.0 - 138.1 15.8 138.1 137.1 116.1 95.2 74.2 -
62 140.1 14.2 140.1 140.1 140.6 119.4 98.1 76.9 129.6 15.6 129.6 129.6 129.6 110.9 89.9 68.9
57 138.0 14.2 138.0 138.0 138.0 116.8 95.6 74.4 128.2 15.7 128.2 128.2 128.1 107.1 86.1 65.2
6250
72 173.4 14.5 143.6 120.2 96.9 73.5 - - 159.4 15.9 138.2 115.1 91.9 68.8 - -
67 156.5 14.5 156.5 155.2 131.8 108.4 85.0 - 142.5 15.9 142.5 142.5 126.2 103.0 79.9 -
62 145.0 14.3 145.0 145.0 145.0 121.6 98.2 74.8 133.7 15.7 133.7 133.7 133.7 110.6 87.4 64.3
57 142.7 14.3 142.7 142.7 142.7 119.4 96.0 72.6 132.3 15.8 132.3 132.3 132.3 109.1 86.0 62.8
1. These capacities are gross ratings. For net capacity, deduct air blower motor, MBh = 3.415 x kW. Refer to the appropriate Blower
Performance Table for the kW of the supply air blower motor.
2. These ratings include the condenser fan motors (total 1 kW) and the compressor motors but not the supply air blower motor.
ZJ150 (12.5 Ton) (Continued)
Air on
Evaporator Coil
Temperature of Air on Condenser Coil
Total
Capacity1
(MBh)
Total
Input
(kW)2
Sensible Capacity (MBh) Total
Capacity1
(MBh)
Total
Input
(kW)2
Sensible Capacity (MBh)
CFM WB
(°F)
Return Dry Bulb (°F) Return Dry Bulb (°F)
90 85 80 75 70 65 90 85 80 75 70 65

528150-YTG-G-1210
Johnson Controls Unitary Products 67
ZR037-150 Cooling and Reheat Capacities
ZR037 (3.0 Ton) Cooling
Air on
Evaporator Coil
Temperature of Air on Condenser Coil
Total
Capacity1
(MBh)
Total
Input
(kW)2
Sensible Capacity (MBh) Total
Capacity1
(MBh)
Total
Input
(kW)2
Sensible Capacity (MBh)
CFM WB
(°F)
Return Dry Bulb (°F) Return Dry Bulb (°F)
90 85 80 75 70 65 90 85 80 75 70 65
75°F 85°F
750
77 48.2 0.2 20.1 16.2 13.0 - - - 43.5 1.6 17.0 13.9 10.7 - - -
72 43.9 0.8 24.6 21.3 18.1 14.9 - - 39.8 1.8 22.2 19.1 16.0 12.8 - -
67 39.6 1.3 29.0 26.5 23.3 20.1 16.8 - 36.0 2.0 27.5 24.3 21.2 18.1 14.9 -
62 35.5 1.1 35.5 32.6 28.4 25.1 21.9 18.7 31.4 1.9 31.4 29.6 24.7 21.6 18.4 15.3
900
77 50.4 0.5 22.1 18.2 14.3 - - - 45.5 1.7 19.7 15.9 12.1 - - -
72 45.9 1.1 27.8 23.9 20.0 16.1 - - 41.6 1.9 25.6 21.8 18.0 14.2 - -
67 41.4 1.6 33.4 29.5 25.6 21.7 17.8 - 37.6 2.1 31.5 27.7 23.9 20.1 16.3 -
62 37.1 1.4 37.1 35.2 31.3 27.4 23.5 19.6 32.8 2.0 32.8 31.6 27.8 24.0 20.2 16.4
57 33.3 1.3 33.3 33.4 30.5 26.6 22.7 18.8 29.7 1.9 29.7 29.7 26.4 22.6 18.8 15.0
1050
77 52.7 0.8 24.1 20.3 15.7 - - - 47.4 1.8 22.3 17.9 13.4 - - -
72 47.9 1.3 31.0 26.4 21.8 17.2 - - 43.3 2.0 28.9 24.4 20.0 15.5 - -
67 43.2 1.9 37.8 32.5 27.9 23.4 18.8 - 39.2 2.1 35.4 31.0 26.5 22.1 17.6 -
62 38.7 1.7 38.7 37.8 34.2 29.6 25.0 20.5 34.2 2.1 34.2 33.6 30.9 26.4 21.9 17.5
57 34.7 1.6 34.7 34.8 33.3 28.8 24.2 19.6 31.0 1.9 31.0 31.0 29.3 24.9 20.4 15.9
1200
77 54.9 1.0 26.1 22.3 17.0 - - - 49.4 1.9 25.0 19.9 14.8 - - -
72 50.0 1.6 34.2 28.9 23.6 18.4 - - 45.1 2.1 32.2 27.1 22.0 16.8 - -
67 45.1 2.2 42.2 35.5 30.3 25.0 19.8 - 40.9 2.2 39.4 34.3 29.2 24.0 18.9 -
62 40.4 2.0 40.4 40.4 37.1 31.8 26.6 21.3 35.6 2.2 35.6 35.6 34.0 28.8 23.7 18.6
57 36.2 1.8 36.2 36.2 36.2 30.9 25.7 20.4 32.3 2.0 32.3 32.3 32.3 27.1 22.0 16.9
1350
72 50.0 1.4 36.8 31.0 25.2 19.5 - - 45.0 2.0 34.6 28.9 23.2 17.5 - -
67 45.0 2.0 43.6 38.2 32.3 26.6 20.8 - 40.8 2.1 40.1 36.5 30.8 25.1 19.4 -
62 40.4 1.8 40.4 40.4 38.7 33.0 27.2 21.5 35.5 2.1 35.5 35.5 34.7 29.0 23.3 17.6
57 36.2 1.6 36.2 36.2 36.2 30.4 24.7 18.9 32.2 1.9 32.2 32.2 32.2 26.5 20.8 15.1
1500
72 49.9 1.2 39.3 33.1 26.8 20.6 - - 45.0 1.9 36.9 30.6 24.4 18.1 - -
67 45.0 1.8 45.0 40.9 34.4 28.2 21.9 - 40.7 2.1 40.7 38.6 32.4 26.1 19.9 -
62 40.3 1.6 40.3 40.3 40.3 34.1 27.8 21.6 35.5 2.0 35.5 35.5 35.5 29.2 23.0 16.7
57 36.2 1.5 36.2 36.2 36.2 29.9 23.7 17.4 32.1 1.9 32.1 32.1 32.1 25.9 19.6 13.4
95°F 105°F
750
77 38.8 3.1 13.9 11.6 8.5 - - - 36.4 2.7 12.7 11.2 8.3 - - -
72 35.6 2.8 19.9 16.9 13.8 10.8 - - 32.8 2.7 19.0 16.1 13.1 10.2 - -
67 32.5 2.6 25.9 22.2 19.1 16.1 13.0 - 29.2 2.6 25.3 20.9 17.9 15.0 12.1 -
62 27.3 2.7 27.3 26.6 21.0 18.0 14.9 11.9 25.0 2.6 25.0 24.7 19.5 16.5 13.6 10.7
900
77 40.5 3.0 17.2 13.5 9.8 - - - 37.5 2.7 16.5 13.0 9.4 - - -
72 37.2 2.7 23.4 19.7 16.0 12.3 - - 33.8 2.7 22.0 18.4 14.9 11.3 - -
67 33.9 2.5 29.5 25.8 22.1 18.4 14.7 - 30.1 2.6 27.5 23.9 20.3 16.8 13.2 -
62 28.5 2.7 28.5 28.0 24.3 20.6 16.9 13.2 25.8 2.6 25.8 25.5 22.1 18.5 14.9 11.4
57 26.2 2.4 26.2 26.0 22.3 18.6 14.9 11.2 24.9 2.4 24.9 24.9 21.4 17.8 14.2 10.6
1050
77 42.2 2.8 20.6 15.5 11.2 - - - 38.6 2.7 20.4 14.7 10.5 - - -
72 38.7 2.6 26.8 22.5 18.1 13.8 - - 34.8 2.7 25.0 20.8 16.6 12.4 - -
67 35.3 2.4 33.1 29.4 25.1 20.7 16.4 - 31.0 2.6 29.7 26.9 22.7 18.5 14.3 -
62 29.7 2.6 29.7 29.4 27.6 23.2 18.9 14.5 26.5 2.6 26.5 26.4 24.7 20.5 16.3 12.1
57 27.2 2.3 27.2 27.2 25.3 21.0 16.6 12.3 25.6 2.5 25.6 25.6 23.9 19.6 15.4 11.2
1200
77 43.9 2.7 23.9 17.5 12.5 - - - 39.7 2.7 24.2 16.4 11.6 - - -
72 40.3 2.5 30.3 25.3 20.3 15.3 - - 35.8 2.7 28.0 23.2 18.4 13.5 - -
67 36.7 2.3 36.7 33.1 28.1 23.1 18.1 - 31.9 2.6 31.9 30.0 25.1 20.3 15.4 -
62 30.8 2.5 30.8 30.8 30.8 25.8 20.8 15.8 27.3 2.6 27.3 27.3 27.3 22.5 17.6 12.8
57 28.3 2.2 28.3 28.3 28.3 23.3 18.3 13.3 26.4 2.5 26.4 26.4 26.4 21.5 16.7 11.8
1350
72 40.1 2.5 32.4 26.7 21.1 15.5 - - 35.8 2.6 30.4 24.9 19.5 14.0 - -
67 36.5 2.3 36.5 34.7 29.2 23.6 17.9 - 31.9 2.6 31.9 30.9 26.7 21.2 15.7 -
62 30.7 2.5 30.7 30.7 30.7 25.1 19.5 13.8 27.3 2.5 27.3 27.3 27.3 21.9 16.4 10.9
57 28.2 2.2 28.2 28.2 28.2 22.6 17.0 11.3 26.4 2.4 26.4 26.4 26.4 20.9 15.5 10.0
1500
72 40.0 2.5 34.4 28.2 21.9 15.6 - - 35.8 2.6 32.7 26.7 20.6 14.5 - -
67 36.4 2.3 36.4 36.4 30.3 24.1 17.8 - 31.9 2.5 31.9 31.9 28.2 22.1 16.0 -
62 30.6 2.5 30.6 30.6 30.6 24.3 18.1 11.8 27.3 2.5 27.3 27.3 27.3 21.2 15.2 9.1
57 28.1 2.2 28.1 28.1 28.1 21.8 15.6 9.3 26.4 2.4 26.4 26.4 26.4 20.3 14.2 8.2

528150-YTG-G-1210
68 Johnson Controls Unitary Products
115°F 125°F
750
77 34.0 2.4 11.6 10.9 8.1 - - - 31.5 2.1 11.5 9.9 7.9 - - -
72 30.0 2.5 18.1 15.3 12.4 9.6 - - 27.2 2.3 17.2 14.5 11.7 9.0 - -
67 26.0 2.6 24.6 19.6 16.8 13.9 11.1 - 22.8 2.6 22.8 18.3 15.6 12.9 10.1 -
62 22.8 2.4 22.8 22.8 18.0 15.1 12.3 9.5 20.5 2.2 20.5 20.5 16.5 13.7 11.0 8.3
900
77 34.5 2.5 15.9 12.4 9.0 - - - 31.4 2.3 15.9 11.8 8.5 - - -
72 30.4 2.6 20.7 17.2 13.8 10.3 - - 27.1 2.5 19.3 16.0 12.7 9.3 - -
67 26.4 2.7 25.5 22.0 18.6 15.1 11.7 - 22.7 2.8 22.7 20.1 16.8 13.5 10.2 -
62 23.1 2.5 23.1 23.1 19.9 16.5 13.0 9.6 20.4 2.4 20.4 20.4 17.7 14.4 11.1 7.7
57 23.7 2.5 23.7 23.7 20.4 17.0 13.5 10.1 22.5 2.5 22.5 22.5 19.5 16.2 12.8 9.5
1050
77 35.0 2.6 20.1 13.9 9.8 - - - 31.3 2.5 20.3 13.7 9.2 - - -
72 30.9 2.7 23.2 19.2 15.1 11.0 - - 26.9 2.8 21.4 17.5 13.6 9.7 - -
67 26.8 2.8 26.3 24.4 20.4 16.3 12.2 - 22.6 3.0 22.6 21.9 18.0 14.1 10.2 -
62 23.4 2.6 23.4 23.4 21.8 17.8 13.7 9.6 20.3 2.6 20.3 20.3 19.0 15.0 11.1 7.2
57 24.0 2.6 24.0 24.0 22.4 18.3 14.3 10.2 22.5 2.7 22.5 22.5 21.0 17.0 13.1 9.2
1200
77 35.4 2.7 24.4 15.4 10.7 - - - 31.2 2.7 24.7 15.6 9.8 - - -
72 31.3 2.8 25.8 21.1 16.4 11.8 - - 26.8 3.0 23.6 19.0 14.5 10.0 - -
67 27.2 2.9 27.2 26.9 22.2 17.5 12.8 - 22.4 3.3 22.4 22.4 19.2 14.7 10.2 -
62 23.8 2.7 23.8 23.8 23.8 19.1 14.4 9.7 20.2 2.8 20.2 20.2 20.2 15.7 11.2 6.7
57 24.4 2.7 24.4 24.4 24.4 19.7 15.0 10.3 22.4 2.9 22.4 22.4 22.4 17.9 13.4 8.9
1350
72 31.5 2.7 28.4 23.1 17.9 12.6 - - 27.1 2.9 26.5 21.4 16.3 11.2 - -
67 27.3 2.9 27.3 27.1 24.1 18.8 13.6 - 22.7 3.1 22.7 22.7 21.6 16.5 11.4 -
62 23.9 2.6 23.9 23.9 23.9 18.6 13.3 8.1 20.5 2.7 20.5 20.5 20.5 15.4 10.3 5.2
57 24.5 2.6 24.5 24.5 24.5 19.2 14.0 8.7 22.7 2.8 22.7 22.7 22.7 17.6 12.5 7.4
1500
72 31.6 2.7 31.1 25.2 19.3 13.4 - - 27.4 2.7 27.4 23.7 18.0 12.3 - -
67 27.4 2.8 27.4 27.4 26.0 20.2 14.3 - 23.0 3.0 23.0 23.0 23.0 18.2 12.6 -
62 24.0 2.5 24.0 24.0 24.0 18.1 12.3 6.4 20.7 2.6 20.7 20.7 20.7 15.0 9.3 3.7
57 24.6 2.5 24.6 24.6 24.6 18.8 12.9 7.0 22.9 2.7 22.9 22.9 22.9 17.2 11.5 5.9
1. These capacities are gross ratings. For net capacity, deduct air blower motor, MBh = 3.415 x kW. Refer to the appropriate Blower
Performance Table for the kW of the supply air blower motor.
2. These ratings include the condenser fan motors (total 1 kW) and the compressor motors but not the supply air blower motor.
ZR037 (3.0 Ton) Cooling (Continued)
Air on
Evaporator Coil
Temperature of Air on Condenser Coil
Total
Capacity1
(MBh)
Total
Input
(kW)2
Sensible Capacity (MBh) Total
Capacity1
(MBh)
Total
Input
(kW)2
Sensible Capacity (MBh)
CFM WB
(°F)
Return Dry Bulb (°F) Return Dry Bulb (°F)
90 85 80 75 70 65 90 85 80 75 70 65

528150-YTG-G-1210
Johnson Controls Unitary Products 69
ZR037 (3.0 Ton) Reheat
Air on
Evaporator Coil
Temperature of Air on Condenser Coil
Total
Capacity1
(MBh)
Total
Input
(kW)2
Sensible Capacity (MBh)
(- indicates heating) Total
Capacity1
(MBh)
Total
Input
(kW)2
Sensible Capacity (MBh)
(- indicates heating)
CFM WB
(°F)
Return Dry Bulb (°F) Return Dry Bulb (°F)
75 75
40 °F 50 °F
1050
62.5 14.1 1.3 8.9 19.7 2.0 8.9
64 15.3 1.3 8.1 21.3 2.0 7.5
65.3 17.0 1.4 7.1 22.5 2.0 6.2
1200
62.5 14.9 1.3 9.7 20.3 2.0 9.8
64 15.6 1.3 8.7 21.2 2.0 8.3
65.3 16.1 1.3 7.8 23.1 2.0 7.1
1350
62.5 21.7 1.9 11.1 21.6 2.0 10.9
64 22.3 1.9 9.3 23.1 2.0 9.7
65.3 22.5 1.8 8.0 24.7 2.0 8.2
60 °F 70 °F
1050
62.5 18.5 2.0 8.1 17.0 2.1 6.8
64 19.7 2.0 6.6 18.4 2.1 5.5
65.3 20.9 2.0 5.4 19.6 2.1 4.4
1200
62.5 19.2 2.0 9.0 17.0 2.1 7.9
64 20.3 2.0 7.6 18.5 2.1 6.6
65.3 22.2 2.0 6.3 19.9 2.1 5.5
1350
62.5 19.8 2.0 9.8 16.1 2.1 8.4
64 21.1 2.0 8.4 17.3 2.1 6.8
62 22.3 2.0 7.2 18.8 2.1 5.7
75 °F 80 °F
1050
62.5 16.3 2.1 7.2 15.0 2.1 5.9
64 17.6 2.1 5.5 16.2 2.1 4.5
65.3 18.8 2.1 4.0 16.6 2.1 3.6
1200
62.5 16.6 2.1 7.4 14.9 2.1 6.7
64 18.0 2.1 6.1 16.1 2.1 5.5
65.3 18.9 2.1 5.0 17.2 2.1 3.9
1350
62.5 15.8 2.1 7.8 14.4 2.1 7.1
64 17.3 2.1 6.7 15.6 2.1 5.8
65.3 18.5 2.1 5.2 16.7 2.1 4.4
85 °F 95 °F
1050
62.5 12.0 2.2 4.5 7.5 2.3 1.7
64 12.5 2.2 3.1 8.5 2.3 0.5
65.3 13.4 2.2 1.9 9.3 2.4 -0.9
1200
62.5 11.8 2.2 5.0 8.8 2.3 -0.6
64 12.9 2.2 3.7 8.0 2.3 0.6
65.3 13.9 2.2 2.3 8.2 2.4 -0.9
1350
62.5 11.7 2.2 5.6 6.0 2.3 1.9
64 12.6 2.2 4.0 6.7 2.3 0.6
62 13.6 2.2 2.7 7.7 2.3 -0.7
1. These capacities are gross ratings. For net capacity, deduct air blower motor, MBh = 3.415 x kW. Refer to the appropriate Blower
Performance Table for the kW of the supply air blower motor.
2. These ratings include the condenser fan motors (total 1 kW) and the compressor motors but not the supply air blower motor.

528150-YTG-G-1210
70 Johnson Controls Unitary Products
ZR049 (4.0 Ton) Cooling
Air on
Evaporator Coil
Temperature of Air on Condenser Coil
Total
Capacity1
(MBh)
Total
Input
(kW)2
Sensible Capacity (MBh) Total
Capacity1
(MBh)
Total
Input
(kW)2
Sensible Capacity (MBh)
CFM WB
(°F)
Return Dry Bulb (°F) Return Dry Bulb (°F)
90 85 80 75 70 65 90 85 80 75 70 65
75°F 85°F
1000
77 70.8 1.6 27.3 22.8 18.2 - - - 61.5 3.0 26.1 21.6 17.2 - - -
72 62.1 2.0 34.1 29.5 24.9 20.3 - - 55.0 3.0 32.3 27.8 23.4 18.9 - -
67 53.5 2.4 40.8 36.2 31.6 27.0 22.4 - 48.5 2.9 38.5 34.1 29.6 25.2 20.7 -
62 48.3 2.0 48.3 46.8 37.7 33.1 28.5 23.9 43.1 2.9 43.1 42.3 35.8 31.3 26.9 22.4
1200
77 73.1 1.8 30.4 25.1 19.9 - - - 63.8 3.0 29.0 23.9 18.7 - - -
72 64.2 2.2 37.7 32.5 27.3 22.0 - - 57.1 3.0 35.8 30.7 25.5 20.4 - -
67 55.3 2.6 45.1 39.9 34.6 29.4 24.2 - 50.3 2.9 42.6 37.5 32.3 27.2 22.0 -
62 50.0 2.2 50.0 48.9 41.3 36.1 30.9 25.6 44.7 2.9 44.7 44.2 39.1 33.9 28.8 23.6
57 48.7 2.2 48.7 48.7 44.1 38.9 33.7 28.4 44.1 2.9 44.1 44.1 40.5 35.4 30.2 25.1
1400
77 75.5 2.1 33.4 27.5 21.6 - - - 66.1 3.0 32.0 26.1 20.3 - - -
72 66.3 2.4 41.4 35.5 29.6 23.8 - - 59.1 3.0 39.3 33.5 27.7 21.8 - -
67 57.1 2.8 49.4 43.5 37.6 31.8 25.9 - 52.2 2.9 46.7 40.9 35.0 29.2 23.3 -
62 51.6 2.4 51.6 51.1 44.9 39.0 33.1 27.3 46.3 2.9 46.3 46.1 42.3 36.5 30.6 24.8
57 50.2 2.4 50.2 50.2 48.0 42.1 36.2 30.3 45.7 2.9 45.7 45.7 43.9 38.1 32.2 26.4
1600
77 77.9 2.3 36.5 29.9 23.4 - - - 68.4 3.0 34.9 28.4 21.9 - - -
72 68.4 2.6 45.1 38.6 32.0 25.5 - - 61.2 3.0 42.9 36.3 29.8 23.3 - -
67 58.9 3.0 53.7 47.2 40.7 34.1 27.6 - 54.0 2.9 50.8 44.3 37.7 31.2 24.7 -
62 53.2 2.6 53.2 53.2 48.5 42.0 35.4 28.9 47.9 2.9 47.9 47.9 45.6 39.1 32.5 26.0
57 51.8 2.6 51.8 51.8 51.8 45.3 38.7 32.2 47.3 2.9 47.3 47.3 47.3 40.7 34.2 27.7
1800
72 70.3 2.4 48.1 40.9 33.7 26.6 - - 62.2 3.0 46.1 38.9 31.7 24.5 - -
67 60.5 2.8 57.9 50.0 42.8 35.7 28.5 - 54.8 2.9 53.3 47.3 40.2 33.0 25.8 -
62 54.7 2.4 54.7 54.7 52.3 45.1 38.0 30.8 48.7 2.9 48.7 48.7 47.5 40.3 33.2 26.0
57 53.2 2.4 53.2 53.2 53.2 46.1 38.9 31.7 48.0 2.9 48.0 48.0 48.0 40.9 33.7 26.5
2000
72 72.1 2.2 51.0 43.2 35.4 27.7 - - 63.1 3.0 49.3 41.5 33.6 25.8 - -
67 62.1 2.6 62.1 52.8 45.0 37.2 29.4 - 55.7 2.9 55.7 50.4 42.6 34.8 27.0 -
62 56.1 2.2 56.1 56.1 56.1 48.3 40.5 32.7 49.5 2.9 49.5 49.5 49.5 41.6 33.8 26.0
57 54.7 2.2 54.7 54.7 54.7 46.9 39.1 31.3 48.8 2.9 48.8 48.8 48.8 41.0 33.1 25.3
95°F 105°F
1000
77 52.2 4.4 24.8 20.5 16.1 - - - 51.3 4.2 21.3 18.4 14.1 - - -
72 47.9 3.9 30.5 26.2 21.9 17.6 - - 45.4 3.9 28.4 24.1 19.9 15.6 - -
67 43.6 3.4 36.3 31.9 27.6 23.3 19.0 - 39.6 3.6 35.5 29.8 25.6 21.3 17.1 -
62 37.9 3.9 37.9 37.9 33.9 29.5 25.2 20.9 34.1 3.8 34.1 34.1 29.2 25.0 20.7 16.5
1200
77 54.4 4.2 27.7 22.6 17.5 - - - 52.8 4.1 25.3 20.4 15.4 - - -
72 49.9 3.7 33.9 28.8 23.8 18.7 - - 46.8 3.8 31.6 26.6 21.7 16.7 - -
67 45.4 3.2 40.1 35.1 30.0 25.0 19.9 - 40.8 3.5 37.8 32.9 27.9 22.9 18.0 -
62 39.5 3.6 39.5 39.5 36.8 31.7 26.7 21.6 35.1 3.7 35.1 35.1 31.9 26.9 22.0 17.0
57 39.6 3.6 39.6 39.6 36.9 31.8 26.8 21.7 35.7 3.7 35.7 35.7 32.4 27.5 22.5 17.6
1400
77 56.6 4.0 30.5 24.7 18.9 - - - 54.3 4.0 29.4 22.4 16.7 - - -
72 51.9 3.5 37.3 31.5 25.7 19.9 - - 48.2 3.7 34.8 29.1 23.5 17.8 - -
67 47.3 3.0 44.0 38.2 32.4 26.6 20.8 - 42.0 3.4 40.2 35.9 30.2 24.6 18.9 -
62 41.1 3.4 41.1 41.1 39.7 33.9 28.1 22.3 36.2 3.6 36.2 36.2 34.6 28.9 23.2 17.5
57 41.2 3.4 41.2 41.2 39.8 34.0 28.2 22.4 36.8 3.6 36.8 36.8 35.1 29.5 23.8 18.1
1600
77 58.8 3.7 33.4 26.9 20.3 - - - 55.8 3.9 33.5 24.4 18.0 - - -
72 54.0 3.3 40.7 34.1 27.6 21.0 - - 49.5 3.6 38.0 31.7 25.3 18.9 - -
67 49.1 2.9 47.9 41.3 34.8 28.3 21.7 - 43.2 3.4 42.6 39.0 32.6 26.2 19.8 -
62 42.7 3.2 42.7 42.7 42.7 36.1 29.6 23.1 37.2 3.5 37.2 37.2 37.2 30.8 24.5 18.1
57 42.8 3.2 42.8 42.8 42.8 36.2 29.7 23.1 37.9 3.5 37.9 37.9 37.9 31.5 25.1 18.7
1800
72 54.1 3.5 44.1 36.9 29.7 22.5 - - 49.9 3.7 41.5 34.4 27.3 20.3 - -
67 49.2 3.1 48.6 44.7 37.5 30.3 23.1 - 43.5 3.5 43.2 41.1 35.2 28.1 21.1 -
62 42.7 3.4 42.7 42.7 42.7 35.5 28.4 21.2 37.5 3.6 37.5 37.5 37.5 30.4 23.4 16.3
57 42.8 3.4 42.8 42.8 42.8 35.6 28.4 21.3 38.1 3.6 38.1 38.1 38.1 31.1 24.0 16.9
2000
72 54.2 3.7 47.5 39.7 31.8 24.0 - - 50.3 3.9 44.9 37.1 29.4 21.6 - -
67 49.3 3.3 49.3 48.0 40.2 32.3 24.5 - 43.8 3.6 43.8 43.2 37.9 30.1 22.4 -
62 42.8 3.7 42.8 42.8 42.8 35.0 27.1 19.3 37.8 3.7 37.8 37.8 37.8 30.0 22.3 14.5
57 42.9 3.7 42.9 42.9 42.9 35.1 27.2 19.4 38.4 3.7 38.4 38.4 38.4 30.7 22.9 15.2

528150-YTG-G-1210
Johnson Controls Unitary Products 71
115°F 125°F
1000
77 50.4 4.0 17.7 16.3 12.1 - - - 49.5 3.7 16.5 12.8 10.1 - - -
72 43.0 3.9 26.2 22.0 17.8 13.6 - - 40.5 3.9 24.0 19.9 15.8 11.7 - -
67 35.6 3.8 34.6 27.7 23.5 19.3 15.2 - 31.5 4.0 31.5 25.6 21.5 17.4 13.3 -
62 30.3 3.7 30.3 30.3 24.6 20.5 16.3 12.1 26.5 3.6 26.5 26.5 20.0 15.9 11.8 7.7
1200
77 51.2 4.0 23.0 18.1 13.3 - - - 49.6 3.9 22.4 15.9 11.2 - - -
72 43.7 3.9 29.3 24.4 19.5 14.7 - - 40.6 4.0 26.9 22.2 17.4 12.7 - -
67 36.1 3.8 35.5 30.7 25.8 20.9 16.1 - 31.5 4.1 31.5 28.4 23.7 18.9 14.2 -
62 30.8 3.7 30.8 30.8 27.0 22.1 17.3 12.4 26.5 3.8 26.5 26.5 22.1 17.4 12.6 7.8
57 31.9 3.8 31.9 31.9 28.0 23.2 18.3 13.4 28.1 3.8 28.1 28.1 23.6 18.8 14.1 9.3
1400
77 52.0 4.0 28.3 20.0 14.5 - - - 49.7 4.0 28.4 19.0 12.2 - - -
72 44.4 3.9 32.3 26.8 21.3 15.7 - - 40.6 4.1 29.9 24.5 19.0 13.6 - -
67 36.7 3.8 36.4 33.6 28.1 22.5 17.0 - 31.4 4.2 31.4 31.3 25.9 20.5 15.1 -
62 31.3 3.7 31.3 31.3 29.4 23.8 18.3 12.8 26.4 3.9 26.4 26.4 24.2 18.8 13.4 8.0
57 32.4 3.8 32.4 32.4 30.5 24.9 19.4 13.8 28.1 3.9 28.1 28.1 25.8 20.4 15.0 9.6
1600
77 52.9 4.0 33.6 21.9 15.6 - - - 49.9 4.2 34.3 22.2 13.3 - - -
72 45.1 3.9 35.4 29.2 23.0 16.8 - - 40.6 4.3 32.8 26.8 20.7 14.6 - -
67 37.3 3.8 37.3 36.6 30.3 24.1 17.9 - 31.3 4.3 31.3 31.3 28.1 22.0 15.9 -
62 31.8 3.8 31.8 31.8 31.8 25.5 19.3 13.1 26.3 4.0 26.3 26.3 26.3 20.2 14.2 8.1
57 32.9 3.8 32.9 32.9 32.9 26.7 20.5 14.3 28.0 4.1 28.0 28.0 28.0 22.0 15.9 9.8
1800
72 45.7 3.9 38.8 31.9 24.9 18.0 - - 41.6 4.2 36.2 29.4 22.6 15.7 - -
67 37.8 3.9 37.8 37.5 32.9 26.0 19.0 - 32.2 4.3 32.2 32.2 30.6 23.8 17.0 -
62 32.2 3.8 32.2 32.2 32.2 25.3 18.4 11.4 27.0 3.9 27.0 27.0 27.0 20.2 13.4 6.6
57 33.5 3.8 33.5 33.5 33.5 26.5 19.6 12.6 28.8 4.0 28.8 28.8 28.8 21.9 15.1 8.3
2000
72 46.4 4.0 42.2 34.6 26.9 19.3 - - 42.6 4.1 39.5 32.0 24.4 16.9 - -
67 38.4 3.9 38.4 38.4 35.5 27.9 20.2 - 33.0 4.2 33.0 33.0 33.0 25.6 18.1 -
62 32.7 3.8 32.7 32.7 32.7 25.1 17.4 9.8 27.7 3.8 27.7 27.7 27.7 20.1 12.6 5.0
57 34.0 3.8 34.0 34.0 34.0 26.3 18.6 11.0 29.5 3.9 29.5 29.5 29.5 21.9 14.4 6.8
1. These capacities are gross ratings. For net capacity, deduct air blower motor, MBh = 3.415 x kW. Refer to the appropriate Blower
Performance Table for the kW of the supply air blower motor.
2. These ratings include the condenser fan motors (total 1 kW) and the compressor motors but not the supply air blower motor.
ZR049 (4.0 Ton) Cooling (Continued)
Air on
Evaporator Coil
Temperature of Air on Condenser Coil
Total
Capacity1
(MBh)
Total
Input
(kW)2
Sensible Capacity (MBh) Total
Capacity1
(MBh)
Total
Input
(kW)2
Sensible Capacity (MBh)
CFM WB
(°F)
Return Dry Bulb (°F) Return Dry Bulb (°F)
90 85 80 75 70 65 90 85 80 75 70 65

528150-YTG-G-1210
72 Johnson Controls Unitary Products
ZR049 (4.0 Ton) Reheat
Air on
Evaporator Coil
Temperature of Air on Condenser Coil
Total
Capacity1
(MBh)
Total
Input
(kW)2
Sensible Capacity (MBh)
(- indicates heating) Total
Capacity1
(MBh)
Total
Input
(kW)2
Sensible Capacity (MBh)
(- indicates heating)
CFM WB
(°F)
Return Dry Bulb (°F) Return Dry Bulb (°F)
75 75
40 °F 50 °F
1200
62.5 24.5 2.5 9.1 22.9 2.6 8.0
64 25.7 2.5 7.4 26.9 2.7 7.2
65.3 26.6 2.5 6.1 27.1 2.6 5.5
1600
62.5 24.0 2.5 12.4 24.5 2.6 11.2
64 25.8 2.5 10.0 26.7 2.6 9.2
65.3 27.1 2.5 8.3 28.5 2.6 7.7
2000
62.5 24.3 2.5 12.9 22.7 2.6 11.6
64 26.2 2.5 11.1 24.7 2.6 10.0
65.3 27.1 2.5 9.2 26.5 2.6 8.5
60 °F 70 °F
1200
62.5 21.8 2.6 7.1 19.8 2.7 6.2
64 25.3 2.7 6.3 23.0 2.8 0.0
65.3 26.9 2.7 4.8 23.5 2.7 2.9
1600
62.5 22.7 2.7 9.9 20.6 2.7 8.8
64 25.4 2.7 8.8 22.4 2.8 6.8
65.3 26.9 2.7 7.5 24.4 2.8 5.9
2000
62.5 20.1 2.6 10.2 18.2 2.7 8.9
64 22.3 2.6 8.6 20.5 2.7 7.7
62 23.7 2.6 6.9 21.4 2.7 5.3
75 °F 80 °F
1200
62.5 19.0 2.7 5.5 17.6 2.8 4.7
64 21.5 2.8 5.1 20.9 2.9 3.7
65.3 22.2 2.8 2.8 21.5 2.9 2.3
1600
62.5 19.3 2.8 8.1 17.9 2.9 7.5
64 21.3 2.8 6.3 19.9 2.9 5.7
65.3 22.6 2.8 4.7 21.1 2.9 4.1
2000
62.5 16.9 2.7 7.9 15.1 2.8 7.1
64 18.2 2.7 6.3 16.7 2.8 5.6
65.3 19.9 2.8 4.8 18.3 2.8 4.0
85 °F 95 °F
1200
62.5 17.7 2.9 5.0 12.8 3.1 3.5
64 19.0 2.9 3.4 13.8 3.2 -0.2
65.3 20.4 2.9 2.1 14.0 3.1 -1.5
1600
62.5 16.2 2.9 6.4 9.7 3.1 2.4
64 18.2 3.0 5.0 10.8 3.2 1.0
65.3 19.6 3.0 3.1 12.2 3.2 -0.7
2000
62.5 13.3 2.9 6.6 6.2 3.0 1.4
64 14.8 2.9 4.7 7.2 3.0 -0.1
62 15.8 2.9 3.1 8.0 3.0 -1.5
1. These capacities are gross ratings. For net capacity, deduct air blower motor, MBh = 3.415 x kW. Refer to the appropriate Blower
Performance Table for the kW of the supply air blower motor.
2. These ratings include the condenser fan motors (total 1 kW) and the compressor motors but not the supply air blower motor.

528150-YTG-G-1210
Johnson Controls Unitary Products 73
ZR061 (5.0 Ton) Cooling
Air on
Evaporator Coil
Temperature of Air on Condenser Coil
Total
Capacity1
(MBh)
Total
Input
(kW)2
Sensible Capacity (MBh) Total
Capacity1
(MBh)
Total
Input
(kW)2
Sensible Capacity (MBh)
CFM WB
(°F)
Return Dry Bulb (°F) Return Dry Bulb (°F)
90 85 80 75 70 65 90 85 80 75 70 65
75°F 85°F
1250
77 81.7 5.9 33.6 27.7 21.9 - - - 76.2 4.8 32.2 26.5 20.8 - - -
72 72.8 5.0 41.9 36.1 30.2 24.3 - - 67.8 4.3 40.1 34.3 28.6 22.9 - -
67 64.0 4.0 50.2 44.4 38.5 32.6 26.7 - 59.4 3.8 47.9 42.1 36.4 30.7 25.0 -
62 57.0 3.6 57.0 57.0 45.7 39.9 33.9 28.1 52.5 3.8 52.5 52.5 43.6 37.8 32.1 26.4
1500
77 85.0 5.4 37.9 31.1 24.3 - - - 79.0 4.6 36.2 29.6 23.0 - - -
72 75.8 4.5 47.1 40.4 33.6 26.8 - - 70.3 4.1 44.8 38.2 31.6 25.0 - -
67 66.6 3.6 56.4 49.6 42.9 36.1 29.3 - 61.6 3.7 53.4 46.8 40.2 33.6 27.0 -
62 59.3 3.2 59.3 59.3 50.9 44.1 37.4 30.6 54.5 3.6 54.5 54.5 48.1 41.4 34.8 28.2
57 58.1 4.1 58.1 58.1 52.1 45.3 38.6 31.8 53.9 4.1 53.9 53.9 48.7 42.1 35.4 28.8
1750
77 88.3 4.9 42.1 34.4 26.8 - - - 81.9 4.3 40.1 32.6 25.1 - - -
72 78.7 4.1 52.3 44.6 37.0 29.4 - - 72.9 3.9 49.5 42.0 34.5 27.0 - -
67 69.2 3.2 62.5 54.8 47.2 39.5 31.9 - 63.9 3.5 59.0 51.5 43.9 36.4 28.9 -
62 61.6 2.8 61.6 61.6 56.0 48.4 40.7 33.1 56.4 3.4 56.4 56.4 52.5 45.0 37.5 30.0
57 60.4 3.7 60.4 60.4 57.3 49.7 42.1 34.4 55.8 3.9 55.8 55.8 53.2 45.7 38.2 30.7
2000
77 91.6 4.4 46.3 37.8 29.3 - - - 84.7 4.1 44.0 35.6 27.2 - - -
72 81.7 3.6 57.5 48.9 40.4 31.9 - - 75.4 3.7 54.3 45.9 37.5 29.1 - -
67 71.8 2.8 68.6 60.1 51.5 43.0 34.5 - 66.1 3.3 64.5 56.1 47.7 39.3 30.9 -
62 63.9 2.5 63.9 63.9 61.2 52.7 44.1 35.6 58.4 3.2 58.4 58.4 57.0 48.6 40.2 31.8
57 62.6 3.2 62.6 62.6 62.6 54.1 45.6 37.0 57.8 3.6 57.8 57.8 57.8 49.4 41.0 32.6
2250
72 82.5 3.9 60.8 51.6 42.4 33.2 - - 75.9 3.9 57.9 48.8 39.7 30.6 - -
67 72.5 3.0 70.9 63.3 54.1 44.9 35.8 - 66.5 3.5 65.7 59.6 50.5 41.4 32.3 -
62 64.5 2.6 64.5 64.5 63.2 54.0 44.8 35.6 58.8 3.5 58.8 58.8 58.1 49.0 39.9 30.8
57 63.3 3.5 63.3 63.3 63.3 54.1 44.9 35.7 58.2 3.9 58.2 58.2 58.2 49.1 39.9 30.8
2500
72 83.4 4.2 64.2 54.3 44.5 34.6 - - 76.4 4.1 61.6 51.7 41.9 32.1 - -
67 73.2 3.3 73.2 66.6 56.7 46.9 37.1 - 66.9 3.7 66.9 63.2 53.4 43.5 33.7 -
62 65.2 2.8 65.2 65.2 65.2 55.3 45.5 35.6 59.2 3.7 59.2 59.2 59.2 49.3 39.5 29.7
57 63.9 3.7 63.9 63.9 63.9 54.0 44.2 34.4 58.5 4.1 58.5 58.5 58.5 48.7 38.9 29.1
95°F 105°F
1250
77 70.7 3.7 30.8 25.3 19.7 - - - 65.8 4.9 25.3 21.7 16.5 - - -
72 62.8 3.7 38.2 32.6 27.0 21.5 - - 57.8 4.6 35.2 29.7 24.3 18.9 - -
67 54.8 3.7 45.5 39.9 34.3 28.8 23.2 - 49.8 4.3 45.1 37.8 32.1 26.6 21.2 -
62 48.1 4.0 48.1 48.1 41.4 35.8 30.3 24.7 43.0 4.6 43.0 43.0 35.7 30.3 24.8 19.4
1500
77 73.1 3.8 34.5 28.0 21.6 - - - 67.2 4.8 31.0 24.5 18.1 - - -
72 64.9 3.7 42.5 36.0 29.5 23.1 - - 59.0 4.5 39.4 33.0 26.6 20.2 - -
67 56.7 3.7 50.5 44.0 37.5 31.1 24.6 - 50.8 4.3 47.7 41.5 35.1 28.7 22.3 -
62 49.7 4.0 49.7 49.7 45.2 38.8 32.3 25.8 43.9 4.6 43.9 43.9 39.1 32.7 26.3 19.9
57 49.7 4.0 49.7 49.7 45.3 38.8 32.3 25.9 44.9 4.6 44.9 44.9 39.9 33.5 27.1 20.8
1750
77 75.5 3.8 38.2 30.8 23.4 - - - 68.6 4.7 36.8 27.3 19.7 - - -
72 67.0 3.7 46.8 39.4 32.1 24.7 - - 60.3 4.5 43.6 36.2 28.9 21.6 - -
67 58.5 3.7 55.4 48.1 40.7 33.3 26.0 - 51.9 4.2 50.4 45.2 38.1 30.8 23.5 -
62 51.3 4.0 51.3 51.3 49.1 41.7 34.3 27.0 44.9 4.5 44.9 44.9 42.5 35.1 27.8 20.4
57 51.3 4.0 51.3 51.3 49.1 41.7 34.4 27.0 45.9 4.5 45.9 45.9 43.4 36.0 28.7 21.4
2000
77 77.9 3.8 41.8 33.5 25.2 - - - 70.0 4.7 42.5 30.0 21.2 - - -
72 69.1 3.8 51.1 42.8 34.6 26.3 - - 61.5 4.4 47.8 39.5 31.2 22.9 - -
67 60.4 3.7 60.4 52.2 43.9 35.6 27.3 - 53.0 4.1 53.0 48.9 41.2 32.9 24.6 -
62 52.9 4.0 52.9 52.9 52.9 44.6 36.4 28.1 45.8 4.4 45.8 45.8 45.8 37.5 29.2 21.0
57 52.9 4.1 52.9 52.9 52.9 44.7 36.4 28.1 46.8 4.4 46.8 46.8 46.8 38.5 30.3 22.0
2250
72 69.3 3.9 55.0 46.0 37.0 27.9 - - 61.6 4.6 51.5 42.5 33.4 24.3 - -
67 60.5 3.9 60.5 56.0 46.9 37.9 28.9 - 53.1 4.3 53.1 50.8 44.1 35.0 26.0 -
62 53.0 4.3 53.0 53.0 53.0 44.0 35.0 25.9 45.9 4.6 45.9 45.9 45.9 36.8 27.7 18.7
57 53.1 4.3 53.1 53.1 53.1 44.0 35.0 26.0 46.9 4.7 46.9 46.9 46.9 37.8 28.7 19.7
2500
72 69.4 4.1 58.9 49.1 39.4 29.6 - - 61.6 4.8 55.3 45.5 35.6 25.8 - -
67 60.7 4.1 60.7 59.8 50.0 40.2 30.4 - 53.1 4.5 53.1 52.7 47.0 37.2 27.3 -
62 53.2 4.5 53.2 53.2 53.2 43.4 33.6 23.8 45.9 4.8 45.9 45.9 45.9 36.1 26.2 16.4
57 53.2 4.5 53.2 53.2 53.2 43.4 33.6 23.8 46.9 4.9 46.9 46.9 46.9 37.1 27.2 17.4

528150-YTG-G-1210
74 Johnson Controls Unitary Products
115°F 125°F
1250
77 60.8 6.1 19.8 18.1 13.3 - - - 55.9 7.3 18.9 12.5 10.1 - - -
72 52.8 5.6 32.2 26.9 21.6 16.2 - - 47.8 6.5 29.2 24.0 18.8 13.6 - -
67 44.7 5.0 44.7 35.7 29.8 24.5 19.1 - 39.6 5.7 39.6 34.3 27.5 22.3 17.1 -
62 37.9 5.3 37.9 37.9 30.0 24.7 19.4 14.0 32.9 5.9 32.9 32.9 24.3 19.1 13.9 8.7
1500
77 61.3 5.9 27.6 20.9 14.6 - - - 55.4 7.0 27.2 17.4 11.1 - - -
72 53.2 5.4 36.3 30.0 23.6 17.3 - - 47.3 6.2 33.2 27.0 20.7 14.4 - -
67 45.0 4.8 45.0 39.0 32.7 26.4 20.0 - 39.2 5.4 39.2 36.5 30.3 24.0 17.8 -
62 38.2 5.1 38.2 38.2 32.9 26.6 20.3 14.0 32.5 5.7 32.5 32.5 26.8 20.5 14.3 8.0
57 40.1 5.2 40.1 40.1 34.6 28.3 22.0 15.6 35.4 5.8 35.4 35.4 29.3 23.0 16.8 10.5
1750
77 61.7 5.7 35.4 23.8 15.9 - - - 54.8 6.7 35.6 22.3 12.2 - - -
72 53.5 5.2 40.4 33.1 25.7 18.4 - - 46.8 5.9 37.2 29.9 22.6 15.3 - -
67 45.3 4.7 45.3 42.3 35.6 28.3 20.9 - 38.8 5.2 38.8 38.8 33.0 25.7 18.4 -
62 38.5 4.9 38.5 38.5 35.8 28.5 21.2 13.9 32.1 5.4 32.1 32.1 29.2 21.9 14.7 7.4
57 40.4 5.0 40.4 40.4 37.7 30.3 23.0 15.7 35.0 5.5 35.0 35.0 31.9 24.7 17.4 10.1
2000
77 62.2 5.5 43.2 26.6 17.2 - - - 54.3 6.4 43.9 27.2 13.2 - - -
72 53.9 5.0 44.4 36.1 27.8 19.5 - - 46.3 5.7 41.1 32.8 24.5 16.1 - -
67 45.7 4.5 45.7 45.7 38.5 30.1 21.8 - 38.3 4.9 38.3 38.3 35.7 27.4 19.1 -
62 38.8 4.8 38.8 38.8 38.8 30.4 22.1 13.8 31.7 5.1 31.7 31.7 31.7 23.4 15.0 6.7
57 40.7 4.8 40.7 40.7 40.7 32.4 24.1 15.8 34.6 5.2 34.6 34.6 34.6 26.3 18.0 9.6
2250
72 53.9 5.2 48.1 38.9 29.8 20.7 - - 46.2 5.9 44.6 35.4 26.3 17.1 - -
67 45.6 4.7 45.6 45.6 41.2 32.1 23.0 - 38.2 5.1 38.2 38.2 38.2 29.3 20.1 -
62 38.7 5.0 38.7 38.7 38.7 29.6 20.5 11.4 31.6 5.4 31.6 31.6 31.6 22.4 13.3 4.1
57 40.7 5.1 40.7 40.7 40.7 31.6 22.5 13.4 34.5 5.5 34.5 34.5 34.5 25.3 16.2 7.1
2500
72 53.8 5.5 51.7 41.8 31.9 22.0 - - 46.0 6.1 46.0 38.1 28.1 18.2 - -
67 45.6 4.9 45.6 45.6 44.0 34.1 24.2 - 38.1 5.3 38.1 38.1 38.1 31.1 21.2 -
62 38.7 5.2 38.7 38.7 38.7 28.8 18.9 9.0 31.5 5.6 31.5 31.5 31.5 21.5 11.5 1.6
57 40.6 5.3 40.6 40.6 40.6 30.7 20.8 10.9 34.4 5.7 34.4 34.4 34.4 24.4 14.5 4.5
1. These capacities are gross ratings. For net capacity, deduct air blower motor, MBh = 3.415 x kW. Refer to the appropriate Blower
Performance Table for the kW of the supply air blower motor.
2. These ratings include the condenser fan motors (total 1 kW) and the compressor motors but not the supply air blower motor.
ZR061 (5.0 Ton) Cooling (Continued)
Air on
Evaporator Coil
Temperature of Air on Condenser Coil
Total
Capacity1
(MBh)
Total
Input
(kW)2
Sensible Capacity (MBh) Total
Capacity1
(MBh)
Total
Input
(kW)2
Sensible Capacity (MBh)
CFM WB
(°F)
Return Dry Bulb (°F) Return Dry Bulb (°F)
90 85 80 75 70 65 90 85 80 75 70 65

528150-YTG-G-1210
Johnson Controls Unitary Products 75
ZR061 (5.0 Ton) Reheat
Air on
Evaporator Coil
Temperature of Air on Condenser Coil
Total
Capacity1
(MBh)
Total
Input
(kW)2
Sensible Capacity (MBh)
(- indicates heating) Total
Capacity1
(MBh)
Total
Input
(kW)2
Sensible Capacity (MBh)
(- indicates heating)
CFM WB
(°F)
Return Dry Bulb (°F) Return Dry Bulb (°F)
75 75
40 °F 50 °F
1750
62.5 26.8 3.1 8.4 29.3 3.2 10.7
64 28.9 3.1 6.4 32.4 3.2 9.2
65.3 30.0 3.1 4.8 34.7 3.2 7.3
2000
62.5 29.2 3.1 11.0 30.3 3.2 11.9
64 30.8 3.1 8.6 32.3 3.2 9.9
65.3 31.4 3.1 5.8 35.3 3.2 8.4
2250
62.5 29.8 3.1 10.5 29.6 3.2 11.1
64 31.2 3.1 7.6 32.1 3.2 8.5
65.3 31.4 3.1 6.0 34.5 3.2 6.2
60 °F 70 °F
1750
62.5 26.7 3.3 9.2 24.5 3.4 8.0
64 28.9 3.3 6.9 27.0 3.4 6.4
65.3 31.6 3.3 5.4 28.7 3.4 4.3
2000
62.5 27.9 3.3 10.9 25.0 3.4 9.0
64 31.0 3.3 8.4 27.3 3.4 6.9
65.3 32.9 3.3 6.7 29.6 3.4 4.9
2250
62.5 26.8 3.3 9.5 23.6 3.4 7.3
64 29.5 3.3 6.9 26.1 3.4 4.7
62 31.7 3.3 4.5 28.2 3.4 2.7
75 °F 80 °F
1750
62.5 22.8 3.5 7.1 21.3 3.5 6.3
64 25.5 3.5 5.1 23.9 3.5 4.6
65.3 27.8 3.5 3.3 25.8 3.5 2.7
2000
62.5 23.2 3.5 8.0 21.3 3.5 7.3
64 25.7 3.5 5.9 23.7 3.5 5.3
65.3 27.8 3.5 4.3 25.7 3.5 3.6
2250
62.5 21.6 3.4 6.8 19.5 3.5 5.6
64 23.8 3.5 4.5 22.0 3.5 3.1
65.3 26.1 3.5 1.9 24.1 3.5 1.0
85 °F 95 °F
1750
62.5 17.4 3.5 3.9 8.3 3.8 -1.8
64 19.7 3.6 2.0 9.8 3.8 -3.9
65.3 21.6 3.6 -0.3 11.2 3.9 -5.3
2000
62.5 17.3 3.6 5.0 7.1 3.8 -0.9
64 19.4 3.6 2.5 8.8 3.8 -3.0
65.3 20.9 3.6 0.5 10.3 3.9 -5.2
2250
62.5 16.0 3.5 3.5 5.0 3.8 -3.3
64 18.0 3.6 0.4 6.1 3.8 -6.2
62 19.4 3.6 -1.7 8.3 3.9 -8.0
1. These capacities are gross ratings. For net capacity, deduct air blower motor, MBh = 3.415 x kW. Refer to the appropriate Blower
Performance Table for the kW of the supply air blower motor.
2. These ratings include the condenser fan motors (total 1 kW) and the compressor motors but not the supply air blower motor.

528150-YTG-G-1210
76 Johnson Controls Unitary Products
ZR078 (6.5 Ton) Cooling
Air on
Evaporator Coil
Temperature of Air on Condenser Coil
Total
Capacity1
(MBh)
Total
Input
(kW)2
Sensible Capacity (MBh) Total
Capacity1
(MBh)
Total
Input
(kW)2
Sensible Capacity (MBh)
CFM WB
(°F)
Return Dry Bulb (°F) Return Dry Bulb (°F)
90 85 80 75 70 65 90 85 80 75 70 65
75°F 85°F
1625
77 99.9 5.1 39.3 33.2 27.1 - - - 90.5 5.8 36.9 30.8 24.7 - - -
72 91.5 5.0 50.3 44.2 38.1 32.1 - - 83.7 5.7 48.0 41.8 35.7 29.6 - -
67 83.0 5.0 61.3 55.2 49.2 43.1 37.0 - 76.9 5.7 59.0 52.9 46.8 40.7 34.5 -
62 72.4 4.9 72.4 70.1 60.9 54.9 48.8 42.7 68.7 5.7 68.7 66.7 57.6 51.5 45.4 39.3
1950
77 106.5 5.1 45.5 37.9 30.3 - - - 96.8 5.9 42.8 35.2 27.7 - - -
72 97.5 5.1 57.8 50.2 42.6 35.1 - - 89.5 5.8 55.1 47.6 40.0 32.5 - -
67 88.5 5.1 70.1 62.5 54.9 47.4 39.8 - 82.2 5.8 67.5 60.0 52.4 44.9 37.3 -
62 77.2 5.0 77.2 75.6 68.1 60.5 52.9 45.4 73.4 5.7 73.4 72.1 64.6 57.0 49.5 41.9
57 78.2 5.0 78.2 78.2 72.6 65.0 57.5 49.9 70.6 5.7 70.6 70.6 65.6 58.0 50.5 43.0
2275
77 113.1 5.2 51.6 42.6 33.5 - - - 103.0 5.9 48.6 39.6 30.7 - - -
72 103.5 5.2 65.2 56.2 47.1 38.0 - - 95.2 5.9 62.3 53.3 44.4 35.4 - -
67 93.9 5.1 78.8 69.8 60.7 51.6 42.6 - 87.5 5.8 76.0 67.0 58.1 49.1 40.1 -
62 81.9 5.1 81.9 81.2 75.2 66.2 57.1 48.0 78.1 5.8 78.1 77.5 71.5 62.6 53.6 44.6
57 83.1 5.1 83.1 83.1 80.3 71.2 62.1 53.1 75.2 5.8 75.2 75.2 72.7 63.7 54.7 45.8
2600
77 119.7 5.3 57.8 47.3 36.7 - - - 109.3 6.0 54.4 44.0 33.6 - - -
72 109.5 5.2 72.7 62.2 51.6 41.0 - - 101.0 6.0 69.5 59.1 48.7 38.3 - -
67 99.4 5.2 87.6 77.0 66.5 55.9 45.3 - 92.8 5.9 84.5 74.1 63.7 53.3 42.9 -
62 86.7 5.1 86.7 86.7 82.4 71.8 61.3 50.7 82.9 5.9 82.9 82.9 78.5 68.1 57.7 47.3
57 87.9 5.2 87.9 87.9 87.9 77.4 66.8 56.2 79.7 5.9 79.7 79.7 79.7 69.3 59.0 48.6
2925
72 109.6 5.2 74.8 64.0 53.1 42.2 - - 100.2 5.9 71.6 60.8 50.0 39.3 - -
67 99.5 5.1 91.9 79.3 68.4 57.5 46.7 - 92.0 5.9 87.0 76.3 65.5 54.7 44.0 -
62 86.8 5.1 86.8 86.8 84.6 73.8 62.9 52.0 82.2 5.8 82.2 82.2 80.0 69.3 58.5 47.7
57 88.0 5.1 88.0 88.0 88.0 77.1 66.2 55.3 79.1 5.8 79.1 79.1 79.1 68.3 57.6 46.8
3250
72 109.7 5.1 76.9 65.7 54.6 43.4 - - 99.4 5.8 73.7 62.5 51.4 40.3 - -
67 99.6 5.1 96.1 81.5 70.3 59.1 48.0 - 91.3 5.8 89.5 78.4 67.3 56.1 45.0 -
62 86.9 5.0 86.9 86.9 86.9 75.7 64.5 53.4 81.5 5.8 81.5 81.5 81.5 70.4 59.3 48.1
57 88.0 5.0 88.0 88.0 88.0 76.8 65.6 54.4 78.5 5.8 78.5 78.5 78.5 67.3 56.2 45.1
95°F 105°F
1625
77 81.2 6.5 34.6 28.4 22.3 - - - 76.9 7.3 31.0 26.2 20.1 - - -
72 75.9 6.5 45.6 39.5 33.3 27.2 - - 70.8 7.3 43.2 37.1 31.0 24.8 - -
67 70.7 6.4 56.7 50.5 44.4 38.2 32.1 - 64.7 7.2 55.3 47.9 41.8 35.7 29.6 -
62 64.9 6.4 64.9 63.3 54.3 48.1 42.0 35.8 59.4 7.2 59.4 58.5 49.9 43.8 37.7 31.6
1950
77 87.0 6.6 40.1 32.5 25.0 - - - 81.8 7.4 37.4 30.0 22.6 - - -
72 81.4 6.5 52.5 45.0 37.5 30.0 - - 75.3 7.4 49.6 42.2 34.8 27.4 - -
67 75.8 6.5 64.9 57.4 49.9 42.4 34.9 - 68.8 7.3 61.8 54.4 47.0 39.6 32.1 -
62 69.7 6.4 69.7 68.6 61.0 53.5 46.0 38.5 63.2 7.3 63.2 62.6 56.1 48.7 41.3 33.9
57 63.0 6.5 63.0 63.0 58.6 51.1 43.5 36.0 61.6 7.3 61.6 61.4 55.5 48.1 40.6 33.2
2275
77 92.9 6.7 45.5 36.7 27.8 - - - 86.7 7.5 43.8 33.8 25.1 - - -
72 87.0 6.6 59.3 50.5 41.6 32.8 - - 79.8 7.5 56.0 47.3 38.6 29.9 - -
67 81.0 6.6 73.2 64.3 55.4 46.6 37.7 - 73.0 7.4 68.3 60.9 52.2 43.5 34.7 -
62 74.4 6.5 74.4 73.8 67.8 59.0 50.1 41.2 67.0 7.3 67.0 66.7 62.3 53.6 44.9 36.2
57 67.3 6.5 67.3 67.3 65.1 56.2 47.3 38.5 65.2 7.4 65.2 65.1 61.6 52.9 44.2 35.5
2600
77 98.8 6.7 51.0 40.8 30.6 - - - 91.6 7.6 50.2 37.6 27.6 - - -
72 92.5 6.7 66.2 56.0 45.8 35.6 - - 84.3 7.6 62.5 52.5 42.5 32.5 - -
67 86.1 6.6 81.4 71.2 61.0 50.8 40.5 - 77.1 7.5 74.7 67.3 57.3 47.3 37.3 -
62 79.1 6.6 79.1 79.1 74.6 64.4 54.2 43.9 70.8 7.4 70.8 70.8 68.5 58.5 48.5 38.5
57 71.5 6.6 71.5 71.5 71.5 61.3 51.1 40.9 68.9 7.4 68.9 68.9 67.7 57.7 47.7 37.7
2925
72 90.8 6.6 68.3 57.6 47.0 36.3 - - 83.1 7.5 64.7 54.2 43.8 33.3 - -
67 84.5 6.6 82.2 73.2 62.6 51.9 41.3 - 75.9 7.4 74.8 69.1 59.1 48.7 38.2 -
62 77.6 6.5 77.6 77.6 75.4 64.7 54.1 43.4 69.7 7.4 69.7 69.7 68.6 58.1 47.7 37.2
57 70.2 6.6 70.2 70.2 70.2 59.6 48.9 38.3 67.9 7.4 67.9 67.9 67.3 56.8 46.4 35.9
3250
72 89.1 6.6 70.4 59.3 48.2 37.1 - - 81.8 7.4 66.9 56.0 45.1 34.2 - -
67 83.0 6.5 83.0 75.3 64.2 53.1 42.0 - 74.8 7.4 74.8 70.9 60.9 50.0 39.1 -
62 76.2 6.5 76.2 76.2 76.2 65.1 54.0 42.9 68.6 7.3 68.6 68.6 68.6 57.7 46.8 35.9
57 68.9 6.5 68.9 68.9 68.9 57.8 46.8 35.7 66.9 7.3 66.9 66.9 66.9 56.0 45.1 34.2

528150-YTG-G-1210
Johnson Controls Unitary Products 77
115°F 125°F
1625
77 72.6 8.1 27.5 24.0 18.0 - - - 68.3 9.0 24.0 21.5 15.8 - - -
72 65.6 8.1 40.7 34.7 28.6 22.5 - - 60.4 8.9 38.3 32.2 26.2 20.2 - -
67 58.6 8.1 54.0 45.3 39.2 33.1 27.1 - 52.6 8.9 52.6 42.6 36.6 30.6 24.6 -
62 53.8 8.0 53.8 53.8 45.6 39.5 33.4 27.4 48.2 8.8 48.2 48.2 41.2 35.2 29.2 23.1
1950
77 76.5 8.2 34.8 27.5 20.2 - - - 71.2 9.1 33.0 25.0 17.8 - - -
72 69.1 8.2 46.7 39.4 32.1 24.8 - - 63.0 9.0 43.9 36.6 29.4 22.2 - -
67 61.8 8.2 58.7 51.4 44.0 36.7 29.4 - 54.7 9.0 54.7 48.3 41.1 33.9 26.7 -
62 56.7 8.1 56.7 56.7 51.2 43.9 36.6 29.3 50.2 8.9 50.2 50.2 46.3 39.1 31.9 24.7
57 60.1 8.1 60.1 59.7 52.4 45.1 37.7 30.4 58.7 8.9 58.7 58.0 49.3 42.1 34.8 27.6
2275
77 80.4 8.4 42.1 31.0 22.4 - - - 74.1 9.2 42.0 28.4 19.7 - - -
72 72.7 8.3 52.7 44.2 35.6 27.1 - - 65.5 9.2 49.4 41.0 32.6 24.2 - -
67 64.9 8.3 63.4 57.4 48.9 40.3 31.8 - 56.9 9.1 56.9 54.0 45.6 37.2 28.8 -
62 59.6 8.2 59.6 59.6 56.8 48.3 39.7 31.2 52.2 9.0 52.2 52.2 51.4 43.0 34.6 26.2
57 63.2 8.2 63.2 63.0 58.1 49.6 41.0 32.5 61.2 9.0 61.2 60.8 54.7 46.3 37.9 29.5
2600
77 84.3 8.5 49.4 34.4 24.6 - - - 77.1 9.3 51.0 31.8 21.6 - - -
72 76.2 8.4 58.8 49.0 39.2 29.4 - - 68.1 9.3 55.0 45.4 35.9 26.3 - -
67 68.1 8.4 68.1 63.5 53.7 43.9 34.1 - 59.1 9.2 59.1 59.1 50.1 40.5 30.9 -
62 62.5 8.3 62.5 62.5 62.5 52.7 42.9 33.1 54.2 9.1 54.2 54.2 54.2 46.8 37.2 27.7
57 66.3 8.3 66.3 66.3 63.9 54.1 44.3 34.5 63.6 9.1 63.6 63.6 60.0 50.5 40.9 31.3
2925
72 75.4 8.3 61.1 50.8 40.6 30.3 - - 67.6 9.2 57.5 47.4 37.4 27.3 - -
67 67.3 8.3 67.3 65.0 55.7 45.4 35.1 - 58.7 9.2 58.7 58.7 52.2 42.1 32.1 -
62 61.8 8.2 61.8 61.8 61.8 51.5 41.3 31.0 53.8 9.0 53.8 53.8 53.8 44.9 34.9 24.8
57 65.5 8.2 65.5 65.5 64.3 54.1 43.8 33.6 63.2 9.0 63.2 63.2 61.4 51.3 41.3 31.2
3250
72 74.5 8.3 63.4 52.7 42.0 31.3 - - 67.2 9.1 59.9 49.4 38.9 28.3 - -
67 66.6 8.2 66.6 66.6 57.6 46.9 36.2 - 58.4 9.1 58.4 58.4 54.3 43.7 33.2 -
62 61.1 8.1 61.1 61.1 61.1 50.4 39.7 28.9 53.5 8.9 53.5 53.5 53.5 43.0 32.5 22.0
57 64.8 8.1 64.8 64.8 64.8 54.1 43.4 32.7 62.7 9.0 62.7 62.7 62.7 52.2 41.7 31.2
1. These capacities are gross ratings. For net capacity, deduct air blower motor, MBh = 3.415 x kW. Refer to the appropriate Blower
Performance Table for the kW of the supply air blower motor.
2. These ratings include the condenser fan motors (total 1 kW) and the compressor motors but not the supply air blower motor.
ZR078 (6.5 Ton) Cooling (Continued)
Air on
Evaporator Coil
Temperature of Air on Condenser Coil
Total
Capacity1
(MBh)
Total
Input
(kW)2
Sensible Capacity (MBh) Total
Capacity1
(MBh)
Total
Input
(kW)2
Sensible Capacity (MBh)
CFM WB
(°F)
Return Dry Bulb (°F) Return Dry Bulb (°F)
90 85 80 75 70 65 90 85 80 75 70 65

528150-YTG-G-1210
78 Johnson Controls Unitary Products
ZR078 (6.5 Ton) Reheat
Air on
Evaporator Coil
Temperature of Air on Condenser Coil
Total
Capacity1
(MBh)
Total
Input
(kW)2
Sensible Capacity (MBh) Total
Capacity1
(MBh)
Total
Input
(kW)2
Sensible Capacity (MBh)
CFM WB
(°F)
Return Dry Bulb (°F) Return Dry Bulb (°F)
85 80 75 70 65 85 80 75 70 65
35°F 45°F
1625
72 31.6 4.51.61.51.5-- 34.9 5.1 -----
67 32.2 4.6 1.5 1.5 1.4 1.4 - 35.2 4.9 2.5 2.2 1.9 1.7 -
62 28.5 4.4 1.6 1.6 1.5 1.5 1.4 32.0 4.9 5.2 4.9 4.6 4.4 4.1
1950
72 36.1 4.32.21.60.9-- 37.2 4.9 -----
67 36.7 4.5 6.6 5.9 5.3 4.6 - 37.6 4.7 6.2 5.6 4.9 4.2 -
62 32.6 4.3 10.8 10.1 9.4 8.8 8.1 34.2 4.7 13.0 12.4 11.7 11.1 10.4
57 34.2 4.4 17.1 16.4 15.8 15.1 14.5 34.5 4.7 18.2 17.6 16.9 16.3 15.6
2275
72 40.5 4.22.91.70.4-- 39.6 4.7 -----
67 41.2 4.3 11.6 10.4 9.1 7.8 - 39.9 4.5 9.9 8.9 7.9 6.8 -
62 36.7 4.2 19.9 18.6 17.4 16.1 14.8 36.3 4.5 20.9 19.8 18.8 17.8 16.7
57 38.3 4.2 29.8 29.5 28.2 26.9 25.7 36.6 4.5 28.5 28.2 27.2 26.1 25.1
2600
72 45.0 4.13.61.7-0.1-- 41.9 4.5 -----
67 45.7 4.2 16.7 14.8 12.9 11.1 - 42.3 4.3 13.7 12.3 10.8 9.4 -
62 40.8 4.0 29.0 27.1 25.3 23.4 21.6 38.4 4.3 28.7 27.3 25.9 24.5 23.1
57 42.5 4.1 42.5 42.5 40.6 38.7 36.9 38.8 4.4 38.8 38.8 37.4 36.0 34.5
2925
72 42.5 4.04.62.81.0-- 40.8 4.6 -----
67 43.2 4.1 17.5 15.7 13.9 12.1 - 41.1 4.4 15.2 13.7 12.2 10.8 -
62 38.5 4.0 31.6 29.1 27.3 25.5 23.7 37.4 4.4 32.0 30.5 29.1 27.6 26.1
57 40.2 4.0 40.2 40.2 38.3 36.5 34.7 37.7 4.4 37.7 37.7 36.2 34.8 33.3
3250
72 40.0 3.95.73.92.1-- 39.6 4.6 -----
67 40.6 4.0 18.4 16.6 14.8 13.0 - 40.0 4.4 16.7 15.2 13.6 12.1 -
62 36.2 3.9 34.2 31.1 29.3 27.5 25.8 36.3 4.4 35.3 33.8 32.3 30.7 29.2
57 37.9 4.0 37.9 37.9 36.1 34.3 32.5 36.7 4.5 36.7 36.7 35.1 33.6 32.0
55°F 65°F
1625
72 38.2 5.7 ----- 36.3 5.7 -----
67 38.2 5.1 3.4 2.9 2.4 1.9 - 36.2 5.3 2.4 2.1 1.8 1.5 -
62 35.5 5.3 8.8 8.3 7.8 7.3 6.7 33.1 5.2 6.5 6.2 5.9 5.6 5.3
1950
72 38.4 5.5 ----- 36.8 5.6 -----
67 38.4 4.9 5.8 5.2 4.5 3.9 - 36.7 5.2 4.9 4.3 3.8 3.2 -
62 35.7 5.1 15.3 14.7 14.0 13.3 12.7 33.5 5.0 13.9 13.3 12.7 12.2 11.6
57 34.7 5.1 19.4 18.7 18.1 17.4 16.8 32.9 5.0 17.0 16.5 15.9 15.3 14.8
2275
72 38.6 5.2 ----- 37.3 5.4 -----
67 38.6 4.7 8.3 7.5 6.6 5.8 - 37.2 5.0 7.4 6.6 5.8 5.0 -
62 35.9 4.9 21.9 21.0 20.2 19.4 18.6 34.0 4.9 21.2 20.4 19.6 18.8 18.0
57 34.9 4.8 27.2 26.9 26.1 25.3 24.5 33.4 4.9 25.4 25.2 24.3 23.5 22.7
2600
72 38.8 5.0 ----- 37.8 5.3 -----
67 38.9 4.4 10.7 9.7 8.8 7.8 - 37.7 4.9 9.9 8.9 7.8 6.8 -
62 36.1 4.6 28.4 27.4 26.5 25.5 24.6 34.4 4.8 28.5 27.5 26.4 25.3 24.3
57 35.1 4.6 35.1 35.1 34.1 33.2 32.2 33.8 4.8 33.8 33.8 32.8 31.7 30.7
2925
72 39.0 5.2 ----- 38.0 5.4 -----
67 39.1 4.6 12.9 11.7 10.6 9.5 - 38.0 5.0 12.2 10.9 9.7 8.4 -
62 36.3 4.8 32.4 32.0 30.8 29.7 28.6 34.6 4.9 31.7 31.2 29.9 28.7 27.4
57 35.3 4.8 35.3 35.3 34.2 33.0 31.9 34.1 4.9 34.1 34.1 32.8 31.6 30.3
3250
72 39.2 5.3 ----- 38.2 5.5 -----
67 39.3 4.8 15.0 13.7 12.5 11.2 - 38.2 5.0 14.4 13.0 11.6 10.1 -
62 36.5 5.0 36.5 36.5 35.2 33.9 32.6 34.8 4.9 34.8 34.8 33.4 32.0 30.5
57 35.5 5.0 35.5 35.5 34.2 32.9 31.6 34.3 4.9 34.3 34.3 32.8 31.4 29.9

528150-YTG-G-1210
Johnson Controls Unitary Products 79
75°F 85°F
1625
72 34.3 5.7 ----- 32.4 5.6 -----
67 34.2 5.4 1.3 1.2 1.1 1.0 - 32.2 5.6 0.3 0.4 0.5 0.6 -
62 30.6 5.0 4.3 4.2 4.1 4.0 3.9 28.2 4.8 2.1 2.2 2.2 2.3 2.4
1950
72 35.1 5.7 ----- 33.5 5.8 -----
67 35.0 5.4 4.0 3.5 3.0 2.6 - 33.3 5.7 3.0 2.7 2.3 1.9 -
62 31.3 5.0 12.4 12.0 11.5 11.0 10.6 29.1 4.9 11.0 10.6 10.3 9.9 9.5
57 31.2 5.0 14.6 14.2 13.7 13.3 12.8 29.4 4.9 12.2 11.9 11.5 11.2 10.8
2275
72 35.9 5.7 ----- 34.5 5.9 -----
67 35.8 5.4 6.6 5.8 5.0 4.2 - 34.4 5.8 5.7 4.9 4.1 3.3 -
62 32.0 5.0 20.5 19.7 18.9 18.1 17.3 30.1 5.1 19.9 19.1 18.3 17.4 16.6
57 31.9 5.0 23.6 23.4 22.6 21.8 21.0 30.4 5.0 21.8 21.6 20.8 20.0 19.2
2600
72 36.7 5.7 ----- 35.6 6.0 -----
67 36.6 5.4 9.2 8.1 6.9 5.7 - 35.5 5.9 8.5 7.2 6.0 4.7 -
62 32.7 5.0 28.7 27.5 26.3 25.2 24.0 31.0 5.2 28.8 27.5 26.3 25.0 23.8
57 32.6 5.0 32.6 32.6 31.4 30.3 29.1 31.3 5.2 31.3 31.3 30.1 28.8 27.6
2925
72 37.0 5.6 ----- 35.9 5.8 -----
67 36.9 5.4 11.5 10.2 8.8 7.4 - 35.8 5.8 10.9 9.4 7.9 6.4 -
62 33.0 4.9 30.9 30.4 29.0 27.6 26.2 31.3 5.0 30.2 29.6 28.0 26.5 25.0
57 32.8 4.9 32.8 32.8 31.5 30.1 28.7 31.6 5.0 31.6 31.6 30.1 28.6 27.1
3250
72 37.2 5.6 ----- 36.2 5.7 -----
67 37.1 5.3 13.9 12.3 10.7 9.1 - 36.1 5.6 13.3 11.5 9.8 8.0 -
62 33.2 4.9 33.2 33.2 31.6 30.0 28.4 31.6 4.9 31.6 31.6 29.8 28.1 26.3
57 33.1 4.9 33.1 33.1 31.5 29.9 28.3 31.9 4.9 31.9 31.9 30.1 28.4 26.6
1. These capacities are gross ratings. For net capacity, deduct air blower motor, MBh = 3.415 x kW. Refer to the appropriate Blower
Performance Table for the kW of the supply air blower motor.
2. These ratings include the condenser fan motors (total 1 kW) and the compressor motors but not the supply air blower motor.
ZR078 (6.5 Ton) Reheat (Continued)
Air on
Evaporator Coil
Temperature of Air on Condenser Coil
Total
Capacity1
(MBh)
Total
Input
(kW)2
Sensible Capacity (MBh) Total
Capacity1
(MBh)
Total
Input
(kW)2
Sensible Capacity (MBh)
CFM WB
(°F)
Return Dry Bulb (°F) Return Dry Bulb (°F)
85 80 75 70 65 85 80 75 70 65

528150-YTG-G-1210
80 Johnson Controls Unitary Products
ZR090 (7.5 Ton) Cooling
Air on
Evaporator Coil
Temperature of Air on Condenser Coil
Total
Capacity1
(MBh)
Total
Input
(kW)2
Sensible Capacity (MBh) Total
Capacity1
(MBh)
Total
Input
(kW)2
Sensible Capacity (MBh)
CFM WB
(°F)
Return Dry Bulb (°F) Return Dry Bulb (°F)
90 85 80 75 70 65 90 85 80 75 70 65
75°F 85°F
1875
77 105.8 5.6 45.9 38.3 30.8 - - - 102.9 6.3 42.8 35.3 27.9 - - -
72 98.8 5.6 58.9 51.3 43.7 36.2 - - 95.7 6.3 56.0 48.5 41.1 33.6 - -
67 91.9 5.5 71.9 64.3 56.7 49.2 41.6 - 88.5 6.2 69.2 61.7 54.2 46.8 39.3 -
62 84.5 5.5 84.5 79.9 70.2 62.6 55.0 47.5 81.5 6.1 81.5 77.2 66.5 59.0 51.5 44.1
2250
77 111.9 5.6 51.8 42.8 33.9 - - - 107.5 6.4 48.5 39.6 30.8 - - -
72 104.5 5.6 66.1 57.1 48.2 39.3 - - 100.0 6.3 63.0 54.2 45.4 36.5 - -
67 97.1 5.5 80.4 71.4 62.5 53.6 44.6 - 92.5 6.2 77.6 68.8 59.9 51.1 42.2 -
62 89.3 5.5 89.3 86.3 77.3 68.4 59.5 50.5 85.1 6.2 85.1 82.3 73.4 64.6 55.8 46.9
57 88.6 5.5 88.6 88.6 80.1 71.1 62.2 53.3 84.7 6.2 84.7 84.1 75.3 66.4 57.6 48.8
2625
77 118.0 5.6 57.6 47.3 37.0 - - - 112.1 6.4 54.1 43.9 33.7 - - -
72 110.2 5.6 73.2 62.9 52.7 42.4 - - 104.3 6.3 70.0 59.8 49.6 39.4 - -
67 102.4 5.5 88.9 78.6 68.3 58.0 47.7 - 96.4 6.3 86.0 75.8 65.6 55.4 45.2 -
62 94.2 5.5 94.2 92.6 84.5 74.2 63.9 53.6 88.8 6.2 88.8 87.4 80.4 70.2 60.0 49.8
57 93.5 5.5 93.5 93.5 87.5 77.2 66.9 56.6 88.3 6.2 88.3 88.0 82.4 72.2 62.0 51.8
3000
77 124.1 5.6 63.5 51.8 40.2 - - - 116.7 6.4 59.7 48.2 36.6 - - -
72 115.9 5.6 80.4 68.8 57.1 45.5 - - 108.5 6.3 77.1 65.5 53.9 42.4 - -
67 107.7 5.5 97.4 85.7 74.0 62.4 50.7 - 100.4 6.3 94.4 82.8 71.3 59.7 48.1 -
62 99.0 5.5 99.0 99.0 91.6 80.0 68.3 56.6 92.4 6.2 92.4 92.4 87.3 75.8 64.2 52.7
57 98.3 5.5 98.3 98.3 94.9 83.2 71.6 59.9 91.9 6.2 91.9 91.9 89.5 78.0 66.4 54.8
3375
72 115.5 5.6 81.8 70.3 58.8 47.3 - - 108.7 6.4 79.1 67.5 55.9 44.3 - -
67 107.3 5.5 101.4 87.7 76.2 64.7 53.2 - 100.5 6.3 97.1 85.5 73.9 62.2 50.6 -
62 98.7 5.5 98.7 98.7 95.0 83.5 72.0 60.4 92.5 6.2 92.5 92.5 90.0 78.4 66.7 55.1
57 98.0 5.5 98.0 98.0 96.3 84.7 73.2 61.7 92.0 6.3 92.0 92.0 90.8 79.2 67.6 56.0
3750
72 115.1 5.6 83.2 71.9 60.5 49.1 - - 108.8 6.4 81.2 69.5 57.9 46.2 - -
67 107.0 5.6 105.4 89.8 78.4 67.0 55.6 - 100.6 6.3 99.8 88.1 76.4 64.8 53.1 -
62 98.4 5.5 98.4 98.4 98.4 87.0 75.6 64.3 92.6 6.2 92.6 92.6 92.6 80.9 69.3 57.6
57 97.6 5.5 97.6 97.6 97.6 86.3 74.9 63.5 92.1 6.3 92.1 92.1 92.1 80.4 68.8 57.1
95°F 105°F
1875
77 100.0 7.1 39.7 32.4 25.0 - - - 93.5 7.9 35.7 30.0 22.7 - - -
72 92.6 7.0 53.1 45.7 38.4 31.0 - - 86.1 7.9 50.5 43.2 36.0 28.7 - -
67 85.2 6.9 66.5 59.1 51.8 44.4 37.0 - 78.7 7.8 65.2 56.4 49.2 42.0 34.7 -
62 78.6 6.8 78.6 74.5 62.8 55.4 48.0 40.7 72.5 7.7 72.5 70.5 58.5 51.2 44.0 36.7
2250
77 103.1 7.1 45.2 36.4 27.7 - - - 96.1 8.0 42.3 33.7 25.2 - - -
72 95.4 7.0 60.0 51.3 42.5 33.8 - - 88.5 7.9 56.9 48.4 39.8 31.2 - -
67 87.8 6.9 74.8 66.1 57.3 48.6 39.9 - 80.9 7.8 71.6 63.0 54.4 45.9 37.3 -
62 81.0 6.9 81.0 78.3 69.6 60.8 52.1 43.3 74.5 7.8 74.5 73.2 64.7 56.1 47.6 39.0
57 80.7 6.9 80.7 79.2 70.5 61.7 53.0 44.3 75.4 7.8 75.4 73.8 65.3 56.7 48.1 39.5
2625
77 106.2 7.2 50.6 40.5 30.4 - - - 98.6 8.0 48.9 37.5 27.6 - - -
72 98.3 7.1 66.9 56.8 46.6 36.5 - - 90.9 7.9 63.4 53.5 43.6 33.7 - -
67 90.4 7.0 83.1 73.0 62.9 52.8 42.7 - 83.1 7.9 78.0 69.6 59.7 49.8 39.9 -
62 83.4 6.9 83.4 82.1 76.3 66.2 56.1 46.0 76.5 7.8 76.5 75.9 70.9 61.0 51.1 41.2
57 83.1 6.9 83.1 82.4 77.3 67.2 57.1 47.0 77.4 7.8 77.4 76.6 71.5 61.6 51.8 41.9
3000
77 109.2 7.2 56.0 44.5 33.1 - - - 101.2 8.1 55.4 41.2 30.0 - - -
72 101.2 7.1 73.7 62.3 50.8 39.3 - - 93.2 8.0 69.9 58.7 47.5 36.3 - -
67 93.1 7.0 91.4 80.0 68.5 57.0 45.6 - 85.2 7.9 84.4 76.2 64.9 53.7 42.5 -
62 85.8 6.9 85.8 85.8 83.1 71.6 60.1 48.7 78.5 7.8 78.5 78.5 77.2 65.9 54.7 43.5
57 85.6 7.0 85.6 85.6 84.2 72.7 61.3 49.8 79.4 7.9 79.4 79.4 77.8 66.6 55.4 44.2
3375
72 101.8 7.1 76.5 64.7 53.0 41.3 - - 94.2 8.0 73.3 61.7 50.0 38.3 - -
67 93.6 7.0 92.8 83.2 71.5 59.8 48.0 - 86.1 7.9 85.7 79.7 68.4 56.7 45.0 -
62 86.4 6.9 86.4 86.4 85.0 73.3 61.5 49.8 79.3 7.8 79.3 79.3 78.7 67.0 55.3 43.6
57 86.1 7.0 86.1 86.1 85.4 73.7 61.9 50.2 80.2 7.9 80.2 80.2 79.4 67.8 56.1 44.4
3750
72 102.4 7.1 79.2 67.2 55.2 43.3 - - 95.2 8.0 76.7 64.6 52.5 40.4 - -
67 94.2 7.0 94.2 86.5 74.5 62.5 50.5 - 87.0 7.9 87.0 83.1 71.8 59.7 47.5 -
62 86.9 7.0 86.9 86.9 86.9 74.9 62.9 50.9 80.2 7.8 80.2 80.2 80.2 68.0 55.9 43.8
57 86.6 7.0 86.6 86.6 86.6 74.6 62.6 50.6 81.0 7.9 81.0 81.0 81.0 68.9 56.8 44.7

528150-YTG-G-1210
Johnson Controls Unitary Products 81
115°F 125°F
1875
77 87.0 8.8 31.8 27.6 20.5 - - - 80.5 9.7 27.4 25.2 18.3 - - -
72 79.6 8.7 47.8 40.7 33.6 26.5 - - 73.1 9.6 45.1 38.1 31.2 24.2 - -
67 72.2 8.7 63.8 53.7 46.6 39.5 32.4 - 65.8 9.6 62.5 51.1 44.1 37.1 30.1 -
62 66.5 8.6 66.5 66.5 54.1 47.0 39.9 32.8 60.5 9.5 60.5 60.5 49.8 42.8 35.8 28.9
2250
77 89.0 8.9 39.5 31.1 22.7 - - - 82.0 9.7 36.6 28.4 20.2 - - -
72 81.5 8.8 53.9 45.5 37.1 28.7 - - 74.5 9.7 50.9 42.6 34.4 26.2 - -
67 74.0 8.7 68.4 60.0 51.6 43.2 34.8 - 67.0 9.6 65.1 56.9 48.7 40.4 32.2 -
62 68.1 8.6 68.1 68.1 59.8 51.4 43.0 34.6 61.6 9.5 61.6 61.6 55.0 46.7 38.5 30.3
57 70.0 8.7 70.0 68.4 60.0 51.6 43.2 34.8 64.6 9.6 64.6 63.0 54.8 46.6 38.3 30.1
2625
77 91.1 8.9 47.2 34.5 24.8 - - - 83.6 9.8 45.8 31.5 22.0 - - -
72 83.4 8.8 60.0 50.3 40.6 31.0 - - 76.0 9.7 56.6 47.1 37.6 28.2 - -
67 75.7 8.8 72.9 66.2 56.5 46.8 37.1 - 68.3 9.6 67.8 62.7 53.2 43.8 34.3 -
62 69.7 8.7 69.7 69.7 65.5 55.9 46.2 36.5 62.8 9.6 62.8 62.8 60.1 50.7 41.2 31.7
57 71.6 8.7 71.6 70.8 65.8 56.1 46.4 36.7 65.8 9.6 65.8 65.0 60.0 50.5 41.0 31.5
3000
77 93.2 8.9 54.9 38.0 27.0 - - - 85.2 9.8 55.1 34.7 23.9 - - -
72 85.3 8.9 66.1 55.2 44.2 33.2 - - 77.4 9.7 62.3 51.6 40.9 30.2 - -
67 77.4 8.8 77.4 72.4 61.4 50.4 39.4 - 69.6 9.7 69.6 68.6 57.8 47.1 36.4 -
62 71.2 8.7 71.2 71.2 71.2 60.3 49.3 38.3 63.9 9.6 63.9 63.9 63.9 54.6 43.9 33.1
57 73.2 8.8 73.2 73.2 71.5 60.5 49.5 38.6 67.1 9.6 67.1 67.1 65.1 54.4 43.7 32.9
3375
72 86.6 8.9 70.2 58.6 47.0 35.3 - - 79.0 9.7 67.1 55.5 43.9 32.4 - -
67 78.6 8.8 78.6 76.1 65.2 53.6 42.0 - 71.1 9.7 71.1 71.1 62.1 50.5 39.0 -
62 72.3 8.7 72.3 72.3 72.3 60.7 49.1 37.5 65.3 9.6 65.3 65.3 65.3 54.4 42.9 31.3
57 74.4 8.8 74.4 74.4 73.5 61.9 50.2 38.6 68.5 9.6 68.5 68.5 67.5 55.9 44.4 32.8
3750
72 87.9 8.8 74.3 62.0 49.7 37.5 - - 80.7 9.7 71.8 59.4 47.0 34.6 - -
67 79.8 8.8 79.8 79.8 69.1 56.8 44.6 - 72.6 9.6 72.6 72.6 66.4 54.0 41.6 -
62 73.4 8.7 73.4 73.4 73.4 61.2 48.9 36.6 66.7 9.6 66.7 66.7 66.7 54.3 41.9 29.5
57 75.5 8.7 75.5 75.5 75.5 63.2 50.9 38.7 69.9 9.6 69.9 69.9 69.9 57.5 45.1 32.7
1. These capacities are gross ratings. For net capacity, deduct air blower motor, MBh = 3.415 x kW. Refer to the appropriate Blower
Performance Table for the kW of the supply air blower motor.
2. These ratings include the condenser fan motors (total 1 kW) and the compressor motors but not the supply air blower motor.
ZR090 (7.5 Ton) Cooling (Continued)
Air on
Evaporator Coil
Temperature of Air on Condenser Coil
Total
Capacity1
(MBh)
Total
Input
(kW)2
Sensible Capacity (MBh) Total
Capacity1
(MBh)
Total
Input
(kW)2
Sensible Capacity (MBh)
CFM WB
(°F)
Return Dry Bulb (°F) Return Dry Bulb (°F)
90 85 80 75 70 65 90 85 80 75 70 65

528150-YTG-G-1210
82 Johnson Controls Unitary Products
ZR090 (7.5 Ton) Reheat
Air on
Evaporator Coil
Temperature of Air on Condenser Coil
Total
Capacity1
(MBh)
Total
Input
(kW)2
Sensible Capacity (MBh) Total
Capacity1
(MBh)
Total
Input
(kW)2
Sensible Capacity (MBh)
CFM WB
(°F)
Return Dry Bulb (°F) Return Dry Bulb (°F)
85 80 75 70 65 85 80 75 70 65
35°F 45°F
1875
72 38.6 5.05.25.15.0-- 42.1 5.3 -----
67 37.9 4.8 0.6 0.5 0.4 0.3 - 41.3 5.1 3.0 2.6 2.3 2.0 -
62 35.4 5.6 - - - - - 39.5 5.4 6.2 5.9 5.5 5.2 4.9
2250
72 43.5 4.76.35.64.8-- 44.5 5.1 -----
67 42.8 4.6 7.8 7.0 6.3 5.5 - 43.8 5.0 7.4 6.7 5.9 5.1 -
62 40.1 5.3 8.3 7.6 6.8 6.1 5.3 41.7 5.2 15.5 14.8 14.0 13.2 12.5
57 41.4 5.0 14.3 13.6 12.8 12.0 11.3 41.4 5.1 21.6 20.8 20.0 19.3 18.5
2625
72 48.5 4.47.56.04.6-- 47.0 4.9 -----
67 47.7 4.3 15.0 13.6 12.1 10.7 - 46.2 4.8 11.9 10.7 9.4 8.2 -
62 44.8 5.0 21.7 20.3 18.8 17.4 15.9 44.0 5.0 24.9 23.7 22.5 21.3 20.0
57 46.1 4.7 32.5 32.1 30.7 29.2 27.8 43.6 4.9 33.7 33.4 32.1 30.9 29.7
3000
72 53.5 4.18.66.54.3-- 49.4 4.8 -----
67 52.6 4.0 22.3 20.1 18.0 15.9 - 48.6 4.6 16.3 14.7 13.0 11.4 -
62 49.5 4.7 35.1 33.0 30.8 28.7 26.5 46.3 4.8 34.2 32.6 30.9 29.3 27.6
57 50.7 4.4 50.7 50.7 48.5 46.4 44.2 45.9 4.7 45.9 45.9 44.3 42.6 41.0
3375
72 50.5 4.110.58.46.2-- 48.1 4.8 -----
67 49.6 4.0 23.9 21.8 19.6 17.5 - 47.3 4.6 18.2 16.5 14.7 13.0 -
62 46.7 4.7 38.1 35.2 33.1 30.9 28.8 45.1 4.8 38.3 36.6 34.9 33.1 31.4
57 47.9 4.4 47.9 47.9 45.8 43.7 41.5 44.7 4.7 44.7 44.7 42.9 41.2 39.5
3750
72 47.6 4.112.410.38.2-- 46.8 4.7 -----
67 46.7 4.0 25.5 23.4 21.3 19.1 - 46.0 4.6 20.1 18.3 16.5 14.6 -
62 43.9 4.7 41.1 37.4 35.3 33.2 31.0 43.9 4.8 42.5 40.6 38.8 37.0 35.2
57 45.2 4.4 45.2 45.2 43.1 40.9 38.8 43.5 4.7 43.5 43.5 41.6 39.8 38.0
55°F 65°F
1875
72 45.6 5.6 ----- 43.5 5.9 -----
67 44.8 5.4 5.4 4.8 4.2 3.6 - 42.6 5.7 3.6 3.2 2.8 2.5 -
62 43.5 5.2 17.4 16.8 16.3 15.7 15.1 40.6 5.5 11.6 11.2 10.8 10.4 10.1
2250
72 45.5 5.5 ----- 43.7 5.9 -----
67 44.7 5.4 7.0 6.3 5.5 4.7 - 42.8 5.7 5.9 5.3 4.6 3.9 -
62 43.4 5.1 22.7 22.0 21.2 20.4 19.6 40.8 5.4 18.9 18.2 17.6 16.9 16.2
57 41.3 5.1 28.8 28.0 27.3 26.5 25.7 39.3 5.4 23.3 22.6 21.9 21.3 20.6
2625
72 45.4 5.5 ----- 44.0 5.8 -----
67 44.7 5.3 8.7 7.7 6.8 5.8 - 43.0 5.6 8.3 7.3 6.4 5.4 -
62 43.3 5.1 28.0 27.1 26.1 25.2 24.2 41.0 5.4 26.2 25.3 24.3 23.3 22.4
57 41.2 5.0 35.0 34.6 33.6 32.7 31.7 39.5 5.3 31.5 31.2 30.2 29.2 28.3
3000
72 45.4 5.4 ----- 44.2 5.8 -----
67 44.6 5.3 10.3 9.2 8.0 6.9 - 43.3 5.6 10.6 9.4 8.1 6.9 -
62 43.2 5.0 33.3 32.2 31.0 29.9 28.7 41.2 5.3 33.5 32.3 31.0 29.8 28.6
57 41.1 5.0 41.1 41.1 40.0 38.8 37.7 39.7 5.3 39.7 39.7 38.5 37.2 36.0
3375
72 45.7 5.4 ----- 44.6 5.8 -----
67 44.9 5.2 12.5 11.2 9.9 8.5 - 43.7 5.5 13.0 11.6 10.1 8.6 -
62 43.5 5.0 38.6 38.0 36.7 35.3 34.0 41.6 5.3 37.8 37.2 35.7 34.2 32.8
57 41.4 4.9 41.4 41.4 40.1 38.7 37.4 40.1 5.3 40.1 40.1 38.6 37.2 35.7
3750
72 46.0 5.3 ----- 45.1 5.7 -----
67 45.2 5.2 14.7 13.2 11.7 10.1 - 44.1 5.5 15.4 13.7 12.1 10.4 -
62 43.9 4.9 43.9 43.9 42.3 40.8 39.3 42.0 5.3 42.0 42.0 40.4 38.7 37.0
57 41.7 4.9 41.7 41.7 40.2 38.7 37.1 40.5 5.2 40.5 40.5 38.8 37.1 35.4

528150-YTG-G-1210
Johnson Controls Unitary Products 83
75°F 85°F
1875
72 41.4 6.3 ----- 39.2 6.7 -----
67 40.3 6.01.81.71.51.3- 38.0 6.3 -----
62 37.7 5.85.85.65.45.25.034.9 6.0 -----
2250
72 41.9 6.3 ----- 40.1 6.6 -----
67 40.9 6.0 4.9 4.3 3.7 3.2 - 38.9 6.3 3.8 3.3 2.8 2.4 -
62 38.2 5.7 15.1 14.5 13.9 13.4 12.8 35.7 6.0 11.3 10.8 10.3 9.9 9.4
57 37.3 5.7 17.7 17.2 16.6 16.0 15.5 35.3 6.0 12.2 11.7 11.3 10.8 10.3
2625
72 42.5 6.2 ----- 41.0 6.6 -----
67 41.4 5.9 7.9 6.9 6.0 5.0 - 39.8 6.2 7.5 6.5 5.6 4.6 -
62 38.8 5.7 24.4 23.4 22.5 21.5 20.6 36.5 6.0 22.6 21.6 20.7 19.7 18.8
57 37.8 5.7 28.0 27.7 26.8 25.8 24.9 36.1 6.0 24.6 24.3 23.4 22.4 21.5
3000
72 43.1 6.2 ----- 41.9 6.6 -----
67 42.0 5.9 10.9 9.6 8.2 6.9 - 40.7 6.2 11.2 9.8 8.3 6.9 -
62 39.3 5.6 33.7 32.4 31.0 29.7 28.4 37.3 5.9 33.9 32.5 31.0 29.6 28.2
57 38.3 5.6 38.3 38.3 37.0 35.6 34.3 36.9 5.9 36.9 36.9 35.5 34.1 32.6
3375
72 43.6 6.2 ----- 42.5 6.5 -----
67 42.5 5.9 13.5 11.9 10.3 8.7 - 41.2 6.2 14.0 12.3 10.6 8.9 -
62 39.7 5.6 37.0 36.3 34.7 33.1 31.5 37.9 5.9 36.1 35.4 33.7 32.0 30.3
57 38.8 5.6 38.8 38.8 37.2 35.6 34.0 37.4 5.9 37.4 37.4 35.7 34.0 32.3
3750
72 44.1 6.1 ----- 43.1 6.5 -----
67 43.0 5.8 16.1 14.3 12.4 10.6 - 41.8 6.2 16.8 14.8 12.8 10.8 -
62 40.2 5.6 40.2 40.2 38.4 36.5 34.7 38.4 5.9 38.4 38.4 36.4 34.4 32.4
57 39.2 5.6 39.2 39.2 37.4 35.5 33.7 37.9 5.9 37.9 37.9 36.0 34.0 32.0
1. These capacities are gross ratings. For net capacity, deduct air blower motor, MBh = 3.415 x kW. Refer to the appropriate Blower
Performance Table for the kW of the supply air blower motor.
2. These ratings include the condenser fan motors (total 1 kW) and the compressor motors but not the supply air blower motor.
ZR090 (7.5 Ton) Reheat (Continued)
Air on
Evaporator Coil
Temperature of Air on Condenser Coil
Total
Capacity1
(MBh)
Total
Input
(kW)2
Sensible Capacity (MBh) Total
Capacity1
(MBh)
Total
Input
(kW)2
Sensible Capacity (MBh)
CFM WB
(°F)
Return Dry Bulb (°F) Return Dry Bulb (°F)
85 80 75 70 65 85 80 75 70 65

528150-YTG-G-1210
84 Johnson Controls Unitary Products
ZR102 (8.5 Ton) Cooling
Air on
Evaporator Coil
Temperature of Air on Condenser Coil
Total
Capacity1
(MBh)
Total
Input
(kW)2
Sensible Capacity (MBh) Total
Capacity1
(MBh)
Total
Input
(kW)2
Sensible Capacity (MBh)
CFM WB
(°F)
Return Dry Bulb (°F) Return Dry Bulb (°F)
90 85 80 75 70 65 90 85 80 75 70 65
75°F 85°F
2125
77 121.9 6.4 54.3 43.2 32.9 - - - 118.7 7.4 52.3 42.1 32.0 - - -
72 118.1 6.4 71.1 60.8 50.5 40.2 - - 112.8 7.3 69.0 58.8 48.6 38.5 - -
67 114.3 6.3 87.8 78.4 68.1 57.8 47.5 - 106.9 7.2 85.6 75.4 65.3 55.1 45.0 -
62 105.8 6.2 105.8 98.7 83.7 73.4 63.1 52.8 98.9 7.0 98.9 95.3 80.2 70.1 59.9 49.8
2550
77 126.3 6.5 59.7 47.9 36.1 - - - 122.9 7.4 58.7 46.9 35.2 - - -
72 122.4 6.4 79.1 67.3 55.5 43.7 - - 116.8 7.3 77.0 65.3 53.5 41.8 - -
67 118.4 6.4 98.4 86.6 74.8 63.0 51.2 - 110.7 7.2 95.3 83.6 71.9 60.1 48.4 -
62 109.7 6.2 109.7 104.9 92.0 80.2 68.4 56.6 102.4 7.1 102.4 100.1 88.3 76.6 64.9 53.1
57 107.0 6.3 107.0 107.0 97.1 85.3 73.5 61.7 99.6 7.1 99.6 99.6 90.0 78.3 66.5 54.8
2975
77 130.7 6.5 65.1 52.7 39.4 - - - 127.2 7.4 65.0 51.7 38.4 - - -
72 126.6 6.4 87.0 73.7 60.5 47.2 - - 120.9 7.3 85.0 71.7 58.4 45.1 - -
67 122.6 6.4 108.9 94.8 81.5 68.2 54.9 - 114.6 7.2 105.1 91.7 78.4 65.1 51.8 -
62 113.5 6.3 113.5 111.1 100.2 86.9 73.6 60.3 106.0 7.1 106.0 104.8 96.4 83.1 69.8 56.5
57 110.8 6.3 110.8 110.8 105.8 92.5 79.2 65.9 103.0 7.2 103.0 103.0 98.2 84.9 71.6 58.3
3400
77 135.1 6.5 70.6 57.4 42.6 - - - 131.4 7.4 71.4 56.5 41.7 - - -
72 130.9 6.5 95.0 80.2 65.4 50.6 - - 124.9 7.3 93.1 78.2 63.3 48.4 - -
67 126.7 6.4 119.5 103.0 88.2 73.4 58.6 - 118.4 7.2 114.8 99.9 85.0 70.1 55.2 -
62 117.3 6.3 117.3 117.3 108.5 93.7 78.9 64.1 109.5 7.1 109.5 109.5 104.5 89.6 74.7 59.8
57 114.5 6.4 114.5 114.5 114.5 99.7 84.9 70.1 106.5 7.2 106.5 106.5 106.5 91.6 76.7 61.8
3825
72 130.9 6.5 99.4 84.1 68.8 53.5 - - 125.4 7.4 98.3 82.6 66.9 51.2 - -
67 126.8 6.4 123.1 108.1 92.8 77.5 62.2 - 118.8 7.3 117.0 105.4 89.7 74.0 58.4 -
62 117.4 6.3 117.4 117.4 112.9 97.6 82.3 67.0 109.9 7.1 109.9 109.9 107.4 91.7 76.0 60.3
57 114.5 6.4 114.5 114.5 114.5 99.2 83.9 68.6 106.9 7.2 106.9 106.9 106.9 91.2 75.5 59.8
4250
72 131.0 6.5 103.7 87.9 72.1 56.3 - - 125.9 7.4 103.4 86.9 70.4 53.9 - -
67 126.8 6.5 126.8 113.1 97.3 81.5 65.7 - 119.3 7.3 119.3 111.0 94.5 78.0 61.5 -
62 117.4 6.3 117.4 117.4 117.4 101.6 85.8 70.0 110.4 7.2 110.4 110.4 110.4 93.8 77.3 60.8
57 114.6 6.4 114.6 114.6 114.6 98.8 83.0 67.2 107.3 7.2 107.3 107.3 107.3 90.7 74.2 57.7
95°F 105°F
2125
77 115.5 8.3 50.3 41.1 31.1 - - - 108.8 9.3 44.7 38.2 28.2 - - -
72 107.5 8.1 66.9 56.8 46.8 36.8 - - 100.5 9.1 63.5 53.6 43.7 33.8 - -
67 99.5 8.0 83.4 72.5 62.5 52.5 42.4 - 92.1 9.0 82.4 69.0 59.1 49.2 39.3 -
62 91.9 7.9 91.9 91.9 76.8 66.8 56.7 46.7 85.2 8.9 85.2 85.2 70.3 60.4 50.5 40.6
2550
77 119.5 8.3 57.6 46.0 34.3 - - - 112.4 9.3 54.4 42.9 31.3 - - -
72 111.3 8.2 75.0 63.3 51.6 39.9 - - 103.8 9.2 71.5 60.0 48.4 36.8 - -
67 103.0 8.0 92.3 80.6 68.9 57.2 45.6 - 95.1 9.0 88.6 77.1 65.5 53.9 42.3 -
62 95.2 7.9 95.2 95.2 84.7 73.0 61.3 49.7 88.0 8.9 88.0 88.0 77.9 66.3 54.7 43.1
57 92.1 7.9 92.1 92.1 82.9 71.2 59.6 47.9 85.8 9.0 85.8 85.8 76.4 64.9 53.3 41.7
2975
77 123.6 8.3 64.9 50.8 37.5 - - - 115.9 9.4 64.2 47.5 34.3 - - -
72 115.1 8.2 83.1 69.7 56.4 43.1 - - 107.0 9.2 79.5 66.3 53.1 39.8 - -
67 106.5 8.0 101.2 88.7 75.3 62.0 48.7 - 98.1 9.0 94.9 85.1 71.8 58.6 45.4 -
62 98.5 7.9 98.5 98.5 92.6 79.3 65.9 52.6 90.8 8.9 90.8 90.8 85.4 72.2 58.9 45.7
57 95.2 8.0 95.2 95.2 90.7 77.3 64.0 50.7 88.5 9.0 88.5 88.5 83.8 70.6 57.4 44.1
3400
77 127.7 8.4 72.3 55.6 40.7 - - - 119.5 9.4 74.0 52.2 37.3 - - -
72 118.9 8.2 91.2 76.2 61.2 46.3 - - 110.3 9.2 87.6 72.7 57.8 42.9 - -
67 110.1 8.1 110.1 96.7 81.8 66.8 51.8 - 101.2 9.1 101.2 93.1 78.2 63.3 48.4 -
62 101.7 8.0 101.7 101.7 100.5 85.5 70.6 55.6 93.6 8.9 93.6 93.6 93.0 78.1 63.2 48.3
57 98.4 8.0 98.4 98.4 98.4 83.4 68.5 53.5 91.2 9.0 91.2 91.2 91.2 76.4 61.5 46.6
3825
72 119.8 8.3 97.1 81.0 64.9 48.8 - - 111.2 9.3 93.4 77.4 61.3 45.3 - -
67 110.9 8.1 110.9 102.8 86.7 70.6 54.5 - 102.0 9.1 102.0 97.2 83.0 67.0 51.0 -
62 102.5 8.0 102.5 102.5 101.9 85.8 69.7 53.6 94.3 9.0 94.3 94.3 94.0 78.0 61.9 45.9
57 99.2 8.0 99.2 99.2 99.2 83.1 67.0 50.9 92.0 9.1 92.0 92.0 92.0 75.9 59.9 43.9
4250
72 120.8 8.3 103.1 85.9 68.6 51.4 - - 112.1 9.3 99.2 82.1 64.9 47.7 - -
67 111.8 8.1 111.8 108.9 91.7 74.4 57.2 - 102.8 9.1 102.8 101.3 87.8 70.7 53.5 -
62 103.3 8.0 103.3 103.3 103.3 86.1 68.9 51.6 95.1 9.0 95.1 95.1 95.1 77.9 60.7 43.5
57 99.9 8.1 99.9 99.9 99.9 82.7 65.5 48.3 92.7 9.1 92.7 92.7 92.7 75.5 58.4 41.2

528150-YTG-G-1210
Johnson Controls Unitary Products 85
115°F 125°F
2125
77 102.2 10.3 39.0 35.2 25.4 - - - 95.6 11.4 36.2 31.0 22.6 - - -
72 93.5 10.1 60.2 50.4 40.6 30.8 - - 86.5 11.1 56.8 47.1 37.5 27.8 - -
67 84.8 10.0 81.3 65.5 55.8 46.0 36.2 - 77.4 10.9 77.4 62.1 52.4 42.7 33.1 -
62 78.5 9.9 78.5 78.5 63.8 54.0 44.2 34.4 71.8 10.8 71.8 71.8 57.3 47.7 38.0 28.3
2550
77 105.2 10.4 51.2 39.7 28.3 - - - 98.0 11.4 49.9 36.6 25.3 - - -
72 96.2 10.2 68.1 56.6 45.2 33.7 - - 88.7 11.2 64.7 53.3 41.9 30.6 - -
67 87.3 10.0 85.0 73.5 62.0 50.6 39.1 - 79.4 11.0 79.4 70.0 58.6 47.3 35.9 -
62 80.8 9.9 80.8 80.8 71.0 59.6 48.1 36.6 73.6 10.9 73.6 73.6 64.2 52.8 41.5 30.1
57 79.6 10.0 79.6 79.6 69.9 58.5 47.0 35.5 73.3 11.0 73.3 73.3 63.4 52.1 40.7 29.3
2975
77 108.2 10.4 63.4 44.3 31.1 - - - 100.5 11.4 63.7 42.3 28.0 - - -
72 99.0 10.2 76.0 62.9 49.7 36.6 - - 90.9 11.2 72.5 59.5 46.4 33.4 - -
67 89.8 10.0 88.6 81.5 68.3 55.2 42.1 - 81.4 11.0 81.4 77.9 64.8 51.8 38.7 -
62 83.1 9.9 83.1 83.1 78.2 65.1 51.9 38.8 75.4 10.9 75.4 75.4 71.0 58.0 44.9 31.9
57 81.8 10.0 81.8 81.8 77.0 63.9 50.7 37.6 75.1 11.0 75.1 75.1 70.2 57.1 44.1 31.0
3400
77 111.2 10.4 75.7 48.8 34.0 - - - 102.9 11.4 77.4 47.9 30.7 - - -
72 101.7 10.2 84.0 69.1 54.3 39.5 - - 93.1 11.2 80.4 65.6 50.9 36.1 - -
67 92.3 10.0 92.3 89.5 74.6 59.8 45.0 - 83.3 11.0 83.3 83.3 71.1 56.3 41.6 -
62 85.4 9.9 85.4 85.4 85.4 70.6 55.8 41.0 77.3 10.9 77.3 77.3 77.3 63.1 48.4 33.6
57 84.1 10.0 84.1 84.1 84.1 69.3 54.5 39.6 77.0 11.0 77.0 77.0 77.0 62.2 47.5 32.7
3825
72 102.6 10.3 89.7 73.7 57.7 41.8 - - 93.9 11.3 86.0 70.1 54.1 38.2 - -
67 93.0 10.1 93.0 91.6 79.3 63.3 47.4 - 84.0 11.1 84.0 84.0 75.6 59.7 43.8 -
62 86.1 10.0 86.1 86.1 86.1 70.1 54.2 38.2 77.9 11.0 77.9 77.9 77.9 62.3 46.4 30.5
57 84.8 10.1 84.8 84.8 84.8 68.8 52.8 36.9 77.6 11.1 77.6 77.6 77.6 61.7 45.8 29.8
4250
72 103.4 10.3 95.4 78.3 61.1 44.0 - - 94.7 11.4 91.6 74.5 57.4 40.3 - -
67 93.8 10.1 93.8 93.8 84.0 66.9 49.7 - 84.7 11.1 84.7 84.7 80.2 63.1 46.0 -
62 86.8 10.0 86.8 86.8 86.8 69.7 52.6 35.4 78.6 11.1 78.6 78.6 78.6 61.5 44.4 27.3
57 85.5 10.1 85.5 85.5 85.5 68.3 51.2 34.1 78.2 11.2 78.2 78.2 78.2 61.2 44.1 27.0
1. These capacities are gross ratings. For net capacity, deduct air blower motor, MBh = 3.415 x kW. Refer to the appropriate Blower
Performance Table for the kW of the supply air blower motor.
2. These ratings include the condenser fan motors (total 1 kW) and the compressor motors but not the supply air blower motor.
ZR102 (8.5 Ton) Cooling (Continued)
Air on
Evaporator Coil
Temperature of Air on Condenser Coil
Total
Capacity1
(MBh)
Total
Input
(kW)2
Sensible Capacity (MBh) Total
Capacity1
(MBh)
Total
Input
(kW)2
Sensible Capacity (MBh)
CFM WB
(°F)
Return Dry Bulb (°F) Return Dry Bulb (°F)
90 85 80 75 70 65 90 85 80 75 70 65

528150-YTG-G-1210
86 Johnson Controls Unitary Products
ZR102 (8.5 Ton) Reheat
Air on
Evaporator Coil
Temperature of Air on Condenser Coil
Total
Capacity1
(MBh)
Total
Input
(kW)2
Sensible Capacity (MBh) Total
Capacity1
(MBh)
Total
Input
(kW)2
Sensible Capacity (MBh)
CFM WB
(°F)
Return Dry Bulb (°F) Return Dry Bulb (°F)
85 80 75 70 65 85 80 75 70 65
35°F 45°F
2125
72 72.0 5.0 8.5 7.1 5.7 - - 62.7 5.5 3.5 2.4 1.3 - -
67 74.0 4.9 11.6 10.2 8.8 7.3 - 61.5 5.3 9.5 8.4 7.2 6.1 -
62 61.6 5.1 21.8 20.4 18.9 17.5 16.1 53.9 5.3 18.2 17.1 16.0 14.9 13.8
2550
72 73.3 4.9 13.4 11.3 9.2 - - 64.8 5.5 5.6 3.8 2.1 - -
67 75.3 4.8 17.9 15.8 13.7 11.6 - 63.6 5.3 14.9 13.2 11.4 9.7 -
62 62.6 5.0 33.6 31.5 29.4 27.3 25.2 55.8 5.2 28.7 26.9 25.2 23.4 21.7
57 58.2 4.7 37.4 35.3 33.2 31.2 29.1 50.7 5.0 33.0 31.2 29.5 27.7 26.0
2975
72 74.5 4.8 18.2 15.5 12.7 - - 66.9 5.4 7.6 5.2 2.8 - -
67 76.7 4.7 24.1 21.4 18.7 15.9 - 65.7 5.2 20.4 18.0 15.6 13.2 -
62 63.6 5.0 45.3 42.6 39.9 37.1 34.4 57.6 5.2 39.2 36.8 34.4 32.0 29.6
57 59.2 4.7 48.8 47.8 45.0 42.3 39.6 52.4 5.0 43.5 42.6 40.2 37.8 35.4
3400
72 75.7 4.7 23.0 19.6 16.2 - - 69.1 5.3 9.7 6.6 3.6 - -
67 78.1 4.6 30.4 27.0 23.6 20.2 - 67.8 5.1 25.8 22.8 19.7 16.7 -
62 64.7 4.9 57.1 53.7 50.4 47.0 43.6 59.5 5.1 49.7 46.6 43.6 40.5 37.5
57 60.2 4.6 60.2 60.2 56.8 53.5 50.1 54.0 4.9 54.0 54.0 51.0 47.9 44.9
3825
72 73.9 4.7 25.8 22.4 18.9 - - 70.1 5.3 10.9 7.5 4.2 - -
67 76.5 4.6 33.7 30.2 26.8 23.3 - 68.7 5.1 29.2 25.8 22.5 19.1 -
62 63.0 4.9 62.0 60.1 56.7 53.2 49.8 60.3 5.1 55.4 52.9 49.5 46.1 42.8
57 58.8 4.6 58.8 58.8 55.4 51.9 48.4 54.8 4.9 54.8 54.8 51.4 48.1 44.7
4250
72 72.0 4.7 28.7 25.1 21.6 - - 71.0 5.3 12.1 8.4 4.7 - -
67 75.0 4.6 37.0 33.5 29.9 26.4 - 69.7 5.1 32.5 28.9 25.2 21.5 -
62 61.4 4.9 61.4 61.4 61.4 59.5 55.9 61.2 5.1 61.2 59.1 55.4 51.7 48.0
57 57.4 4.6 57.4 57.4 53.9 50.4 46.8 55.6 4.9 55.6 55.6 51.9 48.2 44.5
55°F 65°F
2125
72 53.3 6.1 ----- 48.0 6.2 -----
67 49.0 5.8 7.3 6.5 5.7 4.9 - 42.2 6.1 4.4 4.0 3.5 3.1 -
62 46.3 5.4 14.6 13.9 13.1 12.3 11.5 39.1 5.8 9.5 9.1 8.6 8.2 7.7
2550
72 56.3 6.0 ----- 53.6 6.1 -----
67 51.8 5.7 11.9 10.5 9.1 7.7 - 47.0 6.1 9.1 8.0 6.9 5.8 -
62 49.0 5.4 23.8 22.4 21.0 19.6 18.1 43.5 5.7 20.2 19.1 18.0 16.9 15.8
57 43.2 5.3 28.6 27.1 25.7 24.3 22.9 36.3 5.7 22.6 21.5 20.4 19.3 18.2
2975
72 59.4 6.0 ----- 59.2 6.1 -----
67 54.6 5.7 16.6 14.5 12.5 10.4 - 51.7 6.0 13.7 12.0 10.2 8.5 -
62 51.6 5.4 33.0 31.0 28.9 26.8 24.8 47.8 5.7 30.9 29.1 27.4 25.7 23.9
57 45.5 5.3 38.2 37.5 35.4 33.4 31.3 39.8 5.6 33.0 32.4 30.7 28.9 27.2
3400
72 62.4 6.0 ----- 64.8 6.1 -----
67 57.4 5.7 21.3 18.5 15.8 13.1 - 56.5 6.0 18.3 15.9 13.6 11.2 -
62 54.3 5.3 42.2 39.5 36.8 34.1 31.4 52.2 5.7 41.6 39.2 36.8 34.4 32.0
57 47.9 5.2 47.9 47.9 45.2 42.4 39.7 43.3 5.6 43.3 43.3 41.0 38.6 36.2
3825
72 66.2 5.9 ----- 67.4 6.0 -----
67 60.9 5.6 24.7 21.4 18.1 14.9 - 58.8 6.0 22.2 19.2 16.3 13.3 -
62 57.6 5.3 48.8 45.6 42.3 39.0 35.8 54.4 5.6 47.7 45.5 42.6 39.6 36.6
57 50.8 5.2 50.8 50.8 47.5 44.3 41.0 45.2 5.6 45.2 45.2 42.2 39.3 36.3
4250
72 70.1 5.9 ----- 70.0 6.0 -----
67 64.5 5.6 28.1 24.2 20.4 16.6 - 61.1 5.9 26.0 22.5 19.0 15.4 -
62 60.9 5.3 55.5 51.6 47.8 44.0 40.2 56.5 5.6 53.8 51.9 48.3 44.8 41.2
57 53.7 5.2 53.7 53.7 49.9 46.1 42.3 47.1 5.5 47.1 47.1 43.5 40.0 36.4

528150-YTG-G-1210
Johnson Controls Unitary Products 87
75°F 85°F
2125
72 42.8 6.3 ----- 37.6 6.4 -----
67 35.4 6.51.61.51.41.2- 28.6 6.8 -----
62 31.9 6.24.44.34.24.14.024.7 6.5 -----
2550
72 50.9 6.2 ----- 48.3 6.4 -----
67 42.1 6.4 6.2 5.4 4.7 3.9 - 37.3 6.8 3.3 2.9 2.5 2.0 -
62 38.0 6.1 16.6 15.8 15.0 14.3 13.5 32.5 6.5 13.0 12.5 12.1 11.6 11.2
57 29.4 6.1 16.6 15.8 15.0 14.3 13.5 22.5 6.4 10.6 10.1 9.7 9.3 8.8
2975
72 59.1 6.2 ----- 58.9 6.3 -----
67 48.9 6.4 10.8 9.4 8.0 6.6 - 46.0 6.7 7.9 6.8 5.7 4.6 -
62 44.0 6.1 28.7 27.3 25.9 24.5 23.1 40.2 6.4 26.6 25.5 24.4 23.3 22.2
57 34.1 6.0 27.7 27.3 25.9 24.5 23.1 28.4 6.4 22.4 22.2 21.1 20.0 19.0
3400
72 67.2 6.2 ----- 69.6 6.3 -----
67 55.6 6.3 15.4 13.3 11.3 9.2 - 54.7 6.7 12.5 10.7 9.0 7.3 -
62 50.1 6.0 40.9 38.8 36.8 34.7 32.6 48.0 6.4 40.2 38.5 36.7 35.0 33.3
57 38.8 6.0 38.8 38.8 36.8 34.7 32.6 34.3 6.3 34.3 34.3 32.6 30.8 29.1
3825
72 68.6 6.1 ----- 69.7 6.2 -----
67 56.7 6.3 19.7 17.0 14.4 11.7 - 54.6 6.6 17.2 14.9 12.5 10.2 -
62 51.1 6.0 46.5 45.5 42.8 40.1 37.5 47.9 6.3 45.3 45.4 43.1 40.7 38.3
57 39.6 5.9 39.6 39.6 36.9 34.3 31.6 34.0 6.3 34.0 34.0 31.6 29.3 26.9
4250
72 69.9 6.1 ----- 69.8 6.2 -----
67 57.8 6.3 24.0 20.8 17.5 14.2 - 54.5 6.6 22.0 19.0 16.0 13.1 -
62 52.1 5.9 52.1 52.1 48.8 45.6 42.3 47.7 6.3 47.7 47.7 47.7 46.4 43.4
57 40.4 5.9 40.4 40.4 37.1 33.9 30.6 33.7 6.2 33.7 33.7 30.7 27.8 24.8
1. These capacities are gross ratings. For net capacity, deduct air blower motor, MBh = 3.415 x kW. Refer to the appropriate Blower
Performance Table for the kW of the supply air blower motor.
2. These ratings include the condenser fan motors (total 1 kW) and the compressor motors but not the supply air blower motor.
ZR102 (8.5 Ton) Reheat (Continued)
Air on
Evaporator Coil
Temperature of Air on Condenser Coil
Total
Capacity1
(MBh)
Total
Input
(kW)2
Sensible Capacity (MBh) Total
Capacity1
(MBh)
Total
Input
(kW)2
Sensible Capacity (MBh)
CFM WB
(°F)
Return Dry Bulb (°F) Return Dry Bulb (°F)
85 80 75 70 65 85 80 75 70 65

528150-YTG-G-1210
88 Johnson Controls Unitary Products
ZR120 (10 Ton) Cooling
Air on
Evaporator Coil
Temperature of Air on Condenser Coil
Total
Capacity1
(MBh)
Total
Input
(kW)2
Sensible Capacity (MBh) Total
Capacity1
(MBh)
Total
Input
(kW)2
Sensible Capacity (MBh)
CFM WB
(°F)
Return Dry Bulb (°F) Return Dry Bulb (°F)
90 85 80 75 70 65 90 85 80 75 70 65
75°F 85°F
2500
77 145.9 7.7 59.8 48.6 37.5 - - - 140.4 8.5 59.0 47.8 36.6 - - -
72 139.2 7.5 79.5 68.3 57.1 46.0 - - 131.7 8.3 77.8 66.6 55.4 44.2 - -
67 132.5 7.3 99.2 88.0 76.8 65.6 54.5 - 122.9 8.2 96.7 85.5 74.3 63.1 51.9 -
62 114.8 7.2 114.8 114.7 92.8 81.6 70.4 59.2 108.0 8.1 108.0 108.0 89.9 78.7 67.5 56.3
3000
77 152.7 7.7 68.3 55.1 41.9 - - - 146.7 8.5 66.8 53.7 40.5 - - -
72 145.7 7.5 90.3 77.1 63.9 50.7 - - 137.5 8.4 87.8 74.6 61.5 48.3 - -
67 138.6 7.3 112.4 99.1 85.9 72.7 59.5 - 128.4 8.2 108.7 95.5 82.4 69.3 56.1 -
62 120.2 7.2 120.2 120.1 103.8 90.6 77.4 64.2 112.9 8.1 112.9 112.8 99.7 86.5 73.4 60.3
57 121.9 7.2 121.9 121.9 107.9 94.6 81.4 68.2 113.8 8.1 113.8 113.8 102.4 89.2 76.1 63.0
3500
77 159.5 7.7 76.8 61.6 46.3 - - - 152.9 8.6 74.7 59.6 44.5 - - -
72 152.1 7.5 101.2 85.9 70.7 55.5 - - 143.4 8.4 97.7 82.6 67.5 52.4 - -
67 144.8 7.3 125.5 110.3 95.1 79.8 64.6 - 133.8 8.3 120.7 105.6 90.5 75.4 60.4 -
62 125.5 7.2 125.5 125.4 114.8 99.6 84.3 69.1 117.7 8.2 117.7 117.6 109.5 94.4 79.3 64.2
57 127.3 7.2 127.3 127.3 119.3 104.0 88.8 73.6 118.7 8.1 118.7 118.7 112.4 97.4 82.3 67.2
4000
77 166.2 7.7 85.3 68.0 50.8 - - - 159.2 8.6 82.6 65.6 48.5 - - -
72 158.6 7.5 112.0 94.7 77.5 60.2 - - 149.2 8.4 107.6 90.6 73.6 56.6 - -
67 150.9 7.3 138.7 121.4 104.2 86.9 69.7 - 139.3 8.3 132.7 115.7 98.6 81.6 64.6 -
62 130.8 7.2 130.8 130.8 125.8 108.5 91.3 74.0 122.5 8.2 122.5 122.5 119.3 102.3 85.2 68.2
57 132.7 7.2 132.7 132.7 130.7 113.4 96.2 78.9 123.5 8.2 123.5 123.5 122.5 105.5 88.5 71.5
4500
72 159.9 7.5 118.5 100.0 81.5 62.9 - - 150.4 8.5 114.3 96.0 77.7 59.4 - -
67 152.2 7.3 146.0 128.1 109.5 91.0 72.5 - 140.3 8.3 137.0 122.4 104.2 85.9 67.6 -
62 131.9 7.3 131.9 131.9 129.4 110.8 92.3 73.8 123.4 8.2 123.4 123.4 121.8 103.5 85.2 66.9
57 133.8 7.3 133.8 133.8 132.8 114.2 95.7 77.2 124.4 8.2 124.4 124.4 123.9 105.6 87.4 69.1
5000
72 161.2 7.6 125.1 105.3 85.5 65.6 - - 151.5 8.5 120.9 101.4 81.8 62.3 - -
67 153.4 7.4 153.4 134.7 114.9 95.1 75.3 - 141.4 8.4 141.4 129.2 109.7 90.2 70.6 -
62 133.0 7.4 133.0 133.0 133.0 113.1 93.3 73.5 124.3 8.3 124.3 124.3 124.3 104.7 85.2 65.7
57 134.9 7.3 134.9 134.9 134.9 115.0 95.2 75.4 125.3 8.2 125.3 125.3 125.3 105.8 86.3 66.7
95°F 105°F
2500
77 134.9 9.3 58.1 46.9 35.7 - - - 124.8 10.5 50.8 42.5 31.6 - - -
72 124.1 9.2 76.1 64.9 53.7 42.5 - - 114.8 10.4 71.4 60.4 49.5 38.6 - -
67 113.3 9.1 94.2 83.0 71.8 60.6 49.3 - 104.7 10.3 91.9 78.4 67.4 56.5 45.6 -
62 101.3 9.0 101.3 101.3 86.9 75.7 64.5 53.3 94.7 10.1 94.7 94.7 80.1 69.1 58.2 47.3
3000
77 140.7 9.4 65.3 52.3 39.2 - - - 129.8 10.5 60.5 47.7 34.9 - - -
72 129.4 9.3 85.2 72.1 59.0 46.0 - - 119.3 10.4 80.3 67.5 54.7 41.9 - -
67 118.1 9.2 105.0 91.9 78.9 65.8 52.7 - 108.9 10.3 100.1 87.3 74.5 61.7 48.9 -
62 105.6 9.1 105.6 105.6 95.6 82.5 69.4 56.3 98.4 10.1 98.4 98.4 88.5 75.7 62.8 50.0
57 105.7 9.0 105.7 105.7 96.9 83.8 70.7 57.7 96.9 10.3 96.9 96.9 87.7 74.8 62.0 49.2
3500
77 146.4 9.4 72.6 57.7 42.7 - - - 134.8 10.6 70.2 52.9 38.2 - - -
72 134.6 9.3 94.2 79.3 64.4 49.4 - - 123.9 10.5 89.3 74.6 59.9 45.2 - -
67 122.9 9.3 115.9 100.9 86.0 71.1 56.1 - 113.0 10.4 108.4 96.3 81.6 66.9 52.2 -
62 109.9 9.1 109.9 109.9 104.2 89.2 74.3 59.4 102.2 10.2 102.2 102.2 96.9 82.2 67.5 52.8
57 110.1 9.1 110.1 110.1 105.6 90.7 75.8 60.8 100.6 10.3 100.6 100.6 96.0 81.3 66.6 51.9
4000
77 152.1 9.5 79.8 63.1 46.3 - - - 139.7 10.7 79.9 58.1 41.5 - - -
72 139.9 9.4 103.3 86.5 69.7 52.9 - - 128.5 10.5 98.3 81.7 65.1 48.5 - -
67 127.7 9.3 126.7 109.9 93.1 76.3 59.5 - 117.2 10.4 116.7 105.3 88.7 72.1 55.5 -
62 114.2 9.2 114.2 114.2 112.8 96.0 79.2 62.4 106.0 10.3 106.0 106.0 105.3 88.7 72.1 55.5
57 114.4 9.1 114.4 114.4 114.4 97.6 80.8 64.0 104.3 10.4 104.3 104.3 104.3 87.7 71.1 54.5
4500
72 140.8 9.4 110.0 92.0 73.9 55.9 - - 128.8 10.5 104.6 86.8 69.1 51.3 - -
67 128.5 9.3 128.0 116.8 98.8 80.8 62.7 - 117.5 10.4 117.2 110.1 94.1 76.4 58.6 -
62 114.9 9.2 114.9 114.9 114.2 96.2 78.1 60.1 106.2 10.3 106.2 106.2 105.9 88.1 70.4 52.6
57 115.1 9.1 115.1 115.1 115.1 97.1 79.0 61.0 104.6 10.4 104.6 104.6 104.6 86.8 69.0 51.3
5000
72 141.7 9.4 116.7 97.5 78.2 58.9 - - 129.1 10.6 110.9 92.0 73.1 54.1 - -
67 129.3 9.3 129.3 123.8 104.5 85.2 66.0 - 117.8 10.4 117.8 115.0 99.6 80.6 61.7 -
62 115.6 9.2 115.6 115.6 115.6 96.3 77.1 57.8 106.5 10.3 106.5 106.5 106.5 87.6 68.6 49.7
57 115.8 9.1 115.8 115.8 115.8 96.5 77.3 58.0 104.8 10.4 104.8 104.8 104.8 85.9 67.0 48.0

528150-YTG-G-1210
Johnson Controls Unitary Products 89
115°F 125°F
2500
77 114.7 11.7 43.6 38.1 27.5 - - - 104.7 12.9 36.1 33.8 23.4 - - -
72 105.4 11.5 66.6 55.9 45.3 34.6 - - 96.1 12.7 61.8 51.4 41.1 30.7 - -
67 96.1 11.4 89.6 73.7 63.1 52.4 41.8 - 87.5 12.5 87.5 69.1 58.7 48.4 38.0 -
62 88.1 11.2 88.1 88.1 73.2 62.5 51.9 41.2 81.5 12.3 81.5 81.5 66.3 55.9 45.6 35.2
3000
77 118.9 11.7 55.7 43.1 30.6 - - - 108.1 12.9 50.9 38.6 26.2 - - -
72 109.3 11.6 75.5 62.9 50.3 37.8 - - 99.2 12.7 70.6 58.3 46.0 33.7 - -
67 99.6 11.4 95.3 82.7 70.1 57.6 45.0 - 90.4 12.6 90.4 78.1 65.8 53.4 41.1 -
62 91.3 11.2 91.3 91.3 81.4 68.8 56.3 43.7 84.2 12.3 84.2 84.2 74.3 62.0 49.7 37.3
57 88.0 11.5 88.0 88.0 78.4 65.9 53.3 40.7 79.2 12.8 79.2 79.2 69.2 56.9 44.6 32.2
3500
77 123.1 11.8 67.8 48.1 33.6 - - - 111.5 13.0 65.7 43.4 29.1 - - -
72 113.1 11.6 84.4 69.9 55.4 40.9 - - 102.4 12.8 79.5 65.2 50.9 36.7 - -
67 103.1 11.5 101.0 91.7 77.2 62.7 48.2 - 93.3 12.6 93.3 87.1 72.8 58.5 44.3 -
62 94.6 11.3 94.6 94.6 89.6 75.1 60.6 46.1 86.9 12.4 86.9 86.9 82.3 68.0 53.8 39.5
57 91.1 11.6 91.1 91.1 86.3 71.8 57.4 42.9 81.7 12.8 81.7 81.7 76.7 62.4 48.2 33.9
4000
77 127.3 11.8 79.9 53.1 36.7 - - - 114.9 13.0 80.5 48.2 31.9 - - -
72 117.0 11.7 93.3 76.9 60.5 44.1 - - 105.5 12.8 88.3 72.1 55.9 39.7 - -
67 106.7 11.5 106.7 100.7 84.3 67.9 51.5 - 96.1 12.6 96.1 96.0 79.8 63.6 47.4 -
62 97.8 11.3 97.8 97.8 97.8 81.4 65.0 48.6 89.6 12.4 89.6 89.6 89.6 74.1 57.9 41.6
57 94.2 11.6 94.2 94.2 94.2 77.8 61.4 45.0 84.2 12.9 84.2 84.2 84.2 68.0 51.7 35.5
4500
72 116.8 11.7 99.2 81.7 64.2 46.7 - - 104.7 12.8 93.8 76.6 59.4 42.1 - -
67 106.4 11.5 106.4 103.4 89.5 72.0 54.5 - 95.4 12.7 95.4 95.4 84.8 67.5 50.3 -
62 97.6 11.3 97.6 97.6 97.6 80.1 62.6 45.1 88.9 12.4 88.9 88.9 88.9 72.0 54.8 37.6
57 94.0 11.6 94.0 94.0 94.0 76.5 59.0 41.5 83.5 12.9 83.5 83.5 83.5 66.3 49.0 31.8
5000
72 116.5 11.7 105.2 86.6 68.0 49.4 - - 104.0 12.8 99.4 81.1 62.8 44.6 - -
67 106.2 11.5 106.2 106.2 94.7 76.1 57.5 - 94.7 12.7 94.7 94.7 89.7 71.5 53.2 -
62 97.4 11.3 97.4 97.4 97.4 78.8 60.2 41.6 88.3 12.4 88.3 88.3 88.3 70.0 51.7 33.5
57 93.9 11.6 93.9 93.9 93.9 75.3 56.7 38.1 82.9 12.9 82.9 82.9 82.9 64.6 46.3 28.1
1. These capacities are gross ratings. For net capacity, deduct air blower motor, MBh = 3.415 x kW. Refer to the appropriate Blower
Performance Table for the kW of the supply air blower motor.
2. These ratings include the condenser fan motors (total 1 kW) and the compressor motors but not the supply air blower motor.
ZR120 (10 Ton) Cooling (Continued)
Air on
Evaporator Coil
Temperature of Air on Condenser Coil
Total
Capacity1
(MBh)
Total
Input
(kW)2
Sensible Capacity (MBh) Total
Capacity1
(MBh)
Total
Input
(kW)2
Sensible Capacity (MBh)
CFM WB
(°F)
Return Dry Bulb (°F) Return Dry Bulb (°F)
90 85 80 75 70 65 90 85 80 75 70 65

528150-YTG-G-1210
90 Johnson Controls Unitary Products
ZR120 (10 Ton) Reheat
Air on
Evaporator Coil
Temperature of Air on Condenser Coil
Total
Capacity1
(MBh)
Total
Input
(kW)2
Sensible Capacity (MBh) Total
Capacity1
(MBh)
Total
Input
(kW)2
Sensible Capacity (MBh)
CFM WB
(°F)
Return Dry Bulb (°F) Return Dry Bulb (°F)
85 80 75 70 65 85 80 75 70 65
35°F 45°F
2500
72 68.3 5.0 7.6 5.1 2.5 - - 69.9 6.2 1.6 - - - -
67 71.7 4.7 21.5 19.0 16.5 14.0 - 67.4 5.9 15.4 13.6 11.8 10.1 -
62 62.7 5.1 25.5 23.0 20.5 17.9 15.4 62.2 5.9 28.1 26.3 24.6 22.8 21.0
3000
72 71.8 5.2 9.4 6.3 3.1 - - 72.9 6.2 2.1 - - - -
67 75.3 4.9 28.0 24.8 21.6 18.5 - 70.2 5.9 19.9 17.6 15.3 13.0 -
62 65.9 5.2 34.1 30.9 27.7 24.6 21.4 64.8 5.9 36.3 34.0 31.7 29.4 27.1
57 65.7 5.0 52.1 48.9 45.7 42.6 39.4 63.6 5.7 49.7 47.4 45.1 42.8 40.5
3500
72 75.3 5.4 11.3 7.5 3.7 - - 75.9 6.1 2.6 - - - -
67 78.9 5.1 34.5 30.7 26.8 23.0 - 73.1 5.9 24.3 21.5 18.7 15.9 -
62 69.1 5.4 42.7 38.9 35.0 31.2 27.4 67.5 5.9 44.4 41.6 38.8 35.9 33.1
57 68.9 5.2 62.1 61.1 57.3 53.5 49.7 66.1 5.7 59.2 58.1 55.3 52.4 49.6
4000
72 78.9 5.6 13.2 8.7 4.3 - - 78.8 6.1 3.1 - - - -
67 82.5 5.3 41.0 36.5 32.0 27.5 - 75.9 5.9 28.8 25.4 22.1 18.8 -
62 72.4 5.6 51.3 46.8 42.3 37.8 33.3 70.1 5.9 52.5 49.2 45.9 42.5 39.2
57 72.1 5.4 72.1 72.1 68.9 64.4 59.9 68.7 5.7 68.7 68.7 65.4 62.0 58.7
4500
72 76.8 5.6 17.2 12.8 8.4 - - 79.6 6.1 3.5 - - - -
67 80.8 5.3 40.7 36.3 31.9 27.5 - 76.7 5.9 32.3 28.5 24.8 21.0 -
62 70.6 5.6 53.9 47.4 43.0 38.6 34.2 70.8 5.9 59.0 55.2 51.4 47.6 43.9
57 70.4 5.4 70.4 70.4 66.6 62.2 57.8 69.4 5.7 69.4 69.4 65.7 61.9 58.1
5000
72 74.7 5.6 21.2 16.9 12.5 - - 80.4 6.1 3.9 - - - -
67 79.0 5.3 40.4 36.0 31.7 27.4 - 77.5 5.9 35.8 31.6 27.4 23.2 -
62 68.8 5.6 56.5 48.1 43.8 39.4 35.1 71.5 5.9 65.4 61.2 57.0 52.7 48.5
57 68.7 5.4 68.7 68.7 64.4 60.1 55.7 70.1 5.7 70.1 70.1 65.9 61.7 57.5
55°F 65°F
2500
72 71.6 7.3 ----- 65.4 7.9 -----
67 63.1 7.2 9.3 8.3 7.2 6.2 - 58.4 7.6 4.2 3.8 3.4 2.9 -
62 61.7 6.8 30.8 29.7 28.7 27.6 26.6 55.4 7.2 14.3 13.9 13.4 13.0 12.5
3000
72 74.0 7.1 ----- 68.3 7.6 -----
67 65.2 6.9 11.7 10.3 8.9 7.5 - 61.0 7.3 8.6 7.5 6.5 5.4 -
62 63.7 6.6 38.4 37.0 35.6 34.2 32.7 57.8 7.0 26.5 25.5 24.4 23.4 22.3
57 61.5 6.4 47.4 46.0 44.5 43.1 41.7 56.2 6.8 32.4 31.4 30.3 29.2 28.2
3500
72 76.4 6.9 ----- 71.2 7.4 -----
67 67.3 6.7 14.1 12.3 10.5 8.7 - 63.7 7.1 13.0 11.3 9.6 7.9 -
62 65.8 6.4 46.1 44.3 42.5 40.7 38.9 60.3 6.8 38.8 37.1 35.5 33.8 32.1
57 63.4 6.2 56.4 55.0 53.2 51.4 49.6 58.5 6.6 46.7 45.5 43.8 42.1 40.4
4000
72 78.7 6.7 ----- 74.1 7.1 -----
67 69.4 6.5 16.6 14.4 12.2 10.0 - 66.3 6.9 17.3 15.0 12.7 10.4 -
62 67.8 6.2 53.8 51.6 49.4 47.2 45.0 62.7 6.5 51.1 48.8 46.5 44.2 41.9
57 65.4 6.0 65.4 64.1 61.9 59.7 57.5 60.9 6.4 60.9 59.6 57.3 55.0 52.7
4500
72 82.5 6.7 ----- 76.5 7.1 -----
67 72.7 6.5 23.9 20.8 17.6 14.5 - 68.5 6.9 22.9 19.9 16.8 13.8 -
62 71.0 6.2 64.0 62.9 59.8 56.6 53.5 64.9 6.5 59.0 57.9 54.8 51.8 48.7
57 68.5 6.0 68.5 67.8 64.7 61.5 58.4 63.0 6.4 63.0 62.3 59.3 56.2 53.2
5000
72 86.2 6.6 ----- 79.0 7.1 -----
67 76.0 6.5 31.3 27.2 23.1 19.0 - 70.7 6.9 28.5 24.7 20.9 17.1 -
62 74.2 6.2 74.2 74.2 70.1 66.0 62.0 67.0 6.5 67.0 67.0 63.2 59.4 55.6
57 71.6 6.0 71.6 71.6 67.5 63.4 59.3 65.0 6.4 65.0 65.0 61.2 57.4 53.6

528150-YTG-G-1210
Johnson Controls Unitary Products 91
75°F 85°F
2500
72 59.1 8.4 0.6 0.7 0.9 - - 52.8 8.9 3.0 3.8 4.5 - -
67 53.8 8.0 ----- 49.1 8.4 -----
62 49.1 7.6 ----- 42.8 8.0 -----
3000
72 62.5 8.1 ----- 56.8 8.6 -----
67 56.9 7.7 5.5 4.8 4.1 3.4 - 52.7 8.1 2.3 2.0 1.7 1.4 -
62 52.0 7.4 14.7 14.0 13.3 12.6 11.9 46.1 7.8 2.8 2.4 2.1 1.8 1.5
57 50.9 7.3 17.4 16.8 16.1 15.4 14.7 45.6 7.7 2.5 2.1 1.8 1.5 1.2
3500
72 65.9 7.9 ----- 60.7 8.4 -----
67 60.0 7.5 11.8 10.2 8.7 7.1 - 56.4 7.9 10.6 9.2 7.8 6.4 -
62 54.8 7.1 31.5 30.0 28.4 26.9 25.3 49.3 7.5 24.2 22.8 21.4 19.9 18.5
57 53.7 7.0 37.0 35.9 34.4 32.8 31.3 48.8 7.5 27.2 26.4 25.0 23.6 22.1
4000
72 69.4 7.6 ----- 64.7 8.1 -----
67 63.1 7.2 18.1 15.7 13.3 10.9 - 60.0 7.6 18.9 16.4 13.9 11.4 -
62 57.7 6.9 48.4 46.0 43.5 41.1 38.7 52.6 7.3 45.6 43.1 40.6 38.1 35.6
57 56.5 6.8 56.5 55.1 52.7 50.3 47.9 52.0 7.2 52.0 50.6 48.1 45.6 43.1
4500
72 70.6 7.6 ----- 64.7 8.1 -----
67 64.3 7.2 21.9 19.0 16.0 13.0 - 60.0 7.6 20.9 18.1 15.2 12.3 -
62 58.7 6.9 54.0 52.8 49.9 46.9 43.9 52.5 7.3 49.1 47.8 44.9 42.1 39.2
57 57.5 6.8 57.5 56.8 53.8 50.9 47.9 52.0 7.2 52.0 51.3 48.4 45.6 42.7
5000
72 71.9 7.6 ----- 64.7 8.1 -----
67 65.4 7.2 25.8 22.2 18.7 15.2 - 60.1 7.6 23.0 19.8 16.5 13.3 -
62 59.7 6.9 59.7 59.7 56.2 52.7 49.2 52.5 7.3 52.5 52.5 49.2 46.0 42.8
57 58.5 6.8 58.5 58.5 55.0 51.5 47.9 52.0 7.2 52.0 52.0 48.7 45.5 42.3
1. These capacities are gross ratings. For net capacity, deduct air blower motor, MBh = 3.415 x kW. Refer to the appropriate Blower
Performance Table for the kW of the supply air blower motor.
2. These ratings include the condenser fan motors (total 1 kW) and the compressor motors but not the supply air blower motor.
ZR120 (10 Ton) Reheat (Continued)
Air on
Evaporator Coil
Temperature of Air on Condenser Coil
Total
Capacity1
(MBh)
Total
Input
(kW)2
Sensible Capacity (MBh) Total
Capacity1
(MBh)
Total
Input
(kW)2
Sensible Capacity (MBh)
CFM WB
(°F)
Return Dry Bulb (°F) Return Dry Bulb (°F)
85 80 75 70 65 85 80 75 70 65

528150-YTG-G-1210
92 Johnson Controls Unitary Products
ZR150 (12.5 Ton) Cooling
Air on
Evaporator Coil
Temperature of Air on Condenser Coil
Total
Capacity1
(MBh)
Total
Input
(kW)2
Sensible Capacity (MBh) Total
Capacity1
(MBh)
Total
Input
(kW)2
Sensible Capacity (MBh)
CFM WB
(°F)
Return Dry Bulb (°F) Return Dry Bulb (°F)
90 85 80 75 70 65 90 85 80 75 70 65
75°F 85°F
3125
77 190.5 9.0 87.6 73.4 59.1 - - - 185.2 10.5 81.6 67.3 53.0 - - -
72 180.7 9.2 111.5 97.2 83.0 68.8 - - 172.9 10.5 105.4 91.1 76.8 62.5 - -
67 171.0 9.3 135.4 121.1 106.9 92.7 78.4 - 160.6 10.5 129.2 114.9 100.6 86.3 72.0 -
62 158.6 9.1 158.6 158.6 158.6 150.5 136.2 122.0 148.0 10.3 148.0 148.0 139.6 125.3 111.1 96.8
3750
77 199.8 9.2 94.7 78.6 62.4 - - - 194.0 10.6 89.0 72.9 56.8 - - -
72 189.6 9.3 119.8 103.7 87.5 71.3 - - 181.1 10.6 114.4 98.3 82.2 66.1 - -
67 179.4 9.4 145.0 128.8 112.6 96.4 80.3 - 168.3 10.6 139.9 123.8 107.7 91.6 75.5 -
62 166.3 9.2 166.3 166.3 166.3 157.9 141.8 125.6 155.1 10.4 155.1 155.1 149.5 133.4 117.3 101.2
57 154.4 9.2 154.4 154.4 148.9 132.7 116.6 100.4 146.9 10.4 146.9 146.9 137.3 121.2 105.2 89.1
4375
77 209.1 9.3 101.9 83.8 65.7 - - - 202.8 10.7 96.3 78.4 60.5 - - -
72 198.4 9.4 128.2 110.1 92.0 73.9 - - 189.3 10.7 123.4 105.5 87.6 69.7 - -
67 187.7 9.6 154.5 136.4 118.3 100.2 82.1 - 175.9 10.7 150.6 132.7 114.8 96.9 79.0 -
62 174.1 9.4 174.1 174.1 174.1 165.4 147.3 129.2 162.1 10.5 162.1 162.1 159.3 141.4 123.5 105.6
57 161.6 9.3 161.6 161.6 156.6 138.5 120.4 102.3 153.5 10.5 153.5 153.5 146.4 128.5 110.6 92.7
5000
77 218.4 9.4 109.0 89.0 68.9 - - - 211.6 10.8 103.6 83.9 64.2 - - -
72 207.3 9.6 136.6 116.5 96.5 76.5 - - 197.5 10.8 132.4 112.7 93.0 73.3 - -
67 196.1 9.7 164.1 144.1 124.1 104.0 84.0 - 183.5 10.8 161.2 141.5 121.8 102.1 82.4 -
62 181.8 9.5 181.8 181.8 181.8 172.9 152.9 132.8 169.1 10.6 169.1 169.1 169.1 149.4 129.7 110.0
57 168.8 9.5 168.8 168.8 164.4 144.3 124.3 104.2 160.2 10.6 160.2 160.2 155.4 135.7 116.0 96.3
5625
72 211.2 9.6 148.0 126.6 105.3 83.9 - - 202.2 10.8 143.3 122.0 100.8 79.5 - -
67 199.9 9.7 179.4 156.7 135.4 114.0 92.7 - 187.8 10.8 174.5 153.2 131.9 110.7 89.4 -
62 185.3 9.5 185.3 185.3 185.3 169.5 148.2 126.8 173.1 10.6 173.1 173.1 173.1 151.9 130.6 109.3
57 172.0 9.5 172.0 172.0 169.8 148.5 127.1 105.8 164.0 10.6 164.0 164.0 161.6 140.3 119.1 97.8
6250
72 215.2 9.5 159.4 136.7 114.0 91.4 - - 206.9 10.8 154.1 131.3 108.5 85.6 - -
67 203.6 9.7 194.6 169.4 146.7 124.0 101.4 - 192.2 10.8 187.7 164.9 142.0 119.2 96.4 -
62 188.8 9.5 188.8 188.8 188.8 166.2 143.5 120.9 177.1 10.6 177.1 177.1 177.1 154.3 131.5 108.6
57 175.3 9.4 175.3 175.3 175.3 152.6 130.0 107.3 167.8 10.6 167.8 167.8 167.8 145.0 122.1 99.3
95°F 105°F
3125
77 180.0 11.9 75.6 61.3 46.9 - - - 168.2 13.3 71.8 58.0 43.9 - - -
72 165.1 11.8 99.3 85.0 70.6 56.3 - - 153.8 13.2 95.1 81.0 66.9 52.8 - -
67 150.2 11.7 123.0 108.6 94.3 80.0 65.6 - 139.5 13.0 118.4 103.9 89.8 75.7 61.6 -
62 137.5 11.5 137.5 133.0 114.6 100.2 85.9 71.5 127.9 12.9 127.9 125.7 110.1 96.0 81.9 67.8
3750
77 188.2 12.0 83.2 67.2 51.2 - - - 175.5 13.3 79.5 63.7 47.8 - - -
72 172.7 11.9 109.0 93.0 77.0 60.9 - - 160.6 13.2 104.5 88.6 72.8 56.9 - -
67 157.1 11.7 134.8 118.8 102.8 86.7 70.7 - 145.6 13.1 129.4 113.6 97.7 81.9 66.0 -
62 143.8 11.6 143.8 140.8 124.8 108.8 92.8 76.8 133.5 12.9 133.5 132.1 119.8 104.0 88.1 72.2
57 139.4 11.6 139.4 139.4 125.8 109.8 93.8 77.7 130.3 13.0 130.3 130.3 117.1 101.2 85.4 69.5
4375
77 196.5 12.0 90.7 73.0 55.4 - - - 182.9 13.4 87.3 69.3 51.7 - - -
72 180.3 11.9 118.6 101.0 83.3 65.6 - - 167.3 13.3 113.9 96.3 78.7 61.0 - -
67 164.0 11.8 146.6 128.9 111.2 93.5 75.8 - 151.8 13.1 140.5 123.3 105.6 88.0 70.4 -
62 150.1 11.6 150.1 148.6 135.1 117.4 99.7 82.0 139.2 13.0 139.2 138.4 129.5 111.9 94.3 76.6
57 145.5 11.7 145.5 145.5 136.1 118.4 100.7 83.1 135.7 13.0 135.7 135.7 126.6 109.0 91.3 73.7
5000
77 204.8 12.1 98.3 78.9 59.6 - - - 190.3 13.4 95.1 75.0 55.6 - - -
72 187.8 12.0 128.3 109.0 89.6 70.2 - - 174.1 13.3 123.3 104.0 84.6 65.2 - -
67 170.9 11.9 158.4 139.0 119.6 100.3 80.9 - 157.9 13.2 151.6 132.9 113.6 94.2 74.8 -
62 156.4 11.7 156.4 156.4 145.3 126.0 106.6 87.2 144.8 13.0 144.8 144.8 139.2 119.8 100.4 81.1
57 151.6 11.7 151.6 151.6 146.4 127.1 107.7 88.4 141.2 13.1 141.2 141.2 136.1 116.7 97.3 77.9
5625
72 193.2 12.0 138.6 117.4 96.2 75.1 - - 178.5 13.3 133.3 112.3 91.2 70.2 - -
67 175.8 11.9 169.6 149.7 128.5 107.3 86.1 - 161.8 13.2 158.7 143.5 122.5 101.5 80.4 -
62 160.9 11.7 160.9 160.9 155.4 134.2 113.0 91.8 148.4 13.0 148.4 148.4 145.6 124.6 103.5 82.5
57 156.0 11.7 156.0 156.0 153.4 132.2 111.0 89.8 144.7 13.1 144.7 144.7 142.2 121.1 100.1 79.1
6250
72 198.6 12.0 148.9 125.9 102.9 79.9 - - 182.8 13.3 143.3 120.6 97.9 75.2 - -
67 180.7 11.9 180.7 160.4 137.4 114.4 91.4 - 165.8 13.2 165.8 154.1 131.4 108.7 86.1 -
62 165.4 11.7 165.4 165.4 165.4 142.4 119.4 96.4 152.0 13.0 152.0 152.0 152.0 129.3 106.6 84.0
57 160.3 11.8 160.3 160.3 160.3 137.3 114.3 91.3 148.3 13.1 148.3 148.3 148.3 125.6 102.9 80.2

528150-YTG-G-1210
Johnson Controls Unitary Products 93
115°F 125°F
3125
77 156.3 14.6 67.9 54.8 40.9 - - - 144.5 16.0 60.9 51.5 37.9 - - -
72 142.6 14.5 90.8 77.0 63.1 49.3 - - 131.3 15.9 86.6 73.0 59.4 45.8 - -
67 128.8 14.4 113.7 99.1 85.3 71.5 57.6 - 118.1 15.7 110.3 94.4 80.8 67.2 53.6 -
62 118.4 14.2 118.4 118.4 105.7 91.8 78.0 64.1 108.8 15.6 108.8 108.8 102.4 87.6 74.0 60.4
3750
77 162.8 14.7 75.9 60.2 44.5 - - - 150.2 16.0 72.3 56.7 41.2 - - -
72 148.5 14.6 100.0 84.3 68.6 52.9 - - 136.4 15.9 95.5 80.0 64.4 48.9 - -
67 134.1 14.4 124.1 108.4 92.7 77.0 61.3 - 122.7 15.8 118.8 103.2 87.7 72.1 56.6 -
62 123.3 14.3 123.3 123.3 114.8 99.1 83.4 67.7 113.0 15.6 113.0 113.0 109.8 94.3 78.7 63.2
57 121.1 14.3 121.1 121.1 108.4 92.7 77.0 61.3 112.0 15.7 112.0 112.0 99.7 84.2 68.6 53.1
4375
77 169.3 14.7 83.9 65.6 48.0 - - - 155.8 16.1 83.6 61.9 44.4 - - -
72 154.4 14.6 109.2 91.6 74.1 56.5 - - 141.5 16.0 104.5 87.0 69.5 52.0 - -
67 139.5 14.5 134.5 117.6 100.1 82.5 65.0 - 127.2 15.8 127.2 112.0 94.5 77.0 59.5 -
62 128.2 14.3 128.2 128.2 124.0 106.4 88.8 71.3 117.3 15.7 117.3 117.3 117.3 100.9 83.4 65.9
57 126.0 14.4 126.0 126.0 117.1 99.5 81.9 64.4 116.2 15.7 116.2 116.2 107.5 90.0 72.6 55.1
5000
77 175.8 14.8 91.9 71.0 51.6 - - - 161.4 16.2 95.0 67.0 47.6 - - -
72 160.3 14.7 118.4 98.9 79.5 60.1 - - 146.6 16.0 113.4 93.9 74.5 55.1 - -
67 144.9 14.5 144.9 126.9 107.5 88.1 68.6 - 131.8 15.9 131.8 120.8 101.4 82.0 62.5 -
62 133.1 14.4 133.1 133.1 133.1 113.7 94.3 74.9 121.5 15.7 121.5 121.5 121.5 107.6 88.1 68.7
57 130.8 14.4 130.8 130.8 125.7 106.3 86.9 67.5 120.4 15.8 120.4 120.4 115.4 95.9 76.5 57.0
5625
72 163.7 14.7 128.0 107.1 86.2 65.3 - - 148.9 16.0 122.7 102.0 81.2 60.4 - -
67 147.9 14.5 147.9 137.4 116.5 95.6 74.7 - 133.9 15.9 133.9 131.3 110.5 89.7 69.0 -
62 135.9 14.4 135.9 135.9 135.9 115.0 94.1 73.2 123.4 15.7 123.4 123.4 123.4 105.4 84.6 63.9
57 133.5 14.4 133.5 133.5 131.0 110.1 89.2 68.3 122.3 15.8 122.3 122.3 119.8 99.0 78.3 57.5
6250
72 167.0 14.7 137.7 115.3 92.9 70.5 - - 151.2 16.0 132.0 110.0 87.9 65.8 - -
67 150.9 14.5 150.9 147.9 125.5 103.1 80.7 - 135.9 15.8 135.9 135.9 119.6 97.5 75.4 -
62 138.6 14.4 138.6 138.6 138.6 116.3 93.9 71.5 125.3 15.7 125.3 125.3 125.3 103.2 81.1 59.0
57 136.2 14.4 136.2 136.2 136.2 113.9 91.5 69.1 124.2 15.7 124.2 124.2 124.2 102.1 80.0 58.0
1. These capacities are gross ratings. For net capacity, deduct air blower motor, MBh = 3.415 x kW. Refer to the appropriate Blower
Performance Table for the kW of the supply air blower motor.
2. These ratings include the condenser fan motors (total 1 kW) and the compressor motors but not the supply air blower motor.
ZR150 (12.5 Ton) Cooling (Continued)
Air on
Evaporator Coil
Temperature of Air on Condenser Coil
Total
Capacity1
(MBh)
Total
Input
(kW)2
Sensible Capacity (MBh) Total
Capacity1
(MBh)
Total
Input
(kW)2
Sensible Capacity (MBh)
CFM WB
(°F)
Return Dry Bulb (°F) Return Dry Bulb (°F)
90 85 80 75 70 65 90 85 80 75 70 65

528150-YTG-G-1210
94 Johnson Controls Unitary Products
ZR150 (12.5 Ton) Reheat
Air on
Evaporator Coil
Temperature of Air on Condenser Coil
Total
Capacity1
(MBh)
Total
Input
(kW)2
Sensible Capacity (MBh) Total
Capacity1
(MBh)
Total
Input
(kW)2
Sensible Capacity (MBh)
CFM WB
(°F)
Return Dry Bulb (°F) Return Dry Bulb (°F)
85 80 75 70 65 85 80 75 70 65
35°F 45°F
3125
72 87.0 7.7 6.6 4.8 3.1 - - 85.9 8.3 5.6 3.9 2.2 - -
67 84.6 7.3 14.4 12.7 11.0 9.2 - 83.3 8.0 11.8 10.1 8.4 6.7 -
62 82.9 7.3 20.3 18.6 16.9 15.2 13.5 80.8 7.7 17.7 16.0 14.3 12.6 10.9
3750
72 89.0 7.4 11.5 9.2 6.9 - - 88.9 8.0 10.7 8.3 5.9 - -
67 86.5 7.1 26.3 24.0 21.7 19.5 - 86.2 7.7 24.1 21.7 19.3 17.0 -
62 84.8 7.1 36.7 34.4 32.1 29.8 27.5 83.6 7.4 36.6 34.2 31.9 29.5 27.1
57 82.2 7.7 43.1 40.9 38.6 36.3 34.0 79.1 8.2 40.8 38.4 36.0 33.7 31.3
4375
72 90.9 7.2 16.4 13.5 10.7 - - 91.8 7.7 15.8 12.7 9.7 - -
67 88.4 6.9 38.3 35.4 32.5 29.7 - 89.1 7.4 36.3 33.3 30.2 27.2 -
62 86.6 6.8 53.1 50.2 47.4 44.5 41.6 86.4 7.2 55.5 52.5 49.4 46.4 43.3
57 84.0 7.4 63.2 60.0 57.1 54.2 51.4 81.8 7.9 61.9 58.9 55.8 52.8 49.7
5000
72 92.8 6.9 21.3 17.9 14.4 - - 94.8 7.4 20.9 17.2 13.4 - -
67 90.3 6.6 50.2 46.8 43.3 39.9 - 91.9 7.1 48.6 44.9 41.1 37.4 -
62 88.5 6.6 69.5 66.0 62.6 59.1 55.7 89.2 6.9 74.5 70.7 67.0 63.3 59.5
57 85.9 7.1 83.2 79.1 75.6 72.2 68.7 84.4 7.6 83.1 79.4 75.6 71.9 68.2
5625
72 94.1 7.5 15.2 12.5 9.9 - - 96.7 7.8 16.3 13.1 9.9 - -
67 91.5 7.1 35.5 32.8 30.2 27.5 - 93.8 7.6 37.4 34.2 31.0 27.8 -
62 89.7 7.1 48.0 45.4 42.7 40.1 37.4 91.0 7.3 57.1 53.9 50.7 47.5 44.3
57 87.1 7.7 58.0 55.0 52.4 49.7 47.1 86.1 8.0 63.7 60.5 57.3 54.1 50.8
6250
72 95.4 8.0 9.1 7.2 5.4 - - 98.6 8.3 11.7 9.0 6.3 - -
67 92.8 7.7 20.7 18.9 17.0 15.2 - 95.6 8.0 26.2 23.5 20.8 18.1 -
62 91.0 7.6 26.6 24.7 22.9 21.0 19.2 92.8 7.8 39.8 37.1 34.4 31.7 29.0
57 88.3 8.3 32.9 31.0 29.2 27.3 25.5 87.8 8.5 44.3 41.6 38.9 36.2 33.5
55°F 65°F
3125
72 84.8 8.94.62.91.2-- 84.2 9.3 -----
67 81.9 8.7 9.3 7.6 5.9 4.2 - 79.1 8.9 10.4 8.9 7.3 5.8 -
62 78.7 8.2 15.1 13.4 11.7 10.0 8.3 74.6 8.4 24.9 23.4 21.8 20.3 18.7
3750
72 88.8 8.69.97.45.0-- 87.3 9.2 -----
67 85.8 8.3 21.9 19.4 16.9 14.5 - 82.0 8.8 18.2 16.0 13.9 11.8 -
62 82.5 7.8 36.5 34.1 31.6 29.1 26.7 77.4 8.3 40.0 37.9 35.8 33.7 31.5
57 76.1 8.7 38.4 36.0 33.5 31.0 28.6 72.6 9.0 44.1 42.0 39.9 37.8 35.6
4375
72 92.8 8.215.211.98.7-- 90.4 9.1 -----
67 89.7 8.0 34.4 31.2 27.9 24.7 - 85.0 8.7 25.9 23.2 20.5 17.8 -
62 86.2 7.5 58.0 54.7 51.5 48.3 45.0 80.2 8.2 55.1 52.4 49.8 47.1 44.4
57 79.5 8.3 60.7 57.8 54.6 51.3 48.1 75.2 8.9 60.3 57.7 55.1 52.4 49.7
5000
72 96.8 7.8 20.5 16.5 12.4 - - 93.5 9.0 1.1 - - - -
67 93.6 7.6 47.0 42.9 38.9 34.9 - 87.9 8.6 33.6 30.4 27.1 23.8 -
62 89.9 7.1 79.4 75.4 71.4 67.4 63.4 83.0 8.1 70.3 67.0 63.7 60.4 57.2
57 83.0 8.0 83.0 79.6 75.6 71.6 67.6 77.8 8.8 76.4 73.5 70.2 66.9 63.7
5625
72 99.3 8.217.413.69.8-- 97.7 9.2 -----
67 96.0 8.0 39.3 35.5 31.8 28.0 - 91.8 8.8 31.7 28.3 25.0 21.6 -
62 92.2 7.5 66.2 62.4 58.7 54.9 51.1 86.6 8.3 69.4 66.0 62.6 59.3 55.9
57 85.1 8.4 69.3 65.9 62.1 58.4 54.6 81.2 9.0 72.7 70.3 66.9 63.6 60.2
6250
72101.8 8.614.310.87.3--101.9 9.5 -----
67 98.4 8.4 31.7 28.1 24.6 21.1 - 95.7 9.1 29.8 26.3 22.8 19.4 -
62 94.6 7.9 53.0 49.4 45.9 42.4 38.8 90.3 8.6 68.5 65.0 61.6 58.1 54.6
57 87.2 8.8 55.7 52.2 48.7 45.1 41.6 84.7 9.3 68.9 67.1 63.7 60.2 56.8

528150-YTG-G-1210
Johnson Controls Unitary Products 95
75°F 85°F
3125
72 83.6 9.7 ----- 83.0 10.2 -----
67 76.2 9.2 11.5 10.1 8.7 7.3 - 73.4 9.4 12.6 11.4 10.1 8.8 -
62 70.5 8.7 34.8 33.4 32.0 30.6 29.2 66.4 8.9 44.7 43.4 42.1 40.9 39.6
3750
72 85.8 9.9 ----- 84.3 10.5 -----
67 78.2 9.3 14.5 12.7 10.9 9.1 - 74.4 9.7 10.8 9.3 7.9 6.4 -
62 72.3 8.8 43.6 41.8 40.0 38.2 36.4 67.3 9.3 47.1 45.6 44.2 42.7 41.3
57 69.0 9.3 49.8 48.1 46.3 44.5 42.7 65.5 9.7 55.5 54.1 52.7 51.2 49.8
4375
72 88.0 10.0 ----- 85.5 10.9 -----
67 80.2 9.4 17.4 15.2 13.1 10.9 - 75.5 10.1 8.9 7.2 5.6 4.0 -
62 74.2 8.9 52.3 50.2 48.0 45.8 43.7 68.2 9.6 49.5 47.9 46.2 44.6 43.0
57 70.8 9.5 59.9 57.7 55.5 53.4 51.2 66.4 10.0 59.4 57.6 56.0 54.4 52.8
5000
72 90.1 10.1 ----- 86.8 11.3 -----
67 82.2 9.5 20.3 17.8 15.2 12.7 - 76.5 10.5 7.0 5.2 3.4 1.6 -
62 76.0 9.0 61.1 58.5 56.0 53.5 50.9 69.1 10.0 51.9 50.1 48.3 46.5 44.7
57 72.6 9.6 69.9 67.3 64.8 62.3 59.7 67.4 10.4 63.3 61.2 59.4 57.6 55.8
5625
72 96.1 10.3 ----- 94.4 11.3 -----
67 87.6 9.6 24.1 21.1 18.1 15.2 - 83.4 10.5 16.4 13.9 11.3 8.8 -
62 81.0 9.1 72.5 69.6 66.6 63.7 60.7 75.4 9.9 75.4 73.1 70.6 68.0 65.5
57 77.3 9.7 76.0 74.7 71.8 68.8 65.8 73.4 10.4 73.4 73.4 73.4 73.4 71.5
6250
72102.0 10.4 -----102.0 11.3 -----
67 93.0 9.8 27.8 24.5 21.1 17.7 - 90.3 10.4 25.9 22.6 19.3 16.0 -
62 86.0 9.2 84.0 80.6 77.2 73.8 70.5 81.7 9.9 81.7 81.7 81.7 81.7 81.7
57 82.1 9.8 82.1 82.1 78.7 75.3 71.9 79.5 10.3 79.5 79.5 79.5 79.5 79.5
1. These capacities are gross ratings. For net capacity, deduct air blower motor, MBh = 3.415 x kW. Refer to the appropriate Blower
Performance Table for the kW of the supply air blower motor.
2. These ratings include the condenser fan motors (total 1 kW) and the compressor motors but not the supply air blower motor.
ZR150 (12.5 Ton) Reheat (Continued)
Air on
Evaporator Coil
Temperature of Air on Condenser Coil
Total
Capacity1
(MBh)
Total
Input
(kW)2
Sensible Capacity (MBh) Total
Capacity1
(MBh)
Total
Input
(kW)2
Sensible Capacity (MBh)
CFM WB
(°F)
Return Dry Bulb (°F) Return Dry Bulb (°F)
85 80 75 70 65 85 80 75 70 65

528150-YTG-G-1210
96 Johnson Controls Unitary Products
Drive Selection
1. Determine side or bottom supply duct Application.
2. Determine desired airflow.
3. Calculate or measure the amount of external static pressure.
• Add or deduct any additional static resistance from “Additional Static Resistance Table”.
4. Using the operating point determined from steps 1, 2 & 3, locate this point on the appropriate supply air blower performance
table. (Linear interpolation may be necessary.)
5. Noting the RPM and BHP from step 4, locate the appropriate motor and, or drive on the RPM selection table.
6. Review the BHP compared to the motor options available. Select the appropriate motor and, or drive.
7. Review the RPM range for the motor options available. Select the appropriate drive if multiple drives are available for the
chosen motor.
8. Determine turns open to obtain the desired operation point.
Example
1. 2600 CFM
2. 1.6 iwg
3. Using the supply air blower performance table below, the following data point was located: 1268 RPM & 1.95 BHP.
4. Using the RPM selection table below, Size X and Model Y is found.
5. 1.95 BHP exceeds the maximum continuous BHP rating of the 1.5 HP motor. The 2 HP motor is required.
6. 1268 RPM is within the range of the 2 HP drives.
7. Using the 2 HP motor and drive, .5 turns open will achieve 1268 RPM.
Airflow Performance
Example Supply Air Blower Performance
Air Flow
(CFM)
Available External Static Pressure - IWG
0.2 0.4 0.6 0.8 1.0 1.2 1.4 1.6 1.8 2.0
RPM BHP RPM BHP RPM BHP RPM BHP RPM BHP RPM BHP RPM BHP RPM BHP RPM BHP RPM BHP
1.5 HP & Field Supplied Drive Standard 1.5 HP & Drive Alternate 2 HP & Drive
2200 804 0.50 866 0.71 925 0.90 982 1.06 1038 1.21 1092 1.35 1147 1.48 1203 1.61 1259 1.73 1317 1.87
2400 835 0.66 897 0.87 956 1.06 1013 1.22 1069 1.37 1124 1.51 1178 1.64 1234 1.77 1290 1.90 1348 2.03
2600 869 0.84 931 1.05 990 1.24 1047 1.40 1103 1.55 1158 1.69 1212 1.82 1268 1.95 1324 2.07 1382 2.21
2800 906 1.03 968 1.25 1027 1.43 1084 1.60 1139 1.75 1194 1.89 1249 2.02 1304 2.14 1361 2.27 - -
Example RPM Selection
Size
(Tons) Model Airflow
Option HP Max
BHP Motor
Sheave Blower
Sheave 6 Turns
Open 5 Turns
Open 4 Turns
Open 3 Turns
Open 2 Turns
Open 1 Turn
Open Fully
Closed
XY
Std. 1.5 1.73 1VM50 AK74 N/A 897 945 991 1035 1079 1126
H. Static 2 2.30 1VM50 AK64 N/A 1039 1094 1150 1207 1256 1308
Example Additional Static Resistance
Size
(Tons) Model CFM Cooling Only Economizer 4” Pleated Filter Electric Heat kW
3 6 9 15 20 24
XY
900 0.05 -0.05 0.01 0.00 0.00 0.00 0.01 0.01 0.01
1000 0.05 -0.03 0.02 0.00 0.00 0.00 0.02 0.02 0.02
1100 0.04 -0.02 0.03 0.01 0.01 0.01 0.02 0.02 0.02
1200 0.04 0.00 0.04 0.01 0.01 0.01 0.02 0.02 0.02
1300 0.03 0.01 0.05 0.01 0.01 0.01 0.03 0.03 0.03

528150-YTG-G-1210
Johnson Controls Unitary Products 97
Altitude and Temperature Correction for CFM, Static
Pressure and Power.
The information below should be used to assist in application of
product when being applied at altitudes at or exceeding 1000
feet above sea level.
The air flow rates listed in the standard blower performance
tables are based on standard air at sea level. As the altitude or
temperature increases, the density of air decreases. In order to
use the indoor blower tables for high altitude applications,
certain corrections are necessary.
A centrifugal fan is a "constant volume" device. This means
that, if the rpm remains constant, the CFM delivered is the
same regardless of the density of the air. However, since the air
at high altitude is less dense, less static pressure will be
generated and less power will be required than a similar
application at sea level. Air density correction factors are shown
in Table 14 and Figure 27.
The examples below will assist in determining the airflow
performance of the product at altitude.
Example 1: What are the corrected CFM, static pressure, and
BHP at an elevation of 5,000 ft. if the blower performance data
is 6,000 CFM, 1.5 IWC and 4.0 BHP?
Solution: At an elevation of 5,000 ft. the indoor blower will still
deliver 6,000 CFM if the rpm is unchanged. However, Table 13
must be used to determine the static pressure and BHP. Since
no temperature data is given, we will assume an air temperature
of 70°F. Table 15 shows the correction factor to be 0.832.
Corrected static pressure = 1.5 x 0.832 = 1.248 IWC
Corrected BHP = 4.0 x 0.832 = 3.328
Example 2: A system, located at 5,000 feet of elevation, is to
deliver 6,000 CFM at a static pressure of 1.5". Use the unit
blower tables to select the blower speed and the BHP
requirement.
Solution: As in the example above, no temperature
information is given so 70°F is assumed.
The 1.5" static pressure given is at an elevation of 5,000 ft. The
first step is to convert this static pressure to equivalent sea level
conditions.
Sea level static pressure = 1.5 / .832 = 1.80"
Enter the blower table at 6000 sCFM and static pressure of
1.8". The rpm listed will be the same rpm needed at 5,000 ft.
Suppose that the corresponding BHP listed in the table is 3.2.
This value must be corrected for elevation.
BHP at 5,000 ft. = 3.2 x .832 = 2.66
Altitude/Temperature Correction Factors
Air
Temp. Altitude (Ft.)
0 1000 2000 3000 4000 5000 6000 7000 8000 9000 10000
40 1.060 1.022 0.986 0.950 0.916 0.882 0.849 0.818 0.788 0.758 0.729
50 1.039 1.002 0.966 0.931 0.898 0.864 0.832 0.802 0.772 0.743 0.715
60 1.019 0.982 0.948 0.913 0.880 0.848 0.816 0.787 0.757 0.729 0.701
70 1.000 0.964 0.930 0.896 0.864 0.832 0.801 0.772 0.743 0.715 0.688
80 0.982 0.947 0.913 0.880 0.848 0.817 0.787 0.758 0.730 0.702 0.676
90 0.964 0.929 0.897 0.864 0.833 0.802 0.772 0.744 0.716 0.689 0.663
100 0.946 0.912 0.880 0.848 0.817 0.787 0.758 0.730 0.703 0.676 0.651
0.600
0.650
0.700
0.750
0.800
0.850
0.900
0.950
1.000
1.050
1.100
40 50 60 70 80 90 100
Air Temperature (ºF)
Correction Factor
Sea Level
1000 ft
2000 ft
3000 ft
4000 ft
6000 ft
7000 ft
8000 ft
9000 ft
10000 ft
5000 ft

528150-YTG-G-1210
98 Johnson Controls Unitary Products
Indoor Blower Specifications
Size
(Tons) Model Airflow
Option
Motor Motor Sheave Blower Sheave Belt
HP RPM Eff. SF Frame Datum Dia.
(in.) Bore (in.) Model Datum Dia.
(in.) Bore (in.) Model
037
(3) ZH Std. 1-1/2 1725 0.8 1.15 56 2.0 - 3.0 7/8 1VM34 6.5 1 AK69 A47
H. Static 1-1/2 1725 0.8 1.15 56 3.0 - 4.0 7/8 1VL44 6.5 1 AK69 A47
049
(4) ZH Std. 1-1/2 1725 0.8 1.15 56 2.0 - 3.0 7/8 1VM34 5.2 1 AK56 A47
H. Static 1-1/2 1725 0.8 1.15 56 3.0 - 4.0 7/8 1VL44 5.2 1 AK56 A47
061
(5) ZH Std. 1-1/2 1725 0.8 1.15 56 2.6 - 3.6 7/8 1VL40 5.7 1 AK61 A47
H. Static 2 1725 0.8 1.15 56 4.2 - 5.2 7/8 1VP56 7.0 1 AK74 A51
078
(6.5) ZH Std. 1-1/2 1725 0.8 1.15 56 3.4 - 4.4 7/8 1VM50 7.0 1 AK74 A49
H. Static 2 1725 0.8 1.15 56 3.4 - 4.4 7/8 1VM50 6.0 1 AK64 A49
090
(7.5) ZH Std. 1-1/2 1725 0.8 1.15 56 3.4 - 4.4 7/8 1VM50 7.0 1 AK74 A49
H. Static 3 1725 0.8 1.15 56 3.4 - 4.4 7/8 1VM50 5.7 1 AK61 A49
102
(8.5) ZH Std. 2 1725 0.8 1.15 56 3.4 - 4.4 7/8 1VM50 9.0 1 AK94 A56
H. Static 3 1725 0.8 1.15 56 3.4 - 4.4 7/8 1VM50 7.0 1 AK74 A54
120
(10) ZH Std. 2 1725 0.8 1.15 56 3.4 - 4.4 7/8 1VM50 8.0 1 AK84 A56
H. Static 3 1725 0.8 1.15 56 3.4 - 4.4 7/8 1VM50 7.0 1 AK74 A54
150
(12.5) ZH Std. 3 1725 0.8 1.15 56 3.4 - 4.4 7/8 1VM50 7.0 1 AK74 A54
H. Static 5 1725 0.87 1.15 184T 4.3 - 5.3 1-1/8 1VP56 6.7 1 BK77 BX55
037
(3) ZJ Std. 1-1/2 1725 0.8 1.15 56 2.0 - 3.0 7/8 1VM34 6.5 1 AK69 A47
H. Static 1-1/2 1725 0.8 1.15 56 3.0 - 4.0 7/8 1VL44 6.5 1 AK69 A47
049
(4) ZJ Std. 1-1/2 1725 0.8 1.15 56 2.0 - 3.0 7/8 1VM34 5.2 1 AK56 A47
H. Static 1-1/2 1725 0.8 1.15 56 3.0 - 4.0 7/8 1VL44 5.2 1 AK56 A47
061
(5) ZJ Std. 1-1/2 1725 0.8 1.15 56 2.6 - 3.6 7/8 1VL40 5.7 1 AK61 A47
H. Static 2 1725 0.8 1.15 56 4.2 - 5.2 7/8 1VP56 7.0 1 AK74 A51
078
(6.5) ZJ Std. 1-1/2 1725 0.8 1.15 56 2.6 - 3.6 7/8 1VL40 7.0 1 AK74 A53
H. Static 2 1725 0.8 1.15 56 3.6 - 4.6 7/8 1VM50 7.0 1 AK74 A54
090
(7.5) ZJ Std. 1-1/2 1725 0.8 1.15 56 2.6 - 3.6 7/8 1VL40 6.5 1 AK69 A52
H. Static 3 1725 0.8 1.15 56 3.6 - 4.6 7/8 1VM50 6.5 1 AK69 A54
102
(8.5) ZJ Std. 2 1725 0.8 1.15 56 3.4 - 4.4 7/8 1VM50 8.5 1 AK89 A56
H. Static 3 1725 0.8 1.15 56 3.4 - 4.4 7/8 1VM50 7.0 1 AK74 A54
120
(10) ZJ Std. 2 1725 0.8 1.15 56 3.4 - 4.4 7/8 1VM50 8.0 1 AK84 A56
H. Static 3 1725 0.8 1.15 56 3.4 - 4.4 7/8 1VM50 7.0 1 AK74 A54
150
(12.5) ZJ Std. 3 1725 0.8 1.15 56 3.4 - 4.4 7/8 1VM50 7.0 1 AK74 A54
H. Static 5 1725 0.87 1.15 184T 4.3 - 5.3 1-1/8 1VP56 6.7 1 BK77 BX55
037 ZR Std. 1-1/2 1725 0.8 1.15 56 1.2 - 2.9 7/8 1VP34 5.7 1 AK61 A47
(3) H. Static 1-1/2 1725 0.8 1.15 56 3.0 - 4.0 7/8 1VL44 5.5 1 AK59 A47
049 ZR Std. 1-1/2 1725 0.8 1.15 56 1.2 - 2.9 7/8 1VP34 5.7 1 AK61 A47
(4) H. Static 1-1/2 1725 0.8 1.15 56 3.0 - 4.0 7/8 1VL44 5.5 1 AK59 A47
061 ZR Std. 1-1/2 1725 0.8 1.15 56 1.2 - 2.9 7/8 1VP34 5.7 1 AK61 A47
(5) H. Static 2 1725 0.8 1.15 56 3.0 - 4.0 7/8 1VL44 5.5 1 AK59 A47
078
(6.5) ZR Std. 1-1/2 1725 0.8 1.15 56 3.4 - 4.4 7/8 1VM50 7.0 1 AK74 A49
H. Static 2 1725 0.8 1.15 56 3.4 - 4.4 7/8 1VM50 6.0 1 AK64 A49
090
(7.5) ZR Std. 1-1/2 1725 0.8 1.15 56 3.4 - 4.4 7/8 1VM50 7.0 1 AK74 A49
H. Static 3 1725 0.8 1.15 56 3.4 - 4.4 7/8 1VM50 5.7 1 AK61 A49
102
(8.5) ZR Std. 2 1725 0.8 1.15 56 3.4 - 4.4 7/8 1VM50 8.5 1 AK89 A56
H. Static 3 1725 0.8 1.15 56 3.4 - 4.4 7/8 1VM50 7.0 1 AK74 A54
120
(10) ZR Std. 2 1725 0.8 1.15 56 3.4 - 4.4 7/8 1VM50 8.0 1 AK84 A56
H. Static 3 1725 0.8 1.15 56 3.4 - 4.4 7/8 1VM50 7.0 1 AK74 A54
150
(12.5) ZR Std. 3 1725 0.8 1.15 56 3.4 - 4.4 7/8 1VM50 7.0 1 AK74 A54
H. Static 5 1725 0.87 1.15 184T 4.3 - 5.3 1-1/8 1VP56 6.7 1 BK77 BX55
Power Exhaust Specifications
Model Voltage Motor Motor Fuse Size CFM @
0.1 ESP
HP RPM1
1. Motors are multi-tapped and factory wired for high speed.
QTY LRA FLA MCA
2PE04703225 208/230-1-60 3/4 1075 1 7.8 5 6.3 10 3800
2PE04703246 460-1-60 3/4 1075 1 3.4 2.2 2.8 5 3800
2PE04703258 575-1-60 3/4 1050 1 2.9 1.5 1.9 4 3800

528150-YTG-G-1210
Johnson Controls Unitary Products 99
RPM Selection
Size
(Tons) Model Airflow
Option HP Max
BHP Motor
Sheave Blower
Sheave 6 Turns
Open 5 Turns
Open 4 Turns
Open 3 Turns
Open 2 Turns
Open 1 Turn
Open Fully
Closed
037
(3) ZH Std. 1.5 1.5 1VM34 AK69 N/A 531 584 637 690 743 796
H. Static 1.5 1.5 1VL44 AK69 N/A 796 849 902 955 1008 1062
049
(4) ZH Std. 1.5 1.5 1VM34 AK56 N/A 663 730 796 863 929 995
H. Static 1.5 1.5 1VL44 AK56 N/A 995 1062 1128 1194 1261 1327
061
(5) ZH Std. 1.5 1.5 1VL40 AK61 N/A 787 847 908 968 1029 1089
H. Static 2 2 1VP56 AK74 N/A 1035 1084 1134 1183 1232 1281
078
(6.5) ZH Std. 1.5 1.73 1VM50 AK74 N/A 887 936 986 1035 1084 1134
H. Static 2 2.30 1VM50 AK64 N/A 1039 1094 1150 1207 1256 1308
090
(7.5) ZH Std. 1.5 1.73 1VM50 AK74 N/A 887 936 986 1035 1084 1134
H. Static 3 3.45 1VM50 AK61 N/A 1088 1147 1205 1265 1312 1365
102
(8.5) ZH Std. 2 2.30 1VM50 AK94 N/A 690 728 767 805 843 882
H. Static 3 3.45 1VM50 AK74 N/A 887 936 986 1035 1084 1134
120
(10) ZH Std. 2 2.30 1VM50 AK84 N/A 776 819 863 906 949 992
H. Static 3 3.45 1VM50 AK74 N/A 887 936 986 1035 1084 1134
150
(12.5) ZH Std. 3 3.45 1VM50 AK74 N/A 887 936 986 1035 1084 1134
H. Static 5 5.75 1VP56 BK77 1052 1095 1136 1175 1216 1272 N/A
037
(3) ZJ Std. 1.5 1.5 1VM34 AK69 N/A 531 584 637 690 743 796
H. Static 1.5 1.5 1VL44 AK69 N/A 796 849 902 955 1008 1062
049
(4) ZJ Std. 1.5 1.5 1VM34 AK56 N/A 663 730 796 863 929 995
H. Static 1.5 1.5 1VL44 AK56 N/A 995 1062 1128 1194 1261 1327
061
(5) ZJ Std. 1.5 1.5 1VL40 AK61 N/A 787 847 908 968 1029 1089
H. Static 2 2 1VP56 AK74 N/A 1035 1084 1134 1183 1232 1281
078
(6.5) ZJ Std. 1.5 1.73 1VL40 AK74 N/A 641 690 739 789 838 887
H. Static 2 2.30 1VM50 AK74 N/A 887 936 986 1035 1084 1134
090
(7.5) ZJ Std. 1.5 1.73 1VL40 AK69 N/A 690 743 796 849 902 955
H. Static 3 3.45 1VM50 AK69 N/A 955 1008 1062 1115 1168 1221
102
(8.5) ZJ Std. 2 2.30 1VM50 AK89 N/A 731 771 812 852 893 934
H. Static 3 3.45 1VM50 AK74 N/A 887 936 986 1035 1084 1134
120
(10) ZJ Std. 2 2.30 1VM50 AK84 N/A 776 819 863 906 949 992
H. Static 3 3.45 1VM50 AK74 N/A 887 936 986 1035 1084 1134
150
(12.5) ZJ Std. 3 3.45 1VM50 AK74 N/A 887 936 986 1035 1084 1134
H. Static 5 5.75 1VP56 BK77 1052 1095 1136 1175 1216 1272 N/A
037
(3.0) ZR Std. 1.5 1.5 1VP34 AK61 N/A 575 636 696 757 817 878
H. Static 1.5 1.5 1VL44 AK59 N/A 878 941 1004 1066 1129 1192
049
(4.0) ZR Std. 1.5 1.5 1VP34 AK61 N/A 575 636 696 757 817 878
H. Static 1.5 1.5 1VL44 AK59 N/A 878 941 1004 1066 1129 1192
061
(5.0) ZR Std. 1.5 1.5 1VP34 AK61 N/A 575 636 696 757 817 878
H. Static 2 2 1VL44 AK59 N/A 878 941 1004 1066 1129 1192
078
(6.5) ZR Std. 1.5 1.73 1VM50 AK74 N/A 897 945 991 1035 1079 1126
H. Static 2 2.30 1VM50 AK64 N/A 1039 1094 1150 1207 1256 1308
090
(7.5) ZR Std. 1.5 1.73 1VM50 AK74 N/A 897 945 991 1035 1079 1126
H. Static 3 3.45 1VM50 AK61 N/A 1088 1147 1205 1265 1312 1365
102
(8.5) ZR Std. 2 2.30 1VM50 AK89 N/A 735 775 815 851 889 930
H. Static 3 3.45 1VM50 AK74 N/A 880 928 972 1016 1067 1110
120
(10) ZR Std. 2 2.30 1VM50 AK84 N/A 785 821 858 901 940 980
H. Static 3 3.45 1VM50 AK74 N/A 880 928 972 1016 1067 1110
150
(12.5) ZR Std. 3 3.45 1VM50 AK74 N/A 880 928 972 1016 1067 1110
H. Static 5 5.75 1VP56 BK77 1052 1095 1136 1175 1216 1272 N/A

528150-YTG-G-1210
100 Johnson Controls Unitary Products
Additional Static Resistance - ZH037 thru 061
Size
(Tons) Model CFM Cooling Only1
1. Add these values to the available static resistance in the respective Blower Performance Tables.
Economizer2 3
2. Deduct these values from the available external static pressure shown in the respective Blower Performance Tables.
3. The pressure drop through the economizer is greater for 100% outdoor air than for 100% return air. If the resistance of the return air duct
is less than 0.25 IWG, the unit will deliver less CFM during full economizer operation.
4” Pleated Filter2Electric Heat kW2
3 6 9 15 20 24
037 (3)
049 (4) ZH
900 0.05 -0.05 0.01 0.00 0.00 0.00 0.01 0.01 0.01
1000 0.05 -0.03 0.02 0.00 0.00 0.00 0.02 0.02 0.02
1100 0.04 -0.02 0.03 0.01 0.01 0.01 0.02 0.02 0.02
1200 0.04 0.00 0.04 0.01 0.01 0.01 0.02 0.02 0.02
1300 0.03 0.01 0.05 0.01 0.01 0.01 0.03 0.03 0.03
1400 0.03 0.03 0.07 0.02 0.02 0.02 0.03 0.03 0.03
1500 0.03 0.04 0.08 0.02 0.02 0.02 0.04 0.04 0.04
1600 0.02 0.06 0.09 0.02 0.02 0.02 0.04 0.04 0.04
1700 0.02 0.07 0.10 0.03 0.03 0.03 0.05 0.05 0.05
1800 0.01 0.08 0.11 0.03 0.03 0.03 0.05 0.05 0.05
1900 0.01 0.10 0.13 0.04 0.04 0.04 0.06 0.06 0.06
2000 0.00 0.11 0.14 0.04 0.04 0.04 0.07 0.07 0.07
061 (5) ZH
1500 -0.01 0.13 0.07 0.02 0.02 0.02 0.04 0.04 0.04
1600 -0.01 0.14 0.08 0.02 0.02 0.02 0.04 0.04 0.04
1700 -0.01 0.15 0.08 0.03 0.03 0.03 0.05 0.05 0.05
1800 -0.02 0.16 0.09 0.03 0.03 0.03 0.05 0.05 0.05
1900 -0.02 0.17 0.10 0.04 0.04 0.04 0.06 0.06 0.06
2000 -0.02 0.18 0.10 0.04 0.04 0.04 0.07 0.07 0.07
2100 -0.03 0.19 0.11 0.05 0.05 0.05 0.07 0.07 0.07
2200 -0.03 0.20 0.12 0.06 0.06 0.06 0.08 0.08 0.08
2300 -0.04 0.21 0.12 0.06 0.06 0.06 0.09 0.09 0.09
2400 -0.04 0.22 0.13 0.07 0.07 0.07 0.10 0.10 0.10
2500 -0.05 0.23 0.14 0.08 0.08 0.08 0.11 0.11 0.11
Additional Static Resistance - ZJ/ZR037 thru 061
Size
(Tons) Model CFM Cooling Only1
1. Add these values to the available static resistance in the respective Blower Performance Tables.
Economizer2 3
2. Deduct these values from the available external static pressure shown in the respective Blower Performance Tables.
3. The pressure drop through the economizer is greater for 100% outdoor air than for 100% return air. If the resistance of the return air duct
is less than 0.25 IWG, the unit will deliver less CFM during full economizer operation.
4” Pleated Filter2Electric Heat kW2
3 6 9 15 20 24
037 (3) ZJ/ZR
900 0.05 -0.05 0.01 0.00 0.00 0.00 0.01 0.01 0.01
1000 0.05 -0.03 0.02 0.00 0.00 0.00 0.02 0.02 0.02
1100 0.04 -0.02 0.03 0.01 0.01 0.01 0.02 0.02 0.02
1200 0.04 0.00 0.04 0.01 0.01 0.01 0.02 0.02 0.02
1300 0.03 0.01 0.05 0.01 0.01 0.01 0.03 0.03 0.03
1400 0.03 0.03 0.07 0.02 0.02 0.02 0.03 0.03 0.03
1500 0.03 0.04 0.08 0.02 0.02 0.02 0.04 0.04 0.04
049 (4)
061 (5) ZJ/ZR
1200 -0.01 0.10 0.05 0.01 0.01 0.01 0.02 0.02 0.02
1300 -0.01 0.11 0.06 0.01 0.01 0.01 0.03 0.03 0.03
1400 -0.01 0.12 0.06 0.02 0.02 0.02 0.03 0.03 0.03
1500 -0.01 0.13 0.07 0.02 0.02 0.02 0.04 0.04 0.04
1600 -0.01 0.14 0.08 0.02 0.02 0.02 0.04 0.04 0.04
1700 -0.01 0.15 0.08 0.03 0.03 0.03 0.05 0.05 0.05
1800 -0.02 0.16 0.09 0.03 0.03 0.03 0.05 0.05 0.05
1900 -0.02 0.17 0.10 0.04 0.04 0.04 0.06 0.06 0.06
2000 -0.02 0.18 0.10 0.04 0.04 0.04 0.07 0.07 0.07
2100 -0.03 0.19 0.11 0.05 0.05 0.05 0.07 0.07 0.07
2200 -0.03 0.20 0.12 0.06 0.06 0.06 0.08 0.08 0.08
2300 -0.04 0.21 0.12 0.06 0.06 0.06 0.09 0.09 0.09
2400 -0.04 0.22 0.13 0.07 0.07 0.07 0.10 0.10 0.10
2500 -0.05 0.23 0.14 0.08 0.08 0.08 0.11 0.11 0.11

528150-YTG-G-1210
Johnson Controls Unitary Products 101
Additional Static Resistance - ZH/ZR078 thru 150
Size
(Tons) Model CFM Cooling Only1
1. Add these values to the available static resistance in the respective Blower Performance Tables.
Economizer2 3
2. Deduct these values from the available external static pressure shown in the respective Blower Performance Tables.
3. The pressure drop through the economizer is greater for 100% outdoor air than for 100% return air. If the resistance of the return air duct
is less than 0.25 IWG, the unit will deliver less CFM during full economizer operation.
4” Filter2Electric Heat kW2
09 18 24 36 54
078 (6.5)
090 (7.5) ZJ/ZR
1900 0.00 0.07 0.10 0.05 0.06 0.07 0.08 0.10
2100 -0.01 0.09 0.11 0.06 0.07 0.08 0.09 0.11
2300 -0.01 0.11 0.12 0.07 0.08 0.09 0.10 0.13
2500 -0.02 0.13 0.14 0.08 0.09 0.10 0.11 0.14
2700 -0.03 0.16 0.15 0.09 0.10 0.12 0.13 0.16
2900 -0.04 0.18 0.16 0.10 0.11 0.13 0.14 0.18
3100 -0.05 0.20 0.18 0.12 0.13 0.15 0.16 0.20
3300 -0.06 0.22 0.19 0.13 0.14 0.17 0.18 0.22
3500 -0.07 0.24 0.20 0.15 0.16 0.19 0.20 0.24
3700 -0.08 0.27 0.21 0.17 0.18 0.21 0.22 0.26
3900 -0.09 0.29 0.23 0.19 0.20 0.23 0.24 0.28
4100 -0.09 0.31 0.24 0.21 0.22 0.25 0.26 0.31
4300 -0.10 0.30 0.25 0.23 0.24 0.28 0.29 0.34
4500 -0.11 0.35 0.26 0.25 0.26 0.30 0.31 0.37
102 (8.5)
120 (10)
150 (12.5)
ZJ/ZR
1900 0.06 0.02 0.12 0.05 0.06 0.07 0.08 0.10
2100 0.07 0.02 0.13 0.06 0.07 0.08 0.09 0.11
2300 0.08 0.02 0.14 0.07 0.08 0.09 0.10 0.13
2500 0.09 0.02 0.16 0.08 0.09 0.10 0.11 0.14
2700 0.11 0.03 0.17 0.09 0.10 0.12 0.13 0.16
2900 0.12 0.03 0.19 0.10 0.11 0.13 0.14 0.18
3100 0.14 0.03 0.20 0.12 0.13 0.15 0.16 0.20
3300 0.16 0.03 0.22 0.13 0.14 0.17 0.18 0.22
3500 0.18 0.04 0.25 0.15 0.16 0.19 0.20 0.24
3700 0.20 0.04 0.27 0.17 0.18 0.21 0.22 0.26
3900 0.23 0.04 0.29 0.19 0.20 0.23 0.24 0.28
4100 0.25 0.04 0.32 0.21 0.22 0.25 0.26 0.31
4300 0.28 0.05 0.35 0.23 0.24 0.28 0.29 0.34
4500 0.30 0.05 0.38 0.25 0.26 0.30 0.31 0.37
4700 0.33 0.05 0.41 0.28 0.29 0.33 0.34 0.40
4900 0.36 0.05 0.44 0.30 0.31 0.35 0.37 0.43
5100 0.39 0.06 0.47 0.33 0.34 0.38 0.40 0.46
5300 0.42 0.06 0.51 0.35 0.37 0.41 0.43 0.49
5500 0.45 0.06 0.56 0.38 0.40 0.44 0.46 0.53
5700 0.48 0.06 0.58 0.41 0.43 0.47 0.49 0.56
5900 0.52 0.07 0.62 0.44 0.46 0.50 0.53 0.59
6100 0.56 0.07 0.67 0.47 0.49 0.53 0.56 0.62
6300 0.60 0.07 0.71 0.50 0.53 0.56 0.59 0.65

528150-YTG-G-1210
102 Johnson Controls Unitary Products
Additional Static Resistance - ZJ078-150
Size
(Tons) Model CFM Cooling Only1
1. Add these values to the available static resistance in the respective Blower Performance Tables.
Economizer2,3
2. Deduct these values from the available external static pressure shown in the respective Blower Performance Tables.
3. The pressure drop through the economizer is greater for 100% outdoor air than for 100% return air. If the resistance of the return air duct is
less than 0.25 IWG, the unit will deliver less CFM during full economizer operation.
4” Filter2Electric Heat kW2
9 18243654
078 (6.5)
090 (7.5)
102 (8.5)
120 (10)
150 (12.5)
ZJ
1900 0.06 0.02 0.12 0.05 0.06 0.07 0.08 0.10
2100 0.07 0.02 0.13 0.06 0.07 0.08 0.09 0.11
2300 0.08 0.02 0.14 0.07 0.08 0.09 0.10 0.13
2500 0.09 0.02 0.16 0.08 0.09 0.10 0.11 0.14
2700 0.11 0.03 0.17 0.09 0.10 0.12 0.13 0.16
2900 0.12 0.03 0.19 0.10 0.11 0.13 0.14 0.18
3100 0.14 0.03 0.20 0.12 0.13 0.15 0.16 0.20
3300 0.16 0.03 0.22 0.13 0.14 0.17 0.18 0.22
3500 0.18 0.04 0.26 0.15 0.16 0.19 0.20 0.24
3700 0.20 0.04 0.27 0.17 0.18 0.21 0.22 0.26
3900 0.23 0.04 0.29 0.19 0.20 0.23 0.24 0.28
4100 0.25 0.04 0.32 0.21 0.22 0.25 0.26 0.31
4300 0.28 0.05 0.35 0.23 0.24 0.28 0.29 0.34
4500 0.30 0.05 0.38 0.25 0.26 0.30 0.31 0.37
4700 0.33 0.05 0.41 0.28 0.29 0.33 0.34 0.40
4900 0.36 0.05 0.44 0.30 0.31 0.35 0.37 0.43
5100 0.39 0.06 0.47 0.33 0.34 0.38 0.40 0.46
5300 0.42 0.06 0.51 0.35 0.37 0.41 0.43 0.49
5500 0.45 0.06 0.55 0.38 0.40 0.44 0.46 0.53
5700 0.48 0.06 0.58 0.41 0.43 0.47 0.49 0.56
5900 0.52 0.07 0.62 0.44 0.46 0.50 0.53 0.59
6100 0.56 0.07 0.67 0.47 0.49 0.53 0.56 0.62
6300 0.60 0.07 0.71 0.50 0.53 0.56 0.59 0.65

528150-YTG-G-1210
Johnson Controls Unitary Products 103
Gas Heat Minimum Supply Air
Size
(Tons) Model Heat Size
Supply Air (CFM)
Heating
Min Max
037
(3) ZH/ZJ/ZR
A05 / N05 890 2220
A07 / N07 915 2370
A09 / N09 1130 1800
049
(4) ZH/ZJ/ZR
A05 / N05 890 2220
A07 / N07 915 2370
A09 / N09 1290 2250
061
(5) ZH/ZJ/ZR
A07 / N07 915 2370
A09 / N09 1380 2570
A13 / N13 1580 2630
078
(6.5) ZH/ZJ/ZR 10 1950 3250
15 1950 3250
090
(7.5) ZH/ZJ/ZR 10 2250 3750
15 2250 3750
102
(8.5) ZH/ZJ/ZR 10 2550 4250
15 2550 4250
120
(10) ZH/ZJ/ZR 15 3000 5000
20 3000 5000
150
(12.5) ZH/ZJ/ZR 15 3750 6250
20 3750 6250
Electric Heat Minimum Supply Air
3 thru 5 Tons
Size
(Tons) Model Voltage
Minimum Supply Air (CFM)
Heater kW
369152024
037
(3) ZH/ZJ/ZR
208/230-3-60 960 960 1020 1020 - -
460-3-60 980 960 960 960 - -
600-3-60 - - 960 960 - -
049
(4) ZH/ZJ/ZR
208/230-3-60 - 1280 1420 1420 1420 -
460-3-60 - 1400 1400 1400 1400 -
600-3-60 - - 1400 1400 1400 -
061
(5) ZH/ZJ/ZR
208/230-3-60 - 1600 1600 1600 1600 1600
460-3-60 - 1600 1600 1600 1600 1600
600-3-60 - - 1600 1600 1600 1600
6-1/2 thru 12-1/5 Tons
Size
(Tons) Model Voltage
Minimum Supply Air (CFM)
Heater kW
9 18243654
078
(6.5) ZH/ZJ/ZR
208/230-3-60 1950 1950 1950 1950 -
460-3-60 1950 1950 1950 1950 -
600-3-60 1950 1950 1950 1950 -
090
(7.5) ZH/ZJ/ZR
208/230-3-60 2250 2250 2250 2250 -
460-3-60 2250 2250 2250 2250 -
600-3-60 2250 2250 2250 2250 -
102
(8.5) ZH/ZJ/ZR
208/230-3-60 2550 2550 2550 2550 -
460-3-60 2550 2550 2550 2550 -
600-3-60 2550 2550 2550 2550 -
120
(10) ZH/ZJ/ZR
208/230-3-60 - 3000 3000 3000 3500
460-3-60 - 3000 3000 3000 3000
600-3-60 - 3000 3000 3000 3500
150
(12.5) ZH/ZJ/ZR
208/230-3-60 - 3750 3750 3750 4000
460-3-60 - 3750 3750 3750 3750
600-3-60 - 3750 3750 3750 3750

528150-YTG-G-1210
104 Johnson Controls Unitary Products
Airflow Performance
ZH037-150 Side Duct Application
ZH037 (3.0 Ton) Side Duct
Air Flow
(CFM)
Available External Static Pressure - IWG1
1. Blower performance includes gas heat exchangers and 2” filters. See STATIC RESISTANCE table for additional applications.
2. See RPM SELECTION table to determine desired motor sheave setting and to determine the maximum continuous BHP.
3. kW = BHP x 0.932.
0.2 0.4 0.6 0.8 1.0 1.2 1.4 1.6 1.8 2.0
RPM BHP RPM BHP RPM BHP RPM BHP RPM BHP RPM BHP RPM BHP RPM BHP RPM BHP RPM BHP
Standard 1.5 HP & Drive Hi Static 1.5 HP & Drive
900 560 0.29 628 0.35 695 0.42 760 0.51 823 0.61 886 0.72 949 0.82 1011 0.92 1073 1.01 1136 1.09
1000 582 0.29 650 0.34 716 0.42 781 0.51 845 0.61 908 0.71 970 0.82 1032 0.92 1095 1.01 1158 1.08
1100 601 0.30 670 0.35 736 0.43 801 0.52 864 0.62 927 0.72 990 0.83 1052 0.93 1114 1.02 1177 1.09
1200 620 0.32 688 0.37 754 0.45 819 0.54 883 0.64 946 0.74 1008 0.85 1070 0.95 1133 1.04 1196 1.11
1300 638 0.35 706 0.40 772 0.48 837 0.57 901 0.67 964 0.77 1026 0.88 1088 0.98 1151 1.06 1214 1.14
1400 655 0.39 724 0.44 790 0.51 855 0.60 918 0.70 981 0.81 1044 0.91 1106 1.01 1168 1.10 1231 1.18
1500 673 0.43 741 0.48 807 0.56 872 0.65 936 0.75 999 0.85 1061 0.96 1124 1.06 1186 1.15 1249 1.22
1.5 HP & Field Supplied Drive
ZH049 (4.0 Ton) Side Duct
Air Flow
(CFM)
Available External Static Pressure - IWG1
1. Blower performance includes gas heat exchangers and 2” filters. See STATIC RESISTANCE table for additional applications.
2. See RPM SELECTION table to determine desired motor sheave setting and to determine the maximum continuous BHP.
3. kW = BHP x 0.932.
4. Field Supplied Drive.
0.2 0.4 0.6 0.8 1.0 1.2 1.4 1.6 1.8 2.0
RPM BHP RPM BHP RPM BHP RPM BHP RPM BHP RPM BHP RPM BHP RPM BHP RPM BHP RPM BHP
FS4Standard 1.5 HP & Drive Hi Static 1.5 HP & Drive
1200 620 0.32 688 0.37 754 0.45 819 0.54 883 0.64 946 0.74 1008 0.85 1070 0.95 1133 1.04 1196 1.11
1300 638 0.35 706 0.40 772 0.48 837 0.57 901 0.67 964 0.77 1026 0.88 1088 0.98 1151 1.06 1214 1.14
1400 655 0.39 724 0.44 790 0.51 855 0.60 918 0.70 981 0.81 1044 0.91 1106 1.01 1168 1.10 1231 1.18
1500 673 0.43 741 0.48 807 0.56 872 0.65 936 0.75 999 0.85 1061 0.96 1124 1.06 1186 1.15 1249 1.22
1600 691 0.48 759 0.54 825 0.61 890 0.70 954 0.80 1017 0.90 1079 1.01 1141 1.11 1204 1.20 1267 1.27
1700 709 0.54 777 0.59 843 0.67 908 0.76 972 0.86 1035 0.96 1097 1.07 1160 1.17 1222 1.26 1285 1.33
1800 728 0.60 796 0.66 862 0.73 927 0.82 991 0.92 1053 1.03 1116 1.13 1178 1.23 1241 1.32 1303 1.39
1900 747 0.67 815 0.73 881 0.80 946 0.89 1010 0.99 1073 1.09 1135 1.20 1197 1.30 1260 1.39 1323 1.46
2000 766 0.75 834 0.80 901 0.87 966 0.96 1029 1.06 1092 1.17 1155 1.27 1217 1.37 1279 1.46 - -
ZH061 (5.0 Ton) Side Duct
Air Flow
(CFM)
Available External Static Pressure - IWG1
1. Blower performance includes gas heat exchangers and 2” filters. See STATIC RESISTANCE table for additional applications.
2. See RPM SELECTION table to determine desired motor sheave setting and to determine the maximum continuous BHP.
3. kW = BHP x 0.932.
4. Field Supplied Drive.
0.2 0.4 0.6 0.8 1.0 1.2 1.4 1.6 1.8 2.0
RPM BHP RPM BHP RPM BHP RPM BHP RPM BHP RPM BHP RPM BHP RPM BHP RPM BHP RPM BHP
1.5 HP & Field Supplied Drive Standard 1.5 HP & Drive Hi Static 2 HP & Drive
1500 659 0.35 719 0.46 780 0.57 843 0.67 905 0.77 964 0.87 1020 0.97 1071 1.07 1116 1.17 1154 1.28
1600 675 0.38 735 0.50 796 0.60 859 0.71 920 0.81 980 0.91 1036 1.01 1087 1.11 1132 1.21 1170 1.32
1700 691 0.42 751 0.54 812 0.64 875 0.75 936 0.85 996 0.95 1052 1.05 1103 1.15 1148 1.25 1186 1.36
1800 707 0.47 767 0.58 829 0.69 891 0.79 953 0.90 1012 0.99 1069 1.09 1120 1.20 1165 1.30 1202 1.41
1900 724 0.53 784 0.64 846 0.75 908 0.85 970 0.95 1029 1.05 1085 1.15 1137 1.25 1182 1.35 1219 1.46
2000 741 0.59 801 0.70 863 0.81 925 0.91 987 1.01 1047 1.11 1103 1.21 1154 1.31 1199 1.41 1236 1.52
2100 759 0.65 819 0.77 881 0.87 943 0.98 1005 1.08 1065 1.18 1121 1.28 1172 1.38 1217 1.48 1254 1.59
2200 778 0.73 838 0.84 900 0.95 962 1.05 1024 1.15 1083 1.25 1139 1.35 1191 1.45 1236 1.56 1273 1.66
2300 797 0.81 857 0.92 919 1.03 981 1.13 1043 1.23 1103 1.33 1159 1.43 1210 1.53 1255 1.64 1292 1.74
2400 817 0.90 877 1.01 939 1.12 1002 1.22 1063 1.32 1123 1.42 1179 1.52 1230 1.62 1275 1.73 1312 1.83
2500 838 1.00 898 1.11 960 1.22 1022 1.32 1084 1.42 1144 1.52 1200 1.62 1251 1.72 1296 1.82 1333 1.93
FS4

528150-YTG-G-1210
Johnson Controls Unitary Products 105
ZH078 (6.5 Ton) Side Duct
Air Flow
(CFM)
Available External Static Pressure - IWG1
1. Blower performance includes gas heat exchangers and 2” filters. See STATIC RESISTANCE table for additional applications.
2. See RPM SELECTION table to determine desired motor sheave setting and to determine the maximum continuous BHP.
3. kW = BHP x 0.932.
0.2 0.4 0.6 0.8 1.0 1.2 1.4 1.6 1.8 2.0
RPM BHP RPM BHP RPM BHP RPM BHP RPM BHP RPM BHP RPM BHP RPM BHP RPM BHP RPM BHP
Field Supplied Drive Standard 1.5 HP & Drive Hi Static 2 HP & Drive
1800 751 0.22 813 0.43 872 0.62 929 0.78 985 0.93 1040 1.07 1095 1.20 1150 1.33 1206 1.46 1265 1.59
2000 776 0.35 838 0.56 897 0.75 954 0.92 1010 1.07 1064 1.20 1119 1.33 1175 1.46 1231 1.59 1289 1.72
2200 804 0.50 866 0.71 925 0.90 982 1.06 1038 1.21 1092 1.35 1147 1.48 1203 1.61 1259 1.73 1317 1.87
2400 835 0.66 897 0.87 956 1.06 1013 1.22 1069 1.37 1124 1.51 1178 1.64 1234 1.77 1290 1.90 1348 2.03
2600 869 0.84 931 1.05 990 1.24 1047 1.40 1103 1.55 1158 1.69 1212 1.82 1268 1.95 1324 2.07 1382 2.21
2800 906 1.03 968 1.25 1027 1.43 1084 1.60 1139 1.75 1194 1.89 1249 2.02 1304 2.14 1361 2.27 - -
3000 945 1.25 1007 1.46 1066 1.65 1123 1.81 1179 1.96 1234 2.10 1288 2.23 - -----
3200 987 1.48 1048 1.69 1107 1.88 1165 2.04 1220 2.19 - - - - - -----
340010301.7310921.9411512.1212082.29------------
2 HP & Field Supplied Drive
ZH090 (7.5 Ton) Side Duct
Air Flow
(CFM)
Available External Static Pressure - IWG1
1. Blower performance includes gas heat exchangers and 2” filters. See STATIC RESISTANCE table for additional applications.
2. See RPM SELECTION table to determine desired motor sheave setting and to determine the maximum continuous BHP.
3. kW = BHP x 0.932.
0.2 0.4 0.6 0.8 1.0 1.2 1.4 1.6 1.8 2.0
RPM BHP RPM BHP RPM BHP RPM BHP RPM BHP RPM BHP RPM BHP RPM BHP RPM BHP RPM BHP
Field Supplied Drive Standard 1.5 HP & Drive Hi Static 3 HP & Drive
2000 776 0.35 838 0.56 897 0.75 954 0.92 1010 1.07 1064 1.20 1119 1.33 1175 1.46 1231 1.59 1289 1.72
2200 804 0.50 866 0.71 925 0.90 982 1.06 1038 1.21 1092 1.35 1147 1.48 1203 1.61 1259 1.73 1317 1.87
2400 835 0.66 897 0.87 956 1.06 1013 1.22 1069 1.37 1124 1.51 1178 1.64 1234 1.77 1290 1.90 1348 2.03
2600 869 0.84 931 1.05 990 1.24 1047 1.40 1103 1.55 1158 1.69 1212 1.82 1268 1.95 1324 2.07 1382 2.21
2800 906 1.03 968 1.25 1027 1.43 1084 1.60 1139 1.75 1194 1.89 1249 2.02 1304 2.14 1361 2.27 1419 2.40
3000 945 1.25 1007 1.46 1066 1.65 1123 1.81 1179 1.96 1234 2.10 1288 2.23 1344 2.36 1400 2.48 1458 2.62
3200 987 1.48 1048 1.69 1107 1.88 1165 2.04 1220 2.19 1275 2.33 1330 2.46 1385 2.59 1442 2.71 1500 2.85
3400 1030 1.73 1092 1.94 1151 2.12 1208 2.29 1264 2.44 1319 2.58 1374 2.71 1429 2.84 1485 2.96 1544 3.10
3600 1076 1.99 1138 2.20 1197 2.39 1254 2.56 1310 2.71 1364 2.84 1419 2.97 1475 3.10 1531 3.23 1589 3.36
3800 1124 2.27 1185 2.48 1245 2.67 1302 2.84 1357 2.99 1412 3.12 1467 3.25 1522 3.38 ----
3 HP & Field Supplied Drive
ZH102 (8.5 Ton) Side Duct
Air Flow
(CFM)
Available External Static Pressure - IWG1
1. Blower performance includes gas heat exchangers and 2” filters. See STATIC RESISTANCE table for additional applications.
2. See RPM SELECTION table to determine desired motor sheave setting and to determine the maximum continuous BHP.
3. kW = BHP x 0.932.
0.2 0.4 0.6 0.8 1.0 1.2 1.4 1.6 1.8 2.0
RPM BHP RPM BHP RPM BHP RPM BHP RPM BHP RPM BHP RPM BHP RPM BHP RPM BHP RPM BHP
Field Supplied Drive Standard 2 HP & Drive Hi Static 3 HP & Drive
2600 628 0.56 678 0.76 730 0.93 781 1.09 833 1.25 883 1.41 933 1.59 980 1.80 1025 2.05 1068 2.35
2800 648 0.67 698 0.87 750 1.04 801 1.20 853 1.36 903 1.52 953 1.70 1000 1.91 1046 2.16 1088 2.46
3000 666 0.80 717 1.00 768 1.17 820 1.33 871 1.49 922 1.65 971 1.83 1019 2.04 1064 2.29 1106 2.59
3200 684 0.95 735 1.15 786 1.32 838 1.48 889 1.63 940 1.80 989 1.98 1037 2.19 1082 2.44 1124 2.74
3400 702 1.11 753 1.31 804 1.48 856 1.64 907 1.79 958 1.96 1007 2.14 1055 2.35 1100 2.60 1142 2.90
3600 721 1.28 772 1.48 824 1.65 875 1.81 927 1.97 977 2.13 1027 2.31 1074 2.52 1119 2.77 - -
3800 742 1.47 793 1.67 844 1.84 896 2.00 947 2.15 998 2.32 1047 2.50 1095 2.71 1140 2.96 - -
4000 765 1.67 815 1.86 867 2.04 918 2.19 970 2.35 1020 2.51 1070 2.70 1117 2.91 ----
4200 789 1.87 840 2.07 891 2.24 943 2.40 995 2.56 1045 2.72 1094 2.90 - -----
3 HP & Field Supplied Drive

528150-YTG-G-1210
106 Johnson Controls Unitary Products
ZH120 (10 Ton) Side Duct
Air Flow
(CFM)
Available External Static Pressure - IWG1
1. Blower performance includes gas heat exchangers and 2” filters. See STATIC RESISTANCE table for additional applications.
2. See RPM SELECTION table to determine desired motor sheave setting and to determine the maximum continuous BHP.
3. kW = BHP x 0.932.
0.2 0.4 0.6 0.8 1.0 1.2 1.4 1.6 1.8 2.0
RPM BHP RPM BHP RPM BHP RPM BHP RPM BHP RPM BHP RPM BHP RPM BHP RPM BHP RPM BHP
Field Supplied Drive Standard 2 HP & Drive Hi Static 3 HP & Drive
2600 675 0.53 726 0.74 776 0.94 824 1.12 870 1.30 914 1.48 957 1.65 1000 1.82 1041 1.99 1082 2.17
2800 686 0.63 738 0.84 787 1.04 835 1.23 881 1.41 925 1.58 969 1.76 1011 1.93 1052 2.10 1093 2.27
3000 699 0.75 750 0.96 800 1.16 847 1.34 893 1.52 938 1.70 981 1.87 1024 2.04 1065 2.21 1106 2.39
3200 713 0.88 764 1.09 814 1.28 861 1.47 907 1.65 952 1.83 995 2.00 1037 2.17 1079 2.34 1119 2.52
3400 728 1.02 779 1.23 829 1.43 877 1.61 923 1.79 967 1.97 1010 2.14 1053 2.31 1094 2.48 1135 2.66
3600 745 1.18 796 1.39 846 1.59 893 1.77 939 1.95 984 2.13 1027 2.30 1069 2.47 1111 2.64 1152 2.82
3800 763 1.36 815 1.57 864 1.76 912 1.95 958 2.13 1002 2.31 1046 2.48 1088 2.65 1129 2.82 1170 3.00
4000 783 1.55 835 1.76 884 1.96 932 2.15 978 2.33 1022 2.50 1066 2.67 1108 2.84 1149 3.02 1190 3.19
4200 805 1.77 856 1.98 906 2.17 953 2.36 999 2.54 1044 2.72 1087 2.89 1129 3.06 1171 3.23 1211 3.41
4400 828 2.00 879 2.21 929 2.41 976 2.59 1022 2.77 1067 2.95 1110 3.12 1152 3.29 ----
4600 852 2.25 904 2.46 953 2.66 1001 2.85 1047 3.03 1092 3.20 1135 3.37 - -----
4800 879 2.52 930 2.73 980 2.93 1027 3.12 1073 3.30 - - - - - -----
50009062.819583.0210073.2210553.41------------
3 HP & Field Supplied Drive
ZH150 (12.5 Ton) Side Duct
Air Flow
(CFM)
Available External Static Pressure - IWG1
1. Blower performance includes gas heat exchangers and 2” filters. See STATIC RESISTANCE table for additional applications.
2. See RPM SELECTION table to determine desired motor sheave setting and to determine the maximum continuous BHP.
3. kW = BHP x 0.932.
0.2 0.4 0.6 0.8 1.0 1.2 1.4 1.6 1.8 2.0
RPM BHP RPM BHP RPM BHP RPM BHP RPM BHP RPM BHP RPM BHP RPM BHP RPM BHP RPM BHP
Field Supplied Drive Standard 3 HP & Drive
3200 713 0.88 764 1.09 814 1.28 861 1.47 907 1.65 952 1.83 995 2.00 1037 2.17 1079 2.34 1119 2.52
3400 728 1.02 779 1.23 829 1.43 877 1.61 923 1.79 967 1.97 1010 2.14 1053 2.31 1094 2.48 1135 2.66
3600 745 1.18 796 1.39 846 1.59 893 1.77 939 1.95 984 2.13 1027 2.30 1069 2.47 1111 2.64 1152 2.82
3800 763 1.36 815 1.57 864 1.76 912 1.95 958 2.13 1002 2.31 1046 2.48 1088 2.65 1129 2.82 1170 3.00
4000 783 1.55 835 1.76 884 1.96 932 2.15 978 2.33 1022 2.50 1066 2.67 1108 2.84 1149 3.02 1190 3.19
4200 805 1.77 856 1.98 906 2.17 953 2.36 999 2.54 1044 2.72 1087 2.89 1129 3.06 1171 3.23 1211 3.41
4400 828 2.00 879 2.21 929 2.41 976 2.59 1022 2.77 1067 2.95 1110 3.12 1152 3.29 1194 3.46 1235 3.64
4600 852 2.25 904 2.46 953 2.66 1001 2.85 1047 3.03 1092 3.20 1135 3.37 1177 3.54 1219 3.72 1259 3.89
4800 879 2.52 930 2.73 980 2.93 1027 3.12 1073 3.30 1118 3.47 1161 3.65 1203 3.82 1245 3.99 1285 4.16
5000 906 2.81 958 3.02 1007 3.22 1055 3.41 1101 3.59 1146 3.76 1189 3.94 1231 4.11 1273 4.28 1313 4.45
5200 936 3.12 987 3.33 1037 3.53 1084 3.72 1130 3.90 1175 4.07 1218 4.24 1260 4.42 1302 4.59 1343 4.76
5400 966 3.45 1018 3.66 1067 3.86 1115 4.05 1161 4.23 1206 4.40 1249 4.57 1291 4.74 1333 4.91 1373 5.09
5600 999 3.80 1050 4.01 1100 4.20 1147 4.39 1193 4.57 1238 4.75 1281 4.92 1323 5.09 1365 5.26 1405 5.44
5800 1032 4.16 1084 4.37 1133 4.57 1181 4.75 1227 4.93 1271 5.11 1315 5.28 1357 5.45 1398 5.62 - -
6000 1067 4.54 1119 4.75 1168 4.95 1216 5.13 1262 5.31 1306 5.49 1350 5.66 - -----
6200 1103 4.94 1155 5.15 1204 5.34 1252 5.53 1298 5.71 - - - - - -----
Hi Static 5 HP & Drive 5 HP & Field Supplied Drive

528150-YTG-G-1210
Johnson Controls Unitary Products 107
ZH037-150 Bottom Duct Application
ZH037 (3.0 Ton) Bottom Duct
Air Flow
(CFM)
Available External Static Pressure - IWG1
1. Blower performance includes gas heat exchangers and 2” filters. See STATIC RESISTANCE table for additional applications.
2. See RPM SELECTION table to determine desired motor sheave setting and to determine the maximum continuous BHP.
3. kW = BHP x 0.932.
0.2 0.4 0.6 0.8 1.0 1.2 1.4 1.6 1.8 2.0
RPM BHP RPM BHP RPM BHP RPM BHP RPM BHP RPM BHP RPM BHP RPM BHP RPM BHP RPM BHP
Standard 1.5 HP & Drive Hi Static 1.5 HP & Drive
900 605 0.23 671 0.33 738 0.42 804 0.52 869 0.62 933 0.71 995 0.80 1054 0.89 1111 0.98 1164 1.07
1000 621 0.25 688 0.34 754 0.44 820 0.53 885 0.63 949 0.72 1011 0.82 1071 0.91 1127 1.00 1180 1.09
1100 637 0.27 703 0.36 769 0.46 835 0.56 900 0.65 964 0.74 1026 0.84 1086 0.93 1142 1.02 1195 1.11
1200 651 0.30 717 0.39 784 0.49 850 0.58 915 0.68 979 0.77 1041 0.87 1100 0.96 1157 1.05 1210 1.13
1300 666 0.33 732 0.43 799 0.52 865 0.62 930 0.71 994 0.81 1056 0.90 1115 0.99 1172 1.08 1225 1.17
1400 681 0.37 747 0.47 814 0.56 880 0.66 945 0.75 1009 0.85 1071 0.94 1130 1.03 1187 1.12 1240 1.21
1500 697 0.42 763 0.51 830 0.61 896 0.71 961 0.80 1025 0.90 1087 0.99 1146 1.08 1203 1.17 1256 1.26
1.5 HP & Field Supplied Drive
ZH049 (4.0 Ton) Bottom Duct
Air Flow
(CFM)
Available External Static Pressure - IWG1
1. Blower performance includes gas heat exchangers and 2” filters. See STATIC RESISTANCE table for additional applications.
2. See RPM SELECTION table to determine desired motor sheave setting and to determine the maximum continuous BHP.
3. kW = BHP x 0.932.
4. Field Supplied Drive.
0.2 0.4 0.6 0.8 1.0 1.2 1.4 1.6 1.8 2.0
RPM BHP RPM BHP RPM BHP RPM BHP RPM BHP RPM BHP RPM BHP RPM BHP RPM BHP RPM BHP
FS4Standard 1.5 HP & Drive Hi Static 1.5 HP & Drive
1200 651 0.30 717 0.39 784 0.49 850 0.58 915 0.68 979 0.77 1041 0.87 1100 0.96 1157 1.05 1210 1.13
1300 666 0.33 732 0.43 799 0.52 865 0.62 930 0.71 994 0.81 1056 0.90 1115 0.99 1172 1.08 1225 1.17
1400 681 0.37 747 0.47 814 0.56 880 0.66 945 0.75 1009 0.85 1071 0.94 1130 1.03 1187 1.12 1240 1.21
1500 697 0.42 763 0.51 830 0.61 896 0.71 961 0.80 1025 0.90 1087 0.99 1146 1.08 1203 1.17 1256 1.26
1600 714 0.47 780 0.57 846 0.66 913 0.76 978 0.86 1042 0.95 1103 1.04 1163 1.14 1220 1.22 1273 1.31
1700 732 0.53 798 0.63 864 0.73 930 0.82 996 0.92 1059 1.01 1121 1.10 1181 1.20 1237 1.29 1291 1.37
1800 751 0.60 817 0.70 883 0.79 950 0.89 1015 0.98 1079 1.08 1140 1.17 1200 1.26 1257 1.35 1310 1.44
1900 771 0.68 837 0.77 904 0.87 970 0.96 1035 1.06 1099 1.15 1161 1.25 1220 1.34 1277 1.43 - -
2000 793 0.75 859 0.85 925 0.95 991 1.04 1056 1.14 1120 1.23 1182 1.32 1242 1.42 1298 1.51 - -
ZH061 (5.0 Ton) Bottom Duct
Air Flow
(CFM)
Available External Static Pressure - IWG1
1. Blower performance includes gas heat exchangers and 2” filters. See STATIC RESISTANCE table for additional applications.
2. See RPM SELECTION table to determine desired motor sheave setting and to determine the maximum continuous BHP.
3. kW = BHP x 0.932.
0.2 0.4 0.6 0.8 1.0 1.2 1.4 1.6 1.8 2.0
RPM BHP RPM BHP RPM BHP RPM BHP RPM BHP RPM BHP RPM BHP RPM BHP RPM BHP RPM BHP
1.5 HP & Field Supplied Drive Standard 1.5 HP & Drive Hi Static 2 HP & Drive
1500 673 0.47 736 0.54 797 0.63 855 0.72 910 0.82 964 0.92 1016 1.03 1067 1.14 1117 1.25 1166 1.36
1600 693 0.49 756 0.57 817 0.65 874 0.75 930 0.85 984 0.95 1036 1.06 1087 1.17 1137 1.28 1186 1.39
1700 713 0.53 777 0.60 837 0.69 895 0.78 951 0.88 1004 0.98 1057 1.09 1107 1.20 1157 1.31 1207 1.42
1800 734 0.57 797 0.65 858 0.73 916 0.83 971 0.92 1025 1.03 1077 1.14 1128 1.25 1178 1.36 1228 1.47
1900 755 0.62 819 0.70 879 0.79 937 0.88 992 0.98 1046 1.08 1098 1.19 1149 1.30 1199 1.41 1249 1.52
2000 776 0.69 840 0.76 900 0.85 958 0.94 1014 1.04 1067 1.14 1120 1.25 1171 1.36 1221 1.47 1270 1.59
2100 798 0.76 861 0.84 921 0.92 979 1.02 1035 1.11 1089 1.22 1141 1.32 1192 1.44 1242 1.55 1291 1.66
2200 819 0.84 882 0.92 943 1.00 1001 1.10 1056 1.20 1110 1.30 1162 1.41 1213 1.52 1263 1.63 1312 1.74
2300 840 0.93 903 1.01 964 1.10 1022 1.19 1077 1.29 1131 1.39 1183 1.50 1234 1.61 1284 1.72 1334 1.83
2400 861 1.03 925 1.11 985 1.20 1043 1.29 1099 1.39 1152 1.49 1204 1.60 1255 1.71 1305 1.82 1355 1.93
2500 882 1.14 946 1.22 1006 1.30 1064 1.40 1120 1.50 1173 1.60 1226 1.71 1276 1.82 1326 1.93 1376 2.04
3 HP & Field Supplied Drive

528150-YTG-G-1210
108 Johnson Controls Unitary Products
ZH078 (6.5 Ton) Bottom Duct
Air Flow
(CFM)
Available External Static Pressure - IWG1
1. Blower performance includes gas heat exchangers and 2” filters. See STATIC RESISTANCE table for additional applications.
2. See RPM SELECTION table to determine desired motor sheave setting and to determine the maximum continuous BHP.
3. kW = BHP x 0.932.
0.2 0.4 0.6 0.8 1.0 1.2 1.4 1.6 1.8 2.0
RPM BHP RPM BHP RPM BHP RPM BHP RPM BHP RPM BHP RPM BHP RPM BHP RPM BHP RPM BHP
Field Supplied Drive Standard 1.5 HP & Drive Hi Static 2 HP & Drive
1800 775 0.31 850 0.53 924 0.72 998 0.89 1072 1.05 1147 1.20 1224 1.35 1303 1.51 1384 1.69 1469 1.89
2000 803 0.45 878 0.67 952 0.86 1026 1.03 1100 1.19 1175 1.34 1252 1.49 1331 1.65 1412 1.83 1497 2.03
2200 838 0.60 913 0.82 986 1.01 1060 1.19 1134 1.34 1210 1.49 1286 1.65 1365 1.81 1447 1.98 1532 2.18
2400 878 0.78 953 1.00 1027 1.19 1100 1.36 1174 1.52 1250 1.67 1327 1.82 1405 1.98 1487 2.16 - -
2600 923 0.98 997 1.20 1071 1.39 1145 1.56 1219 1.72 1294 1.87 1371 2.02 1450 2.18 ----
2800 971 1.20 1046 1.42 1119 1.61 1193 1.78 1267 1.94 1343 2.09 1419 2.24 - -----
3000 1023 1.44 1097 1.66 1171 1.85 1245 2.03 1319 2.18 - - - - - -----
320010771.7111511.9312252.1212992.29------------
340011331.9912082.21----------------
2 HP & Field Supplied Drive
ZH090 (7.5 Ton) Bottom Duct
Air Flow
(CFM)
Available External Static Pressure - IWG1
1. Blower performance includes gas heat exchangers and 2” filters. See STATIC RESISTANCE table for additional applications.
2. See RPM SELECTION table to determine desired motor sheave setting and to determine the maximum continuous BHP.
3. kW = BHP x 0.932.
0.2 0.4 0.6 0.8 1.0 1.2 1.4 1.6 1.8 2.0
RPM BHP RPM BHP RPM BHP RPM BHP RPM BHP RPM BHP RPM BHP RPM BHP RPM BHP RPM BHP
Field Supplied Drive Standard 1.5 HP & Drive Hi Static 3 HP & Drive
2000 803 0.45 878 0.67 952 0.86 1026 1.03 1100 1.19 1175 1.34 1252 1.49 1331 1.65 1412 1.83 1497 2.03
2200 838 0.60 913 0.82 986 1.01 1060 1.19 1134 1.34 1210 1.49 1286 1.65 1365 1.81 1447 1.98 1532 2.18
2400 878 0.78 953 1.00 1027 1.19 1100 1.36 1174 1.52 1250 1.67 1327 1.82 1405 1.98 1487 2.16 1572 2.36
2600 923 0.98 997 1.20 1071 1.39 1145 1.56 1219 1.72 1294 1.87 1371 2.02 1450 2.18 1532 2.36 1617 2.56
2800 971 1.20 1046 1.42 1119 1.61 1193 1.78 1267 1.94 1343 2.09 1419 2.24 1498 2.40 1580 2.58 1665 2.78
3000 1023 1.44 1097 1.66 1171 1.85 1245 2.03 1319 2.18 1394 2.33 1471 2.49 1550 2.65 1632 2.82 1717 3.02
3200 1077 1.71 1151 1.93 1225 2.12 1299 2.29 1373 2.45 1448 2.60 1525 2.75 1604 2.91 1686 3.09 1771 3.29
3400 1133 1.99 1208 2.21 1282 2.41 1356 2.58 1430 2.73 1505 2.88 1582 3.04 1661 3.20 1742 3.37 - -
3600 1192 2.30 1267 2.52 1341 2.71 1414 2.88 1489 3.04 1564 3.19 1641 3.34 - -----
3800 1253 2.63 1327 2.85 1401 3.04 1475 3.21 1549 3.37 - - - - - -----
3 HP & Field Supplied Drive
ZH102 (8.5 Ton) Bottom Duct
Air Flow
(CFM)
Available External Static Pressure - IWG1
1. Blower performance includes gas heat exchangers and 2” filters. See STATIC RESISTANCE table for additional applications.
2. See RPM SELECTION table to determine desired motor sheave setting and to determine the maximum continuous BHP.
3. kW = BHP x 0.932.
4. Field Supplied Drive.
0.2 0.4 0.6 0.8 1.0 1.2 1.4 1.6 1.8 2.0
RPM BHP RPM BHP RPM BHP RPM BHP RPM BHP RPM BHP RPM BHP RPM BHP RPM BHP RPM BHP
FS4Standard 2 HP & Drive Hi Static 3 HP & Drive
2600 674 0.71 731 0.88 786 1.05 838 1.24 887 1.42 933 1.59 974 1.74 1010 1.87 1040 1.97 1064 2.03
2800 689 0.86 746 1.02 801 1.20 854 1.38 903 1.56 948 1.73 989 1.88 1025 2.01 1056 2.11 1080 2.17
3000 707 1.01 764 1.17 819 1.35 872 1.53 921 1.71 966 1.88 1007 2.03 1043 2.16 1074 2.26 1098 2.32
3200 728 1.17 785 1.33 840 1.51 892 1.69 941 1.87 987 2.04 1028 2.20 1064 2.33 1094 2.42 1118 2.48
3400 751 1.34 808 1.51 863 1.68 915 1.87 964 2.05 1010 2.22 1051 2.37 1087 2.50 1117 2.60 1141 2.66
3600 776 1.53 833 1.70 888 1.87 941 2.06 990 2.24 1035 2.41 1076 2.56 1112 2.69 1142 2.79 1167 2.85
3800 804 1.74 861 1.90 916 2.08 969 2.26 1018 2.44 1063 2.61 1104 2.77 1140 2.90 1170 2.99 - -
4000 835 1.97 892 2.13 947 2.31 999 2.49 1048 2.67 1094 2.84 1135 2.99 - -----
4200 867 2.21 924 2.37 979 2.55 1032 2.73 1081 2.91 1127 3.08 - - - -----
3 HP & Field Supplied Drive

528150-YTG-G-1210
Johnson Controls Unitary Products 109
ZH120 (10 Ton) Bottom Duct
Air Flow
(CFM)
Available External Static Pressure - IWG1
1. Blower performance includes gas heat exchangers and 2” filters. See STATIC RESISTANCE table for additional applications.
2. See RPM SELECTION table to determine desired motor sheave setting and to determine the maximum continuous BHP.
3. kW = BHP x 0.932.
0.2 0.4 0.6 0.8 1.0 1.2 1.4 1.6 1.8 2.0
RPM BHP RPM BHP RPM BHP RPM BHP RPM BHP RPM BHP RPM BHP RPM BHP RPM BHP RPM BHP
Field Supplied Drive Standard 2 HP & Drive Hi Static 3 HP & Drive
2600 722 0.83 776 0.97 828 1.11 878 1.25 926 1.37 973 1.50 1018 1.62 1063 1.74 1106 1.86 1149 1.99
2800 744 0.97 798 1.12 850 1.26 900 1.39 949 1.52 995 1.64 1041 1.76 1085 1.88 1128 2.00 1171 2.13
3000 769 1.13 823 1.28 875 1.42 925 1.55 974 1.68 1020 1.80 1066 1.92 1110 2.05 1153 2.17 1196 2.29
3200 797 1.32 851 1.46 903 1.60 953 1.74 1001 1.86 1048 1.99 1093 2.11 1138 2.23 1181 2.35 1224 2.48
3400 828 1.52 882 1.67 934 1.81 983 1.94 1032 2.07 1078 2.19 1124 2.32 1168 2.44 1212 2.56 1254 2.68
3600 861 1.75 915 1.90 967 2.04 1017 2.17 1065 2.30 1112 2.42 1157 2.54 1201 2.67 1245 2.79 1287 2.91
3800 897 2.00 951 2.15 1002 2.29 1052 2.42 1101 2.55 1147 2.67 1193 2.80 1237 2.92 1280 3.04 1323 3.16
4000 935 2.27 989 2.42 1041 2.56 1091 2.69 1139 2.82 1186 2.95 1231 3.07 1275 3.19 1319 3.31 1362 3.43
4200 976 2.57 1030 2.72 1082 2.86 1132 2.99 1180 3.12 1227 3.24 1272 3.36 - -----
4400 1019 2.88 1073 3.03 1125 3.17 1175 3.30 1223 3.43 - - - - - -----
460010653.2211193.36----------------
3 HP & Field Supplied Drive
ZH150 (12.5 Ton) Bottom Duct
Air Flow
(CFM)
Available External Static Pressure - IWG1
1. Blower performance includes gas heat exchangers and 2” filters. See STATIC RESISTANCE table for additional applications.
2. See RPM SELECTION table to determine desired motor sheave setting and to determine the maximum continuous BHP.
3. kW = BHP x 0.932.
0.2 0.4 0.6 0.8 1.0 1.2 1.4 1.6 1.8 2.0
RPM BHP RPM BHP RPM BHP RPM BHP RPM BHP RPM BHP RPM BHP RPM BHP RPM BHP RPM BHP
Field Supplied Drive Standard 3 HP & Drive Hi Static 5 HP & Drive
3200 797 1.32 851 1.46 903 1.60 953 1.74 1001 1.86 1048 1.99 1093 2.11 1138 2.23 1181 2.35 1224 2.48
3400 828 1.52 882 1.67 934 1.81 983 1.94 1032 2.07 1078 2.19 1124 2.32 1168 2.44 1212 2.56 1254 2.68
3600 861 1.75 915 1.90 967 2.04 1017 2.17 1065 2.30 1112 2.42 1157 2.54 1201 2.67 1245 2.79 1287 2.91
3800 897 2.00 951 2.15 1002 2.29 1052 2.42 1101 2.55 1147 2.67 1193 2.80 1237 2.92 1280 3.04 1323 3.16
4000 935 2.27 989 2.42 1041 2.56 1091 2.69 1139 2.82 1186 2.95 1231 3.07 1275 3.19 1319 3.31 1362 3.43
4200 976 2.57 1030 2.72 1082 2.86 1132 2.99 1180 3.12 1227 3.24 1272 3.36 1316 3.48 1360 3.60 1402 3.73
4400 1019 2.88 1073 3.03 1125 3.17 1175 3.30 1223 3.43 1270 3.55 1315 3.67 1360 3.80 1403 3.92 1446 4.04
4600 1065 3.22 1119 3.36 1171 3.50 1221 3.64 1269 3.76 1316 3.89 1361 4.01 1405 4.13 1449 4.25 1491 4.38
4800 1113 3.57 1167 3.72 1219 3.86 1269 3.99 1317 4.12 1364 4.24 1409 4.36 1453 4.48 1497 4.61 1540 4.73
5000 1163 3.94 1217 4.09 1269 4.23 1319 4.36 1367 4.49 1414 4.62 1459 4.74 1504 4.86 1547 4.98 1590 5.10
5200 1216 4.34 1270 4.48 1321 4.62 1371 4.76 1420 4.88 1466 5.01 1512 5.13 1556 5.25 1600 5.37 1642 5.50
5400 1270 4.75 1324 4.89 1376 5.03 1426 5.17 1474 5.29 1521 5.42 1566 5.54 1611 5.66 ----
5600 1327 5.17 1381 5.32 1433 5.46 1483 5.59 1531 5.72 - - - - - -----
580013855.62------------------
5 HP & Field Supplied Drive

528150-YTG-G-1210
110 Johnson Controls Unitary Products
ZJ037-150 Side Duct Application
ZJ037 (3.0 Ton) Side Duct
Air Flow
(CFM)
Available External Static Pressure - IWG1
1. Blower performance includes gas heat exchangers and 2” filters. See STATIC RESISTANCE table for additional applications.
2. See RPM SELECTION table to determine desired motor sheave setting and to determine the maximum continuous BHP.
3. kW = BHP x 0.932.
0.2 0.4 0.6 0.8 1.0 1.2 1.4 1.6 1.8 2.0
RPM BHP RPM BHP RPM BHP RPM BHP RPM BHP RPM BHP RPM BHP RPM BHP RPM BHP RPM BHP
Standard 1.5 HP & Drive Hi Static 1.5 HP & Drive
900 560 0.29 628 0.35 695 0.42 760 0.51 823 0.61 886 0.72 949 0.82 1011 0.92 1073 1.01 1136 1.09
1000 582 0.29 650 0.34 716 0.42 781 0.51 845 0.61 908 0.71 970 0.82 1032 0.92 1095 1.01 1158 1.08
1100 601 0.30 670 0.35 736 0.43 801 0.52 864 0.62 927 0.72 990 0.83 1052 0.93 1114 1.02 1177 1.09
1200 620 0.32 688 0.37 754 0.45 819 0.54 883 0.64 946 0.74 1008 0.85 1070 0.95 1133 1.04 1196 1.11
1300 638 0.35 706 0.40 772 0.48 837 0.57 901 0.67 964 0.77 1026 0.88 1088 0.98 1151 1.06 1214 1.14
1400 655 0.39 724 0.44 790 0.51 855 0.60 918 0.70 981 0.81 1044 0.91 1106 1.01 1168 1.10 1231 1.18
1500 673 0.43 741 0.48 807 0.56 872 0.65 936 0.75 999 0.85 1061 0.96 1124 1.06 1186 1.15 1249 1.22
1.5 HP & Field Supplied Drive
ZJ049 (4.0 Ton) Side Duct
Air Flow
(CFM)
Available External Static Pressure - IWG1
1. Blower performance includes gas heat exchangers and 2” filters. See STATIC RESISTANCE table for additional applications.
2. See RPM SELECTION table to determine desired motor sheave setting and to determine the maximum continuous BHP.
3. kW = BHP x 0.932.
4. Field Supplied Drive
0.2 0.4 0.6 0.8 1.0 1.2 1.4 1.6 1.8 2.0
RPM BHP RPM BHP RPM BHP RPM BHP RPM BHP RPM BHP RPM BHP RPM BHP RPM BHP RPM BHP
FS4Standard 1.5 HP & Drive Hi Static 1.5 HP & Drive
1200 608 0.25 677 0.34 744 0.44 807 0.54 868 0.64 927 0.74 986 0.84 1043 0.93 1101 1.02 1160 1.10
1300 623 0.28 692 0.37 758 0.47 822 0.57 883 0.67 942 0.77 1001 0.86 1058 0.96 1116 1.04 1175 1.13
1400 637 0.31 706 0.40 772 0.50 836 0.60 897 0.70 956 0.80 1015 0.90 1072 0.99 1130 1.08 1189 1.16
1500 650 0.35 720 0.44 786 0.54 849 0.64 911 0.74 970 0.84 1028 0.93 1086 1.03 1144 1.12 1202 1.20
1600 664 0.39 734 0.49 800 0.58 863 0.68 924 0.78 984 0.88 1042 0.98 1100 1.07 1158 1.16 1216 1.24
1700 678 0.44 748 0.54 814 0.63 877 0.73 938 0.83 998 0.93 1056 1.03 1114 1.12 1172 1.21 1230 1.29
1800 693 0.50 763 0.59 829 0.69 892 0.79 953 0.89 1013 0.99 1071 1.08 1129 1.18 1186 1.26 1245 1.35
1900 708 0.56 778 0.65 844 0.75 907 0.85 968 0.95 1028 1.05 1086 1.15 1144 1.24 1202 1.33 1260 1.41
2000 725 0.62 794 0.72 860 0.82 924 0.92 985 1.02 1044 1.12 1102 1.21 1160 1.30 1218 1.39 1277 1.47
ZJ061 (5.0 Ton) Side Duct
Air Flow
(CFM)
Available External Static Pressure - IWG1
1. Blower performance includes gas heat exchangers and 2” filters. See STATIC RESISTANCE table for additional applications.
2. See RPM SELECTION table to determine desired motor sheave setting and to determine the maximum continuous BHP.
3. kW = BHP x 0.932.
4. Field Suppied Drive.
0.2 0.4 0.6 0.8 1.0 1.2 1.4 1.6 1.8 2.0
RPM BHP RPM BHP RPM BHP RPM BHP RPM BHP RPM BHP RPM BHP RPM BHP RPM BHP RPM BHP
1.5 HP & Field Suplied Drive Standard 1.5 HP & Drive Hi Static 2 HP & Drive
1500 659 0.35 719 0.46 780 0.57 843 0.67 905 0.77 964 0.87 1020 0.97 1071 1.07 1116 1.17 1154 1.28
1600 675 0.38 735 0.50 796 0.60 859 0.71 920 0.81 980 0.91 1036 1.01 1087 1.11 1132 1.21 1170 1.32
1700 691 0.42 751 0.54 812 0.64 875 0.75 936 0.85 996 0.95 1052 1.05 1103 1.15 1148 1.25 1186 1.36
1800 707 0.47 767 0.58 829 0.69 891 0.79 953 0.90 1012 0.99 1069 1.09 1120 1.20 1165 1.30 1202 1.41
1900 724 0.53 784 0.64 846 0.75 908 0.85 970 0.95 1029 1.05 1085 1.15 1137 1.25 1182 1.35 1219 1.46
2000 741 0.59 801 0.70 863 0.81 925 0.91 987 1.01 1047 1.11 1103 1.21 1154 1.31 1199 1.41 1236 1.52
2100 759 0.65 819 0.77 881 0.87 943 0.98 1005 1.08 1065 1.18 1121 1.28 1172 1.38 1217 1.48 1254 1.59
2200 778 0.73 838 0.84 900 0.95 962 1.05 1024 1.15 1083 1.25 1139 1.35 1191 1.45 1236 1.56 1273 1.66
2300 797 0.81 857 0.92 919 1.03 981 1.13 1043 1.23 1103 1.33 1159 1.43 1210 1.53 1255 1.64 1292 1.74
2400 817 0.90 877 1.01 939 1.12 1002 1.22 1063 1.32 1123 1.42 1179 1.52 1230 1.62 1275 1.73 1312 1.83
2500 838 1.00 898 1.11 960 1.22 1022 1.32 1084 1.42 1144 1.52 1200 1.62 1251 1.72 1296 1.82 1333 1.93
FS4

528150-YTG-G-1210
Johnson Controls Unitary Products 111
ZJ078 (6.5 Ton) Side Duct
Air Flow
(CFM)
Available External Static Pressure - IWG1
1. Blower performance includes gas heat exchangers and 2” filters. See STATIC RESISTANCE table for additional applications.
2. See RPM SELECTION table to determine desired motor sheave setting and to determine the maximum continuous BHP.
3. kW = BHP x 0.932.
4. Field Supplied Drive.
0.2 0.4 0.6 0.8 1.0 1.2 1.4 1.6 1.8 2.0
RPM BHP RPM BHP RPM BHP RPM BHP RPM BHP RPM BHP RPM BHP RPM BHP RPM BHP RPM BHP
FS4Standard 1.5 HP & Drive Hi Static 2 HP & Drive
1800 514 0.15 586 0.33 657 0.52 727 0.71 794 0.89 857 1.07 917 1.23 972 1.38 1021 1.50 1064 1.59
2000 529 0.23 601 0.41 672 0.60 741 0.79 808 0.97 872 1.15 931 1.31 986 1.46 1036 1.58 1079 1.67
2200 544 0.33 616 0.51 687 0.69 756 0.88 823 1.07 886 1.24 946 1.41 1001 1.55 1051 1.67 1094 1.77
2400 559 0.43 631 0.61 702 0.80 771 0.98 838 1.17 902 1.35 961 1.51 1016 1.65 1066 1.78 1109 1.87
2600 574 0.54 646 0.72 717 0.91 787 1.10 853 1.28 917 1.46 977 1.62 1032 1.77 1081 1.89 1124 1.98
2800 590 0.67 662 0.85 733 1.03 802 1.22 869 1.41 933 1.59 993 1.75 1047 1.89 1097 2.02 1140 2.11
3000 607 0.80 679 0.98 750 1.17 819 1.36 886 1.54 949 1.72 1009 1.88 1064 2.03 1113 2.15 1157 2.24
3200 624 0.95 695 1.13 766 1.31 836 1.50 903 1.69 966 1.86 1026 2.03 1081 2.17 1130 2.29 1173 2.39
3400 641 1.10 713 1.28 784 1.47 853 1.66 920 1.84 984 2.02 1043 2.18 1098 2.33 1148 2.45 1191 2.54
FS4
ZJ090 (7.5 Ton) Side Duct
Air Flow
(CFM)
Available External Static Pressure - IWG1
1. Blower performance includes gas heat exchangers and 2” filters. See STATIC RESISTANCE table for additional applications.
2. See RPM SELECTION table to determine desired motor sheave setting and to determine the maximum continuous BHP.
3. kW = BHP x 0.932.
4. Field Supplied Drive.
0.2 0.4 0.6 0.8 1.0 1.2 1.4 1.6 1.8 2.0
RPM BHP RPM BHP RPM BHP RPM BHP RPM BHP RPM BHP RPM BHP RPM BHP RPM BHP RPM BHP
FS4 Standard 1.5 HP & Drive Hi Static 3 HP & Drive
2000 - - 656 0.24 711 0.48 768 0.73 826 0.96 886 1.19 945 1.41 1003 1.61 1058 1.79 1110 1.95
2200 619 0.07 670 0.32 724 0.57 781 0.81 840 1.04 899 1.27 959 1.49 1016 1.69 1072 1.87 1124 2.04
2400 631 0.16 682 0.41 736 0.66 793 0.90 852 1.14 911 1.36 970 1.58 1028 1.78 1084 1.97 1136 2.13
2600 642 0.27 692 0.52 747 0.76 804 1.01 862 1.24 922 1.47 981 1.69 1039 1.89 1094 2.07 1146 2.24
2800 652 0.39 703 0.64 757 0.88 814 1.13 873 1.36 932 1.59 992 1.81 1049 2.01 1105 2.19 1157 2.36
3000 663 0.53 714 0.77 768 1.02 825 1.26 884 1.50 943 1.73 1003 1.94 1060 2.14 1116 2.33 1168 2.49
3200 675 0.68 726 0.92 780 1.17 837 1.41 896 1.65 955 1.88 1014 2.09 1072 2.29 1128 2.48 1180 2.64
3400 688 0.84 739 1.09 793 1.34 850 1.58 909 1.82 968 2.04 1027 2.26 1085 2.46 1141 2.65 1193 2.81
3600 703 1.03 753 1.28 807 1.52 864 1.76 923 2.00 983 2.23 1042 2.44 1100 2.64 1155 2.83 - -
3800 718 1.23 769 1.47 823 1.72 880 1.96 939 2.20 998 2.43 1058 2.64 1115 2.84 1171 3.03 - -
ZJ102 (8.5 Ton) Side Duct
Air Flow
(CFM)
Available External Static Pressure - IWG1
1. Blower performance includes gas heat exchangers and 2” filters. See STATIC RESISTANCE table for additional applications.
2. See RPM SELECTION table to determine desired motor sheave setting and to determine the maximum continuous BHP.
3. kW = BHP x 0.932.
0.2 0.4 0.6 0.8 1.0 1.2 1.4 1.6 1.8 2.0
RPM BHP RPM BHP RPM BHP RPM BHP RPM BHP RPM BHP RPM BHP RPM BHP RPM BHP RPM BHP
Field Supplied Drive Standard 2 HP & Drive Hi Static 3 HP & Drive
2200 654 0.32 706 0.53 755 0.73 803 0.92 849 1.10 893 1.27 937 1.44 979 1.62 1020 1.79 1061 1.96
2400 664 0.43 716 0.64 765 0.83 813 1.02 859 1.20 904 1.38 947 1.55 989 1.72 1030 1.89 1071 2.07
2600 675 0.53 726 0.74 776 0.94 824 1.12 870 1.30 914 1.48 957 1.65 1000 1.82 1041 1.99 1082 2.17
2800 686 0.63 738 0.84 787 1.04 835 1.23 881 1.41 925 1.58 969 1.76 1011 1.93 1052 2.10 1093 2.27
3000 699 0.75 750 0.96 800 1.16 847 1.34 893 1.52 938 1.70 981 1.87 1024 2.04 1065 2.21 1106 2.39
3200 713 0.88 764 1.09 814 1.28 861 1.47 907 1.65 952 1.83 995 2.00 1037 2.17 1079 2.34 1119 2.52
3400 728 1.02 779 1.23 829 1.43 877 1.61 923 1.79 967 1.97 1010 2.14 1053 2.31 1094 2.48 1135 2.66
3600 745 1.18 796 1.39 846 1.59 893 1.77 939 1.95 984 2.13 1027 2.30 1069 2.47 1111 2.64 1152 2.82
3800 763 1.36 815 1.57 864 1.76 912 1.95 958 2.13 1002 2.31 1046 2.48 1088 2.65 1129 2.82 1170 3.00
4000 783 1.55 835 1.76 884 1.96 932 2.15 978 2.33 1022 2.50 1066 2.67 1108 2.84 1149 3.02 1190 3.19
4200 805 1.77 856 1.98 906 2.17 953 2.36 999 2.54 1044 2.72 1087 2.89 1129 3.06 1171 3.23 1211 3.41
3 HP & Field Supplied Drive

528150-YTG-G-1210
112 Johnson Controls Unitary Products
ZJ120 (10 Ton) Side Duct
Air Flow
(CFM)
Available External Static Pressure - IWG1
1. Blower performance includes gas heat exchangers and 2” filters. See STATIC RESISTANCE table for additional applications.
2. See RPM SELECTION table to determine desired motor sheave setting and to determine the maximum continuous BHP.
3. kW = BHP x 0.932.
0.2 0.4 0.6 0.8 1.0 1.2 1.4 1.6 1.8 2.0
RPM BHP RPM BHP RPM BHP RPM BHP RPM BHP RPM BHP RPM BHP RPM BHP RPM BHP RPM BHP
Field Supplied Drive Standard 2 HP & Drive Hi Static 3 HP & Drive
2600 675 0.53 726 0.74 776 0.94 824 1.12 870 1.30 914 1.48 957 1.65 1000 1.82 1041 1.99 1082 2.17
2800 686 0.63 738 0.84 787 1.04 835 1.23 881 1.41 925 1.58 969 1.76 1011 1.93 1052 2.10 1093 2.27
3000 699 0.75 750 0.96 800 1.16 847 1.34 893 1.52 938 1.70 981 1.87 1024 2.04 1065 2.21 1106 2.39
3200 713 0.88 764 1.09 814 1.28 861 1.47 907 1.65 952 1.83 995 2.00 1037 2.17 1079 2.34 1119 2.52
3400 728 1.02 779 1.23 829 1.43 877 1.61 923 1.79 967 1.97 1010 2.14 1053 2.31 1094 2.48 1135 2.66
3600 745 1.18 796 1.39 846 1.59 893 1.77 939 1.95 984 2.13 1027 2.30 1069 2.47 1111 2.64 1152 2.82
3800 763 1.36 815 1.57 864 1.76 912 1.95 958 2.13 1002 2.31 1046 2.48 1088 2.65 1129 2.82 1170 3.00
4000 783 1.55 835 1.76 884 1.96 932 2.15 978 2.33 1022 2.50 1066 2.67 1108 2.84 1149 3.02 1190 3.19
4200 805 1.77 856 1.98 906 2.17 953 2.36 999 2.54 1044 2.72 1087 2.89 1129 3.06 1171 3.23 1211 3.41
4400 828 2.00 879 2.21 929 2.41 976 2.59 1022 2.77 1067 2.95 1110 3.12 1152 3.29 ----
4600 852 2.25 904 2.46 953 2.66 1001 2.85 1047 3.03 1092 3.20 1135 3.37 - -----
4800 879 2.52 930 2.73 980 2.93 1027 3.12 1073 3.30 - - - - - -----
50009062.819583.0210073.2210553.41------------
3 HP & Field Supplied Drive
ZJ150 (12.5 Ton) Side Duct
Air Flow
(CFM)
Available External Static Pressure - IWG1
1. Blower performance includes gas heat exchangers and 2” filters. See STATIC RESISTANCE table for additional applications.
2. See RPM SELECTION table to determine desired motor sheave setting and to determine the maximum continuous BHP.
3. kW = BHP x 0.932.
0.2 0.4 0.6 0.8 1.0 1.2 1.4 1.6 1.8 2.0
RPM BHP RPM BHP RPM BHP RPM BHP RPM BHP RPM BHP RPM BHP RPM BHP RPM BHP RPM BHP
Field Supplied Drive Standard 3 HP & Drive
3200 713 0.88 764 1.09 814 1.28 861 1.47 907 1.65 952 1.83 995 2.00 1037 2.17 1079 2.34 1119 2.52
3400 728 1.02 779 1.23 829 1.43 877 1.61 923 1.79 967 1.97 1010 2.14 1053 2.31 1094 2.48 1135 2.66
3600 745 1.18 796 1.39 846 1.59 893 1.77 939 1.95 984 2.13 1027 2.30 1069 2.47 1111 2.64 1152 2.82
3800 763 1.36 815 1.57 864 1.76 912 1.95 958 2.13 1002 2.31 1046 2.48 1088 2.65 1129 2.82 1170 3.00
4000 783 1.55 835 1.76 884 1.96 932 2.15 978 2.33 1022 2.50 1066 2.67 1108 2.84 1149 3.02 1190 3.19
4200 805 1.77 856 1.98 906 2.17 953 2.36 999 2.54 1044 2.72 1087 2.89 1129 3.06 1171 3.23 1211 3.41
4400 828 2.00 879 2.21 929 2.41 976 2.59 1022 2.77 1067 2.95 1110 3.12 1152 3.29 1194 3.46 1235 3.64
4600 852 2.25 904 2.46 953 2.66 1001 2.85 1047 3.03 1092 3.20 1135 3.37 1177 3.54 1219 3.72 1259 3.89
4800 879 2.52 930 2.73 980 2.93 1027 3.12 1073 3.30 1118 3.47 1161 3.65 1203 3.82 1245 3.99 1285 4.16
5000 906 2.81 958 3.02 1007 3.22 1055 3.41 1101 3.59 1146 3.76 1189 3.94 1231 4.11 1273 4.28 1313 4.45
5200 936 3.12 987 3.33 1037 3.53 1084 3.72 1130 3.90 1175 4.07 1218 4.24 1260 4.42 1302 4.59 1343 4.76
5400 966 3.45 1018 3.66 1067 3.86 1115 4.05 1161 4.23 1206 4.40 1249 4.57 1291 4.74 1333 4.91 1373 5.09
5600 999 3.80 1050 4.01 1100 4.20 1147 4.39 1193 4.57 1238 4.75 1281 4.92 1323 5.09 1365 5.26 1405 5.44
5800 1032 4.16 1084 4.37 1133 4.57 1181 4.75 1227 4.93 1271 5.11 1315 5.28 1357 5.45 1398 5.62 - -
6000 1067 4.54 1119 4.75 1168 4.95 1216 5.13 1262 5.31 1306 5.49 1350 5.66 - -----
6200 1103 4.94 1155 5.15 1204 5.34 1252 5.53 1298 5.71 - - - - - -----
Hi Static 5 HP & Drive 5 HP & Field Supplied Drive

528150-YTG-G-1210
Johnson Controls Unitary Products 113
ZJ037-150 Bottom Duct Application
ZJ037 (3.0 Ton) Bottom Duct
Air Flow
(CFM)
Available External Static Pressure - IWG1
1. Blower performance includes gas heat exchangers and 2” filters. See STATIC RESISTANCE table for additional applications.
2. See RPM SELECTION table to determine desired motor sheave setting and to determine the maximum continuous BHP.
3. kW = BHP x 0.932.
0.2 0.4 0.6 0.8 1.0 1.2 1.4 1.6 1.8 2.0
RPM BHP RPM BHP RPM BHP RPM BHP RPM BHP RPM BHP RPM BHP RPM BHP RPM BHP RPM BHP
Standard 1.5 HP & Drive Hi Static 1.5 HP & Drive
900 605 0.23 671 0.33 738 0.42 804 0.52 869 0.62 933 0.71 995 0.80 1054 0.89 1111 0.98 1164 1.07
1000 621 0.25 688 0.34 754 0.44 820 0.53 885 0.63 949 0.72 1011 0.82 1071 0.91 1127 1.00 1180 1.09
1100 637 0.27 703 0.36 769 0.46 835 0.56 900 0.65 964 0.74 1026 0.84 1086 0.93 1142 1.02 1195 1.11
1200 651 0.30 717 0.39 784 0.49 850 0.58 915 0.68 979 0.77 1041 0.87 1100 0.96 1157 1.05 1210 1.13
1300 666 0.33 732 0.43 799 0.52 865 0.62 930 0.71 994 0.81 1056 0.90 1115 0.99 1172 1.08 1225 1.17
1400 681 0.37 747 0.47 814 0.56 880 0.66 945 0.75 1009 0.85 1071 0.94 1130 1.03 1187 1.12 1240 1.21
1500 697 0.42 763 0.51 830 0.61 896 0.71 961 0.80 1025 0.90 1087 0.99 1146 1.08 1203 1.17 1256 1.26
1.5 HP & Field Supplied Drive
ZJ049 (4.0 Ton) Bottom Duct
Air Flow
(CFM)
Available External Static Pressure - IWG1
1. Blower performance includes gas heat exchangers and 2” filters. See STATIC RESISTANCE table for additional applications.
2. See RPM SELECTION table to determine desired motor sheave setting and to determine the maximum continuous BHP.
3. kW = BHP x 0.932.
4. Field Supplied Drive.
0.2 0.4 0.6 0.8 1.0 1.2 1.4 1.6 1.8 2.0
RPM BHP RPM BHP RPM BHP RPM BHP RPM BHP RPM BHP RPM BHP RPM BHP RPM BHP RPM BHP
FS4Standard 1.5 HP & Drive Hi Static 1.5 HP & Drive
1200 635 0.25 704 0.34 770 0.44 832 0.54 893 0.65 953 0.75 1013 0.85 1073 0.94 1134 1.02 1197 1.08
1300 648 0.28 717 0.38 782 0.47 845 0.58 906 0.68 966 0.78 1025 0.88 1085 0.97 1147 1.05 1210 1.12
1400 661 0.32 730 0.42 796 0.51 858 0.62 919 0.72 979 0.82 1039 0.92 1099 1.01 1160 1.09 1223 1.16
1500 675 0.37 744 0.46 810 0.56 872 0.66 933 0.77 993 0.87 1053 0.96 1113 1.05 1174 1.14 1237 1.20
1600 690 0.42 759 0.51 825 0.61 887 0.72 948 0.82 1008 0.92 1068 1.02 1128 1.11 1189 1.19 1252 1.26
1700 706 0.48 775 0.57 841 0.67 903 0.77 964 0.88 1024 0.98 1084 1.08 1144 1.17 1205 1.25 1268 1.31
1800 723 0.55 792 0.64 857 0.74 920 0.84 981 0.94 1041 1.04 1101 1.14 1161 1.23 1222 1.31 1285 1.38
1900 741 0.62 810 0.71 875 0.81 938 0.91 999 1.01 1059 1.11 1118 1.21 1178 1.30 1240 1.38 1303 1.45
2000 760 0.69 829 0.79 894 0.88 957 0.99 1018 1.09 1078 1.19 1137 1.29 1197 1.38 1258 1.46 1322 1.53
ZJ061 (5.0 Ton) Bottom Duct
Air Flow
(CFM)
Available External Static Pressure - IWG1
1. Blower performance includes gas heat exchangers and 2” filters. See STATIC RESISTANCE table for additional applications.
2. See RPM SELECTION table to determine desired motor sheave setting and to determine the maximum continuous BHP.
3. kW = BHP x 0.932.
0.2 0.4 0.6 0.8 1.0 1.2 1.4 1.6 1.8 2.0
RPM BHP RPM BHP RPM BHP RPM BHP RPM BHP RPM BHP RPM BHP RPM BHP RPM BHP RPM BHP
1.5 HP & Field Supplied Drive Standard 1.5 HP & Drive Hi Static 2 HP & Drive
1500 673 0.47 736 0.54 797 0.63 855 0.72 910 0.82 964 0.92 1016 1.03 1067 1.14 1117 1.25 1166 1.36
1600 693 0.49 756 0.57 817 0.65 874 0.75 930 0.85 984 0.95 1036 1.06 1087 1.17 1137 1.28 1186 1.39
1700 713 0.53 777 0.60 837 0.69 895 0.78 951 0.88 1004 0.98 1057 1.09 1107 1.20 1157 1.31 1207 1.42
1800 734 0.57 797 0.65 858 0.73 916 0.83 971 0.92 1025 1.03 1077 1.14 1128 1.25 1178 1.36 1228 1.47
1900 755 0.62 819 0.70 879 0.79 937 0.88 992 0.98 1046 1.08 1098 1.19 1149 1.30 1199 1.41 1249 1.52
2000 776 0.69 840 0.76 900 0.85 958 0.94 1014 1.04 1067 1.14 1120 1.25 1171 1.36 1221 1.47 1270 1.59
2100 798 0.76 861 0.84 921 0.92 979 1.02 1035 1.11 1089 1.22 1141 1.32 1192 1.44 1242 1.55 1291 1.66
2200 819 0.84 882 0.92 943 1.00 1001 1.10 1056 1.20 1110 1.30 1162 1.41 1213 1.52 1263 1.63 1312 1.74
2300 840 0.93 903 1.01 964 1.10 1022 1.19 1077 1.29 1131 1.39 1183 1.50 1234 1.61 1284 1.72 1334 1.83
2400 861 1.03 925 1.11 985 1.20 1043 1.29 1099 1.39 1152 1.49 1204 1.60 1255 1.71 1305 1.82 1355 1.93
2500 882 1.14 946 1.22 1006 1.30 1064 1.40 1120 1.50 1173 1.60 1226 1.71 1276 1.82 1326 1.93 1376 2.04
2 HP & Field Supplied Drive

528150-YTG-G-1210
114 Johnson Controls Unitary Products
ZJ078 (6.5 Ton) Bottom Duct
Air Flow
(CFM)
Available External Static Pressure - IWG1
1. Blower performance includes gas heat exchangers and 2” filters. See STATIC RESISTANCE table for additional applications.
2. See RPM SELECTION table to determine desired motor sheave setting and to determine the maximum continuous BHP.
3. kW = BHP x 0.932.
4. Field Supplied Drive.
0.2 0.4 0.6 0.8 1.0 1.2 1.4 1.6 1.8 2.0
RPM BHP RPM BHP RPM BHP RPM BHP RPM BHP RPM BHP RPM BHP RPM BHP RPM BHP RPM BHP
FS4Standard 1.5 HP & Drive Hi Static 2 HP & Drive
1800 603 0.13 656 0.36 718 0.58 784 0.79 851 0.98 914 1.16 968 1.31 1010 1.43 1035 1.53 1039 1.59
2000 627 0.26 680 0.49 742 0.71 808 0.92 875 1.12 937 1.29 992 1.44 1034 1.57 1059 1.66 1063 1.72
2200 650 0.40 703 0.63 765 0.85 831 1.06 898 1.25 961 1.43 1015 1.58 1057 1.71 1082 1.80 1086 1.86
2400 673 0.55 726 0.78 788 1.00 854 1.21 921 1.40 984 1.58 1038 1.73 1080 1.85 1105 1.95 1109 2.01
2600 696 0.71 749 0.94 811 1.16 878 1.37 944 1.56 1007 1.73 1061 1.89 1103 2.01 1128 2.10 1133 2.16
2800 720 0.87 773 1.10 835 1.32 902 1.53 968 1.73 1031 1.90 1085 2.05 1127 2.18 1152 2.27 1157 2.33
3000 745 1.05 798 1.28 860 1.50 926 1.71 993 1.91 1056 2.08 1110 2.23 1152 2.36 1177 2.45 1181 2.51
3200 771 1.24 824 1.47 886 1.69 952 1.90 1019 2.09 1081 2.27 1136 2.42 1178 2.54 1203 2.64 1207 2.70
3400 797 1.44 850 1.67 912 1.89 979 2.10 1045 2.29 1108 2.47 1162 2.62 1204 2.74 1229 2.84 1234 2.90
3 HP & Field Supplied Drive
ZJ090 (7.5 Ton) Bottom Duct
Air Flow
(CFM)
Available External Static Pressure - IWG1
1. Blower performance includes gas heat exchangers and 2” filters. See STATIC RESISTANCE table for additional applications.
2. See RPM SELECTION table to determine desired motor sheave setting and to determine the maximum continuous BHP.
3. kW = BHP x 0.932.
4. Field Supplied Drive.
0.2 0.4 0.6 0.8 1.0 1.2 1.4 1.6 1.8 2.0
RPM BHP RPM BHP RPM BHP RPM BHP RPM BHP RPM BHP RPM BHP RPM BHP RPM BHP RPM BHP
FS4Standard 1.5 HP & Drive Hi Static 3 HP & Drive
2000 644 0.11 698 0.38 755 0.62 814 0.85 874 1.06 933 1.26 990 1.46 1043 1.66 1090 1.87 1131 2.09
2200 666 0.26 720 0.53 777 0.77 836 1.00 896 1.21 956 1.41 1012 1.61 1065 1.81 1113 2.02 1153 2.24
2400 689 0.42 743 0.69 800 0.93 859 1.16 919 1.37 978 1.57 1035 1.77 1088 1.97 1135 2.18 1176 2.40
2600 712 0.60 766 0.87 823 1.11 882 1.34 942 1.55 1002 1.75 1058 1.95 1111 2.15 1159 2.36 1199 2.58
2800 736 0.80 790 1.06 847 1.31 906 1.53 967 1.74 1026 1.94 1082 2.14 1135 2.34 1183 2.55 1223 2.78
3000 761 1.00 815 1.27 872 1.52 931 1.74 991 1.95 1051 2.15 1107 2.35 1160 2.55 1208 2.76 1248 2.98
3200 787 1.22 840 1.49 898 1.74 957 1.96 1017 2.17 1076 2.37 1133 2.57 1186 2.77 1233 2.98 1274 3.20
3400 813 1.46 867 1.73 924 1.97 984 2.19 1044 2.40 1103 2.61 1160 2.80 1212 3.01 1260 3.21 - -
3600 841 1.70 894 1.97 952 2.21 1011 2.44 1071 2.65 1130 2.85 1187 3.05 - -----
3800 869 1.96 923 2.22 980 2.47 1039 2.69 1099 2.90 1158 3.10 1215 3.30 - -----
3 HP & Field Supplied Drive
ZJ102 (8.5 Ton) Bottom Duct
Air Flow
(CFM)
Available External Static Pressure - IWG1
1. Blower performance includes gas heat exchangers and 2” filters. See STATIC RESISTANCE table for additional applications.
2. See RPM SELECTION table to determine desired motor sheave setting and to determine the maximum continuous BHP.
3. kW = BHP x 0.932.
4. Field Supplied Drive.
0.2 0.4 0.6 0.8 1.0 1.2 1.4 1.6 1.8 2.0
RPM BHP RPM BHP RPM BHP RPM BHP RPM BHP RPM BHP RPM BHP RPM BHP RPM BHP RPM BHP
FS4Standard 2 HP & Drive Hi Static 3 HP & Drive
2200 685 0.59 739 0.74 791 0.88 841 1.01 889 1.14 936 1.27 981 1.39 1025 1.51 1069 1.63 1111 1.75
2400 702 0.70 756 0.85 808 0.99 858 1.12 906 1.25 953 1.37 999 1.49 1043 1.62 1086 1.74 1129 1.86
2600 722 0.83 776 0.97 828 1.11 878 1.25 926 1.37 973 1.50 1018 1.62 1063 1.74 1106 1.86 1149 1.99
2800 744 0.97 798 1.12 850 1.26 900 1.39 949 1.52 995 1.64 1041 1.76 1085 1.88 1128 2.00 1171 2.13
3000 769 1.13 823 1.28 875 1.42 925 1.55 974 1.68 1020 1.80 1066 1.92 1110 2.05 1153 2.17 1196 2.29
3200 797 1.32 851 1.46 903 1.60 953 1.74 1001 1.86 1048 1.99 1093 2.11 1138 2.23 1181 2.35 1224 2.48
3400 828 1.52 882 1.67 934 1.81 983 1.94 1032 2.07 1078 2.19 1124 2.32 1168 2.44 1212 2.56 1254 2.68
3600 861 1.75 915 1.90 967 2.04 1017 2.17 1065 2.30 1112 2.42 1157 2.54 1201 2.67 1245 2.79 1287 2.91
3800 897 2.00 951 2.15 1002 2.29 1052 2.42 1101 2.55 1147 2.67 1193 2.80 1237 2.92 1280 3.04 1323 3.16
4000 935 2.27 989 2.42 1041 2.56 1091 2.69 1139 2.82 1186 2.95 1231 3.07 1275 3.19 1319 3.31 1362 3.43
4200 976 2.57 1030 2.72 1082 2.86 1132 2.99 1180 3.12 1227 3.24 1272 3.36 - -----
3 HP & Field Supplied Drive

528150-YTG-G-1210
Johnson Controls Unitary Products 115
ZJ120 (10 Ton) Bottom Duct
Air Flow
(CFM)
Available External Static Pressure - IWG1
1. Blower performance includes gas heat exchangers and 2” filters. See STATIC RESISTANCE table for additional applications.
2. See RPM SELECTION table to determine desired motor sheave setting and to determine the maximum continuous BHP.
3. kW = BHP x 0.932.
0.2 0.4 0.6 0.8 1.0 1.2 1.4 1.6 1.8 2.0
RPM BHP RPM BHP RPM BHP RPM BHP RPM BHP RPM BHP RPM BHP RPM BHP RPM BHP RPM BHP
Field Supplied Drive Standard 2 HP & Drive Hi Static 3 HP & Drive
2600 722 0.83 776 0.97 828 1.11 878 1.25 926 1.37 973 1.50 1018 1.62 1063 1.74 1106 1.86 1149 1.99
2800 744 0.97 798 1.12 850 1.26 900 1.39 949 1.52 995 1.64 1041 1.76 1085 1.88 1128 2.00 1171 2.13
3000 769 1.13 823 1.28 875 1.42 925 1.55 974 1.68 1020 1.80 1066 1.92 1110 2.05 1153 2.17 1196 2.29
3200 797 1.32 851 1.46 903 1.60 953 1.74 1001 1.86 1048 1.99 1093 2.11 1138 2.23 1181 2.35 1224 2.48
3400 828 1.52 882 1.67 934 1.81 983 1.94 1032 2.07 1078 2.19 1124 2.32 1168 2.44 1212 2.56 1254 2.68
3600 861 1.75 915 1.90 967 2.04 1017 2.17 1065 2.30 1112 2.42 1157 2.54 1201 2.67 1245 2.79 1287 2.91
3800 897 2.00 951 2.15 1002 2.29 1052 2.42 1101 2.55 1147 2.67 1193 2.80 1237 2.92 1280 3.04 1323 3.16
4000 935 2.27 989 2.42 1041 2.56 1091 2.69 1139 2.82 1186 2.95 1231 3.07 1275 3.19 1319 3.31 1362 3.43
4200 976 2.57 1030 2.72 1082 2.86 1132 2.99 1180 3.12 1227 3.24 1272 3.36 - -----
4400 1019 2.88 1073 3.03 1125 3.17 1175 3.30 1223 3.43 - - - - - -----
460010653.2211193.36----------------
3 HP & Field Supplied Drive
ZJ150 (12.5 Ton) Bottom Duct
Air Flow
(CFM)
Available External Static Pressure - IWG1
1. Blower performance includes gas heat exchangers and 2” filters. See STATIC RESISTANCE table for additional applications.
2. See RPM SELECTION table to determine desired motor sheave setting and to determine the maximum continuous BHP.
3. kW = BHP x 0.932.
0.2 0.4 0.6 0.8 1.0 1.2 1.4 1.6 1.8 2.0
RPM BHP RPM BHP RPM BHP RPM BHP RPM BHP RPM BHP RPM BHP RPM BHP RPM BHP RPM BHP
Field Supplied Drive Standard 3 HP & Drive Hi Static 5 HP & Drive
3200 797 1.32 851 1.46 903 1.60 953 1.74 1001 1.86 1048 1.99 1093 2.11 1138 2.23 1181 2.35 1224 2.48
3400 828 1.52 882 1.67 934 1.81 983 1.94 1032 2.07 1078 2.19 1124 2.32 1168 2.44 1212 2.56 1254 2.68
3600 861 1.75 915 1.90 967 2.04 1017 2.17 1065 2.30 1112 2.42 1157 2.54 1201 2.67 1245 2.79 1287 2.91
3800 897 2.00 951 2.15 1002 2.29 1052 2.42 1101 2.55 1147 2.67 1193 2.80 1237 2.92 1280 3.04 1323 3.16
4000 935 2.27 989 2.42 1041 2.56 1091 2.69 1139 2.82 1186 2.95 1231 3.07 1275 3.19 1319 3.31 1362 3.43
4200 976 2.57 1030 2.72 1082 2.86 1132 2.99 1180 3.12 1227 3.24 1272 3.36 1316 3.48 1360 3.60 1402 3.73
4400 1019 2.88 1073 3.03 1125 3.17 1175 3.30 1223 3.43 1270 3.55 1315 3.67 1360 3.80 1403 3.92 1446 4.04
4600 1065 3.22 1119 3.36 1171 3.50 1221 3.64 1269 3.76 1316 3.89 1361 4.01 1405 4.13 1449 4.25 1491 4.38
4800 1113 3.57 1167 3.72 1219 3.86 1269 3.99 1317 4.12 1364 4.24 1409 4.36 1453 4.48 1497 4.61 1540 4.73
5000 1163 3.94 1217 4.09 1269 4.23 1319 4.36 1367 4.49 1414 4.62 1459 4.74 1504 4.86 1547 4.98 1590 5.10
5200 1216 4.34 1270 4.48 1321 4.62 1371 4.76 1420 4.88 1466 5.01 1512 5.13 1556 5.25 1600 5.37 1642 5.50
5400 1270 4.75 1324 4.89 1376 5.03 1426 5.17 1474 5.29 1521 5.42 1566 5.54 1611 5.66 ----
5600 1327 5.17 1381 5.32 1433 5.46 1483 5.59 1531 5.72 - - - - - -----
580013855.62------------------
5 HP & Field Supplied Drive

528150-YTG-G-1210
116 Johnson Controls Unitary Products
ZR037-150 Side Duct Application
ZR037 (3.0 Ton) Side Duct
ZR049 (4.0 Ton) Side Duct
ZR061 (5.0 Ton) Side Duct
Air
Flow
(CFM)
Available External Static Pressure - IWG1
0.2 0.4 0.6 0.8 1.0 1.2 1.4 1.6 1.8 2.0
RPM BHP RPM BHP RPM BHP RPM BHP RPM BHP RPM BHP RPM BHP RPM BHP RPM BHP RPM BHP
FS4Standard 1.5 HP & Drive Hi Static 1.5 HP & Drive
900 480 0.4 582 0.4 673 0.5 756 0.5 830 0.6 898 0.7 960 0.8 1018 0.9 1072 1.0 1124 1.1
1000 489 0.4 591 0.4 682 0.5 764 0.6 839 0.6 907 0.7 969 0.8 1026 0.9 1080 1.0 1132 1.1
1100 500 0.4 602 0.4 693 0.5 776 0.6 850 0.6 918 0.7 980 0.8 1038 0.9 1092 1.0 1144 1.1
1200 513 0.4 614 0.5 706 0.5 788 0.6 863 0.7 931 0.8 993 0.8 1050 0.9 1104 1.0 1156 1.1
1300 525 0.4 627 0.5 719 0.6 801 0.6 876 0.7 943 0.8 1005 0.9 1063 1.0 1117 1.1 1169 1.2
1400 537 0.5 639 0.5 731 0.6 813 0.7 888 0.7 955 0.8 1017 0.9 1075 1.0 1129 1.1 1181 1.2
1500 549 0.5 650 0.6 742 0.6 824 0.7 899 0.8 966 0.9 1028 0.9 1086 1.0 1140 1.1 1192 1.2
1. Blower performance includes gas heat exchangers and 2” filters. See STATIC RESISTANCE table for additional applications.
2. See RPM SELECTION table to determine desired motor sheave setting and to determine the maximum continuous BHP.
3. kW = BHP x 0.932.
4. Field Supplied Drive.
Air
Flow
(CFM
Available External Static Pressure - IWG1
0.2 0.4 0.6 0.8 1.0 1.2 1.4 1.6 1.8 2.0
RPM BHP RPM BHP RPM BHP RPM BHP RPM BHP RPM BHP RPM BHP RPM BHP RPM BHP RPM BHP
1.5 HP & Field
Supplied Drive Standard 1.5 HP & Drive Hi Static 1.5 HP & Drive
1200 513 0.4 614 0.5 706 0.5 788 0.6 863 0.7 931 0.8 993 0.8 1050 0.9 1104 1.0 1156 1.1
1300 525 0.4 627 0.5 719 0.6 801 0.6 876 0.7 943 0.8 1005 0.9 1063 1.0 1117 1.1 1169 1.2
1400 537 0.5 639 0.5 731 0.6 813 0.7 888 0.7 955 0.8 1017 0.9 1075 1.0 1129 1.1 1181 1.2
1500 549 0.5 650 0.6 742 0.6 824 0.7 899 0.8 966 0.9 1028 0.9 1086 1.0 1140 1.1 1192 1.2
1600 558 0.6 660 0.6 752 0.7 834 0.8 909 0.8 976 0.9 1038 1.0 1096 1.1 1150 1.2 1202 1.3
1700 566 0.6 668 0.7 760 0.7 842 0.8 917 0.9 984 1.0 1046 1.1 1104 1.1 1158 1.2 1210 1.4
1800 573 0.7 675 0.7 766 0.8 849 0.9 923 1.0 991 1.0 1053 1.1 1110 1.2 1164 1.3 1216 1.4
1900 577 0.8 679 0.8 771 0.9 853 1.0 928 1.0 995 1.1 1057 1.2 1115 1.3 1169 1.4 1221 1.5
2000 580 0.8 682 0.9 773 1.0 856 1.0 930 1.1 998 1.2 1060 1.3 1117 1.4 1172 1.5 1224 1.6
FS4
1. Blower performance includes gas heat exchangers and 2” filters. See STATIC RESISTANCE table for additional applications.
2. See RPM SELECTION table to determine desired motor sheave setting and to determine the maximum continuous BHP.
3. kW = BHP x 0.932.
4. Field Supplied Drive.
Air
Flow
(CFM)
Available External Static Pressure - IWG1
0.2 0.4 0.6 0.8 1.0 1.2 1.4 1.6 1.8 2.0
RPM BHP RPM BHP RPM BHP RPM BHP RPM BHP RPM BHP RPM BHP RPM BHP RPM BHP RPM BHP
Standard 1.5 HP & Drive Hi Static 2 HP & Drive
1500 616 0.5 685 0.6 766 0.7 833 0.8 905 0.9 975 1.0 1035 1.0 1101 1.1 1163 1.2 1229 1.3
1600 638 0.6 707 0.7 781 0.7 848 0.8 920 0.9 990 1.0 1050 1.1 1104 1.1 1166 1.2 1232 1.3
1700 655 0.6 724 0.7 796 0.8 863 0.9 935 1.0 1005 1.1 1064 1.1 1109 1.2 1172 1.3 1238 1.4
1800 670 0.7 739 0.8 810 0.8 877 0.9 949 1.0 1018 1.1 1078 1.2 1117 1.2 1179 1.3 1245 1.5
1900 686 0.7 755 0.8 823 0.9 890 1.0 962 1.1 1032 1.2 1091 1.2 1125 1.3 1187 1.4 1253 1.5
2000 702 0.8 772 0.9 836 1.0 903 1.1 975 1.2 1045 1.3 1078 1.3 1135 1.4 1197 1.5 1263 1.6
2100 722 0.9 791 1.0 849 1.0 916 1.1 988 1.2 1058 1.3 1089 1.4 1147 1.5 1209 1.6 1275 1.7
2200 745 0.9 814 1.0 861 1.1 928 1.2 1000 1.3 1050 1.4 1102 1.5 1159 1.6 1221 1.7 1287 1.8
2300 772 1.0 841 1.1 874 1.2 941 1.3 1013 1.4 1064 1.5 1115 1.6 1173 1.7 1235 1.8 - -
2400 804 1.1 832 1.2 886 1.3 953 1.4 1033 1.4 1078 1.6 1130 1.7 1188 1.8 - - - -
2500 841 1.2 844 1.3 898 1.4 965 1.5 1049 1.5 1094 1.7 - - - - 2 HP & Field Supplied Drive
1. Blower performance includes gas heat exchangers and 2” filters. See STATIC RESISTANCE table for additional applications.
2. See RPM SELECTION table to determine desired motor sheave setting and to determine the maximum continuous BHP.
3. kW = BHP x 0.932.

528150-YTG-G-1210
Johnson Controls Unitary Products 117
ZR078-150 Side Duct Application
ZR078 (6.5 Ton) Side Duct
Air Flow
(CFM)
Available External Static Pressure - IWG1
1. Blower performance includes gas heat exchangers and 2” filters. See STATIC RESISTANCE table for additional applications.
2. See RPM SELECTION table to determine desired motor sheave setting and to determine the maximum continuous BHP.
3. kW = BHP x 0.932.
0.2 0.4 0.6 0.8 1.0 1.2 1.4 1.6 1.8 2.0
RPM BHP RPM BHP RPM BHP RPM BHP RPM BHP RPM BHP RPM BHP RPM BHP RPM BHP RPM BHP
1.5 HP & Field Supplied Drive Standard 1.5 HP & Drive Hi Static 2 HP & Drive
1800 778 0.37 838 0.56 895 0.73 951 0.88 1005 1.01 1059 1.13 1112 1.25 1166 1.36 1221 1.47 1278 1.59
2000 803 0.50 864 0.69 921 0.85 977 1.00 1031 1.14 1085 1.26 1138 1.37 1192 1.49 1247 1.60 1304 1.72
2200 833 0.64 893 0.83 951 1.00 1006 1.14 1061 1.28 1114 1.40 1168 1.51 1221 1.63 1276 1.74 1333 1.86
2400 866 0.80 926 0.99 984 1.15 1039 1.30 1094 1.43 1147 1.56 1201 1.67 1254 1.78 1309 1.90 1366 2.02
2600 902 0.97 962 1.16 1020 1.33 1076 1.47 1130 1.61 1183 1.73 1237 1.85 1291 1.96 1346 2.07 1402 2.19
2800 941 1.16 1002 1.35 1059 1.52 1115 1.67 1169 1.80 1222 1.92 1276 2.04 1330 2.15 1385 2.26 - -
3000 983 1.37 1043 1.56 1101 1.73 1157 1.88 1211 2.01 1264 2.13 1318 2.25 - -----
3200 1028 1.60 1088 1.79 1145 1.95 1201 2.10 1255 2.24 - - - - - -----
340010741.8411342.0311922.20--------------
2 HP & Field Supplied Drive
ZR090 (7.5 Ton) Side Duct
Air Flow
(CFM)
Available External Static Pressure - IWG1
1. Blower performance includes gas heat exchangers and 2” filters. See STATIC RESISTANCE table for additional applications.
2. See RPM SELECTION table to determine desired motor sheave setting and to determine the maximum continuous BHP.
3. kW = BHP x 0.932.
0.2 0.4 0.6 0.8 1.0 1.2 1.4 1.6 1.8 2.0
RPM BHP RPM BHP RPM BHP RPM BHP RPM BHP RPM BHP RPM BHP RPM BHP RPM BHP RPM BHP
1.5 HP & Field Supplied Drive Standard 1.5 HP & Drive Hi Static 3 HP & Drive
2000 803 0.50 864 0.69 921 0.85 977 1.00 1031 1.14 1085 1.26 1138 1.37 1192 1.49 1247 1.60 1304 1.72
2200 833 0.64 893 0.83 951 1.00 1006 1.14 1061 1.28 1114 1.40 1168 1.51 1221 1.63 1276 1.74 1333 1.86
2400 866 0.80 926 0.99 984 1.15 1039 1.30 1094 1.43 1147 1.56 1201 1.67 1254 1.78 1309 1.90 1366 2.02
2600 902 0.97 962 1.16 1020 1.33 1076 1.47 1130 1.61 1183 1.73 1237 1.85 1291 1.96 1346 2.07 1402 2.19
2800 941 1.16 1002 1.35 1059 1.52 1115 1.67 1169 1.80 1222 1.92 1276 2.04 1330 2.15 1385 2.26 1442 2.38
3000 983 1.37 1043 1.56 1101 1.73 1157 1.88 1211 2.01 1264 2.13 1318 2.25 1372 2.36 1427 2.47 1483 2.59
3200 1028 1.60 1088 1.79 1145 1.95 1201 2.10 1255 2.24 1309 2.36 1362 2.47 1416 2.59 1471 2.70 1528 2.82
3400 1074 1.84 1134 2.03 1192 2.20 1248 2.35 1302 2.48 1355 2.60 1409 2.72 1463 2.83 1518 2.94 1574 3.06
3600 1123 2.10 1183 2.29 1241 2.46 1297 2.61 1351 2.74 1404 2.86 1458 2.98 1512 3.09 1567 3.21 1623 3.32
3800 1174 2.38 1234 2.57 1292 2.74 1348 2.88 1402 3.02 1455 3.14 1509 3.26 1562 3.37 ----
3 HP & Field Supplied Drive
ZR102 (8.5 Ton) Side Duct
Air Flow
(CFM)
Available External Static Pressure - IWG1
1. Blower performance includes gas heat exchangers and 2” filters. See STATIC RESISTANCE table for additional applications.
2. See RPM SELECTION table to determine desired motor sheave setting and to determine the maximum continuous BHP.
3. kW = BHP x 0.932.
0.2 0.4 0.6 0.8 1.0 1.2 1.4 1.6 1.8 2.0
RPM BHP RPM BHP RPM BHP RPM BHP RPM BHP RPM BHP RPM BHP RPM BHP RPM BHP RPM BHP
2 HP & Field
Supplied Drive Standard 2 HP & Drive Hi Static 3 HP & Drive
2200 684 0.48 735 0.67 783 0.84 829 1.01 874 1.17 918 1.32 960 1.48 1001 1.63 1041 1.78 1081 1.94
2400 695 0.58 745 0.76 793 0.94 840 1.11 885 1.27 928 1.42 970 1.57 1011 1.73 1052 1.88 1091 2.04
2600 706 0.67 756 0.86 805 1.04 851 1.20 896 1.36 939 1.52 981 1.67 1023 1.82 1063 1.98 1103 2.13
2800 719 0.78 769 0.96 817 1.14 863 1.31 908 1.47 952 1.62 994 1.78 1035 1.93 1075 2.08 1115 2.24
3000 732 0.89 782 1.08 831 1.25 877 1.42 922 1.58 965 1.74 1007 1.89 1049 2.04 1089 2.19 1128 2.35
3200 747 1.02 797 1.21 846 1.38 892 1.55 937 1.71 980 1.86 1023 2.02 1064 2.17 1104 2.32 1144 2.48
3400 764 1.16 814 1.35 862 1.53 909 1.69 954 1.85 997 2.01 1039 2.16 1080 2.31 1121 2.47 1160 2.62
3600 783 1.33 833 1.51 881 1.69 927 1.86 972 2.02 1016 2.17 1058 2.32 1099 2.48 1139 2.63 1179 2.79
3800 803 1.51 853 1.69 901 1.87 948 2.04 992 2.20 1036 2.35 1078 2.50 1119 2.66 1159 2.81 1199 2.97
4000 825 1.71 875 1.89 923 2.07 970 2.23 1014 2.39 1058 2.55 1100 2.70 1141 2.86 1181 3.01 1221 3.16
4200 849 1.92 899 2.11 947 2.29 993 2.45 1038 2.61 1082 2.77 1124 2.92 1165 3.07 1205 3.23 1245 3.38
3 HP & Field Supplied Drive

528150-YTG-G-1210
118 Johnson Controls Unitary Products
ZR120 (10 Ton) Side Duct
Air Flow
(CFM)
Available External Static Pressure - IWG1
1. Blower performance includes gas heat exchangers and 2” filters. See STATIC RESISTANCE table for additional applications.
2. See RPM SELECTION table to determine desired motor sheave setting and to determine the maximum continuous BHP.
3. kW = BHP x 0.932.
0.2 0.4 0.6 0.8 1.0 1.2 1.4 1.6 1.8 2.0
RPM BHP RPM BHP RPM BHP RPM BHP RPM BHP RPM BHP RPM BHP RPM BHP RPM BHP RPM BHP
2 HP & Field Supplied Drive Standard 2 HP & Drive Hi Static 3 HP & Drive
2600 706 0.67 756 0.86 805 1.04 851 1.20 896 1.36 939 1.52 981 1.67 1023 1.82 1063 1.98 1103 2.13
2800 719 0.78 769 0.96 817 1.14 863 1.31 908 1.47 952 1.62 994 1.78 1035 1.93 1075 2.08 1115 2.24
3000 732 0.89 782 1.08 831 1.25 877 1.42 922 1.58 965 1.74 1007 1.89 1049 2.04 1089 2.19 1128 2.35
3200 747 1.02 797 1.21 846 1.38 892 1.55 937 1.71 980 1.86 1023 2.02 1064 2.17 1104 2.32 1144 2.48
3400 764 1.16 814 1.35 862 1.53 909 1.69 954 1.85 997 2.01 1039 2.16 1080 2.31 1121 2.47 1160 2.62
3600 783 1.33 833 1.51 881 1.69 927 1.86 972 2.02 1016 2.17 1058 2.32 1099 2.48 1139 2.63 1179 2.79
3800 803 1.51 853 1.69 901 1.87 948 2.04 992 2.20 1036 2.35 1078 2.50 1119 2.66 1159 2.81 1199 2.97
4000 825 1.71 875 1.89 923 2.07 970 2.23 1014 2.39 1058 2.55 1100 2.70 1141 2.86 1181 3.01 1221 3.16
4200 849 1.92 899 2.11 947 2.29 993 2.45 1038 2.61 1082 2.77 1124 2.92 1165 3.07 1205 3.23 1245 3.38
4400 874 2.16 924 2.35 972 2.52 1019 2.69 1064 2.85 1107 3.01 1149 3.16 1190 3.31 ----
4600 901 2.42 952 2.61 1000 2.78 1046 2.95 1091 3.11 1134 3.26 1177 3.42 - -----
4800 930 2.70 981 2.88 1029 3.06 1075 3.23 1120 3.39 - - - - - -----
50009612.9910113.1810593.35--------------
3 HP & Field Supplied Drive
ZR150 (12.5 Ton) Side Duct
Air Flow
(CFM)
Available External Static Pressure - IWG1
1. Blower performance includes gas heat exchangers and 2” filters. See STATIC RESISTANCE table for additional applications.
2. See RPM SELECTION table to determine desired motor sheave setting and to determine the maximum continuous BHP.
3. kW = BHP x 0.932.
0.2 0.4 0.6 0.8 1.0 1.2 1.4 1.6 1.8 2.0
RPM BHP RPM BHP RPM BHP RPM BHP RPM BHP RPM BHP RPM BHP RPM BHP RPM BHP RPM BHP
3 HP & Field Supplied Drive Standard 3 HP & Drive
3200 747 1.02 797 1.21 846 1.38 892 1.55 937 1.71 980 1.86 1023 2.02 1064 2.17 1104 2.32 1144 2.48
3400 764 1.16 814 1.35 862 1.53 909 1.69 954 1.85 997 2.01 1039 2.16 1080 2.31 1121 2.47 1160 2.62
3600 783 1.33 833 1.51 881 1.69 927 1.86 972 2.02 1016 2.17 1058 2.32 1099 2.48 1139 2.63 1179 2.79
3800 803 1.51 853 1.69 901 1.87 948 2.04 992 2.20 1036 2.35 1078 2.50 1119 2.66 1159 2.81 1199 2.97
4000 825 1.71 875 1.89 923 2.07 970 2.23 1014 2.39 1058 2.55 1100 2.70 1141 2.86 1181 3.01 1221 3.16
4200 849 1.92 899 2.11 947 2.29 993 2.45 1038 2.61 1082 2.77 1124 2.92 1165 3.07 1205 3.23 1245 3.38
4400 874 2.16 924 2.35 972 2.52 1019 2.69 1064 2.85 1107 3.01 1149 3.16 1190 3.31 1231 3.47 1270 3.62
4600 901 2.42 952 2.61 1000 2.78 1046 2.95 1091 3.11 1134 3.26 1177 3.42 1218 3.57 1258 3.72 1298 3.88
4800 930 2.70 981 2.88 1029 3.06 1075 3.23 1120 3.39 1163 3.54 1206 3.69 1247 3.85 1287 4.00 1327 4.16
5000 961 2.99 1011 3.18 1059 3.35 1106 3.52 1151 3.68 1194 3.84 1236 3.99 1277 4.14 1318 4.29 1357 4.45
5200 993 3.31 1043 3.49 1092 3.67 1138 3.84 1183 4.00 1226 4.15 1269 4.30 1310 4.46 1350 4.61 1390 4.77
5400 1027 3.64 1077 3.83 1126 4.00 1172 4.17 1217 4.33 1260 4.48 1302 4.64 1344 4.79 1384 4.94 1424 5.10
5600 1063 3.99 1113 4.18 1161 4.35 1207 4.52 1252 4.68 1296 4.84 1338 4.99 1379 5.14 1419 5.29 1459 5.45
5800 1100 4.36 1150 4.55 1198 4.72 1244 4.89 1289 5.05 1333 5.20 1375 5.36 1416 5.51 1456 5.66 - -
6000 1138 4.75 1188 4.93 1237 5.11 1283 5.28 1328 5.44 1371 5.59 1413 5.74 - -----
620011785.1512285.3412775.5113235.68------------
Hi Static 5 HP & Drive 5 HP & Field Supplied Drive

528150-YTG-G-1210
Johnson Controls Unitary Products 119
ZR037-150 Bottom Duct Application
ZR037 (3.0 Ton) Bottom Duct
ZR049 (4.0 Ton) Bottom Duct
ZR061 (5.0 Ton) Bottom Duct
Air
Flow
(CFM)
Available External Static Pressure - IWG1
0.2 0.4 0.6 0.8 1.0 1.2 1.4 1.6 1.8 2.0
RPM BHP RPM BHP RPM BHP RPM BHP RPM BHP RPM BHP RPM BHP RPM BHP RPM BHP RPM BHP
FS4Standard 1.5 HP & Drive Hi Static 1.5 HP & Drive
900 544 0.4 632 0.5 708 0.5 774 0.6 834 0.7 889 0.8 941 0.9 993 1.0 1047 1.1 1104 1.2
1000 549 0.4 637 0.5 713 0.5 779 0.6 839 0.7 894 0.8 946 0.9 998 1.0 1052 1.1 1109 1.2
1100 562 0.4 649 0.5 725 0.6 792 0.6 852 0.7 906 0.8 959 0.9 1010 1.0 1064 1.1 1121 1.2
1200 579 0.5 666 0.5 742 0.6 809 0.6 868 0.7 923 0.8 975 0.9 1027 1.0 1081 1.1 1138 1.2
1300 598 0.5 685 0.5 761 0.6 828 0.7 887 0.8 942 0.8 994 0.9 1046 1.0 1100 1.2 1157 1.3
1400 617 0.5 705 0.6 781 0.6 847 0.7 907 0.8 962 0.9 1014 1.0 1066 1.1 1119 1.2 1177 1.3
1500 637 0.6 724 0.6 800 0.7 867 0.8 927 0.8 981 0.9 1034 1.0 1085 1.1 1139 1.2 1196 1.4
FS4
1. Blower performance includes gas heat exchangers and 2” filters. See STATIC RESISTANCE table for additional applications.
2. See RPM SELECTION table to determine desired motor sheave setting and to determine the maximum continuous BHP.
3. kW = BHP x 0.932.
4. Field Supplied Drive.
Air
Flow
(CFM)
Available External Static Pressure - IWG1
0.2 0.4 0.6 0.8 1.0 1.2 1.4 1.6 1.8 2.0
RPM BHP RPM BHP RPM BHP RPM BHP RPM BHP RPM BHP RPM BHP RPM BHP RPM BHP RPM BHP
Standard 1.5 HP & Drive Hi Static 1.5 HP & Drive
1200 579 0.5 666 0.5 742 0.6 809 0.6 868 0.7 923 0.8 975 0.9 1027 1.0 1081 1.1 1138 1.2
1300 598 0.5 685 0.5 761 0.6 828 0.7 887 0.8 942 0.8 994 0.9 1046 1.0 1100 1.2 1157 1.3
1400 617 0.5 705 0.6 781 0.6 847 0.7 907 0.8 962 0.9 1014 1.0 1066 1.1 1119 1.2 1177 1.3
1500 637 0.6 724 0.6 800 0.7 867 0.8 927 0.8 981 0.9 1034 1.0 1085 1.1 1139 1.2 1196 1.4
1600 655 0.6 743 0.7 819 0.7 885 0.8 945 0.9 1000 1.0 1052 1.1 1104 1.2 1158 1.3 1215 1.4
1700 672 0.7 760 0.7 836 0.8 902 0.9 962 1.0 1017 1.0 1069 1.1 1121 1.2 1175 1.3 1232 1.5
1800 687 0.7 775 0.8 851 0.9 918 0.9 977 1.0 1032 1.1 1084 1.2 1136 1.3 1190 1.4 1247 1.5
1900 700 0.8 788 0.9 864 0.9 930 1.0 990 1.1 1045 1.2 1097 1.3 1149 1.4 1202 1.5 1260 1.6
2000 711 0.9 798 0.9 874 1.0 941 1.1 1000 1.2 1055 1.2 1107 1.3 1159 1.4 1213 1.6 1270 1.7
FS4
1. Blower performance includes gas heat exchangers and 2” filters. See STATIC RESISTANCE table for additional applications.
2. See RPM SELECTION table to determine desired motor sheave setting and to determine the maximum continuous BHP.
3. kW = BHP x 0.932.
4. Field Supplied Drive.
Air
Flow
(CFM)
Available External Static Pressure - IWG1
0.2 0.4 0.6 0.8 1.0 1.2 1.4 1.6 1.8 2.0
RPM BHP RPM BHP RPM BHP RPM BHP RPM BHP RPM BHP RPM BHP RPM BHP RPM BHP RPM BHP
Standard 1.5 HP & Drive Hi Static 2 HP & Drive
1500 613 0.5 684 0.6 759 0.7 831 0.7 928 0.8 984 0.9 1042 1.0 1093 1.1 1149 1.2 1201 1.3
1600 629 0.6 700 0.6 775 0.7 847 0.8 929 0.8 985 0.9 1043 1.0 1098 1.1 1154 1.2 1206 1.3
1700 646 0.6 717 0.7 793 0.8 864 0.8 934 0.9 990 1.0 1048 1.1 1106 1.2 1161 1.3 1214 1.4
1800 666 0.7 737 0.7 812 0.8 884 0.9 943 1.0 999 1.1 1057 1.2 1116 1.3 1172 1.4 1224 1.5
1900 687 0.7 758 0.8 833 0.9 905 0.9 954 1.0 1010 1.1 1068 1.2 1128 1.3 1184 1.4 1236 1.5
2000 710 0.8 781 0.9 856 0.9 927 1.0 968 1.1 1024 1.2 1082 1.3 1142 1.4 1198 1.5 1250 1.6
2100 733 0.8 804 0.9 879 1.0 951 1.1 983 1.2 1039 1.3 1097 1.4 1157 1.5 1213 1.6 1265 1.7
2200 758 0.9 828 1.0 904 1.1 947 1.2 1000 1.3 1056 1.4 1116 1.5 1174 1.6 1229 1.7 1281 1.8
2300 783 1.0 854 1.1 929 1.1 964 1.3 1018 1.4 1075 1.5 1133 1.6 1191 1.7 1246 1.8 - -
2400 809 1.1 879 1.2 932 1.3 983 1.4 1037 1.5 1094 1.6 1152 1.7 1209 1.8 - - - -
2500 835 1.1 906 1.2 951 1.4 1001 1.5 1055 1.6 1112 1.7 1170 1.8 2 HP & Field Supplied Drive
1. Blower performance includes gas heat exchangers and 2” filters. See STATIC RESISTANCE table for additional applications.
2. See RPM SELECTION table to determine desired motor sheave setting and to determine the maximum continuous BHP.
3. kW = BHP x 0.932.

528150-YTG-G-1210
120 Johnson Controls Unitary Products
ZR078-150 Bottom Duct Application
ZR078 (6.5 Ton) Bottom Duct
Air Flow
(CFM)
Available External Static Pressure - IWG1
1. Blower performance includes gas heat exchangers and 2” filters. See STATIC RESISTANCE table for additional applications.
2. See RPM SELECTION table to determine desired motor sheave setting and to determine the maximum continuous BHP.
3. kW = BHP x 0.932.
0.2 0.4 0.6 0.8 1.0 1.2 1.4 1.6 1.8 2.0
RPM BHP RPM BHP RPM BHP RPM BHP RPM BHP RPM BHP RPM BHP RPM BHP RPM BHP RPM BHP
1.5 HP & Field Supplied Drive Standard 1.5 HP & Drive Hi Static 2 HP & Drive
1800 801 0.45 874 0.65 946 0.82 1018 0.97 1090 1.11 1163 1.25 1238 1.38 1315 1.52 1395 1.68 1477 1.86
2000 831 0.59 903 0.78 975 0.95 1047 1.10 1119 1.24 1193 1.38 1267 1.51 1344 1.66 1424 1.81 1507 1.99
2200 867 0.74 940 0.93 1012 1.10 1084 1.25 1156 1.39 1229 1.53 1304 1.66 1381 1.81 1461 1.96 1543 2.14
2400 910 0.91 983 1.10 1055 1.27 1126 1.43 1199 1.57 1272 1.70 1347 1.84 1424 1.98 1503 2.14 - -
2600 957 1.10 1030 1.30 1102 1.47 1174 1.62 1246 1.76 1320 1.89 1394 2.03 1471 2.17 ----
2800 1009 1.32 1082 1.51 1154 1.69 1225 1.84 1298 1.98 1371 2.11 1446 2.25 - -----
3000 1064 1.56 1137 1.75 1208 1.92 1280 2.08 1353 2.22 - - - - - -----
320011221.8211942.0212662.19--------------
340011822.1012542.30----------------
2 HP & Field Supplied Drive
ZR090 (7.5 Ton) Bottom Duct
Air Flow
(CFM)
Available External Static Pressure - IWG1
1. Blower performance includes gas heat exchangers and 2” filters. See STATIC RESISTANCE table for additional applications.
2. See RPM SELECTION table to determine desired motor sheave setting and to determine the maximum continuous BHP.
3. kW = BHP x 0.932.
0.2 0.4 0.6 0.8 1.0 1.2 1.4 1.6 1.8 2.0
RPM BHP RPM BHP RPM BHP RPM BHP RPM BHP RPM BHP RPM BHP RPM BHP RPM BHP RPM BHP
1.5 HP & Field
Supplied Drive Standard 1.5 HP & Drive Hi Static 3 HP & Drive
2000 831 0.59 903 0.78 975 0.95 1047 1.10 1119 1.24 1193 1.38 1267 1.51 1344 1.66 1424 1.81 1507 1.99
2200 867 0.74 940 0.93 1012 1.10 1084 1.25 1156 1.39 1229 1.53 1304 1.66 1381 1.81 1461 1.96 1543 2.14
2400 910 0.91 983 1.10 1055 1.27 1126 1.43 1199 1.57 1272 1.70 1347 1.84 1424 1.98 1503 2.14 1586 2.31
2600 957 1.10 1030 1.30 1102 1.47 1174 1.62 1246 1.76 1320 1.89 1394 2.03 1471 2.17 1551 2.33 1634 2.51
2800 1009 1.32 1082 1.51 1154 1.69 1225 1.84 1298 1.98 1371 2.11 1446 2.25 1523 2.39 1602 2.55 1685 2.73
3000 1064 1.56 1137 1.75 1208 1.92 1280 2.08 1353 2.22 1426 2.35 1501 2.49 1578 2.63 1657 2.79 1740 2.96
3200 1122 1.82 1194 2.02 1266 2.19 1338 2.34 1410 2.48 1484 2.61 1559 2.75 1636 2.89 1715 3.05 1798 3.23
3400 1182 2.10 1254 2.30 1326 2.47 1398 2.62 1471 2.76 1544 2.90 1619 3.03 1696 3.17 1775 3.33 - -
3600 1244 2.41 1317 2.60 1389 2.77 1461 2.93 1533 3.07 1606 3.20 1681 3.33 - -----
3800 1308 2.73 1381 2.93 1453 3.10 1525 3.25 1597 3.39 - - - - - -----
3 HP & Field Supplied Drive
ZR102 (8.5 Ton) Bottom Duct
Air Flow
(CFM)
Available External Static Pressure - IWG1
1. Blower performance includes gas heat exchangers and 2” filters. See STATIC RESISTANCE table for additional applications.
2. See RPM SELECTION table to determine desired motor sheave setting and to determine the maximum continuous BHP.
3. kW = BHP x 0.932.
0.2 0.4 0.6 0.8 1.0 1.2 1.4 1.6 1.8 2.0
RPM BHP RPM BHP RPM BHP RPM BHP RPM BHP RPM BHP RPM BHP RPM BHP RPM BHP RPM BHP
2 HP & Field
Supplied Drive Standard 2 HP & Drive Hi Static 3 HP & Drive
2200 715 0.72 768 0.85 818 0.98 867 1.09 914 1.21 960 1.32 1004 1.43 1047 1.53 1089 1.64 1131 1.75
2400 734 0.83 786 0.96 837 1.08 886 1.20 933 1.31 978 1.42 1022 1.53 1066 1.64 1108 1.75 1150 1.86
2600 755 0.95 808 1.08 858 1.20 907 1.32 954 1.44 1000 1.55 1044 1.65 1087 1.76 1129 1.87 1171 1.98
2800 779 1.09 832 1.22 882 1.35 931 1.46 978 1.58 1024 1.69 1068 1.80 1111 1.90 1153 2.01 1195 2.12
3000 806 1.25 859 1.38 910 1.51 958 1.63 1005 1.74 1051 1.85 1095 1.96 1138 2.07 1181 2.17 1222 2.28
3200 837 1.44 889 1.57 940 1.69 989 1.81 1036 1.93 1081 2.04 1125 2.14 1168 2.25 1211 2.36 1252 2.47
3400 870 1.65 922 1.78 973 1.90 1022 2.02 1069 2.13 1114 2.24 1158 2.35 1202 2.46 1244 2.57 1286 2.68
3600 906 1.88 959 2.01 1009 2.13 1058 2.25 1105 2.36 1150 2.47 1195 2.58 1238 2.69 1280 2.80 1322 2.91
3800 945 2.13 998 2.26 1048 2.38 1097 2.50 1144 2.61 1190 2.72 1234 2.83 1277 2.94 1319 3.05 1361 3.16
4000 987 2.40 1040 2.53 1090 2.66 1139 2.78 1186 2.89 1231 3.00 1276 3.11 1319 3.21 1361 3.32 1403 3.43
4200 1032 2.70 1084 2.83 1135 2.95 1184 3.07 1231 3.18 1276 3.29 1320 3.40 - -----
3 HP & Field Supplied Drive

528150-YTG-G-1210
Johnson Controls Unitary Products 121
ZR120 (10 Ton) Bottom Duct
Air Flow
(CFM)
Available External Static Pressure - IWG1
1. Blower performance includes gas heat exchangers and 2” filters. See STATIC RESISTANCE table for additional applications.
2. See RPM SELECTION table to determine desired motor sheave setting and to determine the maximum continuous BHP.
3. kW = BHP x 0.932.
0.2 0.4 0.6 0.8 1.0 1.2 1.4 1.6 1.8 2.0
RPM BHP RPM BHP RPM BHP RPM BHP RPM BHP RPM BHP RPM BHP RPM BHP RPM BHP RPM BHP
2 HP & Field
Supplied Drive Standard 2 HP & Drive Hi Static 3 HP & Drive
2600 755 0.95 808 1.08 858 1.20 907 1.32 954 1.44 1000 1.55 1044 1.65 1087 1.76 1129 1.87 1171 1.98
2800 779 1.09 832 1.22 882 1.35 931 1.46 978 1.58 1024 1.69 1068 1.80 1111 1.90 1153 2.01 1195 2.12
3000 806 1.25 859 1.38 910 1.51 958 1.63 1005 1.74 1051 1.85 1095 1.96 1138 2.07 1181 2.17 1222 2.28
3200 837 1.44 889 1.57 940 1.69 989 1.81 1036 1.93 1081 2.04 1125 2.14 1168 2.25 1211 2.36 1252 2.47
3400 870 1.65 922 1.78 973 1.90 1022 2.02 1069 2.13 1114 2.24 1158 2.35 1202 2.46 1244 2.57 1286 2.68
3600 906 1.88 959 2.01 1009 2.13 1058 2.25 1105 2.36 1150 2.47 1195 2.58 1238 2.69 1280 2.80 1322 2.91
3800 945 2.13 998 2.26 1048 2.38 1097 2.50 1144 2.61 1190 2.72 1234 2.83 1277 2.94 1319 3.05 1361 3.16
4000 987 2.40 1040 2.53 1090 2.66 1139 2.78 1186 2.89 1231 3.00 1276 3.11 1319 3.21 1361 3.32 1403 3.43
4200 1032 2.70 1084 2.83 1135 2.95 1184 3.07 1231 3.18 1276 3.29 1320 3.40 - -----
440010793.0111323.1511823.2712313.39------------
460011293.35------------------
3 HP & Field Supplied Drive
ZR150 (12.5 Ton) Bottom Duct
Air Flow
(CFM)
Available External Static Pressure - IWG1
1. Blower performance includes gas heat exchangers and 2” filters. See STATIC RESISTANCE table for additional applications.
2. See RPM SELECTION table to determine desired motor sheave setting and to determine the maximum continuous BHP.
3. kW = BHP x 0.932.
0.2 0.4 0.6 0.8 1.0 1.2 1.4 1.6 1.8 2.0
RPM BHP RPM BHP RPM BHP RPM BHP RPM BHP RPM BHP RPM BHP RPM BHP RPM BHP RPM BHP
3 HP & Field
Supplied Drive Standard 3 HP & Drive Hi Static 5 HP & Drive
3200 837 1.44 889 1.57 940 1.69 989 1.81 1036 1.93 1081 2.04 1125 2.14 1168 2.25 1211 2.36 1252 2.47
3400 870 1.65 922 1.78 973 1.90 1022 2.02 1069 2.13 1114 2.24 1158 2.35 1202 2.46 1244 2.57 1286 2.68
3600 906 1.88 959 2.01 1009 2.13 1058 2.25 1105 2.36 1150 2.47 1195 2.58 1238 2.69 1280 2.80 1322 2.91
3800 945 2.13 998 2.26 1048 2.38 1097 2.50 1144 2.61 1190 2.72 1234 2.83 1277 2.94 1319 3.05 1361 3.16
4000 987 2.40 1040 2.53 1090 2.66 1139 2.78 1186 2.89 1231 3.00 1276 3.11 1319 3.21 1361 3.32 1403 3.43
4200 1032 2.70 1084 2.83 1135 2.95 1184 3.07 1231 3.18 1276 3.29 1320 3.40 1364 3.51 1406 3.62 1447 3.73
4400 1079 3.01 1132 3.15 1182 3.27 1231 3.39 1278 3.50 1324 3.61 1368 3.72 1411 3.83 1453 3.93 1495 4.05
4600 1129 3.35 1182 3.48 1232 3.61 1281 3.72 1328 3.84 1374 3.95 1418 4.06 1461 4.16 1503 4.27 1545 4.38
4800 1182 3.71 1235 3.84 1285 3.96 1334 4.08 1381 4.20 1426 4.31 1471 4.41 1514 4.52 1556 4.63 1598 4.74
5000 1237 4.08 1290 4.22 1340 4.34 1389 4.46 1436 4.57 1481 4.68 1526 4.79 1569 4.90 1611 5.01 1653 5.12
5200 1294 4.48 1347 4.61 1398 4.74 1446 4.85 1493 4.97 1539 5.08 1583 5.19 1626 5.29 1669 5.40 1710 5.51
5400 1354 4.89 1407 5.03 1457 5.15 1506 5.27 1553 5.38 1599 5.49 1643 5.60 1686 5.71 ----
560014165.3314695.4615195.5815685.70------------
5800--------------------
5 HP & Field Supplied Drive

528150-YTG-G-1210
122 Johnson Controls Unitary Products
Sound Performance
Indoor Sound Power Levels (3 thru 5 Ton)
Indoor Sound Power Levels (Horizontal Ducted Inlet, Standard Static Belt Drive)
UNIT DESCRIPTION / MODEL ZH/ZJ/ZR037 / 3 Ton / Standard Static Belt Drive
TEST CONFIGURATION Horizontal (Side Return) Ducted Inlet
Indoor Blower Speed (RPM) 612 - 3 Turns Open Equivalent 709 - 1 Turn Open Equivalent
External Static Pressure (IWG) 0.5 0.4
Airflow (CFM) 850 1300
Blower Motor BHP 0.37 0.40
Octave Center Freq. Hz ID Blower Only (dB) Cooling Operation1 (dB) ID Blower Only (dB) Cooling Operation1 (dB)
63 73 77 73 77
125 61 70 66 71
250 56 63 60 64
500 51 56 55 57
1000 44 48 51 52
2000 41 44 48 49
4000 44 47 47 48
8000 42 44 43 44
1. Cooling Operation – ID blower, compressor and outdoor fan operating at 230 VAC.
• Tested in accordance with ARI Standard 260-2001. Refer to 2001 Standard for Sound Rating of Ducted Air Moving and Conditioning
Equipment.
• Testing datum includes effect of standard inlet air filters.
• Test duct dimension: 18 in. wide x 28 in. high x 8 ft. long, no elbows.
• Test duct termination is flush with reverberant room wall.
• Duct end (sound reflection) corrections included: (7.2, 3.4, 1.2, 0.4, 0.1, 0, 0, 0) dB at (63, 125, 250, 500, 1k, 2k, 4k, 8k) Hz respectively.
UNIT DESCRIPTION / MODEL ZH/ZJ/ZR049 / 4 Ton / Standard Static Belt Drive
TEST CONFIGURATION Horizontal (Side Return) Ducted Inlet
Indoor Blower Speed (RPM) 612 - 3 Turns Open Equivalent 709 - 1 Turn Open Equivalent
External Static Pressure (IWG) 0.5 0.4
Airflow (CFM) 850 1300
Blower Motor BHP 0.37 0.40
Octave Center Freq. Hz ID Blower Only (dB) Cooling Operation1 (dB)
1. Cooling Operation – ID blower, compressor and outdoor fan operating at 230 VAC.
• Tested in accordance with ARI Standard 260-2001. Refer to 2001 Standard for Sound Rating of Ducted Air Moving and Conditioning
Equipment.
• Testing datum includes effect of standard inlet air filters.
• Test duct dimension: 18 in. wide x 28 in. high x 8 ft. long, no elbows.
• Test duct termination is flush with reverberant room wall.
• Duct end (sound reflection) corrections included: (7.2, 3.4, 1.2, 0.4, 0.1, 0, 0, 0) dB at (63, 125, 250, 500, 1k, 2k, 4k, 8k) Hz respectively.
ID Blower Only (dB) Cooling Operation1 (dB)
63 73 77 73 77
125 61 70 66 71
250 56 63 60 64
500 51 56 55 57
1000 44 48 51 52
2000 41 44 48 49
4000 44 47 47 48
8000 42 44 43 44

528150-YTG-G-1210
Johnson Controls Unitary Products 123
Indoor Sound Power Levels (Horizontal Ducted Discharge, Standard Static Belt Drive)
UNIT DESCRIPTION / MODEL ZH/ZJ/ZR061 / 5 Ton / Standard Static Belt Drive
TEST CONFIGURATION Horizontal (Side Return) Ducted Inlet
Indoor Blower Speed (RPM) 814 - 3 Turns Open Equivalent 918 - 1 Turn Open Equivalent
External Static Pressure (IWG) 0.6 0.8
Airflow (CFM) 1700 1950
Blower Motor BHP 0.42 0.88
Octave Center Freq. Hz ID Blower Only (dB) Cooling Operation1 (dB) ID Blower Only (dB) Cooling Operation1 (dB)
63 77 81 85 82
125 71 80 68 81
250 63 67 64 68
500 58 60 60 61
1000 56 57 58 59
2000 52 53 55 55
4000 51 51 54 54
8000 47 47 48 48
1. Cooling Operation – ID blower, compressor and outdoor fan operating at 230 VAC.
• Tested in accordance with ARI Standard 260-2001. Refer to 2001 Standard for Sound Rating of Ducted Air Moving and Conditioning
Equipment.
• Testing datum includes effect of standard inlet air filters.
• Test duct dimension: 18 in. wide x 28 in. high x 8 ft. long, no elbows.
• Test duct termination is flush with reverberant room wall.
• Duct end (sound reflection) corrections included: (7.2, 3.4, 1.2, 0.4, 0.1, 0, 0, 0) dB at (63, 125, 250, 500, 1k, 2k, 4k, 8k) Hz respectively.
UNIT DESCRIPTION / MODEL ZH/ZJ/ZR037 / 3 Ton / Standard Static Belt Drive
TEST CONFIGURATION Horizontal (Side Supply) Ducted Discharge
Indoor Blower Speed (RPM) 610 - 3 Turns Open Equivalent 710 - 1 Turn Open Equivalent
External Static Pressure (IWG) 0.5 0.6
Airflow (CFM) 850 950
Blower Motor BHP 0.37 0.42
Octave Center Freq. Hz ID Blower Only (dB) Cooling Operation1 (dB) ID Blower Only (dB) Cooling Operation1 (dB)
63 77 78 79 79
125 74 75 75 76
250 66 68 70 70
500 61 61 65 64
1000 60 62 65 66
2000 52 52 58 58
4000 52 52 59 60
8000 44 44 50 50
1. Cooling Operation – ID blower, compressor and outdoor fan operating at 230 VAC.
• Tested in accordance with ARI Standard 260-2001. Refer to 2001 Standard for Sound Rating of Ducted Air Moving and Conditioning
Equipment.
• Testing datum includes effect of standard inlet air filters.
• Test duct dimension: 18 in. wide x 28 in. high x 8 ft. long, no elbows.
• Test duct termination is flush with reverberant room wall.
• Duct end (sound reflection) corrections included: (7.2, 3.4, 1.2, 0.4, 0.1, 0, 0, 0) dB at (63, 125, 250, 500, 1k, 2k, 4k, 8k) Hz respectively.

528150-YTG-G-1210
124 Johnson Controls Unitary Products
UNIT DESCRIPTION / MODEL ZH/ZJ/ZR049 / 4 Ton / Standard Static Belt Drive
TEST CONFIGURATION Horizontal (Side Supply) Ducted Discharge
Indoor Blower Speed (RPM) 610 - 3 Turns Open Equivalent 710 - 1 Turn Open Equivalent
External Static Pressure (IWG) 0.5 0.6
Airflow (CFM) 850 950
Blower Motor BHP 0.37 0.42
Octave Center Freq. Hz ID Blower Only (dB) Cooling Operation1 (dB) ID Blower Only (dB) Cooling Operation1 (dB)
63 77 78 79 79
125 74 75 75 76
250 66 68 70 70
500 61 61 65 64
1000 60 62 65 66
2000 52 52 58 58
4000 52 52 59 60
8000 44 44 50 50
1. Cooling Operation – ID blower, compressor and outdoor fan operating at 230 VAC.
• Tested in accordance with ARI Standard 260-2001. Refer to 2001 Standard for Sound Rating of Ducted Air Moving and Conditioning
Equipment.
• Testing datum includes effect of standard inlet air filters.
• Test duct dimension: 18 in. wide x 28 in. high x 8 ft. long, no elbows.
• Test duct termination is flush with reverberant room wall.
• Duct end (sound reflection) corrections included: (7.2, 3.4, 1.2, 0.4, 0.1, 0, 0, 0) dB at (63, 125, 250, 500, 1k, 2k, 4k, 8k) Hz respectively.
UNIT DESCRIPTION / MODEL ZH/ZJ/ZR061 / 5 Ton / Standard Static Belt Drive
TEST CONFIGURATION Horizontal (Side Supply) Ducted Discharge
Indoor Blower Speed (RPM) 810 - 3 Turns Open Equivalent 918 - 1 Turn Open Equivalent
External Static Pressure (IWG) 0.4 0.8
Airflow (CFM) 2050 1950
Blower Motor BHP 0.73 0.88
Octave Center Freq. Hz ID Blower Only (dB) Cooling Operation1 (dB) ID Blower Only (dB) Cooling Operation1 (dB)
63 85 83 83 83
125 78 79 76 79
250 69 70 69 70
500 68 68 68 68
1000 64 64 65 65
2000 63 63 64 64
4000 64 64 64 64
8000 59 59 59 60
1. Cooling Operation – ID blower, compressor and outdoor fan operating at 230 VAC.
• Tested in accordance with ARI Standard 260-2001. Refer to 2001 Standard for Sound Rating of Ducted Air Moving and Conditioning
Equipment.
• Testing datum includes effect of standard inlet air filters.
• Test duct dimension: 18 in. wide x 28 in. high x 8 ft. long, no elbows.
• Test duct termination is flush with reverberant room wall.
• Duct end (sound reflection) corrections included: (7.2, 3.4, 1.2, 0.4, 0.1, 0, 0, 0) dB at (63, 125, 250, 500, 1k, 2k, 4k, 8k) Hz respectively.

528150-YTG-G-1210
Johnson Controls Unitary Products 125
Indoor Sound Power Levels (Vertical Ducted Inlet, Standard Static Belt Drive)
UNIT DESCRIPTION / MODEL ZH/ZJ/ZR037 / 3 Ton / Standard Static Belt Drive
TEST CONFIGURATION Vertical (Bottom Return) Ducted Inlet
Indoor Blower Speed (RPM) 609 - 3 Turns Open Equivalent 708 - 1 Turn Open Equivalent
External Static Pressure (IWG) 0.4 0.4
Airflow (CFM) 850 1150
Blower Motor BHP 0.32 0.38
Octave Center Freq. Hz ID Blower Only (dB) Cooling Operation1 (dB)
1. Differentials for Cooling Operation (IDB, COMP, & ODF) are logarithmically calculated from the horizontal flow sound test.
• Tested in accordance with ARI Standard 260-2001. Refer to 2001 Standard for Sound Rating of Ducted Air Moving and Conditioning
Equipment.
• Testing datum includes effect of standard inlet air filters.
• Test duct dimension: 18 in. wide x 28 in. high x 8 ft. long, no elbows.
• Test duct termination is flush with reverberant room wall.
• Duct end (sound reflection) corrections included: (7.2, 3.4, 1.2, 0.4, 0.1, 0, 0, 0) dB at (63, 125, 250, 500, 1k, 2k, 4k, 8k) Hz respectively.
ID Blower Only (dB) Cooling Operation1 (dB)
63 76 76 74 76
125 63 70 66 70
250 55 62 59 62
500 54 55 58 59
1000 48 48 53 53
2000 44 44 48 48
4000 41 44 45 46
8000 42 43 43 44
UNIT DESCRIPTION / MODEL ZH/ZJ/ZR049 / 4 Ton / Standard Static Belt Drive
TEST CONFIGURATION Vertical (Bottom Return) Ducted Inlet
Indoor Blower Speed (RPM) 609 - 3 Turns Open Equivalent 708 - 1 Turn Open Equivalent
External Static Pressure (IWG) 0.4 0.4
Airflow (CFM) 850 1150
Blower Motor BHP 0.32 0.38
Octave Center Freq. Hz ID Blower Only (dB) Cooling Operation1 (dB) ID Blower Only (dB) Cooling Operation1 (dB)
63 76 76 74 76
125 63 70 66 70
250 55 62 59 62
500 54 55 58 59
1000 48 48 53 53
2000 44 44 48 48
4000 41 44 45 46
8000 42 43 43 44
1. Differentials for Cooling Operation (IDB, COMP, & ODF) are logarithmically calculated from the horizontal flow sound test.
• Tested in accordance with ARI Standard 260-2001. Refer to 2001 Standard for Sound Rating of Ducted Air Moving and Conditioning
Equipment.
• Testing datum includes effect of standard inlet air filters.
• Test duct dimension: 18 in. wide x 28 in. high x 8 ft. long, no elbows.
• Test duct termination is flush with reverberant room wall.
• Duct end (sound reflection) corrections included: (7.2, 3.4, 1.2, 0.4, 0.1, 0, 0, 0) dB at (63, 125, 250, 500, 1k, 2k, 4k, 8k) Hz respectively.

528150-YTG-G-1210
126 Johnson Controls Unitary Products
Indoor Sound Power Levels (Vertical Ducted Discharge, Standard Static Belt Drive)
UNIT DESCRIPTION / MODEL ZH/ZJ/ZR061 / 5 Ton / Standard Static Belt Drive
TEST CONFIGURATION Vertical (Bottom Return) Ducted Inlet
Indoor Blower Speed (RPM) 812 - 3 Turns Open Equivalent 915- 1 Turn Open Equivalent
External Static Pressure (IWG) 0.6 0.8
Airflow (CFM) 1575 1800
Blower Motor BHP 0.64 0.83
Octave Center Freq. Hz ID Blower Only (dB) Cooling Operation1 (dB) ID Blower Only (dB) Cooling Operation1 (dB)
63 75 78 80 80
125 66 80 69 81
250 59 66 62 65
500 60 60 63 63
1000 57 57 60 60
2000 52 53 55 55
4000 49 50 53 53
8000 44 45 47 47
1. Differentials for Cooling Operation (IDB, COMP, & ODF) are logarithmically calculated from the horizontal flow sound test.
• Tested in accordance with ARI Standard 260-2001. Refer to 2001 Standard for Sound Rating of Ducted Air Moving and Conditioning
Equipment.
• Testing datum includes effect of standard inlet air filters.
• Test duct dimension: 18 in. wide x 28 in. high x 8 ft. long, no elbows.
• Test duct termination is flush with reverberant room wall.
• Duct end (sound reflection) corrections included: (7.2, 3.4, 1.2, 0.4, 0.1, 0, 0, 0) dB at (63, 125, 250, 500, 1k, 2k, 4k, 8k) Hz respectively.
UNIT DESCRIPTION / MODEL ZH/ZJ/ZR037 / 3 Ton / Standard Static Belt Drive
TEST CONFIGURATION Vertical (Bottom Supply) Ducted Discharge
Indoor Blower Speed (RPM) 609 - 3 Turns Open Equivalent 712 - 1 Turn Open Equivalent
External Static Pressure (IWG) 0.4 0.6
Airflow (CFM) 850 950
Blower Motor BHP 0.32 0.42
Octave Center Freq. Hz ID Blower Only (dB) Cooling Operation1 (dB) ID Blower Only (dB) Cooling Operation1 (dB)
63 76 77 81 81
125 68 68 72 72
250 55 65 57 57
500 56 57 57 57
1000 51 57 52 56
2000 49 49 50 50
4000 48 48 49 51
8000 46 46 47 48
1. Differentials for Cooling Operation (IDB, COMP, & ODF) are logarithmically calculated from the horizontal flow sound test.
• Tested in accordance with ARI Standard 260-2001. Refer to 2001 Standard for Sound Rating of Ducted Air Moving and Conditioning
Equipment.
• Testing datum includes effect of standard inlet air filters.
• Test duct dimension: 18 in. wide x 28 in. high x 8 ft. long, no elbows.
• Test duct termination is flush with reverberant room wall.
• Duct end (sound reflection) corrections included: (7.2, 3.4, 1.2, 0.4, 0.1, 0, 0, 0) dB at (63, 125, 250, 500, 1k, 2k, 4k, 8k) Hz respectively.

528150-YTG-G-1210
Johnson Controls Unitary Products 127
UNIT DESCRIPTION / MODEL ZH/ZJ/ZR049 / 4 Ton / Standard Static Belt Drive
TEST CONFIGURATION Vertical (Bottom Supply) Ducted Discharge
Indoor Blower Speed (RPM) 609 - 3 Turns Open Equivalent 712 - 1 Turn Open Equivalent
External Static Pressure (IWG) 0.4 0.6
Airflow (CFM) 850 950
Blower Motor BHP 0.32 0.42
Octave Center Freq. Hz ID Blower Only (dB) Cooling Operation1 (dB) ID Blower Only (dB) Cooling Operation1 (dB)
63 76 77 81 81
125 68 68 72 72
250 55 65 57 57
500 56 57 57 57
1000 51 57 52 56
2000 49 49 50 50
4000 48 48 49 51
8000 46 46 47 48
1. Differentials for Cooling Operation (IDB, COMP, & ODF) are logarithmically calculated from the horizontal flow sound test.
• Tested in accordance with ARI Standard 260-2001. Refer to 2001 Standard for Sound Rating of Ducted Air Moving and Conditioning
Equipment.
• Testing datum includes effect of standard inlet air filters.
• Test duct dimension: 18 in. wide x 28 in. high x 8 ft. long, no elbows.
• Test duct termination is flush with reverberant room wall.
• Duct end (sound reflection) corrections included: (7.2, 3.4, 1.2, 0.4, 0.1, 0, 0, 0) dB at (63, 125, 250, 500, 1k, 2k, 4k, 8k) Hz respectively.
UNIT DESCRIPTION / MODEL ZH/ZJ/ZR061 / 5 Ton / Standard Static Belt Drive
TEST CONFIGURATION Vertical (Bottom Supply) Ducted Discharge
Indoor Blower Speed (RPM) 809 - 3 Turns Open Equivalent 914 - 1 Turn Open Equivalent
External Static Pressure (IWG) 0.5 0.8
Airflow (CFM) 1700 1800
Blower Motor BHP 0.64 0.83
Octave Center Freq. Hz ID Blower Only (dB) Cooling Operation1 (dB) ID Blower Only (dB) Cooling Operation1 (dB)
63 81 81 79 79
125 75 75 75 76
250 65 65 63 63
500 67 67 67 67
1000 63 63 63 63
2000 61 62 61 61
4000 62 62 61 61
8000 57 57 56 56
1. Differentials for Cooling Operation (IDB, COMP, & ODF) are logarithmically calculated from the horizontal flow sound test.
• Tested in accordance with ARI Standard 260-2001. Refer to 2001 Standard for Sound Rating of Ducted Air Moving and Conditioning
Equipment.
• Testing datum includes effect of standard inlet air filters.
• Test duct dimension: 18 in. wide x 28 in. high x 8 ft. long, no elbows.
• Test duct termination is flush with reverberant room wall.
• Duct end (sound reflection) corrections included: (7.2, 3.4, 1.2, 0.4, 0.1, 0, 0, 0) dB at (63, 125, 250, 500, 1k, 2k, 4k, 8k) Hz respectively.

528150-YTG-G-1210
128 Johnson Controls Unitary Products
Indoor Sound Power Levels (Horizontal Ducted Inlet, High Static Belt Drive)
UNIT DESCRIPTION / MODEL ZH/ZJ/ZR037 / 3 Ton / High Static Belt Drive
TEST CONFIGURATION Horizontal (Side Return) Ducted Inlet
Indoor Blower Speed (RPM) 876 - 4 Turns Open Equivalent 1,064 - 1/2 Turn Open Equivalent 1,190 - 2.5 Turns Open Equivalent1
External Static Pressure (IWG) 1.0 1.6 2.0 1
Nominal Airflow (CFM) 1,200 1,100 1,000
Blower Motor BHP 0.64 0.93 1.08
Octave Center Freq. Hz ID Blower
Only (dB)
Cooling
Operation2 (dB)
ID Blower
Only (dB)
Cooling
Operation2 (dB)
ID Blower
Only (dB)
Cooling
Operation2 (dB)
63 75 80 81 81 81 83
125 69 71 71 73 73 75
250 62 68 66 71 68 70
500 54 56 57 59 59 60
1000 52 56 56 58 58 60
2000 47 49 52 52 54 56
4000 43 45 48 49 51 53
8000 43 45 45 46 47 48
1. Requires driven pulley #AK-56, normal high static pulley is an #AK-69.
2. Cooling Operation – ID blower, compressor and outdoor fan operating at 230 VAC.
• Tested in accordance with ARI Standard 260-2001. Refer to 2001 Standard for Sound Rating of Ducted Air Moving and Conditioning
Equipment.
• Testing datum includes effect of standard inlet air filters.
• Test duct dimension: 18 in. wide x 28 in. high x 8 ft. long, no elbows.
• Test duct termination is flush with reverberant room wall.
• Duct end (sound reflection) corrections included: (7.2, 3.4, 1.2, 0.4, 0.1, 0, 0, 0) dB at (63, 125, 250, 500, 1k, 2k, 4k, 8k) Hz respectively.
UNIT DESCRIPTION / MODEL ZH/ZJ/ZR049 / 4 Ton / High Static Belt Drive
TEST CONFIGURATION Horizontal (Side Return) Ducted Inlet
Indoor Blower Speed (RPM) 965 - 5.5 Turns Open Equivalent 1,088 - 4 Turns Open Equivalent 1,186 - 2.5 Turns Open Equivalent
External Static Pressure (IWG) 1.0 1.6 2.0
Nominal Airflow (CFM) 1,600 1,400 1,200
Blower Motor BHP 0.86 1.03 1.13
Octave Center Freq. Hz ID Blower
Only (dB)
Cooling
Operation1 (dB)
ID Blower
Only (dB)
Cooling
Operation1 (dB)
ID Blower
Only (dB)
Cooling
Operation1 (dB)
63 74 80 77 80 81 81
125 69 74 72 75 75 76
250 68 68 68 69 70 71
500 62 62 60 61 61 63
1000 60 61 58 58 59 60
2000 57 57 53 54 55 56
4000 56 56 49 50 51 52
8000 54 54 45 47 47 48
1. Cooling Operation – ID blower, compressor and outdoor fan operating at 230 VAC.
• Tested in accordance with ARI Standard 260-2001. Refer to 2001 Standard for Sound Rating of Ducted Air Moving and Conditioning
Equipment.
• Testing datum includes effect of standard inlet air filters.
• Test duct dimension: 18 in. wide x 28 in. high x 8 ft. long, no elbows.
• Test duct termination is flush with reverberant room wall.
• Duct end (sound reflection) corrections included: (7.2, 3.4, 1.2, 0.4, 0.1, 0, 0, 0) dB at (63, 125, 250, 500, 1k, 2k, 4k, 8k) Hz respectively.

528150-YTG-G-1210
Johnson Controls Unitary Products 129
Indoor Sound Power Levels (Horizontal Ducted Discharge, High Static Belt Drive)
UNIT DESCRIPTION / MODEL ZH/ZJ/ZR061 / 5 Ton / High Static Belt Drive
TEST CONFIGURATION Horizontal (Side Return) Ducted Inlet
Indoor Blower Speed (RPM) 1,012- 5.5 Turns Open Equivalent 1,134 - 3 Turns Open Equivalent 1,174 - 2 Turns Open Equivalent
External Static Pressure (IWG) 1.0 1.6 2.0
Nominal Airflow (CFM) 2,000 1,800 1,600
Blower Motor BHP 1.04 1.25 1.39
Octave Center Freq. Hz ID Blower
Only (dB)
Cooling
Operation1 (dB)
ID Blower
Only (dB)
Cooling
Operation1 (dB)
ID Blower
Only (dB)
Cooling
Operation1 (dB)
63 76 78 78 79 79 81
125 70 73 73 76 74 77
250 68 70 68 69 69 70
500 61 62 61 62 60 62
1000 61 62 61 62 58 60
2000 57 58 57 58 54 56
4000 56 56 55 56 52 53
8000 50 50 50 50 47 48
1. Cooling Operation – ID blower, compressor and outdoor fan operating at 230 VAC.
• Tested in accordance with ARI Standard 260-2001. Refer to 2001 Standard for Sound Rating of Ducted Air Moving and Conditioning
Equipment.
• Testing datum includes effect of standard inlet air filters.
• Test duct dimension: 18 in. wide x 28 in. high x 8 ft. long, no elbows.
• Test duct termination is flush with reverberant room wall.
• Duct end (sound reflection) corrections included: (7.2, 3.4, 1.2, 0.4, 0.1, 0, 0, 0) dB at (63, 125, 250, 500, 1k, 2k, 4k, 8k) Hz respectively.
UNIT DESCRIPTION / MODEL ZH/ZJ/ZR037 / 3 Ton / High Static Belt Drive
TEST CONFIGURATION Horizontal (Side Supply) Ducted Discharge
Indoor Blower Speed (RPM) 896 - 3.5 Turns Open Equivalent 1,072 - Fully Closed Equivalent 1,170 - 2.5 Turns Open Equivalent1
1. Requires driven pulley #AK-56, normal high static pulley is an #AK-69.
External Static Pressure (IWG) 1.0 1.6 2.0 1
Nominal Airflow (CFM) 1,200 1,100 1,000
Blower Motor BHP 0.64 0.93 1.08
Octave Center Freq. Hz ID Blower
Only (dB)
Cooling
Operation2 (dB)
2. Cooling Operation – ID blower, compressor and outdoor fan operating at 230 VAC.
• Tested in accordance with ARI Standard 260-2001. Refer to 2001 Standard for Sound Rating of Ducted Air Moving and Conditioning
Equipment.
• Testing datum includes effect of standard inlet air filters.
• Test duct dimension: 18 in. wide x 28 in. high x 8 ft. long, no elbows.
• Test duct termination is flush with reverberant room wall.
• Duct end (sound reflection) corrections included: (7.2, 3.4, 1.2, 0.4, 0.1, 0, 0, 0) dB at (63, 125, 250, 500, 1k, 2k, 4k, 8k) Hz respectively.
ID Blower
Only (dB)
Cooling
Operation2 (dB)
ID Blower
Only (dB)
Cooling
Operation2 (dB)
63 77 81 83 84 83 84
125 74 76 76 77 80 80
250 67 68 70 70 72 73
500 65 66 67 67 67 68
1000 61 62 67 67 66 69
2000 58 60 63 63 63 64
4000 57 59 62 62 62 63
8000 51 53 56 57 56 58

528150-YTG-G-1210
130 Johnson Controls Unitary Products
UNIT DESCRIPTION / MODEL ZH/ZJ/ZR049 / 4 Ton / High Static Belt Drive
TEST CONFIGURATION Horizontal (Side Supply) Ducted Discharge
Indoor Blower Speed (RPM) 922 - 6 Turns Open Equivalent 1,069 - 4 Turns Open Equivalent 1,165 - 2.5 Turns Open Equivalent
External Static Pressure (IWG) 1.0 1.6 2.0
Nominal Airflow (CFM) 1,600 1,400 1,200
Blower Motor BHP 0.86 1.03 1.13
Octave Center Freq. Hz ID Blower
Only (dB)
Cooling
Operation1 (dB)
ID Blower
Only (dB)
Cooling
Operation1 (dB)
ID Blower
Only (dB)
Cooling
Operation1 (dB)
63 80 82 82 83 84 84
125 76 77 76 77 78 79
250 71 72 72 72 74 74
500 69 69 69 69 70 70
1000 65 65 69 69 70 70
2000 64 64 64 64 65 65
4000 63 63 63 63 64 64
8000 58 58 58 58 59 59
1. Cooling Operation – ID blower, compressor and outdoor fan operating at 230 VAC.
• Tested in accordance with ARI Standard 260-2001. Refer to 2001 Standard for Sound Rating of Ducted Air Moving and Conditioning
Equipment.
• Testing datum includes effect of standard inlet air filters.
• Test duct dimension: 18 in. wide x 28 in. high x 8 ft. long, no elbows.
• Test duct termination is flush with reverberant room wall.
• Duct end (sound reflection) corrections included: (7.2, 3.4, 1.2, 0.4, 0.1, 0, 0, 0) dB at (63, 125, 250, 500, 1k, 2k, 4k, 8k) Hz respectively.
UNIT DESCRIPTION / MODEL ZH/ZJ/ZR061 / 5 Ton / High Static Belt Drive
TEST CONFIGURATION Horizontal (Side Supply) Ducted Discharge
Indoor Blower Speed (RPM) 1,009- 5.5 Turns Open Equivalent 1,131 - 3 Turns Open Equivalent 1,184 - 2 Turns Open Equivalent
External Static Pressure (IWG) 1.0 1.6 2.0
Nominal Airflow (CFM) 2,000 1,800 1,600
Blower Motor BHP 1.04 1.25 1.39
Octave Center Freq. Hz ID Blower
Only (dB)
Cooling
Operation1 (dB)
ID Blower
Only (dB)
Cooling
Operation1 (dB)
ID Blower
Only (dB)
Cooling
Operation1 (dB)
63 84 85 82 83 82 83
125 78 79 79 79 78 79
250 75 75 74 75 73 73
500 71 71 70 71 69 69
1000 69 69 71 71 71 72
2000 66 67 67 67 66 66
4000 66 66 66 67 66 66
8000 61 62 61 62 60 60
1. Cooling Operation – ID blower, compressor and outdoor fan operating at 230 VAC.
• Tested in accordance with ARI Standard 260-2001. Refer to 2001 Standard for Sound Rating of Ducted Air Moving and Conditioning
Equipment.
• Testing datum includes effect of standard inlet air filters.
• Test duct dimension: 18 in. wide x 28 in. high x 8 ft. long, no elbows.
• Test duct termination is flush with reverberant room wall.
• Duct end (sound reflection) corrections included: (7.2, 3.4, 1.2, 0.4, 0.1, 0, 0, 0) dB at (63, 125, 250, 500, 1k, 2k, 4k, 8k) Hz respectively.

528150-YTG-G-1210
Johnson Controls Unitary Products 131
Indoor Sound Power Levels (Vertical Ducted Inlet, High Static Belt Drive)
UNIT DESCRIPTION / MODEL ZH/ZJ/ZR037 / 3 Ton / High Static Belt Drive
TEST CONFIGURATION Vertical (Bottom Return) Ducted Inlet
Indoor Blower Speed (RPM) 927 - 3 Turns Open Equivalent 1,085 - 1/2 Turn Open Equivalent 1,190 - 2.5 Turns Open Equivalent1
1. Requires driven pulley #AK-56, normal high static pulley is an #AK-69.
External Static Pressure (IWG) 1.0 1.6 2.01
Nominal Airflow (CFM) 1,200 1,100 1,000
Blower Motor BHP 0.68 0.93 1.09
Octave Center Freq. Hz ID Blower
Only (dB)
Cooling
Operation2 (dB)
2. Differentials for Cooling Operation (IDB, COMP, & ODF) are logarithmically calculated from the horizontal flow sound test.
• Tested in accordance with ARI Standard 260-2001. Refer to 2001 Standard for Sound Rating of Ducted Air Moving and Conditioning
Equipment.
• Testing datum includes effect of standard inlet air filters.
• Test duct dimension: 18 in. wide x 28 in. high x 8 ft. long, no elbows.
• Test duct termination is flush with reverberant room wall.
• Duct end (sound reflection) corrections included: (7.2, 3.4, 1.2, 0.4, 0.1, 0, 0, 0) dB at (63, 125, 250, 500, 1k, 2k, 4k, 8k) Hz respectively.
ID Blower
Only (dB)
Cooling
Operation2 (dB)
ID Blower
Only (dB)
Cooling
Operation2 (dB)
63 77 79 82 83 79 81
125 68 69 70 71 72 73
250 60 67 62 69 64 67
500 58 58 63 63 62 63
1000 54 55 60 60 60 60
2000 48 49 56 56 55 55
4000 43 44 48 49 51 51
8000 44 44 45 46 47 47
UNIT DESCRIPTION / MODEL ZH/ZJ/ZR049 / 4 Ton / High Static Belt Drive
TEST CONFIGURATION Vertical (Bottom Return) Ducted Inlet
Indoor Blower Speed (RPM) 968 - 5.5 Turns Open Equivalent 1,120 - 3.5 Turns Open Equivalent 1,218 - 2.0 Turns Open Equivalent
External Static Pressure (IWG) 1.0 1.6 2.0
Nominal Airflow (CFM) 1,600 1,400 1,200
Blower Motor BHP 0.86 1.03 1.13
Octave Center Freq. Hz ID Blower
Only (dB)
Cooling
Operation1 (dB)
ID Blower
Only (dB)
Cooling
Operation1 (dB)
ID Blower
Only (dB)
Cooling
Operation1 (dB)
63 77 79 78 78 81 81
125 69 73 71 73 73 74
250 63 63 63 64 66 66
500 63 64 62 63 64 64
1000 59 59 59 59 61 61
2000 54 54 53 54 56 56
4000 49 49 48 48 50 51
8000 45 46 45 46 47 47
1. Differentials for Cooling Operation (IDB, COMP, & ODF) are logarithmically calculated from the horizontal flow sound test.
• Tested in accordance with ARI Standard 260-2001. Refer to 2001 Standard for Sound Rating of Ducted Air Moving and Conditioning
Equipment.
• Testing datum includes effect of standard inlet air filters.
• Test duct dimension: 18 in. wide x 28 in. high x 8 ft. long, no elbows.
• Test duct termination is flush with reverberant room wall.
• Duct end (sound reflection) corrections included: (7.2, 3.4, 1.2, 0.4, 0.1, 0, 0, 0) dB at (63, 125, 250, 500, 1k, 2k, 4k, 8k) Hz respectively.

528150-YTG-G-1210
132 Johnson Controls Unitary Products
Indoor Sound Power Levels (Vertical Ducted Discharge, High Static Belt Drive)
UNIT DESCRIPTION / MODEL ZH/ZJ/ZR061 / 5 Ton / High Static Belt Drive
TEST CONFIGURATION Vertical (Bottom Return) Ducted Inlet
Indoor Blower Speed (RPM) 1,039 - 5 Turns Open Equivalent 1,143 - 3 Turns Open Equivalent 1,201 - 2 Turns Open Equivalent
External Static Pressure (IWG) 1.0 1.6 2.0
Nominal Airflow (CFM) 2,000 1,800 1,600
Blower Motor BHP 1.11 1.25 1.39
Octave Center Freq. Hz ID Blower
Only (dB)
Cooling
Operation1 (dB)
ID Blower
Only (dB)
Cooling
Operation1 (dB)
ID Blower
Only (dB)
Cooling
Operation1 (dB)
63 79 80 77 77 81 81
125 74 75 71 73 73 74
250 63 65 63 64 63 65
500 62 63 64 64 62 62
1000 61 61 61 61 59 59
2000 55 56 55 56 54 55
4000 52 52 50 51 50 50
8000 47 47 46 46 46 46
1. Differentials for Cooling Operation (IDB, COMP, & ODF) are logarithmically calculated from the horizontal flow sound test.
• Tested in accordance with ARI Standard 260-2001. Refer to 2001 Standard for Sound Rating of Ducted Air Moving and Conditioning
Equipment.
• Testing datum includes effect of standard inlet air filters.
• Test duct dimension: 18 in. wide x 28 in. high x 8 ft. long, no elbows.
• Test duct termination is flush with reverberant room wall.
• Duct end (sound reflection) corrections included: (7.2, 3.4, 1.2, 0.4, 0.1, 0, 0, 0) dB at (63, 125, 250, 500, 1k, 2k, 4k, 8k) Hz respectively.
UNIT DESCRIPTION / MODEL ZH/ZJ/ZR037 / 3 Ton / High Static Belt Drive
TEST CONFIGURATION Vertical (Bottom Supply) Ducted Discharge
Indoor Blower Speed (RPM) 920 - 3.0 Turns Open Equivalent 1,074 - Fully Closed Equivalent 1,189 - 2.0 Turns Open Equivalent1
External Static Pressure (IWG) 1.0 1.6 2.01
Nominal Airflow (CFM) 1,200 1,100 1,000
Blower Motor BHP 0.68 0.93 1.09
Octave Center Freq. Hz ID Blower
Only (dB)
Cooling
Operation2 (dB)
ID Blower
Only (dB)
Cooling
Operation2 (dB)
ID Blower
Only (dB)
Cooling
Operation2 (dB)
63 81 82 81 81 82 82
125 78 78 78 78 81 81
250 69 70 70 71 74 74
500 67 68 68 69 71 71
1000 62 63 67 68 70 71
2000 60 61 62 63 65 66
4000 61 61 63 63 66 66
8000 54 55 57 57 60 61
1. Requires driven pulley #AK-56, normal high static pulley is an #AK-69.
2. Differentials for Cooling Operation (IDB, COMP, & ODF) are logarithmically calculated from the horizontal flow sound test.
• Tested in accordance with ARI Standard 260-2001. Refer to 2001 Standard for Sound Rating of Ducted Air Moving and Conditioning
Equipment.
• Testing datum includes effect of standard inlet air filters.
• Test duct dimension: 18 in. wide x 28 in. high x 8 ft. long, no elbows.
• Test duct termination is flush with reverberant room wall.
• Duct end (sound reflection) corrections included: (7.2, 3.4, 1.2, 0.4, 0.1, 0, 0, 0) dB at (63, 125, 250, 500, 1k, 2k, 4k, 8k) Hz respectively.

528150-YTG-G-1210
Johnson Controls Unitary Products 133
UNIT DESCRIPTION / MODEL ZH/ZJ/ZR049 / 4 Ton / High Static Belt Drive
TEST CONFIGURATION Vertical (Bottom Supply) Ducted Discharge
Indoor Blower Speed (RPM) 962 - 5.5 Turns Open Equivalent 1,092 - 3.5 Turns Open Equivalent 1,190 - 2.0 Turns Open Equivalent
External Static Pressure (IWG) 1.0 1.6 2.0
Nominal Airflow (CFM) 1,600 1,400 1,200
Blower Motor BHP 0.86 1.03 1.13
Octave Center Freq. Hz ID Blower
Only (dB)
Cooling
Operation1 (dB)
ID Blower
Only (dB)
Cooling
Operation1 (dB)
ID Blower
Only (dB)
Cooling
Operation1 (dB)
63 83 84 82 82 83 83
125 80 81 79 80 80 81
250 75 75 74 75 75 75
500 71 72 70 71 71 72
1000 66 67 70 71 72 72
2000 63 64 64 64 65 65
4000 64 64 64 64 65 66
8000 58 59 59 59 60 60
1. Differentials for Cooling Operation (IDB, COMP, & ODF) are logarithmically calculated from the horizontal flow sound test.
• Tested in accordance with ARI Standard 260-2001. Refer to 2001 Standard for Sound Rating of Ducted Air Moving and Conditioning
Equipment.
• Testing datum includes effect of standard inlet air filters.
• Test duct dimension: 18 in. wide x 28 in. high x 8 ft. long, no elbows.
• Test duct termination is flush with reverberant room wall.
• Duct end (sound reflection) corrections included: (7.2, 3.4, 1.2, 0.4, 0.1, 0, 0, 0) dB at (63, 125, 250, 500, 1k, 2k, 4k, 8k) Hz respectively.
UNIT DESCRIPTION / MODEL ZH/ZJ/ZR061 / 5 Ton / High Static Belt Drive
TEST CONFIGURATION Vertical (Bottom Supply) Ducted Discharge
Indoor Blower Speed (RPM) 1,033 - 5.5 Turns Open Equivalent 1,135 - 3 turns Open Equivalent 1,175 - 2.5 Turns Open Equivalent
External Static Pressure (IWG) 1.0 1.6 2.0
Nominal Airflow (CFM) 2,000 1,135 1,175
Blower Motor BHP 1.11 1.25 1.39
Octave Center Freq. Hz ID Blower
Only (dB)
Cooling
Operation1 (dB)
ID Blower
Only (dB)
Cooling
Operation1 (dB)
ID Blower
Only (dB)
Cooling
Operation1 (dB)
63 83 83 83 83 85 86
125 84 84 82 82 79 81
250 79 80 77 78 66 66
500 73 73 70 71 65 66
1000 69 70 69 70 61 65
2000 67 67 65 66 60 61
4000 67 68 66 67 61 62
8000 62 63 60 61 54 54
1. Differentials for Cooling Operation (IDB, COMP, & ODF) are logarithmically calculated from the horizontal flow sound test.
• Tested in accordance with ARI Standard 260-2001. Refer to 2001 Standard for Sound Rating of Ducted Air Moving and Conditioning
Equipment.
• Testing datum includes effect of standard inlet air filters.
• Test duct dimension: 18 in. wide x 28 in. high x 8 ft. long, no elbows.
• Test duct termination is flush with reverberant room wall.
• Duct end (sound reflection) corrections included: (7.2, 3.4, 1.2, 0.4, 0.1, 0, 0, 0) dB at (63, 125, 250, 500, 1k, 2k, 4k, 8k) Hz respectively.

528150-YTG-G-1210
134 Johnson Controls Unitary Products
Indoor Sound Power Levels (6.5 thru 12.5 Ton)
Size
(Tons) Model CFM ESP
(IWG)
Blower Sound Power, dB (10-12) Watts
Sound Rating1
dB (A)
Octave Band Centerline Frequency (Hz)
RPM BHP 63 125 250 500 1000 2000 4000 8000
078
(6.5) ZH/ZJ/ZR 2600 0.6 812 1.14 74 71 73 73 71 69 65 65 60
090
(7.5) ZH/ZJ/ZR 3000 0.6 854 1.47 77 74 76 76 74 72 68 68 63
102
(8.5) ZH/ZJ/ZR 3400 0.6 872 1.65 80 77 79 79 77 75 71 71 66
120
(10) ZH/ZJ/ZR 4000 0.6 959 2.29 83 80 82 82 80 78 74 74 69
150
(12.5) ZH/ZJ/ZR 5000 0.6 1132 3.74 87 84 86 86 84 82 78 78 73
1. These values have been accessed using a model of sound propagation from a point source into the hemispheric/free field. The dBA values
provided are to be used for reference only. Calculation of dBA values cover matters of system design and the fan manufacture has no way
of knowing the details of each system. This constitutes an exception to any specification or guarantee requiring a dBA value of sound data
in any other form than sound power level ratings.

528150-YTG-G-1210
Johnson Controls Unitary Products 135
Outdoor Sound Power Levels
ZH/ZJ/ZR037-150
Size
(Tons) Model Sound Rating1
dB (A)
Octave Band Centerline Frequency (Hz)
63 125 250 500 1000 2000 4000 8000
037
(3) ZH 81 82.5 86.5 78.0 75.5 76.5 68.5 63.0 56.5
049
(4) ZH 78 82.0 86.0 78.5 75.5 73.0 68.0 63.0 56.0
061
(5) ZH 85 83.0 89.5 83.5 82.5 78.5 73.5 68.0 63.5
078
(6.5) ZH 87 89.0 88.5 84.5 84.5 82.0 76.5 72.0 66.5
090
(7.5) ZH 92 93.0 92.0 90.5 88.0 86.5 83.0 77.5 73.5
102
(8.5) ZH 92 97.0 94.0 93.5 90.5 87.0 81.5 76.0 69.0
120
(10) ZH 91 99.5 91.5 91.5 89.0 86.0 80.5 76.5 71.0
150
(12.5) ZH 86 89.5 91.0 85.5 84.0 81.0 76.5 71.0 62.5
037
(3) ZJ 77 82.0 83.5 80.0 73.0 70.0 65.5 60.5 55.5
049
(4) ZJ 81 87.5 88.5 83.0 77.5 73.5 70.5 67.0 62.0
061
(5) ZJ 84 86.5 87.0 86.0 79.0 76.5 71.5 68.0 64.0
078
(6.5) ZJ 85 87.5 85.0 84.0 82.0 80.0 75.5 71.5 67.0
090
(7.5) ZJ 90 90.0 93.0 90.5 86.0 83.5 81.5 78.0 75.0
102
(8.5) ZJ 92 97.0 94.0 93.5 90.5 87.0 81.5 76.0 69.0
120
(10) ZJ 91 99.5 91.5 91.5 89.0 86.0 80.5 76.5 71.0
150
(12.5) ZJ 85 89.0 88.0 83.5 83.5 78.5 74.0 69.5 64.5
037
(3) ZR 77 82.0 83.5 80.0 73.0 70.0 65.5 60.5 55.5
049
(4) ZR 81 87.5 88.5 83.0 77.5 73.5 70.5 67.0 62.0
61
(5) ZR 84 86.5 87.0 86.0 79.0 76.5 71.5 68.0 64.0
078
(6.5) ZR 83 ~88.0 82.5 81.5 78.0 73.0 69.0 62.0
090
(7.5) ZR 83 ~89.5 83.5 82.0 78.0 72.5 68.0 60.5
102
(8.5) ZR 83 ~89.0 84.5 81.5 78.0 72.5 68.5 70.5
120
(10) ZR 83 ~89.5 83.5 81.0 78.0 72.0 68.5 70.5
150
(12.5) ZR 84 ~90.0 84.5 81.5 77.5 72.0 68.5 61.5
1. Rated in accordance with ARI 270 standard.

528150-YTG-G-1210
136 Johnson Controls Unitary Products
Electrical Data
ZH037-061 Standard Indoor Blower - Without Powered Convenience Outlet
Size
(Tons) Volt
Compressors
(each)
OD Fan
Motors
(each)
Supply
Blower
Motor
Pwr
Exh
Motor
Pwr
Conv
Outlet Electric Heat Option MCA1
(Amps)
1. Minimum Circuit Ampacity.
MCA1
w/Pwr
Exh
(Amps)
Max Fuse2/
Breaker3
Size
(Amps)
2. Dual Element, Time Delay Type.
3. HACR type per NEC.
Max Fuse2/
Breaker3
Size w/
Pwr Exh
(Amps)
RLA LRA MCC FLA FLA FLA FLA Model kW Stages Amps
037
(3)
208 9.1 68 14.2 1.5 6.0 5.5 0.0
None-- -18.924.425 30
E03 2.3 1 6.4 18.9 24.4 25 30
E06 4.5 1 12.5 23.1 30 25 30
E08 6.8 1 18.9 31.1 38 35 40
E15 11.3 2 31.4 46.7 53.6 50 60
230 9.1 68 14.2 1.5 6.0 5.5 0.0
None-- -18.924.425 30
E03 3 1 7.2 18.9 24.4 25 30
E06 6 1 14.4 25.5 32.4 30 35
E08 9 1 21.7 34.6 41.4 35 45
E15 15 2 36.1 52.6 59.5 60 60
460 4.5 34 7 0.8 3.0 2.2 0.0
None - - - 9.4 11.6 15 15
E03 3 1 3.6 9.4 11.6 15 15
E06 6 1 7.2 12.8 15.5 15 20
E08 9 1 10.8 17.3 20 20 20
E15 15 2 18.0 26.3 29.1 30 30
575 3.8 28 6 0.6 2.4 1.8 0.0 None - - - 7.8 9.6 15 15
E08 9 1 8.7 13.8 16.1 15 20
E15 15 2 14.4 21 23.3 25 25
049
(4)
208 11.2 88 17.5 1.5 6.0 5.5 0.0
None-- -21.527 30 35
E06 4.5 1 12.5 23.1 30 30 35
E08 6.8 1 18.9 31.1 38 35 40
E15 11.3 2 31.4 46.7 53.6 50 60
E20 15 2 41.6 59.5 66.4 60 70
230 11.2 88 17.5 1.5 6.0 5.5 0.0
None-- -21.727 30 35
E06 6 1 14.4 25.5 32.4 30 35
E08 9 1 21.7 34.6 41.4 35 45
E15 15 2 36.1 52.6 59.5 60 60
E20 20 2 48.1 67.6 74.5 70 80
460 5.6 44 8.0 0.8 3.0 2.2 0.0
None-- -10.813 15 15
E06 6 1 7.2 12.8 15.5 15 20
E08 9 1 10.8 17.3 20 20 20
E15 15 2 18.0 26.3 29.1 30 30
E20 20 2 24.1 33.8 36.6 35 40
575 4.5 36 7.0 0.6 2.4 1.8 0.0
None - - - 8.6 10.4 15 15
E08 9 1 8.7 13.8 16.1 15 20
E15 15 2 14.4 21 23.3 25 25
E20 20 2 19.2 27.1 29.3 30 30
061
(5)
208 13.9 110 21.7 1.5 6.0 5.5 0.0
None-- -24.930.435 40
E06 4.5 1 12.5 24.9 30.4 35 40
E08 6.8 1 18.9 31.1 38 35 40
E15 11.3 2 31.4 46.7 53.6 50 60
E20 15 2 41.6 59.5 66.4 60 70
E23 18 2 50.0 70 76.8 70 80
230 13.9 110 21.7 1.5 6.0 5.5 0.0
None-- -24.930.435 40
E06 6 1 14.4 25.5 32.4 35 40
E08 9 1 21.7 34.6 41.4 35 45
E15 15 2 36.1 52.6 59.5 60 60
E20 20 2 48.1 67.6 74.5 70 80
E23 24 2 57.7 79.7 86.5 80 90
460 7.4 55 11.5 0.8 3.0 2.2 0.0
None-- -13.115.320 20
E06 6 1 7.2 13.1 15.5 20 20
E08 9 1 10.8 17.3 20 20 20
E15 15 2 18.0 26.3 29.1 30 30
E20 20 2 24.1 33.8 36.6 35 40
E23 24 2 28.9 39.8 42.6 40 45
5.6 43 8.7 0.6 2.4 1.8 0.0 5.6
None-- - 1011.815 15
E08 9 1 8.7 13.8 16.1 15 20
E15 15 2 14.4 21 23.3 25 25
E20 20 2 19.2 27.1 29.3 30 30
E23 24 2 23.1 31.9 34.1 35 35

528150-YTG-G-1210
Johnson Controls Unitary Products 137
ZH078-150 Standard Motor - Without Powered Convenience Outlet
Size
(Tons) Volt
Compressors
(each)
OD Fan
Motors
(each)
Supply
Blower
Motor
Pwr
Exh
Motor
Pwr
Conv
Outlet Electric Heat Option MCA1
(Amps)
MCA1
w/Pwr
Exh
(Amps)
Max Fuse2/
Breaker3
Size
(Amps)
Max Fuse2/
Breaker3
Size w/
Pwr Exh
(Amps)
RLA LRA MCC FLA FLA FLA FLA Model kW Stages Amps
078
(6.5)
208 9.3 68 14.5 1.5 6.0 5.5 0.0
None-- -29.935.435 40
E09 6.8 1 18.9 31.1 38 35 40
E18 13.5 2 37.5 54.3 61.2 60 70
E24 18 2 50.0 70 76.8 70 80
E36 25.5 2 70.8 96 102.9 100 110
230 9.3 68 14.5 1.5 6.0 5.5 0.0
None-- -29.935.435 40
E09 9 1 21.7 34.6 41.4 35 45
E18 18 2 43.3 61.6 68.5 70 70
E24 24 2 57.7 79.7 86.5 80 90
E36 34 2 81.8 109.7 116.6 110 125
460 4.9 34 7.7 0.8 3.0 2.2 0.0
None-- -15.617.820 20
E09 9 1 10.8 17.3 20 20 20
E18 18 2 21.7 30.8 33.6 35 35
E24 24 2 28.9 39.8 42.6 40 45
E36 34 2 40.9 54.9 57.6 60 60
575 3.8 28 6 0.6 2.4 1.8 0.0
None-- -12.214 15 15
E09 9 1 8.7 13.8 16.1 15 20
E18 18 2 17.3 24.7 26.9 25 30
E24 24 2 23.1 31.9 34.1 35 35
E36 34 2 32.7 43.9 46.1 45 50
090
(7.5)
208 11.9 88 18.5 3.5 6.0 5.5 0.0
None-- -39.845.350 50
E09 6.8 1 18.9 39.8 45.3 50 50
E18 13.5 2 37.5 54.3 61.2 60 70
E24 18 2 50.0 70 76.8 70 80
E36 25.5 2 70.8 96 102.9 100 110
230 11.9 88 18.5 3.5 6.0 5.5 0.0
None-- -39.845.350 50
E09 9 1 21.7 39.8 45.3 50 50
E18 18 2 43.3 61.6 68.5 70 70
E24 24 2 57.7 79.7 86.5 80 90
E36 34 2 81.8 109.7 116.6 110 125
460 5.2 44 8.1 1.6 3.0 2.2 0.0
None-- -17.920.120 25
E09 9 1 10.8 17.9 20.1 20 25
E18 18 2 21.7 30.8 33.6 35 35
E24 24 2 28.9 39.8 42.6 40 45
E36 34 2 40.9 54.9 57.6 60 60
575 4.8 36 7.5 1.3 2.4 1.8 0.0
None-- -15.817.620 20
E09 9 1 8.7 15.8 17.6 20 20
E18 18 2 17.3 24.7 26.9 25 30
E24 24 2 23.1 31.9 34.1 35 35
E36 34 2 32.7 43.9 46.1 45 50
102
(8.5)
208 12.2 88 19 3.5 6.8 5.5 0.0
None-- -41.346.850 50
E09 6.8 1 18.9 41.3 46.8 50 50
E18 13.5 2 37.5 55.3 62.2 60 70
E24 18 2 50.0 71 77.8 80 80
E36 25.5 2 70.8 97 103.9 100 110
230 12.2 88 19 3.5 6.8 5.5 0.0
None-- -41.346.850 50
E09 9 1 21.7 41.3 46.8 50 50
E18 18 2 43.3 62.6 69.5 70 70
E24 24 2 57.7 80.7 87.5 90 90
E36 34 2 81.8 110.7 117.6 125 125
460 5.8 44 9 1.6 3.4 2.2 0.0
None-- -19.721.925 25
E09 9 1 10.8 19.7 21.9 25 25
E18 18 2 21.7 31.3 34.1 35 35
E24 24 2 28.9 40.3 43.1 45 45
E36 34 2 40.9 55.4 58.1 60 60
575 4.4 36 5.5 1.3 2.7 1.8 0.0
None-- -15.217 20 20
E09 9 1 8.7 15.2 17 20 20
E18 18 2 17.3 25 27.3 25 30
E24 24 2 23.1 32.2 34.5 35 35
E36 34 2 32.7 44.3 46.5 45 50

528150-YTG-G-1210
138 Johnson Controls Unitary Products
120
(10)
208 17.9 120 28.0 3.5 6.8 5.5 0.0
None-- -54.159.670 70
E18 13.5 2 37.5 55.3 62.2 70 70
E24 18 2 50.0 71 77.8 80 80
E36 25.5 2 70.8 97 103.9 100 110
E54 40.6 2 112.7 149.4 156.2 150 175
230 17.9 120 28.0 3.5 6.8 5.5 0.0
None-- -54.159.670 70
E18 18 2 43.3 62.6 69.5 70 70
E24 24 2 57.7 80.7 87.5 90 90
E36 34 2 81.8 110.7 117.6 125 125
E54 54 2 129.9 138.4 145.3 150 175
460 9.6 70 15.0 1.6 3.4 2.2 0.0
None-- -28.230.435 40
E18 18 2 21.7 31.3 34.1 35 40
E24 24 2 28.9 40.3 43.1 45 45
E36 34 2 40.9 55.4 58.1 60 60
E54 54 2 65.0 69.2 72 80 80
575 7.4 53 11.5 1.3 2.7 1.8 0.0
None-- - 2223.825 30
E18 18 2 17.3 25 27.3 25 30
E24 24 2 23.1 32.2 34.5 35 35
E36 34 2 32.7 44.3 46.5 45 50
E54 54 2 52.0 55.3 57.6 60 60
150
(12.5)
208 23.1 160 36 1.5 9.6 5.5 0.0
None-- -67.673.190 90
E18 13.5 2 37.5 67.6 73.1 90 90
E24 18 2 50.0 74.5 81.3 90 90
E36 25.5 2 70.8 100.5 107.4 110 110
E54 40.6 2 112.7 152.9 159.7 175 175
230 23.1 160 36 1.5 9.6 5.5 0.0
None-- -67.673.190 90
E18 18 2 43.3 67.6 73.1 90 90
E24 24 2 57.7 84.2 91 90 100
E36 34 2 81.8 114.2 121.1 125 125
E54 54 2 129.9 141.9 148.8 175 175
460 12.2 87 19 0.8 4.8 2.2 0.0
None-- -35.537.745 45
E18 18 2 21.7 35.5 37.7 45 45
E24 24 2 28.9 42.1 44.8 45 45
E36 34 2 40.9 57.1 59.9 60 60
E54 54 2 65.0 71 73.7 80 80
575 8.7 62 13.5 0.6 3.9 1.8 0.0
None-- -25.927.730 35
E18 18 2 17.3 26.5 28.8 30 35
E24 24 2 23.1 33.7 36 35 40
E36 34 2 32.7 45.8 48 50 50
E54 54 2 52.0 56.8 59.1 70 70
1. Minimum Circuit Ampacity.
2. Dual Element, Time Delay Type.
3. HACR type per NEC.
ZH078-150 Standard Motor - Without Powered Convenience Outlet (Continued)
Size
(Tons) Volt
Compressors
(each)
OD Fan
Motors
(each)
Supply
Blower
Motor
Pwr
Exh
Motor
Pwr
Conv
Outlet Electric Heat Option MCA1
(Amps)
MCA1
w/Pwr
Exh
(Amps)
Max Fuse2/
Breaker3
Size
(Amps)
Max Fuse2/
Breaker3
Size w/
Pwr Exh
(Amps)
RLA LRA MCC FLA FLA FLA FLA Model kW Stages Amps

528150-YTG-G-1210
Johnson Controls Unitary Products 139
ZH037-061 Hi Static Indoor Blower - Without Powered Convenience Outlet
Size
(Tons) Volt
Compressors
(each)
OD Fan
Motors
(each)
Supply
Blower
Motor
Pwr
Exh
Motor
Pwr
Conv
Outlet Electric Heat Option MCA1
(Amps)
1. Minimum Circuit Ampacity.
MCA1
w/Pwr
Exh
(Amps)
Max Fuse2/
Breaker3
Size
(Amps)
2. Dual Element, Time Delay Type.
3. HACR type per NEC.
Max Fuse2/
Breaker3
Size w/
Pwr Exh
(Amps)
RLA LRA MCC FLA FLA FLA FLA Model kW Stages Amps
037
(3)
208 9.1 68 14.2 1.5 6.0 5.5 0.0
None-- -18.924.425 30
E03 2.3 1 6.4 18.9 24.4 25 30
E06 4.5 1 12.5 23.1 30 25 30
E08 6.8 1 18.9 31.1 38 35 40
E15 11.3 2 31.4 46.7 53.6 50 60
230 9.1 68 14.2 1.5 6.0 5.5 0.0
None-- -18.924.425 30
E03 3 1 7.2 18.9 24.4 25 30
E06 6 1 14.4 25.5 32.4 30 35
E08 9 1 21.7 34.6 41.4 35 45
E15 15 2 36.1 52.6 59.5 60 60
460 4.5 34 7 0.8 3.0 2.2 0.0
None - - - 9.4 11.6 15 15
E03 3 1 3.6 9.4 11.6 15 15
E06 6 1 7.2 12.8 15.5 15 20
E08 9 1 10.8 17.3 20 20 20
E15 15 2 18.0 26.3 29.1 30 30
575 3.8 28 6 0.6 2.4 1.8 0.0 None - - - 7.8 9.6 15 15
E08 9 1 8.7 13.8 16.1 15 20
E15 15 2 14.4 21 23.3 25 25
049
(4)
208 11.2 88 17.5 1.5 6.0 5.5 0.0
None-- -21.527 30 35
E06 4.5 1 12.5 23.1 30 30 35
E08 6.8 1 18.9 31.1 38 35 40
E15 11.3 2 31.4 46.7 53.6 50 60
E20 15 2 41.6 59.5 66.4 60 70
230 11.2 88 17.5 1.5 6.0 5.5 0.0
None-- -21.527 30 35
E06 6 1 14.4 25.5 32.4 30 35
E08 9 1 21.7 34.6 41.4 35 45
E15 15 2 36.1 52.6 59.5 60 60
E20 20 2 48.1 67.6 74.5 70 80
460 5.6 44 8.0 0.8 3.0 2.2 0.0
None-- -10.813 15 15
E06 6 1 7.2 12.8 15.5 15 20
E08 9 1 10.8 17.3 20 20 20
E15 15 2 18.0 26.3 29.1 30 30
E20 20 2 24.1 33.8 36.6 35 40
575 4.5 36 7.0 0.6 2.4 1.8 0.0
None - - - 8.6 10.4 15 15
E08 9 1 8.7 13.8 16.1 15 20
E15 15 2 14.4 21 23.3 25 25
E20 20 2 19.2 27.1 29.3 30 30
061
(5)
208 13.9 110 21.7 1.5 6.8 5.5 0.0
None-- -25.731.235 40
E06 4.5 1 12.5 25.7 31.2 35 40
E08 6.8 1 18.9 32.1 39 35 45
E15 11.3 2 31.4 47.7 54.6 50 60
E20 15 2 41.6 60.5 67.4 70 70
E23 18 2 50.0 71 77.8 80 80
230 13.9 110 21.7 1.5 6.8 5.5 0.0
None-- -25.731.235 40
E06 6 1 14.4 26.5 33.4 35 45
E08 9 1 21.7 35.6 42.4 40 45
E15 15 2 36.1 53.6 60.5 60 70
E20 20 2 48.1 68.6 75.5 70 80
E23 24 2 57.7 80.7 87.5 90 90
460 7.4 55 11.5 0.8 3.4 2.2 0.0
None-- -13.515.720 20
E06 6 1 7.2 13.5 16 20 20
E08 9 1 10.8 17.8 20.5 20 25
E15 15 2 18.0 26.8 29.6 30 30
E20 20 2 24.1 34.3 37.1 35 40
E23 24 2 28.9 40.3 43.1 45 45
575 5.6 43 8.7 0.6 2.7 1.8 0.0
None-- -10.312.115 15
E08 9 1 8.7 14.2 16.5 15 20
E15 15 2 14.4 21.4 23.7 25 25
E20 20 2 19.2 27.4 29.7 30 30
E23 24 2 23.1 32.2 34.5 35 35

528150-YTG-G-1210
140 Johnson Controls Unitary Products
ZH078-150 Hi Static Motor - Without Powered Convenience Outlet
Size
(Tons) Volt
Compressors
(each)
OD Fan
Motors
(each)
Supply
Blower
Motor
Pwr
Exh
Motor
Pwr
Conv
Outlet Electric Heat Option MCA1
(Amps)
MCA1
w/Pwr
Exh
(Amps)
Max Fuse2/
Breaker3
Size
(Amps)
Max Fuse2/
Breaker3
Size w/ Pwr
Exh
(Amps)
RLA LRA MCC FLA FLA FLA FLA Model kW Stages Amps
078
(6.5)
208 9.3 68 14.5 1.5 6.8 5.5 0.0
None - - - 30.7 36.2 40 45
E09 6.8 1 18.9 32.1 39 40 45
E18 13.5 2 37.5 55.3 62.2 60 70
E24 18 2 50.0 71 77.8 80 80
E36 25.5 2 70.8 97 103.9 100 110
230 9.3 68 14.5 1.5 6.8 5.5 0.0
None - - - 30.7 36.2 40 45
E09 9 1 21.7 35.6 42.4 40 45
E18 18 2 43.3 62.6 69.5 70 70
E24 24 2 57.7 80.7 87.5 90 90
E36 34 2 81.8 110.7 117.6 125 125
460 4.9 34 7.7 0.8 3.4 2.2 0.0
None - - - 16 18.2 20 20
E09 9 1 10.8 17.8 20.5 20 25
E18 18 2 21.7 31.3 34.1 35 35
E24 24 2 28.9 40.3 43.1 45 45
E36 34 2 40.9 55.4 58.1 60 60
575 3.8 28 6 0.6 2.7 1.8 0.0
None - - - 12.5 14.3 15 15
E09 9 1 8.7 14.2 16.5 15 20
E18 18 2 17.3 25 27.3 25 30
E24 24 2 23.1 32.2 34.5 35 35
E36 34 2 32.7 44.3 46.5 45 50
090
(7.5)
208 11.9 88 18.5 3.5 9.6 5.5 0.0
None - - - 43.4 48.9 50 60
E09 6.8 1 18.9 43.4 48.9 50 60
E18 13.5 2 37.5 58.8 65.7 60 70
E24 18 2 50.0 74.5 81.3 80 90
E36 25.5 2 70.8 100.5 107.4 110 110
230 11.9 88 18.5 3.5 9.6 5.5 0.0
None - - - 43.4 48.9 50 60
E09 9 1 21.7 43.4 48.9 50 60
E18 18 2 43.3 66.1 73 70 80
E24 24 2 57.7 84.2 91 90 100
E36 34 2 81.8 114.2 121.1 125 125
460 5.2 44 8.1 1.6 4.8 2.2 0.0
None - - - 19.7 21.9 20 25
E09 9 1 10.8 19.7 22.3 20 25
E18 18 2 21.7 33.1 35.8 35 40
E24 24 2 28.9 42.1 44.8 45 45
E36 34 2 40.9 57.1 59.9 60 60
575 4.8 36 7.5 1.3 3.9 1.8 0.0
None - - - 17.3 19.1 20 20
E09 9 1 8.7 17.3 19.1 20 20
E18 18 2 17.3 26.5 28.8 30 30
E24 24 2 23.1 33.7 36 35 40
E36 34 2 32.7 45.8 48 50 50
102
(8.5)
208 12.2 88 19 3.5 9.6 5.5 0.0
None - - - 44.1 49.6 50 60
E09 6.8 1 18.9 44.1 49.6 50 60
E18 13.5 2 37.5 58.8 65.7 60 70
E24 18 2 50.0 74.5 81.3 80 90
E36 25.5 2 70.8 100.5 107.4 110 110
230 12.2 88 19 3.5 9.6 5.5 0.0
None - - - 44.1 49.6 50 60
E09 9 1 21.7 44.1 49.6 50 60
E18 18 2 43.3 66.1 73 70 80
E24 24 2 57.7 84.2 91 90 100
E36 34 2 81.8 114.2 121.1 125 125
460 5.8 44 9 1.6 4.8 2.2 0.0
None - - - 21.1 23.3 25 25
E09 9 1 10.8 21.1 23.3 25 25
E18 18 2 21.7 33.1 35.8 35 40
E24 24 2 28.9 42.1 44.8 45 45
E36 34 2 40.9 57.1 59.9 60 60
575 4.4 36 5.5 1.3 3.9 1.8 0.0
None - - - 16.4 18.2 20 20
E09 9 1 8.7 16.4 18.2 20 20
E18 18 2 17.3 26.5 28.8 30 30
E24 24 2 23.1 33.7 36 35 40
E36 34 2 32.7 45.8 48 50 50

528150-YTG-G-1210
Johnson Controls Unitary Products 141
120
(10)
208 17.9 120 28.0 3.5 9.6 5.5 0.0
None - - - 56.9 62.4 70 80
E18 13.5 2 37.5 58.8 65.7 70 80
E24 18 2 50.0 74.5 81.3 80 90
E36 25.5 2 70.8 100.5 107.4 110 110
E54 40.6 2 112.7 152.9 159.7 175 175
230 17.9 120 28.0 3.5 9.6 5.5 0.0
None - - - 56.9 62.4 70 80
E18 18 2 43.3 66.1 73 70 80
E24 24 2 57.7 84.2 91 90 100
E36 34 2 81.8 114.2 121.1 125 125
E54 54 2 129.9 141.9 148.8 175 175
460 9.6 70 15.0 1.6 4.8 2.2 0.0
None - - - 29.6 31.8 35 40
E18 18 2 21.7 33.1 35.8 35 40
E24 24 2 28.9 42.1 44.8 45 45
E36 34 2 40.9 57.1 59.9 60 60
E54 54 2 65.0 71 73.7 80 80
575 7.4 53 11.5 1.3 3.9 1.8 0.0
None - - - 23.2 25 30 30
E18 18 2 17.3 26.5 28.8 30 30
E24 24 2 23.1 33.7 36 35 40
E36 34 2 32.7 45.8 48 50 50
E54 54 2 52.0 56.8 59.1 70 70
150
(12.5)
208 23.1 160 36 1.5 15.2 5.5 0.0
None - - - 73.2 78.7 90 100
E18 13.5 2 37.5 73.2 78.7 90 100
E24 18 2 50.0 81.5 88.3 90 100
E36 25.5 2 70.8 107.5 114.4 110 125
E54 40.6 2 112.7 159.9 166.7 175 175
230 23.1 160 36 1.5 15.2 5.5 0.0
None - - - 73.2 78.7 90 100
E18 18 2 43.3 73.2 80 90 100
E24 24 2 57.7 91.2 98 100 100
E36 34 2 81.8 121.2 128.1 125 150
E54 54 2 129.9 148.9 155.8 175 175
460 12.2 87 19 0.8 7.6 2.2 0.0
None - - - 38.3 40.5 50 50
E18 18 2 21.7 38.3 40.5 50 50
E24 24 2 28.9 45.6 48.3 50 50
E36 34 2 40.9 60.6 63.4 70 70
E54 54 2 65.0 74.5 77.2 90 90
575 8.7 62 13.5 0.6 6.1 1.8 0.0
None - - - 28.1 29.9 35 35
E18 18 2 17.3 29.3 31.5 35 35
E24 24 2 23.1 36.5 38.7 40 40
E36 34 2 32.7 48.5 50.8 50 60
E54 54 2 52.0 59.6 61.8 70 70
1. Minimum Circuit Ampacity.
2. Dual Element, Time Delay Type.
3. HACR type per NEC.
ZH078-150 Hi Static Motor - Without Powered Convenience Outlet (Continued)
Size
(Tons) Volt
Compressors
(each)
OD Fan
Motors
(each)
Supply
Blower
Motor
Pwr
Exh
Motor
Pwr
Conv
Outlet Electric Heat Option MCA1
(Amps)
MCA1
w/Pwr
Exh
(Amps)
Max Fuse2/
Breaker3
Size
(Amps)
Max Fuse2/
Breaker3
Size w/ Pwr
Exh
(Amps)
RLA LRA MCC FLA FLA FLA FLA Model kW Stages Amps

528150-YTG-G-1210
142 Johnson Controls Unitary Products
ZH037-061 Standard Indoor Blower - With Powered Convenience Outlet
Size
(Tons) Volt
Compressors
(each)
OD Fan
Motors
(each)
Supply
Blower
Motor
Pwr
Exh
Motor
Pwr
Conv
Outlet Electric Heat Option MCA1
(Amps)
1. Minimum Circuit Ampacity.
MCA1
w/Pwr
Exh
(Amps)
Max Fuse2/
Breaker3
Size
(Amps)
2. Dual Element, Time Delay Type.
3. HACR type per NEC.
Max Fuse2/
Breaker3
Size w/
Pwr Exh
(Amps)
RLA LRA MCC FLA FLA FLA FLA Model kW Stages Amps
037
(3)
208 9.1 68 14.2 1.5 6.0 5.5 10.0
None-- -29.134.635 40
E03 2.3 1 6.4 29.1 34.9 35 40
E06 4.5 1 12.5 35.6 42.5 40 45
E08 6.8 1 18.9 43.6 50.5 45 60
E15 11.3 2 31.4 59.2 66.1 60 70
230 9.1 68 14.2 1.5 6.0 5.5 10.0
None-- -29.134.635 40
E03 3 1 7.2 29.1 35.9 35 40
E06 6 1 14.4 38 44.9 40 45
E08 9 1 21.7 47.1 53.9 50 60
E15 15 2 36.1 65.1 72 70 80
460 4.5 34 7 0.8 3.0 2.2 5.0
None-- -14.616.815 20
E03 3 1 3.6 14.6 17.3 15 20
E06 6 1 7.2 19 21.8 20 25
E08 9 1 10.8 23.5 26.3 25 30
E15 15 2 18.0 32.6 35.3 35 40
575 3.8 28 6 0.6 2.4 1.8 4.0 None-- -11.813.615 15
E08 9 1 8.7 18.8 21.1 20 25
E15 15 2 14.4 26 28.3 30 30
049
(4)
208 11.2 88 17.5 1.5 6.0 5.5 10.0
None-- -31.537 40 45
E06 4.5 1 12.5 35.6 42.5 40 45
E08 6.8 1 18.9 43.6 50.5 45 60
E15 11.3 2 31.4 59.2 66.1 60 70
E20 15.0 2 41.6 72 78.9 80 80
230 11.2 88 17.5 1.5 6.0 5.5 10.0
None-- -31.537 40 45
E06 6.0 1 14.4 38 44.9 40 45
E08 9.0 1 21.7 47.1 53.9 50 60
E15 15.0 2 36.1 65.1 72 70 80
E20 20.0 2 48.1 80.1 87 90 90
460 5.6 44 8.0 0.8 3.0 2.2 5.0
None-- -15.818 20 20
E06 6.0 1 7.2 19 21.8 20 25
E08 9.0 1 10.8 23.5 26.3 25 30
E15 15.0 2 18.0 32.6 35.3 35 40
E20 20.0 2 24.1 40.1 42.8 45 45
575 4.5 36 7.0 0.6 2.4 1.8 4.0
None-- -12.614.415 15
E08 9.0 1 8.7 18.8 21.1 20 25
E15 15.0 2 14.4 26 28.3 30 30
E20 20.0 2 19.2 32.1 34.3 35 35
061
(5)
208 13.9 110 21.7 1.5 6.0 5.5 10.0
None-- -34.940.445 50
E06 4.5 1 12.5 35.6 42.5 45 50
E08 6.8 1 18.9 43.6 50.5 45 60
E15 11.3 2 31.4 59.2 66.1 60 70
E20 15 2 41.6 72 78.9 80 80
E23 18 2 50.0 82.5 89.3 90 90
230 13.9 110 21.7 1.5 6.0 5.5 10.0
None-- -34.940.445 50
E06 6 1 14.4 38 44.9 45 50
E08 9 1 21.7 47.1 53.9 50 60
E15 15 2 36.1 65.1 72 70 80
E20 20 2 48.1 80.1 87 90 90
E23 24 2 57.7 92.2 99 100 100
460 7.4 55 11.5 0.8 3.0 2.2 5.0
None-- -18.120.325 25
E06 6 1 7.2 19 21.8 25 25
E08 9 1 10.8 23.5 26.3 25 30
E15 15 2 18.0 32.6 35.3 35 40
E20 20 2 24.1 40.1 42.8 45 45
E23 24 2 28.9 46.1 48.8 50 50
575 5.6 43 8.7 0.6 2.4 1.8 4.0
None-- - 1415.815 20
E08 9 1 8.7 18.8 21.1 20 25
E15 15 2 14.4 26 28.3 30 30
E20 20 2 19.2 32.1 34.3 35 35
E23 24 2 23.1 36.9 39.1 40 40

528150-YTG-G-1210
Johnson Controls Unitary Products 143
ZH078-150 Standard Motor - With Powered Convenience Outlet
Size
(Tons) Volt
Compressors
(each)
OD Fan
Motors
(each)
Supply
Blower
Motor
Pwr
Exh
Motor
Pwr
Conv
Outlet Electric Heat Option MCA1
(Amps)
MCA1
w/Pwr
Exh
(Amps)
Max Fuse2/
Breaker3
Size
(Amps)
Max Fuse2/
Breaker3
Size w/ Pwr
Exh
(Amps)
RLA LRA MCC FLA FLA FLA FLA Model kW Stages Amps
078
(6.5)
208 9.3 68 14.5 1.5 6.0 5.5 10.0
None - - - 40.1 45.6 50 50
E09 6.8 1 18.9 43.6 50.5 50 60
E18 13.5 2 37.5 66.8 73.7 70 80
E24 18 2 50.0 82.5 89.3 90 90
E36 25.5 2 70.8 108.5 115.4 110 125
230 9.3 68 14.5 1.5 6.0 5.5 10.0
None - - - 40.1 45.6 50 50
E09 9 1 21.7 47.1 53.9 50 60
E18 18 2 43.3 74.1 81 80 90
E24 24 2 57.7 92.2 99 100 100
E36 34 2 81.8 122.2 129.1 125 150
460 4.9 34 7.7 0.8 3.0 2.2 5.0
None - - - 20.7 22.9 25 25
E09 9 1 10.8 23.5 26.3 25 30
E18 18 2 21.7 37.1 39.8 40 40
E24 24 2 28.9 46.1 48.8 50 50
E36 34 2 40.9 61.1 63.9 70 70
575 3.8 28 6 0.6 2.4 1.8 4.0
None - - - 16.2 18 20 20
E09 9 1 8.7 18.8 21.1 20 25
E18 18 2 17.3 29.7 31.9 30 35
E24 24 2 23.1 36.9 39.1 40 40
E36 34 2 32.7 48.9 51.1 50 60
090
(7.5)
208 11.9 88 18.5 3.5 6.0 5.5 10.0
None - - - 49.8 55.3 60 60
E09 6.8 1 18.9 49.8 55.3 60 60
E18 13.5 2 37.5 66.8 73.7 70 80
E24 18 2 50.0 82.5 89.3 90 90
E36 25.5 2 70.8 108.5 115.4 110 125
230 11.9 88 18.5 3.5 6.0 5.5 10.0
None - - - 49.8 55.3 60 60
E09 9 1 21.7 49.8 55.3 60 60
E18 18 2 43.3 74.1 81 80 90
E24 24 2 57.7 92.2 99 100 100
E36 34 2 81.8 122.2 129.1 125 150
460 5.2 44 8.1 1.6 3.0 2.2 5.0
None - - - 22.9 25.1 25 30
E09 9 1 10.8 23.5 26.3 25 30
E18 18 2 21.7 37.1 39.8 40 40
E24 24 2 28.9 46.1 48.8 50 50
E36 34 2 40.9 61.1 63.9 70 70
575 4.8 36 7.5 1.3 2.4 1.8 4.0
None - - - 19.8 21.6 20 25
E09 9 1 8.7 19.8 21.6 20 25
E18 18 2 17.3 29.7 31.9 30 35
E24 24 2 23.1 36.9 39.1 40 40
E36 34 2 32.7 48.9 51.1 50 60
102
(8.5)
208 12.2 88 19 3.5 6.8 5.5 10.0
None - - - 51.3 56.8 60 60
E09 6.8 1 18.9 51.3 56.8 60 60
E18 13.5 2 37.5 67.8 74.7 70 80
E24 18 2 50.0 83.5 90.3 90 100
E36 25.5 2 70.8 109.5 116.4 110 125
230 12.2 88 19 3.5 6.8 5.5 10.0
None - - - 51.3 56.8 60 60
E09 9 1 21.7 51.3 56.8 60 60
E18 18 2 43.3 75.1 82 80 90
E24 24 2 57.7 93.2 100 100 100
E36 34 2 81.8 123.2 130.1 125 150
460 5.8 44 9 1.6 3.4 2.2 5.0
None - - - 24.7 26.9 30 30
E09 9 1 10.8 24.7 26.9 30 30
E18 18 2 21.7 37.6 40.3 40 45
E24 24 2 28.9 46.6 49.3 50 50
E36 34 2 40.9 61.6 64.4 70 70
575 4.4 36 5.5 1.3 2.7 1.8 4.0
None - - - 19.2 21 20 25
E09 9 1 8.7 19.2 21.5 20 25
E18 18 2 17.3 30 32.3 30 35
E24 24 2 23.1 37.2 39.5 40 40
E36 34 2 32.7 49.3 51.5 50 60

528150-YTG-G-1210
144 Johnson Controls Unitary Products
120
(10)
208 17.9 120 28.0 3.5 6.8 5.5 10.0
None - - - 64.1 69.6 80 80
E18 13.5 2 37.5 67.8 74.7 80 80
E24 18 2 50.0 83.5 90.3 90 100
E36 25.5 2 70.8 109.5 116.4 110 125
E54 40.6 2 112.7 161.9 168.7 175 175
230 17.9 120 28.0 3.5 6.8 5.5 10.0
None - - - 64.1 69.6 80 80
E18 18 2 43.3 75.1 82 80 90
E24 24 2 57.7 93.2 100 100 100
E36 34 2 81.8 123.2 130.1 125 150
E54 54 2 129.9 150.9 157.8 175 175
460 9.6 70 15.0 1.6 3.4 2.2 5.0
None - - - 33.2 35.4 40 45
E18 18 2 21.7 37.6 40.3 40 45
E24 24 2 28.9 46.6 49.3 50 50
E36 34 2 40.9 61.6 64.4 70 70
E54 54 2 65.0 75.5 78.2 80 90
575 7.4 53 11.5 1.3 2.7 1.8 4.0
None - - - 26 27.8 30 35
E18 18 2 17.3 30 32.3 30 35
E24 24 2 23.1 37.2 39.5 40 40
E36 34 2 32.7 49.3 51.5 50 60
E54 54 2 52.0 60.3 62.6 70 70
150
(12.5)
208 23.1 160 36 1.5 9.6 5.5 10.0
None - - - 77.6 83.1 100 100
E18 13.5 2 37.5 77.6 83.1 100 100
E24 18 2 50.0 87 93.8 100 100
E36 25.5 2 70.8 113 119.9 125 125
E54 40.6 2 112.7 165.4 172.2 175 175
230 23.1 160 36 1.5 9.6 5.5 10.0
None - - - 77.6 83.1 100 100
E18 18 2 43.3 78.6 85.5 100 100
E24 24 2 57.7 96.7 103.5 100 110
E36 34 2 81.8 126.7 133.6 150 150
E54 54 2 129.9 154.4 161.3 175 175
460 12.2 87 19 0.8 4.8 2.2 5.0
None - - - 40.5 42.7 50 50
E18 18 2 21.7 40.5 42.7 50 50
E24 24 2 28.9 48.3 51.1 50 60
E36 34 2 40.9 63.4 66.1 70 70
E54 54 2 65.0 77.2 80 90 90
575 8.7 62 13.5 0.6 3.9 1.8 4.0
None - - - 29.9 31.7 35 40
E18 18 2 17.3 31.5 33.8 35 40
E24 24 2 23.1 38.7 41 40 45
E36 34 2 32.7 50.8 53 60 60
E54 54 2 52.0 61.8 64.1 70 70
1. Minimum Circuit Ampacity.
2. Dual Element, Time Delay Type.
3. HACR type per NEC.
ZH078-150 Standard Motor - With Powered Convenience Outlet (Continued)
Size
(Tons) Volt
Compressors
(each)
OD Fan
Motors
(each)
Supply
Blower
Motor
Pwr
Exh
Motor
Pwr
Conv
Outlet Electric Heat Option MCA1
(Amps)
MCA1
w/Pwr
Exh
(Amps)
Max Fuse2/
Breaker3
Size
(Amps)
Max Fuse2/
Breaker3
Size w/ Pwr
Exh
(Amps)
RLA LRA MCC FLA FLA FLA FLA Model kW Stages Amps

528150-YTG-G-1210
Johnson Controls Unitary Products 145
ZH037-061 Hi Static Indoor Blower - With Powered Convenience Outlet
Size
(Tons) Volt
Compressors
(each)
OD Fan
Motors
(each)
Supply
Blower
Motor
Pwr
Exh
Motor
Pwr
Conv
Outlet Electric Heat Option MCA1
(Amps)
1. Minimum Circuit Ampacity.
MCA1
w/Pwr
Exh
(Amps)
Max Fuse2/
Breaker3
Size
(Amps)
2. Dual Element, Time Delay Type.
3. HACR type per NEC.
Max Fuse2/
Breaker3
Size w/
Pwr Exh
(Amps)
RLA LRA MCC FLA FLA FLA FLA Model kW Stages Amps
037
(3)
208 9.1 68 14.2 1.5 6.0 5.5 10.0
None-- -29.134.635 40
E03 2.3 1 6.4 29.1 34.9 35 40
E06 4.5 1 12.5 35.6 42.5 40 45
E08 6.8 1 18.9 43.6 50.5 45 60
E15 11.3 2 31.4 59.2 66.1 60 70
230 9.1 68 14.2 1.5 6.0 5.5 10.0
None-- -29.134.635 40
E03 3.0 1 7.2 29.1 35.9 35 40
E06 6.0 1 14.4 38 44.9 40 45
E08 9.0 1 21.7 47.1 53.9 50 60
E15 15.0 2 36.1 65.1 72 70 80
460 4.5 34 7 0.8 3.0 2.2 5.0
None-- -14.616.815 20
E03 3.0 1 3.6 14.6 17.3 15 20
E06 6.0 1 7.2 19 21.8 20 25
E08 9.0 1 10.8 23.5 26.3 25 30
E15 15.0 2 18.0 32.6 35.3 35 40
575 3.8 28 6 0.6 2.4 1.8 4.0 None-- -11.813.615 15
E08 9.0 1 8.7 18.8 21.1 20 25
E15 15.0 2 14.4 26 28.3 30 30
049
(4)
208 11.2 88 17.5 1.5 6.0 5.5 10.0
None-- -31.537 40 45
E06 4.5 1 12.5 35.6 42.5 40 45
E08 6.8 1 18.9 43.6 50.5 45 60
E15 11.3 2 31.4 59.2 66.1 60 70
E20 15.0 2 41.6 72 78.9 80 80
230 11.2 88 17.5 1.5 6.0 5.5 10.0
None-- -31.537 40 45
E06 6.0 1 14.4 38 44.9 40 45
E08 9.0 1 21.7 47.1 53.9 50 60
E15 15.0 2 36.1 65.1 72 70 80
E20 20.0 2 48.1 80.1 87 90 90
460 5.6 44 8.0 0.8 3.0 2.2 5.0
None-- -15.818 20 20
E06 6.0 1 7.2 19 21.8 20 25
E08 9.0 1 10.8 23.5 26.3 25 30
E15 15.0 2 18.0 32.6 35.3 35 40
E20 20.0 2 24.1 40.1 42.8 45 45
575 4.5 36 7.0 0.6 2.4 1.8 4.0
None-- -12.614.415 15
E08 9.0 1 8.7 18.8 21.1 20 25
E15 15.0 2 14.4 26 28.3 30 30
E20 20.0 2 19.2 32.1 34.3 35 35
061
(5)
208 13.9 110 21.7 1.5 6.8 5.5 10.0
None-- -35.741.245 50
E06 4.5 1 12.5 36.6 43.5 45 50
E08 6.8 1 18.9 44.6 51.5 45 60
E15 11.3 2 31.4 60.2 67.1 70 70
E20 15 2 41.6 73 79.9 80 80
E23 18 2 50.0 83.5 90.3 90 100
230 13.9 110 21.7 1.5 6.8 5.5 10.0
None-- -35.741.245 50
E06 6 1 14.4 39 45.9 45 50
E08 9 1 21.7 48.1 54.9 50 60
E15 15 2 36.1 66.1 73 70 80
E20 20 2 48.1 81.1 88 90 90
E23 24 2 57.7 93.2 100 100 100
460 7.4 55 11.5 0.8 3.4 2.2 5.0
None-- -18.520.725 25
E06 6 1 7.2 19.5 22.3 25 25
E08 9 1 10.8 24 26.8 25 30
E15 15 2 18.0 33.1 35.8 35 40
E20 20 2 24.1 40.6 43.3 45 45
E23 24 2 28.9 46.6 49.3 50 50
575 5.6 43 8.7 0.6 2.7 1.8 4.0
None-- -14.316.115 20
E08 9 1 8.7 19.2 21.5 20 25
E15 15 2 14.4 26.4 28.7 30 30
E20 20 2 19.2 32.4 34.7 35 35
E23 24 2 23.1 37.2 39.5 40 40

528150-YTG-G-1210
146 Johnson Controls Unitary Products
ZH078-150 Hi Static Motor - With Powered Convenience Outlet
Size
(Tons) Volt
Compressors
(each)
OD Fan
Motors
(each)
Supply
Blower
Motor
Pwr
Exh
Motor
Pwr
Conv
Outlet Electric Heat Option MCA1
(Amps)
MCA1
w/Pwr
Exh
(Amps)
Max Fuse2/
Breaker3
Size
(Amps)
Max Fuse2/
Breaker3
Size w/ Pwr
Exh
(Amps)
RLA LRA MCC FLA FLA FLA FLA Model kW Stages Amps
078
(6.5)
208 9.3 68 14.5 1.5 6.8 5.5 10.0
None - - - 40.9 46.4 50 50
E09 6.8 1 18.9 44.6 51.5 50 60
E18 13.5 2 37.5 67.8 74.7 70 80
E24 18 2 50.0 83.5 90.3 90 100
E36 25.5 2 70.8 109.5 116.4 110 125
230 9.3 68 14.5 1.5 6.8 5.5 10.0
None - - - 40.9 46.4 50 50
E09 9 1 21.7 48.1 54.9 50 60
E18 18 2 43.3 75.1 82 80 90
E24 24 2 57.7 93.2 100 100 100
E36 34 2 81.8 123.2 130.1 125 150
460 4.9 34 7.7 0.8 3.4 2.2 5.0
None - - - 21.1 23.3 25 25
E09 9 1 10.8 24 26.8 25 30
E18 18 2 21.7 37.6 40.3 40 45
E24 24 2 28.9 46.6 49.3 50 50
E36 34 2 40.9 61.6 64.4 70 70
575 3.8 28 6 0.6 2.7 1.8 4.0
None - - - 16.5 18.3 20 20
E09 9 1 8.7 19.2 21.5 20 25
E18 18 2 17.3 30 32.3 30 35
E24 24 2 23.1 37.2 39.5 40 40
E36 34 2 32.7 49.3 51.5 50 60
090
(7.5)
208 11.9 88 18.5 3.5 9.6 5.5 10.0
None - - - 53.4 58.9 60 70
E09 6.8 1 18.9 53.4 58.9 60 70
E18 13.5 2 37.5 71.3 78.2 80 80
E24 18 2 50.0 87 93.8 90 100
E36 25.5 2 70.8 113 119.9 125 125
230 11.9 88 18.5 3.5 9.6 5.5 10.0
None - - - 53.4 58.9 60 70
E09 9 1 21.7 53.4 58.9 60 70
E18 18 2 43.3 78.6 85.5 80 90
E24 24 2 57.7 96.7 103.5 100 110
E36 34 2 81.8 126.7 133.6 150 150
460 5.2 44 8.1 1.6 4.8 2.2 5.0
None - - - 24.7 26.9 25 30
E09 9 1 10.8 25.8 28.5 30 30
E18 18 2 21.7 39.3 42.1 40 45
E24 24 2 28.9 48.3 51.1 50 60
E36 34 2 40.9 63.4 66.1 70 70
575 4.8 36 7.5 1.3 3.9 1.8 4.0
None - - - 21.3 23.1 25 25
E09 9 1 8.7 21.3 23.1 25 25
E18 18 2 17.3 31.5 33.8 35 35
E24 24 2 23.1 38.7 41 40 45
E36 34 2 32.7 50.8 53 60 60
102
(8.5)
208 12.2 88 19 3.5 9.6 5.5 10.0
None - - - 54.1 59.6 60 70
E09 6.8 1 18.9 54.1 59.6 60 70
E18 13.5 2 37.5 71.3 78.2 80 80
E24 18 2 50.0 87 93.8 90 100
E36 25.5 2 70.8 113 119.9 125 125
230 12.2 88 19 3.5 9.6 5.5 10.0
None - - - 54.1 59.6 60 70
E09 9 1 21.7 54.1 59.6 60 70
E18 18 2 43.3 78.6 85.5 80 90
E24 24 2 57.7 96.7 103.5 100 110
E36 34 2 81.8 126.7 133.6 150 150
460 5.8 44 9 1.6 4.8 2.2 5.0
None - - - 26.1 28.3 30 30
E09 9 1 10.8 26.1 28.5 30 30
E18 18 2 21.7 39.3 42.1 40 45
E24 24 2 28.9 48.3 51.1 50 60
E36 34 2 40.9 63.4 66.1 70 70
575 4.4 36 5.5 1.3 3.9 1.8 4.0
None - - - 20.4 22.2 25 25
E09 9 1 8.7 20.7 23 25 25
E18 18 2 17.3 31.5 33.8 35 35
E24 24 2 23.1 38.7 41 40 45
E36 34 2 32.7 50.8 53 60 60

528150-YTG-G-1210
Johnson Controls Unitary Products 147
120
(10)
208 17.9 120 28.0 3.5 9.6 5.5 10.0
None - - - 66.9 72.4 80 90
E18 13.5 2 37.5 71.3 78.2 80 90
E24 18 2 50.0 87 93.8 90 100
E36 25.5 2 70.8 113 119.9 125 125
E54 40.6 2 112.7 165.4 172.2 175 175
230 17.9 120 28.0 3.5 9.6 5.5 10.0
None - - - 66.9 72.4 80 90
E18 18 2 43.3 78.6 85.5 80 90
E24 24 2 57.7 96.7 103.5 100 110
E36 34 2 81.8 126.7 133.6 150 150
E54 54 2 129.9 154.4 161.3 175 175
460 9.6 70 15.0 1.6 4.8 2.2 5.0
None - - - 34.6 36.8 40 45
E18 18 2 21.7 39.3 42.1 40 45
E24 24 2 28.9 48.3 51.1 50 60
E36 34 2 40.9 63.4 66.1 70 70
E54 54 2 65.0 77.2 80 90 90
575 7.4 53 11.5 1.3 3.9 1.8 4.0
None - - - 27.2 29 30 35
E18 18 2 17.3 31.5 33.8 35 35
E24 24 2 23.1 38.7 41 40 45
E36 34 2 32.7 50.8 53 60 60
E54 54 2 52.0 61.8 64.1 70 70
150
(12.5)
208 23.1 160 36 1.5 15.2 5.5 10.0
None - - - 83.2 88.7 100 110
E18 13.5 2 37.5 83.2 88.7 100 110
E24 18 2 50.0 94 100.8 100 110
E36 25.5 2 70.8 120 126.9 125 150
E54 40.6 2 112.7 172.4 179.2 175 200
230 23.1 160 36 1.5 15.2 5.5 10.0
None - - - 83.2 88.7 100 110
E18 18 2 43.3 85.6 92.5 100 110
E24 24 2 57.7 103.7 110.5 110 125
E36 34 2 81.8 133.7 140.6 150 150
E54 54 2 129.9 161.4 168.3 175 175
460 12.2 87 19 0.8 7.6 2.2 5.0
None - - - 43.3 45.5 50 50
E18 18 2 21.7 43.3 45.6 50 50
E24 24 2 28.9 51.8 54.6 60 60
E36 34 2 40.9 66.9 69.6 70 70
E54 54 2 65.0 80.7 83.5 90 90
575 8.7 62 13.5 0.6 6.1 1.8 4.0
None - - - 32.1 33.9 40 40
E18 18 2 17.3 34.3 36.5 40 40
E24 24 2 23.1 41.5 43.7 45 45
E36 34 2 32.7 53.5 55.8 60 60
E54 54 2 52.0 64.6 66.8 70 70
1. Minimum Circuit Ampacity.
2. Dual Element, Time Delay Type.
3. HACR type per NEC.
ZH078-150 Hi Static Motor - With Powered Convenience Outlet (Continued)
Size
(Tons) Volt
Compressors
(each)
OD Fan
Motors
(each)
Supply
Blower
Motor
Pwr
Exh
Motor
Pwr
Conv
Outlet Electric Heat Option MCA1
(Amps)
MCA1
w/Pwr
Exh
(Amps)
Max Fuse2/
Breaker3
Size
(Amps)
Max Fuse2/
Breaker3
Size w/ Pwr
Exh
(Amps)
RLA LRA MCC FLA FLA FLA FLA Model kW Stages Amps

528150-YTG-G-1210
148 Johnson Controls Unitary Products
ZJ037-061 Standard Indoor Blower - Without Powered Convenience Outlet
Size
(Tons) Volt
Compressors
(each)
OD Fan
Motors
(each)
Supply
Blower
Motor
Pwr
Exh
Motor
Pwr
Conv
Outlet Electric Heat Option MCA1
(Amps)
1. Minimum Circuit Ampacity.
MCA1
w/Pwr
Exh
(Amps)
Max Fuse2/
Breaker3
Size
(Amps)
2. Dual Element, Time Delay Type.
3. HACR type per NEC.
Max Fuse2/
Breaker3
Size w/
Pwr Exh
(Amps)
RLA LRA MCC FLA FLA FLA FLA Model kW Stages Amps
037
(3)
208 8.7 68 13.5 1.5 6.0 5.5 0.0
None-- -18.423.925 30
E03 2.3 1 6.4 18.4 23.9 25 30
E06 4.5 1 12.5 23.1 30 25 30
E08 6.8 1 18.9 31.1 38 35 40
E15 11.3 2 31.4 46.7 53.6 50 60
230 8.7 68 13.5 1.5 6.0 5.5 0.0
None-- -18.423.925 30
E03 3 1 7.2 18.4 23.9 25 30
E06 6 1 14.4 25.5 32.4 30 35
E08 9 1 21.7 34.6 41.4 35 45
E15 15 2 36.1 52.6 59.5 60 60
460 4.6 34 7.1 0.8 3.0 2.2 0.0
None - - - 9.6 11.8 15 15
E03 3 1 3.6 9.6 11.8 15 15
E06 6 1 7.2 12.8 15.5 15 20
E08 9 1 10.8 17.3 20 20 20
E15 15 2 18.0 26.3 29.1 30 30
575 3.5 28 5.5 0.6 2.4 1.8 0.0 None - - - 7.4 9.2 15 15
E08 9 1 8.7 13.8 16.1 15 20
E15 15 2 14.4 21 23.3 25 25
049
(4)
208 11.9 88 18.5 1.5 6.0 5.5 0.0
None-- -23.929.430 40
E06 4.5 1 12.5 23.9 30 30 40
E08 6.8 1 18.9 31.1 38 35 40
E15 11.3 2 31.4 46.7 53.6 50 60
E20 15 2 41.6 59.5 66.4 60 70
230 11.9 88 18.5 1.5 6.0 5.5 0.0
None-- -23.929.430 40
E06 6 1 14.4 25.5 32.4 35 40
E08 9 1 21.7 34.6 41.4 35 45
E15 15 2 36.1 52.6 59.5 60 60
E20 20 2 48.1 67.6 74.5 70 80
460 5.2 44 8.1 0.8 3.0 2.2 0.0
None-- -11.113.315 15
E06 6 1 7.2 12.8 15.5 15 20
E08 9 1 10.8 17.3 20 20 20
E15 15 2 18.0 26.3 29.1 30 30
E20 20 2 24.1 33.8 36.6 35 40
575 4.8 36 7.5 0.6 2.4 1.8 0.0
None - - - 9.6 11.4 15 15
E08 9 1 8.7 13.8 16.1 15 20
E15 15 2 14.4 21 23.3 25 25
E20 20 2 19.2 27.1 29.3 30 30
061
(5)
208 14.1 88 22 1.5 6.0 5.5 0.0
None-- -26.632.135 45
E06 4.5 1 12.5 26.6 32.1 35 45
E08 6.8 1 18.9 31.1 38 40 45
E15 11.3 2 31.4 46.7 53.6 50 60
E20 15 2 41.6 59.5 66.4 60 70
E23 18 2 50.0 70 76.8 70 80
230 14.1 88 22 1.5 6.0 5.5 0.0
None-- -26.632.135 45
E06 6 1 14.4 26.6 32.4 35 45
E08 9 1 21.7 34.6 41.4 40 45
E15 15 2 36.1 52.6 59.5 60 60
E20 20 2 48.1 67.6 74.5 70 80
E23 24 2 57.7 79.7 86.5 80 90
460 7.7 55 12 0.8 3.0 2.2 0.0
None-- -14.216.420 20
E06 6 1 7.2 14.2 16.4 20 20
E08 9 1 10.8 17.3 20 20 20
E15 15 2 18.0 26.3 29.1 30 30
E20 20 2 24.1 33.8 36.6 35 40
E23 24 2 28.9 39.8 42.6 40 45
575 5.1 36 7.5 0.6 2.4 1.8 0.0
None-- - 1011.815 15
E08 9 1 8.7 13.8 16.1 15 20
E15 15 2 14.4 21 23.3 25 25
E20 20 2 19.2 27.1 29.3 30 30
E23 24 2 23.1 31.9 34.1 35 35

528150-YTG-G-1210
Johnson Controls Unitary Products 149
ZJ078-150 Standard Motor - Without Powered Convenience Outlet
Size
(Tons) Volt
Compressors
(each)
OD Fan
Motors
(each)
Supply
Blower
Motor
Pwr
Exh
Motor
Pwr
Conv
Outlet Electric Heat Option MCA1
(Amps)
MCA1
w/Pwr
Exh
(Amps)
Max Fuse2/
Breaker3
Size
(Amps)
Max Fuse2/
Breaker3
Size w/ Pwr
Exh
(Amps)
RLA LRA MCC FLA FLA FLA FLA Model kW Stages Amps
078
(6.5)
208 9.3 68 14.5 1.5 6.0 5.5 0.0
None - - - 29.9 35.4 35 40
E09 6.8 1 18.9 31.1 38 35 40
E18 13.5 2 37.5 54.3 61.2 60 70
E24 18 2 50.0 70 76.8 70 80
E36 25.5 2 70.8 96 102.9 100 110
230 9.3 68 14.5 1.5 6.0 5.5 0.0
None - - - 29.9 35.4 35 40
E09 9 1 21.7 34.6 41.4 35 45
E18 18 2 43.3 61.6 68.5 70 70
E24 24 2 57.7 79.7 86.5 80 90
E36 34 2 81.8 109.7 116.6 110 125
460 4.9 34 7.6 0.8 3.0 2.2 0.0
None - - - 15.6 17.8 20 20
E09 9 1 10.8 17.3 20 20 20
E18 18 2 21.7 30.8 33.6 35 35
E24 24 2 28.9 39.8 42.6 40 45
E36 34 2 40.9 54.9 57.6 60 60
575 3.8 28 6 0.6 2.4 1.8 0.0
None - - - 12.2 14 15 15
E09 9 1 8.7 13.8 16.1 15 20
E18 18 2 17.3 24.7 26.9 25 30
E24 24 2 23.1 31.9 34.1 35 35
E36 34 2 32.7 43.9 46.1 45 50
090
(7.5)
208 11.9 88 18.5 3.5 6.0 5.5 0.0
None - - - 39.8 45.3 50 50
E09 6.8 1 18.9 39.8 45.3 50 50
E18 13.5 2 37.5 54.3 61.2 60 70
E24 18 2 50.0 70 76.8 70 80
E36 25.5 2 70.8 96 102.9 100 110
230 11.9 88 18.5 3.5 6.0 5.5 0.0
None - - - 39.8 45.3 50 50
E09 9 1 21.7 39.8 45.3 50 50
E18 18 2 43.3 61.6 68.5 70 70
E24 24 2 57.7 79.7 86.5 80 90
E36 34 2 81.8 109.7 116.6 110 125
460 5.2 44 8.1 1.6 3.0 2.2 0.0
None - - - 17.9 20.1 20 25
E09 9 1 10.8 17.9 20.1 20 25
E18 18 2 21.7 30.8 33.6 35 35
E24 24 2 28.9 39.8 42.6 40 45
E36 34 2 40.9 54.9 57.6 60 60
575 4.8 36 7.5 1.3 2.4 1.8 0.0
None - - - 15.8 17.6 20 20
E09 9 1 8.7 15.8 17.6 20 20
E18 18 2 17.3 24.7 26.9 25 30
E24 24 2 23.1 31.9 34.1 35 35
E36 34 2 32.7 43.9 46.1 45 50
102
(8.5)
208 12.2 88 19 3.5 6.8 5.5 0.0
None - - - 41.3 46.8 50 50
E09 6.8 1 18.9 41.3 46.8 50 50
E18 13.5 2 37.5 55.3 62.2 60 70
E24 18 2 50.0 71 77.8 80 80
E36 25.5 2 70.8 97 103.9 100 110
230 12.2 88 19 3.5 6.8 5.5 0.0
None - - - 41.3 46.8 50 50
E09 9 1 21.7 41.3 46.8 50 50
E18 18 2 43.3 62.6 69.5 70 70
E24 24 2 57.7 80.7 87.5 90 90
E36 34 2 81.8 110.7 117.6 125 125
460 5.8 44 9 1.6 3.4 2.2 0.0
None - - - 19.7 21.9 25 25
E09 9 1 10.8 19.7 21.9 25 25
E18 18 2 21.7 31.3 34.1 35 35
E24 24 2 28.9 40.3 43.1 45 45
E36 34 2 40.9 55.4 58.1 60 60
575 4.4 36 5.5 1.3 2.7 1.8 0.0
None - - - 15.2 17 20 20
E09 9 1 8.7 15.2 17 20 20
E18 18 2 17.3 25 27.3 25 30
E24 24 2 23.1 32.2 34.5 35 35
E36 34 2 32.7 44.3 46.5 45 50

528150-YTG-G-1210
150 Johnson Controls Unitary Products
120
(10)
208 16 110 24.9 3.5 6.8 5.5 0.0
None - - - 49.8 55.3 60 70
E18 13.5 2 37.5 55.3 62.2 60 70
E24 18 2 50.0 71 77.8 80 80
E36 25.5 2 70.8 97 103.9 100 110
E54 40.6 2 112.7 149.4 156.2 150 175
230 16 110 24.9 3.5 6.8 5.5 0.0
None - - - 49.8 55.3 60 70
E18 18 2 43.3 62.6 69.5 70 70
E24 24 2 57.7 80.7 87.5 90 90
E36 34 2 81.8 110.7 117.6 125 125
E54 54 2 129.9 138.4 145.3 150 175
460 7.8 52 12.1 1.6 3.4 2.2 0.0
None - - - 24.2 26.4 30 30
E18 18 2 21.7 31.3 34.1 35 35
E24 24 2 28.9 40.3 43.1 45 45
E36 34 2 40.9 55.4 58.1 60 60
E54 54 2 65.0 69.2 72 80 80
575 5.7 38.9 8.9 1.3 2.7 1.8 0.0
None - - - 18.1 19.9 20 25
E18 18 2 17.3 25 27.3 25 30
E24 24 2 23.1 32.2 34.5 35 35
E36 34 2 32.7 44.3 46.5 45 50
E54 54 2 52.0 55.3 57.6 60 60
150
(12.5)
208 23.1 160 36 1.5 9.6 5.5 0.0
None - - - 67.6 73.1 90 90
E18 13.5 2 37.5 67.6 73.1 90 90
E24 18 2 50.0 74.5 81.3 90 90
E36 25.5 2 70.8 100.5 107.4 110 110
E54 40.6 2 112.7 152.9 159.7 175 175
230 23.1 160 36 1.5 9.6 5.5 0.0
None - - - 67.6 73.1 90 90
E18 18 2 43.3 67.6 73.1 90 90
E24 24 2 57.7 84.2 91 90 100
E36 34 2 81.8 114.2 121.1 125 125
E54 54 2 129.9 141.9 148.8 175 175
460 12.2 87 19 0.8 4.8 2.2 0.0
None - - - 35.5 37.7 45 45
E18 18 2 21.7 35.5 37.7 45 45
E24 24 2 28.9 42.1 44.8 45 45
E36 34 2 40.9 57.1 59.9 60 60
E54 54 2 65.0 71 73.7 80 80
575 8.7 62 13.5 0.6 3.9 1.8 0.0
None - - - 25.9 27.7 30 35
E18 18 2 17.3 26.5 28.8 30 35
E24 24 2 23.1 33.7 36 35 40
E36 34 2 32.7 45.8 48 50 50
E54 54 2 52.0 56.8 59.1 70 70
1. Minimum Circuit Ampacity.
2. Dual Element, Time Delay Type.
3. HACR type per NEC.
ZJ078-150 Standard Motor - Without Powered Convenience Outlet (Continued)
Size
(Tons) Volt
Compressors
(each)
OD Fan
Motors
(each)
Supply
Blower
Motor
Pwr
Exh
Motor
Pwr
Conv
Outlet Electric Heat Option MCA1
(Amps)
MCA1
w/Pwr
Exh
(Amps)
Max Fuse2/
Breaker3
Size
(Amps)
Max Fuse2/
Breaker3
Size w/ Pwr
Exh
(Amps)
RLA LRA MCC FLA FLA FLA FLA Model kW Stages Amps

528150-YTG-G-1210
Johnson Controls Unitary Products 151
ZJ037-061 Hi Static Indoor Blower - Without Powered Convenience Outlet
Size
(Tons) Volt
Compressors
(each)
OD Fan
Motors
(each)
Supply
Blower
Motor
Pwr
Exh
Motor
Pwr
Conv
Outlet Electric Heat Option MCA1
(Amps)
1. Minimum Circuit Ampacity.
MCA1
w/Pwr
Exh
(Amps)
Max Fuse2/
Breaker3
Size
(Amps)
2. Dual Element, Time Delay Type.
3. HACR type per NEC.
Max Fuse2/
Breaker3
Size w/
Pwr Exh
(Amps)
RLA LRA MCC FLA FLA FLA FLA Model kW Stages Amps
037
(3)
208 8.7 68 13.5 1.5 6.0 5.5 0.0
None-- -18.423.925 30
E03 2.3 1 6.4 18.4 23.9 25 30
E06 4.5 1 12.5 23.1 30 25 30
E08 6.8 1 18.9 31.1 38 35 40
E15 11.3 2 31.4 46.7 53.6 50 60
230 8.7 68 13.5 1.5 6.0 5.5 0.0
None-- -18.423.925 30
E03 3 1 7.2 18.4 23.9 25 30
E06 6 1 14.4 25.5 32.4 30 35
E08 9 1 21.7 34.6 41.4 35 45
E15 15 2 36.1 52.6 59.5 60 60
460 4.6 34 7.1 0.8 3.0 2.2 0.0
None - - - 9.6 11.8 15 15
E03 3 1 3.6 9.6 11.8 15 15
E06 6 1 7.2 12.8 15.5 15 20
E08 9 1 10.8 17.3 20 20 20
E15 15 2 18.0 26.3 29.1 30 30
575 3.5 28 5.5 0.6 2.4 1.8 0.0 None - - - 7.4 9.2 15 15
E08 9 1 8.7 13.8 16.1 15 20
E15 15 2 14.4 21 23.3 25 25
049
(4)
208 11.9 88 18.5 1.5 6.0 5.5 0.0
None-- -23.929.430 40
E06 4.5 1 12.5 23.9 30 30 40
E08 6.8 1 18.9 31.1 38 35 40
E15 11.3 2 31.4 46.7 53.6 50 60
E20 15 2 41.6 59.5 66.4 60 70
230 11.9 88 18.5 1.5 6.0 5.5 0.0
None-- -23.929.430 40
E06 6 1 14.4 25.5 32.4 35 40
E08 9 1 21.7 34.6 41.4 35 45
E15 15 2 36.1 52.6 59.5 60 60
E20 20 2 48.1 67.6 74.5 70 80
460 5.2 44 8.1 0.8 3.0 2.2 0.0
None-- -11.113.315 15
E06 6 1 7.2 12.8 15.5 15 20
E08 9 1 10.8 17.3 20 20 20
E15 15 2 18.0 26.3 29.1 30 30
E20 20 2 24.1 33.8 36.6 35 40
575 4.8 36 7.5 0.6 2.4 1.8 0.0
None - - - 9.6 11.4 15 15
E08 9 1 8.7 13.8 16.1 15 20
E15 15 2 14.4 21 23.3 25 25
E20 20 2 19.2 27.1 29.3 30 30
061
(5)
208 14.1 88 22 1.5 6.8 5.5 0.0
None-- -27.432.935 45
E06 4.5 1 12.5 27.4 32.9 35 45
E08 6.8 1 18.9 32.1 39 40 45
E15 11.3 2 31.4 47.7 54.6 50 60
E20 15 2 41.6 60.5 67.4 70 70
E23 18 2 50.0 71 77.8 80 80
230 14.1 88 22 1.5 6.8 5.5 0.0
None-- -27.432.935 45
E06 6 1 14.4 27.4 33.4 35 45
E08 9 1 21.7 35.6 42.4 40 45
E15 15 2 36.1 53.6 60.5 60 70
E20 20 2 48.1 68.6 75.5 70 80
E23 24 2 57.7 80.7 87.5 90 90
460 7.7 55 12 0.8 3.4 2.2 0.0
None-- -14.616.820 20
E06 6 1 7.2 14.6 16.8 20 20
E08 9 1 10.8 17.8 20.5 20 25
E15 15 2 18.0 26.8 29.6 30 30
E20 20 2 24.1 34.3 37.1 35 40
E23 24 2 28.9 40.3 43.1 45 45
575 5.1 36 7.5 0.6 2.7 1.8 0.0
None-- -10.312.115 15
E08 9 1 8.7 14.2 16.5 15 20
E15 15 2 14.4 21.4 23.7 25 25
E20 20 2 19.2 27.4 29.7 30 30
E23 24 2 23.1 32.2 34.5 35 35

528150-YTG-G-1210
152 Johnson Controls Unitary Products
ZJ078-150 Hi Static Motor - Without Powered Convenience Outlet
Size
(Tons) Volt
Compressors
(each)
OD Fan
Motors
(each)
Supply
Blower
Motor
Pwr
Exh
Motor
Pwr
Conv
Outlet Electric Heat Option MCA1
(Amps)
MCA1
w/Pwr
Exh
(Amps)
Max Fuse2/
Breaker3
Size
(Amps)
Max Fuse2/
Breaker3
Size w/ Pwr
Exh
(Amps)
RLA LRA MCC FLA FLA FLA FLA Model kW Stages Amps
078
(6.5)
208 9.3 68 14.5 1.5 6.8 5.5 0.0
None - - - 30.7 36.2 40 45
E09 6.8 1 18.9 32.1 39 40 45
E18 13.5 2 37.5 55.3 62.2 60 70
E24 18 2 50.0 71 77.8 80 80
E36 25.5 2 70.8 97 103.9 100 110
230 9.3 68 14.5 1.5 6.8 5.5 0.0
None - - - 30.7 36.2 40 45
E09 9 1 21.7 35.6 42.4 40 45
E18 18 2 43.3 62.6 69.5 70 70
E24 24 2 57.7 80.7 87.5 90 90
E36 34 2 81.8 110.7 117.6 125 125
460 4.9 34 7.6 0.8 3.4 2.2 0.0
None - - - 16 18.2 20 20
E09 9 1 10.8 17.8 20.5 20 25
E18 18 2 21.7 31.3 34.1 35 35
E24 24 2 28.9 40.3 43.1 45 45
E36 34 2 40.9 55.4 58.1 60 60
575 3.8 28 6 0.6 2.7 1.8 0.0
None - - - 12.5 14.3 15 15
E09 9 1 8.7 14.2 16.5 15 20
E18 18 2 17.3 25 27.3 25 30
E24 24 2 23.1 32.2 34.5 35 35
E36 34 2 32.7 44.3 46.5 45 50
090
(7.5)
208 11.9 88 18.5 3.5 9.6 5.5 0.0
None - - - 43.4 48.9 50 60
E09 6.8 1 18.9 43.4 48.9 50 60
E18 13.5 2 37.5 58.8 65.7 60 70
E24 18 2 50.0 74.5 81.3 80 90
E36 25.5 2 70.8 100.5 107.4 110 110
230 11.9 88 18.5 3.5 9.6 5.5 0.0
None - - - 43.4 48.9 50 60
E09 9 1 21.7 43.4 48.9 50 60
E18 18 2 43.3 66.1 73 70 80
E24 24 2 57.7 84.2 91 90 100
E36 34 2 81.8 114.2 121.1 125 125
460 5.2 44 8.1 1.6 4.8 2.2 0.0
None - - - 19.7 21.9 20 25
E09 9 1 10.8 19.7 22.3 20 25
E18 18 2 21.7 33.1 35.8 35 40
E24 24 2 28.9 42.1 44.8 45 45
E36 34 2 40.9 57.1 59.9 60 60
575 4.8 36 7.5 1.3 3.9 1.8 0.0
None - - - 17.3 19.1 20 20
E09 9 1 8.7 17.3 19.1 20 20
E18 18 2 17.3 26.5 28.8 30 30
E24 24 2 23.1 33.7 36 35 40
E36 34 2 32.7 45.8 48 50 50
102
(8.5)
208 12.2 88 19 3.5 9.6 5.5 0.0
None - - - 44.1 49.6 50 60
E09 6.8 1 18.9 44.1 49.6 50 60
E18 13.5 2 37.5 58.8 65.7 60 70
E24 18 2 50.0 74.5 81.3 80 90
E36 25.5 2 70.8 100.5 107.4 110 110
230 12.2 88 19 3.5 9.6 5.5 0.0
None - - - 44.1 49.6 50 60
E09 9 1 21.7 44.1 49.6 50 60
E18 18 2 43.3 66.1 73 70 80
E24 24 2 57.7 84.2 91 90 100
E36 34 2 81.8 114.2 121.1 125 125
460 5.8 44 9 1.6 4.8 2.2 0.0
None - - - 21.1 23.3 25 25
E09 9 1 10.8 21.1 23.3 25 25
E18 18 2 21.7 33.1 35.8 35 40
E24 24 2 28.9 42.1 44.8 45 45
E36 34 2 40.9 57.1 59.9 60 60
575 4.4 36 5.5 1.3 3.9 1.8 0.0
None - - - 16.4 18.2 20 20
E09 9 1 8.7 16.4 18.2 20 20
E18 18 2 17.3 26.5 28.8 30 30
E24 24 2 23.1 33.7 36 35 40
E36 34 2 32.7 45.8 48 50 50

528150-YTG-G-1210
Johnson Controls Unitary Products 153
120
(10)
208 16 110 24.9 3.5 9.6 5.5 0.0
None - - - 52.6 58.1 60 70
E18 13.5 2 37.5 58.8 65.7 60 70
E24 18 2 50.0 74.5 81.3 80 90
E36 25.5 2 70.8 100.5 107.4 110 110
E54 40.6 2 112.7 152.9 159.7 175 175
230 16 110 24.9 3.5 9.6 5.5 0.0
None - - - 52.6 58.1 60 70
E18 18 2 43.3 66.1 73 70 80
E24 24 2 57.7 84.2 91 90 100
E36 34 2 81.8 114.2 121.1 125 125
E54 54 2 129.9 141.9 148.8 175 175
460 7.8 52 12.1 1.6 4.8 2.2 0.0
None - - - 25.6 27.8 30 35
E18 18 2 21.7 33.1 35.8 35 40
E24 24 2 28.9 42.1 44.8 45 45
E36 34 2 40.9 57.1 59.9 60 60
E54 54 2 65.0 71 73.7 80 80
575 5.7 38.9 8.9 1.3 3.9 1.8 0.0
None - - - 19.3 21.1 25 25
E18 18 2 17.3 26.5 28.8 30 30
E24 24 2 23.1 33.7 36 35 40
E36 34 2 32.7 45.8 48 50 50
E54 54 2 52.0 56.8 59.1 70 70
150
(12.5)
208 23.1 160 36 1.5 15.2 5.5 0.0
None - - - 73.2 78.7 90 100
E18 13.5 2 37.5 73.2 78.7 90 100
E24 18 2 50.0 81.5 88.3 90 100
E36 25.5 2 70.8 107.5 114.4 110 125
E54 40.6 2 112.7 159.9 166.7 175 175
230 23.1 160 36 1.5 15.2 5.5 0.0
None - - - 73.2 78.7 90 100
E18 18 2 43.3 73.2 80 90 100
E24 24 2 57.7 91.2 98 100 100
E36 34 2 81.8 121.2 128.1 125 150
E54 54 2 129.9 148.9 155.8 175 175
460 12.2 87 19 0.8 7.6 2.2 0.0
None - - - 38.3 40.5 50 50
E18 18 2 21.7 38.3 40.5 50 50
E24 24 2 28.9 45.6 48.3 50 50
E36 34 2 40.9 60.6 63.4 70 70
E54 54 2 65.0 74.5 77.2 90 90
575 8.7 62 13.5 0.6 6.1 1.8 0.0
None - - - 28.1 29.9 35 35
E18 18 2 17.3 29.3 31.5 35 35
E24 24 2 23.1 36.5 38.7 40 40
E36 34 2 32.7 48.5 50.8 50 60
E54 54 2 52.0 59.6 61.8 70 70
1. Minimum Circuit Ampacity.
2. Dual Element, Time Delay Type.
3. HACR type per NEC.
ZJ078-150 Hi Static Motor - Without Powered Convenience Outlet (Continued)
Size
(Tons) Volt
Compressors
(each)
OD Fan
Motors
(each)
Supply
Blower
Motor
Pwr
Exh
Motor
Pwr
Conv
Outlet Electric Heat Option MCA1
(Amps)
MCA1
w/Pwr
Exh
(Amps)
Max Fuse2/
Breaker3
Size
(Amps)
Max Fuse2/
Breaker3
Size w/ Pwr
Exh
(Amps)
RLA LRA MCC FLA FLA FLA FLA Model kW Stages Amps

528150-YTG-G-1210
154 Johnson Controls Unitary Products
ZJ037-061 Standard Indoor Blower - With Powered Convenience Outlet
Size
(Tons) Volt
Compressors
(each)
OD Fan
Motors
(each)
Supply
Blower
Motor
Pwr
Exh
Motor
Pwr
Conv
Outlet Electric Heat Option MCA1
(Amps)
1. Minimum Circuit Ampacity.
MCA1
w/Pwr
Exh
(Amps)
Max Fuse2/
Breaker3
Size
(Amps)
2. Dual Element, Time Delay Type.
3. HACR type per NEC.
Max Fuse2/
Breaker3
Size w/
Pwr Exh
(Amps)
RLA LRA MCC FLA FLA FLA FLA Model kW Stages Amps
037
(3)
208 8.7 68 13.5 1.5 6.0 5.5 10.0
None-- -28.734.235 40
E03 2.3 1 6.4 28.7 34.9 35 40
E06 4.5 1 12.5 35.6 42.5 40 45
E08 6.8 1 18.9 43.6 50.5 45 60
E15 11.3 2 31.4 59.2 66.1 60 70
230 8.7 68 13.5 1.5 6.0 5.5 10.0
None-- -28.734.235 40
E03 3 1 7.2 29 35.9 35 40
E06 6 1 14.4 38 44.9 40 45
E08 9 1 21.7 47.1 53.9 50 60
E15 15 2 36.1 65.1 72 70 80
460 4.6 34 7.1 0.8 3.0 2.2 5.0
None-- -14.716.915 20
E03 3 1 3.6 14.7 17.3 15 20
E06 6 1 7.2 19 21.8 20 25
E08 9 1 10.8 23.5 26.3 25 30
E15 15 2 18.0 32.6 35.3 35 40
575 3.5 28 5.5 0.6 2.4 1.8 4.0 None-- -11.513.315 15
E08 9 1 8.7 18.8 21.1 20 25
E15 15 2 14.4 26 28.3 30 30
049
(4)
208 11.9 88 18.5 1.5 6.0 5.5 10.0
None-- -33.939.445 50
E06 4.5 1 12.5 35.6 42.5 45 50
E08 6.8 1 18.9 43.6 50.5 45 60
E15 11.3 2 31.4 59.2 66.1 60 70
E20 15 2 41.6 72 78.9 80 80
230 11.9 88 18.5 1.5 6.0 5.5 10.0
None-- -33.939.445 50
E06 6 1 14.4 38 44.9 45 50
E08 9 1 21.7 47.1 53.9 50 60
E15 15 2 36.1 65.1 72 70 80
E20 20 2 48.1 80.1 87 90 90
460 5.2 44 8.1 0.8 3.0 2.2 5.0
None-- -16.118.320 20
E06 6 1 7.2 19 21.8 20 25
E08 9 1 10.8 23.5 26.3 25 30
E15 15 2 18.0 32.6 35.3 35 40
E20 20 2 24.1 40.1 42.8 45 45
575 4.8 36 7.5 0.6 2.4 1.8 4.0
None-- -13.615.415 20
E08 9 1 8.7 18.8 21.1 20 25
E15 15 2 14.4 26 28.3 30 30
E20 20 2 19.2 32.1 34.3 35 35
061
(5)
208 14.1 88 22 1.5 6.0 5.5 10.0
None-- -36.642.150 50
E06 4.5 1 12.5 36.6 42.5 50 50
E08 6.8 1 18.9 43.6 50.5 50 60
E15 11.3 2 31.4 59.2 66.1 60 70
E20 15 2 41.6 72 78.9 80 80
E23 18 2 50.0 82.5 89.3 90 90
230 14.1 88 22 1.5 6.0 5.5 10.0
None-- -36.642.150 50
E06 6 1 14.4 38 44.9 50 50
E08 9 1 21.7 47.1 53.9 50 60
E15 15 2 36.1 65.1 72 70 80
E20 20 2 48.1 80.1 87 90 90
E23 24 2 57.7 92.2 99 100 100
460 7.7 55 12 0.8 3.0 2.2 5.0
None-- -19.221.425 25
E06 6 1 7.2 19.2 21.8 25 25
E08 9 1 10.8 23.5 26.3 25 30
E15 15 2 18.0 32.6 35.3 35 40
E20 20 2 24.1 40.1 42.8 45 45
E23 24 2 28.9 46.1 48.8 50 50
575 5.1 36 7.5 0.6 2.4 1.8 4.0
None-- - 1415.815 20
E08 9 1 8.7 18.8 21.1 20 25
E15 15 2 14.4 26 28.3 30 30
E20 20 2 19.2 32.1 34.3 35 35
E23 24 2 23.1 36.9 39.1 40 40

528150-YTG-G-1210
Johnson Controls Unitary Products 155
ZJ078-150 Standard Motor - With Powered Convenience Outlet
Size
(Tons) Volt
Compressors
(each)
OD Fan
Motors
(each)
Supply
Blower
Motor
Pwr
Exh
Motor
Pwr
Conv
Outlet Electric Heat Option MCA1
(Amps)
MCA1
w/Pwr
Exh
(Amps)
Max Fuse2/
Breaker3
Size
(Amps)
Max Fuse2/
Breaker3
Size w/ Pwr
Exh
(Amps)
RLA LRA MCC FLA FLA FLA FLA Model kW Stages Amps
078
(6.5)
208 9.3 68 14.5 1.5 6.0 5.5 10.0
None - - - 40.1 45.6 50 50
E09 6.8 1 18.9 43.6 50.5 50 60
E18 13.5 2 37.5 66.8 73.7 70 80
E24 18 2 50.0 82.5 89.3 90 90
E36 25.5 2 70.8 108.5 115.4 110 125
230 9.3 68 14.5 1.5 6.0 5.5 10.0
None - - - 40.1 45.6 50 50
E09 9 1 21.7 47.1 53.9 50 60
E18 18 2 43.3 74.1 81 80 90
E24 24 2 57.7 92.2 99 100 100
E36 34 2 81.8 122.2 129.1 125 150
460 4.9 34 7.6 0.8 3.0 2.2 5.0
None - - - 20.7 22.9 25 25
E09 9 1 10.8 23.5 26.3 25 30
E18 18 2 21.7 37.1 39.8 40 40
E24 24 2 28.9 46.1 48.8 50 50
E36 34 2 40.9 61.1 63.9 70 70
575 3.8 28 6 0.6 2.4 1.8 4.0
None - - - 16.2 18 20 20
E09 9 1 8.7 18.8 21.1 20 25
E18 18 2 17.3 29.7 31.9 30 35
E24 24 2 23.1 36.9 39.1 40 40
E36 34 2 32.7 48.9 51.1 50 60
090
(7.5)
208 11.9 88 18.5 3.5 6.0 5.5 10.0
None - - - 49.8 55.3 60 60
E09 6.8 1 18.9 49.8 55.3 60 60
E18 13.5 2 37.5 66.8 73.7 70 80
E24 18 2 50.0 82.5 89.3 90 90
E36 25.5 2 70.8 108.5 115.4 110 125
230 11.9 88 18.5 3.5 6.0 5.5 10.0
None - - - 49.8 55.3 60 60
E09 9 1 21.7 49.8 55.3 60 60
E18 18 2 43.3 74.1 81 80 90
E24 24 2 57.7 92.2 99 100 100
E36 34 2 81.8 122.2 129.1 125 150
460 5.2 44 8.1 1.6 3.0 2.2 5.0
None - - - 22.9 25.1 25 30
E09 9 1 10.8 23.5 26.3 25 30
E18 18 2 21.7 37.1 39.8 40 40
E24 24 2 28.9 46.1 48.8 50 50
E36 34 2 40.9 61.1 63.9 70 70
575 4.8 36 7.5 1.3 2.4 1.8 4.0
None - - - 19.8 21.6 20 25
E09 9 1 8.7 19.8 21.6 20 25
E18 18 2 17.3 29.7 31.9 30 35
E24 24 2 23.1 36.9 39.1 40 40
E36 34 2 32.7 48.9 51.1 50 60
102
(8.5)
208 12.2 88 19 3.5 6.8 5.5 10.0
None - - - 51.3 56.8 60 60
E09 6.8 1 18.9 51.3 56.8 60 60
E18 13.5 2 37.5 67.8 74.7 70 80
E24 18 2 50.0 83.5 90.3 90 100
E36 25.5 2 70.8 109.5 116.4 110 125
230 12.2 88 19 3.5 6.8 5.5 10.0
None - - - 51.3 56.8 60 60
E09 9 1 21.7 51.3 56.8 60 60
E18 18 2 43.3 75.1 82 80 90
E24 24 2 57.7 93.2 100 100 100
E36 34 2 81.8 123.2 130.1 125 150
460 5.8 44 9 1.6 3.4 2.2 5.0
None - - - 24.7 26.9 30 30
E09 9 1 10.8 24.7 26.9 30 30
E18 18 2 21.7 37.6 40.3 40 45
E24 24 2 28.9 46.6 49.3 50 50
E36 34 2 40.9 61.6 64.4 70 70
575 4.4 36 5.5 1.3 2.7 1.8 4.0
None - - - 19.2 21 20 25
E09 9 1 8.7 19.2 21.5 20 25
E18 18 2 17.3 30 32.3 30 35
E24 24 2 23.1 37.2 39.5 40 40
E36 34 2 32.7 49.3 51.5 50 60

528150-YTG-G-1210
156 Johnson Controls Unitary Products
120
(10)
208 16 110 24.9 3.5 6.8 5.5 10.0
None - - - 59.8 65.3 70 80
E18 13.5 2 37.5 67.8 74.7 70 80
E24 18 2 50.0 83.5 90.3 90 100
E36 25.5 2 70.8 109.5 116.4 110 125
E54 40.6 2 112.7 161.9 168.7 175 175
230 16 110 24.9 3.5 6.8 5.5 10.0
None - - - 59.8 65.3 70 80
E18 18 2 43.3 75.1 82 80 90
E24 24 2 57.7 93.2 100 100 100
E36 34 2 81.8 123.2 130.1 125 150
E54 54 2 129.9 150.9 157.8 175 175
460 7.8 52 12.1 1.6 3.4 2.2 5.0
None - - - 29.2 31.4 35 35
E18 18 2 21.7 37.6 40.3 40 45
E24 24 2 28.9 46.6 49.3 50 50
E36 34 2 40.9 61.6 64.4 70 70
E54 54 2 65.0 75.5 78.2 80 90
575 5.7 38.9 8.9 1.3 2.7 1.8 4.0
None - - - 22.1 23.9 25 25
E18 18 2 17.3 30 32.3 30 35
E24 24 2 23.1 37.2 39.5 40 40
E36 34 2 32.7 49.3 51.5 50 60
E54 54 2 52.0 60.3 62.6 70 70
150
(12.5)
208 23.1 160 36 1.5 9.6 5.5 10.0
None - - - 77.6 83.1 100 100
E18 13.5 2 37.5 77.6 83.1 100 100
E24 18 2 50.0 87 93.8 100 100
E36 25.5 2 70.8 113 119.9 125 125
E54 40.6 2 112.7 165.4 172.2 175 175
230 23.1 160 36 1.5 9.6 5.5 10.0
None - - - 77.6 83.1 100 100
E18 18 2 43.3 78.6 85.5 100 100
E24 24 2 57.7 96.7 103.5 100 110
E36 34 2 81.8 126.7 133.6 150 150
E54 54 2 129.9 154.4 161.3 175 175
460 12.2 87 19 0.8 4.8 2.2 5.0
None - - - 40.5 42.7 50 50
E18 18 2 21.7 40.5 42.7 50 50
E24 24 2 28.9 48.3 51.1 50 60
E36 34 2 40.9 63.4 66.1 70 70
E54 54 2 65.0 77.2 80 90 90
575 8.7 62 13.5 0.6 3.9 1.8 4.0
None - - - 29.9 31.7 35 40
E18 18 2 17.3 31.5 33.8 35 40
E24 24 2 23.1 38.7 41 40 45
E36 34 2 32.7 50.8 53 60 60
E54 54 2 52.0 61.8 64.1 70 70
1. Minimum Circuit Ampacity.
2. Dual Element, Time Delay Type.
3. HACR type per NEC.
ZJ078-150 Standard Motor - With Powered Convenience Outlet (Continued)
Size
(Tons) Volt
Compressors
(each)
OD Fan
Motors
(each)
Supply
Blower
Motor
Pwr
Exh
Motor
Pwr
Conv
Outlet Electric Heat Option MCA1
(Amps)
MCA1
w/Pwr
Exh
(Amps)
Max Fuse2/
Breaker3
Size
(Amps)
Max Fuse2/
Breaker3
Size w/ Pwr
Exh
(Amps)
RLA LRA MCC FLA FLA FLA FLA Model kW Stages Amps

528150-YTG-G-1210
Johnson Controls Unitary Products 157
ZJ037-061 Hi Static Blower - With Powered Convenience Outlet
Size
(Tons) Volt
Compressors
(each)
OD Fan
Motors
(each)
Supply
Blower
Motor
Pwr
Exh
Motor
Pwr
Conv
Outlet Electric Heat Option MCA1
(Amps)
1. Minimum Circuit Ampacity.
MCA1
w/Pwr
Exh
(Amps)
Max Fuse2/
Breaker3
Size
(Amps)
2. Dual Element, Time Delay Type.
3. HACR type per NEC.
Max Fuse2/
Breaker3
Size w/
Pwr Exh
(Amps)
RLA LRA MCC FLA FLA FLA FLA Model kW Stages Amps
037
(3)
208 8.7 68 13.5 1.5 6.0 5.5 10.0
None-- -28.734.235 40
E03 2.3 1 6.4 28.7 34.9 35 40
E06 4.5 1 12.5 35.6 42.5 40 45
E08 6.8 1 18.9 43.6 50.5 45 60
E15 11.3 2 31.4 59.2 66.1 60 70
230 8.7 68 13.5 1.5 6.0 5.5 10.0
None-- -28.734.235 40
E03 3 1 7.2 29 35.9 35 40
E06 6 1 14.4 38 44.9 40 45
E08 9 1 21.7 47.1 53.9 50 60
E15 15 2 36.1 65.1 72 70 80
460 4.6 34 7.1 0.8 3.0 2.2 5.0
None-- -14.716.915 20
E03 3 1 3.6 14.7 17.3 15 20
E06 6 1 7.2 19 21.8 20 25
E08 9 1 10.8 23.5 26.3 25 30
E15 15 2 18.0 32.6 35.3 35 40
575 3.5 28 5.5 0.6 2.4 1.8 4.0 None-- -11.513.315 15
E08 9 1 8.7 18.8 21.1 20 25
E15 15 2 14.4 26 28.3 30 30
049
(4)
208 11.9 88 18.5 1.5 6.0 5.5 10.0
None-- -33.939.445 50
E06 4.5 1 12.5 35.6 42.5 45 50
E08 6.8 1 18.9 43.6 50.5 45 60
E15 11.3 2 31.4 59.2 66.1 60 70
E20 15 2 41.6 72 78.9 80 80
230 11.9 88 18.5 1.5 6.0 5.5 10.0
None-- -33.939.445 50
E06 6 1 14.4 38 44.9 45 50
E08 9 1 21.7 47.1 53.9 50 60
E15 15 2 36.1 65.1 72 70 80
E20 20 2 48.1 80.1 87 90 90
460 5.2 44 8.1 0.8 3.0 2.2 5.0
None-- -16.118.320 20
E06 6 1 7.2 19 21.8 20 25
E08 9 1 10.8 23.5 26.3 25 30
E15 15 2 18.0 32.6 35.3 35 40
E20 20 2 24.1 40.1 42.8 45 45
575 4.8 36 7.5 0.6 2.4 1.8 4.0
None-- -13.615.415 20
E08 9 1 8.7 18.8 21.1 20 25
E15 15 2 14.4 26 28.3 30 30
E20 20 2 19.2 32.1 34.3 35 35
061
(5)
208 14.1 88 22 1.5 6.8 5.5 10.0
None-- -37.442.950 50
E06 4.5 1 12.5 37.4 43.5 50 50
E08 6.8 1 18.9 44.6 51.5 50 60
E15 11.3 2 31.4 60.2 67.1 70 70
E20 15 2 41.6 73 79.9 80 80
E23 18 2 50.0 83.5 90.3 90 100
230 14.1 88 22 1.5 6.8 5.5 10.0
None-- -37.442.950 50
E06 6 1 14.4 39 45.9 50 50
E08 9 1 21.7 48.1 54.9 50 60
E15 15 2 36.1 66.1 73 70 80
E20 20 2 48.1 81.1 88 90 90
E23 24 2 57.7 93.2 100 100 100
460 7.7 55 12 0.8 3.4 2.2 5.0
None-- -19.621.825 25
E06 6 1 7.2 19.6 22.3 25 25
E08 9 1 10.8 24 26.8 25 30
E15 15 2 18.0 33.1 35.8 35 40
E20 20 2 24.1 40.6 43.3 45 45
E23 24 2 28.9 46.6 49.3 50 50
575 5.1 36 7.5 0.6 2.7 1.8 4.0
None-- -14.316.115 20
E08 9 1 8.7 19.2 21.5 20 25
E15 15 2 14.4 26.4 28.7 30 30
E20 20 2 19.2 32.4 34.7 35 35
E23 24 2 23.1 37.2 39.5 40 40

528150-YTG-G-1210
158 Johnson Controls Unitary Products
ZJ078-150 Hi Static Motor - With Powered Convenience Outlet
Size
(Tons) Volt
Compressors
(each)
OD Fan
Motors
(each)
Supply
Blower
Motor
Pwr
Exh
Motor
Pwr
Conv
Outlet Electric Heat Option MCA1
(Amps)
MCA1
w/Pwr
Exh
(Amps)
Max Fuse2/
Breaker3
Size
(Amps)
Max Fuse2/
Breaker3
Size w/ Pwr
Exh
(Amps)
RLA LRA MCC FLA FLA FLA FLA Model kW Stages Amps
078
(6.5)
208 9.3 68 14.5 1.5 6.8 5.5 10.0
None - - - 40.9 46.4 50 50
E09 6.8 1 18.9 44.6 51.5 50 60
E18 13.5 2 37.5 67.8 74.7 70 80
E24 18 2 50.0 83.5 90.3 90 100
E36 25.5 2 70.8 109.5 116.4 110 125
230 9.3 68 14.5 1.5 6.8 5.5 10.0
None - - - 40.9 46.4 50 50
E09 9 1 21.7 48.1 54.9 50 60
E18 18 2 43.3 75.1 82 80 90
E24 24 2 57.7 93.2 100 100 100
E36 34 2 81.8 123.2 130.1 125 150
460 4.9 34 7.6 0.8 3.4 2.2 5.0
None - - - 21.1 23.3 25 25
E09 9 1 10.8 24 26.8 25 30
E18 18 2 21.7 37.6 40.3 40 45
E24 24 2 28.9 46.6 49.3 50 50
E36 34 2 40.9 61.6 64.4 70 70
575 3.8 28 6 0.6 2.7 1.8 4.0
None - - - 16.5 18.3 20 20
E09 9 1 8.7 19.2 21.5 20 25
E18 18 2 17.3 30 32.3 30 35
E24 24 2 23.1 37.2 39.5 40 40
E36 34 2 32.7 49.3 51.5 50 60
090
(7.5)
208 11.9 88 18.5 3.5 9.6 5.5 10.0
None - - - 53.4 58.9 60 70
E09 6.8 1 18.9 53.4 58.9 60 70
E18 13.5 2 37.5 71.3 78.2 80 80
E24 18 2 50.0 87 93.8 90 100
E36 25.5 2 70.8 113 119.9 125 125
230 11.9 88 18.5 3.5 9.6 5.5 10.0
None - - - 53.4 58.9 60 70
E09 9 1 21.7 53.4 58.9 60 70
E18 18 2 43.3 78.6 85.5 80 90
E24 24 2 57.7 96.7 103.5 100 110
E36 34 2 81.8 126.7 133.6 150 150
460 5.2 44 8.1 1.6 4.8 2.2 5.0
None - - - 24.7 26.9 25 30
E09 9 1 10.8 25.8 28.5 30 30
E18 18 2 21.7 39.3 42.1 40 45
E24 24 2 28.9 48.3 51.1 50 60
E36 34 2 40.9 63.4 66.1 70 70
575 4.8 36 7.5 1.3 3.9 1.8 4.0
None - - - 21.3 23.1 25 25
E09 9 1 8.7 21.3 23.1 25 25
E18 18 2 17.3 31.5 33.8 35 35
E24 24 2 23.1 38.7 41 40 45
E36 34 2 32.7 50.8 53 60 60
102
(8.5)
208 12.2 88 19 3.5 9.6 5.5 10.0
None - - - 54.1 59.6 60 70
E09 6.8 1 18.9 54.1 59.6 60 70
E18 13.5 2 37.5 71.3 78.2 80 80
E24 18 2 50.0 87 93.8 90 100
E36 25.5 2 70.8 113 119.9 125 125
230 12.2 88 19 3.5 9.6 5.5 10.0
None - - - 54.1 59.6 60 70
E09 9 1 21.7 54.1 59.6 60 70
E18 18 2 43.3 78.6 85.5 80 90
E24 24 2 57.7 96.7 103.5 100 110
E36 34 2 81.8 126.7 133.6 150 150
460 5.8 44 9 1.6 4.8 2.2 5.0
None - - - 26.1 28.3 30 30
E09 9 1 10.8 26.1 28.5 30 30
E18 18 2 21.7 39.3 42.1 40 45
E24 24 2 28.9 48.3 51.1 50 60
E36 34 2 40.9 63.4 66.1 70 70
575 4.4 36 5.5 1.3 3.9 1.8 4.0
None - - - 20.4 22.2 25 25
E09 9 1 8.7 20.7 23 25 25
E18 18 2 17.3 31.5 33.8 35 35
E24 24 2 23.1 38.7 41 40 45
E36 34 2 32.7 50.8 53 60 60

528150-YTG-G-1210
Johnson Controls Unitary Products 159
120
(10)
208 16 110 24.9 3.5 9.6 5.5 10.0
None - - - 62.6 68.1 70 80
E18 13.5 2 37.5 71.3 78.2 80 80
E24 18 2 50.0 87 93.8 90 100
E36 25.5 2 70.8 113 119.9 125 125
E54 40.6 2 112.7 165.4 172.2 175 175
230 16 110 24.9 3.5 9.6 5.5 10.0
None - - - 62.6 68.1 70 80
E18 18 2 43.3 78.6 85.5 80 90
E24 24 2 57.7 96.7 103.5 100 110
E36 34 2 81.8 126.7 133.6 150 150
E54 54 2 129.9 154.4 161.3 175 175
460 7.8 52 12.1 1.6 4.8 2.2 5.0
None - - - 30.6 32.8 35 40
E18 18 2 21.7 39.3 42.1 40 45
E24 24 2 28.9 48.3 51.1 50 60
E36 34 2 40.9 63.4 66.1 70 70
E54 54 2 65.0 77.2 80 90 90
575 5.7 38.9 8.9 1.3 3.9 1.8 4.0
None - - - 23.3 25.1 25 30
E18 18 2 17.3 31.5 33.8 35 35
E24 24 2 23.1 38.7 41 40 45
E36 34 2 32.7 50.8 53 60 60
E54 54 2 52.0 61.8 64.1 70 70
150
(12.5)
208 23.1 160 36 1.5 15.2 5.5 10.0
None - - - 83.2 88.7 100 110
E18 13.5 2 37.5 83.2 88.7 100 110
E24 18 2 50.0 94 100.8 100 110
E36 25.5 2 70.8 120 126.9 125 150
E54 40.6 2 112.7 172.4 179.2 175 200
230 23.1 160 36 1.5 15.2 5.5 10.0
None - - - 83.2 88.7 100 110
E18 18 2 43.3 85.6 92.5 100 110
E24 24 2 57.7 103.7 110.5 110 125
E36 34 2 81.8 133.7 140.6 150 150
E54 54 2 129.9 161.4 168.3 175 175
460 12.2 87 19 0.8 7.6 2.2 5.0
None - - - 43.3 45.5 50 50
E18 18 2 21.7 43.3 45.6 50 50
E24 24 2 28.9 51.8 54.6 60 60
E36 34 2 40.9 66.9 69.6 70 70
E54 54 2 65.0 80.7 83.5 90 90
575 8.7 62 13.5 0.6 6.1 1.8 4.0
None - - - 32.1 33.9 40 40
E18 18 2 17.3 34.3 36.5 40 40
E24 24 2 23.1 41.5 43.7 45 45
E36 34 2 32.7 53.5 55.8 60 60
E54 54 2 52.0 64.6 66.8 70 70
1. Minimum Circuit Ampacity.
2. Dual Element, Time Delay Type.
3. HACR type per NEC.
ZJ078-150 Hi Static Motor - With Powered Convenience Outlet (Continued)
Size
(Tons) Volt
Compressors
(each)
OD Fan
Motors
(each)
Supply
Blower
Motor
Pwr
Exh
Motor
Pwr
Conv
Outlet Electric Heat Option MCA1
(Amps)
MCA1
w/Pwr
Exh
(Amps)
Max Fuse2/
Breaker3
Size
(Amps)
Max Fuse2/
Breaker3
Size w/ Pwr
Exh
(Amps)
RLA LRA MCC FLA FLA FLA FLA Model kW Stages Amps

528150-YTG-G-1210
160 Johnson Controls Unitary Products
ZR037-061 Standard Indoor Blower - Without Powered Convenience Outlet
Size
(Tons) Volt
Compressors
(each)
OD Fan
Motors
(each)
Supply
Blower
Motor
Pwr
Exh
Motor
Pwr
Conv
Outlet Electric Heat Option MCA1
(Amps)
MCA1
w/Pwr
Exh
(Amps)
Max Fuse2/
Breaker3
Size
(Amps)
Max Fuse2/
Breaker3
Size w/
Pwr Exh
(Amps)
RLA LRA MCC FLA FLA FLA FLA Model kW Stages Amps
037
(3)
208 8.7 68 13.5 1.5 6.0 5.5 0.0
None-- -18.423.925 30
E03 2.3 1 6.4 18.4 23.9 25 30
E06 4.5 1 12.5 23.1 30.0 25 30
E08 6.8 1 18.9 31.1 38.0 35 40
E15 11.3 2 31.4 46.7 53.6 50 60
230 8.7 68 13.5 1.5 6.0 5.5 0.0
None-- -18.423.925 30
E03 3 1 7.2 18.4 23.9 25 30
E06 6 1 14.4 25.5 32.4 30 35
E08 9 1 21.7 34.6 41.4 35 45
E15 15 2 36.1 52.6 59.5 60 60
460 4.6 34 7.1 0.8 3.0 2.2 0.0
None - - - 9.6 11.8 15 15
E03 3 1 3.6 9.6 11.8 15 15
E06 6 1 7.2 12.8 15.5 15 20
E08 9 1 10.8 17.3 20.0 20 20
E15 15 2 18.0 26.3 29.1 30 30
575 3.5 28 5.5 0.6 2.4 1.8 0.0
None - - - 7.4 9.2 15 15
E08 9 1 8.7 13.8 16.1 15 20
E15 15 2 14.4 21.0 23.3 25 25
049
(4)
208 11.9 88 18.5 1.5 6.0 5.5 0.0
None-- -23.929.430 40
E06 4.5 1 12.5 23.9 30.0 30 40
E08 6.8 1 18.9 31.1 38.0 35 40
E15 11.3 2 31.4 46.7 53.6 50 60
E20 15 2 41.6 59.5 66.4 60 70
230 11.9 88 18.5 1.5 6.0 5.5 0.0
None-- -23.929.430 40
E06 6 1 14.4 25.5 32.4 35 40
E08 9 1 21.7 34.6 41.4 35 45
E15 15 2 36.1 52.6 59.5 60 60
E20 20 2 48.1 67.6 74.5 70 80
460 5.2 44 8.1 0.8 3.0 2.2 0.0
None-- -11.113.315 15
E06 6 1 7.2 12.8 15.5 15 20
E08 9 1 10.8 17.3 20.0 20 20
E15 15 2 18.0 26.3 29.1 30 30
E20 20 2 24.1 33.8 36.6 35 40
575 4.8 36 7.5 0.6 2.4 1.8 0.0
None - - - 9.6 11.4 15 15
E08 9 1 8.7 13.8 16.1 15 20
E15 15 2 14.4 21.0 23.3 25 25
E20 20 2 19.2 27.1 29.3 30 30
061
(4)
208 14.1 88 22.0 1.5 4.3 5.5 0.0
None-- -26.632.135 45
E06 4.5 1 12.5 26.6 32.1 35 45
E08 6.8 1 18.9 31.1 38.0 40 45
E15 11.3 2 31.4 46.7 53.6 50 60
E20 15 2 41.6 59.5 66.4 60 70
E23 18 2 50.0 70.0 76.8 70 80
230 14.1 88 22.0 1.5 4.3 5.5 0.0
None-- -26.632.135 45
E06 6 1 14.4 26.6 32.4 35 45
E08 9 1 21.7 34.6 41.4 40 45
E15 15 2 36.1 52.6 59.5 60 60
E20 20 2 48.1 67.6 74.5 70 80
E23 24 2 57.7 79.7 86.5 80 90
460 7.7 55 12.0 0.8 2.1 2.2 0.0
None-- -14.216.420 20
E06 6 1 7.2 14.2 16.4 20 20
E08 9 1 10.8 17.3 20.0 20 20
E15 15 2 18.0 26.3 29.1 30 30
E20 20 2 24.1 33.8 36.6 35 40
E23 24 2 28.9 39.8 42.6 40 45
575 5.1 36 7.5 0.6 2.0 1.8 0.0
None-- -10.011.815 15
E08 9 1 8.7 13.8 16.1 15 20
E15 15 2 14.4 21.0 23.3 25 25
E20 20 2 19.2 27.1 29.3 30 30
E23 24 2 23.1 31.9 34.1 35 35
1. Minimum Circuit Ampacity.
2. Dual Element, Time Delay Type.
3. HACR type per NEC.

528150-YTG-G-1210
Johnson Controls Unitary Products 161
ZR078-150 Standard Motor - Without Powered Convenience Outlet
Size
(Tons) Volt
Compressors
(each)
OD Fan
Motors
(each)
Supply
Blower
Motor
Pwr
Exh
Motor
Pwr
Conv
Outlet Electric Heat Option MCA1
(Amps)
MCA1
w/Pwr
Exh
(Amps)
Max Fuse2/
Breaker3
Size
(Amps)
Max Fuse2/
Breaker3
Size w/
Pwr Exh
(Amps)
RLA LRA MCC FLA FLA FLA FLA Model kW Stages Amps
078
(6.5)
208 14.1 95 22.0 1.5 6.2 5.5 0.0
None-- -40.946.450 60
E09 6.8 1 18.9 40.9 46.4 50 60
E18 13.5 2 37.5 54.6 61.5 60 70
E24 18 2 50.0 70.2 77.1 80 80
E36 25.5 2 70.8 96.2 103.1 100 110
230 14.1 95 22.0 1.5 6.2 5.5 0.0
None-- -40.946.450 60
E09 9 1 21.7 40.9 46.4 50 60
E18 18 2 43.3 61.9 68.8 70 70
E24 24 2 57.7 79.9 86.8 80 90
E36 34 2 81.8 110.0 116.9 110 125
460 6.4 45 10.0 0.8 3.1 2.2 0.0
None-- -19.121.325 25
E09 9 1 10.8 19.1 21.3 25 25
E18 18 2 21.7 30.9 33.7 35 35
E24 24 2 28.9 40.0 42.7 40 45
E36 34 2 40.9 55.0 57.7 60 60
575 5.4 38 8.5 0.6 2.4 1.8 0.0
None-- -15.817.620 20
E09 9 1 8.7 15.8 17.6 20 20
E18 18 2 17.3 24.7 26.9 25 30
E24 24 2 23.1 31.9 34.1 35 35
E36 34 2 32.7 43.9 46.1 45 50
090
(7.5)
208 14.7 115 23.0 1.5 6.2 5.5 0.0
None-- -42.347.850 60
E09 6.8 1 18.9 42.3 47.8 50 60
E18 13.5 2 37.5 54.6 61.5 60 70
E24 18 2 50.0 70.2 77.1 80 80
E36 25.5 2 70.8 96.2 103.1 100 110
230 14.7 115 23.0 1.5 6.2 5.5 0.0
None-- -42.347.850 60
E09 9 1 21.7 42.3 47.8 50 60
E18 18 2 43.3 61.9 68.8 70 70
E24 24 2 57.7 79.9 86.8 80 90
E36 34 2 81.8 110.0 116.9 110 125
460 7.7 50 12.0 0.8 3.1 2.2 0.0
None-- -22.024.225 30
E09 9 1 10.8 22.0 24.2 25 30
E18 18 2 21.7 30.9 33.7 35 35
E24 24 2 28.9 40.0 42.7 40 45
E36 34 2 40.9 55.0 57.7 60 60
575 6.4 40 10.0 0.6 2.4 1.8 0.0
None-- -18.019.820 25
E09 9 1 8.7 18.0 19.8 20 25
E18 18 2 17.3 24.7 26.9 25 30
E24 24 2 23.1 31.9 34.1 35 35
E36 34 2 32.7 43.9 46.1 45 50
102
(8.5)
208 16.7 120 26.0 1.5 8.2 5.5 0.0
None-- -48.854.360 70
E09 6.8 1 18.9 48.8 54.3 60 70
E18 13.5 2 37.5 64.0 71.3 60 70
E24 18 2 50.0 79.6 89.3 80 80
E36 25.5 2 70.8 105.6 119.4 100 110
230 16.7 120 26.0 1.5 8.2 5.5 0.0
None-- -48.854.360 70
E09 9 1 21.7 48.8 54.3 60 70
E18 18 2 43.3 64.4 71.3 70 80
E24 24 2 57.7 82.4 89.3 90 90
E36 34 2 81.8 112.5 119.4 125 125
460 8.7 60 13.5 0.8 4.1 2.2 0.0
None-- -25.327.530 35
E09 9 1 10.8 25.3 27.5 30 35
E18 18 2 21.7 32.2 34.9 35 35
E24 24 2 28.9 41.2 44.0 45 45
E36 34 2 40.9 56.2 59.0 60 60
575 6.7 42 10.5 0.6 3.6 1.8 0.0
None-- -19.921.725 25
E09 9 1 8.7 19.9 21.7 25 25
E18 18 2 17.3 26.2 28.4 30 30
E24 24 2 23.1 33.4 35.6 35 40
E36 34 2 32.7 45.4 47.6 50 50

528150-YTG-G-1210
162 Johnson Controls Unitary Products
120
(10)
208 17.9 120 28.0 1.5 8.2 5.5 0.0
None-- -51.557.060 70
E18 13.5 2 37.5 57.1 64.0 60 70
E24 18 2 50.0 72.7 79.6 80 80
E36 25.5 2 70.8 98.7 105.6 100 110
E54 40.6 2 112.7 151.1 158.0 175 175
230 17.9 120 28.0 1.5 8.2 5.5 0.0
None-- -51.557.060 70
E18 18 2 43.3 64.4 71.3 70 80
E24 24 2 57.7 82.4 89.3 90 90
E36 34 2 81.8 112.5 119.4 125 125
E54 54 2 129.9 140.2 147.0 150 175
460 9.6 70 15.0 0.8 4.1 2.2 0.0
None-- -27.329.535 35
E18 18 2 21.7 32.2 34.9 35 35
E24 24 2 28.9 41.2 44.0 45 45
E36 34 2 40.9 56.2 59.0 60 60
E54 54 2 65.0 70.1 72.8 80 80
575 7.4 53 11.5 0.6 3.6 1.8 0.0
None-- -21.523.325 30
E18 18 2 17.3 26.2 28.4 30 30
E24 24 2 23.1 33.4 35.6 35 40
E36 34 2 32.7 45.4 47.6 50 50
E54 54 2 52.0 56.5 58.7 70 70
150
(12.5)
208 23.1 160 36.0 1.5 10.9 5.5 0.0
None-- -68.974.490 90
E18 13.5 2 37.5 68.9 74.4 90 90
E24 18 2 50.0 76.1 83.0 90 90
E36 25.5 2 70.8 102.1 109.0 110 110
E54 40.6 2 112.7 154.5 161.4 175 175
230 23.1 160 36.0 1.5 10.9 5.5 0.0
None-- -68.974.490 90
E18 18 2 43.3 68.9 74.6 90 90
E24 24 2 57.7 85.8 92.7 90 100
E36 34 2 81.8 115.9 122.7 125 125
E54 54 2 129.9 143.5 150.4 175 175
460 12.2 87 19.0 0.8 5.3 2.2 0.0
None-- -36.038.245 50
E18 18 2 21.7 36.0 38.2 45 50
E24 24 2 28.9 42.7 45.5 45 50
E36 34 2 40.9 57.7 60.5 60 70
E54 54 2 65.0 71.6 74.3 80 80
575 8.7 62 13.5 0.6 4.1 1.8 0.0
None-- -26.127.930 35
E18 18 2 17.3 26.8 29.0 30 35
E24 24 2 23.1 34.0 36.2 35 40
E36 34 2 32.7 46.0 48.3 50 50
E54 54 2 52.0 57.1 59.3 70 70
1. Minimum Circuit Ampacity.
2. Dual Element, Time Delay Type.
3. HACR type per NEC.
ZR078-150 Standard Motor - Without Powered Convenience Outlet (Continued)
Size
(Tons) Volt
Compressors
(each)
OD Fan
Motors
(each)
Supply
Blower
Motor
Pwr
Exh
Motor
Pwr
Conv
Outlet Electric Heat Option MCA1
(Amps)
MCA1
w/Pwr
Exh
(Amps)
Max Fuse2/
Breaker3
Size
(Amps)
Max Fuse2/
Breaker3
Size w/
Pwr Exh
(Amps)
RLA LRA MCC FLA FLA FLA FLA Model kW Stages Amps

528150-YTG-G-1210
Johnson Controls Unitary Products 163
ZR037-061 Hi Static Indoor Blower - Without Powered Convenience Outlet
Size
(Tons) Volt
Compressors
(each)
OD Fan
Motors
(each)
Supply
Blower
Motor
Pwr
Exh
Motor
Pwr
Conv
Outlet Electric Heat Option MCA1
(Amps)
MCA1
w/Pwr
Exh
(Amps)
Max Fuse2/
Breaker3
Size
(Amps)
Max Fuse2/
Breaker3
Size w/
Pwr Exh
(Amps)
RLA LRA MCC FLA FLA FLA FLA Model kW Stages Amps
037
(3)
208 8.7 68 13.5 1.5 6.0 5.5 0.0
None-- -18.423.925 30
E03 2.3 1 6.4 18.4 23.9 25 30
E06 4.5 1 12.5 23.1 30.0 25 30
E08 6.8 1 18.9 31.1 38.0 35 40
E15 11.3 2 31.4 46.7 53.6 50 60
230 8.7 68 13.5 1.5 6.0 5.5 0.0
None-- -18.423.925 30
E03 3 1 7.2 18.4 23.9 25 30
E06 6 1 14.4 25.5 32.4 30 35
E08 9 1 21.7 34.6 41.4 35 45
E15 15 2 36.1 52.6 59.5 60 60
460 4.6 34 7.1 0.8 3.0 2.2 0.0
None - - - 9.6 11.8 15 15
E03 3 1 3.6 9.6 11.8 15 15
E06 6 1 7.2 12.8 15.5 15 20
E08 9 1 10.8 17.3 20.0 20 20
E15 15 2 18.0 26.3 29.1 30 30
575 3.5 28 5.5 0.6 2.4 1.8 0.0
None - - - 7.4 9.2 15 15
E08 9 1 8.7 13.8 16.1 15 20
E15 15 2 14.4 21.0 23.3 25 25
049
(4)
208 11.9 88 18.5 1.5 6.0 5.5 0.0
None-- -23.929.430 40
E06 4.5 1 12.5 23.9 30.0 30 40
E08 6.8 1 18.9 31.1 38.0 35 40
E15 11.3 2 31.4 46.7 53.6 50 60
E20 15 2 41.6 59.5 66.4 60 70
230 11.9 88 18.5 1.5 6.0 5.5 0.0
None-- -23.929.430 40
E06 6 1 14.4 25.5 32.4 35 40
E08 9 1 21.7 34.6 41.4 35 45
E15 15 2 36.1 52.6 59.5 60 60
E20 20 2 48.1 67.6 74.5 70 80
460 5.2 44 8.1 0.8 3.0 2.2 0.0
None-- -11.113.315 15
E06 6 1 7.2 12.8 15.5 15 20
E08 9 1 10.8 17.3 20.0 20 20
E15 15 2 18.0 26.3 29.1 30 30
E20 20 2 24.1 33.8 36.6 35 40
575 4.8 36 7.5 0.6 2.4 1.8 0.0
None - - - 9.6 11.4 15 15
E08 9 1 8.7 13.8 16.1 15 20
E15 15 2 14.4 21.0 23.3 25 25
E20 20 2 19.2 27.1 29.3 30 30
061
(5)
208 14.1 88 22.0 1.5 4.3 5.5 0.0
None-- -27.432.935 45
E06 4.5 1 12.5 27.4 32.9 35 45
E08 6.8 1 18.9 32.1 39.0 40 45
E15 11.3 2 31.4 47.7 54.6 50 60
E20 15 2 41.6 60.5 67.4 70 70
E23 18 2 50.0 71.0 77.8 80 80
230 14.1 88 22.0 1.5 4.3 5.5 0.0
None-- -27.432.935 45
E06 6 1 14.4 27.4 33.4 35 45
E08 9 1 21.7 35.6 42.4 40 45
E15 15 2 36.1 53.6 60.5 60 70
E20 20 2 48.1 68.6 75.5 70 80
E23 24 2 57.7 80.7 87.5 90 90
460 7.7 55 12.0 0.8 2.1 2.2 0.0
None-- -14.616.820 20
E06 6 1 7.2 14.6 16.8 20 20
E08 9 1 10.8 17.8 20.5 20 25
E15 15 2 18.0 26.8 29.6 30 30
E20 20 2 24.1 34.3 37.1 35 40
E23 24 2 28.9 40.3 43.1 45 45
575 5.1 36 7.5 0.6 2.0 1.8 0.0
None-- -10.312.115 15
E08 9 1 8.7 14.2 16.5 15 20
E15 15 2 14.4 21.4 23.7 25 25
E20 20 2 19.2 27.4 29.7 30 30
E23 24 2 23.1 32.2 34.5 35 35
1. Minimum Circuit Ampacity.
2. Dual Element, Time Delay Type.
3. HACR type per NEC.

528150-YTG-G-1210
164 Johnson Controls Unitary Products
ZR078-150 Hi Static Motor - Without Powered Convenience Outlet
Size
(Tons) Volt
Compressors
(each)
OD Fan
Motors
(each)
Supply
Blower
Motor
Pwr
Exh
Motor
Pwr
Conv
Outlet Electric Heat Option MCA1
(Amps)
MCA1
w/Pwr
Exh
(Amps)
Max Fuse2/
Breaker3
Size
(Amps)
Max Fuse2/
Breaker3
Size w/ Pwr
Exh
(Amps)
RLA LRA MCC FLA FLA FLA FLA Model kW Stages Amps
078
(6.5)
208 14.1 95 22.0 1.5 8.2 5.5 0.0
None - - - 42.9 48.4 50 60
E09 6.8 1 18.9 42.9 48.4 50 60
E18 13.5 2 37.5 57.1 64.0 60 70
E24 18 2 50.0 72.7 79.6 80 80
E36 25.5 2 70.8 98.7 105.6 100 110
230 14.1 95 22.0 1.5 8.2 5.5 0.0
None - - - 42.9 48.4 50 60
E09 9 1 21.7 42.9 48.4 50 60
E18 18 2 43.3 64.4 71.3 70 80
E24 24 2 57.7 82.4 89.3 90 90
E36 34 2 81.8 112.5 119.4 125 125
460 6.4 45 10.0 0.8 4.1 2.2 0.0
None - - - 20.1 22.3 25 25
E09 9 1 10.8 20.1 22.3 25 25
E18 18 2 21.7 32.2 34.9 35 35
E24 24 2 28.9 41.2 44.0 45 45
E36 34 2 40.9 56.2 59.0 60 60
575 5.4 38 8.5 0.6 3.6 1.8 0.0
None - - - 17.0 18.8 20 20
E09 9 1 8.7 17.0 18.8 20 20
E18 18 2 17.3 26.2 28.4 30 30
E24 24 2 23.1 33.4 35.6 35 40
E36 34 2 32.7 45.4 47.6 50 50
090
(7.5)
208 14.7 115 23.0 1.5 10.9 5.5 0.0
None - - - 47.0 52.5 60 60
E09 6.8 1 18.9 47.0 52.5 60 60
E18 13.5 2 37.5 60.5 67.3 70 70
E24 18 2 50.0 76.1 83.0 80 90
E36 25.5 2 70.8 102.1 109.0 110 110
230 14.7 115 23.0 1.5 10.9 5.5 0.0
None - - - 47.0 52.5 60 60
E09 9 1 21.7 47.0 52.5 60 60
E18 18 2 43.3 67.8 74.6 70 80
E24 24 2 57.7 85.8 92.7 90 100
E36 34 2 81.8 115.9 122.7 125 125
460 7.7 50 12.0 0.8 5.3 2.2 0.0
None - - - 24.2 26.4 30 30
E09 9 1 10.8 24.2 26.4 30 30
E18 18 2 21.7 33.7 36.4 35 40
E24 24 2 28.9 42.7 45.5 45 50
E36 34 2 40.9 57.7 60.5 60 70
575 6.4 40 10.0 0.6 4.1 1.8 0.0
None - - - 19.7 21.5 25 25
E09 9 1 8.7 19.7 21.5 25 25
E18 18 2 17.3 26.8 29.0 30 30
E24 24 2 23.1 34.0 36.2 35 40
E36 34 2 32.7 46.0 48.3 50 50
102
(8.5)
208 16.7 120 26.0 1.5 10.9 5.5 0.0
None - - - 51.5 57.0 60 70
E09 6.8 1 18.9 51.5 57.0 60 70
E18 13.5 2 37.5 60.5 67.3 70 70
E24 18 2 50.0 76.1 83.0 80 90
E36 25.5 2 70.8 102.1 109.0 110 110
230 16.7 120 26.0 1.5 10.9 5.5 0.0
None - - - 51.5 57.0 60 70
E09 9 1 21.7 51.5 57.0 60 70
E18 18 2 43.3 67.8 74.6 70 80
E24 24 2 57.7 85.8 92.7 90 100
E36 34 2 81.8 115.9 122.7 125 125
460 8.7 60 13.5 0.8 5.3 2.2 0.0
None - - - 26.5 28.7 35 35
E09 9 1 10.8 26.5 28.7 35 35
E18 18 2 21.7 33.7 36.4 35 40
E24 24 2 28.9 42.7 45.5 45 50
E36 34 2 40.9 57.7 60.5 60 70
575 6.7 42 10.5 0.6 4.1 1.8 0.0
None - - - 20.4 22.2 25 25
E09 9 1 8.7 20.4 22.2 25 25
E18 18 2 17.3 26.8 29.0 30 30
E24 24 2 23.1 34.0 36.2 35 40
E36 34 2 32.7 46.0 48.3 50 50

528150-YTG-G-1210
Johnson Controls Unitary Products 165
120
(10)
208 17.9 120 28.0 1.5 10.9 5.5 0.0
None - - - 54.2 59.7 70 70
E18 13.5 2 37.5 60.5 67.3 70 70
E24 18 2 50.0 76.1 83.0 80 90
E36 25.5 2 70.8 102.1 109.0 110 110
E54 40.6 2 112.7 154.5 161.4 175 175
230 17.9 120 28.0 1.5 10.9 5.5 0.0
None - - - 54.2 59.7 70 70
E18 18 2 43.3 67.8 74.6 70 80
E24 24 2 57.7 85.8 92.7 90 100
E36 34 2 81.8 115.9 122.7 125 125
E54 54 2 129.9 143.5 150.4 175 175
460 9.6 70 15.0 0.8 5.3 2.2 0.0
None - - - 28.5 30.7 35 40
E18 18 2 21.7 33.7 36.4 35 40
E24 24 2 28.9 42.7 45.5 45 50
E36 34 2 40.9 57.7 60.5 60 70
E54 54 2 65.0 71.6 74.3 80 80
575 7.4 53 11.5 0.6 4.1 1.8 0.0
None - - - 22.0 23.8 25 30
E18 18 2 17.3 26.8 29.0 30 30
E24 24 2 23.1 34.0 36.2 35 40
E36 34 2 32.7 46.0 48.3 50 50
E54 54 2 52.0 57.1 59.3 70 70
150
(12.5)
208 23.1 160 36.0 1.5 16.1 5.5 0.0
None - - - 74.1 79.6 90 100
E18 13.5 2 37.5 74.1 79.6 90 100
E24 18 2 50.0 82.6 89.5 90 100
E36 25.5 2 70.8 108.6 115.5 110 125
E54 40.6 2 112.7 161.0 167.9 175 175
230 23.1 160 36.0 1.5 16.1 5.5 0.0
None - - - 74.1 79.6 90 100
E18 18 2 43.3 74.3 81.1 90 100
E24 24 2 57.7 92.3 99.2 100 100
E36 34 2 81.8 122.4 129.2 125 150
E54 54 2 129.9 150.0 156.9 175 175
460 12.2 87 19.0 0.8 8.1 2.2 0.0
None - - - 38.8 41.0 50 50
E18 18 2 21.7 38.8 41.0 50 50
E24 24 2 28.9 46.2 49.0 50 50
E36 34 2 40.9 61.2 64.0 70 70
E54 54 2 65.0 75.1 77.8 90 90
575 8.7 62 13.5 0.6 6.0 1.8 0.0
None - - - 28.0 29.8 35 35
E18 18 2 17.3 29.2 31.4 35 35
E24 24 2 23.1 36.4 38.6 40 40
E36 34 2 32.7 48.4 50.6 50 60
E54 54 2 52.0 59.5 61.7 70 70
1. Minimum Circuit Ampacity.
2. Dual Element, Time Delay Type.
3. HACR type per NEC.
ZR078-150 Hi Static Motor - Without Powered Convenience Outlet (Continued)
Size
(Tons) Volt
Compressors
(each)
OD Fan
Motors
(each)
Supply
Blower
Motor
Pwr
Exh
Motor
Pwr
Conv
Outlet Electric Heat Option MCA1
(Amps)
MCA1
w/Pwr
Exh
(Amps)
Max Fuse2/
Breaker3
Size
(Amps)
Max Fuse2/
Breaker3
Size w/ Pwr
Exh
(Amps)
RLA LRA MCC FLA FLA FLA FLA Model kW Stages Amps

528150-YTG-G-1210
166 Johnson Controls Unitary Products
ZR037-061 Standard Indoor Blower - With Powered Convenience Outlet
Size
(Tons) Volt
Compressors
(each)
OD Fan
Motors
(each)
Supply
Blower
Motor
Pwr
Exh
Motor
Pwr
Conv
Outlet Electric Heat Option MCA1
(Amps)
MCA1
w/Pwr
Exh
(Amps)
Max Fuse2/
Breaker3
Size
(Amps)
Max Fuse2/
Breaker3
Size w/
Pwr Exh
(Amps)
RLA LRA MCC FLA FLA FLA FLA Model kW Stages Amps
037
(3)
208 8.7 68 13.5 1.5 6.0 5.5 10.0
None-- -28.734.235 40
E03 2.3 1 6.4 28.7 34.9 35 40
E06 4.5 1 12.5 35.6 42.5 40 45
E08 6.8 1 18.9 43.6 50.5 45 60
E15 11.3 2 31.4 59.2 66.1 60 70
230 8.7 68 13.5 1.5 6.0 5.5 10.0
None-- -28.734.235 40
E03 3 1 7.2 29.0 35.9 35 40
E06 6 1 14.4 38.0 44.9 40 45
E08 9 1 21.7 47.1 53.9 50 60
E15 15 2 36.1 65.1 72.0 70 80
460 4.6 34 7.1 0.8 3.0 2.2 5.0
None-- -14.716.915 20
E03 3 1 3.6 14.7 17.3 15 20
E06 6 1 7.2 19.0 21.8 20 25
E08 9 1 10.8 23.5 26.3 25 30
E15 15 2 18.0 32.6 35.3 35 40
575 3.5 28 5.5 0.6 2.4 1.8 4.0
None-- -11.513.315 15
E08 9 1 8.7 18.8 21.1 20 25
E15 15 2 14.4 26.0 28.3 30 30
049
(4)
208 11.9 88 18.5 1.5 6.0 5.5 10.0
None-- -33.939.445 50
E06 4.5 1 12.5 35.6 42.5 45 50
E08 6.8 1 18.9 43.6 50.5 45 60
E15 11.3 2 31.4 59.2 66.1 60 70
E20 15 2 41.6 72.0 78.9 80 80
230 11.9 88 18.5 1.5 6.0 5.5 10.0
None-- -33.939.445 50
E06 6 1 14.4 38.0 44.9 45 50
E08 9 1 21.7 47.1 53.9 50 60
E15 15 2 36.1 65.1 72.0 70 80
E20 20 2 48.1 80.1 87.0 90 90
460 5.2 44 8.1 0.8 3.0 2.2 5.0
None-- -16.118.320 20
E06 6 1 7.2 19.0 21.8 20 25
E08 9 1 10.8 23.5 26.3 25 30
E15 15 2 18.0 32.6 35.3 35 40
E20 20 2 24.1 40.1 42.8 45 45
575 4.8 36 7.5 0.6 2.4 1.8 4.0
None-- -13.615.415 20
E08 9 1 8.7 18.8 21.1 20 25
E15 15 2 14.4 26.0 28.3 30 30
E20 20 2 19.2 32.1 34.3 35 35
061
(5)
208 14.1 88 22.0 1.5 4.3 5.5 10.0
None-- -36.642.150 50
E06 4.5 1 12.5 36.6 42.5 50 50
E08 6.8 1 18.9 43.6 50.5 50 60
E15 11.3 2 31.4 59.2 66.1 60 70
E20 15 2 41.6 72.0 78.9 80 80
E23 18 2 50.0 82.5 89.3 90 90
230 14.1 88 22.0 1.5 4.3 5.5 10.0
None-- -36.642.150 50
E06 6 1 14.4 38.0 44.9 50 50
E08 9 1 21.7 47.1 53.9 50 60
E15 15 2 36.1 65.1 72.0 70 80
E20 20 2 48.1 80.1 87.0 90 90
E23 24 2 57.7 92.2 99.0 100 100
460 7.7 55 12.0 0.8 2.1 2.2 5.0
None-- -19.221.425 25
E06 6 1 7.2 19.2 21.8 25 25
E08 9 1 10.8 23.5 26.3 25 30
E15 15 2 18.0 32.6 35.3 35 40
E20 20 2 24.1 40.1 42.8 45 45
E23 24 2 28.9 46.1 48.8 50 50
575 5.1 36 7.5 0.6 2.0 1.8 4.0
None-- -14.015.815 20
E08 9 1 8.7 18.8 21.1 20 25
E15 15 2 14.4 26.0 28.3 30 30
E20 20 2 19.2 32.1 34.3 35 35
E23 24 2 23.1 36.9 39.1 40 40
1. Minimum Circuit Ampacity.
2. Dual Element, Time Delay Type.
3. HACR type per NEC.

528150-YTG-G-1210
Johnson Controls Unitary Products 167
ZR078-150 Standard Motor - With Powered Convenience Outlet
Size
(Tons) Volt
Compressors
(each)
OD Fan
Motors
(each)
Supply
Blower
Motor
Pwr
Exh
Motor
Pwr
Conv
Outlet Electric Heat Option MCA1
(Amps)
MCA1
w/Pwr
Exh
(Amps)
Max Fuse2/
Breaker3
Size
(Amps)
Max Fuse2/
Breaker3
Size w/ Pwr
Exh
(Amps)
RLA LRA MCC FLA FLA FLA FLA Model kW Stages Amps
078
(6.5)
208 14.1 95 22.0 1.5 6.2 5.5 10.0
None - - - 50.9 56.4 60 70
E09 6.8 1 18.9 50.9 56.4 60 70
E18 13.5 2 37.5 67.1 74.0 70 80
E24 18 2 50.0 82.7 89.6 90 90
E36 25.5 2 70.8 108.7 115.6 110 125
230 14.1 95 22.0 1.5 6.2 5.5 10.0
None - - - 50.9 56.4 60 70
E09 9 1 21.7 50.9 56.4 60 70
E18 18 2 43.3 74.4 81.3 80 90
E24 24 2 57.7 92.4 99.3 100 100
E36 34 2 81.8 122.5 129.4 125 150
460 6.4 45 10.0 0.8 3.1 2.2 5.0
None - - - 24.1 26.3 30 30
E09 9 1 10.8 24.1 26.4 30 30
E18 18 2 21.7 37.2 39.9 40 40
E24 24 2 28.9 46.2 49.0 50 50
E36 34 2 40.9 61.2 64.0 70 70
575 5.4 38 8.5 0.6 2.4 1.8 4.0
None - - - 19.8 21.6 25 25
E09 9 1 8.7 19.8 21.6 25 25
E18 18 2 17.3 29.7 31.9 30 35
E24 24 2 23.1 36.9 39.1 40 40
E36 34 2 32.7 48.9 51.1 50 60
090
(7.5)
208 14.7 115 23.0 1.5 6.2 5.5 10.0
None - - - 52.3 57.8 60 70
E09 6.8 1 18.9 52.3 57.8 60 70
E18 13.5 2 37.5 67.1 74.0 70 80
E24 18 2 50.0 82.7 89.6 90 90
E36 25.5 2 70.8 108.7 115.6 110 125
230 14.7 115 23.0 1.5 6.2 5.5 10.0
None - - - 52.3 57.8 60 70
E09 9 1 21.7 52.3 57.8 60 70
E18 18 2 43.3 74.4 81.3 80 90
E24 24 2 57.7 92.4 99.3 100 100
E36 34 2 81.8 122.5 129.4 125 150
460 7.7 50 12.0 0.8 3.1 2.2 5.0
None - - - 27.0 29.2 30 35
E09 9 1 10.8 27.0 29.2 30 35
E18 18 2 21.7 37.2 39.9 40 40
E24 24 2 28.9 46.2 49.0 50 50
E36 34 2 40.9 61.2 64.0 70 70
575 6.4 40 10.0 0.6 2.4 1.8 4.0
None - - - 22.0 23.8 25 30
E09 9 1 8.7 22.0 23.8 25 30
E18 18 2 17.3 29.7 31.9 30 35
E24 24 2 23.1 36.9 39.1 40 40
E36 34 2 32.7 48.9 51.1 50 60
102
(8.5)
208 16.7 120 26.0 1.5 8.2 5.5 10.0
None - - - 58.8 64.3 70 80
E09 6.8 1 18.9 58.8 64.3 70 80
E18 13.5 2 37.5 69.6 76.5 70 80
E24 18 2 50.0 85.2 92.1 90 100
E36 25.5 2 70.8 111.2 118.1 125 125
230 16.7 120 26.0 1.5 8.2 5.5 10.0
None - - - 58.8 64.3 70 80
E09 9 1 21.7 58.8 64.3 70 80
E18 18 2 43.3 76.9 83.8 80 90
E24 24 2 57.7 94.9 101.8 100 110
E36 34 2 81.8 125.0 131.9 125 150
460 8.7 60 13.5 0.8 4.1 2.2 5.0
None - - - 30.3 32.5 35 40
E09 9 1 10.8 30.3 32.5 35 40
E18 18 2 21.7 38.4 41.2 40 45
E24 24 2 28.9 47.5 50.2 50 60
E36 34 2 40.9 62.5 65.2 70 70
575 6.7 42 10.5 0.6 3.6 1.8 4.0
None - - - 23.9 25.7 30 30
E09 9 1 8.7 23.9 25.7 30 30
E18 18 2 17.3 31.2 33.4 35 35
E24 24 2 23.1 38.4 40.6 40 45
E36 34 2 32.7 50.4 52.6 60 60

528150-YTG-G-1210
168 Johnson Controls Unitary Products
120
(10)
208 17.9 120 28.0 1.5 8.2 5.5 10.0
None - - - 61.5 67.0 70 80
E18 13.5 2 37.5 69.6 76.5 70 80
E24 18 2 50.0 85.2 92.1 90 100
E36 25.5 2 70.8 111.2 118.1 125 125
E54 40.6 2 112.7 163.6 170.5 175 175
230 17.9 120 28.0 1.5 8.2 5.5 10.0
None - - - 61.5 67.0 70 80
E18 18 2 43.3 76.9 83.8 80 90
E24 24 2 57.7 94.9 101.8 100 110
E36 34 2 81.8 125.0 131.9 125 150
E54 54 2 129.9 152.7 159.5 175 175
460 9.6 70 15.0 0.8 4.1 2.2 5.0
None - - - 32.3 34.5 40 40
E18 18 2 21.7 38.4 41.2 40 45
E24 24 2 28.9 47.5 50.2 50 60
E36 34 2 40.9 62.5 65.2 70 70
E54 54 2 65.0 76.3 79.1 90 90
575 7.4 53 11.5 0.6 3.6 1.8 4.0
None - - - 25.5 27.3 30 30
E18 18 2 17.3 31.2 33.4 35 35
E24 24 2 23.1 38.4 40.6 40 45
E36 34 2 32.7 50.4 52.6 60 60
E54 54 2 52.0 61.5 63.7 70 70
150
(12.5)
208 23.1 160 36.0 1.5 10.9 5.5 10.0
None - - - 78.9 84.4 100 100
E18 13.5 2 37.5 78.9 84.4 100 100
E24 18 2 50.0 88.6 95.5 100 100
E36 25.5 2 70.8 114.6 121.5 125 125
E54 40.6 2 112.7 167.0 173.9 175 175
230 23.1 160 36.0 1.5 10.9 5.5 10.0
None - - - 78.9 84.4 100 100
E18 18 2 43.3 80.3 87.1 100 100
E24 24 2 57.7 98.3 105.2 100 110
E36 34 2 81.8 128.4 135.2 150 150
E54 54 2 129.9 156.0 162.9 175 175
460 12.2 87 19.0 0.8 5.3 2.2 5.0
None - - - 41.0 43.2 50 50
E18 18 2 21.7 41.0 43.2 50 50
E24 24 2 28.9 49.0 51.7 50 60
E36 34 2 40.9 64.0 66.7 70 70
E54 54 2 65.0 77.8 80.6 90 90
575 8.7 62 13.5 0.6 4.1 1.8 4.0
None - - - 30.1 31.9 35 40
E18 18 2 17.3 31.8 34.0 35 40
E24 24 2 23.1 39.0 41.2 40 45
E36 34 2 32.7 51.0 53.3 60 60
E54 54 2 52.0 62.1 64.3 70 70
1. Minimum Circuit Ampacity.
2. Dual Element, Time Delay Type.
3. HACR type per NEC.
ZR078-150 Standard Motor - With Powered Convenience Outlet (Continued)
Size
(Tons) Volt
Compressors
(each)
OD Fan
Motors
(each)
Supply
Blower
Motor
Pwr
Exh
Motor
Pwr
Conv
Outlet Electric Heat Option MCA1
(Amps)
MCA1
w/Pwr
Exh
(Amps)
Max Fuse2/
Breaker3
Size
(Amps)
Max Fuse2/
Breaker3
Size w/ Pwr
Exh
(Amps)
RLA LRA MCC FLA FLA FLA FLA Model kW Stages Amps

528150-YTG-G-1210
Johnson Controls Unitary Products 169
ZR037-061 Hi Static Indoor Blower - With Powered Convenience Outlet
Size
(Tons) Volt
Compressors
(each)
OD Fan
Motors
(each)
Supply
Blower
Motor
Pwr
Exh
Motor
Pwr
Conv
Outlet Electric Heat Option MCA1
(Amps)
MCA1
w/Pwr
Exh
(Amps)
Max Fuse2/
Breaker3
Size
(Amps)
Max Fuse2/
Breaker3
Size w/
Pwr Exh
(Amps)
RLA LRA MCC FLA FLA FLA FLA Model kW Stages Amps
037
(3)
208 8.7 68 13.5 1.5 6.0 5.5 10.0
None-- -28.734.235 40
E03 2.3 1 6.4 28.7 34.9 35 40
E06 4.5 1 12.5 35.6 42.5 40 45
E08 6.8 1 18.9 43.6 50.5 45 60
E15 11.3 2 31.4 59.2 66.1 60 70
230 8.7 68 13.5 1.5 6.0 5.5 10.0
None-- -28.734.235 40
E03 3 1 7.2 29.0 35.9 35 40
E06 6 1 14.4 38.0 44.9 40 45
E08 9 1 21.7 47.1 53.9 50 60
E15 15 2 36.1 65.1 72.0 70 80
460 4.6 34 7.1 0.8 3.0 2.2 5.0
None-- -14.716.915 20
E03 3 1 3.6 14.7 17.3 15 20
E06 6 1 7.2 19.0 21.8 20 25
E08 9 1 10.8 23.5 26.3 25 30
E15 15 2 18.0 32.6 35.3 35 40
575 3.5 28 5.5 0.6 2.4 1.8 4.0
None-- -11.513.315 15
E08 9 1 8.7 18.8 21.1 20 25
E15 15 2 14.4 26.0 28.3 30 30
049
(4)
208 11.9 88 18.5 1.5 6.0 5.5 10.0
None-- -33.939.445 50
E06 4.5 1 12.5 35.6 42.5 45 50
E08 6.8 1 18.9 43.6 50.5 45 60
E15 11.3 2 31.4 59.2 66.1 60 70
E20 15 2 41.6 72.0 78.9 80 80
230 11.9 88 18.5 1.5 6.0 5.5 10.0
None-- -33.939.445 50
E06 6 1 14.4 38.0 44.9 45 50
E08 9 1 21.7 47.1 53.9 50 60
E15 15 2 36.1 65.1 72.0 70 80
E20 20 2 48.1 80.1 87.0 90 90
460 5.2 44 8.1 0.8 3.0 2.2 5.0
None-- -16.118.320 20
E06 6 1 7.2 19.0 21.8 20 25
E08 9 1 10.8 23.5 26.3 25 30
E15 15 2 18.0 32.6 35.3 35 40
E20 20 2 24.1 40.1 42.8 45 45
575 4.8 36 7.5 0.6 2.4 1.8 4.0
None-- -13.615.415 20
E08 9 1 8.7 18.8 21.1 20 25
E15 15 2 14.4 26.0 28.3 30 30
E20 20 2 19.2 32.1 34.3 35 35
061
(5)
208 14.1 88 22.0 1.5 4.3 5.5 10.0
None-- -37.442.950 50
E06 4.5 1 12.5 37.4 43.5 50 50
E08 6.8 1 18.9 44.6 51.5 50 60
E15 11.3 2 31.4 60.2 67.1 70 70
E20 15 2 41.6 73.0 79.9 80 80
E23 18 2 50.0 83.5 90.3 90 100
230 14.1 88 22.0 1.5 4.3 5.5 10.0
None-- -37.442.950 50
E06 6 1 14.4 39.0 45.9 50 50
E08 9 1 21.7 48.1 54.9 50 60
E15 15 2 36.1 66.1 73.0 70 80
E20 20 2 48.1 81.1 88.0 90 90
E23 24 2 57.7 93.2 100.0 100 100
460 7.7 55 12.0 0.8 2.1 2.2 5.0
None-- -19.621.825 25
E06 6 1 7.2 19.6 22.3 25 25
E08 9 1 10.8 24.0 26.8 25 30
E15 15 2 18.0 33.1 35.8 35 40
E20 20 2 24.1 40.6 43.3 45 45
E23 24 2 28.9 46.6 49.3 50 50
575 5.1 36 7.5 0.6 2.0 1.8 4.0
None-- -14.316.115 20
E08 9 1 8.7 19.2 21.5 20 25
E15 15 2 14.4 26.4 28.7 30 30
E20 20 2 19.2 32.4 34.7 35 35
E23 24 2 23.1 37.2 39.5 40 40
1. Minimum Circuit Ampacity.
2. Dual Element, Time Delay Type.
3. HACR type per NEC.

528150-YTG-G-1210
170 Johnson Controls Unitary Products
ZR078-150 Hi Static Motor - With Powered Convenience Outlet
Size
(Tons) Volt
Compressors
(each)
OD Fan
Motors
(each)
Supply
Blower
Motor
Pwr
Exh
Motor
Pwr
Conv
Outlet Electric Heat Option MCA1
(Amps)
MCA1
w/Pwr
Exh
(Amps)
Max Fuse2/
Breaker3
Size
(Amps)
Max Fuse2/
Breaker3
Size w/ Pwr
Exh
(Amps)
RLA LRA MCC FLA FLA FLA FLA Model kW Stages Amps
078
(6.5)
208 14.1 95 22.0 1.5 8.2 5.5 10.0
None - - - 52.9 58.4 60 70
E09 6.8 1 18.9 52.9 58.4 60 70
E18 13.5 2 37.5 69.6 76.5 70 80
E24 18 2 50.0 85.2 92.1 90 100
E36 25.5 2 70.8 111.2 118.1 125 125
230 14.1 95 22.0 1.5 8.2 5.5 10.0
None - - - 52.9 58.4 60 70
E09 9 1 21.7 52.9 58.4 60 70
E18 18 2 43.3 76.9 83.8 80 90
E24 24 2 57.7 94.9 101.8 100 110
E36 34 2 81.8 125.0 131.9 125 150
460 6.4 45 10.0 0.8 4.1 2.2 5.0
None - - - 25.1 27.3 30 30
E09 9 1 10.8 25.1 27.7 30 30
E18 18 2 21.7 38.4 41.2 40 45
E24 24 2 28.9 47.5 50.2 50 60
E36 34 2 40.9 62.5 65.2 70 70
575 5.4 38 8.5 0.6 3.6 1.8 4.0
None - - - 21.0 22.8 25 25
E09 9 1 8.7 21.0 22.8 25 25
E18 18 2 17.3 31.2 33.4 35 35
E24 24 2 23.1 38.4 40.6 40 45
E36 34 2 32.7 50.4 52.6 60 60
090
(7.5)
208 14.7 115 23.0 1.5 10.9 5.5 10.0
None - - - 57.0 62.5 70 70
E09 6.8 1 18.9 57.0 62.5 70 70
E18 13.5 2 37.5 73.0 79.8 80 80
E24 18 2 50.0 88.6 95.5 90 100
E36 25.5 2 70.8 114.6 121.5 125 125
230 14.7 115 23.0 1.5 10.9 5.5 10.0
None - - - 57.0 62.5 70 70
E09 9 1 21.7 57.0 62.5 70 70
E18 18 2 43.3 80.3 87.1 90 90
E24 24 2 57.7 98.3 105.2 100 110
E36 34 2 81.8 128.4 135.2 150 150
460 7.7 50 12.0 0.8 5.3 2.2 5.0
None - - - 29.2 31.4 35 35
E09 9 1 10.8 29.2 31.4 35 35
E18 18 2 21.7 39.9 42.7 40 45
E24 24 2 28.9 49.0 51.7 50 60
E36 34 2 40.9 64.0 66.7 70 70
575 6.4 40 10.0 0.6 4.1 1.8 4.0
None - - - 23.7 25.5 30 30
E09 9 1 8.7 23.7 25.5 30 30
E18 18 2 17.3 31.8 34.0 35 35
E24 24 2 23.1 39.0 41.2 40 45
E36 34 2 32.7 51.0 53.3 60 60
102
(8.5)
208 16.7 120 26.0 1.5 10.9 5.5 10.0
None - - - 61.5 67.0 70 80
E09 6.8 1 18.9 61.5 67.0 70 80
E18 13.5 2 37.5 73.0 79.8 80 80
E24 18 2 50.0 88.6 95.5 90 100
E36 25.5 2 70.8 114.6 121.5 125 125
230 16.7 120 26.0 1.5 10.9 5.5 10.0
None - - - 61.5 67.0 70 80
E09 9 1 21.7 61.5 67.0 70 80
E18 18 2 43.3 80.3 87.1 90 90
E24 24 2 57.7 98.3 105.2 100 110
E36 34 2 81.8 128.4 135.2 150 150
460 8.7 60 13.5 0.8 5.3 2.2 5.0
None - - - 31.5 33.7 40 40
E09 9 1 10.8 31.5 33.7 40 40
E18 18 2 21.7 39.9 42.7 40 45
E24 24 2 28.9 49.0 51.7 50 60
E36 34 2 40.9 64.0 66.7 70 70
575 6.7 42 10.5 0.6 4.1 1.8 4.0
None - - - 24.4 26.2 30 30
E09 9 1 8.7 24.4 26.2 30 30
E18 18 2 17.3 31.8 34.0 35 35
E24 24 2 23.1 39.0 41.2 40 45
E36 34 2 32.7 51.0 53.3 60 60

528150-YTG-G-1210
Johnson Controls Unitary Products 171
120
(10)
208 17.9 120 28.0 1.5 10.9 5.5 10.0
None - - - 64.2 69.7 80 80
E18 13.5 2 37.5 73.0 79.8 80 80
E24 18 2 50.0 88.6 95.5 90 100
E36 25.5 2 70.8 114.6 121.5 125 125
E54 40.6 2 112.7 167.0 173.9 175 175
230 17.9 120 28.0 1.5 10.9 5.5 10.0
None - - - 64.2 69.7 80 80
E18 18 2 43.3 80.3 87.1 90 90
E24 24 2 57.7 98.3 105.2 100 110
E36 34 2 81.8 128.4 135.2 150 150
E54 54 2 129.9 156.0 162.9 175 175
460 9.6 70 15.0 0.8 5.3 2.2 5.0
None - - - 33.5 35.7 40 45
E18 18 2 21.7 39.9 42.7 40 45
E24 24 2 28.9 49.0 51.7 50 60
E36 34 2 40.9 64.0 66.7 70 70
E54 54 2 65.0 77.8 80.6 90 90
575 7.4 53 11.5 0.6 4.1 1.8 4.0
None - - - 26.0 27.8 30 35
E18 18 2 17.3 31.8 34.0 35 35
E24 24 2 23.1 39.0 41.2 40 45
E36 34 2 32.7 51.0 53.3 60 60
E54 54 2 52.0 62.1 64.3 70 70
150
(12.5)
208 23.1 160 36.0 1.5 16.1 5.5 10.0
None - - - 84.1 89.6 100 110
E18 13.5 2 37.5 84.1 89.6 100 110
E24 18 2 50.0 95.1 102.0 100 110
E36 25.5 2 70.8 121.1 128.0 125 150
E54 40.6 2 112.7 173.5 180.4 175 200
230 23.1 160 36.0 1.5 16.1 5.5 10.0
None - - - 84.1 89.6 100 110
E18 18 2 43.3 86.8 93.6 100 110
E24 24 2 57.7 104.8 111.7 110 125
E36 34 2 81.8 134.9 141.7 150 150
E54 54 2 129.9 162.5 169.4 175 175
460 12.2 87 19.0 0.8 8.1 2.2 5.0
None - - - 43.8 46.0 50 50
E18 18 2 21.7 43.8 46.2 50 50
E24 24 2 28.9 52.5 55.2 60 60
E36 34 2 40.9 67.5 70.2 70 80
E54 54 2 65.0 81.3 84.1 90 90
575 8.7 62 13.5 0.6 6.0 1.8 4.0
None - - - 32.0 33.8 40 40
E18 18 2 17.3 34.2 36.4 40 40
E24 24 2 23.1 41.4 43.6 45 45
E36 34 2 32.7 53.4 55.6 60 60
E54 54 2 52.0 64.5 66.7 70 70
1. Minimum Circuit Ampacity.
2. Dual Element, Time Delay Type.
3. HACR type per NEC.
Electric Heat Multipliers
Voltage kW Capacity Multipliers1
1. Electric heaters are rated at nominal voltage. Use this table to determine the electric heat
capacity for heaters applied at lower voltages.
Nominal Applied
240 208 0.75
230 0.92
480 460 0.92
600 575 0.92
ZR078-150 Hi Static Motor - With Powered Convenience Outlet (Continued)
Size
(Tons) Volt
Compressors
(each)
OD Fan
Motors
(each)
Supply
Blower
Motor
Pwr
Exh
Motor
Pwr
Conv
Outlet Electric Heat Option MCA1
(Amps)
MCA1
w/Pwr
Exh
(Amps)
Max Fuse2/
Breaker3
Size
(Amps)
Max Fuse2/
Breaker3
Size w/ Pwr
Exh
(Amps)
RLA LRA MCC FLA FLA FLA FLA Model kW Stages Amps

528150-YTG-G-1210
172 Johnson Controls Unitary Products
Typical Wiring Diagrams
ZH/ZJ037-150 Typical Wiring Diagrams
Typical ZH/ZJ037-061 Cooling Unit with Gas Heat 230 Volt Wiring Diagram

528150-YTG-G-1210
Johnson Controls Unitary Products 173
Typical ZR037-061 Reheat Unit with Gas Heat 230 Volt Wiring Diagram

528150-YTG-G-1210
174 Johnson Controls Unitary Products
Typical ZH/ZJ037-061 Cooling Unit with Gas Heat 460/575 Volt Wiring Diagram

528150-YTG-G-1210
Johnson Controls Unitary Products 175
Typical ZR037-061 Reheat Unit with Gas Heat 460/575 Volt Wiring Diagram

528150-YTG-G-1210
176 Johnson Controls Unitary Products
Typical ZH/ZJ037-061 Cooling Unit with/without Electric Heat Wiring Diagram

528150-YTG-G-1210
Johnson Controls Unitary Products 177
Typical ZR037-061 Reheat Unit with/without Electric Heat Wiring Diagram

528150-YTG-G-1210
178 Johnson Controls Unitary Products
Typical ZH/ZJ/ZR078-120 Cooling Unit with Gas Heat 230 Volt Wiring Diagram

528150-YTG-G-1210
Johnson Controls Unitary Products 179
Typical ZH/ZJ/ZR078-120 Cooling Unit with Gas Heat 460/575 Volt Wiring Diagram

528150-YTG-G-1210
180 Johnson Controls Unitary Products
Typical ZH/ZJ/ZR078-120 Cooling Unit with/without Electric Heat Wiring Diagram

528150-YTG-G-1210
Johnson Controls Unitary Products 181
Typical ZH/ZJ/ZR150 Cooling Unit with Gas Heat 230 Volt Wiring Diagram

528150-YTG-G-1210
182 Johnson Controls Unitary Products
Typical ZH/ZJ/ZR150 Cooling Unit with Gas Heat 460/575 Volt Wiring Diagram

528150-YTG-G-1210
Johnson Controls Unitary Products 183
Typical ZH/ZJ/ZR150 Cooling Unit with/without Electric Heat Wiring Diagram

528150-YTG-G-1210
184 Johnson Controls Unitary Products
Typical ZR037-061 Reheat Wiring Diagram

528150-YTG-G-1210
Johnson Controls Unitary Products 185
Typical ZR078-120 Reheat Wiring Diagram

528150-YTG-G-1210
186 Johnson Controls Unitary Products
Typical ZR150 Reheat Wiring Diagram

528150-YTG-G-1210
Johnson Controls Unitary Products 187
Typical ZH/ZJ078-150 Factory Installed VFD (Option)

528150-YTG-G-1210
188 Johnson Controls Unitary Products
Typical ZH/ZJ078-150 Factory Installed VFD with Manual Bypass (Option)

528150-YTG-G-1210
Johnson Controls Unitary Products 189
Typical ZH/ZJ078-150 BAS Ready Unit with Factory Installed VFD (Option)

528150-YTG-G-1210
190 Johnson Controls Unitary Products
Typical ZH/ZJ078-150 BAS Ready Unit with Factory Installed VFD and Manual Bypass (Option)

528150-YTG-G-1210
Johnson Controls Unitary Products 191
Typical ZH/ZJ078-150 VFD Ready Unit (Option)

528150-YTG-G-1210
192 Johnson Controls Unitary Products
Weights and Dimensions
ZH/ZJ037-150 Unit Weights
Unit 4 Point Load Weight Unit 6 Point Load Weight
D
A
CB
LEFT
FRONT
D
A
C
B
E
F
LEFT
FRONT
Size
(Tons) Model Weight (lbs.) Center of Gravity 4 Point Load Location (lbs.) 6 Point Load Location (lbs.)
ShippingOperatingX Y ABCDABCDEF
037
(3) ZH 728 723 40 26 175 143 182 223 121 105 92 117 134 154
049
(4) ZH 768 763 40 26 185 151 192 235 128 111 97 124 141 162
061
(5) ZH 777 772 40 26 187 153 194 238 129 112 99 125 143 164
078
(6.5) ZH 915 910 38 24 212 158 230 309 149 121 100 147 177 217
090
(7.5) ZH 915 910 38 24 212 158 230 309 149 121 100 147 177 217
102
(8.5) ZH 1035 1030 38 24 240 179 261 350 168 137 114 166 200 245
120
(10) ZH 1095 1090 38 24 254 189 276 371 178 145 120 176 211 260
150
(12.5) ZH 1220 1215 46 26 259 277 351 328 171 178 187 237 226 216
037
(3) ZJ 745 740 40 26 180 147 186 228 124 108 95 120 137 157
049
(4) ZJ 767 762 40 24 171 139 203 249 118 102 90 131 149 172
061
(5) ZJ 775 770 40 24 172 141 205 251 119 103 91 132 151 174
078
(6.5) ZJ 1035 1030 39 25 245 191 260 333 170 144 122 167 195 232
090
(7.5) ZJ 1086 1081 39 25 257 201 273 350 179 151 129 175 205 243
102
(8.5) ZJ 1065 1060 38 24 247 184 268 360 173 141 117 171 206 253
120
(10) ZJ 1075 1070 39 24 245 191 278 357 170 143 122 178 209 248
150
(12.5) ZJ 1285 1280 48 24 240 281 410 350 156 173 192 280 252 227
XY
LEFT FRONT

528150-YTG-G-1210
Johnson Controls Unitary Products 193
Weights and Dimensions
ZR037-150 Unit Weights
Unit 4 Point Load Weight Unit 6 Point Load Weight
D
A
CB
LEFT
FRONT
D
A
C
B
E
F
LEFT
FRONT
Size
(Tons) Model Weight (lbs.) Center of Gravity 4 Point Load Location (lbs.) 6 Point Load Location (lbs.)
ShippingOperatingX Y ABCDABCDEF
037
(3) ZR 872 867 40.3 25.5 205 170 223 269 141 124 110 144 163 185
049
(4) ZR 885 880 40.9 25.1 202 172 232 273 139 124 112 151 168 187
061
(5) ZR 872 867 41 25 198 169 230 269 136 122 110 150 166 184
078
(6.5) ZR 970 965 38 23 216 161 251 337 151 123 102 160 193 236
090
(7.5) ZR 970 965 38 23 216 161 251 337 151 123 102 160 193 236
102
(8.5) ZR 1205 1200 38 25.5 297 221 291 390 208 170 141 185 223 274
120
(10) ZR 1205 1200 38 25.5 297 221 291 390 208 170 141 185 223 274
150
(12.5) ZR 1470 1465 51 25.5 270 363 477 355 172 207 254 334 272 226
XY
LEFT FRONT

528150-YTG-G-1210
194 Johnson Controls Unitary Products
ZH/ZJ/ZR037-150 Unit Dimensions
ZH037-061 and ZJ/ZR037
ZH/ZJ/ZR037-150 Unit Accessory Weights
Unit Accessory Weight (lbs.)
Shipping Operating
Economizer 90 85
Power Exhaust 40 35
Electric Heat1
1. Weight given is for the maximum heater size available
(54KW).
49 49
Gas Heat2
2. Weight given is for the maximum number of tube heat
exchangers available (8 tube).
110 110
Variable Frequency Drive3
3. Weight includes mounting hardware, controls and manual
bypass option (6-1/2 to 12-1/2 ton only).
30 30
Ø 25.31
59.00
15.51
29.75
59
LEFT
11 3/8
21 3/16
89
27 5/16
4 3/16
FRONT
See detail A for gas inlet
A
See detail B for drain location
B
CDE
F
29.52

528150-YTG-G-1210
Johnson Controls Unitary Products 195
ZJ/ZR049 thru 061 and ZH/ZJ/ZR078 thru 120
Ø 24.47 TYP. 2 PL.
15.38
15.38
59.00
15.25
29.69
59
LEFT
11 3/8
21 3/16
89
27 5/16
4 3/16
FRONT
See detail A for gas inlet
A
See detail B for drain location
B
CDE
F

528150-YTG-G-1210
196 Johnson Controls Unitary Products
ZH150
FRONT
See detail B for drain location
See detail A for gas inlet
C
D
E
F
B
4 3/16
27 5/16
89
21 3/16
11 3/8
A
LEFT
59
14.92
58.09
14.92
14.92
29.95 30.11
45.64
Ø 24.47 TYP. 4 PL.

528150-YTG-G-1210
Johnson Controls Unitary Products 197
ZJ/ZR150
15.23
29.03
14.85
29.03
14.85
15.23
28.86 29.66
44.09
Ø 24.58 TYP. 4 PL.
FRONT
See detail B for drain location
See detail A for gas inlet
C
D
E
F
B
4 3/16
27 5/16
89
21 3/16
11 3/8
A
LEFT
59
ZH/ZJ/ZR037-150 Unit Physical Dimensions
Unit Model Number Dimension (in.)
ABCDEF
ZH037, 049, 061, 078, 090 42 89 22 1/8 18 3/16 15 3/16 6 3/16
ZH102, 120 50 3/4 89 30 3/16 24 3/16 17 3/16 6 3/16
ZH150 50 3/4 119 1/2 30 3/16 24 3/16 17 3/16 6 3/16
ZJ037, 049, 061 42 89 22 1/8 18 3/16 15 3/16 6 3/16
ZJ078, 090, 102, 120 50 3/4 89 30 3/16 24 3/16 17 3/16 6 3/16
ZJ150 50 3/4 119 1/2 30 3/16 24 3/16 17 3/16 6 3/16
ZR037, 049, 061 42 89 22 1/8 18 3/16 15 3/16 6 3/16
ZR078, 090 42 89 22 1/8 18 3/16 15 3/16 6 3/16
ZR102, 120 50 3/4 89 30 3/16 24 3/16 17 3/16 6 3/16
ZR150 50 3/4 119 1/2 30 3/16 24 3/16 17 3/16 6 3/16

528150-YTG-G-1210
198 Johnson Controls Unitary Products
Detail A
Detail B
42” CABINET
Ø 3.126
Ø 2.000
3.184
4.727
7.705
14.594
Gas Pipe Inlet
Gas Exhaust Vent
50 3/4” CABINET
Ø 3.126
Ø 2.000
3.184
4.737
7.715
17.541
Gas Pipe Inlet
Gas Exhaust Vent
5-3/8
3/4” FPT
ZH/ZJ/ZR037-150 Unit Clearances
Direction Distance (in.) Direction Distance (in.)
Top1
1. Units must be installed outdoors. Over hanging structure or
shrubs should not obscure condenser air discharge outlet.
72 Right 12
Front 36 Left 36
Rear 36 Bottom2
2. Units may be installed on combustable floors made from
wood or class A, B or C roof covering materials.
0

528150-YTG-G-1210
Johnson Controls Unitary Products 199
ZH/ZJ/ZR037-150 Unit Bottom Duct Openings
TOP VIEW
Bottom condensate drain
Bottom gas
supply entry
FRONT
RETURN
AIR
SUPPLY
AIR
RIGHT
LEFT
20 1/8 19 1/8 17 1/8
6 13/16
6 13/16
32 11/16
14 1/2
16 3/8
18 1/16
25 9/16
12 5/16
27 1/2 24
21
18
89
Ø 2.469
3X Ø 0.875
Bottom power, control
and convenience outlet
wiring entry

528150-YTG-G-1210
200 Johnson Controls Unitary Products
ZH/ZJ/ZR037-150 Unit Electrical Entry
ZH/ZJ/ZR037-120 Unit Side Duct Openings
Disconnect Swith Cover
Power Entry Ø 2-1/2
Control Entry Ø 7/8
Power Entry Ø 2-1/2
Convenience Outlet Cover
Convenience Outlet
Power Entry Ø 7/8
FRONT
D o t P l u g s
5 - 5 /3 2
3 1 - 1 1 /1 6
2 - 3 1 /3 2
1 8 - 1 /4
Return
Air
Supply Air
A
B
C
D

528150-YTG-G-1210
Johnson Controls Unitary Products 201
ZH150 Unit Side Duct Openings
ZJ/ZR150 Unit Side Duct Openings
ZH/ZJ/ZR037-150 Side Duct Dimensions
Unit Model Number Dimension (in.)
ABCD
ZH037, 049, 061, 078, 090 27 3/4 12 1/16 27 1/2 16
ZH102, 120 28 1/4 18 1/16 28 1/4 18 1/4
ZH150 28 1/4 18 1/16 28 1/4 18 1/4
ZJ037, 049, 061 27 3/4 12 1/16 27 1/2 16
ZJ078, 090, 102, 120 28 1/4 18 1/16 28 1/4 18 1/4
ZJ150 28 1/4 18 1/16 28 1/4 18 1/4
ZR037, 049, 061 27 3/4 12 1/16 27 1/2 16
ZR078, 090 27 3/4 12 1/16 27 1/2 16
ZR102, 120 28 1/4 18 1/16 28 1/4 18 1/4
ZR150 28 1/4 18 1/16 28 1/4 18 1/4
Dot Plugs
2-7/8
5-5/32
D
C31-5/8
18-1/4
B
A
Dot Plugs
2-7/8
5-5/32
D
C31-5/8
18-1/4
B
A

528150-YTG-G-1210
202 Johnson Controls Unitary Products
ZH/ZJ/ZR037-150 Unit Left Duct Opening
ZH/ZJ/ZR037-150 Unit Accessory Dimensions
ZH/ZJ/ZR037-150 Roof Curb
4-5/16
30-3/8
8 or 14
50-1/2
30
20
20
80-5/8
6
2 TYP.
INSULATED DECK UNDER
COMPRESSOR SECTION
INSULATED DECK UNDER
CONDENSER SECTION
FRONT
RIGHT
SUPPLY
RETURN

528150-YTG-G-1210
Johnson Controls Unitary Products 203
ZH/ZJ/ZR037-150 Transition Roof Curb
ZH/ZJ/ZR037-150 Economizer Assembly
76-5/8
94
50-1/2 30-1/2
64-1/4
59-1/4
10
23 4
26 80-5/8
2TYP
FRONT RIGHT
SUPPLY
RETURN
35 3/4
Outside Air
Intake Hood
26 25 3/4 30 1/4
26
39 1/2
or
47 1/2
Relief Hood for
Power Exhaust or
Barometric Relief
88 1/4
58 1/4

528150-YTG-G-1210
204 Johnson Controls Unitary Products
Economizer Options
Factory Installed Downflow Economizer
Field Installed Downflow Economizer W/Power Exhaust
Economizer Usage
Application Cabinet Height Description Model
Bottom Return All Downflow economizer with barometric relief 2EE04705924
Side Return All Horizontal economizer without barometric relief 2EE047060241
ERV or End Return 42" Slab Economizer, 42” tall cabinet 2EE047058242
50" Slab Economizer, 50” tall cabinet 2EE047057242
1. Barometric relief must be ordered seperately and installed in duct work.
2. Barometric relief or fresh air hood not included. Must be ordered seperately.
2EE04705924
Fresh Air Hood
2EE04705924
Fresh Air Damper
2EE04705924
Return Air Damper 2EE04705924
Barometric Relief Damper
2EE04705924
Barometric Relief Hood
2EE04705924
Fresh Air Hood
2EE04705924
Fresh Air Damper
2EE04705924
Return Air Damper
2PE047032XX
Power Exhaust
2EE04705924
Barometric Relief Damper
2EE04705924
Barometric Relief Hood

528150-YTG-G-1210
Johnson Controls Unitary Products 205
Field Installed Horizontal Economizer W/Power Exhaust
Slab Economizer Downflow W/Power Exhaust
1EH0408
Barometric
Relief Hood
1EH0408
Barometric
Relief Damper
2PE047032XX
Power Exhaust 2EE04706024
Fresh Air Hood
2EE04706024
Fresh Air Damper
2EE04706024
Return Air Damper
Field Installed
Duct Work
2EE04705X24
Slab Economizer 2PE047032XX
Power Exhaust
1EH0409 Barometric
Relief Damper 1EH0409 Barometric
Relief Hood
1EH0409
Fresh Air Hood

Subject to change without notice. Printed in U.S.A. 528150-YTG-G-1210
Copyright © 2011 by Johnson Controls, Inc. All rights reserved. Supersedes: 528150-YTG-F-0810
Johnson Controls Unitary Products
5005 York Drive
Norman, OK 73069
Slab Economizer End Return W/Power Exhaust
2EE04705X24
Slab Economizer
1EH0409
Barometric Relief Hood
1EH0409
Barometric Relief Damper
1EH0409
Fresh Air Hood
2PE047032XX
Power Exhaust
Field Installed
Duct Work