86584UK BW_HBE6_UK_05 12;v1.00 Hydroboil Plus Electronic Small 3 7l HP003 HP103 HP005 HP105 HP007 HP107 User And Installation Instructions V1.00
2016-08-19
: Zip Water Hydroboil Plus Electronic Small 3-7L Hp003 Hp103 Hp005 Hp105 Hp007 Hp107 User And Installation Instructions 86584Uk V1.00 Hydroboil_Plus_Electronic_Small_3-7l_HP003_HP103_HP005_HP105_HP007_HP107_User_And_Installation_Instructions_86584UK_v1.00 zipwater_ Instruction Manuals zipwater.onwallboiling zipwater.uk.products zipwater.uk
Open the PDF directly: View PDF
.
Page Count: 16

Zip Hydroboil Plus - Installation & Operating Instructions - 86584UK - May 2012 v1.00 Page 1 of 16
Installation and Operating Instructions
Zip Hydroboil Plus
203562 Zip Hydroboil Plus 3 Litre White HP003
203561 Zip Hydroboil Plus 3 Litre Stainless Steel HP103
205562 Zip Hydroboil Plus 5 Litre White HP005
205561 Zip Hydroboil Plus 5 Litre Stainless Steel HP105
207562 Zip Hydroboil Plus 7.5 Litre White HP007
207561 Zip Hydroboil Plus 7.5 Litre Stainless Steel HP107
®
Instant boiling water

Page 2 of 16 Zip Hydroboil Plus - Installation & Operating Instructions - 86584UK - May 2012 v1.00
This page intentionally left blank

Page 3 of 16 Zip Hydroboil Plus - Installation & Operating Instructions - 86584UK - May 2012 v1.00
Note:
Read all instructions and precautions before proceeding. This unit must be
installed in accordance with water supply by-laws and relevant local authority
by-laws.
All plumbing and electrical installations must comply with local authority
requirements.
Contents
Read these warnings first . . . . . . . . . . . . . . . 4
Installation Requirements . . . . . . . . . . . . . . . 4
Installation Procedures . . . . . . . . . . . . . . . . . 5; 6
Step 1 – Positioning . . . . . . . . . . . . . . . 5
Step 2 – Fastening . . . . . . . . . . . . . . . . 5
Step 3 – Connecting . . . . . . . . . . . . . . . 6
a) Plumbing. . . . . . . . . . . . . . . . 6
b) Venting . . . . . . . . . . . . . . . . . 6
c ) Electrical . . . . . . . . . . . . . . . . 6
Step 4 – Assembling . . . . . . . . . . . . . . . 6
Step 5 – Commissioning . . . . . . . . . . . 6
Wall Mounting Template Dimensions . . . . . . 7
End of life disposal . . . . . . . . . . . . . . . . . . . . 7
Problem Solving. . . . . . . . . . . . . . . . . . . . . . . 8
Earthing Continuity Verification . . . . . . . . . . . 8
Tap Operating Procedures . . . . . . . . . . . . . . . 9
Operational Procedure Settings . . . . . . . . . . . 10
Default Settings . . . . . . . . . . . . . . . . . . . . . . . 11
Setting Operational Modes. . . . . . . . . . . . . . . 11
Normal Mode. . . . . . . . . . . . . . . . . . . . . . . . . 11
Configurational mode. . . . . . . . . . . . . . . . . . . 12,13
Spare Parts . . . . . . . . . . . . . . . . . . . . . . . . . . 14; 15
Warranty and Contact Details . . . . . . . . . . . . 16

Page 4 of 16 Zip Hydroboil Plus - Installation & Operating Instructions - 86584UK - May 2012 v1.00
Read These Warnings First
Please read all installation requirements, installation procedures and precautions before
installing any Zip Hydroboil Plus instant boiling water heater.
Never attempt to install any Zip Hydroboil Plus instant boiling water heater without reading
all of the applicable instructions.
In some hard water areas where mineral scale accumulation in the boiling chamber of
the Zip Hydroboil Plus may become a problem, consideration should be given to the
maintenance required. A suitable form of water treatment may be necessary.
All plumbing connections must be made in accordance with local regulations.
The Zip Hydroboil Plus instant boiling water heater is not intended for use by young children
or infirm people without supervision.
Young children should be prevented from having access to ensure that they are not able to
use or play with the heater.
If the installation site is located more than 1000 metres above sea level, the installer should
contact a Zip authorised agent for high altitude settings.
This appliance must be earthed. If the power supply cord is damaged it must be replaced
by a Zip authorised agent or a qualified electrician.
Do not remove the cover of the heater under any circumstances without first isolating the
heater from the power supply.
Do not use strong, corrosive or abrasive cleaners to clean the case of the heater.
Frost protection: If this heater is located where ambient air temperature could fall below 5ºC
when the heater is not in use, do not turn off the appliance electrically. This safeguard does
not offer the same protection to the connecting pipework and fittings.
The ambient temperatures this unit must operate within is 5ºC - 50ºC.
This heater is intended only for indoor use and should never be installed outdoors or be
exposed to the elements of nature.
This unit must not be positioned in an area that may be cleaned by a water jet. This unit
must not be cleaned by a water jet.
Before installing, ensure that the following are available:
a) Sufficient space to position the heater so there is at least 150 mm
clearance above the heater for service access, 65 mm to its left and
20 mm to its right – the tap outlet usually should be positioned at least
200 mm above a draining board or drip tray.
b) Standard local requirement power cable positioned as shown on the paper mounting
template for connection from the rear of the heater to the terminal block within the heater,
this will require an isolating switch fitted in the fixed wiring and attached to a secure
surface. This switch must provide all pole disconnection and a contact separation of at least
3mm installed in accordance with the wiring rules. Alternatively a standard 220-240V, 13
amp fused spur, within 1500 mm of the Hydroboil Plus Unit.
NOTE: When installed with a plug and cord the plug must be accessible
c) Cold water supply with a minimum working pressure of 0.7 bar and a maximum
working pressure of 7 bar connected via an isolation valve.
Installation Requirements

Page 5 of 16 Zip Hydroboil Plus - Installation & Operating Instructions - 86584UK - May 2012 v1.00
d) Outlet drainage to a sink draining board or to a drip tray.
e) Access to drainage from a vent situated at the base of the heater.
f) In all installation instances the walls of the heater must be vertical and the
base horizontal, there can be no exceptions to this rule.
Note: If the water pressure is likely to exceed 7 bar, a 3.5 bar pressure
reducing valve must be installed in the cold water supply line.
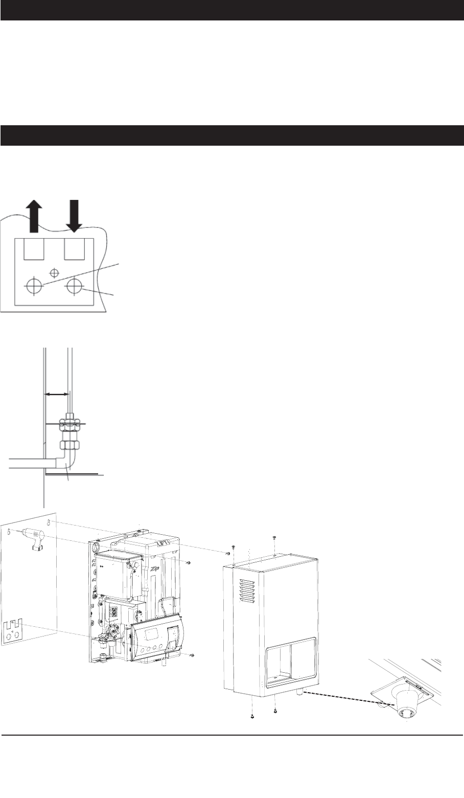
Before You Begin
Locate the paper mounting-hole template packed with the heater.
Read the installation and operating instructions completely.
Decide whether to install with concealed or exposed plumbing and/or electrical
connections. Concealed connections are preferred for superior appearance.
Step 1 – Positioning
Position the heater so the tap will drain on to a draining board or drip tray.
Position the base of the tap to be not less than 200 mm above the draining
board (height should be increased only if essential for filling larger vessels).
Provide clearance for service access of not less than 150 mm top, 65 mm left,
20 mm right.
Mark corner positions for the heater on the wall so as to position the paper
mounting-hole template.
Step 2 – Fastening
Position mounting-hole template on wall and drill holes where shown.
Drill holes for water inlet, vent outlet and wiring if rear access is intended.
Remove cover fastening screws from heater and lift whole cover off heater.
Install plumbing and wiring and prepare pipe ends and wiring ends as shown.
Screw heater chassis to the wall using screws or bolts suited to the wall.
Installation Requirements (continued)
Installation procedure
Spout detail
COLD
INLET
VENT
OUTLET
INLET
POSITION
VENT
POSITION
45mm
Elbow

Page 6 of 16 Zip Hydroboil Plus - Installation & Operating Instructions - 86584UK - May 2012 v1.00
Screws or bolts must be able to support the weight as shown in the chart on
the left.
Step 3 – Connecting
a) Plumbing
For exposed plumbing connection, connect the cold water inlet pipe from the
base of the heater directly to the 15 mm or half-inch compression fittings with
the nuts and olives provided.
For concealed plumbing connections, connect the cold water pipe through the
rear of the chassis using a 15 mm or half-inch capillary elbow.
Cold water pipes must be flushed before connection to the inlet. Any clogging
due to sediment or fines will adversely affect the operation of the heater.
The heater must be installed with an isolating valve which allows it to be isolated
from the mains supply for servicing.
Water pressure requirements:
Minimum - 0.7 bar, maximum - 7 bar.
Warning: If pressure is likely to exceed 7 bar, a pressure limiting valve must be
installed in the cold water supply line. Zip recommends a valve rated at 3.5 bar
for this application.
b) Venting
A vent at the base of the heater must be plumbed to a safe visible location as,
under certain conditions, it may discharge cold or boiling water and/or steam.
For exposed vent plumbing, connect vent outlet from the base of heater to a
15 mm or half inch OD pipe which has a continuous fall, is no more than 3
metres long, has no more than 3 right angle bends, and discharges to a waste
water drain.
For concealed vent plumbing, direct the vent outlet from the heater rear, using
a visible tundish. (see diag at left)
c) Electrical
For concealed electrical connection, connect a power cable through the rear
access opening of the heater to the terminal block within the heater as shown.
For exposed electrical connection, connect the flex to a fused spur on the wall
within 1500 mm of the heater that will adequately cater for the units power
needs.
Do not turn the power ON until the heater is filled to the tap level, with
water.
Step 4 – Assembling
Place the heater case back on to the heater and secure the top 2 case screws.
Secure two bottom case screws.
Step 5 – Commissioning
Check previous steps. Turn water supply ON. Water is now flowing into heater,
check connections for leaks. Wait approximately 5 minutes and check outlet
tap for water. This is achieved by pressing the tap paddle.
Power is only to be turned on when water is available from this outlet.
Turn power ON. After a short period, boiling water will be available and will be
maintained close to boiling point thereafter. Initial heating periods are shown in
the table on the left.
250mm
Wring
Concealed
Vent
Concealed
Inlet
45 mm
Visible TundishVent line
Special Note
Ensure the silicon outlet tube is
correctly positioned within the
outlet nozzle. Failure to do this
may cause internal flooding.
Aprox weight when filled
Installation Procedures (continued)
Inlet water
temperature 15°C 10°C
3.0 Litre models 16 min 17 min
5.0 Litre models 16 min 17 min
7.5 Litre models 23 min 24 min
3.0 Litre models 12.5 kg
5.0 Litre models 16.5 kg
7.5 Litre models 20.5 kg

Page 7 of 16 Zip Hydroboil Plus - Installation & Operating Instructions - 86584UK - May 2012 v1.00
Wall Mounting Template Dimensions
274 (1.5 L & 3.O L)
304 (5.0 L & 7.5 L)
65 CLEAR
56
POSITIONING PIN
EXTERNAL PLUMBING
ELECTRICAL WIRING
POSITION
INTERNAL PLUMBING
72
15
25
35 42
COLD
INLET VENT
BENCH TOP
416 3.O L
448 5.O L
561 7.5 L
38 (1.5 L & 3.O L)
53 (5.0 L & 7.5 L)
150
CLEAR
19
20
End of life Disposal
In order to help preserve our environment we ask that you dispose of this
product correctly. Please contact Zip customer services for advice on 0845
602 4533
Wall Mounting Template Dimensions

Page 8 of 16 Zip Hydroboil Plus - Installation & Operating Instructions - 86584UK - May 2012 v1.00
Problem Solving
Sympton Possible Cause Solution
Fails to dispense water.
Water isolating valve turned off.
Blocked filter, blocked meter tube,
blocked strainer, jammed ball valve
assy, airlock in transfer tube.
Check water supply valve.
Contact Zip authorised agent.
Water not boiling.
No power.
Faulty PCB, faulty NTC, faulty element,
faulty cutout.
Check power supply.
Contact Zip authorised agent.
Runs out of boiling water and fails to
refill.
Outlet tap drips.
Overflow from vent.
Excessive steam from vent.
Power “on” but no heat.
Overload repeatedly tripping with
excessive steam.
Overload repeatedly tripping without
excessive steam.
Internal adjustment. Contact Zip authorised agent.
Warning: this appliance must be earthed.
Following remedial service the earthing continuity of the heater must be
checked by a qualified technician using an appliance tester, or continuity tester
of accuracy Class 5 or better. Class 5 denotes an accuracy of 5% full scale
deflection.
1. Isolate power supply.
2. Set meter to 0 ohm with leads connected together.
3. Connect one test lead to the earth pin on the three pin plug.
4. Connect the other test lead to a bare patch of metal (preferably on the edge)
of the top of the cover, then to the front cover of the unit.
Warning- the water may be boiling - show extra care.
5. Test that in every instance the electrical resistance does not exceed 1 ohm.
Earthing Continuity Verification
If required, an earth continuity test can be
performed by testing between the earth pin on
the products lead and a exposed piece of metal
on the case.

Page 9 of 16 Zip Hydroboil Plus - Installation & Operating Instructions - 86584UK - May 2012 v1.00
Operating Procedures
Tap Operation
Safety feature.
Zip Hydroboil Plus has a unique safety device designed to reduce the incidence of accidental operation of the tap.The tap
can be “Locked” to prevent the Hydroboil Plus from dispensing hot water
In order to “lock” the tap, ensure the safety button is protruding from the right hand side of the control panel and the
locked indicator is illuminated
This can be achieved by pressing the button and simultaneously rotating it until the groove in the head of the button
faces toward the body of the appliance. In this position an internal spring will push the button out. Once the button is in
the extended position, the tap will be “Locked” and unable to dispense hot water.
Disengage safety feature.
Press and simultaneously rotate (aprox 90 degrees) the safety button on the right hand side of the control panel, until it
latches in the closed position, and the unlocked indicator is illuminated.
Warning: The unit is now capable of dispensing boiling water without the safety feature.
Dispensing Boiling water:
Zip Hydroboil Plus is fitted with a safety, two-way cool-touch safety tap for instant boiling water.
Normal operation (for filling cups and small containers)
To activate the tap, press the safety button on the right side of the control panel and while holding the button in, gently
push the lower end of the tap paddle inwards and boiling water will flow until the tap paddle is released.
Continuous operation (for filling, tea pots, saucepans and large containers )
Press the safety button on the right side of the control panel and while holding the button in, Lift the tap paddle until it
locks into a horizontal position, the button can now be released and boiling water will flow until the paddle is returned to
its normal vertical position. This operation allows a vessel to be filled without holding your hand where it may be affected
by steam.
Normal operation
Continuous operation
locked
Press to unlock
Press to unlock
Locked / unlocked indicators

Page 10 of 16 Zip Hydroboil Plus - Installation & Operating Instructions - 86584UK - May 2012 v1.00
DESCRIPTION
The Electronic Hydroboil Plus has user interface that consists of a graphic LCD and 4 Capacitive Sensor Switches, (CSS).
The user interface gives the current status of the Hydroboil Plus and allows the user to configure it as required.
Legend:
1 = ZIP Symbol
2 = Day of the Week indicator
3 = Setpoint Value
4 = CHANGE FILTER indicator
5 = ON indicator
6 = OFF indicator
7 = Sleep Symbol
8 = Sleep mode ( Stand by ) indicator
9 = Low light Symbol
10 = 24hour Clock
11 = BOILING WATER indicator
CSS1 = Capacitive Sensor Switch 1
CSS2 = Capacitive Sensor Switch 2
CSS3 = Capacitive Sensor Switch 3
CSS4 = Capacitive Sensor Switch 4
The LCD and capacitive sensor switches connect to the Controller PCB via a 4-way serial cable.
The DIP Switches on the Controller PCB should be configured as follows.
The Electronic Hydroboil Plus has a real time clock that operates in 24 hour mode, and can have 2 ON-OFF times per
day. If the user selects either of the energy saver modes, (see below), ON-OFF mode cannot be used, (The user is not
able to access this part of the configuration). The real time clock is battery backed meaning the unit does not loose the
configuration data if power is removed.
The Hydroboil Plus has two energy saver ( stand by ) modes that can be used in an either/or configuration. The energy
saver modes differ from on/off mode in that the water in the tank is maintained at 65ºC rather than allowing it to drift
back to ambient.
1) Sleep Mode, and
2) Low Light Mode. (Sleep-when-it’s-dark feature)
Sleep Mode can be set to 2 hours or 4 hours.
Sleep Mode is indicated by the Sleep symbol on the LCD.
Low Light Mode is indicated by the Low Light symbol on the LCD.
When the unit actually enters energy saver mode it is indicated by the Sleep Mode Indicator on the LCD.
Z
Z
z
SUN
MON
TUE
WED
THU
FRI
SAT
SETPOINT
CHANGE FILTER
BOILING WATER
C
ON
OFF
2
3
45
6
7
8
10
11 9
1
CSS1 CSS2 CSS3 CSS4
Operating Procedures (setting the controls)
The user interface is shown below.

Page 11 of 16 Zip Hydroboil Plus - Installation & Operating Instructions - 86584UK - May 2012 v1.00
In 2 Hour Sleep Mode, if there has been no water drawn through the tap or no touches of the capacitive switch sensors
for two hours, the temperature of the water in the tank will be allowed to drop to and be maintained at 65ºC. (The time
taken for the water temperature to drop to 65ºC can be as much as 12 hours depending on ambient conditions and other
external factors).
In 4 Hour Sleep Mode, if there has been no water drawn through the tap or no touches of the capacitive switch sensors
for four hours, the temperature of the water in the tank will be allowed to drop to and be maintained at 65ºC.
As soon as water is drawn through the tap, or there is a touch on the capacitive switch sensors, the Hydroboil Plus
returns to full power mode.
In Low Light Mode, as soon as the ambient light (in the room where the Hydroboil Plus is installed ) drops below 100lux,
the unit goes into energy saver mode and will allow the temperature of the stored water to drop to and be maintained at
65ºC. As soon as the ambient light rises above 100lux, the Hydroboil Plus returns to full power mode.
A normal office has an ambient light level of 200-300lux.
The Default configuration for the Hydroboil Plus is as follows.
tting operational modes
Default settings
TEMPERATURE SETPOINT: 98ºC
FILTER TIMER: OFF
SLEEP MODE: OFF
LOW LIGHT MODE: OFF
SUN ON TIME 1: --:--
SUN OFF TIME 1: --:--
SUN ON TIME 2: --:--
SUN OFF TIME 2: --:--
MON ON TIME 1: 08:00
MON OFF TIME 1: --:--
MON ON TIME 2: --:--
MON OFF TIME 2: --:--
TUE ON TIME 1: --:--
TUE OFF TIME 1: --:--
TUE ON TIME 2: --:--
TUE OFF TIME 2: --:--
WED ON TIME 1: --:--
WED OFF TIME 1: --:--
WED ON TIME 2: --:--
WED OFF TIME 2: --:--
THU ON TIME 1: --:--
THU OFF TIME 1: --:--
THU ON TIME 2: --:--
THU OFF TIME 2: --:--
FRI ON TIME 1: --:--
FRI OFF TIME 1: --:--
FRI ON TIME 2: --:--
FRI OFF TIME 2: --:--
SAT ON TIME 1: --:--
SAT OFF TIME 1: --:--
SAT ON TIME 2: --:--
SAT OFF TIME 2: --:--
Setting operational modes
The Hydroboil Plus has 2 modes of operation:
1).Normal operation mode 2). Configuration mode
Note: The BOILING WATER symbol is not displayed until the water reaches
temperature.
In Normal operation mode the LCD will display as follows:
Normal display
Normal mode

Page 12 of 16 Zip Hydroboil Plus - Installation & Operating Instructions - 86584UK - May 2012 v1.00
To enter Configuration Mode, press and hold the CSS1 and CSS4 for 10
seconds. The unit enters Configuration Mode and the user can configure the
clock as follows.
SET SETPOINT
To return to Normal Mode, press CSS4.
To increment the setpoint, press either CSS2 or CSS3.
To step to the next configuration parameter, press CSS1.
Note 1: The setpoint moves in a circular fashion. It goes from 98 to 99 to 100
to 65 to 66 etc.
Note 2: 100ºC may be indicated by 1H or 100 on the LCD
SET CLOCK
To return to Normal Mode, press CSS4.
To increment the Hours, press CSS2.
To increment the Minutes, press CSS3.
To step to the next configuration parameter, press CSS1.
SET DAY-OF-THE-WEEK
To return to Normal Mode, press CSS4.
To step to the next day of the week, press either CSS2 or CSS3.
To step to the next configuration parameter, press CSS1.
SET FILTER EXPIRATION TIME
To return to Normal Operation, press CSS4.
To increment the expiration time, press either CSS2 or CSS3.
To step to the next configuration parameter, press CSS1.
Note 1: The Filter expiration time moves in a circular fashion. It goes from
OFF to 00 to 01 to 02 etc, etc. up to 14 Months.
Note 2: 00 is a test mode. When the user returns to Normal Operation, the
CHANGE FILTER icon will appear on the LCD after approximately 1minute. To
clear the CHANGE FILTER icon, the user must re-enter Configuration, set the
Filter Expiration Time to OFF and return to Normal Operation.
perational
Clock display
Day display
Setpoint display
Configuration mode
Filter display

Page 13 of 16 Zip Hydroboil Plus - Installation & Operating Instructions - 86584UK - May 2012 v1.00
modes
CONFIGURE SLEEP MODE
To return to Normal Mode, press CSS4.
To configure sleep mode to kick in after 4 hours, press either CSS2 or CSS3.
To step to the next configuration parameter, press CSS1.
Note: Configuring Sleep Mode moves in a circular fashion. It goes from 2
hours to 4 hours to OFF and back to 2 hours etc.
ENABLE LOW LIGHT SENSOR
“Sleep-when-it’s-dark” feature.
To return to Normal Operation, press CSS4.
To configure Low Light Sensor ON/OFF, press either CSS2 or CSS3.
To step to the next configuration parameter, press CSS1.
Note 1: Daylight Sensor ON/OFF flip flops with each press of CSS2 or CSS3.
Note 2: If either Sleep Mode or Low Light sensor is configured as on, pressing
CSS1 will return the user to Normal Operation.
Note 3: If both Sleep Mode and Low Light sensor is configured as off, the user
will be able to use ON-OFF mode.
SUN ON-TIME 1
To return to Normal Mode, press CSS4.
To increment the hour for SUN ON-TIME 1, press either CSS2 or CSS3.
To step to the next configuration parameter, press CSS1.
SUN OFF-TIME 1
To return to Normal Mode, press CSS4.
To increment the hour for SUN OFF-TIME1, press either CSS2 or CSS3.
To step to the next configuration parameter, press CSS1.
Note: If ON TIME = OFF TIME this disables the timer.
Note: The same procedure is followed for all the ON-OFF time periods.
If no action is sensed on the CSS’s for 20 seconds, the unit will revert to
Normal Mode.
After SAT OFF-TIME 2 pressing either CSS1 or CSS4 will revert the unit to
Normal Mode.
Low light display
Sleep display
Sun on-time display
Sun off-time display
Configuration mode (continued)

Page 14 of 16 Zip Hydroboil Plus - Installation & Operating Instructions - 86584UK - May 2012 v1.00
Spare Parts
Item Kit No. Description
1 90487 Cistern Lid Clamp Kit
2 90488 Cistern Lid and Gasket Kit
3 90490 Gasket Kit Hydroboil
4 90083 Float Valve Kit with Float
5 90069 Jumper Valve Kit with Seals
6 90102 Cistern Float Kit with Nut and Screw
7 90493 Metering Tube Kit 1500W
7 90494 Metering Tube Kit 2400W
8 90495 Banjo Screw Hydroboil
9 90496 O-Ring Kit Hydroboil
10 90743 Fascia Lens Kit
11 90741 Fascia Assy Electronic White
11 90742 Fascia Assy Electronic Grey
12 90620 Sensor Probe Econoboil Hot Tank Kit
13 90579 Overload Kit
14 90732 Tap Handle Kit
15 90733 Outlet Nozzle Kit
16 90503 Strap and Key Kit 3Litre Hydroboil
16 90504 Strap and Key Kit 5L& 7.5Litre Hydroboil
17 90505 Tap Nut Kit
18 90509 Tap Body Kit
19 90485 Element Kit 1500W / 240V
19 90486 Element Kit 2400W / 240V
20 90491 Cleaning Hole Cover Kit
21 90492 Drain Cap and Seal Kit
22 90107 Filter Kit Cold Inlet Bush
23 90131 Lid, Gasket and Clips Kit 3Litre
23 90132 Lid, Gasket and Clips Kit 5 Litre
23 90213 Lid, Gasket and Clips Kit 7.5 Litre
24 90142 Tank Welded Kit 3Litre
24 90734 Tank Welded Kit 5Litre
24 90735 Tank Welded Kit 7.5Litre
25 90147 Insulation Kit 3Litre
25 90736 Insulation Kit 5Litre
25 90737 Insulation Kit 7.5Litre
26 90130 Clips for Curled Tank Kit
27 90744 PCB Kit Hydroboil 2006
28 90214 Sensor Sleep Mode

Page 15 of 16 Zip Hydroboil Plus - Installation & Operating Instructions - 86584UK - May 2012 v1.00
Spare Parts
1
2
3
4
5
6
7
3
8
9
10
11
14
15
27
16
17 18
19
20 21
23
26
24
25
12
13
22
28

Page 16 of 16 Zip Hydroboil Plus - Installation & Operating Instructions - 86584UK - May 2012 v1.00
Warranty Information
Certain warranties may be implied by law into your contract with Zip. The
warranty provided below is additional to these implied warranties and nothing
set out below shall limit your statutory rights or rights at law.
Zip Heaters (UK) Ltd warrants that, should any part fail within 24 calendar
months of installation, that part will be repaired or replaced free of charge by
Zip or its Distributor or Service Provider, except as set out below, provided
the appliance is installed and used strictly in accordance with the instructions
supplied, and that failure is not due to accident, misuse, abuse, unsuitable
water conditions, or to any alteration, modification or repair by any party not
expressly nominated by Zip.
No costs are payable by the customer other than any mileage or travelling-time
charges incurred by a Zip Service Provider or the cost of removal, cartage and
re-installation of any component of the appliance if it needs to be returned for
repair to Zip or its Distributor.
This warranty does not cover damage resulting from non-operation of the
appliance, the use of non authorised parts or consequential damage to any
other goods, furnishings or property.
No warranty applies to the life of any filtration cartridge installed with the
appliance as cartridge life may vary according to water quality and the rate of
water consumption.
Zip does not exclude, restrict or modify any liability that cannot be excluded,
restricted or modified or which cannot, except to a limited extent, be excluded,
restricted or modified as between the owner or user and Zip under the laws
applicable.
Furthermore, this warranty does not displace any statutory warranty, but, to the
extent to which Zip is entitled to do so, the liability of Zip under any statutory
warranty will be limited at Zip’s option to the replacement of the appliance
or supply of equivalent appliance, the payment of the cost of replacing the
appliance or acquiring an equivalent appliance, or the payment of the cost of
having the appliance repaired or the repair of the appliance.
Registering Your Purchase
Registering your Zip installation on the Zip website may help to establish date
of installation should it become necessary to service the appliance under terms
of the Zip warranty. To register your installation go to www.zipheaters.co.uk
and look under the heading “Warranty”.
Head Office
Zip Heaters (UK) Ltd
14 Bertie Ward Way
Dereham
Norfolk NR19 1TE
Website: www.zipheaters.co.uk
sales@zipheaters.co.uk
Telephone: 0845 602 4533
Facsimile: 01362 692 448.
As Zip policy is one of continuous product improvement, changes to
specifications may be made without prior notice. Images in this booklet have
been modified and may not be true representations of the finished goods.