dormakaba Canada SAFFIRELX Wireless door lock User Manual Product Release Plan
dormakaba Canada Inc. Wireless door lock Product Release Plan
Contents
- 1. Users manual
- 2. Users Manual
Users manual

Page 1 of 28 Saffire LX
SAFFIRE LX
Installation Guide Outline
Document Revision: Draft 1.0

Page 2 of 28 Saffire LX
Table of Contents
Table of Contents
1. Introduction and disclaimers ................................................................... 3
2. Recommended Tools ............................................................................. 3
3. Components ......................................................................................... 4
4. Install key cylinder (optional) ................................................................. 6
5. Install thumbturn spindle (optional) ........................................................ 6
6. Install the lock spindle ........................................................................... 7
7. Setting up the inside trim assembly ......................................................... 9
8. Installing the locking mechanism on the door ......................................... 12
8.1. Installing the mortise ASM (if lock equipped) ....................................... 12
8.2. Installing the cylindrical models (if lock equipped) ................................ 15
9. Installing the lock housings on the door ................................................. 18
10. Connecting the cables .......................................................................... 19
11. Installating inside cover ....................................................................... 20
12. Installing the outside lever handle ......................................................... 23
13. Install the batteries ............................................................................. 23
14. Test lock functionality .......................................................................... 24
15. Program the lock ................................................................................. 24
Annex A.. ................................................................................................... 25
Annex B…………………………………………………………………………………………………………..………..28
Model: Saffire LX
This device complies with part 15 of the FCC Rules. Operation is subject to the following two
conditions: (1) This device may not cause harmful interference, and (2) this device must
accept any interference received, including interference that may cause undesired operation.
This device complies with Industry Canada’s licence-exempt RSSs. Operation is subject to the
following two conditions: (1) This device may not cause interference; and (2) This device must
accept any interference, including interference that may cause undesired operation of the
device.
Le présent appareil est conforme aux CNR d'Industrie Canada applicables aux appareils radio
exempts de licence. L'exploitation est autorisée aux deux conditions suivantes : (1) l'appareil
ne doit pas produire de brouillage, et (2) l'utilisateur de l'appareil doit accepter tout brouillage
radioélectrique subi, même si le brouillage est susceptible d'en compromettre le
fonctionnement.
Made in Canada
©2018 dormakaba Lodging Systems.All trademarks and registered trademarks are the property of their
respective owners.
Caution: Changes or modifications to this equipment not expressly approved by the party
responsible for compliance could void the user's authority to operate the equipment.

Page 3 of 28 Saffire LX
1. Introduction and disclaimers
Caution: Please read and follow all directions carefully. Wear safety glasses when
making the holes.
Target Audience: These instructions are designed for use by maintenance
professionals or lock installers who are familiar with common safety practices and
competent to perform the steps described. dormakaba is not responsible for damage
or malfunction due to incorrect installation however arising.
Important: Carefully inspect windows, doorframe, door, etc. to ensure that the
recommended procedures will not cause damage. dormakaba Lodging Systems
standard warranty does not cover damages caused by installation.
Respect applicable building codes regarding handle height.
Definition of Terms: In these instructions, the term ASM refers to American
Standard Mortise and ADB refers to Autodeadbolt Mortise.
Technical Assistance
For technical assistance, call:
1.877.468.3555 / +1.514.340.9025RT: 1.800.999.6213 / +1.248.837.3700
2. Recommended Tools

Page 4 of 28 Saffire LX
3. Components

Page 5 of 28 Saffire LX
For doors more than 2 1/2" thick up to 3 3/4", order the appropriate hardware bag to
receive the correct length of spindles and mounting screws. Part# 062-XXXXXX-XXX;
(XXX = choice of finish).
For outdoor installations, order gasket 033-515996-1 for standard lock and 033-
515996-2 for MKO lock.
Hardware

Page 6 of 28 Saffire LX
4. Install key cylinder (optional)
• Insert the cylinder core in the key override housing.
• Secure the cylinder core using screw (item 11).
• Secure the access plate key cylinder (item 9) over the key override housing.
• Secure the access plate using two screws (item 10).
5. Install thumb turn spindle (optional)
• Verify that the line markers for the thumb turn hole are aligned. If the holes
are misaligned, use the flat screwdriver to correct the position.
• Insert the thumb turn spindle (item 2) into the thumb turn hole. Press firmly
to ensure the spindle clicks in place.
• Rotate the spindle to ensure that the part remains in place.

Page 7 of 28 Saffire LX
6. Install the lock spindle
The spindle must be installed and properly secured in the front lock housing
assembly. The spindle is used to connect the handle to operate the opening and
closing door mechanism.
Prior to installing the spindle, you must first adjust the required positioning of the
hub receiving the spindle. There are 2 modes, Left Hand (LH) and Right Hand (RH)
according door handing.
• Turn the hub for correct door handing by turning clockwise for right and
counter clockwise for left.
•
Lines to be aligned

Page 8 of 28 Saffire LX
• Insert the spindle (item 1) smoothly until it clips.

Page 9 of 28 Saffire LX
7. Setting up the inside trim assembly
Decide if the lever handle is a RH or LH position based on the door handing. The
inside lever handle must be installed as is does not come preinstalled.
• To set proper handing, insert the lever from the back plate and turn in the
direction required for the handing (L or R).

Page 10 of 28 Saffire LX
• Install the bushing (item 7)
• Install the lever vertically as shown (pointing down), making sure it is snug.
• Rotate the lever handle to horizontal position corresponding to selected
handing.
• Push up the spring holder and install the snap holder for spring holder (item
8) to lock and prevent lever from disengaging
RH as arrow pointing R
LH as arrow pointing L

Page 11 of 28 Saffire LX

Page 12 of 28 Saffire LX
8. Installing the locking mechanism on the door
Before starting the installation of the lock on the door, please make sure the door
has been prepared properly with proper holes for the lock. Refer to corresponding
drilling template for your lock model. Drilling templates are available in the center
section of this installation instructions and on the dormakaba website.
8.1. Installing the mortise ASM (if lock equipped)
Before installing the mortise, verify gap between the door and the frame. The gap
between the mortise face plate and the strike must not exceed ¼” for proper and
secure operation of the mortise.

Page 13 of 28 Saffire LX
• Verify the mortise handing for LH or RH. If the handing needs to be
adjusted, refer to instructions in annex A.
• Remove the face plate by removing the two screws

Page 14 of 28 Saffire LX
• Insert the mortise in the side of the door. If the mortise is equipped with
a cable, route the cable so it comes out of top hole on the side of the
inside trim assembly.
• Use metal or wood screws depending door material to secure the mortise

Page 15 of 28 Saffire LX
• Re-install the face plate with its two screws.
• Install the strike and the dust box on the door frame
Important: When strike is installed on wood frames under one inch
thick, wood screws supplied are not adequate. Use screws of efficient
lenght to engage the structural stud behind the frame. Use only the strike
and dust box supplied. Use of non-approved parts may void the warranty.
8.2. Installing the cylindrical models (if lock equipped)
IMPORTANT
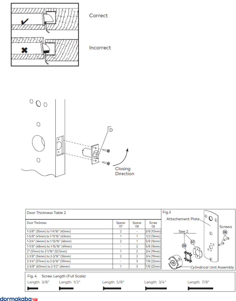
For cylindrical latch models, ensure the dead-locking pin will stop against the
strike when the door is closed (see figure). An incorrect installation that permits

Page 16 of 28 Saffire LX
the pin to slip inside the strike may result in a total lockout and will void the
warranty of the complete lock mechanism.
• Insert the latch in the hole in the edge of the door, orienting them latch
bolt head as per closing direction
• Tighten the two screws.
• Verify the door thickness. The lock is assembled in factory for door
thickness of 1 ¾”. If the door thickness is different, refer to table below
to adjust the spacers. Extra spacers and screws provided in the
hardware bag.

Page 17 of 28 Saffire LX
• Make sure the handing is correct. If not, reinstall the cylindrical unit for
proper handing.
• Install the cylindrical unit from outside of the door toward inside, so
that it engages the latch as shown.
• Install the strike and the dust box on the door frame
Important: Use only the strike and strike box supplied. The use of non-
approved parts will result in a functionality problem and may void the
warranty.

Page 18 of 28 Saffire LX
9. Installing the lock housings on the door
Install the housing on the inside of the door and aligning with the lock mechanism.
• Install the front lock housing, routing the wire cable by the center hole at the
top
• Install the inside housing
• Install the screws provided and tighten
LH shown

Page 19 of 28 Saffire LX
10. Installing the antenna module (if lock equipped)
• Position the bracket on the door, engaged with the “T” at the top of the
chassis
• Secure the bracket with screw
11. Connecting the cables
Locks without wire guide
• Connect each cable with its mating one and push back in the hole in
the door the excess of cables.

Page 20 of 28 Saffire LX
Locks with wire guide
• Before installing the lock on the door, extend the wire guide out,
without removing the cover.
• After securing the front lock housing with the inside trim
chassis, remove the cover on the wire cover. The cover will no
longer be used.
Wire guide

Page 21 of 28 Saffire LX
o Now that cables are exposed, connect each cable with its
mating one.
o Push back the wire guide in the door.
12. Installating inside cover
• Set the thumb turn on the inside cover to vertical position
• Slide the inside cover onto the lever handle taking care not to scratch the
lever handle
• When the cover is fully in place, secure it using the 3 screws (item 5)

Page 22 of 28 Saffire LX
• For locks with ADB mortise, to apply the privacy thumb turn sticker.

Page 23 of 28 Saffire LX
13. Installing the outside lever handle
• Install the outside bushing, making sure it is snug
• Install the outside lever handle according to the lock handing (L/R)
• Insert the set screw and tighten till snug
14. Install the batteries
• Insert the batteries in the battery holder respecting the polarity indicated
in the battery holder
IMPORTANT: Use only Alkaline batteries

Page 24 of 28 Saffire LX
15. Test lock functionality
Make sure room door is open before testing
A - Present Test Keycard
B - Check Green & Red Lights Flash
C - Rotate Outside Lever to Check Bolt Retraction
D - Release Outside Lever, Should Move Freely
E - Rotate Inside Lever to Check Bolt Retraction
F - Check Bolt Projection from Thumbturn
16. Program the lock
Refer to system user manual for lock programming.

Page 25 of 28 Saffire LX

Page 26 of 28 Saffire LX

Page 27 of 28 Saffire LX

Page 28 of 28 Saffire LX
Annex B Install Outside Housing with Gasket