Andrew Wireless Innovations Group RPT-MR801BI MR801BI Power and MR801BI SMR Band Repeater User Manual M0079A1A
Andrew Wireless Innovations Group MR801BI Power and MR801BI SMR Band Repeater M0079A1A
Contents
- 1. Users manual
- 2. Users manual update
Users manual

User’s manual for Repeater MRx01B Power
M0079A1A.doc Id.-No. 151775 Page 110-March-00
User’s manual for
band or channel selective Repeater
MRx01B Power

User’s manual for Repeater MRx01B Power
M0079A1A.doc Id.-No. 151775 Page 210-March-00
Copyright MIKOM, Buchdorf 2000
All rights reserved.
No parts of this publication may be
reproduced, stored in a retrieval system, transmitted in any form or by
any means, electronical, mechanical photocopying,
recording or otherwise, without prior written permission of the
publisher.

User’s manual for Repeater MRx01B Power
M0079A1A.doc Id.-No. 151775 Page 310-March-00
Table of Contents
LIST OF FIGURES AND TABLES 6
LIST OF UNIT SPECIFIC ABBREVIATIONS 7
CONTENTS OF DELIVERY 7
HEALTH AND SAFETY WARNING 8
PREAMBLE 9
1INTRODUCTION 11
1.1 Intended purpose 11
1.2 About the MRx01B Power 11
1.3 Modular design 11
1.4 Applications 12
2FUNCTIONAL DESCRIPTION 13
2.1 General 13
2.2 Conversion modules 14
2.3 Mother board 14
2.4 Control module SM 2009 ( Rev. 07 and higher ) 16
2.5 Duplexer 20
2.6 Active combiner 21
2.7 Measuring aids 21
2.8 Feedforward amplifier 22
2.9 Power supply 22
3FUNCTIONS AND FEATURES 24
3.1 Band and channel selectivity 24

User’s manual for Repeater MRx01B Power
M0079A1A.doc Id.-No. 151775 Page 410-March-00
3.2 Gain setting 24
3.3 ALC 25
3.4 CFO 25
3.5 BITE and alarms 25
3.5.1 Handling of alarms 27
3.5.2 Status report 28
3.5.3 Severity levels 28
4OPTIONAL EQUIPMENT 29
4.1 VSWR module 29
4.2 External alarms 29
4.3 Modem 30
4.4 External RF output 31
4.5 Battery backup module 32
5INSTALLATION 33
5.1 Mechanical installation 34
5.2 Electrical installation 36
5.2.1 Grounding 36
5.2.2 Power connection 37
5.2.3 Connection of the antenna cables 37
6SETTING TO WORK 39
6.1 Preparation 39
6.2 Setting of operational parameters 39
6.2.1 Manual settings by means of rotary switches 40
6.2.2 Setting of the attenuation 40
6.2.3 Settings via personal computer as terminal 42
6.2.4 Settings via modem 44
7TROUBLE SHOOTING 45
7.1 Error indication 45
7.2 Alarm monitoring with the STATUS HIST command 45

User’s manual for Repeater MRx01B Power
M0079A1A.doc Id.-No. 151775 Page 510-March-00
7.3 Power supply 46
7.4 General remarks 46
8MAINTENANCE 47
8.1 General 47
8.2 Replacement of the fuses (mains) 47
8.3 Replacement of the power supply fuse 48
8.4 Replacement of the mains cable 48
8.5 Replacement of the RAM / RTC battery 49
8.6 Replacement of the duplexers 50
8.7 Replacement of conversion modules 50
8.8 Replacement of the control module SM 2009 53
8.9 Replacement of power supplies 54
8.10 Replacement of active combiner modules 55
8.11 Replacement of feedforward amplifier 55
9APPENDICES 58
9.1 Repeater specifications 58
9.2 Spare parts lists for MRx01B Power 68
9.2.1 Spare parts list for MR301B Power 68
9.2.2 Spare parts list for MR401B Power 70
9.2.3 Spare parts list for MR701B Power 71
9.2.4 Spare parts list for MR801B Power and MR801Bi Power 73
9.3 Installation drawing of the Repeater 75
9.4 Top view of the Repeater (left side , exemplary configuration) 76
9.5 Top view of the Repeater (right side, exemplary configuration) 77
9.6 One channel configuration – cabling and block diagram 78
10 INDEX 80

User’s manual for Repeater MRx01B Power
M0079A1A.doc Id.-No. 151775 Page 610-March-00
LIST OF FIGURES AND TABLES
table 1-1 List of international sales offices .............................................................................. 10
figure 2-1 Block diagram of MRx01B Power.......................................................................... 13
figure 2-2 Top view of a conversion module ........................................................................... 14
figure 2-3 Top view of a mother board .................................................................................... 15
figure 2-4 Configuration of the control module ( Rev.07 and higher ).................................... 18
figure 2-5 Configuration of the DIP-Switches ......................................................................... 19
figure 2-6 Top view of the duplexers....................................................................................... 20
figure 2-7 Top view of the active combiner module................................................................ 21
figure 2-8 Top view of the feedforward amplifier ................................................................... 22
figure 2-9 Mounting position of power supplies...................................................................... 23
figure 2-10 ON / OFF position of external switch ................................................................... 23
figure 3-1 Position of rotary switches ...................................................................................... 24
table 3-2 List of all available alarms ........................................................................................ 26
figure 4-1 Clamps for external alarms...................................................................................... 29
figure 4-2 Modem kit ............................................................................................................... 31
figure 4-3 Position of external RF output................................................................................. 31
figure 4-4 Mounting position of batteries ................................................................................ 32
figure 5-1 System description .................................................................................................. 33
figure 5-2 Top view and clearance distance............................................................................. 34
figure 5-3 Wall mounting brackets........................................................................................... 35
figure 5-4 Grounding kit .......................................................................................................... 36
figure 5-5 Screw terminal......................................................................................................... 37
figure 5-6 Connector panel layout............................................................................................ 38
table 6-1 LED indication.......................................................................................................... 39
figure 6-2 Position of the DIP-Switch 1 and 2 and RAM/RTC battery ................................... 40
figure 6-3 Position of the rotary switches ................................................................................ 41
figure 6-4 Rotary switches and label........................................................................................ 41
table 6-5 DIP-switch configuration.......................................................................................... 42
table 6-6 List of AT commands................................................................................................ 44
figure 8-1 Position of power supply fuse ................................................................................. 48
figure 8-2 External filter at iDEN module................................................................................ 51
figure 8-3 Top view of a conversion module ........................................................................... 51
figure 8-4 Position of hex-coded rotary switches..................................................................... 52
table 8-5 Address of synthesizer .............................................................................................. 52
table 8-6 Adress of synthesizer, conversion modules .............................................................. 52
figure 8-7 Position of hex-coded rotary switches..................................................................... 52
figure 8-8 Position of control module ...................................................................................... 53
figure 8-9 Power supply ........................................................................................................... 54
figure 8-10 Position of special-nut M4 .................................................................................... 54
figure 8-11 Position of counter sunk screws on active combiner............................................. 55
figure 8-12 Position of feedforward amplifier reset board....................................................... 56
figure 8-13 Position of feedforward amplifiers........................................................................ 57
figure 9-1 Installation drawing of the Repeater........................................................................ 75
figure 9-2 Top view of the Repeater (left side, exemplary configuration)............................... 76
figure 9-3 Top view of the Repeater (right side, exemplary configuration) ............................ 77
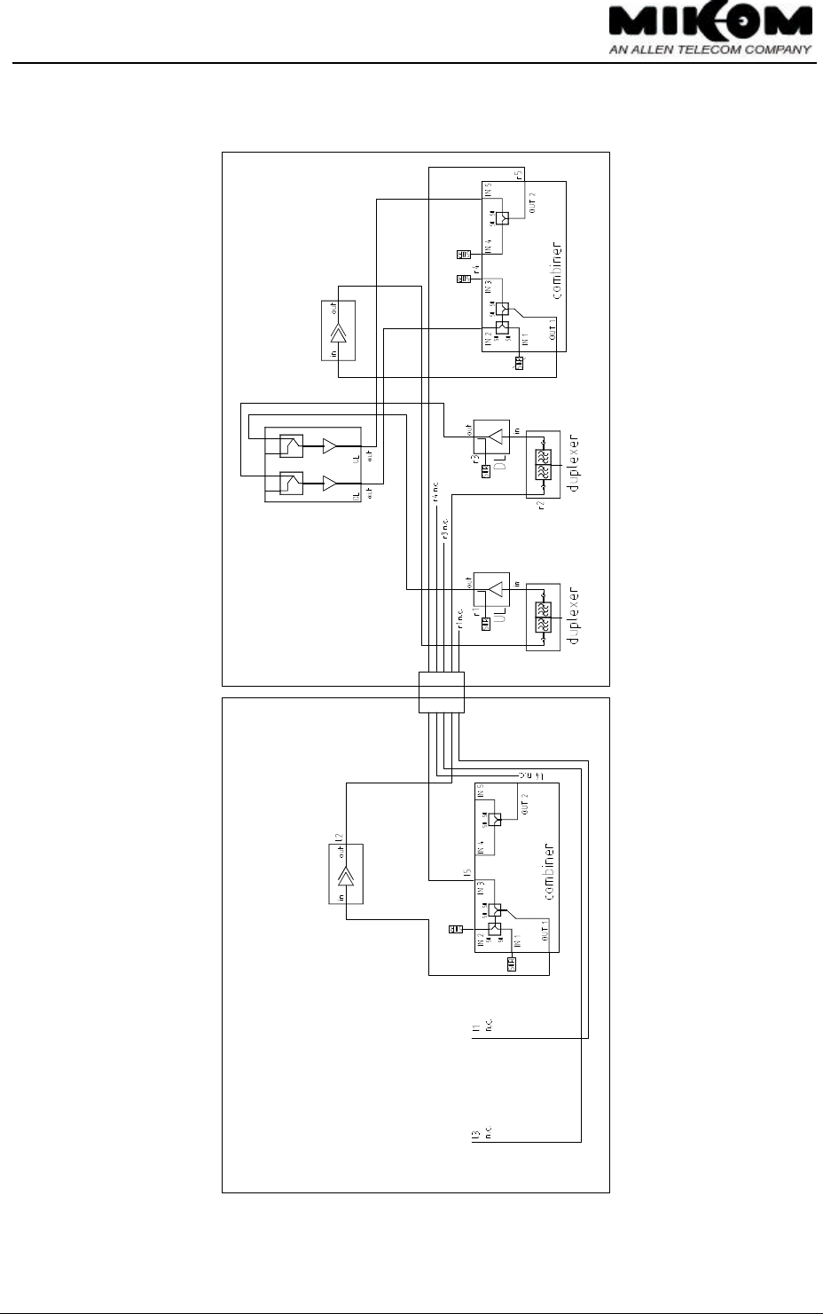
figure 9-4 Cabling of one channel Repeater............................................................................. 78
figure 9-5 Block diagram of one channel Repeater.................................................................. 79

User’s manual for Repeater MRx01B Power
M0079A1A.doc Id.-No. 151775 Page 710-March-00
LIST OF UNIT SPECIFIC ABBREVIATIONS
ALC Automatic Level Control
BCCH Broadcast Control Channel
BITE Built In Test Equipment
BTS Base Transceiver Station
DL Downlink
ETS European Telecommunication Standard
Id.-No. Ident Number
I²C-Bus Inter Integrated Circuit Bus (Philips)
LMT Local Maintenance Timeout
MR MIKOM Repeater
OMC Operation and Maintenance Centre
PABX Private Automatic Branch Exchange
PCMCIA Personal Computer Modem Communication International Association
PSTN Public Switched Telephone Network
Rev Revision
RF Radio Frequency
RLP Radio Link Protocol
RSSI Receive Signal Strength Indication
RTC Real Time Clock
SDA Serial Data Line of I²C-Bus
SCL Serial Clock Line of I²C-Bus
UL Uplink
UPS Uninterruptable Power Supply
VSWR Voltage Standing Wave Ratio
CONTENTS OF DELIVERY
Qty 1Repeater MRx01B Power
Qty 1User’s manual for Repeater MRx01B Power
Qty 1Software manual
Qty 1Set of test protocols consisting of an electrical acceptance test protocol
and a safety test protocol applying to the power supply
Qty 1Spare parts kit
Qty 1Wall mounting kit

User’s manual for Repeater MRx01B Power
M0079A1A.doc Id.-No. 151775 Page 810-March-00
HEALTH AND SAFETY WARNINGS
F Note: The electrical installation has to be performed in accordance with the safety
regulations of the local authorities. Due to safety reasons the electrical
installation must be performed by qualified personnel. The cover of this unit
should not be opened while power is applied. Subsequent installation,
commissioning and maintenance activities that require the unit to be
powered with the cover open shall only be carried out by suitably qualified
personnel.
F Note: The grounding of the Unit has to be performed by all means. A grounding
bolt is provided at the cabinet in order to connect the earth bonding cable.
F Note: The Unit is heavy-weight. Make sure that a suitable mounting surface is
used. Only adequate manpower is allowed to handle the system.
F Note: ESD precautions have to be observed! Before maintenance work use the
available grounding system to connect ESD protection measures.
F Note: Due to power dissipation the Repeater may heat up the air volume inside the
cabinet and reach a very high temperature. Therefore the Repeater must be
mounted in the vertical plane to a wall or a mast without additional
enclosure to provide sufficient ventilation. Between the housing and the wall
a minimum distance must be kept in order to provide air circulation.

User’s manual for Repeater MRx01B Power
M0079A1A.doc Id.-No. 151775 Page 910-March-00
PREAMBLE
The MRx01B Power manual ( Ordering number Id.-No. 151775 ) includes the following
parts:
Chapter 1: Introduction
Chapter 2: Functional description
Chapter 3: Functions and features
Chapter 4: Optional equipment
Chapter 5: Installation
Chapter 6: Setting to work
Chapter 7: Trouble shooting
Chapter 8: Maintenance
Chapter 9: Appendices
Chapter 10: Index
Any intervention has to be performed by authorized persons only. If you need technical
assistance with the Repeater MRx01B Power approach your local sales office or Mikom
directly.
Under consideration of all references given in this manual, the Repeater should be taken into
service without any complications and should operate trouble-free for a long time.
MIKOM GmbH
Industriering 10
86675 Buchdorf
Germany
Tel: +49 (0) 9099 6 90
Fax: +49 (0) 9099 69 31
email: sales@mikom.com
http://www.mikom.com

User’s manual for Repeater MRx01B Power
M0079A1A.doc Id.-No. 151775 Page 10 10-March-00
LIST OF INTERNATIONAL SALES OFFICES
Allen Telecom Inc. Allen Telecom Pty Ltd Forem France
30500 Bruce Industrial Parkway 6 Stuart Street Z.I. des Ebisoires
Cleveland, Ohio 44 139-3996 Padstow NSW 2211 78370 Plaisir
USA Australia France
Phone: +1 ( 440 ) 349-8400 Phone: +61 ( 2 ) 9774-4200 Phone: +33 ( 1 )30-79-15-30
FAX: +1 ( 440 ) 349-8407 FAX: +61 ( 2 ) 9774-4500 FAX: +33 ( 1 ) 30-55-55-37
FOREM S.p.A. AT Singapore AT China
Via Archimede N. 22/24 80 Marine Parade Road CITIC Building, # 11-04
20041, Agrate Brianza #19-1 Parkway Parade 19 Jianguomenwai Avenue
Milan Singapore 449269 Beijing
Italy China 100004
Phone: +39 ( 039 )605-41 Phone: +65 ( 345 ) 8022 Phone: +86 ( 10 ) 6508-3088
FAX: +39 ( 039 ) 605-4477 FAX: +65 ( 345 ) 8033 FAX: +86 ( 10 )6508-3066
AT Canada FOREM UK AT Hong Kong
1815 Ironstone Manor, # 12 Unit D
Castle Industrial Park 1603 Remington Center,
23 Hung To road,
Pickering, Ontario L1W 3W9
Canada Pear Tree Lane
Newbury, Berkshire Kwun Tong, Kowloon
Hong Kong
U.K. RG 14 2EZ
Phone: +1 ( 905 ) 839-3474 Phone: +44 ( 1635 ) 569-695 Phone: +852 ( 2389 ) 1844
FAX: +1 ( 905 ) 839-4663 FAX: +44 ( 1635 ) 569-463 FAX: +852 ( 2389 ) 4864
AT India
B-256 Ground Floor.
Chittaranjan Park
New Delhi 110019
Phone: +91 ( 11 ) 696-3918
FAX: +91 ( 11 ) 652-1648
MIKOM Switzerland
Tiergartenweg 1
4710 Balzthal
Switzerland
Phone: +41 ( 6238 ) 61260
FAX: +41 ( 6238 ) 61261
MIKOM Austria
Himbergerstr. 7/3/1
2320Schwechat
Austria
Phone: +43 ( 1 ) 706 - 3999
FAX: +43 ( 1 ) 706 - 39999
table 1-1 List of international sales offices

User’s manual for Repeater MRx01B Power
M0079A1A.doc Id.-No. 151775 Page 11 10-March-00
1 Introduction
1.1 Intended purpose
Cellular telephone systems transmit signals in two directions between base stations and
mobile telephones within the signal coverage area.
If weak signal transmissions occur within the coverage area because of indoor applications,
topological conditions or distance from the transmitter, a Repeater is used to extend
transmission range. In the downlink path the Repeater picks up the signal from a donor
antenna of an existing cell, amplifies and re-transmits it into the desired dark spot. In the
uplink direction the Repeater receives signals from mobile stations present in its coverage
area and re-transmits them to the corresponding base station.
1.2 About the MRx01B Power
This repeater bi-directionally amplifies signals between multiple mobiles and a single base
station in the frequency band. It is employed where poor topological conditions cause weak
field strengths. It can provide highly selective amplification of band segments or channels in
the frequency band.
MRx01B Power modules can be combined with other repeater modules in order to create a
multi-band repeater system. Modules operating in PCS1900, GSM1800, GSM900, or
AMPS800 bands are available. When different modules are combined a common antenna and
control interface are available.
The MRx01B Power can be set-up locally or remotely. A PCMCIA slot for modem operation
is an available option. The repeater has a large number of functions that can be monitored and
changed by the operators via a terminal emulation program or the MIKOM OMC software
platform. An easy to understand and simple to learn communication language is available to
help the operator query status reports from the repeater or to change settings.
1.3 Modular design
The MRx01B repeater’s modular design provides the flexibility in addressing present and
future system needs. Each repeater is custom configured. The main unit includes equipment
common to all systems ( cabinet, control module, power supply, mother board ). To this main
unit hardware modules are added as needed. In addition to different duplexers, a wide range
of conversion modules can be selected depending on the used network system.

User’s manual for Repeater MRx01B Power
M0079A1A.doc Id.-No. 151775 Page 12 10-March-00
1.4 Applications
The ability to customise the equipment in this way makes it possible to target the MRx01B to
specific needs. For example, the following are some of the application options available with
the MRx01B.
• Channel selective or band selective
• CDMA or TDMA
• iDEN and analog networks
• GSM900 or GSM1800
• PCS1900

User’s manual for Repeater MRx01B Power
M0079A1A.doc Id.-No. 151775 Page 13 10-March-00
2 Functional description
The Repeater MRx01B Power can be equipped from one to four bands or channels depending
on the used technology.
The following block diagram shall illustrate the configuration of the system.
*: one physical module contains UL and DL
**: with more than two modules, the amplifiers are included; both are in one housing
figure 2-1 Block diagram of MRx01B Power
2.1 General
The Repeater consists of two amplifier chains, which are connected antiparallel. The
receive path of one direction is connected to the transmit path of the other direction by a
frequency separation unit, in the following denominated as a duplexer, which combines
both signals to an antenna (see chapter 2.5).
After the duplexer the signals get to a pre-amplifier and afterwards to a conversion
module (see chapter 2.2). Then the signals are combined by the active combiner (see
chapter 2.6) and afterwards amplified by the feedforward amplifier (see chapter 2.8),
which provides the required output power.

User’s manual for Repeater MRx01B Power
M0079A1A.doc Id.-No. 151775 Page 14 10-March-00
In the feedforward amplifier a power detection measures the output power and controls
the gain. This is called Automatic Level Control (ALC) and keeps intermodulations
below an adjustable value. Finally, the signals are fed to the antenna.
2.2 Conversion modules
The task of the conversion modules is to amplify the
receive signals and to convert them into an intermediate
frequency. The signals, then, proceed a filter stage
comprising of highly selective filters, and run through a
digital controllable attenuator. The attenuation can be
set in steps of 2 dB, locally or remotely. By using the
same synthesizer frequency, that was used to convert the
signals down to intermediate frequency, the
intermediate frequency is mixed up to the original
frequency.
The synthesizer is controlled via an I²C-Bus. In case of a
breakdown in mains, gain or frequency data are non-
volatile stored in an EEPROM on board.
The yellow label on the top shows the current ALC and
CFO values related to the module.
See figure 2-2 Top view of a conversion module for an
exemplary channel or band module.
figure 2-2 Top view of a conversion module
2.3 Mother board
The function of the mother board is the communication between the conversion modules and
the control module via the I²C-Bus.
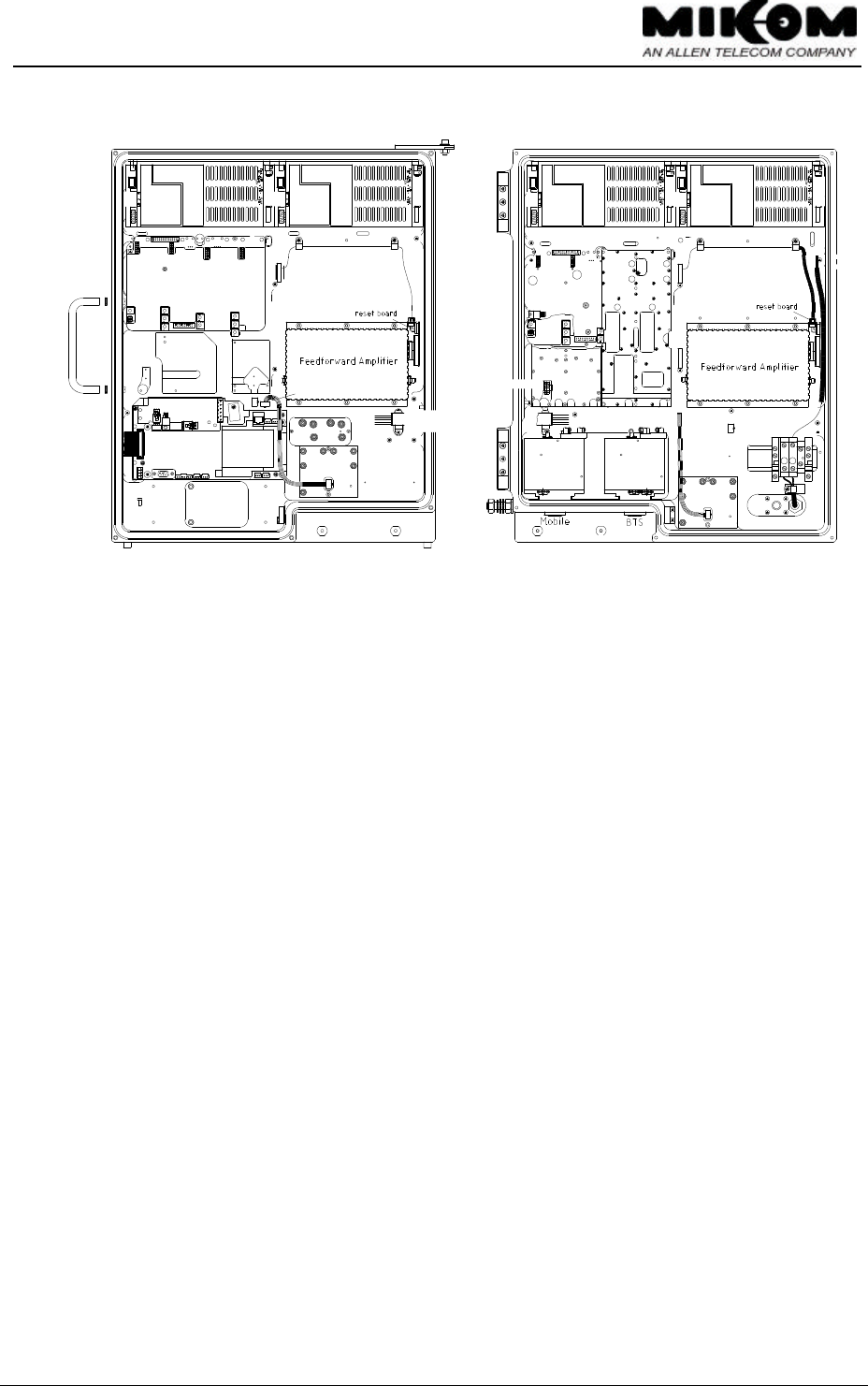
In the three and four channel configuration there is a mother board implemented on the left-
hand side and on the right-hand side of the Repeater.
In the one and two channel configuration of the Repeater there is only one mother board
mounted on the right-hand side (see figure 9-2 and figure 9-3).
Mother boards are located underneath the conversion modules.

User’s manual for Repeater MRx01B Power
M0079A1A.doc Id.-No. 151775 Page 15 10-March-00
figure 2-3 Top view of a mother board

User’s manual for Repeater MRx01B Power
M0079A1A.doc Id.-No. 151775 Page 16 10-March-00
2.4 Control module SM 2009 ( Rev. 07 and higher )
The control module SM 2009 is a DOS compatible micro computer. The whole
communication between the operator and the Repeater can be done via the control module. By
using either the RS232 interface in connection with a modem card and a mobile the Repeater
can be controlled remotely or locally by using a VT100 terminal, i.e. a PC emulating the
VT100 terminal.
Frequency and gain, power down of RF stages and ALC can be controlled and status
messages can be received remotely. In case a modem or a mobile is connected, automatic
alarm messages can be received by the operator.
The data transfer between the control module SM 2009 and the mother board is realized by
the I²C-Bus system.
The I²C-Bus concept was developed by Philips for the serial connection of integrated circuits
within one device. Two wires, SDA - serial data and SCL - serial clock, carry information
between the devices connected to the bus. Each device is recognized by a unique address and
can operate either as transmitter or receiver. The MRx01B Power I²C-Bus concept is working
with a bit rate of 1.5 kbit/s.
All MRx01B Power configuration parameters are stored in an EEPROM on the control
module if a power supply failure occurs.

User’s manual for Repeater MRx01B Power
M0079A1A.doc Id.-No. 151775 Page 17 10-March-00
Functional description:
• Second RS-232 port ( Not working yet, do not use it ) ( 01)
• Configurable for MR or MOR (Master Unit) by DIP-Switches (02 )
• External alarms or PSTN modem selection by DIP-Switches
( = replacement of the external alarm cable) ( 03 )
• 8 additional TTL inputs ( opto-coupled ) ) ( 04 ) ( Not supported by software )
• 8 additional TTL outputs (O.C. or VCC by 1K-pull-up resistor) ( 05 ) ( Not supported by
software )
• Connector for external temperature sensor ( 06 ) ( Not supported by software )
• Integrated Battery Backup Dummy Board incl. M1 Reset ( Id.-No. 143750 ).
The switch is required to activate the battery backup. If a battery backup module is used,
the switch must be set to ‘BBU’ position, otherwise there is no backup possible ( 07 ).
• Soldering point for the PC/MODEM-switch in a Master Unit ( 08 )
• Reset jumper ( 09 )
• Fixed location for labels for control module ID (Mikom), repeater software (Mikom),
board serial number, modem-driver licence ( 10 )
• RS232 interface for the connection of a PC or terminal ( local mode ) ( 11 ).

User’s manual for Repeater MRx01B Power
M0079A1A.doc Id.-No. 151775 Page 18 10-March-00
figure 2-4 Configuration of the control module ( Rev.07 and higher )
07
ON = No BBU
OFF = BBU in
use
01
03
02
09
10
05
04
06
+12 Vdc
for the
modem
05
08
I2C-
bus
Debug
interf.
Mode
switch
11
LEDs
L1, L2
LED L3

User’s manual for Repeater MRx01B Power
M0079A1A.doc Id.-No. 151775 Page 19 10-March-00
figure 2-5 Configuration of the DIP-Switches
SW501 ON OFF
4SW Download ---
3--- ---
2Modem mode Local mode
1Manual mode SW mode
DIP-Switches are at position OFF
SW802 ON OFF
4Ext. Alarm 1 PSTN (a)
3Ext. Alarm 2 PSTN (b)
2Ext. Alarm 3 PSTN (c)
1Ext. Alarm 4 PSTN (d)
SW504
ON OFF
8VCC O.C.
7VCC O.C.
6VCC O.C.
5VCC O.C.
4VCC O.C.
3VCC O.C.
2VCC O.C.
1
VCC
O.C.
SW503
ON OFF
8MOR MR
7MOR MR
6MOR MR
5MOR MR
4MR MOR
3MR MOR
2MR MOR
1MR MOR

User’s manual for Repeater MRx01B Power
M0079A1A.doc Id.-No. 151775 Page 20 10-March-00
2.5 Duplexer
The task of the duplexer is to isolate uplink from downlink, i.e. isolate transmit path from
receive path. The pass bandwidth of the duplexer is the entire width of the uplink band and
the downlink band.
Duplexer with connector to mobile side
Duplexer with connector to BTS side
figure 2-6 Top view of the duplexers
30 dB
coupler
30 dB
coupler
20 dB
coupler

User’s manual for Repeater MRx01B Power
M0079A1A.doc Id.-No. 151775 Page 21 10-March-00
2.6 Active combiner
After passing through the conversion modules, the signals will be combined by the active
combiner module in the UL and in the DL path. The active combiner will be followed by the
feedforward amplifier.
figure 2-7 Top view of the active combiner module
2.7 Measuring aids
With built-in RF probes test signals can be applied or detected. The probes provide a coupling
factor of 30 dB respectivly 20 dB. Each duplexer (uplink and downlink) is equipped with one
30 dB coupler, the UL Input duplexer additionally with a 20 dB coupler for a modem or
mobile (see chapter 4 Optional equipment). This facilitates measurements under all
operational conditions, while an antenna or a dummy load may be connected.
The position of the couplers on the duplexers is shown in figure 2-6 Top view of the
duplexers.

User’s manual for Repeater MRx01B Power
M0079A1A.doc Id.-No. 151775 Page 22 10-March-00
2.8 Feedforward amplifier
The feedforward amplifier is the final stage which enables high output power as well as a high
ICP3. One amplifier has to be installed for the uplink and one for the downlink.
figure 2-8 Top view of the feedforward amplifier
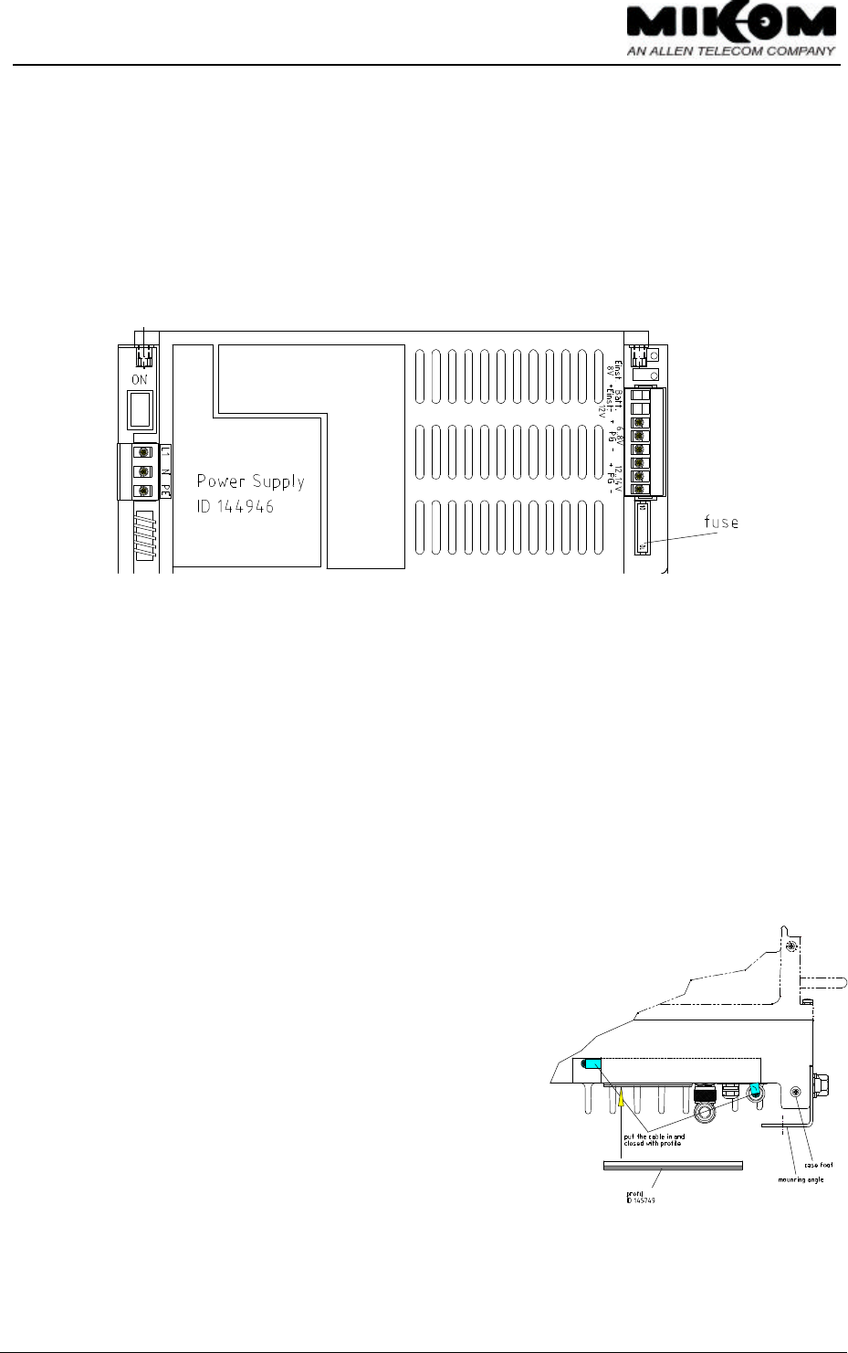
2.9 Power supply
For the MRx01B Power power four power supplies are necessary.
Power supplies are available with different mains power. See list below for available power
supplies.
• 115 VAC ± 15% / 40 - 65 Hz
• 230 VAC ± 15% / 40 - 65 Hz
• 185 - 320 VAC / 40 - 65 Hz
• 24 VDC
• 42 to 60 VDC
• 80 to 130 VDC

User’s manual for Repeater MRx01B Power
M0079A1A.doc Id.-No. 151775 Page 23 10-March-00
The following figure shows the mounting position of the power supplies in the
MRx01B Power cabinet.
figure 2-9 Mounting position of power supplies
Power supplies can be equipped with a power socket, protected with two fuses. Each power
supply can be switched on or off by means of an external switch. The modules of the Repeater
are voltage free if all power supplies are switched off. The power socket, however, is still
provided with mains power.
F Note: The service connecter must not be used for anything else but
service devices with low power consumption, e.g. a Laptop.
See figure 2-10 ON / OFF position of external switch.
figure 2-10 ON / OFF position of external switch
F Note: To switch the whole Repeater voltage free, you have to remove the
fuses F1 and F2 on the screw terminal.
The power supply is factory-set and should not be changed.

User’s manual for Repeater MRx01B Power
M0079A1A.doc Id.-No. 151775 Page 24 10-March-00
STYLEREFSEQARABICFunctions and features
3.1 Band and channel selectivity
The selectivity is achieved by highly selective filters in the IF part of the band / channel
modules.
3.2 Gain setting
The gain can be changed by introducing attenuation into the amplifier chain. By using a rotary
switch the attenuation can be adjusted locally in the range from 0 dB to 30 dB maximum in
steps of 2 dB. The attenuation can be set for the UL and DL path separately.
The rotary switches are mounted on the mother board. These switches are accessible through
the long hole between the two conversion modules (see figure 3-1 Position of rotary
switches). They can be adjusted easily by means of a small screwdriver.
figure 3-1 Position of rotary switches
For remote control an RS232 interface can be used to set the gain.
The functions of the control module may be used locally by means of a VT100 terminal or a
personal computer emulating the VT100 terminal. See also chapter 6.2, which deals with
settings of operational parameters.
long hole

User’s manual for Repeater MRx01B Power
M0079A1A.doc Id.-No. 151775 Page 25 10-March-00
3.3 ALC
In order to protect the amplifiers from overload and to prevent the system to generate spurious
emission, the amplifiers have an Automatic Level Control, designed to limit the output power
to a defined level. A part of the output power is rectified, amplified and used to control an
attenuator network.
FNote: The ALC protects the feedforward amplifier. To keep spurious emissions
below certain limits, the input power into the Repeater and the attenuation
settings of the repeater have to be considered properly.
3.4 CFO
Each conversion module has got a different offset of the set center frequency. This offset is
compensated by software settings (see software manuals).These settings are already factory
set and should only be changed when neccessary. The CFO (center frequency offset) is noted
on the label on top of the conversion module.
3.5 BITE and alarms
The Built-In TEst concept comprises the monitoring of the power supplies, the operational
currents in the conversion modules, the mother board and the remote control interface.
Furthermore, the synthesizer lock and the temperature of the Repeater are monitored.
There are three multicoloured LEDs mounted on the control module. The LED L3 indicates
the presence of electrical power of +12VDC in the Repeater. Every alarm is indicated by the
failure LEDs, L1 and L2.
For the position of the LEDs on the control module see figure 2-4 Configuration of the control
module ( Rev.07 and higher ).
All alarms can be checked by typing the ‘STATUS HIST’ command. Minor alarms with no
influence on the system can be cancelled by typing the ‘ALARMACKN’ command, e.g. ALC
active, VSWR or door open. The following print screen illustrates a possible ‘STATUS
HIST’ report
In case a hardware failure is detected the concerning hardware module has to be replaced. An
alarm can be acknowledged manually by software command. If all alarms have been
acknowledged the summary error LEDs are set back to green indication.
In case of mains power failure all data of the STATUS HIST list are lost.
The alarm can also be sent to the OMC.

User’s manual for Repeater MRx01B Power
M0079A1A.doc Id.-No. 151775 Page 26 10-March-00
If monitored via a modem automatic dialling will generate a summary alarm message. The
operator can acknowledge the alarm message by a simple ring back and after that he is able to
request a detailed status report.
The following list comprises all available alarms in the Repeater. These alarms may occur in
the STATUS HIST list.
NO. ALARM NAME ALARM ACTIVE STATUS
1AMPLIFIER BIAS FAILURE
2POWER SUPPLY 8 V FAILURE
3POWER SUPPLY 12 V FAILURE
4MAINS FAILURE
5SYNTH FAILURE
6DOOR OPEN
(7) VSWR ALARM
8ALC FAILURE
9LITHIUM BATTERY VOLTAGE LOW
10 OVERTEMP
11 INVALID LOGIN ATTEMPT
12 I2C BUS FAILURE
(13*) EXT. ALARM 1 FAILURE
(14*) EXT. ALARM 2 FAILURE
(15*) EXT. ALARM 3 FAILURE
(16*) EXT. ALARM 4 FAILURE
(17**) EXT. BATTERY OVERTEMP.
* Alarm default settings changeable by software instruction SET ALIAS.
** This alarm may be activated together with the external alarms, for instance UPS or temperature
(...) Optional alarms
table 3-2 List of all available alarms

User’s manual for Repeater MRx01B Power
M0079A1A.doc Id.-No. 151775 Page 27 10-March-00
3.5.1 Handling of alarms
As soon as the software recognises a valid alarm, a message is transmitted to the OMC.
If the repeater is operating in modem mode the alarm message ‘MIKOM> REPEATER
REQUIRES OPERATOR ATTENTION’ will be sent via modem to the terminal or the OMC.
The first of two stored telephone numbers will be dialled. In case a connection cannot be
established the second telephone number will be dialled. If this should be unsuccessful as
well, the call will be repeated after a pre-set delay. Default setting is 10 minutes. The
repetition cycle can be set by software.
The alarm check routine is searching every 10 seconds for alarms ( polling principal ). To
decide whether an alarm is a valid alarm it must remain for 5 polling cycles, only then it will
be recognized and entered in the alarm history. As soon as the alarm is valid the contacts of
the alarm relay at the mother board are set. Additionally two summary error LEDs are set to
red light to indicate an alarm. These LEDs are mounted on the control module (see figure2-4).
The entry in the alarm history describes the alarm type, the time and the date when it
occurred. It is not possible to locate the defect module, only the reason.
Entered alarms in the alarm list can be acknowledged by simply ringing back and typing a
software command. It is also possible to acknowledge alarms in local mode. Acknowledged
alarms will be indicated with ‘-ACK’. As soon as the alarms have been acknowledged the
alarm relay will be reset and the summary LEDs switch back to green light again. To switch
off external alarm indication devices can only be done by acknowledging the alarms.
If the same alarm cause occurs again, it will be entered in the alarm list ( not acknowledged )
after 5 polling cycles. An already acknowledged alarm must have an interruption of at least 5
polling cycles to be detected by the software as a new alarm. Only then the alarm will be
entered again in the alarm history ( not acknowledged ).
All data of the alarm history are lost, if the repeater will be booted by software or if the
repeater was disconnected from mains. There exists no command to delete the alarm history,
to boot the repeater is the only way to clear the alarm history.
The alarm list has a capacity of about 50 alarm entries. If more alarms occur the oldest
message will be deleted first ( FIFO principal ).
In the software exists no alarm clear message, i.e., the repeater sends no message to the
terminal or the OMC if an alarm has disappeared by itself.

User’s manual for Repeater MRx01B Power
M0079A1A.doc Id.-No. 151775 Page 28 10-March-00
3.5.2 Status report
Two instructions enable the operator to gain knowledge of the system status. Typing the GET
command will be responded by a listing of all settings of the Repeater. STATUS will be
responded by a listing of all individual status information.
The complete listing of the dialogue language with the processor of the control module
including the instructions to and the messages from the system is available as a separate
manual.
3.5.3 Severity levels
This parameter defines five severity levels for an alarm and can be set in the alarm mask
(detailed description in the software manual). The severity levels indicate how the capability
of the managed object has been affected.
The levels are described below and are ordered from most severe to least severe:
- Critical: The critical severity level indicates that a service affecting condition has
occurred and an immediate corrective action is required to restore the
capability of the managed object.
- Major: The major severity level indicates that a service affecting condition has
developed and an urgent corrective action is required. Such a severity can be
reported, for example, when there is a severe degradation in the capability of
the managed object and its full capability must be restored.
- Minor: The minor severity level indicates the existence of a non-service affecting fault
condition and that corrective actions should be taken in order to prevent a more
serious failure. Such a severity can be reported, for example, when the detected
alarm condition is not currently degrading the capability of the managed object.
- Warning: The warning severity level indicates the detection of a potential or impending
service affecting failure before any significant effect has been caused. Action
should be taken to further diagnose and correction of the problem shall prevent
a more serious service affecting failure.
- Disable: The disable severity level indicates that the detected failure has no influence on
the system and shall not be sent to the terminal.

User’s manual for Repeater MRx01B Power
M0079A1A.doc Id.-No. 151775 Page 29 10-March-00
4 Optional equipment
The following modules can be integrated as an option.
4.1 VSWR module
VSWR signal is continually measured by a special VSWR module. An alarm can be given for
VSWR < 10 dB.
4.2 External alarms
With the following option it is possible to monitor 4 external alarms via the Repeater
software. Hence the status of the connected device, e.g. UPS, can be monitored.
The contacts of the alarms can be accessed at clamps on the main board (right-hand side of
the Repeater).
The electrical connection has to be
as follows:
External alarm 4 (high active)
External alarm 3 (high active)
External alarm 2 (low acitve)
External alarm 1 (low acitve)
Ground
figure 4-1 Clamps for external alarms
Configuration: 5 V / 0.5 mA max. for open collector applications.
All external alarms are normally high without connection. Due to the fact that the external
alarms 3 and 4 are high active, they have to be connected to ground to prevent an alarm
message.

User’s manual for Repeater MRx01B Power
M0079A1A.doc Id.-No. 151775 Page 30 10-March-00
The factory-set response after typing the software command STATUS EXTALARM is for
instance „EXT. ALARM 1 OK“, if the alarm is not active and „EXT. ALARM 1 FAILURE“,
if the alarm is active.
The name for each external alarm and the name for the alarm message can be defined by the
customer with the corresponding software command.
The following example describes the response for the external alarms to control an UPS.
Example: External alarms if the UPS is active
EXTERNAL ALARM STATUS
UPS alarm active
Battery low !
UPS door open
Battery door open
or External alarms if the UPS is not active
EXTERNAL ALARM STATUS
UPS not active
Battery OK
UPS door closed
Battery door closed
If the optional external alarms are part of the delivery, they will be switched on by a software
release, i.e. they are distributed via the software.
4.3 Modem
The Repeater can be equipped with a modem for the remote control of the repeater. This
allows the operator to change settings and querry information of the Repeater remotely.
See figure 4-2 for the optional modem kit. This kit is available with and without modem.
For information referring to the optional modem see chapter 4.4 and chapter 6.2.4.

User’s manual for Repeater MRx01B Power
M0079A1A.doc Id.-No. 151775 Page 31 10-March-00
External RF
PCMCIA card
Modem
figure 4-2 Modem kit
4.4 External RF output
An external output is available at the
outside of the housing as an option. This
enables e.g. the connection of an
integrated modem or mobile to an
additional external antenna or it might be
used for UL diversity. The connector type
is N female.
figure 4-3 Position of external RF output

User’s manual for Repeater MRx01B Power
M0079A1A.doc Id.-No. 151775 Page 32 10-March-00
4.5 Battery backup module
If backup is required only for the control module and the modem, low capacity batteries are
available to operate controller and modem for at least ten minutes under normal
environmental conditions.
Battery backup is provided for the control module to transmit alarm information in case of
power failure. The battery type is a NiCd 8.4V/300 mAh. The battery backup is sufficient
enough to support multiple dial out attempts via modem in case of ‘system engaged’ or other
communication problems for at least ten minutes under normal environmental conditions.
F Note: This battery backup module is provided for the control module only.
The batteries are protected from deep discharge by use of a low voltage disconnect circuit. A
local switch is provided to disconnect the battery backup system during maintenance to ensure
that all circuits are voltage-free.
The switch is located on the battery backup module.
Switch ON (default) OFF
Battery backup active Battery backup not active
The module is directly plugged into the control module. During the charging process a green
LED V7 on the module indicates, that the battery is charged at the moment. After finishing
the process the LED V7 will be switched off.
The batteries are mounted underneath the modem mounting plate (see following figure).
figure 4-4 Mounting position of batteries
Batteries

User’s manual for Repeater MRx01B Power
M0079A1A.doc Id.-No. 151775 Page 33 10-March-00
5 Installation
BTS
RX Uplink
TX Downlink
Mobile
TX Uplink
RX Downlink
RX Downlink
TX Uplink
TX Downlink
RX Uplink
to/from
Mobile Stations
to/from
BTS
Repeater System
figure 5-1 System description

User’s manual for Repeater MRx01B Power
M0079A1A.doc Id.-No. 151775 Page 34 10-March-00
5.1 Mechanical installation
F Note: Due to power dissipation the Repeater may heat up the air volume inside
the cabinet and reach a very high temperature. Therefore it is necessary to mount the
Repeater in the vertical plane to a wall or a mast without additional enclosure to provide
sufficient ventilation. Between the housing and the wall a minimum distance must be
kept in order to provide air circulation.
The Repeater must be mounted in the
vertical plane to a wall or a mast, which
means the connectors have to be located at
the bottom.
Use the mounting brackets, which are part
of the delivery. This will guarantee a
minimum distance between the wall and the
Repeater housing. The cabinet must be
fixed to the wall (brackets) with four
screws.
Check the correspondence of the wall
mounting kit and the wall.
figure 5-2 Top view and clearance distance
F Note: The weight of the MRx01B Power is approximately 47 kg in standard
configuration.

User’s manual for Repeater MRx01B Power
M0079A1A.doc Id.-No. 151775 Page 35 10-March-00
Mounting procedure:
Dismount the mounting brackets first. They are screwed tight to the housing with four socket
head cap screws M8.0x16 (see figure below) and two tire bolts.
figure 5-3 Wall mounting brackets
Use the wall mounting sheet to mark the position of the drilling holes. Drill 4 holes and screw
the mounting brackets to the wall. Attach the upper two socket head cap screws M8.0x16 to
the Repeater housing. Now it is possible to hang the Repeater into the mounting brackets. Fix
then the lower two socket head cap screws M8.0x16 and the 2 tire bolts.
F Note: The unit is heavy-weight. Make sure that a suitable mounting surface is
used. Only adequate manpower is allowed to handle the system.
The installation position of the Repeater follows from the installation drawing (see figure 9-1
Installation drawing of the Repeater). Make sure that there is free access to the electrical
connections. The allowed bending radius of the connected cables must not be exceeded.
Furthermore the Repeater shall be mounted in a way that there is free access to the individual
units inside the cabinet, while the door of the Repeater is open.
Therefore keep a clearance distance of 1 m on each side, on top and below the unit.
See figure 5-2 Top view and clearance distance.
mounting brackets

User’s manual for Repeater MRx01B Power
M0079A1A.doc Id.-No. 151775 Page 36 10-March-00
5.2 Electrical installation
FNote: ESD precautions have to be observed! Before working inside the cabinet
use the available grounding system to connect ESD protection measures.
The electrical installation has to be performed in accordance with the
safety regulations of the local authorities. Due to safety reasons the
electrical installation must be performed by qualified personnel. The
cover of this unit should not be opened while power is applied.
Subsequent installation, commissioning and maintenance activities that
require the unit to be powered with the cover open shall only be carried
out by suitably qualified personnel
5.2.1 Grounding
Grounding has to be performed by all means. Therefore a grounding bolt is provided at the
cabinet. An earth bonding cable will be mounted in the factory and will be delivered with the
unit. Don’t use the grounding screw for connecting external devices.
The complete grounding kit is part of the delivery schedule, see figure 5-4 Grounding kit.
figure 5-4 Grounding kit

User’s manual for Repeater MRx01B Power
M0079A1A.doc Id.-No. 151775 Page 37 10-March-00
5.2.2 Power connection
A firmly installed mains cable 3 x 1.5 mm² is used, which is fed into the housing through a
watertight cable gland. Due to safety reasons the power supply lead has to be protected by two
8 A fuses. Inside the Repeater, mains are connected to a screw terminal.
See figure 5-5 Screw terminal for the position of the two 8 A fuses.
Before connecting electrical power to the Repeater grounding has to be performed. The
Repeater is equipped with a firmly connected power cord 3 x 1.5 mm². Due to safety reasons
the power supply lead of the Repeater has to be protected with two 8 A fuses, type MT. In the
event the length of the power cord should not be sufficient it can be replaced by a longer
cable.
figure 5-5 Screw terminal
F Note: If the power supply lead has to be replaced use a cable of the same quality.
5.2.3 Connection of the antenna cables
The Repeater has two female antenna connectors 7/16 (optionally N). For mounting the
corresponding cable connectors we recommend to refer to the applicable documentation of
the respective connector manufacturer. The bending radius of the antenna cables must remain
within its specification. This will warrant proper operation of the system; otherwise changes
in the electrical behaviour of the cable might occur which could cause malfunction of the
Repeater system.
Fuses F1 and F2

User’s manual for Repeater MRx01B Power
M0079A1A.doc Id.-No. 151775 Page 38 10-March-00
F Note: It is sufficient to fix the 7/16 antenna connectors hand-screwed.
Any use of a tool (like tongs) might cause damage to the connectors and
thus lead to malfunctioning of the Repeater.
There are two 7/16 female antenna connectors at the outside of the housing accessible on the
connector panel (see following figure).
figure 5-6 Connector panel layout
The 7/16 TX-downlink connector should be connected to the antenna system for the
communication with the mobile units.
Mobile
The 7/16 TX-uplink connector should be connected to the antenna system for the
communication with the Base Transceiver Station.
BTS
As an option a 7/16 - N adapter is available.

User’s manual for Repeater MRx01B Power
M0079A1A.doc Id.-No. 151775 Page 39 10-March-00
6 Setting to work
6.1 Preparation
F Note: It is not allowed to operate the Repeater without termination of the
antenna connections! The termination can be performed by the antenna
connection as well as a dummy load or the 50-Ohm-terminated connection
of a measuring instrument.
Before bringing the Repeater system into service it is necessary to measure the antenna
isolation. The Repeater system has its maximum available gain when the attenuation is set to
zero. On site the maximum allowed gain is 15 dB less than the value of the antenna isolation.
In order to check the function of the Repeater system on site it is advisable to operate the
Repeater system with 50 Ohm termination. This makes it possible to set the necessary gain
and to test the set value without the necessity of transmitting on air.
In order to perform settings the Repeater has to be opened. Please, ensure not to damage the
seals, which are on the modules situated on the conversion modules inside of the Repeater,
because this would lead to risk the success of warranty claims.
After taking the Repeater into service following signals occur during the boot process.
Internal
LED L1 Internal
LED L2 Internal
LED L3 Cause
green red green red green
- - - - ll Power on state,
Software boot starts
ll Flashes
red short
time
ll Flashes red
short time ll Software boot starts
ll ll ll Software is running
table 6-1 LED indication
6.2 Setting of operational parameters
Attenuation of the Repeater can be set manually by means of rotary switches, frequency can
be set locally or remotely.
There are three different possibilities to set the operational parameters:
-manual settings by means of rotary switches
-local control via RS232 interface and PC
-remote control via modem

User’s manual for Repeater MRx01B Power
M0079A1A.doc Id.-No. 151775 Page 40 10-March-00
6.2.1 Manual settings by means of rotary switches
The manual mode allows the user to set the required channels and attenuation by means of
rotary switches. With a small screwdriver, which fits through the long holes of the conversion
modules, the values can be adjusted by turning the switch carefully to the desired position.
F Note: To enable manual settings of parameters
the mode switch (DIP-Switch 1) has to be
changed from OFF to ON.
The DIP-Switch is mounted on the control module, located on the left side of the Repeater.
RAM/RTC Battery
DIP-Switch 1
and 2
figure 6-2 Position of the DIP-Switch 1 and 2 and RAM/RTC battery
6.2.2 Setting of the attenuation
The gain can be set by introducing attenuation into the amplifier chain. By using a rotary
switch the attenuation can be adjusted locally in the range from 0 dB to 30 dB maximum in
steps of 2 dB. The attenuation can be set for the UL and DL path separately.
The rotary switches are mounted on the mother board. These switches are accessible through
the long hole between the two conversion modules (see figure 6-3 Position of the rotary
switches). They can be adjusted easily by means of a small screwdriver.
RS 232 port
connector

User’s manual for Repeater MRx01B Power
M0079A1A.doc Id.-No. 151775 Page 41 10-March-00
figure 6-3 Position of the rotary switches
A label on the conversion module, located next to the rotary switch, illustrates the usage of
the rotary switch.
figure 6-4 Rotary switches and label
F Note: Gain can be changed independently for the uplink and downlink path.
long hole

User’s manual for Repeater MRx01B Power
M0079A1A.doc Id.-No. 151775 Page 42 10-March-00
DIP-Switch configuration:
DIP-Switch ON OFF (default values)
1manual auto
2remote mode local mode
3n.c. n.c.
4software download
manually controlled software download
controlled by software
table 6-5 DIP-switch configuration
6.2.3 Settings via personal computer as terminal
Instead of manually setting operational parameters via rotary switches it is also possible to use
the functions of the control module. The local mode for settings via PC has to be set.
Therefore the DIP-Switch 2 has to be at position OFF.
See figure 6-2 for
postition of DIP switch 2
A VT100 terminal or a PC with VT100 emulation can be connected to the control module
SM2009 by a standard RS232 cable, if necessary in connection with an adapter 9 to 25.
See figure 6-2 for position of the RS 232 connector.
Cable Connections PC - Control Module SM2009
9 contact SUB - D- Connector 9 contact SUB - D- Connector
male male
PC RS 232
MRx01B Power
PIN PIN
1 ) ( 1
2 ) ( 2
3 ) ( 3
4 ) ( 4
5 ) ( 5
6 ) ( 6
7 ) ( 7
8 ) ( 8
9 ) ( 9
DIP-Switch 2

User’s manual for Repeater MRx01B Power
M0079A1A.doc Id.-No. 151775 Page 43 10-March-00
The following communication mode between control module and VT100 is set initially.
9600 baud - 8 bit - no parity -1 stopbit
These settings can only be changed after connection of the terminal. If all wanted settings
have been initialized and a modem has to be used it will be recommended to check whether
the settings comply with the capabilities of the modem and the line. Modifications are
possible by software commands.
F Note: Settings on the Repeater can be performed after the following procedure
only.
After connecting the PC to the Repeater, following procedure is necessary to get access to the
program.
MIKOM REPEATER MRx01B Power - SM2009 - SW: REP1007V1.11
ENTER <.> <CR> TO LOGIN
1. Step: Type the two keys ( . ) FULLSTOP and (↵) ENTER
You have to type the keys:
2. Step: ENTER USER ID
You have to enter: UserID1 ↵
F Note: The input is case sensitive, no blanks. After three mistrial follows
disconnection.
3. Step: ENTER PASSWORD
You have to enter: P-word1 ↵
F Note: The input is case sensitive, no blanks. After three mistrials follows
disconnection.
↵↵
.

User’s manual for Repeater MRx01B Power
M0079A1A.doc Id.-No. 151775 Page 44 10-March-00
6.2.4 Settings via modem
The Repeater can be equipped with a modem. If so, the repeater will be delivered with a
preset init string. This init string was used for internal tests. In case no connection can be
established check the local conditions and change the init string if necessary.
The following list contains the description of the AT commands:
&F Sets modem to factory configuration
E0 Echo OFF
S0=1 Auto answer ON; the GSM module / M1 modem goes off-
hook after the first ringing signal.
S7=60 Waiting time for connection after dialing; permissible values
are from 0 ... 60.
B13 Setting to 9600 bps asynchronous mode
\ N6 Auto reliable operation
\ N0 Standard operation, no error correction
+CBST=7,0,1 Set bearer service type to 9600 bps. Non-transparent
connection (uses RLP)
X3 Not waiting for dial tone; usually used at PABX.
*P1 Switch ON phone
&K4 Enables XON / XOFF flow control
table 6-6 List of AT commands

User’s manual for Repeater MRx01B Power
M0079A1A.doc Id.-No. 151775 Page 45 10-March-00
7 Trouble shooting
All Repeaters are factory-set to „Power down disabled“ status, this means the channel group
is active. To switch off the channel group use the software command „PWRDOWN enabled“.
(You’ll find a detailed description in the software manual.)
7.1 Error indication
l = LED on
- = LED off
Internal
LED L1 Internal
LED L2 Internal
LED L3 Cause
green red green red green
- - - - -
No power.
Check presence of power at
the input; replace fuse
according to chapter 8.3,
check battery backup module
l l l Indicates a
summary failure
7.2 Alarm monitoring with the STATUS HIST command
Check alarms with ‘status hist‘ command.
1. If a hardware module is damaged, replace corresponding hardware module.
2. Minor alarms with no influence on the system can be cancelled by confirming the alarm
with the ‘alarmackn’ command, e.g., ALC active, VSWR, RSSI or DOOR OPEN.
3. If all alarms have been acknowledged the summary error LEDs will be set back to green
indication.
4. In case of mains power failure the contents of the actual STATUS HIST list is lost.
For a complete list of available alarms, see table 3-2 List of all available alarms

User’s manual for Repeater MRx01B Power
M0079A1A.doc Id.-No. 151775 Page 46 10-March-00
7.3 Power supply
The output voltage is factory set and should not be changed.
7.4 General remarks
• After a software download previous user settings (data default values) might be
overwritten. Before you start a software download save the set values for:
- centre frequency
- attenuation
- ALC threshold
- CFO
• If an ALC or AMPBIAS alarm occurs during installation or commissioning an user error
might be the cause, due to wrong measurements.

User’s manual for Repeater MRx01B Power
M0079A1A.doc Id.-No. 151775 Page 47 10-March-00
8 Maintenance
8.1 General
F Note: The Repeater does not require preventative maintenance measures.
It is only recommended to replace the RAM/RTC battery after three years usage as a
prophylactic measure. The nominal lifetime of these batteries is five years under normal
environmental conditions.
In the event of a malfunction it is advantageous to check the status of the antenna systems as
well as the continuity of the entire cabling including connectors, before replacing the
modules.
Maintenance on the Repeater shall be performed only by replacing modules. Soldering on
printed circuit boards shall be avoided. In order to sustain warranty take care not to damage
unintentionally the seals on the modules.
The spare part list, consequently, contains only units, which can be replaced without tuning or
complex soldering work.
F Note: Defect parts should be replaced by original parts from MIKOM only.
All interventions inside the housing are at one’s own risk.
During maintenance ensure that the Repeater has been disconnected from
mains.
Open the lock at the connector panel and remove the cover plate. To open the housing use a
Torx key and unscrew the four Torx screws.
8.2 Replacement of the fuses (mains)
The mains cable is protected with two fuses F1 and F2 8A type MT. They are accessible
inside of the Repeater at the fuse terminal on the right side. Open the screw plug for the fuse
and take out the fuse.
F Note: Use only fuses of the same type and the same rating when replacing!
See figure 5-5 Screw terminal for position of the 8A fuses.

User’s manual for Repeater MRx01B Power
M0079A1A.doc Id.-No. 151775 Page 48 10-March-00
8.3 Replacement of the power supply fuse
Each power supply is protected with a fuse 10 A / 35 V. The fuse is mounted outside of the
power supply housing. (see following figure)
F Note: Use only fuses of the same type and the same rating when replacing!
figure 8-1 Position of power supply fuse
8.4 Replacement of the mains cable
The Repeater will be delivered with a firmly connected mains cable.
In case the length of the delivered mains cable should not be sufficient or in case of a defect,
the mains cable can be replaced.
F Note: Disconnect Repeater from mains first.
Remove the clamping profile at the outside of the housing
by pulling at the mains cable. Open the PG9 threaded joint
with a spanner size 17. Inside the housing remove the
plastic cable clip by unscrewing the tallow-drop screw.
Then use a small screwdriver and open the screws of the
fuse terminal.

User’s manual for Repeater MRx01B Power
M0079A1A.doc Id.-No. 151775 Page 49 10-March-00
Now the mains cable can be removed by pulling at the
cable. For the installation of a new cable strip the
isolation of a new cable to the length of 18 cm. Put the
screw of the cable gland over the cable then use the
joint rubber and pull it over the cable. This will
guarantee a tight connection. Now insert the cable.
Inside the housing pull an insulated tube with the length
of 8 cm over the wires. Now close the PG9 threaded
joint. Screw the wires to the fuse terminal. Fix the cable
with the plastic cable clip.
Put the cable in the guide shaft and close it with the clamping profile.
8.5 Replacement of the RAM / RTC battery
The RAM / RTC battery of the control module has to be replaced in case of memory loss or
as a preventive measure after approximately three years usage. The RAM / RTC battery is
mounted on the left-hand side of the Repeater on the control module.
REFIf the optional battery backup module and the optional mobile kit are installed, the battery
backup board and the modem-reset board, which are plugged into the control module have to
be removed first.
Take off the Lithium battery by means of a small screwdriver, placed between the battery and
the battery socket.
The type of the battery is CR 2450 Lithium 3 V / 500mAh, manufacturer is RENATA.
After replacement of the RAM battery, the control module has its basic settings, date and time
have to be set to the actual value.
For position of the RAM/RTC battery see figure 6-2
EMBED
F Note: Before replacing the battery, disconnect the Repeater from mains.
Observe the rules for changing Lithium batteries. Wrong connection or
treatment may result in bursting of the battery and dissemination of
hazardous substances.
Don’t try to charge this battery

User’s manual for Repeater MRx01B Power
M0079A1A.doc Id.-No. 151775 Page 50 10-March-00
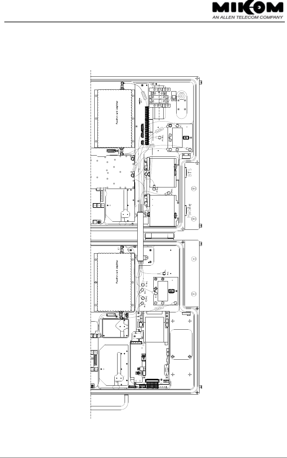
8.6 Replacement of the duplexers
This description is valid for the one channel configuration of the Repeater only. For different
configurations refer to the assembly guide for the Repeater.
Remove the semi-rigid cables which connect the UL output and the DL output with the
feedforward amplifier by loosing the SMA connectors. Use a torque wrench. Then remove the
semi-rigid cables from the conversion modules. (BTS side marked with a red spot).
It is recommended not to remove the amplifier which is mounted on the backside of the
duplexer. A new duplexer will be delivered with a premounted amplifier.
Unscrew the four counter sunk screws M3 at the connector panel of the Repeater. See figure
5-6 Connector panel layout.
For mounting the duplexers proceed in reverse order.
The cables have to be connected like shown in figure 9-4 Cabling of one channel Repeater.
8.7 Replacement of conversion modules
To remove the conversion modules, disconnect the SMA connectors by means of a torque
wrench.
If the Repeater is equipped with iDEN channel modules, the external filter on top of the
modules must be dismounted beforehands. The external filter box covers two of the socket
head cap screws the iDEN module is fixed with.

User’s manual for Repeater MRx01B Power
M0079A1A.doc Id.-No. 151775 Page 51 10-March-00
Unscrew the socket head cap screw on top
of the external filter box, remove the box Socket head
carefully and continue the dismounting cap screw
procedure like described below.
figure 8-2 External filter at iDEN module
Unscrew six socket head cap screws by means of a hex socket key.
Pull carefully by means of the mounting strap, fixed on the module and take off the modules.
Connecting the
conversion modules
depends on the number of
channels your Repeater is
equipped with, i.e. with one up
to four (iDEN: six) channels.
Each configuration has got a
different cabling. See assembly
guide of the channel modification
kits for the cabling and functional
description of the conversion
modules dependent on the
configuration of the Repeater
figure 8-3 Top view of a conversion module
*: iDEN modules are equipped with mounting straps on the left and on the right side.
Socket head cap
screws Mounting
strap *

User’s manual for Repeater MRx01B Power
M0079A1A.doc Id.-No. 151775 Page 52 10-March-00
For the exchange of a conversion module or the installation
of a new conversion module, the slave address of the synthesizer
has to be set. This can be done by means of hex-coded
rotary switches mounted on the lower side of the modules
Hex-coded rotary switch for UL
Hex-coded rotary switch for DL
The synthesizer address must be set like shown
in the following table:
Conversion module Address
UL DL
Channel one 0 1
Channel two 2 3
Channel three 4 5
Channel four 6 7
figure 8-4 Position of hex-coded
rotary switches
table 8-5 Address of synthesizer
Conversion modules with variable bandwidth have four rotary switches. The synthesizer
address must be set like shown in the following table:
Filter 1 Filter 2
UL DL UL DL
Channl one 0 1 0 1
Channel two 2 3 2 3
Channel three 4 5 4 5
Channel four 6 7 6 7
table 8-6 Adress of synthesizer, conversion modules
with variable bandwidth
figure 8-7 Position of hex-coded rotary switches
at variable bandwidth module
Further instructions for band selective modules with variable bandwith can be found in a
separate document.

User’s manual for Repeater MRx01B Power
M0079A1A.doc Id.-No. 151775 Page 53 10-March-00
8.8 Replacement of the control module SM 2009
The control module is a Printed Circuit Board situated on the left-hand side of the Repeater.
Disconnect the DC cable from power supply.
Disconnect the flat cable.
Remove the Tyrap which is fixed to the control module.
Disconnect the RS232 cable from the modem if the Repeater is equipped with a modem.
Dismount the battery backup board, if the battery backup module is installed.
Take off the whole control module completely with mounting plate by unscrewing four tallow
drop screws M4.
For mounting proceed in reverse order.
Position of the control module in the Repeater is illustrated in REFthe following figure.
figure 8-8 Position of control module
Control module

User’s manual for Repeater MRx01B Power
M0079A1A.doc Id.-No. 151775 Page 54 10-March-00
8.9 Replacement of power supplies
FNote: Ensure that mains are disconnected.
Open the Repeater to get access to the devices.
Remove all connected cables from the clamps of the power supply. Try to loose the plug by
means of a small screwdriver placed between the plug and socket.
ON
Fuse 10A / 35V
figure 8-9 Power supply
The power supply is fixed to the Repeater housing by means of two special nuts M4. After
loosen the screws the power supply can be removed. To open these screws a special key with
a spherical head is required. Place a small screwdriver between the Repeater housing and the
power supply to loose the device.
figure 8-10 Position of special-nut M4
F Note: Don’t forget to put heat conducting paste on the mounting side for
installation of a new power supply. Use the conducting paste, which is
included in the spare parts kit.

User’s manual for Repeater MRx01B Power
M0079A1A.doc Id.-No. 151775 Page 55 10-March-00
8.10 Replacement of active combiner modules
The active combiner modules are mounted on both sides of the Repeater.
Disconnect all SMA connectors by means of a torque wrench.
Unscrew two counter sunk screws M3x20mm.
figure 8-11 Position of counter sunk screws on active combiner
The cabling of the active combiners depends on the configuration of the Repeater. For correct
connections see assembly guide for the channel modification kits.
8.11 Replacement of feedforward amplifier
There is one feedforward amplifier mounted on each side of the Repeater.
A special reset board is connected to the 15 pole SUB-D connector. (See figure 8-12 Position
of feedforward amplifier reset board)
This reset board is part of the feedforward amplifier. A new feedforward amplifier will be
delivered with a premounted reset board.
counter
sunk
screws

User’s manual for Repeater MRx01B Power
M0079A1A.doc Id.-No. 151775 Page 56 10-March-00
figure 8-12 Position of feedforward amplifier reset board
Remove the ready made cable which is plugged to the 15 pole SUB-D connector of the reset
board. Unscrew the screw clip first.
Unscrew the 6 socket head cap screws.
The SMA connectors can be removed only after dismounting the amplifier.
The position of the feedforward amplifiers is illustrated in figure 8-13 Position of feedforward
amplifiers.
Reset board

User’s manual for Repeater MRx01B Power
M0079A1A.doc Id.-No. 151775 Page 57 10-March-00
figure 8-13 Position of feedforward amplifiers

User’s manual for Repeater MRx01B Power
M0079A1A.doc Id.-No. 151775 Page 58 10-March-00
9 Appendices
9.1 Repeater specifications
ELECTRICAL SPECIFICATIONS MR301B Power
Id-No: 150047
Frequency range & bandwidth Up to 25 MHz in GSM900
Frequency selectivity;
Gain outside operating band ± 400 kHz: 50 dB max.; ± 600 kHz: 40 dB max.
± 1000 kHz: 35 dB max.; ± 5000 kHz: 25 dB max.
Gain (nominal) 85 dB
Gain adjust 0 to 30 dB in steps of 2 dB
Gain variation over frequ. and temp. ± 2.5 dB (± 3.5 dB at extreme temperature range)*
Tolerance per step ± 0.5 dB from 0 to 6 dB attenuation
± 2.0 dB from 8 to 30 dB attenuation
Delay 6 µsec.max.
Delayripple 150 ns
30 dBm (@ 25° C)
Output power ALC limit (test case)
at 2 equal carriers +27 dBm / +27 dBm*
ICP3 58 dBm @ max. gain
ALC limit tolerance of frequency
and temperature ±3 dB
ALC overload reaction time delay 3 msec. (others available on request)
Noise figure 6 dB @ max. gain;
8 dB @ 75 dB gain;
Test coupler 30 dB
Return loss (@ 25° C amb. temp.) 15 dB
Power Supply 230 Vac ± 15% / 40.-.65 Hz;
Option:24 Vdc or 42 - 60 Vdc or 80 – 130 Vdc,
115 Vac ± 15% / 40.-.65 Hz or 185 – 320 Vac /
40 - 65 Hz
Power consumption (1 module) 160 Watts
Remote control interface SM 2009
Connectors 7/16 female; N as an option
Environmental and Safety see Environmental and Safety leaflet for MIKOM
outdoor cell enhancers
Built in test equipment Current monitor • synthesizer lock monitor •
temperature • ALC active
Alarm forwarding Potential free relay contact and automatic alarm
call via RS232 or PCMCIA interface
Control functions Gain • Center frequency • ALC threshold
* Normal temp.range + 5° C to + 40°C
Extreme temp.range- 33° C to + 50° C

User’s manual for Repeater MRx01B Power
M0079A1A.doc Id.-No. 151775 Page 59 10-March-00
ELECTRICAL SPECIFICATIONS MR401B Power
Frequency range Id-No:150043
150044
150045
150046
UL:1710-1740 MHz; DL:1805-1835 MHz
UL:1721,7-1751,7MHz; DL:1816,7-1846,7 MHz
UL:1730-1760 MHz; DL:1825-1855 MHz
UL:1751,5-1784,9 MHz; DL:1846,5-1879,9 MHz
Bandwith Up to 35 MHz
Frequency selectivity;
Gain outside operating band ± 400 kHz: 50 dB max.; ± 600 kHz: 40 dB max.
± 1000 kHz: 35 dB max.; ± 5000 kHz: 25 dB max.
Gain (nominal) 85 dB
Gain adjust 0 to 30 dB in steps of 2 dB
Gain variation over frequ. and temp. ± 2.5 dB (± 3.5 dB at extreme temperature range)*
Tolerance per step ± 0.5 dB from 0 to 6 dB attenuation
± 2.0 dB from 8 to 30 dB attenuation
Delay 6 µsec.max.
Delayripple 150 ns
30 dBm (@ 25° C)
Output power ALC limit (test case)
at 2 equal carriers +27,5 dBm / +27,5 dBm*
ICP3 57 dBm @ max. gain
ALC limit tolerance of frequency
and temperature ±3 dB
ALC overload reaction time delay 3 msec. (others available on request)
Noise figure 6 dB @ max. gain;
8 dB @ 75 dB gain;
Test coupler 30 dB
Return loss (@ 25° C amb. temp.) 15 dB
Power Supply 230 Vac ± 15% / 40.-.65 Hz;
Option:24 Vdc or 42 - 60 Vdc or 80 – 130 Vdc,
115 Vac ± 15% / 40.-.65 Hz or 185 – 320 Vac /
40 - 65 Hz
Power consumption (1 module) 160 Watts
Remote control interface SM 2009
Connectors 7/16 female; N as an option
Environmental and Safety see Environmental and Safety leaflet for MIKOM
outdoor cell enhancers
Built in test equipment Current monitor • synthesizer lock monitor •
temperature • ALC active
Alarm forwarding Potential free relay contact and automatic alarm
call via RS232 or PCMCIA interface
Control functions Gain • Center frequency • ALC threshold
* Normal temp.range + 5° C to + 40°C
Extreme temp.range- 33° C to + 50° C

User’s manual for Repeater MRx01B Power
M0079A1A.doc Id.-No. 151775 Page 60 10-March-00
ELECTRICAL SPECIFICATIONS MR701B Power
Frequency range Id.No. UL frequency
[MHz] DL frequency
[MHz]
148604 1850 – 1885 1930 – 1965
151075 1865 – 1890 1945 - 1970
148605 1875 – 1910 1955 - 1990
Useable bandwidth 35 MHz (25 MHz in 151075) in the upper or
lower PCS band
Gain 90 dB
Gain variation over
frequency and temperature* ±2.5 dB (±3.5 dB at extreme temperatures)
Gain adjust range 30 dB in 2 dB steps
Gain adjust range tolerance ±0.5 dB
Return loss 15 dB @ 25°C ambient temperature
Spurious/intermodulation -13 dBm max
Spectral re-growth (CDMA only) -45 dBc (J-STD-008)
Power supply 100-130 VAC / 40-60 Hz
Option: 15-24 VDC or 36-72 VDC
Option: 220-250 VAC / 40-60 Hz
RF connector 7/16 female
Option: N female
Environmental and safety See separate leaflet
*: Normal temperature range +5° to +40°C; Extreme temperature range -33° to +50°C

User’s manual for Repeater MRx01B Power
M0079A1A.doc Id.-No. 151775 Page 61 10-March-00
AVAILABLE POWER PER TECHNOLOGY
CDMA TDMA GSM
Pout at 1 channel 37.0 dBm 40.0 dBm 40.0 dBm
Pout/channel at 2 channels 31.0 dBm 34.0 dBm 37.0 dBm
Pout/channel at 4 channels 28.0 dBm 29.0 dBm 33.0 dBm
Pout/channel at 8 channels 25.0 dBm 26.0 dBm 29.0 dBm
ALC threshold Adjustable

User’s manual for Repeater MRx01B Power
M0079A1A.doc Id.-No. 151775 Page 62 10-March-00
BAND AND CHANNEL SPECIFICATIONS
Option I
(fixed bw) Option II
(fixed bw) Option III
(variable bw) Channel
CDMA TDMA
3 dB bandwidth 5 MHz 15 MHz 0.1 to 15
MHz 1.23 MHz 30 kHz
Slope 3 dB to 30 dB 1 MHz 2 MHz 2 MHz - -
30 dB bandwith - - - fc ± 900kHz fc ±60 kHz
50 dB bandwith - - - fc ± 1.5 MHz fc ± 120 kHz
Delay 6 µs 3 µs 6 µs < 6 µs 20 µs
Delay variation
(typical) ±150 ns ±150 ns ±150 ns ±500 ns ±500 ns
Far off selectivity 40 dB 40 dB 40 dB 60 dB 55 dB
NF at Gmax 6 dB 6 dB 8 dB 6 dB 6 dB
NF at Gmax-30 dB 12 dB 12 dB 13 dB 12 dB 12 dB
OICP-3 at Gmax 59.0 dBm 59.0d Bm 59.0 dBm 59.0 dBm 59.0 dBm
OICP-3 at Gmax -
10 dB 58.6
dBm
58.5
dBm
58.5
dBm
58.5
dBm
59.0
dBm
OICP-3 at Gmax -
20 dB 58.0
dBm
58.0
dBm
57.5
dBm
58.0
dBm
58.5
dBm
OICP-3 at Gmax -
30 dB 56.0
dBm
56.0
dBm
53.0
dBm
55.0
dBm
57.0
dBm
Output noise
in band at Gmax -78 dBm/Hz -78 dBm/Hz -76 dBm/Hz - -
Output noise out of
band at Gmax -98 dBm/Hz -98 dBm/Hz -96 dBm/Hz - -
Power consumtion
standby/max power
1 module (typ.cons)
4 modules (typ.cons)
130/220W
160/250W
130/220W
160/250W
145/220W
180/270W
130/210W
160/240W
130/210W
160/240W

User’s manual for Repeater MRx01B Power
M0079A1A.doc Id.-No. 151775 Page 63 10-March-00
ELECTRICAL SPECIFICATIONS MR801B Power
Frequency range Uplink 824-849 MHz; Downlink 869-894 MHz
Useable bandwidth 25 MHz in the upper or lower AMPS 800 band
Gain 90 dB
Gain variation over
frequency and temperature* ±2.5 dB (±3.5 dB at extreme temperatures)
Gain adjust range 30 dB in 2 dB steps
Gain adjust range tolerance ±0.5 dB
Return loss 15 dB @ 25°C ambient temperature
Spurious/intermodulation -13 dBm max
Spectral re-growth (CDMA only) -45 dBc (J-STD-008)
Power supply 115 VAC ± 15% / 40 - 65 Hz
Option: 230 VAC ± 15% / 40 - 65 Hz
Option: 185 - 320 VAC / 40 - 65 Hz
Option: 24 VDC
Option: 42 to 60 VDC
RF connector 7/16 female
Option: N female
Environmental and safety See separate leaflet
*: Normal temperature range +5° to +40°C; Extreme temperature range -33° to +50°C
AVAILABLE POWER PER TECHNOLOGY
CDMA TDMA Analog
Pout at 1 channel 37.0 dBm 40.0 dBm 40.0 dBm
Pout/channel at 2 channels 31.0 dBm 34.0 dBm 37.0 dBm
Pout/channel at 4 channels 28.0 dBm 29.0 dBm 33.0 dBm
Pout/channel at 8 channels 25.0 dBm 26.0 dBm 29.0 dBm
ALC threshold Adjustable

User’s manual for Repeater MRx01B Power
M0079A1A.doc Id.-No. 151775 Page 64 10-March-00
BAND AND CHANNEL SPECIFICATIONS
Variable Bandwidth Channel
CDMA TDMA
3 dB bandwidth 0.1 to 15.0 MHz 1.23 MHz 30 kHz
Slope 3 dB to 30 dB 2 MHz - -
30 dB bandwith -fc ± 900 kHz fc ± 60 kHz
50 dB bandwith -fc ± 1.5 MHz fc ± 120 kHz
Delay 6 µs < 6 µs 20 µs
Delay variation (typical) ±150 ns ±500 ns ±500 ns
Far off selectivity 40 dB 60 dB 55 dB
NF at Gmax 8 dB 6 dB 6 dB
NF at Gmax-30 dB 13 dB 12 dB 12 dB
OICP-3 at Gmax 59.0 dBm 59.0 dBm 59.0 dBm
OICP-3 at Gmax -10 dB 58.5 dBm 58.5 dBm 59.0 dBm
OICP-3 at Gmax -20 dB 57.5 dBm 58.0 dBm 58.5 dBm
OICP-3 at Gmax -30 dB 53.0 dBm 55.0 dBm 57.0 dBm
Output noise
in band at Gmax
-76 dBm/Hz - -
Output noise out of band
at Gmax -96 dBm/Hz - -
Power consumtion
(standby/max power)
1 module (typ.cons)
4 modules (typ.cons)
145/220 W
180/270 W
130/210 W
160/240 W
130/210 W
160/240 W

User’s manual for Repeater MRx01B Power
M0079A1A.doc Id.-No. 151775 Page 65 10-March-00
ELECTRICAL SPECIFICATIONS MR801Bi Power
Frequency range Uplink 806-824 MHz; Downlink 851-869 MHz
Useable bandwidth 18 MHz in the upper or lower iDEN band
Gain 90 dB
Gain variation over
frequency and temperature* ± 2.5 dB (± 3.5 dB at extreme temperatures)
Gain adjust range 30 dB in 2 dB steps
Gain adjust range tolerance ± 0.5 dB
Return loss 15 dB @ 25°C ambient temperature
Spurious/intermodulation -13 dBm max.
Power supply 100 to 130 VAC / 40 - 60 Hz
Option: 220 to 250 VAC / 40 - 60 Hz
Option: 185 to 320Vac, 40 - 65Hz
Option: 24 VDC
Option: ± 42 to ± 60VDC
Option: ± 80 to ± 130VDC
RF connector 7/16 female
Option: N female
Environmental and safety See separate leaflet
*: Normal temperature range +5° to +40°C; Extreme temperature range -33° to +50°C
AVAILABLE POWER PER TECHNOLOGY
iDEN Analog
Pout at 1 channel 37.0 dBm 40.0 dBm
Pout/channel at 2 channels 31.0 dBm 37.0 dBm
Pout/channel at 4 channels 28.0 dBm 33.0 dBm
Pout/channel at 8 channels 25.0 dBm 29.0 dBm
ALC threshold Adjustable

User’s manual for Repeater MRx01B Power
M0079A1A.doc Id.-No. 151775 Page 66 10-March-00
BAND AND CHANNEL SPECIFICATIONS
Variable Bandwidth Channel Selective
3 dB bandwidth 0.1* to 15.0 MHz 25 kHz
Slope 3 dB to 30 dB 2 MHz -
30 dB bandwith -fc ± 60 kHz
50 dB bandwith -fc ± 120 kHz
Delay 6 µs 20 µs
Delay variation (typical) ± 150 ns ± 500 ns
Far off selectivity 40 dB 50 dB
NF at Gmax 8 dB 6 dB
NF at Gmax-30 dB 13 dB 12 dB
OICP-3 at Gmax 48 dBm 48 dBm
OICP-3 at Gmax -10 dB 48 dBm 48 dBm
OICP-3 at Gmax -20 dB 47 dBm 47 dBm
OICP-3 at Gmax -30 dB 45 dBm 45 dBm
Output noise in band at Gmax -81 dBm/Hz -
Output noise out of band at Gmax -101 dBm/Hz -
Power consumtion
(standby/max power)
1 module (typ.cons)
4 modules (typ.cons)
155/220 W
200/265 W
150/210 W
175/240 W
1.5 dB gain degradation at 100 kHz

User’s manual for Repeater MRx01B Power
M0079A1A.doc Id.-No. 151775 Page 67 10-March-00
MECHANICAL SPECIFICATIONS MRx01B Power
The MRx01B Power is available in the G-cabinet
Max. Height x Width x Depth: 21.1 x 18.2 x 7.9 inches
535 x 462.5 x 200 mm
Volume: approximately 45 litres
Weight: approximately 103 lbs (47 kg per unit in standard
configuration)
The illustration of chapter provides the dimensions and the view of the layout.
ENVIRONMENTAL AND SAFETY MRx01B Power
For detailed information refer to the environmental and safety specification leaflet for
MIKOM indoor / outdoor cell enhancers, related to ETS 300019 (European Tele-
communication Standard).
Operating temperature (normal temperature range): + 5° C ... + 40° C
(extreme temperature range): - 33° C ... + 50° C
Humidity: + 30° C/ 93 %
All data is subject to change without notice !

User’s manual for Repeater MRx01B Power
M0079A1A.doc Id.-No. 151775 Page 68 10-March-00
9.2 Spare parts lists for MRx01B Power
The following list contains all parts available for the MRx01B Power. The configuration of
the delivered unit meets the requirements of the customer and can differ depending on the
state of delivery.
9.2.1 Spare parts list for MR301B Power
Designation Id.-No.:
MR301B Power 150047
Assembly drawing 149952
Assembly drawing (RF-cable plan) 150563
Mounting material 150521
Duplexer UL Input 150302
Duplexer DL Input 150303
Bas.Mod.Fix.BW 25,0 MHz 150125
Bas.Mod.Fix.BW 15,0 MHz 151347
Bas.Mod.Fix.BW 12,5 MHz 149642
Bas.Mod.Fix.BW 8,2 MHz 149187
Bas.Mod.Fix.BW 6,0 MHz 149178
Bas.Mod.Var.BW 25,0 MHz 150135
Bas.Mod.Var.BW 10,0 MHz 148281
Ext.Mod.Var.BW 10,0 MHz 150136
Power Amplifierkit 4W 151647
Power Supply, GER plug 138305
Power Supply, UK plug 142832
Power Supply, no plug 148812
Power Supply, no plug 144306
Power Supply, USA plug 141230
Power Supply, no plug 145524
Power Supply, no plug 144946
Power Supply, no plug 145504
M1 Kit 900 MHz 146999
VSWR Kit GSM + EGSM 143437
Ext. Alarms SW-Option 145067
Battery Backup Module 143052
RF Gland / SMA to N 150615
Adapter 7 / 16 male - N female 112425
SW MOB100 V1.10 143055
SW REP1009 V1.11 147127
Modification Kit 1 channel band selective 149917
Modification Kit 2 channels band selective 149918
Modification Kit 3 channels band selective 150529
Modification Kit 4 channels band selective 149920

User’s manual for Repeater MRx01B Power
M0079A1A.doc Id.-No. 151775 Page 69 10-March-00
Main Board 12V version 149780
Main Board 12V version 149779
Control Unit SM2009 143051
Wall mounting kit 146179
Sparepart kit 146200
Termination Resistor 33167
Ready-made cable AC 143032
Manual MRx01B Power 151775
Manual REP1009V1.xx 148964
Additional information 148222
Assembly guide MRx01B Power 151045

User’s manual for Repeater MRx01B Power
M0079A1A.doc Id.-No. 151775 Page 70 10-March-00
9.2.2 Spare parts list for MR401B Power
Designation Id.-No.:
MR401B Power 150043 150044 150045 150046
Assembly drawing 149952
Assembly drawing (RF-cable plan) 150563
Mounting material 150521
Duplexer UL Input 150304 150306 150308 150300
Duplexer DL Input 150305 150307 150309 150301
Bas.Mod.Fix.BW 25,0 MHz 150141
Power Amplifierkit 4W 151648
Power Supply, GER plug 138305
Power Supply, UK plug 142832
Power Supply, no plug 148812
Power Supply, no plug 144306
Power Supply, USA plug 141230
Power Supply, no plug 145524
Power Supply, no plug 144946
Power Supply, no plug 145504
Ext. Alarms SW-Option 145067
Battery Backup Module 143052
RF Gland / SMA to N 150615
Adapter 7 / 16 male - N female 112425
SW MOB100 V1.10 143055
SW REP1009 V1.11 147127
Modification Kit 1 channel band selective 149917
Modification Kit 2 channels band selective 149918
Modification Kit 3 channels band selective 149919
Modification Kit 4 channels band selective 149920
Main Board 12V version 149780
Main Board 12V version 149779
Control Unit SM2009 143051
Wall mounting kit 146179
Sparepart kit 146200
Termination Resistor 33167
Ready-made cable AC 143032
Manual MRx01B Power 151775
Manual REP1009V1.xx 148964
Assembly guide MRx01B Power 151045

User’s manual for Repeater MRx01B Power
M0079A1A.doc Id.-No. 151775 Page 71 10-March-00
9.2.3 Spare parts list for MR701B Power
Designation Id.-No.:
MR701B Power 148604 148605 151075
Assembly drawing 149952
Assembly drawing RF 151102
Assembly drawing (RF-cable plan) 150563
Mounting material 150521
PCS-Duplexer UL Input 144382 144384 151072
PCS-Duplexer DL Input 144381 144383 151073
Active Combiner UL 148686
Active Combiner DL 148685
Bas.Mod.Fix.BW 15,0 MHz 148717
Bas.Mod.Fix.BW 5,0 MHz 148716
Bas.Mod.Var.BW 15,0 MHz 151463
Ext.Mod.Fix.BW 15,0 MHz 151464
Basic Module 148702
Extension Module 148705
Basic Module TDMA 148703
Extension Module TDMA 148706
Basic Module CDMA 148704
Extension Module CDMA 148707
Feedforward Amplifier UL 148627
Feedforward Amplifier DL 148628
Power Supply, GER plug 138305
Power Supply, UK plug 142832
Power Supply, no plug 148812
Power Supply, no plug 144306
Power Supply, USA plug 141230
Power Supply, no plug 145524
Power Supply, no plug 144946
Power Supply, no plug 145504
Mobile kit PCS 150405
Ext. Alarms SW-Option 147710
Battery Backup Module 143052
Battery Backup Module, Dummy without Accu 143750
RF Gland / SMA to N 150615
Adapter 7 / 16 male - N female 112425
SW MOB100 V1.10 143055
SW REP1007 V1.12 145488
SW REP1009 V1.11 147127
Modification Kit 1 channel band selective 149917
Modification Kit 2 channels band selective 149918
Modification Kit 3 channels band selective 149919

User’s manual for Repeater MRx01B Power
M0079A1A.doc Id.-No. 151775 Page 72 10-March-00
Modification Kit 4 channels band selective 149920
Modification kit TDMA for 1+2 channel 151135
Modification kit TDMA for 3+4 channel 151136
Main Board 26V version 149778
Main Board 26V version 149777
Control Unit SM2009 143051
Wall mounting kit 146179
Sparepart kit 146200
Termination Resistor 33167
Ready-made cable DC 149648
Ready-made cable DC act. Com. 150753
Ready-made cable AC 152024
Manual MRx01B Power 151775
Manual REP1007V1.11 145956
Manual REP1009V1.xx 148964
Assembly guide MRx01B Power 151045

User’s manual for Repeater MRx01B Power
M0079A1A.doc Id.-No. 151775 Page 73 10-March-00
9.2.4 Spare parts list for MR801B Power and MR801Bi Power
Designation Id.-No.:
MR801B Power / MR801Bi Power 148613 151270
Assembly drawing 149952
Assembly drawing RF 151102
Assembly drawing (RF-cable plan) 150563
Mounting material 150521
Duplexer UL Input 148334 148335
Duplexer DL Input 148333 148336
Active Combiner UL 148688 148960
Active Combiner DL 148687 148959
Bas.Mod.Var.BW 15,0 MHz 148715 150150
Ext.Mod.Var.BW 15,0 MHz 148944 150151
Basic Module TDMA 148712
Extension Module TDMA 148710
Basic Module CDMA 148713
Extension Module CDMA 148709
Basic Module CDMA f1/f2 152228
Basic Module 150152
Extension Module 150153
Feedforward Amplifier UL 148629 151232
Feedforward Amplifier DL 148630 151233
Power Supply, GER plug 138305
Power Supply, UK plug 142832
Power Supply, no plug 148812
Power Supply, no plug 144306
Power Supply, USA plug 141230
Power Supply, no plug 145524
Power Supply, no plug 144946
Power Supply, no plug 145504
Mobile kit PCS, without mobile 150404
Mobile kit PCS, with mobile 150407
Ext. Alarms SW-Option 147710
Battery Backup Module 143052
Battery Backup Module, Dummy without Accu 143750
RF Gland / SMA to N 150615
Adapter 7 / 16 male - N female 112425
SW MOB100 V1.10 143055
SW REP1007 V1.12 145488
SW REP1009 V1.11 147127
Modification Kit 1 channel band selective 149917
Modification Kit 2 channels band selective 149918
Modification Kit 3 channels band selective 150529

User’s manual for Repeater MRx01B Power
M0079A1A.doc Id.-No. 151775 Page 74 10-March-00
Modification Kit 4 channels band selective 149920
Modification kit TDMA for 1+2 channel 151135
Modification kit TDMA for 3+4 channel 151671
Main Board 26V version 149778
Main Board 26V version 149777
Control Unit SM2009 143051
Wall mounting kit 146179
Sparepart kit 146200
Termination Resistor 33167
Ready-made cable DC 149648
Ready-made cable DC act. Com. 150753
Ready-made cable AC 152024
Manual MRx01B Power 151775
Manual REP1007V1.11 145956
Manual REP1009V1.xx 148964
Assembly guide MRx01B Power 151045

User’s manual for Repeater MRx01B Power
M0079A1A.doc Id.-No. 151775 Page 75 10-March-00
9.3 Installation drawing of the Repeater
figure 9-1 Installation drawing of the Repeater

User’s manual for Repeater MRx01B Power
M0079A1A.doc Id.-No. 151775 Page 76 10-March-00
9.4 Top view of the Repeater (left side , exemplary configuration)
figure 9-2 Top view of the Repeater (left side, exemplary configuration)

User’s manual for Repeater MRx01B Power
M0079A1A.doc Id.-No. 151775 Page 77 10-March-00
9.5 Top view of the Repeater (right side, exemplary configuration)
figure 9-3 Top view of the Repeater (right side, exemplary configuration)

User’s manual for Repeater MRx01B Power
M0079A1A.doc Id.-No. 151775 Page 78 10-March-00
9.6 One channel configuration – cabling and block diagram
figure 9-4 Cabling of one channel Repeater

User’s manual for Repeater MRx01B Power
M0079A1A.doc Id.-No. 151775 Page 79 10-March-00
figure 9-5 Block diagram of one channel Repeater

User’s manual for Repeater MRx01B Power
M0079A1A.doc Id.-No. 151775 Page 80 10-March-00
10 Index
A
Abbreviations 8
Active combiner 22, 56
Alarm monitoring 46
Alarms
Acknowledgement of 28
External alarms 30
Handling of 28
Indication of 26
List of all alarms 27
ALC 26
Antenna connectors 38, 39
Antenna isolation 40
AT commands 45
B
Battery backup 33
BITE 26
46
C
Channel
Setting via PC 43
Clamping profile 49
Connector types
7/16 female 39
N female 32
Contents of delivery 8
Control module 17
Configuration 19
conversion module 51
D
DIP-Switch 43
DIP-Switch settings 20
51
Duplexer 14, 21, 51
E
EEPROM 17
Environmental and safety 68
F
Feedforward amplifier 23
25
G
Gain
Local settings 25, 41
Setting via PC 43
Grounding 37
H
Health and safety warnings 9
I
I²C-Bus 17
Ident numbers 69, 71, 72, 74
Installation
Electrical 38
Mechanical 35
Interfaces 17
RS232 17
International sales offices 11
L
LEDs 26
Local settings 41
M
Maintenance 48
Measurements of
VSWR signals 30
Modem 44
Mother board 15
Mounting brackets 36
O
Optional modules 30
Output DL
external 32

User’s manual for Repeater MRx01B Power
M0079A1A.doc Id.-No. 151775 Page 81 10-March-00
P
Power supply 23
Replacement of 55
R
RAM / RTC battery 50
Remote control 25
Rotary switch
To set the gain 42
S
Setting of operational parameters 40
Setting to work 40
Severity levels 29
T
Test probes 22
Trouble shooting 46