Berthold Technologies FCC02X03 Concentration / Moisture / Dry Mass / Density Measuring System User Manual LB 567

Berthold Technologies Concentration / Moisture / Dry Mass / Density Measuring System LB 567

UserManual.pdf

  ID No. 41990BA2 Rev. No.: 02    15.06.2015 Software Version ≥ 1.0  Process Control detect and identify User's Guide - Hardware Manual -  Concentration / Moisture Measuring System  MircoPolar Moist  LB 568
     MircoPolar Moist LB 568 The  units  supplied  should  not  be  repaired  by  anyone  other  than  Berthold Technologies Service engineers or technicians by Berthold Technologies. In case  of operation  trouble,  please address  to our central service  department (address see below). The complete user’s guide consists of two manuals, the hardware description and the software description.  The hardware manual comprises the  component description  assembly instructions  electrical installation description  technical data  certificates  dimensional drawings  The software manual comprises the description of the  operation  software functions  calibration  error messages  The present manual is the hardware description.     Subject to change without prior notice. BERTHOLD TECHNOLOGIES GmbH & Co. KG Calmbacher Str. 22  75323 Bad Wildbad, Germany Headquarters:    Service: Phone +49 7081 177 0    Phone +49 7081 177 111 Fax     +49 7081 177 100  Fax     +49 7081 177 339 industry@Berthold.com  Service@Berthold.com www.Berthold.com
  Table of Contents MircoPolar Moist LB 568 5 Table of Contents    Page   CHAPTER 1. SAFETY SUMMARY ........................................................................................................................ 7 1.1 SYMBOLS AND WARNINGS .............................................................................................................................. 7 1.2 GENERAL INFORMATION ................................................................................................................................. 8 1.3 GENERAL SAFETY INSTRUCTIONS ...................................................................................................................... 9 CHAPTER 2. GENERAL INFORMATION ............................................................................................................. 11 2.1 USE AND FUNCTION .................................................................................................................................... 11 2.2 INTENDED USE ........................................................................................................................................... 12 2.3 DEFINITIONS .............................................................................................................................................. 13 CHAPTER 3. SYSTEM DESCRIPTION ................................................................................................................. 14 3.1 PRINCIPLE OF MEASUREMENT ....................................................................................................................... 14 3.2 CALCULATION OF MEASURED VALUES ............................................................................................................. 15 3.3 LOADING COMPENSATION ............................................................................................................................ 17 3.3.1 Radiometric Mass per Unit Area Compensation ............................................................................ 18 3.4 MECHANICAL COMPONENTS ......................................................................................................................... 20 3.4.1 The Evaluation Unit ........................................................................................................................ 22 3.4.2 Horn and Spiral Antennas .............................................................................................................. 24 3.4.3 The Radiometric Measuring Path ................................................................................................... 26 3.4.4 Measuring Chute ............................................................................................................................ 29 3.4.5 High-frequency Cable ..................................................................................................................... 30 3.5 CONVEYOR MEASUREMENT CONFIGURATION ................................................................................................... 31 3.6 CHUTE MEASUREMENT CONFIGURATION ......................................................................................................... 32 CHAPTER 4. GETTING STARTED ....................................................................................................................... 33 4.1 TRANSPORT TO THE INSTALLATION SITE ........................................................................................................... 33 4.2 COMMISSIONING THE CONVEYOR BELT ........................................................................................................... 33 4.2.1 Components ................................................................................................................................... 33 4.2.2 Measuring Geometry and Measuring Conditions .......................................................................... 34 4.2.3 Installation of the Horn Antennas .................................................................................................. 37 4.2.4 Installation of the Spiral Antennas ................................................................................................. 40 4.2.5 Installation of the Radiometric Measuring Path ............................................................................ 42 4.2.6 Installation of the Evaluation Unit ................................................................................................. 44 4.2.7 Connecting the HF Cable ................................................................................................................ 45 4.3 COMMISSIONING THE CHUTE ........................................................................................................................ 46 4.3.1 Components ................................................................................................................................... 46 4.3.2 Measuring Geometry and Measuring Conditions .......................................................................... 46 4.3.3 Installation ..................................................................................................................................... 47 4.3.4 Installation of the Evaluation Unit ................................................................................................. 48 4.3.5 Connecting the HF Cable ................................................................................................................ 48 4.4 CONNECTING THE EVALUATION UNIT .............................................................................................................. 49 4.4.1 Pin Configuration of the Connector Strip ....................................................................................... 50 4.4.2 Connecting the Scintillation Counter .............................................................................................. 52 4.4.3 Digital Outputs, Relay .................................................................................................................... 53
Table of Contents   6  MircoPolar Moist LB 568  CHAPTER 5. SERVICE INSTRUCTIONS .............................................................................................................. 54 5.1 GENERAL INFORMATION .............................................................................................................................. 54 5.2 PARTS SUBJECT TO WEAR ............................................................................................................................ 54 5.3 INSTRUMENT CLEANING .............................................................................................................................. 54 5.4 BATTERY ................................................................................................................................................... 54 5.5 FUSE REPLACEMENT ................................................................................................................................... 55 CHAPTER 6. TECHNICAL DATA ........................................................................................................................ 56 6.1 TECHNICAL DATA EVALUATION UNIT .............................................................................................................. 56 6.2 TECHNICAL DATA HORN AND SPIRAL ANTENNAS .............................................................................................. 59 6.3 TECHNICAL DATA RADIOMETRIC MASS PER UNIT AREA MEASUREMENT ............................................................... 60 6.4 TECHNICAL DATA MEASURING CHUTE ............................................................................................................ 62 6.5 TECHNICAL DATA HF-CABLE ........................................................................................................................ 63 6.6 SERIAL DATA OUTPUT RS232 FORMAT .......................................................................................................... 64 CHAPTER 7. OTHER COMPENSATION OPTIONS .............................................................................................. 66 7.1 OPTIONAL LOADING COMPENSATION ............................................................................................................. 66 7.1.1 Mass per Unit Area Compensation ................................................................................................ 66 7.1.2 Layer Thickness Compensation...................................................................................................... 66 7.1.3 Weight/Throughput Compensation .............................................................................................. 67 7.1.4 Layer Thickness and Weight Compensation .................................................................................. 68 7.2 TEMPERATURE COMPENSATION .................................................................................................................... 69 7.3 SYNCHRONIZATION OF THE CURRENT INPUT SIGNALS ........................................................................................ 70 CHAPTER 8. RADIATION PROTECTION GUIDELINES ........................................................................................ 72 8.1 BASICS AND DIRECTIVES .............................................................................................................................. 72 8.2 EMERGENCY INSTRUCTIONS .......................................................................................................................... 75 CHAPTER 9. CERTIFICATES .............................................................................................................................. 76 9.1 EC DECLARATION OF CONFORMITY ................................................................................................................ 76 CHAPTER 10. TECHNICAL DRAWINGS ............................................................................................................. 77 10.1 DIMENSIONAL DRAWING EVALUATION UNIT CASE ........................................................................................ 77 10.2 ELECTRICAL WIRING DIAGRAM ................................................................................................................. 78 10.3 ELECTRICAL WIRING DIAGRAM SCINTILLATION COUNTER ............................................................................... 79 10.4 DIMENSIONAL DRAWINGS HORN AND SPIRAL ANTENNAS .............................................................................. 80 10.4.1 Horn Antenna and Horn Antenna Brackets ................................................................................... 80 10.4.2 Spiral Antennas ............................................................................................................................. 82 10.5 DIMENSIONAL DRAWINGS RADIOMETRIC MEASURING PATH .......................................................................... 83 10.5.1 Scintillation Counter with Axial Collimator .................................................................................... 83 10.5.2 Scintillation Counter with Radial Collimator ................................................................................. 84 10.5.3 Scintillation Counter with Bracket ................................................................................................. 85 10.5.4 Shielding Container LB 7440/5 with Mounting Plate .................................................................... 86 10.5.5 Mounting Plate for Shielding Container ........................................................................................ 87 10.6 INSTALLATION PROPOSAL AT THE CONVEYOR BELT ........................................................................................ 88 10.7 INSTALLATION PROPOSAL AT THE MEASURING CHUTE ................................................................................... 89 INDEX ............................................................................................................................................................. 90
  Chapter 1 Safety Summary MircoPolar Moist LB 568 7 Chapter 1. Safety Summary 1.1  Symbols and Warnings In this user manual, the term Berthold Technologies stands for the company Berthold Technologies GmbH & Co.KG. To  rule  out  bodily  injury  and  property  damage,  please  keep  in mind the warning and safety instructions provided in this operation manual.    They  are  identified  by  the  following  sings:  DANGER, WARNING, CAUTION or NOTE.   Indicates imminent danger. If it cannot be avoided, death or most severe personal injuries may be the consequences.   Indicates a possibly dangerous situation. The consequences may be death or most severe personal injuries.   Indicates a possibly dangerous situation. The consequences may be minor or medium personal injuries.   Indicates a situation that may cause property damage if the instructions are not followed.   IMPORTANT Paragraphs with this symbol provide important information on the product and how to handle it.   TIP Includes application tips and particularly useful information.
Chapter 1 Safety Summary   8  MircoPolar Moist LB 568 Meaning of other symbols used in this documentation:  Warning: No intervention, do not alter anything   Requirement: Disconnect power   Requirement: Wear safety boots  1.2  General Information The  most  important  safety  measures  a  summarized  in  this user manual.  They  supplement  the  corresponding  regulations  which must be studied by the personnel in charge. Please pay attention to:  the national safety and accident prevention regulations  the national assembly and installation directions (for example, E 60079)  the generally recognized engineering rules  the  information  on  transport,  assembly,  operation,  service, maintenance  the  safety  instructions  and  information  in  these  operating instructions  the enclosed technical drawings and wiring diagrams  the characteristic  values, limit values and the information  on operating ambient conditions on the type labels and in the data sheets  the signs on the device  the country-specific licensing provisions.
  Chapter 1 Safety Summary MircoPolar Moist LB 568 9 1.3  General Safety Instructions   IMPORTANT The instrument housing is protected according to protection type IP 65 and is suitable for outdoor application. The instrument has been tested by the manufacturer and is delivered in a condition that allows safe and reliable operation.    For  outdoor  operation,  the  measuring  systems  have  to  be protected  against  direct  sunlight  and  rain,  for  example  by  a suitable canopy.    IMPORTANT Never change the installation and the parameter settings without a full knowledge of these operating instructions, as well as a full knowledge  of  the  behavior  of  the  connected  controller  and  the possible influence on the operating process to be controlled.    The systems may be used only in technically good order and only according to regulations!    Only  persons  may  work  with  the  system  who  have  been authorized to do this and who have the proper qualification and have  received  the  necessary  instructions!  Installations  and modifications  on  the  systems  which  may  affect  the  operational safety are not permitted!    IMPORTANT All system components require non-corrosive ambient conditions during transport, storage and operation.    IMPORTANT If liquid gets inside the instrument, cut off the power supply. The instrument  has  to  be  checked  and  cleaned  by  an  authorized service center.  Ambient conditions
Chapter 1 Safety Summary   10  MircoPolar Moist LB 568  Electrical shock hazards Disconnect power to ensure that contact with live part is avoided during installation and when servicing. Turn  off  power  supply  before  opening  the  instrument.  Work  on open and live instruments is prohibited.    Caution! Possible hazard, property damage! For the device type: LB 568-02 MircoPolar Moist (ID no. 41990-02) If the 24 V DC auxiliary energy is connected, the + and – poles must  be  connected  correctly.  There  is  no  reverse  voltage protection!    Spare  fuses  must  match  the  rating  specified  by  the  device manufacturer. Short-circuiting or manipulation is not permitted.    IMPORTANT The LB 568 and all ancillary units have to be connected to mains via grounded connection.    IMPORTANT The  concentration  measuring  instrument  LB  568  may  only  be installed, serviced and repaired by qualified persons.  Qualified  persons  are  persons  who  through  their  professional training have acquired sufficient skills in the respective field and who are familiar with the pertinent national labor safety directions, accident  prevention  directions,  guidelines  and  with  good engineering practice. They must be capable of safely assessing the result of their work and they must be familiar with the contents of these operating instructions.   The guidelines for radiation protection and the stipulations of the handling license have to be complied with.    Any change in frequency or any other manipulation on the micro-wave device will result in a loss of the frequency approval and will be prosecuted. The microwave modules do not include any replaceable components and must not be opened.  Qualified persons
  Chapter 2 General Information MircoPolar Moist LB 568 11 Chapter 2. General Information 2.1  Use and Function The  MircoPolar  Moist  LB  568  has  been  designed  as  a concentration/moisture measuring system and may be used only for this purpose. If the devices are used in a manner that are not described  in  this  user  manual,  the  protection  of  the  devices  is impaired and the warranty claim is void. Berthold  Technologies  warrants  and/or  guarantees  only  that  the devices comply with its published specifications. The LB 568 may be  installed  only  in  an  undamaged,  dry  and  clean  condition. Alterations and modifications on the system components are not permitted. The LB 568 is not qualified as a "safety-relevant measurement". The  standards  and  guidelines  the  LB  568  complies  with  are itemized in these device instructions in chapter 9.1 EC Conformity Declaration. The protection type of the LB 568 according to IEC 60529 is max. IP 65. The following use is inappropriate and has to be prevented:  Use  under  other  conditions  and  prerequisites  than  those specified by the manufacturer in his technical documents, data sheets,  operating  and  assembly  instructions  and  other specifications.  Use  after  repair  by  persons  who  were  not  authorized  by Berthold Technologies.  Use in a damaged or corroded state.  Operation with open or inadequately closed cover.  Operating  with  inadequately  tightened  adapters  and  cable fittings.  Operation without observing the safety precautions foreseen by the manufacturer.  Manipulating or bypassing existing safety facilities. Authorized  persons  are  persons  who  are  foreseen  for  the respective activity, either based on statutory regulations, or who have been licensed by Berthold Technologies for certain activities. The LB 568 comply with part 15 of the FCC Rules (FCC: Federal Communications  Commission).  These  devices  fulfill  the requirements  regarding  immunity  to  interference  and  emitted interference and are licensed for operation. Conformity to standards Protection type Warning against misuse Authorized persons Frequency licenses
Chapter 2 General Information   12  MircoPolar Moist LB 568  2.2  Intended Use The measuring system LB 568 has been designed to determine the water  or  moisture  content  or  the  concentration  of  almost  any material.  The  microwave  measurement  technique  employed enables non-contact on-line measurement. The layer of material to be measured on a conveyor belt or in a measuring chute made of non-conductive material can be directly irradiated  by  the  microwaves.  The  measurement  is  carried  out through  the  walls  or  through  the  conveyor  belt.  Varying  layer thicknesses  and  bulk  densities  of  the  measured  product  can  be compensated  by  the  additional  radiometric  mass  per  unit  area measurement. During operation, the LB 568 sends out electromagnetic radiation. The transmitting antenna is installed so close to the bottom side of the  conveyor  belt  or  to  the  measuring  chute  that  the  emitted electromagnetic  radiation  passes  almost  completely  through  the product.  To  ensure  proper  function  of  the measuring  system,  please pay attention to the following:   TIP  The material  to  be measured may  be  electrically  conductive only to a limited degree.  The product must not contain any gas bubbles or gas bubbles have to be compressed with adequate pressure when carrying out measurements in pipelines.  The  ion  concentration,  e.g.  salt  content,  has  to  be  nearly constant. FCC license certificate
  Chapter 2 General Information MircoPolar Moist LB 568 13 Definitions  Attenuation Weakening of the microwave signals, microwaves measurement effect. Evaluation unit Evaluation Unit Factory setting See factory setting Factory setting All parameters have been set by the manufacturer using standard values. In most cases this simplifies calibration of the instrument significantly. Despite factory setting, calibration should always be performed. HF cable High frequency cable MBq Mega Becquerel This unit is the activity of a source. Each Bq corresponds to one decay per second. 1 MBq = one million decays Mpua Mass per unit area  mCi Milli Curie This unit is also used for the activity of a source. However, this is the older unit that has been replaced by the unit MBq. (1 mCi = 37 MBq) Microwaves Electromagnetic waves in a certain frequency range. Nuclide / isotope Substance of the radiation source. For the moisture measurement on a belt or in a chute usually Cesium-137 (Cs-137), rarely Americium-241 (Am-241) Phase Phase or phase shift, microwave measurement effect Softkeys Buttons associated with the software. TC Temperature compensation
Chapter 3 System Description   14  MircoPolar Moist LB 568 Chapter 3. System Description 3.1  Principle of Measurement The  microwaves  transmit  the  product  being  measured;  their propagation  speed  is  slowed  down  (=  phase  shift)  and  their intensity  is  damped  (=  attenuation).  Figure  3-1  illustrates  the principle of measurement: The propagation speed of microwaves passing  through  the  product  being  measured  is  slowed  down (phase shift) and their intensity (attenuation) is reduced, relative to a reference signal. This influence is dependent on the measured concentration and moisture content.     Figure 3-1: Schematic diagram: Microwaves are changed by the product
  Chapter 3 System Description MircoPolar Moist LB 568 15 3.2  Calculation of Measured Values The  microwave  parameters  phase  shift  or  short  phase  and attenuation  are  calibrated  according  to  an  automatic  plausibility analysis. During  calibration,  a  concentration  value  is  assigned  through sampling  to  the  phase  and/or  attenuation.  The  calibration  runs automatically  and  the  sampling  process  is  supported  by  the evaluation unit. The concentration content to be detected in the material is usually dependent linear on the phase shift and the attenuation. For this reason, a linear calibration can be calculated as follows.  CLoadnattenuatioBLoadphaseAvalue  Measured   Eq. 3-1 where: Measured value   Concentration / Moisture / Dry mass A, B, C   Coefficients of respective calibration function  Which of the parameters, phase, attenuation or both will be used for  the  calibration  depends  on  the  size  of  and  the  disturbing influence on the measuring effect. For example, the attenuation is more sensitive to electrolytic conductivity (salt content). In  contrast  to  conventional  microwave  attenuation  measuring instruments, MircoPolar Moist is using a wide frequency band both in the phase measurement and in the attenuation measurement. Such  a  measurement  permits  a  continuous  verification  of  the plausibility of the results of a measurement. The user can define limit values for a desired plausibility range. The  measuring  accuracy  can  be  increased  further  through  a combination of attenuation and phase measurement only for some special  applications.  Any  possibly  remaining  grain  size  influence that may occur in a pure phase measurement can be reduced by using the combined measurement.
Chapter 3 System Description   16  MircoPolar Moist LB 568 Limitations  Weakly  bound  water  can  be  detected  depending  on  the strength  of  the  binding.  Thus,  the  measuring  effect  may  be dependent  on  the  grain  size  distribution  and  the  chemical properties  of  the  product  being  measured,  provided  this changes the binding of water to the solid matter.  Walls made of plastic, rubber or insulation materials with fairly low  dielectricity  hardly  affect  the  measurement  and  are calibrated at a constant level.  Ice and crystal water cannot be measured because the water molecules cannot rotate freely (ice and crystal are dry). Conductive  materials  such  as  graphite  or  coke  cannot  be transmitted  by  microwaves.  Metal  walls  can  also  not  be transmitted by  microwaves.  Metal-reinforced conveyor belts may be  transmitted  only  under  certain  conditions  (see  chapter  4.2.3 Installation  of  the  Horn  Antenna  and  4.2.5  Installation  of  the Radiometric Measuring Path). The  LB  568  allows  you  to  calibrate,  display  and  output  two concentrations:  Conc1  and  Conc2.  You  have  to  enter  the calibration  coefficients  separately  for  concentration  1  and  2.  For more information please refer to the Software Manual. In  addition  to  the  water  content,  the  product  temperature, product density and a varying material load (varying microwave irradiation  path)  may  have  an  influence  on  the  phase  and attenuation.  This  influence  has  to  be  compensated  for  during calibration. In general, a temperature compensation (TC)  is not required for bulk material. If the product temperature has a significant impact on the microwave measuring  signals phase  or attenuation, a  TC should  be  connected  (see  chapter  7.2  Temperature Compensation). The temperature influence depends on the product and water content. Compensation
  Chapter 3 System Description MircoPolar Moist LB 568 17 3.3  Loading Compensation The microwave irradiates the product to be measured and detects all changes in the product. Example conveyor belt, see Fig. 3-2:  Figure 3-2: Material profile on the conveyor belt   The  entire  material  cross-section  is  transmitted.  If  the  material layer  thickness  or  the  bulk  density  changes  (with  constant moisture), then the microwave signals will be affected. The  goal  of  the  loading  compensation  is  to  compensate  for  this influence. This is done through standardization with regard to the parameters layer thickness and bulk density which correspond to the mass per unit area: Load = mass per unit area [g/cm2] =  ∙ d    Eq. 3-2 where:     bulk density [g/cm3] d    material layer thickness [cm] See Eq. 3-1: the  standardization is done through division of the phase and attenuation data by the load. A mass per unit area compensation need not be performed when the  layer  thickness  and  bulk  density  are  constant  in  a  fixed measuring  geometry.  This  is  the  case,  for  example,  if  conveyor belts are always loaded with the same level, or if the filling level in chutes  is  always  the  same,  and  the  material  has  a  constant density. If the loading compensation is not required and not selected, the load is set to 1 (see Eq. 3-1): Load = 1  Loading compensation not enabled
Chapter 3 System Description   18  MircoPolar Moist LB 568 Depending  on  the  type  of  load  fluctuations,  there  are  several possibilities for compensation; typically, the radiometric mass per unit area compensation is used, which is described below. At constant  bulk  density  or if the mass per unit  area is already known,  one  may  not  need  the  radiometric  measurement  path under  certain  circumstances.  In  this  case,  there  are  alternative possibilities  for  compensation,  see  chapter  7.1  Optional  Loading compensation. 3.3.1 Radiometric Mass per Unit Area Compensation The  influence  of  a  varying  material  layer  thickness  and  bulk density  disappears  through  standardization  with  regard  to  the irradiated mass per unit area. The compensation is calculated as follows: Load = mass per unit area [g/cm2]  Eq. 3-3 The  radiometric  measurement  path  supplies  the  mass  per  unit area signal.   Figure 3-3: Microwaves and gamma radiation field at the conveyor belt
  Chapter 3 System Description MircoPolar Moist LB 568 19 The radiometric mass per unit area measurement is based on the physical effect that gamma radiation passing through the material to be measured is subject to an exponential intensity attenuation (see Figure 3-3). The intensity attenuation can be described by the law of absorption: d0eII     Eq. 3-4 Where: µ  = absorption coefficient   = bulk density d  = layer thickness I  = actual count rate I0  = zero count rate Mpua  = mass per unit area Io  is  the  intensity  of  the  unattenuated  radiation  and  μ  the material-specific  attenuation  coefficient  (absorption  coefficient). This is specified as the default value for the chosen isotope (e.g. Cs-137 source, μ = 0.07), but can be adjusted. The  residual  radiation  still  arriving  at  the  scintillation  of  the intensity I is a measure of the mass per unit area (Mpua).: IIln1Mpua 0    Eq. 3-5 A constant distance is assumed between the radiation source and scintillation counter.  The  thickness  of  a  wall  to  be  irradiated  additionally,  or  the conveyor belt, is calibrated during the zero  measurement, i.e. it does not have any influence on the measuring effect. The intensity of the radiation source decreases over time. The period in which it has fallen to half its initial intensity - the half-life - depends on the radiation  source.  Micro-Moist  Polar  compensates  for  the  source decay  automatically  depending  on  the selected  radiation  source. Therefore, it is important to enter a correct date!
Chapter 3 System Description   20  MircoPolar Moist LB 568 3.4  Mechanical Components The  measurement  system  consists  of  the  evaluation  unit  (short EVA, Figure 3-4),  one  pair of  antennas with  HF  cable  (short  HF cable) and the radiometric mass per unit area measurement (short radio Mpua). The antenna pair consists either of two identical horn or spiral antennas, see Figure 3-5. The radiometric mass per unit area system consists of the point source with scintillation container and scintillation counter, see Figure 3-6. Figure 3-4: Evaluation unit MircoPolar Moist
  Chapter 3 System Description MircoPolar Moist LB 568 21    Figure 3-5: From left: Horn antenna pair, spiral antenna pair     Figure 3-6: From left: Point source shielding, scintillation counter with axial collimator
Chapter 3 System Description   22  MircoPolar Moist LB 568 3.4.1 The Evaluation Unit The  evaluation  unit  comprises  the  evaluation  computer  with microwave  unit  and  radiometry  board.  The  microwaves  are generated,  received  and  analyzed  in  the  microwave  unit.  Signal processing  and  communication  take  place  in  the  evaluation computer. On the radiometry board there is a screw terminal strip for  connection  of  the  scintillation  counter;  the  communication (RS485) and the auxiliary power supply of the scintillation counter take place via this screw terminal strip. For simple operation, the measuring  system  includes  a  display,  4  softkeys  and  an alphanumeric  keypad.  Different  functions  are  assigned  to  the softkeys  on  the  display.  An  RS232  interface  is  included  on  the bottom of the device. Figure 3-7: Front view of the evaluation units    Figure 3-8: Evaluation units -  bottom view
  Chapter 3 System Description MircoPolar Moist LB 568 23 LED’s on the Front Panel Five  LED’s  on  the  instrument  front  panel  indicate  the  instrument status.  LED Function Run On: Device in measurement mode Flashing + ERROR LED off: Device in the warning or stopped state. In the warning state, a display message with error code indicates the cause (see Software Manual, chapter 8. Error Lists and Device States). Error On: Device in error state. A display message with error code indicates the cause (see Software Manual, chapter 8. Error Lists and Device States). Canceled after reset or if error has been eliminated Signal 1 Display depending on the selected function of relay 1, possible functions: error, alarm min., alarm max., measurement stopped. Signal 2 Display depending on the selected function of relay 2, possible functions: error, alarm min., alarm max., measurement stopped. Comm Communication active, e.g. via RS232  For  a  description  of  the  device  states  please  see  the  Software Manual, chapter 8. Error Lists and Device States. Terminal blocks  The  electrical  connections  of  the  LB  568  are  located  on  two connector strips in the wall housing. They are accessible from the front by opening the cover. There, you also find the fuses and a test  switch  (see  Fig.  5-1).  The  high-frequency  connections  are located  on  the  outside  of  the  housing.  All  other  elements, especially  the  live  elements  (on  the  motherboard)  are  provided with a protection cap.
Chapter 3 System Description   24  MircoPolar Moist LB 568 3.4.2 Horn and Spiral Antennas   Various  types  of  microwave  antennas  are  available  for  moisture measurements  on  a  conveyor  belt  or  in  a  chute,  taking  into account  the  different  geometries  of  the  respective  application. There  are  each  an  identical  pair  of  antennas  (transmitter  and receiver) that are connected to the evaluation unit via an HF cable.    Horn antenna Spiral antenna Polarization Linear Circular Distance (field size) up to 3 m 0.1 to 0.75 m Application Conveyor belt, bunker, steel reinforcement possible Conveyor belt, bunker, steel reinforcement not possible, belt without strong troughing Assembly conditions Vertical or oblique to the belt, coupler parallel to the flow direction of the material (exception: steel-reinforced belt).  Vertical position Product being measured General Only homogeneous material for phase measurement. Material with direction-dependent inhomogeneities, for example, chips: only for attenuation measurement  Horn antenna The horn antenna is made out of stainless steel, see Fig. 3-9. The antenna openings are closed tightly by plastic windows. The horn antenna is a special construction where the wave guided in the HF-cable goes over into a free wave. The magnetic field disseminates vertically and the electrical field horizontally to the adapter (see Fig. 3-9). If  dust  deposits  may  occur,  these  windows  should  be  cleaned regularly. Dust depositions distort the results relative to their mass per  unit  area  and  their  water  contents.  The  antennas  do  not contain  any  electronic  components;  however,  they  should  be protected against mechanical damage.
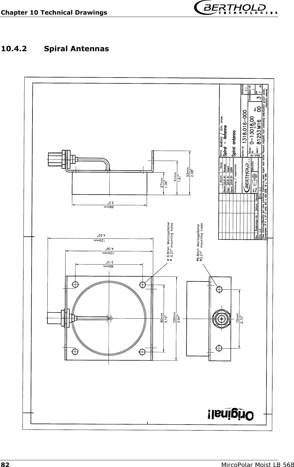
  Chapter 3 System Description MircoPolar Moist LB 568 25 Figure 3-9: From left: Horn antenna, horn antenna with a view through the window     Spiral antenna The  spiral  antenna  sends  or  receives  microwaves  in  circular polarization. The spiral antenna is a near-field antenna and should be used only for  distances  between  0.1  and  0.7  m.  On  materials  including inhomogeneities that change the direction of the microwaves it can be employed only with the attenuation measurement.   Figure 3-10: Spiral antenna
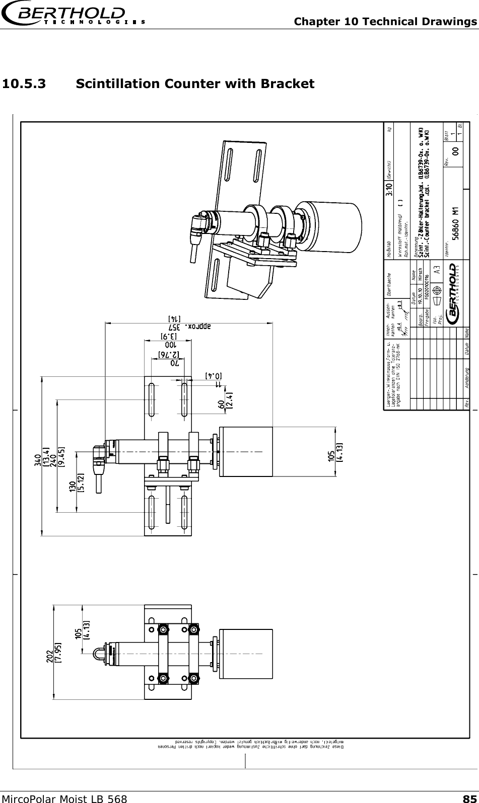
Chapter 3 System Description   26  MircoPolar Moist LB 568 3.4.3 The Radiometric Measuring Path   The radiometric measuring path consists of  - a scintillation counter - a radiation source (Cs-137 or Am-241) installed in a lockable shielding Scintillation counter Two  scintillation  counter  versions  with  different  collimators  are available: the axial and radial collimator. With the axial collimator, the entrance window is located on the front side, with the radial collimator on the side, see Figure 3-11.  Figure 3-11: Scintillation counter with and without collimator   Radiation source Cesium  (Cs-137)  and  Americium  (Am-241)  gamma  emitters  are used as radiation sources.
  Chapter 3 System Description MircoPolar Moist LB 568 27 Shielding  The point source Cs-137 is built into the shielding type LB 744X. The shielding container is made of a sturdy cast iron or stainless steel housing, see Figure 3-12. The container front side is closed by a  metal  plate. The radiation exit channel can  be  closed by a built-in rotating diaphragm. The diaphragm is operated from the rear  via  a  lever  which  in  the  open  and  closed  position  can  be secured  by  a  lock.  The  source  is  installed  so  that  it  is  also protected by the lock against unauthorized removal.  Alternatively,  the  lock  can  be  pneumatically  actuated  (see following page).  Figure 3-12: Cross-section shielding container with source 123678910111254  1 Shell 7 Lock 2 Lead filling 8 Rotation axis 3 Source bracket 9 Radiation source 4 Spring pin 10 Locking core 5 Padlock 11 Radiation exit channel 6 Locking lever 12 Cover plate
Chapter 3 System Description   28  MircoPolar Moist LB 568 Shielding with pneumatically operated lock and shutter switch (option)  A pneumatic lock with switch contacts indicating the position of the lock is available as a special version.  The  pressurized  air  moves  the  locking  diaphragm  to  the  OPEN position. If the pressurized air is turned off or in case of failure, a spiral  spring  turns  the  locking  diaphragm  back  to  the  CLOSED position.  Technical details in  chapter  6.3  Technical  Data  Radiometric  Mass per Unit Area Measurement.   The pneumatic drive is equipped with a throttle valve. The valve must  be  set  such  that  the  opening  and  closing  process  for  the shielding  takes  at  least  2  s;  otherwise  the  shielding  may  get damaged.   Figure 3-13: Pneumatic lock with  limit switch     Do not open the spring unit, see Figure 3-13.
  Chapter 3 System Description MircoPolar Moist LB 568 29 3.4.4 Measuring Chute  For bulk material Berthold Technologies delivers a measuring chute complete  with  mounting  plate  and  brackets  for  horn  antennas, scintillation counter and shielding containers. The chute is made of plastic PP-H or PVDF.   Figure 3-14: Measuring chute  made of plastic PP-H   The horn antennas, the scintillation counter with collimator and the shielding  container  with  source  are  mounted  on  the  assembly plate. The plastic chute is firmly connected to the assembly plate. The  assembly  plate  is  already  provided  with  all  the  necessary mounting holes, so that the microwave and radiometric measuring path can be aligned optimally, see Figure 3-15.   Figure 3-15: Assembly plate with chute, horn antennas and radiometric measuring path
Chapter 3 System Description   30  MircoPolar Moist LB 568 3.4.5 High-frequency Cable High-frequency  cables  (HF  cable)  are  used  to  transmit  the microwave signals. HF cables change their conductivity (for microwaves) depending on the  temperature.  Therefore,  they  would  create  measurement errors  if  the  ambient  temperature  varies.  This  error  is compensated  for  by  enabling  the  cable  compensation.  The influences  of  the  ambient  temperature  on  the  signal  cable  are compensated for by means of the reference cable. To this end, the sum of the reference cables is chosen just as long as the sum of the measuring cables. The  HF cable is  provided at  the  ends  with  an HF  connector  (N-type). Available lengths: 0.5 to 4 m (in 0.5 m steps, see Figure 3-16). One  HF  cable (called  measuring  or  antenna  cable)  connects  the evaluation  unit  with  the  antenna.  A  third  HF  cable  serves  as reference  line;  its  cable  length  corresponds  to  the  sum  of  the lengths of both antenna cables. The  shorter  the  cable  connections  between  antennas  and evaluation unit, the better the stability of the measurement.  Figure 3-16: Semi-rigid cable   For further technical data see chapter 6.5 Technical Data HF-Cable.
  Chapter 3 System Description MircoPolar Moist LB 568 31 3.5  Conveyor Measurement Configuration  The  antenna  pair  and  the  radiometric  measuring  path  are assembled in a stable frame. The evaluation unit is installed in the direct vicinity of the horn antennas in order to limit the length of the HF  cables to max. 2 m  each.  See also Figure 3-17 and the installation proposal  in  chapter  10.6  Installation  Proposal  on  the Conveyor Belt.  Figure 3-17: Typical measurement configuration on a  non-steel reinforced conveyor belt. With horn antennas and radiometric mass per unit area measurement (with example values).
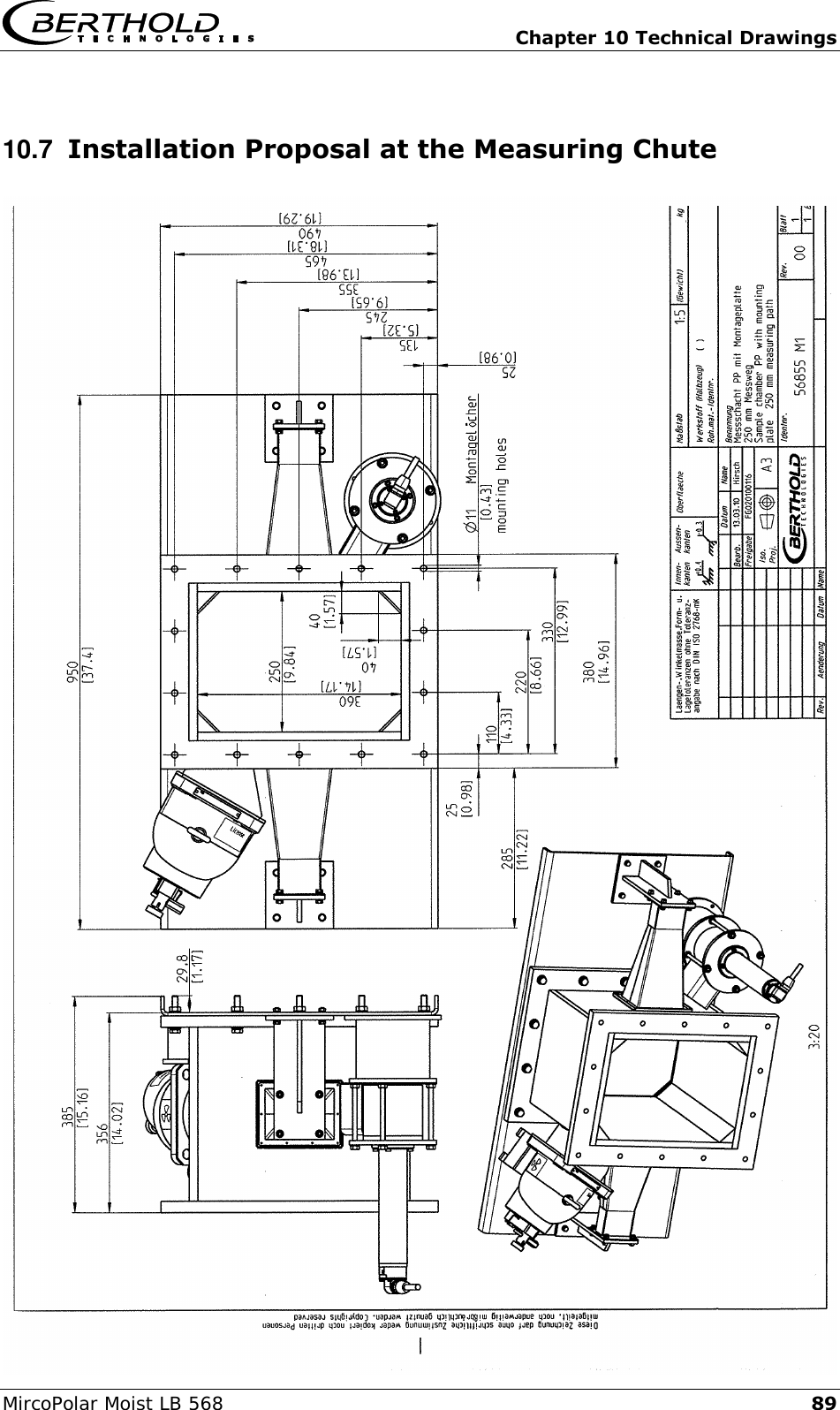
Chapter 3 System Description   32  MircoPolar Moist LB 568 3.6  Chute Measurement Configuration  The measuring chute is installed directly in the product flow, or in a bypass.  Complete filling of the chute during the measurement must be  guaranteed. The antennas, the scintillation  counter and the  source  with  the  shielding  container  are  mounted  on  the mounting  brackets  provided  on  the  measuring  chute.  The evaluation  unit  is  installed  in  the  direct  vicinity  of  the  horn antennas in order to limit the length of the HF cables to max. 2 m each. See also Figure 3-18 and the installation proposal in chapter 10.7 Installation Proposal on the Measuring Chute.  Figure 3-18: Typical measurement configuration on the measuring chute with example values
  Chapter 4 Getting Started MircoPolar Moist LB 568 33 Chapter 4. Getting Started 4.1  Transport to the Installation Site  IMPORTANT       Risk of damage! System parts may get damaged during transportation! Transport all components in their original packaging. Protect parts against  shocks.  Especially  the  horn  antenna  must  be  protected against  mechanical  shocks,  as  otherwise  the  coupling  pins  may get bent and the function can be impaired severely.  After unpacking, make sure all parts listed on the packing list have been delivered and show no sign of damage; if necessary, clean these parts. If  you  detect  any  damage,  please  notify  the  forwarder  and  the manufacturer immediately.  The  weight  of  the  system  components  may  exceed  30  kg, depending  on  the  version.  We  recommend,  therefore,  that  you wear safety boots. 4.2  Commissioning the Conveyor Belt 4.2.1 Components The measurement setup on a conveyor belt basically comprises the following components:  a pair of horn or spiral antennas  an evaluation unit  a scintillation counter with collimator and connection cable  a source with shielding container  a set of HF cables The MircoPolar Moist is usually delivered with radiometric mass per unit  area  measurement  for  compensation.  If  the  bulk  density  is constant,  optional  compensations  are  possible,  e.g.  by  a  layer thickness  or  weight  measurement.  Details  see  chapter  7.  Other Possibilities for Compensation.
Chapter 4 Getting Started   34  MircoPolar Moist LB 568 4.2.2 Measuring Geometry and Measuring Conditions  1. Measuring condition: Required material profile The  product  surface  must  be  flat  over  a  width  of  at  least 350 mm (see Fig. 4-1). No gaps or slots in the product. This is absolutely essential to ensure that the microwave irradiation field always  sees  the  same  product  density  and  the  compensation measurement correlates with the microwave measurement. Figure 4-1: Flat surface in the beam range                 Figure 4-2: Example 1: The microwaves continuously irradiate a different material layer.                 Figure 4-3: Example 2: Compensation and microwave measurement do not see the same material layer; therefore, both measurements do not correlate with each other.
  Chapter 4 Getting Started MircoPolar Moist LB 568 35 2. Measuring condition: Homogeneous load on the belt The product must be homogeneous. If the product is not mixed or asymmetrical  on  the  belt,  the  moisture  reading  is  not representative and the sampling (e.g. for calibration) may possibly be incorrect, see Fig. 4-4.  Figure 4-4: Two different products (e.g. due to different moistures), not mixed and filled asymmetrically.  3. Measuring condition: electrically conductive materials No  metals  or  other  conductive  materials  must  be  located between  transmitting  and  receiving  antennas  (in  the  radiation field). A  special  case  are  steel  reinforced  conveyor  belts,  see  the following chapters. 4. Measuring condition: Minimum load  The  minimum  load  on  the  conveyor  belt  is  dependent  on  the product  composition  and  the  material  structure.  In  a  first approximation, the minimum  material thickness  can  be specified as follows: 4min d    Eq. 4-1 Where: dmin  = minimum material thickness [cm]   = bulk density [g/cm3]
Chapter 4 Getting Started   36  MircoPolar Moist LB 568 5. Measuring condition: Synchronous belt load The  loading  compensation  can  only  function  correctly  if  the microwave and the compensation measurement measure the same product. Because only then the ratio of the two signals is correct (see Eq. 3.1 in chapter 3.2 Measurement Calculation). To  this  end,  the  product  will  first  pass  through  the  radiometric measuring path before it reaches the microwave measuring path. Furthermore, the belt load for a period of at least 1 second must remain the same, see Figure 4-5.  Figure 4-5: Correlate the same  belt load   More  synchronization  options  are  available  for  the  alternative compensation options (layer thickness sensor / belt weigher), see chapter 7.3 Synchronization of the Current Input Signals.
  Chapter 4 Getting Started MircoPolar Moist LB 568 37 4.2.3 Installation of the Horn Antennas The installation is done as shown in our example in Figure 3-17 or the installation proposal in chapter 10.6. A  stable  bracket  must  be  provided.  The  accessories  include  a bracket that allows variable orientation.  Setup of the Horn Antennas  Install both horn antennas in diametrically opposite locations  Transmitter  and  receiver  must  always  have  the  same polarization;  the  couplers  must  always  point  in  the  same direction.  Typical distances between the antennas are 30 to 80 cm, but may be up to 1 or 2 m.   The coupler should always face the material flow, because then the waves are not deflected so much by the material flow.  The  transmitting  antenna  must  be  installed  below,  the receiving antenna, above the conveyor belt.  When transmitting the upper and lower belt, you should allow for incorrect measurements caused by the geometry. Sufficient room  for  the  horn  antennas  should  be  available  below  the upper belt. If necessary, a belt deflection has to be carried out, or you have to check if spiral antennas are better suited.  Select the installation site of the horn antennas such that they will not be affected by dirt on the radiation exit window.  Install  the  reference  cable  parallel  to  the  signal  cables.  Its length corresponds to the sum of both signal cables.  Install the antennas as far away as possible from the rollers or other metallic objects.  The  supplied  HF  cable  can  be  bent  depending  on  your installation  situation  (min.  bending  radius  10  cm).  Fix  the cables  to  prevent  them  from  slipping.  It  is  not  permitted  to change the cable lengths or to use other cables.  In wet areas the cable connection always have to face down. Make sure that no humidity can penetrate. If necessary, you have to seal the HF-connection by taking suitable provisions.
Chapter 4 Getting Started   38  MircoPolar Moist LB 568  To ensure a satisfactory measurement on conveyor belts, the material layer should be plane-parallel with the belt. With bulk goods, one can achieve this smoothing effect quite easily, for example, by dragging a hinge-mounted plate over the material surface.  The  same  effect  is  obtained  with  a  free-sliding  ski moving through parallel guide rods over the material surface. Especially for grain sizes above 10 mm, the ski is superior to the mobile plate. Experience shows that a fairly smooth surface and  homogeneous  layer  will  be  obtained  only  when  the minimum layer thickness is at least three times as high as the maximum grain size. For fine-grained materials we recommend using  a  "plow"  to  smooth  the  material  surface  without significantly  changing  the  bulk  density,  especially  if  no  bulk density or mass per unit area measurement is available Exception: Oblique transmission Typically, the horn antennas and the radiometric measuring path are installed at a 90° angle to the material flow. Whether oblique transmission is necessary and in which angle the antennas should be mounted has  to be  clarified  before planning  the project. The angle (see Fig. 4-6) will be specified by Berthold Technologies. Figure 4-6: Setup for  oblique transmission  The angle will be defined by Berthold Technologies   In case of strong reflection, the interference of the reflected wave can be reduced through oblique transmission. Exception: Steel-wire reinforced conveyor belt  If the conveyor belt is reinforced by metal ropes in the conveying direction, the antennas have to be mounted such that the electric field (E) runs at a 90° angle to the ropes. The connection socket of the antenna cable faces the same direction as the electric field, see Fig. 4-7 and 4-8. Microwaves can irradiate conveyor belts with parallel metal wires or rods only if the horn antennas are oriented correctly.
  Chapter 4 Getting Started MircoPolar Moist LB 568 39 Please  contact  the  manufacturer  and  state  the  diameter  of  the steel ropes and their distance. Make sure that the belt itself is not made  of  conductive  rubber  (anti-static  through  additional graphite). The surface of the product must be flat over a stretch of at least 500 mm (instead of 350 mm as in a regular configuration).  Figure 4-7: Setup of the horn antennas with steel-reinforced conveyor belt    Figure 4-8: Alignment of the antenna in the case of parallel running steel ropes   In  contrast  to  the  recommended  configuration  without  steel- reinforced belts, here the antennas have to be turned by 90° so that the cables come from the side, instead of running parallel to the conveying direction.
Chapter 4 Getting Started   40  MircoPolar Moist LB 568 4.2.4 Installation of the Spiral Antennas The installation is done  as  shown  in our  example in Figure  4-9. Stable brackets must be provided.  Figure 4-9: Measurement setup on a conveyor belt with spiral antennas (with example values)
  Chapter 4 Getting Started MircoPolar Moist LB 568 41 Setup of the Spiral Antennas  Install both antennas in diametrically opposite locations  Typical antenna distances are approx. 10 to 70 cm.  The  transmitting  antenna  must  be  installed  below,  the receiving antenna, above the conveyor belt.  The connection may face any direction.  The  spiral  antennas  must  be installed  at  a  90°  angle  to  the material.   The spiral antennas should be installed at least 10 cm above the max. loading level.  Select the installation site of the spiral antennas such that they will not be affected by dirt.  The length of the reference path normally corresponds to the sum of the length of both antenna cables and has to follow the same way as long as possible.  The  phase  measurement  is  usually  used  in  homogeneous material.  Under  certain  conditions,  an  attenuation measurement  may  also  be  performed  on  inhomogeneous material.  Note: Oblique transmission and irradiation of steel-reinforced belts is not possible due to the circular polarization.
Chapter 4 Getting Started   42  MircoPolar Moist LB 568 4.2.5 Installation of the Radiometric Measuring Path The radiometric measuring path consists of the radiation source in a  lockable  shielding  container  and  the  scintillation  counter  with 3 m  long  connection  cable  (connection  to  the  R-board  in  the evaluation unit).  Check  if  the  shielding  container  is  closed  before  you  begin  the installation.       Radioactivity! Installation and commissioning of radiometric measuring systems may  be  carried  out  only  by  persons  who  have  been  instructed adequately by professional personnel! Work  is  carried  out  under  the  guidance  and  supervision  of  the Radiation Safety Officer. Make sure that the lock of the shielding is closed. To do this, set the lever of the shielding container LB 744X clearly to the "CLOSED" position. Set the locking device to the "OPEN" position only for commissioning.  The radiation source and the scintillation detector must be exactly aligned.  A  suitable  bracket  is  available  for  detector  installation, allowing subsequent adjustment of the alignment. The fine position adjustment  is  done  later  by  shifting  the  detector  until  the maximum count rate (signal intensity picked up by the detector) is reached.  See  also  Figure  3-17  and  the  installation  proposal  in chapter 10.6 Installation Proposal on the Conveyor Belt. The  mounting  frame  must  be  so  sturdy  that  any  subsequent shifting  of  both  components  relative  to  each  other  is  ruled  out. This  would  alter  the  geometry  of  the  measurement  and  cause measuring  errors.  Depending  on  the  version,  the  detector  is designed for frontal or radial irradiation.  The shielding container should be installed as close as possible to the  conveyor  belt.  If  no  design  documentation  is  available,  a minimum distance of 5 cm should not be exceeded for radiation protection reasons. The conveyor belt must not touch the shielding container.  A  special  mounting  plate  allows  adjustment  of  the distance in steps of 35 mm.  The radiometric measuring path can be installed directly next to the  microwave  measuring  path.  Even  a  crossover  of  gamma radiation and microwaves is uncritical. A mutual interference will not occur.
  Chapter 4 Getting Started MircoPolar Moist LB 568 43 In order not to limit the lifetime of the detector, the transmission of  excessive  vibration  and  temperatures  above  50°C  must  be avoided  by  taking  appropriate  measures.  For  outdoor  operation, the detector should be protected from direct sunlight and rain by a canopy.  Accessories  for  the  protection  hood,  see  chapter  6.3 Technical Data Radiometric Mass per Unit Area Measurement. Exception: Oblique transmission The  transmission  angle    of  the  radiometric  mass  per  unit  area measurement,  see Figure 4-10,  corresponds to  the transmission angle of the microwave antennas, see chapter 4.2.3 Installation of the Horn Antennas. This ensures that both measurements transmit the same layer thickness.  Figure 4-10:
Chapter 4 Getting Started   44  MircoPolar Moist LB 568 Exception: Steel-wire reinforced conveyor belt If  the  conveyor  belt  is  reinforced  by  metal  ropes  in  the  feed direction,  the  positions  of  source  and  detectors  have  to  be exchanged (see Figure 4-11). The source with shielding container is  then  placed  above  and  the  scintillation  counter  below  the conveyor belt. If the distance between the upper and lower belt is too small for a detector with an axial radiation, one can use the detector with side window.  Figure 4-11:     4.2.6 Installation of the Evaluation Unit  For installation of the evaluation unit please keep in mind:  Position the evaluation unit depending on the length of the HF cable  in  the  vicinity  of  the  microwave  probe.  The  typical distance between evaluation unit and flow cell is about 2 m.  The evaluation unit has to be protected against vibrations.  For instrument installation you should foresee a cutoff device to allow  easy  and  quick  disconnection  of  the  device  from  the power supply.  For outdoor operation, the evaluation unit has to be protected against  direct  sunlight  and  rain,  for  example  by  a  suitable canopy.
  Chapter 4 Getting Started MircoPolar Moist LB 568 45 4.2.7 Connecting the HF Cable Connect the horn/spiral antennas and the evaluation unit (sockets M-Tx and M-Rx) with the antenna cables. The transmitting antenna is connected to M-Tx below the belt, and the receiving antenna to M-Rx above the belt. Connect  a  reference  cable  to  the  reference  sockets  of  the evaluation unit (R-Tx and R-Rx). The reference cable should have the  same  characteristics  and  if  possible  the same  length  as  the total of both antenna cables. When  tightening  the  connector  screw  connection  (19 mm  screw nut), make sure that the connector is not twisted on the cable. If the connector is twisted relative to the cable, the shielding may get damaged and this could result in a bad electrical contact and bad sealing. Hand tighten all screwed connections of the HF cable (2 Nm = 0.2 KG/m)! Before tightening, carefully screw on the cable by hand. Caution! Threaded joint jams easily. Install  the  signal  and  reference  cable  in  the  same  manner  (if possible, parallel), so they are exposed to the same temperature (temperature  compensation  of  ambient  temperature  on  the antenna cable; this ensures long-term stability). Fix the antenna and reference cable after you have installed them.   IMPORTANT A steel pipe may protect the cable and keep signal and reference cable  on  the  same  temperature  for  an  effective  temperature compensation.  Kinked cables falsify the results and make the cable useless. The bending radius should not be less than 100 mm.  Occasionally  you  should  check  if  the  screwed  connection  is  still properly tightened. If the installation is exposed to vibrations, the screwed  connection  may  come  loose  and  this  may  result  in inaccurate measurements or corrosion of the connections. As long as the cables are not connected, the coaxial sockets have to  be  covered  immediately  with  plastic  caps  and  the  cable connectors  have  to  be  protected  by  suitable  provisions  against moisture and dirt.
Chapter 4 Getting Started   46  MircoPolar Moist LB 568 4.3  Commissioning the Chute The  moisture  measurement  on  a  chute  is  done  using  a  fully assembled  measurement  configuration  with  horn  antennas  and radiometric  measuring  path.  See  also  Figure  3-19  Typical measurement setup. 4.3.1 Components The  measurement  setup  on  a  measuring  chute  comprises  the following components:  a pair of horn antennas   a measuring chute including  assembly plate  and  brackets for horn antennas, scintillation counters and shielding containers  an evaluation unit  two  HF  antenna  cables,  one  HF  reference  cable  and  two  HF angle connectors 4.3.2 Measuring Geometry and Measuring Conditions  1. Measuring condition: electrically conductive materials No metals or other materials with high conductivity must be located  between  transmitting  and  receiving  antennas  (in  the radiation field). Measuring pipes or chutes must also not be made of conductive material; otherwise, they have to be provided with an  entrance  window  made  of  plastic,  glass  or  ceramics.  The standard dimensions of these entrance windows have to be chosen with regard to the antenna distance; for standard applications they have to be at least 15 x 15 cm up to 30 x 30 cm. 2. Measuring condition: Filling the chute The bulk good has to be conveyed evenly through the measuring chute and it has to be ensured that the chute is completely filled for the measurement. In some cases, it is advisable to accumulate the  product,  for  example  by  using  a  slider  installed  below  the chute.
  Chapter 4 Getting Started MircoPolar Moist LB 568 47 3. Measuring condition: Homogeneous filling The product must be homogeneous. If the product is not mixed or asymmetrical  in  the  chute,  then  the  moisture  reading  is  not representative  and  the  sampling  (e.g.  for  calibration)  can  be incorrect, see Fig. 4-12.  Figure 4-12: Two different products (e.g. through different moistures) cannot be mixed and filled asymmetrically.   4.3.3 Installation The horn antennas, the scintillation counter and the source with shielding container are mounted with their respective brackets at the measuring chute, typically on the mounting plate provided by Berthold  Technologies,  see  chapter  10.7  Installation  Proposal Measuring Chute. The  measuring  chute  is  installed  into  the  conveyor  flow  at  a suitable location. There must be no tapering of the chute and no installations  at  least  400  mm  before  and  behind  the  measuring chute. In individual cases, these inlet and outlet sections can be shortened; this is planned in the project design phase. Assemble the components as shown in the dimensional drawing in chapter  10.7  Installation  Proposal  Measuring  Chute. All mounting holes for the brackets and the measuring chute are available on the mounting plate so that the measuring paths will be perfectly aligned. Protect the antennas against dust and dirt. Install the measuring chute to your conveyor system such that you are able to reach all parts  of  the  measuring  chute  easily.  Provide  for  a  stable  and vibration-free  mounting  of  the  assembly  plates.  A  material sampling  location  should  be  foreseen  in  the  vicinity  of  the measuring chute for the necessary calibration. If a PT100 is used, it should be oriented in the direction of the H-field, see Figure 3-15 in chapter 3.4.4 The Measuring Chute. The connections of the horn antennas should preferably face down, so that they are better protected.
Chapter 4 Getting Started   48  MircoPolar Moist LB 568 Important:  Bulk  good  has  to  be  conveyed  evenly  through  the measuring chute, and it has to be ensured that the chute is filled completely for the measurement.       Radioactivity! Installation and commissioning of radiometric measuring systems may  be  carried  out  only  by  persons  who  have  been  instructed adequately by professional personnel! Work  is  carried  out  under  the  guidance  and  supervision  of  the Radiation Safety Officer. Make sure that the lock of the shielding is closed.  4.3.4 Installation of the Evaluation Unit Installation of the evaluation unit as described in chapter 4.2.6. 4.3.5 Connecting the HF Cable Installation of the evaluation unit as described in chapter 4.2.7. The two HF angle connectors can be used for the connection of the HF cable to  the  horn  antenna.  The  length of  cable  between  the antenna and evaluation unit may possibly be shortened.
  Chapter 4 Getting Started MircoPolar Moist LB 568 49 4.4  Connecting the Evaluation Unit        Electrical shock hazards Disconnect power to ensure that contact with live part is avoided during installation and when servicing. Turn  off  power  supply  before  opening  the  instrument.  Work  on open and live instruments is prohibited.    Connect  all  desired  input  and  output  signals  to  the  terminal strip as shown on the following pages. Use the M feed-through to keep the degree of protection.   Check if the voltage indicated on the type plate matches your local supply voltage.  Connect the line cable to the terminals 3(L1), 2(N) and 1(PE).  Check if the test switch (mains interruption) is in position "ON" (see Fig. 5-1).  Close the instrument housing and turn on the power supply.   Caution! Possible hazard, property damage! Device type LB 568-02 MircoPolar Moist (ID no. 41990-02) If the 24 V DC auxiliary energy is connected, the + and – poles must  be  connected  correctly.  There  is  no  reverse  voltage protection!  The line cross-section for power supply must be at least 1.0 mm2.
Chapter 4 Getting Started   50  MircoPolar Moist LB 568 4.4.1 Pin Configuration of the Connector Strip On the connector strip of the evaluation unit you find the following connections:  Figure 4-13: Wiring diagram LB 568   Mains connection:  Terminals 3 (L1, +), 2 (N, -) and 1 (PE,      ) Depending on instrument version, see type label on the outer wall of the housing. 1.) 100 - 240 V AC, 50/60 Hz 2.) 18 - 36 V DC, no reverse voltage protection  Current input no. 1 (terminals 20+ and 8-), insulated Input as 0/4 - 20 mA signal. e.g. for temperature compensation or reference signal recording.  Current input no. 2 (terminals 22+ and 10-), not insulated Input as 0/4 - 20 mA signal. e.g. for temperature compensation or reference signal recording.  Current output no. 1 (terminals 27+ and 15-), insulated Output as 4 - 20  mA signal. Output options: moisture content / concentrations (1 / 2), current inputs signals (1 / 2), PT100 signal and mass per unit area
  Chapter 4 Getting Started MircoPolar Moist LB 568 51 Current output no. 2 (terminals 19+ and 7-), insulated Output as 0/4 - 20 mA signal. Output options: See current output no. 1  PT100 (terminals 23+ and 11-) Connection for temperature measurement  Digital input 1: DI1 (terminals 24+ and 12-) Configuration options:  No function  Measurement: Start (closed) and stop (open)  Digital input 2: DI2 (terminals 25+ and 13-) Configuration options:  No function  Average value: hold (closed) and continue averaging (open)  Product selection: product 1 (open) and product 2 (closed)  Digital input 3: DI3 (terminals 26+ and 14-) Configuration options:  No function  Start sampling, open: no action, closed: unique measurement starts  Product selection  Relay 1: (terminals 4, 5 and 6) and Relay 2: (terminals 16, 17 and 18) Change-over contacts (SPDT), insulated, configuration option:  no function  error message  stop measurement  limit value min. and max.  RS485 interface (terminals 21 (RS1) and 9 (RS2)) Occupied by the radiometry board
Chapter 4 Getting Started   52  MircoPolar Moist LB 568 RS232 interface (on instrument underside) 9-pole Sub D-connector. Serial data interface for output of the live data (all readings for every sweep (measuring cycle), the minutes and data logs.  Data format: Data transfer rate 38400 baud, 8 data bits, 1 stop bit, no parity, no handshake  4.4.2 Connecting the Scintillation Counter The scintillation counter is connected to the terminal strip on the radiometry board, see Figure 4-14. The connecting wires can be distinguished by the cable color.  Figure 4-14: Wiring diagram Scintillation counter  The assignment of the terminal strip is as follows:  1 Detector + 2 Detector - 3 RS485-A 4 RS485-B 5 + 24 V 6 Screen 7 24 V GND
  Chapter 4 Getting Started MircoPolar Moist LB 568 53 4.4.3 Digital Outputs, Relay The status of the measurement is output via two relays:  Error  Alarm (alarm min. and max.)  measurement stopped  The  respective  switching  status  is  also  signaled  via  LED’s on the front panel (LED’s signal 1 and 2).   Relay no. Error, alarm, measurement stopped, currentless state Normal 1    2    The  relays  with  changeover  contacts  can  either  be  operated  as make  contact,  terminals  4  &  5  (open  at  error,  alarm  ...)  or  as break contact, terminals 5 & 6 (closed at error, alarm ...). com 4 5 6 com 16 17 18  com 4 6 5  com 16 18 17
Chapter 5 Service Instructions   54  MircoPolar Moist LB 568 Chapter 5. Service Instructions 5.1  General Information A  malfunction  of  the  measuring  system  is  not  always  due  to  a defect  in  the  instrument.  Often  the  error  is  caused  by  incorrect operation, wrong installation, or irregularities in the product being measured. If a malfunction occurs, anyway, the measuring system helps  you  to  identify  and  eliminate  errors  by  displaying  error messages on the LCD, indicating operator errors and defects of the electronics.  Usually, faulty modules of the evaluation unit cannot be repaired but  have  to  be  replaced.  The  microwave  module  is  fixed  with screws to a shielding cover and must not be opened.  The locking mechanism of the shielding container has to work. In case of malfunctions or sluggishness, please contact the Berthold Technologies service. 5.2  Parts Subject to Wear The evaluation unit does not include any parts that are subject to wear or components requiring any special maintenance.  Depending on the material to be measured, the measuring chute may be subject to wear over time; therefore, you should check it at  regular  intervals.  The  measuring  chute  must  be  replaced  if required due to heavy wear. 5.3  Instrument Cleaning Clean all system components only with a moistened cloth without chemical cleaning agent.  The  horn  and  spiral  antennas  do  not  require  any  special maintenance; however, the radiation exit window should always be kept clean. 5.4  Battery If the measuring system LB 568 is without power supply (power failure or disconnected from mains), the system clock is supplied with power via the Lithium battery on the motherboard.  If the  battery  voltage is  no  longer  sufficient, the  error  message CODE  14  "Battery  voltage"  is  displayed  after  restart  of  the evaluation unit. After acknowledging the error message the device
  Chapter 5 Service Instructions MircoPolar Moist LB 568 55 will continue to function correctly, but the date and time should be checked and corrected if necessary. We recommend changing the batteries immediately.  After battery replacement and if the zero count rate is set (I0, for the  radiometric  mass  per  unit  area  measurement),  the  error message CODE 105 "Decay compensation failed: Enter date/time" is displayed. Please check and correct the date and time so that the decay compensation can work properly.  The service life of the battery, even under continuous load, is at least  8  years.  Replace  the  fuses  only  if  the  instrument  is disconnected from mains. Battery type: 3 Volt lithium cell (round cell battery), type CR2032 (ID no. 17391) 5.5  Fuse Replacement The mains fuses  of  the LB  568  are  located  in the  wall  housing. Replace  the  fuses  only  if  the  instrument  is  disconnected  from mains. Use only fuses with correct rating:  Device version Fuse values ID no. 100 ... 240 V AC 2 x 2.0 A / 250 V / T 4403 18 ... 36 V DC 2 x 6.3 A /250 V / M 4408   Spare fuses must match the rating specified by the device manufacturer. Short-circuiting or manipulation is not permitted.  Figure 5-1: Look inside the instrument LB 568
Chapter 6 Technical Data   56  MircoPolar Moist LB 568 Chapter 6. Technical Data  General Specifications Method      Microwave transmission measurement Transmission power < 10 μW (< -20 dBm), Coaxial line power Applications   Concentration / moisture measurement on conveyor belts and in chutes. 6.1  Technical Data Evaluation Unit Evaluation unit Housing       Wall housing made of stainless steel, see dimensional drawing in chapter 10.1 HxWxD: 400x338x170 mm, Protection type IP 65 Weight approx. 8.0 kg Ambient conditions during operation Relative humidity: max. 80% in the housing Altitude: max. 2000 m -20...45 °C ( 253 K ...318 K ), no condensation Ambient conditions during storage -20...70 °C ( 253 K ...343 K ), no condensation Relative humidity: max. 80 % Achievable accuracy  0.1 weight % (standard deviation) depending on product and process Display Dot matrix LC display, 114 mm x 64 mm, 240 x 128 pixels, with back-lighting, automatic contrast setting Keyboard Freely accessible foil keypad, light-stable and weatherproof: alphanumeric keyboard and 4 softkeys (software-assigned buttons)
  Chapter 6 Technical Data MircoPolar Moist LB 568 57  Power supply   Depending on instrument version: 1.) 100...240 V AC, 50/60 Hz 2.) 24 V DC: 18 ... 36 V,      no reverse voltage protection Power consumption max. (48/60) VA (AC/DC), depending on configuration Fuses 2 x 250 V / 2.0 A / slow-blow at 100…240 V AC ID no. 4403 or 2 x 250 V / 6.3 A / M at 18…36 V DC; ID no. 4408 Battery type 3 V Lithium button cell, type CR2032 ID no. 17391 Measured value e.g. concentration, moisture content Inputs and Outputs Cable cross-section min. 1.0 mm² (mains supply) Cable feed-through     2 x M20x1.5 for cable 5...14 mm (depending on application) 4 x M16x1.5 for cable 5 ...8 mm (depending on application) Sensor connection         Inputs and outputs for signal and reference channel, 50  N-socket HF-cable   HF-cable Different cable lengths and versions: 50 ; both sides with 4 N-connectors  Current input       2 x current input 0/4 ...20 mA, ohmic resistance 50 , 1x insulated, 1x instrument grounded e.g. for temperature compensation Current output   Current Output 1: 4...20 mA, ohmic resistance max. 800  , insulated Current output 2: 0/4...20 mA, ohmic resistance max. 800  , insulated e.g. for result or temperature output  PT-100 connection Measuring range: -50...200 °C (223...473 K); measurement tolerance: < 0.4 °C
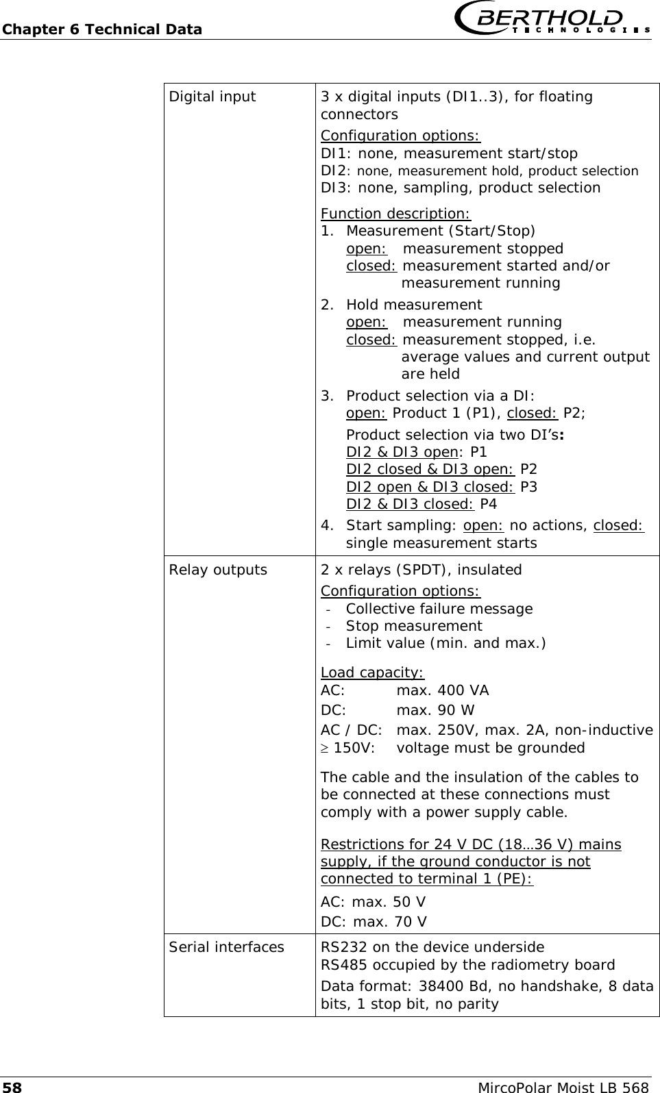
Chapter 6 Technical Data   58  MircoPolar Moist LB 568  Digital input 3 x digital inputs (DI1..3), for floating connectors Configuration options: DI1: none, measurement start/stop DI2: none, measurement hold, product selection DI3: none, sampling, product selection Function description: 1. Measurement (Start/Stop) open:   measurement stopped closed: measurement started and/or            measurement running 2. Hold measurement open:   measurement running closed: measurement stopped, i.e.            average values and current output            are held 3. Product selection via a DI:   open: Product 1 (P1), closed: P2; Product selection via two DI’s: DI2 & DI3 open: P1 DI2 closed & DI3 open: P2 DI2 open & DI3 closed: P3 DI2 & DI3 closed: P4 4. Start sampling: open: no actions, closed: single measurement starts Relay outputs 2 x relays (SPDT), insulated Configuration options: - Collective failure message - Stop measurement - Limit value (min. and max.)  Load capacity: AC:   max. 400 VA DC:   max. 90 W AC / DC:  max. 250V, max. 2A, non-inductive  150V:   voltage must be grounded  The cable and the insulation of the cables to be connected at these connections must comply with a power supply cable.  Restrictions for 24 V DC (18…36 V) mains supply, if the ground conductor is not connected to terminal 1 (PE): AC: max. 50 V DC: max. 70 V Serial interfaces     RS232 on the device underside RS485 occupied by the radiometry board Data format: 38400 Bd, no handshake, 8 data bits, 1 stop bit, no parity
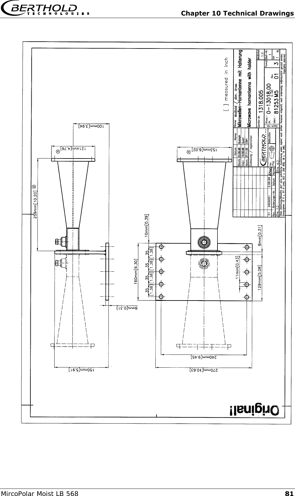
  Chapter 6 Technical Data MircoPolar Moist LB 568 59 6.2  Technical Data Horn and Spiral Antennas  Horn antenna (ID no.: 10806) Application       Used in pairs, for example on conveyor belts and chutes for the moisture measurement in bulk goods. Material         Stainless steel, microwave window made of Makrolon Weight         1.4 kg Temperature range   Ambient temperature: -20...60 °C (253...333 K) Storage temperature: 10...80 °C (283...353 K) Connection       1 x HF connections: N-connector, 50   Dimensions         See dimensional drawings in chapter 10.4.1 Accessories antenna fixture (ID no. : 10805) Material Galvanized steel Weight         3.8 kg Dimensions         See dimensional drawings in chapter 10.4.1   Spiral antenna (ID no. : 15394) Application       Used in pairs, for example on conveyor belts and chutes for the moisture measurement in bulk goods. Material         Stainless steel, plastic Weight         0.4 kg Temperature range   Ambient temperature: -20…60 °C (253...333 K) Storage temperature: 10...80 °C (283...353 K) Connection       1 x HF connections: N-connector, 50   Dimensions         See dimensional drawings in chapter 10.4.2
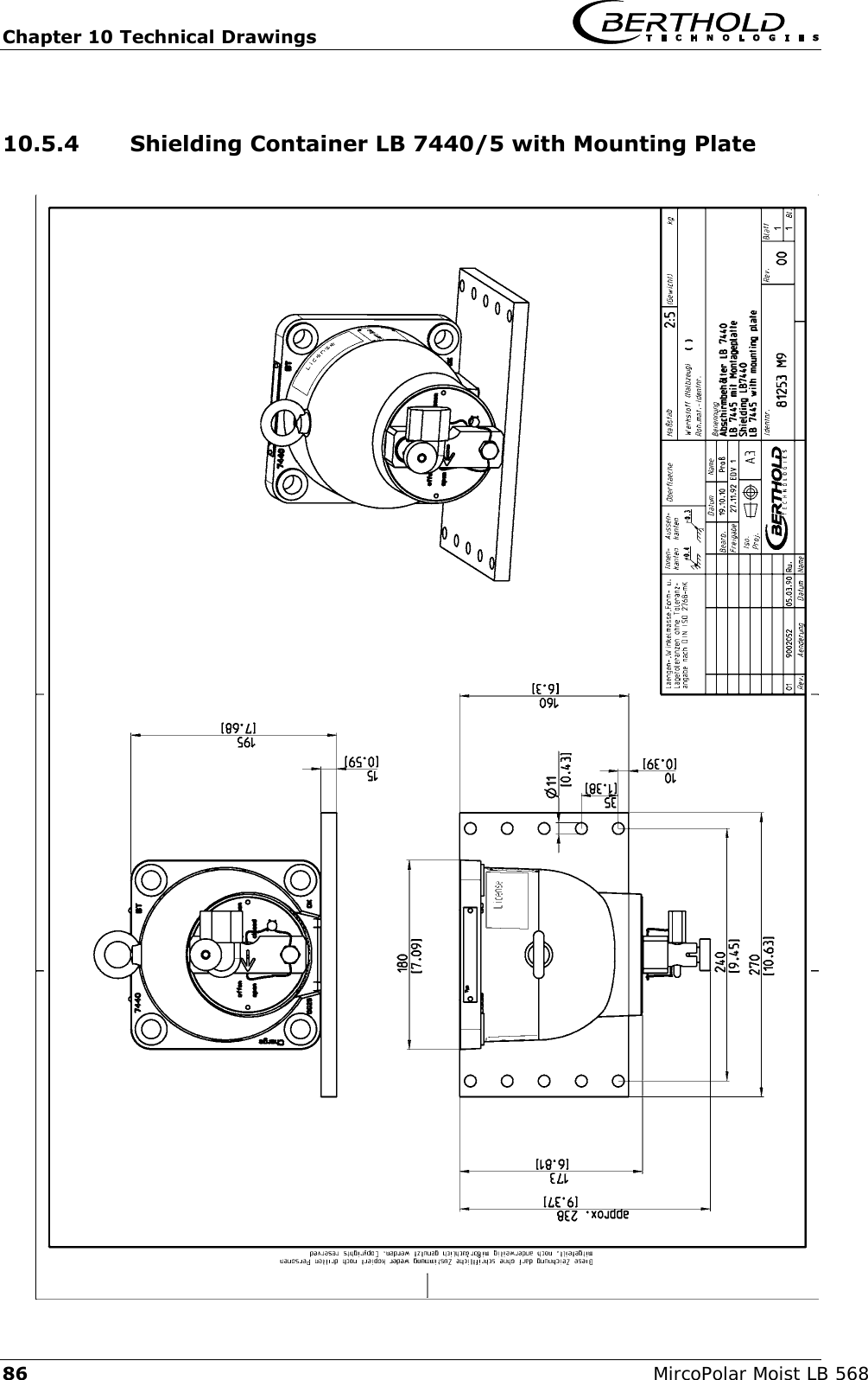
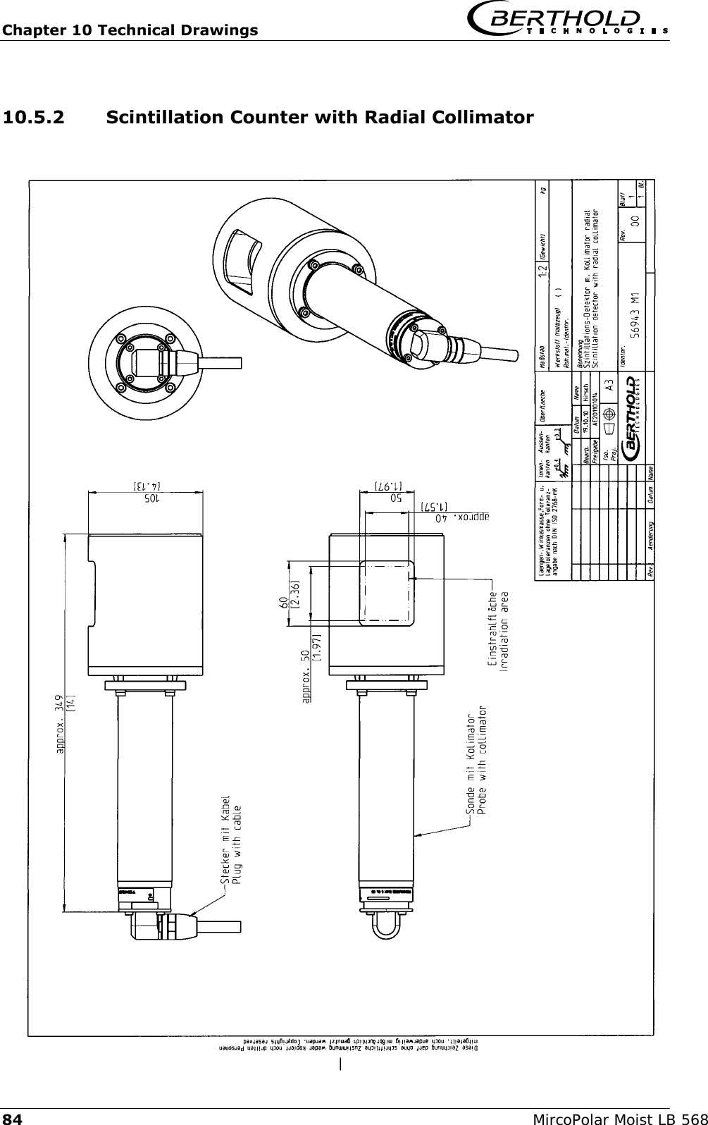
Chapter 6 Technical Data   60  MircoPolar Moist LB 568 6.3  Technical Data Radiometric Mass per Unit Area Measurement  Scintillation counter Versions 1. With axial collimator (Id. 56942), for frontal irradiation 2. With radial collimator (Id. 56943), for radial irradiation Crystal CsI 40 x 50 Material         Stainless steel Collimator: Lead, painted steel Protection type IP 67 Weight         Without collimator: approx. 2 kg With axial collimator: approx. 10.6 kg With radial collimator: approx. 10 kg Power supply 12...24 V DC, 1.2 W Operating temperature   -20...50 °C (253...323 K) Storage temperature -20...60 °C (253...333 K) Connection cable       3 m long, 7-wire, shielded (7 x 0.5 mm2), cable connection angled 90°, temperature range: -40…70 °C (233…343 K) Dimensions         See dimensional drawings in chapter 10.5 Accessory mounting options  ID no. Description 56860 Scintillation counter bracket, complete Material: galvanized steel, plastic Dimensional drawings in chapter 10.5 25668 Clamps (1 set = 2 clamps)
  Chapter 6 Technical Data MircoPolar Moist LB 568 61  Shielding for point sources (LB 744X) ID no.:       Types: 37624         LB 7440-D-CR, internal parts made of stainless steel 38040         LB 7440-DE-CR, stainless steel 38042   LB 7445-D-CR, internal parts made of stainless steel, with leakage protection 38043 LB 7445-DE-CR, stainless steel, with leakage protection Shielding accessories ID no.:       Types: 14716         Shielding bracket, complete for LB 7440 D 52752         Protective cover for shielding LB 7440/42/44 11213   Radiation sign (RADIOACTIVE), plastic 14658 Radiation sign (RADIOACTIVE), aluminum  Pneumatic shutter for shielding  ID no.:       Description 36119       Pneumatic shutter actuator with limit switch, IP 65 Data for pneumatic shutter actuator Compressed air: min. 4 x 105 Pa (4 bar) max. 4 x 105 Pa (7 bar) Connection: G 1/8 Air quality: Clean as usual for pneumatic tools, oil-free Temperature range: -20…80 °C Limit switch unit, signaling options for OPEN / CLOSE Option IP 65 2 contacts (OPEN/CLOSE) 48 V DC, 1A  Point source Cs-137 ID no.:       Made of stainless steel 54712-08       Pt. source Cs-137 370 MBq (10 mCi) - SSC-200 54712-12         Pt. source Cs-137 1110 MBq (30 mCi) - SSC-200 54712-13         Pt. source Cs-137 1850 MBq (50 mCi) - SSC-200 ID no.:       Made of titanium 54281-08       Pt. source Cs-137 370 MBq (10 mCi) – SSC-100 54281-12         Pt. source Cs-137 1110 MBq (30 mCi) – SSC-100 54281-13         Pt. source Cs-137 1850 MBq (50 mCi) – SSC-100
Chapter 6 Technical Data   62  MircoPolar Moist LB 568 6.4  Technical Data Measuring Chute  Measuring chute, complete Application For moisture and concentration determination in bulk material. Variants / Chute material       1. Polypropylen homo polymer (PP-H)     ID no. 56855 2. Polyvinylidene fluoride (PVDF),     ID no. on request Components - Chute - Mounting plate - 4 brackets - two RF angle connectors - Fastening material           Weights         Only for the chute: Version 1: approx. 10 Kg Version 2: on request Measuring chute, complete Version 1: approx. 41 Kg Version 2: on request   Temperature range   Environment: 0...50 °C (273...323 K) Storage: 10...80 °C (283...353 K) Product temperature: Version 1: > 0...90 °C (273...363 K) Version 2: > 0…140 °C (273 … 413 K) Mounting plates, brackets     Material: Stainless steel, galvanized steel Dimensions         See dimensional drawings in chapter 10.7
  Chapter 6 Technical Data MircoPolar Moist LB 568 63 6.5  Technical Data HF-Cable  HF cable Material       Cable sheath: Polyethylene (PE) Protection type         IP 68 in the screwed on state Temperature   Operating temperature:  -40...85 °C Installation temperature:  -40...85 °C Installation temperature:  -40...85 °C Attenuation load approx. 0.3 dB / m   Cable length [m] ID no. 0.5 11473 1.0 11474 1.5 11475 2.0 11476 2.5 11477 3.0 11478 3.5 11479 4.0 11480
Chapter 6 Technical Data   64  MircoPolar Moist LB 568 6.6  Serial Data Output RS232 Format Headline Date·TimeStateStatusDetectorStatusSynchronizerProductAttPhiPhi(f=0) R2CorrTintIN1IN2Pt100CCmC2C2mCpsMDetTempMpua¶ Following lines 01.01.2005·00:00:00000000510.435.303.11 1                                  2      3   4   5   6       7       8       9  0.070.980.00.00.00.075.3675.000.000.00365335.810.25¶ 10        11    12    13    14    15     16        17      18       19     20      21       22  Column no. Description Format 1 Date and time DD.MM.YY·HH:MM:SS 2 State 4 digits, HEX 3 Status: Information on the quality of the last measurement 0    : Measurement OK < 0 : Error 4 Detector status: Information on the quality of the last measurement 0    : Measurement OK < 0 : Error 5 Product synchronization 5 : not active 1: still asynchronous 0: all values synchronous -1: Error -2: Time to short for syn. -3: Speed outside range 6 Product number X (1 to 4) 7 Attenuation [dB] X.XX 8 Phase [°/GHz] X.XX 9 Phase offset (phase at frequency = 0 Hz) X.XX 10 Dispersion of the phase regression X.XX 11 Correlation of the phase regression X.XX 12 Device temperature [temperature unit] X.X 13 Current input 1 [unit of current input] X.X 14 Current input 2 [unit of current input] X.X 15 PT100 temperature [temperature unit] X.X
  Chapter 6 Technical Data MircoPolar Moist LB 568 65 16 Concentration 1 live X.XX 17 Concentration 1 averaged X.XX 18 Concentration 2 live X.XX 19 Concentration 2 averaged X.XX 20 Averaged count rate [counts/s] X 21 Detector temperature [°C] X.X 22 Mass per unit area [g/cm2] X.XX  Special characters  “” Tabulation “¶” Carriage return + Line feed    “·” Blank characters
Chapter 7 Other Compensation Options   66  MircoPolar Moist LB 568 Chapter 7. Other Compensation Options 7.1  Optional Loading Compensation At constant  bulk  density  or if the mass per unit  area is already known,  one  may  not  need  the  radiometric  measurement  path under  certain  circumstances.  In  this  case,  there  are  alternative compensation options, see the following chapter. 7.1.1 Mass per Unit Area Compensation The  influence  of  a  varying  material  layer  thickness  and  bulk density  disappears  through  standardization  with  regard  to  the irradiated mass per unit area. The compensation is calculated as follows: Load = mass per unit area [g/cm2]      Eq. 7-1 The mass per unit area signal supplies a 0(4)...20 mA signal.   IMPORTANT Current input 1 must be used for this mass per unit area compensation via an external current signal.  7.1.2 Layer Thickness Compensation If only the layer thickness of the product to be measured changes, one has to compensate as follows: Load = Loading level [cm]        Eq. 7-2 The  layer  thickness  supplies  a  0(4)...20  mA  signal  which  is proportional to the distance from the product surface to a sensor installed above it.   IMPORTANT Current input 1 must be used for this compensation.
  Chapter 7 Other Compensation Options MircoPolar Moist LB 568 67 7.1.3 Weight/Throughput Compensation If the material cross-section is rectangular (see Fig. 7-1), the mass per  unit  area  [g/cm²]  is  proportional  to  the  weight  per  length [kg/m].  Thus,  the  loading  compensation  becomes  linear;  it  is calculated as follows: Load = Weight [kg]           Eq. 7-3 The  0(4)...20  mA  signal  is  supplied  by  an  existing  weighing system.  If the weighing system supplies a throughput signal (T/h), either the conveyor belt speed must be constant, or the belt speed must be  fed  as  0(4)…20  mA  signal  into  the  evaluation  unit  via  the second  current  input.  The  compensation  is  then  calculated according to:  ]s/m[ speed Belt]h/T[ ThroughputLoad  Eq. 7-4    IMPORTANT The throughput signal must be fed in via current input 1 and the speed signal via current input 2.  Figure 7-1: Rectangular material cross-section with weighing system
Chapter 7 Other Compensation Options   68  MircoPolar Moist LB 568 7.1.4 Layer Thickness and Weight Compensation The  compensation  of  weight  and layer height  can  be  combined. Prerequisite is a rectangular material cross-section, as described in chapter 7.1.3. The compensation is then calculated according to: Load = layer thickness [cm] x weight [kg]  Eq. 7-5 The layer thickness and the weight supply a 0(4)...20 mA signal each. The compensation signal of the weighing station can be used as throughput  signal  only  if  the  speed  is  constant.  Varying  belt speeds cannot be taken into consideration.   IMPORTANT The weight signal must be fed in via current input 1 and the layer thickness signal via current input 2.
  Chapter 7 Other Compensation Options MircoPolar Moist LB 568 69 7.2  Temperature Compensation In general, temperature compensation (TC) is not required for bulk material. If  the  product  temperature  has  a  significant  impact  on  the microwave measuring signals phase or attenuation, a TC should be connected. To this end, a temperature signal (0/4.20 mA or PT-100) is connected to the evaluation unit and the TC is activated in the evaluation unit. The evaluation unit is designed such that the required TC’s can be calculated automatically. The variation in temperature where TC is required is dependent on the product and the water content. The TC corrects the phase and attenuation before calculating the measured value (calibration), in most applications according to the following formulas (linear compensation, additive).  Kmesskomp  Eq. 7-6  Dmesskomp KDD Eq. 7-7  Where:  meas   = measured phase  comp  = compensated phase Dmeas   = measured attenuation Dmeas  = compensated attenuation K  = temperature coefficient of the phase Katt  = temperature coefficient of the attenuation     = measured temperature (Tmeas ) – reference temp. (TRef)  Depending  on  the  selected  function  (additive,  multiplicative, quadratic, cubic), the required temperature coefficients appear on the Calibration menu. Temperature coefficients that are not used are set to zero.  If you select two-range calibration (split concentration), separate TC’s  have  to  be  entered  for  both  concentration  ranges.  The coefficients are entered in the course of calibration.  TC can be carried out via Pt100 or via current input. This has to be defined on the Calibration menu. The Pt100 temperature range is between –50 and +200 °C. How to work with the temperature compensation is described in detail in the Software Manual.
Chapter 7 Other Compensation Options   70  MircoPolar Moist LB 568 7.3  Synchronization of the Current Input Signals The  LB  568  offers  the  option  to  synchronize  the  current  input signals with the microwave information. The current input signals are stored temporarily. This function is helpful, for example, if the weighing system (z. B. belt weigher) is located in a certain distance from the microwave measuring  path.  By  means  of  the  synchronization,  both measurements  can  be  correlated  with  each  other,  so  that  both measurement information come from the same product. If  a  weight/throughput  signal  for  loading  compensation  will  be used and if the weighing system is more than 5 m away from the microwave measuring path, then - depending on the belt speed - the  weight/throughput  signal  has  to  be  synchronized  with  the microwave  information  so  that  both  signals  measure  the  same product. The minimum distance is:  5 x v  Eq. 7-8 Where: v = belt speed [m/s]  The  permissible  maximum  distance  of  both  measuring  devices depends on the belt speed and is calculated as follows:   Belt speed [m/s] Maximum distance [m] < 1 50 > 1 100  Min. distance Max. distance
  Chapter 7 Other Compensation Options MircoPolar Moist LB 568 71 Figure 7-2: Synchronized belt weigher signal  1 The weighing system can be set up before or after the microwave measuring path.     The belt speed should not exceed 5 m/s when the synchronization is used. Varying conveyor belt speed A  varying  belt  speed  has  to  be  taken  into  account  for  the synchronization. The speed signal has to be fed into the evaluation unit as 0/4…20 mA via current input 2.    Belt speed
Chapter 8 Radiation Protection Guidelines   72  MircoPolar Moist LB 568 Chapter 8. Radiation Protection Guidelines  8.1  Basics and Directives The  radioactive  isotopes  used  for  mass  per  unit  area measurements  emit gamma  radiation.  Gamma  radiation consists of  high-energy  electromagnetic  radiation,  i.e.  it  is  a  type  of radiation which resembles light, but has a much higher energy, so that it can pass through matter having a higher density. This high-energy  radiation  is  hazardous  to living  beings  (cell  damage  and mutations).  To  keep this risk low,  radioactive materials must  be handled carefully. The radioactive sources used for mass per unit area measurements are usually sealed sources, i.e. the actual radioactive substance is surrounded by at least one, often several sealed layers made of stainless  steel,  each  of  which  is  checked  individually  for  leaks. Another check ensures that no radioactive particles are deposited on  the  surface  of  the  capsule.  The  user  will  receive  an  official certificate specifying these features of the radioactive source. To avoid health hazards when working with radioactive substances, limits for the maximum permissible radiation exposure of operating personnel  have  been  established  on  an  international  level.  The following  information  refers  to  the  German  Radiation  Protection Ordinance as of August 2001. Appropriate  measures  in  the  design  of  the  shieldings  and  the arrangement  of the  measuring  device  at  the  measuring  location ensure  that  the  radiation  exposure  of  the  personnel  will  remain below the maximum permissible value of 1 mSv (100 mrem) per year.  To  ensure  proper  handling  and  compliance  with  statutory requirements,  the  company  must  appoint  a  Radiation  Protection Officer  who  is  responsible  for  all  radiation  protection  issues associated with the measuring equipment. The  Radiation  Protection  Officer  shall  monitor  the  use  of  the radiometric  measuring  device  and,  if  necessary,  formalize  the safeguards  and  any  special  precautions  applicable  to  a  given establishment  in  formal  procedural  instructions,  which  in  special cases may serve as a basis for radiation protection guidelines. This may  be  necessary,  for  example,  if  a  container  can  be  accessed and, therefore, it must be ensured that the active beam is shielded first  by  the  shielding.  Radiation  protection  zones  outside  the shielding - if they are accessible - must be marked and guarded.  These instructions should also include checks of the shutter device of  the  shielding  and  measures  for  serious  operational  trouble  - such as fire or explosion.
  Chapter 8 Radiation Protection Guidelines MircoPolar Moist LB 568 73 Unusual incidents must immediately be reported to the Radiation Safety Officer who will then investigate any damage on site and immediately  take  suitable  precautions  if  he  detects  defects  that may adversely affect the function or safety of the system. The  Radiation  Protection  Officer  has  to  ensure  also  that  the provisions of the Radiation Protection Ordinance are complied with. In particular, his duties include instructing the staff on the proper handling of radioactive substances. Radioactive sources that are no longer in use or have reached the end  of  their  service  life  must  be  returned  to  a  public  collection point or to the supplier. Basically, every company employee should strive, through prudent behavior and by observing the radiation protection rules, to keep the radiation exposure, even within the permissible limits, as low as possible.  The sum of the radiation absorbed by the body is determined by three  variables,  which  can  be  derived  from  the  basic  radiation protection rules:
Chapter 8 Radiation Protection Guidelines   74  MircoPolar Moist LB 568  Distance      This  means  the  distance  between  radioactive  source  and  human body. The radiation intensity (dose rate) follows - just like light - an inverse square law. This means that doubling the distance from the source will reduce the dose rate to a quarter. Conclusion: Keep  the  maximum  distance  when  carrying  out  any  work  in  the vicinity  of  equipment  containing  radioactive  material.  This  is especially  true  for  persons  who  are  not  directly  involved  in  this work.   Time    The  total  time  a  person  stays  in  the  vicinity  of  a  radiometric measuring system and the body is exposed to radiation. The effect is cumulative and is, therefore, greater the longer the exposure to radiation. Conclusion: Required work in the vicinity of radiometric measuring devices has to be carefully prepared and organized so that it can be done in the shortest possible time. Providing the proper tools and resources is particularly important.   Shielding   The  shielding  effect  is  provided  by  the  shielding  material surrounding  the  source.  Because  the  shielding  effect  is  in  an exponential relationship to the product of thickness and density of the shielding material, shielding materials with high specific weight are  required.  Sufficiently  large  dimensions  of  the  shieldings  are usually calculated by the supplier. Conclusion: Before installing or dismantling the shielding, make sure that the radiation exit channel is closed. The source must not be removed from the shielding and must not remain unshielded.
  Chapter 8 Radiation Protection Guidelines MircoPolar Moist LB 568 75 8.2  Emergency Instructions In case of serious operational trouble, such as fire or explosion, which may affect the radiometric measuring system, it cannot be ruled  out  that  the  function  of  the  shielding  lock,  the  shielding effect  or  the  stability  of  the  source  capsule  have  been compromised. In this case, it is possible that persons in the vicinity of the shielding have been exposed to higher levels of radiation. If  you  suspect  such  a  severe  malfunction,  the  Radiation  Safety Officer has to be notified immediately. He will then investigate the situation immediately and take all necessary provisions to prevent further damage and to avoid any unnecessary radiation exposure of operating personnel. The Radiation Safety Officer has to make sure that the measuring system is no longer in operation and then take appropriate steps. He may have to inform the authorities or contact the manufacturer or supplier of the measuring system, so that any further action be taken under expert supervision.
Chapter 9 Certificates       MircoPolar Moist LB 568 Chapter 9. Certificates 9.1  EC Declaration of Conformity
  Chapter 10 Technical Drawings MircoPolar Moist LB 568 77 Chapter 10. Technical Drawings 10.1  Dimensional Drawing Evaluation Unit Case
Chapter 10 Technical Drawings   78 MircoPolar Moist LB 568 10.2  Electrical Wiring Diagram
  Chapter 10 Technical Drawings MircoPolar Moist LB 568 79 10.3  Electrical Wiring Diagram Scintillation Counter
Chapter 10 Technical Drawings   80 MircoPolar Moist LB 568 10.4  Dimensional Drawings Horn and Spiral Antennas 10.4.1 Horn Antenna and Horn Antenna Brackets
  Chapter 10 Technical Drawings MircoPolar Moist LB 568 81
Chapter 10 Technical Drawings   82 MircoPolar Moist LB 568 10.4.2 Spiral Antennas
  Chapter 10 Technical Drawings MircoPolar Moist LB 568 83 10.5  Dimensional Drawings Radiometric Measuring Path 10.5.1 Scintillation Counter with Axial Collimator
Chapter 10 Technical Drawings   84 MircoPolar Moist LB 568 10.5.2 Scintillation Counter with Radial Collimator
  Chapter 10 Technical Drawings MircoPolar Moist LB 568 85 10.5.3 Scintillation Counter with Bracket
Chapter 10 Technical Drawings   86 MircoPolar Moist LB 568 10.5.4 Shielding Container LB 7440/5 with Mounting Plate
  Chapter 10 Technical Drawings MircoPolar Moist LB 568 87 10.5.5  Mounting Plate for Shielding Container
Chapter 10 Technical Drawings   88 MircoPolar Moist LB 568 10.6  Installation Proposal at the Conveyor Belt
  Chapter 10 Technical Drawings MircoPolar Moist LB 568 89 10.7  Installation Proposal at the Measuring Chute
Index   90 MircoPolar Moist LB 568 Index  A Accuracy .............................................................................. 56 Antenna distance ................................................................. 24 Assembly conditions ............................................................ 24 B Battery ................................................................................. 54 C Calculation of measured values ........................................... 15 Chute measurement configuration...................................... 32 Compensation ...................................................................... 16 Components ........................................................................ 20 Conductive materials ........................................................... 16 Connection scintillation counter .......................................... 52 Connector strip .................................................................... 50 Conveyor measurement configuration ................................ 31 D Data format RS232............................................................... 64 Data transfer rate ................................................................ 52 Digital outputs ..................................................................... 53 Dimensional drawing EVU case ........................................... 77 E Evaluation unit ............................................................... 13, 22 F Factory setting ..................................................................... 13 Format RS232 ...................................................................... 64 Fuses .................................................................................... 55 G Gas inclusions ...................................................................... 12 H HF cable ............................................................................... 30 Horn antennas ..................................................................... 24 I Instrument cleaning ............................................................. 54 L Law of absorption ............................................................... 19 LED’s .............................................................................. 23, 53 Limitations .......................................................................... 16 Loading compensation ........................................................ 17 M Mains connection ................................................................ 49 Mains fuses ......................................................................... 55 Mass per unit area ........................................................ 18, 19 Measuring chute ................................................................. 29 Measuring conditions .................................................... 34, 46 Minimum load ..................................................................... 35 O Optional loading compensation .......................................... 66 P Parts subject to wear .......................................................... 54 Polarization ..................................................................... 24 Principle of measurement ................................................... 14 R Radiometric measuring path ............................................... 26 Reference temperature ....................................................... 69 Relay .................................................................................... 53 RS232 interface ................................................................... 52 RS485 interface ................................................................... 51 S Safety Summary .................................................................... 7 Salt content ......................................................................... 12 Service instructions ............................................................. 54 Shielding .............................................................................. 27 Spiral antennas .................................................................... 24 Steel-wire reinforced conveyor belt.............................. 38, 44 Symbols ................................................................................. 7 Synchronization ................................................................... 70 T Technical data ..................................................................... 56 Technical data HF-cable ...................................................... 63 Technical drawings .............................................................. 77 Temperature compensation ......................................... 16, 69
  Index  MircoPolar Moist LB 568 91 Terminal blocks ................................................................... 23 Torque of HF connector ...................................................... 45 Transmission power ............................................................ 56 Transport ............................................................................. 33 W Warning ................................................................................. 7 Wiring diagram .................................................................... 78
             detect and identify Process Control ID No. 41990BA2 Rev. No.: 02  15.06.2015 Software Version ≥ 1.0 User's Guide - Software Manual - Concentration / Moisture Measuring System  MicroPolar Moist  LB 568
    MicroPolar Moist LB 568   The  units  supplied  should  not  be  repaired  by  anyone  other  than  Berthold Technologies Service engineers or technicians by Berthold Technologies.  In  case  of  operation  trouble,  please  address  to  our  central  service  department (address see below).   The complete user’s guide consists of two manuals, the hardware description and the software description.  The hardware manual comprises the  safety summary  component description  assembly instructions  electrical installation description  technical data  certificates  dimensional drawings  The software manual comprises the description of the  operation  software functions  calibration  error messages   The present manual is the software description.   Subject to changes without prior notice.  BERTHOLD TECHNOLOGIES GmbH & Co. KG Calmbacher Str. 22  75323 Bad Wildbad, Germany  Phone +49 7081 177 0    Phone +49 7081 177 111 Fax    +49 7081 177 100    Fax    +49 7081 177 339 industry@Berthold.com    Service@Berthold.com www.Berthold.com
Table of Contents    4  MicroPolar Moist LB 568 Table of Contents     Page  CHAPTER 1. SAFETY SUMMARY ................................................................................................................................... 6 CHAPTER 2. GENERAL INFORMATION.......................................................................................................................... 7 CHAPTER 3. SOFTWARE FUNCTIONS............................................................................................................................ 8 3.1 INFORMATION ON THE MENU STRUCTURE.................................................................................................................... 8 3.2 MENU STRUCTURE .................................................................................................................................................. 9 3.2.1 Start Menu ................................................................................................................................................ 11 3.2.2 Diagnostic ................................................................................................................................................. 11 3.2.3 Setup ......................................................................................................................................................... 13 3.2.4 Access Level .............................................................................................................................................. 14 3.2.5 Language .................................................................................................................................................. 14 3.2.6 Configuration ............................................................................................................................................ 15 3.2.7 General Data ............................................................................................................................................ 17 3.2.8 Measurement ........................................................................................................................................... 17 3.2.9 Plausibility ................................................................................................................................................ 17 3.2.10 Phase Measure ......................................................................................................................................... 18 3.2.11 Synchronization ........................................................................................................................................ 20 3.2.12 Calibration ................................................................................................................................................ 21 3.2.13 System Adjust ........................................................................................................................................... 21 3.2.14 Calibrate Concentration............................................................................................................................ 22 3.2.15 Sample Table ............................................................................................................................................ 23 3.2.16 Sample Data (expanded) .......................................................................................................................... 24 3.2.17 Advanced .................................................................................................................................................. 24 3.2.18 Calibration ................................................................................................................................................ 25 3.2.19 Temperature Compensation ..................................................................................................................... 26 3.2.20 Loading Compensation ............................................................................................................................. 27 3.2.21 Inputs / Outputs ........................................................................................................................................ 29 3.2.22 Current Output ......................................................................................................................................... 29 3.2.23 Current Out 1 ............................................................................................................................................ 29 3.2.24 Current Out 2 ............................................................................................................................................ 30 3.2.25 Current Input ............................................................................................................................................ 31 3.2.26 Current In 1 ............................................................................................................................................... 31 3.2.27 Current In 2 ............................................................................................................................................... 31 3.2.28 PT100 ........................................................................................................................................................ 32 3.2.29 Digital Output ........................................................................................................................................... 33 3.2.30 Digital Input .............................................................................................................................................. 33 3.2.31 Service....................................................................................................................................................... 35 3.3 MENU STRUCTURE RADIOMETRIC DETECTOR .............................................................................................................. 37 3.3.1 Configuration Radiometric Detector......................................................................................................... 37 3.3.2 Service Radiometric Detector ................................................................................................................... 39 3.4 LIVE DISPLAY ........................................................................................................................................................ 41
  Table of Contents MicroPolar Moist LB 568  5  CHAPTER 4. CONFIGURATION .................................................................................................................................... 42 4.1 CONFIGURATION SETUP ........................................................................................................................................... 42 4.1.1 General Data ............................................................................................................................................. 42 4.1.2 Measurement ............................................................................................................................................ 43 4.1.3 Plausibility ................................................................................................................................................. 43 4.1.4 Microwave/Cable ...................................................................................................................................... 44 4.1.5 Configuration Radiometry ......................................................................................................................... 45 4.1.6 Marker ....................................................................................................................................................... 45 4.1.7 Units .......................................................................................................................................................... 46 4.2 START CALIBRATION COEFFICIENTS ............................................................................................................................ 47 4.3 CONFIGURATION PLAUSIBILITY .................................................................................................................................. 48 CHAPTER 5. CALIBRATION ......................................................................................................................................... 49 5.1 SCINTILLATION COUNTER CALIBRATION ...................................................................................................................... 49 5.2 SYSTEM CALIBRATION ............................................................................................................................................. 50 5.2.1 Verifying the Reference Values .................................................................................................................. 52 5.2.2 Tare Measurement .................................................................................................................................... 53 5.3 SAMPLING ............................................................................................................................................................ 55 5.3.1 Entering the Lab Values ............................................................................................................................. 58 5.4 CALIBRATION ......................................................................................................................................................... 59 CHAPTER 6. CALIBRATION AND OPTIONS .................................................................................................................. 60 6.1 CONFIGURATION PHI/ATT RATIO PLAUSIBILITY ............................................................................................................ 60 6.1.1 Phi/Att Ratio .............................................................................................................................................. 60 6.1.2 Process Recording ..................................................................................................................................... 61 6.2 ADJUSTING THE CALIBRATION ................................................................................................................................... 63 6.3 OUTPUT OF THE START-UP LOG ................................................................................................................................ 65 6.4 CALIBRATION ......................................................................................................................................................... 66 6.4.1 Calibration with One Concentration .......................................................................................................... 66 6.4.2 Calibration with Temperature Compensation ........................................................................................... 69 6.4.3 Calibration with Load Compensation ........................................................................................................ 71 6.4.4 Calibration with Two Concentrations ........................................................................................................ 73 6.4.5 Calibration with Split Value ....................................................................................................................... 77 6.4.6 Extended Calibration Mode ....................................................................................................................... 80 6.5 TYPICAL CALIBRATION COEFFICIENTS/START VALUES ..................................................................................................... 82 CHAPTER 7. PASSWORD ............................................................................................................................................ 83 7.1 PASSWORD FORGOTTEN .......................................................................................................................................... 84 CHAPTER 8. ERROR LISTS AND DEVICE STATES .......................................................................................................... 85 8.1 HARDWARE ERROR AND WARNING MESSAGES ............................................................................................................ 85 8.2 INPUT ERROR ........................................................................................................................................................ 86 8.3 MEASUREMENT ERROR AND ERROR MESSAGES ........................................................................................................... 86 8.4 DEVICE STATES ...................................................................................................................................................... 88 CHAPTER 9. START-UP LOG ........................................................................................................................................ 89 9.1 EXAMPLE START-UP LOG ......................................................................................................................................... 93
Chapter 1 Safety Summary    6  MicroPolar Moist LB 568 Chapter 1. Safety Summary   Please observe all safety instructions in the  hardware  part, especially those in chapter 1 Safety Summary.    Parameter settings Never change the installation and the parameter settings without a full knowledge of these operating instructions, as well as a full knowledge  of  the  behavior  of  the  connected  controller  and  the possible influence on the operating process to be controlled.
  Chapter 2 General Information MicroPolar Moist LB 568   7 Chapter 2. General Information  Communication  with  the  LB  568  takes  place  via  4  softkey buttons.  The  function  of  the  individual  buttons  changes relative  to  the  position  in  the  menu.  Values  and  texts  are entered  via  an  alphanumeric  keyboard.  The  instrument status is indicated by 5 LED’s.     TIP Click  on  the  help  button  .?.  in  the  display  footer  to  view useful information.
Chapter 3 Software Functions    8  MicroPolar Moist LB 568 Chapter 3. Software Functions 3.1 Information on the Menu Structure  The  menu  structure  on  the  following  pages  provides  an overview  of  all  functions  of  the  LB  568.  Using  the  page numbers  indicated  you  can  look  up  the  function  of  the depicted window.  Depending on the access level, some menu items are hidden. You have to enter an editable password to change from the Read  only  level  to  Basic  or  Profi.  The  Service  level  is locked; it is foreseen only for equipment manufacturing.
  Chapter 3 Software Functions MicroPolar Moist LB 568 9 3.2 Menu Structure                             Live Display Diagnostic Setup Access level Language Datalog Error log Info Print Setup Diagnostic English German French Language Read only Basic Profi Service Access Level See next page Setup Page 11 Page 11 Page 14 Page 14    1 |       -        |   Live Display |  07.05 – 13:25                                       Concentration av.                                       65.50 %         Conc. av.                  Conc. act. 64.35%    ESC SAMPLE ..▼▲.. ZOOM
Chapter 3 Software Functions   10  MicroPolar Moist LB 568                                        Live Display Diagnostic Setup Access level Language General data Measurement Plausibility Microwave Radiometry Marker Units Synchronization Configuration Configuration Calibration Input / Output Service Product Change password Setup Measurement Meas. mode Start mode Averaging Reset averaging Plausibility Process limits Phase measure Phi offset max Sigma max. Phi/Att ratio Auto set General data Date Time Tag Calibration System adjust Calibrate Conc Advanced System adjust Adjust Reference values Chart Phi Chart Attenuation Calibrate Conc Sampling Calibration Tuning View Advanced Tare values Num cal. sweeps Process type Split value Extended cal. mode  Inputs / Outputs Current output Current input PT100 Digital output Digital input Current out 1     ’’     2 2 Current Out 1 Assignment 0/4 mA 20 mA Test/Adjust Error current Current Out 2 Assignment 0/4 mA 20 mA Range Test/Adjust Error current Current In 2 Enabled Adjust Live current Cal. order Cal. base Coefficients Temp. comp. Loading comp. Start Calibration Calibration Current In 1 Enabled Adjust Live current Page 13 Page 15 Page 17 Page 17 Page 17 Page 18 Page 21 Page 21 Page 22 Page 24 Page 25 Page 29 Page 30  Page 29 Page 31 Page 31 Current output Current input Current in 1     ’’     2 Pt100 Enabled Adjust PT100 PT100 live Digital Output Relay 1 Relay 2 Test Digital input Status DI 1 function DI 2 function DI 3 function Page 29 Page 31 Page 32 Page 33 2422424 Page 33 Next sample Active Measured value Lab Value Extended  Current in 1 Current In 2 Pt 100 PHI (m) Attenuation Mpua Sampling Advanced Page 23 Page 24 Radiometric detector Page 37 Under Service  Radiometric detector Page 39
  Chapter 3 Software Functions MicroPolar Moist LB 568 11 3.2.1 Start Menu   LIVE DISPLAY:  Shows the live display.    DIAGNOSTIC:  This menu item contains the submenu items data logger, error log, instrument information and start-up log output.    SETUP:  All necessary inputs for operation of the measuring system can be entered here.    ACCESS LEVEL: Select the access level. Areas protected by passwords can be cleared.    LANGUAGE:   Select the dialog language.  3.2.2 Diagnostic   Data log: The  data  log  records  the  data  corresponding  with  the format  of  the  serial  data  output  RS232  (see  Hardware Manual, chapter 6.6). All  measured  data  of  a  measurement  (Sweep)  are averaged over the averaging time (see below) and stored. This  time  is  dependent  on  the  selected  log  time.  The contents  of  the  data  log  can  be  displayed  on  the  live display,  see  chapter  3.4  Trend  Display.  It  can  also  be output as a text file via RS232, and via the memory stick (optional accessory).  Log type  Disable     Single     Continuous     Stop at error  Log time  Logging period    15 minutes to 3 days  Restart log  Clears the data log and starts with the     above setting  Averaging time  Obtained from log time  Print setup  Printout of table, output via  RS232,  format  see  Hardware  Manual, chapter  6.1  Technical  Data  Evaluation Unit     1  |   -   |   LB 568   | 07.05 - 13:25     Live Display   Diagnostic   Setup   Access level  Language  RUN         ▲          ▼            ►      1 |   -  |   LB 568  |  07.05 – 13:25       Live Display   Diagnostic   Setup   Access level  Language  RUN         ▲          ▼            ►      1 |   -  |   LB 568  |  07.05 – 13:25       Live Display   Diagnostic   Setup   Access level  Language  RUN         ▲          ▼            ►      1 |   -  |   LB 568  |  07.05 – 13:25       Live Display   Diagnostic   Setup   Access level  Language  RUN         ▲          ▼            ►      1 |   -  |   LB 568  |  07.05 – 13:25       Live Display   Diagnostic   Setup   Access level  Language  RUN         ▲          ▼            ►      1 |   -  |   LB 568  |  07.05 – 13:25       LLive Display   Diagnostic   Setup   Access level  Language  RUN         ▲          ▼            ►      1 |   -  |   LB 568  |  07.05 – 13:25       Live Display   Diagnostic   Setup   Access level  Language  RUN         ▲          ▼            ►      1 |   -  |   LB 568  |  07.05 – 13:25       Live Display   1 |   -  | Diagnostic  |  07.05 – 13:25       Datalog   Error log   Info   Print setup     ⌂◄         ▲          ▼            ►
Chapter 3 Software Functions   12 MicroPolar Moist LB 568 Change data log settings: If you change the log type from "any" to "single", the data log  will  be cleared  and you  start  again  with  the current setting. If you change all other log types and log times, the data log  will  not  be  cleared  and  you  continue  with  the  new settings.  Behavior with stopped measurement: If the measurement will be stopped during the data log for some  time,  then  the  measurement  pause  will  be interpreted as log time in the log type "single". In all other log types, the measurement pause will be added to the log time.    Error log: Shows the logged error. The last 20 error messages will be stored with date and time.    Info:   Tag  :...  Device type  : LB 568  Supplier  : Berthold Technologies  Manufacturer  : Berthold Technologies  Device no.  : ...  Production no.  : ...-...  Software ver.  : V...  SW rev. date  : ...    Print setup: Output of the start-up log via RS232. Format,  contents  and  example  see  chapter  9.  Start-up Log.
  Chapter 3 Software Functions MicroPolar Moist LB 568 13 3.2.3 Setup Configuration: Setup of  General data  Measurement-specific data  Plausibility data  Microwave data  Radiometry data  Marker  Units  Synchronization  Calibration:  System adjust  Concentration calibration  Advanced  Input/Output:  Current outputs  Current inputs  PT100  Digital outputs  Digital inputs  Service: In the Profi mode the SERVICE menu is displayed and can be edited. The following settings are possible:  Factory settings  General reset  Memory  stick  (operation  of  the  memory  sticks, optional accessory)  Data  printout  (via  RS232,  data  contents  can  be selected)  Product: Product selection (1 – 4); if you select another product, the product-specific data will be loaded: outputs, inputs and calibration. When you select the products 2 to 4 for the first time, all settings and contents (e.g. system calibration, sampling table, data log and calibration) of the current product will be copied to the new product.  Change password: The password for the access levels Basic /  Profi can be changed here. For more information see chapter 7 Password.    1 |  - |   Setup   | 07.05 – 13:25       Configuration   Calibration   Input / Output   Service   Product   Change password   ⌂◄         ▲          ▼            ►
Chapter 3 Software Functions   14 MicroPolar Moist LB 568 3.2.4 Access Level Read only:  Only  the  live  display  and  the  main  menu  can  be selected.  This  mode  can  be  selected  on  all  levels  without password.  Basic:  No password required on higher levels. Password has to be entered for Read only.  Password can be changed.  On the basic level, some menu items are hidden, for example, the calibration.  Profi:  As described  above. Should  be  used only if you are sufficiently familiar with the measuring system.  Changing from Profi to Basic or vice versa is possible without password.  Service:  This level is reserved for the service personnel.  3.2.5 Language  Language:  Select the dialog language                   1 |  - | Access Level  | 07.05 – 13:25       Read only   Basic   Profi   Service   ESC                ▲▼          ►    1 |    -    |   LB 568    | 07.05 – 13:25       LANGUAGE      English   German   French    ESC             ▲▼           .√.
  Chapter 3 Software Functions MicroPolar Moist LB 568 15 3.2.6 Configuration   General Data:  Enter date, time and tag  Measurement:  Measurement mode (batch/continuous)  Start mode (keyboard/external)  Averaging  (number  of  measured  values  used  for averaging)  Reset average value (yes/no)  Plausibility:  The process limits define the permissible range within which the actual concentration must lie.  The  phase  measurement  is  subject  to  a  plausibility analysis, which can be set here. For more information please see chapter 3.2.9 Plausibility   Microwave:  Cable:  Enter  the  cable  lengths  for  the  signal  and reference  cable.  For  example,  for  1.5  and  2.5  m antenna cable and 4 m reference cable, you have to enter 4 m for both lengths.   Radiometry: Here, the radiometric detector is configured. Description see chapter 3.3.1 Configuration Radiometric Detector.  Marker: Enter a  value and a  name  (up to 5  characters) for  the marker  here.  The  presentation  takes  place  in  the  live display and refers to the bar chart. To disable the marker, select  a  marker  value  outside  the  chart  limits  or  the current output limits.    1 |  - | Configuration | 07.05 – 13:25    General Data   Measurement   Plausibility   Microwave   Radiometry   Marker   Units   Synchronization  ⌂◄         ▲          ▼            ►
Chapter 3 Software Functions   16 MicroPolar Moist LB 568 Units: Depending  on  the  configuration,  different  units  can  be selected  for  concentrations,  current  inputs  and temperature. For the concentration (1 and 2) you can select: none, specific, %, %DS  For current input 1 you can select: none, specific, °C, °F, g/cm3, Kg, t/h  For current input 2 you can select: none, specific, °C, °F, cm, m/s  For the PT100 input you can select: none, °C, °F  Synchronization: The  current  input  signals  can  be  synchronized  with the microwave  measurement;  the  current  input  signals  will be stored temporarily. All settings are defined here. Details  on  the  synchronization  see  chapter  3.2.101 Synchronization.
  Chapter 3 Software Functions MicroPolar Moist LB 568 17 3.2.7 General Data  Date:  Enter the current date  Time:  Enter the current time  Tag:  Enter the tag  name. The tag  (max. 8  characters) is displayed in the header on the display. 3.2.8 Measurement  Meas. mode: Select  continuous  or  batch.  In  the  batch  mode,  an average value is calculated between start and stop. In the continuous  mode,  a  moving  average  is  calculated depending on the adjusted averaging number.  Start mode: The measurement  device can  be  started or stopped via external terminals (digital input) or via keyboard.  Averaging: Enter  the  number  of  averaging  steps.  It  indicates  how many  measurements  are  used  to  average  the concentration value (moving average).  Reset averaging: Reset  averaging  (yes/no).  This  refers  to  batch  and continuous. 3.2.9 Plausibility  Process limits: Enter  permitted  measuring  overrange.  If  the concentration  exceeds  the  range,  the  concentration average is put on hold and an error message is displayed (error state). The process limits are independent of the current output limits.   Phase measure: The phase is subjected to a plausibility analysis. For more information  please  see  chapter  3.2.10  Phase Measurement.    1 |  -  | General Data | 07.05 – 13:25       Date     Time   Tag       ⌂◄         ▲          ▼            ►   1 | - |  Measurement  | 07.05 – 13:25       Meas. mode   Start mode   Averaging   Reset averaging    ⌂◄         ▲          ▼            ►    1 |   -  | Plausibility   | 07.05 – 13:25       Process limits   Phase measure        ⌂◄         ▲          ▼            ►
Chapter 3 Software Functions   18 MicroPolar Moist LB 568 3.2.10 Phase Measure The phase and attenuation are calculated for each measured value  (measuring  cycle)  from  a  multitude  of  single measurements  of  different  frequencies  in  a  wide  frequency band (called sweep/frequency sweep). Such a measurement permits  a  continuous  verification  of  the  plausibility  of  the results of a measurement.  The size of the frequency range allows you to select a belt to possibly  rule  out  strong  interferences  (for  example  due  to reflection)  from  the  start.  The  frequency  selection  is  done manually  on  the  menu  |  SETUP  |  CONFIGURATION  | MICROWAVE. As a rule, the frequency band "Standard" (this is the factory setting) is a good choice.  The attenuation calculation takes place through averaging via the frequency range, without further plausibility check.  The  phase  calculation  takes  place  through  regression calculation via the frequency range, followed by a plausibility check (see the illustration below).  Phase [DEG]Frequency [GHz]fStart fmRegression lineFrequency pointsPhi OffsetPhi(f=fm)  The phase check is always done through Sigma max and a second  selectable  plausibility  of  Phi  Offset  max  or  Phi/Att ratio.  A  combination  of  Phi  Offset  and  Phi/Att  ratio  is  not possible.  If  Sigma  max  or  Phi  Offset  max  is  exceeded,  then  the measurement  is  rejected.  If  the  exceeding  occurs continuously  exceeded,  the  evaluation  unit  changes  to  the error state. The time up to when the fault is triggered is 75% of the averaging time of the mean concentration value.  In the factory state, the plausibility is adjusted via Phi Offset; this is recommended for all applications.
  Chapter 3 Software Functions MicroPolar Moist LB 568 19 Phi offset max: Phi Offset is the phase value where the frequency is zero (see illustration above). Here the maximum permissible value is  entered  for Phi Offset. Typical values between 150 to 170°. Default: Phi Offset max. = 170°.  With Phi Offset max = 0 the plausibility is turned off.  Sigma max.: Here you set the maximum sigma of the regression Phase vs. Frequency. During normal measurement operation, the scattering lies between 0 and 300. Default: Sigma = 500. With sigma = 0, the plausibility is turned off.  Phi/Att ratio: The ratio of phase and attenuation is used for the phase check. A fixed Phi/Att ratio is entered. If you do not know it,  you  have  to  record  it  once,  see  the  description  for "Auto  set"  below.  The  exact  procedure  is  described  in chapter 6.1.  The phase check is done as follows:  mmeaspermitted f180DV       Eg. 3-1  Where: permitted   = permitted phase range V   = parameter Phi/Att Dmeas   = measured attenuation fm     = center frequency  If  the  phase  is  not  in  this  range,  it  is  corrected  by 360°/fm.  Default: Phi/Att = 0  The Phi/Att ratio can be enabled and disabled.  Auto set: The automatic ratio measurement Phi/Att can be turned on and off. For details see chapter 6.3.    1 | - | Phase Measure | 07.05 – 13:25      Phi offset max  170°   Sigma max.  500   Phi/Att    Disabled   Phi/Att ratio  0   Auto set  OFF  ⌂◄         ▲          ▼            ►
Chapter 3 Software Functions   20 MicroPolar Moist LB 568 3.2.11 Synchronization If  compensation  measurements  are  carried  out  in  a  large distance  from  the  microwave  measuring  path,  then  the current  input  signals  (compensation  signals)  can  be  stored temporarily  and  can  be  synchronized  with  the  microwave information. The goal of the synchronization is to make sure that  all  measuring  information  of  all  systems  relate  to  the same product section.  Please see the measuring conditions described in chapter 7.3 in the Hardware Manual.  Variable conveying speed: Only one current input signal can be synchronized because current input 2 is used for the belt speed. The speed signal must be fed in via current input 2 and m/s has to be selected as the unit for current input 2.   Sync. config.: Select the synchronization mode and, if necessary, enter the conveying speed.  Current input 1/2: Enter the distance between  compensation  measurement (for  example,  belt  weigher)  and  microwave measurement.  If  the  compensation  measurement  is installed before the microwave measurement, relative to the  conveyor  belt  direction,  enter  a  positive  distance; otherwise, enter a negative distance.  The submenus CURRENT INPUT 1 and CURRENT INPUT 2 are  displayed  only  if  the  current  inputs  and synchronization have been enabled.  Mode:  Disable  Constant speed  Variable speed The item "Variable velocity" is displayed only if m/s has been selected as the unit for current input 2.  Velocity: Enter the conveyor belt speed in m/s. This menu appears only if the mode "Constant velocity" is selected.    1 |  -  |Synchronization| 07.05–13:25     Sync. config.   Current input 1   Current In 2   ⌂◄         ▲          ▼            ►   1 |  -  |Sync. config |  07.05–13:25     Mode   Velocity    ⌂◄         ▲          ▼            ►
  Chapter 3 Software Functions MicroPolar Moist LB 568 21 3.2.12 Calibration   System adjust: System calibration is started here.  Calibrate conc: Opens the calibration menu of concentration 1.  Calibrate conc 2: Opens the calibration menu of concentration 2. The second concentration is displayed only if under menu | ADCANCED | PROCESS TYPE | a second concentration is selected.  Advanced: Here you set the tare values, the number of sweeps, the process type, the split value and the extended calibration mode. For details see chapter 3.2.17 Advanced.     3.2.13  System Adjust    Adjust: System calibration is started.   Reference values: Upon  completion  of  the  reference  measurement,  the reference values for phase (Phi(fm)), attenuation, slope and sigma can be output.  Chart Phi: Shows the phase values versus the frequency.  Chart Attenuation: Shows the attenuation versus the frequency.  The data log will not be deleted by a system calibration (see chapter 3.2.2 Diagnostic).     1 |  - | Calibration  | 07.05 – 13:25       System adjust   Calibrate Conc   Calibrate Conc 2   Advanced  ⌂◄         ▲          ▼            ►    1 | - |System Adjust | 07.05 –13:25       Adjust   Reference values   Chart Phi   Chart Attenuation  ⌂◄         ▲          ▼            ►
Chapter 3 Software Functions   22 MicroPolar Moist LB 568 3.2.14 Calibrate Concentration    Sampling: Shows all measured samples and entered lab values.  Calibration: Here  you  can  choose  the  calibration  order [linear/quadratic], the basis [phase/attenuation or both] and the compensations. For details please see chapter 3.2.18 Calibration.  Select  Calibration  to  enable  and  parameterize  the temperature and loading compensation.  Select Calibration  to carry out the automatic calculation of the coefficients.  Tuning: Subsequent  correction  of  the  reading  is  possible  by entering a factor and an offset. Calculation is carried out using the following formula:  OffsetFactorDisplay display Corrected    Eg. 3-2  View: Presentation  of  calibration  curve,  display  of  correlation and coefficients.    1 | - | Calibrate Conc | 07.05 –13:25       Sampling   Calibration   Tuning   View  ⌂◄         ▲          ▼            ►
  Chapter 3 Software Functions MicroPolar Moist LB 568 23 3.2.15 Sample Table  The header includes the  following information (from  left  to right):  Product no.  Current table position / Total number of entries  Sample no. of current table position  Date and time of sampling  Up  to  20  sample  entries  are  possible.  The  sample  can  be assigned  to  the  lab  value  either  via  the  sample  no.  or through  data/time.  The  sample  no.  is  assigned  on  a continuous basis. If a sample is deleted, the sample no. will not be assigned a second time. Up to 999 sample numbers are available. Only if all numbers have been assigned, you may assign a number for the second time; you will be alerted accordingly on the display.  Next sample: Continues with the next sample.  Active: Here you can choose if this sample should be taken into account in the calibration.  Measured value: Display  of  the  measured  values,  calculated  with  the actual coefficient.  Lab value: Entry position for the laboratory value.  Extended: Switches to the next data page.  Delete: Briefly  push  the  softkey  to  delete  the  indicated  sample entry. Push this key for a longer time to delete all sample entries.       1 |  1/1  | Sample # 1  | 07.05 –13:25     Next sample   Active    Yes   Measured value  65.50%   Lab value  0.00 %   Extended    ◄      DEL      ▲▼          ..√..
Chapter 3 Software Functions   24 MicroPolar Moist LB 568 3.2.16 Sample Data (expanded)   Current In 1: Display of the first compensation input (editable)  Current In 2: Display of the second compensation input (editable)  PT100: Display of the PT100 input (editable)  PHI (fm): Display of the measured phase.  Attenuation: Display of the measured attenuation.  MPUA loading Displays the measured load [g/cm2] 3.2.17 Advanced  Tare values: Option  to  enter  tare  values  for  phase  and  attenuation. The tare values are added to the phase stage and/or the attenuation prior to calibration. The calculation is carried out as follows: Eg. 3-3 and 3-4  Phase = Phasemeas - Phi Tare  Attenuation = Attenuationmeas - Attenuation Tare   Number of calibration sweeps: Freely  adjustable  number  of  sweeps  over  which  a calibration  point  (in  the  course  of  automatic  sample measurement) will be averaged.  Process type: Select the operation mode:  one concentration [1 measuring range]  two concentrations [2 measuring ranges]  split concentration [1 measuring range with switching point (split value) for coefficient switchover].  Split value: Setting of the switching point on a value basis.  Extended calibration mode: Details see chapter 6.4.6.   1  |   -   |  Advanced  | 07.05 – 13:25    Tare values   Num. cal. sweeps  20   Process type  Split conc   Split value  75.00 %   Extended cal. mode  disabled ⌂◄         ▲          ▼            ►   1 |  1/1  | Sample # 1  | 07.05 –13:25     Current In 1   Current In 2   PT100   PHI (fm)   Attenuation   MPUA loading    ◄      DEL      ▲▼          ..√..
  Chapter 3 Software Functions MicroPolar Moist LB 568 25 3.2.18 Calibration   Cal. order Here you define the calibration order [linear / quadratic] Default: Linear  Cal. base The following parameters can be set:  Phase  Attenuation  Phase and attenuation Default: Attenuation  Coefficients: Here  you  can  edit  all  coefficients  for  phase  and attenuation. Default: A1 = 0, B1 = 0, C = 10  Temp. comp.: If at least one analog input is active, you may here assign the compensation and set the compensation parameters. For  details  please  see  chapter  3.2.19  Temperature Compensation.  Loading comp. If at least one analog input is active, you may here assign the compensation and set the compensation parameters. For details please see chapter 3.2.20 Load Compensation.  Start Calibration Starts the calibration using the parameters you have set earlier.    1 | - |  Calibration  | 07.05 –13:25       Cal. order   Cal. base   Coefficients   Temp. comp.   Loading comp.   Start Calibration ⌂◄         ▲          ▼            ►
Chapter 3 Software Functions   26 MicroPolar Moist LB 568 3.2.19 Temperature Compensation   Input: The compensation can be turned on and off: if no input is selected, the compensation is turned off. An analog input is assigned to the compensation (current input 1/2, PT100); only the activated inputs are available.  Mode: The following parameters can be set:  Additive  Multiplicative  Order: The following parameters can be set:  Linear  Quadratic  TC evaluation: The following parameters can be set:  Sampling The temperature coefficients are calculated using the entries in the sample table.  User-defined The  temperature  coefficients  are  defaulted,  for example,  if  they  are  already  known  from  other applications.  Default: Sampling  Reference value Enter the reference value.  C_dB 1: All temperature coefficients are listed depending  on the previously  defined  compensation  parameters.  They  can be  edited  and/or  read  off  here  after  execution  of  a calibration calculation with "Start calibration".   See additional explanation in the Hardware Manual in chapter 7.2 Temperature Compensation.     1 | - | Temp. Comp. 1 | 07.05 –13:25   Input   Mode   Order   TC evaluation   Reference value   C_dB 1 ⌂◄         ▲          ▼            ►
  Chapter 3 Software Functions MicroPolar Moist LB 568 27 3.2.20 Loading Compensation  At least one analog input or the radiometric detector must be active  so  that  the  LOADING  COMPENSATION  menu  is displayed.  Some  compensation  modes  are  displayed  only upon activation of two inputs.  Comp. mode: The following parameters can be set:  Disabled / Enabled  Radiom. MPUA  Loading (Current In 1)  Tonnage & Speed  Mass & Layerheight    If  the  loading  compensation  is  selected,  the  Loading  Limit menu appears.  Loading limit: Enter the minimum load; if this value is not reached, the evaluation unit switches to the error state.    Compensation mode Loading (Current In 1): The following units can be used as a compensation signal:  Weight  Layer height  Mass per unit area  Throughput  Signal input via current input 1  The unit can be selected at random for current input 1.      1 | - | Load Comp | 07.05 –13:25       None   Radiom. MPUA   Loading (Cin 1)   Tonnage & Speed   Mass & Layerheight    ⌂◄         ▲          ▼            ►    1 | - | Load Comp | 07.05 –13:25       Comp. mode  Height   Loading limit    ⌂◄         ▲          ▼            ►
Chapter 3 Software Functions   28 MicroPolar Moist LB 568 Compensation mode Tonnage & Speed (throughput & speed): Signal input  Throughput via current input 1  Speed via current input 2  Unit  Throughput [tons per hour; T/h]  Speed [m/s]  Min. load [Kg]  The unit T/h must be selected for current input 1 and the unit m/s for current input 2.   Compensation mode Mass & Layerheight (weight & layer thickness): Signal input  Weight via current input 1  Layer thickness via current input 2  Unit  Weight [Kg]  Layer thickness [cm]  Min. load [kg x cm]  The unit kg must be selected for current input 1 and the unit cm for current input 2.   Compensation mode Radiometric MPUA: The compensation  signal is provided  by  the  scintillation counter.  Unit  Mass per unit area [g/cm2]  Min. load [g/cm2]    See additional explanation in the Hardware Manual, chapter 3.3 Loading Compensation.
  Chapter 3 Software Functions MicroPolar Moist LB 568 29 3.2.21 Inputs / Outputs   Current output: Both outputs can be adjusted, assigned and set up on the selected level.  Current input: Activation level of current input, calibration and display of the live current signal.  PT100: Here  you  can  enable  and  adjust  a  connected  PT100. Display of the actual temperature signal.  Digital output: Allocation of relays 1 and 2 and test function.  Digital input: Status control and assignment of the digital inputs.  3.2.22 Current Output      IMPORTANT If  a  measurement  is  running,  enabling  a  non-used  or non-adjusted current input may cause an error.   3.2.23 Current Out 1   Assignment: The  following  signals  can  be  assigned  to  the  current output.  None  Concentration  Concentration 2 (if active)  Mass per unit area (if active)  Current input 1 or 2 (if active)  PT100 (if active)      1 | - | Inputs/Outputs | 07.05 –13:25       Current output   Current input   PT100   Digital output   Digital input ⌂◄         ▲          ▼            ►    1 | - | Current Output | 07.05 –13:25       Current out 1   Current out 2          ⌂◄         ▲          ▼            ►    1  |  -  |Current Out 1 | 07.05 –13:25       Assignment   4 mA   20 mA   Test/Adjust   Error current ⌂◄         ▲          ▼            ►
Chapter 3 Software Functions   30 MicroPolar Moist LB 568 4 mA: Display value assigned to the 4mA value.  20 mA: Display value assigned to the 20mA value.   TIP Current output 1 only 4 – 20mA possible  If  the  current  output  limit  is  exceeded,  then  the measurement changes to the warning status, see section 8.4 Device States.  Test/Adjust: Current test, calibration and display of live current.  The ADJUST menu is displayed only in the Profi mode.   IMPORTANT The measurement should be stopped for test function.  To check the current loop and possibly connected remote displays, you can set a current between 4 and 20 mA via the test function. If you quit the test function, the system automatically switches back to the live current.  Error current: If  the  measurement  goes  into  the  error  state,  a  fault current is output via the current output; this fault current can be set here.  22 mA  3.5mA  Hold  Value (selectable)  3.2.24 Current Out 2  All functions same as current output 1   TIP Current output 2 can either be set to 0/4 or to 20 mA.   Range: Change the current output   0 – 20mA  4 – 20mA    1  |  -  |Current Out 2 | 07.05 –13:25    Assignment   4 mA   20 mA   Range   Test/Adjust   Error current   ⌂◄         ▲          ▼            ►
  Chapter 3 Software Functions MicroPolar Moist LB 568 31 3.2.25 Current Input   Current in 1: When  selected,  the  program  changes  to  the  activation and calibration menu.  Current in 2: As described above.     3.2.26 Current In 1   Status: Select yes/no to enable or disable the current input.  Range: Change the current output   0 – 20mA  4 – 20mA  0/4 mA: Display value assigned to the 0/4 mA value.  20 mA: Display value assigned to the 20mA value.  Adjust: Follow the instructions on the display.  Live current: Display of the live current signal.   3.2.27 Current In 2  Settings correspond to current input 1.    1 | - | Current Input 1 | 07.05 –13:25    Status   Range   4 mA   20 mA   Adjust   Live current ⌂◄         ▲          ▼            ►    1 | - | Current Input | 07.05 –13:25         Current in 1   Current in 2            ⌂◄         ▲          ▼            ►
Chapter 3 Software Functions   32 MicroPolar Moist LB 568 3.2.28 PT100   Enabled: If a PT100 is connected, the input has to be enabled first.   IMPORTANT If  a  measurement  is  running,  enabling  a  non-used  or non-adjusted PT100 input may cause an error.   Adjust PT100: You need a 100 Ohm and a 138.5 Ohm resistance. Follow the instructions on the display.  PT100 live: Display of the live temperature.  Settings correspond to input 1.        1 | - |      Pt 100      | 07.05 –13:25     Enabled   Adjust PT100    PT100 live    ⌂◄         ▲          ▼            ►
  Chapter 3 Software Functions MicroPolar Moist LB 568 33 3.2.29 Digital Output The measuring device has two relays. Relay 1 is linked with LED signal 1 and relay 2 with signal 2.  Relay 1: Different functions can be assigned to relay 1:  None  Error  Hold  Alarm min.  Alarm max.  Function Description None Relay and LED function disabled Error In case of error, relay and LED will be set. Hold If Hold function is enabled, relay and LED will be set. Alarm min. The relay switches if the value falls below the limit value to be set. Alarm max. The relay switches if the value exceeds the limit value to be set.  Relay 2: Same assignments possible as above.  Test: The switching  status  of  the  relays  can  be  set  here and checked at the respective terminals. 3.2.30 Digital Input The measuring device has 3 digital inputs, to which different functions can be assigned.  Status: Shows the status of the input circuit  open/closed    1 | - | Digital Output | 07.05 –13:25         Relay 1   Relay 2    Test          ⌂◄         ▲          ▼            ►    1  |  -  | Digital Input | 07.05 –13:25     Status   DI 1 function    DI 2 function   DI 3 function      ⌂◄         ▲          ▼            ►
Chapter 3 Software Functions   34 MicroPolar Moist LB 568 DI 1 Function The following functions can be assigned to DI 1:  None  Start (external start)  DI 2 Function The following functions can be assigned to DI 2:  None  Hold (averaging is stopped)  Product (external product selection)  DI 3 Function Assignments for DI 3:  None  Sample (external control of sampling)  Product (external product selection)  For external start function, the start function has to be set to external in the Measurement menu window.  Hold means that averaging is stopped, but the measurement continues to run.  Sample  means  that  sampling  is  started  by  closing  the contact.  Product means that another product is selected by closing the contact (product 1 to 4).   TIP If you select a product for the first time (product 2 to 4), all  settings and  contents  of  the  current  product  will  be copied to the new product, including: - Configuration data - System calibration - Calibration data (including sampling table) - Input/Output definitions   To  switch  over  all  4  products,  DI  3  also  has  to  be  set  to product.  Please  take  the  terminal  configuration  from  the table below.  Terminals DI 2 13 / 25 DI 3 14 / 26 Product 1 open open Product 2 closed open Product 3 open closed Product 4 closed closed
  Chapter 3 Software Functions MicroPolar Moist LB 568 35 3.2.31 Service  Factory setting and General reset: See table on the next side.  The  Factory  setting  function  allows  you  to  reset  the measuring system parameters to their original status.  Memory tool: Refers  to  the  communication with  the  external memory stick (optional accessory). Data transfer takes place via the  9-pole  SubD-connector  on  the  bottom  of  the instrument.  Save  parameters:  All  instrument  parameters  for  all products will be saved to the memory stick.  Load  parameters:  All  instrument  parameters  stored on  the  memory  stick  will  be  loaded  onto  the evaluation  unit.  All  operating  parameters  in  the evaluation unit will be deleted.  Save  data  log:  The  data  log  will  be  saved  to  the memory stick.  Save  log:  The  start-up  log  will  be  saved  to  the memory stick.    The  concentration  average  value  is  put  on  hold  during communication with the memory stick. Thus, the measured value via current output is also put on hold!  Data printout: All  measured  values  are  output  for  each  measurement (sweep) via the serial data interface RS232. The output can be set as follows:  None (disabled)  Line  (data  transfer,  see  Hardware  Manual,  chapter 6.6)  Table (microwave data for each frequency point)  Line and table  "Line" is defaulted.     1 |   -   | Service  |  07.05 – 13:25         Factory settings   General reset   Radiom. detector   Memory tool   Data printout  Line ⌂◄         ▲          ▼            ►
Chapter 3 Software Functions   36 MicroPolar Moist LB 568   Factory setting General reset Language selection unchanged unchanged Access level unchanged default: Basic Measurement is stopped is stopped Password unchanged default: PASS1 Product selection unchanged all products deleted Error log not deleted deleted Data log not deleted, default settings deleted, default settings System adjust not deleted deleted Cable length unchanged default Sampling not deleted deleted TAG label default default All parameters on menu: Measurement Plausibility Marker Unit default default Frequency setting unchanged unchanged Calibrate coefficients default default Temperature compensation default default Load compensation default default All settings for the analog and digital inputs and outputs default default Adjustment of the analog inputs and outputs unchanged unchanged    Comment: affects only the current product affects all products (P1 to P4) -                               *Default: Default values, see chapter 9.1 Example Start-up Log
  Chapter 3 Software Functions MicroPolar Moist LB 568 37 3.3 Menu Structure Radiometric Detector 3.3.1 Configuration Radiometric Detector  Starting from  the main  menu,  you  can  reach the  following menu via | SETUP | Configuration | Radiometry |     Enabled (Yes/No) With  this  selection,  the  radiometric  mass  per  unit  area compensation of the evaluation unit is turned on or off.  If this item is disabled, no radiometry parameters can be set (hidden).  If it is enabled, the live data is requested by the detector.  Errors  occurring  with  respect  to  the  radiometry  will  be displayed even if the measurement has been stopped.   Calibration Configuration  of  the  Io  recording  (zero  count  rate);  the following parameters can be configured:  •  Max adjust time (duration of Io recording) •  Io (current Io value) •  Isotope (Cs137 and Am241 selectable) • Ray angle (radiometry)  If the irradiation path in the product is of different length in a microwave  and  radiometric  measurement,  this  must  be considered using the "Ray angle."  Enter  an  angle  of  30°  for  applications  in  the  measuring chute.  Calibration Isotope Adjust Isotope Max. adjust time 180 s I0 3 cps CS137 Isotope CS137 AM241 Ray angle 0.00° Detector live Actual impulse rate 11555 cps Enabled yes/no Average impulse rate 11550 cps Calibration Current temperature 22.6°C Detector live Actual HV 500 V Measurement HV control mode Manual Plausibility MPUA calculation Plausibility Counting rate band Counting rate band Validation activated Max. detector temp. 50.00 °C Max. counting rate 100000 cps Min. counting rate 0 cps MPUA calculation MPUA actual 0.00 g/cm^2 Absorption coeff. 0.07   1 |  -  | Radiometry  | 07.05 – 13:25      Enabled   yesg   Calibration   Detector live   Measurement   Plausibility   MPUA calculation  ⌂◄         ▲          ▼            ►    1 |  - | Calibration | 07.05 – 13:25        Adjustg   Max adjust time  180s   I0    3 cps   Isotope   CS137   Ray angle  0.00 °  ⌂◄         ▲          ▼            ►
Chapter 3 Software Functions   38 MicroPolar Moist LB 568 Adjust (Io recording) The Io value can be entered directly or it can be recorded via the ADJUST menu.  The Io recording can be started or stopped on the ADJUST menu. The Io recording is possible only in the STOP mode of the  evaluation  unit.  The  progress  of  Io  recording  is represented by a moving circle. The prerequisite is that the detector  does  not  report  an  internal  error  and  that  the communication between evaluation unit and the detector is in order.  Detector live Here  the  actual,  averaged  count  rate,  actual  temperature (detector), actual HV and HV control mode are displayed. All parameters are only displayed here and cannot be edited.  Measurement Here, the averaging of the count rate can be adjusted. The evaluation unit uses only the averaged pulse rate (CPSa) for calculating the mass per unit area.  The averaging (moving average) takes place via the entered number of measurements.  Default: 10  Plausibility / Counting rate band With  these  parameters,  the  current  count  rate  from  the detector can be checked for a valid range. If the count rate is out of range, then the evaluation unit goes to the error state. The following parameters are available •  Validation (enabled/disabled)   Default: enabled •  Max. counting rate, default: 100000 •  Min. counting rate, default: 0  MPUA calculation Input option absorption coefficient, default value: 0.07  The  MPUA  is  displayed  on  the  menu  only  if  the  loading compensation (radiometry) is enabled. If the evaluation unit is in the RUN mode, then the MPUA is calculated and shown on the menu. If the evaluation unit is in the STOP mode, then the MPUA is not calculated and 0.0 g/cm² shown on the menu.     1 |  - | Measurement  | 07.05 – 13:25      Averaging (CPS)  10g     ⌂◄         ▲          ▼            ►    1 |  -  | Detector live  | 07.05 – 13:25      Actual impulse rate  55 cpsg   Average impulse rate   53 cps   Actual temperature  25.2°C   Actual HV  430 V   HV control mode  Auto  ⌂◄         ▲          ▼            ►   1 | - |Counting rate band| 07.05 – 3:25     Validation  enabledg   Max. counting rate 100000 cps   Min. counting rate  0 cps    ⌂◄         ▲          ▼            ►   1 | - | MPUA calculation | 07.05 – 3:25     MPUA live  0.00 g/cm3   Absorption coeff.  0.07       ⌂◄         ▲          ▼            ►
  Chapter 3 Software Functions MicroPolar Moist LB 568 39 3.3.2 Service Radiometric Detector  Starting from the  main menu,  you  can  reach the  following menu via | SETUP | Services | Radiom. Detector |     Detector errors The menu shows the current detector error with the following additional information: •  Error Id •  Error date •  Error time •  Error priority  With  "Acknowledge  error",  the  error  in  the  detector  is acknowledged.  HV setup (HV = high voltage)  Here, the HV control can be configured. •  HV actual (read only, current HV in the detector current) •  HV  manual  (write,  fixed  value  for  the  HV  control  mode manual) •  HV  default  (write,  value  where  the  HV  control  mode automatically starts to control) •  Actual impulse rate (read only)    Detector errors Acknowledge error Actual error none Error descriptor 0 Error date -- Error time -- Error priority -1 HV setup HV control mode Detector errors HV actual 525.0 V HV control mode HV setup HV manual 525.0 V Plateau HV default 525.0 V Automatic Factory reset HV control mode Manual Manual Detector reset Actual impulse rate 125 cps Info Plateau measure Plateau Plateau time 10s Plateau measure Plateau stop 800 V Operating point setup Plateau start 400 V Plateau charts Plateau step 25 V Measure plateau Info Software version 1.2.1 Plateau charts Unique ID 1563256845 Plateau date 11.11.2010 Detector code Plateau time 15:18 Chart plateau Print plateau  1 | - |Detector errors| 07.05 –13:25     Acknowledge error   Actual error  --   Error descriptor  -1   Error date  --   Error time  --   Error priority  -1  ⌂◄         ▲          ▼            ►   1 | - |HV setup| 07.05–13:25     HV actual  420.0 V   HV manual  420.0 V   HV default  430.0 V   HV control mode  autom.   Actual impulse rate  55 cps  ⌂◄         ▲          ▼            ►
Chapter 3 Software Functions   40 MicroPolar Moist LB 568 Plateau / Plateau measure  •  Plateau time (how long is the measurement done on one HV point) •  Plateau stop (HV final value) •  Plateau start (HV start value) •  Plateau step, e.g. 25 V •  Measure  plateau  (detector  starts  recording  the  plateau, shows a progress bar)   Plateau / Operating point setup  •  Set operating point (if no plateau is present, the message "Error! Canceled" is displayed)   Plateau / Plateau charts  •  Plateau date: read only, date the plateau was recorded, if no plateau has been recorded, 01.01.2000 is displayed. •  Plateau time: read only, time the plateau was recorded, if no plateau has been recorded, 00:00 is displayed. •  Chart  plateau:  shows  the  plateau  in  a  chart  if  the  HV range is 300 V to 1200 V, for example, only a range of 400 V to 800 V is shown in the chart. •  Print plateau: the plateau can be printed via the RS232.   Factory reset This function resets the detector to factory settings.   Detector reset This function starts the detector new.   Info •  Software version (detector) •  Unique ID (detector) •  Detector code (e.g. CsI40/50)    1  |  -  |  Plateau  | 07.05 – 13:25      Plateau measure   Operating point setup   Plateau charts      ⌂◄         ▲          ▼            ►   1 | - | Plateau charts | 07.05 – 13:25      Plateau date  01.10.2012g   Plateau time  00:00   Chart plateau   Print plateau     ⌂◄         ▲          ▼            ►
  Chapter 3 Software Functions MicroPolar Moist LB 568 41 3.4 Live Display    Push  the  ZOOM  button  to  enlarge  the  measurement  value which is surrounded by a frame.        By pushing the ZOOM button for a longer time, the enlarged measurement value will be displayed as trend over the entire display.  The  trend  display  corresponds  to  the  contents  of  the  data log. The data log has to be enabled for the trend display.       As long as the trend builds up, the measured value and/or the current output are put on hold!       |     |  Concentration av. |         %                MIN                                                  ►    1 |  - | Live Display | 07.05 – 13:25            Concentration av.         43.20 %        Conc. av.      Conc. act. Act.45 % ESC  SAMPLE  ▲▼    ZOOM
Chapter 4 Configuration   42 MicroPolar Moist LB 568 Chapter 4. Configuration  Before carrying out any calibration work, the required analog inputs and the radiometric detector have to be enabled and configured,  and  the  configuration  parameters  have  to  be checked and corrected, if necessary.  Without  activation  of  the required  inputs, some menus  are not displayed and a proper configuration and calibration will not be possible. The current outputs, digital outputs can be enabled and configured after the calibration.  The measuring system includes two separate floating current outputs.  Note:  The  measuring  system  has  been  connected  properly and  the  normal  operating  temperature  has  been  reached (approx. 45 min. acclimatization).  4.1 Configuration Setup Starting from the main menu, you get in the Profi mode to the display to the left by selecting | SETUP |    CONFIGURATION         4.1.1 General Data     GENERAL DATA          1 |  - | Configuration | 07.05 – 13:25    General Data   Measurement   Plausibility   Microwave   Radiometry   Marker   Units   Synchronization ⌂◄         ▲          ▼            ►    1 |  - | Setup | 07.05 – 13:25       Configuration   Calibration   Input / Output   Service   Product   Change password   ⌂◄         ▲          ▼            ►
  Chapter 4 Configuration MicroPolar Moist LB 568 43 Example: Select the respective entry, edit and store it.   DATE       Push DEL to delete the entry and then enter the new date. Push .√. to confirm and store the changed date.   TIP The colon for the time input (e.g. 13:25) is invoked by pushing the button [ . ].   4.1.2 Measurement You  have  to  check  the  settings  on  this  display  and  adapt them to the measurement conditions.  For example, you have to adapt the measurement mode, the start  mode  and  the  averaging  to  the  actual  operating conditions.       4.1.3 Plausibility  Adjust the process  limits. Allow for an absolute measuring overrange of ± 3%. Example: The measurement range is 5 -10% moisture. Enter 2 -13% moisture as process limits.  The  process  limits  are  independent  of  the  current  output limits.  For  details  on  the  phase  measurement,  see  chapter  4.3 Configuration Plausibility.      1 | - | General Data  | 07.05 – 13:25       Date    07.05.2004   Time    13:25   Tag    App.1          ⌂◄         ▲          ▼            ►    1 | - | General Data | 07.05 – 13:25       Date      07.05.2004 |       ESC   ..?..   DEL   ..√..    1 | - | Measurement | 07.05 – 13:25       Meas. mode  Continuous   Start mode  Keypad  Averaging  20   Reset averaging  no     ⌂◄         ▲          ▼            ►    1 |   -  | Plausibility  | 07.05 – 13:25       Process limits   Phase measure         ⌂◄         ▲          ▼            ►
Chapter 4 Configuration   44 MicroPolar Moist LB 568 4.1.4 Microwave/Cable    CABLES        If  the  factory-set  cable  lengths  do  not  match  the  actual geometry conditions, you have to correct the values.  Example: For 1.5 and 2.5 m long antenna cable and 4 m reference cable, you have to enter 4 m for both lengths.        1 |   -  | Microwave | 07.05 – 13:25       Cables   Frequency      ⌂◄         ▲          ▼            ►    1 |   -   |  Cables |     07.05 – 13:25     Ref. cable length  4 m   Signal cable length  4 m      ⌂◄         ▲          ▼            ►
  Chapter 4 Configuration MicroPolar Moist LB 568 45 4.1.5 Configuration Radiometry  Configure the detector by selecting it.  Starting from the main menu, you get in the Profi mode to the display to the left via | SETUP | CONFIGURATION | RADIOMETRY |   ENABLED Enable the detector here.    Then go to the measurement.   MEASUREMENT  The  averaging  number  for  the  count  rate  can  be  adjusted depending  on  the  application.  For  applications  where  the mass  per  unit  area  changes  only  slowly,  the  averaging number can be increased to 30.    4.1.6 Marker  You can set a marker comprising max. 5 characters which identify the value set in the live display.    MARKER      1 |  - | Configuration | 07.05 – 13:25    General Data   Measurement   Plausibility   Microwave   Radiometry   Marker   Units   Synchronization ⌂◄         ▲          ▼            ►    1 | - | Radiometry | 07.05 – 13:25       Enabled  no   Calibration   Detector live   Measurement   Plausibility   MPUA calculation ⌂◄         ▲          ▼            ►    1 |  - | Measurement | 07.05 – 13:25       Averaging (CPS)  10           ⌂◄         ▲          ▼            ►
Chapter 4 Configuration   46 MicroPolar Moist LB 568 4.1.7 Units  Set the units as desired.     UNITS     The units of the concentrations (conc 1 and 2) and those of the enabled analog inputs can be selected.   CONC / CONC 2      %   Different units can be set for both concentrations.            CURRENT IN 1          °C   The selection of the units for current input 1 and 2 are different. This depends on the fixed assignment of the current inputs for loading compensation.   1 |  - | Configuration | 07.05 – 13:25    General Data   Measurement   Plausibility   Microwave   Radiometry   Marker   Units   Synchronization ⌂◄         ▲          ▼            ►    1 |   -   |  Units   | 07.05 – 13:25       Conc    % DS   Conc 2   %  Current input 1   °C   Current input 2  m/s   Temp. PT100    ⌂◄         ▲          ▼            ►    1 |   -   |  Units   | 07.05 – 13:25     Conc.   None   Specific   %   % DS  ESC   ..?..        ▲▼        ..√..   .   1 |   -   |  Units   | 07.05 – 13:25       Conc    % DS  Conc 2   % Current input 1  °C          ⌂◄         ▲          ▼            ►    1 |   -   |  Units   | 07.05 – 13:25    Current input 1      None   Specific  °C  °F   g/cm^2   … ESC   ..?..        ▲▼        ..√..
  Chapter 4 Configuration MicroPolar Moist LB 568 47 4.2 Start Calibration Coefficients  Starting from the main menu, you get in the Profi mode to the display to the left by selecting: | SETUP | CALIBRATION | CALIBRATE CONC |   CALIBRATION           COEFFICIENTS  The concentration is calculated as follows. Con = B1∙D + C       with D = attenuation      Check  the  coefficients  B1  and  C  and  correct  them,  if necessary, as follows:  C = medium measuring range value (concentration value)  B1 = 0    Note:  With  these  calibration  coefficients  the  concentration average value and thus the current output is put on hold during start-up.      1 | - | Calibrate Conc | 07.05 –13:25       Sampling   Calibration   Tuning   View   ⌂◄         ▲          ▼            ►     1 |  - | Calibration | 07.05 – 13:25       Cal. order  Linear   Cal. base  PHI   Coefficients      Temp. comp.   Loading comp.   Start calibration  ⌂◄         ▲          ▼            ►     1 |  - | General Data | 07.05 – 13:25      B1    0   C    10          ⌂◄         ▲          ▼            ►
Chapter 4 Configuration   48 MicroPolar Moist LB 568 4.3 Configuration Plausibility  As  described  in  chapter  3.2.10  Phase  Measure,  the plausibility via Phi Offset is preferred for all applications.  Starting from the main menu, you get in the Profi mode to the display to the left by selecting: |  SETUP  |  CONFIGURATION  |  PLAUSIBILITY  |  PHASE MEASURE |  The display to the left shows the default settings; these may have to be entered, if necessary.  A subsequent restriction of Phi  Offset max and Sigma max may  be  useful  in  order  to  eliminate  phase  jumps.  The following adjustment ranges are recommended:  Phi Offset max.:  150° - 170° Sigma max:    50 - 500  If a  phase  jump elimination is not possible, then either an attenuation calibration (preferably with conveyor  belts)  has to be carried out, or the plausibility has to be determined via the behavior of Phi/Att, see chapter 6.1 Phi/Att ratio.  Setup of an attenuation calibration: Starting from the default values (see display on the left) Phi Offset  max  must  be  set  to  0.  Sigma  max  should  be  set roughly, so that various problems can be ruled out.      1 | - | Phase measure | 07.05 – 13:25     Phi offset max.  170.00°   Sigma max  500.00   Phi/Att    Disabled   Phi/Att ratio  0.00   Auto set  OFF  ⌂◄         ▲          ▼            ►
  Chapter 5 Calibration MicroPolar Moist LB 568 49 Chapter 5. Calibration  Prerequisite: chapter 4. Configuration has been completed. 5.1 Scintillation Counter Calibration Calibration  is  performed  by  recording  the  zero  count  rate  I0 (adjustment). For this purpose, the belt or the chute must run empty, clean and dry.  For a belt, the I0 recording has to take place over at least an entire belt cycle. For example, belt speed 2 m/s, conveyor belt length 100 m: belt cycle = 2 * conveyor belt length Thus, min. recording time = 200 m / 2 m / s = 100 s  Starting from the main menu, you get in the Profi mode to the  display  to  the  left  via  |  SETUP  |  CONFIGURATION  | RADIOMETRY | CALIBRATION |   Before the calibration, the parameters (default values) listed in the display to the left must be changed as needed. Details see chapter 3.3.1 Configuration Radiometric Detector.   ADJUST   TIP Calibration  is  possible  only  in  the  STOP  mode  of  the evaluation unit.  Start the plateau measurement:   START  After  expiration  of  the  max.  calibration  period  or  early termination  via  the  DONE  button,  the  I0  is  automatically saved and the detector calibration is finished.  Push the CANCEL button to terminate the recording and I0 is set to zero. The detector is now in the uncalibrated state.   1 |  - | Calibration | 07.05 – 13:25      Adjust   Max adjust time  180s   I0    3 cps   Isotope   Cs137   Ray angle   0.00 °  ⌂◄         ▲          ▼            ►    1 |  - |  I0 read-in  | 07.05 – 13:25       Io current  48 cps  Io    15 cps      CANCEL   START        1 |  - |  I0 read-in  | 07.05 – 13:25       Io current  48 cps  Io    15 cps  ______________________  _________O_________  CANCEL       DONE
Chapter 5 Calibration   50 MicroPolar Moist LB 568 5.2 System Calibration Two  reference  measurements  are  used for  system  calibration. There are two options: a) microwave reference measurement on an empty belt and/or chute (regular case) b) microwave reference measurement with regular belt loading or chute filling  Both procedures concern the optimization of the reference path. They will  be  used  for the  phase adjustment in  order  to  avoid phase  jumps  that  may  be  caused  by  a  less  than  optimum geometry. Normally, the reference measurement is carried out with empty belt or chute. The belt (chute) should run  empty,  clean  and dry. If you later get high values under normal operating conditions for Phi Offset (>170°) and Sigma (> 500), you have to carry out the  reference  measurement  with  full  belt  or  chute  (=  with normal  load  in  the  operating  point).  In  this  case,  a  "tare" measurement with empty belt or chute has to be carried out.       SETUP           CALIBRATION         SYSTEM ADJUST         1 |   -  |   LB 568  |  07.05 – 13:25       Live Display   Diagnostic   Setup   Access level  Basic  Language  English  RUN         ▲          ▼            ►   1 |  - | Setup | 07.05 – 13:25       Configuration  Calibration   Input / Output    Product       ⌂◄         ▲          ▼            ►    1 |  - | Calibration | 07.05 – 13:25      System adjust   Calibrate Conc        ⌂◄         ▲          ▼            ►
  Chapter 5 Calibration MicroPolar Moist LB 568 51    ADJUST          Confirm          System adjustment is in process.           Push  OK  to confirm and push ⌂◄ three times to return to the main menu.        1 | - |System Adjust | 07.05 –13:25    Adjust           ⌂◄         ▲          ▼            ►    1 | - |System Adjust | 07.05 –13:25                 System adjustment now?     ..X..                                ..√..    1 | - |System Adjust | 07.05 –13:25         Adjustment in process ...      ….............................................      1 | - |System Adjust | 07.05 –13:25            Adjusted!                          ..OK..
Chapter 5 Calibration   52 MicroPolar Moist LB 568 5.2.1 Verifying the Reference Values  Starting from the main menu, you get in the Profi mode to the display to the left by selecting: | SETUP | CALIBRATION | SYSTEM ADJUST |     REFERENCE VALUES        Typical  values  for  the  reference  measurement  with empty belt (chute); of particular importance are: Sigma:    should be less than 400 (reliable       microwave irradiation) Attenuation:  should be less than 25 dB (antennas       and cable OK, belt not conductive)   Typical values for the reference measurement with full belt (chute); of particular importance are: Sigma:    should be less than 400 (reliable       microwave irradiation) Attenuation:  should be less than 60 dB (antennas       and cable O. K., belt not conductive)      1 | - |System Adjust | 07.05 –13:25     Adjust  Reference values   Chart Phi   Chart Attenuation   ⌂◄         ▲          ▼            ►  1 | - | Reference Values | 07.05 – 13:25     Phi(fm)   125.00 °/GHz   Attenuation  22.5 dB   Slope    120.55 °/GHz   Sigma    15.20   ⌂◄         ▲          ▼            ►
  Chapter 5 Calibration MicroPolar Moist LB 568 53 5.2.2 Tare Measurement Prerequisite: - You are in the Profi mode. - The conveyor belt or the chute are empty, clean and dry. - The measurement is in the measurement mode.  Following the reference measurement with full belt, carry out a tare measurement with empty, clean and running belt. The measuring system is in the measurement mode. Please write down the following values from the live display:  Phi(fm)   =      GRD/GHz Sigma    =      dimensionless amount Attenuation  =      dB Slope    =      GRD/GHz Phi Offset  =      GRD   Typical  values  with  empty  belt  (chute);  of  particular importance are: Sigma:    should be less than 400 (reliable       microwave irradiation) Attenuation   should be 0 … -35 dB (antennas       and cable OK, belt not conductive) Phi Offset  should be less than +/- 170       (no phase jump)   If the phase is used for calibration, the phase value also has to  be  checked.  The  phase  (Phi(fm);  as  a  rule  negative) should be approximately: Moisture of the previously measured product x mass per unit area (+ /- 20)  Check if this value is within the + /- 20 tolerance. Exception: Product with higher share of bound water, e.g. lignite, where the measurement effect is lower by a factor of about 0.7. If not, check if the empty belt measurement is not affected by a phase jump. A phase jump would induce a load-dependent measurement error. Contact a Berthold Technologies Service Center for more information about Phase tare.
Chapter 5 Calibration   54 MicroPolar Moist LB 568 Starting from the main menu, you get in the Profi mode to the display to the left by selecting: | SETUP | CALIBRATION | ADVANCED |    TARE VALUES       Enter  the  last  recorded  values  of  Phi(fm)  and  attenuation, taking into account the algebraic sign "- ".                1  |   -   |  Advanced  | 07.05 – 13:25    Tare values   Num. cal. sweeps  20   Process type  1 Conc.   Extended cal. mode  disabled   ⌂◄         ▲          ▼            ►    1  |  -  | Tare Values | 07.05 – 13:25     Phi tare   0.00 °/GHz   Attenuation tare  0.00 dB       ⌂◄         ▲          ▼            ►
  Chapter 5 Calibration MicroPolar Moist LB 568 55 5.3 Sampling Before running a sample measurement you have to enable the desired compensation input and check the calibration. Only the measured  values  of  the  activated  inputs  are  stored  in  the sample table.  If  the  measuring  system  is  not  yet  in  the  measurement mode, start the measurement now.    Push RUN to start the measuring system.           Push  .√.  to  confirm  the  safety  prompt  and  the  device switches to the measurement mode.      Watch  the  behavior  of  the  microwave  measurement  with running full and empty belt, especially Sigma and Phi(fm) to ensure that not too many measurements will be rejected with empty belt or with maximum belt load.  Check  before  sampling  whether  all  available  compensation devices  (e.g.  height  sensor,  belt  weigher)  have  been parameterized  correctly  via  the  analog  inputs.  Watch  and check  the  compensation  signals  also  with  running  full  and empty belt, for example in the live display.        1 |   -  |   LB 568  |  07.05 – 13:25       Live Display   Diagnostic   Setup   Access level  Basic  Language  English  RUN         ▲          ▼            ► 1 | - |    Start / Stop | 07.05 –13:25          Switch operating mode?          ..X..                                    ..√..
Chapter 5 Calibration   56 MicroPolar Moist LB 568   The display to the left appears if you push RUN.   Note: Push the SAMPLE button to start measurement of the raw data. At the same time, the laboratory sample has to be taken and marked. The analysis may be performed later, provided the product is not changed by this.      Sampling is in process......  Push the .X. button to stop the sampling process any time.       If  the  sampling  process  has  been  completed  without  any problem, push the .√. button to save the sample in the table and the measurement continues.      You have to repeat the process described above for each further sample.  The moisture/concentration of the samples should be distributed over  the  entire  measuring  range.  In  case  of  additional temperature  compensation,  the  temperature  of  the  samples should be distributed over the entire temperature range.  The minimum number of samples required is dependent on the selected calibration modes. If the number of samples is too low, an error message is displayed after you have attempted to run a calibration.  About  six  samples  suffice  for  a  rough  calculation  of  the calibration coefficients, provided the moisture differs by at least 5%. At least 15 samples are required for a fine calibration.    1 |  - | Live Display | 07.05 – 13:25                      Concentration av.        65.50 %        Conc. av.   Conc. act.   .   64.35%   ESC   SAMPLE   ..▲▼..  ZOOM      1 |  - | Live Display | 07.05 – 13:25                    Taking Sample #1                   Conc av.            Conc act   64.35%          ..X..                  .▲▼.            1 |  - | Live Display | 07.05 – 13:25                          Save sample                           no. 1?                     Conc av.            Conc act   64.35%         ..X..                       ..▲▼.       ..√..
  Chapter 5 Calibration MicroPolar Moist LB 568 57 The  moisture/concentration  of  the  samples  should  be distributed over the entire measuring range and not vary too much during each sampling step.  The  measuring  system  has  to  operate  at  a  normal throughput  and  the  usual  material  under  actual  operating conditions. Do not take the samples before the product has passed the measuring point! The measurement would be disturbed each time a gap is detected. See the following illustration.   Figure 5-1 Sampling point on the  conveyor belt
Chapter 5 Calibration   58 MicroPolar Moist LB 568 5.3.1 Entering the Lab Values    Push ESC to go to the main menu. A measurement can be stopped only on the main menu.          Push STOP to stop the measuring system.          Push  .√.  to  confirm  the  prompt  and  the  measurement switches to the STOP mode.         SETUP        CALIBRATION          CALIBRATE CONC    1 |  - | Live Display | 07.05 – 13:25                   Concentration av.      65.50 %         Conc. av.   Conc. act. Act.   64.35%          ESC   SAMPLE   ..▲▼..  ZOOM       1 |   -  |   LB 568  |  07.05 – 13:25       Live Display   Diagnostic   Setup   Access level  Basic  Language  English  STOP       ▲          ▼            ►   1 | - |    Start / Stop | 07.05 –13:25          Switch operating mode?         ..X..                                    ..√..    1 |   -  |   LB 568  |  07.05 – 13:25       Live Display   Diagnostic   Setup   Access level  Basic  Language  English RUN         ▲          ▼            ►   1 |  - | Calibration | 07.05 – 13:25       System adjust   Calibrate conc   ⌂◄         ▲          ▼            ►    1 |  - | Setup | 07.05 – 13:25       Configuration   Calibration   Input / Output   Product   ⌂◄         ▲          ▼            ►
  Chapter 5 Calibration MicroPolar Moist LB 568 59    SAMPLING             LAB VALUE         Delete  default  value  with  DEL  and  enter  new  value  and confirm with .√..           NEXT SAMPLE   and repeat the step described above with the next sample.  After  you  have  entered  the  last  sample  by  pushing  the   ◄  button you get back to the Calibration menu. (Short push – one page,  longer  push  of  the  button  –  you  get  back  to  the Calibration menu immediately) 5.4 Calibration  Proceed as described in chapter 6.4.     1 | - | Calibrate Conc | 07.05 –13:25       Sampling   Tuning   View   ⌂◄         ▲          ▼            ►   1 |  1/1  | Sample # 1  | 07.05 –13:25     Next sample   Active    Yes   Measured value  65.50%   Lab value  0.00 %   Advanced .. ◄  .    DEL     ▲▼         ..√..  1 |  1/1  | Sample # 1  | 07.05 –13:25    Lab Value      0.00|                  %       ESC   ..?..   DEL   ..√..     1 |  1/1  | Sample # 1  | 07.05 –13:25     Next sample   Active    Yes   Measured value  65.50%   Lab value  72.40 %   Advanced    ◄      DEL      ▲▼       ..√..
Chapter 6 Calibration and Options   60 MicroPolar Moist LB 568 Chapter 6. Calibration and Options 6.1 Configuration Phi/Att Ratio Plausibility  As  described  in  chapter  3.2.10  Phase  Measurement,  the plausibility is determined via Phi Offset for all applications.  Alternatively, the plausibility can also be determined via the Phi/Att ratio.  From  the  main  menu,  you  get  in  the  Profi  mode  to  the display  to  the  left  via  |  SETUP  |  CONFIGURATION  | PLAUSIBILITY | PHASE MEASURE |  Check  and  correct  your  settings  using  the  parameters displayed to the left.    PHI/ATT RATIO  If you know the ratio value, enter it here; go to chapter 6.1.1 Phi/Att Ratio.      Delete  default  value  with  DEL  and  enter  new  value  and confirm with .√..      6.1.1 Phi/Att Ratio  If you do not know the ratio value, you have the following options:  1. Carry out a process recording, see chapter  6.1.2  Process Recording.  Prerequisite  for  this  is  that  during  the recording  the  process  is  moved  across  the  entire concentration range. 2. If the process recording is currently not possible or if the concentration  range  is  small  anyway  (<  ± 5%),  then enter Phi/Att = 1 as start value.  Subsequent adjustment of the process recording is possible.  1 | - | Phase measure | 07.05 – 13:25      Phi offset max.  0.00°   Sigma max  500.00   Phi/Att    Enabled  Phi/Att ratio  0.00   Auto set  OFF    ⌂◄         ▲          ▼            ► 1 | - | Phase measure | 07.05 – 13:25       Phi/Att ratio      0.00      ESC    ..?..        ▲▼      ..√..           ▼          ►
  Chapter 6 Calibration and Options MicroPolar Moist LB 568 61 6.1.2 Process Recording Prerequisite: You are in the Profi mode and chapter    4. Configuration       5.1 Scintillation Counter Calibration       5.2 System Adjust have been completed.  The process recording is used to determine the ratio of Phase and Attenuation (Phi/Att), a parameter from the plausibility analysis for correct evaluation of the phase.  If you know the ratio already from other measurements, you may enter it directly on the PLAUSIBILITY menu (see chapter 3.2.10  Phase  Measure); in this case, that process need not be recorded.   IMPORTANT The measurement takes place automatically; you only have to start and stop it again. During measurement, please keep in mind: - Do not stop the measurement - Do not change the concentration erratically (max. 1 %). - Cover the entire measuring range, if possible   Starting from the main menu, you get in the Profi mode to the display to the left by selecting  | SETUP | CONFIGURATION | PLAUSIBILITY |   PHASE MEASUREMENT          AUTO SET            1 |   -  | Plausibility  | 07.05 – 13:25       Process limits   Phase measure        ⌂◄         ▲          ▼            ►    1 | - |Phase Measure | 07.05 –13:25       Phi offset max.  170.00°   Sigma max.  500.00   Phi/Att    Disabled   Phi/Att ratio  0.00   Auto set  OFF    ⌂◄         ▲          ▼            ►
Chapter 6 Calibration and Options   62 MicroPolar Moist LB 568     ON            Stop logging: You have the option to stop logging by turning the logging off. The logging is held and starts again only after it is turned on again.  Start new logging: Prerequisite:  Logging  is  turned  off.  Stop  and  start  the measurement before you start a new log. The result of older logs will be deleted.   After recording and turning off the automatic recording you still have to enable the Plausibility Phi/Att.   Carry out sampling while the process recording is running. Do not forget to turn off the process recording in the same way as described above!     1 | - |Phase Measure | 07.05 –13:25     Auto set   Off  On   ESC   ..?..        ▲▼        ..√..     1 | - |Phase Measure | 07.05 –13:25       Phi offset max.  170.00°   Sigma max.  500.00   Phi/Att    Disabled   Phi/Att ratio  5.32   Auto set  ON    ⌂◄         ▲          ▼            ►
  Chapter 6 Calibration and Options MicroPolar Moist LB 568 63 6.2 Adjusting the Calibration  A correction factor and an offset may be entered later to obtain a subsequent adjustment of the calibration (fine tuning).  Below please find an example for an offset adjustment.  The display to the left appears if you push RUN.  The display reading is now compared with the analysis value of the lab sample. The difference has to be entered as offset with the correct algebraic sign.  Calculation: Analysis value – display = offset      Eg. 6-1   Push ESC to go to the main menu.      SETUP            CALIBRATION           CALIBRATE CONC         1 |  - | Live Display | 07.05 – 13:25                       Concentration av.        65.50 %         Conc. av.         Conc. Act.   64.35%          ESC   SAMPLE   ..▲▼..   ZOOM       1 |   -  |   LB 568  |  07.05 – 13:25       Live Display   Diagnostic   Setup   Access level  Basic  Language  English  STOP       ▲          ▼            ►   1 |  - | Setup | 07.05 – 13:25       Configuration   Calibration   Input / Output   Product     ⌂◄         ▲          ▼            ►    1 |  - | Calibration | 07.05 – 13:25       System adjust   Calibrate conc      ⌂◄         ▲          ▼            ►
Chapter 6 Calibration and Options   64 MicroPolar Moist LB 568       TUNING           OFFSET    Calculation formula see chapter 3.2.14 Calibrate Concentration.      Enter the calculated offset value, confirm with .√. button and push the Home button ⌂◄ four times to return to the main menu.        Select    LIVE DISPLAY   to get back to the display.       The reading value should now correspond to the actual value.   1 | - | Calibrate Conc | 07.05 –13:25       Sampling    Tuning   View   ⌂◄         ▲          ▼            ►    1 |  -  |  Tuning | 07.05 –13:25       Factor    1.00000   Offset    0.000          ⌂◄         ▲          ▼            ►    1 |  -  |  Tuning | 07.05 –13:25       Offset      0.000 |       ESC    ..?..   DEL   ..√..      1 |   -  |   LB 568  |  07.05 – 13:25       Live Display   Diagnostic   Setup  Access level  Basic  Language  English  STOP        ▲          ▼            ►     1 |  - | Live Display | 07.05 – 13:25                      Av. av.        75.50 %         Conc. av.          Conc. Act.   64.35%          ESC   SAMPLE   ..▲▼..  ZOOM
  Chapter 6 Calibration and Options MicroPolar Moist LB 568 65 6.3 Output of the Start-up Log Starting from the main menu, you get in the Profi mode to the display to the left by selecting | DIAGNOSTIC |   PRINT SETUP          Push .√. button to print the log via RS232.  Push .X. to go back one page without printout.     The start-up log includes all adjustable parameters, data of the system adjustment, calibration data and entries of the sample table.  For further information on the start-up log see chapter 9. Start-up Log.     1 |  -  | Diagnostic  |  07.05 – 13:25     Data log   Error log   Info   Print setup  ⌂◄         ▲          ▼            ►   1 | - | Print setup|   07.05 –13:25          Print setup now?        ..X..                                    ..√..
Chapter 6 Calibration and Options   66 MicroPolar Moist LB 568 6.4 Calibration A variety of setup options exists for calibration. For details see  chapter  3.2.18  Calibration.  In  addition,  the  default settings are displayed, which are usually the best choice.  Prerequisite: You are in the Profi mode and chapter    4. Configuration       5.1 Scintillation Counter Calibration       5.2 System Adjust       5.3 Sampling have been completed.  6.4.1 Calibration with One Concentration  Starting from the main menu, you get in the Profi mode to the display to the left by selecting | SETUP | CALIBRATION | CALIBRATE CONC |   CALIBRATION         CAL ORDER         LINEAR  Standard for all applications: Linear  Quadratic calibration is possible only for a calibration with three and more samples.      1 | - | Calibrate Conc | 07.05 –13:25       Sampling   Calibration   Tuning   View  ⌂◄         ▲          ▼            ►    1 |  - | Calibration | 07.05 – 13:25       Cal. order  Linear   Cal. base  Attenuation   Coefficients   Start calibr.    ⌂◄         ▲          ▼            ►    1 |  - | Calibration | 07.05 – 13:25     Cal. order        Linear   Quadratic  ⌂◄         ▲          ▼            ►
  Chapter 6 Calibration and Options MicroPolar Moist LB 568 67      CAL. BASE           PHASE (Phase measurement)   Standard for conveyor belt applications: Attenuation Standard for chute applications: Phase   The  calibration  base  is  selected  depending  on  the  number  of samples  and  their  raw  data.  Initial  calibration  should  be  as simple as possible, since calibration can be optimized any time.    START CALIBRATION       Push  .√.  to  start  the  calibration;  push  .X.  to  go  back  one page without calibration.          .OK.  takes  over  the  calibration  and  changes  to  the  next display.  When calculating the new coefficients, the factor will be reset to 1 and the offset to 0.     1 |  - | Calibration | 07.05 – 13:25       Cal. order  Linear   Cal. base  Attenuation   Coefficients   Start calibr.    ⌂◄         ▲          ▼            ►    1 |  - | Calibration | 07.05 – 13:25    Cal. base      Phase   Attenuation   Both    ⌂◄         ▲          ▼            ►    1 |  - | Calibration | 07.05 – 13:25       Cal. order  Linear   Cal. base  PHI   Coefficients   Start Calibr.    ⌂◄         ▲          ▼            ►    1 |  - | Calibration | 07.05 – 13:25             Calibrate Now?       ..X..                                    ..√..    1 |  - | Calibration | 07.05 – 13:25             Calibrated!                                                 ..OK..
Chapter 6 Calibration and Options   68 MicroPolar Moist LB 568     The curve to the left shows the characteristic curve lab vs. measured value.  .►.         The  correlation  indicates  the  average  deviation  of  the characteristic curve from the sample series.    .OK.            Upon confirmation, the calibration menu appears again; from there you get  back to  the main menu  by  pushing  ⌂◄  four times and the measurement can be started again.           1 |  - | Calibration | 07.05 – 13:25                                                                       Lab                                            ►    1 |  - | Calibration | 07.05 – 13:25       Correlation Lab/Meas value      0.998726                                                 ..OK..    1 |  - | Calibration | 07.05 – 13:25          Calibration   OK?        ..X..                                    ..√..
  Chapter 6 Calibration and Options MicroPolar Moist LB 568 69 6.4.2 Calibration with Temperature Compensation The temperature compensation in general not used for bulk applications.  Starting from the main menu, you get in the Profi mode to the display to the left by selecting: | SETUP | CALIBRATION | CALIBRATE CONC |   CALIBRATION             TEMP. COMP.         INPUT  All active inputs are shown here for compensation selection. The desired input must already have been active during the sampling so that the input values in the sample table will be available for the further calibration.       PT100 The PT100 is selected as an example.    1 | - | Calibrate Conc | 07.05 –13:25       Sampling   Calibration   Tuning   View   ⌂◄         ▲          ▼            ►    1 |  - | Calibration | 07.05 – 13:25       Cal. order  Linear   Cal. base  Attenuation   Coefficients   Temp. comp.   Loading comp.   Start Calibr. ⌂◄         ▲          ▼            ►    1 | - | Calibrate Conc | 07.05 –13:25    Input   None   Current In 1   Current In 2   PT100    ⌂◄         ▲          ▼            ►   1 | - | Temp. Comp. 1 | 07.05 –13:25   Input    None   Mode    Additive   Order    Linear   Reference value  0.00°C   C_Phi 10.00000   C_dB 10.00000  ESC   ..?..        ▲▼        ..√..
Chapter 6 Calibration and Options   70 MicroPolar Moist LB 568  The display to the left shows the default values for the mode and the order.  Standard for all applications:  Mode Additive             Order Linear   You  can  select  additive  or  multiplicative  mode  and  set  the  order to linear or quadratic.        REF. TEMP         The  product  temperature  for  the  system  calibration  or  the average operating temperature is entered and confirmed as reference value.        The  coefficients,  for  example,  C_Phi  1  and  C_dB  1  are automatically calculated during calibration   ESC    Now  enter  the  additional  settings  and  calculate  the calibration, as described in chapter 6.4.1 Calibration with one Concentration.      1 | - | Temp. Comp. 1 | 07.05 –13:25     Reference value.         0.00  |  °C        ESC   ..?..   DEL   ..√..    1 | - | Temp. Comp. 1 | 07.05 –13:25    Input    PT100   Mode    Additive   Order    Linear   Reference value  0.00°C   C_Phi 1   0.00000   C_dB 1   0.00000  ESC   ..?..        ▲▼        ..√..    1 | - | Temp. Comp. 1 | 07.05 –13:25    Input    PT100   Mode    Additive   Order    Linear   Reference value  80.00°C   C_Phi 1  0.00000   C_dB  1  0.00000  ESC    ..?..      ▲▼        ..√..    1 | - | Temp. Comp. 1 | 07.05 –13:25    Input    PT100   Mode    Additive   Order    Linear   Reference value  0.00°C   C_Phi 1   0.00000   C_dB 1   0.00000  ESC    ..?..      ▲▼        ..√..
  Chapter 6 Calibration and Options MicroPolar Moist LB 568 71 6.4.3 Calibration with Load Compensation  Usually  the  measuring  system  MicroPolar  Moist  LB  568  is operated  with  the  radiometric  mass  per  unit  area compensation.  In  this  case,  perform  the  calibration  as described below.   Starting from the main menu, you get in the Profi mode to the display to the left by selecting | SETUP | CALIBRATION | CALIBRATE CONC | CALIBRATION        LOAD COMP.     The required inputs must be enabled!   COMP. MODE          RADIOM. MPUA     After  selection,  the  LOADING  LIMIT  is  displayed  on  the menu.   LOADING LIMIT        1 | - | Calibrate Conc | 07.05 –13:25       Sampling   Calibration   Tuning   View  ⌂◄         ▲          ▼            ►     1 | - | Calibration | 07.05 –13:25       Cal. order  Linear   Cal. base  Attenuation   Temp. comp.   Load comp.     Start Calibr. ⌂◄         ▲          ▼            ►    1 | - |Load Comp | 07.05 –13:25    Comp.Mode  disabled           ⌂◄         ▲          ▼            ►    1 |  -  | Load Comp. |07.0 –13:25   Comp. Mode   Disabled   Radiom. MPUA   Load (Current In 1)   Tonnage & Speed   Mass & Height  ⌂◄         ▲          ▼            ►    1 |  -  | Load Comp. | 07.05 –13:25       Comp.Mode  Radiom. Mpua    Loading limit                   ⌂◄         ▲          ▼            ►
Chapter 6 Calibration and Options   72 MicroPolar Moist LB 568     MIN. LOADING         Enter minimum mass per unit area.  Push  √  to confirm and three times ⌂◄ to go back.    Now  enter  the  additional  settings  and  calculate  the calibration, as described in chapter 6.4.1 Calibration with one Concentration.     1 | - |Loading Limit|07.05 –13:25       Min. loading   0.01                    ⌂◄         ▲          ▼            ►   1 | - |Loading Limit|07.05 –13:25      Min. loading   [  ]    0.01   [-10 , 100000]  ESC    ..?..      ▲▼        ..√..
  Chapter 6 Calibration and Options MicroPolar Moist LB 568 73 6.4.4 Calibration with Two Concentrations  Calibration  for  two  concentrations  starts  with  changing  the process type as described below.  Starting from the main menu, you get in the Profi mode to the display to the left by selecting | SETUP | CALIBRATION |     PROFI          PROCESS TYPE         2 CONC  Push the .√. button to accept the selected process type and push the ⌂◄ button once to go to the display depicted below.      CALIBRATE CONC (corresponding to concentration 1)        SAMPLING     1 | - |Calibrate Conc1|07.05 –13:25       Sampling   Calibration   Tuning   View  ⌂◄         ▲          ▼            ►    1 |  - | Calibration | 07.05 – 13:25       System adjust   Calibrate Conc   Calibrate Conc 2   Advanced  ⌂◄         ▲          ▼            ►    1 |  - | Calibration | 07.05 – 13:25       System ADJUST   Calibrate Conc    Advanced   ⌂◄         ▲          ▼            ►    1  |   -   |  Advanced  | 07.05 – 13:25       Tare values   Num. cal. sweeps  20   Process type   Extended cal. mode  disabled    ⌂◄         ▲          ▼            ►    1  |   -   |  Advanced  | 07.05 – 13:25     Process type   1 Conc   2 Conc   Split conc    ESC    ..?..       ▲▼       ..√..
Chapter 6 Calibration and Options   74 MicroPolar Moist LB 568 For both calibration there is only one sample table.  The  lab  values  have  to  be  entered  for  all  samples  used  for calibration  of  concentration  1.  All  other  samples  have  to  be disabled (Active.... Yes/No).     LAB VALUE         Delete  default  value  with  DEL  and  enter  new  value  and confirm with .√..        NEXT SAMPLE  Continue with the next sample.         ACTIVE  Disable sample         NO        1 | 1/4 | Sample # 1 | 07.05 – 13:25       Lab value    60.40  |    %   ESC    ..?..  DEL    ..√..    1 |  1/4  | Sample # 1  | 07.05 –13:25     Next sample   Active    Yes   Measured value  65.50%  Lab value  0.00 %   Advanced   ◄      DEL      ▲▼       ..√..  1 |  1/4  | Sample # 1  | 07.05 –13:25     Next sample   Active    Yes   Measured value  65.50  %   Lab value  60.40  %   Advanced   ◄      DEL      ▲▼       ..√..  1 | 2/4  | Sample # 2  | 07.05 –13:25     Next sample   Active    Yes   Measured value  74.35  %   Lab value  67.80  %   Advanced   ◄      DEL      ▲▼       ..√..   1 | 2/4 | Sample # 2 | 07.05 – 13:25     Enabled       No   Yes  ESC   ..?..   DEL   ..√..
  Chapter 6 Calibration and Options MicroPolar Moist LB 568 75  Make sure that all samples have been processed and only those samples are active which are relevant for this calibration.  Push  ◄  to get to the Calibration page.                  START CALIBRATION          Push  .√.  to  start  the  calibration;  push  .X.  to  go  back  one page without calibration.        .OK.  takes  over  the  calibration  and  changes  to  the  next display.            1 | 2/4  | Sample # 2  | 07.05 –13:25     Next sample   Active    No   Measured value  74.35  %   Lab value  67.80  %   Advanced   ◄      DEL      ▲▼       ..√..   1 | - |Calibrate Conc1|07.05 –13:25       Sampling   Calibration   Tuning   View  ⌂◄         ▲          ▼            ►    1 |  - | Calibration | 07.05 – 13:25             Calibrate Now?       ..X..                                    ..√..    1 | - | Calibration  1 | 07.05 –13:25             Calibrated!                                                 ..OK..    1 |  - | Calibration | 07.05 – 13:25       Cal. order  Linear   Cal. base  Attenuation   Coefficients   Start Calibr.  ⌂◄         ▲          ▼            ►
Chapter 6 Calibration and Options   76 MicroPolar Moist LB 568    Push ⌂◄ twice to return two pages.           CALIBRATE CONC 2     Repeat  the  steps  as  described  above  for  concentration  2;  all samples have to be enabled again in the sample table. Now you have to disable all samples which are not used for concentration 2.    SAMPLING         1 |  - | Calibration | 07.05 – 13:25       Cal. order  Linear   Cal. base  Attenuation   Coefficients   Start Calibr.  ⌂◄         ▲          ▼            ►    1 |  - | Calibration | 07.05 – 13:25       System adjust   Calibrate conc   Calibrate conc 2   Advanced  ⌂◄         ▲          ▼            ►    1 | - |Calibrate Conc2|07.05 –13:25       Sampling   Calibration   Tuning   View  ⌂◄         ▲          ▼            ►
  Chapter 6 Calibration and Options MicroPolar Moist LB 568 77 6.4.5 Calibration with Split Value  With  this  type  of  calibration,  two  characteristic  curves (concentrations) are combined in one measuring range; their point of intersection defines the split value.   Conc 1 for the lower and conc 2 for the upper measuring range can be output only together via current output.    ADVANCED          PROCESS TYPE           SPLIT CONC     Push the .√.  button to accept the selected process type and push the ⌂◄ button once to go to the display depicted below. The displayed split value has been set by the manufacturer, but has to be adapted to the respective application.     The sample measurement should be selected such that the last sample  of  the  lower  concentration  is  fairly  close  to  the  first sample  measurement  of  the  upper  concentration.  Ideally,  the last sample of the initial concentration is the first sample of the final concentration.     1 |  - | Calibration | 07.05 – 13:25       System adjust   Calibrate conc    Advanced   ⌂◄         ▲          ▼            ►    1  |   -   |  Advanced  | 07.05 – 13:25       Tare values   Num. cal. sweeps  20   Process type   Extended cal. Mode  Disabled    ⌂◄         ▲          ▼            ►     1  |   -   |  Advanced  | 07.05 – 13:25    Process type   1 Conc   2 Conc   Split conc       ESC    ..?..        ▲▼       ..√..    1  |   -   |  Advanced  | 07.05 – 13:25       Tare values   Num. cal. sweeps  20   Process type  Split conc   Split value  75.00 %   Extended cal. Mode  Disabled  ⌂◄         ▲          ▼            ►
Chapter 6 Calibration and Options   78 MicroPolar Moist LB 568 The sample measurement  is carried out continuously over the entire measuring range with the display depicted to the left. See chapter 5.3 Sampling.     After completion of sampling, the individual samples will be enabled  or  disabled  during  input  of  the  laboratory  values, relative to the set split values. All samples smaller or equal to the split value will be assigned to the lower concentration range  and  all  samples  above  to  the  upper  concentration range.  The allocation of the samples takes place automatically, for example, after the split value has been set or the lab values have been entered (e.g. after new sampling). The allocation depends on the split value and the lab value.   IMPORTANT The split value entry allows you to enable samples that have been disabled earlier through automatic assignment! In these cases, disabled samples should better be deleted or disabled again after a split value entry!   The  split  value  to  be  set  must  correspond  to  the  point  of intersection  of  both  calibration  curves.  This  will  be  corrected automatically  after the calibration (within certain limits).    SPLIT VALUE         Enter the split value and confirm with .√.  .      Push ⌂◄ to get to the Calibration page.       1 |  - | Live Display | 07.05 – 13:25                      Concentration av.        65.50 %         Conc. av.          Conc. Act.   64.35%          ESC   SAMPLE   ..▲▼..  ZOOM     1  |   -   |  Advanced  | 07.05 – 13:25       Tare values   Num. cal. sweeps  20   Process type  Split conc   Split value  75.00 %   Extended cal. mode disabled  ⌂◄         ▲          ▼            ►    1  |   -   |  Advanced  | 07.05 – 13:25       Split value      75.00  |    %       ESC   ..?..   DEL   ..√..
  Chapter 6 Calibration and Options MicroPolar Moist LB 568 79     CALIBRATE CONC         CALIBRATION   The  lower  concentration  is  now  calibrated.  Then  select CONC2 and repeat the calibration process. Back to the main menu and start the measurement.       1 |  - | Calibration | 07.05 – 13:25       System adjust   Calibrate conc   Calibrate conc 2   Advanced  ⌂◄         ▲          ▼            ►    1 | - |Calibrate Conc2|07.05 –13:25       Sampling   Calibration   Tuning   View  ⌂◄         ▲          ▼            ►
Chapter 6 Calibration and Options   80 MicroPolar Moist LB 568 6.4.6 Extended Calibration Mode It  is  possible  to  select  an  extended  calibration  mode  that replaces  all  other  calibration  calculations  including temperature  and  loading  compensation.  Calibration  is performed using the following formula:  Measured value = A1∙Phase + B1∙Attenuation + C                        + D∙PT100 + E∙Input1 +F∙Input2        + G∙Radiom. Mpua        Eg. 6-2  where: Measured value  Concentration / Moisture / Dry mass A1     Phase coefficient B1     Attenuation coefficient C      Offset D      Compensation coefficient for PT100 input E      Compensation coefficient for current input 1 F      Compensation coefficient for current input 2 G      Compensation coefficient for radiom. Mpua  The coefficients can be calculated manually or automatically from the entries in the sample table.  Upon delivery of this device, this calibration mode is disabled (default  setting).  Activation  is  carried  out  on  the  PROFI menu:  Starting from the main display, you get to the display depicted to the left via | SETUP | CALIBRATION |   ADVANCED         EXTENDED CAL. MODE       ENABLE  Confirm selection with .√.  .     1  |   -   |  Advanced  | 07.05 – 13:25       Tare values   Num. cal. sweeps  20   Process type  1 Conc.   Extended cal. mode  disabled       ⌂◄         ▲          ▼            ►    1 |  - | Calibration | 07.05 – 13:25       System adjust   Calibrate conc   Advanced   ⌂◄         ▲          ▼            ►    1  |   -   |  Advanced  | 07.05 – 13:25       Extended cal. mode   Disabled   Enabled   ESC    ..?..        ▲▼       ..√..
  Chapter 6 Calibration and Options MicroPolar Moist LB 568 81 The Setup and Calculation of the calibration is carried out on the following menu:  Starting from the main menu, you get to the display to the left by selecting | SETUP | CALIBRATION | CALIBRATE CONC |   CALIBRATION       Comp input: Here  you  can  select  the  analog  inputs  (PT100,  current input  1  and  2)  that  are  needed  for  compensation.  The following parameters can be set:  None  Mpua  Mpua + Input 1  Mpua + Input 2  Mpua + PT00  Mpua + Input 1 + Input 2  Mpua + Input 1 + PT100  Mpua + Input 2 + PT100  Mpua + Input 1 + Input 2 + PT100  Input 1  Input 1 + Input 2  Input 1 + PT100  Input 1 + Input 2 + PT100  Input 2  Input 2 + PT100  PT100  Cal. base The following parameters can be set:  Phase  Attenuation  Both (phase and attenuation)  Coefficients: On this display, you can edit all calibration coefficients.  Start Calibr. Starts the calibration using the parameters you have set earlier.    1 |  - | Calibration | 07.05 – 13:25       Comp input.  None   Cal. base  PHI   Coefficients   Start Calibr.     ⌂◄         ▲          ▼            ►   1 | - | Calibrate Conc | 07.05 –13:25       Sampling   Calibration   Tuning   View  ⌂◄         ▲          ▼            ►
Chapter 6 Calibration and Options   82 MicroPolar Moist LB 568 6.5 Typical Calibration Coefficients/Start Values For applications on the conveyor belt and in the measuring chute it holds:  For dry mass measurement, A1 and B1 must be negative.   Without loading compensation:  ]cm/g[ 2Mpua11A   or        Eg. 6-3 ]cm/g[ 2Mpua61B           Eg. 6-4   C:  Concentration/moisture value during system calibration  The Mpua can be calculated from Eq. 3-1 in the Hardware Manual, chapter 3.3 Load Compensation.   With loading compensation using the mass per unit area:  A1 = 1 or B1 = 6 for moisture measurement C:  Concentration/moisture value during system calibration   With loading compensation using current input 1:  Example of compensation signals: - Mass flow, for example via a belt weigher - Material thickness, e.g. via distance measurement  ]cm/g[ 2Mpua)1In Current(load alminNo1A     or    Eg. 6-5   ]cm/g[ 2Mpua)1In Current( load alminNo61B     Eg. 6-6  C:  Concentration/moisture value during system calibration   The Mpua can be calculated from Eq. 3-1 in the Hardware Manual, chapter 3.3 Load Compensation.
  Chapter 7 Password MicroPolar Moist LB 568 83 Chapter 7. Password   The measuring system can be protected against unauthorized access by passwords.  The access levels are as follows:  Read only The measuring system cannot be started and stopped. You can  only  switch  from  the  live  display  to  Diagnostic  and  to Access Level.  Basic On the Basic level you can make essential entries, and stop and start the system.  Profi  The Profi mode allows additional entries in the Process type menu, Calibration menu and opens the Service menu.  Service The service level is reserved to service personnel.   You  have  to  enter  a  password  to  change  from  the  access level "Read only" to "Basic" or "Profi". At the time of delivery, this password is          PASS1  The password can be changed in the Profi mode on the menu | SETUP | CHANGE PASSWORD |.  Changing from Profi to Basic or vice versa is possible without password.    TIP Depending on the access level, some menu items are hidden.
Chapter 7 Password   84 MicroPolar Moist LB 568 7.1 Password Forgotten The  device  is  in  the  "Read  only"  mode  and  the  user  has forgotten  the  password.  Please proceed as  follows  to  carry out a "Reset" of the user level: Turn off device. Turn on device; as soon as  all  5  LED’s  light  up  after  power on, press 0 (zero) and keep it depressed for 8 seconds. Device powers up in the "Basic mode". You can now enter a new password (in the Profi mode).    IMPORTANT Review  your  process  before  you  turn  off  the  device.  The current outputs drop to 0 mA.
  Chapter 8 Error Lists and Device States MicroPolar Moist LB 568 85 Chapter 8. Error Lists and Device States  The  LED's  indicate  the  device  state.  After  the  error  has  been remedied, the LED’s are reset to the normal status. 8.1 Hardware Error and Warning Messages Code Error Possible cause 14 Battery voltage Battery is nearly empty, replace immediately See Hardware Manual chapter 5.4 20 HF temperature out of range Check the operating temperature of the evaluation unit, permissible range -20 to 45 °C 21 Warning! Ambient temperature too high! Check the operating temperature of the evaluation unit, permissible range -20 to 45 °C 32 Parameter memory incorrect Compatibility check after software download: A general reset has to be performed. 39 HF hardware error Troubled cable connection between motherboard and HF module.  Check connector on the motherboard. Warning! First, disconnect the evaluation unit from the power supply! 94 No radiometric detector connected No communication between scintillation counter and evaluation unit: broken cable, wiring faulty or not connected.  For all other error messages, please contact the Berthold Technologies service department.
Chapter 8 Error Lists and Device States   86 MicroPolar Moist LB 568 8.2 Input Error Error Probable cause Value too large Input value too large Value too small Input value too small Table is empty Sample table has been selected without  previous sampling Chart data faulty The measuring system has determined   faulty chart data during calibration. No chart data available The calculated chart data have been deleted or calibration has not been completed. Sample table full You have tried to measure more than 20 samples. 8.3 Measurement Error and Error Messages Code Error Possible cause 50 Sigma of phase is too large The measured phase exceeds the permissible limit value. 52 Attenuation too high The measured attenuation exceeds the permissible max. value. 54 No system calibration done The system calibration has not yet been carried out. 56 Phase Offset too large The measured phase exceeds the permissible limit value of Phase Offset 60 Current input 1 out of range The enabled current input has not yet been calibrated or is not used. 61 Current input 2 out of range The enabled current input has not yet been calibrated or is not used. 62 PT100 temperature out of range The enabled PT100 input has not yet been calibrated or is not used. 70 Concentration out of range The concentration lies outside the process limits. 71 Concentration 2 out of range The concentration lies outside the process limits.
  Chapter 8 Error Lists and Device States MicroPolar Moist LB 568 87  Code Error Possible cause 72 Loading value 1 smaller than minimum load Minimum load not reached, with respect to concentration 1. 73 Loading value 2 smaller than minimum load Minimum load not reached, with respect to concentration 2. 74 Load comp. disabled. Current input upper and lower limit invalid The current input has exceeded the upper or lower limit. 75 Synchronization time too long Review settings for synchronization, see chapter 7.3 in the Hardware Manual. 76 Synchronization: Speed out of range Review settings for synchronization, see chapter 7.3 in the Hardware Manual. 77 Wait for synchronous value The measurement has not yet been synchronized, please wait. 90 Current input 1 out of range The concentration calculated on the basis of the current lies outside the current range. 91 Current input 2 out of range The concentration calculated on the basis of the current lies outside the current range. 95 Radiometric detector: current count rate > max. count rate Max. count rate entered incorrectly or material loading too low 96 Radiometric detector: current count rate < min. count rate Wrong input, material loading too high or source - detector not aligned. 104 Decay compensation: Device turned off more than 30 days. Check date/time  Check and correct the date and time. 105 Decay compensation failed: Enter date/time Check and correct the date and time. For all other error messages, please contact the Berthold Technologies service.   After the error has been eliminated, the measurement returns to the status before the error has occurred. An acknowledgment is not required.
Chapter 8 Error Lists and Device States   88 MicroPolar Moist LB 568 8.4 Device States Error state: This condition is indicated by the error codes 50 to 56, 60 to 62 and 70 to 73 (see table above). The evaluation unit shows the following behavior: LED’s:  RUN flashing, ERROR on, signal 1 and 2, depending on configuration. Current outputs:  Error Current Display:     Error message with error code  Warning state: This condition is indicated by the error codes 14, 21, 90 and 91 (see table above). The evaluation unit shows the following behavior: LED’s:    RUN flashing, ERROR off, signal 1 and       2, no correlation. Current outputs:  live Display:     Error message with error code  Hold state: Measurement  was  stopped  via  digital input.  The  evaluation unit shows the following behavior: The mean  concentration  value is frozen. The measurement continues, however, so that a measurement fault may trigger the error condition also in the Hold state. LED’s:  RUN flashing, ERROR off, signal 1 and 2 depending on configuration. Current outputs:  frozen Display:     No display message
  Chapter 9 Start-up Log MicroPolar Moist LB 568 89 Chapter 9. Start-up Log   The log can be output via RS232. The output takes place in menu | DIAGNOSITIC | PRINT SETUP |.  The  serial  interface  RS232  has  the  following  connection settings: Data transfer rate 38400 baud, 8 data bits, no parity, 1 stop bit  The log is stored to a TXT file using a terminal program. For the presentation (e.g. in Excel®), the following data format has to be taken into account.  Separator:    Tabulator Decimal separator:  . Thousand separator  ,  The following code list helps you to interpret the start-up log, see example of a log in chapter 9.1.  Parameters Code Information Log type  0 1 2 3 Log type: Disabled Single Continuous Stop at error Log time  0 1 2 3 4 5 Log time: 15 minutes 1 hour 4 hours 8 hours 1 day 3 days Measuring mode  0 1 Measuring mode: Continuous Batch Start mode  0 1 Start mode (Start/Stop): Keyboard External Wave band selection  0 1 2 3 Frequency band selection: Full range Standard Resonance scan Specific
Chapter 9 Start-up Log   90 MicroPolar Moist LB 568 Parameters Code Information Extended calibration mode  0 1 Extended Cal mode: Off On Extended calibration input selection  0 1 2 3 4 5 6 7 8 9 10 11 12 13 14 15 Extended Cal input selection: None Mpua Mpua + Input 1 Mpua + Input 2 Mpua + PT00 Mpua + Input 1 + Input 2 Mpua + Input 1 + PT100 Mpua + Input 2 + PT100 Mpua + Input 1 + Input 2 + PT100 Input 1 Input 1 + Input 2 Input 1 + PT100 Input 1 + Input 2 + PT100 Input 2 Input 2 + PT100 PT100 Calibration mode  0 1 Calibration degree: Linear regression Quadratic regression Calibration variable  0 1 2 Calibration basis: Phase Attenuation Phase and attenuation Temp. compensation input  0 1 2 3 Temp. compensation input: None Current In 1 Current In 2 PT100 Temp. compensation mode  0 1 Compensation mode: Additive Multiplicative Temp. compensation fit  0 1 Compensation degree: Linear regression Quadratic regression Loading comp. selection:  0 1 2 3 4 Selection of loading compensation: Disabled Radiom. MPUA  Loading (Cin 1) Tonnage & Speed Mass & Height Synchronizer mode  0 1 2 Synchronization mode: Disabled Const. velocity Variable velocity Measure configuration  0 1 2 Process type: 1 concentration 2 concentrations Split concentration
  Chapter 9 Start-up Log MicroPolar Moist LB 568 91 Parameters Code Information AO Assign Code  0 1 2 3 4 5 Assignment current output: None Concentration Concentration 2 Current In 1 Current In 2 PT100 AO Alarm select code  0 1 2 3 Error current output: 22 mA 3.5 mA Hold Value Range selection  0 1 Measuring range current output: 0 … 20 mA 4 … 20 mA Compensation input  0 1 2 3 Compensation input: None Current In 1 Current In 2 Pt100 AI Range selection  0 1 Measuring range current input: 0 … 20 mA 4 … 20 mA AI Enabled[2]  Status of current input 2 DO Function  0 1 2 4 5 Function of the digital outputs: None Error Hold Alarm min. Alarm max. DO Assignment   0 1 2 3 4 Digital output: the min./max. alarm is assigned as follows: Concentration Concentration 2 Current In 1 Current In 2 PT100 DI Function selection  0 1 2 3 4 Function of the digital inputs: None Start/Stop Hold Sampling Product selection Printout mode  0 1 2 3 Mode of data output: None Line Table Line + table
Chapter 9 Start-up Log   92 MicroPolar Moist LB 568  Parameters Code Information Access level  0 1 2 3 Access level: Read only Basic Profi Service Language  0 1 2 Language selection English German French
  Chapter 9 Start-up Log MicroPolar Moist LB 568 93 9.1 Example Start-up Log  Menu: Start of Setup: Start-up Log Interpretation:        (* only relevant for service) Product Entry Product1 Product2 Prod.3 Prod.4         Datalog Log type : 1    Log type: see Code list     Log time : 2    Log time: see Code list     Number of errors : 2    Number of entries in the error log   NTC temperature : 45.3 °C    *       max. NTC temperature : 46.7 °C    *       9V power supply : 7.94 V       *       Info Tag:        -     Tag      Device type:           LB 568     Device type  :      Unique device ID number : 4294967295            Serial number : 4294967295            Final assembly number :      000-000             Software version : V1.00            Software release date : 31.08.2012    Software revision date     Actual date : 01.09.2012    Date of recording     Actual time : 18:03       Time of recording   Measurement Measuring mode : 0    Measuring mode: see code list     Start mode : 0    Start mode: see code list     Filter damping value : 20    Averaging number      Filter damping value[2] : 20    *       Filter damping value[3] : 20    *      Reset average : FALSE        Reset averaging: Yes/No   Plausibility Lower limit : 0    Min. process limit     Upper limit : 100    Max. process limit     Max. phase sigma : 500    Sigma max.      Max. Phase at zero freq.(°) 170.00 °/GHz    Residual phase max.      Correlation Phi/Att : 0    Phase/attenuation ratio      Auto-set mode : FALSE     Auto set: On/Off     Unwrap algor. EPS value : 500.00 °     *    PhiM jump corr. enable : TRUE    Phase jump correction, enabled: Yes/No  PhiM jump corr. variance : 150.00 °    Variance for the phase jump correction  PhiM jump corr. filter damp : 4    Averaging number for the phase jump correction    PhiM jump corr. filter post correction : FALSE       * Microwave Ref. cable length :  4.00 m    Reference cable length     Signal cable length :  4.00 m    Signal cable length      Wave band selection : 1    Frequency band: see code list   Start frequency : 0    *     Internal Attenuation : 0       *       Marker Marker name : Mark1     Marker name for concentration     Marker value : 50    Marker value for concentration      Marker name[2] : Mark2     Marker name for concentration 2   Marker value[2] : 50       Marker value for concentration 2 System adjust Nbr of sweeps for reference : 10    Number of sweeps for system calibration
Chapter 9 Start-up Log   94 MicroPolar Moist LB 568  Calibrate concen- tration 2 Extended calibration mode : 0    Extended Cal. mode: see Code list Extended calibration input selection: 0    Extended Cal input selection: see Code list  Calibration mode : 0    Calibration degree: see code list Calibration variable : 1    Calibration basis: see code list Phase coefficients : 0    Phase coefficient A1     Phase coefficients[2] : 0    Phase coefficient A2     Attenuation coefficients : 0    Attenuation Coefficient B1     Attenuation coefficients[2] : 0    Atten. coefficient B2     Constant coefficient : 10    Constant C    d coefficient 0    Comp. coefficient for PT100 input  e coefficient 0    Comp. coefficient for current input 1  f coefficient 0    Comp. coefficient for current input 2  g coefficient 0    Comp coefficient for mpua   Adjust factor : 1    Factor       Adjust offset : 0    Offset       Temp. compensation mode: 0    Compensation mode: see code list   Temp. compensation input : 0    Compensation input: see code list   Temp. compensation fit: 0    Compensation fit: see code list   Temp. compensation reference : 0    Compensation reference value   Phase coeff. for temp. comp. : 0    Comp. Phase coefficient K_Ph1   Phase coeff. for temp.comp.[2] : 0    Comp. Phase coefficient K_Ph2   Attenuation coeff. for temp.comp : 0    Comp. Atten. coefficient K_dB1   Attenuation coeff. for temp.comp[2] 0    Comp. Atten. coefficient K_dB2   Loading comp. selection : 0    Loading comp. selection: see code list   Loading comp. lower limit : 0.01       Minimum load       Synchronizer mode : 0    Synchronizer mode: see code list  Current input1 distance to uWave : 0    Distance to the microwave measuring path  Current input2 distance to uWave : 0       Distance to the microwave measuring path  Radiometry distance to uWave : 0       Distance for the radiometric measuring path Plausibility for concen- tration 2  Lower limit : 0       Min. process limit Upper limit : 100       Max. process limit
  Chapter 9 Start-up Log MicroPolar Moist LB 568 95  Calibrate concen- tration 2 Calibration mode : 0    Calibration degree: see code list Calibration variable : 1    Calibration basis: see code list Phase coefficients : 0    Phase coefficient A1     Phase coefficients[2] : 0    Phase coefficient A2     Attenuation coefficients : 0    Atten. coefficient B1     Attenuation coefficients[2] : 0    Atten. coefficient B2     Constant coefficient : 10    Constant C    d coefficient 0    Comp. coefficient for PT100 input  e coefficient 0    Comp. coefficient for current input 1  f coefficient 0    Comp. coefficient for current input 2  g coefficient 0    Comp coefficient for mpua   Adjust factor : 1    Factor       Adjust offset : 0    Offset       Temp. compensation mode: 0    Compensation mode: see code list   Temp. compensation input : 0    Compensation input: see code list   Temp. compensation fit : 0    Compensation degree: see code list   Temp. compensation reference : 0    Compensation reference value   Phase coeff. for temp. comp. : 0    Comp. Phase coefficient K_Ph1   Phase coeff. for temp.comp.[2] : 0    Comp. Phase coefficient K_Ph2   Attenuation coeff. for temp.comp : 0    Comp. Atten. coefficient K_dB1   Attenuation coeff. for temp.comp[2] 0    Comp. Atten. coefficient K_dB2   Loading comp. selection : 0    Loading comp. selection: see code list   Loading comp. lower limit : 0.01       Minimum load     Advanced Tare Phase (°/GHz) : 0.00 °/GHz            Tare Attenuation (dB) :   0.00 dB            Measure configuration : 0    Process type: see code list     Range split value : 75       Split value     Current output 1 AO Assign code : 1    Assignment: see code list   AO Upper range value : 100.00%    Upper value      AO Lower range value : 0.00%    Lower limit      AO Current value :  4.00 mA    Actual current      AO Alarm select code : 2    Error current: see code list     AO Error current value : 22.00 mA       Error current value    Current output 2 AO Assign code[2] : 0    Assignment: see code list   AO Upper range value[2] : 100    Upper value      AO Lower range value[2] : 0    Lower limit      Range selection[2] : 1    Range       AO Current value[2] :  4.00 mA    Actual current      AO Alarm select code[2] : 2    Error current: see code list     AO Error current value[2] : 22.00 mA       Error current value    Current input 1 AI Enabled : 0    Disabled: 0 Enabled: 1  AI Range selection : 1    Range: see code list     AI Upper range value : 100    Upper value      AI Lower range value : 0    Lower limit      AI Current :  0.00 mA       Live current     Current input 2 AI Enabled[2] : 0    Disabled: 0 Enabled: 1  AI Range selection[2] : 1    Range: see code list     AI Upper range value[2] : 100    Upper value      AI Lower range value[2] : 0    Lower limit      AI Current[2] :  0.02 mA       Live current
Chapter 9 Start-up Log   96 MicroPolar Moist LB 568          PT100 input AI Enabled[3] : 0       Disabled: 0 Enabled: 1  PT100 value :   2.8 °C       PT100 live value     Relay 1 DO Function : 1    Function: see code list     DO Assignment : 0    Assignment: see code list     DO Threshold : 0.00%    *       DO Hysteresis : 5.00%       *       Relay 2 DO Function[2] : 2    Function: see code list     DO Assignment[2] : 0    Assignment: see code list     DO Threshold[2] : 0.00%    *       DO Hysteresis[2] : 5.00%       *        Digital inputs DI Function selection : 0    Function digital input 1: see code list DI Function selection[2] : 0    Function digital input 2: see code list DI Function selection[3] : 0       Function digital input 3: see code list   Printout mode : 1    Data output: see code list     Access level : 2    Access level: see code list     Language : 1    Language: see code list   Radiom. detector Radiometric detector measurement state: 0    Disabled 0 Enabled: 1  Cps filter damp : 10    Averaging of the count rate     Cps validation mode : 1    Disabled 0 Enabled: 1   CPS max value : 100000 cps    Maximum count rate    CPS min value : 0 cps    Min. count rate    HV control mode : 0    Automatic: 0 Manual: 1   Actual HV : 450.0 V    Current high voltage   Detector software version : 1.2.4    Detector software version  Detector unique id : 1161953277    Detector device ID no.  Mass per unit area transducer state: 0    0 = no radiom. compensation enabled 1 = radiom. compensation enabled  Absorption coefficient for MPUA calculation : 0.07    Absorption coefficient for MPUA calculation, MPUA = Mass per unit area   Ray angle of radiation source : 0°    Radiation angle  Io rate : 0 cps    Zero count rate  Selected nuclide at I null determination : 0    0 = Cs137 1 =Am241   Io max. time : 180 s    Max. recording time for Io  Reference measurement done (Io) : FALSE    Reference measurement done: Yes/No   Nuclide selection : 0    0 = Cs137 1 =Am241                                                                                                        End of Setup         End
  Chapter 9 Start-up Log MicroPolar Moist LB 568 97  Start of Reference Data     System adjustment data:           Product 1:          Mean Atten.: 46.8509 dB        Phase at fm: 42.6285 deg/GHz        Phase offset: -825.586 deg        Phase slope: 380,984 deg/GHz        Phase correlation: 0.998212        Phase sigma: 0.24575                  Frequency[GHz] Phase[Deg] Transformed Phase[Deg] Atten.[dB]       3.101 35.64 35.64 21.98       3.131 361.81 361.81 21.95       3.161 689.04 689.04 22.07       3.191 1014.44 1014.44 22.36       3.221 1339.01 1339.01 22.37       3.251 1664.16 1664.16 22.68       3.281 1989.9 1989.9 22.32       3.311 2319.19 2319.19 22.57       3.341 2642.87 2642.87 22.46       3.371 2972.88 2972.88 22.42       3.401 3296.79 3296.79 22.83       3.431 3623.71 3623.71 22.43       3.461 3949.32 3949.32 22.51       3.491 4275.35 4275.35 22.34       3.521 4601.84 4601.84 22.27       3.551 4929.07 4929.07 22.44       3.581 5254.83 5254.83 22.45       3.611 5582.38 5582.38 22.47       3.641 5907.4 5907.4 22.67      3.671 6230.12 6230.12 22.77      3.701 6489.69 6489.69 22.24      3.731 6755.95 6755.95 22.23      3.761 6922.09 6922.09 22.24      3.791 7387.71 7387.71 22.25      3.821 7854.85 7854.85 22.02       3.851 7854.85 7854.55 22.89      3.881 7387.71 7387.71 22.41               Start of Sample Data:     Sampling:    Product 1: Sample Data for Concentration 1:         Sample:                                Active: Con .(%): Lab.(%): AIN1: AIN2: Temp. (°C): Phi. (°/GHz): Att.(dB): Mqua (g/cm2):  1|17.03 - 12:37                    TRUE 40 40 0 0 0 -0.35 0.02 0.00  2|17.03 - 12:37                    TRUE 35 35 0 0 0 30.33 5.08 0.00  3|17.03 - 12:45                    TRUE 25 25 0 0 0 59.02 18.98 0.00 Correlation factor between          lab and meas values: 1         End of Sample Data          Do not use following data!

Navigation menu