Bosch Rexroth 3842406960ID15 RFID Reader User Manual

Bosch Rexroth AG RFID Reader

User Manual

The Drive & Control Company DEENFRITESPT3 842 536 035 (2006.11)DE+EN+FR+IT+ES+PTIdentifikationssystem ID 15Identification system ID 15Système d’identification ID 15Sistema di identificazione ID 15Sistema de identificación ID 15Sistema de Identificação ID 153 842 406 9603 842 535 440, ID 15/MDT14 ( 20)3 842 535 442, ID 15/MDT23 ( 16, 17, 18, 22)3 842 535 443, ID 15/MDT22 ( 21)3 842 535 911, ID 15/MDT13 ( 16)3 842 535 912, ID 15/MS4 ( 19)3 842 535 913, ID 15/MS3 ( 19)3 842 535 916, ID 15/MDT11 ( 12)3 842 535 917, ID 15/MS2 ( 21)3 842 535 918, ID 15/MS5 ( 18)3 842 535 919, ID 15/MDT21 ( 12, 13)3 842 535 920, ID 15/MS1 ( 10, 14)3 842 536 612, ID 15/MDT12-80 ( 20)3 842 536 613, ID 15/MDT12-120 ( 20)3 842 536 614, ID 15/MDT12-160 ( 20)3 842 537 885 ( 11, 15 )536035-11.eps536035-00.eps
ID 1523 842 536 035 (2006.11)Bosch Rexroth AGBestimmungsgemäße VerwendungIntended useUtilisation conformeSicherheitshinweiseSafety instructionsConseils de sécuritéDie bestimmungsgemäße Verwendungdes Schreib-Lese-Kopfes ID 15/SLK istdie Übertragung von Daten von und zummobilen Datenträgern ID 15/MDT.Der Schreib-Lese-Kopf ID 15/SLKwandelt die empfangenen Daten in digitalcodierte Werte und stellt die Werte derAS-i Steuerungsebene zur Verfügung(AS-i Master, Controller oder Host).Einsatzbereiche sind z.B.:– Materialfluss-Steuerung und -Kontrollein Fertigungslinien– Lagermanagement durch automatischeLagergut-Erkennung– Behältermanagement,Kommissionierung undWarenverfolgung.Diese Montageanleitung– gilt für Geräte der Typen:- Schreib-Lese-Kopf ID 15/SLK- Mobiler Datenträger ID 15/MDT– richtet sich an fachkundige Personenim Sinne der EMV- und derNiederspannungs-Richtlinie.– ist Bestandteil des Produktes. Sieenthält Angaben zum korrektenUmgang mit dem Produkt. Lesen Siesie vor dem Einsatz, damit Sie mitEinsatzbedingungen, Installation undBetrieb vertraut werden. Befolgen Siedie Sicherheitshinweise.AllgemeinesBefolgen Sie die Angaben in dieserAnleitung. Nichtbeachten der Hinweise,Verwendung außerhalb der bestimm-ungsgemäßen Verwendung, falscheInstallation oder Handhabung könnenBeeinträchtigungen der Sicherheit vonMenschen und Anlagen zur Folge haben.Bei Schäden, die aus nicht bestimmungs-gemäßer Verwendung und aus eigen-mächtigen, in dieser Anleitung nichtvorgesehenen Eingriffen entstehen,erlischt jeglicher Gewährleistungs- undHaftungsanspruch gegenüber demHersteller.L’utilisation conforme de la têted’écriture-lecture ID 15/SLK est latransmission de données de et vers lesupport de données mobile ID 15/MDT.La tête d’écriture-lecture ID 15/SLKtransforme les données reçues envaleurs numériques codées et les met àdisposition du niveau de commandeAS-i (maître AS-i, Controller ou Host).Les domaines d’utilisation sont par ex. :– commande et contrôle du flux dematériaux dans les chaînes deproduction– management des entrepôts grâce à lareconnaissance automatique des biensde stockage– management des conteneurs,préparation des commandes et suivides produits.Cette instruction de montage– est valable pour les appareils destypes :- tête d’écriture-lecture ID 15/SLK- support de données mobile   ID 15/MDT– s’adresse aux personnes compétentesselon la directive CEM et de bassetension.– est un composant du produit. Ellecontient des indications quant aumaniement correct du produit. Avantutilisation il est conseillé de la lireattentivement, afin de prendreconnaissance des conditionsd’utilisation, de l’installation et dufonctionnement. Il est indispensable desuivre les conseils de sécurité.GénéralitésSuivre les indications dans cetteinstruction. Le non respect des conseils,l’utilisation en dehors des domainesd’utilisation indiqués, une fausseinstallation ou manipulation peuvententraîner une diminution de la sécuritédes hommes et des installations. Lefabricant décline toute responsabilité etexclut toute réclamation concernant lesdommages dus à une utilisation nonconforme ou suite à des modificationseffectuées sans autorisation et nonprévues ci-contre.The read/write head ID 15/SLK is usedto transfer data to and from mobile datatags I D 15/MDT.The read/write head ID 15/SLK convertsthe received data into digitally codedvalues and provides the values to theAS-i control level (AS-i master, controller,or host).Areas of operation are e.g.:– material flow control and monitoring ofproduction lines– warehouse management withautomatic recognition of goods– container management, commissioningand tracking goods.These assembly instructions– apply to device types:- Read/write head ID 15/SLK- Mobile data tag ID 15/MDT– are meant for qualified personneltrained in EMC and the low voltageguidelines– are a part of the product. They containinformation on how to use this productcorrectly. Read them before use, sothat you are familiar with theconditions, installation and operation.Follow the  safety instructions.GeneralFollow the information in theseinstructions. Ignoring the  instructions,unintended use, incorrect installation orhandling could affect the safety ofpersonnel and systems. In no event canthe manufacturer accept warranty orliability claims for damages arising fromimproper use of the appliance or fromintervention in the appliance other thanthat described in this instruction manual.
ID 15 3Bosch Rexroth AG3 842 536 035 (2006.11)DEENFRITESPTEinbau und Anschluss müssen dengültigen nationalen und internationalenNormen entsprechen. Die Verantwortungträgt derjenige, der das Gerät installiert.Das Gerät darf nur von einer Elektro-fachkraft eingebaut, angeschlossen undin Betrieb gesetzt werden, da die sichereFunktion des Gerätes und der Anlagenur bei ordnungsgemäßer Installationgewährleistet ist.Schalten Sie das Gerät externspannungsfrei, bevor Sie irgendwelcheArbeiten an ihm vornehmen.Das Gerät muss zum Betrieb gemäß denKriterien für sichere Kleinspannung(SELV) mit einer externenGleichspannung (26,5-31,6 V DC)versorgt werden.Das Gerät ist gemäß der Spezifikationenin einem weiten Umgebungstemperatur-bereich betreibbar. Aufgrund derzusätzlichen Eigenerwärmung kann es anden Gehäusewandungen beim Berührenin heißer Umgebung zu hohen wahrnehm-baren Temperaturen kommen.Bei Fehlfunktion des Gerätes oder beiUnklarheiten setzen Sie sich bitte mit demHersteller in Verbindung. Eingriffe in dasGerät können schwerwiegendeBeeinträchtigungen der Sicherheit vonMenschen und Anlagen zur Folge haben.Eingriffe in das Gerät sind deshalb nichtzulässig und führen zu Haftungs- undGewährleistungsauschluss.Explosive StoffeDer Schreib-Lese-Kopf ID 15/SLK ist einFunkgerät. Funkgeräte dürfen generellnicht in der Nähe von Tankstellen,Kraftstoffdepots, Chemiewerken oderSprengarbeiten benutzt werden.Transportieren und lagern Sie keineentflammbaren Gase, Flüssigkeiten oderexplosive Stoffe im Bereich des Gerätes.Elektronische GeräteDer Betrieb kann die Funktionsfähigkeitvon nicht ordnungsgemäß geschirmtenelektronischen Geräten beeinträchtigen.Schalten Sie das Gerät in der Nähemedizinischer Geräte aus. Bitteinformieren Sie sich bei Störungen ggf.beim Hersteller des jeweiligen Gerätes.Le montage et le branchement doiventcorrespondre aux normes nationales etinternationales valables. La personneinstallant l’appareil est le seulresponsable.L’appareil doit uniquement être monté,branché et mis en marche par unepersonne qualifiée en électronique, lefonctionnement sûr de l’appareil et del’installation n’étant garanti uniquementlors d’une installation conforme.Avant toute manipulation, mettrel’appareil hors tension externe.Pour le fonctionnement, l’appareil doitêtre alimenté en tension continue externe(26,5-31,6 V CC) selon les critères pourune tension de protection (SELV).Selon les spécifications, l’appareilfonctionne dans une large plage detempératures ambiantes. Suite aurechauffement propre supplémentaire,des températures élevées peuvent êtreressenties sur les parois du boîtier lorsd’un contact dans un environnementchaud.Lors d’un fonctionnement erroné del’appareil ou lors d’incertitudes,contacter le fabricant. Des modificationsde l’appareil peuvent entraîner unediminution importante de la sécurité deshommes et des installations et ne sonten conséquence pas autorisées. Lefabricant décline toute responsabilité etexclut toute réclamation y résultant.Matières explosivesLa tête d’écriture-lecture ID15/SLK estun appareil radio. Les appareils radio nedoivent en général pas être utilisés àproximité de stations-service, dépots decarburant, usines de chimie ou destravaux à l’explosif. Ne pas transporter etstocker de gaz inflammables, de liquidesou de matières explosives près del’appareil.Appareils électroniquesLe fonctionnement peut diminuer le bonfonctionnement des appareilsélectroniques qui ne sont pas blindéscorrectement. Éteindre l’appareil quand ilse trouve près d’appareils médicaux.Lors d’interférences, s’informer le caséchéant chez le fabricant de l’appareilconcerné.Installation and connection must bemade in accordance with the applicablenational and international standards. Theperson who installs the device isresponsible for this.The device may only be installed,connected and commissioned byqualified electrical personnel, since safeoperation of the device and system canonly be guaranteed with properinstallation.Disconnect the device from the externalvoltage before carrying out any work.The device must be externally suppliedwith direct voltage (26.5-31.6 V DC) foroperation according to the criteria forsafe extra-low voltage (SELV) operation.The device is capable of operation withina broad ambient temperature rangeaccording to the specifications. Due tothe additional heat it generates, thehousing can reach a noticeably hightemperature in hot environments.If the device is faulty or anything in theseinstructions is unclear, contact themanufacturer. Modifications to the devicecould seriously affect the safety ofpersonnel and systems. Interventions inthe device are therefore not allowed andwill lead to exemption from liability andthe warranty.Explosive materialsThe read/write head ID 15/SLK is a radiotransmitting device. The use of radiotransmitting devices is generallyprohibited near gas stations, fueldepots, chemical plants or blasting sites.Do not transport or store flammablegases, liquids or explosive materials nearthe device.Electronic devicesOperation can influence the properfunction of electronic devices that havenot been properly shielded. Turn thedevice off near medical devices. Contactthe manufacturer of the respective deviceif there are any faults.
ID 1543 842 536 035 (2006.11)Bosch Rexroth AG536035-11.eps53,55570524M12x1LED12256414,217 4,5173,7536035-12.epsAnlieferzustand/Lieferumfang/AbmessungenDelivery condition/scope of delivery/dimensionsÉtat de livraison/fourniture/dimensionsFunkanlagenzulassungRadio transmitter licenseHomologation de l’installation radiotélégraphique1: integrierte Antenne1: Integrated antenna1: Antenne intégrée2: Positioniermarke für MDT (Antennenmitte)2: Positioning mark for MDT (center of antenna)2: Marquage de positionnement pour MDT    (centre de l’antenne)Kennzeichnung nach R&TTE (RadioEquipment and TelecommunicationsTerminal Equipment and the mutualrecognition of their conformity);EC-Identifikationsnummer:Funkzulassung nach EN 300330.Identification selon R&TTE (RadioEquipment and TelecommunicationsTerminal Equipment and the mutualrecognition of their conformity) ;Numéro d’ident. EC :Homologation radiotélégraphique selonEN 300330.Marking according to R&TTE (RadioEquipment and TelecommunicationsTerminal Equipment and the mutualrecognition of their conformity);EC ID number:Radio transmitter license according toEN 300330.FCC RegistrationThis device complies with Part 15of the FCC Rules and with RSS-210of Industry Canada. Operation is subjectto the following two conditions.(1) this device my not cause harmfulinterference, and(2) this device must accept anyinterference received, includinginterference that may causeundesired operation.Warning: Changes or modificationsmade to this equipment not expresslyappoved byBosch Rexroth AGmay void the FCC authorization tooperate this equipment.
ID 15 5Bosch Rexroth AG3 842 536 035 (2006.11)DEENFRITESPTID 15/SLK ID 15/MDT1 2 3536035-13.epsFunktionsweise und AnzeigeelementeFunction and display elementsFonctionnement et éléments d’affichageDie Datenträger ID 15/MDT werdenpassiv betrieben (ohne Batterie).Die zum Betrieb notwendige Energie wirdvom ID 15/SLK aufgebracht.Das physikalische Prinzip derEnergieübertragung beruht auf derinduktiven Kopplung. Die integrierteAntennenspule des ID 15/SLK erzeugtein magnetisches Feld, das teilweise dieAntennenspule des ID 15/MDT durch-dringt. Durch Induktion wird dort eineSpannung erzeugt, die den ID 15/MDTmit Energie versorgt.Die Sendefrequenz beträgt 125 kHz.Im Wirkungskreis des ID 15/SLK dürfendeshalb keine anderen 125 kHzemmitierenden Geräte betrieben werden,da dies zu Übertragungsfehlern führenkann!Die Anzeigeelemente auf der Oberseitedes ID 15/SLK zeigen dieBetriebszustände an.grün EIN Betriebsspannung OKGreen ON Operating voltage OKVert allumé Tension de service OKgelb EIN ID 15/MDT gelesenYellow ON ID 15/MDT readJaune allumé ID 15/MDT lurot EIN AS-i BusfehlerRed ON AS-i bus errorRouge allumé Erreur bus AS-i312Les supports de données ID 15/MDTfonctionnent de manière passive (sansbatterie).L’énergie nécessaire au fonctionnementest fournie par le ID 15/SLK.Le principe physique de la transmissiond’énergie est basé sur le couplageinductif. La bobine-antenne intégrée duID 15/SLK génère un champ magnétiquequi pénètre en partie la bobine-antennedu ID 15/MDT. Une tension qui alimentele ID 15/MDT en tension y est généréepar induction.La fréquence d’émission est de 125 kHz.Pour éviter des erreurs de transmission,aucun autre appareil avec une émissionde 125 kHz ne doit se trouver dans lasphère d’action du ID 15/SLK !Les éléments d’affichage situés sur ledessus du ID 15/SLK affichent les étatsde fonctionnement.The data tag ID 15/MDT is operatedpassively (without a battery). The energynecessary for operation is provided bythe ID 15/SLK.The physical principle of the energytransfer is based on an inductiveconnection. The integrated antenna coilin the ID 15/SLK generates a magneticfield, which partially penetrates theantenna coil in the ID 15/MDT. A voltageis generated through induction, whichsupplies the ID 15/MDT with energy.The transmitter frequency is 125 kHz.No other devices emitting 125 kHz maybe operated within the range of influenceof the ID 15/SLK, as this could lead totransmission errors!The display elements on the top of theID 15/SLK show the operating status.
ID 1563 842 536 035 (2006.11)Bosch Rexroth AG1: AS-i +3: AS-i –a > 100 mma    100 mmaaaaaa536035-15.eps536035-14.eps2134SpannungsversorgungPower supplyAlimentation en tensionID 15/SLK über die M12-Steckver-bindung mit dem AS-i-Netz verbinden.Die Spannungsversorgung erfolgt ausdem AS-i-Netz. Für sichere Daten-übertragung beim Verlegen von Kabelneinen allseitigen Freiraum (a > 100 mm)beachten!Der Schreib-Lese-Kopf ID 15/SLK im AS-i NetzwerkThe read/write head ID 15/SLK in the AS-i networkLa tête d’écriture-lecture ID 15/SLK dans le réseau AS-iGrundeinstellungBasic settingsRèglement de baseParameter WertI/O Code [hex] 7ID Code [hex] 4Extended ID2 Code [hex] CID1 Code für Codewert [hex] FSlave-Adresse (Werkseinstellung) 0Connecter le ID 15/SLK avec le réseauAS-i via le connecteur enfichable M12.L’alimentation en tension se fait par leréseau AS-i. Pour une transmission desdonnées sûre lors de la pose des câbles,respecter un espace libre de tous lescôtés (a > 100 mm) !Paramètres ValeurCode E/S [hex] 7Code ID [hex] 4Code ID2 élargi [hex] CCode ID1 pour valeur de code [hex] FAdresse d’esclave (réglage d’usine) 0Connect the ID 15/SLK to the AS-inetwork via the M12 connector. Thepower supply comes from the AS-inetwork. For secure data transmission,keep a free area (a > 100 mm) on allsides when laying cables!Parameters ValueI/O code [hex] 7ID code [hex] 4Extended ID2 code [hex] CID1 code for code value [hex] FSlave address (factory setting) 0
ID 15 7Bosch Rexroth AG3 842 536 035 (2006.11)DEENFRITESPTE3 E2 E1 D16 D15 D14 D13 D12 D11 D10 D9 D8 D7 D6 D5 D4 D3 D2 D1 0 V536035-16.epsAdressierungAddressingAdressageDer ID 15/SLK wird adressiert mit einemAdressiergerät, dem Master oder mit derAS-i-Software des Hosts (die Kompon-enten müssen AS-i Version 2.1 unter-stützen).Zulässiger Adressbereich: 1-31.Detaillierte Informationen hierzu finden Sieim Anwenderhandbuch ID 15,3 842 536 511.www.boschrexroth.de/...Für das AS-Interface ist der ID 15/SLKein Analogslave mit Übertragungs-protokoll nach Profil 7.4. Arbeitet derMaster mit der AS-i Version 3.0, erkennter den ID 15/SLK automatisch undunterstützt das Profil 7.4.Im Bereich der Analogwertübertragungsind die Profile 7.3 und 7.4 identisch.Analogwert-RepräsentationAnalog value representationReprésentation de la valeur analogiqueBelegung der DatenbitsAssignment of the data bitsAffectations des bits utilesPro Übertragungszyklus werdenfolgende Daten in Datentripelnübertragen:Belegung:E3-E1: Extention Bits (statisch 0)D16-D2: DatenbitsAdditional Information Bits:D1: Melde-Bit (statisch 0)O: Overflow-Bit (statisch 0)V: Valid-Bit (statisch 1)Le ID 15/SLK est adressé avec unappareil d’adressage, le maître ou avec lelogiciel AS-i du Host (les composantsdoivent supporter la version AS-i 2.1).Zone d’adresse autorisée : 1-31.Pour de plus amples informations, voir lemanuel de l’utilisateur ID15,3 842 536 511.www.boschrexroth.de/...Pour l’interface AS, le ID 15/SLK est unesclave analogique avec protocole detransmission selon le profil 7.4. Si lemaître travaille avec la version AS-i 3.0, ilreconnaît automatiquement le ID 15/SLKet supporte le profil 7.4.Dans le domaine da la transmission desvaleurs analogiques, les profils 7.3 et 7.4sont identiques.Les données suivantes sont transmisespar trois pour chaque cycle detransmission :Affectation :E3-E1 : extension des bits (statique 0)D16-D2 : bits utilesBits d’information additionnels :D1 : bit de notification (statique 0)O : bit de dépassement (statique 0)V : bit de validation (statique 1)The ID 15/SLK is addressed with anaddressing device, the master, or withthe host’s AS-i software (thecomponents must support AS-i version2.1).Permissible address range: 1-31.Detailed information on this can be foundin the ID 15 user manual, 3 842 536 511.www.boschrexroth.de/...The ID 15/SLK is an analog slave withtransmission protocol according toprofile 7.4 for the AS interface. If themaster works with AS-i version 3.0, itautomatically recognizes the ID 15/SLKand supports profile 7.4.Profiles 7.3 and 7.4 are identical in theanalog value transmission range.The following data is transferred in datatriplets per transmission cycle:Assignment:E3-E1: extention bits (static 0)D16-D2: data bitsAdditional information bits:D1: report bit (static 0)O: overflow bit (static 0)V: valid bit (static 1)
ID 1583 842 536 035 (2006.11)Bosch Rexroth AGCodewert-Darstellung durch Datenbits D16-D2Code value representation with data bits D16-D2Représentation des valeurs de code par des bits utiles D16-D2Wertebereich:Dezimalvon 0bis 32767Hexadezimalvon 0bis 7FFFHinweis: Wert “0” bedeutet:kein ID 15/MDT im Lesebereich desID 15/SLK oder ID 15/SLK hatID 15/MDT nicht erkannt.Zusatzfunktionen gemäß AS-i Profil 7.4Additional functions according to AS-i profile 7.4Fonctions supplémentaires selon profil AS-i 7.4Read ID StringAbfrage von AS-i Slave Informationen.Read Diagnose StringAbfrage von Statistik über Lese-/Schreibvorgänge.Read Parameter String(nicht implementiert)Write Parameter StringSchreiben von Daten auf den MDT.Detaillierte Informationen hierzu finden Sieim Anwenderhandbuch ID 15,3 842 536 511.www.boschrexroth.de/...Value range:Decimalfrom 0to 32767Hexadecimalfrom 0to 7FFFNote: value “0” means:No ID 15/MDT in the reading range ofthe ID 15/SLK or ID 15/SLK did notrecognize the ID 15/MDT.Plage des valeurs admissibles :Décimalde 0à32767Hexadécimalde 0à7FFFRemarque : La valeur « 0 » signifie :Aucun ID 15/MDT dans le domaine delecture du ID 15/SLK ou le ID 15/SLKn’a pas reconnu le ID 15/MDT.Read ID StringLecture des informations de l’esclaveAS-i.Read Diagnose StringLecture des statistiques concernant lesopérations de lecture/d’écriture.Read Parameter String(pas implémenté)Write Parameter StringÉcriture de données sur le supportmobile de données.Pour de plus amples informations, voir lemanuel de l’utilisateur ID 15,3 842 536 511.www.boschrexroth.de/...Read ID stringRequest information from AS-i slave.Read diagnosis stringRequest statistics via read/writeprocesses.Read parameter string(Not implemented)Write parameter stringWrite data on the MDT.Detailed information on this can be foundin the ID 15 user manual,3 842 536 511.www.boschrexroth.de/...
ID 15 9Bosch Rexroth AG3 842 536 035 (2006.11)DEENFRITESPTEinsatzbereich:– Erkennen von mobilen DatenträgernID 15/MDT zur Typ-Teile-Identifikation;geeignet für Fördergeschwindigkeitenbis 20 m/minElektrische Ausführung:AS-iBetriebsspannung:26,5–31,6 V DC (gemäß Kriterien fürsichere Kleinspannung)Stromaufnahme:< 100 mAKennwerte:– Arbeitsfrequenz: 125 kHz– max. Fördergeschwindigkeit: 20 m/min(= 0,4 m/s)– max. Leseabstand: 15 mm dynamisch(bei 20 m/min); 20 mm statisch– min. Abstand der MDT zueinander:80 mm– min. Abstand der Leseköpfezueinander: 100 mm– Wertebereich: 15 BitSchnittstelle:– Bussystem: AS-i– AS-i Profil: 7.4Anzeigen: 3 LEDs– grün: Betriebsspannung OK– gelb: ID 15/MDT gelesen– rot: AS-i BusfehlerUmgebungsbedingungen:– Umgebungstemperatur: 0 °C - 50 °C– Lagertemperatur: -25 °C - 80 °C– Zulässiger Luftdruck: 75-106 kPa– Zulässige relative Luftfeuchtigkeit:75 % (bei 35 °C)– Max. Betriebshöhe: 2000 m über NN– Vibration: 0,35 mm; 10-55 Hz– Schock: 50 g (» 500 m/s2) währendmax. 11 msIP Schutzart nach DIN 40050:IP67Schutzklasse:III (Werkzeug vorgesehen zumAnschluss an Kleinspannung)EMV:EMV 89/336/EWG; EN 50295(1999)Gehäusewerkstoff:PAAnschluss:M12 Steckverbindung, vierpoligAreas of application:– Recognition of mobile data tagsID 15/MDT for type/part identification;suitable for conveyor speeds of up to20 m/minElectrical version:AS-iOperating voltage:26.5–31.6 V DC (according to criteriafor safe extra-low voltage)Current consumption:< 100 mAParameters:– Actual frequency: 125 kHz– Max. conveyor speed: 20 m/min (= 0.4m/s)– Max. reading distance: 15 mm dynamic(at 20 m/min); 20 mm static– Min. distance of the MDT to eachother: 80 mm– Min. distance of the read heads toeach other: 100 mm– Value range: 15 bitInterfaces:– Bus system: AS-i– AS-i profile: 7.4Displays: 3 LEDs– Green: operating voltage OK– Yellow: ID 15/MDT read– Red: AS-i bus errorAmbient conditions:– Ambient temperature: 0°C-50°C– Storing temperature: -25°C-80°C– Permissible air pressure: 75-106 kPa– Permissible relative humidity:75% (at 35°C)– Max. operating altitude:2000 m over MSL– Vibration: 0.35 mm; 10-55 Hz– Shock: 50 g (» 500 m/s2) overmax. 11 msIP degree of protection according toDIN 40050:IP67Protection class:III (tool provided for connection toextra-low voltage)EMC:EMC 89/336/EEC; EN 50295 (1999)Housing material:PAConnection:M12 connector, 4-pinDomaines d’utilisation :– reconnaissance des supports mobilesde données ID 15/MDT pourl’identification de la référence ;convient aux vitesses de transportjusqu’à 20 m/minVersion électrique :AS-iTension de service :26,5–31,6 V CC (selon critères pourtension basse)Consommation de courant :< 100 mAValeurs caractéristiques :– fréquence de travail : 125 kHz– vitesse de transport max. : 20 m/min(= 0,4 m/s)– distance de lecture max. : 15 mmdynamique (pour 20 m/min) ; 20 mmstatique– distance min. des MDT : 80 mm– distance min. des têtes de lecture : 100 mm– plage des valeurs admissibles : 15 bitInterface :– système bus : AS-i– profil AS-i : 7.4Affichages : 3 DEL– vert : tension de service OK– jaune: ID 15/MDT lu– rouge : erreur bus AS-iConditions ambiantes :– température ambiante : 0 °C - 50 °C– température de stockage : -25 °C - 80 °C– pression atmosphérique admissible :75-106 kPa– humidité relative admissible :75 % (pour 35 °C)– hauteur d’exploitation max. : 2000 mau-dessus du niveau de la mer– vibration : 0,35 mm ; 10-55 Hz– choc : 50 g (» 500 m/s2) pendant 11ms max.Indice de protection IP selonDIN 40050 :IP67Classe de protection :III (outil prévu pour branchement à unetension basse)CEM :CEM 89/336/CEE ; EN 50295 (1999)Matériau du boîtier :PABranchement :connecteur enfichable M12, à 4 pôles
ID 1510 3 842 536 035 (2006.11)Bosch Rexroth AG1)2)4)3)MD= 5NmSW5MD= 2,5NmSW3536035-01.eps536035-01A.eps536035-01B.eps536035-01A.eps3 842 535 920, ID 15/MS1ID 15/SLK ⇔ ID 15/MDT, externID 15/SLK ⇔ ID 15/MDT, externallyID 15/SLK ⇔ ID 15/MDT, externeMontage ID 15/SLK, extern an TS 1Assembly ID 15/SLK, externally onTS 1Montage ID 15/SLK externe sur TS 11) Zentrierpin für 8er NutCentering pin for 8 mm grooveBroche de centrage rainure de 8 mm2) Hammermutter 8er Nut, M6T-nut for 8 mm groove, M6Écrou à tête rect. rainure de 8 mm, M63)DIN 912 - M6 x 104) AnschraubpositionTightening positionPosition de vissageMontage ID 15/SLK, extern an TS 2Assembly ID 15/SLK, externally onTS 2Montage ID 15/SLK, externe sur TS 21) Zentrierpin für 10er NutCentering pin for 10 mm grooveBroche de centrage rainure de10 mm2) Hammermutter 10er Nut, M6T-nut for 10 mm groove, M6Écrou à tête rect.  rainure de 10 mm, M63)DIN 912 - M6 x 164) AnschraubpositionTightening positionPosition de vissageMontage ID 15/SLK, extern an TS 4Assembly ID 15/SLK, externally onTS 4Montage ID 15/SLK, externe sur TS 41) Zentrierpin für 10er NutCentering pin for 10 mm grooveBroche de centrage rainure de10  m m2) Hammermutter 10er Nut, M6T-nut for 10 mm groove, M6Écrou à tête rect. rainure de 10 mm, M63)DIN 912 - M6 x 164) AnschraubpositionTightening positionPosition de vissage
ID 15 11Bosch Rexroth AG3 842 536 035 (2006.11)DEENFRITESPT536035-57.epsSW13MD = 20 Nm3 842 537 885Schutzabdeckung ID 15Protective cover ID 15Couvercle de protection ID 15
ID 1512 3 842 536 035 (2006.11)Bosch Rexroth AG536035-05.eps45,53,83-0,1 (2x)3,8M567,6 0,27,6 0,2MD= 5NmSW4d = 8d = 12,7536035-04.epsM545,56d = 4,8MD= 5NmSW42,3+0,13+0,5536035-03.eps6363MD= 3NmSW42,3+0,13+0,5MD= 2NmPz2   536035-02.eps63633 842 535 919, ID 15/MDT213 842 535 919, ID 15/MDT213 842 535 916, ID 15/MDT11 3 842 535 916, ID 15/MDT11Montage ID 15/MDT, extern auf WT 2Assembly ID 15/MDT, externally on WT 2Montage ID 15/MDT, externe sur WT 2Montage ID 15/MDT, extern auf WT 1/…Asembly ID 15/MDT, externally on WT 1/…Montage ID 15/MDT, externe sur WT 1/…
ID 15 13Bosch Rexroth AG3 842 536 035 (2006.11)DEENFRITESPT536035-06.eps3-0,117,5+0,517,5+0,517,5+0,5R57,6 3,8M560,27,6 3,891910,2MD= 5NmSW41)1)1)3 842 535 919, ID 15/MDT21Montage ID 15/MDT, extern auf WT 4Assembly ID 15/MDT, externally on WT 4Montage ID 15/MDT, externeal on WT 41)Ausfräsung nur notwendig beiPlattenstärke 19,05 mm.Cut-outs only necessary for platethickness 19.05 mm.Fraisure seulement nécessaire pour uneépaisseur de plaque de 19,05 mm.
ID 1514 3 842 536 035 (2006.11)Bosch Rexroth AG1)2)4)3)MD= 5NmSW5MD= 2,5NmSW3536035-21.eps536035-01C.eps536035-01D.eps536035-01C.eps3 842 535 920, ID 15/MS1ID 15/SLK ⇔ ID 15/MDT, internID 15/SLK ⇔ ID 15/MDT, internallyID 15/SLK ⇔ ID 15/MDT, interneMontage ID 15/SLK, intern an TS 1Assembly ID 15/SLK, internally onTS 1Montage ID 15/SLK, interne sur TS 11) Zentrierpin für 8er NutCentering pin for 8 mm grooveBroche de centrage rainure de 8 mm2) Hammermutter 8er Nut, M6T-nut for 8 mm groove, M6Écrou à tête rect. rainure de 8 mm3)DIN 912 - M6 x 104) AnschraubpositionTightening positionPosition de vissageMontage ID 15/SLK, intern an TS 2Assembly ID 15/SLK, internally onTS 2Montage ID 15/SLK, interne sur TS 21) Zentrierpin für 10er NutCentering pin for 10 mm grooveBroche de centrage rainure de10 mm2) Hammermutter 10er Nut, M6T-nut for 10 mm groove, M6Écrou à tête rect. rainure de 10 mm, M63)DIN 912 - M6 x 164) AnschraubpositionTightening positionPosition de vissageMontage ID 15/SLK, intern an TS 4Assembly ID 15/SLK, internally onTS 4Montage ID 15/SLK, interne sur TS 41) Zentrierpin für 10er NutCentering pin for 10 mm grooveBroche de centrage rainure de10  m m2) Hammermutter 10er Nut, M6T-nut for 10 mm groove, M6Écrou à tête rect. rainure de 10 mm, M63)DIN 912 - M6 x 164) AnschraubpositionTightening }positionPosition de vissage
ID 15 15Bosch Rexroth AG3 842 536 035 (2006.11)DEENFRITESPT536035-58.epsSW13MD = 20 Nm3 842 537 885Schutzabdeckung ID 15Protective cover ID 15Couvercle de protection ID 15
ID 1516 3 842 536 035 (2006.11)Bosch Rexroth AG536035-23.epsMD= 2,5NmSW3Loctite 2426614,53,5+0,1536035-25.eps536035-22.eps3 842 535 911, ID 15/MDT13 3 842 535 442, ID 15/MDT233 842 535 442, ID 15/MDT23Montage ID 15/MDT, intern an WT 2Assembly ID 15/MDT, internally on WT 2Montage ID 15/MDT, interne sur WT 2Montage ID 15/MDT, intern an WT 1/K,  WT 1/SAssembly ID 15/MDT, internally on WT 1/K,  WT 1/SMontage ID 15/MDT, interne sur WT 1/K,  WT 1/SMontage ID 15/MDT, intern an WT 1/PAssembly ID 15/MDT, internally on WT 1/PMontage ID 15/MDT, interne sur WT 1/P
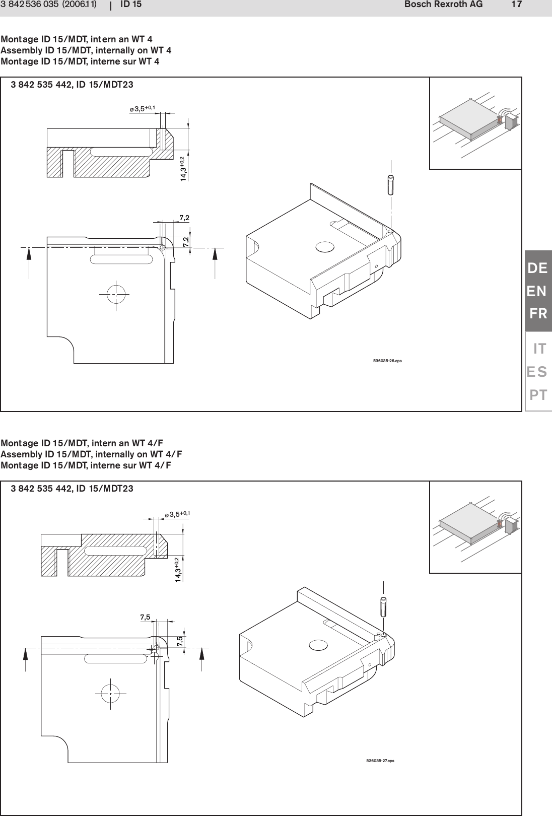
ID 15 17Bosch Rexroth AG3 842 536 035 (2006.11)DEENFRITESPT536035-26.eps7,214,3+0,27,23,5+0,1536035-27.eps7,514,3+0,27,53,5+0,13 842 535 442, ID 15/MDT233 842 535 442, ID 15/MDT23Montage ID 15/MDT, intern an WT 4Assembly ID 15/MDT, internally on WT 4Montage ID 15/MDT, interne sur WT 4Montage ID 15/MDT, intern an WT 4/FAssembly ID 15/MDT, internally on WT 4/FMontage ID 15/MDT, interne sur WT 4/F
ID 1518 3 842 536 035 (2006.11)Bosch Rexroth AG536035-29.eps14,3+0,2 (6)(10)3,5+0,1536035-28.epsMD= 2,5NmSW3MD= 5NmSW53 842 535 918, ID 15/MS53 842 535 442, ID 15/MDT23Montage ID 15/MDT, intern an WT VarioFlowAssembly ID 15/MDT, internally on WT VarioFlowMontage ID 15/MDT, interne sur WT VarioFlowID 15/SLK ⇔ ID 15/MDT, intern an WT VarioFlowID 15/SLK ⇔ ID 15/MDT, internally on WT VarioFlowID 15/SLK ⇔ ID 15/MDT, interne sur WT VarioFlow
ID 15 19Bosch Rexroth AG3 842 536 035 (2006.11)DEENFRITESPT536035-32.epsMD= 2,5NmSW3MD= 5NmSW5536035-31.epsMD= 2,5NmSW3MD= 5NmSW53 842 535 913, ID 15/MS33 842 535 912, ID 15/MS4ID 15/SLK ⇔ ID 15/SLK, Unterbau an TS 1, längsID 15/SLK ⇔ ID 15/SLK, substructure on TS 1, longitudinallyID 15/SLK ⇔ ID 15/SLK, sous-module pour TS 1, longitudinalID 15/SLK ⇔ ID 15/SLK, Unterbau an TS 1, querID 15/SLK ⇔ ID 15/SLK, substructure on TS 1, transversallyID 15/SLK ⇔ ID 15/SLK, sous-module pour TS 1, transversal
ID 1520 3 842 536 035 (2006.11)Bosch Rexroth AG536035-38.epsMD= 2,5NmSW3Loctite 242536035-39.eps3 842 536 612, ID 15/MDT12-803 842 536 613, ID 15/MDT12-1203 842 536 614, ID 15/MDT12-1603 842 535 440, ID 15/MDT14Montage ID 15/MDT, Unterbau an WT 1/K,  WT 1/SAssembly ID 15/MDT, substructure on WT 1/K,  WT 1/SMontage ID 15/MDT, sous-module pour WT 1/K,  WT 1/SMontage ID 15/MDT, Unterbau an WT 1/PAssembly ID 15/MDT, substructure on WT 1/PMontage ID 15/MDT, sous-module pour WT 1/P
ID 15 21Bosch Rexroth AG3 842 536 035 (2006.11)DEENFRITESPTMD= 3NmSW2,5536035-35.epsM318,321,2536035-34.epsMD= 2,5NmSW3MD= 5NmSW53 842 535 443, ID 15/MDT223 842 535 917, ID 15/MS2Montage ID 15/MDT, Unterbau an WT 2Assembly ID 15/MDT, substructure on WT 2Montage ID 15/MDT, sous-module pour WT 2ID 15/SLK ⇔ ID 15/MDT, Unterbau an WT 2, WT 4ID 15/SLK ⇔ ID 15/MDT, substructure on WT 2, WT 4ID 15/SLK ⇔ ID 15/MDT, sous-module pour WT 2, WT 4
Bosch Rexroth AGLinear Motion and Assembly TechnologiesPostfach 30 02 0770442 Stuttgart, GermanyBRL/MKT2Telefax +49 711 811–7777www.boschrexroth.cominfo.brl@boschrexroth.deTechnische Änderungen vorbehaltenSubject to technical modificationsSous réserve de modifications techniquesSoggetto a modifiche tecnicheModificaciones técnicas reservadasReservado o direito de modificaçõestécnicasPrinted in GermanyBosch Rexroth AG22 ID 15 3 842 536 035 (2006.11)6218,5624,53,5+0,1536035-36.eps536035-37.eps18,562623,5+0,14,53 842 535 442, ID 15/MDT233 842 535 442, ID 15/MDT23Montage ID 15/MDT, Unterbau an WT 4Assembly ID 15/MDT, substructure on WT 4Montage ID 15/MDT, sous-module pour WT 4Montage ID 15/MDT, Unterbau an WT 4/FAssembly ID 15/MDT, substructure on WT 4/FMontage ID 15/MDT, sous-module pour WT 4/F
The Drive & Control Company DEENFRITESPT3 842 536 035 (2006.11)DE+EN+FR+IT+ES+PTIdentifikationssystem ID 15Identification system ID 15Système d’identification ID 15Sistema di identificazione ID 15Sistema de identificación ID 15Sistema de Identificação ID 153 842 406 9603 842 535 440, ID 15/MDT14 ( 20)3 842 535 442, ID 15/MDT23 ( 16, 17, 18, 22)3 842 535 443, ID 15/MDT22 ( 21)3 842 535 911, ID 15/MDT13 ( 16)3 842 535 912, ID 15/MS4 ( 19)3 842 535 913, ID 15/MS3 ( 19)3 842 535 916, ID 15/MDT11 ( 12)3 842 535 917, ID 15/MS2 ( 21)3 842 535 918, ID 15/MS5 ( 18)3 842 535 919, ID 15/MDT21 ( 12, 13)3 842 535 920, ID 15/MS1 ( 10, 14)3 842 536 612, ID 15/MDT12-80 ( 20)3 842 536 613, ID 15/MDT12-120 ( 20)3 842 536 614, ID 15/MDT12-160 ( 20)3 842 537 885 ( 11, 15 )536035-11.eps536035-00.eps
ID 1523 842 536 035 (2006.11)Bosch Rexroth AGUtilizzo a normaUso adecuadoUtilização adequadaAvvertenze di sicurezzaIndicaciones de seguridadInstruções de segurançaLa testina di lettura-scrittura ID 15/SLK èconcepita per la trasmissione dei dati dae verso supporti dati mobili ID 15/MDT.La testina di lettura-scrittura ID 15/SLKconverte i dati ricevuti in valori codificatidigitali e mette a disposizione i valori deilivelli di comando AS-i (master AS-i,controller o host).I campi d’impiego sono p. es:– comando e controllo del flusso dimateriale nelle linee di produzione– gestione del magazzino tramiteidentificazione automatica del bene dideposito– gestione dei contenitori, composizioneordini e rintracciabilità delle merci.Le presenti istruzioni di montaggio– valgono per dispositivi del tipo:- testina di lettura-scrittura ID 15/SLK- supporto dati mobile ID 15/MDT– sono rivolte a personale esperto inmateria di direttive CEM e di bassatensione.– sono parte integrante del prodotto econtengono informazioni sul suocorretto uso. Leggerle attentamenteprima dell’impiego per familiarizzarecon le condizioni di impiego,l’installazione ed il funzionamento.Rispettare le avvertenze di sicurezza.GeneralitàSeguire quanto riportato nelle presentiistruzioni. La non osservanza delleavvertenze, un utilizzo non conforme allenorme, un’installazione o unamanipolazione errate possono nuocerealla sicurezza delle persone e degliimpianti. In caso di danni prodotti daun'utilizzazione impropria o a seguito dimodifiche arbitrarie non previste nellepresenti istruzioni, decade qualsiasigaranzia e responsabilità da parte delfabbricante.O cabeçote de gravação e leituraID 15/SLK destina-se à transmissão dedados recíproca com armazenadores dedados móveis ID 15/MDT.O cabeçote de gravação e leituraID 15/SLK converte os dados recebidosem valores codificados digitalmentetornando-os disponíveis para o nível decomando AS-i (AS-i mestre, controladorou host).Alguns exemplos das áreas de utilizaçãosão:– comando e controle do fluxo demateriais em linhas de produção– gerenciamento de estoque através dereconhecimento automático de itensem estoque– gerenciamento de recipientes,preparação e acompanhamento demercadorias.Estas instruções de montagem– aplicam-se a aparelhos dos tipos:- cabeçote de gravação e leituraID 15/SLK- armazenadores de dados móveisID 15/M DT– destinam-se a pessoal qualificadoconforme as diretrizes decompatibilidade eletromagnética e debaixa tensão.– são parte do produto. Estasinstruções contêm informações para autilização correta do produto. Leia-asantes de utilizar o produto parafamilirizar-se com as condições deemprego, instalação e operação. Sigaas instruções de segurança.Informações geraisSiga estas instruções deste manual. Ainobservância das instruções, a utilizaçãoinadequada, a instalação ou amanipulação incorretas podemcomprometer a segurança de pessoas einstalações. No caso de danosderivados da utilização inadequada e deintervenções arbitrárias, não previstasneste manual, fica anulada toda equalquer responsabilidade do fabricanteou direito à garantia.Estas instrucciones de montaje– son válidas para aparatos de los tipos:- cabeza de escritura-lectura ID 15/SLK- soporte de datos móvil ID 15/MDT– están destinadas a personal expertoen materia de las directivas CEM ybaja tensión.– forman parte del producto e incluyenindicaciones sobre el uso correcto delmismo. Lea atentamente estasinstrucciones antes de su uso parafamiliarizarse con las condiciones deuso, la instalación y su funcionamiento.Respete las indicaciones deseguridad.GeneralidadesRespete las indicaciones de seguridadindicadas en estas instrucciones. El noseguir estas advertencias, hacer un usoinadecuado o instalar y usar de formaincorrecta este sistema, puede llevar aponer en riesgo la seguridad depersonas y aparatos. En caso de dañosproducidos por la utilización inadecuaday por acciones arbitrarias no previstas enestas instrucciones, caduca todagarantía o responsabilidad por parte delfabricante.El uso adecuado de la cabeza deescritura-lectura ID 15/SLK consiste entransmisión de datos desde y asoportes de datos móviles ID 15/MDT.La cabeza de escritura-lectura ID 15/SLKconvierte los datos recibidos en valorescodificados digitales y los pone adisposición del nivel de pilotaje AS-i (master AS-i, controlador u host).Sus campos de aplicación son p. ej.:– pilotaje y control del flujo de material enla línea de producción– gestión del almacén a través de laidentificación automática de bienes dealmacén– gestión de recipientes, reunión ypreparación para la expedición yseguimiento de mercancías.
ID 15 3Bosch Rexroth AG3 842 536 035 (2006.11)DEENFRITESPTIl montaggio ed il collegamento devonoessere eseguiti nel rispetto delle normenazionali ed internazionali vigenti. Laresponsabilità ricade su chi ha installatol’impianto.L’apparecchio deve essere montato,collegato e messo in funzione solo dapersonale qualificato in elettronica,poiché il funzionamento sicurodell’apparecchio e dell’impianto ègarantito solo da un’installazioneregolamentare.Prima di effettuare lavorisull’apparecchio, togliere l’alimentazioneelettrica esterna.Per l’esercizio, l’apparecchio deve esserealimentato da una tensione continuaesterna (26,5-31,6 V DC) in base aicriteri della bassa tensione di sicurezza(SELV).L’apparecchio può essere messo infunzione,  in base alle specifiche, anche inun ampio intervallo di temperaturaambiente. A causa dell’ulterioreautoriscaldamento, a contatto con unambiente molto caldo, sulle paretidell’alloggiamento possono formarsitemperature percettibilmente elevate.In caso di malfunzionamentodell’apparecchio o se sono necessarieulteriori spiegazioni contattare ilfabbricante. Interventi nell’apparecchiopossono mettere severamente arepentaglio la sicurezza delle persone edell’impianto. Interventi non sono quindiconsentiti e portano all’esclusione diqualsiasi garanzia e responsabilità daparte del fabbricante.Materiale esplosivoLa testina di lettura-scrittura ID 15/SLK èun radiotrasmettitore. In generale iradiotrasmettitori non devono essereutilizzati nelle vicinanze di distributori dibenzina, depositi di carburante, impiantichimici o lavori di abbattimento conesplosivi. Non trasportare oimmagazzinare gas e fluidi infiammabili omateriali esplosivi nell’areadell’apparecchio.Apparecchi elettroniciL’esercizio può danneggiare ilfunzionamento di apparecchi elettronicinon schermati in modo regolamentare.Disattivare l’apparecchio nelle vicinanze didispositivi medici ed in caso di guastiinformarsi presso il fabbricante delrispettivo apparecchio.A montagem e as conexões devem serefetuadas segundo as normas nacionaise internacionais vigentes, ficando aresponsabilidade a cargo de queminstalar o aparelho.O aparelho somente pode ser montado,conectado e colocado emfuncionamento por eletricistasqualificados, uma vez que ofuncionamento do aparelho e dainstalação somente será seguro se ainstalação for correta.Antes de executar qualquer trabalho noaparelho, desligue a alimentação detensão externamente.O aparelho tem de ser alimentado deacordo com os critérios para baixastensões seguras (SELV) com umacorrente contínua externa(26,5-31,6 V CC).De acordo com as especificações, oaparelho pode ser operado em umaampla faixa de temperaturas ambientes.Em virtude do aquecimento que ocorreno aparelho, as paredes da estruturaexterna podem apresentar temperaturasaltas quando todas em um ambientequente.No caso de mau funcionamento doaparelho ou imprecisões, queira entrarem contato com o fabricante.Intervenções no aparelho podem resultarem sérios riscos à segurança depessoas e instalações. Portanto, asintervenções no aparelho não sãopermitidas e ocasionam perda dagarantia e cessação deresponsabilidade.Materiais explosivosO cabeçote de gravação e leituraID 15/SLK utiliza ondaseletromagnéticas. Em geral, osaparelhos que utilizam ondaseletromagnéticas não podem serutilizados nas proximidades de postosde gasolina, depósitos de combustíveis,fábricas de produtos químicos ouoperações com explosivos. Nãotransporte gases ou líquidos inflamáveisnem materiais explosivos nasproximidades do aparelho.Aparelhos eletrônicosA operação pode comprometer acapacidade de funcionamento deaparelhos eletrônicos sem blindagemeletrônica adequada. Desligue oaparelho nas proximidades de aparelhosmédicos. No caso de interferência, senecessário, obtenha informações juntoao fabricante do respectivo aparelho.El montaje y la conexión debenefectuarse de acuerdo con las noramsnacionales e internacionales vigentes. Laresponabilidad recae sobre la personaque instala el aparato.Este aparato debe ser montado,conectado y puesto en servicio porpersonal experto en electrónicaexclusivamente, ya que solamente segarantiza un funcionamiento seguro delaparato en el caso de una instalaciónadecuada.Antes de efectuar cualquier trabajosobre el aparato, desconecte la tensiónexternamente.Para su puesta en servicio, se debealimentar el aparato con una tensióncontinua externa (26,5-31,6 V DC) segúnlos criterios para tensión mínima deseguridad (SELV).Según las especificaciones, este aparatotambién se puede accionar en un ampliointervalo de temperatura ambiental. Acausa del autocalentamiento adicional,pueden formarse temperaturasperceptiblemente elevadas en lasparedes de la carcasa en contacto conun ambiente muy cálido.En el caso de errores del aparato o en elcaso de dudas, póngase en contactocon el fabricante. Intervenciones en elaparato pueden disminuir gravemente laseguridad de personas y aparatos. Porello, no está permitido realizarintervenciones en el aparato y, si así es,quedan excluidas la garantía y laresponsiblidad por parte del fabricante.Materiales explosivosLa cebeza de escritura-lecturaID 15/SLK es un radiotransmisor.Generalmente los radiotransmisores nose pueden utlilizar cerca de gasolineras,depósitos de combustible, industriasquímicas o trabajos con explosivos. Notransporte ni almacene gases o fluidosinflamables así como materialesexplosivos en la zona del aparato.Aparatos electrónicosLa puesta en servicio puede perjudicar lacapacidad de funcionamiento deaparatos electrónicos no blindadosadecuadamente. Desconecte el aparatocerca de aparatos médicos. En el casode averías, infórmese poniéndose encontacto con el fabricante del aparato encuestión.
ID 1543 842 536 035 (2006.11)Bosch Rexroth AG536035-11.eps53,55570524M12x1LED12256414,217 4,5173,7536035-12.epsStato alla consegna/Fornitura/DimensioniEstado de entrega/Volumen de suministro/DimensionesEstado de entrega/Material fornecido/DimensõesOmologazione impianto radiotrasmittenteHomolgación de equipos radioeléctricosAprovação de instalações de ondas eletromagnéticas1: Antenna integrata1: Antena integrada1: Antena integrada2: Segno di posizione per MDT (centro dell’antenna)2: Señal de posición para MDT (centro de la antena)2: Marca de posicionamento para armazenadoresde dados móveis (meio da antena)Marchio R&TTE (Radio Equipment andTelecommunications Terminal Equipmentand the mutual recognition of theirconformity);N° di identificazione CE:Omologazione radio secondoEN 300330.Identificação segundo R&TTE (RadioEquipment and TelecommunicationsTerminal Equipment and the mutualrecognition of their conformity);número de identificação CE:Autorização de utilização de ondaseletromagnéticas segundo EN 300330.Identificación según R&TTE (RadioEquipment and TelecommunicationsTerminal Equipment and the mutualrecognition of their conformity);N° de identificación CE:Homolgación de equipos radioeléctricossegún EN 300330.
ID 15 5Bosch Rexroth AG3 842 536 035 (2006.11)DEENFRITESPTID 15/SLK ID 15/MDT1 2 3536035-13.epsModalità di funzionamento ed elementi di segnalazioneModo de funcionamiento y elemento indicadorModo de funcionamento e elementos indicadoresI supporti dati ID 15/MDT vengonoazionati in modo passivo (senzabatteria).L’energia necessaria all’esercizio vienefornita dall’ID 15/SLK.Il principio fisico della trasmissione dienergia si basa sull’accoppiamentoinduttivo. La bobina dell’antennaintegrata dell’ID 15/SLK crea un campomagnetico, che penetra in parte nellabobina dell’antenna dell’ID 15/MDT.Tramite induzione si crea in questo puntouna tensione che alimenta con energial’ID 15/MDT.La frequenza di trasmissione ammonta a125 kHz.Nel campo d’azione dell’ID 15/SLK nondevono essere quindi azionati altriapparecchi a 125 kHz di emmissione, perevitare che si verifichino errori ditrasmissione!Gli elementi di segnalazione sulla partesuperiore dell’ID 15/SLK mostrano lecondizioni di esercizio.Os armazenadores de dadosID 15/MDT são operados passivamente(sem bateria).A energia necessária para ofuncionamento é fornecida peloID 15/SLK.O princípio físico da transmissão deenergia baseia-se no acoplamentoindutivo. A bobina da antena integradado ID 15/SLK gera um campomagnético que penetra parcialmentena bobina da antena do ID 15/MDT.Através de indução é gerada um tensãoque alimenta o ID 15/MDT com energia.A freqüência de emissão é de 125 Hz.Portanto, na área de atuação doID 15/SLK não pode ser operadonenhum outro aparelho que emita125 Hz, pois isso pode causar erros detransmissão.Os elementos indicadores situados naparte superior do ID 15/SLK indicam oestado de operação.Los soportes de datos ID 15/MDT seactivan de forma pasiva (sin batería).La ID 15/SLK suministra la energíanecesaria para el funcionameinto.El principio físico de la transmisión deenergía se basa en el acoplamientoinductivo. La  bobina de la antenaintegrada de la ID 15/SLK crea uncampo magnético que penetraparcialmente por la bobina de la antenaID 15/MDT. Mediante inducción se creaen este punto una tensión con la que sesuministra energía al ID 15/MDT.La frecuencia de envío es de 125 kHz.¡Por eso, en el campo de eficacia de laID 15/SLK no se pueden accionar otrosaparatos emisores a 125 kHz, ya queesto puede provocar errores detransmisión!Los elementos indicadores en la partesuperior del ID 15/SLK muestran losdiferentes estados de funcionamiento.verde ON Tensione esercizio OKverde ON Tensión de servicio OKverde LIG Tensão de funcion OKgiallo ON ID 15/MDT lettoamarillo ON ID 15/MDT leídoamarelo LIG ID 15/MDT lidorosso  ON Errore bus AS-irojo  ON Error de bus AS-ivermelho  LIG Erro de bus AS-i312
ID 1563 842 536 035 (2006.11)Bosch Rexroth AG1: AS-i +3: AS-i –a > 100 mma    100 mmaaaaaa536035-15.eps536035-14.eps2134Alimentazione elettricaAlimentación de tensiónAbastecimento de tensãoCollegare l’ID 15/SLK alla rete AS-itramite connettore a spina M12.L’alimentazione elettrica avviene tramite larete AS-i. Per consentire unatrasmissione dati sicura, durante la posadei cavi, lasciare uno spazio libero(a > 100 mm) su tutti i lati!La testina di lettura-scrittura ID 15/SLK nella rete AS-iLa cabeza de escritura-lectura ID 15/SLK en la red AS-iO cabeçote de leitura e gravação ID 15/SLK na rede AS-iImpostazione di baseConfiguración baseRegulagem básicaParametro ValoreCodice I/O [hex] 7Codice ID [hex] 4Codice ID2 esteso [hex] CCodice ID1 per valore codice [hex] FIndirizzo slave(impostazione di fabbrica) 0Conecte o ID 15/SLK à rede AS-i comum conector M12. O abastecimento detensão é efetuado pela rede AS-i. Paraque a transmissão de dados sejasegura, disponha os cabos mantendouma área livre (a > 100 mm) à voltadeles!Parâmetro ValorCódigo de E/S [hex] 7Código ID [hex] 4Código extendido ID2 [hex] CCódigo ID1 para valor de cód. [hex] FEndereço escravo(ajuste de fábrica) 0Conectar la ID 15/SLK con la red AS-imediante la conexión por enchufe M12.La alimentación de tensión tiene lugar apartir de la red AS-i. ¡A fin de garantizaruna transmisión de datos segura, dejarun espacio libre (a > 100 mm) por todoslos lados al colocar los cables!Parámetro ValorCódigo E/S [hex] 7Código ID [hex] 4Código ID2 extendido [hex] CCódigo ID1 valor de código [hex] FDirección slave(configuración de fábrica) 0
ID 15 7Bosch Rexroth AG3 842 536 035 (2006.11)DEENFRITESPTE3 E2 E1 D16 D15 D14 D13 D12 D11 D10 D9 D8 D7 D6 D5 D4 D3 D2 D1 0 V536035-16.epsIndirizzamentoDireccionamientoEndereçamentoL’ID 15/SLK viene indirizzato con unapparecchio di indirizzamento, con ilmaster o con il software AS-i dell’host(i componenti devono supportare laversione AS-i 2.1).Campo di indirizzamento consentito: 1-31.Per ulteriori informazioni fare riferimentoal manuale dell’utente ID 15,3 842 536 511.www.boschrexroth.de/...Per l’AS-Interface l’ID 15/SLK è unoslave analogico con protocollo ditrasmissione secondo il profilo 7.4. Se ilmaster lavora con la versione AS-i 3.0,riconosce automaticamente l’ID 15/SLKe supporta il profilo 7.4.Per quanto riguarda la trasmissione deivalori analogici i profili 7.3 e 7.4 sonoidentici.Rappresentazione del valore analogicoRepresentación del valor análogoRepresentação de valores analógicosOccupazione dei bit di datiOcupación de los bits de datosAtribuição dos bits de dadosPer ogni ciclo di trasmissione vengonotrasmessi i seguenti dati in gruppi di tre:Occupazione:E3-E1: bit di estensione (0 statico)D16-D2: bit di datiBit di informazione addizionali:D1: bit di segnalazione (0 statico)O: bit di overflow (0 statico)V: bit di validità (1statico)O ID 15/SLK é endereçado com umaparelho de endereçamento, o mestre,ou com o software AS-i do host (oscomponentes têm de aceitar aversão 2.1 do AS-i).Área de endereçamento permitida: 1-31.Você pode encontrar informaçõesdetalhadas no Manual do Usuário ID 15,3 842 536 511.www.boschrexroth.de/...Para a AS-interface, o ID 15/SLK é umescravo analógico com protocolo detransmissão segundo o perfil 7.4. Se omestre utilizar a versão 3.0 do AS-i, elereconhecerá o ID 15/SLKautomaticamente e aceitará o perfil 7.4.Na área de transmissão analógica devalores, os perfis 7.3 e 7.4 são idênticos.Os seguintes dados são transmitidosem tripletos por ciclo de transmissão:Atribuição:E3-E1: Bits de extensão (0 estático)D16-D2: Bits de dadosBitis adicionais de informação:D1: bit de sinalização (0 estático)O: bit de overflow (0 estático)V: bit válido (1 estático)La ID 15/SLK se direcciona con unaparato de direccionamiento, con elmaster o con el software AS-i del host(los componentes deben soportar laversión AS-i 2.1).Campo de dirección admisible: 1-31.Para más información detallada, consulteel manual del usuario ID 15,3 842 536 511.www.boschrexroth.de/...Para la AS-interface, la ID 15/SLK es unslave análogo con protocolo detransmisión según el perfil 7.4. Si elmaster trabaja con la versión AS-i 3.0,éste reconoce a la ID 15/SLKautomáticamente y apoya el perfil 7.4.En el campo de la transmisión análogalos perfiles 7.3 y 7.4 son idénticos.Para cada ciclo de transmisión  setransmiten los datos siguientes engrupos de tres:Ocupación:E3-E1: bits de extensión (estáticos 0)D16-D2: bits de datosBits de información adicional:D1: bit indicador (estático 0)O: bit de sobrecorriente (estático 0)V: bit de validez (estático 1)
ID 1583 842 536 035 (2006.11)Bosch Rexroth AGRappresentazione del valore codice tramite bit di dati D16-D2Representación del valor de código mediante bits de datos D16-D2Representação de valores de código pelos bits de dados D16-D2Campo valori:Decimaleda 0a32767Esadecimaleda 0a7FFFNota: il valore “0” significa:nessuna ID 15/MDT nel campo di letturadell’ID 15/SLK oppure l’ID 15/SLK nonha riconosciuto l’ID 15/MDT.Funzioni supplementari in base al profilo AS-i 7.4Funciones suplementarias según el perfil AS-i 7.4Funções adicionais segundo o perfil AS-i 7.4Read ID StringRichiesta di informazioni dello slave AS-i.Read Diagnose StringRichiesta di statistica dei procedimenti dilettura/scrittura.Read Parameter String(funzione non implementata)Write Parameter StringScrittura di dati sul MDT.Per ulteriori informazioni fare riferimentoal manuale dell’utente ID 15,3 842 536 511.www.boschrexroth.de/...Área de valores:Decimalde 0até 32767Hexadecimalde 0até 7FFFNota: o valor “0” significa:nenhum ID 15/MDT na área de leitura doID 15/SLK ou ID 15/SLKreconheceu o ID 15/MDT.Read ID StringConsulta de informações de AS-iescravoRead Diagnose StringConsulta de estatísticas sobreprocessos de leitura/gravação.Read Parameter String(não implementada)Write Parameter StringGravação de dados no armazenador dedados móvel.Você pode encontrar informaçõesdetalhadas no Manual do Usuário ID 15,3 842 536 511.www.boschrexroth.de/...Campo de valores:Decimalesde 0a32767Hexadecimalesde 0a7FFFNota: el valor “0” significa:no se ha reconocido ninguna ID 15/MDTen el campo de lectura de la ID 15/SLK oID 15/SLK.Read ID StringConsulta de información acerca delslave AS-i.Read Diagnose StringConsulta de estadísticas a través deprocedimientos de lextura y escritura.Read Parameter String(función no implementada)Write Parameter StringEscritura de datos en el MDT.Para más información detallada consulteel manual del usuario ID 15,3 842 536 511.www.boschrexroth.de/...
ID 15 9Bosch Rexroth AG3 842 536 035 (2006.11)DEENFRITESPTCampo di impiego:– Riconoscimento di supporti dati mobiliID 15/MDT per l’identificazione delcodice; adatto per velocità ditrasporto fino a 20 m/minEsecuzione elettrica:AS-iTensione d’esercizio:26,5–31,6 V DC (in base ai criteri dellabassa tensione di sicurezza)Assorbimento di corrente:< 100 mAParametri:– Frequenza di lavoro: 125 kHz– Velocità di trasporto max.: 20 m/min(= 0,4 m/s)– Intervallo di lettura max.: 15 mmdinamico (con 20 m/min); 20 mmstatico– Distanza min. tra gli MDT: 80 mm– Distanza min. tra le testine dilettura: 100 mm– Campo valori: 15 bitInterfaccia:– Sistema bus: AS-i– Profilo AS-i: 7.4Display: 3 LED– verde: tensione d’esercizio OK– giallo: ID 15/MDT letto– rosso: errore bus AS-iCondizioni ambientali:– Temperatura ambiente: 0 °C - 50 °C– Temperatura di magazzinaggio:-25 °C - 80 °C– Pressione atmosferica consentita:75-106 kPa– Umidità relativa dell’aria consentita:75% (a 35 °C)– Altitudine max. d’esercizio: 2000 msopra il livello del mare– Vibrazione: 0,35 mm; 10-55 Hz– Shock: 50 g (» 500 m/s2) durantemax. 11 msTipo di protezione IP secondoDIN 40050: IP67Tipo di protezione:III (utensile previsto per il collegamentoalla bassa tensione)CEM:CEM 89/336/CEE; EN 50295 (1999)Materiale dell’alloggiamento:PACollegamento:Connettore a spina M12, a 4 poliÁrea de utilização:– Reconhecimento de armazenadoresde dados móveis ID 15/MDT para aidentificação de tipos e peças;adequado para velocidades detransporte de até 20 m/minEsquema elétrico:AS-iTensão de funcionamento:26,5–31,6 V CC (conforme critériospara baixa tensão segura)Consumo de corrente:< 100 mAValores característicos:– Freqüência de trabalho: 125 kHz– Velocidade máx. de transporte:20 m/min (= 0,4 m/s)– Distância máx. de leitura: 15 mmdinâmica (com 20 m/min); 20 mmestática– Distância mín. entre os armazenadoresde dados móveis: 80 mm– Distância mín. entre os cabeçotes deleitura: 100 mm– Faixa de valores: 15 bitInterface:– Sistema de bus: AS-i– Perfil de AS-i: 7.4Indicadores: 3 LEDs– verde: tensão de operação OK– amarelo: ID 15/MDT lido– vermelho: erro de bus AS-iCondições ambientais:– Temperatura ambiente: 0 °C - 50 °C– Temperatura de armazenamento:-25 °C - 80 °C– Pressão atmosférica permitida:75-106 kPa– Umidade relativa do ar permitida:75 % (com 35 °C)– Altitude máx. de operação: 2000 msobre nível do mar– Vibração: 0,35 mm; 10-55 Hz– Choque: 50 g (» 500 m/s2) durante nomáx. 11 msTipo de proteção IP segundo DIN 40050:IP67Classe de proteção:III (ferramenta fornecida para conexãoem baixa tensão)CEM:CEM 89/336/CCE; EN 50295 (1999)Material da estrutura externa:PAConexão:Conector M12 de quatro pinosCampo de aplicación:– Reconocimiento de soportes de datosmóviles ID 15/MDT para laidentificación de piezas; adecuadopara velocidades de transporte dehasta 20 m/minVersión eléctrica:AS-iTensión de servicio:26,5–31,6 V DC (según criterios de latensión mínima de seguridad)Consumo de corriente:< 100 mAParámetros:– Frecuencia de trabajo: 125 kHz– Velocidad de transporte máx.:20 m/mnín. (= 0,4 m/s)– Intervalo de lectura máx.: 15 mm dinámico(con 20 m/min); 20 mm estático– Distancia mín. entre MDT: 80 mm– Distancia min. entre las cabezas delectura: 100 mm– Campo de valores: 15 bitInterface:– Sistema de bus: AS-i– Perfil AS-i: 7.4Indicadores: 3 LED– verde: tensión de servicio OK– amarillo: ID 15/MDT leído– rojo: error de bus AS-iCondiciones ambientales:– Temperatura ambiental: 0 °C - 50 °C– Temperatura de almacenamiento:-25 °C - 80 °C– Presión atmosférica admisible:75-106 kPa– Humedad relativa admisible:75 % (con 35 °C)– Máx. altura de servicio: 2000 m sobre elnivel del mar– Vibración: 0,35 mm; 10-55 Hz– Shock: 50 g (» 500 m/s2) durantemáx. 11 msTipo de protección IP según DIN 40050:IP67Clase de protección:III (herramientas previstas para laconexión a tensión baja)CEM:CEM 89/336/CEE; EN 50295 (1999)Material de la carcasa:PAConexión:Conexión por enchufe M12, de 4 polos
ID 1510 3 842 536 035 (2006.11)Bosch Rexroth AG1)2)4)3)MD= 5NmSW5MD= 2,5NmSW3536035-01.eps536035-01A.eps536035-01B.eps536035-01A.eps3 842 535 920, ID 15/MS1ID 15/SLK ⇔ ID 15/MDT, esternoID 15/SLK ⇔ ID 15/MDT, externoID 15/SLK ⇔ ID 15/MDT, externo1) Pin di centraggio per scanalaturada 8 mmPin de centraje para ranura de 8 mmPino de centralização para ranhurade 8 mm2) Dado con testa a martello perscanalatura da 8 mm, M6Tuerca de martillo para ranura de8 mm, M6Porca cabeça martelo para ranhurade 8 mm, M63)DIN 912 - M6 x 104) Posizione di avvitamentoPosición de atornilladoPosição de parafusamento1) Pin di centraggio per scanalatura da10 m mPin de centraje para ranura de 10 mmPino de centralização para ranhurade 10 mm2) Dado con testa a martello perscanalatura da 10 mm, M6Tuerca de martillo para ranura de10 mm , M6Porca cabeça martelo para ranhurade 10 mm, M63)DIN 912 - M6 x 164) Posizione di avvitamentoPosición de atornilladoPosição de parafusamentoMontaggio ID 15/SLK, esterno al TS 1Montaje ID 15/SLK, externo al TS 1Montagem externa do ID 15/SLKno TS 1Montaggio ID 15/SLK, esterno al TS 2Montaje ID 15/SLK, externo al TS 2Montagem externa do ID 15/SLKno TS 2Montaggio ID 15/SLK, esterno al TS 4Montaje ID 15/SLK, externo al TS 4Montagem externa do ID 15/SLKno TS 41) Pin di centraggio per scanalatura da10 mmPin de centraje para ranura de 10 mmPino de centralização para ranhurade 10 mm2) Dado con testa a martello perscanalatura da 10 mm, M6Tuerca de martillo para ranura de10 mm, M6Porca cabeça martelo para ranhurade 10 mm, M63)DIN 912 - M6 x 164) Posizione di avvitamentoPosición de atornilladoPosição de parafusamento
ID 15 11Bosch Rexroth AG3 842 536 035 (2006.11)DEENFRITESPT536035-57.epsSW13MD = 20 Nm3 842 537 885Coperchio di protezione ID 15Cubierta de protección ID 15Cobertura de proteção ID 15
ID 1512 3 842 536 035 (2006.11)Bosch Rexroth AG536035-05.eps45,53,83-0,1 (2x)3,8M567,6 0,27,6 0,2MD= 5NmSW4d = 8d = 12,7536035-04.epsM545,56d = 4,8MD= 5NmSW42,3+0,13+0,5536035-03.eps6363MD= 3NmSW42,3+0,13+0,5MD= 2NmPz2   536035-02.eps63633 842 535 919, ID 15/MDT213 842 535 919, ID 15/MDT213 842 535 916, ID 15/MDT11 3 842 535 916, ID 15/MDT11Montaggio ID 15/MDT, esterno al WT 2Montaje ID 15/MDT, externo al WT 2Montagem externa do ID 15/MDT no WT 2Montaggio ID 15/MDT, esterno al WT 1/…Montaje ID 15/MDT, externo al WT 1/…Montagem externa do ID 15/MDT no WT 1/…
ID 15 13Bosch Rexroth AG3 842 536 035 (2006.11)DEENFRITESPT536035-06.eps3-0,117,5+0,517,5+0,517,5+0,5R57,6 3,8M560,27,6 3,891910,2MD= 5NmSW41)1)1)3 842 535 919, ID 15/MDT21Montaggio ID 15/MDT, esterno al WT 4Montaje ID 15/MDT, externo al  WT 4Montagem externa do ID 15/MDT no WT 41)Fresatura necessaria solo per spessoredella piastra di 19,05 mm.El fresado sólo es necesario en el casode grosores de tableros de 19,05 mm.Fresagem necessária somente comespessura de placa de 19,05 mm.
ID 1514 3 842 536 035 (2006.11)Bosch Rexroth AG1)2)4)3)MD= 5NmSW5MD= 2,5NmSW3536035-21.eps536035-01C.eps536035-01D.eps536035-01C.eps3 842 535 920, ID 15/MS1ID 15/SLK ⇔ ID 15/MDT, internoID 15/SLK ⇔ ID 15/MDT, internoID 15/SLK ⇔ ID 15/MDT, internoMontaggio ID 15/SLK, interno al TS 1Montaje ID 15/SLK, interno al TS 1Montagem interna do ID 15/SLKno TS 11) Pin di centraggio per scanalaturada 8 mmPin de centraje para ranura de 8 mmPino de centralização para ranhurade 8 mm2) Dado con testa a martello perscanalatura da 8 mm, M6Tuerca de martillo para ranura de8 mm, M6Porca cabeça martelo para ranhurade 10 mm, M63)DIN 912 - M6 x 104) Posizione di avvitamentoPosición de atornilladoPosição de parafusamentoMontaggio ID 15/SLK, interno al TS 2Montaje ID 15/SLK, interno al TS 2Montagem interna do ID 15/SLKno TS 2Montaggio ID 15/SLK, interno al TS 4Montaje ID 15/SLK, interno al TS 4Montagem interna do ID 15/SLKno TS 41) Pin di centraggio per scanalatura da10 m mPin de centraje para ranura de 10 mmPino de centralização para ranhurade 10 mm2) Dado con testa a martello perscanalatura da 10 mm, M6Tuerca de martillo para ranura de10 mm , M6Porca cabeça martelo para ranhurade 10 mm, M63)DIN 912 - M6 x 164) Posizione di avvitamentoPosición de atornilladoPosição de parafusamento1) Pin di centraggio per scanalatura da10 mmPin de centraje para ranura de 10 mmPino de centralização para ranhurade 10 mm2) Dado con testa a martello perscanalatura da 10 mm, M6Tuerca de martillo para ranura de10 mm, M6Porca cabeça martelo para ranhurade 10 mm, M63)DIN 912 - M6 x 164) Posizione di avvitamentoPosición de atornilladoPosição de parafusamento
ID 15 15Bosch Rexroth AG3 842 536 035 (2006.11)DEENFRITESPT536035-58.epsSW13MD = 20 Nm3 842 537 885Coperchio di protezione ID 15Cubierta de protección ID 15Cobertura de proteção ID 15
ID 1516 3 842 536 035 (2006.11)Bosch Rexroth AG536035-23.epsMD= 2,5NmSW3Loctite 2426614,53,5+0,1536035-25.eps536035-22.eps3 842 535 911, ID 15/MDT13 3 842 535 442, ID 15/MDT233 842 535 442, ID 15/MDT23Montaggio ID 15/MDT, interno al WT 2Montaje ID 15/MDT, interno al WT 2Montagem interna do ID 15/MDT no WT 2Montaggio ID 15/MDT, interno al WT 1/K,  WT 1/SMontaje ID 15/MDT, interno al WT 1/K,  WT 1/SMontagem interna do ID 15/MDT no WT 1/K,  WT 1/SMontaggio ID 15/MDT, interno al WT 1/PMontaje ID 15/MDT, interno al WT 1/PMontagem interna do ID 15/MDT no WT 1/P
ID 15 17Bosch Rexroth AG3 842 536 035 (2006.11)DEENFRITESPT536035-26.eps7,214,3+0,27,23,5+0,1536035-27.eps7,514,3+0,27,53,5+0,13 842 535 442, ID 15/MDT233 842 535 442, ID 15/MDT23Montaggio ID 15/MDT, interno al WT 4Montaje ID 15/MDT, interno al WT 4Montagem interna do ID 15/MDT no WT 4Montaggio ID 15/MDT, interno al WT 4/FMontaje ID 15/MDT, interno al WT 4/FMontagem interna do ID 15/MDT no WT 4/F
ID 1518 3 842 536 035 (2006.11)Bosch Rexroth AG536035-29.eps14,3+0,2 (6)(10)3,5+0,1536035-28.epsMD= 2,5NmSW3MD= 5NmSW53 842 535 918, ID 15/MS53 842 535 442, ID 15/MDT23Montaggio ID 15/MDT, interno al WT VarioFlowMontaje ID 15/MDT, interno al WT VarioFlowMontagem interna do ID 15/MDT no WT VarioFlowID 15/SLK ⇔ ID 15/MDT, interno al WT VarioFlowID 15/SLK ⇔ ID 15/MDT, interno al WT VarioFlowID 15/SLK ⇔ ID 15/MDT, interno no WT VarioFlow
ID 15 19Bosch Rexroth AG3 842 536 035 (2006.11)DEENFRITESPT536035-32.epsMD= 2,5NmSW3MD= 5NmSW5536035-31.epsMD= 2,5NmSW3MD= 5NmSW53 842 535 913, ID 15/MS33 842 535 912, ID 15/MS4ID 15/SLK ⇔ ID 15/SLK, base del TS 1, longitudinaleID 15/SLK ⇔ ID 15/SLK, infraestructura al TS 1, longitudinalID 15/SLK ⇔ ID 15/MDT, inferior no WT 1, longituninalID 15/SLK ⇔ ID 15/SLK, base del TS 1, trasversaleID 15/SLK ⇔ ID 15/SLK, infraestructura al TS 1, transversalID 15/SLK ⇔ ID 15/MDT, inferior no WT 1, transversal
ID 1520 3 842 536 035 (2006.11)Bosch Rexroth AG536035-38.epsMD= 2,5NmSW3Loctite 242536035-39.eps3 842 536 612, ID 15/MDT12-803 842 536 613, ID 15/MDT12-1203 842 536 614, ID 15/MDT12-1603 842 535 440, ID 15/MDT14Montaggio ID 15/MDT, base del WT 1/K,  WT 1/SMontaje ID 15/MDT, infraestructura al WT 1/K,  WT 1/SMontagem inferior do ID 15/MDT no WT 1/K,  WT 1/SMontaggio ID 15/MDT, base del WT 1/PMontaje ID 15/MDT, infraestructura al WT 1/PMontagem inferior do ID 15/MDT no WT 1/P
ID 15 21Bosch Rexroth AG3 842 536 035 (2006.11)DEENFRITESPTMD= 3NmSW2,5536035-35.epsM318,321,2536035-34.epsMD= 2,5NmSW3MD= 5NmSW53 842 535 443, ID 15/MDT223 842 535 917, ID 15/MS2Montaggio ID 15/MDT, base del WT 2Montaje ID 15/MDT, infraestructura al WT 2Montagem inferior do ID 15/MDT no WT 2ID 15/SLK ⇔ ID 15/MDT, base del WT 2ID 15/SLK ⇔ ID 15/MDT, infraestructura al WT 2ID 15/SLK ⇔ ID 15/MDT, inferior no WT 2
Bosch Rexroth AGLinear Motion and Assembly TechnologiesPostfach 30 02 0770442 Stuttgart, GermanyBRL/MKT2Telefax +49 711 811–7777www.boschrexroth.cominfo.brl@boschrexroth.deTechnische Änderungen vorbehaltenSubject to technical modificationsSous réserve de modifications techniquesSoggetto a modifiche tecnicheModificaciones técnicas reservadasReservado o direito de modificaçõestécnicasPrinted in GermanyBosch Rexroth AG22 ID 15 3 842 536 035 (2006.11)6218,5624,53,5+0,1536035-36.eps536035-37.eps18,562623,5+0,14,53 842 535 442, ID 15/MDT233 842 535 442, ID 15/MDT23Montaggio ID 15/MDT, base del WT 4Montaje ID 15/MDT, infraestructura al WT 4Montagem inferior do ID 15/MDT no WT 4Montaggio ID 15/MDT, base del WT 4/FMontaje ID 15/MDT, infraestructura al WT 4/FMontagem inferior do ID 15/MDT no WT 4/F

Navigation menu