Coen Consultant VDUL5NA Modular transmitter User Manual DC install guide v1 12

Coencorp Consultant Corporation Modular transmitter DC install guide v1 12

Contents

Installation Guide

       8 Place du Commerce, suite 100,  Brossard QC Canada J4W 3H2 http://www.coencorp.com mailto:info@coencorp.com         Tel:  1-450-672-4222    Toll free (US & Canada):            1-866-COENCORP    Fax: 1-450-672-6038     Created on: 5/29/2009 9:59 AM Created by: Serge Kopikov Document revision: 1.12               FleetZone Data Collector  Installation Guide
Data Collector Installation Guide revision 1.12     Page 2 of 11           Copyright This document cannot be redistributed to third party, reproduced or modified without written permission from Coencorp.    Disclaimer The information in this document is subject to change without notice. While the information contained herein is assumed to be accurate, Coencorp assumes no responsibility for any errors or omissions.
Data Collector Installation Guide revision 1.12     Page 3 of 11 Table of contents  1 Introduction ................................................................................................................................................................. 5 2 Specifications .............................................................................................................................................................. 6 3 Installing Data Collector.............................................................................................................................................. 7 4 Connecting Data Collector to a SiteController.......................................................................................................... 10
Data Collector Installation Guide revision 1.12     Page 4 of 11 The North American versions of RF devices included in this manual contain the board having the following agency approval numbers:  US/FCC ID  VY3-VDUL5NA CAN/IC ID  7522A-VDUL5NA     The devices included in this manual were tested with the following antennae:  Device  Antenna P/N (Coencorp) FGD-00582-02 (North American ver.) FGD-00582-03 (European ver.) MOD-00797 with RPSMA  (internally mounted RF antenna)    Warning:  Any antenna not explicitly specified in this manual must be tested tocomply with FCC section 15.203 for unique antenna connectors andsection 15.249 for emissions.  Warning:   Changes or modifications not expressly approved by the party responsible for compliance could void the user’s authority to operate the equipment.  Coencorp is not responsible for any radio or TV interference caused by unauthorized modifications to this equipment.  Warning:   This device complies with part 15 of the FCC Rules. Operation is subject to the following two conditions:  (1) This device may not cause harmful interference and (2) This device must accept any interference received, including interference that may cause undesired operation.
Data Collector Installation Guide revision 1.12     Page 5 of 11   1 Introduction Coencorp RF Data Collector is an RF modem used in Coencorp Fleet and Fuel Management System to collect data from Vehicle Data Units (VDU) and to assist in the automated fueling sequence.  The RF communication between Data Collector and VDU uses 915 MHz (North American) or 868 MHz (European) frequency bands. The VDU only sends data in response to requests from Data Collector. The communication has a typical range of 300-600 ft (100-200 m) from the Data Collector.  The fixed Data Collector is mounted in a standard sealed electrical enclosure suitable for outdoor use. Besides the standard fixed Data Collector there exists a portable version having the same hardware and software but packaged in a smaller VDU-like enclosure. The portable version of data collector may be used for VDU installation tests with a laptop (see the VDU manual for details). This manual only covers the fixed Data Collector.  The Data Collector communicates with host computer through RS-232 serial port or USB (using USB-to-Serial adapter).   SiteControllerRF DataCollectorVDUVDUVDUVDU Figure 1. DataZone Site structure
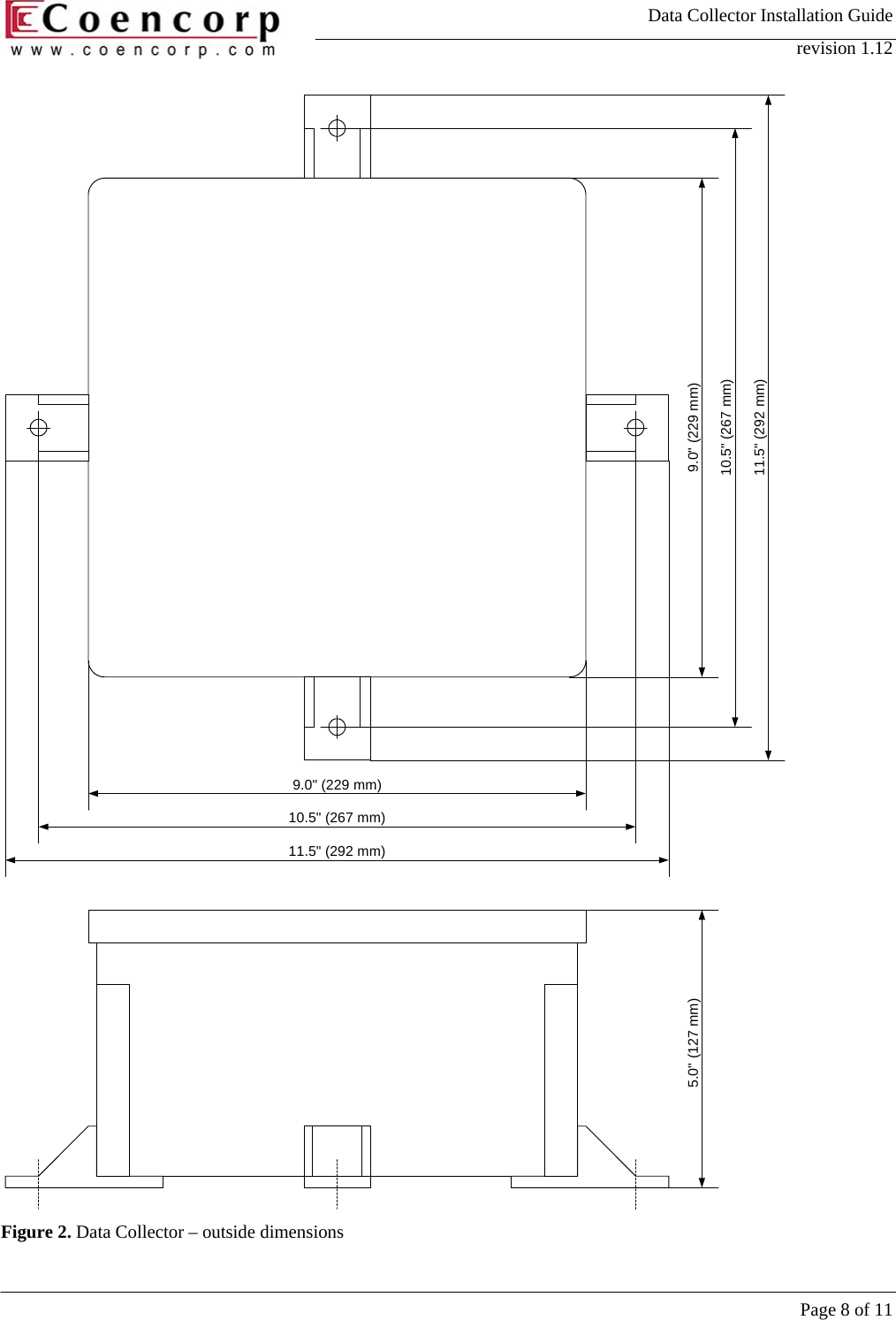
Data Collector Installation Guide revision 1.12     Page 6 of 11  2 Specifications  Parameter  FGD-00582-02 (North American version) FGD-00582-03 (European version) Electrical RS-232 baud rate  9600,19200,38400 DC supply voltage  9..25 V DC supply current, max  30 mA RF Radio type  Fixed frequency Frequency band  910.0..920.0 MHz  868 MHz Channels 11 1 Channel spacing  1.0 MHz  – Range (typical)  100..200 m (300..600 ft) Antenna connector  RP-SMA Antenna MOD-00797 Mechanical & Environmental Storage temperature  -50..+85 oC Operating temperature  -20..+55 oC Dimensions  229 mm x 229 mm x 127 mm (9.0” x 9.0” x 5.0”) Interface connector  Screw terminal block
Data Collector Installation Guide revision 1.12     Page 7 of 11 3  Installing Data Collector A fixed Data Collector connects to a SiteController computer through RS-232 port and does not require special drivers to be installed on the computer. This section contains mechanical sketches and electrical wiring diagrams for the installation. The Data Collector is shipped without cables and connectors: the installer must provide a cable.   RF boardRF antennaTerminal blockMounting plate Figure 3. Data Collector – internal layout
Data Collector Installation Guide revision 1.12     Page 8 of 11 9.0" (229 mm)10.5" (267 mm)11.5" (292 mm)9.0" (229 mm)11.5" (292 mm)10.5" (267 mm)5.0" (127 mm) Figure 2. Data Collector – outside dimensions
Data Collector Installation Guide revision 1.12     Page 9 of 11  Figure 4. Data Collector mounted on a wall (cover removed)  +12V   RET  COM   TX     RX Figure 5. Data Collector – terminal block
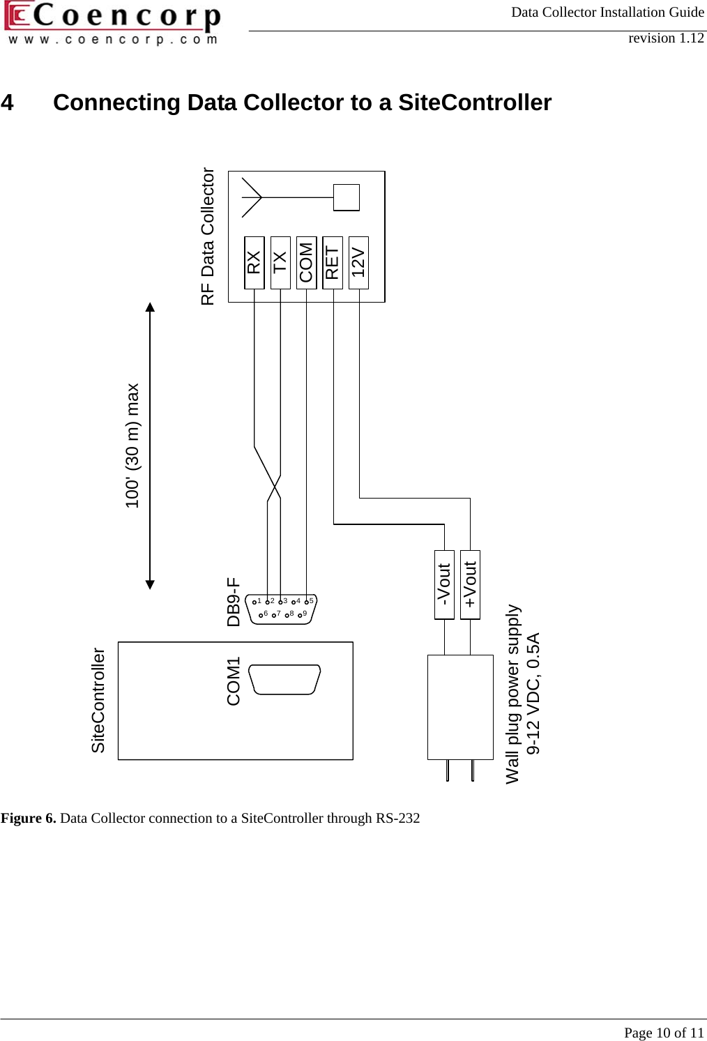
Data Collector Installation Guide revision 1.12     Page 10 of 11 4  Connecting Data Collector to a SiteController                      1DB9-FCOM1SiteControllerRXTXCOMRET12V-Vout+VoutWall plug power supply9-12 VDC, 0.5ARF Data Collector100' (30 m) max23456789 Figure 6. Data Collector connection to a SiteController through RS-232
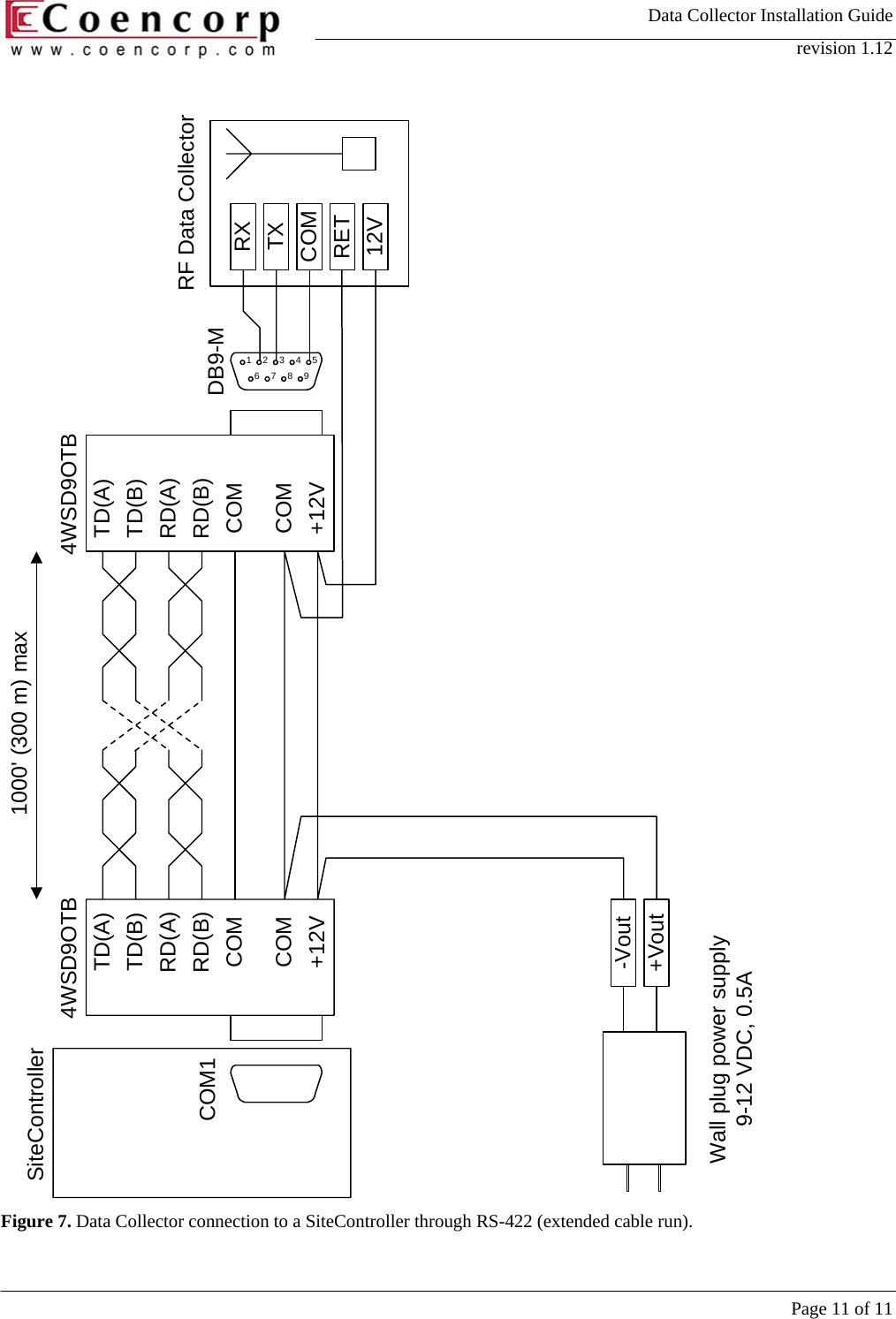
Data Collector Installation Guide revision 1.12     Page 11 of 11 RD(A)4WSD9OTB1DB9-MCOM1SiteControllerRXTXCOMRET12V-Vout+VoutWall plug power supply9-12 VDC, 0.5ARF Data Collector1000' (300 m) max23456789TD(B)RD(B)COMCOM+12VTD(A)RD(A)4WSD9OTBTD(B)RD(B)COMCOM+12VTD(A) Figure 7. Data Collector connection to a SiteController through RS-422 (extended cable run).

Navigation menu