User Manual

USER MANUAL
EnOcean GmbH
Kolpingring 18a
82041 Oberhaching
Germany
Phone +49.89.67 34 689-0
Fax +49.89.67 34 689-50
info@enocean.com
www.enocean.com
Subject to modifications
TCM 300 / TCM 320 User Manual 10
February 6th, 2013
Page 1/53
Patent protected:
WO98/36395, DE 100 25 561, DE 101 50 128,
WO 2004/051591, DE 103 01 678 A1, DE 10309334,
WO 04/109236, WO 05/096482, WO 02/095707,
US 6,747,573, US 7,019,241
Observe precautions! Electrostatic sensitive devices!
Transceiver Module
TCM 300 / TCM 300C / TCM 300U
TCM 320 / TCM 320C / TCM 320U
February 6th, 2013

USER MANUAL
© 2013 EnOcean | www.enocean.com TCM 300x / TCM 320x User Manual | Page 2/53
TCM 300 / TCM 300C / TCM 300U
TCM 320 / TCM 320C / TCM 320U
REVISION HISTORY
The following major modifications and improvements have been made to the first version of
this document:
No
Major Changes
1.01
Tape running direction added in 3.8
1.02
Dimension of TCM 320 corrected (width 18 mm instead of 19 mm)
1.03
Editorial changes
1.10
Timing information regarding serial protocol added in A.2, A.3. 0xFFFF_FFFF ex-
cluded from usable ID range, because this ID will be used as broadcast ID.
1.20
Error corrected in 3.2.1. and 4.1: Maximum gain of external antenna at 50 Ohm
output RF_50 is 0 dBi! Error corrected in 2.2: WXODIO is configured as output and
provides information on VON signal
1.21
Note added in 3.5
1.25
Remarks added regarding use of IOVDD in 2.2.; Antenna specification in 3.3.1 ex-
tended. Updated information on conducted output power in 1.2; A.2.2 changed to
point to EnOcean Alliance Website; A.2.3 and A.2.4 removed; editorial changes
1.26
Start-up time added in 1.2; Layout recommendations improved in 3.6
1.27
Antenna recommendations removed and referred to application note AN102 and
AN105; Maximum Rating for IOVDD modified (IOVDD may now exceed VDD);
Chapter “Related Documents” added; figure added in 3.2.1; parameters for anten-
na requirements relaxed in 4.2.1.; pin numbers added in 3.2; Update of FCC
grants in 5.2; TCM 320 drawing modified in 2.3.
1.29
New module variants for 902.875 MHz
1.30
Several Changes to meet FCC and IC manual requirements for Limited Modular
Approval
Published by EnOcean GmbH, Kolpingring 18a, 82041 Oberhaching, Germany
www.enocean.com, info@enocean.com, phone +49 (89) 6734 6890
© EnOcean GmbH
All Rights Reserved
Important!
This information describes the type of component and shall not be considered as assured characteris-
tics. No responsibility is assumed for possible omissions or inaccuracies. Circuitry and specifications
are subject to change without notice. For the latest product specifications, refer to the EnOcean web-
site: http://www.enocean.com.
As far as patents or other rights of third parties are concerned, liability is only assumed for modules,
not for the described applications, processes and circuits.
EnOcean does not assume responsibility for use of modules described and limits its liability to the
replacement of modules determined to be defective due to workmanship. Devices or systems contain-
ing RF components must meet the essential requirements of the local legal authorities.
The modules must not be used in any relation with equipment that supports, directly or indirectly,
human health or life or with applications that can result in danger for people, animals or real value.
Components of the modules are considered and should be disposed of as hazardous waste. Local
government regulations are to be observed.
Packing: Please use the recycling operators known to you.

USER MANUAL
© 2013 EnOcean | www.enocean.com TCM 300x / TCM 320x User Manual | Page 3/53
TCM 300 / TCM 300C / TCM 300U
TCM 320 / TCM 320C / TCM 320U
TABLE OF CONTENT
1 MODULE VARIANTS AND RELATED DOCUMENTS ............................................... 5
2 GENERAL DESCRIPTION ................................................................................. 6
2.1 Basic functionality ......................................................................................... 6
2.2 Technical data TCM 300 / TCM 320 (868.300 MHz) ............................................ 7
2.3 Technical data TCM 300C / TCM 320C (315.000 MHz) ........................................ 8
2.4 Technical data TCM 300U/ TCM 320U (902.875 MHz) ......................................... 8
2.5 Physical dimensions TCM 300x ........................................................................ 9
2.6 Physical dimensions TCM 320x ........................................................................ 9
2.7 Environmental conditions ............................................................................. 10
2.8 Ordering information .................................................................................... 10
3 FUNCTIONAL DESCRIPTION .......................................................................... 11
3.1 Pin out ....................................................................................................... 11
3.2 Pin description and operational characteristics ................................................. 12
3.2.1 GPIO supply voltage - IOVDD .................................................................... 14
3.3 Absolute maximum ratings (non operating) .................................................... 15
3.4 Maximum ratings (operating) ........................................................................ 15
3.5 Operating modes ......................................................................................... 16
3.6 Mode selection ............................................................................................ 17
3.7 Repeater configuration ................................................................................. 18
3.8 Teach-in procedure ...................................................................................... 19
3.8.1 Setting the receiver to learning mode ........................................................ 19
3.8.2 Confirmation of Learning Mode .................................................................. 19
3.8.3 Teaching in a transmitter .......................................................................... 19
3.8.4 Confirmation of correct learning/deletion .................................................... 20
3.8.5 Learning of further transmitters................................................................. 20
3.8.6 Selecting the next channel ........................................................................ 20
3.8.7 Leaving learning mode ............................................................................. 20
3.8.8 Deleting a transmitter .............................................................................. 20
3.9 Remote management ................................................................................... 21
3.9.1 Remote Management Control Commands (RMCC) ........................................ 21
3.9.2 Remote Procedure Calls (RPC) ................................................................... 21
3.10 Smart Acknowledge ................................................................................ 22
3.11 Transmit timing ...................................................................................... 22
4 APPLICATIONS INFORMATION ....................................................................... 23
4.1 Transmission range ..................................................................................... 23
4.2 Antenna options TCM 300x ........................................................................... 24
4.2.1 Overview ................................................................................................ 24
4.2.2 Whip antenna .......................................................................................... 24
4.2.3 Helical antenna ....................................................................................... 25
4.3 Antenna options TCM 320x ........................................................................... 26
4.3.1 Positioning of the whip antenna ................................................................. 27
4.3.2 Mounting 50 antennas ........................................................................... 27
4.4 Recommendations for laying a whip antenna................................................... 29
4.5 Power supply requirements ........................................................................... 30
4.6 Layout recommendations ............................................................................. 30
4.6.1 TCM 300x recommended foot pattern......................................................... 31
4.7 Soldering information ................................................................................... 34
4.7.1 TCM 300x ............................................................................................... 34

USER MANUAL
© 2013 EnOcean | www.enocean.com TCM 300x / TCM 320x User Manual | Page 4/53
TCM 300 / TCM 300C / TCM 300U
TCM 320 / TCM 320C / TCM 320U
4.7.2 TCM 320x ............................................................................................... 35
4.8 Tape & Reel specification TCM 300x ............................................................... 35
4.9 Backward compatibility to TCM 220C ............................................................. 36
4.10 Using RVDD ........................................................................................... 36
4.11 Voltage dips ........................................................................................... 36
5 AGENCY CERTIFICATIONS ............................................................................ 37
5.1 CE approval ................................................................................................ 37
5.2 FCC (United States) Certification ................................................................... 38
5.3 IC (Industry Canada) Certification ................................................................. 41
5.4 FCC Regulatory Statements ............................................................................... 42
5.5 Industry Canada Regulatory Statements ................................................................ 43
A Serial Interface ........................................................................................... 44
A.1 EnOcean serial protocol ................................................................................ 44
A.1.1 Message format (ESP2) ............................................................................ 44
A.1.2 Byte signals and bit order ......................................................................... 44
A.1.3 Description of serial data structure ............................................................ 45
A.2 Radio transmission/reception commands ........................................................ 46
A.2.1 Detailed description of ORG, DATA_BYTE, and STATUS fields ........................ 46
A.3 Command telegrams and messages ............................................................... 47
A.3.1 ID Range commands ................................................................................ 47
A.3.2 Receiver sensitivity commands .................................................................. 47
A.3.3 Reset command ...................................................................................... 47
A.3.4 SW Version ............................................................................................. 47
A.3.5 Error messages ....................................................................................... 48
A.3.6 Command Encoding ................................................................................. 49

USER MANUAL
© 2013 EnOcean | www.enocean.com TCM 300x / TCM 320x User Manual | Page 5/53
TCM 300 / TCM 300C / TCM 300U
TCM 320 / TCM 320C / TCM 320U
1 MODULE VARIANTS AND RELATED DOCUMENTS
This document describes operation of TCM 300 and TCM 320 modules available in variations
for following frequencies:
TCM 300 / TCM 320: 868.300 MHz
TCM 300C / TCM 320C: 315.000 MHz
TCM 300U / TCM 320U: 902.875 MHz
In side this manual the following terms TCM300x or TCM320x can be used interchangeably
for any of the above frequency, and the term TCM3x0 can be used for each frequency and
module number listed above.
If you want to write own firmware running on the integrated micro controller or need more
detailed information on the Dolphin core please also refer to
Dolphin Core Description
Dolphin API Documentation
In addition we recommend following our application notes, in particular
AN101: Power Supply Layout – Layout considerations for Line-Power
AN102: Antenna Basics – Basic Antenna Design Considerations for EnOcean based
Products
AN105: 315 MHZ Internal Antenna Design – Considerations for EnOcean based Products
AN403: Dolphin Migration - Replacing RCM 1xy / TCM 1x0 / TCM 2x0C by TCM 3x0

USER MANUAL
© 2013 EnOcean | www.enocean.com TCM 300x / TCM 320x User Manual | Page 6/53
TCM 300 / TCM 300C / TCM 300U
TCM 320 / TCM 320C / TCM 320U
2 GENERAL DESCRIPTION
2.1 Basic functionality
The transceiver modules TCM 300x and TCM 320x enable the realization of highly efficient
RF repeaters and transceivers for the EnOcean radio systems. The module provides several
built-in operating modes. In addition repeater functionality (1 or 2 level) can be activated.
Using the Dolphin API library it is possible to write custom software for the module. All
module variants are in-system programmable.
Built-in operating modes
Unidirectional / bidirectional serial communication
1-channel / 4 channel relay mode
1-channel dimming mode
Product variants
TCM 300x: SMD mountable module for use with external antenna
TCM 300 868.300 MHz
TCM 300C 315.000 MHz
TCM 300U 902.875 MHz
TCM 320x: Variant for vertical mounting with pin connector and whip antenna.
TCM 320 868.300 MHz
TCM 320C 315.000 MHz
TCM 320U 902.875 MHz
Features accessible via API:
Integrated 16 MHz 8051 CPU with 32 kB FLASH and 2 kB SRAM
Various power down and sleep modes
TCM 300x down to 0.2 µA current consumption
TCM 320x down to 1.4 mA current consumption
Up to 14 configurable I/Os ( TCM 300x )
10 bit ADC, 8 bit DAC

USER MANUAL
© 2013 EnOcean | www.enocean.com TCM 300x / TCM 320x User Manual | Page 7/53
TCM 300 / TCM 300C / TCM 300U
TCM 320 / TCM 320C / TCM 320U
2.2 Technical data TCM 300 / TCM 320 (868.300 MHz)
Antenna
TCM 320 : 8.6 cm whip
TCM 300: whip or 50 Ω antenna mountable
Frequency
868.300 MHz
Radio Standard (Modulation)
ASK 1)
Data rate
125 kbps
Receiver Sensitivity (25°C) 2)
typ. –96 dBm 2)
Conducted Output Power @50
min / typ /max
TCM 300: 3.0 dBm / 5.7 dBm / 7.0 dBm
TCM 320: 1.2 dBm / 3.1 dBm / 5.2 dBm
Power Supply
TCM 320: 2.6 V–3.3 V
TCM 300: 2.6 V–4.5 V
Start-up time
<500 ms
Current Consumption
Receive mode: typ. 33 mA, max. 43 mA
Transmit mode: typ. 24 mA, max. 33 mA
Radio Regulations
R&TTE EN 300 220-2: V2.31
1) according to ISO/IEC 14543-3-10
2) @ 0.1% telegram error rate (based on 3 transmitted sub-telegrams)

USER MANUAL
© 2013 EnOcean | www.enocean.com TCM 300x / TCM 320x User Manual | Page 8/53
TCM 300 / TCM 300C / TCM 300U
TCM 320 / TCM 320C / TCM 320U
2.3 Technical data TCM 300C / TCM 320C (315.000 MHz)
Antenna
TCM 320C: 15 cm mounted whip antenna
TCM 300: whip or 50 Ω antenna mountable
Frequency
315.000 MHz
Radio Standard (Modulation)
ASK 1)
Data rate
125 kbps
Receiver Sensitivity (25°C)
typ. -98 dBm 2)
Conducted Output Power @50
min / typ / max
TCM 300C: 5.5 dBm / 7.5 dBm / 9.5 dBm
TCM 320C: 3.5 dBm / 5.5 dBm / 7.5 dBm
Power Supply
TCM 320C: 2.6 V–3.3 V
TCM 300C: 2.6 V–4.5 V
Start-up time
<500 ms
Current Consumption
Receive mode: typ. 33 mA, max. 43 mA
Transmit mode: typ. 24 mA, max. 33 mA
Radio Regulations
FCC CFR-47 Part 15 (US)
IC (Canada)
1) according to ISO/IEC 14543-3-10
2) @ 0.1% telegram error rate (based on 3 transmitted sub-telegrams)
2.4 Technical data TCM 300U/ TCM 320U (902.875 MHz)
Antenna
TCM 320U: 6.4 cm whip mounted whip antenna
TCM 300U: whip or 50 Ω antenna mountable
Frequency
902.875 MHz
Radio Standard (Modulation)
FSK
Data rate
125 kbps
Receiver Sensitivity (25°C) 3)
typ. -98 dB 3)
Conducted Output Power @50 4)
min / typ / max
-1dBm / +1dBm / +3dBm
Power Supply
TCM 320U: 2.6 V–3.3 V
TCM 300U: 2.6 V–4.5 V
Start-up time
<500 ms
Current Consumption
min / typ / max
Receive mode: typ. 33 mA, max. 43 mA
Transmit mode: typ. 24 mA, max. 33 mA
Radio Regulations
FCC CFR-47 Part 15 (US)
IC (Canada)
3) @ 0.1% telegram error rate (based on transmitted sub-telegrams)
4) using +1dBm (V 1.13) power settings which comply to limited modular approval

USER MANUAL
© 2013 EnOcean | www.enocean.com TCM 300x / TCM 320x User Manual | Page 9/53
TCM 300 / TCM 300C / TCM 300U
TCM 320 / TCM 320C / TCM 320U
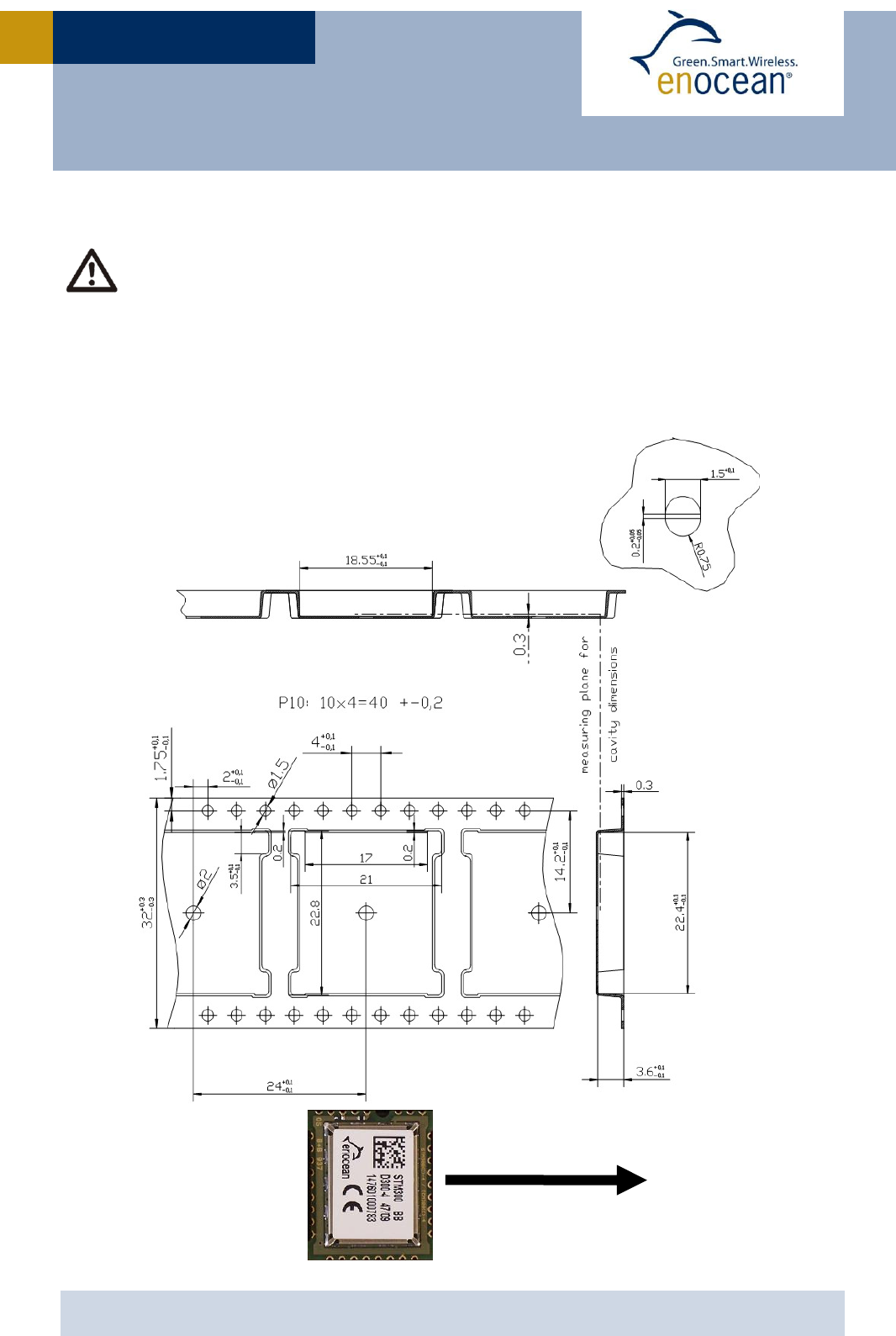
2.5 Physical dimensions TCM 300x
TCM 300x (pads on bottom side of PCB!)
2.6 Physical dimensions TCM 320x
TCM 320x pin connectors
Unless otherwise specified dimensions are in mm.
Tolerances:
PCB outline dimensions 0.2 mm
All other tolerances 0.1 mm
Unless otherwise specified dimensions are in mm.
Tolerances:
PCB outline dimensions 0.2 mm
All other tolerances 0.1 mm

USER MANUAL
© 2013 EnOcean | www.enocean.com TCM 300x / TCM 320x User Manual | Page 10/53
TCM 300 / TCM 300C / TCM 300U
TCM 320 / TCM 320C / TCM 320U
PCB dimensions TCM 320x (without pin connector): 36.5 x 18 x 5.5 mm
TCM 300x: 22 x 19 x 3.1 mm
Pin connector 16 pins, grid 2.0 mm (4.0 mm in length, ٱ 0.5 mm)
Weight TCM 320x: 3.7 g TCM 300x: 1.9 g
2.7 Environmental conditions
Operating temperature -25 °C … +85 °C
Storage temperature -40 °C … +85 °C
Storage temperature in tape & reel package -20 °C … +50 °C
Humidity 0% … 93% r.H., non-condensing
2.8 Ordering information
Type
Ordering Code
Frequency
TCM 300
S3003-K300
868.300 MHz
TCM 320
S3003-K320
868.300 MHz
TCM 300C
S3033-K300
315.000 MHz
TCM 320C
S3033-K320
315.000 MHz
TCM 300U
S3053-K300
902.875 MHz
TCM 320U
S3053-K320
902.875 MHz

USER MANUAL
© 2013 EnOcean | www.enocean.com TCM 300x / TCM 320x User Manual | Page 11/53
TCM 300 / TCM 300C / TCM 300U
TCM 320 / TCM 320C / TCM 320U
3 FUNCTIONAL DESCRIPTION
3.1 Pin out
The figure above shows the pin out of the TCM 300x / TCM 320x hardware. The pins are
named according to the naming of the Dolphin chip to simplify usage of the DOLPHIN API.
The table in section 3.2 shows the translation of hardware pins to a naming that fits the
functionality of the built-in firmware. When writing own firmware based on the DOLPHIN
API please refer to the Dolphin Core Description and use this manual only for information
regarding the module hardware, such as pin out, layout recommendations, power supply
requirements, antenna options, and approvals.
ADIO0
ADIO1
ADIO2
ADIO3
ADIO4
ADIO6
ADIO7
GND
SCSEDIO0
SCLKDIO1
WSDADIO2
RSDADIO3
PROG_EN
RESET
VDD
GND
RF_WHIP
EO3000I
Antenna
balun
XTAL
16MHz
116
TCM320/320C
TOP VIEW
EO3000I
Antenna
balun
XTAL
16MHz
TCM300/300C
TOP VIEW
DVDD
RVDD
n.c.
IOVDD
SCSEDIO0
WXIDIO
WXODIO
n.c.
RESET
n.c.
ADIO0
ADIO1
ADIO2
ADIO3
ADIO4
ADIO5
ADIO6
ADIO7
PROG_EN
SCLKDIO1
WSDADIO2
RSDADIO3
GND
GND
GND
RF_50
RF_WHIP
n.c.
VDD
GND
GND
GND
GND
GND
1
9
18
26

USER MANUAL
© 2013 EnOcean | www.enocean.com TCM 300x / TCM 320x User Manual | Page 12/53
TCM 300 / TCM 300C / TCM 300U
TCM 320 / TCM 320C / TCM 320U
3.2 Pin description and operational characteristics
HW Symbol
TCM 300x
pin #
TCM 320x
pin #
Function
Characteristics
GND
1, 5, 7,
17, 24,
26, 28,
31
1, 16
Ground connection
Must be connected to GND; see 4.5
VDD
2
15
Supply voltage
TCM 300: 2.6 V – 4.5 V
TCM 320: 2.6 V – 3.3 V
Max. ripple: see 3.4
RVDD
8
RF supply voltage
regulator output
1.8 V
Output current:
max. 100 µA with built-in firmware (RX
on)
max. 10 mA while not in RX/TX mode
DVDD
25
Digital supply volt-
age
regulator output
1.8 V
Output current: max. 5 mA
IOVDD
23
GPIO supply volt-
age
TCM 320: internally connected to VDD
TCM 300: Must be connected to de-
sired
interface supply voltage (see 3.4)
See also 3.2.1.
RESET
27
14
Reset input
Programming I/F
Active high reset. External 10 kΩ pull-
down required.
PROG_EN
18
13
Programming I/F
HIGH: programming mode active
LOW: operating mode
Digital input, external 10 kΩ pull-down
required.
ADIO0
9
2
MODE_SEL
Analog input: At start-up input voltage
is measured and mode is selected. See
chapter 3.6.
ADIO1
10
3
MODE 0: not used
In mode 0 the repeater level is 1 and
cannot be modified.
MODE 1-4:
REP_LEVEL
Mode 1-4: At start-up the repeater
level
is selected:
Repeater level 1: LOW
Repeater level 2: HIGH
Digital input, internal pull-up active
ADIO2
11
4
REPEATER
At start-up the repeater can be
switched on:
Repeater on: LOW
Repeater off: HIGH
Digital input, internal pull-up active
ADIO3
12
5
MODE 0: Sensitiv-
ity
Low sensitivity: LOW
High sensitivity: HIGH
Digital input, internal pull-up active

USER MANUAL
© 2013 EnOcean | www.enocean.com TCM 300x / TCM 320x User Manual | Page 13/53
TCM 300 / TCM 300C / TCM 300U
TCM 320 / TCM 320C / TCM 320U
MODE 1-4: LRN
Enter/leave teach-in mode. See chap-
ter 3.8
Digital input, internal pull-up active
ADIO4
13
6
MODE 0: not used
Internal pull-up active
MODE 1-4: CLR
Clear ID memory. See chapter 3.8
Digital input, internal pull-up active
ADIO5
14
Not used
Digital output, internally set to LOW
ADIO6
15
7
MODE 0-1:
SER_RX
UART input
MODE 2-4: not
used
Digital input, internal pull-up active
ADIO7
16
8
MODE 0-1:
SER_TX
UART output
Max. output current:
2 mA @ IOVDD=3.3 V
0.65 mA @ IOVDD=1.8 V
MODE 2-3: CHAN-
NEL0
Digital output channel 0
Max. output current:
2 mA @ IOVDD=3.3 V
0.65 mA @ IOVDD=1.8 V
MODE 4: not used
Digital output, internally set to LOW
Programming I/F
SCSEDIO0
19
9
MODE 0, 2: not
used
Digital output, internally set to LOW
MODE 1:
LRN_TOGGLE
Digital output
Max. output current:
2 mA @ IOVDD=3.3 V
0.65 mA @ IOVDD=1.8 V
MODE 3: CHAN-
NEL1
Digital output channel 1
Max. output current:
2 mA @ IOVDD=3.3 V
0.65 mA @ IOVDD=1.8 V
MODE 4: PWM
Dimmer output, 50 kHz
Programming I/F
SCLKDIO1
20
10
MODE 0-2: not
used
Digital output, internally set to LOW
MODE 3: CHAN-
NEL2
Digital output channel 2
Max. output current:
2 mA @ IOVDD=3.3 V
0.65 mA @ IOVDD=1.8 V
MODE 4:
PWM_IND
Indicating if PWM is active.
Digital output.
Max. output current:
2 mA @ IOVDD=3.3 V
0.65 mA @ IOVDD=1.8 V
Programming I/F
WSDADIO2
21
11
MODE 0-2, 4: not
used
Digital output, internally set to LOW
MODE 3: CHAN-
Digital output channel 3

USER MANUAL
© 2013 EnOcean | www.enocean.com TCM 300x / TCM 320x User Manual | Page 14/53
TCM 300 / TCM 300C / TCM 300U
TCM 320 / TCM 320C / TCM 320U
NEL3
Max. output current:
2 mA @ IOVDD=3.3 V
0.65 mA @ IOVDD=1.8 V
Programming I/F
RSDADIO3
22
12
MODE 0: RMI
Normal operation: Digital output, in-
ternally set to LOW
Remote Management: ACTION com-
mand indicator (see 3.9.1)
Max. output current:
2 mA @ IOVDD=3.3 V
0.65 mA @ IOVDD=1.8 V
MODE 1-4: LMI
Normal operation: Learn mode indica-
tor
Remote Management: ACTION com-
mand indicator (see 3.9.1)
Digital output
Max. output current:
2 mA @ IOVDD=3.3 V
0.65 mA @ IOVDD=1.8 V
Programming I/F
WXIDIO
29
Not used
Digital output, internally set to LOW
WXODIO
30
Not used
Digital output, HIGH if VDD>VON,
LOW if VDD<VON, see also 4.11
RF_WHIP
4
RF output
Output for whip antenna
RF_50
6
RF output
50 Ohm output for external antenna
n.c.
3,
32,33,
34
Not connected
Do not connect!
For more details regarding I/Os please refer to Dolphin Core Description.
3.2.1 GPIO supply voltage - IOVDD
For digital communication with other circuitry (peripherals) the digital I/O configured pins
of the mixed signal sensor interface (ADIO0 to ADIO7) and the pins of the serial interface
(SCSEDIO0, SCLKDIO1, WSDADIO2, RSDADIO3) may be operated from supply voltages
different from DVDD. Therefore an interface voltage supply pin IOVDD is available which
must be connected either to DVDD or to an external supply within the tolerated voltage
range of IOVDD.
If DVDD=0 V (e.g. in any sleep mode or if VDD<VOFF) and IOVDD is supplied,
there may be unpredictable and varying current from IOVDD caused by internal
floating nodes. It must be taken care that the current into IOVDD does not exceed
10 mA while DVDD=0 V.
If DVDD=0 V and IOVDD is not supplied, do not apply voltage to any above men-
tioned pin. This may lead to unpredictable malfunction of the device.
Inside TCM 320x the signals VDD and IOVDD are internally connected! Therefore
the above mentioned issues have to be considered when writing own firmware

USER MANUAL
© 2013 EnOcean | www.enocean.com TCM 300x / TCM 320x User Manual | Page 15/53
TCM 300 / TCM 300C / TCM 300U
TCM 320 / TCM 320C / TCM 320U
based on API.
For I/O pins configured as analogue pins the IOVDD voltage level is not relevant!
However it is important to connect IOVDD to a supply voltage as specified in 3.4.
3.3 Absolute maximum ratings (non operating)
Symbol
Parameter
Min
Max
Units
VDD
Supply voltage at VDD
TCM 300x
TCM 320x (limitation due to internal VDD-IOVDD connection)
-0.5
-0.5
5.5
3.6
V
V
IOVDD
GPIO supply voltage
-0.5
3.6
V
GND
Ground connection
0
0
V
VINA
Voltage at every analog input pin
-0.5
2
V
VIND1
Voltage at RESET, and every digital input pin except
WXIDIO/WXODIO
-0.5
3.6
V
VIND2
Voltage at WXIDIO / WXODIO input pin
-0.5
2
V
3.4 Maximum ratings (operating)
Symbol
Parameter
Min
Max
Units
VDD
Supply voltage at VDD
TCM 300
TCM 320
2.6
2.6
4.5
3.3
V
V
IOVDD
GPIO supply voltage (see also 3.2.1)
1.7
3.6
V
GND
Ground connection
0
0
V
VINA
Voltage at every analog input pin
0
2.0
V
VIND1
Voltage at RESET, and every digital input pin except
WXIDIO / WXODIO
0
3.6
V
VIND2
Voltage at WXIDIO / WXODIO input pin
0
2.0
V
VDDR
Max. ripple at VDD
50
mVpp
IOVDD
ADIO0
ADIO1
ADIO2
ADIO3
ADIO4
ADIO5
ADIO6
ADIO7
SCSEDIO0
SCLKDIO1
WSDADIO2
RSDADIO3
If configured as digital I/O

USER MANUAL
© 2013 EnOcean | www.enocean.com TCM 300x / TCM 320x User Manual | Page 16/53
TCM 300 / TCM 300C / TCM 300U
TCM 320 / TCM 320C / TCM 320U
3.5 Operating modes
Mode
Function
Output signal description
No. of
channels
0
Unidirectional serial
interface compatible
with TCM 220C, no
teach-in capability
SER_TX: UART output, supplies standard
data blocks of information from all received
EnOcean radio telegrams (9600 bps; 8 data
bits, no parity bit, one start bit, one stop bit).
For further information see chapter A.1
1
Bidirectional serial
interface, teach-in
capability for up to
30 entries1
SER_RX, SER_TX: Asynchronous bidirectional
Interface, supplies standard data blocks of
information from all received EnOcean radio
telegrams (9600 bps; 8 data bits, no parity
bit, one start bit, one stop bit). For further
information see chapter A.1
LRN_TOGGLE: Learning mode status indica-
tor
2
Rocker Switch - 1
channel, teach-in ca-
pability for up to 30
entries1
Supplies the desired logic switching state
“on/off” at CHANNEL0 when pushing the
switch rockers
1
3
Rocker Switch - 4
channels, teach-in
capability for up to
30 entries2
Same as Mode 2 but operation of 4 receiver
channels (CHANNEL0, CHANNEL1, CHAN-
NEL2, CHANNEL3)
4
4
Dimming - 1 channel,
teach-in capability
for up to 30 entries1
PWM is the PWM output
I-button pressed for shorter than 0.5 s: ON
(Restore duty cycle stored before last
switch-off).
O-button pressed for shorter than 0.5 s:
OFF
O-/I-button pressed longer than 0.5 s:
Duty cycle variation from 10% up to 100%
(O=less, I=more; ~300 PWM steps, in-
crement every 15 ms). Duty cycle variation
stops when button is released.
PWM_IND is active as long as duty cycle is
not 0%
1
5
Reserved
1 Each rocker of a PTM transmitter is counted as 1 entry
2 Each rocker is counted as 1 entry. If the same rocker is teached into several channels, 1
entry per channel is needed.

USER MANUAL
© 2013 EnOcean | www.enocean.com TCM 300x / TCM 320x User Manual | Page 17/53
TCM 300 / TCM 300C / TCM 300U
TCM 320 / TCM 320C / TCM 320U
3.6 Mode selection
The operating mode is defined at start-up of the module via a measurement of the voltage
at ADIO0.
Mode
ADIO0 (MODE_SEL)
input voltage range
Proposed com-
ponent values
0
0% to 3.99% VDD
R1: 0 Ohm
R2: leave open
R3: leave open
C1: leave open
1
4% to 11.99% VDD
R1: 1k2 ±1%
R2: 15k ±1%
R3: 150k ±1%
C1: 100p
2
12% to 19.99% VDD
R1: 2k2 ±1%
R2: 12k ±1%
R3: 270k ±1%
C1: 100p
3
20% to 27.99% VDD
R1: 3k9 ±1%
R2: 15k ±1%
R3: 68k ±1%
C1: 100p
4
28% to 35.99% VDD
R1: 4k7 ±1%
R2: 12k ±1%
R3: 56k ±1%
C1: 100p
5
36% to 39.99% VDD
R1: 5k6 ±1%
R2: 10k ±1%
R3: 56k ±1%
C1: 100p
As long as IDs are stored in ID memory, the operating mode can only be changed
after deleting all IDs from memory, e.g. via CLR!
R2
R1
VDD
GND
ADIO0
R3
C1

USER MANUAL
© 2013 EnOcean | www.enocean.com TCM 300x / TCM 320x User Manual | Page 18/53
TCM 300 / TCM 300C / TCM 300U
TCM 320 / TCM 320C / TCM 320U
3.7 Repeater configuration
TCM 3x0 provides the option to activate a one or two-level repeater for EnOcean radio tele-
grams.
1-level repeater: If a received telegram is a valid and original (not yet repeated), the tele-
gram is repeated after a random delay.
2-level repeater: If a received telegram is valid and original or repeated once, the telegram
is repeated after a random delay.
The repeated telegram is marked as “repeated” by an increased repeater counter.
Setting the repeater level:
At start-up of the module repeater on/off and repeater level are determined.
Please refer to the table in 3.2 regarding the configuration options.
The figure below shows the basic circuit for a stand-alone repeater.
2-level repeating function should only be activated if really needed! Otherwise the
system function can be compromised by collisions of telegrams.
Please note that in Mode 0 2-level repeating is not possible
(for backward compatibility to TCM 220C)!

USER MANUAL
© 2013 EnOcean | www.enocean.com TCM 300x / TCM 320x User Manual | Page 19/53
TCM 300 / TCM 300C / TCM 300U
TCM 320 / TCM 320C / TCM 320U
3.8 Teach-in procedure
Modes 1 to 4 support teach-in of transmitters.
3.8.1 Setting the receiver to learning mode
Via CLR Pin (ADIO4): Contact to GND longer than t = 2 seconds. Learning Mode LRN
is entered after clearing ID memory.
Via LRN Pin (ADIO3): Contact to GND longer than t = 0.5 seconds. In multi-channel
receiver mode, the pin has to be contacted several times until the desired channel num-
ber is selected (the number of channels is given by the selected operating mode).
Via Remote Config Control: Please refer to documentation of remote management.
3.8.2 Confirmation of Learning Mode
Mode
Confirmation
0
No Learn capability
1
LMI HIGH continuously, LRN_TOGGLE toggling every 1 s.
2
LMI HIGH continuously, CHANNEL0 toggling every 1 s.
3
LMI HIGH continuously, current CHANNELx toggling every 1 s.
4
LMI HIGH continuously, DIM IND HIGH, and PWM toggling every 1 s between
10% and 100%
5
Reserved for future use
3.8.3 Teaching in a transmitter
In learning mode LRN, the sensitivity of the module is limited to in-room operations and
learning of repeater powered signals is disabled (to avoid unintentional learning). Therefore
ensure that the associated radio transmitter will be in a distance less than 5m to the re-
ceiver (not necessary within Remote Learn Mode).
Trigger the telegram of the associated radio transmitter within 30 seconds:
Operate the switch radio transmitter (RPS or HRC) at least once (press I-button or O-
button of the rocker that is to be assigned to the selected receiver channel). If the same
rocker is operated again within 4 seconds it will still be learned. If the same rocker is op-
erated again after more than 4 seconds it will be deleted again. Please note that teach-in
without rocker information is not possible” Please note that scene switches (HRC and last
3 ID bits 0B111) cannot be teach-in!
Or activate the sensor radio transmitter (1BS, 4BS) least once with active LRN bit
(DI_3=0, please refer to “Standardization EnOcean Communication Profiles”). If the
same transmitter is operated again after more than 4 seconds with active LRN bit it will
be deleted again.
Please make sure not to remove supply voltage while in LRN mode! The flash con-
tent could get corrupted!

USER MANUAL
© 2013 EnOcean | www.enocean.com TCM 300x / TCM 320x User Manual | Page 20/53
TCM 300 / TCM 300C / TCM 300U
TCM 320 / TCM 320C / TCM 320U
3.8.4 Confirmation of correct learning/deletion
The output which is toggling every second while in teach-in mode (see above) will stay
switched high for 4 seconds to signal that a transmitter has been learned. In case a trans-
mitter ID has been deleted it will stay 4 seconds low.
3.8.5 Learning of further transmitters
After confirmation, the receiver changes again to readiness for learning. Further transmit-
ters can be learned immediately. If available the next receiver channel can be entered by
connecting the LRN pin to GND longer than t = 0.5 seconds. A maximum of 30 radio
transmitters can be learned (further attempts will be ignored; instead of learning confirma-
tion, operating mode is entered). Each rocker of a radio transmitter is counted as one
transmitter.
3.8.6 Selecting the next channel
By fresh contacting of the LRN pin to GND the next remaining channel is selected. In one-
channel mode or after the last channel, the operating mode is entered again.
3.8.7 Leaving learning mode
LRN mode is left in either one of the following events:
Output of last available channel is toggling and a fresh contacting of the LRN pin to GND
for 0.5 seconds is performed
No ID has been added/deleted during the last 30 seconds.
Memory was full and another ID was sent to be learnt
3.8.8 Deleting a transmitter
Deletion of one specific transmitter: Use the same procedure as learning the associated
transmitter.
As transmitter delete confirmation, the corresponding function outputs remain in inactive
state for 4 seconds while LMI keeps active. After that, a wrongly deleted transmitter can be
learned again immediately.
In order to delete a PTM transmitter the same rocker as during learn has to be
operated. If several rockers of a PTM transmitter have been learned, all have to be
deleted separately.
Deletion of all learned transmitters: Connect the CLR pin longer than 2 seconds to GND
All learned transmitters on all channels are deleted at the same time. After this, the re-
ceiver enters Learning Mode.
Please note that in modes 2, 3, and 4 only RPS or HRC telegrams can be learned!

USER MANUAL
© 2013 EnOcean | www.enocean.com TCM 300x / TCM 320x User Manual | Page 21/53
TCM 300 / TCM 300C / TCM 300U
TCM 320 / TCM 320C / TCM 320U
3.9 Remote management
TCM 3x0 supports the remote management specification which is available from EnOcean
upon request. This allows controlling the teach-in procedure via a Remote Config Control
device.
3.9.1 Remote Management Control Commands (RMCC)
All RMCCs supported.
Mode
Reaction to ACTION COMMAND (Function code 0x005)
0
RMI HIGH for 1 s.
1
LMI HIGH, and LRN_TOGGLE on for 1 s.
2
LMI HIGH, and CHANNEL0 invert for 1 s.
3
LMI HIGH, and all CHANNELx inverted for 1 s.
4
LMI HIGH, DIM IND inverted, and PWM inverted for 1 s.
5
Reserved for future use
3.9.2 Remote Procedure Calls (RPC)
Supported RPCs:
Remote learn command, function code 0x201
Smart ACK: Read mailbox settings, function code 0x205, settings type 0x01
Smart ACK: Delete mailbox, function code 0x206, operation type 0x02
REMOTE LEARN COMMAND:
EEP: 0x000000
Mode
Flag in command
Reaction
0
n.a.
No reaction, no Learn Mode available
1
0x01
0x03
Start Remote Learn Mode
Stop Remote Learn Mode
2
0x01
0x03
Start Remote Learn Mode
Stop Remote Learn Mode
3
0x01
0x02
0x03
Start Remote Learn Mode
Next channel
Stop Remote Learn Mode
4
0x01
0x03
Start Remote Learn Mode
Stop Remote Learn Mode
5
n.a.
No reaction, reserved for future use
The signalling is the same as described above in 3.8.
Differences between remote learn mode and normal learn mode:
In remote learn mode also repeated telegrams will be accepted
3 transmissions within 2 seconds are required, instead of 1 transmission
For detailed information on remote management please refer to the Remote Management
system specification.

USER MANUAL
© 2013 EnOcean | www.enocean.com TCM 300x / TCM 320x User Manual | Page 22/53
TCM 300 / TCM 300C / TCM 300U
TCM 320 / TCM 320C / TCM 320U
3.10 Smart Acknowledge
TCM 3x0 modules provide a post master function with 15 mail boxes for systems using
EnOcean smart acknowledge technology. This functionality is switched on in all operating
modes.
For detailed information on smart acknowledge please refer to the Smart Acknowledge sys-
tem specification.
When teaching-in a device using Smart Acknowledge please take care to switch off
all TCM 3x0 devices which are not continuously powered. Otherwise these TCM
3x0 modules could be declared postmaster. As soon as the power supply is
switched off a postmaster would be missing and Smart Acknowledge would not
work any longer!
3.11 Transmit timing
The setup of the transmission timing allows avoiding possible collisions with data packages
of other EnOcean transmitters as well as disturbances from the environment. With each
transmission cycle, 3 identical subtelegrams are transmitted within 40 ms. The transmis-
sion of a subtelegram lasts approximately 1.2 ms. The delay between the three transmis-
sion bursts is affected at random.

USER MANUAL
© 2013 EnOcean | www.enocean.com TCM 300x / TCM 320x User Manual | Page 23/53
TCM 300 / TCM 300C / TCM 300U
TCM 320 / TCM 320C / TCM 320U
4 APPLICATIONS INFORMATION
4.1 Transmission range
The main factors that influence the system transmission range are type and location of the
antennas of the receiver and the transmitter, type of terrain and degree of obstruction of
the link path, sources of interference affecting the receiver, and “dead” spots caused by
signal reflections from nearby conductive objects. Since the expected transmission range
strongly depends on this system conditions, range tests should categorically be performed
before notification of a particular range that will be attainable by a certain application.
The following figures for expected transmission range are considered by using a PTM, a
STM or a TCM radio transmitter device and the TCM radio receiver device with preinstalled
whip antenna and may be used as a rough guide only:
Line-of-sight connections: Typically 30 m range in corridors, up to 100 m in halls
Plasterboard walls / dry wood: Typically 30 m range, through max. 5 walls
Line-of-sight connections: Typically 30 m range in corridors, up to 100 m in halls
Ferro concrete walls / ceilings: Typically 10 m range, through max. 1 ceiling
Fire-safety walls, elevator shafts, staircases and supply areas should be considered as
screening.
The angle at which the transmitted signal hits the wall is very important. The effective wall
thickness – and with it the signal attenuation – varies according to this angle. Signals
should be transmitted as directly as possible through the wall. Wall niches should be
avoided. Other factors restricting transmission range:
Switch mounted on metal surfaces (up to 30% loss of transmission range)
Hollow lightweight walls filled with insulating wool on metal foil
False ceilings with panels of metal or carbon fibre
Lead glass or glass with metal coating, steel furniture
The distance between EnOcean receivers and other transmitting devices such as com-
puters, audio and video equipment that also emit high-frequency signals should be at least
0.5 m
A summarized application note to determine the transmission range within buildings is
available as download from www.enocean.com.

USER MANUAL
© 2013 EnOcean | www.enocean.com TCM 300x / TCM 320x User Manual | Page 24/53
TCM 300 / TCM 300C / TCM 300U
TCM 320 / TCM 320C / TCM 320U
4.2 Antenna options TCM 300x
4.2.1 Overview
Several antenna types have been investigated by EnOcean. Please refer to our application
notes AN102, and AN105 which give an overview on our recommendations.
All TCM3x0 modules have been approved with whip antenna, and TCM300U with helical
antenna in addition.
868.300 MHz modules used in Europe do not need additional approval if the external an-
tenna fulfils the following requirements:
Frequency
band
868.300 MHz
ISM
Antenna must be suited for this band
Antenna type
Passive
Mandatory for radio approval
Impedance
~50 Ohm
Mandatory for radio approval
Maximum gain
≤ 0 dBd
Mandatory for radio approval
In addition it is important to fulfill the following requirements in order to achieve compati-
bility with other EnOcean products and to ensure excellent EMI robustness:
VSWR
≤ 3:1
Important for compatibility with EnOcean protocol
Return Loss
> 6 dB
Important for compatibility with EnOcean protocol
Bandwidth
≤ 20 MHz
Important if 10 V/m EMI robustness required for device
For 315 MHz / 902.875 MHz modules (TCM 300C / TCM 300U) please note
that a full approval is needed if modules are used with antennas other than
the specified antennas.
4.2.2 Whip antenna
315 MHz
Antenna: 150 mm wire, connect to RF_WHIP
Minimum GND plane: 50 mm x 50 mm
Minimum distance space: 10 mm
868.3 MHz
Antenna: 86 mm wire, connect to RF_WHIP
Minimum GND plane: 38 mm x 18 mm
Minimum distance space: 10 mm
902.875 MHz
Antenna: 64 mm wire, connect to RF_WHIP
Minimum GND plane: 50 mm x 50 mm
Minimum distance space: 10 mm

USER MANUAL
© 2013 EnOcean | www.enocean.com TCM 300x / TCM 320x User Manual | Page 25/53
TCM 300 / TCM 300C / TCM 300U
TCM 320 / TCM 320C / TCM 320U
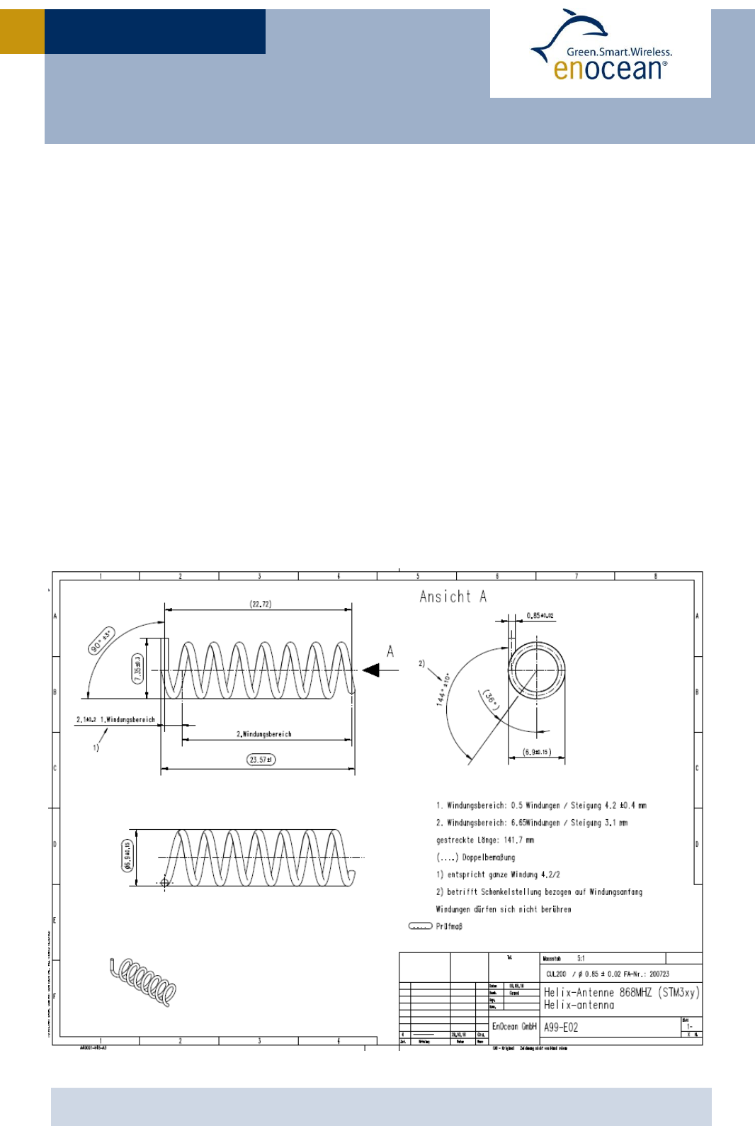
4.2.3 Helical antenna
315 MHz
please contact EnOcean for availability
868.3 MHz
according to drawing below, connect to RF_WHIP
please contact EnOcean for MOQ
Minimum GND plane: 35 mm x 30 mm
Minimum distance space: 10 mm
902.875 MHz
limited modular approval available
please contact EnOcean for MOQ and necessary limited modular approval user agreement
according to drawing below, connect to RF_WHIP
Minimum GND plane: 35 mm x 30 mm
Minimum distance space: 10 mm

USER MANUAL
© 2013 EnOcean | www.enocean.com TCM 300x / TCM 320x User Manual | Page 26/53
TCM 300 / TCM 300C / TCM 300U
TCM 320 / TCM 320C / TCM 320U
4.3 Antenna options TCM 320x
TCM320x is equipped and approved with a whip antenna.
Specification of the TCM whip antenna:
L=150 mm @ 315 MHz, L=86 mm @ 868.3 MHz, L=64 mm @ 902.875 MHz
AWG24 wire composed of 7 strands of AWG32 wire
Material is PVC according to DIN VDE 0207
Self-extinguishing and flame retardant according to EN 50265-2-1 / IEC 60332-1
Isolation material may break at temperatures below -15 °C.
Please take care to fix the antenna cable in case vibrations are expected.

USER MANUAL
© 2013 EnOcean | www.enocean.com TCM 300x / TCM 320x User Manual | Page 27/53
TCM 300 / TCM 300C / TCM 300U
TCM 320 / TCM 320C / TCM 320U
50
GND
GND
GND
GND
X remove
TCM320C: X remove
4.3.1 Positioning of the whip antenna
Positioning and choice of receiver and transmitter antennas are the most important factors
in determining system transmission range.
For good receiver performance, great care must be taken about the space immediately
around the antenna since this has a strong influence on screening and detuning the an-
tenna. The antenna should be drawn out as far as possible and must never be cut off.
Mainly the far end of the wire should be mounted as far away as possible (at least 15 mm)
from all metal parts, ground planes, PCB strip lines and fast logic components (e.g. micro-
processors).
Do not roll up or twist the whip antenna!
Radio frequency hash from the motherboard desensitizes the receiver. Therefore:
PCB strip lines on the user board should be designed as short as possible
A PCB ground plane layer with sufficient ground vias is strongly recommended
See also section 4.5 for power supply requirements. Problems may especially occur with
switching power supplies!
4.3.2 Mounting 50 antennas
For mounting the receiver at bad RF locations (e.g. within a metal cabinet), an external 50
antenna may be connected. The whip antenna must be removed in this case!
TCM 320 provides soldering pads for an SMA connector, e.g. from Tyco Electronics:
Modification procedure:
TCM 320: Remove whip antenna and resistor, then mount SMA connector.
TCM 320C: Remove whip antenna and 12 pF capacitor (see figure above).
Then mount SMA connector
TCM 320U: Remove whip antenna and resistor, then mount SMA connector.

USER MANUAL
© 2013 EnOcean | www.enocean.com TCM 300x / TCM 320x User Manual | Page 28/53
TCM 300 / TCM 300C / TCM 300U
TCM 320 / TCM 320C / TCM 320U
For 315 MHz and 902 MHz modules (TCM 320C and TCM 320U) please
note that a full radio approval needs to be performed if modules are used
with external antennas other than the pre-installed whip antenna.
When using the SMA connector pads please make sure no mechanical forces are
exerted on the 16-pin connector! It is recommended to use a strain relief for that
purpose.

USER MANUAL
© 2013 EnOcean | www.enocean.com TCM 300x / TCM 320x User Manual | Page 29/53
TCM 300 / TCM 300C / TCM 300U
TCM 320 / TCM 320C / TCM 320U
4.4 Recommendations for laying a whip antenna
Antenna too close
to GND area
Antenna end led
back to foot point
PCB
with
GND
PCB
without
GND
Antenna
too
close
to GND
area

USER MANUAL
© 2013 EnOcean | www.enocean.com TCM 300x / TCM 320x User Manual | Page 30/53
TCM 300 / TCM 300C / TCM 300U
TCM 320 / TCM 320C / TCM 320U
4.5 Power supply requirements
In order to provide a good radio performance, great attention must be paid to the power
supply and a correct layout and shielding. It is recommended to place a 22 µF ceramic ca-
pacitor between VDD and GND close to the module (material: X5R, X7R, min 6.3 V to avoid
derating effects). In addition a 470 nH coil shall be inserted (Murata LQW18A, 0603) in the
power supply line.
For best performance it is recommended to keep the ripple on the power supply rail below
10 mVpp (see 3.4).
All GND pins must be connected to GND. Be careful not to create loops! The
ground must be realized ideally on both sides of the PCB board with many Vias. At
least there must be a short star connection. Otherwise RF performance can be
reduced!
4.6 Layout recommendations
The length of lines connected to I/Os should not exceed 5 cm.
It is recommended to have a complete GND layer in the application PCB, at least
in the area below the module and directly connected components (e.g. mid-layer
of your application PCB).
Due to unisolated test points there are live signals accessible on the bottom side
of the module.
Please follow the following advices to prevent interference with your application
circuit:
We suggest avoiding any copper structure in the area directly underneath
the module (top-layer layout of your application PCB). If this is not possible
in your design, please provide coating on top of your PCB to prevent short
circuits to the module. All bare metal surfaces including Vias have to be
covered (e.g. adequate layout of solder resist).
It is mandatory that the area marked by the circle in the figure below is
kept clear of any conductive structures in the top layer and 0.3mm below.
Otherwise RF performance will be degraded!
Furthermore, any distortive signals (e.g. bus signals or power lines) should
not be routed underneath the module. If such signals are present in your
design, we suggest separating them by using a ground plane between
module and these signal lines.
The RVDD line should be kept as short as possible. Please consider recommenda-
tions in section 4.10.

USER MANUAL
© 2013 EnOcean | www.enocean.com TCM 300x / TCM 320x User Manual | Page 31/53
TCM 300 / TCM 300C / TCM 300U
TCM 320 / TCM 320C / TCM 320U
4.6.1 TCM 300x recommended foot pattern
Top layer

USER MANUAL
© 2013 EnOcean | www.enocean.com TCM 300x / TCM 320x User Manual | Page 32/53
TCM 300 / TCM 300C / TCM 300U
TCM 320 / TCM 320C / TCM 320U
Solder resist top layer

USER MANUAL
© 2013 EnOcean | www.enocean.com TCM 300x / TCM 320x User Manual | Page 33/53
TCM 300 / TCM 300C / TCM 300U
TCM 320 / TCM 320C / TCM 320U
Solder paste top layer
The data above is also available as EAGLE library.
In order to ensure good solder quality a solder mask thickness of 150 µm is recommended.
In case a 120 µm solder mask is used, it is recommended to enlarge the solder print. The
pads on the solder print should then be 0.1 mm larger than the pad dimensions of the
module as specified in chapter 1). (not relative to the above drawing).
Nevertheless an application and production specific test regarding the amount of soldering
paste should be performed to find optimum parameters.

USER MANUAL
© 2013 EnOcean | www.enocean.com TCM 300x / TCM 320x User Manual | Page 34/53
TCM 300 / TCM 300C / TCM 300U
TCM 320 / TCM 320C / TCM 320U
4.7 Soldering information
4.7.1 TCM 300x
TCM 300x has to be soldered according to IPC/JEDEC J-STD-020C standard.
TCM 300x shall be handled according to Moisture Sensitivity Level MSL4 which means a
floor time of 72 h. TCM 300 may be soldered only once, since one time is already consumed
at production of the module itself.
Once the dry pack bag is opened, the desired quantity of units should be removed and the
bag resealed within two hours. If the bag is left open longer than 30 minutes the desiccant
should be replaced with dry desiccant. If devices have exceeded the specified floor life time
of 72 h, they may be baked according IPC/JEDEC J-STD-033B at max. 90 °C for less than
60 h.
Devices packaged in moisture-proof packaging should be stored in ambient conditions not
exceeding temperatures of 40 °C or humidity levels of 90% r.H.
TCM 300x modules have to be soldered within 6 months after delivery!

USER MANUAL
© 2013 EnOcean | www.enocean.com TCM 300x / TCM 320x User Manual | Page 35/53
TCM 300 / TCM 300C / TCM 300U
TCM 320 / TCM 320C / TCM 320U
4.7.2 TCM 320x
The EO3000I chip inside the module is a moisture sensitive device. In case of
wave soldering the modules should be baked in advance.
4.8 Tape & Reel specification TCM 300x
Tape running direction

USER MANUAL
© 2013 EnOcean | www.enocean.com TCM 300x / TCM 320x User Manual | Page 36/53
TCM 300 / TCM 300C / TCM 300U
TCM 320 / TCM 320C / TCM 320U
4.9 Backward compatibility to TCM 220C
In Mode 0 TCM 320C is backward compatible to its predecessor TCM 220C.
There are a few minor restrictions of compatibility which are listed here:
Parameter
TCM
220C
TCM 320C
Maximum current consumption
34 mA
43 mA
Maximum output current of outputs
25 mA
2 mA
(external driver transistor may be needed)
Thickness of module
4.6 mm
5.5 mm
Maximum voltage rating at pin7
(TCM 320C: ADIO6; TCM 220C: IN_5)
6 V
3.6 V
Minimum HIGH voltage level
at input pins
1.55 V
2.0 V
Post master function for systems with
smart acknowledge
No
Yes, 15 mail boxes
Pull-down 10 kΩ required at Pin 13, 14
No
Yes
4.10 Using RVDD
If RVDD is used in an application circuit a serial ferrite bead shall be used and wire length
should be as short as possible (<3 cm). The following ferrite beads have been tested:
74279266 (0603), 74279205 (0805) from Würth. During radio transmission and reception
only small currents may be drawn (I<100 µA).
Pulsed current drawn from RVDD has to be avoided. If pulsed currents are necessary, suffi-
cient blocking has to be provided.
4.11 Voltage dips
The modules are supporting the handling of supply voltage dips (as requested e.g. by
EN60669-2-1). As soon as the supply voltage drops below the VON3 threshold level the
current consumption is reduced. TCM 300 will enter short term sleep mode (worst case 35
µA), TCM 320 will enter standby mode (1.8 mA) for 200 ms. As long as the voltage at VDD
does not drop below VOFF during that phase the module will restore the output state as set
before the voltage dip. The minimal difference between VON and VOFF is 0.35 V.
The electric charge needed to bridge this interval is:
1.8 mA x 200 ms = 360 µC for TCM 320
0.035 mA x 200 ms = 7 µC for TCM 300
This electric charge can be stored in an external capacitor. The required capacity (do not
forget to add component specific tolerances and some extra margin) calculates as:
360 µC / 0.35 V = 1028 µF for TCM 320
7 µC / 0.35 V = 20 µF for TCM 300
If other external circuitry has to be supplied the calculations have to be done accordingly,
using the total current consumption of module and external circuitry.
3 For a detailed definition of VON and VOFF please refer to „Dolphin Core Description“.

USER MANUAL
© 2013 EnOcean | www.enocean.com TCM 300x / TCM 320x User Manual | Page 37/53
TCM 300 / TCM 300C / TCM 300U
TCM 320 / TCM 320C / TCM 320U
5 AGENCY CERTIFICATIONS
The modules have been tested to fulfil the approval requirements for CE (TCM 300 / TCM
320) and FCC/IC (TCM 300C / TCM 300U / TCM 320C / TCM 320U) based on the built-in
firmware.
When developing customer specific firmware based on the API for this
module, special care must be taken not to exceed the specified regulatory
limits, e.g. the duty cycle limitations!
5.1 CE approval
The modules bear the EC conformity marking CE and conform to the R&TTE EU-directive on
radio equipment. The assembly conforms to the European and national requirements of
electromagnetic compatibility. The conformity has been proven and the according docu-
mentation has been deposited at EnOcean. The modules can be operated without notifica-
tion and free of charge in the area of the European Union, and in Switzerland. The following
provisos apply:
EnOcean RF modules must not be modified or used outside their specification
limits.
EnOcean RF modules may only be used to transfer digital or digitized data.
Analog speech and/or music are not permitted.
The final product incorporating EnOcean RF modules must itself meet the es-
sential requirement of the R&TTE Directive and a CE marking must be affixed
on the final product and on the sales packaging each. Operating instructions
containing a Declaration of Conformity has to be attached.
If the transmitter is used according to the regulations of the 868.3.3 MHz
band, a so-called “Duty Cycle” of 1% per hour must not be exceeded. Perma-
nent transmitters such as radio earphones are not allowed.
The module must be used with only the following approved antenna(s).
Type
Parameter
Value
Wire/Monopole at RF_WHIP
Maximum gain
1.0 dBi
External antenna at RF_50
Antenna type
Passive
Impedance
~50 Ohm
Maximum gain
≤ 0 dBd

USER MANUAL
© 2013 EnOcean | www.enocean.com TCM 300x / TCM 320x User Manual | Page 38/53
TCM 300 / TCM 300C / TCM 300U
TCM 320 / TCM 320C / TCM 320U
5.2 FCC (United States) Certification
TCM 300C / TCM 320C / TCM 300U / TCM 320U LIMITED MODULAR APPROVAL
This is an RF module approved for Limited Modular use operating as an intentional trans-
mitting device with respect to 47 CFR 15.231(a-c) and is limited to OEM installation. The
module is optimized to operate using small amounts of energy, and may be powered by a
battery. The module transmits short radio packets comprised of control signals, (in some
cases the control signal may be accompanied with data) such as those used with alarm sys-
tems, door openers, remote switches, and the like. The module does not support continu-
ous streaming of voice, video, or any other forms of streaming data; it sends only short
packets containing control signals and possibly data. The module is designed to comply
with, has been tested according to 15.231(a-c), and has been found to comply with each
requirement. Thus, a finished device containing the TCM 300C / TCM 320C / TCM 300U /
TCM 320U radio module can be operated in the United States without additional Part 15
FCC approval (approval(s) for unintentional radiators may be required for the OEM’s fin-
ished product), under EnOcean’s FCC ID number. This greatly simplifies and shortens the
design cycle and development costs for OEM integrators. The module can be triggered
manually or automatically, which cases are described below.
Manual Activation
The radio module can be configured to transmit a short packetized control signal if trig-
gered manually. The module can be triggered, by pressing a switch, for example.
The packet contains one (or more) control signals that is(are) intended to control some-
thing at the receiving end. The packet may also contain data. Depending on how much en-
ergy is available from the energy source, subsequent manual triggers can initiate the
transmission of additional control signals. This may be necessary if prior packet(s)
was(were) lost to fading or interference. Subsequent triggers can also be initiated as a pre-
caution if any doubt exists that the first packet didn’t arrive at the receiver. Each packet
that is transmitted, regardless of whether it was the first one or a subsequent one, will only
be transmitted if enough energy is available from the energy source.
Automatic Activation
The radio module also can be configured to transmit a short packetized control signal
if triggered automatically, by a relevant change of its inputs or in response to receiving a
signal from another transmitter, for example. Again, the packet contains a control signal
that is intended to control something at the receiving end and may also contain data. As
above, it is possible for the packet to get lost and never reach the receiver. However, if
enough energy is available from the energy source, and the module has been configured to
do so, then another packet or packets containing the control signal may be transmitted at a
later time.
The device is capable to operate as a repeater, which can receive signals from the following
list of FCC/IC approved transmitters, and retransmit the signals.
TCM 3x0C (315 MHz):
PTM 200C FCC ID:SZV-PTM200C IC:5713A-PTM200C
STM 110C FCC ID:SZV-STM110C IC:5713A-STM110C
TCM 200C FCC ID:SZV-TCM2XXC IC:5713A-TCM2XXC
TCM 220C FCC ID:SZV-TCM2XXC IC:5713A-TCM2XXC
TCM 300C FCC ID:SZV-STM300C IC:5713A-STM300C
STM 300C FCC ID:SZV-STM300C IC:5713A-STM300C
TCM 320C FCC ID:SZV-TCM320C IC:5713A-TCM320C

USER MANUAL
© 2013 EnOcean | www.enocean.com TCM 300x / TCM 320x User Manual | Page 39/53
TCM 300 / TCM 300C / TCM 300U
TCM 320 / TCM 320C / TCM 320U
TCM 300U / TCM 320U:
PTM 210U FCC ID:SZV-PTM210U IC:5713A-PTM210U
STM 300U FCC ID:SZV-STM300U IC:5713A-STM300U
TCM 300U FCC ID:SZV-STM300U IC:5713A-STM300U
TCM 310U FCC ID:SZV-STM300U IC:5713A-STM300U
TCM 320U FCC ID:SZV-TCM320U IC:5713A-TCM320U
OEM Requirements
In order to use EnOcean’s FCC ID number, the OEM must ensure that the following condi-
tions are met:
End users of products, which contain the module, must not have the ability to alter the
firmware that governs the operation of the module. The agency grant is valid only when
the module is incorporated into a final product by OEM integrators.
The end-user must not be provided with instructions to remove, adjust or install the
module.
The Original Equipment Manufacturer (OEM) must ensure that FCC labeling require-
ments are met. This includes a clearly visible label on the outside of the final product.
Attaching a label to a removable portion of the final product, such as a battery cover, is
not permitted. The label must include the following text:
TCM 300C:
Contains FCC ID: SZV-STM300C
The enclosed device complies with Part 15 of the FCC Rules. Operation is subject to
the following two conditions: (i.) this device may not cause harmful interference and
(ii.) this device must accept any interference received, including interference that
may cause undesired operation.
TCM 320C:
Contains FCC ID: SZV-TCM320C
The enclosed device complies with Part 15 of the FCC Rules. Operation is subject to
the following two conditions: (i.) this device may not cause harmful interference and
(ii.) this device must accept any interference received, including interference that
may cause undesired operation.
TCM 300U:
Contains FCC ID: SZV-STM300U
The enclosed device complies with Part 15 of the FCC Rules. Operation is subject to
the following two conditions: (i.) this device may not cause harmful interference and
(ii.) this device must accept any interference received, including interference that
may cause undesired operation.

USER MANUAL
© 2013 EnOcean | www.enocean.com TCM 300x / TCM 320x User Manual | Page 40/53
TCM 300 / TCM 300C / TCM 300U
TCM 320 / TCM 320C / TCM 320U
TCM 320U:
Contains FCC ID: SZV-TCM320U
The enclosed device complies with Part 15 of the FCC Rules. Operation is subject to
the following two conditions: (i.) this device may not cause harmful interference and
(ii.) this device must accept any interference received, including interference that
may cause undesired operation.
When the device is so small or for such use that it is not practicable to place the state-
ment above on it, the information required by this paragraph shall be placed in a promi-
nent location in the instruction manual or pamphlet supplied to the user or, alternative-
ly, shall be placed on the container in which the device is marketed. However, the FCC
identifier or the unique identifier, as appropriate, must be displayed on the device.
The user manual for the end product must also contain the text given above.
Changes or modifications not expressly approved by EnOcean could void the user's au-
thority to operate the equipment.
The module must be used with only the following approved antenna(s).
The OEM must ensure that timing requirements according to 47 CFR 15.231(a-c) are
met.
The OEM must sign the OEM Limited Modular Approval Agreement with EnOcean
Part Number
Type
Gain
N.A.
Wire/Monopole
1.0 dBi
N.A.
Helical (for TCM300U only)
1.0 dBi

USER MANUAL
© 2013 EnOcean | www.enocean.com TCM 300x / TCM 320x User Manual | Page 41/53
TCM 300 / TCM 300C / TCM 300U
TCM 320 / TCM 320C / TCM 320U
5.3 IC (Industry Canada) Certification
In order to use EnOcean’s IC number, the OEM must ensure that the following conditions
are met:
Labeling requirements for Industry Canada are similar to those required by the FCC.
The Original Equipment Manufacturer (OEM) must ensure that IC labeling requirements
are met. A clearly visible label on the outside of a non-removable part of the final prod-
uct must include the following text:
TCM 300C:
Contains IC: 5713A-STM300C
Contient le module d'émission IC: 5713A-STM300C
TCM 320C:
Contains IC: 5713A-TCM320C
Contient le module d'émission IC: 5713A-TCM320C
TCM 300U:
Contains IC: 5713A-STM300U
Contient le module d'émission IC: 5713A-STM300U
TCM 320U:
Contains IC: 5713A-TCM300U
Contient le module d'émission IC: 5713A-TCM300U
The OEM must sign the OEM Limited Modular Approval Agreement with EnOcean
Pour utiliser le numéro IC EnOcean, le OEM doit s'assurer que les conditions suivantes sont
remplies:
Les exigences d'étiquetage pour Industrie Canada sont similaires à ceux exigés par la
FCC. Le fabricant d'équipement d'origine (OEM) doit s'assurer que les exigences en
matière d'étiquetage IC sont réunies. Une étiquette clairement visible à l'extérieur d'une
partie non amovible du produit final doit contenir le texte suivant:
TCM 300C:
Contains IC: 5713A-STM300C
Contient le module d'émission IC: 5713A-STM300C
TCM 320C:
Contains IC: 5713A-TCM320C
Contient le module d'émission IC: 5713A-TCM320C
TCM 300U:
Contains IC: 5713A-STM300U
Contient le module d'émission IC: 5713A-STM300U
TCM 320U:
Contains IC: 5713A-TCM300U
Contient le module d'émission IC: 5713A-TCM300U
L'OEM doit signer l'accord OEM limitée Approbation modulaire avec EnOcean

USER MANUAL
© 2013 EnOcean | www.enocean.com TCM 300x / TCM 320x User Manual | Page 42/53
TCM 300 / TCM 300C / TCM 300U
TCM 320 / TCM 320C / TCM 320U
5.4 FCC Regulatory Statements
This device complies with part 15 of the FCC rules. Operation is subject to the following two
conditions: (1) This device may not cause harmful interference, and (2) this device must accept
any interference received, including interference that may cause undesired operation. Any
changes or modifications not expressly approved by manufacturer could void the user’s authori-
ty to operate the equipment.
IMPORTANT! Any changes or modifications not expressly approved by the party responsible
for compliance could void the user’s authority to operate this equipment.
NOTE: This equipment has been tested and found to comply with the limits for a Class B digital
device, pursuant to part 15 of the FCC Rules. These limits are designed to provide reasonable
protection against harmful interference in a residential installation. This equipment generates,
uses and can radiate radio frequency energy and, if not installed and used in accordance with the
instructions, may cause harmful interference to radio communications. However, there is no
guarantee that interference will not occur in a particular installation. If this equipment does
cause harmful interference to radio or television reception, which can be determined by turning
the equipment off and on, the user is encouraged to try to correct the interference by one or more
of the following measures:
—Reorient or relocate the receiving antenna.
—Increase the separation between the equipment and receiver.
—Connect the equipment into an outlet on a circuit different from that to which the receiver
is connected.
—Consult the dealer or an experienced radio/ TV technician for help.

USER MANUAL
© 2013 EnOcean | www.enocean.com TCM 300x / TCM 320x User Manual | Page 43/53
TCM 300 / TCM 300C / TCM 300U
TCM 320 / TCM 320C / TCM 320U
5.5 Industry Canada Regulatory Statements
This device complies with Industry Canada licence-exempt RSS standard(s). Operation is sub-
ject to the following two conditions: (1) this device may not cause interference, and (2) this de-
vice must accept any interference, including interference that may cause undesired operation of
the device.
Le présent appareil est conforme aux CNR d’Industrie Canada applicables aux appareils radio
exempts de licence. L’exploitation est autorisée aux deux conditions suivantes: (1) l’appareil ne
doit pas produire de brouillage, et (2) l’utilisateur de l’appareil doit accepter tout brouillage
radioélectrique subi, meme si le brouillage est susceptible d’en compromettre le fonctionnement.
IMPORTANT! Tous les changements ou modifications pas expressément approuvés par la
partie responsable de la conformité ont pu vider l’autorité de l’utilisateur pour actioner cet
équipment.
This Class B digital apparatus complies with Canadian ICES-003.
Cet appareil numérique de la classe B est conforme à la norme NMB-003 du Canada

USER MANUAL
© 2013 EnOcean | www.enocean.com TCM 300x / TCM 320x User Manual | Page 44/53
TCM 300 / TCM 300C / TCM 300U
TCM 320 / TCM 320C / TCM 320U
A Serial Interface
TCM 300 provides operating modes for unidirectional (mode 0) and bidirectional (mode 1)
communication. In mode 0 all received radio messages are provided at the serial interface
as described in annex A.1. In mode 1 it is also possible to feed telegrams via the serial in-
terface into the module which will subsequently be transmitted. In addition control com-
mands can be sent and control messages can be received. This is described in annex A.2
and A.3.
A.1 EnOcean serial protocol
When the module is in “Serial Interface” mode, it transfers out data blocks of information
from the received RF telegrams. As long as no transmitter has been learned, all received
EnOcean radio telegrams are transferred. As soon as at least one transmitter has been
learned only telegrams of transmitters learned by the receiver are transmitted via the serial
interface. Telegrams can be shown on the PC using EnOcean WinEtel or DolphinView soft-
ware.
A.1.1 Message format (ESP2)
The following figure shows the message format. A block is composed of 2 synchronization
bytes, 1 byte for the header and N bytes for the message data.
Message format for asynchronous serial communication
A.1.2 Byte signals and bit order
9600 bps; 8 data bits, no parity bit, one start bit, one stop bit
Line idle is binary 1 (standard)
Each character has one start bit (binary 0), 8 information bits (least significant bit first)
and one stop bit (binary 1)
Signals and bit order sending a byte
TxD
Sync
Header
Byte0
ByteN-1
...
Sync
D0
STA
D1
D2
D3
D4
D5
D6
D7
STOP
TxD
HIGH
LOW
Bit
Time
Bit
Time
Bit
Time
Byte
Time

USER MANUAL
© 2013 EnOcean | www.enocean.com TCM 300x / TCM 320x User Manual | Page 45/53
TCM 300 / TCM 300C / TCM 300U
TCM 320 / TCM 320C / TCM 320U
There are 4 types of ESP2 telegrams:
RRT - Receive Radio telegrams (from AIR to Serial)
TRT - Transmit Radio telegrams (from serial to air)
RCT – Receive Command Telegram (between module and host only serial)
TCT – Transmit Command Telegram (between module and host only serial)
A.1.3 Description of serial data structure
Bit 7 Bit 0
SYNC_BYTE1 (A5 Hex)
SYNC_BYTE0 (5A Hex)
H_SEQ
LENGTH
ORG
DATA_BYTE3
DATA_BYTE2
DATA_BYTE1
DATA_BYTE0
ID_BYTE3
ID_BYTE2
ID_BYTE1
ID_BYTE0
STATUS
CHECKSUM
SYNC_BYTE 0..1 (8 bit each) Synchronization Bytes
H_SEQ (3 bit) Header identification (see table below)
LENGTH (5 bit) Number of octets following the header octet (11 dec)
ORG (8 bit) Type of telegram (see detailed description below)
DATA_BYTE 0..3 (8 bit each) Data bytes 0..3 (see detailed description below)
ID_BYTE 0..3 (8 bit each) 32-bit transmitter ID4
For transmission of unique ID enter 0x0000_0000
STATUS (8 bit) Status field (see detailed description below)
CHECKSUM (8 bit) Checksum (Last LSB from addition of all octets except
sync bytes and checksum)
H_SEQ
Meaning
Mode
0b000
Unknown transmitter ID received
(serial telegram only if no ID has been learned so far!)
For RPS also:
o Known transmitter ID and unknown rocker
o U-message from known transmitter ID received
For HRC also:
o Known transmitter ID and unknown rocker
o Scene switch command (last three bits of ID 0b111) from
known transmitter ID (only first 29 bits are compared!)
Operating
Mode
0b001
For 1BS and 4BS: Known transmitter ID received
For RPS: Known transmitter ID and at least 1 known rocker (1
or 2 rockers operated)
For HRC: Known transmitter ID and known rocker
Operating
Mode
0b010
New transmitter learned (If a switch telegram is received (RPS or HRC),
the rocker code (RID) is stored together with the ID.)
Learn Mode
4 This module allows using a unique ID or one of 128 IDs starting from BaseID. See A.3.1.

USER MANUAL
© 2013 EnOcean | www.enocean.com TCM 300x / TCM 320x User Manual | Page 46/53
TCM 300 / TCM 300C / TCM 300U
TCM 320 / TCM 320C / TCM 320U
0b110
Transmitter just deleted (If a switch telegram is received (RPS or HRC),
the rocker code (RID) and module ID are checked. The entry is only
deleted if module ID and rocker are known.)
Learn Mode
0b011
Transmit radio Telegram (TRT) Host -> Module -> Air
Operating
Mode
0b100
Receive Command Telegram (RCT) Module -> Host
Operating
Mode
0b101
Transmit Command Telegram (TCT) Host -> Module
Operating
Mode
A.2 Radio transmission/reception commands
The following commands are used to transmit and receive radio telegrams.
Command
Response (RCT)
TX_TELEGRAM (TRT)
OK, ERR, ERR_TX_IDRANGE
RX_TELEGRAM (RRT)
The TX_TELEGRAM and RX_TELEGRAM telegrams have the same structure. The only differ-
ence is in the H_SEQ code, TX_TELEGRAM is identified by “3”. RX_Telegrams are identified
by the H_SEQ codes according to table in A.1.3.
Before sending commands via the serial interface please always wait for the re-
sponse to the previous command from the module. The reaction time is below
5ms. Be aware that an already received radio telegram might (concurrently to the
command) be sent through the serial port before the command gets processed.
A.2.1 Detailed description of ORG, DATA_BYTE, and STATUS fields
Interoperability of different end-products based on EnOcean technology is an important
success factor for establishment of the technology on the market. For this reason EnOcean
Alliance pursues standardization of communication profiles, ensuring that sensors from one
manufacturer can communicate with receiver gateways of another, for example.
End-users thus have the entire product portfolio - enabled by EnOcean - at their disposal.
And product manufacturers can focus on their own special field.
Profiles of existing and upcoming types of equipment are defined in the following download
document. Refer back to EnOcean Alliance about adding other profiles.
http://www.enocean-alliance.org/en/enocean_standard/

USER MANUAL
© 2013 EnOcean | www.enocean.com TCM 300x / TCM 320x User Manual | Page 47/53
TCM 300 / TCM 300C / TCM 300U
TCM 320 / TCM 320C / TCM 320U
A.3 Command telegrams and messages
Before sending the next command via serial interface please always wait for the
response to the previous command from the module. The reaction time is below
5ms. Be aware that an already received radio telegram might (concurrently to the
command) be sent through the serial port before the command gets processed.
A.3.1 ID Range commands
Every TCM 300 supports a unique 32 bit ID and in addition a range of 128 IDs starting at
an BaseID address. At production, every TCM 300 is programmed with a unique ID and a
BaseID address. The BaseID number can be read via the serial interface. In order to allow a
replacement of one unit with another unit (without having to go through the learning pro-
cedure with every receiver), the ID range can be changed via the serial interface.
The allowed ID range is from 0xFF80_0000 to 0xFFFF_FFFE.
32 0
BaseID
0xFFFF_FFFF cannot be used. This address is reserved as broadcast ID.
In order to prevent misuse, this feature can only be used 10 times!
Please note: The unique ID cannot be changed.
Command (TCT)
Response (RCT)
SET_BASEID
OK, ERR, ERR_IDRANGE
RD_BASEID
INF_BASEID
A.3.2 Receiver sensitivity commands
The receiver sensitivity can be changed by the following commands. In LOW sensitivity
mode, only transmitters in the vicinity of the module are received.
Command (TCT)
Response (RCT)
SET_RX_SENSITIVITY
OK
RD_RX_SENSITIVITY
INF_RX_SENSITIVITY
A.3.3 Reset command
Command (TCT)
Response (RCT)
RESET
A.3.4 SW Version
Command (TCT)
Response (RCT)
RD_SW_VER
INF_SW_VER
25 most significant bits
0
0
0
0
0
0
0

USER MANUAL
© 2013 EnOcean | www.enocean.com TCM 300x / TCM 320x User Manual | Page 48/53
TCM 300 / TCM 300C / TCM 300U
TCM 320 / TCM 320C / TCM 320U
A.3.5 Error messages
Error Messages (RCT)
ERR
ERR_TX_IDRANGE
ERR_IDRANGE
ERR_SYNTAX

USER MANUAL
© 2013 EnOcean | www.enocean.com TCM 300x / TCM 320x User Manual | Page 49/53
TCM 300 / TCM 300C / TCM 300U
TCM 320 / TCM 320C / TCM 320U
A.3.6 Command Encoding
OK
Bit 7 Bit 0
Standard message used to confirm that an action was performed
correctly by the TCM.
In case of full duplex communication it may happen that serial
telegrams get corrupted and lost. Therefore it is recommended to
check for “OK” where applicable.
ERR
Bit 7 Bit 0
Standard error message response if after a TCT command the
operation could not be carried out successfully by the TCM.
SET_BASEID
Bit 7 Bit 0
With this command the user can rewrite its ID range base num-
ber. The most significant ID byte is BaseIDByte3. The informa-
tion of the 25 most significant bits is stored in FLASH.
The allowed ID range is from 0xFF80_0000 to 0xFFFF_FFFE.
32 0
BaseID
This command can only be used a maximum number of 10 times.
After successfully ID range reprogramming, the TCM answers
with an OK telegram. If reprogramming was not successful, the
TCM answers sending an ERR telegram if the maximum number
of 10 times is exceeded or an ERR_IDRANGE telegram if the
BaseID is not within the allowed range.
0xA5
0x5A
0x8B
0x58
X
X
X
X
X
X
X
X
X
ChkSum
0xA5
0x5A
0x8B
0x19
X
X
X
X
X
X
X
X
X
ChkSum
0xA5
0x5A
0xAB
0x18
BaseIDByte3
BaseIDByte2
BaseIDByte1
BaseIDByte0
X
X
X
X
X
ChkSum
25 most significant bits
0
0
0
0
0
0
0

USER MANUAL
© 2013 EnOcean | www.enocean.com TCM 300x / TCM 320x User Manual | Page 50/53
TCM 300 / TCM 300C / TCM 300U
TCM 320 / TCM 320C / TCM 320U
RD_BASEID
Bit 7 Bit 0
When this command is sent to the TCM, the base ID range num-
ber is retrieved though an INF_BASEID telegram.
INF_BASEID
Bit 7 Bit 0
This message informs the user about the ID range base number.
BaseIDByte3 is the most significant byte.
SET_RX_SENSITIVITY
Bit 7 Bit 0
This command is used to set the TCM radio sensitivity.
In LOW radio sensitivity, signals from remote transmitters are
not detected by the TCM receiver. This feature is useful when
only information from transmitters in the vicinity should be proc-
essed. An OK confirmation telegram is generated after TCM sen-
sitivity has been changed.
Sensitivity=0x00 Low sensitivity
Sensitivity=0x01 High sensitivity
0xA5
0x5A
0xAB
0x58
X
X
X
X
X
X
X
X
X
ChkSum
0xA5
0x5A
0x8B
0x98
BaseIDByte3
BaseIDByte2
BaseIDByte1
BaseIDByte0
X
X
X
X
X
ChkSum
0xA5
0x5A
0xAB
0x08
Sensitivity
X
X
X
X
X
X
X
X
ChkSum

USER MANUAL
© 2013 EnOcean | www.enocean.com TCM 300x / TCM 320x User Manual | Page 51/53
TCM 300 / TCM 300C / TCM 300U
TCM 320 / TCM 320C / TCM 320U
RD_RX_SENSITIVITY
Bit 7 Bit 0
This command is sent to the TCM to retrieve the current radio
sensitivity mode (HIGH or LOW).
This information is sent via a INF_RX_SENSITIVITY command.
INF_RX_SENSITIVITY
Bit 7 Bit 0
This message informs the user about the current TCM radio sen-
sitivity.
Sensitivity= 0x00 Low sensitivity
Sensitivity= 0x01 High sensitivity
RESET
Bit 7 Bit 0
Performs a reset of the TCM microcontroller.
0xA5
0x5A
0xAB
0x48
X
X
X
X
X
X
X
X
X
ChkSum
0xA5
0x5A
0x8B
0x88
Sensitivity
X
X
X
X
X
X
X
X
ChkSum
0xA5
0x5A
0xAB
0x0A
X
X
X
X
X
X
X
X
X
ChkSum

USER MANUAL
© 2013 EnOcean | www.enocean.com TCM 300x / TCM 320x User Manual | Page 52/53
TCM 300 / TCM 300C / TCM 300U
TCM 320 / TCM 320C / TCM 320U
RD_SW_VER
Bit 7 Bit 0
This command requests the TCM to send its current software
version number.
This information is provided via an INF_SW_VER telegram by the
TCM.
INF_SW_VER
Bit 7 Bit 0
Informs the user about the current software version of the TCM.
Example: Version 1.0.1.16
TCM SW Version Pos.1 = 1
TCM SW Version Pos.2 = 0
TCM SW Version Pos.3 = 1
TCM SW Version Pos.4 =16
ERR_SYNTAX
Bit 7 Bit 0
This telegram is sent automatically through the serial port after
the TCM has detected a syntax error in a TCT telegram.
Errors can occur in the H_SEQ, LENGTH, ORG or CHKSUM
fields/bytes.
Field code:
H_SEQ=0x08 ORG=0x0B
LENGTH=0x09 CHKSUM=0x0A
0xA5
0x5A
0xAB
0x4B
X
X
X
X
X
X
X
X
X
ChkSum
0xA5
0x5A
0x8B
0x8C
TCM SW Version Pos.1
TCM SW Version Pos.2
TCM SW Version Pos.3
TCM SW Version Pos.4
API Version Pos.1
API Version Pos.2
API Version Pos.3
API Version Pos.4
X
ChkSum
0xA5
0x5A
0x8B
Field
X
X
X
X
X
X
X
X
X
ChkSum

USER MANUAL
© 2013 EnOcean | www.enocean.com TCM 300x / TCM 320x User Manual | Page 53/53
TCM 300 / TCM 300C / TCM 300U
TCM 320 / TCM 320C / TCM 320U
ERR_TX_IDRANGE
Bit 7 Bit 0
When a radio telegram intended to be sent has an ID number
outside the ID range, this error message is generated. The radio
telegram is not delivered.
ERR_ IDRANGE
Bit 7 Bit 0
This message is generated when the user tries to change the ID
range base using the SET_BASEID command to a value outside
the allowed range from 0xFF80_0000 to 0xFFFF_FFFE.
0xA5
0x5A
0x8B
0x22
X
X
X
X
X
X
X
X
X
ChkSum
0xA5
0x5A
0x8B
0x1A
X
X
X
X
X
X
X
X
X
ChkSum