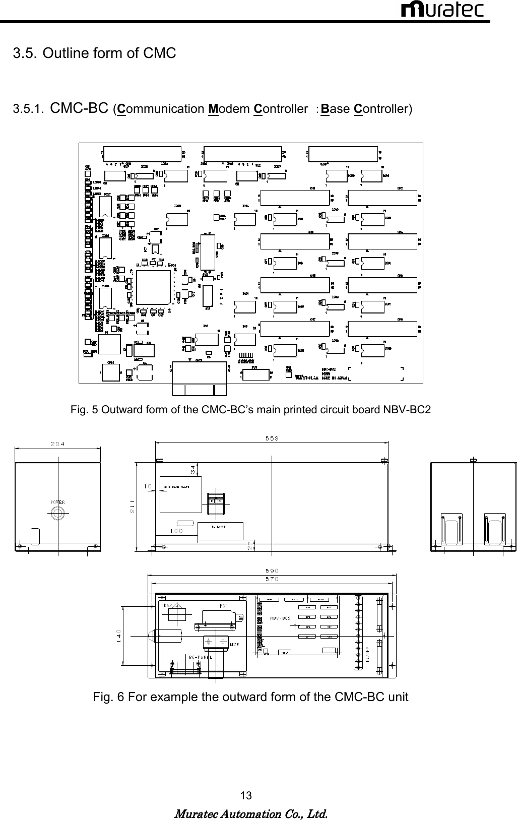
Muratec Automation VEHICLECMC CMC User Manual
Muratec Automation Co.,LTD CMC Users Manual
UserManual.wiki
>
Muratec Automation
>
VEHICLECMC User Manual
Users Manual
Navigation menu
Upload a User Manual
Namespaces
Wiki Guide
HTML
PDF
Info
Views
User Manual
Discussion / Help
Navigation