Napoleon Fireplaces Indoor Fireplace Users Manual
FirePlace to the manual 9199de7d-5a29-4218-957b-1716830c7c48
2015-02-05
: Napoleon-Fireplaces Napoleon-Fireplaces-Indoor-Fireplace-Fireplace-Users-Manual-493360 napoleon-fireplaces-indoor-fireplace-fireplace-users-manual-493360 napoleon-fireplaces pdf
Open the PDF directly: View PDF
.
Page Count: 22

1
W415-0619 / B / 03.03.08
INSTALLATION AND
OPERATION INSTRUCTIONS
Wolf Steel Ltd., 24 Napoleon Rd., Barrie, ON L4M 4Y8 Canada • (705)721-1212 • fax(705)722-6031
www.napoleonreplaces.com • ask@napoleon.on.ca
CERTIFIED UNDER CANADIAN AND AMERICAN NATIONAL STANDARDS: CSA 2.22, ANSI Z21.50 FOR VENTED GAS FIREPLACE.
GT8N
NATURAL GAS
GT8P
PROPANE
- Do not store or use gasoline or other flammable
vapors and liquids in the vicinity of this or any other
appliance.
- WHAT TO DO IF YOU SMELL GAS:
● Do not try to light any appliance.
● Do not touch any electrical switch; do not use
any phone in your building.
● Immediately call your gas supplier from a
neighbour’s phone. Follow the gas supplier’s
instructions.
● If you cannot reach your gas supplier, call the
fire department.
- Installation and service must be performed by a
qualified installer, service agency or the supplier.
SAFETY INFORMATION
Certified for Canadian and United States using ANSI/CSA Methods.
If the information in these instructions are not
followed exactly, a fire or explosion may result
causing property damage, personal injury or loss
of life.
!
WARNING
INSTALLER: LEAVE THIS MANUAL WITH THE APPLIANCE.
CONSUMER: RETAIN THIS MANUAL FOR FUTURE REFERENCE.
$10.00

2
W415-0619 / B / 03.03.08
PG 2-5 INTRODUCTION
Warranty
General Instructions
General Information
Care of Glass and Plated Parts
Dimensions
5-10 VENTING
Venting Lengths and Air Terminal Locations
Vent Installations
Typical Vent Installations - Horizontal Termination
Typical Vent Installations - Vertical Termination
Minimum Air Terminal Location Clearances
Venting Application Flow Chart
10-15 INSTALLATION/FRAMING
Wall and Ceiling Protection
Vertical Installation
Using Flexible Vent Components
Horizontal Air Terminal Installation
Vertical Air Terminal Installation
Fireplace Vent Connection
Mobile Home Installation
Gas Installation
Electrical Connection
Stand-off Assembly
Nailing Tab Installation
Framing
Clearance to Combustibles
• Do not burn wood or other materials in this fi replace.
• Adults and especially children should be alerted to the hazards of high surface temperatures and should stay away to avoid burns or clothing ignition.
Supervise young children when they are in the same room as the fi replace.
• Clothing or other fl ammable material should not be placed on or near the fi replace.
• Due to high temperatures, the fi replace should be located out of traffi c and away from furniture and draperies.
• Ensure you have incorporated adequate safety measure to protect infants/toddlers from touching hot surfaces.
• Even after the fi replace is out, the glass and/or screen will remain hot for an extended period of time.
• Check with your local hearth specialty dealer for safety screens and hearth guards to protect children from hot surfaces. These screens and guards
must be fastened to the fl oor.
• Any safety screen or guard removed for servicing must be replaced prior to operating the fi replace.
• It is imperative that the control compartment and burner in the fi replace and venting system are kept clean. The fi replace and its venting system
should be inspected before use and at least annually by a qualifi ed service person. More frequent cleaning may be required due to excessive lint
from carpeting, bedding material, etc. The fi replace area must be kept clear and free from combustible materials, gasoline and other fl ammable
vapours and liquids.
• Under no circumstances should this fi replace be modifi ed.
• This fi replace must not be connected to a chimney fl ue pipe serving a separate solid fuel burning appliance.
• Do not use this fi replace if any part has been under water. Immediately call a qualifi ed service technician to inspect the fi replace and to replace any
part of the control system and any gas control which has been under water.
• Do not operate the fi replace with the glass door removed, cracked or broken. Replacement of the glass should be done by a licensed or qualifi ed
service person.
• Do not strike or slam shut the fi replace glass door.
• The glass door must be kept closed while the fi replace is operating to prevent exhaust fumes containing carbon monoxide, from entering into the
home. Temperatures of the exhaust escaping through this opening can also cause the surrounding combustible materials to overheat and catch fi re.
• Only doors / optional fronts certifi ed with the unit are to be installed on the appliance.
TABLE of CONTENTS
NOTE: Changes, other than editorial, are denoted by a line in the margin.
This appliance may be installed as an OEM installation in a manufactured home (USA
only) or mobile home and must be installed in accordance with the manufacturers
instructions and the Manufactured Home Construction and Safety Standard, Title 24
CFR, Part 3280 in the United States or in the Mobile Home Standard, CAN/CSA Z240
MH, Series in Canada.
This appliance is only for use with the type of gas indicated on the rating plate. This
appliance is not convertible for use with other gases, unless a certifi ed kit is used.
This appliance may be installed in an aftermarket, permanently located, manufactured
home (USA only) or mobile home, where not prohibited by local codes.
This appliance is only for use with the type of gas indicated on the rating plate. This
appliance is not convertible for use with other gases, unless a certifi ed kit is used.
15-17 FINISHING
Door Removal
Glass Removal
Frame/Front Installation
Accent Glass Installation
LK8 Light Installation (Optional)
18 OPERATING INSTRUCTIONS
19 MAINTENANCE
19 ADJUSTMENTS
Gas Pressure Adjustment
Venturi Adjustment
Flame Characteristics
20 REPLACEMENTS
Replacement Parts
Flexible Vent Kits
Terminal Kits
Accessories
!
WARNING

3
W415-0619 / B / 03.03.08
®
®
®
®
®
®
®®
®
®
®
®®
®®
®
®
e following materials and workmanship in your new NAPOLEON® gas fireplace are waanted against defects
for as long as you own the fireplace. is covers: combustion chamber, heat changer, stainle steel burner, gold
plated parts against tarnishing, porcelainized enameled components and aluminum rusion trims.
Electrical (110V and millivolt) components and wearable parts such as blowers, gas valves, thermal switch,
switches, wiring, reme controls, ignitor, gasketing, and pil aembly are covered and NAPOLEON® will
provide replacement parts ee charge during the first year the limited waanty.
Labour related to waanty repair is covered ee charge during the first year. Repair work, however, requires
the prior approval an authorized company cial. Labour costs to the account NAPOLEON® are based on a
predetermined rate schedule and any repair work must be done through an authorized NAPOLEON® dealer.

4
W415-0619 / B / 03.03.08
THIS GAS FIREPLACE SHOULD BE INSTALLED AND SERVICED BY A QUALIFIED INSTALLER to conform with local
codes. Installation practices vary from region to region and it is important to know the specifi cs that apply to your area, for
example: in Massachusetts State:
• The fi replace damper must be removed or welded in the open position prior to installation of a fi replace insert or gas log.
• A carbon monoxide detector is required in all rooms containing gas fi red appliances.
• The appliance off valve must be a “T” handle gas cock.
• The fl exible connector must not be longer than 36 inches.
• The appliance is not approved for installation in a bedroom or bathroom unless the unit is a direct vent sealed combustion product.
• WARNING: This product must be installed by a licensed plumber or gas fi tter when installed in the Commonwealth of Massachusetts.
In absence of local codes, install to the current CAN/CGA -B149 Installation Code in Canada or to the National Fuel Gas
Code, ANSI Z223.1, and NFPA 54 in the United States. Suitable for mobile home installation if installed in accordance with
the current standard CAN/CSA Z240MH Series, for gas equipped mobile homes, in Canada or ANSI Z223.1 and NFPA 54
in the United States.
The fi replace and its individual shutoff valve must be disconnected from
the gas supply piping system during any pressure testing of that system
at test pressures in excess of 1/2 psig (3.5 kPa). The fi replace must
be isolated from the gas supply piping system by closing its individual
manual shutoff valve during any pressure testing of the gas supply piping
system at test pressures equal to or less than 1/2 psig (3.5 kPa).
When the fi replace is installed directly on carpeting, vinyl tile or other
combustible material other than wood fl ooring, the fi replace shall be
installed on a metal or wood panel extending the full width and depth.
GENERAL INSTRUCTIONS
GENERAL INFORMATION
FOR YOUR SATISFACTION, THIS FIREPLACE HAS BEEN TEST-FIRED TO ASSURE ITS OPERATION AND QUALITY!
* When the fi replace is installed at elevations above 4,500ft, and in the absence of specifi c recommendations from
the local authority having jurisdiction, the certifi ed high altitude input rating shall be reduced at the rate of 4% for
each additional 1,000ft.
This fi replace is approved for bathroom, bedroom and bed-sitting room installations and is suitable for mobile home
installation.
The natural gas model can only be installed in a mobile home that is permanently positioned on its site and fueled with
natural gas.
This fi replace may be installed in an aftermarket permanently located, manufactured (mobile) home, where not
prohibited by local codes.
This fi replace is only for use with the type of gas indicated on the rating plate. This fi replace is not convertible for
use with other gases, unless a certifi ed kit is used.
Expansion / contraction noises during heating up and cooling down cycles are normal and are to be expected.
Purge all gas lines with the glass door of the fi replace open. Assure that a continuous gas fl ow is at the burner
before closing the door.
Objects placed in front of the fi replace must be kept a minimum of 48” from the front face of the unit.
Use only Napoleon® accessories designed for and listed with the model.
RATES AND EFFICIENCIES
NATURAL GAS PROPANE GAS
Altitude 0 - 4,500* 0 - 4,500*
Maximum Input 6,000 6,000
Maximum Output 4,680 4,680
Effi ciency 78% 78%
Minimum Inlet Gas Suppy Pressure 4.5” Water Column 11” Water Column
Maximum Inlet Gas Supply Pressure 7” Water Column 13” Water Column
Manifold Pressure Under Flow Conditions 3.5” Water Column 10” Water Column

5
W415-0619 / B / 03.03.08
3/4
43
GAS LINE
ACCESS
ELECTRICAL
ACCESS
FIGURES 1a-c
The glass is 3/16” ceramic
glass, available from your
Napoleon® / Wolf Steel Ltd.
dealer. Clean the glass after
the fi rst 10 hours of operation
with a recommended gas
fi replace glass cleaner. Thereafter clean as required. DO NOT CLEAN GLASS
WHEN HOT! Do not use abrasive cleaners to clean plated parts. Buff lightly
with a clean dry cloth. If the glass is not kept clean permanent discolouration
and / or blemishes may result.
CARE OF GLASS AND PLATED PARTS
VENTING
VENTING LENGTHS AND AIR TERMINAL LOCATIONS
1/4
3/4
37
2
3" DIA.
5" DIA.
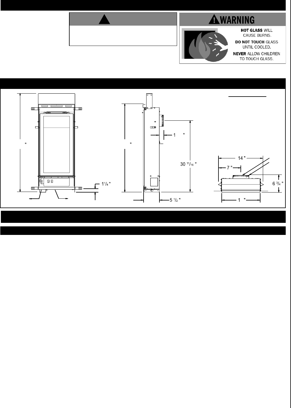
DIMENSIONS
The vent connection to the fi replace can be viewed by removing the baffl e from the top, inside of the fi rebox.
Use only Wolf Steel venting components. Minimum and maximum vent lengths, for both horizontal and vertical installations,
and air terminal locations for either system are set out in this manual and must be adhered to. Use only Wolf Steel Ltd.
fl exible vent components with the Wolf Steel Ltd. GD179 termination kit. This fi replace uses a 3” exhaust and a 5”
instake diameter coaxil vent system.
All outer pipe joints of these venting systems must be sealed using Red RTV and/or Mill Pac high temperature sealant (not
supplied) hereafter referred to as high temperature sealant W573-0002 (Red RTV) and the high temperature sealant W573-
0007 (Mill Pac).
For vent systems that provide seals on the inner exhaust fl ue, only the outer air intake joints must be sealed using a red high
temperature silicone (RTV). This same sealant may be used on both the inner exhaust and outer intake vent pipe joints of all
other approved vent systems except for the exhaust vent pipe connection to the fi replace fl ue collar which must be sealed
using the black high temperature sealant Mill Pac.
With fl exible venting, in conjunction with the GD178 wall terminal kit, use either the 5 foot vent kit GDT5 or the 10 foot vent
kit GDT10. These kits allow for extended horizontal venting of the fi replace.
When using approved Wolf Steel venting components, use only the following termination kits: WALL TERMINAL KIT GD178,
or 1/12 TO 7/12 PITCH ROOF TERMINAL KIT GDT110, 8/12 TO 12/12 ROOF TERMINAL KIT GDT111, FLAT ROOF
TERMINAL KIT GDT112.
Do not substitute materials. Use care when
handling glass components do not stike, or
slam shut. Do not operate with broken glass.
!
WARNING
Rigid and fl exible venting systems must not be combined. Wolf Steel and Simpson Dura-Vent venting systems must not
be combined.
Venting terminals shall not be recessed into a wall or siding.
For optimum fl ame appearance and fi replace performance, keep the vent length and number of elbows to a minimum.
The air terminal must remain unobstructed at all times. Examine the air terminal at least once a year to verify that it is
unobstructed and undamaged.
Provide adequate ventilation and combustion air. Provide adequate accessibility clearance for servicing and operating the fi replace.
Never obstruct the front opening of the fi replace.

6
W415-0619 / B / 03.03.08
For safe and proper operation of the fi replace follow the venting instruction exactly.
Deviation from the minimum or the maximum vertical vent length can create diffi culty in burner start-up and/or carboning.
Under extreme vent confi gurations, allow several minutes (5-15) for the fl ame to stabilize after ignition.
Vent lengths that pass through unheated spaces (attics, garages, crawl spaces) should be insulated with the insulation
wrapped in a protective sleeve to minimize condensation.
Provide a means for visually checking the vent connection to the fi replace after the fi replace is installed.
Use fi restop spacer (W500-0358) when penetrating interior walls and ceilings.
VENT INSTALLATIONS
HORIZONTAL VENT SECTIONS
A minimum clearance of 1" at the bottom, sides and top of the vent pipe in all horizontal runs to combustibles is
required. Use fi restop spacer W500-0358 (supplied).
VERTICAL VENT SECTIONS
A minimum of 1" all around the vent pipe on all vertical runs to combustibles is required. Use fi restop spacer
W500-0358 (not supplied).

7
W415-0619 / B / 03.03.08
TYPICAL VENT INSTALLATIONS - HORIZONTAL TERMINATION
MIN MAX FIGURE
Allowable 3” vent connections (excluding fi replace and air terminal connections) N/A 1
Rise per foot (recommended) 1/4” N/A
Rise per foot (allowable) 0” N/A
Horizontal run (If vent run does not include vertical rise) 4” 24” 2a
Horizontal run (if vent run includes vertical rise) 4” 7 FT 2b
Vertical run
(* Immediately off the fi replace, if 7 FT maximum horizontal run is required) 18”* 7 FT 2b, 2c
FIGURE 2a
4” MIN.
24” MAX.
8”
18”
MAXIMUM
HORIZONTAL
7 FT MAX.
4”
MIN.
8”
4”
MIN.
9 FT
MAX.
MAXIMUM
VERITICAL
FIGURE 2b FIGURE 2c
01 2 3 4 5 6 7 8 9 10
10
9
8
7
6
5
4
3
2
1
1.5
HORIZONTAL VENT RUN PLUS OFFSET IN FEET (HT)
REQUIRED
VERTICAL
RISE IN
FEET (VT)
See graph to determine the required vertical rise VT for the required
horizontal rise HT.

8
W415-0619 / B / 03.03.08
TYPICAL VENT INSTALLATIONS - VERTICAL TERMINATION
24”
MIN.
MINIMUM
VERITICAL
4”
MIN.
FIGURE 3a
24”
MIN.
MINIMUM
VERITICAL
MAXIMUM
HORIZONTAL
5 FT MAX.
15 FT
MAX.
4”
MIN.
MAXIMUM
VERTICAL
19 1/2 FT
MAX.
4”
MIN.
MIN MAX FIGURE
Allowable 3” vent connections (excluding fi replace and air terminal connections) N/A 2
Rise per foot (recommended) 1/4” N/A
Rise per foot (allowable) 0” N/A
Vertical run (when not venting horizontally) 24” 19 1/2 FT 3a, 3c
Horizontal run 4” 5 FT 3a, 3b, 3c
FIGURE 3b FIGURE 3c
01 2 3 4 5 6 7 8 9 10
20
HORIZONTAL VENT RUN PLUS OFFSET IN FEET (HT)
REQUIRED
VERTICAL
RISE IN
FEET (VT)
18
16
14
12
10
8
6
4
2
19.5
15
1.33
See graph to determine the required vertical rise VT for the required
horizontal rise HT.

9
W415-0619 / B / 03.03.08
O
O
B
BG
A
F
CH
H
L
K
J
M
MINIMUM AIR TERNMINAL LOCATION CLEARANCES
N
DE
O
FIGURE 4

10
W415-0619 / B / 03.03.08
INSTALLATION / FRAMING
WALL AND CEILING PROTECTION
This application occurs when venting through an exterior
wall. Having determined the air terminal location, cut and
frame a hole in an exterior wall with a minimum square
opening of 8” wide x 8” high.
1. Apply a bead of caulking all around and place the fi restop
spacer over the framework to restrict cold air from being
drawn into the room or around the fi replace. Ensure that the
spacer maintains the required clearance to combustibles.
Secure the spacer in place using the 4 longer screws
supplied. Once the vent pipe is installed in its fi nal position,
apply high temperature sealant (not supplied) between the
pipe and the fi restop spacer.
FIGURE 5
This application occurs when venting through a roof. Installation kits for various roof pitches are
available from your Napoleon® dealer. See Accessories to order the specifi c kit required.
1. Determine the air terminal location, cut and frame a 8” square opening in the ceiling
and the roof to provide the minimum clearance between the vent pipe and any combustible
material. Try to center the vent pipe location midway between two joists to prevent having to
cut them. Use a plumb bob to line up the center of the openings.
Do not fi ll this space with any type of material.
A vent pipe shield will prevent any materials such as
insulation, from fi lling up the 1" air space around the
pipe. Nail headers between the joist for extra support.
2. Apply a bead of caulking (not supplied) to the
framework or to the Wolf Steel vent pipe shield plate or
equivalent (in the case of a fi nished ceiling), and secure
over the opening in the ceiling. A fi restop must be placed
on the bottom of each framed opening in a roof or ceiling
that the venting system passes through. Apply a bead of caulking all around and place a
fi restop spacer over the vent shield to restrict cold air from being drawn into the room or
around the fi replace. Ensure that both spacer and shield maintain the required clearance
to combustibles. Once the vent pipe is installed in its fi nal position, apply sealant between
the pipe and the fi restop assembly.
3. In the attic, slide the vent pipe collar down to cover up the open end of the shield and tighten. This will prevent any
materials, such as insulation, from fi lling up the 1" air space around the pipe.
VERTICAL INSTALLATION
FIGURE 6
FIRESTOP
UNDERSIDE OF JOIST
8”
SHIELD
8”
FIGURE 7 FIGURE 8
VENT
PIPE
COLLAR
VENT PIPE
SHIELD
CAULKING
VENT PIPE
SHIELD
CAULKING
HIGH
TEMPERATURE
SEALANT
8”
8”
FIRESTOP
SPACER
INSIDE
OUTSIDE

11
W415-0619 / B / 03.03.08
1. Stretch the 3” fl exible vent pipe to the required length taking into
account the additional length needed for the fi nished wall surface.
Apply a heavy bead of the high temperature sealant W573-0007
(not supplied). Slip the fl exible vent pipe a minimum of 2” over the
inner sleeve of the air terminal and secure with 3 - #8 screws.
NOTE: If using pipe clamps to connect vent components, 3
screws must also be used to ensure the connection cannot
slip off.
2. Using the 5” fl exible vent pipe, slide over the outer combustion
air sleeve of the air terminal and secure with 3 - #8 screws. Seal
using high temperature sealant W573-0002 (not supplied).
3. Insert the fl exible vent pipe through the fi restop maintaining the
required clearance to combustibles. Secure the terminal to the
exterior wall (lettering in an upright, readable position) and make
weather tight by sealing with caulking (not supplied).
4. If additional fl exible vent pipe is required, couple them together
as illustrated. The vent system must be supported approximately
every 3 feet for both vertical and horizontal runs. Use non-
combustible strapping to maintain the minimum 1” clearance to
combustibles from the fl exible vent pipe.
HORIZONTAL AIR TERMINAL INSTALLATION
FIGURE 10
FIGURE 11
USING FLEXIBLE VENT COMPONENTS
USE ONLY WOLF STEEL LTD. 3” / 5” FLEXIBLE VENT COMPONENTS.
Use only approved fl exible vent pipe kits marked:
“Wolf Steel Approved Venting” as
identifi ed by the stamp only on the
5” fl exible vent pipe.
For safe and proper operation of the fi replace, follow the venting
instructions exactly.
All 3" fl exible vent pipe and 5" fl exible vent pipe joints may
be sealed using high temperature sealant W573-0002 (not
supplied) or the high temperature sealant W573-0007 Mill
Pac (not supplied). However, the high temperature sealant
W573-0007 Mill Pac (not supplied) must be used on the
joint connecting the 3" fl exible vent pipe and the exhaust
fl ue collar.
FIGURE 9
Four inches (4”) is the minimum bend radius allowed for the
5” fl exible vent pipe.
SPACERS
ELBOW
Do not allow the 3" flexible vent pipe to bunch
up on horizontal or vertical runs and elbows.
Keep it pulled tight. A 1” air gap between the
3" and 5" flexible vent pipes all around is
required for safe operation. A spacer is
required at the start, middle and end of each
elbow to ensure this gap is maintained.
Spacers are attached to the 3" flexible vent
pipe at predetermined intervals to maintain a
1” air gap to the 5" flexible vent pipe. These
spacers must not be removed.
!
WARNING
1. Fasten the roof support to the roof using the screws
provided. The roof support is optional. In this case the
venting is to be adequately supported using either
an alternate method suitable to the authority having
jurisdiction or the optional roof support. Figure 12.
2. Stretch the 3" fl ex vent pipe to the required length.
Slip the 3" fl ex vent pipe a minimum of 2” over the inner
pipe of the air terminal connector and secure with 3 #8
screws. Seal using a heavy bead of high temperature
sealant W573-0007 (not supplied). Figure 13.
NOTE: If using pipe clamps to connect vent
components, 3 screws must also be used to ensure the connection cannot slip off.
3. Repeat using the 5" fl ex vent pipe, using a heavy bead of high temperature sealant
W573-0002 (not supplied). Figure 13.
ROOF SUPPORT
FIGURE 12
3” FLEXIBLE
VENT PIPE
5” FLEXIBLE
VENT PIPE
INNER
PIPE
HIGH
TEMPERATURE
SEALANT
AIR
TERMINAL
CONNECTOR
FIGURE 13
VERTICAL AIR TERMINAL INSTALLATION

12
W415-0619 / B / 03.03.08
HIGH
TEMPERATURE
SEALANT
11/2”
OVERLAP
SCREWS
1. Install the 3” fl exible vent pipe to the fi replace. Secure with 3
screws and fl at washers. Seal the joint and screw holes using Mill
Pac sealant (W573-0007 not supplied).
2. Install the 5” fl exible vent pipe to the fi replace. Attach and seal
the joints using the high temperature sealant W573-0002 (not
supplied).
FIREPLACE VENT CONNECTION
FIGURE 15
This Mobile/Manufactured Home Listed appliance comes factory equipped with a means to secure the unit. The fi replace is
equipped with two 1/4" diameter holes located in the front left and right corners of the base. For mobile home installations,
the fi replace must be fastened in place. Use #10 hex head screws, inserted through the holes in the base to secure. Always
turn off the pilot and the fuel supply at the source, prior to moving the mobile home. After moving the mobile home and prior
to lighting the fi replace, ensure that the logs are positioned correctly.
MOBILE HOME INSTALLATION
This appliance is certifi ed to be installed as an OEM (Original Equipment Manufacturer) installation in a manufactured
home or mobile home and must be installed in accordance with the manufacturer’s instructions and the Manufactured
Home Construction and Safety Standard, Title 24 CFR, Part 3280, in the United States or the Mobile Home Standard,
CAN/CSA Z240 MH Series, in Canada. This appliance is only for use with the type(s) of gas indicated on the rating plate.
A conversion kit is supplied with the mobile home appliance.
This appliance is certifi ed to be installed in an aftermarket permanently located, manufactured (mobile) home, where not
prohibited by local codes.
This fi replace is only for use with the type of gas indicated on the rating plate. This fi replace is not convertible for use with
other gases, unless a certifi ed kit is used.
Conversion Kits
The mobile home appliance is fi eld convertible between Natural Gas (NG) and Propane (LP).
To convert from one gas to another consult your Napoleon® dealer/distributor.
FIGURE 14
STORM
COLLAR
FLASHING
CAULKING
WEATHER
SEALANT
2” AIR INLET
BASE
4. Thread the air terminal connector / vent pipe assembly down through the roof. The air terminal must be located vertically
and plumb. Attach the air terminal connector to the roof support, ensuring that the top of the air terminal is 16” above the
highest point that it penetrates the roof. Figure 12. DO NOT CLAMP THE FLEX VENT PIPE.
5. Remove nails from the shingles, above and to the sides of the chimney. Place the fl ashing over the air terminal connector
leaving a min. 3/4” of the air terminal connector showing above the top of the fl ashing. Slide the fl ashing underneath the sides
and upper edge of the shingles. Ensure that the air terminal connector is properly
centred within the fl ashing, giving a 3/4” margin all around. Fasten to the roof. Do
not nail through the lower portion of the fl ashing. Make weather-tight by sealing
with caulking. Where possible, cover the sides and top edges of the fl ashing with
roofi ng material. Figure 14.
6. Aligning the seams of the terminal and air terminal connector, place the terminal
over the air terminal connector making sure the vent pipe goes into the hole in the
terminal. Secure with the three screws provided. Figure 14.
7. Apply a heavy bead of weatherproof caulking 2" above the fl ashing. Note:
Maintain a minimum 2” space between the air inlet base and the storm collar. Install
the storm collar around the air terminal and slide down to the caulking. Tighten to
ensure that a weather-tight seal between the air terminal and the collar is achieved.
Figure 14.
8. If more vent pipe needs to be used to reach the fi replace, couple them together
as illustrated. The vent system must be supported approximately every 3 feet for
both vertical and horizontal runs. Use noncombustible strapping to maintain the
minimum 1" clearance to combustibles. Figure 11.

13
W415-0619 / B / 03.03.08
Do NOT use the fireplace if any part has been
under water. Call a qualified service technician
IMMEDIATELY to have the fi replace inspected for
damage to the electrical circuit.
IT IS NECESSARY TO HARD WIRE THIS
FIREPLACE.
Permanently framing the fi replace with an enclosure,
requires the fireplace junction box to be hard
wired.
This fi replace must be electrically connected and
grounded in accordance with local codes. In the
absence of local codes, use the current CSA C22.1
CANADIAN ELECTRICAL CODE in Canada or
the ANSI/NFPA 70-1996 NATIONAL ELECTRICAL
CODE in the United States.
ELECTRICAL CONNECTION
HARD WIRING CONNECTION
FIGURE 18
!
WARNING
RISK OF ELECTRIC SHOCK!
Control and valve operate with 110v.
12 34
YELLOW
BROWN
W
H
I
T
E
PURPLE
B
L
A
C
K
IGNITOR
WIRE
IGNITOR
GAS
VALVE
SWITCH
CONTROL MODULE
GROUND
110v
POWER
SUPPLY JUNCTION BOX
(c/w 2 receptacles)
GROUND
Proceed once the vent installation is complete.
Note: All gas connections must be contained within the fi replace when
complete.
1. The fi replace is designed to accept a 1/2” gas supply line. The fi replace is
equipped with a 1/2” manual shut-off valve.
2. The access to the gas inlet is located on the bottom of the outer shell.
3. The shut off must always be within the outer shell.
4. When fl exing any gas line, support the gas valve so that the lines are not
kinked.
5. Check for gas leaks by brushing on a soap and water solution.
Do not use open fl ame.
GAS INSTALLATION
FIGURE 17
FIGURE 16
STAND-OFF ASSEMBLY
1
FIGURE 19a&b
2

14
W415-0619 / B / 03.03.08
FRAMING
FIGURES 21a,b&c
NAILING TAB INSTALLATION
Attach the 4 nailing tabs supplied to the sides of the outer shell as illustrated using
the 8 self-tapping screws included in the manual baggie.
FIGURE 20
The has been designed to be installed mid-way up a wall. When installing this unit close to the fi nished fl oor, the
unit must be raised a minimum of 2” (unobstructed) to allow for full rotation of the control door. It is not necessary to install
a hearth extension.
Although the unit fi ts between studs, most jurisdictions will not allow a “hole” in the warm air envelope of a residential structure.
It is recommended to build either an interior or exterior chase with a minimum depth of 7”.
It is best to frame your fi replace after it is positioned and the vent system is installed. Frame to local building codes.
To install the fi replace face fl ush with the fi nished surface, position the framework to accommodate the thickness of the
fi nished surface. Use 4 fl at-head screws to secure the nailing tabs to the framing. Cover the nailing tabs with your fi nishing
material.
NOTE: In order to avoid the possibility of exposed insulation or vapour barrier coming in contact with the fi replace
body, it is recommended that the walls of the fi replace enclosure be “fi nished” (ie: drywall/sheetrock), as you would
fi nish any other outside wall of a home. This will ensure that clearance to combustibles is maintained within the
cavity.
TORCH
TM
44
1
/
4
"
7" 14
1
/
2
"
TORCH
TM
FRAMING
OPENING DIMENSIONS
INSTALLATION FINISHING
OPENING DIMENSIONS
123
34
7
/
8
"
11
5
/
8
"
30"
14
1
/
2
"
21
1
/
4
"
2
1
/
2
"
2
1
/
2
"
14
1
/
2
"
7"
INTERIOR BUILD-OUT
OUTSIDE
CHASE
EXTERIOR CHASE
14
1
/
2
"
7" MIN.
INSIDE
CHASE
2"
4"
4"
6"
2"
SIDE
WALL
PROTRUSION
NOTE: Finished opening is smaller than the framed opening.
FIGURES 22a,b&c

15
W415-0619 / B / 03.03.08
2” MIN.*
12”
MIN. TO
COMBUSTIBLES
(to ceiling or mantle)
1
1
/
2
” MIN.
* Any protruding finishing
material installed in this
space (ie. baseboards)
must leave 2” of
unobstructed clearance to
allow for full rotation of the
control door.
COMBUSTIBLE NON-COMBUSTIBLE
1”
1”
0” IF
NON-COMBUSTIBL
E
FINISHING IS USED
SUCH AS BRICK AN
STONE.
BRICK
6”
MIN.
FIGURE 23
CLEARANCES TO COMBUSTIBLES
Minimum clearance to combustible construction from fi replace and vent surfaces:
Fireplace framing: - 6” to top
- 0” to stand-offs
(rear and sides)
Vent pipe: - 1”
Recessed depth: - 7”
Before the glass door can be removed, the optional frame/
front must be removed.
The glass door is secured to the top front edge of the fi rebox.
Pull the handles of the latches forward, then lift the hooks out
from the slots in the door frame to release the top of the door.
Then, pivot forward until the top edge of the door clears the
front of the fi replace. Next gripping the sides of the door lift
the door out from the retainer along the bottom of the door.
DOOR REMOVAL
FINISHING
OPEN
CLOSED
GLASS REMOVAL
Having removed the door, lay on a smooth fl at surface, face
down. There are 4 glass retainers that need to be bent away
from the glass to release it from the frame. Do not pry on
the glass.
When replacing DO NOT SUBSTITUTE MATERIAL, replace
the gasket (W562-0008) and the glass (W300-0088). Set
new glass into the frame and gently bend tabs into the
gasket to secure.
NOTE: Care must be taken when removing and disposing
of any broken glass or damaged components. Be sure to
vacuum up any broken glass from inside the fi replace before
operation.
FIGURE 24
GLASS
RETAINERS
GASKET
GLASS
FIGURE 25
FRAME
CONTROL DOOR
(OPEN POSITION)
WITHOUT FRAME INSTALLED WITH FRAME INSTALLED

16
W415-0619 / B / 03.03.08
FIGURE 28
RECEIVING
SLOTS
DOOR STOP
CHAIN
FRAME/FRONT INSTALLATION
1. Align the two holes in the upper
portion of the hinge on the control door
to those in the bottom trim bracket,
secure using two of the #8 x 1/2” hex
head screws supplied. Figure 26
2. Install the top trim bracket to the
fi rebox using the three #9 - 14 x 1/2”
hex head screws supplied in the
manual baggie.
3. Rest the top lip of the
frame on the top trim bracket, and
the securing tabs at the bottom of the
frame on the bottom trim
bracket.
4. Align the two slots in the top of the frame with the two holes in the
top trim bracket and secure using the two #10 pan head screws supplied however
do not fully tighten to leave room for adjustment. Figure 27
5. Align the holes in the securing tabs at the bottom of the frame with
the holes in the bottom trim bracket and secure using the two remaining #8 x 1/2”
hex head screws, however do not fully tighten to leave room for adjustment.
Figure 27
6. If required, the bottom trim bracket can be adjusted by loosening it’s securing
screws. Figure 27
7. Once the frame is perfectly square and the control door will close
without rubbing against the sides of the frame, tighten all screws.
8. Open the control door.
9. Insert the door stop chain into the receiving slot in the control door.
Figure 29
10. Insert the door stop chain into the receiving slot in the frame so
that when fully open the control door has a clearance of 1/8” to the fi nished wall.
NOTE: In most cases, a count of 9 balls between receiving slots will give the
desired clearance. Figure 29
11. Close the control door.
The frame has been designed to accommodate fi nished material
thicknesses of .500” - .750”. If it is necessary to pull the frame out to
the max. .750” the magnetic catch will need to be adjusted. Minor adjustment can
be made by removing shims from behind the magnet. Major adjustments can be
made by moving the magnet to the outside of the panel.
Adjustment may be required to accommodate
the door stop chain slack when the control door
is closed. The control door securing screws
can be loosened to allow adjustment. Before re-
tightening the screws ensure the control door is
still recessed into the frame at a similar
offset to the top trim piece.
CONTROL DOOR
BOTTOM
TRIM
BRACKET
FIGURE 26
FIGURE 27
FRAME
TOP
TRIM
BRACKET
BOTTOM
TRIM
BRACKET
FIGURE 29

17
W415-0619 / B / 03.03.08
LK8 LIGHT INSTALLATION (OPTIONAL)
1. Turn off the electrical and gas supply to the fi replace.
2. Remove the frame from the unit by removing the 2 black securing
screws from the top, and the 2 silver hex head securing screws from
the bottom.
3. Lay the frame down on its front, being careful not to scratch the
fi nish.
4. Starting at the top of the frame, take one light assembly and carefully
snap it into place in the hole provided. Repeat for each of the light
assemblies. The wires on the top 2 light assemblies will need to be fed
in behind the heat shields.
Note: When installing the light kit be careful not to scratch your
fi ngers on any of the exposed screws in the frame.
5. Using Figure 31 as a guide, connect the light assemblies to the
appropriate fl ags on the wire harness. The wire harness is labeled (TR)
top right, (BR) bottom right (TL) Top left and (BL) bottom left.
6. Secure the wires into the clips at both sides and the bottom of the
frame. Use the extra clips provided to retain any loose wires.
7. Re-attach frame onto unit.
8. Remove the control panel by removing the 2 screws securing it along
the top edge. Leave the wires connected to the ON/OFF switch.
9. Place the transformer into the bottom of the unit. Plug the transformer
into the receptacle.
10. Lay the control panel fl at along the bottom edge of the frame. Attach
one of the wire leads from the transformer to the lead on the wire harness
labeled “TRANS”, and the other to the ON/OFF switch. Attach the last
lead on the wire harness labeled “SWI” to the ON/OFF switch.
11. Re-secure the control panel.
12. Turn on the gas supply and electrical power.
SWI
TRANS
TR
TL
BR
BL
CLIPS X5
ACCENT GLASS INSTALLATION
Carefully sprinkle the accent glass onto the glass support
evenly. Ensure no glass falls into the burner area. If this
happens, insert a clean bag into your vacuum cleaner and
vacuum out the accent glass. Replacement accent glass
can be purchased from Wolf Steel Ltd.
GLASS
SUPPORT
ACCENT
GLASS
BURNER
FIGURE 30
FIGURE 31

18
W415-0619 / B / 03.03.08
A. This fi replace is equipped with an ignition device which
automatically lights the burner. Do not try to light by hand.
B. Before operating, smell all around the fi replace area for
gas and next to the fl oor because some gas is heavier than
air and will settle on the fl oor.
C. Do not use this fi replace if any part has been under water.
Immediately call a qualifi ed service technician to inspect the
fi replace and replace any part of the control system and any
gas control which has been under water.
When lit for the fi rst time, the fi replace will emit a slight odour for
a few hours. This is a normal temporary condition caused by the
curing of paints and lubricants used in the manufacturing process
and will not occur again. Simply open a window to suffi ciently
ventilate the room.
After extended periods of non-operation such as following a
vacation or a warm weather season, the fi replace may emit a
• Turn off all gas to the fi replace.
• Open windows.
• Do not try to light any appliance.
• Do not touch any electrical switch; do not use any phone in
your building.
• Immediately call your gas supplier from a neighbor’s
phone. Follow the gas supplier’s instructions.
• If you cannot reach your gas supplier, call the fi re
department.
1. STOP! Read the safety information located above.
2. Turn off all electric power to the fi replace.
3. This fi replace is equipped with an ignition device which
automatically lights the burner. Do not try to light by hand.
4. Remove the glass door.
5. Wait fi ve (5) minutes to clear out any gas. If you smell gas
including near the fl oor STOP! Follow “B” in the above safety
information on this label. If you don’t smell gas go to the next
step.
6. Replace the glass door.
7. Turn on all electric power to the fi replace.
8. Turn the fi replace switch to the ON position.
9. If fi replace will not operate, follow instructions “To Turn Off
Gas” and call your service technician or gas supplier.
FOR YOUR SAFETY READ BEFORE LIGHTING:
LIGHTING INSTRUCTIONS
WHAT TO DO IF YOU SMELL GAS:
FIGURE 32
slight odour for a few hours. This is caused by dust particles in
the heat exchanger burning off. Open a window to suffi ciently
ventilate the room.
Purge all gas lines with the glass door of the fi replace open.
Assure that a continuous gas fl ow is at the burner before
closing the door.
OPERATING INSTRUCTIONS
1. Turn the fi replace switch to the OFF position.
2. Turn off all electrical power to the fi replace if service is to
be preformed.
3. Turn manual shut-off valve clockwise to off.
Do not force.
TO TURN OFF GAS
CERTIFIED UNDER : CSA 2.22-2007, ANSI 21.50-2007 VENTED GAS FIREPLACE
DIRECT VENT GAS FIREPLACE. APPROVED FOR BEDROOM, BATHROOM AND BED SITTING ROOM INSTALLATION.
SUITABLE FOR MOBILE HOME INSTALLATION IF INSTALLED IN ACCORDANCE WITH THE CURRENT STANDARD CAN/CSA
Z240MH SERIES GAS EQUIPPED MOBILE HOMES. IN CANADA OR IN THE UNITED STATES THE MANUFACTURED HOME
CONSTRUCTION AND SAFETY STANDARD. TITLE 24 DFR, PART 3280. WHEN THIS US STANDARD IS NOT APPLICABLE USE
THE STANDARD FOR FIRE SAFETY CRITERIA FOR MANUFACTURED HOME INSTALLATIONS, SITES AND COMMUNITIES,
ANSI/NFPA 501A.
I
N
T
E
R
T
E
K
W
a
r
n
o
c
k
H
e
r
s
e
y
CM
CUS
ALTITUDE
INPUT
ORIFICE
MANIFOLD PRESSURE: 3.5" WATER COLUMN
MINIMUM SUPPLY PRESSURE: 4.5" WATER COLUMN
MAXIMUM SUPPLY PRESSURE: 7.0" WATER COLUMN
MANIFOLD PRESSURE: 10" WATER COLUMN
MINIMUM SUPPLY PRESSURE: 11" WATER COLUMN
MAXIMUM SUPPLY PRESSURE: 13" WATER COLUMN
0-4500FT (0-1370m)
6,000 BTU/h
#69
0-4500FT (0-1370m)
6,000 BTU/h
#56
CERTIFIED FOR CANADA AND USA
GT8N
MODEL
GT8P
MODEL
W385-0381 / A
GT8
VENTED GAS FIREPLACE NOT FOR USE WITH SOLID FUEL. FOR USE WITH GLASS
DOOR. CERTIFIED WITH THIS UNIT ONLY.
WARNING: DO NOT ADD ANY MATERIAL TO THE
APPLIANCE, WHICH WILL COME IN CONTACT WITH
THE FLAMES, OTHER THAN THAT SUPPLIED BY THE
MANUFACTURER WITH THE APPLIANCE.
MINIMUM CLEARANCES TO COMBUSTIBLE MATERIALS
TOP 6” RECESSED DEPTH 7”
FLOOR 0” VENT 1”
SIDES 0” BACK 1 1/2”
MINIMUM AND MAXIMUM HORIZONTAL VENT LENGTHS
ARE 10 INCHES AND 10 FEET RESPECTIVELY.
MINIMUM AND MAXIMUM VERTICAL VENT LENGTHS
ARE 36 INCHES AND 10 FEET RESPECTIVELY.
MADE IN CANADA
WOLF STEEL LTD, BARRIE, ON, CANADA
SERIAL NUMBER:
THE APPLIANCE MUST BE VENTED USING THE APPROPRIATE NAPOLEON VENT
KITS, SEE OWNERS INSTALLATION MANUAL FOR VENTING SPECIFICS. PROPER
REINSTALLATION AND RESEALING IS NECESSARY AFTER SERVICING THE
VENT-AIR INTAKE SYSTEM.
ELECTRICAL RATING: 115v 0.82AMP, 60HZ
REFERENCE #15901
TOP, SIDES & BACK AS PER ABOVE. FOR FINISHING
MATERIAL, SEE OWNERS MANUAL.
(NATURAL GAS) (PROPANE)
THIS APPLIANCE IS ONLY FOR USE WITH THE TYPE OF GAS INDICATED ON THE
RATING PLATE AND MY BE INSTALLED IN AN AFTERMARKET, PERMANENTLY
LOCATED, MANUFACTURED HOME (USA ONLY) OR MOBILE HOME WHERE NOT
PROHIBITED BY LOCAL CODES. SEE OWNER’S MANUAL FOR DETAILS. THIS
APPLIANCE IS NOT CONVERTIBLE FOR USE WITH OTHER GASES, UNLESS A
CERTIFIED KIT IS USED.
RATING PLATE
RATING LABEL LOCATION: The rating label is located under the control panel and is chained to the fi replace.
DO NOT REMOVE.

19
W415-0619 / B / 03.03.08
Closing the air shutter will cause a more yellow fl ame, but can
lead to carboning. Opening the air shutter will cause a more
blue fl ame, but can cause fl ame lifting from the burner ports.
The fl ame may not appear yellow immediately; allow 15 to 30
minutes for the fi nal fl ame color to be established.
NOTE: It is important that
the venturi sits down tight
on the orifi ce. The burner
is adjustable up/down to
ensure this.
ADJUSTMENTS
GAS PRESSURE ADJUSTMENT VENTURI ADJUSTMENT
FIGURE 35
AIR SHUTTER OPENINGS
LP 5/16” DIA (x2)
NG 3/16” DIA (x1)
Outlet pressure can be adjusted if not measuring 3.5” W.C.
(NG) or 10.0” W.C. (LP).
1. Pressure can be
checked by removing
cap (A) using
a 3/16 allen key and
replacing it with a 1/8
NPT barb fi tting.
2. Place pressure
gauge tube over the
fi tting.
3. Pressure can be
adjusted by removing
cap (B) using a fl at
screwdriver, and
adjusting the nylon
plug with the same
screw driver. Turning
the plug in (clockwise)
will increase the
pressure.
FIGURE 34
FIGURE 33
TURN OFF THE GAS AND ELECTRICAL POWER BEFORE
SERVICING THE FIREPLACE.
CAUTION: Label all wires prior to disconnection when servicing
controls. Wiring errors can cause improper and dangerous
operation. Verify proper operation after servicing. This fi replace
and its venting system should be inspected before use and at
least annually by a qualifi ed service person. The fi replace area
must be kept clear and free of combustible materials, gasoline
or other fl ammable vapours and liquids. The fl ow of combustion
and ventilation air must not be obstructed.
1. Keep the control compartment, burner, and air shutter opening
clean by vacuuming or brushing, at least once a year.
2. Check to see that the main burner ignites when the switch
for the burner is turned on. A 5 second light-up period is satis-
factory. If ignition takes longer, consult your Napoleon® dealer
/ distributor.
3. Check that the gasketing on the sides, top and bottom of the
door is not broken or missing. Replace if necessary.
MAINTENANCE
It is important to periodically
perform a visual check of the
burner fl ame. Compare them to
the illustration provided.
FLAME CHARACTERISTICS
FIGURE 36

20
W415-0619 / B / 03.03.08
#
PART NO. DESCRIPTION
1 W225-0216 DOOR FRAME
2* W562-0008 DOOR GASKET
3* W010-1736 DOOR LATCH ASSEMBLY
4 W010-1743 GLASS
C/W GASKET
5* W300-0088 GLASS
6 W100-0104 BURNER
7 W357-0006 IGNITOR
8 W190-0026 CONTROL, MODULE
9* W750-0183 WIRE HARNESS
10* W750-0184 IGNITION CABLE
11 W200-0234 IGNITOR COVER
12 W200-0233 BURNER COVER
13 W725-0052 NATURAL GAS VALVE - 3.5” W.C.
13 W725-0053 PROPANE GAS VALVE - 10.0” W.C.
14* W455-0085 NATURAL GAS ORIFICE
14* W455-0086 PROPANE GAS ORIFICE
15 W500-0358 FIRESTOP SPACER
16 W475-0522 BACK PANEL
17* W300-0108 ACCENT GLASS (BLACK)
18* W385-0334 NAPOLEON® LOGO
19 W290-0123 EXHAUST GASKET
20 W290-0125 BURNER GASKET
21* W562-0046 ROPE GASKET, BACK PANEL
22 TFK FRAME - PAINTED METAILIC BLACK FINISH
22 TFR FRAME - RED FINISH
22 TFP FRAME - PEWTER FINISH
22 TFW FRAME - WHITE FINISH
22 TFB FRAME - STEEL BLUE FINISH
35* W573-0002 HIGH TEMPERATURE SEALANT
35* W573-0007 HIGH TEMPERATURE SEALANT
36* W175-0204 3” COUPLER
37* W175-0166 5” COUPLER
38* W175-0270 CONVERSION KIT - NG TO LP
39* W175-0274 CONVERSION KIT - LP TO NG
40* W175-0271 COUPLER KIT
41* LK8 LIGHT KIT
42* AVS35KT VENT SLEEVE ASSEMBLY
Contact your dealer for questions concerning prices and availability
of replacement parts. Normally all parts can be ordered through your
Napoleon® dealer or distributor.
When ordering replacement parts always give the following
information:
1. MODEL & SERIAL NUMBER OF FIREPLACE
2. INSTALLATION DATE OF FIREPLACE
3. PART NUMBER
4. DESCRIPTION OF PART
5. FINISH
FOR WARRANTY REPLACEMENT PARTS, A PHOTOCOPY OF THE ORIGINAL
INVOICE WILL BE REQUIRED TO HONOUR THE CLAIM.
* IDENTIFIES ITEMS WHICH ARE NOT ILLUSTRATED. FOR FURTHER
INFORMATION, CONTACT YOUR NAPOLEON® DEALER.
REPLACEMENTS
REPLACEMENT PARTS ACCESSORIES
GD178 (WALL TERMINAL KIT)
28* W010-1744 12” FLEXIBLE VENT ASSEMBLY
29 W670-0010 3”/5” FLEXIBLE HORIZONTAL TERMINAL
GD179 (TERMINAL ONLY)
29 W670-0010 3”/5” FLEXIBLE HORIZONTAL TERMINAL
FLEXIBLE VENT KITS
TERMINAL KITS
GDT5 (5 FT)
23* W730-0031 3” FLEXIBLE VENT PIPE - (5 FT)
24* W730-0032 5” FLEXIBLE VENT PIPE - (5 FT)
25* W615-0080 SPACERS (3
INCLUDED)
GDT10 (10 FT)
26* W730-0033 3” FLEXIBLE VENT PIPE - (10 FT)
27* W730-0034 5” FLEXIBLE VENT PIPE - (10 FT)
25* W615-0080 SPACERS (6 INCLUDED)
14
16
678
11
12
13
15
19
20
29 22
ROOF TERMINAL KITS
GDT113
30* W670-0011 AIR TERMINAL
31* W490-0076 3/5 INNER/OUTER SLEEVE
GDT110 (1/12 - 7/12 PITCH)
30* W670-0011 AIR TERMINAL
31* W490-0076 3/5 INNER/OUTER SLEEVE
32* W010-1844 ROOF SUPPORT
33* W263-0099 ROOF FLASHING
34* W170-0134 STORM COLLAR
GDT111 (8/12 - 12/12 PITCH)
30* W670-0011 AIR TERMINAL
31* W490-0076 3/5 INNER/OUTER SLEEVE
32* W010-1844 ROOF SUPPORT
33* W263-0100 ROOF FLASHING
34* W170-0134 STORM COLLAR
GDT112 (FLAT ROOF)
30* W670-0011 AIR TERMINAL
31* W490-0076 3/5 INNER/OUTER SLEEVE
32* W010-1844 ROOF SUPPORT
33* W263-0101 ROOF FLASHING
34* W170-0134 STORM COLLAR
Failure to position the parts in accordance with these diagrams or
failure to use only parts specified approved with this appliance may
result in property damage or personal injury.
!
WARNING

21
W415-0619 / B / 03.03.08
TROUBLE SHOOTING GUIDE
BEFORE ATTEMPTING TO TROUBLESHOOT, PURGE YOUR UNIT AND INITIALLY LIGHT THE IGNITOR AND THE MAIN BURNER WITH THE GLASS DOOR OPEN.
SYMPTOM PROBLEM TEST SOLUTION
Electrode sparks, burner
ignites, electrode
continues to spark for
complete 7 seconds,
burner shuts down.
Hot and neutral wires are reversed
at control module.
Sensor / fl ame not connecting
- Connect the hot wire to the black wire. Connect the neutral wire to
the white wire.
- Raise electrode / sensor up into fl ame.
Main burner fl ame is a
blue, lazy, transparent
fl ame.
Blockage in vent. - Remove blockage. In extremely cold conditions, ice buildup may occur
on the terminal and should be removed as required.
Flame length
consistently too large
or too small. Carboning
occurs.
Unit is over-fi red or under-fi red. - Check pressure readings
- Outlet pressure can be checked by removing cap (A) and replacing
it with a 1/8” NPT barb fi tting. Next, place pressure gauge tubing
over the fi tting. Gauge should read 3.5” W.C. for natural gas or
10.0” W.C. for propane. AFTER TAKING PRESSURE READINGS,
BE SURE TO REPLACE CAP TO RESEAL. DO NOT OVER-TORQUE.
- Leak test with a soap and water solution.
Carbon is being
deposited on glass, logs
or combustion chamber
surfaces.
Air shutter has become blocked. - Ensure air shutter opening is free of lint or other obstructions.
Flame is impinging on the
combustion chamber.
- Open air shutter to increase the primary air.
- Check the input rate: check the manifold pressure and orifi ce size as
specifi ed by the rating plate values.
- Check that the door gasketing is not broken or missing and that the
seal is tight.
- Check that both 3” and 5” vent liners are free of holes and well
sealed at all joints.
- Check that the minimum rise per foot has been adhered to for any
horizontal venting.
White / grey fi lm forms.
Sulphur from fuel is being
deposited on glass, logs or
combustion chamber surfaces.
- Clean the glass with a gas fi replace glass cleaner. DO NOT CLEAN
GLASS WHEN HOT. If deposits are not cleaned off regularly, the
glass may become permanently marked.
Exhaust fumes smelled in
room, headaches. Fireplace is spilling.
- Check door seal.
- Check pressure relief device.
- Check for chimney blockage.
- Ensure that the paint curing process is complete.
No gas to the main
burner; switch is on.
Switch is defective. - Connect a jumper wire across the wall switch terminals; if main
burner lights, replace switch / thermostat.
Burner orifi ce is blocked. - Remove stoppage in orifi ce.
Control valve faulty. - Replace.
Faulty valve. - Replace.
Burner will not light,
ignitor sparks.
No gas at the burner. - Check that the manual valve is turned on.
- Replace the valve.
Out of propane gas. - Fill the tank.
Ignitor
will
not
spark. No spark at ignitor.
- Check the power source. (ie. fuse, circuit breaker)
- Check that the wire is connected to both the ignitor and the control
module.
- Check that the spark is not jumping to ignitor cover.
- Replace the wire if the wire insulation is broken or frayed.
- Replace the electrode if the ceramic insulator is cracked or broken.
Spark gap is incorrect. - Spark gap should be 0.125” (1/8” approx.) from the electrode tip to the
sensor tip.
Remote wall switch is in
“OFF” position; burner
comes on.
Wall switch is mounted upside
down. - Reverse.
Remote wall switch is grounding. - Replace.
Remote wall switch wire is
grounding. - Check for ground (short); repair ground or replace wire.
Faulty wire. - Replace.

22
W415-0619 / B / 03.03.08
Fireplace Service History
This fireplace must be serviced annually depending on usage
DATE DEALER NAME SERVICE TECHNICIAN NAME SERVICE PERFORMANCE SPECIAL CONCERNS