Rittal Systems For The Human/Machine Interface 102656 Catalog
2014-11-11
: Pdf 102656-Catalog 102656-Catalog 639889 Batch12 unilog
Open the PDF directly: View PDF
.
Page Count: 282 [warning: Documents this large are best viewed by clicking the View PDF Link!]
- Perfect systems
- Our achievements are your advantages
- Four systems at a glance
- Rittal Command Panel . . .
- VIP 6000
- Diversity: Frame and front design
- Diversity: Enclosures, rear panels, heat dissipation
- Diversity: Keyboard housings and ergonomics
- Diversity: Configuration examples
- Selection: Operating housing / keyboard housing
- Selection: Operating housing
- Selection: Keyboard housing
- Technical details
- Technical details
- Technical details
- Technical details
- . . . Interaction between monitoring and operation
- Optipanel
- Diversity: Enclosure, front design, rear panels
- Diversity: Keyboard housing and ergonomics
- Selection: Operating housing / keyboard housing
- Selection: Operating housing
- Selection: Operating housing / keyboard housing
- Standard dimensions for front panel 482.6 mm (199) x 7 U / 270 x 234 mm (10.639 x 9.219)
- Technical details
- Technical details
- Compact Panel
- Premium Panel
- Rittal operating housings . . .
- Command Panel housing with door
- Command Panel
- Command Panel housing with door
- Command Panel
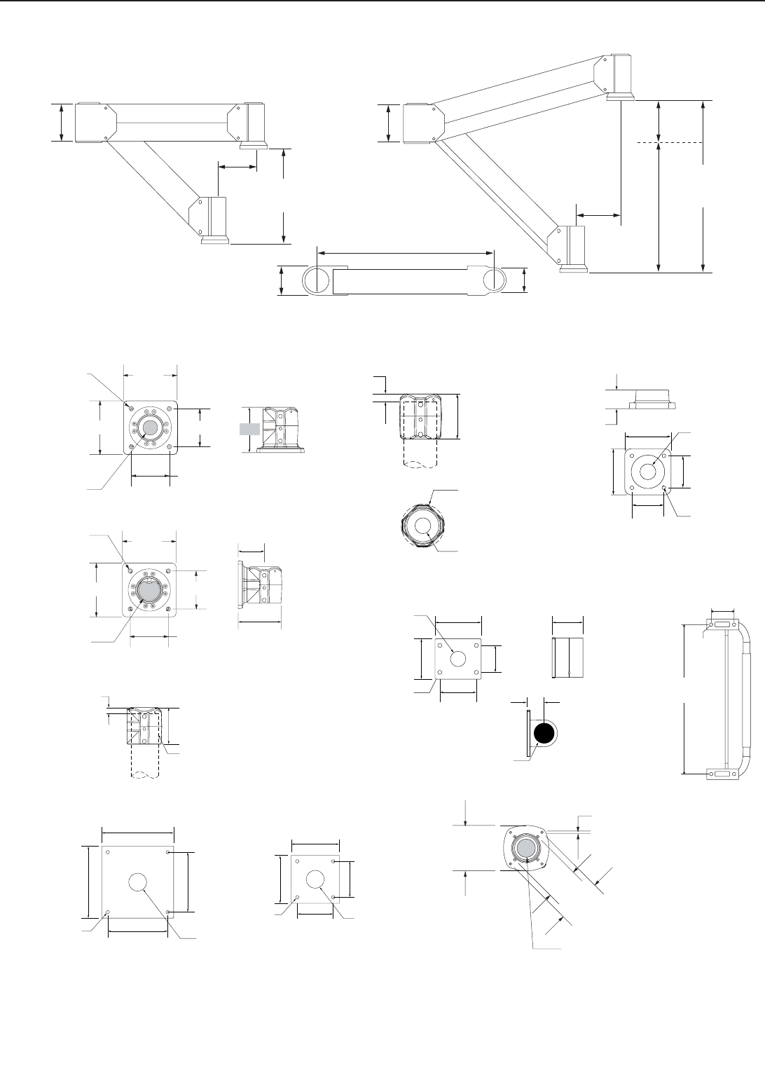
- Support arm systems
- Support arm systems CP-S . . .
- Support arm system CP-L . . .
- . . . compact elegance!
- Fast selection
- Support arm, height adjustable
- Aluminum
- Aluminum
- Wall/base mounting, small, CP-L
- Wall/base mounting, large, CP-L
- Enclosure attachment CP-L, round
- Enclosure attachment CP-L, rectangular
- Enclosure attachment, locatable CP-L, rectangular
- Connection console CP-L, rectangular
- Optipanel support plate
- Housing coupling CP-L, round
- Housing coupling CP-L, rectangular
- Enclosure attachment, tilting, bottom-mounting CP-L, rectangular
- Tilting adaptor 10° CP-L, round
- Tilting adaptor 10° CP-L, rectangular
- Tilting adaptor ± 45° CP-L, round
- Angle coupling, 90˚ CP-L, round
- Angle joint 90° CP-L
- Wall mounted hinge CP-L
- Top mounted joint CP-L
- Intermediate hinge CP-L
- Angle piece 90° CP-L
- Mounting component CP-L
- Support arm system CP-XL . . .
- . . . for high loads
- Fast selection
- Aluminum
- Support arm section CP-XL, open
- Support arm section CP-XL, solid
- Adjustment set for support section CP-XL
- Angle adaptor 90° CP-XL to CP-L
- Connection adaptor CP-L to CP-XL
- Wall / base mounting CP-XL
- Enclosure attachment CP-XL, round
- Enclosure attachment CP-XL, rectangular
- Housing coupling CP-XL
- 10˚ tilting adaptor CP-XL
- 25˚ / 60˚ tilting adaptor CP-XL
- Angle coupling, 90˚ CP-XL
- Wall mounted hinge CP-XL
- Top mounted joint CP-XL
- Intermediate hinge CP-XL
- Rotation range limiter CP-XL
- Angle piece 90° CP-XL
- Rittal pedestal systems . . .
- Rittal Industrial Workstations . . .
- Rittal PC enclosure systems . . .
- Rittal console systems . . .
- Console systems AP
- One-piece consoles AP
- Universal console AP
- One-piece consoles AP
- Universal consoles AP
- Rittal system accessories . . .
- Climate control
- Climate control
- Rittal climate control systems . . .
- Accessories
- Base/plinth
- Base
- Levelling feet
- Base/plinth adaptor for levelling feet
- Levelling feet
- Levelling feet, 100mm (3.949) high
- Foot rest
- Trim panel
- Base mount
- Base assembly plate
- Cable entry plates
- Cable entry grommets
- Connector grommets
- Foam rubber cable clamp strip
- Metal gland panel
- Plastic cable gland panels
- Enclosure reinforcement
- Connection plate
- Cable management
- IW monitor housing
- Wall/enclosure connectors
- front design
- Front design
- Handles
- Interface door
- Window
- Lock systems
- Comfort handle for semi-cylinder
- Comfort handle
- Handle adaptor for designer door TS-PC/IW
- Lock and push-button inserts
- Ergoform standard
- Ergoform special
- Plastic handles
- T handles
- Lock inserts
- Cylinder inserts
- Semi-cylinder lock
- Lock cover
- Multiple lock
- Lock cover
- Enclosure keys
- Universal enclosure key
- Door stop for VIP6000, hinged
- Stay
- Roof/interior installation
- Interior installation
- Component shelves
- Component shelves
- Keyboard drawer
- Keyboards
- TFT monitor
- Mouse/mousepad
- Mobile workstation
- Lights
- Voltage supply
- Grounding
- Grounding/swing frames
- 199 configuration
- Table of order numbers
- Index
- o RFQ / o Order

R R
Systems for the human/machine interface
Systems
for the
human/
machine
interface
Command Panel
Industrial workstations
PC enclosures
Console systems
Communication systems
Global Rittal. Worldwide service.
Industrial enclosures
Sma
ll
enc
l
osures
Compact enclosures
Large enclosures
PC enclosures and case systems
Console systems
Industrial workstations
Command Panel systems
Stainless steel enclosures and support arm
systems
EMC-shielded enclosures
Ex enclosures
System climate control
Power distribution
IT solutions
Rittal Corporation
One Rittal Place
Springfield, OH 45504
Phone: (937) 399-0500
Fax: (937) 390-5599
Toll-free: 1-800-477-4000
www.rittal-corp.com
Email: rittal@rittal-corp.com
08/04 䡠 A141
Electronic packaging

Systems for the human/machine interface
at the human / machine interface
Perfect systems
PERFORMANCE
EXPERTISE
SERVICE
PRODUCTS
All our knowledge and skills are dedicated to this
objective on a daily basis, throughout the world. As
leading global suppliers, we develop technology
packaging systems based on our comprehensive
product range. This is accompanied by a broad
portfolio of services and specialist areas of
competence.
This brochure invites you to find out more about the
systems for the human/machine interface within the
enclosure systems segment, and to utilize them for
your own benefit.
Customer
solution
EMC, earthquake
protection,
environmental
protection
System
integration
Planning
and
advice
Quality
assurance Assembly Delivery
service
System partners with holistic expertise, worldwide
Enclosure
systems Electronic
packaging
System
climate
control
Power
distribution IT
solutions
Communi-
cation
systems

Systems for the human/machine interface 3
Floor-standing systems 132 – 149
Command Panel 8 – 77
Service 274 – 279
Order number table 274 – 275
Index 276 – 278
Order forms 279
Rittal: Everything from a single source 2 – 7
Support arm systems 78 – 127
PC enclosure systems 170 – 181
Console systems 182 – 199
System accessories 200 – 273
Climate control 202 – 205
Accessories 206 – 273
Industrial workstations 150 – 169

4Systems for the human/machine interface
Our achievements are your advantages
The Rittal value-added package
In choosing Rittal, you are making the right decision. We
meet all your requirements in terms of flexibility, security,
cost-cutting and problem-solving expertise.
Everything is complete: the platform, the range, the timing,
the planning, the quality, the security.
We address worldwide market requirements, perform
development and testing at our own accredited
laboratories, and offer innovative, market-ready, cost-
effective solutions.

5Systems for the human/machine interface
Solution diversity
through system
platforms
Our successful platform
strategy forms the basis for
our comprehensive standard
range. Perfect solutions for
various applications and to
suit individual customer
requirements are configured
cost-effectively from mass
production.
Pre-configuration
saves time
Rittal products are perfectly
prepared for immediate use.
This saves assembly and
ordering time, as well as
warehousing costs. Fast
assembly of system acces-
sories is an added bonus.
Complete, thanks to
system integration
You tell us your requirements,
we supply you with an
individual complete solution
e.g. with coordinated climate
control, power supply and
security management up to
system integration Level 4.
All from Rittal, all from a single
source.
Global proximity
with a local
presence
Our experience of inter-
national markets and the
global availability of our
products and services lead to
complete customer solutions.
Secure your
competitive lead
with a quality
advantage
International approvals and
our own accredited
laboratories – the result? A
guaranteed standard of
quality available to customers
worldwide.
Perfect solutions
through planning
expertise
Rittal's expert advisers know
their stuff – be it EMC
protection, earthquake
protection, climate control or
electronic components, all
technical questions relating to
a particular customer
requirement are expertly
answered.
Eliminate the risks
with a security
advantage
Cut operating costs and
administration, and ensure
simple monitoring of all
security-relevant parameters
with comprehensive rack
security concepts: climate
control, power management
and access control.
Benefit from our
product portfolio
Rittal offers a wide range of
specialized solutions
available off the shelf for
immediate delivery, for all
segments of the market.
Documented in the main Rittal
Handbook.

6Systems for the human/machine interface
Four systems at a glance
You have the requirements – we have the solution
We offer a broad spectrum of products to meet modern
requirements at the human/machine interface.
Superb quality, inexpensively priced, and ergonomically
tailored to individual requirements. Programming,
operating, monitoring. Solutions by people, for people.
These are derived from our conversations with customers,
our decades of development expertise, and our highly
skilled staff.
Command Panel
Rittal offers a wide range of
enclosure versions for all panel
combinations. In standard sizes,
or customized to your require-
ments.
Interaction between monitoring
and operation is achieved to per-
fection with the support arm and
floor-standing systems.
Industrial workstations
Industrial workstations offer more
work space than a PC cabinet
and are more compact than a
desk. Thanks to their modularity,
individual customer requirements
are met to perfection.
PC enclosure systems
Secure accommodation of a
monitor, computer system, printer
and mouse becomes child's play,
thanks to factory automation with
the PC enclosure system.
Console systems
Function and variability are
key features of all Rittal
console systems.
Three series accommodate
differing requirements in
terms of assembly, security
and operation.

7
Outstanding perform-
ance based on
customized solutions
and uncompromising
laboratory tests.

8Systems for the human/machine interface
Rittal Command Panel . . .
. . . Meeting your requirements!
Command Panel,
sheet steel
Versatile complete solutions
in sheet steel are available as standard.
Command Panel
housing with door,
with handle grips
6 sizes:
200 x 300 x 180 mm
(7.87 x 11.81 x 7.48)
to 500 x 500 x 180 mm
(19.69 x 19.69 x
7.09)
Material:
Sheet steel
Page 66 – 67
Command Panel,
stainless steel
For extremely discerning requirements
in terms of corrosion protection and
hygiene
The interface between human and machine has a decisive effect
on productivity. With this in mind, Rittal offers a wide range of
enclosure versions to suit virtually all panel combinations, tailor-
made, in standard sizes and in a variety of different materials.
The VIP 6000 offers the greatest diversity for individual customer
requirements. Where the emphasis is on a slimline design and
dimensional coordination with small operating units, the stylish
Optipanel offers an ideal solution. The new Compact Panel in
standard sizes provides an alternative.
As well as the command panels shown here in sheet steel or
stainless steel, we are also happy to equip other small enclosures
as command panels for you.
Premium Panel
Sizes:
for installed equipment
19/7 U,
120 and 220 mm (4.72
and 8.66) deep,
optionally with keyboard
housing for 19/4 U
Material:
Stainless steel
Page 60 – 63
VIP 6000
Sizes:
5 depths,
screw-fastened or
hinged sections
height and width to
order
Version:
3 front design
versions
5 color versions
Material:
Aluminum
Page 12 – 39
Optipanel
Sizes:
3 depths
height and width to
order
Material:
Aluminum
Page 40 – 57
Compact Panel
5 sizes:
238 x 241 x 87 mm
(9.37 x 9.49 x 3.43)
to 388 x 315 x 87 mm
(15.28 x 12.40 x 3.43)
Material:
Aluminum
Page 58 – 59
NEW

Systems for the human/machine interface 9
Command Panel 10 – 77
VIP 6000 12 – 39
Optipanel 40 – 57
Compact Panel 58 – 59
Premium Panel, stainless steel 60 – 63
Command Panel 64 – 73
Command Panel, stainless steel 74 – 77
Command Panel,
with VIP 6000 frame
Sizes according
to choice
Material:
Sheet steel
Page 72 – 73
Command Panel,
with handle grips
5 sizes:
200 x 300 x 155 mm
(7.87 x 11.81 x 6.1)
to 380 x 600 x 210 mm
(14.96 x 23.62 x
8.27)
Material:
Sheet steel
Page 68 – 69
Command Panel
Command Panel,
with display panel
front
4 sizes:
380 x 380 x 249 mm
(14.96 x 14.96 x 9.8)
to 600 x 600 x 249 mm
(23.62 x 23.62 x 9.8)
Material:
Sheet steel
Page 70 – 71
Command Panel
housing with door
4 sizes:
300 x 300 x 150 mm
(11.81 x 11.81 x 5.91)
to 400 x 600 x
150 mm (15.74 x
23.62 x 5.91)
Material:
Stainless steel
Page 74 – 75
Command Panel
2 sizes:
240 x 320 x 160 mm
(9.45 x 12.60 x 6.30)
and 320 x 400 x 160 mm
(12.6 x 15.75 x 6.30)
Material:
Stainless steel
Page 76 – 77

10 Systems for the human/machine interface
Rittal Command Panel . . .
. . . Suggestions from industry, for industry
Our Command Panel solutions are as diverse as the
requirements placed on them. They are tailored to customer
requirements in terms of size, design and execution.
The VIP 6000 (from page 12), Optipanel (from page 40) and
Premium Panel (from page 60) are outstanding systems for
this purpose. All Rittal CP enclosure systems may be
combined with floor-standing and support arm systems.
Allow yourself to be inspired by the application examples
shown here.
Example 1
Optipanel as a TFT case Example 2
Optipanel divided with cross
member, slimline keyboard
housing with U handle
Example 4
Wide VIP frame integrated into
a machine housing
Example 3
VIP 6000 with narrow frame,
divided twice, with support arm
system CP-XL
Example 5
VIP 6000 with combined frame,
U handle and support arm
system CP-L
Example 6
VIP operating housing with
combined frame, interface box
and deep keyboard housing

Systems for the human/machine interface 11
Example 7
Optipanel with controller and
emergency-off switch
integrated into the adaptor
panel
Example 8
Command Panel housing with
door and support arm system
CP-S in stainless steel
Example 9
Operating housing with
terminal box KL as keyboard
housing
Example 10
Command Panel housing with
door with signal pillar on
support arm system CP-L
Example 13
Stainless steel operating
housing with control
components. Suitable for
installation in the front or rear
panel
Example 14
Operating housing with wide
VIP 6000 frame and keyboard
drawer mounted in the front
panel
Example 11
VIP 6000 with handle set for
wide frames on support arm
system CP-XL
Example 16
Premium Panel with side
support arm connection CP-S.
Particularly suitable for use in
the food industry.
Example 12
VIP 6000 with wide frame and
adjustable frame connector
Command Panel
Example 15
Compact Panel with control
components integrated into the
front panel on support arm
sytem CP-S

12 Systems for the human/machine interface
Rittal Command Panel VIP 6000 . . .
. . . the yardstick of individuality
●US Design Patent No. Des. 375,726
●German patent no. 195 25,876
●German Patent No. P 41 09 695
●European patent no. 505,681
with validity for CH, DE, FR, GB, IT
●German registered design
No. M 94 08 533
●IR Reg. Des. No. DM/032 843
with validity for BE, CH, ES, FR, IT, NL
●Austral. Reg. Des. No. 125352
●Japanese Registered Des. No. 983 783
●Austrian registered design no. 17467
●Swedish registered design no. 58 996
●South Korean Reg. Des. No. 191148
●UK Reg. Des. No. 2047055
●Brazilian design pattern
no. DI 5500 709-0
Command Panels
VIP 6000 have the
following
approvals:
●UL
●CSA
●TÜV
●DNV
●Lloyds Register
of Shipping
●BV
●VDE
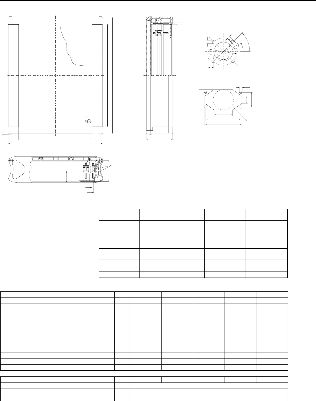
A solution is quickly found, simply by defining your requirements.
Tell Rittal the dimensions of the operator panel you are intending to
use, and the desired configuration type, and we will customize a
dimensionally accurate operating housing for you. Simply proceed
through the following pages step by step, and your solution will fit.
There is a choice of three design versions. What better framework
conditions could your operator panel have?

13
VIP 6000 14 – 39
VIP 6000 diversity 14 – 21
VIP 6000 selection 22 – 31
Technical details 32 – 39
Order form 279
This is how we implement your requirements: With the VIP 6000
concept, customized production for your panel is the norm. Every
operator panel is achieved quickly and precisely. Need a certain
depth, a defined color scheme or special ergonomic requirements?
With the Command Panel VIP 6000, we will supply you with a
unique product, tailored to your technical and aesthetic
requirements.
Command Panel

14 Systems for the human/machine interface
The choice is yours.
You define the dimensions.
The VIP 6000 offers exceptionally diverse opportunities.
●Each of the three frames conveys its own
design lines with specific functions.
●Every enclosure is custom-built to order.
●Every operator panel is assembled quickly and precisely.
Wide frame
A frame and
handle in one; the
ideal choice where
enclosures with fins all round
are used for better heat
dissipation.
Combined handle
The soft-coated
frame at the sides
is easy to hold
onto. This is also suitable for
use with enclosures with fins
at the sides.
Narrow frame
An eye-catching
design with its
stylish lines,
particularly for small
enclosures.
Any size to order
Tell Rittal the dimensions of your selected
operator panel, and the frame you have
selected will be produced with dimensional
accuracy, together with all the size-
dependent configuration components.
The few criteria you need to determine can
be found under “VIP 6000 selection” from
page 22.
Three design lines

15
VIP 6000
Diversity: Frame and front design
Systems for the human/machine interface
Command Panel
A B C
Every attachment point is accessible on
all sides!
The movable retaining clips create
sufficient play to accommodate virtually all
hole spacings (distance from the panel’s
outer edge 7 – 13 mm (0.28 to 0.51).
Screw-fastening the operator panel to the
case from the outside is particularly easy.
The screw heads disappear stylishly
beneath the cover trim (A). Front panels
with threaded bolts may also be combined
with the end trim (B) or spacer trim (C),
depending on the material thickness.
Panels with screw clamp (D) are mounted
with the end trim.
There's always a solution
Subdivison of the operating level with Rittal standard modules fulfils
every requirement. Individual cutouts can be achieved, for
example, via the adaptor panel.
Should you have any queries, please contact your specialist Rittal
advisor. As we have said, there's always a solution!
VIP 6000 selection,
see page 22 – 31.
Order form,
see page 279.
Without subdivision With cross member
or sealing bar With two cross
members or sealing
bars; combinations
are also possible
With cross member
or sealing bar,
horizontal/vertical
combined
With spacing and
built-in trim panel.
May be positioned
at the top, bottom
or side.
Adaptor plate
with individual
cutouts
Trim colors to order
Cover trim, end trim
and spacer trim are
available in five colors.
The enclosure corner
protectors are likewise
produced in the
chosen trim color.
Customized colors can
also be produced for
larger orders.
Individual front design
D

16 Systems for the human/machine interface
There are five installation
depths avaialble, depending
on the dimensions of the front
panel.
Screw-fastened or hinged
depending on your require-
ments, they offer space for:
industrial PCs, machine control
panels, flat screens and moni-
tors, keyboard drawers, drives,
bus modules and every other
conceivable application.
Versatile configuration is indi-
vidual and easy, thanks to the
internal screw channels.
Installation depth 185 mm (7.28) Installation depth 295 mm (11.61) Installation depth 328 mm (12.91)Installation depth 155 mm (6.1)Installation depth 438 mm (17.24)
Rear panels to order
Screw-fastened or vertically/
horizontally hinged – choose
the rear panel to suit your
servicing requirements.
A depth extension of 45 or
245 mm (1.77 or 9.65) can
also be achieved using special
rear panels.
Enclosures with all the
options
Enclosures are customized to the size of the front panel.
●Installation depths of 155 to 438 mm (6.1 to 17.24),
screw-fastened or hinged sections.
●Hinged rear panels offer easy servicing.
●Out with the heat! Cooling fins in the enclosure panels
and rear panels or the VIP small cooling unit make this
possible.
Tailor-made operating housing

17
VIP 6000
Diversity: Enclosures, rear panels, heat dissipation
Systems for the human/machine interface
Command Panel
Effective heat dissipation
Because it is equipped with cooling fins,
the VIP 6000 solution often eliminates the
need for active cooling components.
Even the VIP 6000 enclosure version
without fins boasts excellent heat loss
dissipation.
As indicated by the example below with
an installation depth of 155 mm (6.1),
with all-round cooling fins the
dissipatable heat loss is increased by
approximately 30 %. With air circulation
inside the enclosure, the dissipatable
heat loss is increased by up to a further
15 %. A further significant increase in
heat dissipation can be achieved with
the modular cooling rear panel.
Dissipatable heat loss*
Installation
depth:
155 mm (6.1)19/
7U
Cooling rear
panel,
modular
19/
7 + 3.5 U
Cooling rear
panel,
modular
Without fins
80 W 88 W 100 W 110 W
Side fins
95 W 105 W 115 W 127 W
Fins all round
110 W 121 W 130 W 148 W
* Pv (W) at ∆T = 20 K
Enclosures with an installation depth of 185 mm (7.28) and 328 mm
(12.91) do not have any fins immediately behind the front frame at a
depth of 44 mm (1.73).
VIP 6000 selection,
see page 22 – 31.
Order form,
see page 279.
Out with the heat – even
without expensive active
cooling modules!
Cooling fins on the enclosure
panels (either all-round or on
the sides only, as you prefer)
and the rear cooling panel
achieves a substantial
increase in the amount of heat
VIP SK small cooling unit
If cooling fins are not enough –
particularly with warm ambient
air – this cooling unit offers
peace of mind. A space-saving,
cost-effective solution, specific-
ally designed for the VIP 6000.
loss dissipated compared with
enclosures without fins. This is
achieved due to a combination
of cooling fins on the outside,
and screw channels on the
inside. In this way, heat is
absorbed and dissipated to the
outside to optimum effect.
No fins
Fins at sides
Fins all
round
++

18 Systems for the human/machine interface
The matching keyboard
housing
For all three frame types, keyboard
housings are available in the installation
depths 105 and 44 mm (4.13 and 1.73).
For the wide frame, a depth of 27 mm
(1.06) is available in two versions.
The width of the keyboard and operating
housing is identical with the wide VIP 6000
frame. With narrow and combined VIP 6000
frames, different widths of keyboard and
operating housings may also be used. Installation depth 44 mm (1.73)Installation depth 27 mm
(1.06) with cable entry
grommet or cable tube,
flexible
Frame connector, adjustable
Tilting angle adjustable from
75° – 120° in 7.5° increments
Enclosure duct connector
Tilting angle 120°, rigid, with
integral cable tube, for enclosure
installation depth 105 mm (4.13)
Enclosure bar connector
Tilting angle 120°, rigid, for
enclosure installation depth
44 mm (1.73)
Frame connector,
rigid
Tilting angle 120°
Hinged frame connector
Tilting angle 75° – 120°
infinitely adjustable
Wide
frame Combined
frame Narrow
frame
For optimum ergonomic
conditions
Further diversity from the modular system:
●Keyboard housing in three different depths.
●Support arm systems swivel, rotate, raise and lower the
operating unit at any given point.
●Stationary and mobile floor-standing systems.
●Handle sets make it easier to hold and steer.
Cable tube, rigid
in conjunction with
enclosure depth
105 mm (4.13)
Cable tube, flexible
to fit enclosures in depths 105, 44
and 27 mm (4.13, 1.73 and
1.06) (with cable tube connection)
Installation depth 105 mm (4.13)
Keyboard housing connector
Depending on the chosen VIP 6000 frame,
rigid and adjustable connections between
the operating housing and the keyboard
housing are available.

19
VIP 6000
Diversity: Keyboard housings and ergonomics
Systems for the human/machine interface
Command Panel
Precisely the right position
Different viewing angles of the machine,
whether the operating staff are tall or short,
sitting or standing – with Rittal support arm
systems, the Command Panel is always in
the optimum position.
Depending on the system configuration,
arm length and enlcosure weight, support
arm systems CP-L or CP-XL are used. If
you want to combine a high load capacity
with a stylish look, system combinations
provide the ideal solution.
Always within reach
Tailored precisely to the operator's
requirements, various handle sets may be
fitted in accordance with ergonomic
requirements. “Moving” the enclosure
becomes effortless.
VIP 6000 selection,
see page 22 – 31.
Order form,
see page 279.
Stationary
or mobile
Floor-standing sys-
tems in a variety
of designs – even
height-adjustable –
round out the applica-
tion diversity of the VIP
6000 Command Panel.
Mobile pedestal Pedestal base plateCP pedestal, height-
adjustable

20 Systems for the human/machine interface
. . . with wide frame.
A small selection from the wide range of opportunities available.
For enclosures with cooling fins, the wide frame is important.
Example C
●Operating housing,
155 mm (6.1) deep
●Keyboard housing at
top, 44 mm (1.73)
deep, with adjustable
frame connector
●Keyboard housing at
bottom, 44 mm (1.73)
deep, with rigid frame
connector
●Cable tube, flexible
●Vertical handle sets
●Support arm
connection
at bottom
Example F
●Operating housing,
438 mm (17.24)
deep, for color
screen
●With horizontal
handle set
●With horizontal
sealing bar
●Support arm
connection at top
Nothing’s impossible . . .
A kaleidoscope of incredible solution diversity.
Configure your perfect enclosure. Allow yourself to be
inspired by these examples:
e.g. by the front divisions, the handle arrangements, the
enclosure depths, and much more besides.
Example B
●Operating housing,
155 mm (6.1)
deep
●Side keyboard
housing, 44 mm
(1.73) deep
●Frame connector,
rigid
●Vertical handle set
with clipboard
●With horizontal
cross member and
vertical sealing bar
●Support arm
connection at
bottom
Example A
●Operating housing,
155 mm (6.1) deep
●Keyboard housing,
27 mm (1.06) deep,
with cable entry
grommet
●Frame connector,
adjustable
●Vertical handle set
●With vertical and
horizontal cross
member
●Support arm
connection at
bottom
Example E
●Operating housing,
155 mm (6.1)
deep
●Keyboard housing,
105 mm (4.13)
deep
●Frame connector
and cable tube,
rigid
●Support arm
connection at
bottom
Example D
●Operating housing,
155 mm (6.1)
deep, with vertical
handle set
●Keyboard housing
with handle set,
horizontal and
vertical
●Cable tube,
flexible
●Support arm
connection at
bottom

VIP 6000
Diversity: Configuration examples
Systems for the human/machine interface
Command Panel
. . . with narrow frame.
Stylish lines for small enclosures and those without fins.
. . . with combined frame.
The soft-coated frame at the sides is particularly sympathetic to the
touch.
Example G
●Operating housing,
155 mm (6.1)
deep
●With U handle,
vertical
●Enclosure
connector,
adjustable, on the
left-hand side for
vertically hinged
wall mounting
Example H
●Operating housing,
155 mm (6.1)
deep
●Keyboard housing,
105 mm (4.13)
deep
●Enclosure duct
connector
●Support arm
connection at
bottom
Example I
●Operating housing,
155 mm (6.1)
deep
●Keyboard housing,
44 mm (1.73)
deep
●Hinged frame
connector
●U handles –
vertical
●Cable tube,
flexible
●Support arm
connection at top
Example J
●Operating housing,
155 mm (6.1) deep
●Keyboard housing,
44 mm (1.73) deep
●With enclosure bar
connector
●With corner handles
●Cable tube, flexible
●Support arm
connection
at bottom
Example K
●Operating housing,
155 mm (6.1)
deep
●Keyboard housing,
44 mm (1.73)
deep
●Enclosure bar
connector
●Support arm
connection at
bottom
Example L
●Operating
housing, 185 mm
(7.28) deep,
hinged
●Keyboard
housing, 44 mm
(1.73) deep
●Enclosure bar
connector
●Cable tube,
flexible
●Support arm
connection at top
Example M
●Operating housing,
155 mm (6.1)
deep
●Keyboard housing,
44 mm (1.73)
deep
●Enclosure bar
connector
●Cable tube,
flexible
●Support arm
connection at top
Example N
●Operating and
keyboard housing
in various widths
●Keyboard
housing, 105 mm
(4.13) deep, with
cross member
●Enclosure duct
connector
●U handle,
horizontal
●Support arm
connection at top
Example O
●Operating housing,
155 mm (6.1) deep
●Keyboard housing,
top, with hinged
frame connector
●Keyboard housing,
bottom, with
enclosure bar
connector
●Cable tube, flexible
●Support arm
connection at top
Example P
●Operating housing,
155 mm (6.1)
deep
●Corner handles
●Support arm
connection at top

VIP 6000
Selection: Operating housing / keyboard housing
22 Systems for the human/machine interface
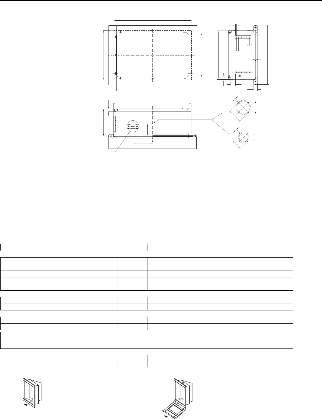
Part No. CP
6392. 09
We will need the following
information in order to deal
with your enquiry/order:
●Model No. front frame:
CP 6392.X09
●The dimensions and number
of panels/front panels to be
installed in the operating/
keyboard housing
●Design code number for the
operating/keyboard housing
Order form, see page 279
.009
.109
.209
Wide frame
Extruded aluminum
section
Die-cast zinc corner
pieces
Color: RAL 70352)
finely textured
Combined frame1)
Extruded aluminum
section in finely textured
RAL 70352) (top/bottom),
horizontal
Soft-coated frame similar
to RAL 7024 (sides),
vertical
Die-cast zinc corner
pieces, RAL 70352)
Note:
Not possible with enclos-
ures with all-round
cooling fins.
Narrow frame1)
Extruded aluminum
section
Die-cast zinc corner
pieces
Color: RAL 70352)
finely textured
Note:
Only possible with
enclosures without
cooling fins.
0 21
2. Panel dimensions
2.1 For operating housings CP 6392.X09
On the order form, please state the number of front panels/panels
used, their Height (H) x Width (W) x Depth (D) and the manufac-
turer/model, using the installation criteria below.
2.2 For keyboard housings CP 6351.X09
On the order form, please state the Height (H) x Width (W) x Depth
(D) of the keyboard/panel and the manufacturer/model, using the
installation criteria below.
1
2
2
3
4
W
H
Checking the
installation criteria
With the following installation
criteria, please check whether
your operator panels may be
installed directly into the
VIP 6000.
Otherwise, an adaptor panel is
needed – cf. 3.2, design code
number , see page 24. The
dimensions of the command
panel and keyboard housing
are derived from the dimen-
sions of your panel and the
number of cross members.
7 to 13 mm (0.28 to 0.51)
edge spacing of the
mounting holes or bolts.
Front panel projection on
sides with mounting holes or
bolts at least 17 mm (0.69),
on sides without mounting
holes at least 6 mm (0.24).
7 – 13 29
R 38
7 – 13
H
98.5
B
98.5
5
3
T
T = Depth
B = Width
6
1
2
Front panel thickness
variable, depending on the
type of trim section see page
25, version 3.4.
Installation depths:
Command panels = 155 mm
(6.1), 185 mm (7.28)1),
295 mm (11.611), 328 mm
(12.91)1), 438 mm (17.24)1).
Command panel with 45 mm
deep rear panel2) = 200 mm
(7.87), 230 mm (9.06)1),
340 mm (13.39)1), 373 mm
(14.69)1), 483 mm (19.02)1).
Command panel with
245 mm deep rear panel2) =
400 mm (15.75), 430 mm
(16.93)1), 540 mm (21.26)1),
573 mm (22.26)1), 683 mm
(26.89)1).
For versions with a hinged
rear panel, the maximum
installation depth is reduced
by 27 mm (1.06) in the
vicinity of the lock.
1) Enclosure without fins with a
60 mm (2.36) deeper rear
section available on request.
2) Other depths available on
request.
3
4
5
min. 17
min. 6
1. Front frame
Select the frame to match your
requirements. It is used auto-
matically for a keyboard
housing as well.
1) For keyboard housing
depth 27 mm (1.06) not
possible (see selection 4.1).
2) Other RAL colors
available on request.

VIP 6000
Selection: Operating housing
Systems for the human/machine interface 23
Command Panel
1) Enclosure without fins with a 60 mm
(2.36) deeper rear section available on
request.
2) Cam lock with double-bit lock insert may
be exchanged for lock inserts 41 mm
(1.61), version C, see page 246.
3) Provided the admissible load capacity of
the support arm system is adequate (see
page 96).
3.1 Installation depth
Material:
Enclosure:
Extruded aluminum section
Corner protectors:
Plastic, self-extinguishing
Finish:
Enclosure: Natural anodized
Note:
Support arm connection,
see 3.6.
Drawing view from above.
R/h hinge is also possible.
Technical details,
see page 32/33.
3.1 3.2 3.3 3.4 3.5 3.6 3.7 3.8
Installation depth:
155 mm (6.10)Installation depth:
185 mm (7.28)1) Installation depth:
295 mm (11.61)1)
screw fastened screw fastened screw fastened
3.1
1
3.1
2
3.1
4
Support arm system
CP-L prepared prepared prepared
Support arm system
CP-XL with adaptor
CP 6528.500 with adaptor
CP 6528.500 with adaptor
CP 6528.500
hinged2) hinged2)
3.1
5
screw fastened screw fastened
3.1
6
3.1
8
Installation depth:
328 mm (12.91)1) Installation depth:
438 mm (17.24)1)
3.1
3
hinged2) hinged2)
3.1
7
3.1
9
Support arm system
CP-L with adaptor
CP 6528.0003) with adaptor
CP 6528.0003)
Support arm system
CP-XL prepared prepared

VIP 6000
Selection: Operating housing
24 Systems for the human/machine interface
With two sealing bars1) With one cross member
and one sealing bar1) 2)
3.2
4
3.2
5
With one cross member 3.2
1
With one sealing bar1) 3.2
2
3.2 Front design
Cross member
For horizontal and/or vertical
division. With channel on both
sides for mounting kits,
see page 233.
Material:
Extruded aluminum section,
RAL 7035.
Sealing bar
For horizontal and/or vertical
division. The “slot-free” division
produces a height gain of
28 mm (1.10).
Material:
Extruded aluminum section
8 x 20 mm (0.79), natural
anodized
Adaptor plate
Material thickness:
3 mm (0.12) aluminum, natural
anodized.
Please specify the dimensions
for the front panel and the
desired holes and cutouts.
Spacing and
Built-in trim panel
For additional space for cable
entry and for the installation of
switches/indicator lights,
emergency off/key switches,
CD-ROM drives, interfaces etc.
With channel on one side for
mounting kits, cf. page 233.
Material:
Extruded aluminum section,
natural anodized.
Technical details,
see page 34.
Additional parts
Mounting kit for installing front
panels, operating panels and
keyboards in operating and
keyboard housings,
see page 233.
Without
cross
member
3.2
0
With two
cross
members
3.2
3
With one
adaptor plate
(to specifica-
tions)
3.2
6
3.1 3.2 3.3 3.4 3.5 3.6 3.7 3.8
1) Not possible with spacer trim
(cf. 3.4).
2) Unless otherwise specified:
Sealing bar at the top,
Cross member at the bottom.
3) Only for use in conjunction
with end trim.
4) Screw-fastened from the
inside, with cam or l/h hinge on
request.
With spacing and
built-in trim panel at
the top3)
3.2
7
With spacing and
built-in trim panel at
the bottom3)
3.2
8
With front panel
hinged4)
For example, if a disk drive
built into the operator panel
necessitates free access.
Standard design
●Screw-fastened from the
outside
●R/h hinge
3.2
9

VIP 6000
Selection: Operating housing
Systems for the human/machine interface 25
Command Panel
3.3 Cooling fins
3.1 3.2 3.3 3.4 3.5 3.6 3.7 3.8
Fin design is chosen according to the heat loss
to be dissipated, see page 17. Enclosures with an installation depth of 185 mm
(7.28) and 328 mm (12.91) do not have any fins
immediately behind the front frame at a depth of
44 mm (1.73). The color of the corner protectors
matches the trim color selected under 3.5.
3.4 Trim types
Technical details,
see page 35.
3.1 3.2 3.3 3.4 3.5 3.6 3.7 3.8
Cover trim
To conceal the
front panel
assembly screws.
For front panel
thickness up to
3.5 mm (0.14).
3.4
1
3.5 Trim colors
3.1 3.2 3.3 3.4 3.5 3.6 3.7 3.8
Turqoise
(similar to
RAL 5018)
3.5
1
Note:
Enclosure corner protectors are also supplied in the chosen color. Other colors available on request with larger orders.
Bright blue
(similar to
RAL 5005)
3.5
2
Bright red
(similar to
RAL 3001)
3.5
3
Pebble grey
(similar to
RAL 7030)
3.5
5
Graphite
(similar to
RAL 7024)
3.5
6
End trim
Attractively finishes off
the space between the
front panel and the frame
section. For all front
panel thicknesses.
3.4
2
Spacer trim
For installed equipment
flush with the frame
section.
For front panel thickness
up to approx. 3.5 mm
(0.14).
3.4
3
No fins Fins at sides Fins all round
3.3
1
3.3
2
3.3
3

VIP 6000
Selection: Operating housing
26 Systems for the human/machine interface
Without
connection Connection,
top Wall
connection,
rigid,1)
see page 226
3.6
0
3.6
1
3.6
X
Connection,
bottom Connection,
top and
bottom,
one cover plate
included
Wall connec-
tion, vertically
hinged,
see page 226
3.6
2
3.6
3
3.6
0
3.6 Support arm /
wall connection
3 different support arm
systems, see page 80 and
various floor-standing systems,
see page 132 are available.
Note:
Support arm connection CP-S
for small enclosures with an
installation depth of 155 mm
(6.10) are selected by adding
an “S” after the design code
number.
Technical details,
see page 32.
3.1 3.2 3.3 3.4 3.5 3.6 3.7 3.8
3.7 Preparation
for mounting
keyboard housings
Technical details,
see page 32 – 33.
3.1 3.2 3.3 3.4 3.5 3.6 3.7 3.8
Without
connection
to the key-
board housing
3.7
0
To fit
keyboard housing depth: – 105 (4.13) 105 (4.13)
– 44 (1.73) –
– 27 (1.06) –
Connection of operator panel
to keyboard housing:
(Selection 4.4, page 30)
– Frame connector,
rigid/adjustable Enclosure
duct connector
Cable tube:
(Selection 4.5, page 31) – rigid/flexible Enclosure
duct connector
To fit
keyboard housing depth: – 105 (4.13)
44 (1.73) 44 (1.73)
Connection of operator panel
to keyboard housing:
(Selection 4.4, page 30)
Enclosure
bar connector Hinged
frame connector
Cable tube:
(Selection 4.5, page 31) flexible flexible
Connection with
enclosure bar connector Connection with hinged
frame connector
3.7
3
3.7
4
Connection to frame
connector either rigid
or adjustable
Connection with
enclosure duct
connector
3.7
1
3.7
2
1) When ordering, please specify
the position of the enclosure duct
connector.

VIP 6000
Selection: Operating housing
Systems for the human/machine interface 27
Command Panel
3.1 3.2 3.3 3.4 3.5 3.6 3.7 3.8
3.8 Rear panels
Screw fastened
Material:
Aluminum,
natural anodized.
3.8
1
Hinged1)
For rapid
service access
Material:
Aluminum, natural anodized.
3.8
2
Depth plus 45 mm (1.77)
Hinged,
screw fastening
Material:
Sheet steel, RAL 7035
3.8
3
1) On the longest side (right/
bottom), cam with double-bit
insert, may be exchanged for
lock inserts 41 mm (1.61),
version C, see page 246,
plastic handles and T handles,
version C, see page 245 – 246.
Depth plus 245 mm
(9.65),
square2), screw-fastened
Material:
Sheet steel, RAL 7035
2) For 482.6 mm (19)/7 U
concave
3.8
4
Hinged1)
for heavy installed
equipment
Material:
Aluminum, natural anodized.
3.8
5
Screw-fastened with
built-in VIP SK small
cooling unit, condenser
configuration left top
Recommendation for command
panel design
(see 3.1 Installation depth,
3, 5, 7, 9)
Material:
Aluminum, natural anodized.
Technical details,
see page 202.
3.8
6
Screw-fastened with
built-in VIP SK small
cooling unit, condenser
configuration right top
Recommendation for command
panel design
(see 3.1 Installation depth,
3, 5, 7, 9)
Material:
Aluminum, natural anodized.
Technical details,
see page 202.
3.8
7
Rear cooling panel
modular3)
Significantly increases
heat dissipation from the
enclosure!
Material:
Extruded aluminum section,
natural anodized
Technical details and
arrangement of the sections,
see page 35.
3.8
8
3) When installing the pull-out keyboard CP 6002.100
(see page 263) in the VIP 6000, design version 3.1, no. 1 the
11 mm (0.43) cooling fins and screw channels protruding into the
enclosure may be milled off.
Please state the installation position when ordering.

VIP 6000
Selection: Keyboard housing
28 Systems for the human/machine interface
Depth 27 mm (1.06)
with cable entry
grommet, for desktop
enclosures
Depth 27 mm (1.06)
with cable tube, flexible,
for desktop enclosures
Support for keyboards 1)
4.1
3
4.1
4
4.1
5
Installation depth
105 mm (4.13) for
built-in keyboards
Installation depth
44 mm (1.73) for
built-in keyboards
4.1
1
4.1
2
4.1 Keyboard
housing
Without fins.
For installing or positioning
keyboards on top (with a depth
of 27 mm (1.06).
All keyboard housings are
custom-produced to your
dimensions. When selecting
the wide front frame, the width
of the keyboard housing
depends on the operating
housing.
Material:
Extruded aluminum section
Technical details,
see page 36 – 38.
Additional parts
Mounting kit for installing front
panels, operating panels and
keyboards in command panels
and keyboard housings,
see page 233.
4.1 4.2 4.3 4.4 4.5
Example of the versatility of
the keyboard housing:
External mounting on doors
With all keyboard housings, the
rear panel may be supplied
prepared for external mounting
on flat surfaces on request.
Additional parts
Enclosure duct connector
CP 6006.000, see page 226.
For mounting and cable entry.
Cross-brace for door
TS 8800.960 / TS 8800.980,
for mounting on 600/800 mm
(23.62/31.50) wide doors
TS/ES.
1) Only in conjunction with
hinged frame connector, cf. 4.4
design code number .
5

VIP 6000
Selection: Keyboard housing
Systems for the human/machine interface 29
Command Panel
4.2 Trim types1)
Technical details,
see page 35.
4.1 4.2 4.3 4.4 4.5
Cover trim
To conceal the
front panel
assembly screws.
For front panel
thickness up to
3.5 mm (0.14).
3.4
1
End trim
Attractively finishes off
the space between the
front panel and the frame
section. For all front
panel thicknesses.
3.4
2
Spacer trim
For installed equipment
flush with the frame
section.
For front panel thickness
up to approx. 3.5 mm
(0.14).
3.4
3
4.3 Trim colors1)
Note:
Enclosure corner protectors
may also be supplied in the
chosen color.
Other colors available on
request with larger orders.
4.1 4.2 4.3 4.4 4.5
Turqoise
(similar to
RAL 5018)
4.3
1
1) Cannot be selected with keyboard housing depth 27 mm (1.06) or support for
keyboards. In such cases, please enter an X.
Bright blue
(similar to
RAL 5005)
4.3
2
Bright red
(similar to
RAL 3001)
4.3
3
Pebble grey
(similar to
RAL 7030)
4.3
5
Graphite
(similar to
RAL 7024)
4.3
6
1) Cannot be selected with keyboard housing depth 27 mm (1.06) or support for
keyboards. In such cases, please enter an X.

VIP 6000
Selection: Keyboard housing
30 Systems for the human/machine interface
Enclosure
bar connector Hinged
frame connector
4.4
4
4.4
5
4.4 Keyboard
housing connector
Supplied loose with the
keyboard housing for
connecting operating housings
and keyboard housings.
Technical details,
see page 39. Frame connector,
(rigid) Frame connector,
(adjustable) Enclosure
duct connector
4.4
1
4.4
2
4.4
3
Keyboard housing depth: 105 (4.13) 105 (4.13) 105 (4.13)
44 (1.73) 44 (1.73)–
27 (1.06) 27 (1.06)–
Tilting angle: 120°, rigid 75 – 120°,
adjustable in 7.5° increments 120°, rigid
Cable tube: See 4.5 See 4.5 Integral
To fit operating and keyboard
housings with the same width.
Material:
Die-cast zinc, RAL 7035
To fit operating and keyboard
housings with the same width.
Material:
Die-cast zinc, RAL 7035
To fit operating housings with
keyboard housing 105 mm
(4.13) deep, also in different
widths.
Material:
Aluminum, RAL 7035
4.1 4.2 4.3 4.4 4.5
Keyboard housing depth: – 105 (4.13)
44 (1.73) 44 (1.73)
Tilting angle: 120°, rigid 75 – 120°,
infinitely adjustable
Cable tube: See 4.5 See 4.5
To fit operating housings with
keyboard housings 44 mm
(1.73) deep, also in different
widths.
Material:
Sheet steel, RAL 7035
To fit operating housings with
keyboard housings 105, 44 mm
(4.13", 1.73) deep and support
for keyboards, also in different
widths.
Material:
Aluminum, RAL 7035

VIP 6000
Selection: Keyboard housing
Systems for the human/machine interface 31
Command Panel
4.5 Cable tube
4.1 4.2 4.3 4.4 4.5
Without cable tube Cable tube, rigid Cable tube, flexible
4.5
0
4.5
1
4.5
2
Suitable for cable routing when
using the rigid frame connector
(for wide frames) and keyboard
housings with a depth of
105 mm (4.13).
Material:
Aluminum, RAL 7035
Note:
Not possible with:
3.1 Operating housing,
design code numbers 3 and 7.
4.4 Keyboard housing
connector,
design code number 2.
Suitable for cable entry when
using the frame connector,
adjustable, hinged frame
connector or enclosure bar
connector. External mounting
on keyboard housings with
105, 44 or 27 mm (4.13, 1.73
or 1.06) depth or support for
keyboards.
Material:
Plastic, RAL 7035
Note:
Not possible with:
4.1 Keyboard housing,
design code number 3.
Examples
The picture opposite shows the solution we
have chosen, together with its
corresponding design code number.
The following key explains how the code
number in our example is made up.
Operating housing
Part No.: CP 6392.009
Design code number:
Keyboard housing
Part No.: CP 6351.009
Design code number:
2) Replace X with the number after
selecting the front frame.
3.1 3.2 3.3 3.4 3.5 3.6 3.7 3.8
11212212
Operating housing,
Installation depth 155 mm (6.1)
1 cross member
Cooling fins (sides)
Cover trim
Trim color: Bright blue
Support arm connection at bottom
Frame connector and
cable tube
Rear panel, hinged
with double-bit lock
3.1 1
3.2 1
3.3 2
3.4 1
3.5 2
3.6 2
3.7 1
3.8 2
We need the following information in
order to deal with your enquiry/order:
●Part No. front frame: CP 6392.X092)
●The dimensions and number of
panels/front panels to be installed in
the operating/keyboard housing
●Design code number for the
operating/keyboard housing
Order form, see page 279.
4.1 4.2 4.3 4.4 4.5
11211
Keyboard housing,
installation depth 105 mm
(4.13)
Cover trim
Trim color: Bright blue
Frame connector, rigid
Cable tube, rigid
4.1 1
4.2 1
4.3 2
4.4 1
4.5 1
3.1
1
3.2
1
3.3
2
3.4
1
3.6
2
3.7
1
3.5
2
3.8
2
4.1
1
4.2
1
4.4
1
4.5
1
4.3
1

32 Systems for the human/machine interface
Y
X
17
A
143
68
33
B7 (B1 + 43)
B8 (B1 + 25)
B5 (B1 – 33)
173 (176)
31 (34)
68
80
B5 (B1 – 33)
B4 (B1 – 8)
B1
H1
B6 (B1 + 12)
H2 (H1 + 133)
H6 (H1 + 12)
H5 (H1 – 33)
B2 (B1 + 133)
H4 (H1 – 8)
B2 (B1 + 77)
H2 (H1 + 77)
B2 (B1 + 88)
H2 (H1 + 77)
7
Ø 70
Ø 82
80
Ø 112
Ø 100
7
205 (208)
68
113
B1
X
Y
17
17*
= Max. installation space
with hinged housings
A
Width dimensions:
B1 = Width of front panel
B2 = Overall width
B3 = Enclosure width
B4 = Clearance width between
enclosure sections
B5 = Clearance width between
the retaining clips
of the mounting kit
B6 = Clearance width between
the front frames
B7 = Width of rear panel
B8 = Internal clearance of enclosure,
width
3.1 Installation depth
Front frame, wide Narrow Combined
155 mm (6.10)
1Support arm connections
CP-L, round CP-XL
185 mm (7.28), screw-fastened
2 185 mm (7.28), hinged
3
Height dimensions:
H1 = Height of front panel
H2 = Overall height
H3 = Enclosure height
(with fins: H1 + 85 (3.35);
without fins: H1 + 55 (2.17))
H4 = Clearance height between
enclosure sections
H5 = Clearance height between
the retaining clips
H6 = Clearance height between
the front frames
H7 = Height of rear panel (H1 + 43 (1.69))
H8 = Internal clearance of enclosure,
height (H1 + 25 (0.98))
B3 (with fins/partial fins: B1 + 85)
B3 (without fins: B1 +55)
Cross-
section
cable tube
max. installation depth 155
Support arm connection for system CP-L, round Support arm connection for system CP-L, round
max. inst depth 185
max. 130°
Max. installation depth
Collision zone
Dimensions in brackets refer to narrow and combined front frames
Support arm connection,
for system CP-L, round
A
Only for CP 6392.009
Dimensions in brackets refer to narrow and combined front frames
Only for CP 6392.109
and CP 6392.209
* see page 22.

Systems for the human/machine interface
VIP 6000
Technical details
33
Command Panel
458 (461)
222
364
316 (319)
222
210
Y
17
X
A
348 (351)
254
222
X
17
Y
A
X
Y
A
17
300250 350 400 450 500 550 600 650 700 750
100
90
80
70
60
50
40
30
20
10
0
Y
X
482.6 mm (19˝)
300250 350 400 450 500 550 600 650 700 750
260
180
200
220
240
160
140
120
100
80
60
40
20
0
Y
X
482.6 mm (19˝)
295 mm (11.61), screw-fastened
4 295 mm (11.61), hinged
5
328 mm (12.91), screw-fastened
6 328 mm (12.91), hinged
7
438 mm (17.24), screw-fastened
8 438 mm (17.24), hinged
9
Support arm
connection for
system CP-XL
Support arm connection,
for system CP-L, round
Support arm
connection,
for system CP-XL
max. installation depth 328
Support arm
connection,
for system CP-L,
round
max. installation depth 438 max. installation depth 295
Support arm
connection for
System CP-XL
Support arm
connection for
System CP-XL
Dimensions in brackets refer to narrow and combined front frames
max. installation depth 438
max. 160°
max. installation depth 328
max. 130°
max.
170°
max. installation depth 295
Dimensions in brackets refer to narrow and combined front frames
Dimensions in brackets refer to narrow and combined front frames
Calculating the swivel mounting space
(Version and )
3 5 Calculating the swivel mounting space
(Version and )
7 9
X, Y (mm)
Front panel width B1 (mm)
X, Y (mm)
Front panel width B1 (mm)
Only for CP 6392.009
Only for CP 6392.109
and CP 6392.209

34 Systems for the human/machine interface
17
28.5
20
3.2 Front design
Cross member
135 Sealing bar
245
Minimum front panel width (B1)
Depending on the
●Installation depth of the operating housing
●Connection between the operating housing/keyboard housing
●Position of the support arm connection
Dimensions in mm (inches) Installation depth of operating housing (see 3.1, page 23)
155 (6.10) 185 (7.28) 295 (11.61) 328 (12.91) 438 (17.24)
Connection to
keyboard housing
(see 3.7,
page 26)
Position of
support arm
connection
(see 3.6,
page 26)
None to
top or
bottom
Minimum front panel width
169 (6.65) 265 (10.43) 169 (6.65) 265 (10.43)
265 (10.43)
Frame
connector or
Hinged frame
connector
top 169 (6.65) 265 (10.43) 169 (6.65) 265 (10.43)
and
bottom 339 (13.35)* 445 (17.52)* 339 (13.35)* 445 (17.52)*
Enclosure
duct connector
top 189 (7.44) 265 (10.43) 189 (7.44) 265 (10.43)
and
bottom 339 (13.35) 445 (17.52) 339 (13.35) 445 (17.52)
Enclosure
bar connector
top 169 (6.65) 265 (10.43) 169 (6.65) 265 (10.43)
and
bottom 397 (13.35)* 445 (17.52)* 397 (15.63)* 445 (17.52)*
* Smaller front panel widths for asymmetrical support arm connection available on request.
12468
3579
00 3
1
4
1
2 3
2
1
2 3
3
1
2 3
Front panel 1
Front panel 2
Cross member
CP 6015.000
H1 top
H1 bottom
Sealing bar
CP 6015.500
Front panel 2
Front panel 1
H1 top
H1 bottom

Systems for the human/machine interface
VIP 6000
Technical details
35
Command Panel
6.5
617
6 17
6.5
B1/H1
B1/H1
6
6
B1/H1 B1/H1
6
B1/H1
6
B1/H1
3.8 Rear cooling panel
= Rear cooling panel section, unless otherwise specified the
cooling fins are arranged vertically
= Width compensating panel, mounted in the center with an
even number of heat sinks, or on the right with an uneven
number.
By rotating the entire rear panel by 180°, this position may be
modified individually
= Spring nut M5, CP 6108.000 for interior installation on screw
channels
= Overall depth of the enclosure is increased by 13 mm (0.51)
= Front panel width for determining the cooling modules and
compensating panel
3.4 Trim types
Cover trim
Front panel recessed, screws concealed
1End trim
Front panel recessed
2
Spacer trim
Front panel flush
3Mounting kit
for bolts:
M5: CP 6053.500
M4: CP 6058.500
Mounting kit
for screw clamp:
CP 6053.200
Mounting kit
for holes:
M5: CP 6053.000
M4: CP 6058.000
M6: CP 6053.000 / 6058.000
+ EL 2092.200
+ screws M6 x 25
max. 3.5
max. 3.5
variable
variable
max. 3.5
max. 3.5
Mounting kits,
see page 233.
11
50
11
2134
5
1

36 Systems for the human/machine interface
B1
B4 (B1 + 12)
B2 (B1 + 133)
B3 (B1 + 61)
B1
92
B2 (B1 + 77)
B1
B2 (B1 + 88)
92
123
X
30°
H6 (H1 + 43)
H3 (H1 + 61)
H1 x 0.87 + 123
H2 (H1 + 133)
H1
H5 (H1 – 8)
H4 (H1 + 12)
CP 6058.XXX: M4
CP 6053.XXX: M5
H1 x 0.5 + 138
87
22
X
H1 x 0.87 + 74
H1 x 0.5 + 138
CP 6058.XXX: M4
CP 6053.XXX: M5
H6 (H1 + 43)
H3 (H1 + 61)
H2 (H1 + 77)
H1
H5 (H1 – 8)
H4 (H1 + 12)
30°
126
87
22
X
H1 x 0.87 + 74
H1 x 0.5 + 138
CP 6058.XXX: M4
CP 6053.XXX: M5
H6 (H1 + 43)
H3 (H1 + 61)
H2 (H1 + 77)
H1
H5 (H1 – 8)
H4 (H1 + 12)
30°
126
Installation depth 105 mm (4.13)
Front frame
Wide
1
Narrow
Combined
Enclosure
duct connector
4.1 Keyboard housing
max.
installation
depth
105
Enclosure
duct connector
Frame connector,
rigid/adjustable,
CP 6016.000
max.
installation
depth
105
max.
installation
depth
105

Systems for the human/machine interface
VIP 6000
Technical details
37
B1
B4 (B1 + 12)
B3 (B1 + 61)
B2 (B1 + 133)
X
63
H6 (H1 + 43)
H3 (H1 + 56)
H1 x 0.87 + 123
30°
H2 (H1 + 133)
H1
H5 (H1 – 8)
H4 (H1 + 12)
CP 6058.XXX: M4
CP 6053.XXX: M5
H1 x 0.5 + 97
B4 (B1 + 12)
B1
B2 (B1 + 77)
B1 – 27 131
X
66
19
CP 6058.XXX: M4
CP 6053.XXX: M5
H1 x 0.87 + 74
H1 x 0.5 + 86
H2 (H1 + 77)
H1
H5 (H1 – 8)
H4 (H1 + 12)
H6 (H1 + 43)
H3 (H1 + 56)
30°
B4 (B1 + 12)
B1
B2 (B1 + 88)
B1 – 27
131
X
66
19
CP 6058.XXX: M4
CP 6053.XXX: M5
H1 x 0.87 + 74
H1 x 0.5 + 86
H2 (H1 + 77)
H1
H5 (H1 – 8)
H4 (H1 + 12)
H6 (H1 + 43)
H3 (H1 + 56)
30°
33
68
Width dimensions:
B1 = Width of front panel
B2 = Overall width
B3 = Enclosure width
B4 = Clearance width between the
front frames
B6 = Width of rear panel
B7 = Distance between rear panel holes,
width
Height dimensions:
H1 = Height of front panel
H2 = Overall height
H3 = Enclosure height
H4 = Clearance height between
the front frames
H5 = Clearance height between
enclosure sections
H6 = Height of rear panel
H7 = Distance between rear panel holes,
height
Narrow
Combined
X = Cross-section of cable tube connection
max.
Installation
depth
44
max.
Installation
depth
44
Enclosure
bar connector
Enclosure
bar connector
Installation depth 44 mm (1.73)
Front frame
Wide
2
max.
Installation
depth
44
Frame connector,
rigid/adjustable
Command Panel

38 Systems for the human/machine interface
33
68
B2 (B1 + 133)
Ø 29
B7 (B1 + 21)
B6 (B1 + 54)
B4 (B1 + 12)
B4 (B1 + 12)
B2 (B1 + 133)
B7 (B1 + 21)
B6 (B1 + 54)
H1 x 0.5 + 80
H1 x 0.87 + 112
27
30°
H2 (H1 + 121)
H6 (H1 + 54)
H7 (H1 + 21)
H4 (H1 + 12)
H1 x 0.5 + 80
H1 x 0.87 + 112
30°
X
H2 (H1 + 121)
H6 (H1 + 54)
H7 (H1 + 21)
H4 (H1 + 12)
27
Continued
4.1 Keyboard housing
Width dimensions:
B1 = Width of front panel
B2 = Overall width
B3 = Enclosure width
B4 = Clearance width between the
front frames
B6 = Width of rear panel
B7 = Distance between rear panel holes,
width
Height dimensions:
H1 = Height of front panel
H2 = Overall height
H3 = Enclosure height
H4 = Clearance height between
the front frames
H5 = Clearance height between
enclosure sections
H6 = Height of rear panel
H7 = Distance between rear panel holes,
height
Depth 27 mm (1.06)
Front frame, wide,
for cable tube, flexible
4
X = Cross-section of cable tube connection
Frame connector,
rigid/adjustable
Frame connector,
rigid/adjustable
Depth 27 mm (1.06)
Front frame, wide,
with cable entry grommet
3

Systems for the human/machine interface
VIP 6000
Technical details
39
F2F4
F
2
F
5
F2F2F3
F2F4F3
50°
10°
49
120°
CP 6351.009
54
30°
75°
CP 6351.009
120°
10
10
120°
F2F3
F5
F2F4
F5
F2F4F3
F5
F3F2F4F3F2F4
F5
27
135°
90°
4.4 Keyboard housing connector
Front frame, wide Front frame narrow/combined
Enclosure
bar connector
for keyboard
housing:
Installation depth
44 mm (1.73)
4Hinged
frame
connector
for keyboard
housing:
Installation depth
105 mm (4.13)
+ 44 mm (1.73)
5
Frame connector,
adjustable
for all keyboard housings
2
Permissible installed weight:
F1 = total, F2 = enclosure part (with support arm connection),
F3 = front part, F4 = rear part, F5 = keyboard housing
Load specifications for installed equipment
500 N
F1 = 500 N
(112.40 lbf)
450 N 180 N
(150 N) 320 N 130 N
(100 N) 320 N 350 N 150 N
(120 N) 300 N 150 N
(120 N)
F1 = 500 N
(112.40 lbf)
(470 N)
(105.66 lbf)
F1 = 500 N
(112.40 lbf)
(470 N)
(105.66 lbf)
50 N
(11.24 lbf) 50 N
(11.24 lbf) 50 N
(11.24 lbf)
300 N 120 N 300 N 120 N 300 N 120 N180 N
(150 N) 300 N 120 N130 N
(100 N)
F1 = 600 N
(134.89 lbf)
(570 N)
(128.14 lbf)
F1 = 600 N
(134.89 lbf)
(570 N)
(128.14 lbf)
F1 = 600 N
(134.89 lbf)
(570 N)
(128.14 lbf)
50 N
(11.24 lbf) 50 N
(11.24 lbf)
180 N
(150 N) 130 N
(100 N)
Figures in brackets are for the hinged version
(see 3.1 Command panels, page 23).
Enclosures for larger weights available on request.
Enclosure
duct connector
for keyboard
housing:
Installation depth
105 mm (4.13)
3
Frame connector, rigid
for all keyboard housings
1
F1 = 600 N
(134.89 lbf)
(570 N)
(128.14 lbf)
Command Panel
F1 = 500 N
(112.40 lbf)
(470 N)
(105.66
lbf)
F1 = 500 N
(112.40 lbf) F1 = 500 N
(112.40 lbf)
(470 N)
(105.66 lbf)
Support for keyboards

40
Optipanel for optimum . . .
. . . Interaction between monitoring and operation
Systems for the human/machine interface
Ideal for small operating units, in terms of both function and
design. You specify the dimensions of the selected operator
panel and your equipment; and we will custom-produce your
Command Panel/keyboard housing to your precise dimensions.
Neutral in color and stylish, it is an eye-catching feature in any
industrial environment.

41
Optipanel 42 – 57
Optipanel diversity 42 – 45
Optipanel selection 46 – 51
Optipanel standard sizes 52 – 53
Technical details 54 – 57
Order form 279
Rittal Optipanel – the Command Panel with a special touch.
Lightweight, slender and stylish in profile. The panel and installed
equipment determine the dimensions.
Do you have special requirements in terms of function, design and
ergonomics? The Optipanel will meet them. For example, also in
conjunction with the support arm systems CP-S and CP-L.
Command Panel

42 Systems for the human/machine interface
Enclosures with all the options
The stylish, customized solution.
●Three installation depths: 50 mm (1.97), 100 mm (3.94), 150 mm (5.91).
●Hinged rear panels offer easy servicing.
●Every operator panel is assembled quickly and precisely.
●Two enclosures in standard sizes available off the shelf.
Any size to order
As well as the enclosure range with
standard dimensions, there is also a choice
of three different installation depths.
Determine the dimensions of your
envisaged operator panel, and you will
receive a dimensionally accurate enclosure
together with all the related installation
components.
The few criteria you need to determine can
be found under “Optipanel selection”
on page 46 – 51.
Every attachment point is accessible on all sides!
The retaining clips create sufficient play to accommodate
virtually all hole spacings (distance from the panel’s outer edge
7 – 13 mm (0.28 – 0.51)).
Screw-fastening the operator panel from the front is the simple,
ideal solution. Front panels with studs or screw clamps may
also be used.
Installation depth 50 mm
(1.97)Installation depth 100 mm
(3.94)Installation depth 150 mm
(5.91)Enclosure in standard
dimensions
see page 52 – 53.

43
Optipanel
Diversity: Enclosure, front design, rear panels
Systems for the human/machine interface
There's always a solution
The subdivison of the operating level with Rittal standard modules
fulfils your every requirement. Individual cutouts can be achieved,
for example, via the adaptor panel.
Should you have any queries, please contact your specialist Rittal
advisor. As we have said, there's always a solution!
Optipanel selection,
see page 46 – 51.
Order form,
see page 279.
Without subdivision With cross member
or sealing bar With two cross
members or sealing
bars; combinations
are also possible
With cross member
or sealing bar
horizontal/vertical
combined
With spacing and
built-in trim panel.
It may be posi-
tioned at the top,
bottom or side.
Adaptor plate
with individual
cutouts
Individual front design
Rear panels to order
Choose the rear panel
according to your servicing
requirements:
●screw fastened
●hinged with cam lock and
double-bit insert
●hinged with quick-release
fasteners
The modular rear cooling
panel significantly increases
dissipation of the heat loss from
the enclosure! This is achieved
thanks to a combination of
cooling fins on the outside and
screw channels on the inside,
which ensure optimum heat
absorption and dissipation.
Effective heat dissipation
Dissipatable heat loss*
Installation
depth:
150 mm
(5.91)19/
7U
Cooling
rear panel,
modular
Without fins
60 W 66 W
* Pv (W) at ∆T = 20 K
Command Panel
+

44 Systems for the human/machine interface
The matching keyboard
housing
Choose the most suitable keyboard hous-
ing, tailored to your requirements. Two
installation depths are available. The key-
board housing with an installation depth of
50 or 100 mm (1.97 or 3.94) and the key-
board support may be attached directly to
the command panel or to the enclosure
door.
Installation depth 100 mm (3.94)Installation depth 100 mm,
(3.94) attached to the
enclosure door
For optimum ergonomic
conditions
●Keyboard housings in two different installation depths
and support for keyboards.
●Support arm systems swivel, rotate, raise and lower the
operating unit at any given point.
●Stationary and mobile floor-standing systems.
●Handle sets for easier handling.
Installation depth 50 mm (1.97)
Always within reach
Tailored precisely to the operator's
requirements, various handle sets may be
fitted in accordance with ergonomic
requirements. “Moving” the enclosure
becomes effortless.
Support for keyboards attached
to the enclosure Support for keyboards attached
to the enclosure door

45
Optipanel
Diversity: Keyboard housing and ergonomics
Systems for the human/machine interface
Optipanel selection,
see page 46 – 51.
Order form,
see page 279.
Stationary
or mobile
Floor-standing
systems in a variety of
designs – even height-
adjustable – round out
the application diver-
sity of the Optipanel.
Mobile pedestal Pedestal base plateCP pedestal, height-
adjustable
The connection fits
Even in enclosures with a very shallow
installation depth, the support arm systems
may be attached to the rear via an adaptor.
Precisely the right position
Different viewing angles of the machine,
whether the operating staff are tall or short,
sitting or standing – with Rittal support arm
systems, the Optipanel is always in the
optimum position.
All system components for rotating, tilting,
swivelling, raising and lowering are com-
bined with one another with unbelievable
diversity.
Depending on the system configuration,
arm length and enclosure weight, support
arm systems CP-S or CP-L are used. If you
want both a high load capacity and eleg-
ance, system combinations offer the ideal
solution.
Command Panel

Optipanel
Selection: Operating housing / keyboard housing
46 Systems for the human/machine interface
It’s so easy!
We need the following three pieces of
information in order to deal with your
enquiry/order:
●Part No.: CP 6382.009
●The dimensions and number of panels/
front panels to be installed in the
keyboard/operating housing
●Design code number
Order form, see page 279
Operating/keyboard housing
Part No. CP
6382.009
Material:
Enclosure: Extruded aluminum section
Corner pieces: Die-cast zinc
Corner protectors:
Plastic, self-extinguishing
Sealing trim: Flexible plastic section
Finish:
Enclosure: Natural anodized
Corner pieces: Powder coated in finely
textured RAL 7035
Corner protectors and sealing trims:
Dyed similar to RAL 7024
For larger orders, other colors similar to
RAL
●5018 (turquoise)
●5005 (bright blue)
●3001 (bright red)
●7030 (stone grey)
are available.
Protection ratings:
IP 65 to EN 60 529/10.91
(with appropriate front panel installation).
Complies with NEMA Type 12.

Optipanel
Selection: Operating housing
Systems for the human/machine interface 47
Command Panel
1. Panel dimensions
H
W
1
2
2
3
4
1.1 For operating housings
Please state the number of front panels/panels used, their height
(H) x width (W) x depth (D) and the manufacturer/model (see
below) on the order form.
1.2 For keyboard housings
Please state the height (H) x width (W) x depth (D) of the
keyboard(s)/panel(s) and the manufacturer/model on the order
form. (see criteria).
Checking the
installation criteria
With the following installation
criteria, please check whether
your operator panels may be
installed directly into the
Optipanel.
Otherwise, an adaptor panel is
needed – cf. 2.2, design code
number 2.
The dimensions of the
operating housing and
keyboard housing are derived
from the dimensions of your
panel and the number of cross
members.
7 – 13 29
R 32
7 – 13
T
H
62
B
62
5
3
min. 17
min. 6
T = Depth
B = Width
7 to 13 mm (0.28 to 0.51)
edge spacing
of the mounting hole or bolt.
Front panel projection
on sides with mounting
holes and bolts at least
17 mm (0.67), on sides
without mountings at least 6
mm (0.24).
Front panels up to 5 mm
(0.20).
With a thickness of
approximately 3.5 mm
(0.14) the front panel is
flush with the sealing trim
and the enclosure front.
Installation depths:
Operating housing =
50 mm (1.97), 100 mm
(3.94), 150 mm (5.91).
Keyboard housing =
50 mm (1.97), 100 mm
(3.94).
For versions with a hinged
rear panel and cam lock,
the maximum installation
depth is reduced by 25 mm
(0.98) in the vicinity of the
lock.
1
2
3
4
5
50 mm (1.97) 100 mm (3.94) 150 mm (5.91)
2.1
1
2.1
2
2.1
3
2.1 Installation depth
Technical details,
see page 54.
2.1 2.2 2.3 2.4 2.5

Optipanel
Selection: Operating housing
48 Systems for the human/machine interface
Without cross member With cross member1)
For horizontal and/or
vertical division of the
operating housing front.
With mounting channel
on both sides to
accommodate mounting
kits, see page 233.
Material:
Extruded aluminum
section, natural anodized
With an adaptor plate
(to specifications)
Material thickness:
3 mm aluminum,
natural anodized
Please specify the
dimensions for the front
panel and the desired
holes and cutouts.
2.2
0
2.2
1
2.2
2
With spacing and built-
in trim panel3) at the top
For additional space for
cable entry and for
installing switches/
indicator lights,
emergency off/key
switches, CD-ROM/disk
drives, interfaces etc.
Material:
Extruded aluminum
section, natural anodized
With spacing and built-
in trim panel3), at the
bottom
For additional space for
cable entry and for
installing switches/
indicator lights,
emergency off/key
switches, CD-ROM/disk
drives, interfaces etc.
Material:
Extruded aluminum
section, natural anodized
With sealing bar1)
For horizontal and/or
vertical division of the
operating housing front.
The “slot-free” division
produces a height gain of
22 mm (0.87).
Material:
Extruded aluminum
section 8 x 20 mm
(0.31 x 0.79), natural
anodized
2.2
3
2.2
4
2.2
5
2.2 Front design
Additional parts
Mounting kit for installing front
panels, operating panels and
keyboards in operating housing
and keyboard housings, see
page 233.
Technical details,
see page 55.
2.1 2.2 2.3 2.4 2.5
With front panel hinged2)
For example, if a disk
drive built into the operator
panel requires this free
access, see page 233.
Standard design:
●Screw-fastened from the
outside
●R/h hinge
Material:
Front panel: Aluminum, 3 mm
(0.12), natural anodized.
Extruded aluminum section:
Natural anodized
2.2
6
1) Quantity needed for sealing
the individual separation
points.
Example: 3 front panels in
operating housing = 2 separa-
tion points = 2 cross members/
sealing bars included in the
configuration. Other combina-
tions available on request.
2) Screw-fastened from the
inside, with cam or l/h hinge on
request.
3) Technical details,
see page 234.

Optipanel
Selection: Operating housing
Systems for the human/machine interface 49
Command Panel
2.3 Support arm and
pedestal connection
Accessories:
Support arm components for
connection of the Optipanel to
the support arm system CP-L,
see page 96 – 115.
Pedestals,
see page 132 – 147.
Pillar,
see page 148 – 149.
Technical details,
see page 55.
Without
connection Connection at
top1) Connection at
bottom1) Connection top
and bottom2)
2.3
0
2.3
1
2.3
2
2.3
3
CP-L, rectangular
for enclosure coupling CP 6525.1X0,
enclosure attachment CP 6525.6X0
only applies to installation depth 100 mm (3.94),
150 mm (5.91)
Note:
Wall mounting possible:
hinged with CP 6016.200,
see page 226.
Connection at top Connection at bottom Connection top and
bottom2)
2.3
4
2.3
5
2.3
6
CP-L, round
for enclosure coupling CP 6525.0X0,
enclosure attachment CP 6525.5X0,
angle coupling CP 6526.0X0
only applies to installation depth 150 mm (5.91)
2.1 2.2 2.3 2.4 2.5
Connection at rear, top3) Connection at rear,
bottom3)
2.3
7
2.3
8
CP-L, rectangular
for enclosure coupling CP 6525.1X0,
enclosure attachment CP 6525.6X0 and
enclosure attachment, tilting CP 6902.640 / .670
1) For support arm system
CP-S, steel, for installation
depth 50 mm (1.97), 100 mm
(3.94), 150 mm (5.91) please
enter after the design code
number.
2) Including a cover plate for
sealing the unused section.
3) Unless otherwise specified,
will be supplied in RAL 7030
S

Optipanel
Selection: Operating housing
50 Systems for the human/machine interface
Example of the versatility of
the enclosure:
Mounting on doors
With all operating housing/
keyboard housings, the rear
panel may be supplied
prepared for external mounting
on flat surfaces on request.
Additional parts
Enclosure duct connector
CP 6006.000, see page 226.
For mounting and cable entry.
Cross-brace for door
TS 8800.960 / TS 8800.980,
for mounting on 600/800 mm
(23.62/31.50) wide doors
TS/ES.
2.4 Rear panels
2.1 2.2 2.3 2.4 2.5
Rear panel screw-
fastened Rear panel hinged on
the longest edge.
Viewed from the rear,
hinged on the right or at
the bottom 1) 2) 3) 4).
2.4
1
2.4
2
Rear cooling panel,
modular
Significantly increases the
dissipation of heat loss
from the enclosure.
Material:
Extruded aluminum
section
Note:
When installing the
pull-out keyboard
CP 6002.100 (see page
263) in an Optipanel,
design version 2.1,
no. 3 the 11 mm (0.43)
cooling fins and screw
channels protruding into
the enclosure may be
milled off – please specify
when ordering.
Technical details,
see page 204.
Rear panel hinged
with quick-release
fasteners1)
2.4
3
2.4
4
Note:
1) With a support arm connection at the rear, only possible on the
side opposite the support arm connection.
2) Not for operating housing with an installation depth of 50 mm
(1.97) with keyboard housing.
3) Standard double-bit lock insert may be exchanged for lock
inserts 41 mm (1.61), version C, see page 246,
Plastic handles and T handles, version C,
see page 245 – 246.
4) With a hinged rear panel, the maximum installation depth in the
vicinity of the lock is reduced by 25 mm (0.98) (see page 47 ).

Optipanel
Selection: Operating housing / keyboard housing
Systems for the human/machine interface 51
Command Panel
With keyboard housing
Installation depth
100 mm (3.94)1)
With support for
keyboards
2.5
2
2.5
3
Examples
The picture opposite shows the solution we
have chosen, together with its
corresponding design code number. The
following key explains how the code
number in our example is made up.
Operating/keyboard housing
Part No.: CP 6382.009
Design code number:
We need the following three pieces of
information in order to deal with your
enquiry/order:
●Part No.: CP 6382.009
●The dimensions and number of panels/
front panels to be installed in the
keyboard/operating housing
●Design code number
Order form, see page 279.
2.1 2.2 2.3 2.4 2.5
21211
Operating housing,
Installation depth 100 mm (3.94)
With cross member
Support arm connection CP-L,
rectangular, bottom
Rear panel, screw-fastened
With keyboard housing,
Installation depth 50 mm (1.97)
2.1 2
2.2 1
2.3 2
2.4 1
2.5 1
2.5 Keyboard
housing
Width independent of operating
housing.
The swivel bracket is infinitely
adjustable from 80° to 155°.
Additional parts
1) Mounting kit for installing
front panels, operating panels
and keyboards in operating
housings and keyboard
housings,
see page 233.
Technical details,
see page 56 – 57.
Without keyboard
housing With keyboard housing
Installation depth
50 mm (1.97) 1)
2.5
0
2.5
1
2.1 2.2 2.3 2.4 2.5
2.1
2
2.2
1
2.3
2
2.4
1
2.5
1

52 Systems for the human/machine interface
Support arm connection CP-L, rectangular
for CP 6380.000
H6
H4
H2
B4
B1
H1
B2
B6
Ø 6.6
45°
Ø 45
Ø 65
53
CP 6380.000
H5
H3
CP 6380.100
H5
H3
CP 6380.000
B3
43
B5
52
110
CP 6380.100
B5
B3
60
37
14
43
95
max.
Installation depth
50 mm
(1.97)
max.
Installation
depth 100 mm
(3.94)
Only for
CP 6380.100
Optipanel PU see page
Part No. CP 16380.000 6380.100
to fit front panel H1 x B11) 310.3 mm (7U) x
482.6 mm (19") 234 x 270 mm
(6.21" x 10.63")
Max. installation depth 100 (3.94) 50 (1.97)
B2 = Overall width 527 (20.75) 314 (12.36)
B3 = Clearance width between enclosure sections 494 (19.45) 281 (11.06)
B4 = Clearance width between the retaining clips of the mounting kit 450 (17.72) 237 (9.33)
B5 = Width of rear panel 519 (20.43) 306 (12.04)
B6 = Clearance width for assembly 475 (18.70) 262 (10.31)
H2 = Overall height 354 (13.94) 278 (10.94)
H3 = Clearance height between enclosure sections 321 (12.64) 245 (9.65)
H4 = Clearance height between the retaining clips of the mounting kit 277 (10.91) 201 (7.91)
H5 = Height of rear panel 346 (13.62) 270 (10.63)
H6 = Clearance height for assembly 302 (11.89) 226 (8.90)
Hinging of rear panel bottom/top right
Support arm connection CP-L, rectangular,
bottom/top CP-S2)
Rear panel 80
Weight kg (lbs) 6.2 (13.67) 2.8 (6.17)
Lock systems
Standard double-bit lock insert may be exchanged for 41 mm (1.61) lock inserts, type C, see page 246,
Plastic handles and T handles, Version C, see page 245 – 246.
1) Installation criteria required for direct mounting of the panels, see page 47.
2) Additional marked points for drilling holes, for the external mounting of:
Enclosure attachment, tilting,
Support arm system CP-L, rectangular,
Assembly components with hole pattern to VESA 75,
see page 80/81.
Two basic sizes available off the shelf
For direct installation of panels/front panels
with H/B 7U x 482.6 mm (19) and for
smaller compact panels/front panels
H/B 234 x 270 mm (9.21 x 10.62) mm
Rittal offers these two Optipanel command
panels off the shelf.
Prepared for CP-L, rectangular
B = Width

Systems for the human/machine interface
Optipanel
Standard dimensions for front panel 482.6 mm (19) x 7 U / 270 x 234 mm (10.63 x 9.21)
53
Material:
Enclosure:
Extruded aluminum section
Corner pieces:
Die-cast zinc
Corner protectors:
Plastic, self-extinguishing
Sealing trim:
Flexible plastic section
Finish:
Enclosure:
Natural, anodized
Corner pieces:
Powder coated in finely
textured RAL 7035
Corner protectors and sealing
trims:
Dyed similar to RAL 7024
Protection ratings:
IP 65 to EN 60 529/10.91
(with appropriate front panel
installation).
Complies with NEMA Type 12
Mounting kit
For the installation of front
panels, command panels and
keyboards.
Part No. see page 233.
Spring nut M5
For inserting into the channels
of the Optipanel.
Part No. see page 255.
Enclosure attachment,
tilting, base
for attaching to worktops.
Part No. see page 110.
German registered design
No. 4 00 02 955
Command Panel
Accessories:
For connecting to the support
arm system or surfaces,
see page 80/81.

54 Systems for the human/machine interface
H2 (H1 + 44)
H3 (H1 – 8)
H1
B1
B4 (B1 – 33)
B3 (B1 – 8)
B2 (B1 + 44)
B3 (B1 – 8)
H4 (H1 – 33)
H3 (H1 – 8)
88
31.5
148
90
H5 (H1 + 36)
132
10
H6 (H1 + 11)
10
H6 (H1 + 11)
10
B6 (B1 + 11)
60
130
95
40
B6 (B1 + 11)
110
43
52
67
B6 (B1 + 11)
50
160
57
2.1 Installation depth When preparing for rear support arm connection
max. installa-
tion depth
41 mm (1.61)
max. installa-
tion depth
50 mm (1.97)
max.
installation depth
150 mm (5.91)
max. installa-
tion depth
100 mm (3.94
)
When preparing
for keyboard housings When preparing
for keyboard housings
When preparing
for keyboard housings
Cable tubeCable tube
50 mm (1.97)
1When preparing
for rear support
arm connection
100 mm (3.94)
2
Channel for inserting the spring nuts M5
150 mm (5.91)
3
Channels for inserting the spring nuts M5
Width dimensions:
B1 = Width of front panel
B2 = Overall width
B3 = Clearance width between enclosure
sections
B4 = Clearance width between the retaining clips
of the mounting kit
B5 = Width of rear panel (B1 + 36)
B6 = Clearance width for assembly
Height dimensions:
H1 = Height of front panel
H2 = Overall height
H3 = Clearance height between enclosure
sections
H4 = Clearance height between the retaining
clips of the mounting kit
H5 = Height of rear panel
H6 = Clearance height for assembly
Hinge Hinge Hinge
Preparation for CP-L, rectangular
Preparation for CP-L, round

Systems for the human/machine interface
Optipanel
Technical details
55
Command Panel
14
95
38
43
40
11
50
11
2134
5
1
CP-L, rectangular
For installation depths 100/150 mm
(3.94/5.91)
External mounting of support arm
connections,
see page 98/99.
External mounting of support arm
connections,
see page 98/99.
CP-L, round
For installation depth 150 mm
(5.91)
2.4 Rear cooling panel
= Section of rear cooling panel
= Width compensating panel
for optimum adaptation to the enclosure
= Spring nut M5, CP 6108.000 for interior installation on screw
channels
= Overall depth of the enclosure is increased by 13 mm (0.51)
= Front panel width for determining the cooling modules and
compensating panel
1
2
3
4
5
2.3 Support arm and pedestal connection
CP-S
For installation depths 100/150 mm
(3.94/5.91)
External mounting of support arm
connections,
see page 84/85.
45°
45°
7
Ø 45
Ø 65
13.5
7
45°
25°
Ø 82
R35
30
B1/H1
66
B1/H1
22
30
B1/H1B1/H1
2.2 Front design
Front panel from the inside,
screw fastened Front panel from the
outside, screw fastened Cross member
max. 5
max. 5
max. 5
20
Sealing bar
Sealing bar
CP 6015.500
Front panel 2
Front panel 1
H1 top
H1 bottom

56 Systems for the human/machine interface
B1
B3 (B1 – 8)
B4 (B1 – 33)
B3 (B1 – 8)
B2 (B1 + 44)
CP 6058.XXX: M4
CP 6053.XXX: M5
H1
H3 (H1 – 8)
58 + 0.87 x H1*
60
78 + 0.5 x H1*
H2 (H1 + 44)
H4 (H1 – 33)
H6 (H1 + 11)
10
B1
B4 (B1 – 33)
B3 (B1 – 8)
B2 (B1 + 44)
B3 (B1 – 8)
52
CP 6058.XXX: M4
CP 6053.XXX: M5
H5 (H1 + 36)
110
H1
H2 (H1 + 44)
H3 (H1 – 8)
H4 (H1 – 33)
83 + 0.87 x H1*
121 + 0.5 x H1*
10
H6 (H1 + 11)
68
33
Installation depth 50 mm (1.97)
1
2.5 Keyboard housing
Installation depth 100 mm (3.94)
2
Max. installation
depth 50 mm (1.97)
* applies to a tilting angle of 30 ° to the horizontal
Cross-section of cable tube connection
max. installa-
tion depth
100 mm (3.94
)
* applies to a tilting angle of 30 ° to the horizontal
Support for keyboards
3
87
31.5
71
68
33
31.5
473
477
45
43
19
290
210
123
473.5
Width dimensions:
B1 = Width of front panel
B2 = Overall width
B3 = Clearance width between enclosure
sections
B4 = Clearance width between the retaining
clips of the mounting kit
B5 = Width of rear panel (B1 + 36)
B6 = Clearance width for assembly
Height dimensions:
H1 = Height of front panel
H2 = Overall height
H3 = Clearance height between enclosure
sections
H4 = Clearance height between the retaining
clips of the mounting kit
H5 = Height of rear panel
H6 = Clearance height for assembly
= Prepared for mouse pad support SM 2383.020
1
1

Systems for the human/machine interface
Optipanel
Technical details
57
50°
10°
120°
Minimum front panel width (B1):
Depending on the
●Installation depth of the operating housing
●With or without keyboard housing
●Position of the support arm connection
( ) Figures in brackets:
Only with the hinged rear panel combination (see page 50, 2.4)
version and with connection at rear (see page 49, 2.3) design and .
* Smaller front panel widths for asymmetrical support arm connection available on request.
Installation depth of operating housing
(see 2.1, page 47)
2.5 Keyboard housing
(see page 51)
2.3 Position of the support arm
connection
(see page 49)
50 mm (1.97) 100 mm (3.94) 150 mm (5.91)
Minimum front panel width mm (inches)
without to
top, bottom or rear 160 (6.30)
(265 (10.43)) 150 (5.91) 150 (5.91)
and with
top or rear
bottom 378 (14.88)* 339 (13.35)* 339 (13.35)*
00 8
1 2
1 4 7 8
2 3 5 6
2 4 7 8
Command Panel
120°
Frame hinge connector
with Optipanel keyboard housing
1 2
Keyboard housing connection
max. 155°
min. 80°
Frame hinge connector
with support for keyboards
3
Tilting angle infinitely ajustable from 80° to 140°.Tilting angle infinitely ajustable from 80° to 155°.
max. 140°
min. 80°

58 Systems for the human/machine interface
B4
A
B3
39
T1
H4
H3
B1
B2
1.5
H1
H2
50
95
100
Ø 7
55
40
20
Compact Panel
For small operating units built into front
panels. The front panel is inserted from the
rear and secured with screw clamps. Front
panels with a material thickness of between
2 and 6 mm (0.08 and 0.24) are possible.
Rear panel hinged on the left or right; by
rotating the enclosure, the rear panel may
also be used as a hinged front panel.
Protection ratings:
IP 65 to EN 60 529/10.91
Complies with NEMA Type 12
Height (H1) in mm (inches) PU 238 (12.40) 388 (9.49) 521 (20.51) 238 (12.40) 388 (9.49)
Width (B1) in mm (inches) 241(9.49) 241(9.49) 241(9.49) 315 (12.40) 315 (12.40)
Depth (T1) in mm (inches) 87 (3.43) 87 (3.43) 87 (3.43) 87 (3.43) 87 (3.43)
Part No. CP (with support arm connection CP-S) 1 6340.000 6340.100 6340.200 6340.300 6340.400
Part No. CP (with support arm connection CP-L, rectangular) 1 6340.010* 6340.110* 6340.210* 6340.310* 6340.410*
Part No. CP (without support arm connection) 1 6340.020* 6340.120* 6340.220* 6340.320* 6340.420*
B2 = Enclosure clearance width 170 (6.69) 170 (6.69) 170 (6.69) 244 (9.61) 244 (9.61)
B3 = Front panel width 178 (7.01) 178 (7.01) 178/4 U (7.01) 252 (9.92) 252 (9.92)
B4 = Clearance width between screw clamps 164 (6.46) 164 (6.46) 164 (6.46) 238 (9.37) 238 (9.37)
H2 = Enclosure clearance height 192 (7.55) 342 (13.46) 475 (18.70) 192 (7.55) 342 (13.46)
H3 = Front panel height 200 (7.87) 350 (13.78) 482,6/19200 (7.87) 350 (13.78)
H4 = Clearance height between screw clamps 186 (7.32) 336 (13.23) 469 (18.46) 186 (7.32) 336 (13.23)
Weight kg (lbs) 2.3 (5.07) 3.2 (7.05) 3.9 (8.60) 2.8 (6.17) 3.8 (8.38)
Accessories
Front panel, 3.0 mm aluminum, natural anodized 1 6028.500 6028.510 6028.520 6028.530 6028.540
Wall mounting bracket, vertically hinged 1 set 6341.000
Cover plate for support arm connection CP-S 1 6505.200
Spring nut M5 50 6108.000
* Extended delivery times
Order numbers for other heights with front panel width (B3):
– 178 mm (7.01) – Part No.: CP 6342.109
– 252 mm (9.92) – Part No.: CP 6342.209
Please specify the front panel height (H3) as well. Extended delivery times.
Configuration
Enclosure Version Material Surface finish/
color
1 roof tray Solid Aluminum Powder coated in
RAL 7024
1 base tray With or w/o support arm
connection, depending on
Part No. – see table Aluminum Powder coated in
RAL 7024
1 rear wall Screw-fastened via roof and
base tray Aluminum Natural anodized
2 side parts With channels for M5 spring
nuts Extruded
aluminum section Powder coated in
RAL 7024
Screw cover Plastic Sim. to RAL 7024
Including seal and screw clamp.
Grooves for
spring nuts M5
Alternative
max. ∅ 55
CP-L, rectangular
Mounting cutouts:
CP-S
45°
45°
7
Ø 45
Ø 65
13.5
7
45°
25°
A = max. installation depth 69 mm (2.72)

59Systems for the human/machine interface
Compact Panel
Command Panel
Accessories:
see page 200 – 201
or see index.
Wall mounting bracket,
vertically hinged, for direct
mounting of the Compact Panel
on surfaces.
Part No. see page 227.
Rittal Service:
●Other RAL colors
●Drilled holes and cutouts in
the roof and base tray

60 Systems for the human/machine interface
Premium Panel PU with keyboard housing without keyboard housing
Part No. CP 1 6680.000 6680.010 6680.100 6680.110 6681.000 6681.100
for installation panel H x W
Command Panel 356 mm (14.01) (8 U) x 482.6 mm (19)310 mm (12.20) (7 U) x
482.6 mm (19)
Keyboard
housing 177 mm (6.97) (4 U) x 482.6 mm (19) –
Installation depth
Command Panel 115 (4.53) 215 (8.46) 115 (4.53) 215 (8.46)
Keyboard
housing front 58 (2.28)
rear 63 (2.48) ––
Width mm (inches) 530 (20.87) 530 (20.87)
Height mm (inches)
Command Panel 460 (18.11) 360 (14.17)
Keyboard
housing 200 (7.87) –
Depth mm (inches)
Command Panel 120 (4.72) 220 (8.66) 120 (4.72) 220 (8.66)
Keyboard
housing 63/80 (2.48/3.15) –
Support arm connection top bottom top bottom top, bottom by rotating
of the enclosure
Accessories
CP holder 2 6682.000
To order the Premium Panel in Type 304 (Type 316L) use Part No. CP 665X.XXX. Delivery times available on request.
First-class in terms of design, sealing,
protection and hygiene
These are the outstanding features of the Premium Panel made
from stainless steel. Simply ideal for use in the food and hygiene
sector. Outstanding performance at a low price.
●Resistant to high-pressure cleaning
The new gap-free sealing concept
facilitates the high protection category of
IP 69K. The sealing gasket lies between
two surfaces and is ideally compressed
by the all-round screw fastening.
IP 69 K
Duct connector between the operating and
keyboard housing for cable routing.
Easy to clean, external sealing gasket.
●Suitable for clean room use
The fact that it is suitable for clean room
use makes it capable of meeting the
highest standards in the food and
hygiene sector (certified by the
Fraunhofer-Institut IPA).
This is achieved thanks to the unique
screw-fastening of the rear panel
(screws on the inside with plastic
stoppers or hex screws on the outside)
and the bracket on the inside, which is
clearly superior to exterior hinges when it
comes to hygiene.
●Optimum EMC conditions
Because the sealing surfaces of the rear
panel and the enclosure are directly in
contact with one another, exceptional RF
shielding of the Premium Panel is
achieved.
●Restricted breathing
Short-term protection against an
explosive atmosphere.
●Easy to use
Practical cable routing via two duct
connectors between the enclosures.

Systems for the human/machine interface
Premium Panel
Stainless steel
61
Command Panel
Material:
Type 304 stainless steel
Finish:
Brushed, 180 grain,
polished with 280 grain
Protection ratings:
IP 69K to DIN 40 050-9/5.93
Technical details,
see page 62.
The holder holds the rear
panel in an open position.
Part No. CP 6682.000
Rittal Service:
Other sizes and other
enclosures with this sealing
concept are available on
request.
Cutouts and drilled holes to
your specifications.
Accessories:
see page 200 – 201
or see index.
Support arm system CP-S,
stainless steel
Selection see page 92 – 95.

62 Systems for the human/machine interface
460
77.5 375 40
42.5
375
42.5
359
483
530
50
63
174.5
192
152
17.5
153
200 60
35.9
5°
80
62.5
45
45
50
300
365.8
25
100
100 (50)
15°
380.8
220 (120)
193 (93)
460
60
220 (120)
194.5 (94.5)
460
382.3
200
80
62.5
94.5
(62.5)
100 (50)
65
498
25
530
467
R 440
367
R 405
19.5
Operating and keyboard housing
1
= Support arm connection CP-S, stainless steel, top
only for CP 6680.000, CP 6680.100
= Support arm connection CP-S, stainless steel, bottom
only for CP 6680.010, CP 6680.110
1
2
Keyboard housing
Top view – Depth 120 mm (4.72) Top view – Depth 220 mm (8.66)
Dimensions in
brackets for
CP 6680.010
2
Welded studs M6 x 20 (0.77) (4 x)
Busbar connection adaptor only with version .010
Welded stud
M6 x 20 (0.77) (4 x)
Grounding bolts
M6 x 15 (0.59) (1 x)
Grounding bolts
M6 x 15 (0.59)
Grounding bolts
M6 x 15 (0.59) (1 x)

Systems for the human/machine interface
Premium Panel
Stainless steel, technical details
63
Command Panel
360
530
42.5
375 40
42.5
220 (120)
313
100
(50)
25
Command Panel
Support arm connection
CP-S, stainless steel, at
the bottom by rotating the
enclosure.
Dimensions in brackets
for CP 6681.000
483
100
193 (93)
218.5
498
49
5.5
40
(50)
(118.5)
Top view
Rear panel screw fastened with hex screw,
external Rear panel screw fastened with internal screw
with plastic stoppers
Welded studs M6 x 20 (4 x)
Welded stud
M6 x 20 (0.77) (4 x)
Grounding bolts
M6 x 15 (0.59) (1 x)

64 Systems for the human/machine interface
Rittal operating housings . . .
. . . “Standard solutions”
Operating housing with display panel
front
●Door rear, r/h hinge, with double-bit lock
insert
●With side mounting sections for
individual interior installation
●Enclosure sealed all-round, with cutout
and fitted operating panel at the front
(easily machinable 3 mm aluminum front
panel with frame), r/h hinge, screw-
fastened from the inside
Approvals
Command Panel
housing with
door with
handle grips
Command Panel
with handle grips
Command Panel
with display
panel front
Command Panel
with wide
VIP 6000 frame
Command Panel
housing with
door,
stainless steel
Command
Panel,
stainless steel
UL ●● ●●
UL – Underwriters
Laboratories Inc.
For USA and Canada ●●
CSA ●● ●●
TÜV ●● ●
Norske Veritas ●●
Lloyds Register of
Shipping ●●●
VDE ●● ●
Bureau Veritas ●
Command Panel housing with door,
stainless steel
●Door 40 mm (1.57) deep, l/h hinge, side
handle gripshandle grips made from
food-safe plastic
●Support arm connection with
reinforcement plate at the top/bottom by
rotating the enclosure
●Enclosure sealed all round,
Double-bit lock insert in the right-hand
side
Command Panel housing with door, with
handle grips
●Door 40 mm (1.57) deep, l/h hinge,
side handle grips made from aluminum
with plastic cover caps
●Support arm connection with
reinforcement plate at the top/bottom by
rotating the enclosure
●Enclosure sealed all round,
Double-bit lock insert in the right-hand
side
Command Panel, with handle grips
●Door rear, r/h hinge, with double-bit lock
insert
●Support arm connection with
reinforcement plate at the top/bottom by
rotating the enclosure
●With side mounting sections for
individual interior installation
●Enclosure sealed all-round, with cutout
and fitted, easily machined 3 mm (0.12)
aluminum front panel at the front with
side handle grips made from aluminum
and plastic cover caps
Command Panel with wide VIP 6000
frame
●Door rear, r/h hinge, with double-bit lock
insert
●Support arm connection with
reinforcement plate
●With side mounting sections for
individual interior installation
●Enclosure sealed all-round with cutout at
the front for 3 mm (0.12) aluminum front
panel with VIP 6000 front frame (supplied
loose)
Command Panel, stainless steel
●Front panel screw-fastened all round,
with projection to protect the installed
equipment
●Support arm connection with
reinforcement plate at the top/bottom by
rotating the enclosure
●Enclosure sealed all round, rear panel
may also be used as a mounting surface

65
Modern, flexible production technology demands solutions which
precisely meet the required standards of ergonomics, user-
friendliness, hygiene or corrosion protection at the operating
interface. The Rittal Command Panel range is tailored to these
requirements. Supplemented by a support arm or pedestal system,
system accessories or system climate control, an enclosure
becomes a complete solution. All achieved quickly and practically
on your behalf.
Command Panel, sheet steel 66 – 73
Command Panel housing with door, with handle grips 66 – 67
Command Panel, with handle grips 68 – 69
Operating housing with display panel front 70 – 71
Command Panel with wide VIP 6000 frame 72 – 73
Command Panel
Command Panel, stainless steel 74 – 77
Stainless steel Command Panel housing with door 74 – 75
Stainless steel Command Panel 76 – 77

66 Systems for the human/machine interface
B5
H4
30
H5 H3
H1
135 40
T1 = 180
H2
198 – 203
Ø 70
Ø 82
Ø 7
75
B4
B1
B2
B3
30
B6
100
67
168
B715
Profile strip
●Protects the edges of the Command
Panel or membrane against damage.
●Provides space for panel labelling.
For labels:
Width: Enclosure width – 45 mm (1.77)
Height: 17 mm (0.69)
Thickness: 0.4 mm (0.02)
Configuration:
2 aluminum strips, including clear cover
strips and 4 cover caps.
Height in mm (inches) (H1) 200 (7.87) 300 (11.81) 400 (15.75) 300 (11.81) 400 (15.75) 500 (19.69) Page
Width in mm (inches) (B1) PU 300 (11.81) 300 (11.81) 300 (11.81) 400 (15.75) 400 (15.75) 500 (19.69)
Depth in mm (inches) (T1) 180 (7.09) 180 (7.09) 180 (7.09) 180 (7.09) 180 (7.09) 180 (7.09)
Part No. CP 1 6534.000 6535.000 6537.000 6536.000 6538.000 6544.000
B2 = Enclosure width with handle grips 338 (13.31) 338 (13.31) 338 (13.31) 438 (17.24) 438 (17.24) 538 (21.18)
B3 = Clearance opening, front 258 (10.15) 258 (10.15) 258 (10.15) 358 (14.09) 358 (14.09) 458 (14.09)
B4 = Spacing of mounting panel attachment 260 (10.24) 215 (8.46) 215 (8.46) 295 (11.61) 295 (11.61) 410 (16.14)
B5 = Max. front cutout, width 227 (8.94) 227 (8.94) 227 (8.94) 327 (12.87) 327 (12.87) 427 (16.81)
B6 = Hinged width for depth 100 mm (3.94") 220 (8.66) 220 (8.66) 220 (8.66) 320 (12.60) 320 (12.60) 420 (16.54)
B7 = Hinged width for depth 168 mm (6.61") 200 (7.87) 200 (7.87) 200 (7.87) 300 (11.81) 300 (11.81) 400 (15.75)
H2 = Enclosure height with handle grips 205 (8.07) 305 (12.00) 405 (15.94) 305 (12.00) 405 (15.94) 505 (19.88)
H3 = Spacing of mounting panel attachment 122 (4.80) 250 (10.04) 350 (13.77) 250 (9.84) 330 (12.99) 445 (17.52)
H4 = Max. front cutout, height 155 (6.10) 255 (10.04) 355 (13.98) 255 (10.04) 355 (13.98) 455 (17.91)
H5 = Distance from base – mounting panel
attachment 39 (1.54) 25 (0.98) 25 (0.98) 25 (0.98) 35 (0.98) 35 (0.98)
Weight kg (lbs) 5.5 (12.13) 7.1 (15.65) 8.4 (18.52) 8.4 (18.52) 10.6 (23.37) 14.5 (31.97)
Accessories
Matching mounting panel from AE 1032.600 1033.600 1034.600 1030.600 1380.600 1050.600 HB 30
page 68
ID no. 271324 271926 271924 274131 271548 271333
Support rails1) SZ Part No. SZ 10 2316.000 2316.000 2316.000 2317.000 2317.000 2318.000 HB 30
page 983
Lock systems
Standard double-bit lock insert may be exchanged for 41 mm (1.61") lock inserts, plastic handle and T handle, version C, see page 245 – 246.
1) Only with vertical attachment of system bar 23 x 23 mm (0.91" x 0.91") see HB 30, page 976.
2)
To order a Command Panel housing with door with mounting cutout CP-S, please use the extension number .080. Delivery times available on request.
Configuration:
Enclosure with cutout and reinforcement for
support arm system CP-L2), round, with seal.
Door with sealing frame, side handle grips
and end caps.
Support arm
connection Door hinge
top left
bottom right
For
Command
Panel housing
with door
Width
mm
(inches)
Color
RAL Part No.
CP
CP 6534.000
CP 6535.000
CP 6537.000
300
(11.81) 5018 6542.000
CP 6536.000
CP 6538.000 400
(15.75) 5018 6543.000
1
Welded nut M8 for the
attachment of mounting panels
or support rails
1

Systems for the human/machine interface
Command Panel housing with door
with handle grips
67
Material and Finish:
Enclosure and door:
Sheet steel, e-coat primed
and powder coated in textured
RAL 7035
Interior surfaces:
E-coat primed in RAL 7044
Handle grips:
Aluminum, powder coated in
RAL 5018.
Cover caps:
Plastic, RAL 5018
Protection ratings:
IP 55 to EN 60 529/10.91
Complies with NEMA Type 12
Command Panel housing with
door, stainless steel
The alternative where hygiene
and corrosion resistance are
important.
Part No. see page 74 – 75.
Accessories:
Pedestal systems,
see page 132 – 149.
Support arms systems,
see page 80.
Command Panel
Signal pillar
for system monitoring.
Part No. see Handbook 30,
page 1000 – 1002.
Rittal Service:
●Other sizes
●Other RAL colors
●Altered support arm cutout
or door hinge
●Holes and cutouts for
switches and operator
panels
●Aluminum front panels
(up to a thickness of 5 mm
(0.2) may be positioned on
the enclosure front between
the side handle grips and the
door)
available on request.

68 Systems for the human/machine interface
H3
B4
B2
Ø 82
Ø 7
B3
20
B1
Ø 70
234 (179)
190 (135)
T1
H1
H2
35
20
8 x 12.5
4.6
120
Height in mm (inches) (H1) PU 200 (7.78) 300 (11.81) 380 (14.96) 500 (19.69) 380 (14.96) Page
Width in mm (inches) (B1) 300 (11.81) 380 (14.96) 380 (14.96) 500 (19.69) 600 (23.62)
Depth in mm (inches) (T1) 155 (6.1) 210 (8.27) 210 (8.27) 210 (8.27) 210 (8.27)
Part No. CP 1 6540.200* 6531.200 6530.200 6532.200 6533.200
B2 = Enclosure width with handle grips 340 (13.39) 420 (16.54) 420 (16.54) 540 (21.26) 640 (25.20)
B3 = Clearance opening, front 260 (10.24) 340 (13.39) 340 (13.39) 460 (18.11) 560 (22.05)
B4 = Cutout, in enclosure 250 (9.84) 330 (12.99) 330 (12.99) 450 (17.72) 550 (12.65)
H2 = Hole distance of side mounting angles 75 (2.95) 175 (6.89) 275 (10.83) 375 (14.76) 275 (10.83)
H3 = Cutout, in enclosure 150 (5.90) 250 (9.84) 330 (12.99) 450 (17.72) 330 (12.99)
Weight kg (lbs) 4.9 (10.80) 9.3 (20.50) 10.2 (22.49) 15.4 (33.95) 14.6 (32.19)
Accessories
Support strips PS for attaching to the mounting
sections on the side panel 20 – – 4594.000 4309.000 4594.000 HB 30,
page 950
Lock systems
Standard double-bit lock insert may be exchanged for 27 mm (1.06) lock inserts, type A,
Plastic handles, T handles, version B and lock cylinders, see page 245 – 247.
* Support arm connection and door hinge at the bottom.
Configuration:
Enclosure with reinforcement,
Support arm connection CP-L, round and
with mounting angles spot welded at the
sides.
Front with maximum cutout, covered with
easily machinable 3 mm (0.12) aluminum
front panel and side handle grips with end
caps.
Rear with door.
Support arm connection Door hinge
top right
bottom left
US patent no. 5,662,397
German patent no. 44 13 543
French Patent no. 95 04769
GB patent no. 2,288,971
Ital. patent no. 01273518
Jap. patent no. 2 820 637
US design patent no. des 375,938
German registered design
No. M 94 03 156
IR reg. design no. DM/031 020
with validity for BE, DE, ES, FR, IT, LU, NL
U.K. reg. des. no. 2 042 639
Jap. reg. des. No. 955 950
Dimensions in brackets for CP 6540.200
Only for
CP 6532.200;
CP 6533.200
For CP 6532.200
2 cams

Command Panel
with handle grips
69Systems for the human/machine interface
Material and Finish:
Enclosure and door:
Sheet steel, e-coat primed
and powder coated in textured
RAL 7035
Interior surfaces:
E-coat primed in RAL 7044
Handle grips:
Aluminum, RAL 7030
Cover caps:
Plastic, RAL 7030
Protection ratings:
IP 55 to EN 60 529/10.91
Complies with NEMA Type 12
Support arm bracket 90°,
CP-L
for the configuration of
compact support arm systems.
Part No. see page 102.
Connector for compact
enclosures
Part No. see page 228.
Enclosure connector,
adjustable
for screw-fastening to vertical
or horizontal surfaces.
Part No. see page 226.
Accessories:
Pedestal systems,
see page 132 – 149.
Support arm system CP-L,
see page 96 – 115.
Command Panel
Rittal Service:
●Other sizes
●Other RAL colors
●Altered support arm cutout
or door hinge
●Holes and cutouts for
switches and operator
panels
available on request.

70 Systems for the human/machine interface
H4
35
8 x 12.5
4.6
120
H5
35
A
A
B
B
B3
H3
B2
H2
B1
H1
34
T1 = 210
249
190
15
15.5
B4
15.5
Configuration:
Enclosure without support arm connection
with mounting angles spot-welded at the
sides. With maximum cutout at the front
and fitted, easily machinable 3 mm (0.12)
front panel with aluminum designer frame,
r/h hinge, screw-fastened from the inside.
Rear door with r/h hinge,
with two cam locks
(for CP 6442.000 one lock).
Height in mm (inches) (H1) PU 380 (14.96) 600 (23.62) 500 (19.68) 600 (23.62)
Width in mm (inches) (B1) 380 (14.96) 380 (14.96) 500 (19.68) 600 (23.62)
Depth in mm (inches) (T1) 249 (9.80) 249 (9.80) 249 (9.80) 249 (9.80)
Part No. CP 16442.200 6462.200 6552.200 6662.200
B2 = Width of display panel front 379 (14.92) 379 (14.92) 499 (19.65) 599 (23.58)
B3 = Clearance opening, front 309 (12.66) 309 (12.66) 429 (16.89) 529 (20.82)
B4 = Width of front panel 323 (12.72) 323 (12.72) 443 (17.44) 543 (21.38)
H2 = Height of display panel front 377 (14.84) 597 (23.50) 497 (19.57) 597 (23.50)
H3 = Clearance opening, front 307 (12.09) 527 (20.75) 427 (16.81) 527 (20.75)
H4 = Height of front panel 321 (12.61) 541 (21.30) 441 (17.36) 541 (21.30)
H5 = Hole distance of side mounting angles 250 (9.84) 450 (17.72) 350 (13.78) 450 (17.72)
Weight kg (lbs) 9.5 (20.94) 13.4 (29.54) 18.0 (39.68) 19.6 (43.21)
Lock systems
Standard double-bit lock insert may be exchanged for 27 mm (1.06) lock inserts, type A,
Lock cylinder, plastic handles and T handles, type B, see page 245 – 247.
The reinforcement plate required for mounting on pedestal CP 6135.000, see page 147, is already included in the configuration in this model.
For Command Panels in RAL 7035, please use the extension number .500. Delivery times available on request.
For CP 6442.000
only 1 cam in the
center
Section A – A
Section B - B

Systems for the human/machine interface
Command Panel
with display panel front
71
Material and Finish:
Enclosure and door:
Sheet steel, e-coat primed
and powder coated in textured
RAL 7032
Interior surfaces:
E-coat-primed in RAL 7044
Frame and front panel:
Aluminum, natural anodized.
Protection ratings:
IP 54 to EN 60 529/10.91
Complies with NEMA Type 12
Handle set
with handle tube made of
aluminum.
Part No. see page 235.
Connection plate
Simply screw-fasten from the
outside.
Part No. see page 219.
Enclosure attachment
Tiltable for small enclosures for
mounting on surfaces.
Part No. see page 91.
Accessories:
Reinforcement plate with
support arm cutout,
see page 218.
Rittal Service:
●Other sizes
●Other RAL colors
●With support arm cutout
●Holes and cutouts for
switches and operator
panels
available on request.
Command Panel

72 Systems for the human/machine interface
H1
12.5
H3
30
4.6
10
8 x 12.5
20
35
3
T1
B1
B3
21.5
150
D
100
112
7
70
82
7
H2
H4
B2
B4
The right frame, even for deeper
operator panels.
On request, the compact enclosure AE can
be equipped with an elegant VIP 6000
frame mounted on the rear. The large AE
door provides easy access for servicing.
Configuration:
Housing with integral roof or base
reinforcement and connection for support
arm system CP-L or CP-XL. Aluminum front
panel and front frame supplied loose, rear
door.
On request, with external mounting of a keyboard housing
for cable entry
Support arm connection
for system CP-L, round
Support arm
connection for
system CP-XL
Command Panel with wide VIP 6000 frame in the dimensions of compact enclosures AE or in individual dimensions
6541.009 Design code number
Support arm connection for support arm system
without 6541.009 0
CP-XL, top 6541.009 1
CP-XL, bottom 6541.009 2
CP-L, round, top 6541.009 3
CP-L, round, bottom 6541.009 4
Cable tube connection
without 6541.009 X 0
bottom 6541.009 X 1
Dimensions
Individual dimensions 6541.009 X X H x W x D:
as for compact enclosure AE (HB 30, pages 68 – 73) 6541.009 X X Part No. AE:
Lock systems
Standard double-bit lock insert may be exchanged for 27 mm lock inserts, type A,
Lock cylinder, plastic handles and T handles, type, version B, see page 245 – 247.
Order example 6541.009 41
H x W x D: 352 x 537 x 350 mm (13.86 x 21.14 x 13.78)
(or e.g. AE 1050.600)
Order example
Part No. CP 6541.009
Design code numbers:
●Support arm connection CP-L, round,
bottom (4)
●Cable tube connection, bottom (1)
●Individual dimensions:
H x W x D: 537 x 352 x 350 mm
(13.86 x 21.14 x 13.78)
Additional mounting of a VIP 6000
keyboard housing is possible via the
design code number (see page 28). The
front panel width refers to an enclosure
width B1 – 54 mm (2.13) and is achieved
via a frame connector, which is included in
the configuration of the keyboard housing.
Width dimensions:
B1 = Enclosure width
B2 = B1 – 42 mm (1.65), clearance
between the front frames
B3 = B1 + 79 mm (3.11), overall width
B4 = B1 – 5 mm (0.20), front panel width
Height dimensions:
H1 = Enclosure height
H2 = H1 – 42 mm (1.65), clearance
between the front frames
H3 = H1 + 79 mm (3.11), overall height
H4 = H1 – 5 mm (0.20), front panel height
D = Position of support arm connection
For CP-L: 95 mm (3.74)
For CP-XL: 165 mm (6.50)
T1 = Enclosure depth

Systems for the human/machine interface
Command Panel
with wide VIP 6000 frame
73
Material and Finish:
Enclosure and door:
Sheet steel, e-coat primed and
powder coated in textured
RAL 7035
Interior surfaces:
E-coat primed in RAL 7044
Front panel:
3 mm aluminum, natural
anodized
Frame section:
Aluminum, powder coated in
RAL 7035.
Frame corner pieces:
Die-cast zinc, powder-coated
in RAL 7035
Protection ratings:
IP 56 to EN 60 529/10.91
Complies with NEMA Type 12.
Connection plate
Simply screw-fasten from the
outside.
Part No. see page 219.
Pull-out keyboard
super-slimline with cursor keys
and trackball.
Part No. see page 263.
Interface box
for secure accommodation of
31/2 drives or sockets.
Part No. see page 240.
Accessories:
Pedestal systems,
see page 132 – 149.
Support arms systems,
see page 80.
VIP 6000 keyboard housing,
see page 28 – 31.
Command Panel

74 Systems for the human/machine interface
30
75 (A)
1
B5
H4
150
105 40
H1
H3H5
168
H2
2
B1
B4
52.5
105
15
A
B7
B6
B3
B2
30
100
118
5.5
Ø 49
Ø 40
Configuration:
Enclosure of all-round solid construction,
with cutout and reinforcement for support
arm system CP-S, stainless steel,
Fastener with guide plate.
Door with sealing frame and side
handle grips.
Support arm connection Door hinge
top left
bottom right
Height (H1) in mm (inches) PU 300 (11.81) 300 (11.81) 400 (15.75) 400 (15.75) Page
Width (B1) in mm (inches) 300 (11.81) 400 (15.75) 400 (15.75) 600 (23.62)
Depth (T1) in mm (inches) 150 (5.91) 150 (5.91) 150 (5.91) 150 (5.91)
Part No. CP 1 6535.010 6536.010 6538.010 6539.010
B2 = Enclosure width with handle grips 340 (13.39) 440 (17.32) 440 (17.32) 640 (25.20)
B3 = Clearance opening, front 260 (10.24) 360 (14.17) 360 (14.17) 560 (22.04)
B4 = Spacing of mounting panel attachment 215 (8.46) 295 (11.61) 295 (11.61) 510 (20.01)
B5 = Max. front cutout, width 225 (8.86) 325 (12.80) 325 (12.80 525 (20.66)
B6 = Hinged width for depth 100 mm (3.94) 220 (8.66) 320 (12.60) 320 (12.60) 520 (20.47)
B7 = Hinged width for depth 118 mm (4.65) 212 (8.34) 317 (12.48) 317 (12.48) 519 (20.43)
H2 = Enclosure height with handle grips 310 (12.20) 310 (12.20) 410 (16.14) 410 (16.14)
H3 = Spacing of mounting panel attachment 250 (9.84) 250 (9.84) 330 (12.99) 330 (12.99)
H4 = Max. front cutout, height 255 (10.04) 255 (10.04) 355 (13.98) 355 (13.98)
H5 = Distance from base – mounting panel
attachment 25 (0.98) 25 (0.98) 35 (1.38) 35 (1.38)
Weight kg (lbs) 6.3 (13.89) 7.5 (16.53) 8.8 (19.40) 12.1 (26.68)
Accessories
Matching mounting panel from AE 1033.600 1030.600 1380.600 1039.600 HB 30
68
ID no. 271926 274131 271548 271351
Support rails* SZ Part No. SZ 10 2316.000 2317.000 2317.000 2319.000 HB 30
983
Lock systems
Standard double-bit lock insert may be exchanged for 41 mm (1.61) lock inserts, plastic handle and T handle, version C,
see page 245 – 246.
For the Command Panel housing with door in 1.4404 (Type 316L), please use the extension number .500. Delivery times available on request.
* = Only with vertical attachment of system bar 23 x 23 mm (0.91 x 0.91) see HB 30, page 976.
= Welded studs M6 x 30
for the attachment of mounting
panels or support rails
2
= Welded studs M6 x 15
1

Systems for the human/machine interface
Command Panel housing with door
Stainless steel
75
Command Panel
Material:
Enclosure and door:
Type 304 stainless steel
Handle grips: Plastic approved
for use with foodstuffs,
RAL 5002.
Finish:
Brushed, 240 grain
Protection ratings:
IP 66 to EN 60 529/10.91
Complies with NEMA Type 4X
Accessories:
see page 200 – 201
or see index.
Semi-cylinder lock
for retro-fitting to all stainless
steel enclosures with cam lock.
Part No. see page 247.
Pedestal
for external mounting of
Command Panel housings with
door with rear support arm
cutout. Part No. see page 144.
The alternative
AE stainless steel, rear door,
support arm connection and
handle grips on request.
See Handbook 30, page 280.
Rittal Service:
●Separate keyboard housing
●Other sizes
●Rear support arm cutout or
modified door hinge
●Holes and cutouts for
switches and operator
panels
available on request.

76 Systems for the human/machine interface
B1
H2
B2
H1
M6 x 15
160
150
145
H3
H5
H4
B3
B4
B5
4.5
19
19
72.5
X
5.5
49
40
12
12
X = Mounting cutout
Configuration:
Enclosure with cutout and reinforcement
for support arm system CP-S, stainless
steel.
Front panel/rear panel with seal and
installation hardware.
Two configuration options:
●Front panel screw-fastened at the front.
Recessed front panel installation for a
high level of mechanical protection of the
top-mounted equipment
●Front panel as rear panel,
additional handle grips made from
plastic approved for use with food,
similar to RAL 5002 on request.
Width (B1) in mm (inches) PU 320 (12.60) 400 (15.75)
Height (H1) in mm (inches) 240 (9.45) 320 (12.60)
Depth in mm (inches) 160 (6.30)
Part No. CP 16670.000 6672.000
B2 = Clearance in width 275 (10.83) 355 (13.98)
B3* = Width of front panel 313 (12.32) 393 (15.47)
B4 = Hole spacing 288 (11.33) 368 (14.49)
B5 = Hole spacing 180 (7.09) 220 (8.66)
H2 = Clearance in height 195 (7.68) 275 (10.83)
H3* = Height of front panel 233 (9.17) 313 (12.32)
H4 = Hole spacing 208 (8.19) 288 (11.33)
H5 = Hole spacing – 180 (7.09)
Weight kg (lbs) 5 (11.02) 8 (17.64)
For the Command Panel in RAL 1.4404 (Type 316L), please use the extension number .500. Delivery times available on request.
* Other sizes and machining of the front panel available on request.
= does not apply to
CP 6670.000
= does not apply to
CP 6672.000
1
2
= does not apply to
CP 6670.000
= does not apply to
CP 6672.000
1
2

Systems for the human/machine interface
Command Panel
Stainless steel
77
Command Panel
Material:
Type 304 stainless steel
Enclosure: 1.25 mm (18 ga)
Front panel: 2.0 mm (14 ga)
Finish:
Brushed, 240 grain
Protection ratings:
IP 65 to EN 60 529/10.91
Complies with NEMA Type 12
Accessories:
see page 200 – 201
or see index.
Handle grips
made from plastic approved for
use with food, similar to
RAL 5002 on request.
Enclosure attachment CP-S,
stainless steel
with prefitted screw for
location.
Part No. see page 93.
Connector gland
for 2 cables up to Ø 8 mm
(0.31).
Part No. SZ 2400.300,
see page 220.

78 Systems for the human/machine interface
Rittal support arm systems . . .
. . . and the panel is in position!
4848,3
Support section bent,
Steel: see page 88.
Stainless steel:
see page 92.
Angle adaptor 90°
CP-L to CP-S,
Steel: see page 89.
Angle joint 90°,
CP-L,
see page 113.
Support arm angle 90°,
CP-L,
see page 102.
Angle piece 90°,
CP-L
Horizontal arm section
with enclosure connection
at the top or bottom,
see page 115.
Angle piece 90°,
CP-XL
Outlet at top
Horizontal section at
bottom,
see page 127.
Angle adaptor 90°
CP-XL to CP-L
Horizontal arm
section with
enclosure con-
nection at the top
or bottom,
see page 121.
85
50 80
155
80
CP-S
Material:
Steel (left),
Stainless steel (right)
CP-L
Material:
Aluminum
CP-XL
Material:
Aluminum
2 versions:
sealed (left)
open (right)
CP-S / CP-L and CP-XL –
three load categories, three well-designed
systems with style. By combining CP-L with
CP-S and CP-XL with CP-L the solution
diversity is extended significantly.
The important joint – the transition from the
horizontal to the vertical – is illustrated
here.

79
Support arms systems
Different viewing angles of the machine, tall or short operating staff,
sitting or standing – with the support arm sytems from Rittal, the
interaction between monitoring and operating is achieved to
perfection.
All system components for rotating, tilting, swivelling, – raising and
lowering are combined with one another with unbelievable
flexibility.
Three different systems are used, depending on the system
configuration, arm length and enclosure weight.
Support arm systems 80 – 127
Combinations of enclosures/support arm systems 80 – 81
CP-S, steel 82 – 91
CP-S, stainless steel 82, 92 – 95
CP-L, aluminum 96 – 115
CP-XL, aluminum 116 – 127

80
Support arm systems
Combinations of enclosures / support arm systems
Systems for the human/machine interface
Enclosure Mounting cutout and adaptor Connection to
support arm system
CP-S
steel
Mounting cutout
CP-S
Compact Panel,
as well as small and slimline
enclosures, from an installation
depth of 100 mm (3.94)
CP-S steel:
1, 2, 3
s. p. 85
CP-L:
1.6
s. p. 98
CP-S
stainless
steel
Mounting cutout
CP-S stainless steel
Stainless steel enclosures from
an installation depth of 100 mm
(3.94)
CP-S
stainless
steel:
2, 3
s. p. 87
CP-L
round
Mounting cutout
CP-L, round
Enclosures from an
installation depth of 150 mm
(5.91)
CP-L:
1.6, 2.1, 2.2, 2.4
3.1, 3.2, 3.3
s. p. 99
Connection plate
CP-L
With reinforcement plate
For enclosures from an
installation depth of
150 mm (5.91) .
For easy location of the
Command Panel onto the
support arm or pedestal.
CP 6528.2X0, see page 219
Note:
May also be fitted via CP-L
mounting cutouts (additional
hole ∅ 7 mm (0.28) required).
Connection adaptor
CP-L to CP-XL
For mounting between enclosures with
support arm connection CP-L and support
arm system CP-XL.
Benefits: High load capacity and
easier cable routing
CP 6528.0X0, see page 104
CP-XL:
2, 3
s. p. 119
Connection adaptor
CP-L to CP-XL
To bridge the frame when mounting
between VIP 6000 enclosures with
installation depths from 155 mm (6.10) to
295 mm (11.61) with support arm
connection CP-L and
support arm system CP-XL
Benefits: High load capacity and
easier cable routing
CP 6528.500, see page 104
S
S
45°
Ø 45
Ø 65
7
SE
SE
5.5
49
40
L
L
82
7
70
L
L
L
L
Ø 7
*
D
146
165
180
79
B
L
XL
XL
L
L
XL
XL
L
The diagrams show how the the Rittal enclosures may be
connected to support arm systems, either directly or via
adaptors.
There is a choice of four support arm systems, depending on
your design, load and cabling requirements.
X = 0 (RAL 7030), X = 1 (RAL 7024)
tiltable or
System end
rotatable
components.
The simplest approach is the best
CP-S
For small and lightweight enclosures.
CP-S stainless steel
For use where there are special requirements in terms of
corrosion and hygiene.
CP-L
The system for average Command Panel weights,
stylish lines, and extreme solution diversity.
CP-XL
The system for extreme loads. Also with open cable duct
for super-easy cable entry.
Dimensions B, D depending on the
enclosure, see page 219
* ∅ 6 mm / (0.24) only with metal
enclosures, for securing the
reinforcement plate.

81
Support arm systems
Combinations of enclosures / support arm systems
Support arms systems
Systems for the human/machine interface
Enclosure Mounting cutout and adaptor Connection to
support arm system
CP-L
rectan-
gular
Mounting cutout
CP-L, rectangular
Enclosures from an
installation depth
of 100 mm (3.94)
CP-L:
2.3, 2.4
3.4, 3.5, 3.6
s. p. 99
Connection console
CP-L, rectangular
For Optipanel,
from an installation depth
of 50 mm (1.97)
CP 6508.0X0
on Optipanel
support plate
CP 6508.100
see page 108 – 109
Connection
console CP-L,
rectangular
For other slimline
enclosures
Enclosure with
mounting cutout
CP 6508.0X0,
see page 108
CP-XL
Mounting cutout
CP-XL
Enclosures from an
installation depth of 150 mm
(5.91)
CP-XL:
2, 3
s. p. 119
Connection plate
CP-XL
with reinforcement plate
For enclosures from an
installation depth of
150 mm (5.91).
For easy location of the
command panel onto the
support arm or pedestal.
CP 6528.300, see page 219
Note:
May also be fitted via CP-L
mounting cutouts (additional
hole ∅ 7 mm (0.28) required).
Connection adaptor
CP-L to CP-XL
For mounting between enclosures with
support arm connection CP XL and support
arm system CP-L, provided the load permits
and a stylish design is required.
CP 6528.0X0, see page 104
CP-L:
2.1, 2.2, 2.4
3.1, 3.2, 3.3
s. p. 99
VESA
75
Enclosure attachment, tilting,
top mounting
To fit enclosures
with cutout:
CP-S,
CP-L rectangular,
CP-L round,
VESA Standard 75
With cable tube for protected
cable entry.
IW 6902.670, see page 91
CP-S:
3
s. p. 85
CP-L:
3.4, 3.5, 3.6
s. p. 99
L
L
7
20
50
95
B
40
A
L
L
B
A
89
133
A
B
L
L
C
A
60
30
6
7
6
90
27.530.5
21.5
10.5
63
89
133
A
C
XL
XL
112
7
100
XL
XL
XL
XL
Ø 7
*
D
146
165
180
79
B
L
XL
L
XL
Vesa
75
L S
Vesa 75 LLS
75
75
Ø 6/M5
Alternative
max. ∅ 55
A = max. 55
B = max. 100
Dimensions B, D depending on the
enclosure, see page 219
* ∅ 6 mm / (0.24) only with metal
enclosures, for securing the
reinforcement plate.

82 Systems for the human/machine interface
Support arm systems CP-S . . .
. . . small but powerful!
48
CP-S
Material:
Stainless steel
The compact support arm system for small
and slimline Command Panels.
●Simple, fast assembly via clamping
screws on the support arm components.
●2 color combinations facilitate an
individual design.
●The moving parts have a
maintenance-free friction bearing.
●Horizontal connection to the larger CP-L
support arm system also facilitates
longer support arm lengths.
Order instructions for enclosures with
support arm connection CP-S:
●VIP 6000, Optipanel,
should be ordered by adding an “S” to
the design code number.
●Other Command Panels
are ordered by adding extension .100
to the Model No.
●With other enclosures, please state “with
support arm connection and
reinforcement plate CP-S” in the order
text.
Delivery times available on request.
48.3
CP-S
Material:
Steel
800
600
400
200
1600140012001000800600400200
In conjunction with stainless steel
enclosures (Command Panels, terminal
boxes 120 mm (4.72) deep, compact
enclosures AE), this support arm system is
particularly well-suited to meet demanding
requirements in terms of corrosion protec-
tion and hygiene.
The tilting adaptor and enclosure coupling
may optionally be mounted on the top or
bottom of the enclosure. They are not
suitable for use as the base point of a
system. For this purpose, we recommend
wall/base mountings, or with larger heights
and widths, an additional pillar made of
steel tubing or stainless steel (available on
request).
800
600
400
200
1600140012001000800600400200
Load capacity CP-S steel:
Load capacity CP-S stainless steel:
Permissible static load [N]
(Enclosure + vertical
support arm section)
Arm length B [mm]
When using CP-S in conjunction with CP-L
(in the horizontal development of the sytem), the
load diagram for CP-L applies
CP 6501.1X0
CP 6501.040
CP 6501.050
CP 6501.060
CP 6501.070
CP 6663.400
Arm length B [mm]
Permissible static load [N]
(enclosure + vertical
support arm section)
A max. = C max. = 800 mm (31.50)
A max. = C max. = 800 mm (31.50)
A
C
W
A
C
W
CP-S
Material:
Steel
CP-S
Material:
Stainless steel
IP 69 K
Protection ratings:
IP 69K to DIN 40 050-9/5.93
(protection for high-pressure cleaning)

83
Support arms systems
6
7
3
4
5
1
2
CP-S steel
1Attachment of CP-S for rigid mounting
of the support section on enclosures or
flat surfaces.
2/3 CP-S wall/base mounting for front
mounting on the floor or on surfaces.
4The tube is available in standard
lengths in the following versions:
straight, L-shaped and U-shaped.
5For swivel mounting of the enclosure,
enclosure coupling CP-S is used.
6If a higher load capacity is required,
combination with CP-L offers a solution.
Angle adaptor 90°, CP-L to CP-S,
provides the connection.
7Easier cable routing, thanks to the
removable cover.
CP-S stainless steel
8Rigid wall/base mounting. Swivel base
mountings are likewise available.
9In stainless steel, the support section is
also available in straight, L-shaped,
U-shaped and Z-shaped versions.
10 The housing coupling offers a rotation
range of approximately 350°.
11 The pedestal base plate in conjunction
with the rigid enclosure attachment
provides a basis for Command Panels
with pedestal.
8
9
10
11
Support arm system CP-S 84 – 95
Fast selection, steel 84 – 85
Fast selection, stainless steel 86 – 87
CP-S components, steel 88 – 91
CP-S components, stainless steel 92 – 95

84 Systems for the human/machine interface
Support arm system CP-S
Steel, fast selection
Support sections
T1 support section CP-S
straight Amin. = 100 mm (3.94)
Amax. = 2000 mm (74.74)
T2 support section CP-S
L-bend Amin. = Bmin. = 240 mm (9.45)
Bmax. = 1500 mm (59.06)
T3 support section CP-S
U-bend Amin. = Cmin. = 240 mm (9.45)
Bmin. = 410 mm (16.14)
Bmax. = 1500 mm (59.06)
T4 support section CP-S
Z-bend Amin. = Cmin. = 240 mm (9.45)
Bmin. = 410 mm (16.14)
Bmax. = 1500 mm (59.06)
T
A
A mm (inches) RAL 7035
Part No. CP RAL 9006
Part No. CP
500 (19.69) 6501.000 6501.010
1000 (39.37) 6501.020 6501.030
(to specifications) 6501.350* 6501.340*
See page 88
A
B
A
mm (inches) B
mm (inches) RAL 7035
Part No. CP RAL 9006
Part No. CP
240 (9.45) 500 (19.69) 6501.230 6501.220
500 (19.69) 1000 (39.37) 6501.250 6501.240
(to specifications) (to specifications) 6501.210* 6501.200*
See page 88
A
B
C
A
mm (inches) B
mm (inches) C
mm (inches) RAL 7035
Part No. CP RAL 9006
Part No. CP
240 (9.45) 800 (31.50) 800 (31.50) 6501.290 6501.280
240 (9.45) 500 (19.69) 500 (19.69) 6501.310 6501.300
To specifica-
tions To specifica-
tions To specifica-
tions 6501.270* 6501.260*
See page 88
A
C
B
A
mm (inches) B
mm (inches) C
mm (inches) RAL 7035
Part No. CP RAL 9006
Part No. CP
To specifica-
tions To specifica-
tions To specifica-
tions 6501.330* 6501.320*
See page 88
* Delivery times available on request
It’s so easy!
Make a simple sketch showing the basic
form of the support arm. Next, select the
corresponding support arm components.
Start at “system start” by selecting the
enclosure situation which best describes
your requirements.
Continue with CP-S according
to the item numbers.
System changes are indicated
by the color.
Green = CP-L
System continuation/system
end:
all directions
vertical
horizontal
around a corner
tiltable or
rotatable components
From item a support section
is required between each
component (minimum length
approx. 100 mm (3.94), for
wall/floor mounting approx.
160 mm (6.30)).
The cross-sections indicate the
installation position(s).
1
3
3.1
5.1
T2
2.1
1.1
Assembly example:
Support section CP-S
Mounting cutout CP-S
Tilting enclosure attachment,
top mounting
Enclosure attachment CP-S
Wall/base mounting CP-S
Note:
After any given support section, the 90°
angle adaptor CP-L to CP-S may be used
as a transition to the CP-L system.
T2
1.1
2.1
3.1
5.1

85
Support arm system CP-S
Steel, fast selection
Support arms systems
Systems for the human/machine interface
System end
5.1 Wall/base mounting
CP-S
CP 6501.100 (RAL 7030)
CP 6501.110 (RAL 7024)
see page 89
5
Enclosure
attachments
3.1 Attachment
CP-S
CP 6501.060 (RAL 7030)
CP 6501.070 (RAL 7024)
see page 90
4
5
3.2 Housing coupling
CP-S
CP 6501.040 (RAL 7030)
CP 6501.050 (RAL 7024)
see page 90
3
S
S
Angle
components
4.1 Angle adaptor 90°
CP-L to CP-S
CP 6501.080 (RAL 7030)
CP 6501.090 (RAL 7024)
see page 89
CP-
L
s. p.
98
99
The support sections
CP-S, bent (T2, T3, T4) are
used as angle
components. 5
4
System start
All options see page 80 – 81
Tilting adaptor
* May also be used rotated through
180°, e.g. from CP-L rectangular or
CP-S to CP-L round.
1.1 Mounting cutout
CP-S
see page 80 2
3
1.2 Enclosure attachment,
tilting, top mounting*
IW 6902.670 (RAL 7024)
see page 91
3
CP-
L
s. p.
99
2.1 Enclosure attachment,
tilting, top mounting*
IW 6902.670 (RAL 7024)
see page 91
3
CP-
L
s. p.
99
1
S
S
L
L
LS
Vesa 75
2
LLSVesa 75
SL

86 Systems for the human/machine interface
Support arm system CP-S
Stainless steel, fast selection
Support sections
T1 support section CP-S
Stainless steel, straight Amin. = 100 mm (3.94)
Amax. = 2000 mm (74.74)
T2 support section CP-S
L-bend Amin. = Bmin. = 240 mm (9.45)
Bmax. = 1500 mm (59.06)
T3 support section CP-S
U-bend Amin. = Cmin. = 240 mm (9.45)
Bmin. = 410 mm (16.14)
Bmax. = 1500 mm (59.06)
T
A
A mm (inches) Part No. CP
500 (19.69) 6660.050
1000 (39.37) 6660.010
2000 (78.74) 6660.020
(to specifications) 6660.000*
See page 92
A
B
A mm (inches) B mm (inches) Part No. CP
240 (9.45) 500 (19.69) 6660.110
500 (19.69) 1000 (39.37) 6660.120
(to specifications) (to specifications) 6660.100*
See page 92
A
B
C
A
mm (inches) B
mm (inches) C
mm (inches) Part No. CP
240 (9.45) 800 (31.50) 800 (31.50) 6660.210
240 (9.45) 500 (19.69) 500 (19.69) 6660.220
To specifica-
tions To specifica-
tions To specifica-
tions 6660.200*
See page 92
* Delivery times available on request
It’s so easy!
Make a simple sketch showing the basic
form of the support arm. Next, select the
corresponding support arm components.
Start at “system start” by selecting the
enclosure situation which best describes
your requirements.
Continue with CP-S stainless
steel according to the item
numbers.
System continuation/system
end:
all directions
vertical
horizontal
around a corner
rotatable components
From item a support section
is required between each
component (minimum length
approx. 100 mm (3.94), for
wall/floor mounting approx.
160 mm (6.30)).
The cross-sections indicate the
installation position(s).
1
3
3.1
5.1
T2
2.1
1.1
Assembly example:
Support section CP-S, stainless steel
Mounting cutout CP-S, stainless steel
Tilting adaptor 10° CP-S,
stainless steel
Enclosure attachment CP-S,
stainless steel
Wall/base mounting, rigid
CP-S, stainless steel
T2
1.1
2.1
3.1
5.1

87
Support arm system CP-S
Stainless steel, fast selection
Support arms systems
Systems for the human/machine interface
System end
5.1 Wall/base mounting,
rigid
CP-S stainless steel
CP 6663.000, see page 94
5.2 Swivel wall/base
mounting
CP-S stainless steel
CP 6663.400
(front hole ∅ 9 mm (0.35))
CP 6663.500
(M8 thread at rear)
see page 94
5.3 Wall console
CP-S stainless steel
CP 6665.500
(front hole ∅ 9 mm (0.35))
CP 6665.000
(M8 thread at rear)
see page 95
5
SE
Enclosure
attachments
3.1 Enclosure attachment
CP-S stainless steel
CP 6664.500, see page 93 5
3.2 Housing coupling
CP-S stainless steel
CP 6664.000, see page 93
3
SE
SE
System start
All options see page 80 – 81
Tilting adaptor
1.1 Mounting cutout
CP-S stainless steel
see page 80 2
3
2.1 Tilting adaptor 10°
CP-S stainless steel
IW 6664.100, see page 93 3
1
SE
2
SE
SE
Angle
components
The support sections
CP-S, bent (T2, T3) are
used as angle
components. 5
4

88 Systems for the human/machine interface
Support arm system CP-S
Steel
Support arm section
CP-S
Twelve standard items available off the
shelf, which may be adapted to your
individual requirements by cutting to
length.
Material:
Steel tube
Finish:
Powder coated
Size:
External diameter: 48.3 mm (1.90)
Wall thickness: 4.0 mm (0.16)
Other sizes to order available on
request.
Order example:
Z-bend = CP 6501.330
Dimension A = 300 mm (11.81)
Dimension B = 800 mm (31.50)
Dimension C = 240 mm (9.45)
The minimum dimensions must be adhered
to, because of the bending radius and
insertion depth of the enclosure
attachment, housing coupling and wall/
base mountings.
Straight
Amin. = 100 mm (3.94),
Amax. = 2000 mm (78.74)
A
L-shaped
Amin. = Bmin. = 240 mm (9.45),
Bmax. = 1500 mm (59.06)
A
B
R 100
U-shaped
Amin. = Cmin. = 240 mm (9.45),
Bmin. = 410 mm (16.14)
Bmax. = 1500 mm (59.06)
A
B
R 100
C
R 100
Z-shaped
Amin. = Cmin. = 240 mm (9.45),
Bmin. = 410 mm (16.14)
Bmax. = 1500 mm (59.06)
A
B
R 100
R 100
C
A mm (inches) Weight
kg (lbs) Color
RAL Part No.
CP
500 (19.69) 2.1 (4.63) 7035 6501.000
500 (19.69) 2.1 (4.63) 9006 6501.010
1000 (39.37) 4.2 (9.26) 7035 6501.020
1000 (39.37) 4.2 (9.26) 9006 6501.030
To specifications
A = 4.2 (9.26)
kg/m 7035 6501.350*
To specifications
A = 4.2 (9.26)
kg/m 9006 6501.340*
A
mm (inches) B
mm (inches) Weight
kg (lbs) Color
RAL Part No.
CP
240 (9.45) 500 (19.69) 3.3 (7.28) 7035 6501.230
240 (9.45) 500 (19.69) 3.3 (7.28) 9006 6501.220
500 (19.69) 1000 (39.37)6.6 (14.55) 7035 6501.250
500 (19.69) 1000 (39.37)6.6 (14.55) 9006 6501.240
To specifica-
tions A = To specifica-
tions B = 4.2 (9.26)
kg/m 7035 6501.210*
To specifica-
tions A = To specifica-
tions B = 4.2 (9.26)
kg/m 9006 6501.200*
A mm
(inches) B mm
(inches) C mm
(inches) Weight
kg (lbs) Color
RAL Part No.
CP
240
(9.45) 800
(31.50) 800
(31.50) 8.0
(17.64) 7035 6501.290
240
(9.45) 800
(31.50) 800
(31.50) 8.0
(17.64) 9006 6501.280
240
(9.45) 500
(19.69) 500
(19.69) 5.2
(11.46) 7035 6501.310
240
(9.45) 500
(19.69) 500
(19.69) 5.2
(11.46) 9006 6501.300
(To spec-
ifications)
A =
(To spec-
ifications)
B =
(To spec-
ifications)
C =
4.2 (9.26)
kg/m 7035 6501.270*
(To spec-
ifications)
A =
(To spec-
ifications)
B =
(To spec-
ifications)
C =
4.2 (9.26)
kg/m 9006 6501.260*
A mm
(inches) B mm
(inches) C mm
(inches) Weight
kg (lbs) Color
RAL Part No.
CP
(To speci-
fications)
A =
(To speci-
fications)
B =
(To speci-
fications)
C =
4.2
(9.26)
kg/m 7035 6501.330*
(To speci-
fications)
A =
(To speci-
fications)
B =
(To speci-
fications)
C =
4.2
(9.26)
kg/m 9006 6501.320*
* Delivery times available on request

89Systems for the human/machine interface
Support arm system CP-S
Steel
Support arms systems
Angle adaptor 90°
CP-L to CP-S
The connecting component between
●the horizontal support section CP-L and
●the vertical support section CP-S
Outlet option top or bottom if this
configuration is chosen for structural or
visual reasons. The removable cover
ensures easier cable entry.
Material:
Cast aluminum
Configuration:
Seal and self-tapping screws for CP-L or
clamping screws for CP-S support section
attachment.
Note:
Mounting component for signal pillar
available on request.
Color
RAL Weight
kg (lbs) Part No.
CP
7030 1.0 (2.20) 6501.080
7024 1.0 (2.20) 6501.090
71
156
55.5
106
Ø 40
69
47.5
75
A
View A
Wall/base mounting
CP-S
For rigid attachment of the support section
to surfaces. With flange for front mounting
.
Material:
Cast aluminum
Configuration:
Seal, 2 clamping screws for support
section CP-S and 3 pre-fitted adjusting
screws.
Color
RAL Weight
kg (lbs) Part No.
CP
7030 0.7 (1.54) 6501.100
7024 0.7 (1.54) 6501.110
M10
9
115
73
Ø 48.8
Ø 40
72
65
12
A
View A
Ø 9/M8
Ø 95
Ø 56
Mounting cutout
Adjusting screw

90 Systems for the human/machine interface
Support arm system CP-S
Steel
Attachment
CP-S
For rigid attachment of the
●enclosure to the support section,
●
support arm to flat surfaces, rear*
.
With two drilling patterns for
a) Rittal Command Panel
b) Complete Control Panel
Material:
Die-cast zinc
Configuration:
Seal and 2 clamping screws for support
section CP-S.
* Maximum load 400 N (40 kg/88.18 lbs).
Color
RAL Weight
kg (lbs) Part No.
CP
7030 1.0 (8.99) 6501.060
7024 1.0 (8.99) 6501.070
45°
Ø 65
71
90
48
58
20
68
M6
Ø 40
Ø 48.8
48
12
Clamping screw
45°
45°
7
Ø 45
Ø 65
13.5
7
45°
25°
Ø 45
48
7
58
45°
Ø 45
Ø 65
7
Mounting cutouts
a)1) b)
Like cutout a),
but without
lock holes
1) Possible for Optipanel with an installation
depth of 100 mm (3.94) and 150 mm
(5.91). Under 2.3 (see page 49), in addition
to the design code number, to please
enter an . 1 3
S
Housing coupling
CP-S
For swivel mounting of the enclosure on the
vertical section of the support arm system
.
With two drilling patterns for
a) Rittal Command Panel
b) Complete Control Panel
Rotation range:
Approx. 350 °, lockable via clamping lever
Material:
Die-cast zinc
Configuration:
Seal, 2 clamping screws for support
section CP-S and clamping lever.
Note:
May also be used as top mounted joint.
Load capacity, see page 82.
Color
RAL Weight
kg (lbs) Part No.
CP
7030 1.1 (2.43) 6501.040
7024 1.1 (2.43) 6501.050
* Depending on the weight of the
command panel, this can be used to
make rotation easier or harder.
45°
Ø 65
71
90
48
58
20
68
M6
20
3843
Ø 40
Clamping screw
Screw for adjusting rotatability*
45°
45°
7
Ø 45
Ø 65
13.5
7
45°
25°
Ø 45
48
7
58
45°
Ø 45
Ø 65
7
Mounting cutouts
a)1) b)
Like cutout a),
but without
lock holes
1) Possible for Optipanel with installation
depth 100 mm (3.94) and 150 mm (5.91).
Under 2.3 (see page 49), in addition to the
design code number, to please
enter an . 1 3
S

91Systems for the human/machine interface
Support arm system CP-S
Steel
Support arms systems
Tilting enclosure attachment,
top mounting
For mounting on:
●IW worktop, prepared for enclosure
attachment CP-L, round,
see page 106.
●Surfaces
●Enclosure attachment/coupling
CP-L rectangular, see page 106, 109
●Attachment/housing coupling CP-S 1),
see page 90.
To fit enclosures up to 20 kg (44.09 lbs)
with cutout:
●CP-S
●CP-L rectangular,
●CP-L round,
●VESA Standard 75
With cable tube for protected cable entry.
Tilt angle:
+100°/–60°, lockable in 7.2° increments via
clamping lever and may be limited to
+100°/–15° with the included stop screw.
Material:
Sheet steel, painted
Configuration:
Installation hardware and plastic bellows
section.
Accessories:
IW worktops prepared
for enclosure attachment,
see page 162/163.
Color
RAL Weight
kg (lbs) Part No.
IW
7024 0.8 (1.76) 6902.670
1) May also be used as a tilting adaptor
+100°/–60° for CP-S.
63
95
131
28
40
43
Ø 65
15°
70
90
Ø 82
28
Ø 65
6
7
75
75

92 Systems for the human/machine interface
Support arm system CP-S
Stainless steel
Support section
CP-S, stainless steel
Seven standard part numbers available off
the shelf, which may be adapted to your
individual requirements by cutting to length.
Material:
Type 304 stainless steel
Finish:
Brushed, 240 grain
Dimensions:
External diameter: 48 mm (1.89)
Wall thickness: 3.6 mm (0.14)
Other sizes to order available on request.
Order example:
U-shaped = CP 6660.200
Dimension A = 300 mm (11.81)
Dimension B = 800 mm (31.50)
Dimension C = 240 mm (9.45)
The minimum dimensions must be adhered
to, because of the bending radius and in-
sertion depth of the enclosure attachment,
housing coupling and wall/base mountings.
Straight
Amin. = 100 mm (3.94),
Amax. = 2000 mm (6.56)
A
A mm (inches) Weight
kg (lbs) Part No.
CP
500 (19.69) 2.0 (4.41) 6660.050
1000 (39.37) 3.9 (8.60) 6660.010
2000 (78.74) 7.8 (17.20) 6660.020
(To specifications)
A = 3.9 (8.60)
kg/m 6660.000*
L-shaped
Amin. = Bmin. = 240 mm (9.45),
Bmax. = 1500 mm (59.06)
A
B
R130
A
mm
(inches)
B
mm
(inches)
Weight
kg (lbs) Part No.
CP
240 (9.45) 500 (19.69) 2.6 (5.73) 6660.110
500 (19.69) 1000
(39.37) 2.6 (5.73) 6660.120
To specifi-
cations
A =
To spe c i fi-
cations
B =
3.9 (8.60)
kg/m 6660.100*
U-shaped
Amin. = Cmin. = 240 mm (9.45),
Bmin. = 410 mm (16.14),
Bmax. = 1500 mm (59.06)
A
B
R130 R130
C
A
mm
(inches)
B
mm
(inches)
C
mm
(inches)
Weight
kg (lbs) Part No.
CP
240
(9.45) 800
(31.50) 800
(31.50) 6.6
(14.55) 6660.210
240
(9.45) 500
(19.69) 500
(19.69) 4.3 (9.48) 6660.220
To
specific
ations
A =
To
specific
ations
B =
To
specific
ations
C =
3.9 (8.60)
kg/m 6660.200*
* Extended delivery times

93Systems for the human/machine interface
Support arm system CP-S
Stainless steel
Support arms systems
Enclosure attachment
CP-S, stainless steel
For rigid attachment of the enclosure to the
support section.
Material:
Type 304 stainless steel
Configuration:
Seal and 2 clamping screws for support
section CP-S, stainless steel.
Note:
For assembly of a modular pedestal
(
see page
144
) 2 of these are required.
Accessories:
Enclosure reinforcement,
see page 218.
Mounting cutout
for pedestal, bottom
Ø 48.3
31
Ø 84
52
Ø 40
Ø 40
Ø 9
Ø 62
5.5
49
40
Clamping
screw
Mounting cutout
Enclosure
Weight
kg (lbs) Part No. CP
1.3 (2.87) 6664.500
Tilting adaptor, 10°
CP-S, stainless steel
For mounting between the Command Panel
and
●Enclosure attachment CP 6664.500
or
●Housing coupling CP 6664.000
Material:
Type 304 stainless steel
Configuration:
Seal and installation hardware.
40
84
49
15
10°
30
5.5
49
40
Mounting cutout
Enclosure:
Weight
kg (lbs) Part No. CP
0.7 (1.54) 6664.100
Housing coupling
CP-S, stainless steel
For mounting on the vertical part of the
support arm system.
Rotation range:
Approx. 350 °, lockable via knurled screw.
Material:
Type 304 stainless steel
Configuration:
Seal and 2 clamping screws for support
section CP-S, stainless steel.
Accessories:
Enclosure reinforcement,
see page 218.
5.5
49
40
Ø 40
Ø 84
23 30
53
Ø 48.3
Mounting cutout
Enclosure
Clamping
screw
Weight
kg (lbs) Part No. CP
1.1 (2.43) 6664.000

94 Systems for the human/machine interface
Support arm system CP-S
Stainless steel
Wall/base mounting,
rigid, CP-S stainless steel
For attaching the support arm system to
vertical or horizontal surfaces.
Material:
Type 304 stainless steel
Configuration:
Seals, 3 adjusting screws to compensate
for any irregularities, and 2 clamping
screws for support section
CP-S, stainless steel.
Accessories:
Wall consoles,
see page 95.
3
65
Ø 48.3
20
42 – 50
90
9 / M8
42
110 Mounting cutout
Adjusting
screw
Weight
kg (lbs) Part No. CP
1.7 (3.75) 6663.000
Swivel base mount, CP-S
stainless steel
For external mounting on
●Horizontal surfaces
●Wall console (CP 6663.500 only).
Rotation range:
Approx. 350 °, lockable via knurled screw.
Material:
Type 304 stainless steel
Configuration:
Seals and 2 clamping screws for support
section CP-S, stainless steel.
Note:
Rotation range may be limited in 60°
increments using a limit plate, supplied
loose.
Accessories:
Wall consoles for base mounting
(CP 6663.500)
see page 95.
Rear fastening
Ø 110
Ø 40
M8 M8
111
Ø 48.3
48
95.5
9
40
Mounting cutout
Rear attachment CP 6663.500
Attachment Weight
kg (lbs) Part No.
CP
Rear
M8 thread 3.9 (8.60) 6663.500
Front
hole
Ø 9 mm (0.35)4.5 (9.92) 6663.400
Front fastening
Ø 149
12
Ø 40
111
Ø 48.3
48
Mounting cutout
129
M8
40
Front attachment CP 6663.400

95Systems for the human/machine interface
Support arm system CP-S
Stainless steel
Support arms systems
Wall console
CP-S, stainless steel
With holes for mounting:
●Swivel base mount, CP-S (CP 6663.500)
with 4 screws
●Wall/base mounting, rigid, CP-S
(CP 6663.000) with 4 screws and nuts
Material:
Type 304 stainless steel
Finish:
Brushed, 240 grain
Configuration:
Seals and installation hardware.
144
71
129
52
116
70
116
71
M8
M8
100
9
105
70
90
Rear fastening
Mounting cutout
1
2
= hole for CP 6663.000
= hole for CP 6663.500
1
2
Rear fastening
Example: CP 6665.000 + CP 6663.000
Attachment Weight
kg (lbs) Part No.
CP
Rear
M8 thread 1.5 (3.31) 6665.000
Front hole
Ø 9 mm (0.35)1.5 (3.31) 6665.500
Front fastening
Example: CP 6665.500 + CP 6663.500
144
71
129
52
70
116
160
7.5
71
M8
105
100
140
70
Mounting cutout
1
2
= hole for CP 6663.000
= hole for CP 6663.500
1
2
F
ront
f
asten
i
ng

96 Systems for the human/machine interface
Support arm system CP-L . . .
. . . compact elegance!
CP 6520.0X0
CP 6520.0X0
CP 6522.0X0
CP 6522.0X0
CP 6521.0X0
CP 6521.0X0
CP 6523.0X0
CP 6523.0X0
CP 6523.0X0
600
500
400
300
200
100
0
700
800
200 4000 600 800 1000 1200 1400 1600 1800 2000
A
B
C
85
50
Support arm system CP-L
This support arm system combines compact sizes and elegant
styling with excellent load capacity for small and medium-sized
enclosures. All moving parts have a maintenance-free friction
bearing.
Tilting adaptors, enclosure attachments and couplings may
optionally be mounted on the top or bottom of the enclosure.
These components are not suitable for use as the base point of
a support arm system. For the swivel configuration we
recommend the pillar with corresponding components.
US patent no. 5,460,894
German patent no. 43 31 124
French Patent no. 94 10 806
Ital. patent no. 01275022
Jap. patent no. 2730621
Permissible load depending on system configuration
Intermediate hinge CP 6523.0X0 should only be used
once per system!
Permissible static load
(Enclosure and vertical support arm section) [N]
Arm length [mm]
Load capacity CP-L:
CP-L
Material:
Aluminum
A: System assembly without joint
B: System assembly with one joint
C: System assembly with two joints

97
Support arms systems
1
2
3
4
5
6
7
8
9
Support arm system CP-L 98 – 115
Fast selection 98 – 99
Support arm, height adjustable 100 – 101
CP-L components 102 – 115
1Housing coupling for swivel mounting of
the enclosure on the vertical part of the
support arm system, with the enclosure
either suspended or top-mounted.
2Self-tapping screws for individual
configuration without the need for time-
consuming thread tapping.
3Plastic cover with seal facilitates easy
access to the installed cables.
4Extruded aluminum section of high
bending resistance, easily adapted to
individual situations by cutting to length.
5Intermediate hinge for vertically hinged
connection of horizontal support
sections within the support arm system.
6A high load capacity and a stylish
design are combined by connecting
systems CP-L and CP-XL with the 90°
angle adaptor.
7Easily positioned at any height – thanks
to the height-adjustable CP-L support
arm.
8The CP-L system is also used in deep
enclosures with CP-XL connection. The
CP-L/CP-XL connection adaptor makes
the connection.
9Even super-slimline Optipanels are no
problem: the connection console
provides the interface to the compon-
ents of the CP-L support arm system.

98
Support arm system CP-L
Fast selection
Systems for the human/machine interface
3.1
5.1
6.1
4.1
T1
T1
T1
2.1
1.1
Support sections
T1 support section CP-L
T2 support arm, height-
adjustable,
CP-L
T3 support arm bracket 90° CP-L
Length
mm (inches) Color
RAL Part No. CP
250 (9.84) 7035 6509.000
500 (16.69) 7035 6511.000
1000 (39.37) 7035 6513.000
2000 (78.74) 7035 6515.000
250 (9.84) 9006 6709.010
500 (16.69) 9006 6511.010
1000 (39.37) 9006 6513.010
2000 (78.74) 9006 6515.010
See page 102
Color: RAL 7024/9006
Weight range
kg (lbs)
Length
mm
(inches)
Part No.
CP
10 – 20
(22.05 - 44.09)
962
(37.87) 6510.210
1032
(40.63) 6510.260
19 – 30
(41.89-66.14)
958
(37.72) 6510.310
1028
(40.47) 6510.360
See page 100 – 101
Color RAL Part No. CP
7035 6519.000
9006 6519.010
See page 102
T
max.
800 mm
(31.50)
X
X
System start
All options see page 80 – 81
1.1 Mounting cutout
CP-L, round 2.1
2.2
3.1
3.2
3.3
1.2 Connection plate CP-L
with connection for
CP-L
CP 6528.2X0, see page 219
1.3 Busbar connection
adaptor
CP-L to CP-XL
CP 6528.000, see page 104
1
L
L
L
L
XL
Assembly example:
Support section CP-L
Mounting cutout CP-L, round
Tilting adaptor, 10° CP-L, round
Enclosure attachment CP-L, round
Angle piece 90° CP-L
Intermediate hinge CP-L
Wall/base mounting CP-L
T1
1.1
2.1
3.1
4.1
5.1
6.1
* May also be used rotated through
180°, e.g. from CP-L rectangular or
CP-S to CP-L round.
1.4 Mounting cutout
CP-L, rectangular 2.3
2.4
3.4
3.5
3.6
1.5 Connection console
CP-L rectangular
CP 6508.0X0
on Optipanel support
plate
CP 6508.100
Other enclosures with
mounting cutout
for connection console
see page 108 – 109
1.6 Enclosure attachment,
tilting, top mounting*
RAL 7024
IW 6902.670, see page 91
3.4
3.5
CP-
S
s. p.
85
L
A
B
C
L
CB
A
Vesa 75 LLS
SL
It’s so easy!
Make a simple sketch showing the basic
form of the support arm. Next, select the
corresponding support arm components.
Start at “system start” by selecting the
enclosure cutout which best describes your
requirements.
Continue with CP-L according
to the item numbers.
System changes are indicated
by the color.
Blue = CP-S
Violet = CP-XL
System continuation/system
end:
all directions
vertical
horizontal
around a corner
tiltable or
rotatable components
From item a support section
is required between each
component (minimum length
approx. 100 mm (3.94), for
wall/floor mounting approx.
160 mm (6.30)).
The cross-sections indicate the
installation position(s).
X = 0 (RAL 7030)
X = 1 (RAL 7024)
1
3
x = 350 mm (13.78)

99Systems for the human/machine interface
Support arm system CP-L
Fast selection
Support arms systems
Angle
components
4.1 Angle piece 90°
CP-L
CP 6524.0X0, see page 115 5
6
4.2 Angle joint 90°
CP-L
CP 6524.2X0, see page 113
4.3 Angle adaptor 90°
CP-L to CP-XL
CP 6528.100, see page 103 CP-
XL
s. p.
118
119
4
Enclosure
attachments
3.1 Enclosure attachment
CP-L round
CP 6525.5X0, see page 106 4
5
6
3.2 Housing coupling
CP-L, round
CP 6525.0X0, see page 109 4.1
4.3
6.1
6.2
6.3*
6.4*
3.3 Angle coupling 90°
CP-L, round
CP 6526.0X0, see page 112 4.1
5
6
3
LL
L
L
Tilting adaptor
2.1 Tilting adaptor 10°
CP-L, round
CP 6527.0X0, see page 111 3.1
3.2
3.3
2.2 Tilting adaptor
+/– 45°
CP-L, round
CP 6529.0X0, see page 112
2
L
L
L
L
* May also be used rotated through
180°, e.g. from CP-L rectangular or
CP-S to CP-L round.
2.3 Tilting adaptor 10°
CP-L, rectangular
CP 6527.1X0, see page 111 3.4
3.5
3.6
2.4 Enclosure attachment,
tilting, top mounting*
RAL 7024
IW 6902.670, see page 91
3.4
3.5
CP-
S
s. p.
85
L
L
LLSVesa 75
SL
* via T3 support arm bracket 90°
CP-L
3.4 Enclosure attachment
CP-L, rectangular
CP 6525.6X0, see page 106 4.1
4.2
4.3
5.1
6.1
6.2
6.3*
6.4*
3.5 Housing coupling
CP-L, rectangular
CP 6525.1X0, see page 109 4.1
6.1
6.2
6.3*
6.4*
3.6 Enclosure attachment
CP-L, rectangular,
locatable
CP 6525.2X0, see page 107
4.2
5.1
6.1
6.2
LL
LL
L
System end
6.1 Wall/base mounting,
small, CP-L
CP 6520.5X0, see page 105
6.2 Wall/base mounting,
large, CP-L
CP 6520.0X0, see page 105
6.3 Top mounted joint
CP-L
CP 6522.0X0, see page 114
6.4 Wall mounted hinge
CP-L
CP 6521.0X0, see page 113
6
Intermediate hinge
5.1 Intermediate hinge
CP-L
CP 6523.0X0, see page 114 4.1
6.1
6.2
5
Notes:
Regarding T2
Support arm, height adjustable should always be inserted as the
first horizontal component after the enclosure.
Regarding 5.1 / 6.3 / 6.4
It is always advisable to use only one intermediate hinge or one
wall mounted hinge. Two joints will restrict load capacity and make
positioning the Command Panel more difficult.
Regarding 4.1
Two angle pieces may also be used together.

100 Systems for the human/machine interface
Support arm system CP-L
Support arm, height adjustable
Support arm, height
adjustable, CP-L
Offers enhanced ergonomics thanks to:
●Adjustment range
– for tall and short operators
– for seated and standing work
adjustable to up to 800 mm (31.50) as
required via an adjusting screw at the
front of the support arm.
●Precise counter balance of the
compression spring to the enclosure
weight via an adjusting screw at the rear
of the support arm.
●Complete functional reliabilty – if the
compression spring breaks, the arm will
remain in position.
●Plastic casing clips off for access to the
integral U-channel cable tray.
●Tilting angle of the mounted enclosure is
identical in every height position.
Material:
Steel
Configuration:
Round tube with compression spring relief
and U section cable tray, 2 threaded
connectors, plastic casing, including
installation hardware.
Note:
Connection pieces for other support arms
available on request.
Version 20 kg
Version 30 kg
56
962
800
30°
30°
22
400
400
22
AA
M8
40
85
70
34
20
50
M8
40
85
70
34
20
50
84
30°
30°
22
958
800
400
400
22
B B
Version 20 kg/44.09 lbs
Version 30 kg/66.14 lbs
View A
View B
Max. cross-section
for cable entry
16 x 15 mm (0.63 x 1.02)
Max. cross-section
for cable entry
16 x 26 mm (0.63 x 1.02)
Overall
length
mm
(inches)
Color
RAL Weight range
kg (lbs) Part No.
CP
962
(37.87) 9006 10 – 20
(22.05 – 44.09) 6510.210
958
(37.72) 9006 19 – 3 0
(41.89 – 66.14) 6510.310

101Systems for the human/machine interface
Support arm system CP-L
Support arm, height adjustable
The versatile combination options with
horizontal mounting are illustrated in this
diagram.
* Key:
X = 0 RAL 7030
X = 1 RAL 7024
90° angle piece CP-L
Part No. 6524.0X0*,
see page 115.
90° articulated joint CP-L
Part No. 6524.2X0*,
see page 113.
Angle coupling 90° CP-L, round
Part No. 6526.0X0*,
see page 112.
Enclosure attachment CP-L, round
Part No. 6525.5X0*,
see page 106.
Enclosure with rear
support arm cutout/
reinforcement available on request
Angle adaptor 90°
CP-L to CP-S
Part No. 6501.080 (RAL 7030),
Part No. 6501.090 (RAL 7024),
see page 89.
CP-L
CP-L
CP-L
CP-L
Enclosure
Enclosure
Enclosure
CP-S
CP-S
Enclosure side Attachment side
CP-L
CP-L
CP-L
CP-L
Support arm systems
90° angle piece CP-L
Part No. 6524.0X0*,
see page 115.
Intermediate hinge CP-L
Part No. 6523.0X0*,
see page 114.
Wall/base mounting, small,
CP-L
Part No. 6520.5X0*,
see page 105.
Wall mounted hinge CP-L
Part No. 6521.0X0*,
see page 113.
Top mounted joint CP-L
Part No. 6522.0X0*,
see page 114.

102
Support arm system CP-L
Aluminum
Systems for the human/machine interface
Support arm section
CP-L
For assembling a support arm system. The
connection components are attached to the
support section parts with self-tapping
screws, which means that the support
section can be cut to any required length.
Material:
Extruded aluminum section
Note:
Load information, see page 96.
US patent no. 5,460,894
German patent no. 43 31 124
French patent no. 94 10 806
Ital. patent no. 01275022
Jap. patent no. 2730621
Length
mm
(inches)
Weight
kg (lbs)
RAL 7035
Part No.
CP
RAL 9006
Part No.
CP
250
(9.84) 1.3
(2.87) 6509.000 6509.010
500
(19.69) 2.6
(5.73) 6511.000 6511.010
1000
(39.37) 5.1
(11.24) 6513.000 6513.010
2000
(78.74) 10.2
(22.49) 6515.000 6515.010
Ø 7.45
(35)
8
34
40
85
50
Support arm angle 90°
CP-L
The alternative for configuring compact
support arm systems ensures easier
assembly and an improved visual
appearance, particularly in conjunction
with the small wall/base mounting
(CP 6520.5X0). Attachment of the support
arm components on the bracket is
achieved using self-tapping screws, which
means that the support section can be cut
to any length.
Material:
Extruded aluminum section
Accessories:
Wall/base mounting, small (CP 6520.5X0),
see page 105.
Color
RAL Weight
kg (lbs) Part No.
CP
7035 3.4 (7.50) 6519.000
9006 3.4 (7.50) 6519.010
350
(265)
350
392.5
85
34
40
69
7.45
50

Support arm system CP-L
103
Aluminum
Systems for the human/machine interface
Support arms systems
Angle adaptor 90°
CP-L to CP-S
The connecting component between:
●the horizontal support section CP-L and
●the vertical support section CP-S
Outlet optionally at the top or bottom if this
configuration is chosen for static or visual
reasons. The removable cover ensures
easier cable entry.
Material:
Cast aluminum
Configuration:
Seal and self-tapping screws for CP-L and
clamping screws for CP-S support section
attachment.
Note:
Mounting component for signal pillar
available on request. View A
55.5
106
Ø 40
69
47.5
75
71
156
A
Color
RAL Weight
kg (lbs) Part No.
CP
7030 1.0 (2.20) 6501.080
7024 1.0 (2.20) 6501.090
Angle adaptor 90°
CP-XL to CP-L
The connecting component between:
●horizontal support section CP-XL and
●vertical support section CP-L
Outlet optionally at the top or bottom if this
configuration is chosen for static or visual
reasons. The removable cover ensures
easier cable entry.
Material:
Cast aluminum
Configuration:
Seals and self-tapping screws for CP-L /
CP-XL support section attachment.
191
78
57
35
69
110
34
96
Removable cover
Color
RAL Weight
kg (lbs) Part No.
CP
7030 1.7 (3.75) 6528.100
56
49
49
56

104
Support arm system CP-L
Aluminum
Systems for the human/machine interface
Connection adaptor
CP-L to CP-XL
For mounting between:
●Enclosure with support arm connection
CP-L
and
●Support arm system CP-XL.
May also be used for the attachment of
Command Panels with cutout for CP-L
directly to machines and systems without a
support arm.
Assembly sequence:
●Mount the connection adaptor on the
supporting structure
●Mount the enclosure and tighten the
screws
The seal to the supporting structure is
available on request, if required.
Material:
Cast aluminum
Configuration:
Seal and installation hardware.
7
70
M6
112
82
20
5
Ø 160
Ø 130
45°
70
M6
82
112
7
Ø 160
Ø 130
55
20
5
45°
Weight
kg (lbs) Color
RAL
Height
mm
(inches)
Part No.
CP
0.6 (1.32) 7030 20 (0.78)1) 6528.000
0.7 (1.54) 7030 55 (2.17)2) 6528.500
1) Provided the load permits, may also be
mounted between the enclosure with
support arm connection CP-XL and
support arm system CP-L.
2) For Command Panel VIP 6000,
see page 22 – 23
3.1 Command Panel, design
code number 1 to 5.

105Systems for the human/machine interface
Support arm system CP-L
Aluminum
Support arms systems
Wall/base mounting, small,
CP-L
For rigid attachment of the support arm
system to vertical or horizontal surfaces.
Particularly suitable for the configuration of
compact support arm systems with cable
infeed from the inside.
Material:
Cast aluminum
Configuration:
Seals, adjustment set for support section
and self-tapping screws for CP-L support
section attachment.
85
110
130
11
8.5
34
69
18
51
39
25
90°
Ø 110
Ø 11/M10
A
B
Mounting cutout
A = max. 52
B = max. 70
alternative Ø 52
Color
RAL Weight
kg (lbs) Part No.
CP
7030 0.6 (1.32) 6520.500
7024 0.6 (1.32) 6520.510
Wall/base mounting, large,
CP-L
For rigid attachment of the support arm
system to vertical or horizontal surfaces
with cable feed from the inside.
Material:
Cast aluminum
Configuration:
Seals, opportunity for adjustment with grub
screws and self-tapping screws supplied
loose for CP-L support section attachment.
Accessories:
Pillar,
see page 148.
85
22.5°
115
24
Ø 11/ M 10
150
70 – 110
60
7575
35 – 65
205
115
Mounting cutout
Removable
plate
Removable
plate
Adjusting screws
Color
RAL Weight
kg (lbs) Part No.
CP
7030 1.9 (4.19) 6520.000
7024 1.9 (4.19) 6520.010

106 Systems for the human/machine interface
Support arm system CP-L
Aluminum
Enclosure attachment
CP-L, round
For rigid fastening of the enclosure to the
support arm system.
Material:
Die-cast zinc
Configuration:
Seals and self-tapping screws for CP-L
support section attachment.
40
130
34
82
23
28
82
7
70
Mounting cutout
Enclosure CP-L, round
Color
RAL Weight
kg (lbs) Part No.
CP
7030 1.0 (2.20) 6525.500
7024 1.0 (2.20) 6525.510
Enclosure attachment
CP-L, rectangular
For rigid fastening of the enclosure to the
support arm system.
Material:
Die-cast zinc
Configuration:
Seals and self-tapping screws for CP-L
support section attachment.
Accessories:
Connection console CP-L, rectangular,
see page 108.
90
65
M6
40
95
70
63
41
34
34
8.5
Ø 60
40
120
7
20
50
95
100
40
55
For mounting the enclosure on the
support section CP-L optionally Mounting cutout
Enclosure CP-L, rectangular
alternative max. ∅ 55
Color
RAL Weight
kg (lbs) Part No.
CP
7030 1.0 (2.20) 6525.600
7024 1.0 (2.20) 6525.610

107Systems for the human/machine interface
Support arm system CP-L
Aluminum
Support arms systems
Enclosure attachment,
locatable CP-L, rectangular
For rigid fastening of the enclosure to the
support section.
With “lock holes” for easy, secure mounting
by just one person:
●Screw the enclosure attachment to the
support arm.
●Secure the supporting plate to the inside
of the enclosure and pre-fit two screws
from the outside.
●Locate the enclosure and tighten the
screws.
Suitable for super-slimline enclosures from
a depth of 70 mm (2.76). The design also
allows the entry of cables with connectors.
Material:
Enclosure attachment: Die-cast zinc
Support plate: Sheet steel
Configuration:
Seal, support plate and installation
hardware.
Additional parts
90° articulated joint CP-L,
see page 113.
8.5
Ø 80
Ø 121
65
18
34
69
72
21
18
11
40
95
50
95
100
Ø 7
55
40
20
Mounting cutout
Enclosure
Alternative
max. ∅ 55
Color
RAL Weight
kg (lbs) Part No.
CP
7030 0.4 (0.88) 6525.200
7024 0.4 (0.88) 6525.210

108 Systems for the human/machine interface
Support arm system CP-L
Aluminum
Connection console
CP-L, rectangular
For rear connection of slimline Command
Panels to support arm system CP-L.
Removable cover for easy cable entry.
Material:
Cast aluminum
Configuration:
Seals and installation hardware for
mounting on the enclosure and 2 cable
ties.
Additional parts
Enclosure attachment CP-L, rectangular,
see page 106.
Housing coupling CP-L, rectangular,
see page 109.
Tilting adaptor, 10° CP-L, rectangular,
see page 111.
Accessories:
Spacer plate (CP 6508.200), available on
request.
Support plate Optipanel CP 6508.100,
see page 109.
49
10.5
38
30.5
73.5
89
95
75
35
130
40
7
View A
A
Color
RAL Weight
kg (lbs) Part No.
CP
7030 0.7 (1.54) 6508.000
7024 0.7 (1.54) 6508.010
Mounting options
1. For retrofitting* to the Optipanel
In conjunction with the required support
plate (see page 109), the connection
console is screw-fastened directly to the
Optipanel enclosure section. This ensures
a stable connection, and the rear panel/
door is removable.
* When selecting according to design code
number (see page 49, item 2.3, selection
), the connection console and support
plate are already included in the
configuration, and the rear panel and door
are equipped with the appropriate cutout.
2. For other enclosures
e.g.
●Terminal boxes
(see HB 30, page 48/49),
●Cast aluminum enclosures
(see HB 30, page 40/41)
the connection console may be mounted
a) directly, flush with
the enclosure edge,
b)with spacer plate CP 6508.200
(available on request)
on the rear panel of the enclosure.
Reinforcement of the rear panel should be
checked in individual cases.
Support arm component
CP-L, rectangular
Connection console
Support plate (inside)
60
30
6
7
6
90
27.530.5
21.5
10.5
63
89
133
Mounting cutout
Support arm component
CP-L rectangular
Connection console
Support arm component
CP-L rectangular
Connection console
Spacing plate
7

109Systems for the human/machine interface
Support arm system CP-L
Aluminum
Support arms systems
Housing coupling
CP-L, rectangular
For swivel mounting of the enclosure on the
vertical section of the support arm system.
Rotation range:
Approx. 350 °, lockable via clamping lever.
By inserting additional tension pins
6 x 20 mm (0.24 x 0.79) to ISO 8752, the
rotation range may be limited to ±5° and
±100°.
Material:
Die-cast zinc
Configuration:
Seals and self-tapping screws for CP-L
support section attachment.
Accessories:
Connection console CP-L, rectangular,
see page 108.
82
60
120
90
Ø 69
40
M6
55
70
95
34
16
34
8.5
40
Ø 60
Mounting cutout
Enclosure CP-L,
rectangular
7
20
50
95
100
40
55
alternative max. ∅ 55
Color
RAL Weight
kg (lbs) Part No.
CP
7030 1.4 (3.09) 6525.100
7024 1.4 (3.09) 6525.110
Housing coupling
CP-L, round
For swivel mounting of the enclosure on the
vertical section of the support arm system.
Rotation range:
Approx. 350 °, lockable via clamping lever.
By inserting additional tension pins
5 x 18 mm (0.20 x 0.71) to ISO 8752, the
rotation range may be limited to ±5°, 65°,
95° and 155°.
Material:
Die-cast zinc
Configuration:
Seals and self-tapping screws for CP-L
support section attachment.
50
40
Ø 130
35
82
7
70
Mounting cutout
Enclosure CP-L, round
Color
RAL Weight
kg (lbs) Part No.
CP
7030 1.7 (3.75) 6525.000
7024 1.7 (3.75) 6525.010
Optipanel support plate
For mounting on the enclosure section.
The rear panel or door are recessed in this
area, thereby ensuring easy access in case
of servicing.
Material:
Cast aluminum
Configuration:
Seals and installation hardware.
Weight
kg (lbs) Part No.
CP
0.2 (0.44) 6508.100

110 Systems for the human/machine interface
Support arm system CP-L
Aluminum
Enclosure attachment, tilting,
bottom-mounting CP-L,
rectangular
For mounting beneath:
●IW worktop with pedestal
●Sufficiently large surfaces.
To fit enclosures with mounting cutout:
●CP-L, rectangular (e.g. Optipanel)
see page 80.
With mounting cutout for connector
grommet for sealed cable entry.
Tilt angle:
+40°/–40°, lockable via clamping lever
Material:
Sheet steel, painted
Configuration:
Installation hardware
Accessories:
Connector grommet,
see page 220.
IW worktop with pedestal,
see page 162 – 163.
The enclosure attachment can be mounted
either on the support arm connection of the
Optipanel enclosure or on the underside or
rear of any enclosure.
70
+ 40°
– 40°
66
171
B
211
A
35
35
23
40
95
145
42.5
22.5
M6
Prepared for enclosure with
connection CP-L, rectangular
or connection console CP-L
CP 6508.0X0
Prepared for
connector gland
SZ 2400.300 /
SZ 2400.500
A = min. 101
B = max. 62
Worktop
Color
RAL Weight
kg (lbs) Part No.
CP
7024 1.6 (3.53) 6902.640

111Systems for the human/machine interface
Support arm system CP-L
Aluminum
Support arms systems
Tilting adaptor 10°
CP-L, round
For mounting between:
●Housing coupling CP-L, round
(CP 6525.0X0)
or
●Enclosure attachment CP-L, round
(CP 6525.5X0)
or
●Angle coupling 90° CP-L, round
(CP 6526.0X0)
and the Command Panel.
Material:
Die-cast zinc
Configuration:
Seal and installation hardware.
70
130
82
7
70
12
10°
35
Mounting cutout
Enclosure CP-L
Color
RAL Weight
kg (lbs) Part No.
CP
7030 0.6 (1.32) 6527.000
7024 0.6 (1.32) 6527.010
Tilting adaptor 10°
CP-L, rectangular
For mounting between:
●Housing coupling CP-L, rectangular
(CP 6525.1X0)
or
●Enclosure attachment CP-L, rectangular
(CP 6525.6X0)
and the Command Panel.
Material:
Die-cast zinc
Configuration:
Seal and installation hardware.
40
M6
70
6.6
Ø 120
95
Ø 65
14
(25)
10°
65
7
20
50
95
100
40
55
Mounting cutout
Enclosure
alternative max. ∅ 55
Color
RAL Weight
kg (lbs) Part No.
CP
7030 0.4 (0.88) 6527.100
7024 0.4 (0.88) 6527.110

112 Systems for the human/machine interface
Support arm system CP-L
Aluminum
Tilting adaptor ± 45°
CP-L, round
For mounting between:
●Housing coupling CP-L, round
(CP 6525.0X0)
or
●Enclosure attachment CP-L, round
(CP 6525.5X0)
or
●90° angle coupling (CP 6526.0X0)
and the Command Panel.
Tilting angle:
Adjustable in 7.5° increments
Material:
Cast aluminum
Configuration:
Seal, plastic bellows section and
installation hardware.
US patent no. 5,911,393
German patent no. 195 40 298
Color
RAL Weight
kg (lbs) Part No.
CP
7030 1.3 (2.87) 6529.000
7024 1.3 (2.87) 6529.010
45°
M6
Ø 82
Ø 70
Ø 130
107
82
7
70
Mounting cutout
Enclosure CP-L
Angle coupling, 90°
CP-L, round
For swivel mounting of the enclosure
on the horizontal part of the support arm
system. Enclosure may be suspended or
top-mounted.
The removable plate enables problem-free
cable entry.
Rotation range:
Approx. 350°.
By inserting additional tension pins
5 x 18 mm (0.20 x 0.71) to ISO 8752 the
rotation range may be limited to ±5°, 65°,
95° and 155°.
Material:
Aluminum/die-cast zinc
Configuration:
Seals, adjustment set and self-tapping
screws for CP-L support section
attachment.
Accessories:
Mounting component for signal pillars
(SZ 2375.000),
see page 115.
Color
RAL Weight
kg (lbs) Part No.
CP
7030 1.9 (4.19) 6526.000
7024 1.9 (4.19) 6526.010
85
93
157
50
50
75
130
Mounting cutout
Enclosure CP-L
82
7
70
Removable plate

113Systems for the human/machine interface
Support arm system CP-L
Aluminum
Support arms systems
Angle joint 90°
CP-L
The swivel connection between horizontal
and vertical support sections.
With very slimline enclosures, there is no
need for the deep housing coupling. With
the shallow enclosure attachment
(CP 6525.2X0), the support section may
also be attached with its wide side.
Rotation range:
Approx. 325°.
Option of limiting the rotation range via the
use of additional tension pins 5 x 18 mm
(0.20 x 0.71) to ISO 8752 to ±54° and
±98°.
Material:
Aluminum/die-cast zinc
Configuration:
Seals, self-tapping screws for support
section attachment and adjustment set.
Additional parts
Enclosure attachment, locatable, CP-L,
rectangular (CP 6525.2X0), see page 107
or enclosure attachment CP-L, rectangular
(CP 6525.6X0), see page 106.
Color
RAL Weight
kg (lbs) Part No.
CP
7030 1.2 (2.65) 6524.200
7024 1.2 (2.65) 6524.210
34
40
151
50
76
85
22
5
48
Ø 90
50
43
Removable
plate
Wall mounted hinge
CP-L
For vertically hinged mounting of the
support arm on vertical surfaces. The
removable plates facilitate problem-free
cable routing or cable entry.
Rotation range:
Approx. 350°.
Option of restricting the rotation range in
60° increments and adjusting the mobility
of the joint with the screws supplied loose.
To lock the joint, the screw for adjusting
rotatability may be exchanged for
standard locking lever M8 x 16.
Material:
Cast aluminum
Configuration:
Seals, adjustment via grub screws and self-
tapping screws for CP-L support section
attachment.
Accessories:
Pillar, see page 148.
Mounting component for signal pillars
(SZ 2375.020), see page 115.
US patent no. 5,522,118
German patent no. 44 03 593
French patent no. 94 10902
Ital. patent no. 01274751
Japanese patent no. 2 675 264
Color
RAL Weight
kg (lbs) Part No.
CP
7030 3.2 (7.05) 6521.000
7024 3.2 (7.05) 6521.010
139
288
85
81
146
126
50
121
115
Ø 11/ M 10
60
60
Ø 46 – 55
Removable plate
Removable plate
Mounting cutout

114 Systems for the human/machine interface
Support arm system CP-L
Aluminum
Top mounted joint
CP-L
For swivel mounting of the support arm
system on horizontal surfaces – also
suitable for suspending from the ceiling.
The removable plate enables simplified
cable entry.
Rotation range:
Approx. 350°.
Option of restricting the rotation range in
60° increments and adjusting the mobility
of the joint with the screws supplied loose.
To lock the joint, the screw may be
exchanged for standard clamping lever
M8 x 16.
Material:
Cast aluminum
Configuration:
Seals, adjustment set and self-tapping
screws for CP-L support section
attachment.
Note:
Not suitable for attaching directly to
enclosures.
Accessories:
Pillar,
see page 148.
Mounting component for signal pillars
(SZ 2375.020),
see page 115.
Color
RAL Weight
kg (lbs) Part No.
CP
7030 3.0 (6.61) 6522.000
7024 3.0 (6.61) 6522.010
111
85
180
Ø 46
12
Ø 115
Ø 150
Ø 170
Ø 11
50
58
Ø 50 – 90
Ø 150
Ø 11/M10
Removable plate
Mounting cutout
Intermediate hinge
CP-L
For vertically hinged connection of
horizontal support sections within the
support arm system. The removable plates
ensure simple cable entry.
Rotation range:
Approx. 350°.
Option of restricting the rotation range in
60° increments with the screws supplied
loose.
Material:
Cast aluminum
Configuration:
Seals, adjustment set and self-tapping
screws for CP-L support section
attachment.
Accessories:
Mounting component for signal pillars
(SZ 2375.020), see page 115.
Screw for adjusting rotatability
US patent no. 5,522,118
German patent no. 44 03 593
French patent no. 94 10902
Ital. patent no. 01274751
Japanese patent no. 2 675264
Color
RAL Weight
kg (lbs) Part No.
CP
7030 3.2 (7.05) 6523.000
7024 3.2 (7.05) 6523.010
85
146.5
285
115
126
50
116
Removable plate
Removable plate
Screw for adjusting rotatability

115Systems for the human/machine interface
Support arm system CP-L
Aluminum
Support arms systems
Angle piece 90°
CP-L
For connecting horizontal and vertical
support arm components.
The removable plate ensures easier cable
entry.
Material:
Die-cast zinc
Configuration:
Seals, adjustment set and self-tapping
screws for CP-L support section
attachment.
Accessories:
Mounting component for signal pillars
(SZ 2375.000),
see below.
US patent no. 5,533,763
German patent no. 43 31 125
French patent no. 94 10901
Italian patent no. 012 74 738
Japanese patent no. 2 809 993
Color
RAL Weight
kg (lbs) Part No.
CP
7030 1.4 (3.09) 6524.000
7024 1.4 (3.09) 6524.010
45°
62.5
126
85
47.5
75
50
Removable plate
Mounting component
CP-L
for signal pillars
For mounting a signal pillar with connection
component for conduit mounting on
support arm system CP-L.
Material:
Sheet steel
Accessories:
Signal pillars,
see HB 30 from page 1004.
Mounting
component
CP-L
to fit
Color
RAL Weight
kg (lbs) Part No.
CP
Angle piece
(CP 6524.0X0) 9017 0.4
(0.88) 2375.000
Angle coupling
(CP 6526.0X0)
Intermediate
hinge
(CP 6523.0X0)
9017 0.4
(0.88)
2375.020Wall mounted
hinge
(CP 6521.0X0)
Top mounted
joint
(CP 6522.0X0)

116 Systems for the human/machine interface
Support arm system CP-XL . . .
. . . for high loads
There is a choice of 2 profile designs:
●Solid for high torsion loads (particularly
when using an intermediate hinge)
●Open for simple cable entry
Both have two integral “cable ducts” for
separate cable routing e.g. of power and
control lines.
The couplings and joints have a
maintenance-free friction bearing.
Tilting adaptors, enclosure attachments
and couplings may optionally be mounted
on the top or bottom of the enclosure.
These components are not suitable for
use as the base point of a support arm
system. For the swivel configuration we
recommend the pillar with corresponding
components.
155
80 80
Permissible load depending on system assembly
Intermediate hinge CP 6120.000 should only be used once per
system!
A: Open and solid support section B: Solid support section C: Open support section
550
300020001000
1600
800
0
0
400
650
1300
CP 6120.000
CP 6140.000
CP 6110.000,
CP 6160.000,
CP 6170.000 CP 6180.000
CP 6180.000
CP 6140.000
CP 6110.000,
CP 6160.000,
CP 6170.000
CP 6140.000
CP 6180.000
CP 6120.000
CP 6110.000,
CP 6160.000,
CP 6170.000
Permissible static load [N]
Arm length [mm]
static
load
static
load
static
load
static
load
static
load
static
load
Load capacity CP-XL:
A + B
C
CP-XL
Material:
Aluminum
Design:
Solid
CP-XL
Material:
Aluminum
Design:
Open

117
Support arms systems
1Self-tapping screws facilitate simple,
fast assembly of the support arm
without the need for time-consuming
thread-tapping.
2Extruded groove to accommodate the
clip-on cover with open support section
CP-XL (included in the configuration of
the support section).
3Intermediate hinge for vertically hinged
connection of horizontal support
sections within the support arm system.
4Extruded aluminum section of high
bending resistance with a high load-
bearing capacity and an attractive
design.
5Section open on one side, enabling
easy installation of pre-assembled
cables.
6Housing coupling for connecting the
support section to the enclosure
facilitates an infinitely adjustable
enclosure rotation range of
approximately 350°.
7Connection adaptor VIP 6000
(installation depth 155 mm (6.10),
185 mm (7.28) and 295 mm (11.61))
on CP-XL support arm.
890° angle piece for a stable connection
between support arm sections; the
design permits problem-free insertion of
pre-assembled cables.
9A high load capacity and a stylish
design are combined, thanks to the
connections of systems CP-L and
CP-XL with the 90° angle adaptor.
10 The CP-XL system is also used in
shallow enclosures with CP-L
connection. The CP-L/CP-XL
connection adaptor makes the
connection.
2
3
5
1
8
6
7
4
9
10
Support arm system CP-XL 118 – 127
Fast selection 118 – 119
CP-XL components 120 – 127

118 Systems for the human/machine interface
Support arm system CP-XL
Fast selection
3.1
6.15.1 T1
T1
T1
2.1
1.1
4.1
Support sections
T1 Support section CP-XL,
open
T2 Support section CP-XL,
sealed
Length
mm
(inches)
Color
RAL Part No. CP
500
(19.69) 7035 6050.000
1000
(39.37) 7035 6100.000
2000
(78.74) 7035 6200.000
See page 120
Length
mm
(inches)
Color
RAL Part No. CP
500
(19.69) 7035 6050.500
1000
(39.37) 7035 6100.500
2000
(78.74) 7035 6200.500
See page 120
TSystem start
All options see page 80 – 81
1.1 Mounting cutout
CP-XL 2
3
1.2 Connection plate
CP-XL
CP 6528.300 (RAL 7030)
see page 219
1.3 Connection adaptor
CP-L to CP-XL
CP 6528.000 (RAL 7030)
see page 121
1.4 Connection adaptor
CP-L to CP-XL
for VIP 6000 enclosures
with installation depths
155, 185 and 295 mm
(6.10, 7.28 and 11.61)
CP 6528.500 (RAL 7030)
see page 121
1
XL
XL
XL
XL
L
XL
L
Assembly example:
Support section CP-XL, open
Mounting cutout CP-XL
Tilting adaptor 10° CP-XL
Enclosure attachment CP-XL, round
Angle piece 90° CP-XL, outlet at
bottom
Intermediate hinge CP-XL
Wall/base mounting CP-XL
T1
1.1
2.1
3.1
4.1
5.1
6.1
Note:
●Only insert one intermediate hinge
●Two angle pieces may also be used one
after the other.
●With angle pieces, take care to ensure
correct positioning of the support section
cable duct
It’s so easy!
Make a simple sketch showing the basic
form of the support arm. Next, select the
corresponding support arm components.
Start at “system start” by selecting the
enclosure situation which best describes
your requirements.
Continue with CP-XL according
to the item numbers.
System continuation/system
end:
all directions
vertical
horizontal
around a corner
rotatable components
From item a support section
is required between each
component (minimum length
approx. 100 mm (3.94), for
wall/floor mounting approx.
160 mm (6.30)).
The cross-sections indicate the
installation position(s).
1
3

Support arm system CP-XL
Fast selection
Angle
components
Intermediate hinge
4.1 Angle piece 90°
CP-XL, outlet at top
CP 6180.000 (RAL 7030)
see page 127
5
6
4.2 Angle piece 90°
CP-XL, outlet at
bottom
CP 6140.000 (RAL 7030)
see page 127
5.1 Intermediate hinge
CP-XL
CP 6120.000 (RAL 7030)
see page 126
4
6
4
5
System end
6.1 Wall/base mounting
CP-XL
CP 6160.000 (RAL 7030)
see page 122
6.2 Top mounted joint
CP-XL
CP 6170.000 (RAL 7030)
see page 125
6.3 Wall mounted hinge
CP-XL
CP 6110.000 (RAL 7030)
see page 125
6
Enclosure
attachments
3.1 Enclosure attachment
CP-XL, round
CP 6130.600 (RAL 7030)
see page 122
4
5
6.1
3.2 Enclosure attachment
CP-XL, rectangular
CP 6130.500 (RAL 7030)
see page 122
3.3 Housing coupling
CP-XL
CP 6130.000 (RAL 7030)
see page 123
3.4 Angle coupling 90°
CP-XL
CP 6040.000 (RAL 7030)
see page 124
3
XL
XL
XL
XL
Tilting adaptor
2.1 Tilting adaptor 10°
CP-XL
CP 6023.000 (RAL 7030)
see page 123
3
2.2 Tilting adaptor
25° / 60° CP-XL
CP 6150.000 (RAL 7030)
see page 124
2
XL
XL
XL
XL
XL
Support arm systems
119Systems for the human/machine interface

120 Systems for the human/machine interface
Support arm system CP-XL
Aluminum
Support arm section
CP-XL, open
For assembling a support arm system.
The connection components are attached to
the support section parts with self-tapping
screws, which means that the support
section can be cut to any required length.
With open cable duct, for easy servicing
access and for pre-assembled cables; with
connector easily locked via clip-in lid.
Material:
Extruded aluminum section
Configuration:
Clip-in lid
Accessories:
Adjustment set for support section, see
below.
Note:
Load information, see page 116.
Length
mm (inches) Color
RAL Weight
kg (lbs) Part No.
CP
500 (19.69) 7035 4.9 (10.80) 6050.000
1000 (39.37) 7035 9.8 (21.61) 6100.000
2000 (78.74) 7035 19.6 (43.21) 6200.000
7.45
5.7 3
18.5
10.6
54
64
80
45 50
155
15
80
Adjustment set for support
section CP-XL
The adjustment set permits alignment of
the CP support section after installation.
Material:
Sheet steel 1.0 mm (19 ga), zinc-plated.
PU Part No. CP
10 6205.000
Support arm section
CP-XL, solid
The alternative solution for higher loads
and torsion compared with the support
section CP-XL, open.
The connection components are attached
to the support section parts with self-
tapping screws, which means that the
support section can be cut to any required
length.
Material:
Extruded aluminum section
Accessories:
Adjustment set for support section, see
below
Note:
Load information, see page 116.
Length
mm (inches) Color
RAL Weight
kg (lbs) Part No.
CP
500 (19.69) 7035 5.5 (12.13) 6050.500
1000 (39.37) 7035 11.0 (24.25) 6100.500
2000 (78.74) 7035 22.0 (48.50) 6200.500
10.5
7.45
3
5.7
155
80
64
54
50
45
76
52
18.5

121Systems for the human/machine interface
Support arm system CP-XL
Aluminum
Support arms systems
Angle adaptor 90°
CP-XL to CP-L
The connecting component between:
●horizontal support section CP-XL and
●vertical support section CP-L
Outlet optionally at the top or bottom if this
configuration is chosen for static or visual
reasons. The removable cover ensures
easier cable entry.
Material:
Cast aluminum
Configuration:
Seals and self-tapping screws for CP-L and
CP-XL support section attachment.
Color
RAL Weight
kg (lbs) Part No.
CP
7030 1.7 (3.75) 6528.100
56
49
56
191
78
57
35
69
96
110
34
Removable cover
Connection adaptor
CP-L to CP-XL
For mounting between
●Enclosure with support arm connection
CP-L
and
●Support arm system CP-XL.
Material:
Cast aluminum
Configuration:
Seal and installation hardware.
1)Provided the load permits, may also be
mounted between enclosure with support
arm connection CP-XL and support arm
system CP-L.
2)For Command Panel VIP 6000
see page 22/23
3.1 Command Panel, design
code number to .
Height
mm
(inches)
Color
RAL Weight
kg (lbs) Part No.
CP
20
(0.79)1) 7030 0.5 (1.1) 6528.000
55
(2.17)2) 7030 0.7 (1.54) 6528.500
20
5
Ø 160
Ø 130
45°
70
M6
82
112
7
Ø 160
Ø 130
55
20
5
45°
7
70
M6
112
82
1 5

122 Systems for the human/machine interface
Support arm system CP-XL
Aluminum
Wall / base mounting
CP-XL
For rigid attachment of the support arm
system to vertical or horizontal surfaces.
Material:
Spheroidal graphite cast iron
Configuration:
Seals and self-tapping screws for CP-L
support section attachment.
Accessories:
Pillar, see page 148.
Color
RAL Weight
kg (lbs) Part No.
CP
7030 4.1 (9.1) 6160.000
14 / M12
75
140
70
80 55
140
40
14
40
50
140
165
30 80
174
37
65
70
45°
33 55
18
Mounting cutout
Enclosure attachment
CP-XL, round
For rigid external mounting of enclosures
to:
●Support section
●Tilting adaptor 10° (CP 6023.000)
●Tilting adaptor 25°/60° (CP 6015.000).
Material:
Die-cast zinc
Configuration:
Seals and self-tapping screws for CP-L
support section attachment.
Color
RAL Weight
kg (lbs) Part No.
CP
7030 1.6 (3.53) 6130.600
54
64
112
180
32 18
100
22
25
Enclosure attachment
CP-XL, rectangular
For direct external mounting on the
enclosure.
Material:
Die-cast zinc
Configuration:
Seals and self-tapping screws for CP-L
support section attachment.
Color
RAL Weight
kg (lbs) Part No.
CP
7030 1.2 (2.65) 6130.500
64
54
32 18
Ø 112
160
130
25
22
112
7
100
Mounting cutout
Enclosure CP-XL

123Systems for the human/machine interface
Support arm system CP-XL
Aluminum
Support arms systems
Housing coupling
CP-XL
For swivel mounting of the enclosure on the
horizontal part of the support arm system.
Rotation range:
approx. 350°
Material:
Die-cast zinc
Configuration:
Seals and self-tapping screws for CP-L
support section attachment.
Note:
By inserting grooved pins 5 x 12 mm
(0.2x0.47) to DIN 1474, the rotation
range may be limited in 90° increments.
Color
RAL Weight
kg (lbs) Part No.
CP
7030 6.8 (14.99) 6130.000
M6
Ø 100
45°
45°
Ø 180
112
58
112
7
100
Mounting cutout
Enclosure CP-XL
10° tilting adaptor
CP-XL
For mounting between:
●Housing coupling (CP 6130.000)
or
●Enclosure attachment (CP 6130.600)
or
●Angle coupling (CP 6040.000)
and the Command Panel.
Material:
Die-cast zinc
Configuration:
Seals and installation hardware.
Color
RAL Weight
kg (lbs) Part No.
CP
7030 1.4 (3.09) 6023.000
Ø 160
10°
50
180
98
112
7
100
Mounting cutout
Enclosure CP-XL

124 Systems for the human/machine interface
Support arm system CP-XL
Aluminum
25° / 60° tilting adaptor
CP-XL
For mounting between:
●Housing coupling (CP 6130.000)
or
●Enclosure attachment (CP 6130.600)
or
●Angle coupling (CP 6040.000)
and the Command Panel.
Material:
Cast aluminum
Configuration:
Seals, plastic cover and installation
hardware.
Color
RAL Weight
kg (lbs) Part No.
CP
7030 1.7 (3.75) 6150.000
164.5
210
25°
60°
5°
A
160
75.5
185 7
18
140
160
20 150
M8
7
160
112
100
45°
45°
Tilt 25°
Tilt 60°
Angle coupling, 90°
CP-XL
For swivel mounting of the enclosure on the
horizontal part of the support arm system.
Enclosure may be suspended or top-
mounted.
Rotation range:
approx. 350°
Material:
Spheroidal graphite cast iron and die-cast
zinc
Configuration:
Seals, plastic casing and self-tapping
screws for CP-L support section
attachment.
Note:
By inserting grooved pins 5 x 12 mm
(0.2x0.47) to DIN 1474, the rotation
range may be limited in 90° increments.
German patent no. 4033747
Swiss patent no. 684439
Italian patent no. 1252120
Color
RAL Weight
kg (lbs) Part No.
CP
7030 6.2 (13.67) 6040.000
Ø 180
M6
45°
45°
Ø 100
88
50 89
112
112
7
100
Mounting cutout
Enclosure CP-XL
View A

125Systems for the human/machine interface
Support arm system CP-XL
Aluminum
Support arms systems
Wall mounted hinge
CP-XL
For vertically hinged mounting of the
support arm surface on vertical surfaces.
Rotation range:
approx. 180°
Material:
Spheroidal graphite cast iron
Configuration:
Seals, bellows section and installation
hardware.
Note:
Rotation range may be reduced with
rotation range limiter CP-XL.
Accessories:
Pillar, see page 148.
Rotation range limiter CP-XL,
see page 126.
Color
RAL Weight
kg (lbs) Part No.
CP
7030 8.5 (18.74) 6110.000
80
165
140
14
22.5
167
65
70
70
45°
140
5580
70
140
75
14 / M12
20
220
168
10
50
208
120
80
Mounting cutout
approx. 28
Top mounted joint
CP-XL
For swivel mounting of the support arm
system on horizontal surfaces – also
suitable for suspending from the ceiling.
Rotation range:
approx. 350°, lockable.
Material:
Steel and cast iron parts with plastic cover.
Configuration:
Seals and self-tapping screws for CP-XL
support section attachment.
Note:
Safety end stop as anti-twist protection.
Accessories:
Pillar, see page 148.
Color
RAL Weight
kg (lbs) Part No.
CP
7030 11.9 (26.23) 6170.000
31.5
Ø 70
Ø 145
79
60.550
33
155
Ø 175
200
14
45°
80
45°
Ø70+30
175
Ø 14 (M12)
Mounting cutout

126 Systems for the human/machine interface
Support arm system CP-XL
Aluminum
Rotation range limiter
CP-XL
Suitable for:
●Wall-mounted hinge (CP 6110.000)
●Intermediate hinge (CP 6120.000).
Material:
Steel, zinc plated
Configuration:
2 steel disks, slotted, including 3 cheese-
head screws for assembly.
Adjustable swivel area:
PU Weight
kg (lbs) Part No.
CP
1 set 0.6 (1.32) 6110.100
90°
90°
90°
45°
45°
45°
45°
135°
135°
Intermediate hinge
CP-XL
For vertically hinged connection of
horizontal support sections within the
support arm system.
Rotation range:
approx. 180°
Material:
Spheroidal graphite cast iron
Configuration:
Self-tapping screws for CP-XL support
section attachment and divided bellows
section with zip for uninhibited access to
the cable duct.
Note:
Rotation range may be reduced with
rotation range limiter.
Accessories:
Rotation range limiter CP-XL,
see below.
US patent no. 4,998,702
German patent no. 3805424
European patent no. 0330029
with validity for FR, GB, IT
Jap. patent no. 1903905
Color
RAL Weight
kg (lbs) Part No.
CP
7030 6.5 (14.33) 6120.000
20
208
5013050
275
80
120

127Systems for the human/machine interface
Support arm system CP-XL
Aluminum
Support arms systems
Angle piece 90°
CP-XL
For connecting horizontal and vertical
support arm components.
Material:
Spheroidal graphite cast iron with plastic
casing
Configuration:
Seals and self-tapping screws for CP-L
support section attachment.
US patent no. 4,997,155
German patent no. 58901106
European patent no. 0330027
with validity for FR, IT
Japanese patent no. P 1870561
Outlet Color
RAL Weight
kg (lbs) Part No.
CP
bottom 7030 2.4 (5.29) 6140.000
top 7030 3.6 (7.94) 6180.000
10
50
10
45°
20
88
188
155
10
10
50
20
45°
88
188
86
80
80
86

128 Systems for the human/machine interface
Wallmount
arms
Attaches to a vertical surface with
135 mm (5.3″) H x 152 mm (6.0″) W
mounting plate with 4 12.5 mm (0.5″) Ø
hole pattern on 121 mm (4.75″) H x 89 mm
(3.50″) W centers. 51 mm (2.0″) Ø hole
through center for cable exit. 64 mm (2.5″)
NPS threaded opening as alternate cable
exit.
Machine
top arms
Attaches to horizontal surface with
127 mm (5″) x 127 mm (5″) mounting
plate with 4 9 mm (0.37″) Ø hole
pattern on 90 mm (3.54″) centers.
38 mm (1.5″) Ø hole through center
for cable exit.
Floor posts
914 mm (36″),
1880 mm (74″), or
2007 mm (79″) tall,
89 mm (3.5″) x 6 mm
(0.25″) OD post with
square base plate.
38 mm (1.5″) NPT
female coupling near
base can be used
for cable entry. Post
can be easily short-
ened.
Note: When using
jointed extension
arms, a 2007 mm
(79″) tall post should
be used.
H
H
TALL
SHORT
Horizontal
extensions
Increases
overall length by
dimension “L”.
Vertical
extensions
Lowers enclosure
by dimension “H”.
LENGTH L
LENGTH L
UNIVERSAL AS
MACHINE TOP
UNIVERSAL AS
WALLMOUNT
UNIVERSAL AS
POST TOP
INVERTED
H
Universal
arms
Designed for increased
flexibility. Mounting method can be
easily configured based on user
requirements.
Jointed
extension arms
Increases overall length by
dimension “L” and adds additional swivel
joint, providing in-out motion.
Post top arms
Attaches to a plain end 89 mm (3.5″)
OD tube or pipe. Cables exit through
tube.

Systems for the human/machine interface 129
Technical specifications
CP-vertical travel
CP-V
CP-vertical mounting dimensions
3.5"
LENGTH L
3.0"
HORIZONTAL
T1
T2
T
TRAVEL
5"
T3
T
TRAVEL
T3
5"
Floor post plates
Machine top universal mounting Post top mounting Machine top mounting
Wallmount mounting
6.4"
6.4" 4.5"
4.5"
.53" Ø
(4) PLACES
1.4" Ø
CABLE EXIT
3.5"
5.75"
COVER
PLATE
TOP OF PIPE
.8"
5.0"
3-1/2" OD TUBE
(OR)3" PIPE
(PLAIN END)
.8"
TOP
OF
PIPE
5.0"
3-1/2" OD TUBE
(OR)3" PIPE
(PLAIN END)
4.8" Ø
CIRCUMFERENCE
1.4" Ø
CABLE EXIT
2.0" 5.0"
5.0" 3.54"
3.54" 3/8" Ø
(4) PLACES
1.4" Ø
CABLE EXIT
1.4" Ø
CABLE EXIT
.53" Ø
(4) PLACES
5.3"
6.0"
4.75"
3.5"
4.0"
2.2"
2-1/2" NPT ALTERNATE CABLE EXIT
(THREADED CAP SUPPLIED)
12"
10"
12"
10" 3" Ø ALTERNATE
CABLE ACCESS
.68" Ø
(4) PLACES
.50" Ø
(4) PLACES 3" Ø ALTERNATE
CABLE ACCESS
8"
6"
6"
8"
CP-VL/CP-VXL
6.4"
6.4" 4.5"
4.5"
.53" Ø
(4) PLACES
1.4" Ø
CABLE EXIT
Wallmount universal mounting
Post universal mounting
6.0"
Enclosure mounting coupling
4.5"
M6
3.23"
4.41"
1.82" Ø CABLE
PASSAGE
2 3/4"
9968014 = 13 1/4”
9968015 = 17 15/16"
(9968014/9968015)
Release handles

130 Systems for the human/machine interface
CP-vertical pendant arm systems
Features and specifications:
●Adjusts to viewing height of each
operator with simple motion
●Counterbalance can be adjusted by
user for loads up to 100 lbs. (depending
on arm)
●13″, 23″, or 30″ of vertical adjustment
●Locks and unlocks with a convenient
release mechanism
●Swivels at both ends
●NEMA Type 4, 12 sealed cable
passageway protects wiring
●All arms can be easily reconfigured
for inverted applications
●A release handle mechanism must be
ordered for each arm
●Sizes:
CP-V5″ H x 3″ W x 26″ L
CP-VL 5″ H x 3″ W x 31″ L
CP-VXL5″ H x 3″ W x 39″ L
●Arm material: Aluminum
●Finish: Powder painted aluminum,
RAL 7035 light grey
●Pivoting travel: Swivel at both ends
●Mounting styles:
Wallmount, machine top, post top,
–standard and inverted mounting
●Rotational stops: One stop per
swivel
●Cable passageway:
Sealed passageway, minimum
restriction 36 mm (1.4″) Ø
●NEMA rating: Type 4, 12
1) Must choose one release handle per arm.
Part No. Description Height Base plate
9968008 102 mm (4″) Vertical extension piece 102 mm (4″) –
9968009 203 mm (8″) Vertical extension piece 203 mm (8″) –
9968010 305 mm (12″) Vertical extension piece 305 mm (12″)–
9968011 914 mm (36″) Floor post 914 mm (36″)203 mm (8″) x
203 mm (8″)
9968012 1880 mm (74″) Floor post 1880 mm (74″)305 mm (12″) x
305 mm (12″)
9968013 2007 mm (79″) Floor post 2007 mm (79″)305 mm (12″) x
305 mm (12″)
9968014
Release handle W ≤
406 mm
(16″)
1)
––
9968015 Release handle W
>
406 mm
(16″)
1)
––
9968016 Release handle for VIP
1)
––
9968017 Universal release handle
1)
––
Part No. Description Length (L)
9968002 152 mm (6″) Horizontal
extension 152 mm (6″)
9968003 305 mm (12″) Horizontal
extension 305 mm (12″)
9968004 457 mm (18″) Horizontal
extension 457 mm (18″)
9968005 610 mm (24″) Horizontal
extension 610 mm (24″)
9968006 457 mm 18″ Jointed
extension arm 457 mm (18″)
9968007 610 mm (24″) Jointed
extension arm 610 mm (24″)
CP-vertical pendant arm specifications
Part No. Description Max. load Vertical travel T T1 T2 T3 Length (L)
9967987 Post top/CP-V 45.36 kg (100 lbs) 330 mm (13″) – – 142 mm (5.6″) 565 mm (22.25″)
9967988 Post top/CP-VL 34.02kg (75 lbs) 584 mm (23″) 150 mm (5.9″) 434 mm (17.1″) 160 mm (6.3″) 711 mm (28″)
9967989 Post top/CP-VXL 22.68 kg (50 lbs) 762 mm (30″) 188 mm (7.4″) 574 mm (22.6″) 221 mm (8.7″) 889 mm (35″)
9967993 Wallmount/CP-V 45.36 kg (100 lbs) 330 mm (13″) – – 142 mm (5.6″) 565 mm (22.25″)
9967994 Wallmount/CP-VL 34.02kg (75 lbs) 584 mm (23″) 150 mm (5.9″) 434 mm (17.1″) 160 mm (6.3″) 711 mm (28″)
9967995 Wallmount/CP-VXL 22.68 kg (50 lbs) 762 mm (30″) 188 mm (7.4″) 574 mm (22.6″) 221 mm (8.7″) 889 mm (35″)
9967996 Machine top/CP-V 45.36 kg (100 lbs) 330 mm (13″) – – 142 mm (5.6″) 565 mm (22.25″)
9967997 Machine top/CP-VL 34.02kg (75 lbs) 584 mm (23″) 150 mm (5.9″) 434 mm (17.1″) 160 mm (6.3″) 711 mm (28″)
9967998 Machine top/CP-VXL 22.68 kg (50 lbs) 762 mm (30″) 188 mm (7.4″) 574 mm (22.6″) 221 mm (8.7″) 889 mm (35″)
9967999 Universal mount/CP-V 45.36 kg (100 lbs) 330 mm (13″) – – 142 mm (5.6″) 565 mm (22.25″)
9968000 Universal mount/CP-VL 34.02kg (75 lbs) 584 mm (23″) 150 mm (5.9″) 434 mm (17.1″) 160 mm (6.3″) 711 mm (28″)
9968001 Universal mount/CP-VXL 22.68 kg (50 lbs) 762 mm (30″) 188 mm (7.4″) 574 mm (22.6″) 221 mm (8.7″) 889 mm (35″)

CP-V CP-VL CP-VXL
330 mm (13″) 584 mm (23″) 762 mm (30″)
vertical travel vertical travel vertical travel
Yes Yes Yes
Yes Yes No
Yes No No
Customer information:
Inquiry ❏Order ❏Date _ _ _ _ _ _ _ _ _ _ _ _ _ _ _ _ _ _ _ _ _ _ _ _ _ _ _ _ _ _ _ _ _
Name _ _ _ _ _ _ _ _ _ _ _ _ _ _ _ _ _ _ _ _ _ _ _ _ _ _ _ _ _ _ _ _ _ _ _ _ _ _ _ _ _ _ _ Title _ _ _ _ _ _ _ _ _ _ _ _ _ _ _ _ _ _ _ _ _ _ _ _ _ _ _ _ _ _ _ _ _ _
Company _ _ _ _ _ _ _ _ _ _ _ _ _ _ _ _ _ _ _ _ _ _ _ _ _ _ _ _ _ _ _ _ _ _ _ _ _ _ _ _ _ _ _ _ _ _ _ _ _ _ _ _ _ _ _ _ _ _ _ _ _ _ _ _ _ _ _ _ _ _ _ _ _ _ _ _ _ _ _
Address _ _ _ _ _ _ _ _ _ _ _ _ _ _ _ _ _ _ _ _ _ _ _ _ _ _ _ _ _ _ _ _ _ _ _ _ _ _ _ _ _ _ _ _ _ _ _ _ _ _ _ _ _ _ _ _ _ _ _ _ _ _ _ _ _ _ _ _ _ _ _ _ _ _ _ _ _ _ _ _
City _ _ _ _ _ _ _ _ _ _ _ _ _ _ _ _ _ _ _ _ _ _ _ _ _ _ _ _ _ _ _ _ _ _ _ _ _ _ _ _ _ _ _ _ _ State _ _ _ _ _ _ _ _ _ _ _ _ _ _ _ Z i p _ _ _ _ _ _ _ _ _ _ _ _ _ _
Phone _ _ _ _ _ _ _ _ _ _ _ _ _ _ _ _ _ _ _ _ _ _ _ _ _ _ _ _ _ _ _ Fax _ _ _ _ _ _ _ _ _ _ _ _ _ _ _ _ _ _ _ _ _ _ _ _ _ _ _ _ _ _ _ _ _ _ _ _ _ _ _ _ _ _ _ _ _ _ _
E-Mail _ _ _ _ _ _ _ _ _ _ _ _ _ _ _ _ _ _ _ _ _ _ _ _ _ _ _ _ _ _ _ _ _ _ _ _ _ _ _ _ _ _ _ _ _ _ _ _ _ _ _ _ _ _ _ _ _ _ _ _ _ _ _ _ _ _ _ _ _ _ _ _ _ _ _ _ _ _ _ _ _ _
Rittal Representative _ _ _ _ _ _ _ _ _ _ _ _ _ _ _ _ _ _ _ _ _ _ _ _ _ _ _ _ _ _ _ _ _ _ _ _ _ _ _ _ _ _ _ _ _ _ _ _ _ _ _ _ _ _ _ _ _ _ _ _ _ _ _ _ _ _ _ _ _
Comments/Special Instructions _ _ _ _ _ _ _ _ _ _ _ _ _ _ _ _ _ _ _ _ _ _ _ _ _ _ _ _ _ _ _ _ _ _ _ _ _ _ _ _ _ _ _ _ _ _ _ _ _ _ _ _ _ _ _ _ _ _ _
1Determine maximum load*:
Maximum load = Weight of enclosure (lbs.)**
+total weight of all components
mounted ON or INSIDE of enclosure
Maximum load kg (lbs.) = _________________________________
* Load = Weight of enclosure + total weight of all components mounted inside enclosure
** See VIP weight chart or Rittal handbook for more information.
2Determine proper CP-vertical pendant arm
based on load:
Select a vertical travel based on your maximum load
calculation from above.
Systems for the human/machine interface 131
Ordering information
Part Number Quantity
_ _ _ _ _ _ _ _ _ _ _ _ _ _ _ _ _ _ _ _ _ _ _ _
_ _ _ _ _ _ _ _ _ _ _ _ _ _ _ _ _ _ _ _ _ _ _ _
_ _ _ _ _ _ _ _ _ _ _ _ _ _ _ _ _ _ _ _ _ _ _ _
_ _ _ _ _ _ _ _ _ _ _ _ _ _ _ _ _ _ _ _ _ _ _ _
_ _ _ _ _ _ _ _ _ _ _ _ _ _ _ _ _ _ _ _ _ _ _ _
_ _ _ _ _ _ _ _ _ _ _ _ _ _ _ _ _ _ _ _ _ _ _ _
_ _ _ _ _ _ _ _ _ _ _ _ _ _ _ _ _ _ _ _ _ _ _ _
_ _ _ _ _ _ _ _ _ _ _ _ _ _ _ _ _ _ _ _ _ _ _ _
Each CP-vertical pendant arm system will include the following:
CP-vertical configuration order form
CP-V CP-VL CP-VXL
330 mm (13″) 584 mm (23″) 762 mm (30″)
vertical travel vertical travel vertical travel
Mounting method Part No. Part No. Part No.
Post top 9967987 9967988 9967989
Wallmount 9967993 9967994 9967995
Machine top 9967996 9967997 9967998
Universal* 9967999 9968000 9968001
* Universal incorporates the ability to post, wallmount, or machine mount the
CP-vertical arm.
Extensions Part No.
152 mm (6″) Horizontal extension 9968002
305 mm (12″) Horizontal extension 9968003
457 (18″) Horizontal extension 9968004
607 (24″) Horizontal extension 9968005
457 (18″) Jointed extension 9968006
607 (24″) Jointed extension 9968007
102 mm (4″) Vertical extension 9968008
203 mm (8″) Vertical extension 9968009
304 mm (12″) Vertical extension 9968010
Floor posts
1930 mm (36″) Floor post 9968011
1880 mm (74″) Floor post 9968012
2006 mm (79″) Floor post* 9968013
• CP-Vertical pendant arm that can be counterbalanced by the user based on load rating
• Mounting method (Post, Wallmount, Machine, Universal) will be attached to pendant arm
• A 6’ release cable will be included
• Conversion wrench and instructions
• Hardware to attach enclosure to CP-Vertical arm
Note: Hardware to attach the CP-Vertical pendant arm to mounting surface is not provided.
Below is a step-by-step guide to selecting a CP-vertical pendant arm system:
Release
mechanism
Enclosure width Part No.
Less than or equal to 406 mm (16″)9968014
Greater than 406 mm (16″) and
less than or equal to 609 mm (24″)9968015
Release handle for VIP enclosure 99680162
Universal release handle 99680171
* Select when using jointed extension.
1
Call for availability.
3Determine mounting method:
Based on the CP-Vertical Pendant Arm you selected (i.e.CP-V,
CP-VL, CP-VXL) in step #2, select a mounting method that best fits
your application.
4Determine if additional accessories are
required:
Select any accessories that are needed for your
application. Each accessory can be used for all CP-
Vertical arm configurations.
Note: You can add only one horizontal, jointed, or
vertical extension to each arm.
5Determine release mechanism (required):
Select release mechanism based on the overall width
or type of enclosure.
2
For use with VIP 6392.009
Maximum load range (+ 0%)
0 to 22.68 kg (50 lbs)
23.13 kg (51lbs) to
34.02 kg (75 lbs)
34.47 kg (76 lbs) to
45.36 kg (100 lbs)
Fax to: 937-629-2815

132 Systems for the human/machine interface
Rittal pedestal systems . . .
. . . stationary or mobile
Always at the right
height for the
operating panel and
worktops
Whether you work in a
standing or sitting position,
with the height-adjustable
panel or the panel lift, you
decide the correct position
for yourself.
Pedestals in any version
For example, the cross member with
die-cast feet and integral cable routing,
or the mobile pedestal. The pedestal
base plate may be used as an
alternative.
Small, fine,
modular
Pedestals for
rigid or height-
adjustable
and tiltable
configuration of
compact
operating
stations.
The modularity
facilitates
individual
designs.
A powerful
pillar with
many
options
The pillar
provides a stable
base for all
support arm
systems.

133
Pedestal systems
Bringing movement to Rittal pedestal systems. They will meet all
your ergonomic and technical requirements.
For every enclosure type, height variability, mobile use, and
accommodation of cables, our extensive solution diversity meets
every conceivable requirement.
Pedestal systems 134 – 149
Pedestal, height-adjustable 134 – 137
Panel lift 138
Worktop attachment, IW 139
Pedestals 140 – 147
Pillars 148 – 149

134
Pedestal systems
Pedestal, height-adjustable
Systems for the human/machine interface
Pedestal, height-adjustable
Modular assembly comprising:
●Lifting pillar
●Control unit for:
– Manual operation
– External mounting on surfaces/
enclosures
●Cross member with cast feet
R41
R56
132
88
88
132
M6
45°
45°
Ø 11
138
162
88
124
670
10
10
A
B
max. 470
max. 1140
View B
View A
Lifting pillar, electric
Height adjustment 470 mm (18.50) (from
670 to 1140 mm (26.38 to 40.94), spindle
drive secured against unintentional drop-
ping.
With electronic overload cutout to protect
the drive.
Adjusting unit made from extruded alumi-
num section with groove on all sides for
individual externally mounted equipment
via mounting kit CP 6142.030.
Head plate
●For direct mounting of
enclosures with support arm connection
– CP-L round
(e.g. Optipanel, from page 40)
or
– CP-XL
(e.g. VIP 6000, from page 12).
●For swivel mounting of enclosures, also
with keyboard support:
see assembly sequences
Base plate
For external mounting on the cross
member or a sub-structure provided by the
customer.
Technical specifications:
Permissible load: max. 80 kg
Duty cycle:
max. 6 min/h during continuous operation
Ambient temperature: +5°C to +40°C
(+41 °F to 104°F)
Supply connection: 230 V/50 Hz
Transformer: 24 V DC
Protection ratings:
IP 65 (NEMA 4) to EN 60 529/10.91
(for electrical components).
Configuration:
Adjusting drive with transformer.
Weight
kg (lbs) Part No.
CP
13.8 (30.42) 6142.000

Pedestal systems
135
Pedestal, height-adjustable
Systems for the human/machine interface
Pedestal systems
Control unit
for height adjustment of the lifting pillar.
Design ready for connection with spiral
cable and connector.
For manual operation: With hooks for
location e.g. on the enclosure handle set.
For external mounting: With mounting
brackets for screw fastening.
For manual operation For mounting on
surfaces/enclosures
Version Protection
ratings Part No.
CP
Manual operation IP 65 6142.010
Mounting on
surfaces/
enclosures IP 30 6142.020
Cross member with cast feet
Steel cross member with mounting holes
for lifting pillar, including 2 cast aluminum
feet.
Accessories:
Foot rest CP 6145.100,
Trim panel CP 6144.100,
Base mount CP 6147.000,
see page 215.
Twin castors,
see page 213.
138
456
Ø 11
CP 6147.000
11
140
15
88
700
521
600
85
M12
660
18
13
➀
➁
Prepared for trim panel CP 6144.100
or foot rest CP 6145.100
Prepared for twin castors CP 6148.000
or base mount CP 6147.000
Color
RAL Weight
kg (lbs) Part No.
CP
7035 5.8 (12.79) 6142.100
Assembly kit for
externally mounted
accessories
Simply slide into the groove of the lifting
pillar and secure at any chosen height
using the existing screws.
With M10 thread for mounting your own
components such as utility trays.
PU Part No. CP
1 set 6142.030

136
Pedestal systems
Assembly sequence for pedestal, height-adjustable
Systems for the human/machine interface
2.2
1.3
5.1
6.1
4.1
3.1
1.2
6.1
1.1 1.2
2.1
3.2
5.1
6.1
4.1
1.1
Assembly example 2:
swivel
Mounting cutout CP-L,
round
Tilting adaptor 10°
Housing coupling
Support arm section
Wall/base mounting
Lifting pillar
1.1
2.1
3.2
4.1
5.1
6.1
It’s so easy!
Start at “system start” by selecting the
enclosure situation which best describes
your requirements. Next, select the
corresponding support arm components.
Continue with CP-L according
to the item numbers.
System changes are indicated
by the color.
Blue = CP-XL
System continuation/system
end:
vertical
tiltable or
rotatable components
From item a support section
is required between each
component (minimum length
approx. 100 mm (3.94), for
wall/floor mounting approx.
160 mm (6.30)).
The cross-sections indicate the
installation position(s).
X = 0 (RAL 7030)
X = 1 (RAL 7024)
1
3
System start
1.1 Mounting cutout
CP-L, round
Tiltable and rotatable,
direct mounting
2.1
2.2
3.1
3.2
6.1
1
L
Tilting adaptor
2.1 Tilting adaptor, 10°
CP-L, round
CP 6527.0X0, see page 111 3.1
3.2
2.2 Tilting adaptor
+/– 45°
CP-L, round
CP 6529.0X0, see page 112
2
L
L
L
L
* May also be used rotated through
180°, e.g. from CP-L rectangular or
CP-S to CP-L round.
2.3 Tilting adaptor 10°
CP-L, rectangular
CP 6527.1X0, see page 111 3.3
3.4
3.5
2.4 Enclosure attachment,
tilting, top mounting*
RAL 7024
IW 6902.670, see page 91
3.1
3.2
3.3
3.4
3.5
6.1
L
L
Vesa 75 LLS
SL
1.2 Mounting cutout
CP-XL
Direct mounting 1.3
6.1
1.3 Connection adaptor
CP-L to CP-XL
Tiltable and rotatable
CP 6528.0X0, see page 104
2.1
2.2
3.1
3.2
XL
L
XL
1.4 Mounting cutout
CP-L, rectangular 2.3
3.3
3.4
3.5
L
Assembly example 3:
direct mounting
Mounting cutout CP-L,
round
or
Mounting cutout CP-XL
Lifting pillar
1.1
1.2
6.1
Assembly example 1:
tiltable
Mounting cutout CP-XL
Connection adaptor
Tilting adaptor +/- 45°
Enclosure attachment
Support arm section
Wall/base mounting
Lifting pillar
1.2
1.3
2.2
3.1
4.1
5.1
6.1

Pedestal systems
137
Assembly sequence for pedestal, height-adjustable
Pedestal systems
137
Systems for the human/machine interface
Enclosure
attachments
3.1 Enclosure attachment
CP-L round
CP 6525.5X0, see page 106 4.1
3.2 Housing coupling
CP-L, round
CP 6525.0X0, see page 109 4.1
3
L
L
3.3 Enclosure attachment
CP-L, rectangular
CP 6525.6X0, see page 106 4.1
3.4 Housing coupling
CP-L, rectangular
CP 6525.1X0, see page 109 4.1
3.5 Enclosure attachment
CP-L, rectangular,
locatable
CP 6525.2X0, see page 107
4.1
LL
LL
L
Support sections
4.1 Support section CP-L
5.1
4
Length
mm
(inches)
Color
RAL Part No.
CP
250 (9.84) 7035 6509.000
250 (9.84) 9006 6509.010
See page 102
Attachment
5.1 Wall/base mounting,
small, CP-L
CP 6520.5X0, see page 105 6.1
5Lifting pillar
6.1 Lifting pillar, electric
CP 6142.000, see page 134
6
CP-XL
CP-L
Assembly example 4:
IW worktops for mounting on
the lifting pillar,
see page 160.

138
Pedestal systems
Panel lift
Systems for the human/machine interface
Panel lift
Height adjustment 445 mm (17.52),
from 865 to 1310 mm (34.06 to 51.18).
Max. permissible load capacity: 50 kg
(110.23 lbs)
Configuration:
Telescopic pillar made of steel tube with
guides.
Self-locking drive with crank handle.
Accessories:
250 Ø 55
□ 70
□ 90
34
40
max. approx. 1310
min. approx. 865
50
85
34
40
Color
RAL Weight
kg (lbs) Part No.
CP
7035 10.9 (24.03) 6139.000
Accessories Part No.
CP see
page
Pedestal base plate,
large 6137.535 146
Enclosure
attachment CP-L,
round 6525.5X0 106
Enclosure
attachment CP-L,
rectangular 6525.6X0 106
Enclosure coupling
CP-L, round 6525.0X0 109
Housing coupling
CP-L, rectangular 6525.1X0 109

Pedestal systems
139
Worktop attachment, IW
Systems for the human/machine interface
Pedestal systems
Worktop attachment, IW
For mounting worktops on:
●Lifting pillar, electric
●Panel lift
●Enclosure attachment CP-L, round
●Housing coupling CP-L, round
●Enclosure attachment CP-XL, round
●Housing coupling CP-XL
Material:
Sheet steel
Configuration:
Installation hardware
Accessories:
350
380
25
90
Ø 82
Ø 112
M8
Ø 12
30
30
5.5
130
30
30
80
312
Ø 7
106
Ø 70
Color
RAL Weight
kg (lbs) Part No.
IW
7035 3.0 (6.61) 6902.780
Accessories Part No.
CP see
page
Lifting pillar, electric 6142.000 134
Panel lift 1) 6139.000 138
Enclosure
attachment CP-L,
round 6525.5X0 106
Housing coupling
CP-L, round 6525.0X0 109
Enclosure
attachment, CP-XL,
round 6130.600 122
Housing coupling,
CP-XL 6130.000 123
1) In conjunction with enclosure attachment,
CP-L, round, or enclosure attachment
CP-L, round.

140
Pedestal systems
Pedestals
Systems for the human/machine interface
Pedestal, mini
with height and tilt adjustment
For small panels and keyboard housings
up to 20 kg (44.09 lbs).
May be compiled from the
following modules: Part No.
CP
Tilt
adjustment 6146.300
Support section, height-
adjustable 6146.200
Gas pressurised spring
(not illustrated) 6146.400
Pedestal
base plate 6146.100
Twin castors
see page 213 6148.000
22
732 – 1122
695
10
(90)
±30°
M12
400
340
A
B
E
D
2
1
3 alternatives
static tiltable swivel
Clamping lever, tilt adjustment
Clamping lever, height adjustment
1
2
A
B
C
D
E
Tilt adjustment
May optionally be used for direct top-
mounting on enclosures with a mounting
cutout:
●CP-S
●CP-L, rectangular
●CP-L, round
Adjustment range:
±30°
Material:
Sheet steel, zinc plated
Configuration:
Locking lever and installation hardware for
height-adjustable mounting on the support
section.
Rittal Service:
As tilt adjustment for support arm system
CP-S on request.
40
Ø 37
Ø 65
Ø 82
95
70
110
View B
PU Part No. CP
16146.300

Pedestal systems
141
Pedestals
Systems for the human/machine interface
Pedestal systems
Support section, height-
adjustable
Adjustment range from 732 to 1122 mm
(28.82 to 44.17).
Inner section for external mounting of:
●Tilt adjustment CP 6146.300*
●Enclosure attachment CP 6501.060 /
.070
●Housing coupling CP 6501.040 /.050
External section with:
●Clamping screws at the rear for external
mounting on pedestal base plate
CP 6146.100
●Clamping lever for height adjustment
●Surface for external cable routing.
* Cannot be combined with enclosure
attachment or housing coupling.
Material:
Extruded aluminum section, natural
anodized.
Configuration:
Inner and outer section including locking
lever and installation hardware for external
mounting on the base plate and enclosure.
Rittal Service:
Other heights available on request.
Accessories:
Tilt adjustment CP 6146.300,
see page 140.
Enclosure attachment CP 6501.060 / .070,
see page 90.
Housing coupling CP 6501.040 / .050,
see page 90.
Support section CP-S,
see page 88.
Ø 7
37
View A
PU Part No. CP
16146.200
Gas pressurised spring
●For relief with height adjustment
●Optional installation
●Mounting on the inside
●Load capacity 15 kg (33.07 lbs)
●Length 490/885 mm (19.29/34.84)
Configuration:
Installation hardware for installing in the
support section, height-adjustable.
PU Part No. CP
16146.400
Pedestal base plate
With large surface for stability and welded
tube connectors (48.3 mm (1.9) diameter)
to accommodate the external profile of the
support section, height-adjustable.
Material:
Sheet steel, powder coated Accessories:
Twin castors CP 6148.000,
see page 213.
Floor attachment (from the outside using
screws up to M10).
Color
RAL PU Part No. CP
7024 1 6146.100

142
Pedestal systems
Pedestals
Systems for the human/machine interface
Pedestal
for Command Panel
One oval panel is permanently screw-
fastened, while the other can be opened by
“spreading” with a screwdriver for easy
laying of cables.
In the Command Panel VIP 6000 with
keyboard housing, we recommend an
adjustable frame connector or hinged
frame connector at the front for opening the
cover (see page 226).
Configuration:
2 cast aluminum feet,
1 cross member made of steel,
2 steel support tubes welded to cross
member,
2 oval panels made from aluminum
section,
1 top cover made from cast aluminum with
support section CP-L, partially pre-
assembled.
CP 6147.000 11
15
35
140
700
456
600
70
130
M12
55°
50
130
136
18
660
13
1093
44.5
M5
48
28 44
80
58
R43
2
1
600
957
273
85
521
85
162
B
B
AA
1
B – B
A – A
Cutout only for CP 6141.1001
Ø 7.4
40
69
34
R 17
R 7.5 max. PG 48/M50
Cross-section, cable entry
Cable conduit adaptor only for CP 6141.100
1
2
Cover for
cable entry
Pedestal
H x W x D
1093 x 600 x
700 mm
(43.03 x
23.62 x
27.56)
Color
RAL Weight
kg (lbs) Part No.
CP
With hole for
cable entry in
cross
member
7035/
Natural
ano-
dized
34.9
(76.94) 6141.000
With cable
conduit
adaptor and
hole for cable
entry in cross
member
7035/
Natural
ano-
dized
35.1
(77.38) 6141.100
Other widths and heights and support
tubes available on request.
Version and accessories
Cast feet Accessories Part No. see page
With M12 thread at the bottom
for Twin castors CP 6148.000
PC 4634.500
PC 4634.000
PS 4611.000
213
Levelling feet PS 4612.000 214
Base mount CP 6147.000 215
With M8 thread on the inside for Foot rest CP 6145.100 215
Trim panel CP 6144.100 215
Enclosure may optionally be mounted via
Accessories Part No. CP see
page
Enclosure attachment
CP-L, round 6525.500 106
Enclosure attachment
CP-L, rectangular 6525.600 106
Housing coupling
CP-L, round 6525.000 109
Housing coupling
CP-L, rectangular 6525.100 109
Enclosure attachment
CP-L, rectangular,
locatable 6525.2X0 107

Pedestal systems
143
Pedestals
Systems for the human/machine interface
Pedestal systems
Pedestal
for IW worktops
The panel tray is opened for easy cable
laying.
Material:
Feet: Cast aluminum
Cross member, vertical support tubes:
Steel
Panels: Aluminum section Note:
Pedestal, height-adjustable,
available on request.
A
A
380
350
90
600
521
946
22
85
312
660
M12
18
13
1
23
A – A
600
456
11
700
15
140
CP 6147.000
Ø 70
Prepared for worktop
IW 6902.310
Prepared for trim panel CP 6144.100
or foot rest CP 6145.100
Prepared for twin castors
CP 6148.000
or base mount CP 6147.000
1
2
3
Pedestal
H x W x D Color
RAL Weight
kg (lbs) Part No.
CP
946 x 600
x 700 mm
(37.25 x
23.62 x
27.56)
7035/
Natural
anodized
33.7
(74.30) 6141.200

144
Pedestal systems
Pedestals
Systems for the human/machine interface
Pedestal, modular, small
For the configuration of compact operating stations.
May be compiled from the following
modules:
Part No.
CP-L
Steel Page
Part No.
CP-S
Stainless
steel
Page
Enclosure reinforcement 6143.210 218 6143.310 218
Enclosure attachment, top* ––6664.500 93
Support section, straight
(may be shortened to required length
by cutting)
500 mm (19.69)6511.000 102 6660.050 92
1000 mm (39.37)6513.000 102 6660.010 92
2000 mm (78.74)6515.000 102 6660.020 92
Enclosure attachment, bottom* ––6664.500 93
Pedestal base plate, small 6143.200 145 6143.300 145
* Not required with CP-L steel version.
Steel
Stainless steel 250
400
108
10
135
15°
400
1065*
C
A
D
* for support section length 1000 mm (39.37)
Steel
400
Ø 32.5
250
400
4 x M8
135
108
10
15°
1104*
B
C
B
A
D
400
30°
* for support section length 1000 mm (39.37)
Stainless steel
A
B
C
B
D

Pedestal systems
145
Pedestals
Systems for the human/machine interface
Pedestal systems
Pedestal base plate, small
●With one hole at the rear for
commercially available cable conduit
gland M20.
●With two holes at the top (including
sealing plug) for lower base attachment
cross member.
●Prepared on the inside for a cable clamp
DK 7077.000 or DK 7078.000 for strain
relief. Note:
Commercially available screws up to M8
may be used for floor attachment.
Accessories:
Cable clamp DK 7077.000 or DK 7078.000,
see page 223.
Additional parts
see table, page 144.
Steel
Stainless steel
Material Weight
kg (lbs) Color
RAL Part No.
CP
Sheet steel
2.5 mm
(12 ga)
6.3
(13.89) 7035 6143.200
Type 304
stainless
steel
7.0
(15.43) –6143.300
Pedestal, mobile
Consisting of:
2 sheet steel beams, each with
2 die-cast zinc connection plates with
plastic covers,
4 twin castors, 2 x with, 2 x without locks,
1 cross-brace, screw fastened, of sheet
steel with integral cable clamping bracket,
1 support section made of aluminum (for
CP 6136.000 with clip-in lid).
Material:
Powder coated in RAL 7035,
Roller bearings RAL 7030,
partially pre-assembled.
Accessories for the configuration of
Command Panel:
C 30/15 x 100 lg
20
80
60
100
800
800
CP 6136.500 CP 6136.000
R 95
R 110
75
80
155
50
85
600
approx. 205
Pedestal, mobile
with support section Part No. CP
CP-L
(see page 102) 6136.500
CP-XL
(see page 120) 6136.000
Enclosure
attachment for Part No. CP See
page
6136.500
CP-L 6525.6X0
6525.5X0 106
6136.000
CP-XL 6130.600
6130.500 122

146
Pedestal systems
Pedestals
Systems for the human/machine interface
Pedestal base plate, large
Fitted as standard with:
●Cutout for concealed mounting of cable
conduit adaptors up to PG 36 or M 50.
●Cutout for PG segments (EL 2235.010 to
EL 2235.080) or cable conduit adaptor
up to 70 mm (2.76) diameter
●Integral cable clamp bracket.
Material:
Sheet steel, powder coated
Configuration:
Integral reinforcement and mounting cutout
for support section CP-L or CP-XL,
complete with installation hardware for
configuration of the support section.
Additional parts
Support section CP-L,
see page 102,
Support section CP-XL,
see page 120,
Panel lift (for CP-L version),
see page 138.
Accessories:
CP enclosure or worktops according to
choice.
Twin castors,
see page 213.
Levelling feet,
see page 214.
Wall mounting bracket KL 1580.000 or
KL 1590.000,
see Handbook, page 962.
BA
100
65
59
15
6
18.5
50 18.5
51
M 12
480
200
490
440
600
1
2
View A View B
Cutout for CP 6137.035
Cutout for CP 6137.535
510 for floor anchoring
with KL 1580.000, KL 1590.000
400 for floor anchoring
with KL 1580.000, KL 1590.000
1
2
For
Support
arm section
Weight
kg (lbs) Color
RAL Part No.
CP
CP-L 12.4
(27.34) 7035 6137.535
CP-XL 13.1
(28.88) 7035 6137.035

Pedestal systems
147
Pedestals
Systems for the human/machine interface
Pedestal systems
Pedestal for operating
housing
Suitable for side mounting of operating
housings.
Consisting of:
●Pedestal plate, on castors
●Support section
●End cap with recessed handle.
Benefits:
●Pre-assembled cables are inserted as
with a cable duct and covered.
●Integral recessed handle and castors
facilitate easy movement.
●Optimum adaptation of the tilt of the
operating housing to the most
favourable working position, with
infinitely variable rotation (360°).
Installation hardware are included in
the supply.
US patent no. 4,754,942
German patent no. 36 10 151
European patent no. 0 238 911
with validity for CH, IT
Recommended
enclosure* Permissible
installation weights
CP 6442.200 45 kg (99.21 lbs)
CP 6462.200 20 kg (44.09 lbs)
CP 6552.200 30 kg (66.14 lbs)
CP 6662.200 20 kg (44.09 lbs)
* Side cutouts on the enclosures
for mounting on the pedestal,
available on request.
115
360
80
124
108
995
850
70
500
Weight
kg (lbs) Color
RAL Part No.
CP
24 (0.94) 9011 6135.000

148
Pedestal systems
Pillars
Systems for the human/machine interface
Pillar
The stable base point for support arm
system CP-L and CP-XL. The attachment of
additional enclosures, e.g. for security
systems, is also possible. There is a choice
of 2 cross-sections:
●140 x 140 mm (5.51 x 5.51)
●200 x 200 mm (7.87 x 7.87)
Version:
Base plate 15 mm (0.59) thick, with four
mounting holes, cutout in the base plate
according to the cross-section for cable
entry from below. Pedestal tube (wall
thickness 5 mm (0.20)) welded to the base
plate, with connection facilities for support
arm systems as per the selection table.
Material:
Steel, painted
Configuration:
Installation hardware for support arm
system according to selection.
Note:
Customer-specific designs, such as:
●Other RAL colors
●Drilling patterns
●Heights
●Consoles for additional enclosures
available on request.
Accessories:
Support arm system CP-L,
see page 96 – 115.
Support arm system CP-XL,
see page 116 – 127.
Metal gland panels,
see page 217.
Part No. ABCD
6214.XX0 140 200 280 120
6220.XX0 200 300 400 180
1
2
34
B
C
B
H
110
CP 6522.000
126
CP 6520.000
192
160
D
100
100
15
A
62
17
CP 6521.000
69
101
CP 6110.000 CP 6160.000
89.5
172
2
1
3
CP 6170.000
Configuration Color
RAL Part No. CP Page
Cross-section, 140 x 140 mm (5.51 x 5.51), Height 2000 mm (78.74) 7035 6214. X X 0
Cross-section, 200 x 200 mm (7.87 x 7.87) , Height 2000 mm (78.74) 7035 6220. X X 0
Cutout for cable entry
Without cutout in pillar 0
Cutout on the front 1
Cutout at rear 2
Cutout on the left 3
Cutout on the right 4
Support arm connection
Drilled for
Wall/base mounting Wall mounted hinge Top mounted joint
at the front top at the front top
without 0–
CP-S 6501.1X0 688
CP-S 6501.1X0 788
CP-L 6520.0X0 2105
CP-L 6521.0X0 3113
CP-L 6522.0X0 4114
CP-XL 6160.000 6110.000 1122
CP-XL 6170.000 5125
Support arm connection according to
design code number
Cutout for cable entry according to
design code number
Cutout in base plate
1
2
3

Pedestal systems
149
Pillars
Systems for the human/machine interface
Pedestal systems
Pillar, small
For compact assemblies with drilled holes
for the attachment of:
−Housing coupling CP-XL
−Enclosure attachment CP-XL
●With cutout for 24-pole connector for
cable entry at the bottom rear
●Height: 1150 mm (45.28)
Material:
Steel
Design:
Base plate 12 mm (0.47) thick, with 4
mounting holes.
Pedestal tube (cross-section 160 x 80 mm
(6.30 x 3.15), wall thickness 3.2 mm
(10 ga)) welded to base plate, with
connection plates at the top for support
arm components CP-XL.
Accessories:
Housing coupling CP-XL,
see page 123.
Enclosure attachment CP-XL,
see page 122.
54
64
500
M8 35
50
160
450
80
450
500
Ø 12.5
M4
32
130
112
12
36
1150
Color
RAL Part No. CP
7035 6214.500

150 Systems for the human/machine interface
Rittal Industrial Workstations . . .
. . . Versatility through modularity
Industrial Workstations are more than just combinations of
individual components. Individual customer requirements are
achieved cost-effectively and to perfection.
Examples include compact solutions for scanner or laboratory
workstations, individual worktops, combinations with the
AP console system or Command Panel – there are virtually no limits
to your creativity.
The concept is convincing because it is so simple: IW modules are
equipped with climate control and electronic components,
centralized security controlling, plus an extensive range of
accessories, for a complete solution. Perfect solutions from a single
source: Rittal.
We develop and manufacture according to
the principles of ergonomics and safety
engineering.

151
Industrial workstations
Are you looking for a solution that offers more workspace than a
PC cabinet but is more compact than a desk? A system with plenty
of opportunities for expansion, a high level of security, and
exceptional style? Discover the new dimension at the human/
machine interface: Rittal Industrial Workstations.
Industrial workstations 152 – 169
Individual solution examples 152 – 153
Fast selection 154 – 155
Enclosures with door versions 156 – 157
Enclosures with drawers 158 – 159
Worktops 160 – 161
Pedestal with worktop 162 – 163
Monitor housings, operating housings 164 – 165
Technical details 166 – 169

152 Systems for the human/machine interface
Our task is to achieve precisely the desired requirement profile.
Standardized IW modules provide the ideal basis in this respect.
Complemented by modified or individual components, this creates
customized workstations.
Rittal Industrial Workstations are at the core of every solution.
These are solutions with a special design flair. There are virtually no
limits to your creativity when designing a system.
With individual worktops – including additional
pedestals – the IW range can be extended as
required in production.
Control rooms – e.g. for printing presses with an
individual control panel, and stylish enclosures for
slimline HMI monitors.
The ideal laboratory workstation:
A large worktop links the workbench and the PC
enclosure. A socket strip and light are integrated
into the shelved panel.

153Systems for the human/machine interface
Industrial workstations
Individual solution examples
The supplement to the IW enclosure with
drawers, thanks to customized panel enclosures,
combined with the support arm system, provides
solutions for a wide range of laboratory
equipment and small machines.
Top mounting or a partially enclosed workstation
can also be developed from the IW concept. A consistent, stylish design solution is derived
from a combination of IW modules with the
Factory enclosure based on TS 8.
IW as an extended workbench for small machines
including control and monitoring units. The highly individual workstations for
measurement technology, calibration and
monitoring are a particular IW domain.
Combination with the support arm system makes
the IW concept particularly versatile and cost-
effective with minimal use of special components.
The monitor housing is combined with the
modular diversity of the AP console system.
Mounted on castors, this creates a mobile
machine control center.
The sealed “mobile workstation”, secure and
ideal for industrial use, e.g. with guide handles
and TFT enclosure.
It doesn’t get much more compact than this –
scanner or laboratory workstation with secure
accommodation e.g. of computer and laboratory
equipment.
Industrial workstations

154
Industrial workstations
Fast selection
Systems for the human/machine interface
Monitor housings,
operating housings
1.1 Monitor housing 17
IW 6902.510
Monitor housing 21″
IW 6902.500
see page 164
2.1
2.2
1.2 Optipanel
For TFT monitors or other
display and input units
From page 40
2.4
2.5
1Mounting components
for monitor and operating housings
* May also be used rotated through 180°.
2.1 Feet
for monitor housing
IW 6902.610
see page 225
2.2 Spacer plate
for monitor housing
IW 6902.630
rotatable in conjunction
Turntable
for spacer and support plate
IW 6902.620
see page 224 – 225
3.4
4.2
2.3 Support plate for indiv.
equipment
IW 6902.650
rotatable in conjunction
Turntable
for spacer and support plate
IW 6902.620
see page 224 – 225
2.4 Supp. arm system CP-L
for rotatable, swivel and
height-adjustable positioning
of the Optipanel command
panel
see page 96 – 115
3.5
4.3
2.5 Enclosure attachment,
tilting, top mounting*
IW 6902.670
see page 91
3.5
4.4
2
5.6
3.5
2.4
1.2
7.1
7.2
Assembly example:
Optipanel
Support arm system CP-L
Worktop, prepared
for enclosure attachment
Enclosure
with drawer section
Base/plinth, stationary
Twin castors
1.2
2.4
3.5
5.6
7.1
7.2
It’s so easy!
Choose the appropriate IW components
according to your requirements.
Start at “monitor housings, operating
housings”.
Continue with IW according to the
item numbers.
System end
1
2.6 Enclosure attachment
tilting, base mounting
IW 6902.640
see page 110
3.6
4.4

155Systems for the human/machine interface
Industrial workstations
Fast selection
Worktops
with handle
4.1 Worktop with handle
solid
IW 6902.000
see page 160
5.1
5.2
5.3
5.4
5.7
4.2 Worktop with handle
prepared for
turntable
IW 6902.010
see page 160
4.3 Worktop with handle
prepared for enclosure
attachment
Connection on left,
IW 6902.020
Connection on right,
IW 6902.030
see page 160
4
Worktops
3.1 Cover
solid
IW 6902.400
see page 160
5.1
5.2
5.3
5.4
5.7
3.2 Worktop
small, solid
IW 6902.300
see page 160
3.3 Worktop
solid
IW 6902.100
see page 160
5.1
5.2
5.3
5.4
5.6
5.7
3.4 Worktop
prepared for
turntable
IW 6902.110
see page 160
3.5 Worktop
prepared for enclosure
attachment
Connection on left,
IW 6902.120
Connection on right,
IW 6902.130
see page 160
3Enclosures
5.1
Designer
door, rear
panel screw-
fastened from
the inside
Height 900 mm
(35.43)
IW 6900.000
see page 156
7.1
7.2
5.2
Designer
door, rear
panel screw-
fastened from
the outside
Height
1000 mm
(39.37)
IW 6901.000
see page 156
5.3
Designer
door, rear
door
Height 900 mm
(35.43)
IW 6900.100
see page 156
5.4
Viewing door,
rear door
Height 900 mm
(35.43)
IW 6900.200
see page 156
5
*The fitted versions IW 6901.100
(with worktop) and IW 6901.200 (with
roof) are also available with other
worktops on request.
5.6
Drawer
sect.,
designer
door,
Height
900 mm
(35.43)
IW 6900.400
see page
158
7.1
7.2
5.7
Drawer front,
rear panel
screw-
fastened from
the inside
Height 900 mm
(35.43)
IW 6900.600
see page 158
5.8
Worktop, key-
board drawer,
designer door,
rear door
pre-configured,
Height 1000 mm
(39.37)
IW 6901.100*
see page 158
5.9
Roof, key-
board drawer,
designer door,
rear door
pre-configured,
Height 1000 mm
(39.37)
IW 6901.200*
see page 158
Base/plinth
components
7.1 Base/plinth, stationary
PC 8800.920
see page 207
7.2
7.2 Twin castors
PC 4634.500
see page 213
7
3.6 Worktop
prepared for tilting
enclosure attachment,
base mounting
IW 6902.310
see page 162
6.1
Pedestal
6.5 Pedestal
IW 6141.200
see page 162
7.2
6
4.4 Worktop with handle
prepared for tilting
enclosure attachment,
base mounting
IW 6902.320
see page 162
6.1
Industrial workstations

156 Systems for the human/machine interface
Part No. IW
Width 600 mm
(23.62)
Depth 600 mm
(23.62)
6900.000 6901.000 6900.100 6900.200
Weight kg (lbs) 54.9
(121.03) 59.8
(131.84) 59.9
(132.06) 60.6
(133.60)
Height mm (inches) 900
(35.43) 1000
(39.37) 900
(35.43) 900
(35.43)
Supply
includes Design Material Color
RAL
Enclosure
Frame construction with side walls,
screw-fastened from the inside Sheet steel 1.5 mm (16 ga) 7035 textured
●●●●
Base with gland panel for cable entry
Levelling feet to compensate for floor
irregularities
Designer door
Vertical bars with locking rod and double-bit
insert, hinged on right-hand side Aluminum section 7035 ●●●
Door or installation plate, folded Sheet steel 1.5 mm (16 ga) 7015
Viewing door
Vertical decorative trim panels Plastic to UL 94-V0 7035
●
Pane with screen-printed mask Safety glass ESG 4.0 mm
(0.16)7015
Rear panel Screw-fastened from the inside Sheet steel 1.5 mm (16 ga) 7035 textured ●
Screw-fastened from the outside ●
Rear door With locking rod and double-bit insert, hinged on
the right-hand side Sheet steel 1.5 mm (16 ga) 7035 textured ●●
Lock systems:
Standard double-bit lock insert may be exchanged for lock inserts, type B cylinder inserts, or comfort handle,
see page 244 – 247,
With the door at the front, only in conjunction with handle adaptor PC 8611.300, see page 244.
Designer door, rear panel
screw-fastened from the
inside
Designer door, rear panel
screw-fastened from the
outside
Designer door, rear door Viewing door, rear door

Industrial workstations
Enclosures with door versions
157
A modern workstation: Consistent lines
from top to bottom!
Monitor housings and enclosures – each
equipped with a viewing door – create a
formal unit including base/plinth. The work-
top with handle and monitor turntable are
stylishly integrated.
Note:
●Other enclosure depths or heights,
variable on a 25 mm (0.98) increments,
●All IW components as well as system
accessories available fully assembled
ex works
are available on request.
Detailed drawings, see page 166.
Accessories:
see page 200 – 201
or see index.
IW worktops, see page 160.
IW monitor housings, operating housings,
see page 164 – 165.
Industrial workstations

158 Systems for the human/machine interface
Worktop, keyboard drawer,
designer door, rear door Roof, keyboard drawer,
designer door, rear door Drawer section, designer
door, rear door Drawer front, rear panel
screw-fastened from the
inside
Part No. IW
Width 600 mm
(23.62)
Depth 600 mm
(23.62)
6901.100 6901.200 6900.400 6900.600
Height mm (inches) 1000
(39.37) 1000
(39.37) 900
(35.43) 900
(35.43)
Weight kg (lbs) 91.2
(201.06) 85.7
(188.93) 73
(160.94) 78
(171.96)
Supply
includes Version Material Color
RAL
Enclosure
Frame construction with side walls,
screw-fastened from the inside Sheet steel 1.5 mm (16 ga) 7035 textured
●●●●Base with gland panel for cable entry
Levelling feet to compensate for floor
irregularities
Trim panel, top To finish off the enclosure at the top Plastic to UL 94-V0 7035
7015 ●● ●
Keyboard
drawer
Drawer housing
Sheet steel 1.5 mm (16 ga) 7035
●●
Extension piece with cable support, hinged, plus
pull-out mousepad and keyboard cradle
Trim panel with recessed handle, folded as
handrest, with lock no. 3524 E Plastic to UL 94-V0 7035
7015
9006
Drawer
section
Drawer tray, fitted with drawer trim panel and
telescopic slides Sheet steel 1.5 mm (16 ga) 7035
●
Drawer trim panel with recessed handle, with
lock no. 3524 E. Plastic to UL 94-V0 7035
7015
9006
Designer door
Vertical bars with locking rod and double-bit
insert, hinged on right-hand side Aluminum section 7035 ●●●
Door or installation plate, folded Sheet steel 1.5 mm (16 ga) 7015
Drawer front
Drawer tray, slotted all round for cross member
retainers, 1 x with short trim panel, 2 x with tall
trim panel, each with recessed handle,
telescopic slides
Sheet steel 1.5 mm (16 ga) 7035
7015
9006 ●
Worktop Solid Chipboard, plastic-
laminated on both sides,
with edge strip
Similar to 7035
Edge strip:
Similar to 7015 ●
Roof Edged, screw-fastened from the inside Sheet steel 1.5 mm (16 ga) 7035 textured ●
Rear panel Screw-fastened from the inside Sheet steel 1.5 mm (16 ga) 7035 textured ●
Rear door With locking rod and double-bit insert, hinged on
the right-hand side Sheet steel 1.5 mm (16 ga) 7035 textured ●●●
Lock systems:
Standard double-bit lock insert may be exchanged for lock inserts, type B cylinder inserts, or comfort handle,
see page 244 – 247,
with the designer door, only in conjunction with handle adaptor PC 8611.300, see page 244.

Industrial workstations
Enclosures with drawers
159
For a tidy workspace:
The IW enclosure offers plenty of storage
space, whether with a complete drawer
front or in combination with the designer
door. The special base/plinth ensures sta-
bility, even with heavy loads.
Further opportunities for expansion, e.g.
with a stylish Optipanel enclosure for the
TFT monitor and the prepared worktop
including handle, cover every conceivable
requirement.
Note:
●Other enclosure depths or heights,
variable in 25 mm (0.98) increments,
●All IW components as well as system
accessories available fully assembled
●Other drawer combinations,
●Fitted versions IW 6901.100 (with
worktop) and IW 6901.200 (with roof)
also available with other worktops,
see page 160,
●Drawers with extension lock
are available on request.
Detailed drawings, see page 166.
Accessories:
see page 200 – 201
or see index.
IW worktops, see page 160.
IW monitor housings, operating housings,
see page 164 – 165.
Support arm system CP-L,
see page 96 – 115.
Industrial workstations

160 Systems for the human/machine interface
Version Solid Solid Prepared for turntable Prepared for
enclosure attachment*
Mounting cutout for
enclosure attachment – – – left right
Width mm (inches) 610 (24.02) 1000 (35.24) 1000 (35.24) 1000 (35.24) 1000 (35.24)
Depth mm (inches) 645 (25.39) 895 (35.24) 895 (35.24) 895 (35.24) 895 (35.24)
Weight kg (lbs) 11.6 (25.57) 24 (52.91) 23 (50.71) 23 (50.71) 23 (50.71)
Part No. IW 6902.300 6902.100 6902.1101) 6902.1201) 6902.1301)
* For CP-L enclosure attachment CP 6525.5X0, housing coupling CP 6525.0X0, angle coupling CP 6526.0X0, see page 106 – 112.
1) Hole may be used in conjunction with the adaptor plate for connector grommet IW 6902.660 (see page 222) for cable entry!
Version Solid Prepared for turntable Prepared for
enclosure attachment*
Mounting cutout for
enclosure attachment ––leftright
Width mm (inches) 1200 (47.24) 1200 (47.24) 1200 (47.24) 1200 (47.24)
Depth mm (inches) 950 (37.40) 950 (37.40) 950 (37.40) 950 (37.40)
Weight kg (lbs) 34 (74.96) 33 (72.75) 33 (72.75) 33 (72.75)
Part No. IW 6902.000 6902.0101) 6902.0201) 6902.0301)
* For CP-L enclosure attachment CP 6525.5X0, housing coupling CP 6525.0X0, angle coupling CP 6526.0X0, see page 106 – 112.
1) Hole may be used in conjunction with the adaptor plate for connector grommet IW 6902.660 (see page 222) for cable entry!
Version Solid
Height mm (inches) 13 (0.51)
Width mm (inches) 600 (23.62)
Depth mm (inches) 640 (25.20)
Weight kg (lbs) 7.4 (16.31)
Part No. IW 6902.400
With handle
Roof
Folded, attached from the inside.
Material:
1.5 mm (16 ga) sheet steel
Finish:
Painted in textured RAL 7035
Without
handle
Worktops
Material thickness: 38 mm (1.50)
Material and surface finish:
Chipboard, plastic-laminated on both
sides, similar to RAL 7035, with tough
plastic edging, similar to RAL 7015.
(not suitable for use in enclosures with
drawer section IW 6900.400)

161
Industrial workstations
Worktops
Industrial workstations
Every worktop has its own particular
strength: e.g. for TFT enclosures on the
support arm system CP-L, for monitor
housings on a turntable, or simply plenty of
work space.
Need a very specific format with additional
cutouts for your measurement, testing or
production systems? Just ask!
Note:
●Keyboard and mousepad integrated into
the worktop (including IP 67),
●Worktops in modified sizes and height-
adjustable,
●All IW components as well as system
accessories available fully assembled
●Fitted versions IW 6901.100 (with
worktop) and IW 6901.200 (with roof)
also with other worktops
are available upon request.
Accessories:
see page 200 – 201
or see index.
Detailed drawings see page 168 – 169.

162 Systems for the human/machine interface
Enclosure attachment
tiltable
For mounting underneath the
worktop.
Adjustable tilting angle:
40° to the rear, 40° to the front
Material:
Sheet steel, painted,
RAL 7024
Weight kg (lbs) 1.6 (3.53)
Part No. IW 6902.640
Foot rest
Material:
Connector pieces: Cast
aluminum RAL 7035
Round tube section:
Aluminum, natural anodized.
Configuration:
Installation hardware
Weight kg (lbs) 0.6 (1.32)
Part No. CP 6145.100
Trim panel
Material:
Cast aluminum, powder
coated in textured RAL 7035.
Configuration:
Installation hardware
Weight kg (lbs) 1.6 (3.53)
Part No. CP 6144.100
Base mount
Material:
Sheet steel, zinc plated,
passivated
Configuration:
Posidrive raised countersunk
screws M12
Weight kg (lbs) 0.7 (1.52)
Part No. CP 6147.000
Pedestal
The panel tray is opened for
easy cable laying.
Material:
Feet: Cast aluminum
Cross member, vertical support
tubes: Steel
Panels: Aluminum section
Color:
Feet, cross member, support
tubes and worktop attachment:
textured RAL 7035.
Panels: Natural anodized
Note:
Pedestal, height-adjustable,
see page 134 – 137.
Height
mm (inches) 946 (37.25)
Width
mm (inches) 600 (23.62)
Depth
mm (inches) 700 (27.56)
Weight kg (lbs) 33.7 (8.16)
Part No. IW 6141.200
Worktop
Prepared for tilting
enclosure attachment
Material and surface finish:
Chipboard, plastic-laminated
on both sides, similar to
RAL 7035, with tough plastic
edging, similar to RAL 7015.
Without handle
With handle
Height
mm (inches) 38 (1.50)
Width
mm (inches) 950 (37.40)
Depth
mm (inches) 600 (23.62)
Weight kg (lbs) 16 (35.27)
Part No. IW 6902.310
Height
mm (inches) 38 (1.50)
Width
mm (inches) 950 (37.40)
Depth
mm (inches) 658 (23.62)
Weight kg (lbs) 16 (35.27)
Part No. IW 6902.320

163
Industrial workstations
Pedestal with worktop
Industrial workstations
If you need work space and are prepared
to sacrifice some storage place, then opt
for the pedestal with worktop. There is
plenty of space for the keyboard,
mousepad and production plans.
An ergonomic solution: The correct incline
of the TFT monitor at the top – e.g. in the
customized Optipanel enclosure (see page
40 onwards) – and the foot rest at the
bottom, for relaxed, changing work
positions.
The enclosure attachment can be mounted
either on the support arm connection of the
Optipanel enclosure or on the underside or
rear of any enclosure.
Note:
●Other pedestal widths or heights,
●Keyboard and mousepad built into the
worktop (including IP 67),
●Worktops in modified sizes
are available upon request.
Accessories:
see page 200 – 201
or see index.
Detailed drawings see page 143.
Twin castors see page 213.

164 Systems for the human/machine interface
Monitor housing
Front designer door, rear door
with release for designer door.
With cutout at the bottom and
reinforcement for support arm
connection CP-XL.
Component shelf, slotted, for
monitor.
Material:
Enclosure, rear door and
component shelf:
1.5 mm (16 ga) sheet steel
Designer door:
Vertical plastic decorative trim
panels to UL 94-V0
Glass pane: Safety glass ESG
4.0 mm (0.16)
Dimensions
H x W x D
mm (inches)
Weight
kg (lbs) For screen Part No. IW
600 (23.62) x 600
(23.62) x 500 (19.69) 38 (83.77) 176902.510
600 (23.62) x 600
(23.62) x 600 (23.62) 43 (94.80) 216902.500
Finish:
Enclosure and rear door:
Textured RAL 7035
Designer door:
Decorative trim panels
RAL 7035, screen-printed mask
on glass pane RAL 7015
Component shelf: RAL 7015
Lock systems:
Standard double-bit lock insert
may be exchanged for lock
inserts or lock system
Ergoform-S,
see page 245 – 247.
Optipanel
A special, stylish enclosure made from
extruded aluminum section. In installation
depths of 50, 100 and 150 mm (1.97, 3.94
and 5.91), the width and height is adapted
to suit your TFT monitors or other display
and input units.
All enclosure depths may be combined
with support arm system CP-L,
see page 40 onwards.
Support arm system CP-L
Using support section CP-L, Optipanel
Command Panels may be positioned in a
rotatable, swivelling and height-adjustable
configuration depending on the respective
ergonomic conditions,
see page 96 onwards.
Turntable
for spacer or support plate,
see page 225.
Feet
for monitor housing,
see page 225.
Spacing plate
for monitor housing,
see page 224.

165
Industrial workstations
Monitor housings, operating housings
Industrial workstations
As well as conventional monitors, TFT flat-
screens are also becoming increasingly
popular.
Within the context of its Industrial
Workstations series, Rittal offers a wide
range of standardized and individual
accommodation options for both versions.
Versatile ergonomic requirements, security
requirements, individual dimensions and
design lines are met to perfection.
Accessories:
see page 200 – 201
or see index.
Detailed drawings see page 169.
IW worktops prepared for enclosure
attachment or turntable,
see page 160 – 161.

166 Systems for the human/machine interface
900 (1000)
604
512
362
812 (912)
636
869
512
900
604
512
362
812
636
512
900
604
512
362
812
636
512
Enclosure with designer door, rear panel
IW 6900.000 / IW 6901.000 Enclosure with designer door, rear door
IW 6900.100
Enclosure with viewing door, rear door
IW 6900.200

167Systems for the human/machine interface
Industrial workstations
Technical details
812
86.5
60
636
512
512
362
604
1043
145 75
512
636
526
912
118
669
669
608
512
362
604
1018
744 145 75
912
118
512
636
526
512
362
604
902
145
889
519
512
900
75
145
320
320
512
812
518
275
100
83
604
655
Industrial workstations
Enclosure with worktop, keyboard drawer,
designer door, rear door
IW 6901.100
Enclosure with roof, keyboard drawer,
designer door, rear door
IW 6901.200
Enclosure with keyboard support, designer door, rear door
IW 6900.400
Max. load capacity of drawer: 15 kg/33.07 lbs
Enclosure with drawer front, rear panel
IW 6900.600
Max. load capacity per drawer: 30 kg/66.14 lbs
Punchings
for cross members

168 Systems for the human/machine interface
Roof
IW 6902.400 Worktop without handle,
prepared for enclosure attachment
IW 6902.120 / IW 6902.130
Worktop without handle,
solid
IW 6902.300
Worktop with handle,
solid IW 6902.000,
prepared for turntable IW 6902.010
Worktop without handle,
solid IW 6902.100,
prepared for turntable IW 6902.110
Worktop with handle,
prepared for enclosure attachment
IW 6902.020 / IW 6902.030
608
512
403
480
480
512
614
640
50
300
50 75
13
(155)
155
1000
162.5
895
761
(162.5)
60
R 1000
38
610
618
645
400
38 1200
950
155
317.5
1009
60
38
R 1000
1000 38
60
761
317.5
895
R 1000
1200
(155)
155
38
1009
950
155
162.5
(162.5)
R 1000
60
589

169Systems for the human/machine interface
Industrial workstations
Technical details
Industrial workstations
Worktop for pedestal
IW 6902.310 Worktop for pedestal with handle
IW 6902.320
Monitor housing
IW 6902.500 / IW 6902.510
IW 6902.310
Prepared for enclosure with connection
CP-L rectangular or connection console CP-L
CP 6508.0X0
Prepared for connector gland
SZ 2400.300 / SZ 2400.500
1
2
3
Enclosure attachment, tilting
IW 6902.640
950
260
593.5
38
490
600
658
950
484
490 38
260
600
133
171
101
211
66
+40°
–40°
70
1
42.5
40
95
22.5
M6 2
3
458
597
460
385
510
600
512
636 (536)
502 (402)

170
Rittal PC enclosure systems . . .
. . . compact and practical
Systems for the human/machine interface
Ease of operation
1Release cable for easy unlatching of
the viewing door, may also be mounted
behind the door at the base or rear.
2Handle strip folded down as handrest
during data input.
3Integral mousepad extension piece,
pulls out to the left or right.
4Keyboards up to 70 mm (2.76) height
may be used.
5Storage tray for mouse behind the
keyboard.
6Side walls and roof removable,
secured and screw-fastened from the
inside.
7Gland panels, three-part.
Based on ES
The compact enclosure system ES 5000
with a body manufactured from a single
piece. The solid body with rear door
guarantees a high load-bearing
capacity.
With keyboard drawer, fold-out tray or
desk section, and option either a small
or large mounting compartment.
Stainless steel,
based on ES
For exceptional requirements in terms of
hygiene and corrosion protection.
With keyboard drawer or desk section.
Based on TS 8
The baying system with infinite configuration possibilities. The frame construction
means it is open on all sides: with removable side walls and roof plate.
Various versions are possible, e.g. with drawer, fold-out tray or desk section. Depend-
ing on requirements, a small or large mounting compartment may be used.
Safety
8Viewing door with support frame,
single-pane safety glass.
9Cable support, hinged, on keyboard
extension piece, for secure, pinch-free
cable routing with clips in the
accessories supplied loose.
10 Keyboard and mouse cable with
connectors are routed securely to the
PC in a sealed configuration via the
separable connector gland.
11 Lockable keyboard drawer and
viewing door of monitor. 2 keys (lock
no. 3524 E) SZ 2532.000 included in
the configuration.
12 Component shelf for monitor, to avoid
hot spots, prepared for the assembly
of axial fans, with drilled holes for
power strips.
8
12
11
9
10

171Systems for the human/machine interface
Housing all your computer equipment, from the monitor, computer
system, printer and keyboard to the mouse, becomes easy with
Rittal's PC enclosure systems. The result is perfect protection from
humidity and dirt, temperature fluctuations and unauthorized
access. What is more, these systems will exceed your expecta-
tions with regard to ergonomics, design and accessory diversity.
PC enclosure systems 172 – 181
Based on TS 8 with keyboard drawer 172 – 173
Based on TS 8 with fold-out keyboard tray
or desk section 174 – 175
Based on ES with keyboard drawer 176 – 177
Based on ES with fold-out keyboard tray or desk section 178 – 179
Stainless steel 180 – 181
PC enclosure systems
23
5
1
4
6
7

172 Systems for the human/machine interface
366 190
558
122
924
70
636 (836)
624 (824)
i.L. 512 (712)
833
460
384
150
362
589
841
64
458
605
i.L. 512 (712)
1605
386
454
1605
362
i.L. 512
605
841 439
362
64
308
150
150
112
624
366 190
636
i.L. 512
202
122
833
70
924
Part No. PC
Depth 636 mm
(25.04)8366.000 8366.300 8366.400
Depth 836 mm
(32.91)8368.000
Supply includes Version Material Color RAL
Enclosure
Frame construction with side walls and roof
secured from the inside Sheet steel 1.5 mm (16 ga) 7035 textured ●●●
Gland panels, three-part Sheet steel 1.5 mm (16 ga) Zinc-plated
Rear door With locking rod and double-bit insert, r/h hinge Sheet steel 2.0 mm (14 ga) 7035 textured ●●●
Viewing door, top
With support frame latched from the inside*,
r/h hinge Sheet steel 1.5 mm (16 ga) 7015
●●
Vertical decorative trim panels Plastic to UL 94-V0 7035
Glass with screen-printed mask Safety glass ESG 4.0 mm (0.16) 7015
Mounting
compartment,
large, top
Vertical bars, latched from the inside*, r/h hinge Aluminum section 7035
●Installation plate Sheet steel 1.5 mm (16 ga) 7015
Trim strip top/bottom Plastic to UL 94-V0 7035
Component shelf
for monitor Slotted, permanently installed Sheet steel 1.5 mm (16 ga) 7015 ●●
Drawer for
keyboard
Enclosure Sheet steel 1.5 mm (16 ga) 7035
●●●
Keyboard extension piece with cable support,
hinged, plus pull-out mousepad and keyboard
cradle Sheet steel 1.5 mm (16 ga) 7035
Trim panel with handle strip, folded as handrest,
with lock no. 3524 E Plastic to UL 94-V0 7035/7015/9006
* With unlatching for top viewing door
Mounting
compartment,
small
R/h hinge, screw-fastened from the inside on left,
folded installation plate Sheet steel 1.5 mm (16 ga) 7015 ●
Decorative side trim panels Plastic to UL 94-V0 7035
Bottom door
Vertical bars with locking rod and double-bit
insert, hinged on right-hand side Aluminum section 7035 ●●●
Door or installation plate folded Sheet steel 1.5 mm (16 ga) 7015
With drawer
Part No. PC 8366.000, PC 8368.000 With mounting compartment, small and drawer
Part No. PC 8366.300
max. 505*
max. 549*
max. 355*
max. 397*
* adjustable in 25 mm (0.98) increments
i.L. 512
605
841 150
1605
362
455
500
988
i.L. 512
636
122
833
190
924
70
With mounting compartment, large and drawer
Part No. PC 8366.400
With drawer With mounting
compartment,
small and drawer
With mounting
compartment,
large and drawer
i.L. = Clearance width

Systems for the human/machine interface
PC enclosure systems
Based on TS 8 with keyboard drawer
173
PC enclosure systems
Protection ratings:
IP 55 to EN 60 529/10.91
Complies with UL and NEMA Type 12.
Lock systems
Standard double-bit lock insert may be
exchanged for 27 mm (1.06) lock inserts,
type A or cylinder inserts, type B,
see page 246 – 247 and comfort handle,
see page 244.
With the door at the bottom, only in
conjunction with handle adaptor
PC 8611.300, see page 244.
Maximum keyboard dimensions
Height
mm (inches) Width
mm (inches) Depth
mm (inches)
Drawer 70 (2.76) 480 (18.90) 260 (10.24)
Fold-out tray 60 (2.60) 475 (18.70) 200 (7.87)
50 (1.97) 250 (9.84)
IP 67 mouse and mousepad
to fit mousepad extension
piece.
Part No. see page 266.
Accessories:
Base/plinth, stationary,
see page 207.
Base/plinth components and
trim panels,
see page 206.

174 Systems for the human/machine interface
11°
624
636
1512
177
894
908
i.L. 512
(270)
i.L.512 (712)
287
624 (824)
157
397 (597)
380**
422**
636 (836)
1005
803 330 379
225
300
386
454
1605
362
439
300
841
64
308
i.L.512 (712)
605
384
460
1605
362
i.L.512
605
841
150
64
458
589
Part No. PC
Depth 636 mm
(25.04)8366.100 8366.200
Depth 836 mm
(32.91)8368.100
Supply includes Version Material Color RAL
Enclosure
Frame construction with side walls and roof secured from
the inside Sheet steel 1.5 mm (16 ga) 7035 textured ●●
Gland panels, three-part Sheet steel 1.5 mm (16 ga) Zinc-plated
Rear door With locking rod and double-bit insert,
R/h hinge Sheet steel 2.0 mm (14 ga) 7035 textured ●●
Viewing door, top
With support frame latched from the inside*,
r/h hinge Sheet steel 1.5 mm (16 ga) 7015
●●
Vertical decorative trim panels Plastic to UL 94-V0 7035
Glass with screen-printed mask Safety glass ESG 4.0 mm (0.16)7015
Component shelf
for monitor Slotted, permanently installed Sheet steel 1.5 mm (16 ga) 7015 ●●
Fold-out tray for
keyboard
Enclosure with mouse holder and cutout in rear panel,
Width 19″ x Height 4 U Sheet steel 1.5 mm (16 ga) 7035
●
Trim panel hinged at the bottom, with 2 retaining cords,
with lock no. 3524 E Plastic to UL 94-V0 7035/7015/
9006
Keyboard support with mousepad extension piece and
2 nylon bands for keyboard Sheet steel 1.5 mm (16 ga) 7035
* With unlatching for top viewing door
Desk section
Enclosure with removable cover top and bottom Sheet steel 1.5 mm (16 ga)/
2.0 mm (14 ga) 7035
●
Trim strip, top and handle strip Plastic to UL 94-V0 7035/7015/
9006
Bottom door
Vertical bars with locking rod and
double-bit insert, r/h hinge Aluminum section 7035 ●●
Door or installation plate folded Sheet steel 1.5 mm (16 ga) 7015
With fold-out tray
Part No. PC 8366.100, PC 8368.100 With desk section
Part No. PC 8366.200
max. 505*
max. 549*
** adjustable by + 225 mm (8.86) or + 300 mm (11.81)
i.L. = Clearance width
With
fold-out tray With
desk section
* adjustable in 25 mm (0.98) increments
i.L. = Clearance width

Systems for the human/machine interface
PC enclosure systems
Based on TS 8, with folding keyboard or desk section
175
PC enclosure systems
Protection ratings:
IP 55 to EN 60 529/10.91
Complies with UL and NEMA Type 12.
Lock systems
Standard double-bit lock insert may be
exchanged for 27 mm (1.06) lock inserts,
type A or cylinder inserts, type B,
see page 246 – 247 and comfort handle,
see page 244.
With the door at the bottom, only in
conjunction with handle adaptor
PC 8611.300, see page 244.
Maximum keyboard dimensions
Height
mm (inches) Width mm
(inches) Depth
mm (inches)
Drawer 70 (2.76) 480 (18.90) 260 (10.24)
Fold-out tray 60 (2.36) 475 (18.70) 200 (7.87)
50 (1.97) 250 (9.84)
Base/plinth, stationary
Adapted to the design of the
enclosure.
Accessories:
Base/plinth, stationary,
see page 207.
Base/plinth components and
trim panels,
see page 206.

176 Systems for the human/machine interface
939
854 558
100
i.L. 502
620
647 318
205
57
939
620 (820)
i. L. 502 (702)
854 558
100
647 (847) 205
318
57
1604
410
i. L. 512
599
591
863
125
492
82
425
410
465
20
M8 x 20
1604
82275
100
492
i.L. 512
150
599
863
125
40 441
Supply includes Version Material Color
RAL PC 4603.603 PC 4603.703
PC 4609.703 PC 4603.913
Enclosure
Solid, open at bottom Sheet steel 1.5 mm (16 ga) 7035
textured ●●●
Gland panels, three-part Sheet steel 1.5 mm (16 ga) Zinc-
plated
Rear door With locking rod and double-bit insert, hinged on
the right-hand side Sheet steel 2.0mm (14 ga) 7035
textured ●●●
Mounting
compartment,
large,
top
Vertical bars locked from the inside*, r/h hinge Aluminum section 5018
●
Folded installation plate Sheet steel 1.5 mm (16 ga) 7035
Trim strip top/bottom Plastic to UL 94-V0. 7035
Viewing door
top
Curved outwards, vertical bars,
locked from the inside*, r/h hinge Aluminum section 5018
●●Trim strip top/bottom Plastic to UL 94-V0. 7035
Glass with screen-printed mask Safety glass ESG 4.0 mm
(0.16)7015
Component shelf
for monitor Slotted, permanently installed Sheet steel 1.5 mm (16 ga) 7035 ●●
Drawer
for keyboard
Enclosure Sheet steel 1.5 mm (16 ga) 7035
●●●
Keyboard extension piece
with 1 pair of telescopic slides Sheet steel 1.5 mm (16 ga) 7035
Trim panel with handle strip, folded as handrest,
with fastener, lock no. Nr. 3524 E Plastic to UL 94-V0. 7035
Decorative side trim panels Aluminum section 5018
2 spacers for slimline keyboards Cellular rubber
* With unlatching for viewing door, top
Mounting
compartment,
small
R/h hinge, left from the inside
folded installation plate Sheet steel 1.5 mm (16 ga) 7035
●
Trim strip at the bottom Plastic to UL 94-V0. 7035
Vertical bars Aluminum section 5018
Bottom door
Vertical bars with locking rod, Ergoform-S handle
and double-bit insert, r/h hinge Aluminum section 5018
●●●Door or installation plate folded Sheet steel 1.5 mm (16 ga) 7035
* With unlatching for viewing door, top with desk
section
With mounting compartment, small and drawer
Part No. PC 4603.913
With drawer
Part No. PC 4603.703, PC 4609.703
* adjustable in 25 mm (0.98)
increments
max. 505*
max. 547*
max. 355*
max. 397*
With mounting compartment, large and drawer
Part No. PC 4603.603
1604
863
492
591
125
599
i.L. 512
➀
54
500
483
854
939
620
i.L. 502
647
558
100
205318
57
482.6 (19˝)
450
T max. 200
= External surface available
for population
i.L.= Clearance width

Systems for the human/machine interface
PC enclosure systems
Based on ES with keyboard drawer
177
Mousepad, passive
with velour cover,
including installation hardware,
Part No. see opposite.
Height
mm (inches)
Part No. For Depth Page
620 mm (24.41)820 mm (32.28)
Base/plinth 100 (3.94) 2813.200 2846.200 208
200 (7.87) 2814.200 2847.200 208
Cross member,
adjustable 70 (2.76) 8601.680 211
Twin castors 125 (4.92) 4634.500 213
Accessories:
see page 200 – 201
or see index.
Maximum keyboard dimensions
Height mm (inches) Width
mm/inches Depth
mm/inches
without
mousepad with
mousepad
Fold-out tray 69 (2.72) 62 (2.44) 480 (18.90) 230 (9.06)
Drawer 55 (2.17) 40 (1.57) 480 (18.90) 250 (9.84)
Version Mounting compartment,
large, drawer Drawer Mounting compartment,
small, drawer
Depth
mm (inches) 650 (25.59) 650 (25.59) 850 (33.46) 650 (25.59)
Part No. PC 4603.603 4603.703 4609.703 4603.913
Weight kg (lbs) 106.0 (233.69) 106.2 (234.13) 120.9 (266.54) 106.8 (235.45)
Mousepad,
see opposite 4614.000 4614.000 4614.000 4614.000
Lock systems:
Standard double-bit lock insert
may be exchanged for 27 mm
(1.06) lock inserts, type A or
cylinder inserts, type B,
see page 246 – 247 and
Ergoform-S lock system, see
page 245.
Protection ratings:
IP 55 to EN 60 529/10.91
Complies with UL and NEMA
Type 12.
PC enclosure systems

178 Systems for the human/machine interface
410
492
1604
82
275
i. L. 512
599
863 441275
1001
385 (585)
620 (820)
i. L. 502 (702)
408
450
275
829
231
647 (847)
155
1604
410
i. L. 512
599
591
863
125
492
82
425
486
204
11°
620
45
i. L. 502
i. L. 1512
647
200 65
912
With desk section
Part No. PC 4603.704
max. 505*
max. 547*
Supply includes Version Material Color
RAL PC 4603.920
PC 4609.920 PC 4603.704
Enclosure Solid, open at bottom Sheet steel 1.5 mm (16 ga) 7035
textured ●●
Gland panels, three-part Sheet steel 1.5 mm (16 ga) Zinc-plated
Rear door With locking rod and double-bit insert,
r/h hinge Sheet steel 2.0 mm (14 ga) 7035
textured ●●
Viewing door, top
Curved outwards, vertical bars, latched on the inside*,
r/h hinge Aluminum section 5018
●●Trim strip top/bottom Plastic to UL 94-V0. 7035
Glass with screen-printed mask Safety glass ESG 4.0 mm
(0.16)7015
Component shelf
for monitor Slotted, permanently installed Sheet steel 1.5 mm (16 ga) 7035 ●●
Fold-out tray
for keyboard
Enclosure with cutout in rear panel,
width 19 x height 4 U, with screw-fastened lid Sheet steel 1.5 mm (16 ga) 7035
●
Trim panel hinged at the bottom with 2 retaining shears,
with fastener, lock no. Nr. 3524 E Plastic to UL 94-V0. 7035
Decorative side trim panels Aluminum section 5018
Keyboard support,
with 2 nylon loops for keyboard Sheet steel 7035
* With unlatching for top viewing door
Desk section
Enclosure with removable lid
top and bottom. Sheet steel 1.5 mm (16 ga)/
2.0 mm (14 ga) 7035
●
Trim strip, top and handle Plastic to UL 94-V0. 7035
Decorative side trim panels Aluminum section 5018
Bottom door
Vertical bars with locking rod,
Ergoform-S handle and double-bit insert, r/h hinge Aluminum section 5018
●●
Door or installation plate folded Sheet steel 1.5 mm (16 ga) 7035
* With unlatching for top viewing door with desk section
* adjustable in 25 mm (0.98)
increments
With fold-out tray
Part No. PC 4603.920, PC 4609.920
i.L. = Clearance width

PC enclosure systems
Based on ES with fold-out keyboard tray or desk section
179Systems for the human/machine interface
Mouse, IP 67
for protection against dust and
humidity.
Part No. see page 266.
Accessories:
see page 200 – 201
or see index.
Version Fold-out tray Desk section
Depth
mm (inches) 650 (25.59) 850 (33.46) 650/910 (25.59/35.83)
Part No. PC 4603.920 4609.920 4603.704
Weight kg (lbs) 100.5 (221.56) 114.1 (251.24) 102.1 (225.09)
Mousepad,
see page 177 4613.000 4613.000 2380.000
Lock systems:
Standard double-bit lock
insert may be exchanged for
lock inserts, 27 mm (1.06),
type A, or cylinder lock inserts,
type B, see page 246 – 247
and Ergoform-S lock system,
see page 245.
Protection ratings:
IP 55 to EN 60 529/10.91
Complies with UL and NEMA
Type 12.
PC enclosure systems
Height
mm (inches)
Part No. For Depth Page
620 mm (24.41)820 mm (32.28)
Base/plinth 100 (3.94) 2813.200 2846.200 208
200 (7.87) 2814.200 2847.200 208
Cross member,
adjustable 70 (2.76) 8601.680 211
Twin castors 125 (4.92) 4634.500 213
Maximum keyboard dimensions
Height mm (inches) Width
mm (inches) Depth
mm (inches)
without
mousepad with
mousepad
Fold-out tray 69 (2.72) 62 (2.44) 480 (18.90) 230 (9.06)
Drawer 55 (2.17) 40 (1.57) 480 (18.90) 250 (9.84)

180 Systems for the human/machine interface
i.L. 512
381
1603.5
1384
798
293
589
125
599
863
492
53
627 361
i.L. 502
100 558
854
954
i.L. 542
i.L. 512
381
1603.5
1384
798
293
589
125
599
863
492
47.5
i.L. 502
i.L. 157
104°
816
627
i.L. 1512
With keyboard drawer
Part No. PC 4650.000 With desk section
Part No. PC 4650.704
* adjustable in 25 mm (0.98) increments
max. 505*
max. 547*
max. 505*
max. 547*
PC enclosure
system with drawer PC enclosure system
with desk section
PC enclosure system
with mounting
compartment, large,
and drawer
Available on request:
Model No. PC
4650.0001) 4650.7042) 4650.304 4650.305
Height mm (inches) 1600 (62.99)
Width mm (inches) 600 (23.62)
Depth mm (inches) 620
(24.41)
620/820
(24.41/
32.28)
610
(24.02) 890
(35.04)
Supply
includes Version Material Finish/Color
Enclosure
Solid top and sides, open at the bottom Type 304 stainless steel,
1.8 mm (15 ga) Brushed, 240 grain
●●●●
Gland panels, three-part Type 304 stainless steel,
1.5 mm (16 ga)
Rear door With locking rod and double-bit insert, r/h hinge Type 304 stainless steel,
2.0 mm (14 ga) Brushed, 240 grain ●●●●
Viewing
door, top
Latched from the inside*, r/h hinge Type 304 stainless steel,
1.5 mm (16 ga) Brushed, 240 grain
●●
Poly-
carbonate Safety
glass
Viewing window Safety glass ESG 4.0 mm
(0.16)
Component
shelf Slotted, permanently installed Sheet steel ST 1203,
1.5 mm (16 ga) RAL 7035 ●●●●
Drawer
Enclosure Sheet steel ST 1203,
1.25 mm (18 ga) RAL 7035
●
Keyboard extension piece with cable support,
hinged and mousepad extension piece Sheet steel ST 1203,
1.5 mm (16 ga) RAL 7035
Trim panel, folded as handrest, with fastener,
lock no. Nr. 3524 E Type 304 stainless steel,
1.25 mm (18ga) Brushed, 240 grain
* With unlatching for top viewing door ●
Desk
section
Enclosure with cover plate top and bottom Type 304 stainless steel,
1.5 mm (16 ga) Brushed, 240 grain
●●●
Design strip Plastic approved for use
with foodstuffs RAL 5002
Bottom
door
With locking rod and double-bit insert, r/h hinge Type 304 stainless steel.
1.5 mm (16 ga) Brushed, 240 grain ●●●●
* With unlatching for viewing door with
desk section ●●●
1) To order enclosures in 1.4404 (Type 316L) please add the extension .500 to the Model No. Delivery times available on request.
2) To order enclosures in 1.4404 (Type 316L) please add the extension .504 to the Model No. Delivery times available on request.
i.L. = Clearance width

181
Systems for the human/machine interface
PC enclosure systems
Stainless steel
PC enclosure systems
Component shelf
may be installed in the height in
25 mm (0.98) increments.
Part No. see page 256.
Mounting angles, 19
for mounting behind the lower
front door. Part No. see HB 30,
page 1026.
Base/plinth trim, modular
for cable entry in the base/
plinth.
Part No. see page 210.
Accessories:
Base/plinth and levelling feet,
see page 209/214
or see index.
Maximum keyboard dimensions
Height
mm (inches) Width
mm (inches) Depth
mm (inches)
Drawer 70 (2.76) 480 (18.90) 260 (10.24)
Fold-out tray 60 (2.36) 475 (18.70) 200 (7.87)
50 (1.97) 250 (9.84)
Lock systems
Standard double-bit lock insert
may be exchanged for 27 mm
(1.06) lock inserts, type A or
lock cylinder inserts, type B,
see page 246 – 247.
Door bottom and rear prepared
for installation of the Ergoform-
S lock system,
see page 245.
Protection ratings:
IP 55 to EN 60 529/10.91
PC 4650.000/.704 complies
with UL and NEMA Type 12.
PC 4650.304/.305 complies
with UL and NEMA Type 4x.

182 Systems for the human/machine interface
Rittal console systems . . .
. . . multi-variable
One-piece console
●Variable installation depth in the cover
section, and cable entry from the rear
via a mounting panel height-offset by
2 x 40 mm (1.57).
●Cover including perforated strips for
cable routing. Safety lid stay may be
unlatched with two-handed operation.
●Door hinge may be swapped from
right to left by simply unscrewing the
hinges.
Universal console
●Optionally with short or tall door. Short
door offers free area for mounting
desk section (see photograph) or
keyboard drawer.
●High level of stability and high
protection category because the
body is manufactured from a
single piece.
●One-piece mounting panel across the
entire height, with C fold at the side,
depth-adjustable in 25 mm (0.98)
increments.
●Universal interior installation with
partial mounting panels, component
shelves, system chassiss and rails
thanks to round and square holes in
25 mm (0.98) increments.
●Rear door across the entire height for
uninhibited access from the rear.
Console system
●Multi-variable in combination. Each
component may be installed
independently or integrated into the
machine or plant.
●Pedestals, with mounting panel, in
two depths, also suitable for use as
consoles.
●Desk units in two depths with
perforated strips in the base and
cover for easy installation.
●Consoles, with mounting panel, in
three depths and two heights for
virtually any installation situation.
Instead of the consoles, compact
enclosures AK (see Handbook 30,
page 84) may also be combined with
the console system.
AP Muti-Vario console system
US patent no. 4,843,519
German patent no. 38 65 047
European patent no. 0 281 895
with validity for DE, ES, FR, GB, IT
The AP console system, the AP one-
piece consoles and the AP universal
consoles have the following approvals:
●UL
●CSA
●TÜV
●Germanischer Lloyd
●Russian Maritime Register of Shipping
●Lloyds Register of Shipping
●VDE
●Norske Veritas
●Bureau Veritas

183
Function and variability are key features of all Rittal console sys-
tems. Perfect designs for added benefits in terms of assembly,
security and operation. The performance capability of a machine or
plant is decided at the console and operating unit. Only optimum
packaging of today’s sensitive controls combined with optimum
ergonomic conditions for operating staff can create the pre-requi-
sites for cost-effective plant operation.
Console systems 184 – 199
Console systems AP – Combination options 184 – 185
Console systems AP – Modules 186 – 187
Console systems AP – Technical details 188 – 191
One-piece consoles AP, sheet steel 192 – 193
Universal consoles AP, sheet steel 194 – 195
One-piece consoles AP, stainless steel 196 – 197
Universal consoles AP, stainless steel 198 – 199
Console systems

184 Systems for the human/machine interface
A5 A1
A2
A4
A6
A1
A2
A6
A5
A5 A1
A2
A4
A4
A2
CP
CP
CP
A2
B2
A8 A9
B3
B4 B1
B2
B7
A3
A1
B7
B1
B2
B4
A2
CP
CP
CP
B2
B2
B8 B9
B3
B4 B1
B2
B7
A3
B1
A6
1) 1)2) 1) 1)2)
1)
1)
1)2)
Simple selection of your desired
combination
The elements of the AP console system in
depths 400 mm (15.75) (blue) and
500 mm (19.69) (green) may be combined
in numerous user-specific versions, as
shown in the diagram.
The table opposite allows you to find the
order number for your selection
immediately.
Modern, slimline HMI (human/machine
interfaces) or displays may also be used.
Integrated into the stylish,
tailor-made Command Panel
systems VIP 6000, Optipanel
and Compact Panel (yellow),
this produces a wide range of
modern extension options for
the classic AP console
systems.
●VIP 6000, see page 12 – 39
●Optipanel, see page 40 – 57
●Compact-Panel, see page 58 – 59
●Support arm systems,
see page 78 – 127.
Trim plate (A2/B2) with reinforcement
and cutout for CP-L available on request
Specify the dimensions for positioning on
the trim plate and the Part No. of the
enclosure attachment.
CP
1) May also be configured
with the door at the rear
(see diagram opposite)
2) When assembling,
additional holes on the
desk unit are required

Systems for the human/machine interface
Console systems AP
Combination options for the modules
185
Console systems
B2
B4
B3
A6
A5
A2
A4
A3
D = 500 mm (19.69) Height mm (inches) D = 400 mm (15.75)
Width mm (inches) 800 (31.50) 1200 (47.24) 1600 (62.99) Width mm (inches) 800 (31.50) 1200 (47.24) 1600 (62.99)
Part No. Part No. Part No. Part No. Part No. Part No.
AK enclosure
1200 (47.24) 1648.600 1652.600
Console
2647.600 2648.600 2649.600 630 (24.80)
with deep rear door
Console
2662.600 2663.600 2664.600 430 (16.93)
with deep rear door
Console
2614.600 2644.600 2654.600 430 (16.93) 2612.600 2642.600 2652.600
Center part
2613.200 2643.200 2653.200 200 (7.87) 2611.200 2641.200 2651.200
Trim panel
2616.200 2646.200 2656.200 28 (1.10) 2615.200 2645.200 2655.200
Pedestal
2610.600 2640.600 2650.600 670 (26.83) 2600.600 2620.600 2630.600
Base/plinth
2842.200 2852.200 2864.200 200 (7.87) 2902.200 2922.000 2962.200
2841.200 2851.200 2863.200 100 (3.94) 2901.200 2921.200 2961.200
B7
A6
A5
A4 B4
A3 B3
A2
B2
A1 B1
A9 B9
A8 B8
For further information, see page 186 – 187.
Technical details, see page 188 – 191.
Examples of
configuration with
doors to the rear

186 Systems for the human/machine interface
Trim panel
To finish off pedestals, desk units or
consoles.
Material:
Sheet steel, painted, 1.5 mm (16 ga)
24
45˚
395/495
28
23
120
20
10
320/420
20
120
18.5 50
40
302.5/402.5
21.5
B
9
8.7
= does not apply to console width 800 mm (31.50)1
1
To fit Color
RAL Part No.
AP
Width mm
(inches) Depth mm
(inches)
800 (31.50) 400
(15.75)
7032
2615.200
1200 (47.24) 2645.200
1600 (62.99) 2655.200
800 (31.50) 500
(19.69)
2616.200
1200 (47.24) 2646.200
1600 (62.99) 2656.200
To order versions in RAL 7044, please add the
extension .300 to the Part No., and for versions
painted in textured RAL 7035, use extension
.500. Delivery times available on request.
Consoles
Supply includes Material
Sheet steel Color
RAL Finish
Enclosure
open at bottom 1.5 mm
(16 ga)
7032
E-coat primed
RAL 7044,
Powder-coated on
the outside in
textured RAL 7032
Door(s) hinged at
bottom with retaining
cords at the front.
For depth 500 mm
(19.69): with door(s)
at rear
2.0 mm
(14 ga)
Mounting panel.
For depth 500 mm
(19.69): adjustable in
25 mm (0.98)
increments
3.0 mm
(11 ga) Zinc-plated
Multi-variable
The components of the AP console system
can be combined in many user-specific
versions. Modern flat screens and operator
panels can also be used. Integrated into
the stylish Command Panel systems
VIP 6000, Optipanel and Compact Panel,
this produces a wide range of modern
extension options for the classic AP
console systems.
Combination options
see page 184 – 185.
Protection ratings:
IP 55 to EN 60 529/10.91
Complies with UL and NEMA Type 12
(provided the appropriate parts are
combined).
Technical details see page 188 – 191.
Height in mm (inches) 430 (16.93) 430 (16.93) 630 (16.96)
Width in mm (inches) PU 800
(31.50) 1200
(47.24) 1600
(62.99) 800
(31.50) 1200
(47.24) 1600
(62.99) 800
(31.50) 1200
(47.24) 1600
(62.99) 800
(31.50) 1200
(47.24) 1600
(62.99)
Depth in mm (inches) 400 (15.75) 500 (19.69) 500 (19.69) with deep rear door
Part No. AP 1 p. 2612.600 2642.600 2652.600 2614.600 2644.600 2654.600 2662.600 2663.600 2664.600 2647.600 2648.600 2649.600
Number of lids 111222222222
Weight kg (lbs) 22.5
(49.60) 40.0
(88.18) 52.5
(115.74) 30.6
(67.46) 48.0
(105.82) 62.4
(137.57) 38.7
(85.32) 56.0
(123.46) 72.3
(159.39) 47.8
(105.38) 64.4
(141.98) 86.8
(191.36)
Lock inserts
Standard double-bit lock insert may be exchanged for 47 mm (1.85) lock inserts, type D, see page 246
Other accessories from page 200 or see index.
To order in primed RAL 7044 please add the extension .800 to the Part No., and for versions painted in textured RAL 7035, use extension .500.
Delivery times available on request.

187Systems for the human/machine interface
Console systems AP
Console systems
Desk units
Supply includes Material
Sheet steel Color
RAL Finish
Enclosure
open top and bottom 1.5 mm
(16 ga) 7032
E-coat primed
RAL 7044,
Powder-coated on
the outside in
textured RAL 7032
Console lid with cam
and lid stay 2.0 mm
(14 ga)
Height in mm (inches) 200 (7.87)
Width in mm (inches) PU 800 (31.50) 1200 (47.24) 1600 (62.99) 800 (31.50) 1200 (47.24) 1600 (62.99) Page
Depth in mm (inches) 850/33.46 (for depth 400/15.75) 950/37.40 (for depth 500/19.69)
Part No. AP 1 2611.200 2641.200 2651.200 2613.200 2643.200 2653.200
Weight kg (lbs) 25.5 (49.60) 35.5 (78.26) 44.0 (97.00) 30.6 (67.46) 42.6 (93.92) 52.8 (116.40)
Accessories
Aluminum strips AP 3 2678.000 2682.000 – 2678.000 2682.000 – 230
Lock inserts
Standard double-bit lock insert may be exchanged for 47 mm (1.85) lock inserts, version D, see page 246
Other accessories from page 200 or see index.
To order in primed RAL 7044 please add the extension .300 to the Part No., and for versions spray-finished in textured RAL 7035, use extension .500.
Delivery times available on request.
Pedestals
Supply includes Material
Sheet steel Color
RAL Finish
Enclosure
open at top 1.5 mm
(16 ga)
7032
E-coat primed
RAL 7044,
Powder-coated
on the outside
in textured
RAL 7032
Door or double door
with locking rod.
For depth 400 mm
(15.75
): front.
For depth 500 mm
(19.69
): front and rear
2.0 mm
(14 ga)
Gland panels,
two-piece 1.5 mm
(16 ga)
Zinc-plated
Mounting panel. For
depth 500 mm (19.69
):
Infinitely adjustable.
3.0 mm
(11 ga)
Height in mm (inches) 670 (26.38)
Width in mm (inches) PU 800 (31.50) 1200 (47.24) 1600 (62.99) 800 (31.50) 1200 (47.24) 1600 (62.99) Page
Depth in mm (inches) 400 (15.75) 500 (19.69)
Part No. AP 12600.600 2620.600 2630.600 2610.600 2640.600 2650.600
Doors 122122
Weight kg (lbs) 43.5 (95.90) 62.3 (137.35) 80.0 (176.37) 52.2 (115.08) 75.0 (165.35) 96.0 (211.64)
Accessories for external mounting
Base/plinth SO Height 100 mm (3.94) 1 2901.200 2921.200 2961.200 2841.200 2851.200 2863.200 208
Height 200 mm (7.87) 1 2902.200 2922.200 2962.200 2842.200 2852.200 2864.200 208
Cross-member, adjustable AP 2 2697.450 211
Accessories for interior installation
Cable clamp rails 3 2038.200 2037.200 – 2038.200 2037.200 – 223
Swing frame SR 11 U 1 2027.200 2027.200 * 2027.200 2027.200 * HB 30, 1021
Lock inserts
Standard double-bit lock insert may be exchanged for 27 mm (1.06) lock inserts, version A, see page 246 and Ergoform-S lock system – see page 245
* Two swing frames may be installed. Other accessories from page 200 or see index.
To order in primed RAL 7044 please add the extension .800 to the Part No., and for versions painted in textured RAL 7035, please use extension .500.
Delivery times available on request.

188 Systems for the human/machine interface
800
50
724
797
1.5
300
630
33.5
50
58
700
1100/1500
525/725
50
525/725
1124/1524
1200/1600
630
300
50
50
33
33.5
40 12
10
25 25
50
Ø10
120
100
50
16
700
40
10
12
25
120
100
25
50
Ø10
5
16
1.5 597 (797)
595 (795)
1100 (1500)
50
700
50
50
40
10
25 24
Ø10
120
100
16
597 (797) 595 (795)
51.5
50
1100 (1500)
40
10
25
120
100
24
Ø10
5
16
1.5 597 (797)
595 (795)
50
Pedestals
H x W 670 x 800 mm (26.38 x 31.50)
D 400 mm (15.75) D 400 mm (15.75)
AP 2600.600 / AP 2610.600 AP 2620.600 / AP 2630.600 / AP 2640.600 / AP 2650.600
H x W 670 x 1200/1600 mm (26.38 x 47.24/62.99)
D 500 mm (19.69) D 500 mm (19.69)
AP 2600.600 AP 2620.600 / AP 2630.600
AP 2610.600 AP 2640.600 / AP 2650.600

189Systems for the human/machine interface
Console systems AP
Technical details
Console systems
370
575
47.5
670
600
373
i.L. 270
50
400
557
70
30
24
i. L. 340
50
24
30
500
472
120
532
557
70
670
440
30
24
715/1115/1515
600
10 12.5
575
12.5
12.5
2090
90
20
702/1102/1502
16.5
40.5
101.5
10.2
19
19
10.2
8
16.5
36
24
20.5
532
3
D 400 mm (15.75)
Mounting panel for D 400 mm (15.75)
AP 2600.600 / AP 2620.600 / AP 2630.600 AP 2610.600 / AP 2640.600 / AP 2650.600
D 500 mm (19.69)
Mounting panel for D 500 mm (19.69)
max. 407
1
= Does not apply to AP 2600.600
1
i.L. = Clearance width

190 Systems for the human/machine interface
320
420
i.L. 742/1142/1542
10.5
38
120
800/1200/1600
120
640/1040/1440
700/1100/1500
660/1060/1460
320
270
50
370
27050
850
820
758.5
19.5
200
393
460
55.5 12.5
12° 24
46
125
41
X
32
32
365
50
38
380
39
17
148.5148.5
13.4
25
797/1197/1597
6.5
10.5
420 38
100
320
420
i.L. 742/1142/1542
120
800/1200/1600
120
640/1040/1440
700/1100/1500
660/1060/1460
820
100
950
470
370
50
200
27050
758.5
41
125
46
460
12.5
393
55.5
19.5
12° 24
X
32
32
365
50
38
380
39
17
148.5148.5
13.4
25
797/1197/1597
6.5
Pedestals
H x D 200 x 850 mm (7.87 x 33.46)
View in X direction
Side view
H x D 200 x 950 mm (7.87 x 37.40) Side view
AP 2611.200 / AP 2641.200 / AP 2651.200
AP 2613.200 / AP 2643.200 / AP 2653.200
View in X direction
1
2
= Does not apply to AP 2613.200
= Does not apply to AP 2613.200 / AP 2643.200
1
2
1
2
1
2
= Does not apply to AP 2611.200
= Does not apply to AP 2611.200 / AP 2641.200
1
2
= Does not apply to AP 2611.200 / AP 2641.200
= Does not apply to AP 2611.200
1
2
1
2
= Does not apply to AP 2613.200 / AP 2643.200
= Does not apply to AP 2613.200
1
2
i.L. = Clearance width

191Systems for the human/machine interface
Console systems AP
Technical details
Console systems
T2
T1
T3
11°
X
407
353.5
300
55.5
Y
325
370
52.5
270
50
350
26
430
286.5
317.5
11°
24
440
470
340
50
30
T2
T1
T3
X
6.5
42
430
26
300
356.5
387.5
359
407
353.5
300
Y
55.5
742/1142/1542
797/1197/1597
800/1200/1600
422/622
304/504
68
32
733/1133/1533
32
797/1197/1597
11°
215
X
500
400
Z
50
546
24
440
30 340
Y
55.5
353.5
300
407
430
84.5 300
359
42
1466.5
387.5
356.5
26
106
100
52
55.5
550
500
607
465
630
559
84.5
42
7°
X
Z
496
455
50
546
24
440
30 340
500
146
6.5
387.5
356.5
26
106
100
52
Y
797/1197/1597
148.5
99.5 99.5
732/1132/1532
148.5
==
348/548
423.5/623.5
t = 3
10 12.5
350
715/1115/1515
325
20
90
12.5
90
20
12.5
11.5
60
9
9
9
11.5
60
44 11
11.5
11.5
6
60°
2.5
23
348/548
23
19
727/1127/1527
23
11.5
H x D 430 x 400 mm
(16.93 x 15.75)
H x D 430 x 500 mm
(16.93 x 19.69)
with deep rear door
AP 2612.600 / AP 2642.600 /
AP 2652.600 AP 2614.600 / AP 2644.600 /
AP 2654.600
H x D 430 x 500 mm
(16.93 x 19.69)
Mounting panel for D 400 mm
(15.75)
Consoles
View in Y direction
View in X direction
View in Z directionH x D 630 x 500 mm
(24.80 x 19.69)
with deep rear door
Mounting panel for D 500 mm (19.69)
Depth 400 mm (15.75") Depth 500 mm (19.69")
T1 = vertically hinged 3 U 300 (11.81)
T2 = vertically hinged 6 U 195 (7.68)
T3 = vertically hinged, max. 110 (4.33)
T1 = static, max. 300 (11.81) 400 (15.75)
AP 2662.600 / AP 2663.600 /
AP 2664.600 AP 2647.600 / AP 2648.600 /
AP 2649.600
1
= Does not apply to AP 2612.600
1
1
2
=
=
Only for AP 2649.600 / AP 2652.600 /
AP 2654.600 / AP 2664.600
Does not apply to AP 2612.600 /
AP 2614.600 / AP 2647.600 / AP 2662.600
1
2
1
2
=
=
Only for AP 2649.600 / AP 2664.600 /
Only for AP 2663.600 / AP 2664.600 /
AP 2648.600 / AP 2649.600
1
2

192 Systems for the human/machine interface
B8
B2
52.5
498
16.5 16.5
420
8
61
20
6.5
52.5
31 31
25
2
B6
B5
B4
B1
50
1.5 1.5
47
B3
B2
B7 B4
B1
B5
50
1.5
1.5
72
B3
B2
630
790
557
70
33 60
675
140
960
47 (87) (127)
400
270
370
50
358 – 368
480
447
498
20°
12.5 12.5
52.5
40 40
52.5
780
11
27.5
F1
F2
11
78.5 78.5
11
51
Configuration:
Enclosure, solid rear and sides, door or
double door at front,
Console lid with lid stay,
Two-piece gland panel,
Mounting panel.
Height in mm (inches) PU 960 (37.80) Page
Width (B1) in mm (inches) 600 (23.62) 800 (31.50) 1000 (39.37) 1200 (47.24)
Depth in mm (inches) 400 /480 (15.75/18.90)
Part No. AP 12666.600 2668.600 2670.600 2672.600
B2 = Width 597 (23.50) 797 (31.68) 997 (39.25) 1197 (46.26)
B3 = Clearance width, top 544 (21.42) 744 (29.29) 944 (37.17) 1144 (45.04)
B4 = Clearance width, front 524 (20.63) 724 (28.50) 924 (36.38) 1124 (44.25)
B5 = Clearance width, bottom 500 (19.69) 700 (27.56) 900 (35.43) 1100 (43.31)
B6 = Width of door, left – – 495 (19.49) 595 (23.43)
B7 = Width of door, right – – 497 (19.57) 597 (23.50)
B8 = Punched length 500 (19.69) 700 (27.56) 900 (35.43) 1100 (43.31)
F1 = Mounting panel width 530 (20.87) 730 (28.74) 930 (36.61) 1130 (44.49)
F2 = Distance between mounting holes 475 (18.70) 675 (26.57) 875 (34.45) 1075 (42.32)
Doors 1 1 2 2
Weight kg (lbs) 51.5 (115.74) 62.5 (137.79) 79.5 (175.27) 90.0 (198.41)
Accessories for external mounting
Base/plinth SO Height 100 mm (3.94) 1 2911.200 2901.200 2891.200 2921.200 208
Height 200 mm (7.87) 1 2912.200 2902.200 2892.200 2922.200 208
Cross member, adjustable AP 2 2697.450 211
Aluminum strips AP 3 2676.000 2678.000 2682.000 * 2682.000 230
Accessories for interior installation
Cable clamp rails PS 3 2036.200 2038.200 1805.200 2037.200 223
Swing frame SR, 11 U 1 – 2027 .200 2027 .200 2027.200 HB 30,
1021
* should be shortened by 200 mm (7.87).
To order primed one-piece consoles in RAL 7044, please add the extension .800 to the Part No., and for textured RAL 7035,
please use extension .500. Delivery times available on request.
1
AP 2670.600 / AP 2672.600 AP 2666.600 / AP 2668.600
= Hinge does not apply to AP 2666.600 / AP 2668.600
2
= Hinge does not apply to AP 2670.600
1

Systems for the human/machine interface
One-piece consoles AP
Sheet steel
193
Console systems
Material:
Sheet steel
Enclosure: 1.5 mm (16 ga)
Door and console lid:
2.0 mm (14 ga)
Mounting panel: 3.0 mm
(11 ga)
Finish:
Enclosure, door and console
lid: E-coat-primed in RAL 7044
and powder-coated on the
outside in textured RAL 7032
Mounting panel and gland
panels: Zinc-plated
Protection ratings:
IP 55 to EN 60 529 /10.91
Complies with UL and NEMA
Type 12
Accessories:
see page 200 – 201
or see index.
Combination of one-piece
console with Optipanel.
Lock systems
Console lid:
Standard double-bit lock insert
may be exchanged for 47 mm
(1.85) lock inserts, type D,
see page 246.
Door:
Standard double-bit lock insert
may be exchanged for 27 mm
(1.06) lock inserts, type A,
see page 246
and Ergoform-S lock system,
see page 245.

194 Systems for the human/machine interface
Supply includes Material Finish
Enclosure Sheet steel 1.5 mm (16 ga) E-coat primed in RAL 7044
Powder coated in textured RAL 7032 on the outside
Doors* top, bottom, rear 2.0 mm (14 ga)
Mounting panel 3.0 mm (11 ga) Zinc-plated
Three-piece gland panels 1.5 mm (16 ga) Zinc-plated
AP 2695.600, 2 design strips Aluminum section RAL 5018
Protection ratings IP 55 to EN 60,529 / 10.91, complies with UL and NEMA Type 12
* With short bottom door (AP 2695.600) the drawer or desk section (see page 231) should be fitted in order to preserve the protection category.
H x W x D 600 x 1300 x 600 mm (51.18 x 23.62 x 16.96)Part No. Weight kg (lbs) Page
Short bottom door AP 2694.600 77.0 (169.75)
Tall bottom door AP 2695.600 75.8 (167.11)
Accessories
Base/plinth Height 100 mm (3.94) SO 2807.200 208
Height 200 mm (7.87) SO 2808.200 208
Cross member, adjustable AP 2697.450 211
Cable clamp rail PS 4191.000 223
180 ° hinges PS 4189.000 241
Cable entry plates PS 4320.700 216
Top door with studs left and right for installing vertical perforated mounting strips SZ 2310.038 and horizontal support strips SZ 2325.000 to be mounted on
top (see HB 30, page 950).
In terms of interior installation, AP universal consoles are similar to free-standing enclosure ES 5000 – in other words, many accessory components
(Part No. PS) will fit.
Lock systems
Standard double-bit lock insert may be exchanged for 27 mm (1.06) lock inserts, type A, see page 246
and Ergoform-S lock system, see page 245.
To order in primed RAL 7044, please add the extension .800 to the Part No., and for textured RAL 7035, please use extension .500.
Order examples
AP 2694.600 and
AP 2696.200
(desk section)
AP 2694.600 and
AP 2696.200
(desk section)
AP 2694.600 and
MC 4757.000
(drawer)
AP 2695.600
Universal console AP 2694.600 Universal console AP 2695.600 Mounting panel
Technical details for keyboard drawer
and desk section, see page 231.
23
1196
499
23
23
48
73
24.5
42
17
440
365
42.5
11°
502
835
763
25.5
805
417.5
44.3
1273.5
1300
i. L. 1212
i. L. 515
i. L. 512
i. L. 512
592
600
= from 200 to 400 mm (7.87 to 15.75),
adjustable in 25 mm (0.98)
increments
1= from 200 to 400 mm (7.87 to 15.75),
adjustable in 25 mm (0.98)
increments
1
1
440
365
42.5
11°
502
417.5
173.5
635
25.5
44.3
28
604
i. L. 1212
1273.5
1300
1
i. L. 515
i. L. 512
i. L. 512
592
600
i.L. = Clearance width

Systems for the human/machine interface
Universal console AP
Sheet steel
195
Console systems
Accessories:
see page 200 – 201
or see index.
Mobile workstation
Plenty of space for tower PCs,
printers and paper.
Part No. see page 267.
Desk section
For installing display and
control components, keyboards
etc. Part No. see page 231.
Drawer
for mouse and keyboard with a
maximum width of 500 mm
(19.69). Part No. see page
231.

196 Systems for the human/machine interface
Supply includes:
Enclosure, solid rear and sides, door or
double door at front, with locking rod,
Console lid with lid stay and stainless steel
cam latched in the enclosure,
Two-piece gland panel,
Mounting panel, zinc-plated.
Height in mm (inches) PU 960 (37.80) 960 (37.80) 960 (37.80) 960 (37.80) Page
Width (B1) in mm (inches) 600 (23.62) 800 (31.50) 1000 (39.37) 1200 (47.24)
Depth in mm (inches) 400/480
(15.75/18.90) 400/480
(15.75/18.90) 400/480
(15.75/18.90) 400/480
(15.75/18.90)
Part No. AP 12683.600 2684.600 2685.600 2686.600
B2 = Width 597 (23.50) 797 (31.68) 997 (39.25) 1197 (46.26)
B3 = Clearance width, top 544 (21.42) 744 (29.29) 944 (37.17) 1144 (45.04)
B4 = Clearance width, front 524 (20.63) 724 (28.50) 924 (36.38) 1124 (44.25)
B5 = Clearance width, bottom 500 (19.69) 700 (27.56) 900 (35.43) 1100 (43.31)
B6 = Width of door, left – – 495 (19.49) 595 (23.43)
B7 = Width of door, right – – 497 (19.57) 597 (23.50)
B8 = Punched length 500 (19.69) 700 (27.56) 900 (35.43) 1100 (43.31)
F1 = Mounting panel width 530 (20.87) 730 (28.74) 930 (36.61) 1130 (44.49)
F2 = Distance between mounting holes 475 (18.70) 675 (26.57) 875 (34.45) 1075 (42.32)
Doors 1 1 2 2
Weight kg (lbs) 52.0 (114.64) 65.2 (143.74) 79.5 (175.27) 90.3 (199.07)
Accessories
Base/plinth SO Height 100 mm (3.94) 1 2865.000 2869.000 2867.000 2870.000 209
Height 200 mm (7.87) 1 2875.000 2878.000 2885.000 2886.000 209
Lock systems
Standard double-bit lock insert of locking rod may be exchanged for 27 mm (1.06) lock inserts, version A,
see page 246 and Ergoform-S lock system, see page 245.
To order the one-piece consoles in 1.4404 (Type 316L), the Part No. should end in .500. Delivery times available on request.
37
458 33.5
498
60
375
B8
B2
M6 x12
23.5
25
83
73.5
12.5 12.5
52.5
40 40
52.5
780
11
27.5
F1
F2
11
78.5 78.5
11
51
630
790
557
70
33 60
675
140
960
47 (87) (127)
400
270
370
50
358 – 368
480
447
498
20°
B4
B1
B5
50
1.5 1.5
72
B3
B2
B6
B5
B4
B1
50
1.5 1.5
47
B3
B2
B7
= Hinge does not apply to AP 2685.6001
= Hinge does not apply to AP 2683.600 / AP 2684.600
2
1
2
AP 2685.600 / AP 2686.600 AP 2683.600 / AP 2684.600

197Systems for the human/machine interface
One-piece consoles AP
Stainless steel
Console systems
Material:
Type 304 stainless steel
Enclosure: 1.5 mm (16 ga)
Door or double door and
console lid: 2.0 mm (14 ga)
Mounting panel:
3.0 mm (11 ga) sheet steel
Finish:
Enclosure, door and console
lid: Brushed, 120 grain
Mounting panel: Zinc-plated
Protection category:
IP 55 to EN 60 529/10.91
Complies with UL and NEMA
Type 12.
Accessories:
see page 200 – 201
or see index.
Levelling feet
for base/plinth to compensate
for floor irregularities.
Part No. see page 214.
IP 67 mouse and mousepad
Part No. see page 266. Wall console, stainless steel
mounted on the rear panel
for an additional operating
housing. Part No. see page 95.

198 Systems for the human/machine interface
23
1196
499
23
23
48
73
24.5
42
17
440
365
42.5
11°
502
835
763
25.5
805
417.5
44.3
1273.5
1300
i. L. 1212
i. L. 515
i. L. 512
i. L. 512
592
600
Configuration:
Enclosure, solid top and sides,
Rear door,
Three-piece gland panels,
Mounting panel.
AP 2688.600
Three-piece front:
Top door inclined by 11°, r/h hinge.
Empty space for
– Desk section AP 2690.000
– Keyboard drawer AP 2691.000.
Bottom door, r/h hinge.
AP 2689.600
Two-piece front:
Top door inclined by 11°, r/h hinge.
Bottom door, r/h hinge.
PU Universal console Page
with short front door with tall front door
Width in mm (inches) 600 (23.62) 600 (23.62)
Height in mm (inches) 1300 (51.18) 1300 (51.18)
Depth in mm (inches) 500 (19.69) 500 (19.69)
Part No. AP 12688.600 2689.600
Weight kg (lbs) 83.3 (183.64) 84.5 (186.29)
Essential accessories
Desk section AP 1 2690.000 – 231
or
Keyboard drawer AP 1 2691.000 – 231
Accessories for external mounting
Base/plinth SO Height 100 mm (3.94) 1 2868.000 2868.000 209
Height 200 mm (7.87) 1 2876.000 2876.000 209
Base/plinth trim, modular SO 4 2908.000 2908.000 210
Lock systems
Standard double-bit lock insert may be exchanged for 27 mm (1.06) lock inserts, version A, see page 246
and Ergoform-S lock system, see page 245.
For universal consoles in 1.4404 (Type 316L), the Part No. should end in .500. Delivery times available on request.
AP 2688.600 front door, short AP 2689.600 front door, tall Mounting panel
Order examples
AP 2688.600
Front door, short
AP 2690.000
(desk section)
AP 2688.600
Front door, short
AP 2690.000
(desk section)
AP 2688.600
Front door, short
AP 2691.000
(keyboard drawer)
AP 2689.600
(front door, tall)
= from 200 to 400 mm (7.87 x 15.75),
adjustable in 25 mm (0.98) increments
1= from 200 to 400 mm (7.87 x 15.75),
adjustable in 25 mm (0.98) increments
1
1
440
365
42.5
11°
502
417.5
173.5
635
25.5
44.3
28
604
i. L. 1212
1273.5
1300
1
i. L. 515
i. L. 512
i. L. 512
592
600
i.L. = Clearance width

199Systems for the human/machine interface
Universal consoles AP
Stainless steel
Console systems
Accessories:
see page 200 – 201
or see index.
Material:
Type 304 stainless steel
Enclosure: 1.5 mm (16 ga)
Door: 2.0 mm (14 ga)
Mounting panel:
Sheet steel 3.0 mm (11 ga),
zinc-plated
Finish:
Brushed, 240 grain
Protection ratings:
IP 56 to EN 60 529/10.91
Complies with UL and NEMA
Type 12.
Connector gland
for 3 cables up to Ø 6 mm
(0.24).
Part No. SZ 2400.500,
see page 220.
Rail for EMC shielding
bracket and strain relief
Part No. see Innovations 2003,
page 28.
Mousepad support
For desk section, mouse and
mousepad IP 67/NEMA 6.
Part No. see page 266.

Systems for the human/machine interface
Rittal system accessories . . .
. . . for even more solutions
200
Solution diversity is our business. Thanks to many years of exper-
tise, knowledge and our close contact with customers, we pro-
duce solutions that work. For example, system climate control that
ensures reliability for electronics in cabinets and enclosures for
human/machine interface. What is more, our extensive range of
system accessories offers you new opportunities and possibilities.
Simply locate onto the connection plate of
the Command Panel,
see page 219.
Connector gland: Simply insert the pre-
assembled cables and screw-fasten,
see page 220.
Utility shelf for measuring tools, writing
equipment, mouse, scanner, small parts
etc. see page 229.
Handle set and conduit holder solve a
variety of requirements, both individually
and in combinations, see page 235.
System window – whenever stringent
hygiene requirements apply,
see page 241.
Interface door for secure accommodation
of sockets, computer ports or drives,
see page 240.
TFT monitor – quickly installed, ideal for
industrial use,
see page 265.
Cable glands and other useful system
accessories,
see Innovations 2004, from page 22.
IP 65 desktop keyboard – for tougher
conditions or when hygiene is an issue,
see page 264.

201
Accessories / climate control
Climate control 202 – 205
VIP small air conditioners 202 – 203
Rear cooling panel, modular 204
Overview of climate control 205
Even more diversity, even more ideas.
Enter our world of solutions. Clearly
documented in Rittal Handbook 30.
Input/output devices 264 – 266
Accessories 206 – 273
Base/plinth 206 – 213
Base 214 – 219
Cable routing 220 – 223
For IW monitor housings 224 – 225
Wall/enclosure connectors 226 – 230
Front design 231 – 234
Handles 235 – 239
Interface door, interface box 240
Windows 241 – 243
Lock systems 244 – 249
Roof/interior installation 250 – 256
Component shelves/drawers 256 – 263
Mobile workstation 267
Lighting/power supply 268 – 269
Grounding/swing frames 270 – 271
19 configuration 272 – 273

202 Systems for the human/machine interface
526
465
60
353.5
296
32 105
296
183
526
353.5
296
60
105
183
288
465
32
The new VIP SK small air conditioner
were developed especially for cooling
the VIP 6000 command panel. In
addition, VIP small air conditioner also
offer a space-saving, economical
solution for the climate control of small
enclosures where small heat loads are
generated by the system.
Specification:
●For optimum space utilization inside the
VIP 6000 enclosure, we offer two cooling
unit versions with the condenser
mounted on the left or right, which are
pre-mounted on the rear panel of the VIP
enclosure.
●Customized solutions on other small
enclosures are also possible.
●Optimum ratio of useful cooling output to
cooling unit volume.
●Temperature control via internal
electronics.
●Monitoring of the internal temperature of
the enclosure via a floating contact on
the terminal strip.
Configuration:
Fully wired ready for connection and pre-
mounted on an aluminum rear panel to fit
VIP 6000 operating housing 7 U.
SK 3201.100
Condenser version LEFT SK 3202.100
Condenser version RIGHT
Performance diagram
SK 3201. . . . / SK 3202. . . .
(DIN 3168) (50 Hz)
Tu = Ambient temperature (°C)
QK= Continuous useful cooling output (W)
Ti= Enclosure internal temperature (°C)
20 25 30 35 45
25
30
35
40
45
50
40
150
100
200
250
350
300
400
450
50
QK
.
Tu
Ti
.
Performance diagram
SK 3201. . . . / SK 3202. . . .
(DIN 3168) (60 Hz)
Tu = Ambient temperature (°C)
QK= Continuous useful cooling output (W)
Ti= Enclosure internal temperature (°C)
20 25 30 35
20
25
30
35
40
45
50
40 45
150
100
200
250
350
300
400
450
500
50
QK
.
Tu
Ti
.
Part No. SK 3201.100 3202.100
Condenser design left right
Rated operating voltage V/Hz 230, 50/60
Dimensions in mm (inches) H
W
D
353,5 (13.92)
526 (20.71)
105 (4.13)
Useful cooling output Q
.
K
to DIN 3168 L 35 L 35
L 35 L 45 225 W/ 270 W (770/920 BTU)
160 W/ 200 W (545/680 BTU)
Rated current max. 1.5 A/1.5 A
Start-up current 1.9 A/2.0 A
Pre-fuse T 4.0 A/4.0 A
Power consumption Pel
to DIN 3168 L 35 L 35
L 35 L 45 285 W/ 300 W
315 W/ 325 W
Refrigeration factor ε = Q
.
K/Pel L 35 L 35 0.8 / 0.9
Refrigerant R134a, 170 g (6 oz)
Permissible operating pressure p. max. 27 bar /392 psi
Temperature and setting range +20°C to +45°C/+68° to 113°F
Protection category to
EN 60 529/10.91
External circuit IP 34; NEMA Type 2
Internal circuit IP 54; NEMA Type 12
Duty cycle 100 %
Type of connection Terminal strip
Weight 10.5 kg/23.15 lbs
Color Rear panel aluminum, vent grille RAL 7035
Air throughput of fans External circuit 235 m3/h / 270 m3/h (137/158 cfm)
Internal circuit 160 m3/h / 180 m3/h (94/105 cfm)
Temperature control Electronic control (factory setting +35°C/+95°F)
Special voltages available on request. We reserve the right to make technical modifications.
Accessories PU Page
Temperature indicator 1 3114.100 HB 30,
p. 570
1
= Distance from installed equipment at
least 60 mm (2.36)
1
1

Systems for the human/machine interface
Climate control
VIP small air conditioner, useful cooling output 225 W/920 BTU
203
Climate control
VIP small air conditioner
have the following approvals:
●UL, CUL
●CE
Digital temperature indicator
for visualisation of the
enclosure internal temperature,
see Handbook 30, page 570.
Spacer and built-in trim panel
for problem-free installation of
the temperature display.
Part No. see page 234.
Accessories:
see page 200 – 201
or see index.

204 Systems for the human/machine interface
Climate control
Rear cooling panel
Rear cooling panel, modular
For VIP 6000 and Optipanel, externally
mounted
Significantly increases the dissipation of
heat loss from the enclosure.
Apart from cooling fins on the outside, this
is achieved by a combination of cooling
fins and screw channels on the inside,
which ensure optimum heat absorption and
dissipation.
The rear cooling panel consists of cooling
modules and compensating panels, which
are used depending on the enclosure
width.
Material:
Extruded aluminum section,
natural anodized
Note:
When installing the pull-out keyboard
CP 6002.100 (see page 263) in
●VIP 6000, design version 3.1,
No. 1
●Optipanel, design version 2.1,
No. 3
the 11 mm (0.43) cooling fins protruding
into the enclosure and screw channels may
be milled off.
Please additionally specify on the order:
●With fitted pull-out keyboard
CP 6002.100 + installation position.
Accessories:
Spring nuts M5, CP 6108.000,
see page 255.
Cable tie attachment, CP 6059.500,
see page 221.
Rear cooling panel for retro-fitting
existing enclosures.
To fit Size Part No.
CP
VIP 6000 7 U x 196004.000
to specifications* 6004.009
Optipanel 7 U x 196004.100
to specifications* 6004.109
*Please additionally state on the order:
●Number and dimensions of front panels
●Number of cross members/sealing bars
or
●Part Number of enclosure.
Extended delivery times.
11
50
1 1 1 1
23 4
5
Profile of rear cooling panel. Unless otherwise specified, the cooling fins are positioned
vertically.
Width compensating panel, mounted in the center with an even number of heat sinks, or
on the right with an uneven number. By rotating the entire cooling panel through 180°
this position may be modified individually.
Spring nut M5, CP 6108.000 for interior installation on screw channels
Overall depth of the enclosure is increased by 13 mm (0.51)
Front panel width for determining the cooling modules and compensating panel

205
Rittal climate control systems . . .
. . . for process protection
Climate control
Outstanding quality, favourable prices, exceptionally effective oper-
ating ratios and environmentally friendly – that's Rittal system cli-
mate control. These convincing criteria originate from a broad
base: A consistent orientation towards customer requirements,
highly skilled development teams, a platform-based strategy, and
state-of-the-art production techniques.
In our new brochure “Perfect
Climate 2004”, you will find our
entire range of products for
comprehensive process
protection through cooling,
heating and monitoring.
Please request a copy of our
latest brochure – see back
page for contact information.
Perfect Enclosure Climate Control
Perfect
Climate
2004
Comprehensive
process cooling
Including new generation
of fan-and-filter units

206 Systems for the human/machine interface
Accessories
Base/plinth
Base/plinth components
front and rear for TS
Base/plinth component consisting of one
trim panel and two pre-configured corner
pieces. In 200 mm (7.87) high base/plinth
components, one trim panel is divided into
two for cable entry.
Configuration:
1 set =
2 base/plinth components,
4 cover caps,
4 screws and captive nuts M12
for mounting on the enclosure.
Accessories:
Base assembly plate SO 2817.000,
see page 215.
For
enclosure
width
mm (inches)
PU
set
Part No. TS
100 mm
(3.94)
high
200 mm
(7.87)
high
600 (23.62) 1 8601.600 8602.600
Material Color
RAL
Components Sheet steel 7022
Caps Plastic 9005
Base/plinth trim
side, for TS
For mounting between the base/plinth
components. With 200 mm (7.87) height,
two 100 mm (3.94) base/plinth trims may
also be used. In order to stabilize bayed
base/plinth components, base/plinth trim
(100 mm (3.94) high) may be installed
rotated through 90°.
Material:
Sheet steel
Configuration:
1 set =
2 base/plinth trim panels
including material for attaching
to the base/plinth components.
Accessories:
Assembly bolts for cable clamp rails
SO 2819.000, see page 210.
As an alternat
i
ve,
can be used:
Base/plinth or
base/plinth, vented, in RAL 7035,
see Handbook 30, page 882.
B1
B2
B3
B4
17.5
47.5
92.5
62.5
32.5
80
62.5
22
50
Ø 9.4
30
30
T4
T3
T2
T1
18 x 14
15 x 10
14
T5
B5
100200
B3
Plinth, 200 mm (7.87) high
Plinth, 100 mm (3.94) high
For
enclosure
depth
mm (inches)
Color
RAL
Part No. TS
100 mm
(3.94)
high
200 mm
(7.87)
high
600 (23.62) 7022 8601.060 8602.060
800 (31.50) 7022 8601.080 8602.080
Description of the hole patterns
B1/T1 = External dimensions
B2/T2 = For screw-fastening in the thread
of the enclosure corner piece from
below
B3/T3 = For screw-fastening via captive
nuts to the enclosure base
from below or above
All holes (B2 – B4 / T2 – T4) may be used
for screw-fastening to the base.
Base/plinth components front/rear
Width mm (inches) B1 B2 B3 B4 B5
600 (23.62) 600 (23.62) 535 (21.07) 475 (18.70) 415 (16.34) 570 (22.44)
Base/plinth trim, side
Depth mm (inches) T1 T2 T3 T4 T5
600 (23.62) 569 (22.04) 534 (21.03) 474 (18.66) 444 (17.48) 568 (22.37)
800 (31.50) 769 (30.28) 734 (28.90) 674 (26.53) 644 (25.35) 768 (30.24)

207Systems for the human/machine interface
Accessories
Base/plinth
Accessories
Base/plinth trim
with brush strip for TS
The supplement to the modular base/plinth
concept (see HB 30, page 878).
May also be exchanged for the front or rear
trim panel of the base/plinth components
100 or 200 mm (3.94 or 7.87) high. By
rotating the trim panel, the hammer-head
strip for cable attachment may optionally
be positioned at the top or bottom.
Material:
Sheet steel
Configuration:
Brush strip
Accessories:
Cable ties for quick assembly,
see page 220.
Height Width Part No. TS
RAL 7022 RAL 7035
100 mm
(3.94)600 mm
(23.62)8601.610 8601.615
Base/plinth trim PC
To continue the design of the
●bottom front door of PC enclosures
based on TS,
●door of the IW enclosure.
The base/plinth trim is screw-fastened to
the corner pieces of the TS base/plinth
components from the outside.
Additional parts
Base/plinth components, front and rear and
base/plinth trim, side,
see opposite page.
Configuration Material Color
RAL
1 trim panel Sheet steel 7015
2 designer
trim panels
Extruded
aluminum
section 7035
592
100
56
280
9
212
362
45.2
Height Width Part No. PC
200 mm
(7.87)600 mm
(23.62)8360.920
Base/plinth, stationary
Adapted to the design of the enclosure,
Height 100 mm (3.94), front projection,
with numerous possibilities.
For depth Part No. PC
600 mm (23.62)8800.920
836 mm (32.91)8800.930
Configuration Version Material Color
RAL
2 depth stays With attachment facility for
●Twin castors PC 4634.500,
see page 213,
●Levelling feet PS 4612.000,
see page 214,
●Assembly bolts for cable
clamp rails SO 2819.000,
see page 210,
●Support bracket PS 4183.000,
see Handbook 30, page 979.
Sheet steel
2.0 mm/14ga 7035
textured
with 2 cover caps Cast aluminum 7035
1 trim panel at
the rear For screw-fastening to
depth stays Sheet steel
2.0 mm (14ga) 7035
textured
1 trim panel at
the front for screw-fastening to
depth stays Aluminum
section 7015

208 Systems for the human/machine interface
Accessories
Base/plinth
Base/plinth, complete
Sheet steel
Consisting of:
Trim panels at the front and rear with fitted
corner pieces and side trim panels.
Material:
Sheet steel
Color:
RAL 7022
32.5 32.5
100
125
100
125
62.5 62.5
Ø 8.5
□ 14
30
18 x 14
37.5
12.5
T
22.5
52.5
25
52.5
25
37.5
12.5
30
50
B
98
100
2
98 98
200
Plinth, 100 mm (3.94) high
Plinth, 200 mm (7.87) high
T = Enclosure depth – 50 mm (1.97)
W = Enclosure width
Configuration
Height
100 mm
(3.94)200 mm
(7.87)
Corner pieces 4 4
Trim panels
front / rear 2
1 x 200 mm
(7.87)
2 x 100 mm
(3.94)
Trim panels
(sides) 24
Installation hardware including 4 screws
and captive nuts M12 for mounting on the
enclosure.
Base/plinth for ES-PC/AP universal console
For enclosures Part No. SO
Width mm (inches) Depth mm (inches) 100 mm (7.87) high 200 mm (7.87) high
600 (23.62) 500 (19.69) 2807.200 2808.200
600 (23.62) 600 (23.62) 2813.200 2814.200
600 (23.62) 800 (31.50) 2846.200 2847.200
Base/plinth for AP console systems/AP one-piece consoles
For enclosures/consoles Base/plinth
depth
mm (inches)
Part No. SO
Width
mm (inches) Depth
mm (inches) 100 mm (7.87) high 200 mm (7.87) high
600 (23.62) 400 (15.75) 370 (14.57) 2911.200 2912.200
800 (31.50) 400 (15.75) 370 (14.57) 2901.200 2902.200
800 (31.50) 500 (19.69) 440 (17.32) 2841.200 2842.200
1000 (39.37) 400 (15.75) 370 (14.57) 2891.200 2892.200
1200 (47.24) 400 (15.75) 370 (14.57) 2921.200 2922.200
1200 (47.24) 500 (19.69) 440 (17.32) 2851.200 2852.200
1600 (62.99) 400 (15.75) 370 (14.57) 2961.200 2962.200
1600 (62.99) 500 (19.69) 440 (17.32) 2863.200 2864.200
Accessories:
Assembly bolts for cable clamp rail,
see page 210.
Base assembly plate,
see page 215.

209Systems for the human/machine interface
Accessories
Base/plinth
Accessories
Base/plinth, complete
Stainless steel
Consisting of:
Trim panels front and rear (for height
200 mm (7.87) with corner pieces on one
side and removable trim panel) and trim
panels at the sides.
Material:
Type 304 stainless steel
Finish:
Brushed
Accessories:
Levelling feet,
see page 214.
Base/plinth trim, modular
see page 210.
30
□ 14 x 14
Ø 9.4
62.5 62.5
14 x 18
100 100
32.5 32.5
B
12.5
37.5
25
25
50
50
25
50
T
12.5
37.5
98
2
98
200
100
98
30
□ 14 x 14
Ø 9.4
62.5 62.5
14 x 18
100 100
32.5 32.5
B
12.5
37.5
25
25
50
50
25
50
T
12.5
37.5
Plinth, 100 mm (3.94) high Plinth, 200 mm (7.87) high
T = Enclosure depth – 50 mm (1.97)
B = Enclosure width
T = Enclosure depth – 50 mm (1.97)
B = Enclosure width
Configuration
Height
100 mm
(3.94)200 mm
(7.87)
Corner pieces – 2*
Trim panels
front/rear 22
Trim panels (sides) 2 4
Installation hardware including 4 screws
and captive nuts M12 for mounting on the
enclosure.
* Corner pieces with removable trim panel,
to be fitted optionally at the front or rear.
Base/plinth for PC/AP
For enclosures Part No. SO
Width mm (inches) Depth mm (inches) 100 mm (3.94) 200 mm (7.87)
600 (23.62) 400 (15.75) 2865.000 2875.000
600 (23.62) 500 (19.69) 2868.000 2876.000
600 (23.62) 600 (23.62) 2855.000 2877.000
800 (31.50) 400 (15.75) 2869.000 2878.000
1000 (39.37) 400 (15.75) 2867.000 2885.000
1200 (47.24) 400 (15.75) 2870.000 2886.000

210 Systems for the human/machine interface
Accessories
Base/plinth
Base/plinth trim panel,
modular
For cable entry in the base/plinth
made from stainless steel, e.g. when using
levelling feet.
A perforated plate segment is 175 mm
(6.89) wide. The system holes are suitable
for accommodating cable ties SZ
2597.000, for tidy cable routing.
Material:
Type 304 stainless steel
Configuration:
4 base/plinth trim panels
Accessories:
Cable ties for quick assembly,
see page 220.
Levelling feet,
see page 214.
For
enclosure
depth
mm
(inches)
Number of required
base/plinth trim panels for
base/plinth width*
mm (inches) Part No.
SO
600
(23.62)
800
(31.50)
1000
(39.37)
1200
(47.24)
400
(19.69) 34562907.000
500
(15.75) 34562908.000
600
(23.62) 34562913.000
* if the surface is to be completely sealed.
Assembly bolts
for base/plinth
The lockable assembly bolt allows the
installation of cable clamp rails and
standard C rails.
Material:
Hexagon steel, zinc plated,
width across flats 19 mm (0.75)Accessories:
Cable clamp rail,
see page 223.
* only for height 200 mm (7.87)
67
117*
167*
For base/plinth trim
height mm (inches) PU Part No. SZ
100 (3.94) 10 2819.000
200 (7.87) 10 2819.200
Transport castors
For base/plinth, complete
For locating onto the base/plinth corner
piece 100 (3.94) or 200 mm (7.87) high
by raising or tilting.
Maximum permissible load per twin
castor:
Static: 100 kg (220.46 lbs)
Dynamic: 75 kg (165.35 lbs)
Configuration:
1 set =
4 twin castors,
2 with, 2 without brakes.
Color:
RAL 7022
Additional parts
Base/plinth, complete
see page 208,
Base/plinth components, front and rear,
see page 206.
For
Ground
clear-
ance in
mm
(inches)
PU Part No.
PC, ES, AP
style base/
plinth
60
(2.36) 1 set PS 4570.000
TS style
base/plinth 100
(3.94) 1 set TS 8800.390
4570.000
8800.390

211Systems for the human/machine interface
Accessories
Base/plinth
Accessories
Cross member
adjustable
To increase stability, the cross member is
positioned 138 mm (5.43) above the base
frame of the enclosure at the front and rear.
For deeper enclosures, the rear part may
be extended and screw-fastened again.
For screw-fastening to the floor and
enclosure with mounting hole at the sides
front and rear. The castors and levelling
feet may be secured to the welded nuts
M12.
Material:
Sheet steel, painted
Color:
RAL 7015
Note:
For mobile use, the cross member must be
screw-fastened twice in the corners of the
enclosure. Accessories:
Attachment opportunities for
●Twin castors PC 4634.500,
see page 213.
●Levelling feet PS 4612.000,
see page 214.
For
Encl.
depth
mm
(inches)
L1 L2 PU Part No.
TS/AP
TS,
PC,
IW,
ES
400
(15.75) 644 275
28601.450
500
(19.69) 744 375
600
(23.62) 844 475
28601.680
800
(31.50) 1044 675
AP
400
(15.75) 634 320
22697.450
500
(19.69) 734 390
TS 8601.450 / .680
70
50
45°
50
10
50
L1
70 132
27.5
30
20
M12
70
L2 10.5
14 x 19
14
AP 2697.450
132
70
50
10
50
50
70
45°
L1
14
M1214
20
13
L2
Ø 10.5
13
25
M12
26

212 Systems for the human/machine interface
Accessories
Base/plinth
Base/plinth, mobile
For PC (based on ES)/AP enclosures,
Consisting of
2 axles of sheet steel each with 2 end caps
of die-cast zinc with plastic cover,
4 twin castors,
2 with, 2 without brakes.
2 cross braces of sheet steel.
Not assembled.
Load capacity per castor:
120 kg (264.55 lbs) static load
Total load:
360 kg (793.66 lbs) static load
Material:
Powder coated in RAL 7032/RAL 7035,
End cap RAL 7033/RAL 5018.
German registered design
No. M 92 01 858
German patent no. 42 00 315
IR design no. DM/023580
with validity for DE, FR, IT
180
75
B1
R 95
R 110
60
T1
40
60
≈185
100
B1= Enclosure width
T1 = Enclosure depth + 150 mm (5.91)
For enclosures Part No. SO
Width
mm
(inches)
Depth
mm
(inches)
RAL
7032/7033 RAL
7035/5018
600
(23.62) 400
(15.75) 2979.200 –
60
(23.62) 500
(19.69) 2980.200 –
600
(23.62) 600
(23.62) 2981.200 2981.235
600
(23.62) 800
(31.50) 2982.200 2982.235
800
(31.50) 400
(15.75) 2983.200 –
800
(31.50) 500
(19.69) 2984.200 –
Base/plinth adaptor
for twin castors
Connection component for mounting twin
castors
●PC 4634.500
●PC 4634.000
●DK 7495.000
on the TS base/plinth.
Material:
Sheet steel, zinc plated.
Configuration:
1 set =
4 base/plinth adaptors,
4 retaining screws M8 x 16 mm (0.63),
4 hex nuts M8.
Note:
Floor clearance is increased by 3 mm
(0.12) with fitted twin castors.
Additional parts
Base/plinth trim, side,
see page 206,
in all situations where a twin castor needs
to be mounted.
PU Part No. TS
1 set 8800.290

213Systems for the human/machine interface
Accessories
Base/plinth
Accessories
Twin castors
For mobile use, easily fitted.
Mounting thread M12 x 20.
Suitable for use with
Maximum
permissible static
load
(per castor):
Ground
clearance
mm (inches) Lock PU Color Part No.
TS, IW, PC enclosure system, pedestal
base plate CP 6137.035 – CP 6137.535 40 kg (88.18 lbs) 50 (1.97) 4 without 1 set Black PS 4611.000
TS, IW, PC pedestals, CP 6141.XXX,
pedestal base plate CP 6137.035 –
CP 6137.535 75 kg (165.35 lbs) 85 (3.35) 2 with,
2 without 1 set Black
with grey
running surface CP 6148.000
TS, IW, ES, AP, AK, PC enclosure system,
pedestal base plate CP 6137.035 –
CP 6137.535 120 kg (266.54 lbs) 125 (4.92) 2 with,
2 without 1 set
Black PC 4634.500*
Turquoise/
black PC 4634.000*
* For mounting on the TS base/plinth, the base/plinth adaptor for twin castors is required.
PS 4611.000
PC 4634.500CP 6148.000 PC 4634.000
Reinforcement bracket
for TS base tray
For use as an additional stabiliser to the
clamping straps when populated
enclosures are screw-fastened via the base
tray to the base/plinth or pallet for
transportation purposes.
Material:
Sheet steel, zinc plated.
Configuration:
Installation hardware
PU Part No. TS
4 8800.830

214 Systems for the human/machine interface
Accessories
Base
Levelling feet
For mounting beneath the base/plinth,
complete, see page 208/209.
For unhindered access e.g. when cleaning
the floor, and to compensate for floor
irregularities.
Maximum permissible static load:
400 kg (881.84 lbs) / foot per foot
Floor clearance adjustable from:
M12: 55 mm – 125 mm (2.17–4.92)
M16: 45 mm – 120 mm (1.77–4.72)
Material:
Type 304 stainless steel
Configuration:
1 set =
4 levelling feet.
4 mounting panels,
including installation hardware.
German utility model
No. G 94 06 468
Thread PU Part No. SO
M12 1 set 2889.000
M16 1 set 2890.000
Levelling feet, 100 mm
(3.94) high
For mounting on TS, IW and ES-PC
enclosures, for easier floor cleaning and to
compensate for floor irregularities.
Height 100 mm (3.94).
Maximum permissible static load:
350 kg (771.61 lbs) / foot per foot
Floor clearance adjustable from:
85 mm – 115 mm (3.35– 4.53)
Material:
Feet: Brass, nickel-plated
Threaded bolts and mounting panels:
Type 304 stainless steel
Configuration:
1 set =
4 feet,
4 mounting panels with threaded bolts,
including installation hardware to the
enclosure.
PU Part No. SO
1 set 2859.000
Levelling feet
To compensate for height differences with
floor irregularities.
Thread length 40 mm (1.57).
Assembly thread M 12 for direct screw-
fastening into the enclosure corner pieces.
Maximum permissible static load:
approx. 300 kg (661.38 lbs) per levelling
foot.
Floor clearance adjustable from:
18 mm – 43 mm (0.71–1.69)
For:
●Baying system TS 8
●PC enclosure system
●Pedestal base plate
CP 6137.035 – CP 6137.535
●Industrial workstations
Additional parts
For mounting on the TS base/plinth:
Base/plinth adaptor TS 8800.220,
see below.
58
4018
M12
Ø 47
SW 19
Thread PU Part No. PS
M12 4 4612.000
Base/plinth adaptor for
levelling feet
Connection component for fastening
levelling feet PS 4612.000 to the base/
plinth.
Material:
Sheet steel, zinc-plated.
PU Part No. TS
48800.220

215Systems for the human/machine interface
Accessories
Base
Accessories
Foot rest
For relaxed, alternating working positions.
Material:
Connector pieces: Cast aluminum
Round tube section: Aluminum
Configuration:
Installation hardware
Color
RAL Weight
kg (lbs) Part No.
CP
7035 textured/
natural
anodized 0.6 (1.32) 6145.100
Trim panel
Facilitates variable positions when working
standing up.
Material:
Cast aluminum
Configuration:
Installation hardware for screw-fastening
between the cast feet front and rear.
Color
RAL Weight
kg (lbs) Part No.
CP
7035 textured 1.6 (3.53) 6144.100
Base mount
Brackets for screw-fastening from below to
the cast feet with posidrive raised
countersunk screws M12.
Optionally with projection at the front, rear
or sides, with 11 mm (0.43) diameter hole
for screw-fastening to the base.
Material:
Sheet steel, zinc plated.
Configuration:
Posidrive raised countersunk screws M12
Weight
kg (lbs) PU Part No.
CP
0.7 (1.54) 4 6147.000
Base assembly plate
For attaching the base/plinth to the floor
without moving the enclosure or
the bayed suite. For assembly screws up to
12 mm (0.47) Ø.
Material:
Sheet steel, zinc plated.
French patent no. 94 06 612
Dutch patent no. 193 235
PU Part No. SO
10 2817.000

216 Systems for the human/machine interface
Accessories
Base
Cable entry plates
for TS-PC
For simple, fast cable entry and sealing in
conjunction with:
●Cable entry grommets
●Connector grommets.
These are used instead of segments of the
standard, divided gland panels.
Material:
Type 304 stainless steel
Configuration:
Installation hardware
Note:
EMC gland panels and accessories, see
Handbook 30.
US patent no. 5,422,436
German patent no. 42 07 281
European patent no. 0560119
with validity for FR, GB, IT, NL
Japan. Patent no. 2533052
Enclosure
width
mm (inches)
Cutouts
per plate PU Part No.
TS
600 (23.62) 5 2 8700.600*
* For the cable entry plates in 1.4404
(Typ 316L), the order number should end
in .605.
Delivery times available on request.
Three examples from a wide range of possibilities
The diagrams show three TS examples for the positioning of cable
entry plates instead of segments of the three-piece gland panels
supplied as standard. This facilitates positioning to fit the mounting
panel.
Thanks to the enclosure symmetry, where dimensions permit, cable
entry plates may also be inserted in the enclosure depth, right and
left, parallel to the gland panels.
Cable entry grommets
In conjunction with the cable entry plate,
simple and fast sealing of cables inserted
in the base area of enclosures.
Material:
Body: Polypropylene
Cover: Thermoplastic elastomer
Protection ratings:
IP 55 to EN 60 529/10.91 US patent no. 5,422,436
German patent no. 42 07 281
European patent no. 0560119
with validity for FR, GB, IT, NL
Japan. Patent no. 2533052
Cables per
grommet max. Ø
mm (inches) Part No.
PS
8 13 (0.51) 4316.000
3 21 (0.83) 4317.000
1 47 (1.85) 4318.000
Packs of 25
Connector grommets
In conjunction with cable entry plates, for
the entry of cables pre-assembled with
connectors.
Suitable for cable diameters from 8 to
36 mm (0.31 to 1.42).
Material:
Outer cover: Polypropylene covered with
thermoplastic elastomer
Seal: Cellular rubber
German patent no. 44 05 328
PU Part No. PS
10 4311.000

217Systems for the human/machine interface
Accessories
Base
Accessories
Metal gland panel
For individual cable entry, e.g. with:
●CP pillar, see page 148,
●IW enclosures, see page 156 – 159.
Material:
Sheet steel, painted
Accessories:
Module panels for individual cable entry,
see Innovations 2003, page 11.
221
9.5
90
72
101 101
7
76
9
202
221
72
90
76
Ø 4.5
202
221
76
72
90
Ø 4.5
KL 1158.530
KL 1158.030
KL 1158.500
KL 1158.000
With cutout
for PU Part No. KL
RAL 7035 RAL 7032
Connectors,
solid 61158.500 1158.000
Connectors,
16-pole 61158.560 1158.060
Connectors,
24-pole 61158.540 1158.040
Module panels 6 1158.530 1158.030
Solid, with
prepunched
holes M20 1– 1581.100
Foam rubber cable clamp
strip
For simple, quick sealing of the cable entry
between the gland panels. Particularly
suitable for identical cable cross-sections.
Cross-section: 30 x 30 mm (1.8 x 1.8)
PU Part No. SZ
3 m (118.11)2573.000
SZ 1581.100

218 Systems for the human/machine interface
Accessories
Base
Plastic cable gland panels
for pillar and IW
With prepunched PG holes for cable
glands. Used for sealing standard gland
panels.
Temperature range: suitable for use from
–40°C to +70°C (–104°F to 158°F).
Material:
ABS
Color:
RAL 7032
PG
13.5
Ø 5
76
202
72
220
90
PG PG PG PG PG
PGPGPGPG
PG
13.5 13.5 13.5
13.513.513.5
21
21
16
16
KL 1581.000 KL 1582.000
PG Number
of PU Part No.
KL
13.5 12 5 1581.000
13.5
16
21
6
2
251582.000
Enclosure reinforcement
For external or internal reinforcement of
enclosures of a corresponding size.
Smaller enclosures may also be mounted
directly without reinforcement.
Configuration:
Installation hardware for the enclosure and
support section plus 2 seals.
For
Enclosure Support arm
connection Material Color
RAL Weight
kg (lbs) Part No.
CP
B1 ≥ 300 mm (11.81),
T1 ≥ 150 mm (5.91)CP-S Type 304
stainless
steel – 0.9 (1.98) 6143.310
B1 ≥ 300 mm (11.81),
T1 ≥ 150 mm (5.91)CP-L Sheet steel 7035 0.9 (1.98) 6143.210
CP 6662.000
or AE (B1 = 600 mm
(23.62),
T1 ≥ 210 mm (8.27))
CP-XL Sheet steel 7032 2.2 (4.85) 6503.000
Ø 40
Ø 9
Ø 6
Ø 49
Ø 62
9
295
260
110
145
295
260
110
145
34
9
9
40
69
82
7
45°
2
10
12.5
100
112
150
175
590
525
45°
7
CP-XL
CP 6143.310 CP 6143.210
CP 6503.000
B = Width / T = Depth
6143.310
6143.210
6503.000

219Systems for the human/machine interface
Accessories
Base
Accessories
Connection plate
With reinforcement plate
●For easy location of the Command Panel
onto the support arm or pedestal.
●Easily screw-fastened from the outside
after drilling 4 holes Ø 7 mm (28).
●More space for cable entry plus
clamping bracket.
For assembling:
●VIP 6000 1)
●Optipanel 2)
●Sheet steel Command Panel 3)
to:
Pre-install screws, locate the enclosure,
tighten the screws, and voila!
Note:
The square support arm cutout can be
prepared on request.
Material:
Connection plate: Cast aluminum
Reinforcement plate: Sheet steel 6 mm
(0.24)
Configuration:
Seals and installation hardware.
1) From a front panel width of 265 mm
(10.43).
The CP-XL version cannot be used in
conjunction with installation depth 155 mm
and 295 mm (6.10 and 11.61).
2) From a front panel width of 220 mm
(8.66) and installation depth of 150 mm
(5.91).
3) Mounting surface area, minimum
W x D = 300 mm x 135 mm (11.81 x 5.31)
(e.g. Command Panel housing with door).
Support arm
system
components CP-L CP-XL
Enclosure
attachment CP 6525.5X0 CP 6130.600
Housing
coupling CP 6525.0X0 CP 6130.000
Angle
coupling CP 6526.0X0 CP 6040.000
10° tilting
adaptor CP 6527.0X0 –
Tilting
adaptor
+/– 45° CP 6529.0X0 –
1
145
200
100.5
CP-L CP-XL
Ø 5.5/10 deep
145
200
100.5
Ø 5.5/10 deep
182.5
129
18
34
40
182.5
129
18
34
134
180
79
82
70
120
15.5
180
160
112
120
100
79
15.5
With
support
arm
connection
Color
RAL Weight
kg (lbs) Part No.
CP
CP-XL 7030 0.8 (1.76) 6528.300
CP-L 7030 0.7 (1.54) 6528.200
CP-L 7024 0.7 (1.54) 6528.210
Mounting cutout CP-L/CP-XL
* Ø 6 mm (0.24) only with metal
enclosures for attaching the
reinforcement plate.
Installation
depth: ABC
VIP 6000
155 mm (6.10)
to 185 mm
(7.28)32 81 30.5
295 mm
(11.61) to 438
mm (17.24")174.5 81 173
Optipanel 150 mm (5.91) 34 65.5 28
Metal
enclosure –**86**
**Make the drilled holes/cutout in the center of
the enclosure reinforcement plate.
Ø 7
*
D
146
A
165
180
C79
B
Alternative
Ø W
Outer edge of enclosure at the rear

220 Systems for the human/machine interface
Accessories
Cable management
Connector gland
For simple insertion of cables pre-
assembled with connectors. Simply insert
cables, and screw fasten! The high
protection category of IP 65 is retained.
Technical specifications:
●For mounting on any sufficiently large
surface, such as front panels.
●To fit 2 cables up to 8 mm (0.31)
diameter or 3 cables up to 6 mm (0.24)
diameter.
●For material thicknesses of up to 4 mm
(0.16), e.g. in front panels, sheet steel
panels.
●Strain relief of the pre-assembled cables
can be achieved with cable ties.
Material:
Plastic
Configuration:
Installation hardware
Rittal Service:
The cutouts may be made by our service
centers.
Ø 8
35
55
Ø 6
35
55
4
41.5
4
41.5
42
22
SZ 2400.300 SZ 2400.500
Mounting cutout
21.5
11 25
36 3
To fit Color
RAL PU Part No.
SZ
2 cables 9005 1 2400.300
3 cables 9005 5 2400.500
Cable ties
for quick assembly
The super-fast solution for fastening cables
to the enclosure profile or mounting system
parts. Simply clip into the round system
holes.
Note:
Metal cable ties,
see Handbook 30, page 893.
Length
mm
(inches) PU Part No. SZ
150 (5.91) 100 2597.000

221Systems for the human/machine interface
Accessories
Cable management
Accessories
Cable tie fastener
For secure cable routing of all standard
commercially available cable ties. The
fastener is used with:
VIP 6000
●Secured in the screw channel by
hammering down the split rivet.
Optipanel
●Secured in the T channel by rotating
through 45°.
Material:
Polyamide 6.6
For
Attach-
ment
width
mm
(inches)
PU Part No.
CP
VIP 6000 4.8
(0.19) 100 6059.000
Optipanel 4.0
(0.16) 100 6059.500
Cable clamping bracket
For installing in the operating housing with
mounting cutout CP-L, round CP-L, square
and CP-XL.
Cable clamping optionally via:
●Cable clamps
(see page 223)
or
●Cable ties for quick assembly
SZ 2597.000 (see page opposite).
●Commercially available cable ties.
Bracket height = 25 mm (0.98) with fitted
C rail 40 mm (1.57).
Material:
Sheet steel, zinc plated.
Configuration:
1 C rail and 2 self-tapping screws
M5 x 10 mm (0.39).
Note:
Mounting cutout CP-L, round,
see page 80.
Part No. CP
Cable clamping
bracket 6052.000
Cable entry module CP-L,
round
Use of the support arm cutout CP-L, round,
only with enclosures mounted on the wall,
for sealed cable entry. May also be
mounted retrospectively with the cables
already inserted.
Fitted with T-heads for cable clamping.
Particularly well-suited to cables with
identical cross-sections.
Material:
Sheet steel, zinc plated.
Configuration:
Installation hardware
Note:
Mounting cutout CP-L, round,
see page 80.
70
120
100 – 134
35
38.5
25
100
Ø 82
10 – 39
66
Weight
kg (lbs) PU Part No.
CP
0.3 (0.66) 1 set 6052.500

222 Systems for the human/machine interface
Accessories
Cable management
Cable gland IW
for worktops
To fit drilled holes 60 mm (2.36). For the
entry of cables with pre-assembled
connectors, the sliding flap and cover are
easily removed.
Material:
Plastic
Ø 54
22
25
Ø 60
71.5
Color
RAL PU Part No. IW
7035 1 6902.770
Cover plate
For secure sealing of a support arm
connection in the enclosure which is not
required.
Material:
Sheet steel
Configuration:
Seal and installation hardware.
Note:
If with
●VIP 6000
●Optipanel
●Compact Panel
Command Panels there are already
2 support arm cutouts provided, a cover
plate is included in the configuration of the
enclosure.
Support
arm con-
nection
Color
RAL Weight
kg (lbs) Part No.
CP
CP-S painted
7024 0.1
(0.22) 6505.200
CP-L,
round Zinc plated 0.2
(0.44) 6505.500
CP-L,
rectangu-
lar Zinc plated 0.1
(0.22) 6505.100
Adaptor plate
for connector entry
For mounting on the worktop, prepared for
turntable or enclosure attachment.
Material:
Sheet steel, zinc plated.
Configuration:
Seal and installation hardware.
Additional parts
Connector gland
SZ 2400.300 or SZ 2400.500,
see page 220.
PU Part No. IW
16902.660

223Systems for the human/machine interface
Accessories
Cable management
Accessories
Cable clamp rails
(right angle section)
For strain relief with cable entry. Depth-
variable mounting on a 25 mm (0.98)
increments on the horizontal enclosure
section or in side base/plinth trim panels
with assembly bolts, see page 210.
Material:
Sheet steel, zinc plated.
Configuration:
Installation hardware
For ES-PC/IW
AP universal console / base/plinth
(May also be used for AP base/plinths and
for mounting on the mounting panel with
AP)
Enclosure
width mm
(inches)
Length
mm
(inches) PU Part No.
PS
400
(15.75) 385
(15.16) 24193.000
600
(23.62) 585
(23.03) 24191.000
800
(31.50) 785
(30.91) 24192.000
1000
(39.37) 985
(38.78) 24336.000
1200
(47.24) 1185
(46.65) 24196.000
Cable conduit and
holder
For secure cable routing e.g. from the
enclosure or mounting panel to the door.
Option of attaching the cable conduit
holder tailored to system holes
TS/IW/ES and to 19 increments with no
drilling required.
Attachment facility for standard
commercially available cable ties is
provided on the cable conduit holder, so
that cables may be attached upon entry to/
exit from the cable conduit.
Material:
Cable conduit: Polythene
Cable conduit holder: Polyamide
Cable conduit
Cable conduit holder
Cable conduit holder:
US patent no. 4,779,828
German patent no. 37 60 110
European patent no. 0 257 367
with validity for DE, ES, FR, GB, IT
Ø mm
(inches) PU Part No. SZ
16 (0.63) 25 m (98.43)2595.000
29 (1.14) 25 m (98.43)2589.000
36 (1.42) 25 m (98.43)2596.000
48 (1.89) 25 m (98.43)2590.000
For cable conduit
Ø mm (inches) PU Part No. SZ
16 (0.63) 20 2593.000
29 (1.14) 20 2591.000
36 (1.42) 20 2594.000
48 (1.89) 20 2592.000
Cable clamps
For attaching cables to C rails, with plastic
insert.
Material:
Sheet steel, zinc plated.
For cable
diameter PU Part No.
DK
6–14 mm (0.24
–0.55
)
25 7077.000
12–18 mm (0.47
–0.71
)
25 7078.000
18–22 mm (0.71
–0.87
)
25 7097.000
22–26 mm (0.87
–1.02
)
25 7097.220
26–30 mm (1.02
–1.18
)
25 7097.260
30–34 mm (1.18
–1.34
)
25 7097.300
34–38 mm (1.34
–1.50
)
25 7097.340
38–42 mm (1.50
–1.62
)
25 7098.000
56–64 mm (2.20
–2.52
)
25 7099.000

224 Systems for the human/machine interface
Accessories
IW monitor housing
Spacer plate
for monitor housing
Creates distance between the enclosure
and worktop to prevent damage to the
mouse and keyboard.
Material:
Chipboard, plastic-laminated on both
sides, similar to RAL 7035, with tough
plastic edging, similar to RAL 7015.
Note:
If a wider gap is required, 2 spacer plates
may also be screw-fastened on top of one
another.
●Other sizes
●Other drilled holes
available upon request.
Accessories:
Turntable,
see right-hand page.
400
400
278
350
60
6
25
W x D
mm (inches) Height
mm (inches) Part No.
IW
400 x 400
(15.75 x 15.75) 25 (0.98) 6902.630
Support plate
for screen
Rotatable in conjunction with turntable
IW 6902.620.
Material:
Chipboard, plastic-laminated on both
sides, similar to RAL 7035, with tough
plastic edging, similar to RAL 7015.
Note:
●Other sizes
●With drilled holes
available upon request.
Accessories:
Turntable,
see right-hand page.
400
400
Ø 278
6
25
W x D
mm (inches) Height
mm (inches) Part No.
IW
400 x 400
(15.75 x 15.75) 25 (0.98) 6902.650

225Systems for the human/machine interface
Accessories
IW monitor housing
Accessories
Rotational stop
Compression spring for automatic latching
of turntable IW 6902.620.
PU Part No. IW
16902.680
Feet
for monitor housing
Thread length 29 mm (1.14).
Max. static load per foot:
300 kg (661.38 lbs)
Thread P. of Part No. IW
M8 4 6902.610
Turntable
for spacer plate IW 6902.630 and support
plate IW 6902.650.
Diameter: 328 mm (12.91)
Height: 14 mm (0.55)
Load capacity: 300 kg (661.38 lbs)
Rotation range:
350°, may be limited by 3 end stops.
Material:
Cast aluminum
Configuration:
Turntable including installation hardware.
262
328
Ø 276
Ø 315
Ø 6.5
M6
Ø 11.4
2.5
14
For flat-headed screw M6
Color PU Part No. IW
Black, powder-
coated 16902.620
Released via the knob handle mounted on
the side of the monitor housing.

226 Systems for the human/machine interface
Accessories
Wall/enclosure connectors
Enclosure connectors
adjustable
For attaching compact operating housings,
terminal boxes, compact enclosures etc. to
vertical or horizontal surfaces or to other
enclosures.
The two halves of the connector are pre-
mounted on both enclosures or surfaces,
pushed into one another, and attached or
secured using the locking screw.
The locking screws in both connectors may
be exchanged for standard commercially
available clamping levers (M10 x 50 mm).
Rotation range:
±105° with 7.5° stepped increments.
Material:
Die-cast zinc, powder-coated
Configuration:
Installation hardware for both sides.
Additional parts
Cross-brace for door,
see page 227.
Enclosure connectors
Frame connector
Color
RAL Weight
kg (lbs) PU Part No.
CP
7035 1.9 (4.19) 1 set 6016.200
Color
RAL Weight
kg (lbs) PU Part No.
CP
7035 2 (4.41) 1 set 6016.100
Frame connector
adjustable
For screw-fastening from the rotation point
between Command Panel VIP 6000 with
wide front frame to vertical or horizontal
surfaces or other enclosures.
The two halves of the connector are pre-
mounted on both enclosures or surfaces,
pushed into one another, and attached or
secured using the locking screw.
105°
105°
54 54
54
54
105°
105°
Enclosure connectors Frame connector
Enclosure duct connector
To fit narrow and combined frames in con-
junction with the keyboard housing 105 mm
(4.13) deep.
●The angle between the operating and
keyboard housing is 120°.
●At the same time, the duct connector is
used for cable routing from the operating
housing to the keyboard housing.
Material:
Aluminum
Configuration:
Installation hardware
Technical details, see page 39.
Note:
When retro-fitting, appropriate mounting
holes and cutouts must be made in the
operating and keyboard housings for
assembly purposes.
Additional parts
Cross-brace for door,
see page 227.
Color
RAL Weight
kg (lbs) PU Part No.
CP
7035 2.0 (4.41) 1 set 6006.000

227Systems for the human/machine interface
Accessories
Wall/enclosure connectors
Accessories
Cross-brace for door
To stabilize heavy equipment installed on
and in the door.
With punchings for enclosure duct
connector, enclosure/frame connector,
adjustable,
see page 226 and
enclosure surface connector,
see page 228.
Material:
Sheet steel, zinc plated, passivated.
Configuration:
Installation hardware for screw-fastening to
the tubular door frame (TS/ES).
Application example:
Keyboard housing with duct connector
mounted on the rear panel.
For
door width Weight
kg (lbs) Part No.
TS
600 mm
(23.62") 1.0 (2.20) 8800.960
800 mm
(31.50") 1.5 (3.31) 8800.980
Cable tube, flexible
Suitable for cable routing from the
operating housing to the keyboard housing.
Suitable for use with
●Frame connector, adjustable
●Hinged frame connector
●Frame connector, rigid
●Enclosure bar connector
May be mounted on the following keyboard
housings:
●Keyboard housing: 105 mm (4.13)
●Keyboard housing: 44 mm (1.73)
●Keyboard housing: 27 mm (1.06)
with connection for flexible cable conduit
(version 4.1, see page 28).
Corresponding cutouts are required for
connecting the cable tube in the operating
and keyboard housing.
A cable tube is included in the
configuration to selection 4.5, see page 31.
Configuration:
Installation hardware
Keyboard
housing
VIP 6000
(page 23)
Color
RAL Weight
kg (lbs) Part No.
CP
CP 6351.009,
version 3.1,
, 7035 0.3
(0.66) 6017.000
, 7035 0.3
(0.66) 6017.100
2 4
3 7
Wall mounting bracket
vertically hinged
For direct mounting of the Compact Panel
on surfaces. Optional horizontal or vertical
mounting of enclosures.
Rotation range:
180° adjustable in 7.2° increments.
Material:
Wall mounting bracket: Sheet steel
Knurled screw: Steel with plastic knurled
handle
Configuration:
Knurled screw and installation hardware for
mounting on the Compact Panel.
PU Part No. CP
1 set 6341.000

228 Systems for the human/machine interface
Accessories
Wall/enclosure connectors
Enclosure surface connector
with smooth outer surface, uninterrupted by
screw attachments. Mounting see spring
nuts from the inside.
To accommodate:
●Support for keyboards (SM 2383.000)
●Optipanel keyboard housing for front
panel width = 19
(Part No. CP 6384.009)
H x W = H x 482.6 mm (19)*
Installation depth optionally 50 or
100 mm*.
* Specify in addition to the Part No.
Material:
Extruded aluminum section, natural
anodized,
Side cover, sheet steel RAL 7024.
Configuration:
Installation hardware
Note:
Other widths available on request.
Accessories:
Cross-brace for door, see page 227
(required for reinforcement on surfaces).
PU Part No. SM
1 set 2383.010
90°
6°
30°
45°
79
56
73.5
83
67
45°
8
40
15
30°
10°
Mounting on
surfaces Mounting underneath
surfaces
Connector for compact
enclosures
Between
●Compact enclosure AE
from depth 210 mm (8.27)
(see HB 30, page 66)
●Operating housings from depth 210 mm
(8.27)
(see page 68/69)
and
●Terminal boxes KL
from depth 80 mm (3.15)
(see HB 30, page 48)
●E-Box EB
from depth 80 mm (3.15)
(see HB 30, page 56)
Material:
Sheet steel
Modifications available on request.
Terminal box, E-Box and compact
enclosure available on request with front
panel and handle strips mounted on the
rear panel.
Configuration:
Installation hardware.
Note:
Installation holes will be required for
retrofitting.
15
2.5
M6
120°
10
30
30
23.5
23.5
(210)
135
50
(80)
e. g. AE
e. g. KL/EB
190 min.
A
(B – 2 x A)
A
B
min.
55
e. g. KL/EB
Drilling pattern for attaching the
connector to both enclosures
Color
RAL Weight
kg (lbs) Part No.
CP
7024 0.74 (1.63) 6005.100
Handle strips min. dimension A
mm (inches)
Without 15 (0.59)
With 35 (1.38)
e. g. AE

229Systems for the human/machine interface
Accessories
Wall/enclosure connectors
Accessories
Utility shelf CP
screw fastened
With support mat for:
Measuring tools, writing equipment,
mouse, scanner, small parts etc.
For mounting
●Underneath*:
−VIP 6000
−Optipanel
−Command Panel housing with door
−Operating housing
−IW worktop
●On surfaces (doors, rear panels) using
rear assembly holes
●to TS system chassis with mounting
flange 17 x 73 mm (0.67 x 2.87),
locatable, without screw fastening,
−For servicing work on the enclosure.
* For visual reasons, not drilled for
assembly.
Material:
Sheet steel
Configuration:
Installation hardware
Note:
When mounting beneath slimline operating
housings with support arm connection at
the bottom, please observe the enclosure
attachment or coupling.
M6
21.5
185
150
20
35
52.5
150/375
B
1
= Additional central thread only for CP 6514.100
1
Width
mm (inches) Color
RAL Part No.
CP
220 (8.66) 7035 6514.110
450 (17.72) 6514.100
Wall mounting bracket
For fast, secure wall mounting using the
rear holes in the enclosure.
40 mm (1.57) distance from the wall
permits cable routing behind the enclosure
to the gland panel.
Note:
With stainless steel enclosures, additional
holes are required in the rear of the
enclosure for reasons of hygiene.
20
20
29
15
54
15
Ø 10.2
A
Material
Wall
distance
Dimension
A
PU Part No.
SZ
Brass,
nickel-plated 40 mm
(1.57)12503.000
Sheet steel,
zinc plated 10 mm
(0.39)12508.000
Type 304
stainless
steel
(V2A)
10 mm
(0.39)42433.000

230 Systems for the human/machine interface
Accessories
Wall/enclosure connectors
Pole clamp
For reliable, convenient fastening to round
or square poles.
For pole diameter/size:
Ø from 40 to 190 mm (1.57 to 7.48)
□ from 50 to 150 mm (1.97 to 5.91)
Material:
Cross rails, clamping section:
Sheet steel, zinc-plated, passivated
Clamping strap: Type 304 stainless steel
(V2A)
German patent no. 36 10 152
Configuration:
2 cross rails, 600 mm (23.62) long
4 clamping sections,
2 clamping straps
4 clamping brackets,
4 screws and nuts M8
for mounting on the enclosure.
Part No. SZ
Pole clamp 2584.000
Wall bracket
For wall attachment of PC enclosures e.g.
with heavy pull-out equipment on the roof
side.
Material:
Sheet steel, zinc plated.
PU Part No. PS
44595.000
Aluminum strip for AP
Prevents wiring plans etc. from slipping. For console Length
mm
(inches) PU Part No.
AP
AP 2611.200
AP 2613.200
AP 2668.600
783
(30.83) 32678.000
AP 2641.200
AP 2643.200
AP 2672.600
1183
(46.57) 32682.000
AP 2666.600 583
(22.95) 32676.000

231Systems for the human/machine interface
Accessories
front design
Accessories
Desk section
Solid sides and front, removable plates for
top and bottom. May optionally be
attached with the inclined or straight edge
on top, by rotating through 180°.
Configuration:
Installation hardware for mounting on the
universal console. Protection ratings:
IP 55 to EN 60 529/10.91,
Complies with UL and NEMA Type 12.
78.5°
i. L. 274.5
360
i. L. 271.5
36.5 122
20
195
58
Material Finish Part No. AP
Sheet steel RAL 7032*/
5018 2696.200
* To order in textured RAL 7035, please use
the Part No. extension .500 when ordering.
Delivery times available on request.
Keyboard drawer
For a maximum keyboard width of 500 mm
(19.69).
Drawer with mousepad at the front.
A high level of protection is retained, even
with the flap open.
Configuration:
Installation hardware for mounting on the
universal console*.
* Only suitable for installation in the
universal console without mounting panel.
Protection ratings:
IP 55 to EN 60 529/10.91,
Complies with UL and NEMA Type 12. Accessories:
Plastic handle, version B and lock insert,
version A, see page 245/246.
195
600
467
508
170
36
477
70 113
358
Material Finish Part No.
Sheet steel RAL 70321) MC 4757.000
Type 304
stainless
steel2) Brushed AP 2691.000
1) To order in textured RAL 7035, please use
the Part No. extension .500 when ordering.
Delivery times available on request.
2) To order keyboard drawer in 1.4404
(Type 316L) please add extension .500 to the
Part No.
Delivery times available on request.
Solid sides and front, removable plates for
top and bottom. May optionally be
attached with the inclined or straight edge
on top, by rotating through 180°.
Configuration:
Installation hardware for mounting on the
universal console AP 2688.600.
Protection ratings:
IP 55 to EN 60 529/10.91,
Complies with UL and NEMA Type 12.
592
i. L. 432
i. L. 532
195
20
58
78.5°
i. L. 274.5
i. L. 271.5
36.5 122
350
i.L. = Clearance width
Material Finish Part No. AP
Type 304
stainless
steel* Brushed 2690.000
* To order desk section in 1.4404 (Type 316L)
please add extension .500 to the Part No.
Delivery times available on request.
592
i. L. 432
i. L. 532

232 Systems for the human/machine interface
Accessories
Front design
Aluminum front panels
For assembling operator panels.
Material:
3 mm (0.12) aluminum, natural anodized.
Note:
When using several front panels in the
operating housing
●VIP 6000
●Optipanel
cross members should be provided for
sub-division, see page 234.
Rittal Service:
Other sizes and designs with studs,
cutouts and engraving available on
request.
Additional parts
Mounting kit CP 6053.000,
see page 233.
Part No.
CP ABCD
6019.000 177.0
(6.97) 168.2
(6.62) ––
6027.000 155.0
(6.1) 146.2
(5.76) ––
6028.000 310.3
(12.22) 301.5
(11.87) 155.2
(6.11) –
6029.000 493.8
(19.44) 485.0
(19.09) 326.2
(12.84) 167.5
(6.59)
t = 3
8.8
D
C
B
A
8.8
163.8
318.8
473.8
482.6
5.5
Height Width Part No.
CP
155.0 mm
(3.5 U) 196027.000
177.0 mm
(4 U) 196019.000
310.3 mm
(7 U) 196028.000
493.8 mm*
(7 + 3.5 U) 196029.000
* The front panel height corresponds to
CP 6027.000 plus CP 6028.000 and
one cross member (+ 28 mm (1.10)) for
VIP 6000.
Front panels
for Optipanel
270 x 234 mm (10.63 x 9.22) with
threaded bolt M5 for Optipanel
CP 6380.100.
Material:
3 mm aluminum, natural anodized.
Configuration:
Mounting kit
Part No.
CP ABCD
6027.510 231.0
(9.09) 195.0
(7.68) 19.5
(0.77) 19.5
(0.77)
6027.520 197.5
(7.78) 141.5
(5.57) 36.25
(1.43) 46.25
(1.82)
6027.500
60
234
11
270
12
M5
3
B
A
D
11
C
Mounting cutout PU Part No.
CP
Without 1 6027.500
For Siemens
Simatic OP 17 16027.510
For Siemens
Simatic TP 170 A/B 16027.520
Acc. to
specifications 16027.509

233Systems for the human/machine interface
Accessories
Front design
Accessories
Front panels, hinged
For VIP 6000 and Optipanel
Opening angle:
Optipanel: 125°
VIP 6000: 95°
Material:
Front panel: 3 mm aluminum, natural
anodized
Extruded aluminum section: Natural ano-
dised
Configuration:
Hinge section, hinge strip, 2 end trims and
installation hardware.
Mounting position
VIP 6000
5
H
H – 33
B
D
33
B – 28
1
2
3
3
6
3
B – 28
33
1
2
3
Mounting position
Optipanel
= hinge strip
= hinge section
= retaining claw
B = Width
1
2
3
Front panel for H x B Version Part No. CP
Optipanel 19 x 7 U
Screw-fastened from the outside 6027.100
Screw-fastened from the inside 6027.1101)
With cam 6027.1201)
VIP 6000 19 x 7 U
Screw-fastened from the outside 6027.2002)
Screw-fastened from the inside 6027.2101) 2)
With cam 6027.2201) 2)
1)Extended delivery times.
For other sizes, please add the extension .009 to the Part No.
2)When ordering, please specify the color of the required end trim (see page 25)
Mounting kit
For installing
●Aluminum front panels
●Command panels
●Keyboards
in the Command Panel
●VIP 6000
●Optipanel
operating and keyboard housing.
For holes
Configuration:
Packs of 30 retaining clamps, captive nuts,
screws and sealing washers.
For bolts
Configuration:
Packs of 10 retaining clamps and cap
screws.
For screw clamp
Configuration:
Pack of 2 mounting straps, 4 retaining
clamps and screws.
For holes For bolts
For screw clamp
For front panels Thread Part No. CP
Other M 4 6058.000
Rittal
and others M 5 6053.000
Thread Part No. CP
M 4 6058.500
M 5 6053.500
For enclosure Part No. CP
VIP 6000 and
Optipanel 6053.200
Required distance from edge “D”
to avoid collisions
Installation depth: Dimension “D”
Optipanel 50 mm (1.97) 25 mm (0.98)
Optipanel 100 mm (3.94) 34 mm (1.34)
Optipanel 150 mm (5.91) 48 mm (1.89)
VIP 6000 44 mm (1.73) 25 mm (0.98)
VIP 6000 105 mm (4.13) 36 mm (1.42)
VIP 6000 155 mm (6.10) 52 mm (2.04)

234 Systems for the human/machine interface
Accessories
Front design
Sealing bar
For horizontal and/or vertical division of
operating housings. The “slot-free” division
produces a height gain of 28 mm (1.10)
(VIP 6000) or 22 mm (0.87) (Optipanel)
respectively.
Material:
Aluminum section 8 x 20 mm (0.79)
Configuration:
Installation hardware
Note:
Sealing bar may not be used in conjunction
with spacer trim.
For VIP 6000 and Optipanel
Technical details,
see page 34 or 55.
For front panel width Part No. CP
196015.500
As specified1) 6015.509
1) Please specify width of front panel.
Cross member
For horizontal and/or vertical division of the
Command Panel front. With mounting
channel on both sides to accommodate
mounting kits, see page 233.
Configuration:
2 retaining claws,
2 screws with washers,
2 trim sections2).
Material:
Extruded aluminum section
Technical details,
see page 34.
For
front panel
width
Part No. CP
For
VIP 6000
Part No. CP
For
Optipanel
196015.0002) 6386.000
To
specifica-
tions1) 6015.0092) 6386.009
1)Please specify width/height of front panel.
2)Trim type and trim color, see page 25.
Please state on the order.
Spacer panel and built-in trim
panel
For additional space with cable entry and
for installing
●Switches/indicator lamps
●Emergency-off switches/keyswitches
●CD-ROM / disk drives
●Interfaces
etc.
For mounting (horizontally or vertically) on
the enclosure, snap into position and
screw-fasten from behind.
Other spacer panels and built-in trim
panels, front panels and operator panels
may be installed without an additional
cross member.
Material:
Extruded aluminum section, natural
anodized.
Configuration:
Installation hardware and end trim
(VIP 6000), spacer trim (Optipanel).
For VIP 6000
For Optipanel
VIP 6000 Optipanel
4.5
3.5
9.8
67.5
79.5
12.2
59.5
97
103
80
3.5
15
➀
482.6
4.8
10
3
482.6
4.5
90
57
10.5
12.2
65
72.5
3.5
3.5
4.5
10
96
➀
Other spacer panels and built-in trim panels, front panel or operator panel
For front panel width Part No. CP
196015.300
As specified1) 6015.309
Height corresponding to a front panel
height of 103 mm (4.06).
1) Please specify width of front panel.
Trim color see page 25.
Please state on the order.
For front panel width Part No. CP
196386.300
As specified 6386.309
Height corresponding to a front panel
height of 96 mm (3.78).

235Systems for the human/machine interface
Accessories
Handles
Accessories
Handle set
For vertical and horizontal mounting on all
surfaces.
Overall length: 420 mm (16.54).
Material:
Handle tube: Aluminum, natural anodized.
Conduit holder: Die-cast zinc, RAL 7035 Accessories:
Clipboard,
Ring board,
see page 239.
PU Part No. SZ
4 conduit holders,
2 handle tubes 2389.000
Conduit holder
For mounting on surfaces, horizontal or
vertical, also suitable for height-adjustable
and/or swivel mounting of enclosures.
For 25 mm (0.98) dia. sections made from
●Steel, seamless DIN 2448
●Aluminum to DIN 1795
as a handle or for limiting support surfaces.
Consisting of:
Assembly tray with one drilled hole and
M8 screw and two pins as anti-twist guard.
Clamping tray with tolerance
compensation and screw for tightening the
conduits.
Washer, small, prevents tensioning of
the conduits e.g. should it become
necessary to remove the fitted ring board.
Washer, large, secures the
unconstrained, rotating conduit between
the two trays to prevent it from falling out.
Material:
Die-cast zinc
2
4
3
1
Color
RAL PU Part No. SZ
7035 2 2389.100

236 Systems for the human/machine interface
Accessories
Handles
Handle set VIP 6000
for wide frame
For mounting on the corner connectors of
the enclosure frame.
Material:
Handle tube: Extruded aluminum section,
natural anodized
Handle holder: Die-cast zinc,
powder coated in RAL 7035
For horizontal mounting
on
●Operating housing
●Keyboard housing
Configuration:
Packs of 2 handle holders, 1 handle tube,
2 screws.
For vertical, side mounting
on
●Operating housing
●Keyboard housing
Configuration:
Packs of 4 handle holders, 2 handle tubes,
4 screws.
Accessories:
Clipboard,
Ring board,
see page 239.
Note:
Shorter heights and widths can be
achieved by cutting the handle tube to
length.
With
front panel width PU Part No.
CP
191 set 6101.000
As specified 1 set 6101.0092)
With
front panel height PU Part No.
CP
7 U 1 set 6102.000
7 + 3.5 U1) 1 set 6103.000
As specified 1 set 6102.0092)
1) Divided by cross member for VIP 6000
2) Please additionally state when ordering:
●Number and dimensions of front panels
●Number of cross members/sealing bars
or
●Part Number of your enclosure.

237Systems for the human/machine interface
Accessories
Handles
Accessories
Handle set for Optipanel
For external mounting on corner pieces,
also suitable for retro-fitting.
For horizontal mounting
For vertical mounting
Note:
Shorter heights and widths can be
achieved by cutting the handle tube to
length.
For enclosures with 100 mm (3.94) depth,
cannot be mounted on the same side as
the
●Support arm connection
●Interface door
(SZ 2482.200, see page 240)
Accessories:
Clipboard,
Ring board,
see page 239.
Material Color
RAL
Configuration*
horizontal vertical
Handle tube,
Ø 25 mm
(0.98),
aluminum
Natural
ano-
dized 12
Handle
holder,
die-cast zinc,
powder-
coated
7035 2 4
Cover
polyamide 7024 2 4
* Including screws
Ø 25
25
49
64
With
front panel width PU Part No.
CP
482.6 mm (19)1 set6385.010
As specified 1 set 6385.0192)
With
front panel height PU Part No.
CP
7 U 1 set 6385.020
7 U + 2 x 3.5 U1) 1 set 6385.030
As specified 1 set 6385.0292)
1) Divided by 2 cross members
for Optipanel
2) Please additionally state when ordering:
– Number/dimensions of front panel
– Number of cross members/sealing bars
– Part Number of enclosure.

238 Systems for the human/machine interface
Accessories
Handles
For horizontal or vertical attachment to the
enclosure panel of:
●VIP 6000 with combined or
narrow front frame,
●Optipanel or
●Other enclosures.
Mounting holes and surfaces without fins
are required for assembly purposes. For
the VIP 6000 version with fins, corres-
ponding milling work may be carried out.
With the operating/keyboard housing,
please specify “Prepared for handle set
CP 6107.XXX”.
Note:
Also suitable for mounting on all surfaces.
Material Color
RAL
Handle holder,
die-cast zinc 7035
Cover plugs,
plastic similar to
7035
Handle tube,
aluminum,
powder coated
similar to
9006
Corner handle
Configuration:
4 handle holders, 2 handle tubes,
installation hardware.
Mounting on enclosure corner Mounting on straight surfaces
(90° rotation of handle holder)
25
Ø 6.5
(85)
45°
163
131.5
131.5
92
Ø 6.5
153
25
217
45°
163
132
PU Part No. CP
1 set 6107.000
U handle
Configuration:
2 handle holders, 1 handle tube,
installation hardware.
Accessories:
For CP 6107.200:
Clipboard,
Ring board,
see page 239.
CP 6107.100
Mounting on straight surfaces
(for front panel size 7 U)
CP 6107.200
Mounting on straight surfaces
(for front panel size 19)
Ø 6.5
92
293
230
(75)
Ø 25
45°
Ø 6.5
45°
92
458
395
(240)
Ø 25
25
25
For front panel
dimensions PU Part No.
CP
≥ 7 U 1 set 6107.100
191 set 6107.200

239Systems for the human/machine interface
Accessories
Handles
Accessories
Ring board
The alternative for attaching paper or
plastic covers in A4 format, in either
landscape or portrait format.
Board folded over on three sides and
punched for mounting the installation
hardware on the handle tube (length
≥200 mm (4.72), Ø 25 mm (0.98)).
Suitable for mounting on all four sides of
the panel with handle set.
Suitable for mounting on the U handle,
see page 238.
Material:
Sheet steel
Ring strip, 16 mm (0.63): Sheet steel,
plated
Additional parts
Handle set,
see page 236/237.
Size
mm (inches) Color
RAL Part No. CP
225 (8.86) x
315 (12.4)7035 6013.500
Handle frame
for operating housing
Consisting of:
●Square aluminum tube
●Plastic corner bracket
●End caps
●Installation hardware
25
19
30
H2
H1
B2
B1
For
operating
housing with
display panel
front
Part No. CP
RAL 8019 RAL 7030
CP 6442.200
CP 6462.200 6191.000 6194.000
CP 6552.200 6192.000 6195.000
CP 6662.200 6190.000 6193.000
Dimensions of handle set in mm (inches) CP 6191.000
CP 6194.000 CP 6192.000
CP 6195.000 CP 6190.000
CP 6193.000
B1 = Width of operating housing 380 (14.96) 500 (19.69) 600 (23.62)
B2 = Width of horizontal square pipe
(B1 + 48 (1.89)) 428 (16.85) 548 (21.57) 648 (25.51)
H1 = Height of vertical square pipe 345 (13.58) 465 (18.31) 299 (11.77)
H2 = Hole distance between the attachment
holes 295 (11.61) 415 (16.34) 249 ( 9.80)
Clipboard
For securing operating instructions or plans
(A4 size) at eye level. Prepared for
mounting on the right-hand side; mounting
on the left is also possible by unscrewing
and moving the clip part.
For mounting purposes, a straight tube
length of ≥ 200 mm (4.72), 25 mm (0.98)
dia. is required.
Suitable for mounting on the U handle,
see page 238.
Material:
Sheet steel
Clip part: Aluminum, natural anodized.
Additional parts
Handle set,
see page 236/237.
Clipboard in conjunction with Command
Panel VIP 6000:
German utility model no. 295 11 459
European patent no. 0 839 093 with
validity for DE, FR, GB, IT
Height Width Color
RAL Part No.
CP
315 mm
(12.40)225 mm
(8.56)7035 6013.000
B = Width

240 Systems for the human/machine interface
Accessories
Interface door
Interface door
The compact alternative to the interface
box.
For secure accommodation of all standard
sockets, computer ports, 3 1/2 or CD-ROM
drives.
The cast aluminum door ensures a high
mechanical load-bearing capacity, and
guards against unauthorized access.
For:
●Optipanel from D = 100 mm (3.94)
●Any sufficiently large surface.
●Use of all TS lock inserts
(see HB 30, page 937).
Standard double-bit lock insert may be
exchanged for lock inserts
(see HB 30, page 937).
Material:
Door: Cast aluminum, finely textured
Cover plate: Sheet steel 2 mm (14 ga)
zinc-plated
Configuration:
Seal and installation hardware double-bit
lock.
Protection ratings:
IP 65 to EN 60 529/10.91
Rittal Service:
Cutouts are possible in the cover plate and
enclosure.
Available without cover plate on request.
Note:
For side mounting in 100 mm (3.94) deep
Optipanels, a handle set (CP 6385.0XX,
see page 237) may be mounted, although
not in the same place.
22.5
15
11
70
6
66
66
189
66
View without door View with door
81
218
Surface for interface cutouts
max. 146
max.
54
Color
RAL Weight
kg (lbs) Part No.
SZ
7035 0.6 (1.32) 2482.200
Interface box
For secure accommodation for all common
computer ports, 3 1/2 disk drives and
sockets. The lockable metal cover provides
a high mechanical load-bearing capacity,
protects against unauthorized access and
ensures an increased shielding effect for
the installed equipment.
Modifications such as
●Other sizes
●Acrylic covers
●Cutouts for connectors etc.
are possible.
Material:
Frame: Extruded aluminum section,
powder coated
Mounting tray: Sheet steel, 1.5 mm (16 ga),
painted
Door: Aluminum, 3.0 mm (11 ga), natural
anodized
Configuration:
Frame with hinged door, Cam with security
lock (No. 12321).
Mounting tray including seal and
installation hardware.
Rittal Service:
Upon request, the interface box can be
supplied pre-installed in the operating
housing. If required, please specify the
desired installation position.
9.5
22
85
26
18.5
18
for
SZ 2482.100
Mounting example in the VIP 6000:
173
132
42
95
138
50
15
13.5
46
41
54
167
151.5
82.4
M2.5/Ø 3
105
Mounting cutout
for
SZ 2482.100
max. R3
Grounding-
pin socket Color
RAL Weight
kg (lbs) Part No.
SZ
Without 7035 0.8
(1.76) 2482.000
With 7035 0.8
(1.76) 2482.100

241Systems for the human/machine interface
Accessories
Window
Accessories
Viewing window
The perfect solution for display and control
elements in all areas where stringent
hygiene standards are required.
Fitted as standard with internal 130° hinges
and all-round seal. The double-bit lock
insert may be exchanged for 27 mm (1.06)
lock inserts, version A and Ergoform-S
handle SZ 2452.000.
Material:
Type 304 stainless steel
Single-pane safety glass
Protection ratings:
IP 54 to EN 60 529/10.91
Configuration:
With cam lock, including installation
hardware.
Rittal Service:
Other widths and heights available on
request.
Accessories:
27 mm (1.06) lock inserts,
version A,
see page 246.
Ergoform-S handle SZ 2452.000,
see page 245.
25
38
31
B
B1
600
543
525
475
37.5
285
25.5
Height
mm
(inches)
Width
mm
(inches)
Depth
mm
(inches)
B1
mm
(inches)
Part No.
FT
600
(23.62) 522
(20.55) 38
(1.5) 408
(16.06) 2793.560
600
(23.62) 722
(28.43) 38
(1.5) 608
(23.94) 2793.760
Hinge 180°
for PC enclosure stainless steel/AP
universal console
For retrospective conversion of standard
doors with 130° hinges.
Configuration:
Installation hardware
Material PU Part No. PS
Type 304
stainless steel 64156.000
Aluminum 6 4189.000

242 Systems for the human/machine interface
Accessories
Window
1
2
3
4
5
8
Mounting type Installation depth behind
system window in
mm (inches)
System window, 30 section System window, 60 section
On surface 33 (1.30)
Via cutout –
Via cutout with display panel 30 (1.18)
Via cutout with spacer frame and
display panel 60 (2.36)
On surface 63 (2.48)
Via cutout –
Via cutout with display panel 60 (2.36)
Via cutout with spacer frame and
display panel 90 (3.54)
1
2
3
4
5
6
7
8
To fit TS/ES/IW
with width
(mm (inches))
Window size (mm (inches)) Part No. FT
30 section Part No. FT
60 section Part No. FT
Spacer frame Part No. FT
Display panel
external internal
HBhb
600 (23.62) 270 (10.63) 500 (19.69) 200 (7.87) 430 (16.93) 2735.100 2736.100 2737.100 2738.100
370 (14.57) 300 (11.81) 2735.110 2736.110 2737.110 2738.110
470 (18.50) 400 (15.75) 2735.120 2736.120 2737.120 2738.120
570 (22.44) 500 (19.69) 2735.130 2736.130 2737.130 2738.130
670 (26.38) 600 (23.62) 2735.140 2736.140 2737.140 2738.140
Other sizes** 2735.009* 2736.009* 2737.009* 2738.009*
Lock systems
Standard double-bit lock insert may be exchanged for 27 mm (1,06) lock inserts, type A, see page 246
and Ergoform-S lock system (except H = 270 mm (10.63)), see page 245.
** Please also specify the external dimensions of the viewing window. *Delivery times available on request
Mounting options:
Viewing area (B –137) offset by 16.5 mm
(0.65) to the hinge side.
B
85 52B – 137
H
h – 2
h
b
47 77
B – 52
H – 52
33
30
636090
6
7
Example 1: System window (30 profile) to fit door width 500 mm (19.69)
with Height H = 480 mm (18.90) x Width W = 400 mm (15.75) (h x w = 410 mm (16.14) x 330 mm (12.99) )
Part No. FT 2735.009/H x W = 480 x 400 mm (18.90 x 15.75).
Example 2: Spacer frame for system window in example 1
Part No. FT 2737.009/to fit window H x W = 480 x 400 mm (18.90 x 15.75).
Example 3: Display panel for system window from example 1 or spacer frame from example 2
Part No. FT 2738.009/to fit window H x W = 480 x 400 mm (18.90 x 15.75).
60

243Systems for the human/machine interface
Accessories
Window
Accessories
123 5 6748
The new generation,
the system window,
consists of the
following
components:
1. Base frame:
●Easily screw-fastened to the
door using modified
dimensions (tubular door
frame may be used as a
drilling template).
●Readily height-adjustable.
●Stabilizes the door cutout.
●Conceals the cut edge.
●The canopy
−prevents dirt from falling on
the seal,
−protects the glass from
being lifted out,
−prevents the intrusion of
dirt and moisture when
opening the window.
2. Viewing window:
●Made from single-pane
safety glass:
−High level of resistance to
solvents and scratches,
−Anti-static,
−Reduced risk of injury if
broken.
●Integral cam lock with
double-bit insert, easily
exchanged for all standard
lock inserts and semi-
cylinders in the Ergoform-S
lock system.
●Hinge with 180° opening
angle, easily inserted.
3. Spacer frame:
●As an alternative to the
deeper system window. Why
not make use of the space
inside the door?
4. Display panel:
●For screw-fastening to the
base or spacer frame, with
mounting slots. Pre-
assemble the screws at the
bottom of the frame, locate
the plate, and tighten the
screws.
●Easily machined for:
−Holes and cutouts,
−Labels,
−Engraving,
Pre-wiring on the workbench.
Material:
System windows:
Extruded aluminum sections
with die-cast zinc corner
pieces and single-pane safety
glass.
Spacer frame:
Extruded aluminum sections
Display panel:
3 mm (0.12) aluminum, natural
anodized
Finish:
Base frame and spacer frame:
Powder-coated in RAL 7030
Hinge and lock
section: Anodized in E6 C-32
(bronze colored)
Other colors available on
request.
Protection ratings:
IP 54 to EN 60 529/10.91
Accessories:
Ergoform-S lock system,
Part No. see page 245.
System representation
System windows: Shown
here mounted on the TS 8
enclosure.

244 Systems for the human/machine interface
Accessories
Lock systems
Comfort handle
for semi-cylinder
Prepared for the installation of
commercially available semi-cylinders,
40 or 45 mm (1.57 or 1.77) total length, to
DIN 18 254, and lock and push-button
inserts.
see below.
Length: 302 mm (11.89)Additional parts
Handle adaptor for mounting on viewing
door/designer door TS-PC/IW, see below.
Note:
Other versions,
see HB 30.
Color
RAL Part No. TS
7032 8611.060
7035 8611.070
8019 8611.270
Comfort handle
With security lock insert E1.
Only for use with VW/Audi. Supplied
without key.
Length: 295 mm (11.61)
Other VW locks available on request. Additional parts
Handle adaptor for mounting on a viewing
door/designer door TS-PC/IW, see below.
Color
RAL Part No. TS
7032 8611.040
Handle adaptor for designer
door TS-PC/IW
To compensate for the design chamfer
between the vertical bar and comfort
handle.
Material:
Plastic
Color
RAL Part No. PC
7035 8611.300
Lock and push-button inserts
For installation in
●Comfort handle for semi-cylinders,
see above,
●Ergoform-S standard, see page 245.
Design Part No. SZ
Security lock insert
no. 3524 E 2467.000*
Push-button insert 2468.000
Lock and push-
button insert,
lock no. 2123; no
other lock is possible.
2469.000*
* with 2 keys

245Systems for the human/machine interface
Accessories
Lock systems
Accessories
Ergoform standard
Prepared for the installation of semi-
cylinders with a total length of 40/45 mm
(1.57/1.77) (to DIN 18 254) and all 27 mm
(1.06) lock inserts, type A, see page 246.
Material:
Die-cast zinc, powder-coated.
Design Part No. SZ
RAL 7032
With brown handle 2450.000
Brown 2451.000
Matt nickel-plated 2452.000
RAL 7032 2454.000
RAL 7035 2435.000
RAL 7032*
With brown handle
and bracket 2455.000
* Hole diameter = 7 mm (0.28) for padlock
or multiple lock.
Ergoform special
With lock insert E1
(Volkswagen/Audi).
Only for use with VW/Audi. Supplied
without key.
Other VW locks available on request.
Material:
Die-cast zinc, powder-coated.
Design Part No. SZ
RAL 7032
With brown handle 2456.000
Plastic handles
with cylinder insert.
Lock no. 3524 E including installation
hardware, seal and 2 keys.
Note:
The universal lock systems allows the
installation of a suitable handle to suit
almost any application or customer
specification. The relevant product
ordering page shows which handles can
be fitted into each particular assembly.
Version B Color
RAL Part No. SZ
9011 2576.000
7030 2439.000
Version B,
but without cylinder insert. Color
RAL Part No. SZ
9011 2533.000
Version C Color
RAL Part No. SZ
9011 2485.000

246 Systems for the human/machine interface
Accessories
Lock systems
T handles
Material:
Die-cast zinc, chrome-plated.
Configuration:
Seal and 2 keys.
Version B Version Part No. SZ
With cylinder insert
Lock no. 3524 E 2575.000
Without cylinder insert 2572.000
Version C Version Part No. SZ
With cylinder insert
Lock no. 3524 E 2535.000
Without cylinder insert 2536.000
Lock inserts
Note:
The universal lock systems allows the
installation of a suitable handle to suit
almost any application or customer
specification. The relevant product
ordering page shows which handles can
be fitted into each particular assembly.
Version A
Material:
Die-cast zinc
Length 27 mm (1.06)Part No. SZ
7 mm (0.28) square 2460.000
8 mm (0.31) square 2461.000
7 mm (0.28) triangular 2462.000
8 mm (0.31) triangular 2463.000
Screwdriver 2464.000
Daimler insert 2465.000
3 mm (0.12) double-bit 2466.000
Fiat 2307.000
6.5 mm (0.26)
triangular (CNOMO) 2460.650
Version C
Material:
Die-cast zinc
Length 41 mm (1.61)Part No. SZ
7 mm (0.28) square 2523.000
8 mm (0.31) square 2526.000
7 mm (0.28) triangular 2527.000
8 mm (0.31) triangular 2528.000
Daimler insert 2522.000
3 mm (0.12) double-bit 2483.000
Version D
Material:
Die-cast zinc
Length 47 mm (1.85)Part No. SZ
7 mm (0.28) square 2557.000
8 mm (0.31) square 2558.000
7 mm (0.28) triangular 2555.000
8 mm (0.31) triangular 2556.000
Daimler insert 2554.000
3 mm (0.12) double-bit 2484.000

247Systems for the human/machine interface
Accessories
Lock systems
Accessories
Version B
Lock no. 3524 E
with 2 keys.
PU Part No. SZ
12571.000
Version C
Lock no. 3524 E
with 2 keys.
PU Part No. SZ
12525.000
Cylinder inserts
Material:
Die-cast zinc
Semi-cylinder lock
For sheet steel Command Panels and
Command Panels with display panel front
or VIP 6000 frame.
For retro-fitting to all single-door enclosures
with cam lock. The cover plate is locked by
semi-cylinders with a total length of 40/
45 mm (1.57/1.77) (to DIN 18 254). An
additional cover protects the cylinder
against dirt. The protection category of the
enclosure is not impaired.
Supplied without semi-cylinder.
Material:
Die-cast zinc
US patent no. 5,916,282
German patent no. 195 12 280
European patent no. 0778 913
with validity for GB, FR, IT
Jap. patent no. 3,088,465
4991.5
55
90
55 28.5
27.5
70
90
For AE Part No. CP
Powder coated in
textured RAL 7032 2534.000
Nickel-plated (matt) 2534.500

248 Systems for the human/machine interface
Accessories
Lock systems
Lock cover
For padlocks or multiple locks.
For retrofitting on all sheet steel Command
Panels and Command Panels with display
panel front or VIP frame and with cam lock.
Material:
Die-cast zinc, chrome-plated.
PU Part No. SZ
12493.000
Lock cover
Prepared for a lead seal, suitable for use
with all enclosure types with Rittal-specific
locks, such as sheet steel Command
Panels, Command Panels with display
panel front or VIP 6000 frame.
Material:
Polyamide
German registered design
No. M 92 07 062
Color
RAL PU Part No. SZ
7032 2 2476.000
Multiple lock
Prevents unauthorized opening of the
enclosure and accidental activation of the
system.
The multiple lock is the ideal solution in
cases where individual access for several
persons is required for maintenance and
repair purposes.
The multiple lock provides space for
6 padlocks.
Material:
Sheet steel, zinc-plated.
PU Part No. SZ
22493.500

249Systems for the human/machine interface
Accessories
Lock systems
Accessories
Enclosure keys
For lock inserts (one double-bit key is
supplied with every enclosure).
Key Part No. SZ
Double-bit key no. 5 2531.000
Security key no. 3524 E 2532.000
7 mm (0.28) triangular
key 2545.000
8 mm (0.31) triangular
key 2546.000
7 mm (0.28) square key 2547.000
8 mm (0.31) square key 2548.000
Daimler key 2521.000
Fiat Key 2308.000
Universal enclosure key
Double-bit, 8 mm (0.31) square, 8 mm
(0.31) triangular (also for 7 mm (0.28)
inserts), with integral screwdriver.
Part No. SZ
Universal
enclosure key 2549.000
Door stop for VIP 6000,
hinged
To secure the open panel.
●For mounting at the bottom.
●The installation height is only reduced by
10 mm (0.39).
●Opening angle adjustable up to approx.
120°.
Material:
Sheet steel, zinc plated.
Configuration:
Installation hardware.
Part No. CP
Door stop 6045.000

250 Systems for the human/machine interface
Accessories
Stay
Door stop
To secure the door in the open position at
angles of.
●90°
●110°
●130°
For PU Part No.
PS/SZ
TS/PC 5 4583.000
AP pedestals
(not illustrated) 52518.000
Lifting roller for TS/PC
Lifts the door with heavy installed
equipment (e.g. air conditioner) as a
closing aid. For attaching to the tubular
door frame.
PU Part No. PS
10 4538.000
Wiring plan pockets
of sheet steel for PC/IW
For fastening to tubular door frames at any
height.
Color:
Similar to RAL 7044
To fit door
width
mm (inches)
Clearance opening in
mm (inches) Part No.
PS
HWD
600 (23.62") 260
(10.24) 455
(17.91) 90
(3.54)
4116.000
Wiring plan pockets
made of plastic
For affixing to the inside surfaces of doors.
Material:
Polystyrene with self-adhesive fastening
strips.
Color:
Similar to RAL 7044
For format
Clearance opening in
mm (inches) Part No.
SZ
HWD
A3
landscape 287
(11.30) 438
(17.24) 45
(1.77) 2513.000
A4 portrait 256
(10.08) 228
(8.98) 17
(0.69) 2514.000
A5
landscape 176
(6.93) 228
(8.98) 17
(0.69) 2515.000

251Systems for the human/machine interface
Accessories
Roof/interior installation
Accessories
Roof plates TS
with cutout
For mounting:
●TopTherm roof-mounted cooling unit
●TopTherm roof-mounted fan
●TS vent attachment
The cutouts in the roof plate are arranged
in such a way that the TopTherm roof-
mounted cooling units are positioned
centrally on the enclosure.
Material:
Sheet steel
Configuration:
Installation hardware
Color:
RAL 7035
Accessories:
Top-hat rails with integral increments of
holes, to accommodate:
●Cable ties for quick assembly,
see page 220
●Enclosure lights,
see page 268
TopTherm roofmount air conditioners,
see Climate Control Systems brochure,
from page 46.
TopTherm roofmount fans, see Climate
Control Systems brochure, page 154.
TS vent attachment, see Climate Control
Systems brochure, page 178.
13
B1
B2
==
T1
T2
T3
For enclosures
W x D
mm (inches)
To fit the
mounting of
TopTherm
Part No.
TS
600 x 600
(23.62 x 23.62)
3382.XXX 8801.300
3383.XXX
3384.XXX
3385.XXX 8801.310
For mounting
TopTherm B1 B2 T1 T2 T3 Part No. TS
3382.XXX 567.5
(22.34) 475
(18.70) 567.5
(22.34) 260
(10.24) 129 (5.08) 8801.300
3383.XXX
3384.XXX
3385.XXX
567.5
(22.34) 490
(19.27) 567.5
(22.34) 390
(15.35) 61 (2.40) 8801.310
Partial mounting panel TS
for enclosure width 600 mm (23.62)
For installation in:
●PC enclosure system based on TS
(see page 172 – 175), behind the lower
front door
●IW enclosures (see page 158 – 161),
height 900 and 1000 mm (35.43 and
39.37)
●600 mm (23.62) wide/deep TS
enclosures
(see Handbook 30, from page 104).
Material:
Sheet steel, zinc-plated.
Configuration:
Installation hardware
Note:
For other partial mounting panels,
see Handbook 30, page 968/969.
H x W Part No. TS
775 x 500 mm
(30.51 x 19.69) 8614.675

252 Systems for the human/machine interface
Accessories
Interior installation
Hinge attachment
for partial mounting panel TS
(see page 251)
in 600 and 800 mm (23.62 and 31.50)
wide enclosures.
Material:
Sheet steel, zinc plated.
Configuration:
2 hinges, including installation hardware.
Additional parts
Installation kit for swing frames, small
see HB 30.
Accessories:
Depending on the installation position
PS system chassis without mounting
flange 23 x 73 mm (0.90 x 2.87)
according to the enclosure depth,
see HB 30, page 977.
Support brackets TS 8800.330,
see HB 30, page 979.
1
1
1
1
2
2
2
2
1
1
1
1
1
1
PU Part No. TS
1 set 8614.100
For enclosure width
mm (inches) Part No. SR
600 (23.62) 2377.860
Side installation of a partial mounting panel
is identical to installation parallel to the
front.
Examples
In the highest or lowest position.
Side installation
At the front Set back
In a central position
Set backAt the front

253Systems for the human/machine interface
Accessories
Interior installation
Accessories
Retaining rail TS
locatable
Suitable for:
●Installation behind a PC enclosure,
mounting compartment, small
●Mounting on the vertical section.
Integral 25 mm (0.98) increments of holes
To accommodate:
– Mounting panel
– System chassis without mounting
flange
via support brackets TS
As a second mounting level with installed:
– Mounting panel infill
– Cable duct
Static load: max. 15 kg (33.07 lbs)
Material:
Sheet steel, 2.0 mm (14 ga),
zinc-plated.
Configuration:
Installation hardware
Note:
For more rails, see Handbook 30.
Accessories:
PS system chassis without mounting flange
see Handbook 30, page 977.
TS support bracket,
see Handbook 30, page 979.
50 32
Ø 7
114
Ø 4.5
75
2
(6 x 25 = 150)
204
50
16
14
37.5
PU Part No. TS
1 set 8612.200
Mounting panel
For external mounting on:
●Retaining rail TS, locatable, depth-
adjustable in 25 mm (0.98) increments,
●System chassiss with mounting flanges,
attached to the outer mounting level.
Material:
Sheet steel, 1.5 mm (16 ga),
zinc-plated.
Configuration:
Installation hardware
Accessories:
TS system chassis with mounting flange,
see Handbook 30, page 974.
Ø 6
Ø 4.5
1.5
114
50
58
30
250
250
557 (757)
Enclosure width
mm (inches) PU Part No.
TS
600 (23.62) 1 8612.600
800 (31.50) 1 8612.800

254 Systems for the human/machine interface
Accessories
Interior installation
Mounting bracket/
mounting panel
For universal interior installation.
The following accessory components may
be mounted with the mounting bracket for
front panel width 19:
VIP 6000 and Optipanel*
●C rail PS 4943.000
●Mounting panel KL 1565.700 /
KL 1569.700
●Threaded block TS 8800.340 /
TS 8800.350
VIP 6000
●Support strip PS 4596.000
●System bar PS 4171.000
●System chassis without mounting flange
PS 4376.000
●System chassis with mounting flange
PS 4370.000
●Mounting panel TS 8612.410
Material:
Sheet steel, zinc-plated.
Configuration:
4 mounting brackets or mounting panels,
12 self-tapping screws M5 x 10 mm
(0.39
)
.
Accessories:
Screws for securing to the screw channels
of the VIP 6000 Command Panel,
Part No. SZ 2504.000 (M5 x 10 mm (0.39
)),
PU = 500,
see page 255.
t = 1.5
10.5
40
12.5
6 (5 x)
12.5
110
25
100
50
60
4.6 6
100
110
53
25
12.5
6 (3 x)
25
40
12.5
16.5
12.5
4.6
6
10.5
16.5
18
1.5
28
Mounting panel Mounting bracket
Part No. PS
Mounting bracket 4597.000
Mounting panel 4532.000
* from installation depth 100 mm (3.94)
(see Version 2.1, page 47)
in conjunction with spring nut
CP 6108.000 (page 255).
Mounting panels
Sheet steel, zinc plated.
Locatable
on the vertical TS enclosure section or
TS system chassis with mounting flange,
17 x 73 mm (0.67 x 2.87), on the inner
and outer mounting level.
Configuration:
4 mounting panels,
8 screws BZ 5.5 x 13 mm (0.51).
Ø 6.5
Ø 4.6
12.5
12.5
100 = 8 x 12.5
100 = 8 x 12.5
125
10
60
110
120
Ø 7
5.6
t = 2
Ø 6.5
Ø 4.6
100 = 8 x 12.5
118
12.5
100 = 8 x 12.5
118
5.6
5.6
12.5
t = 2
PU Part No. TS
48612.400
Screw-fastened, large
on all enclosures and mounting parts with
system holes in 25 mm (0.98) increments.
Configuration:
4 mounting panels,
8 screws BZ 5.5 x 13 mm (0.51).
PU Part No. TS
48612.410

255Systems for the human/machine interface
Accessories
Interior installation
Accessories
Torx screws
M6 x 12 to fit:
●U nuts for system chassis (PS 4179.000)
●Captive nuts (PS 4164.000)
●Threaded blocks (PS 4162.000)
Torx drive for optimum transmission of
torques, an extended tool life and
increased safety and reliability when
tightening and loosening screw
connections.
Torx screws
For the round holes 4.5 mm (0.18)
diameter in the enclosure section,
systembars and system chassis without
mounting flanges.
Self-tapping screws
For the round holes 4.5 mm (0.18)
diameter in the enclosure section, system
bars and system chassis without mounting
flanges.
Spring nut M5
For inserting into the channels of the
Optipanel with installation depth 100 and
150 mm (3.94 and 5.90) for VIP 6000,
from an installation depth of 185 mm.
Easily positioned, the spring ensures
reliable protection against unintentional
displacement. Other interior installation,
e.g. with mounting bracket PS 4597.000
(see page 254).
Material:
Sheet steel, zinc plated.
PU Part No. CP
50 6108.000
Self-tapping screws
Mark, drill and tighten in a single operation
using electric or pneumatic tools.
For metal thickness: 0.8 – 3 mm
(22 ga – 11 ga)
Length: 16 mm (0.63)
Usable length: 9.5 mm (0.37)
Width across flats: 8 mm (0.31)
Type of screw Dimensions PU Part No. SZ
Torx screws M6 x 12 mm (0.47) 300 2504.500
Torx screws BZ 5.5 x 13 mm (0.51) 300 2486.500
Torx screws for stainless steel BZ 5.5 x 13 mm (0.51) 300 2486.300
Self-tapping screws:
●Hex screws M5 x 10 mm (0.39) 500 2504.000
●Pan head screws, posidrive M5 x 12 mm (0.47) 500 2489.000
●Self-tapping screws ST 4.8 x 16 mm (0.63) 300 2487.000
Support rails TS 35
to EN 50 022
For more detailed information, please refer
to Handbook 30.
C rails
For more detailed information, please refer
to Handbook 30.

256 Systems for the human/machine interface
Accessories
Interior installation
Universal bracket
For installing
●Enclosure lighting
●Door operated switch without/with
connection cable (SZ 2586.000 /
PS 4315.300)
●Cable conduit holders SZ 2593.000 and
SZ 2591.000
●Support rails for terminals in Command
Panels and Command Panel housings
with door
Mounting screws are concealed when the
door is closed. Existing holes for system
mounting blocks or hinges in AE may be
used.
Material:
Sheet steel, zinc plated.
Configuration:
Installation hardware for the accessories
listed.
Ø 4.2
28
8
45
PU Part No. SZ
62373.000
System mounting block
for AE
As an accessory for additional interior
installation, e.g. mounting of cable ties, PS
system bars, top hat rails and C rails (e.g.
for a second pair of mounting angles).
Configuration:
Installation hardware for the applications
listed.
US patent no. 5,211,499
German patent no. 38 12 939
European patent no. 0338 342
with validity for AT, BE, DE, FR, GB, IT,
NL, SE
PU Part No. SZ
20 2574.000
Component shelf, fixed
installation
Corresponding to the enclosure depth, for
direct mounting in the vertical system
holes.
Simply locate into 4 pre-fitted screws and
secure.
Load capacity:
50 kg (110.23 lbs)
Material:
1.5 mm (16 ga) sheet steel
For ES, PC, color RAL 7035
For TS, color RAL 7015
Accessories:
Fan expansion kit DK 7980.000,
see Handbook 30, page 959.
For ES, PC
For TS
For depth*
mm (inches) Part No. PC
620 (24.41) 4619.660
For depth*
mm (inches) Part No. PC
600 (23.62) 8800.900
800 (31.50) 8800.910
* for enclosures without mounting panel.

257Systems for the human/machine interface
Accessories
Component shelves
Accessories
Component shelf, Pull-out
For direct attachment on the enclosure
frame. Additional system bars are not
required.
Material:
Sheet steel
Load capacity:
40 kg (88.18 lbs)
Configuration:
2 telescopic slides (supplied loose). Additional parts
When installing more than one extendible
component shelf/drawer tray, the drawer
extension lock is required for work safety to
DIN EN 349, see page 258.
For depth
mm (inches) Color
RAL Part No.
IW
600 (23.62) 7015 6902.9601)
800 (31.50 7015 6902.980
1) May also be mounted in 800 mm (31.50)
deep enclosures based on TS
(rear attachment Pull-out).
Drawer tray
Pull-out
Individual sub-division is possible using
cross members.
Tray height: 83 mm (3.27)
Material:
Sheet steel
Load capacity:
40 kg (88.18 lbs)
Configuration:
2 telescopic slides (supplied loose).
Note:
Suitable for installation in all enclosures
without mounting panel, with
W x D 600 x 600/800 mm (23.62 x 23.62/
31.50) based on TS (rear attachment of
telescopic slides extendible).
Accessories:
Cross members, see below.
Additional parts
When installing more than one extendible
component shelf/drawer tray, the drawer
extension lock is required for work safety
reasons to DIN EN 349, see page 258.
Note:
When sub-dividing the drawer tray, one
cross member is always needed for the
entire width (IW 6902.710).
For depth
mm (inches) Color
RAL Part No.
IW
600 (23.62) 7035 6902.700
IW 6902.710
Cross members
for drawer tray
For individual sub-division of the drawer
tray.
Material:
Aluminum, 3 mm (0.12)
Configuration:
Plastic holder Note:
When sub-dividing the drawer tray, one
cross member is always needed for the
entire width (IW 6902.710), see drawing of
drawer tray.
For
sub-division
in
Color
RAL PU Part No.
IW
the full width 7035 4 6902.710
half the width 7035 6 6902.720

258 Systems for the human/machine interface
Accessories
Component shelves
Drawer extension lock
for 600 mm (23.62) wide enclosures
based on TS 8
To increase work safety.
In conjunction with the catch(see below),
prevents simultaneous extension of up to
5 IW drawers or IW component shelves
and thereby ensures stability.
Material:
Sheet steel, zinc-plated.
Configuration:
PS system chassis with mounting flange
23 x 73 mm (0.90 x 2.87) (to match the
enclosure height) and installation
hardware.
Note:
When installing more than one extendible
component shelf/drawer tray, the drawer
extension lock is required for work safety
reasons.
1 PS system bars with mounting flange
23 x 73 mm (0.90 x 2.87) (to match the
enclosure height) is required for mounting
in taller enclosures.
Additional parts
Catch for:
●Drawers
●Component shelves (see page 257).
For enclosure
height
mm (inches) PU Part No. IW
900 (35.46) 1 set 6902.730
1000 (39.37) 1 set 6902.740
Telescopic slides
For location into the vertical frame section.
Additional system chassis are not required.
Fully extendible.
Material:
Sheet steel, zinc-plated.
Load capacity:
40 kg (88.18 lbs) per pair.
Configuration:
Installation hardware
Note:
In all enclosures, without mounting panel,
with W x D 600 x 600/800 mm
(23.62x 23.62/31.50) based on TS (rear
attachment of telescopic slides extendible).
PU Part No. IW
1 pair 6902.800
Catch
for drawer extension lock
For IW PU Part No. IW
Drawers 5 6902.750
Component
shelves 56902.760

259Systems for the human/machine interface
Accessories
Keyboard drawer
Accessories
Keyboard drawer 19/2 U
For installation in:
●VIP 6000 Command Panel*
(all installation depths to ,
see page 23).
●Optipanel Command Panel* (installation
depth = 150 mm (5.91),
see page 47).
●Any sufficiently large surface.
(e.g. door, side panel).
●19 systems.
Suitable for
●Accommodation of keyboards up
to a maximum of (H x W x D)
32 x 390 x 139 mm
(1.32 x 15.35 x 5.47).
●Support of standard commercially
available mouse or trackball.
Technical specifications:
●Drawer:
– with stop
– in the open position, a high level of
mechanical protection and shielding
effect is preserved
●Front panel
– With security lock (lock no. 12321)
– With handle strip
– With seal.
Material:
Drawer housing:
Sheet steel, zinc plated
Drawer and front panel:
Aluminum, natural anodized
Configuration:
Installation hardware for installation in
VIP 6000/Optipanel Command Panel.
* Note:
For sub-division of the operating front:
●With VIP 6000, a cross member
(recommended) or sealing bar is
required
(see page 24, version 3.2).
At the same time, the end trim (see page
25, version 3.4 ) must be selected.
●With Optipanel, a cross member
(see page 48, version 2.2 ) is required.
139
90
79
441
390
76.2
482.6
88
31
465
4.5
60
284 106
Ø 4.5/M4
465
77
450
76.2 75
2
139
148.5
46
Mounting cutout
(for installation in surfaces)
1 9
3
Width Height
U
Depth
mm
(inches)
Part No.
CP
192 150
(5.91) 6002.000
2
1
Bracket, locatable for shelves
Simply locate into the vertical TS section.
May be additionally secured with screws.
Support surface for shelves: 200 mm
(7.87).
Material:
Sheet steel
PU Color
RAL Part No. IW
3 sets 7035 6902.690

260 Systems for the human/machine interface
Accessories
Keyboard drawer
Keyboard drawer with
mousepad support
For installation in:
●VIP 6000 Command Panel* (installation
depth , or , see page 23, 3.1)
●Any sufficiently large surface.
(e.g. door, side panel).
Suitable for accommodating
●Keyboards up to a maximum of
(H x W x D) 42 x 460 x 170 mm
(1.65 x 18.11 x 6.69).
●IP 67 mouse and mousepad
(see page 266).
●Standard mouse and mousepad
Technical design:
●Drawer and enclosure:
– With side pull-out mousepad
support and tray
– Even with the drawer open, a
high level of mechanical protection and
shielding effect is preserved
●Front panel
– Lockable, with 3 mm (0.12) double-bit
lock, may be exchanged for
lock inserts 27 mm (1.06),
version A, see page 246,
cylinder insert
(SZ 2571.000) with lock
no. 3524 E and
E1 lock for VW/Audi,
– Folds out as a wrist support
–With seal.
Material:
Keyboard and drawer: Sheet steel
Front panel: Aluminum, natural anodized.
Configuration:
Installation hardware for installation in
VIP 6000 Command Panel.
* Note:
For sub-division of the operating front a
cross member (see page 24, version 3.2) is
required. At the same time, the end trim
(see page 25, version 3.4 ) must be
selected.
Accessories:
Mouse, mousepad IP67,
see page 266.
15
45
469
(129)
80
260
206
482.6 (19˝)
270
260
472
202
45
155 (3.5 HE)
482.6 (19˝)
155 (3.5 HE)
467
141
475
133
Ø 5.5/M5
Installation in the VIP 6000
Mounting cutout
for installation in surfaces
Cross member
View without front trim panel
Front trim panel
End trim
4 6 8
Width Height
U
Depth
mm
(inches)
Color
RAL Part No.
CP
193.5 261
(10.28) 7035 6003.000
2

261Systems for the human/machine interface
Accessories
Keyboard drawer
Accessories
Support for keyboards
for max. W x D 473 x 210 mm (18.62 x
8.27).
With cutout on both sides for:
●Flexible cable tube (CP 6017.100)
●Mounting holes for mousepad support,
vertically hinged (SM 2383.020)
with nylon loop tape for attaching the
keyboard.
For external mounting on:
Enclosure surface connector
(SM 2383.010)
Material:
Side parts: Sheet steel
Front and rear:
Extruded aluminum section
Configuration:
2 clamping screws, end caps and nylon
loop tape.
Note:
Other widths available on request.
The support can also be ordered fully
mounted on the Optipanel (see page
46 – 51) or VIP 6000 (see page 22 – 31) via
the design code number.
Accessories:
Enclosure surface connector,
see page 262.
Mousepad support, vertically hinged,
see page 262.
87
31.5
71
68
33
31.5
473
477
45
43
19
290
210
123
473.5
= prepared for mousepad support SM 2383.0201
1
Color
RAL PU Part No.
SM
Side parts 7024
1 set 2383.000
Extruded
aluminum
section
Natural
anodized

262 Systems for the human/machine interface
Accessories
Keyboard drawer
Enclosure surface connector
with smooth outer surface, uninterrupted by
screw attachments. Mounting using spring
nuts from the inside.
To accommodate:
●Support for keyboards (SM 2383.000)
●Optipanel keyboard housing for front
panel width = 19
(Part No. CP 6384.009)
H x W = H* x 19
Installation depth optionally 50 or
100 mm (1.97 or 3.94)*.
* Specify in addition to the Part No.
Material:
Extruded aluminum section, natural
anodized
Side cover: Sheet steel
Configuration:
Installation hardware
Note:
Other widths available on request.
Accessories:
Cross-brace for door,
see page 227.
90°
6°
30°
45°
79
56
73.5
83
67
45°
8
40
15
30°
10°
Mounting on
surfaces Mounting underneath
surfaces
Color
RAL PU Part No.
SM
Surface
connector
Natural
ano-
dized 1 set 2383.010
Side covers 7024
Mousepad support
vertically hinged
For mounting on the left/right, beneath
support for keyboards. Latches home
automatically, both when retracted and
extended.
With mounting holes for:
●Mousepad IP 67 (SM 6444.X00)
●Mouse holder (SM 2382.000) to
accommodate the IP 67, NEMA 6
mouse.
With cutouts for cable routing and holes for
attachment via cable ties, for fast assembly
(SZ 2597.000).
Material:
Sheet steel, zinc plated
Configuration:
Installation hardware
Accessories:
Mouse/mousepad IP 67,
see page 266.
Mouse holder,
see page 266.
Cable ties for quick assembly,
see page 220.
312
44
20
23
211
30
PU Part No. SM
12383.020

263Systems for the human/machine interface
Accessories
Keyboards
Accessories
Keyboard, pull-out
with integral trackball
Super-slimline keyboard with cursor keys
and trackball. Due to the compact
dimensions of the drawer housing, it is
suitable for installation in all VIP 6000 and
Optipanel Command Panels from an
installation depth of 150 mm (5.91).
For installation in:
●Command Panels VIP 6000
(see page 23) and
Optipanel (see page 47)
from an installation depth of 150 mm
(5.91)1)
●19 systems
●Any sufficiently large surface.
(e.g. door, side panel).
Technical specifications:
●Keyboard:
H/W/D: 20 x 370 x 138.5 mm
(0.79 x 14.57 x 5.45)
84 short-stroke keys, IBM-AT compatible
(MF2), including cursor keys
With integral 16 mm (0.63) trackball
German layout 2)
Interface:
2 x 6-pole PS/2
DIN connector
Input voltage: 5 V ± 10%
Input current: 18 mA (5 V DC)
Power consumption: max. 0.1 W
Operating temperature: +5°C to +50°C
(+41F to +122°F)
Storage temperature: –10°C to +60°C
(-14°F to +140°F)
Humidity: max. 95%
(no condensation)
●Drawer extension piece:
Front panel, aluminum, 5 mm (0.20),
with handle strip. Film similar to
RAL 7035
Handle strip
Seal
with stop (snap-fastening)
of sheet steel, zinc plated
●Drawer housing:
H/W/D: 44 x 422 x 150 mm
(1.73 x 16.61 x 5.91)
of sheet steel, zinc plated
in the open state, a high level of
mechanical protection and shielding
effect is preserved
Cable outlet on the underside
in the right-hand part
●Front panel:
H/W: 88 mm (2 U) x 19
made from aluminum, 5 mm (0.20),
with film similar to RAL 7035
With cutout for keyboard extension
Protection ratings:
IP 65 to EN 60 529/10.91
1) For sub-division of the operating front, a
cross member is required for:
●VIP 6000 (see page 24, version 3.2).
At the same time, the end trim (see page
25, version 3.4) must be selected.
●Optipanel (see page 48, version 2.2).
2) Other country versions available on
request.
Note:
Lockable version available on request.
Height Width Depth PU Part No.
CP
88 mm
(2 U) 19150 mm
(5.91") 16002.100

264 Systems for the human/machine interface
Accessories
Keyboards
Desktop keyboard NEMA 12
Particularly well-suited to all areas with
dusty or damp industrial atmospheres and
places where hygiene is particularly
crucial, such as in the food industry or
medical technology.
●Sealed, wipeable surface finish.
●High level of mechanical and chemical
resistance to DIN 42 115.
●Lenticular key caps and minimal typing
force for optimum finger guidance and
fast operation.
This makes it ideally suited for workstations
where it is necessary to input large
quantities of data.
Technical specifications:
H/W/D 220 x 410 x 25 mm
(8.66 x 16.14 x 0.98)
105 keys
Actuation travel/force: 0.4 mm/2 N
(0.02/17.7 lbf)
Service life: ≥ 1 million switching cycles
Operating temperature: –20°C to +70°C
(–4°F to +158°F)
German layout
Note:
Other country versions and USB
connection available on request.
Configuration:
Connection cable with PS/2 connector
(1.8 m (71)).
Part No. SM
Desktop keyboard 6446.000
Stainless steel keyboard
19/4 U
based on the piezo system
With this innovative technology, merely
tapping lightly with your finger is sufficent
to initiate switching. There are no edges,
cracks or hollows, as with conventional
keyboards. This makes it particularly
suitable for use in the food industry.
For installation in:
●Console systems AP,
see page 196 – 199
●PC enclosure systems,
see page 180
●CP Premium Panel,
see page 60.
Technical specifications:
Dimensions of front panel
H/W/D 177 x 19 x 3.7 mm
(6.97 x 19 x 0.15)
Installation depth 25 mm (0.98)
For installation in desk sections,
AP console systems, PC enclosure systems
Mounting version wtih threaded bolts at the
rear 105 keys
Actuation travel/force: 0 mm/0.7 N (6.2 lbf)
Service life: ≥ 10 million switching cycles
Keypad: Abrasion-resistant electrolyte
lettering
Operating temperature: –25°C to +75°C
(–13°F to +167°F)
PS/2 and USB connection
German layout
Protection ratings:
IP 67 to EN 60 529/10.91
Note:
Other country versions available on
request.
Material:
Type 304 stainless steel
Type 316L (on request).
Configuration:
Connection cable (1.8 m (71)) with
PS/2 connector and hex nuts.
464.6
5
159
479.6
170
232.3
174
105 7
Seal Holes for fastening bolts
Front panel cutout
Part No. SM
Stainless steel
keyboard 6446.010

265Systems for the human/machine interface
Accessories
TFT monitor
Accessories
TFT monitor
Installation in flat for surfaces and
Command Panels.
Particular benefits:
●Suitable for industrial use
●Reduced installation work due to integral
front frame
●No additional ventilation required with
horizontal or vertical installation.
The resistive touchscreen is ideally suited
for operation with a pen, finger or glove.
Technical specifications:
Resolution max.:
15: 1024 x 768 pixels,
VGA + XGA non-interlaced
17: 1280 x 1024 pixels,
VGA + SXGA non-interlaced
Colors: 16.7 million
Brightness: 250 cd/m2
Reading angle: 130° horizontal,
110° vertical
Contrast ratio: 300 : 1
MTBF backlight: 50000 h
Voltage: 12 V DC
On Screen Display (OSD) at rear
VGA input: 15 pin D-Sub
Operating temperature: 0°C to +50°C
(32°F to 122°F)
Protection ratings:
IP 65 to EN 60 529/10.91, front
Front frame:
Size:
15: H/W 343 x 430 mm (13.50 x 16.93)
17: H/W 354.8 x 482.6 mm (13.97 x 19)
Aluminum, powder coated in RAL 7035
Threaded bolts M5 at rear
(15 = 12/17 = 14)
Note:
Monitor fully fitted in the enclosure
e. g. Optipanel, see from page 46,
available on request.
Configuration:
Seal and hex nuts
(for installation in surfaces).
Additional parts
Mounting kit CP 6053.500
(for installation in VIP 6000 and Optipanel),
see page 233.
Part No. SM
TFT monitor 15
With anti-reflection
coated safety glass
screen
6450.010
TFT monitor 17
With anti-reflection
coated safety glass
screen
6450.020
TFT monitor 15
with touchscreen 6450.030
TFT monitor 17
with touchscreen 6450.040
Power pack for TFT monitor
●With IEC 320 socket,
●With connection cable (1.5 m (59)) and
connector for connecting to the TFT
monitor.
H/W/D 30 x 107 x 59 mm
(1.18 x 4.21 x 2.32).
Technical specifications:
Input voltage: 100 – 240 V AC
Output voltage 12 V DC
Material:
Enclosure: Plastic
PU Part No. SM
16450.050
Connection cable
for power pack
With IEC connector at one end,
Length: 1.5 m (59).
PU Part No. SM
16450.060

266 Systems for the human/machine interface
Accessories
Mouse/mousepad
Mouse, mousepad IP67
An ideal input device for all areas where
heavy contamination is unavoidable, or
where exceptional standards of hygiene
are required, for example in the food
industry or medical technology.
Because the mouse detects positions
inductively, there is no need for a trackball,
and the housing can be completely sealed
with a protective film. This achieves a high
protection category of IP 67.
The mouse will only work in conjunction
with the inductive mousepad IP 67.
Material:
Mousepad: Plastic PBT
Mouse: Plastic ABS
Technical specifications:
IP 67, NEMA 6 mouse
Mouse/mousepad connector:
DIN 7-pole
Mouse pad PS/2 interface
Mouse pad – PC connection:
PS/2 connector
Temperature range: 0°C to +55°C
(32°F to 131°F)
Power consumption: < 20 mA
Cable lengths: 2000 mm (78.74)
Operates under DOS, Windows 3.1/3.11,
Windows 95/ 98/ME, Windows NT/2000
Accessories:
Connector gland (SZ 2400.500),
see page 220.
Mousepad support,
see below.
H/W/D in mm
(inches) Color
RAL Part No. SM
Inductive mouse pad IP 67
PS/2 interface 205 x 250 x 15
(9.84 x 8.07 x 0.59) gray similar to
7035 6444.500*
Mouse IP 67
for mousepad SM 6444.000 / .500 –gray similar to
7032 6445.000
* German patent no. 198 51 619
Mousepad support
For
●Operating housings
●Surfaces
To fit IP 67 mousepad SM 6444.000 and
SM 6444.500. The angle of the mousepad
support is individually adjustable.
Two holes are needed on the enclosure for
attachment purposes.
Material:
Sheet steel, zinc plated
Configuration:
Installation hardware
Accessories:
Mouse holder,
see below.
Mouse, mousepad IP 67,
see above.
Additional parts
Vertical handle set for wide frames,
see page 236
(when mounting on the VIP 6000 with wide
front frame).
Weight
kg (lbs) Part No. SM
1.0 (2.20) 2381.000
Mouse holder
To match the mousepad support and for
secure accommodation of a standard
mouse or the IP 67 mouse SM 6445.000.
Material:
Sheet steel, zinc plated
Configuration:
Installation hardware
Additional parts
Mouse pad support,
see above.
Weight
kg (lbs) Part No. SM
0.3 (0.66) 2382.000

267Systems for the human/machine interface
Accessories
Mobile workstation
Accessories
Mobile workstation
for tower PCs, printers, UPS, servers etc.
Material:
Sheet steel
Load capacity:
75 kg (165.35 lbs)
Configuration:
Mobile workstation consisting of:
1 mounting frame
2 shelves, top/bottom
1 set telescopic slide
1 handle
1 cable support, hinged
Installation hardware.
Accessories:
Fastening bolts DK 7115.000,
see Handbook 30, page 993.
550
25
391
451
19
25
45
524
45
614
55
220
471
471
For enclosure depth
mm (inches)
For installation in
IW, TS, PC based on TS
2 system chassis with
mounting flanges,
see page 272
ES, PC based on ES/PS
2 system chassis without
mounting flanges1),
see HB 30, page 977
600 (23.62) TS 8612.060 PS 4376.000
800 (31.50) TS 8612.080 PS 4377.000
1) plus 4 support brackets
8 threaded blocks M6
8 screws M6
PS 4183.000, see HB 30, page 979,
PS 4162.000, see HB 30, page 982,
SZ 2504.500, see page 255.
Additional parts
Color
RAL PU Part No. PC
7035 1 4641.000
Base
for mobile workstation
To accommodate additional equipment
such as modems, power packs etc. or
simply as a paper tray.
The shelf may be attached to the mobile
workstation with height adjustment in
25 mm (0.98) increments.
Material:
Sheet steel
Configuration:
Installation hardware
Accessories:
Fastening bolts DK 7115.000,
see Handbook 30, page 993.
Color
RAL PU Part No. PC
7035 1 4642.000

268 Systems for the human/machine interface
Accessories
Lights
Signal pillars
Rittal has extended its versatile range with
another useful component:
Perfect remote monitoring
●Problem-free remote monitoring of
individual plant or machine controllers.
●Direct, fast intervention in the event of
malfunctions and emergencies.
Flexible configuration
●Simple assembly and contact using
bayonet fastener.
●Configuration of up to five
components with the same voltage.
●The incandescent lamps are replaced in
seconds – no need for tools.
●Components are available in a range of
colors and voltages.
Simply order the signal pillar as well,
and get everything you need from a
single source!
More detailed information on the signal
pillar can be found in Handbook 30,
page 1000 – 1002.
CUS
System light
With door operated switch
Additionally with floating normally open
contact for switching equipment such as
fans, signal lights, contactors etc.
By using connector SZ 2507.400
(see HB 30, page 999), the jack may
be used.
Protection ratings:
IP 20 to EN 60 529/10.91
Note:
For more lights, see Handbook 30,
from page 997.
Accessories:
Assembly accessories for mounting system
lights,
see HB 30, page 998.
Connection accessories,
see HB 30, page 999.
X
Y
Z
B
Technical
specifications
X
mm/
(inches)
Y
mm/
(inches)
Z
mm
(inches)
B
mm
(inches)
Part No. SZ
Standard
light Courtesy
light
14 kW, 230 V, 50 Hz 452 (17.80) 50 (1.97) 117(4.61) 275 (10.83) 4138.150 4139.150
18 kW, 230 V, 50 Hz 682 (26.85) 50 (1.97) 117(4.61) 400(1.57) 4138.190 4139.190
30 kW, 230 V, 50 Hz 987(38.86) 50 (1.97) 117(4.61) 600 (23.62) 4138.350 4139.350
with fluorescent lamp, socket G 13, length 375/604/908 mm (14.76/23.78/35.75).
Light: Universal white
Equipment Standard
light Courtesy
light
Sockets and connectors for:
– Power supply ●●
– Through-wiring ●●
Jack for normally open contact ●●
Socket ●●
Interference suppression via:
– Radio interference suppression capacitor ●
– Semi-electronic ballast with integral RC element ●
Rocker switch for manual actuation ●●
Light cover ●

269Systems for the human/machine interface
Accessories
Voltage supply
Accessories
Power strips
Variable attachment facilities using a
bracket that may be fitted in four positions.
For mounting on:
●19 mounting angles
●Enclosure frame IW/TS/PC
●Any sufficiently large surface.
May be used on all sections in 25 mm
(0.98) increments without the need for
additional mounting accessories.
Unrestricted use of angular connectors is
supported via positioning at a 45° angle.
Versions:
Rocker switch:
Illuminated, 2-pole, with safety bars to
prevent unintentional contact.
Master/slave:
Electronic automatic switching unit, 2-pole.
Switching threshold adjustable from 8 W to
30 W. Equipment with energy-saving or
stand-by function cannot be used as the
master.
Power consumption of master unit:
ON state: At least 8 W
OFF state: max. 35 W
Overvoltage protection and interference
suppression filter
To protect connected equipment against:
●Voltage peaks in the mains
●High-frequency interference voltage from
the mains and connected equipment.
The green ready light is extinguished in the
event of disconnection or malfunctions.
Connected equipment is disconnected
from the mains (thermal disconnection).
Requirement category D
Surge current resistance per conductor:
2.5 kA
at UOC = 2.5 kV
Maximum surge strength: 8.0 kA
Rated arrester voltage: 260 V
UPS strip
With red socket inserts to indicate the
equipment protected by a UPS. Connection
cable with IEC 320 connector
Cable: H05VV-F3G1.0/rated current: 10 A
RCCB protection
To protect human life. With residual-current
circuit-breaker I∆n 30 mA to DIN 49440.
RCCB and line protection
To protect:
●Persons
●Cables from short-circuit and overload.
With residual-current circuit-breaker
I∆n 30 mA to DIN 49 440.
Circuit-breaker 16 A/250 V~.
Technical description:
Rated voltage: 250 V
Rated current: 16 A
Connection cable 2 m (78.75) long
H05VVW-F3G1.5
Material:
Aluminum section natural anodized,
Socket inserts polycarbonate.
Configuration:
Two mounting brackets and installation
hardware.
Dimensions:
Height: 44 mm (1 U)
Length: 19
Depth: 44 mm / 80 mm (1.73 / 3.15)
Standards:
Sockets:
DIN 49 440 / DIN VDE 0620 / 05.92
Overvoltage protection:
E DIN VDE 0675 part 6-6 /A1 and 6-6 /A2
EMC interference suppression filter:
EN 1332000: 1994
Note:
In other lengths and with other functional
elements,
see HB 30, page 1006/1007.
K 7240.2XX / DK 7240.510
31.75
44
452.5
482.6
Version Number
of sockets
Attachment Mounting
dimension
(mm
(inches))*
Part No.
DK
frames Wallmount
distributor,
horizontal
19
mounting
angles
Without switch 7 ●● ●452.5 (17.81)7240.210
With switch 7 ●● ●452.5 (17.81)7240.220
Overvoltage
protection and
interference
suppressor
filter
5●● ●452.5 (17.81)7240.230
Master/slave 1 + 3 ●● ●452.5 (17.81)7240.250
UPS strip 7 ●● ●452.5 (17.81)7240.260
RCCB 5 ●● ●452.5 (17.81)7240.280
RCCB and line
protection 5●● ●452.5 (17.81)7240.290
* Variable mounting distance within a range of 25 mm (0.98), the dimension given is
hole center to hole center of the mounting bracket.

270 Systems for the human/machine interface
Accessories
Grounding
Grounding straps
10 mm2
For configuring a reliable grounding
connection with perfect contact.
●with ring terminals in M6 and M8 to
match the grounding screw
●length-optimized and ready to install.
As an alternative,
can be used:
Ground straps,
see HB 30, page 1011 or
grounding strap, see below.
For Door/lid Enclosure
KL, EB,
AE 1032.XXX,
AE 1035.XXX M6 M6
AE, AP M6 M8
TS, ES, PC,
AP universal
console, KEL M8 M8
Connec-
tion Length PU Part No. SZ
M6 – M6 200 mm
(7.87)52565.100
M6 – M8 300 mm
(11.81)52565.110
M8 – M8 300 mm
(11.81)52565.120
Grounding strap
Tin-plated copper, in various lengths and
cross-sections with press-fitted contact
rings. Grounding straps counteract the
current displacement effect at high
frequencies, while at the same time offering
highly flexible connection opportunities.
Accessories:
Central grounding point,
see HB 30, page 1012.
For
Cross-
section
mm2
(inches2)
Length
mm (inches) PU Part No.
SZ
M6 10 (0.02) 200 (7.87) 10 2412.210
M8 16 (0.02) 200 (7.87) 10 2412.216
M8 25 (0.04) 200 (7.87) 10 2412.225
M6 10 (0.02) 300 (11.81) 10 2412.310
M8 16 (0.02) 300 (11.81) 10 2412.316
M8 25 (0.04) 300 (11.81) 10 2412.325
Contact washers
Toothed contact washers facilitate secure
PE conductor connection. As a result, there
is no need to manually strip paint in the
connection area.
Size PU Part No. SZ
M5 100 2343.000
M6 100 2334.000
M8 100 2335.000
Grounding rail, horizontal
(potential equalization rail)
With two isolators, 20 M5 earth connections
and 2 ground connections for 25 mm2
(0.04)2.
Current carrying capacity approx. 200 A.
Configuration:
Grounding rail made from E-Cu 57 to
DIN 1759, DIN 40 500, 15 x 5 mm (0.2),
20 connection points M5,
2 grounding connections 25 mm2 (0.04)2,
2 isolators, including installation hardware.
Note:
Other grounding accessories,
see HB 30.
Length PU Part No. DK
450 mm
(17.72)17113.000

271Systems for the human/machine interface
Accessories
Grounding/swing frames
Accessories
Grounding plate
The grounding cable, e.g. coming from the
support arm, is attached to the central
grounding point. Up to eight control
components may be grounded internally
on the grounding plate using flat-pin
connectors 6.3. This makes grounding
inside the enclosure easier, and also
reduces the amount of assembly work
involved.
Mounting is achieved via attachment holes
at a spacing of 75 mm (2.95), in the case
of the VIP 6000 and Optipanel using screw
channels or spring nuts, and in the case of
the TS 8 using in frame of holes.
Material:
Stainless steel
Configuration:
Installation hardware for panel and
grounding bolts.
PU Part No. SZ
12570.500
Swing frames
See Handbook 30,
Page 1014 – 1021.

272 Systems for the human/machine interface
Accessories
19 configuration
Mounting angles, 19 for
DK-TS
In two versions:
C-shaped
The integral U markings in the front
facilitate systematic assembly within the
19 attachment level.
L-shaped
The L-shaped cross rails accommodate the
installation kits of server systems. In order
to attach slide rails or component shelves
from the accessory range, adaptor
DK 7827.300 is required. The integral U
markings in the front facilitate systematic
assembly within the 19 attachment level.
Technical specifications:
2 mm (14 ga) sheet steel, with integral
19 punchings and side round and square
holes.
Zinc-plated, for conductive connection of
the 19 installed equipment.
Configuration:
Including installation hardware
Accessories:
L-shaped design:
Adaptor DK 7827.300,
see HB 30, page 1031.
Full
inst.
enclosure
height
mm (inches)
U
Part No. DK
C-shaped L-shaped
600 (23.62) 11 – 7827.061
800 (31.50) 15 7827.080 7827.081
1000 (39.37) 20 7827.100 7827.101
1200 (47.24) 24 7827.120 7827.121
1400 (55.12) 29 7827.140 7827.141
1600 (62.99) 33 7827.160 7827.161
Packs of 2
TS system chassis with
mounting flange
17 x 73 mm (0.67 x 2.87),
notched
As divider kit for mounting angles,
enclosure width 600 mm (23.62), server
racks
The system chassis with mounting flanges
have a cutout in the middle and are
prepared for combining with plug-in side
walls. 3 rows of holes facilitate universal
skeleton structures or partial assembly and
the accommodation of mounting angles.
One pack is sufficient for installing one or
two 19/metric attachment levels.
Material:
Sheet steel, zinc-plated.
Configuration:
4 depth rails, including installation
hardware.
For enclosures
PU Part No.
TS/DK
Width
mm
(inches)
Depth
mm
(inches)
600
(23.62)
600
(23.62) 48612.060
800
(31.50) 48612.080
900
(35.43) 48612.090

273
Accessories
19 configuration
Accessories
Assembly screws
M5 x 16 mm (0.63)/
M6 x 16 mm (0.63)
For 19 electronic equipment and blanking
panels, including plastic washers.
Version PU Part No.
EL
Phillips-head screw
M5 100 2099.500
Cheese-head screw
M6 100 2093.200
Phillips-head screw
M6 100 2089.000
Torx screw
M5 x 16 mm (0.63)/
M6 x 16 mm (0.63)
For optimum transmission of torques, an
extended tool life and increased safety and
reliability when tightening and loosening
screw connections.
Configuration:
Assembly screws with Torx screw head
including plastic washers.
Bit size PU Part No. DK
M5 Torx 25 100 7094.500
M6 Torx 30 100 7094.600
Captive nuts M5/M6
For the attachment of rack-mounted
electronic equipment, 19 installed
equipment and blanking panels to
mounting angles, 19.
For use with metal thickness from
0.8 – 2.0 mm (22 – 14 ga). In areas of
narrow tolerance, the captive nuts for metal
thicknesses of 1.2 – 1.5 mm (18 – 16 ga)
should be used. Optionally with or without
contact of the installed equipment to the
19 section/enclosure.
Captive nut M5
Captive nut M6
Design PU For metal
thick-nesses
mm (inches)
Part No.
EL
With
contact 50 0.8 – 2.0
(22 – 14 ga) 2094.500
Without
contact 50 0.8 – 2.0
(22 – 14 ga) 2092.500
Design PU For metal
thick-nesses
mm (inches)
Part No.
EL
With
contact 50 0.8 – 2.0
(22 – 14 ga) 2094.200
Without
contact 50 0,8 – 2.0
(22 – 14 ga) 2092.200
With
contact 50 1.2 – 1.5
(18 – 16 ga) 2094.300
Without
contact 50 1.2 – 1.5
(18 – 16 ga) 2092.300
Electronics
See Handbook 30,
page 314 – 445.
19 installation
system
See Handbook 30,
page 1014 – 1059.

274 Systems for the human/machine interface
Table of order numbers
Part No. Page
1158.000 217
1158.030 217
1158.040 217
1158.060 217
1158.500 217
1158.530 217
1158.540 217
1158.560 217
1581.000 218
1581.100 217
1582.000 218
1648.600 185
1652.600 185
2089.000 273
2092.200 273
2092.300 273
2092.500 273
2093.200 273
2094.200 273
2094.300 273
2094.500 273
2099.500 273
2307.000 246
2308.000 249
2334.000 270
2335.000 270
2343.000 270
2373.000 256
2375.000 115
2375.020 115
2377.860 252
2381.000 266
2382.000 266
2383.000 261
2383.010 228, 262
2383.020 262
2389.000 235
2389.100 235
2400.300 220
2400.500 220
2412.210 270
2412.216 270
2412.225 270
2412.310 270
2412.316 270
2412.325 270
2433.000 229
2435.000 245
2439.000 245
2450.000 245
2451.000 245
2452.000 245
2454.000 245
2455.000 245
2456.000 245
2460.000 246
2460.650 246
2461.000 246
2462.000 246
2463.000 246
2464.000 246
2465.000 246
2466.000 246
2467.000 244
2468.000 244
2469.000 244
2476.000 248
2482.000 240
2482.100 240
2482.200 240
2483.000 246
2484.000 246
2485.000 245
2486.300 255
2486.500 255
2487.000 255
2489.000 255
2493.000 248
2493.500 248
2503.000 229
2504.000 255
2504.500 255
2508.000 229
2513.000 250
2514.000 250
2515.000 250
2518.000 250
2521.000 249
2522.000 246
2523.000 246
2525.000 247
2526.000 246
2527.000 246
2528.000 246
2531.000 249
2532.000 249
2533.000 245
2534.000 247
2534.500 247
2535.000 246
2536.000 246
2545.000 249
2546.000 249
2547.000 249
2548.000 249
2549.000 249
2554.000 246
2555.000 246
2556.000 246
2557.000 246
2558.000 246
2565.100 270
2565.110 270
2565.120 270
2570.500 271
2571.000 247
2572.000 246
2573.000 217
2574.000 256
2575.000 246
2576.000 245
2584.000 230
2589.000 223
2590.000 223
2591.000 223
2592.000 223
2593.000 223
2594.000 223
2595.000 223
2596.000 223
2597.000 220
2600.600 185, 187
2610.600 185, 187
2611.200 185, 187
2612.600 185, 186
2613.200 185, 187
2614.600 185, 186
2615.200 185, 186
2616.200 185, 186
2620.600 185, 187
Part No. Page
2630.600 185, 187
2640.600 185, 187
2641.200 185, 187
2642.600 185, 186
2643.200 185, 187
2644.600 185, 186
2645.200 185, 186
2646.200 185, 186
2647.600 185, 186
2648.600 185, 186
2649.600 185, 186
2650.600 185, 187
2651.200 185, 187
2652.600 185, 186
2653.200 185, 187
2654.600 185, 186
2655.200 185, 186
2656.200 185, 186
2662.600 185, 186
2663.600 185, 186
2664.600 185, 186
2666.600 192
2668.600 192
2670.600 192
2672.600 192
2676.000 230
2678.000 230
2682.000 230
2683.600 196
2684.600 196
2685.600 196
2686.600 196
2688.600 198
2689.600 198
2690.000 231
2691.000 231
2694.600 194
2695.600 194
2696.200 231
2697.450 211
2735.100 242
2735.110 242
2735.120 242
2735.130 242
2735.140 242
2736.100 242
2736.110 242
2736.120 242
2736.130 242
2736.140 242
2737.100 242
2737.110 242
2737.120 242
2737.130 242
2737.140 242
2738.100 242
2738.110 242
2738.120 242
2738.130 242
2738.140 242
2793.560 241
2793.760 241
2807.200 208
2808.200 208
2813.200 208
2814.200 208
2817.000 215
2819.000 210
2819.200 210
2841.200 185, 208
Part No. Page
2842.200 185, 208
2846.200 208
2847.200 208
2851.200 185, 208
2852.200 185, 208
2855.000 209
2859.000 214
2863.200 185, 208
2864.200 185, 208
2865.000 209
2867.000 209
2868.000 209
2869.000 209
2870.000 209
2875.000 209
2876.000 209
2877.000 209
2878.000 209
2885.000 209
2886.000 209
2889.000 214
2890.000 214
2891.200 208
2892.200 208
2901.200 185, 208
2902.200 185, 208
2907.000 210
2908.000 210
2911.200 208
2912.200 208
2913.000 210
2921.200 185, 208
2922.000 185
2922.200 208
2961.200 185, 208
2962.200 185, 208
2979.200 212
2980.200 212
2981.200 212
2981.235 212
2982.200 212
2982.235 212
2983.200 212
2984.200 212
3201.100 202
3202.100 202
4116.000 250
4138.150 268
4138.190 268
4138.350 268
4139.150 268
4139.190 268
4139.350 268
4156.000 241
4189.000 241
4191.000 223
4192.000 223
4193.000 223
4196.000 223
4311.000 216
4316.000 216
4317.000 216
4318.000 216
4336.000 223
4532.000 254
4538.000 250
4570.000 210
4583.000 250
4595.000 230
4597.000 254
Part No. Page
4603.603 176
4603.703 176
4603.704 178
4603.913 176
4603.920 178
4609.703 176
4609.920 178
4611.000 213
4612.000 214
4614.000 177
4619.660 256
4634.000 213
4634.500 213
4641.000 267
4642.000 267
4650.000 180
4650.704 180
4757.000 231
6002.000 259
6002.100 263
6003.000 260
6004.000 204
6004.009 204
6004.100 204
6004.109 204
6005.100 228
6006.000 226
6013.000 239
6013.500 239
6015.000 234
6015.009 234
6015.300 234
6015.309 234
6015.500 234
6015.509 234
6016.100 226
6016.200 226
6017.000 227
6017.100 227
6019.000 232
6023.000 123
6027.000 232
6027.100 233
6027.110 233
6027.120 233
6027.200 233
6027.210 233
6027.220 233
6027.500 232
6027.509 232
6027.510 232
6027.520 232
6028.000 232
6029.000 232
6040.000 124
6045.000 249
6050.000 120
6050.500 120
6052.000 221
6052.500 221
6053.000 233
6053.200 233
6053.500 233
6058.000 233
6058.500 233
6059.000 221
6059.500 221
6100.000 120
6100.500 120
6101.000 236
Part No. Page

Systems for the human/machine interface 275
Table of order numbers
6101.009 236
6102.000 236
6102.009 236
6103.000 236
6107.000 238
6107.100 238
6107.200 238
6108.000 255
6110.000 125
6110.100 126
6120.000 126
6130.000 123
6130.500 122
6130.600 122
6135.000 147
6136.000 145
6136.500 145
6137.035 146
6137.535 146
6139.000 138
6140.000 127
6141.000 142
6141.100 142
6141.200 143, 162
6142.000 134
6142.010 135
6142.020 135
6142.030 135
6142.100 135
6143.200 144, 145
6143.210 144, 218
6143.300 144, 145
6143.310 144, 218
6144.100 162, 215
6145.100 162, 215
6146.100 140, 141
6146.200 140, 141
6146.300 140
6146.400 140, 141
6147.000 162, 215
6148.000 140, 213
6150.000 124
6160.000 122
6170.000 125
6180.000 127
6190.000 239
6191.000 239
6192.000 239
6193.000 239
6194.000 239
6195.000 239
6200.000 120
6200.500 120
6205.000 120
6214.500 149
6214.XX0 148
6220.XX0 148
6340.000 58
6340.010 58
6340.020 58
6340.100 58
6340.110 58
6340.120 58
6340.200 58
6340.210 58
6340.220 58
6340.300 58
6340.310 58
6340.320 58
6340.400 58
Part No. Page
6340.410 58
6340.420 58
6341.000 227
6380.000 52
6380.100 52
6385.010 237
6385.019 237
6385.020 237
6385.029 237
6385.030 237
6386.000 234
6386.009 234
6386.300 234
6386.309 234
6442.200 70
6444.000 266
6444.500 266
6445.000 266
6446.000 264
6446.010 264
6450.010 265
6450.020 265
6450.030 265
6450.040 265
6450.050 265
6450.060 265
6462.200 70
6501.000 88
6501.010 88
6501.020 88
6501.030 88
6501.040 90
6501.050 90
6501.060 90
6501.070 90
6501.080 89, 103
6501.090 89, 103
6501.100 89
6501.110 89
6501.200 88
6501.210 88
6501.220 88
6501.230 88
6501.240 88
6501.250 88
6501.260 88
6501.270 88
6501.280 88
6501.290 88
6501.300 88
6501.310 88
6501.320 88
6501.330 88
6501.340 88
6501.350 88
6503.000 218
6505.100 222
6505.200 222
6505.500 222
6508.000 108
6508.010 108
6508.100 109
6509.000 102, 137
6509.010 102, 137
6510.210 100
6510.310 100
6511.000 102, 144
6511.010 102
6513.000 102, 144
6513.010 102
Part No. Page
6514.100 229
6514.110 229
6515.000 102, 144
6515.010 102
6519.000 102
6519.010 102
6520.000 105, 109
6520.010 105, 109
6520.500 105
6520.510 105
6521.000 113
6521.010 113
6522.000 114
6522.010 114
6523.000 114
6523.010 114
6524.000 115
6524.010 115
6524.200 113
6524.210 113
6525.000 109
6525.010 109
6525.100 109
6525.110 109
6525.200 107
6525.210 107
6525.500 106
6525.510 106
6525.600 106
6525.610 106
6526.000 112
6526.010 112
6527.000 111
6527.010 111
6527.100 111
6527.110 111
6528.000 104, 121
6528.100 103, 121
6528.200 219
6528.210 219
6528.300 219
6528.500 104, 121
6529.000 112
6529.010 112
6530.200 68
6531.200 68
6532.200 68
6533.200 68
6534.000 66
6535.000 66
6535.010 74
6536.000 66
6536.010 74
6537.000 66
6538.000 66
6538.010 74
6539.010 74
6540.200 68
6541.009 72
6542.000 66
6543.000 66
6544.000 66
6552.200 70
6660.000 92
6660.010 92, 144
6660.020 92, 144
6660.050 92, 144
6660.100 92
6660.110 92
6660.120 92
Part No. Page
6660.200 92
6660.210 92
6660.220 92
6662.200 70
6663.000 94
6663.400 94
6663.500 94
6664.000 93
6664.100 93
6664.500 93, 144
6665.000 95
6665.500 95
6670.000 76
6672.000 76
6680.000 60
6680.010 60
6680.100 60
6680.110 60
6681.000 60
6681.100 60
6682.000 60, 61
6900.000 156
6900.100 156
6900.200 156
6900.400 158
6900.600 158
6901.000 156
6901.100 158
6901.200 158
6902.000 160
6902.010 160
6902.020 160
6902.030 160
6902.100 160
6902.110 160
6902.120 160
6902.130 160
6902.300 160
6902.310 162
6902.320 162
6902.400 160
6902.500 164
6902.510 164
6902.610 225
6902.620 225
6902.630 224
6902.640 110, 162
6902.650 224
6902.660 222
6902.670 91
6902.680 225
6902.690 259
6902.700 257
6902.710 257
6902.720 257
6902.730 258
6902.740 258
6902.750 258
6902.760 258
6902.770 222
6902.780 139
6902.800 258
6902.960 257
6902.980 257
7077.000 223
7078.000 223
7094.500 273
7094.600 273
7097.000 223
7097.220 223
Part No. Page
7097.260 223
7097.300 223
7097.340 223
7098.000 223
7099.000 223
7113.000 270
7240.210 269
7240.220 269
7240.230 269
7240.250 269
7240.260 269
7240.280 269
7240.290 269
7827.061 272
7827.080 272
7827.081 272
7827.100 272
7827.101 272
7827.120 272
7827.121 272
7827.140 272
7827.141 272
7827.160 272
7827.161 272
8360.920 207
8366.000 172
8366.100 174
8366.200 174
8366.300 172
8366.400 172
8368.000 172
8368.100 174
8601.060 206
8601.080 206
8601.450 211
8601.600 206
8601.610 207
8601.615 207
8601.680 211
8602.060 206
8602.080 206
8602.600 206
8611.040 244
8611.060 244
8611.070 244
8611.270 244
8611.300 244
8612.060 272
8612.080 272
8612.090 272
8612.200 253
8612.400 254
8612.410 254
8612.600 253
8612.800 253
8614.100 252
8614.675 251
8700.600 216
8800.220 214
8800.290 212
8800.390 210
8800.830 213
8800.900 256
8800.910 256
8800.920 207
8800.930 207
8800.960 227
8800.980 227
8801.300 251
8801.310 251
Part No. Page

Index
276 Systems for the human/machine interface
Numerics
10° tilting adaptor
– CP-L, rectangular 111
– CP-L, round 111
– CP-S stainless steel 93
– CP-XL 123
25° / 60° tilting adaptor
– CP-XL 124
482.6 mm (19") mounting angles 272
90° support tube bracket
– CP-L 102
A
Adaptor
– for comfort handle 244
– for levelling feet 214
– for twin castors 212
Adaptor plate 222
Adjustment set for support section
– CP-XL 120
Aluminum strip for AP 230
Angle adaptor 90°
– CP-L to CP-S 89, 103
– CP-XL to CP-L 103, 121
Angle coupling, 90°
– CP-L, round 112
– CP-XL 124
Angle joint 90°
– CP-L 113
Angle piece 90°
– CP-L 115
– CP-XL 127
AP universal consoles
– Sheet steel 194
– Stainless steel 198
Assembly bolts for base/plinth 210
Assembly kit for externally mounted
accessories 135
Assembly plate, floor 215
Assembly screws M5 x 16 mm (0.63)/
M6 x 16 mm (0.63) 273
Attachment
–CP-S 90
– Hinge attachment 252
– Pole clamp 230
B
Base
– for Industrial Workstations 143
– for operating housing 147
Base assembly plate 215
Base for mobile workstation 267
Base mount 215
– Swivel, CP-S stainless steel 94
Base plate, pedestal, large 146
Base plate, pedestal, small 145
Base/plinth
– Assembly bolts 210
– Complete 208
– Complete, stainless steel 209
– Mobile 212
Base/plinth adaptor for twin castors 212
Base/plinth components, front and
rear for TS 206
Base/plinth trim panels, side for TS 206
Base/plinth trim with brush strip for TS 207
Base/plinth trim, modular 210
Bracket, locatable for shelves 259
Built-in trim panel and spacer panel 234
Busbar connection adaptor
– CP-L to CP-XL 104, 121
C
Cable clamp rails 223
Cable clamping bracket 221
Cable clamps 223
Cable conduit and holder 223
Cable entry grommets 216
Cable entry module CP-L, round 221
Cable entry plates 216
Cable gland 220
Cable gland IW 222
Cable gland panels
– Metal 217
– Plastic 218
Cable tie fastener 221
Cable ties for quick assembly 220
Cable tube, flexible 227
Captive nuts M5 / M6 273
Cast cross member 135
Castors 210, 213, 250
Castors, adaptor 212
Clamp rails for cables 223
Clamp strip, foam rubber 217
Climate control 202
Clipboard 239
Comfort handle 244
Comfort handle for semi-cylinder 244
Command panel
– Sheet steel 68
– Stainless steel 76
– with display panel front 70
– with wide VIP 6000 frame 72
Command panel housing with door
– Sheet steel 66
– Stainless steel 74
Compact Panel 58
– Accessories for wall mounting 227
Component shelf, pull-out 257
Component shelf, static installation 256
Component shelves, locatable bracket 259
Conduit
– CP-L 102
–CP-S 88
– CP-S stainless steel 92
– CP-XL 120
Conduit holder 235
Connection cable for power pack 265
Connection console
– CP-L, rectangular 108
Connection cover 222
Connection plate 219
Connection section
– CP-L 102
–CP-S 88
– CP-S stainless steel 92
– CP-XL 120
Connector for compact enclosures 228
Connector gland 220
Connector grommets 216
Connector strips 269
Connector, enclosure surface 228
Consoles 182, 186 – 199
Contact washers 270
Control consoles 182 – 199
Control unit 135
Cooling unit 202
Corner handle 238
Cover plate 222
Cross member with cast feet 135
Cross members 234
– adjustable 211
– for drawer tray 257
Cross-brace for door 227
Cylinder inserts 247
D
Desk section 231
– Stainless steel 231
– Steel 231
Desk units 187
Desktop keyboard IP 65 264
Door stay 250
Drawer 257
– for keyboards 231
– Tray 257
Drawer extension lock IW 258
E
Electric lifting pillar 134
Enclosure attachment
– CP-L, rectangular 106
– CP-L, rectangular, locatable 107
– CP-L, round 106
– CP-S stainless steel 93
– CP-XL, rectangular 122
– CP-XL, round 122
– Tilting, bottom-mounting CP-L,
rectangular 110
– Tilting, CP-S configuration 91
Enclosure connector, adjustable 226
Enclosure flange 218
Enclosure keys 249
Enclosure reinforcement 218
Enclosure surface connector 228, 262
Enclosure systems
– PC 170 – 181
Entry grommets for cables 216
Entry grommets for connectors 216
Entry plates for cables 216
Ergoform special 245
Ergoform standard 245
Extension lock for drawers 258
Extension piece 231
Extension piece, drawer tray 257
Externally mounted accessories,
assembly kit 135
F
Feet 214
– Height-adjustable 134
– Pedestal 142
Feet for monitor housing 225
Flat screen 265
Foam rubber cable clamp strip 217
Foot rest 215
Frame connector, adjustable 226
Front panels 232
– Aluminum 232
– Hinged 233

Index
277Systems for the human/machine interface
G
Gas pressurised spring 141
Gland panels
– Metal 217
– Plastic 218
Grommets for
– Cable entry 216
– Connector gland 216
Ground straps 270
Grounding plate 271
Grounding rail, horizontal
(potential equalisation rail 270
Grounding strap 270
H
Handle adaptor 244
Handle frame for operating housing 239
Handle set 235
– for Optipanel 237
– for VIP 6000 236
Handles 235 – 239, 244 – 246
Handles, plastic 245
Height-adjustable pedestal 134
Hinge 180° 241
Hinge attachment 252
Holder for mouse 266
Housing coupling
– CP-L, rectangular 109
– CP-L, round 109
–CP-S 90
– CP-S stainless steel 93
– CP-XL 123
I
Industrial workstations
– Accessories 224 – 225
– Enclosures with door versions 156
– Enclosures with drawers 158
– Monitor housing 164
– Pedestal 162
– Technical details 166 – 169
– Worktop attachment 139
– Worktops 160
Inserts for lock 244, 246 – 247
Interfaces
– Box 240
– Flap 240
Intermediate hinge
– CP-L 114
– CP-XL 126
K
Keyboard
– Desktop keyboard 264
– Pull-out 263
– Stainless steel 264
Keyboard drawer
– Sheet steel 231
– Stainless steel 231
– with mousepad support 260
Keyboard drawer 19″/2 U 259
Keyboard support 261
L
Levelling feet 214
– 100 mm high 214
Lifting pillar, electric 134
Light 268
Locatable bracket for shelves 259
Locating adaptor 219
Lock and push-button inserts 244
Lock cover 248
– for padlocks 248
Lock for drawer extension 258
Lock for support arm connection 222
Lock inserts 244, 246
Lock systems 244 – 249
M
Metal gland panel 217
Mobile base on castors 212
Mobile pedestal 145
Mobile workstation 267
Mobile workstation, base 267
Modular base/plinth trim 210
Modular pedestal, small 144
Monitor housing, spacer plate 224
Monitor housing, stay 225
Monitor, flat 265
Monitor, support plate 224
Mounting angles, 482.6 mm (19″) 272
Mounting bracket/mounting panel 254
Mounting component
– CP-L for signal pillars 115
Mounting kit 233
Mounting panel, partial mounting panel 251
Mounting panels 253, 254
Mounting rails, 482.6 mm (19″) 272
Mouse holder 266
Mouse, mousepad IP 67 266
Mousepad support 266
Mousepad support, vertically hinged 262
Mousepad, passive 177
Multiple lock 248
N
Nuts 273
O
One-piece consoles 184 – 199
Optipanel support plate 109
P
Panel lift 138
Partial mounting panel TS 251
PC
– Base/plinth trim 207
– Enclosure systems 170 – 181
Pedestals 142, 187
– Base plate 141
– Base plate, large 146
– Base plate, small 145
– for IW worktops 143
– for operating housing 147
– height-adjustable 134
– Mini 140
– mobile 145
– modular, small 144
Pillar 148
– Lifting pillar, electric 134
– small 148 – 149
Plastic cable gland panels 218
Plastic handles 245
Plastic wiring plan pocket 250
Plate
– Grounding plate 271
Plate, base assembly 215
Plates for cable entry 216
Pocket
– for wiring plan, plastic 250
– for wiring plan, sheet steel 250
Pole clamp 230
Potential equalisation rails 270
Power pack for TFT monitor 265
Power strips 269
Premium Panel stainless steel 60 – 63
Printer trolley 267
Pull-out rails 258
Pull-out shelf 257
R
Rails
– Clamp rails for cables 223
– Earth rails 270
– Mounting angles, 482.6 mm (19″) 272
– Support rails 253
– Telescopic slides 258
Rear cooling panel, modular 204
Reinforcement bracket for TS base tray 213
Reinforcement for enclosure 218
Reinforcement plate 218
Retaining rails TS 253
Ride-up roller 250
Ring board 239
Roof plates TS 251
Rotation range limiter 126
– CP-XL 126
Rubber cable clamp strip 217
S
Safety cylinder inserts 247
Screen, flat 265
Screen, support plate 224
Screws 255, 273
Sealing bar 234
Self-tapping screws 255
Semi-cylinder lock 247
Sheet steel wiring plan pockets 250
Shelf, component shelf,
static installation 256
Spacer plate for monitor housing 224
Spacing and built-in trim panel 234
Spring nut M5 255
Stainless steel
– Base mount, swivel, CP-S 94
– Base/plinth, complete 209
– Command panel 76
– Command panel housing with door 74
– Enclosure attachment CP-S 93
– Enclosure coupling CP-S 93
– Enclosure reinforcement 218

Index
278 Systems for the human/machine interface
– Premium Panel 60 – 63
– Support section CP-S 92
– Tilting adaptor 10° CP-S 93
– Wall console CP-S 95
– Wall mounting bracket 229
– Wall/base mounting, rigid, CP-S 94
Stainless steel keyboard 19″264
Stay
– for VIP 6000, hinged 249
Stay, door 250
Stays
– for door 250
– for Industrial workstations 258
– for monitor housing 225
Straps, ground straps 270
Support
– for keyboards 261
– for mousepad 266
– for mousepad, vertically hinged 262
Support arm bracket 90°
– CP-L 102
Support arm system
– CP-L 96 – 115
– CP-L, fast selection 98 – 99
– CP-S, fast selection 84 – 87
– CP-S, stainless steel 92 – 95
– CP-S, steel 88 – 91
– CP-XL 116 – 127
– CP-XL, fast selection 118 – 119
Support arm, height adjustable, CP-L 100
Support plate for screen 224
Support section
– CP-L 102
–CP-S 88
– CP-S stainless steel 92
– CP-XL, open 120
– CP-XL, solid 120
– height-adjustable 141
Surface connector for enclosures 228, 262
System chassis with mounting
flange TS, 17 x 73 mm
(0.67 x 2.87) 272
System light 268
System mounting block for AE 256
T
T handles 246
Telescopic slides 258
TFT monitor 265
Tilt adjustment 140
Tilting adaptor ± 45°
– CP-L, round 112
Top mounted joint
– CP-L 114
– CP-XL 125
Torx screws 255
– M5 x 16 mm/M6 x 16 mm (0.63) 273
– M6 x 12 mm (0.47) 255
Transport castors 210
Tray, drawer tray 257
Trim for base/plinth 207
Trim panel 186, 215
Trolley, mobile workstation 267
TS partial mounting panel 251
TS retaining rails 253
TS roof plate 251
TS system chassis with mounting
flange, 17 x 73 mm (0.67 x 2.87) 272
Tube
– CP-L 102
–CP-S 88
– CP-S stainless steel 92
– CP-XL 120
Turntable 225
Twin castors 213
U
U handle 238
Unit, control unit 135
Universal bracket 256
Universal enclosure key 249
Utility shelf CP 229
V
Viewing window 241
VIP small cooling unit 202
W
Wall bracket 230
Wall console
– CP-S stainless steel 95
Wall mounted hinge
– CP-L 113
– CP-XL 125
Wall mounting bracket 229
Wall mounting bracket, vertically
hinged 227
Wall/base mounting
–CP-S 89
– CP-XL 122
– large, CP-L 105
– rigid, CP-S stainless steel 94
– small, CP-L 105
Wall-mounted cooling unit for VIP 6000 202
Washers, contact washers 270
Window
– Viewing window 241
Wiring plan pockets
– Plastic 250
– Sheet steel 250
Worktop attachment IW 139
RAL colors
Color
RAL Designation
3001 signal red
5002 ultramarine blue
5005 signal blue
5018 turquoise blue
7015 slate grey
7022 umber grey
7024 graphite grey
7030 stone grey
7032 pebble grey
7033 cement grey
7035 light grey
7044 silk grey
8019 grey brown
9005 jet black
9006 aluminum white
9011 graphite black
9017 traffic black
We reserve the right to further develop-
ments and technical modifications of our
products. Such modifications, along
with errors and printing errata, shall not
constitute grounds for compensation.
We refer customers to our Terms of Sale
and Delivery.

279Systems for the human/machine interface
Order forms VIP 6000
Order forms Optipanel

❏ RFQ / ❏ Order
Please copy this page and place it next
to the brochure, to make your selection
easier and faster.
Then fax the completed form to Rittal.
Fax #: 937-629-2815
From:
Name
Company
Address
Phone
E-mail
1. Select frame
The frame type is determined from
the Model No.
* Only possible wtih keyboard
housings 105 mm (4.13), 44 mm
(1.73) deep and support for
keyboards (see selection 4.1).
Wide
VIP 6000 frame Combined
VIP 6000 frame* Narrow
VIP 6000 frame*
0 1 2
Part No. CP
Operating housing
6392. 09
Part No. CP
Keyboard housing
6351. 09
2. Enter the panel dimensions
2.1 For operating housings CP 6392.X09
Please state the number of front panels/panels used, their
height (H) x width (W) x depth (D) and the manufacturer/model.
H x W x D
Manufacturer/model
H x W x D
Manufacturer/model
H x W x D
Manufacturer/model
3. Determine the design of the operating
housing.
Enter the code number for the required design,
see page 22 – 27.
3.1 3.2 3.3 3.4 3.5 3.6 3.7 3.8
2.2 For keyboard housings CP 6351.X09
Please state the height (H) x width (W) x depth (D) of the
keyboard/panel or the manufacturer/model.
H x W x D
Manufacturer/model
4. Determine the design of the keyboard
housing
Enter the code number for the required design,
see page 28 – 31.
4.1 4.2 4.3 4.4 4.5
VIP 6000
❏ Other modifications as per enclosed sheet.
Annual volume
Purchase quantities

❏ RFQ / ❏ Order
Operating/keyboard housing
1. Enter the panel dimensions
1.1 For operating housings
Please state the number of front panels/panels used, their
height (H) x width (W) x depth (D) and the manufacturer/model.
H x W x D
Manufacturer/model
H x W x D
Manufacturer/model
H x W x D
Manufacturer/model
2. Determine the design of the operating/
keyboard housing
Enter the code number for the required design,
see page 46 – 51.
2.1 2.2 2.3 2.4 2.5
1.2 For keyboard housings
Please state the height (H) x width (W) x depth (D) of the
keyboard/panel or the manufacturer/model.
Standard dimensions for front panel H x W:
●7 U x 19
●234 mm (9.21) x 270 mm (10.63)
see page 52.
H x W x D
Manufacturer/model
Part No. CP
6382.009
Please copy this page and place it next
to the brochure, to make your selection
easier and faster.
Then fax the completed form to Rittal.
Fax #: 937-629-2815
From:
Name
Company
Address
Phone
E-mail
Optipanel
❏ Other modifications as per enclosed sheet.
Annual volume
Purchase quantities

R R
Systems for the human/machine interface
Systems
for the
human/
machine
interface
Command Panel
Industrial workstations
PC enclosures
Console systems
Communication systems
Global Rittal. Worldwide service.
Industrial enclosures
Sma
ll
enc
l
osures
Compact enclosures
Large enclosures
PC enclosures and case systems
Console systems
Industrial workstations
Command Panel systems
Stainless steel enclosures and support arm
systems
EMC-shielded enclosures
Ex enclosures
System climate control
Power distribution
IT solutions
Rittal Corporation
One Rittal Place
Springfield, OH 45504
Phone: (937) 399-0500
Fax: (937) 390-5599
Toll-free: 1-800-477-4000
www.rittal-corp.com
Email: rittal@rittal-corp.com
08/04 䡠 A141
Electronic packaging