Wireless N2-4XE1-5G7 Point to Point Data Transceiver User Manual N2 Link Cover
Wireless Inc Point to Point Data Transceiver N2 Link Cover
Wireless >
Contents
User manual

N2-4XE1
Installation and Operations Manual
Part Number 281-102471-201
February 2000
Wireless, Inc.
5452 Betsy Ross Drive
Santa Clara, CA 95054-1101

ii
N2-4XE1 nstallation and Operation Manual
Notice
Information in this document is subject to change without notice. No part of this document may
be reproduced or transmitted in any form or by any means, electronic or mechanical, for any
purpose, without the express written permission of Wireless, Inc.
© Copyright 2000, Wireless, Inc. All rights reserved.
N2-4XE1™ and ACCESS™ Series are trademarks of Wireless, Inc.

iii
N2-4XE1 Installation and Operation Manual
Table of Contents
1.0 General Overview ................................................................................................................. 1
1.1 N2-Link Series Product Family .................................................................................. 1
1.2 Introduction to the N2-4XE1 ...................................................................................... 1
1.3 Regulatory Information .............................................................................................. 2
2.0 N2-4XE1 Product Profile ....................................................................................................... 3
2.1 General Overview ...................................................................................................... 3
2.2 Specifications ............................................................................................................ 7
2.3 User Interfaces ........................................................................................................ 10
2.4 ODU Performance Monitoring ................................................................................. 13
2.5 Theory of Operation ................................................................................................ 13
3.0 Equipment Installation and Commissioning ........................................................................ 20
3.1 Installation ............................................................................................................... 20
3.2 Install the IDU .......................................................................................................... 21
3.3 Outdoor RF Unit Installation .................................................................................... 22
3.4 Commissioning ........................................................................................................ 28
4.0 Maintenance and Troubleshooting ...................................................................................... 30
4.1 N2-4XE1 Maintenance ............................................................................................ 30
4.2 Identifying and Resolving Receive Signal Strength Issues ..................................... 31
4.3 Where to Get Further Assistance ............................................................................ 32
4.4 Return Procedure .................................................................................................... 33
Appendix A Grounding Practices and Lightning Protection Information....................................... A-1
Appendix B Installation Instructions .............................................................................................. B-1
Appendix C Adjustable Panel Antenna Mount ..............................................................................C-1

iv
N2-4XE1 Installation and Operation Manual
Figures
Figure 2.1 Typical Deployment of a N2-4XE1 in a Point-to-Point Configuration ........................ 5-6
Figure 2.2 N2-4XE1 Link IDU ......................................................................................................10
Figure 2.2a Outdoor Unit, Front View ............................................................................................ 12
Figure 2.2b Outdoor Unit, Back View ............................................................................................ 12
Figure 2.3 Block Diagram, IDU ....................................................................................................14
Figure 2.4 N2-4XE1 Block Diagram ....................................................................................... 18-19
Figure 3.1 N2-4XE1 Link Rack Mount ......................................................................................... 21
Figure 3.2 Outdoor Unit Mounting Hardware .............................................................................. 22
Figure 3.3 Mounting the Outdoor RF Unit to the Bracket ............................................................ 23
Figure 3.3a Mounting the Bracket Latch and Stand Mount Detail ................................................. 24
Figure 3.3b Locking the Mounting Hardware ................................................................................ 25
Figure 3.3c N-Type Antenna and Siamesed Ethernet/Power Connections .................................. 26
Figure 3.3d Ground Connection ....................................................................................................27
Figure B.1 Two Foot Diameter Antenna ..................................................................................... B-1
Figure B.2 Mount Configuration .................................................................................................. B-3
Figure B.3 Mounting Hardware Packed ...................................................................................... B-5
Figure B.4 Mounting Hardware Unpacked .................................................................................. B-5
Figure B.5 Parabolic Reflector .................................................................................................... B-8
Figure B.6 Unpacking the Radome ............................................................................................. B-8
Figure B.7 Antenna Mount Assembly ......................................................................................... B-9
Figure B.8 Antenna Mount Assembly ....................................................................................... B-10
Figure B.9 Elevation Rod Assembly ......................................................................................... B-10
Figure B.10 Feed Horn Installation ............................................................................................. B-11
Figure B.11 Feed Horn Polarization Markings ............................................................................ B-12
Figure B.12 Parabola Rear View Showing Polarization Reference Markers .............................. B-12
Figure B.13 Feed Horn Installation ............................................................................................. B-13
Figure B.14 Feed Horn Installation for Vertical Polarized Operation .......................................... B-13
Figure B.15 Azimuth Clamp/Shear Stop Assembly .................................................................... B-14
Figure B.16 Azimuth Adjustment Clamp Assembly ................................................................... B-14
Figure B.17 Hoisting the Antenna ............................................................................................... B-15
Figure B.18 Antenna Alignment using RSL Output while adjusting the antenna ....................... B-16
Figure C.1 Antenna Mount .......................................................................................................... C-1
Figure C.2 Azimuth and Elevation Planning ............................................................................... C-2
Figure C.3 Azimuth and Elevation Planning ............................................................................... C-3
Figure C.4 Flat Panel Antenna ....................................................................................................C-4
Figure C.5 Adjustable Panel Antenna Mount .............................................................................. C-5

v
N2-4XE1 Installation and Operation Manual
Tables
Table 1.1 FCC U-NII Bands ......................................................................................................... 2
Table 2.1 Recommended Antennas ............................................................................................. 8
Table 2.2 Features Available Through RS-232 Interface ........................................................... 11
Table 3.1 Inventory of Equipment and Installation Materials ..................................................... 20
Table 3.2 Installation Checklist................................................................................................... 28
Table 3.3 Approximation Table .................................................................................................. 29
Table 4.1 Frequencies ................................................................................................................ 31

vi
N2-4XE1 Installation and Operation Manual
Welcome!
Welcome to the Wireless, Inc. N2-ACCESS™ Series product family. This manual is designed
to introduce you to the N2-4XE1™, and to provide you with information necessary to plan, install,
operate and maintain a N2-4XE1 wireless communication system.
The N2-4XE1 is intended for professional installation only. This manual, however, is also
designed for personnel who plan, operate and administrate the N2-4XE1 communication
system. Please review the entire manual before powering up or deploying any N2-4XE1 .
Updates to this manual will be posted on the Wireless, Inc. Customer Service Website at
http://www.wire-less-inc.com. Registered Wireless customers can access Wireless’ on-line
information and support service, available 24 hours a day, 7 days a week. Our on-line service
provides users with a wealth of up-to-date information, with documents being added or updated
each month.
Radiation Warnings
Microwave Radio Radiation Warning
Under normal operating conditions, N2-4XE1 radio equipment complies with the limits for
human exposure to radio frequency (RF) fields adopted by the Federal Communications
Commission (FCC). All Wireless, Inc. microwave radio equipment is designed so that under
normal working conditions, microwave radiation directly from the radio is negligible when
compared with the permissible limit of continuous daily exposure recommended in the United
States by ANSI/IEEE C95.1-1991 (R1997), Safety Levels with Respect to Human Exposure to
Radio Frequency Electromagnetic Fields, 3 kHz to 300 GHz.
Microwave signal levels that give rise to hazardous radiation levels can exist within transmitter
power amplifiers, associated RF multiplexers, and antenna systems.
Never look into the open end of a Waveguide as eyes are particularly vulnerable to radiation.
Do not disconnect RF coaxial connectors, open microwave units, or break down any
microwave screening while the radio equipment is operating.

vii
N2-4XE1 Installation and Operation Manual
Microwave Antenna Radiation Warning
Designed for point-to-point operation, an N2-4XE1 microwave radio system will use directional
antennas to transmit and receive microwave signals. These directional antennas are usually
circular or rectangular in shape, are generally located outdoors, and are usually mounted on a
tower or mast.
Referencing OET Bulletin 65 (Edition 97-01, August 1997) from the Federal Communication
Commission’s Office of Engineering & Technology, limits for maximum permissible exposure
(MPE) to microwave signals have been adopted by the FCC for both Occupational/Controlled
environments and General Population/Uncontrolled environments. These limits are 5.0 mW/
cm2 and 1.0 mW/cm2, respectively, with averaging times of six-minutes and thirty-minutes,
respectively.
The closer you are to the front center-point of a microwave antenna, the greater the power
density of its transmitted microwave signal. Unless you are very close, however, microwave
exposure levels will fall far below the MPE limits. To determine how close to a microwave
antenna you can be and still remain below the MPE limits noted above, “worst case” predictions
of the field strength and power density levels in the vicinity of an N2-4XE1™ microwave antenna
can be made from the following calculations. The equation is generally accurate in the far-field
of an antenna, and will over-predict power density in the near-field (i.e. close to the antenna).
S = PG/4πR2
where: S = power density (in mW/cm2)
P = power input to the antenna (mW)
G = power gain of the antenna in the direction of interest relative to an isotropic
radiator
R = distance to the center of radiation of the antenna (cm)
Note that G, the power gain factor, is usually expressed in logarithmic terms (i.e., dB), and must
be converted using the following equation:
G = 10dB/10
For example, a logarithmic power gain of 24 dB is equal to a numeric gain of 251.19.
Assuming (1) maximum output power from the N2-4XE1 (+3.5 dBm [2.238 mW]), (2) no signal
loss in the cable connecting the N2-4XE1 to the antenna, and (3) the use of a 27 dBi gain
parabolic antenna, the 5.0 mW/cm2 and 1.0 mW/cm2 MPE power density limits would be
reached at distances of approximately 4.22 cm and 9.44 cm, respectively.
Wireless, Inc. fully supports the FCC’s adopted MPE limits, and recommends that personnel
maintain appropriate distances from the front of all directional microwave antennas. Should you
have questions about N2-4XE1™ microwave signal radiation, please contact the Wireless, Inc.
Customer Service Department.

viii
N2-4XE1 Installation and Operation Manual
Notice Regarding Operation pursuant to FCC part 15 Rules
This equipment has been tested and found to comply with the limits for a Class A digital device
pursuant to part 15 of the FCC Rules. These limits are designed to provide reasonable
protection against harmful interference when the equipment is operated in a commercial
environment. This equipment generates, uses and can radiate radio frequency energy and, if
not installed and used in accordance with the instruction manual, may cause harmful
interference to radio communications. Operation of this equipment in a residential area is likely
to cause harmful interference in which case the user will be required to correct the interference
at his own expense.

1
N2-4XE1 Installation and Operation Manual
1.0 General Overview
1.1 N2-Link Series Product Family
All N2-4XE1 radios are members of the N2-ACCESS Series radio product family. The N2-
ACCESS Series is designed to provide an economical wireless solution for local access
telecommunication requirements.
This manual addresses, in detail, the operation of the N2-4XE1. For detailed information on
other members of the N2-ACCESS Series, please refer to the appropriate Operation Manual(s).
1.2 Introduction to the N2-4XE1
The N2-4XE1 is a digital radio using BPSK modulation techniques and is designed for use as
a point-to-point communications system. The N2-4XE1 is used in the following applications:
point-to-point (building to building), ISPs, CLECs, Wireless Local Loop (WLL), Backup
Solutions and Temporary Links.
The N2-4XE1 radio is designed for operation in two of the Unlicensed National Infrastructure
at frequencies of 5.250 - 5.350 GHz or 5.725 - 5.825 GHz.
Each N2-4XE1 is comprised of an indoor unit which provides the means to connect system
power, formatted data, SNMP interface and RS-232 ports to monitor and control the link. An
outdoor pole mounted RF unit is supplied as part of the system. Each link is powered by means
of a DC power supply which is fed to the unit through a power/data cable. The system has a data
total transmission capacity of 8.448 Mb/s. Refer to the N2-4XE1 data sheets for detailed
information relating to product offerings and specifications.

2
N2-4XE1 Installation and Operation Manual
Table 1.1 - FCC U-NII Bands
1.3 Regulatory Information
In January 1997, the FCC made available 300 MHz of spectrum for Unlicensed National
Information Infrastructure (U-NII) devices. The FCC believes that the creation of the U-NII band
will stimulate the development of new unlicensed digital products which will provide efficient and
less expensive solutions for local access applications.
The U-NII band is divided into three sub bands at 5.15 - 5.25, 5.25 - 5.35 and 5.725 - 5.825 GHz.
The first band is strictly allocated for indoor use and is consistent with the European High
Performance Local Area Network (HIPERLAN). The second and third bands are intended for
high speed digital local access products for “campus” and “short haul” microwave applications.
1dnaB2dnaB3dnaB
ycneuqerF zHG52.5ot51.5zHG53.5ot52.5zHG528.5ot527.5
)xaM(rewoP PRIEsttawillim002PRIEttaw1)PRIE(sttaw4
*
esUdednetnI ylnOesUroodnIsupmaCselim01xorppA
swolla8991,42enuJnodesiver)00M(redrodnanoinipomudnaromemCCFtnecerA:etoN* forewoptuptuorettimsnartmumixamadnaniagiBd32htiwannetnalanoitceridafoesueht .dnabIIN-U528.5-527.5ehtnittaw1
609772LW

3
N2-4XE1 Installation and Operation Manual
2.0 N2-4XE1 Product Profile
2.1 General Overview
The N2-4XE1 series of microwave radio products provides digital capacities for 4XE1 data rates
for short-haul applications up to 10 km. The radio terminal operates in the Unlicensed National
Information Infrastructure (U-NII) spectrum with a revolutionary Split Modulation system
architecture that provides full duplex operation in the 5.3/5.7 GHz U-NII frequency bands.
The N2-4XE1 series provides the unique advantage of a very robust digital transmission
scheme employing advanced Forward Error Correction (FEC) techniques to reduce data
errors.
The product uses two separate 100 MHz bands within the U-NII frequency spectrum. Within
these bands, the N2-4XE1 series operates in one of many independent channels providing for
frequency reuse and network flexibility, ideal for dense network applications.
Synthesized RF channel selection is field configurable, as are the power output options for the
selection of antenna sizes. Frequency coordination and installation guidelines are provided in
the appendix section of this manual.
Complying with all aspects of FCC Rules Subpart 15.401-15.407, the transmission character-
istics of the N2-4XE1 series are ideally suited to meet the peak power spectral density
requirements of the U-NII 5.250 - 5.350 and 5.725 - 5.825 GHz bands.
The N2-4XE1 has been designed for easy access to all interfaces, controls, and displays.
Information in this manual will familiarize you with all of these items. Figure 2.1 illustrates two
(2) N2-4XE1 terminals in a point-to-point configuration.

4
N2-4XE1 Installation and Operation Manual
This Page Left Blank Intentionally

5
N2-4XE1 Installation and Operation Manual
Figure 2.1 (WL272904) goes here

6
N2-4XE1 Installation and Operation Manual
Figure 2.1 (WL272904) goes here

7
N2-4XE1 Installation and Operation Manual
2.2 Specifications
2.2.1 General Specifications
Frequency Band: Full-duplex operation in the Unlicensed National
Information Infrastructure
Regulations: Complies with FCC Ruling Part 15, Subpart E (U-NII)
Frequency Range: 5,250 - 5,350 MHz and 5,725 - 5,825 MHz
Capacity Options: 4xE1
2.2.2 Digital Interface
ITU-T/E1
Type: Based on 4 E-1 inputs
Line rate: 4 x 2.048 Mb/s
Line Code: HDB3
Interface: 75Ω unbalanced or optional 120Ω unbalanced
Connectors: BNC (75Ω) or RJ-48C (120Ω)
2.2.3 Transmitter
5.3 GHz (Low Band) 5.7 GHz (High Band)
Frequency Range: 5,250 - 5,350 MHz 5,725 - 5,825 MHz
Output Power (maximum): 0 dBm 0 dBm
+4 dBm +4 dBm
+8 dBm +8 dBm
+12 dBm +12 dBm
2.2.4 Receiver
Type: Coherent Detection Coherent Detection
Sensitivity, BER 10-6 Typical: 85.5 dBm 85.5 dBm
Maximum RF Input: -20 dBm -20 dBm

8
N2-4XE1 Installation and Operation Manual
2.2.6 Diagnostics
LED
Front Panel Indicators: Power (normally On)
Alarms: Major Alarm On
Minor Alarm Blinks
External Alarm Inputs: Two separate TTL level inputs, ground inputs to alarm
(DB9 connector)
Performance Monitoring: Receive Signal Strength Indicator (RSSI)
2.2.7 Power
Input Voltage Range: ±20 to 72 VDC
Power Consumption: 21 watts maximum
2.2.8 Environmental
Indoor Unit Outdoor Unit
Temperature Range: -10°C to +50°C -30°C to +60°C
Altitude: 4,500 meters (15,000 ft) 4,500 meters (15,000 ft)
Humidity: 95% non-condensing Outdoor, all weather
enclosure
2.2.5 Antennas
Forward Gain Front/Back Ratio
Flat Panel: 6” (15.24 cm) 18 dB 35 dB
12” (.30 m) 23.5 dB 41 dB
24” (.61 m) 27 dB 45 dB
Parabolic: 2’ (.61 m) 28 dB 38 dB
4’ (1.22 m) 34 dB 46 dB
epyTrebmuNtraPdnarerutcafunaM
iBd5.82,dezireloPenalP,hsidretemaid'2IRA25-2PSSleirbaG
iBd5.82,dezireloPlauD,hsidretemaid'2IRA25-2DSSleirbaG
iBd5.33,dezireloPenalP,hsidretemaid'4*A25-4PSSleirbaG
iBd5.33,dezireloPlauD,hsidretemaid'4*A25-4DSSleirbaG
iBd81,dezireloPenalP,lenaPtalF"625-5.SPFDleirbaG
iBd5.32,dezireloPenalP,lenaPtalF"2125-1SPFDleirbaG
iBd5.82,dezireloPenalP,lenaPtalF"4225-2SPFDleirbaG
.tnailpmocCCFtoneradna,ylnoASUehtedistuoesuroferasannetnahsidtoof-4ehT*
709772LW
Table 2.1 - Recommended Antennas

9
N2-4XE1 Installation and Operation Manual
2.2.9 Mechanical
Indoor Unit Outdoor Unit
Dimensions (HxWxD): 44 x 483 x 240 mm 310 x 351 x 73 mm
(0.72 x 19.0 x 9.4 in) (12.2 x 13.8 x 2.88 in)
Weight: 2.9 kg (6.6 lbs) 5.2 kg (11.5 lbs)
2.2.10 FCC Information (US Only)
This device has not been authorized as required by the rules of the Federal Communications
Commission. This device is not, and may not be, offered for sale or lease, or sold or leased, until
authorization is obtained.
Notes: 1. N2-4XE1 is intended for professional installation only
2. Specifications subject to change without notice

10
N2-4XE1 Installation and Operation Manual
2.3 User Interfaces
The N2-4XE1 provides user interfaces for fused DC power connection, electrical grounding,
radio frequency (RF) antenna connection, E1 Data connection, configuration and RSSI output.
The following provides information on each interface. Figure 2.2 shows the locations of each
connection to the indoor unit.
Indoor Unit, Connections
•21-56 VDC Power Input - provided by customer, each terminal consumes 21 Watts
•4xE1 Input/Output BNC type - E1 data conforming to the G.703 standard
(Optional RJ-48C Connection)
•NMS-Port - RJ-48C - SNMP interface for existing NMS systems
•Aux Port 1-RS-232 Connection, DB9 - provides local and remote control over terminals
•Aux Port 2-RS-232 Connection, DB9 - provides local and remote control over terminals
•ODU Power Interface - Category 3 Siamesed cable provided in the install kit
•ODU Data Interface - Category 3 Siamesed cable provided in the install kit
Indoor Unit, Controls and Indicators
•Fuse/On-Off Switch - Fuse holder containing a 250 V, 3 amp fuse for protection of the
system. The fuse can be rotated counterclockwise to disable the system, clockwise to
enable.
•LEDs, Status and Alarm - The status LED confirms the system is on. The alarm LED
indicates an alarm condition exists. The fault can be determined by means of the local RS-
232 interface on the IDU and a VT-100 terminal.
•G.703 Ground Switch - Enables the customer to configure the ground requirements of the
E1 unbalanced connections according to the G.703 standard.
•LEDs, Link, TX and RX - Provide a visual indication of the status of the link, transmitter and
receiver.
Figure 2.2 - N2-4XE1 Link IDU
Status
Alarms 12 34
Digital Input
Digital Output
DC
AC
21-56V
250V 3A
Link
Rx
Tx
NMS Port AUX Port 1 AUX Port 2 +-
Data
ODU Interface
+-
WL272903
N2 -
Link
TM
Fuse -250V 3A G.703 Ground
Switch
Siamesed Cat 3
Data/Power
To/From ODU
NMS - SNMP
Interface, RJ-48c
4xE1 Data Input/Output
BNC-Type Connections
RS 232 Interface,
DB-9 Connector
21-56 VDC
Input

11
N2-4XE1 Installation and Operation Manual
tinUnoitpircseD
smralAUDI tsoLataDUDO,mralAxumeD,mralALLP,4-1SIA
noitarugifnoCUDIsehctiwS,noitarugifnoC,dnuorG,307-G
smralAUDOrezisehtnyS,domeD,evieceR,CLA
noitarugifnoCUDO noitceleSycneuqerF,noitaunettAFR,kcabpooLelbaC
209772LW
Table 2.2 - Features Available Through the RS-232 Interface
Outdoor Unit
•Date/Power Cable - Siamesed cat - 3 Data and power cables.
•RSSI - BNC type connector used for RSSI measurement.
•Antenna (RF) Connector - N-type connector used for connection with antenna.
•Main Power - The N2-4XE1 is designed to work from a power input of 20 to 56 VDC.
•Grounding Connector - The front panel of the N2-4XE1 is equipped with an M5 ground
screw and associated washers. This ground screw serves as the proper chassis-ground
connection point for an external ground source. The N2-4XE1 must be grounded in
accordance with the electrical codes, standards, and practices governing the local
installation.
The following alarm configuration features are possible using the RS-232 interface:

12
N2-4XE1 Installation and Operation Manual
Figure 2.2a - Outdoor Unit, Front View
Figure 2.2b - Outdoor Unit, Back View
Siamesed Category 3
Ethernet and
Power cables
Receive Signal Level (RSL)
Output (BNC Type, Female)
Antenna Connection
(N Type, Female)
ODU
Ground Connection
Mounting
Studs
WL272905
WL272910

13
N2-4XE1 Installation and Operation Manual
2.4 ODU Performance Monitoring
RSSI - A voltage provided through a BNC connector on the outside of the ODU. The RSSI port
is used for antenna alignment during installation and for periodic measurement of Receiver/
Path performance. The RSSI voltage is related to Rx BER from -30 dBm to -90 dBm.
2.5 Theory of Operation
General Overview
The N2-4XE1 is a point to point Wireless Extension operating in the 5.3/5.7 GHz UNII band as
authorized in rule sections 15.401 through 15.407. The unit is enclosed in a weather proof
outdoor enclosure and is intended to provide data links over distances up to 10 km. The radio
in the unit operates full duplex, transmitting and receiving data at the rate of 8.448 Mbps. The
radio is modulated using BPSK.
2.5.1 N2-4XE1 Indoor Unit
Circuit Description
The following circuit description is intended to explain the operation of the indoor and outdoor
units at the block diagram level. This text is written with the idea that the reader has the block
diagram readily available, as it will aid in understanding the signal flow in the radio.
Four E1 rate tributaries are time division multiplexed and input to the IDU protection circuit by
means of four panel mounted BNC type connectors. The LIU (Line Interface Unit) converts the
4xE1 data stream from a bipolar HDB3 signal which is input to the Mux/Demux and converts
the 4E1 signal to an aggregate signal. The FGPA scrambles the data into a pseudo random
pattern which passes the data back to the mux and through an E2 rate line interface to and from
the ODU. The microcontroller acts as the processing core to manage all external and internal
functions of the IDU/ODU. This includes monitoring the ODU, IDU for alarm conditions, as well
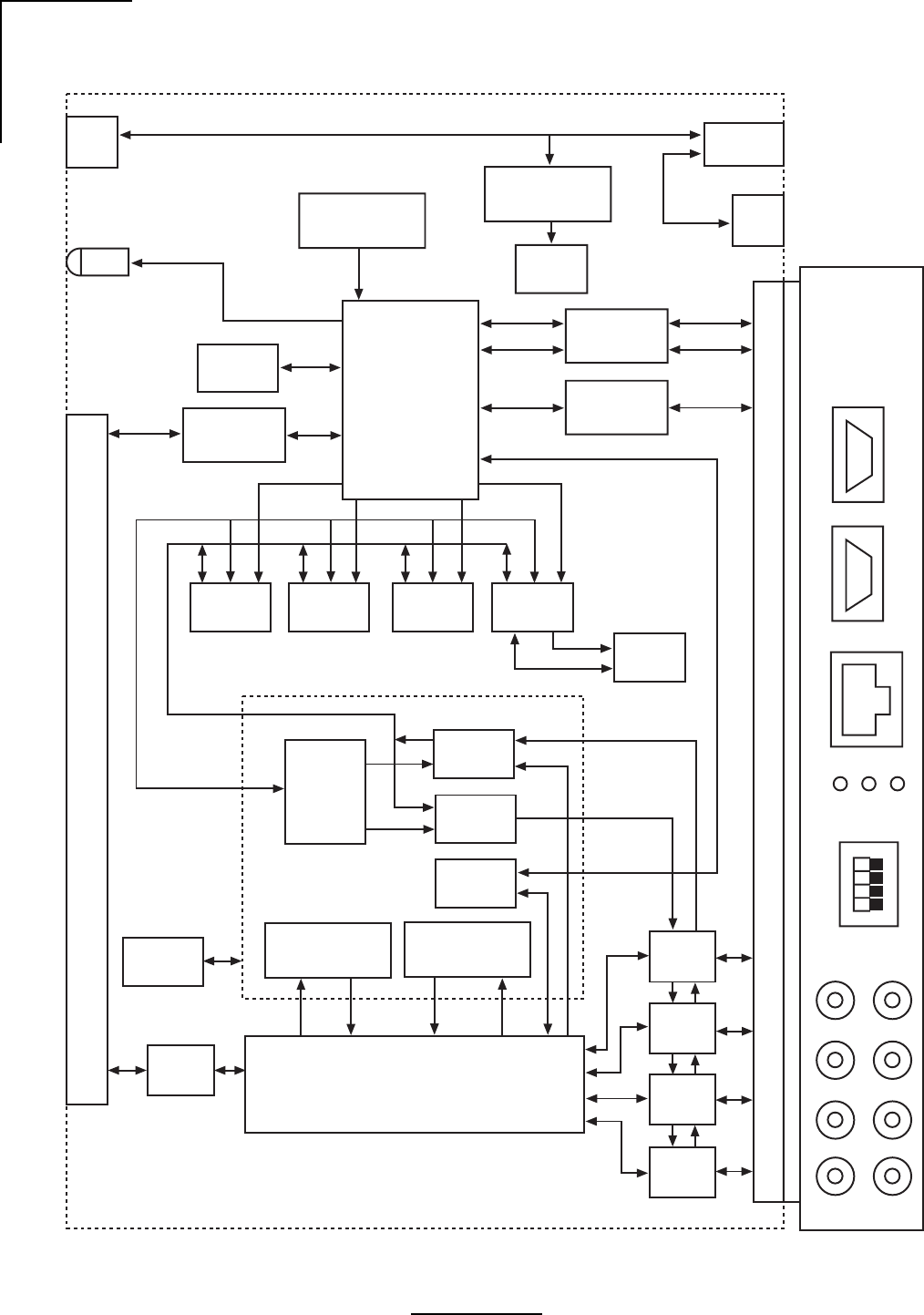
as providing SNMP and RS-232 control over the terminal. See Figure 2.3.

14
N2-4XE1 Installation and Operation Manual
Figure 2.3 - Block Diagram, IDU
E1
LIU3
E2
LIU
J16
E1 / E2
MUX
E1
LIU4
E1
LIU2
E1
LIU1
Scrambler
De-Scrambler
Radio
Sync
Cntrl
Regs
Addr
Decode
Status
Regs
OTPROM
Boot
512K Flash1
512K Flash2
512K 303V
XCVR
DRAM
8M
Data
Addr
CSO
CS1
PIO
PIO
R
J
1
EEPROM
2K
Modem
Driver
CPU
68EN302 RS232
XCVR
Ethernet
XCVR
3.3V
Reg
SCC2
SCC3
Ether
SCC1
RASO
CS2
addr
data
FPGA
TAO
Data
Addr
J
2
3
Front
Panel
Board
J15
5V DC-DC
Converter
Fuse
Power
Supervisor
Status
Lead
Reset
IDU Board
Aux 2
Aux 1
Ether
Link Leds
UNI/BI SW
E1 BNC
TX RX
WL055001

15
N2-4XE1 Installation and Operation Manual
2.5.2 N2-4XE1 Outdoor Unit, Transmitter
The data is differentially encoded and scrambled before it is routed through the transmit
baseband filter to provide spectral shaping. The baseband filter is a five pole low pass filter.
After amplification, the baseband signal is fed to the modulator consisting of a doubly balanced
mixer. The modulator is running directly at the transmitter frequency of 5.775 GHz ± 50 MHz.
The local oscillator signal of the mixer is supplied from the frequency synthesizer section, with
the frequency dependant on the RF channel selected. Operation of the frequency synthesizer
will be detailed later in this document.
From the output of the modulator, the signal is amplified and then passed through a 150 MHz
wide bandpass filter to remove any local oscillator products from the output spectrum. After
filtering, the signal is passed through a series of amplifier and attenuator stages that are used
to control the output power level. With a combination of fixed and variable attenuation the output
power can be set to one of four different levels to accommodate different antennas used with
the product.
The power setting is maintained by an active ALC circuit that samples the transmitter output
power and then adjusts the variable attenuator to keep the output power constant over the
operating temperature of the unit. The power level is controlled to within ±1 dB of the set point.
Following the attenuators the signal is fed through additional amplification to bring the output
level to a maximum of +13 dBm at the output of power amplifier. A lowpass matching section
follows the power amplifier to aid in filtering harmonics of the signal. After passing through the
duplexer, the power level at the antenna port is a maximum of +11 dBm.

16
N2-4XE1 Installation and Operation Manual
2.5.3 N2-4XE1 Outdoor Unit Receiver
The receiver in the N2-4XE1 is a conventional dual conversion design with IF frequencies of
474.88 MHz and 70 MHz.
From the receive port of the duplexer, the low level input signal is passed through a low noise
preamplifier that provides 25 dB of gain. Following the preamplifier the signal is passed through
a 200 MHz wide bandpass filter to provide image rejection for the first mixer.
The signal is then mixed with the first LO to convert the signal to 474.88 MHz. Following further
amplification the signal is passed through a five pole, 20 MHz wide bandpass filter. This filter
provides image filtering for the second mixer, and also helps attenuate signals on the adjacent
receive channels. After filtering, the signal is further amplified and then passed through a
variable attenuator stage before it is applied to the second mixer.
The output of the second mixer is at 70 MHz. The 70 MHz IF stages provide additional gain along
with two sections of variable attenuation for the AGC function. The primary adjacent channel
filtering is also at 70 MHz where the signal is passed through a 12 MHz wide SAW filter. The
combination of filters provide a minimum of 47 dB of attenuation at the adjacent receive
channels (± 10.24 MHz).
At the end of the 70 MHz IF chain the signal is fed into a quadrature demodulator. The carrier
recovery loop consists of a four quadrant multiplier that multiplies I and Q baseband signals to
create an error voltage. This error voltage is then amplified and fed back to the 70 MHz VCO.
This forms a phase locked loop that is locked to the received carrier frequency.
The 70 MHz output is also fed into a wide band logarithmic amplifier that provides a DC voltage
output proportional to the 70 MHz signal strength. The DC voltage is then integrated and fed
back to the variable attenuator stages to form an AGC control loop. This control loop keeps the
signal level at the input to the demodulator chip constant over the entire operating range of the
receiver.
Data recovery from the I baseband signal begins by passing the I signal through a slicer. The
output of the slicer is a digital signal that contains both data and clocking information. A clock
recovery circuit recovers receive timing information that is needed to clock the data through the
descrambler, and differential decoder.

17
N2-4XE1 Installation and Operation Manual
2.5.4 Synthesizer
The FPGA provides four 22-bit streams in a serial format loaded to the synthesizer. This data
provides all of the possible frequencies at which the system can operate. Depending upon the
dip switch settings selected, the actual frequency being used is selected. When the reset button
is pressed, the FPGA will reload this data to the synthesizer.
Frequency Synthesis
The local oscillator frequencies used in the RF Unit are all synthesized from a 19.2 MHz, ± 2.5
PPM reference oscillator. The overall frequency stability of the radio is ±2.5 PPM, directly
reflecting the reference oscillator stability.
A dual frequency synthesizer chip is used to control both the first and second local oscillator
loops. This chip supports one high frequency oscillator, up to 1.5 GHz, and one lower frequency
oscillator to be used as a second LO.
The first local oscillator VCO operates at one half the transmitter output frequency, and changes
with the transmit channel selected. The first LO consists of a bipolar VCO operating at 2.887
GHz ±25 MHz. The output of this VCO is buffered and then passed through a X2 prescaler chip
before being fed back to the synthesizer chip. The phase comparison frequency for the first LO
is 320 kHz.
After amplification the 2.887 GHz signal is passed through a frequency doubler to create the
5.775 GHz signal that is applied to the mixer stages.
The second local oscillator consists of a VCO that is phase locked to 404.88 MHz. This auxiliary
synthesizer is operating with a phase comparison frequency of 240 kHz.

18
N2-4XE1 Installation and Operation Manual
This Page Left Blank Intentionally

19
N2-4XE1 Installation and Operation Manual
Figure 2-4 (WL272902) goes here

20
N2-4XE1 Installation and Operation Manual
Figure 2-4 (WL272902) goes here

21
N2-4XE1 Installation and Operation Manual
3.0 Equipment Installation and Commissioning
3.1 Installation
The N2-4XE1 has been specifically designed for ease of installation. The following installation
instructions should be followed.
1. Plan the installation - Decide where each component of the N2-4XE1 will be placed prior
to commencement of any installation activity. Installation considerations for each compo-
nent in general are as follows:
a. Indoor Unit - Install in floor or rack mount configuration.
b. Outdoor RF Unit - Mount as close as practical to the Antenna assembly. The maximum
distance is determined by the included interconnect cable which is 1 meter in length.
Determine pole mounting details for the Outdoor Unit and Antenna. Adjust output power
according to Table 3.1.
c. Antenna Unit - See Appendix B.
2. Inventory your equipment and installation materials.
To install one (1) terminal you should have the items shown in Table 3.1.
3. The following tools should be on hand:
Tool Purpose
Wire Stripper/Cutter General wire stripping and cutting purposes
Hand-Held Voltmeter (DMM) Confirm magnitude, polarity, continuity
with standard probes
2 Adjustable Wrenches Antenna mounting, Outdoor Unit up to 1.5 cm
#2 Philliips Screwdriver Outdoor Unit Grounding
Table 3.1 - Inventory of Equipment and Installation Materials
ytQnoitpircseD
1UDIX4-2N
1tiKllatsnIUDIX4-2N
1UDOX4-2N
1srenetsafdetaicossadnatekcarBtnuoMllaWroeloP
1elbaCrewoPylppuSCDV84/ataDdesemaiS
1ylbmessAelbaClaixaoCelaM-NotelaM-N
309772LW

22
N2-4XE1 Installation and Operation Manual
3.2 Install the IDU
1. Choose either a desktop or rack mount mounting location.
•For a desktop mount configuration, the unit can be installed directly out of the box.
•For rack mounting the IDU, installation kit contains rack mounting brackets for flush or
projection mounting. See Figure 3.1 for IDU Install Kit. Remove the desktop mounting
feet and install the rack mount brackets.
2. Make the following connections to the IDU:
•21-56 VDC Input
•4xE1 Data Input/Output BNC-Type Connections
•G.703 Ground Switch
•NMS - SNMP Interface, RJ-48C
•Aux 1 (DB-9, Terminal Interface, RS-232)
•Aux 2 (DB-9, Aux Serial port or Alarm Input)
•Siamesed Cat. 3 Data/Power To/From ODU
WL272911
Status
Alarms 1 2 3 4
Digital Input
Digital Output
DC
AC
21-56V
250V 3A
Link
Rx
Tx
NMS Port AUX Port 1 AUX Port 2 +-
Data
ODU Interface
+-
N2 -
Link
TM
12 x 24
Rack Screws
4 Places
Figure 3.1 - N2-4XE1 Link Rack Mount

23
N2-4XE1 Installation and Operation Manual
Figure 3.2 - Outdoor Unit Mounting Hardware
3.3 Outdoor RF Unit Installation
General
The outdoor unit is installed by means of a pole mount adaptor bracket (wall mount optional)
that is secured to the pole using two metal hose type clamps. Figure 3.1 shows the hardware
provided to mount the Outdoor RF Unit.
1. Install the outdoor unit pole mount adaptor bracket using the supplied metal hose type
clamps. See Figure 3.2.
2. Align the four mounting studs on the outdoor unit with the bracket holes (See figure 3.3)
and secure to the bracket by pushing down the latches as shown in Figures 3.3a and 3.3b.
3. Connect the Siamesed Category 3 Data/power cable, the N-type antenna and the ground
connections as shown in Figures 3.4a and 3.4b.
Siamesed Catagory 3
Ethernet and Power Cable
for IDU to ODU Interconnection
N-Male to N-Male
ODU to Antenna
Coaxial Cable Assembly
Pole Mount
Bracket Fasteners
Wall Mount Bracket
(Optional)
Pole Mount Bracket
WL272909

24
N2-4XE1 Installation and Operation Manual
Figure 3.3 - Mounting the Outdoor RF Unit to the Bracket
Pole Mount
Bracket
Outdoor Unit
WL272912

25
N2-4XE1 Installation and Operation Manual
Figure 3.3a - Mounting Bracket Latch and Stud Mount Detail
Detail of Latch Mechanism
for Securing the Outdoor Unit
to the Pole Mount
(4 Places on Bracket)
Outdoor Unit
Mounting Studs
placed through
this hole
WL272913

26
N2-4XE1 Installation and Operation Manual
Figure 3.3b - Locking the Mounting Hardware
Mounting
Studs x 4
Press locking latches
down to secure the ODU
to the pole mount bracket
WL272906

27
N2-4XE1 Installation and Operation Manual
Figure 3.3c - N-Type Antenna and Siamesed Ethernet/Power Connections
WL272907
N-Type
Antenna
Connector
Siamesed Category 3
Data/Power Cable

28
N2-4XE1 Installation and Operation Manual
Figure 3.3d - Ground Connection
Ground Cable
(not supplied)
WL272908

29
N2-4XE1 Installation and Operation Manual
Table 3.2 - Installation Checklist
tsilkcehCnoitallatsnI
?eruceserawdrahgnitnuomkcarehtsI
?dednuorgylreporptinuehtsI
?detcennocylreporpannetnaehtsI
?tcerrocdnaecalpnisnoitcennocatadehterA
809772LW
3.4 Commissioning
1. Visually verify that the N2-4XE1 is properly mounted.
2. Verify that the DC power input to the N2-4XE1 is on.
Refer to Table 3.2.
3.4.1 Configuring N2-4XE1 System Antennas
The antennas used on an N2-4XE1 radio system are generally configurable for either vertical
or horizontal polarization. It is extremely important to verify that both antennas are configured
for the same polarization, and that the appropriate antenna polarization has been selected for
the specific radio link.
3.4.2 Aligning the N2-4XE1 System Antennas
With the N2-4XE1 at each site properly configured for operation, antenna alignment must be
performed at both sites. Proper antenna alignment is crucial to the proper operation of an N2-
4XE1 radio system, and should only be accomplished by experienced professionals.
The N2-4XE1 is equipped with a ODU mounted BNC-(f) RSSI connector to which an analog or
digital voltmeter can be connected. The voltage range at the test point, between the center
conductor of the connector and ground, varies from approximately two VDC to four VDC,
serving as a receive signal strength indicator (RSSI). The stronger the receive signal, the higher
the RSSI voltage.
Emanating from a microwave antenna is a main beam (or lobe) of RF energy, surrounded by
RF side lobes. The beamwidth of the main beam varies with the size and type of antenna, as
well as the specific frequency of the RF signal, and is generally defined by the nominal total width
of the main beam at the half-power (-3 dB) points. Side lobes surround the main beam at specific
angle distances, and will be lower in power than the main beam.
When aligning an antenna system, it is extremely important to verify that the antennas are both
aligned on the main beam, not on a side lobe. Referencing Table 3.3, the first side lobe will
generally be located at an angle slightly less than twice the antenna beamwidth.
Following the course alignment of an antenna system, a common practice when performing a
fine alignment is to slowly swing each antenna (one at a time!) in both vertical (elevation) and
horizontal (azimuth) planes to verify that the main beam and first side lobe can be accurately
identified. This insures that accurate alignment of the antenna system on the main beam has
been accomplished.

30
N2-4XE1 Installation and Operation Manual
Table 3.3 - Approximation Table
elytSdnaretemaiDannetnA)iBd(niaG)seerged(htdiwmaeBBd3
cilobaraptoof-25.821.6
*cilobaraptoof-42.031.3
lenaptalftoof-15.324.9
lenaptalftoof-25.827.4
.tnailpmocCCFtoneradna,ylnoASUehtedistuoesuroferasannetnahsidtoof-4ehT*
909772LW
Each N2-4XE1 is shipped with an RSSI test sheet, showing the relationship between the receive
signal strength level (in dBm) and the RSSI level (in VDC). These RSSI test sheets are often
referred to as AGC Curves. The RSSI test sheets can be used to verify that the calculated
receive signal levels match up with the actual receive signal levels. Substantial differences
between calculated and actual levels could point to transmission system problems, side lobe
alignment, path obstructions, etc.

31
N2-4XE1 Installation and Operation Manual
4.0 Maintenance and Troubleshooting
The N2-4XE1 contains static sensitive components, and has no user-serviceable parts.
4.1 N2-4XE1 Maintenance
The N2-4XE1 is designed to operate with no scheduled maintenance activities. From a
precautionary perspective, a regular check of power supply input voltages and RSSI voltages
should be planned by the user.
4.1.1 RSSI Voltage
The Wireless Customer Service department recommends a monthly check of the N2-4XE1’s
RSSI voltage. Variations in the RSSI voltage could be an indicator of antenna or antenna feed
movement, loose or improper RF cabling or connectorization, path obstructions or reflections,
etc.

32
N2-4XE1 Installation and Operation Manual
4.2 Identifying and Resolving Receive Signal Strength Issues
There are a great number of items which can affect the transmission of a microwave signal from
one site to another. Every microwave path is unique, and must be evaluated for performance
before a radio link is installed.
Outside of radio equipment issues, antenna alignment, RF signal blockage, and multipath
fading are among the most common transmission problems experienced in the field.
4.2.1 N2-4XE1 Equipment Issues
Frequency Selection
1. Verify the transmit/receive frequency selection for each N2-4XE1 radio is set appropri-
ately, and that a “matched pair” of radios has been selected for the system. Each N2-4XE1
terminal can be set to the frequencies listed in Table 4.1.
2. To reduce the possibility of co-adjacent channel interference, proper frequency coordina-
tion and antenna polarization is used to isolate each channel. The concept is to achieve
maximum RF isolation between link channels by means of frequency spacing and antenna
polarization. In a “star” configuration an optimum frequency and antenna polarization plan
is provided to demonstrate an example of maximum isolation between links (See Figure
4.1).
Table 4.1 - Frequencies
.oNlennahCycneuqerF
18062.5
'1865337.5
240172.5
'229547.5
382182.5
'361657.5
425192.5
'44667.5
567103.5
'546677.5
600213.5
'688687.5
742223.5
'721797.5
884233.5
'863708.5
019772LW

33
N2-4XE1 Installation and Operation Manual
4.3 Where To Get Further Assistance
Your primary source of assistance is the support staff of the organization from which you
purchased this product. The Wireless, Inc. support staff should only be contacted directly if you
purchased this product directly from Wireless, Inc., or if you are unable to obtain sufficient
assistance from your primary support contact.
General Product and Company Information
Wireless, Inc.
5352 Betsy Ross Drive
Santa Clara, CA 95454-1101
USA
Tel: +408 727 8383
Fax: +408 727 1259
E-mail: info@wire-less-inc.com
Website: www.wire-less-inc.com
Detailed Product Information, Sales, Pricing Information and Pre-Sales
Technical Support
Wireless, Inc.
Sales Department
5352 Betsy Ross Drive
Santa Clara, CA 95454-1101
USA
Tel: +408 727 8383
Fax: +408 727 0990
E-mail: info@wire-less-inc.com
Website: www.wire-less-inc.com
Post-Sales Technical Support (Customer Service)
To assist you with field issues and, if necessary, to arrange for repair services, Wireless, Inc.’s
Customer Service department can be reached via telephone, facsimile, e-mail, mail, or through
our Website.

34
N2-4XE1 Installation and Operation Manual
4.4 Return Procedure
All material returned to Wireless, Inc. must be accompanied by a Return Material Authorization
(RMA) number from Wireless, Inc.'s Customer Service department. If you purchased your
Wireless, Inc. product through a distributor, the Wireless RMA number should be obtained
through the distributor. An RMA number is necessary to assure proper tracking and handling
of returned material at the factory. Wireless, Inc. reserves the right to refuse shipments not
accompanied by an RMA number. Refused shipments will be returned to the shipper via collect
freight.
To obtain an RMA number, contact Wireless, Inc. as follows:
Telephone: +408 727 8383
Fax: +408 727 1259
E-mail: customerservice@wire-less-inc.com
The following information will be required to issue an RMA number:
•Part Number
•Serial Number
•Failure Description
•Contact person, telephone, and fax numbers
•Ship-to address
•Bill-to address*
•Customer purchase order* (P.O.) or reference number
* Required for non-warranty repair services. For non-warranty repair services, an RMA
number will be issued when Wireless, Inc. acknowledges the purchase order.
Important - All non-U.S. returns must include 5 copies of proforma/customs invoice for each
shipment which lists:
•RMA number
•Value of items
•Description of items (including the Wireless model or part number)
Please send all returns to:
Wireless, Inc.
Attn: RMA Department
5452 Betsy Ross Drive
Santa Clara, CA 95054-1101
USA
RMA No. __________
The customer is responsible to properly label and package repairs and prepay shipping to
Wireless, Inc. If possible, the original packaging material should be used to return electronic
parts. The RMA number must be visible on the outside of all packages returned. Unless other
arrangements have been made, all repairs are shipped back to the customer prepaid via ground
carrier.

A-1
N2-4XE1 Installation and Operation Manual
Appendix A Grounding Practices and Lightning
Protection Information
General
Good grounding (“earthing”) practices, when used in telecommunications, have some direct
benefits which can help you maximize the up time of your system as well as ensure the safety
of those people working on the system. Among these benefits are:
1. Protection of personnel from electric shock and fire hazards.
2. Reduction of radiated and conducted electromagnetic susceptibility.
3. Improved system tolerance to discharge of electrostatic energy and lightning interference.
4. Minimized service interruptions and service damage.
There is no practice or formula which can completely eliminate the above risks, but we at
Wireless, Inc. believe that good grounding and bonding practices can significantly reduce the
risk of many of these hazards. We have included a bibliography at the end of this appendix which
contains several publications that are readily available and contain detailed information on
many aspects of grounding systems and their design, implementation, measurement, and
maintenance.
Please note that every telecommunication site is unique, and must be evaluated accordingly.
The following information is provided for generic reference and educational purposes only. The
grounding plans and practices for a given site should only be established and accomplished by
trained professionals, working in accordance with local practices and regulations.
Ground Connections
There should be a grounding plan designed at the outset of site design in order to provide the
best grounding procedures and to minimize ground loop currents. This should be achieved by
connecting the outer conductors of the cables through a large section copper strap to a central
grounding point and the size of the conductor should be increased as each branch path is
added. The final conductor should be connected directly to the grounding system. For a radio
site a single copper grounding rod is insufficient because its impedance is likely to be too high.
Lightning Protection
Radio sites can be particularly prone to lightning strikes by virtue of their normally exposed
locations and the presence of relatively tall antenna support structures.
It is not possible to provide and guarantee complete protection from the effects of lightning;
however, they can be significantly reduced by careful attention to grounding, protection
devices, and the layout of the site itself.
Reference should also be made to various publications, some of which are listed in the
Bibliography. Where any site owner or user is in doubt about the protection requirements for any
particular location, the appropriate authority should be consulted.

A-2
N2-4XE1 Installation and Operation Manual
Protection Arrangements
The purpose of any protection arrangement should be to provide a suitable path to ground for
the lightning current, to ensure adequate bonding between structures and all metalwork on the
site and the common grounding system in order to reduce the side flashing, and to attempt to
prevent the entry of flashes or surges into the building.
The resistance to ground should be kept to a minimum and a value of less than 10-ohms is
recommended. The most important feature is that the system should ideally be at equal
potential across the entire site.
Certain authorities and service providers have their own particular practices which have to be
followed where applicable.
Arrangements will vary considerably from very simple sites to complicated sites with multiple
buildings, antenna support structures and associated equipment, and may involve integration
with existing systems. Such systems may require upgrading.
Lightning Conductors
Down conductors, bonding interconnections, ground rings and radial tapes should be of copper
cable or solid copper tape with a minimum cross section according to local practice with all
connections protected by non reactive paste.
Protected test points should be included if appropriate, and sacrificial ground lugs should be
clearly marked and easily accessible for periodic inspection.
Grounding of Antenna Support Structures
A structure will generally act as its own lightning conductor and therefore will not require an
additional conductor from the top to the base. A lightning rod may be required to extend the zone
of protection to protect equipment mounted on the top of the structure. The lightning rod should
extend 2.5-meters above the highest equipment.
Ground mounted support structures should be connected at their base to a ground ring via
sacrificial ground lugs. Towers should have a connection from each leg.
A ground ring should consist of copper cable or solid copper tape with ground rods equally
spaced at 2-meter intervals around the base of the structure as close to it as possible, buried
approximately 0.6-meters deep where soil conditions allow. An alternative method using radials
rather than rings is detailed in “The ‘Grounds’ for Lightning and EMP Protection”, second
edition, published by PolyPhaser Corporation.
The ground ring should be connected to the main building ground by the most direct route,
buried as appropriate.
Roof mounted structures should be connected to the main building ground by the most direct
route using sacrificial lugs and copper cable or tape as appropriate. Tower guy wires should be
directly bonded at their lowest point to a suitable ground electrode or connected to the site
ground by the most direct route.

A-3
N2-4XE1 Installation and Operation Manual
Grounding of Feeders
All antenna feeders should be bonded to the tower at the upper and lower ends and grounded
at the point of entry into the building. Weatherproof grounding kits are available from antenna
manufacturers.
Note: Many of the cables used by Wireless, Inc. have braided rather than solid outer
conductors; this type of grounding is not appropriate. In these cases we recommend the
use of Wireless, Inc. approved lightning arrestors. For information on lightning arrestors,
please contact Wireless, Inc.’s Customer Service department.
Grounding of Buildings
A ground ring ideally should surround the building and be connected to individual grounds
associated with feeder entry, antenna support structure, building lightning conductor, equip-
ment room, main AC supply and other facilities. Each connection should be made by the most
direct route in order to minimize interaction between the different grounding functions.
The ground ring should consist of copper cable or tape with electrodes 2- meters or greater in
length, buried to a depth of 0.6-meters and at a distance from the building not to exceed 1-meter.
Buildings may require lightning rods where they are not within the zone of another protected
structure.
Bibliograpy
ITU - T K.40 Protection against LEMP in telecommunications centres
ITU - T K.27 Bonding configurations and earthing inside a telecommuni-
cation building
ITU - T K.35 Bonding configurations and earthing at remote electronic
sites
ITU - T K.39 Risk assessment of damages to telecommunications sites
due to lightning discharges
ITU - T Lightning Handbook The protection of telecommunication lines and equipment
against lightning discharges
IEEE Emerald Book - Powering and Grounding
The Grounds for Lightning and EMP Protection, second edition
Published by PolyPhaser Corporation

A-4
N2-4XE1 Installation and Operation Manual

B-1
N2-4XE1 Installation and Operation Manual
Appendix B Installation Instructions
Read the instructions completely before assembling or installing the antenna. This installation
can be dangerous and requires qualified personnel familiar with microwave assembly and
installation.
Site Planning
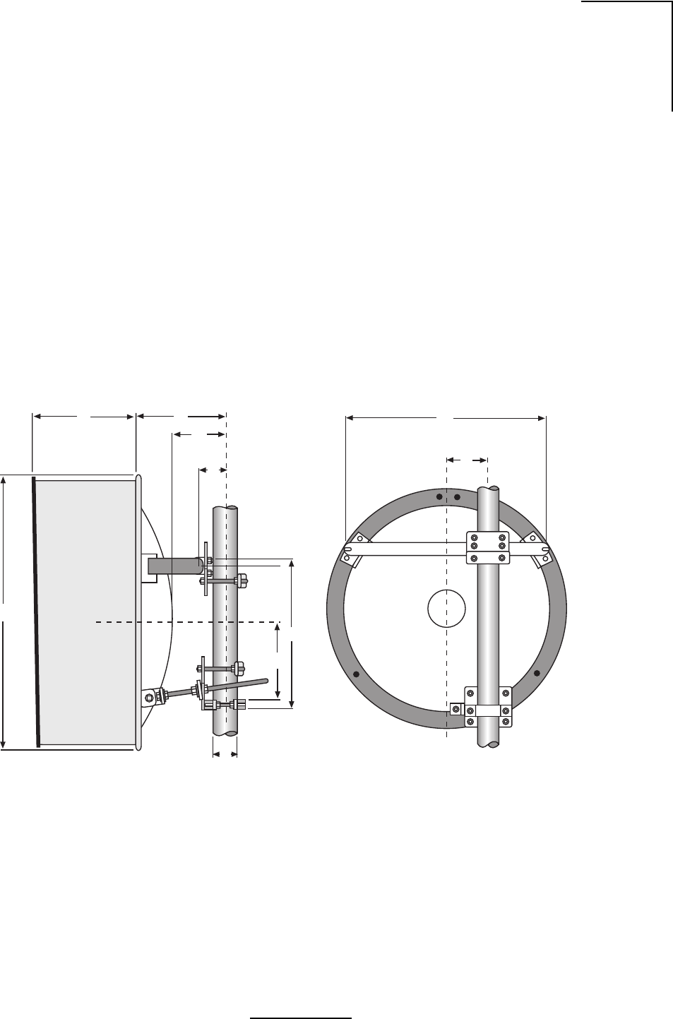
1. For antenna mounting and planning dimensions, see Figure B.1 and Table B.1.
2. The antenna is normally assembled with an elevation adjustment range of +50 degrees to
-5 degrees. By inverting the mount, it can be assembled with a +5 degree to -50 degree
range. In either configuration, the antenna centerline can be offset right or left, relative to
the vertical mast pipe (See Figure B.2) by inverting the Horizontal Tube Assembly.
Figure B.1 - Two Foot Diameter Antenna
WL035927
JH
B
A
P
K
G
Q
D
C

B-2
N2-4XE1 Installation and Operation Manual
Table B.1 - Two Foot Diameter Antenna Dimensions
noisnemiDnoitpircseDannetnA)m6.0(.tf2
AhtgneLtnuoM)mm075("4.22
BtnioPtoviP)mm501("2.4
CtesffOeniLretneC)mm521("0.5
DturtStnuoMlatnoziroHA/N
EturtStnuoMlacitreV.tP.tvP)mm571("8.8
FturtSediSdexiFlatnoziroHA/N
GenilretneCannetnA)mm543("6.31
HhtgneLrotcelfeR)mm513("3.21
JhtgneLduorhStrohS)mm023("5.21
htgneLduorhSgnoL)mm583("1.51
KretemaiDannetnA)mm016("0.42
L)dradnatS(htgneLemodaR)mm043("4.31
NhtpeDturtStnuoMA/N
PxetreVrotcelfeR)mm091("6.7
Q
retemaiDtsaM)mm511-06("5.4"4.2
egnaRelbatsujdAhtumizA °5±
segnaRtnemtsujdAnoitavelE °5-/°05+
829530LW

B-3
N2-4XE1 Installation and Operation Manual
Figure B.2 - Mount Configuration
WL035929
and Nut (4)
3/8” (10mm)
Round Head
Screw Lockwasher
ø 2.4”- 4.5”
(60-115mm)
Shear Stop
Collar
Elevation
Plate

B-4
N2-4XE1 Installation and Operation Manual
Table B.2a - Contents List, Reflector Assembly
Unpacking and Preparation
1. Carefully unpack the reflector, mount, shroud (if any), radome (if any) and feed from the
crate. For correct antenna performance, handle all components with care. Set aside the
packaged feed and any shroud or radome. See Figures B.3 through B.6.
Caution: The reflector spinning has been formed to a very close-toleranced parabolic shape.
Careful handling and assembly is required to avoid denting or deforming the reflector,
which would degrade the antenna's performance.
2. Inspect for any damaged parts. See Tables B.2a-B.2d for an inventory of the parts and
hardware shipped with the antenna.
Shroud Attachment
Attach the shroud assembly that is provided with high-performance antennas to the reflector.
The installation procedure is covered by another instruction sheet supplied with the shroud.
Note: Some models have the shroud factory installed.
Table B.2b - Contents List, Feed Assembly
rebmuNtraPnoitpircseD.ytQkcehC
3-23832A2-nepO'2ES.yssA.lfeR1
039530LW
rebmuNtraPnoitpircseD.ytQ
1-63752pmalCgnitnuoMdeeF4
305-61762058.5-052.5A/SdeeF1
0715TDA071SSD'04x8//7x61/3lytuBkcarTRR1
0500XWF560.x437.0W"4/1rehsaW4
122-IIsnoitcurtsnInoitallatsnI1
0600XUNtuNxeH4
0500XWSrehsaWtilpS4
139530LW

B-5
N2-4XE1 Installation and Operation Manual
Figure B.3 - Mounting Hardware Packed
Figure B.4 - Mounting Hardware Unpacked
WL035932
Feed Horn
Assembly
Mounting
Hardware
WL035933

B-6
N2-4XE1 Installation and Operation Manual
Table B.2c - Contents List, Mount Assembly
rebmuNtraPnoitpircseDytQ
105-57652ylbmessAepiPlatnoziroH 1
505-52752ylbmessAgnipmalCtsaM 1
2-61322vlaGdoRdedaerhT2
5-52542"1flaHpmalCtsaM1
0210GWFvlaGrehsaW2
1210GUNvlaGrehsaW6
0900GWSvlaGrehsaWtilpS4
905-52732yssAgnipmalCtsaM 1
2-61322vlaGdoRdedaerhT2
8-52542flaHpmalCtsaM1
0210GWFvlaGrehsaW2
0210GUNtuNxeH6
0900GWSvlaGrehsaWtilpS4
405-72752yssApotSraehS 1
3-58232doRdedaerhT2
2-52542trohS-flaHpmalCZA2
0310XUNtuNxeH6
0900GWSvlaGrehsaWtilpS4
305-03752yssAdoRnoitavelE 1
6-11632doRnoitavelE1
105-24832yssAtkrBdoRnoitavelE1
1-66652elgnAtroppuSnoitavelE1
0800GOBvlaGtloBxeH1
0210GWFvlaGrehsaW1
0410GWFvlaGrehsaW1
0210GUNvlaGtuNxeH1
5910XUNSStuNxeH4
0900GWSvlaGrehsaWtilpS1
0010GWSvlaGrehsaWtilpS1
439530LW

B-7
N2-4XE1 Installation and Operation Manual
Table B.2d- Contents List, Mount Assembly
rebmuNtraPnoitpircseD.ytQ
105-33752 tiKerawdraHtnuoM1
45-94701.vlaGtloB-U2
2-16532recapS2
5000MDAebuT.zo1ezieS-itnA1
1290XOBtloBxeH6
0210GWFrehsaW4
05000XWFrehsaW21
0210GUN.vlaGtuNxeH4
0600XUN.vlaGtuNxeH6
0900GNPtunlaP4
0500XWS.vlaGrehsaWtilpS6
1-09562 etalPnoitavelE1
1-19562 etalPhtumizA1
6811XOB wercSDHDNR4
0310XUN tuNxeH4
0800XWS rehsaWtilpS4
232-II snoitcurtsnInoitallatsnI1
539530LW

B-8
N2-4XE1 Installation and Operation Manual
Figure B.5 - Parabolic Reflector
Figure B.6 - Unpacking the Radome
WL035936
Parabolic
Reflector
WL035937

B-9
N2-4XE1 Installation and Operation Manual
Figure B.7 - Antenna Mount Assembly
Mount Assembly and Attachment
1. The reflector should be placed face down, either on the shroud or blocked up on packing
lumber. Locate the Top and Bottom markings stenciled onto the back of the reflector.
2. Loosely attach Top Support Angles to the Horizontal Tube Assembly as shown in Figure
B.7 and B.8.
3. For desired mount configuration (refer to Figure B.2), attach the Vertical Tube Assembly
to the Horizontal Tube Assembly as shown in Figure B.7 and B.8.
4. Verify proper assembly of the elevation rod hardware as shown in Figure B.9. Remove
outer hardware and insert rod through elevation plate.
Important: For elevation angles grater than ±20°, Beveled Washers, shown in Figure B.9,
must be used. However, beveled washers may be used for elevation angles greater than
±10°.
5. Carefully place mount assembly onto antenna backring, taking care not to damage the
reflector. Loosely fasten the Top Support Angles and the Elevation Support Angle to the
antenna backring using 1/2” hardware as shown in Figure B.7.
6. Verify alignment of the Vertical Assembly with the vertical axis of the reflector and secure
the Top Support Angles and the Elevation Support Angle to the ring.
WL035938
and Nut (4)
3/8” (10mm)
Round Head
Screw Lockwasher
ø 2.4”- 4.5”
(60-115mm)
Shear Stop
Collar
Elevation
Plate

B-10
N2-4XE1 Installation and Operation Manual
Figure B.9 - Elevation Rod Assembly
Figure B.8 - Antenna Mount Assembly
WL035939
WL035940
Secure Antenna to Mast
Pipe using large and
small Mast Clamps
Attach Shear Stop
Collar on Mast Pipe so
that it will be Under
Azimuth Plate
Position Elevation Plate
on the Mast so elevation
screw is horizontal when
Antenna is aligned

B-11
N2-4XE1 Installation and Operation Manual
Feed Installation
Following the instructions provided with the feed assembly, install the feed in the reflector. Refer
to Figures B.10 through B.14.
Figure B.10 - Feed Horn Installation
Clamp
1/4”-20
Hex Nut
Horizontal
H
V
Graphite
Grease
Hex Nut,
Lockwasher,
Flat Washer
Feed
Support Reflector
H
V
Vertical
WL035941

B-12
N2-4XE1 Installation and Operation Manual
Figure B.11 - Feed Horn Polarization Markings
Figure B.12 - Parabola Rear View Showing Polarization Reference Markers
WL035942
Feed Horn
Polarization
Markings
WL035943
Horizontal
Polarization
Marking
Vertical
Polarization
Marking

B-13
N2-4XE1 Installation and Operation Manual
Figure B.13 - Feed Horn Installation
Figure B.14 - Feed Horn Installation for Vertical Polarized Operation
WL035945
WL035944

B-14
N2-4XE1 Installation and Operation Manual
Figure B.16 - Azimuth Adjustment Clamp Assembly
Radome Installation
Molded Radomes (normally optional on standard antennas) should be installed following the
instructions provided.
Azimuth Adjustment Clamp/Shear Stop Installation
1. Verify proper assembly of the azimuth clamp/shear stop clamp as shown in Figure B.15
and B.16. Securely attach the shear stop clamp to the mast pipe as shown, orienting it as
nearly as possible to the antenna boresight direction, and square to the mast axis. Note
that the shear stop clamp used on the two foot antennas also provides the azimuth
adjustment.
2. Refer to Figure B.1 for the position of the antenna centerline relative to the shear stop
clamp. The clamp must be mounted to provide support during installation and azimuth
adjustment.
Figure B.15 - Azimuth Clamp/Shear Stop Assembly
3/8” (10mm)
Round Head
Screw Lockwasher
and Nut (4)
ø 2.4” - 4.5”
(60-115mm)
WL035946
WL035947

B-15
N2-4XE1 Installation and Operation Manual
Antenna Hoisting and Installation
1. Attach a hoist strap around the vertical assembly or the horizontal assembly as shown in
Figure B.17. Do not hoist by the elevation rod. Make sure that the vertical assembly is
unobstructed where it will mount against the mast pipe.
2. Attach tag lines and carefully lift the antenna into position, resting the vertical assembly on
the shear stop clamp.
3. Fasten the mount to the mast pipe with 1/2” U-bolts. The antenna must be free to rotate
during azimuth adjustment, so tighten only enough to close the gap between the mast and
vertical channel. Do not leave the antenna loose for any extended period of time, i.e.
overnight.
Figure B.17 - Hoisting the Antenna
WL035948
5”
(127mm)

B-16
N2-4XE1 Installation and Operation Manual
General Antenna Alignment Procedures
Normally the antenna is aligned by performing azimuth and elevation adjustments and
elevation adjustments as necessary until the peak signal is obtained. It may be helpful to re-
peak one adjustment before finalizing or locking down the other.
Warning: Damage to the antenna can occur if azimuth or elevation adjustments are
attempted without loosening the proper connections as described in the following steps.
Azimuth Adjustment
1. Be sure the mast pipe U-bolts are just loose enough to allow mount rotation while
maintaining complete contact between the mount and the mast pipe.
2. Turn the long stainless steel azimuth screws against the mounting channel. By alternately
turning one azimuth adjustment screw out and the other in, the antenna can be rotated to
the desired azimuth angle. Approximately 1 turn changes the azimuth direction by 1°. Avoid
adjusting the antenna beyond the ±5° provided by the azimuth clamp as this can damage
the adjusting hardware. Fasten the antenna to the mast pipe and reposition the clamp if
needed.
Note: By securing the mount to the mast pipe and realigning the azimuth clamp with the
antenna boresight, more reliable and precise azimuth adjustments can be achieved.
After all adjustments are made, tighten both of the azimuth screws against the channel and
secure with the lock nuts provided.
3. Tighten the mast pipe U-bolts while maintaining the peak signal by alternating from left to
right in 1/4 turn intervals.
Elevation Adjustment
1. Insure that both of the bolts connecting the mount to the Top Support Angles and the
pivoting Elevation Angle (refer to Figures B.7 and B.9) are just loose enough to allow
resisted rotation.
2. Back the outer nuts on the elevation rod away from the bottom mount plate to allow some
fine adjustment range.
3. Turn the inside nut (with flat washer) on the elevation rod to adjust the elevation angle.
Approximately 5 turns changes the elevation by 1°. Remember, for elevation greater than
20°, install the two beveled washers as shown in Figure B.9.
4. After all adjustments are made, lock the nut against the bottom mount plate. Tighten the
angle pivot bolt and support bracket bolts.
Important: Be sure to tighten all hardware after final adjustments and insure that split
lockwashers, palnuts, or jam nuts are used where provided.

B-17
N2-4XE1 Installation and Operation Manual
Table B.3 - Nut Tightening Procedures
Inspection and Maintenance
1. Before leaving the installation, check that all hardware on the mount, shroud, radome, and
feed is tight and that nuts are locked in place.
2. Inspection of the antenna should be performed at lease once a year to check its condition
and to insure safe operation and maintenance. Qualified personnel, knowledgeable and
experienced in antenna installations, are required for this inspection.
Supplemental Information
Table B.3 is provided for installers unfamiliar with adequate nut tightening procedures for use
on stainless steel bolts, U-bolts, galvanized bolts or any bolts without the ASTM-”A325” marking
on the head. Disregard these recommendations when specific tightening requirements are
given.
Note: It is not recommended to reuse a palnut that has already been fully tightened or
deformed in any way. It should be replaced by a new palnut.
Weather Proofing the Type N Female Connector on Feeds
Remove the protective cover from the end of the feed and mate the connectors, screwing the
male connector firmly onto the feed.
Important: After connecting the coaxial cable, wrap the Type N connector with the gray butyl
rubber, squeezing it firmly around all joints to make a continuous seal. Finish the
weatherproofing by wrapping the butyl rubber with several layers of black PVC tape (not
supplied).
eziStloBlanimoNeuqroTtuNeuqroTtunkcoLtunlaP
"4/1.bl/.ni05.bl/.ni04
"61/5.bl/.ni201.bl/.ni06
"8/3.bl/.tf51.bl/.ni58
"61/7.bl/.tf42.bl/.tf51
"2/1.bl/.tf73.bl/.tf61
"8/5.bl/.tf47.bl/.tf82
"4/3.bl/.tf571.bl/.tf44
"8/7.bl/.tf212.bl/.tf15
"1.bl/.tf813.bl/.tf95
059530LW

B-18
N2-4XE1 Installation and Operation Manual

C-1
N2-4XE1 Installation and Operation Manual
Appendix C Adjustable Panel Antenna Mount
Assemble the panel mount according to Figure C.1. Orient Antenna using instructions supplied
with the antenna. Antenna models used with this mount may be circular, square or diamond
shaped. To change the offset of the antenna, unbolt the mount from the antenna, invert the
mount and reattach to the antenna.
Figure C.1 - Antenna Mount
2 3/8” (60mm)
DIA Mast
(2) 1/4” U-Bolt w/
Washer, Lockwashers
and Nuts
Azimuth Adjustment
Slots
Top View Optional Mast Clamp Kit
for 1.9” (48mm) DIA thru
4.5” (114mm) DIA Masts
Side View
Elevation
Adjustment
Slots
Rear View
Offset Left Rear View
Offset Right
WL035951

C-2
N2-4XE1 Installation and Operation Manual
Loosen the azimuth or elevation locking hardware while maintaining sufficient friction to prevent
unwanted slippage. See Figure C.2.
Insert flat blade screw driver into slot “B” and pry in direction of the arrow or into slot “A” and pry
in opposite direction, as shown in Figure C.2. Stop prying approximately as new overlapping
slot in bottom plate becomes sufficiently visible when viewed through slot “A”.
Figure C.2 - Azimuth and Elevation Planning
ABAB
Top View
Sectional View
Sectional View
Top View
WL035952
ABAB

C-3
N2-4XE1 Installation and Operation Manual
Insert Screw Driver into slot “A” and pry in direction of the arrow, as shown in Figure C.3. Stop
prying approximately as new slot in bottom plate becomes sufficiently visible when viewed
through slot “B”. Continue alternating slots and prying in either direction until desired alignment
is obtained. Lock down hardware securely before leaving the site.
Figure C.3 - Azimuth and Elevation Planning
AB
AB
Top View
Sectional View
WL035953
AB
AB
Sectional View
Top View

C-4
N2-4XE1 Installation and Operation Manual
Attach the antenna to the mount as shown in Figure C.4. For antenna polarization, assemble
the antenna to the mount using four sets of nuts and washers after desired polarization is
selected. In horizontal polarization the arrow sticker should be pointed in a horizontal direction.
Likewise, in vertical polarization the arrow sticker should be pointed in a vertical position.
Important: After cable connection is completed, wrap connection with Butyl or other
waterproof tape, supplied by the customer.
Each panel antenna has four factory sealed drain holes located on the back of the antenna. After
orienting the antenna to its proper polarization, the lower most sealed drain hole(s) must be
punctured with a pointed tool. See Figure C.4.
Caution: Do not allow the tool to protrude into the drain hole more than 1/4” (7mm) or damage
to the antenna may result.
Figure C.4 - Flat Panel Antenna
WL035954
Drain
Holes
Polarization
Arrow
Antenna
Polarization
using Nuts
and Washers

C-5
N2-4XE1 Installation and Operation Manual
Aim the antenna according to Figure C.5. Orient the antenna using instructions supplied with
the antenna. Antenna models used with this mount may be circular, square or diamond shaped.
To change the offset, unbolt the mount from the antenna, then invert the mount and reattach
in the antenna.
Figure C.5 - Adjustable Panel Antenna Mount
Rear View
Right Offset Rear View
Left Offset
Side View
Clamp Kit for
1.9 (48mm) DIA
Thru 4.5 (114mm)
DIA Masts
1/4” Carriage Bolts
w/ Washers, Lockwashers
and Nuts (2)
Elevation
Adjustment
WL035955

C-6
N2-4XE1 Installation and Operation Manual