Deere and John Deere Intelligent Solutions Group VCA10001 User Manual 151919UNIT
Deere & Company dba John Deere Intelligent Solutio 151919UNIT
Contents
- 1. Instruction Manual
- 2. Revised Inst Manual
Revised Inst Manual

T184367
DeereTrax
VCU10014
INSTALLATION
INSTRUCTIONS
All
1600
C, F, U
John Deere Dubuque Works
DeereTrax (13APR00)
ENGLISH
COPYRIGHT 2000
DEERE & COMPANY
Moline, Illinois
All rights reserved
A John Deere ILLUSTRUCTION
Manual
DeereTrax-19-13APR00
P R O O F P R O O F

Installation Instructions
DX,LIVE –19–25SEP92–1/1
Live With Safety
TS231 –19–07OCT88
Before returning machine to customer, make sure
machine is functioning properly, especially the safety
systems. Install all guards and shields.
DeereTrax (13APR00)
1
Installation Instructions
041300
PN=3
P R O O F P R O O F

Installation Instructions
CED,TX13067,2386 –19–02FEB99–1/2
Parts List
Part numbers may change without notice.
Replacement parts are available through your John Deere
dealer.
•Installation Kit VCA10023
– VCA10000 Communications Controller Harness
– VCA10001 Communications Controller
– VCA10002 Power Harness
– VCA10003 LED Light Harness
– VCA10005 Antenna Mounting Bracket and Clamp
– VCU10009 Alcohol Wipes (2 used)
– VCU10012 Hook and Hook Primer (3 used)
– VCU0013 Self Tapping Screw 6 mm x 70 mm (4
used)
– VCU10014 Installation Instructions T184367
– VCU10017 U-bolt (2 used)
– VCU10018 Metal Butt Splice (6 used)
– VCU10019 Wire 18 ga. 12 ft.
– VCU10020 Convoluted Tubing 12 ft.
– VCU10030 Lock Washer Stainless Steel 0.250 in. (4
used)
– VCU10031 Flat Washer Stainless Steel 0.250 in. (4
used)
– VCU10032 Ground Strap
– VCU10034 Cellular Antenna Cable
– VCU10035 Cellular Antenna
– VCU10036 Ground Plate
– VCU10037 GPS (Global Positioning System)
Antenna
– VCU10038 GPS Antenna Cable
– H159144 Grommets (3 used)
– R105388 Tie Band (25 used)
– T178552 Heat Shrink Tubing (6 used)
– 14M7194 Nut Hex 6mm (2 used)
– 14M7229 Nut Hex 5 mm (3 used)
– 14M7151 Nut Hex 8 mm (2 used)
– 19H1648 Cap Screw 3/8-16 x 3/4
– 24M7138 Washer 5 mm (3 used)
– 24M3739 Washer 8 mm (2 used)
– 24M7105 Washer 6 mm (2 used)
– 24H1136 Washer 5/16 x .734 x .065
– 24H1622 Washer 3/8 x .870 x .083
– 37H87 Self Tapping Screw 5/16 x 0.75
DeereTrax (13APR00)
2
Installation Instructions
041300
PN=4
P R O O F P R O O F
Continued on next page

Installation Instructions
CED,TX13067,2386 –19–02FEB99–2/2
– 907-0077 Installation Record
DeereTrax (13APR00)
3
Installation Instructions
041300
PN=5
P R O O F P R O O F

Installation Instructions
CED,TX13067,2673 –19–15FEB00–1/1
Service Parts
Below listed parts can be ordered as replacement or
repair parts.
Service Part numbers may be different than original kit
part numbers.
•AT180705 Ground Strap
•VCA10000 Communications Controller Harness
•VCA10001 Communications Controller
•VCA10002 Power Harness
•VCA10003 LED Light Harness
•VCA10039 Hook and Hook Fastener Kit (Includes Hook
and Hook Fastener and Primer)
•VCA10005 Antenna Mounting Bracket and Clamp
•VCU10034 Cellular Antenna Cable
•VCU10035 Cellular Antenna
•VCU10036 Ground Plate
•VCU10037 GPS (Global Positioning System) Antenna
•VCU10038 GPS Antenna Cable
•14M7194 Nut Hex 6mm, Alternator Terminals (2 used)
•14M7229 Nut Hex 5 mm, Alternator Terminals (3 used)
•14M7151 Nut Hex 8 mm, Alternator Terminals (2 used)
•24M7138 Washer 5 mm, Alternator Terminals (3 used)
•24M3739 Washer 8 mm, Alternator Terminals (2 used)
•24M7105 Washer 6 mm, Alternator Terminals (2 used)
•R105388 Tie Band (25 used)
•37M7233 Self Tapping Screw 6 mm x 75 mm,
Controller Mounting (4 used)
•19H1648 Cap Screw 3/8-16 x 3/4 Ground Strap to
Controller
•24H1136 Washer 5/16 x .734 x .065 Ground Strap to
Controller
•24H1622 Washer 3/8 x .870 x .083 Ground Strap to
Controller
•37H87 Self Tapping Screw 5/16 x 0.75 Ground Strap to
Ground
•CC20572 U-bolt (2 used) Antenna Mount
•12H302 Lock Washer .250 in. (4 used) Antenna Mount
•24M7035 Flat Washer .250 in. (4 used) Antenna Mount
•H159144 Grommets (3 used)
•T178552 Heat Shrink Tubing (6 used)
DeereTrax (13APR00)
4
Installation Instructions
041300
PN=6
P R O O F P R O O F

Installation Instructions
CED,TX13067,2662 –19–31JAN00–1/14
Parts Included In Kit
T128007B –UN–04FEB00
1—VCA10002 Power Harness
Power Harness
Continued on next page
DeereTrax (13APR00)
5
Installation Instructions
041300
PN=7
P R O O F P R O O F

Installation Instructions
CED,TX13067,2662 –19–31JAN00–2/14
T128008B –UN–04FEB00
1—VCA10000 Communications 2—VCA10003 LED Light
Controller Harness Harness
Communications Controller and LED Harnesses
Continued on next page
DeereTrax (13APR00)
6
Installation Instructions
041300
PN=8
P R O O F P R O O F

Installation Instructions
CED,TX13067,2662 –19–31JAN00–3/14
T127991B –UN–02FEB00
1—VCA10001 Communications Controller
2—Hook and Hook Fastener Strips, part of VCA10039
Hook and Hook Fastener Kit
Communications Controller
CED,TX13067,2662 –19–31JAN00–4/14
T127992B –UN–02FEB00
1—VCU10032 Ground Strap
2—VCU10013 6mm x 75 mm Self Tapping Screws (4)
3—24H1622 Washer 3/8 x .870 .083
4—19H1648 Cap Screw 3/8-16 x 3/4
5—24H1136 Washer 5/16 x .734 x .065
6—37H87 5/16 x .75 Self Tapping Screw
7—Alcohol Wipe (2), part of VCA10039 Hook and
Hook Fastener Kit
8—Primer (3), part of VCA10039 Hook and Hook
Fastener Kit
Communications Communicator Mounting Hardware
Continued on next page
DeereTrax (13APR00)
7
Installation Instructions
041300
PN=9
P R O O F P R O O F

Installation Instructions
CED,TX13067,2662 –19–31JAN00–5/14
T127993B –UN–02FEB00
1—24M3739 8 mm Flat Washer (2)
2—14M7151 8 mm Hex Nut (2)
3—24M7105 6 mm Flat Washer (2)
4—14M7194 6 mm Hex Nut (2)
5—24M7138 5 mm Flat Washer (3)
6—14M7229 5 mm Hex Nut (3)
Alternator Hardware
CED,TX13067,2662 –19–31JAN00–6/14
T128067B –UN–03FEB00
Installation and Operating Instructions
Installation And Operating Instructions
VCU10014 Installation and Operating Instructions
Continued on next page
DeereTrax (13APR00)
8
Installation Instructions
041300
PN=10
P R O O F P R O O F

Installation Instructions
CED,TX13067,2662 –19–31JAN00–7/14
T127996B –UN–23FEB00
1—VCU10020 Convoluted Tubing and VCU10019 Wire
2—VCU10018 Metal Butt Splice (6)
3—T178552 Heat Shrink Tubing (6)
4—H159144 Grommet (3)
5—R105388 Tie Band (25)
Harness Routing Hardware
CED,TX13067,2662 –19–31JAN00–8/14
T128082B –UN–03FEB00
1—VCU10005 Antenna Mounting Bracket
Antenna Mount Bracket
DeereTrax (13APR00)
9
Installation Instructions
041300
PN=11
P R O O F P R O O F
Continued on next page

Installation Instructions
CED,TX13067,2662 –19–31JAN00–9/14
T128453B –UN–17FEB00
1—14H387 1/4-20 Hex Nut (4)
2—12H302 Lock Washer .250 in. (4)
3—24M7035 Flat Washer .250 in. (4)
4—CC20572 U-Bolts (2)
Antenna Mounting U-Bolts
CED,TX13067,2662 –19–31JAN00–10/14
T127999B –UN–02FEB00
1—Antenna
2—Rubber Washer
Cellular Antenna
VCU10035 Cellular antenna includes all parts shown.
FCC Antenna Warning
Use of any antenna other than the one provided with this kit may
expose the user or nearby persons to radiofrequency (RF) emission
levels outside the FCC safety guidelines.
Continued on next page
DeereTrax (13APR00)
10
Installation Instructions
041300
PN=12
P R O O F P R O O F

Installation Instructions
CED,TX13067,2662 –19–31JAN00–11/14
T128304B –UN–11FEB00
Cellular Antenna Ground Plate
Cellular Antenna Ground Plate
VCU10036 Cellular Antenna Ground Plate.
CED,TX13067,2662 –19–31JAN00–12/14
T128068B –UN–03FEB00
1—Cable
2—Nut
3—O-Ring
Cellular Antenna Cable
VCU10034 Cellular antenna cable includes all parts
shown.
Continued on next page
DeereTrax (13APR00)
11
Installation Instructions
041300
PN=13
P R O O F P R O O F

Installation Instructions
CED,TX13067,2662 –19–31JAN00–13/14
T128202B –UN–09FEB00
VCU10037 GPS Antenna
1— GPS Antenna
2—O-Ring
3—Nut
GPS Antenna
VCU10037 GPS antenna includes all parts shown..
CED,TX13067,2662 –19–31JAN00–14/14
T128203B –UN–09FEB00
VCU10038 GPS Antenna Cable
GPS Antenna Cable
VCU10038 GPS antenna cable includes all parts shown.
DeereTrax (13APR00)
12
Installation Instructions
041300
PN=14
P R O O F P R O O F

Installation Instructions
CED,TX13067,2455 –19–03AUG99–1/1
Tools and Equipment
Not Supplied With Kit
•Drill Bits
– #4 or 7/32 in.
– 17/64 in.
– 3/8 in.
– 1/2 in.
– 3/4 in.
– Uni-Bit
•Volt-Ohmmeter
•Electric Drill
•Duct Tape
•Electrical Tape
•Screw Drivers
•Metric and SAE Wrenches
•Fish Tape
•Utility Knife
•Wire Crimping Tool
CED,TX13067,2452 –19–03AUG99–1/1
Customer Support Center
The Customer Support Center will assist dealers or
customers having problems installing or operating the
DeereTrax system.
Customer Support Center phone number:
1-800-939-0805.
NOTE: When the DeereTrax system was ordered,
Customer Support Center contacted the person
identified on the purchase order as on-site
administrator. The on-site administrator was given
detailed instructions for configuring and using the
DeereTrax software.
DeereTrax (13APR00)
13
Installation Instructions
041300
PN=15
P R O O F P R O O F

Installation Instructions
CED,TX13067,2453 –19–03AUG99–1/1
Customer Personal Service (CPS)
Note to customer:
CPS will be used to gain access to your vehicle’s
information via the Internet through DeereTrax software at
http://cps.deere.com
CED,TX13067,2454 –19–03AUG99–1/1
Cellular Service
DeereTrax communicates via a built-in cellular technology.
The unit is pre-programmed at the factory and will be
activated when it is shipped to the dealer. If problems
arise, contact the Customer Support Center at
1-800-939-0805.
DeereTrax (13APR00)
14
Installation Instructions
041300
PN=16
P R O O F P R O O F

Installation Instructions
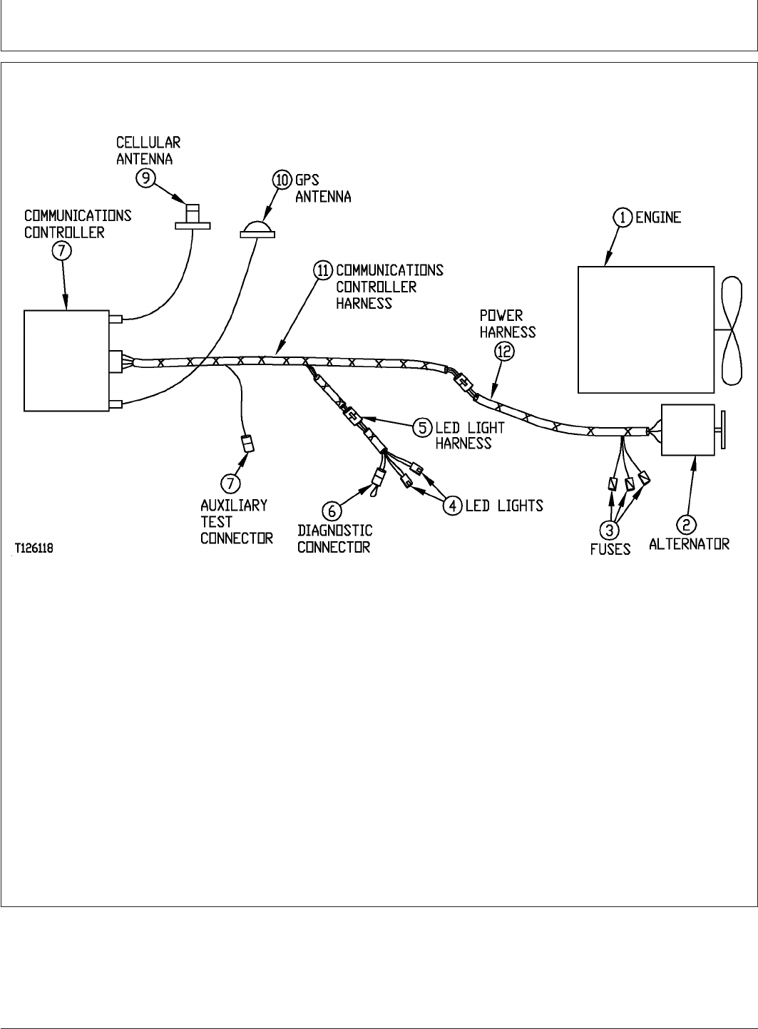
CED,TX13067,2596 –19–19NOV99–1/1
Basic System Layout
T126118 –19–02FEB00
1—Engine 4—LED Lights 7—Communications Controller 10—Communications Harness
2—Alternator 5—Diagnostic Connector 8—Cellular Antenna 11—Power Harness
3—Fuses 6—Auxiliary Connectors 9—GPS Antenna
Basic components of the system are:
1. Antennas and antenna cables
2. Harnesses
3. Communications controller
Before installation is started, read this instruction.
Find the best location for each component.
Follow guidelines to prevent components from
becoming damaged during machine operation.
Make sure components are close enough to
communications controller so cables will reach.
DeereTrax (13APR00)
15
Installation Instructions
041300
PN=17
P R O O F P R O O F

Installation Instructions
CED,TX13067,2458 –19–03AUG99–1/1
Selecting Mounting Location For
Communications Controller
T128441B –UN–17FEB00
IMPORTANT: Before doing any work on an electrical
component, turn battery disconnect
switch OFF or disconnect negative
battery cable. Damage to electrical
components may result if terminals are
shorted during maintenance.
Never install close to the engine,
transmission or hydraulic tank where
temperature may exceed 70°C (160°F).
Never install on a panel that vibrates
excessively. Controller damage may
result if exposed to excessive heat or
vibration.
•Install communications controller in a protected area
where it won’t be exposed to excessive heat or damage
from chains or tools carried in the cab. The load center
area of a 4-wheel drive loader is an ideal location.
•Avoid installation in areas where temperature can
exceed 70°C (160°F). Typical areas to avoid are inside
the engine compartment, next to a hydraulic tank or
transmission.
•Select a location so harness connectors and antenna
cables can be attached or removed easily.
•Do not install in a location that will prevent removal of
other components.
•Install controller horizontally or with connectors down to
prevent water or oil from collecting in harness
connections.
•Before final location is chosen, check power harness
length and antenna cable length.
DeereTrax (13APR00)
16
Installation Instructions
041300
PN=18
P R O O F P R O O F

Installation Instructions
CED,TX13067,2600 –19–22NOV99–1/4
Installing Communications Controller
Communications controller can be installed using hook
and hook fastener or using cap screws. Choose the best
procedure for your application.
CED,TX13067,2600 –19–22NOV99–2/4
T126195B –UN–24NOV99
1—Hook and Hook Clear Strips
2—Primer (3), part of Hook and Hook Fastener Kit
VCA10039
3—Alcohol Wipe (2), part of Hook and Hook Fastener
Kit VCA10039
Installing Communications Controller Using Hook and
Hook Fastener Kit
1. Communications controller already has hook and hook
fastener attached.
2. Clean installation area of machine using alcohol wipe
(3) then apply Primer (2) to the cleaned area. Follow
directions on primer tube.
3. Remove clear strips (1) from hook and hook fastener
and press communications controller firmly into place.
Continued on next page
DeereTrax (13APR00)
17
Installation Instructions
041300
PN=19
P R O O F P R O O F

Installation Instructions
CED,TX13067,2600 –19–22NOV99–3/4
T127567B –UN–22FEB00
1—VCU10032 Ground Strap
2—19H1648 Cap Screw
3—24H1622 Washer
4. One hole in the communications controller has internal
threads. Install Capscrew (2) to attach Ground Strap
(1).
5. Attach other end of ground strap (1) to a good clean
ground connection on the machine.
CED,TX13067,2600 –19–22NOV99–4/4
T127570B –UN–01FEB00
1—VCU10013 6mm x 75 Self Tapping Cap Screw (4
used)
2—VCU10032 Ground Strap
Installing Communications Controller Using Cap
Screws
1. Choose a mounting area using guidelines in Selecting
Mounting Location For Communications Controller.
2. Use template to locate mount holes. (See Drill
Template For Communications Controller on next
page)
3. Drill mount holes using a No. 4 or 7/32 bit.
4. Install Self-tapping cap screws (1). Use one screw to
attach ground strap (2).
5. Attach other end of ground strap to a good clean
ground connection on the machine.
DeereTrax (13APR00)
18
Installation Instructions
041300
PN=20
P R O O F P R O O F

Installation Instructions
CED,TX13067,2601 –19–22NOV99–1/1
T126134 –19–24NOV99
DeereTrax (13APR00)
19
Installation Instructions
041300
PN=21
P R O O F P R O O F

Installation Instructions
CED,TX13067,2664 –19–02FEB00–1/1
Removing Communications Controller
1. To remove the communications controller after
installing with the hook and hook fastener:
a. Carefully pry controller from mounting surface
starting at a corner.
b. To prevent hook and hook fastener from pulling
away from controller, push your finger between the
fastener pieces.
c. If hook and hook fastener pulls loose from the
controller, press it back in place.
2. To reinstall the controller:
a. Align hook and hook fastener strips on controller
and mounting surface, then press controller against
one end of the fastener strips and “rock” into full
contact.
b. Slowly apply pressure along full length of controller
until fasteners are secure.
3. If additional hook and hook fastener strips, alcohol
wipes or primer is needed, order VCA10039 Hook and
Hook Fastener Kit.
DeereTrax (13APR00)
20
Installation Instructions
041300
PN=22
P R O O F P R O O F

Installation Instructions
CED,TX13067,2599 –19–22NOV99–1/2
Installing Communications Controller Harness
T128057B –UN–03FEB00
1—Connector to 3—LED Light Harness 6—Auxiliary Connectors 7—4-Pin Connector to Power
Communications Controller 4—Diagnostic Connector Harness
2—LED Lights 5—Communications Controller
Harness
1. Route communications controller harness so the
LED lights (2) and diagnostic connector (4) are
protected from damage and yet accessible. LED
lights and diagnostic connector will be used for
troubleshooting the system.
Continued on next page
DeereTrax (13APR00)
21
Installation Instructions
041300
PN=23
P R O O F P R O O F

Installation Instructions
CED,TX13067,2599 –19–22NOV99–2/2
T127585B –UN–22JAN00
1—Communications Controller
2—Communications Controller Connector
3—Cap Screw
2. Push communications controller harness 30-pin
connector (2) onto communications controller (1) so
pins are started.
Use a 1/4 in. socket to tighten cap screw (3).
3. Using tie bands, attach extra connectors to the
communications controller harness so they won’t be
damaged during normal operation.
DeereTrax (13APR00)
22
Installation Instructions
041300
PN=24
P R O O F P R O O F

Installation Instructions
CED,TX13067,2550 –19–26OCT99–1/4
Installing Power Harness
T128061B –UN–03FEB00
VCA10002 Power Harness
1—4-pin Connector to 3—W+/R+ Engine Running 5—W+/R+ Engine Running 7—D+ Switched Power Fuse
Communications Controller (Purple Wire) Connectors Fuse 8—D+ Switched Power (Brown
2—B+ Unswitched Power (Red (Use whichever needed) 6—GND (Ground) (Black Wire) Wire)
Wire) 4—B+ Unswitched Power Fuse
Power Harness Electrical Requirements
Wire Color Machine Connection
Red Constant positive (+) power source. 12—24
volts typical, 36 volts maximum. With key ON
or OFF
Brown Positive (+) power source. 12—24 volts typical,
36 volts maximum. Only with key ON (0 volts
with key OFF.).
Purple Positive (+) power source. 6—24 volts typical,
36 volts maximum. With engine running.
Black Ground (GND)
Connecting B+ Unswitched Power (Red Wire)
CAUTION: Before doing any electrical
maintenance, turn battery disconnect switch
OFF or disconnect negative (-) battery cable.
Damage to electrical components or
personal injury could result if a power wire
is shorted to ground.
This connection supplies battery voltage to the
communications controller regardless of key switch
position.
Typical connection for unswitched power is B+ terminal
on the alternator.
If connecting B+ Red wire terminal to an existing
machine wire, use VCU10018 metal butt splice and
T178552 heat shrink tubing.
DeereTrax (13APR00)
23
Installation Instructions
041300
PN=25
P R O O F P R O O F
Continued on next page

Installation Instructions
CED,TX13067,2550 –19–26OCT99–2/4
Connecting D+ Switched Power (Brown Wire)
This connection supplies switched power to the
communications controller.
Connect to a place where battery power is present
with the key switch ON and not present with the key
switch OFF.
Typical connection for switched power is D+ terminal
on the alternator.
1. Connect D+ Brown to switched power source. If
splicing into existing machine wire, use VCU10018
metal butt splice and T178552 heat shrink tubing.
2. If alternator does not have a D+ terminal, locate
another source for switched power.
Use a VCU10018 metal butt splice to splice to an
existing wire or terminal.
Cover splice with T178552 heat shrink tubing to
prevent shorting to ground.
Connecting Ground (GND) (Black Wire)
This connection provides a ground for the system.
Connect Black Ground wire to alternator case or
machine frame.
Connecting W+/R+ Engine Running (Purple Wire)
This connection provides the communications
controller with a signal indicating the engine is running.
A minimum of 6 volts is required.
Typical source for this signal is the W+ or R+ terminal
on the alternator. This provides a signal when the
engine is running.
Three W+/R+ Purple wires are included in the harness,
each has a different connector. Choose the one that
fits your alternator. Tie the other Purple wires to the
harness so they won’t be damaged during normal
operation.
If Machine Has: Connect Purple Wire To:
W+ terminal on alternator W+ alternator terminal
R+ terminal on alternator R+ alternator terminal
If alternator does not have Switched power source
above terminals
Testing Power Harness Connections
1. Using a voltmeter measure voltages in the 4-pin
connector of VCA10002 Power Harness as
indicated in the chart below.
Continued on next page
DeereTrax (13APR00)
24
Installation Instructions
041300
PN=26
P R O O F P R O O F

Installation Instructions
CED,TX13067,2550 –19–26OCT99–3/4
T129733 –UN–31MAR00
T129752B –UN–30MAR00
1—Red Wire
2—Black Wire
3—Brown Wire
4—Purple Wire
2. Connect a voltmeter to terminal 2 of the 4-pin
connector, measure voltage in terminals 1, 3 and 4.
Voltage will be between 6 and 36 depending on
machine system voltage and alternator output.
Key Switch OFF
Terminals Voltage
2—1 12—36
2—3 0
2—4 0
Key Switch ON
Terminals Voltage
2—1 12—36
2—3 12—36
2—4 0
Engine Running
Terminals Voltage
2—1 12—36
2—3 12—36
2—4 6—36
Continued on next page
DeereTrax (13APR00)
25
Installation Instructions
041300
PN=27
P R O O F P R O O F

Installation Instructions
CED,TX13067,2550 –19–26OCT99–4/4
T128062B –UN–03FEB00
LED Light Harness, Communications Controller Harness and Power Harness
1—VCA10003 LED Light 2—6-pin Connector 4—4-pin Connector 5—VCA10002 Power Harness
Harness 3—VCA10001 Communications
Controller Harness
Connecting And Routing Harnesses To
Communications Controller
1. IMPORTANT: Route harnesses away from hot,
moving or vibrating components.
Do not attach harnesses to
hydraulic hoses. Avoid sharp
edges and use grommets and tie
bands where needed.
Route communications controller harness to
communications controller mounting location. Use tie
bands to secure harnesses to existing harnesses
where possible.
2. Connect LED light harness 6-pin connector (2) to
communications controller harness.
3. Connect power harness 4-pin connector (4) to
communications controller harness 4-pin connector.
DeereTrax (13APR00)
26
Installation Instructions
041300
PN=28
P R O O F P R O O F

Installation Instructions
CED,TX13067,2597 –19–19NOV99–1/2
Selecting Mounting Location For Antennas
T128443B –UN–17FEB00
1—VCA10005 Antenna 2—Drip Loop in Antenna 3—VCU10038 GPS Antenna 5—Tie Band
Mounting Bracket Cables 4—VCU10034 Cellular Antenna
CAUTION: Never modify by drilling or
welding a Roll Over Protection Structure
(ROPS). Structure may fail during a roll over
accident.
The Falling Objects Protection Structure
(FOPS) may be modified by drilling holes up
to 25 mm (1.0 in.) diameter.
FCC Antenna Warning Label
While the device is in operation, a separation of at least 500 mm
(20 in.) must be maintained between antennae and the body of
the user or nearby persons in order to meet the FCC RF
exposure guidelines.
•Antennas must be mounted outside the cab at least
500 mm (20 in.) away from the machine operator.
•Cellular antenna should be mounted using
VCA10005 mounting bracket if possible.
•Entire length of cellular antenna must be mounted
above cab roof or any structure within 300 mm (12
in.).
•Mount cellular antenna (4) at least 300 mm (12 in.)
from upright metallic structures, like mirrors. Center
of the cab roof or attached to a roof handhold is an
ideal location.
•Mount the GPS antenna (3) in an area that allows
an unobstructed view of the sky. Mounting near the
cellular antenna is OK. Use Antenna Mounting
Bracket (1) when possible.
•Antennas may be mounted directly to a cab or
ROPS roof. Ensure all gaskets and O-Rings are
installed under antennas to prevent water entry.
Petroleum jelly may be used to prevent O-Rings
from slipping out of position.
•Ensure adequate ground plane is available (See
Installing Antennas Through Machine or Metal
Panel).
DeereTrax (13APR00)
27
Installation Instructions
041300
PN=29
P R O O F P R O O F
Continued on next page

Installation Instructions
CED,TX13067,2597 –19–19NOV99–2/2
•Where antenna cables go through the roof or steel
panels, install convoluted tubing or grommets to
prevent chaffing or shorting. Make “drip loops” (2) in
cables to prevent water from running down the
cables and into the cab.
•Protect antenna cables by securing to mounting
bracket or other machine brackets with tie bands (5).
•Mount antennas where they are best protected from
damage.
•Antenna height must not exceed overall height
limitations for transporting the machine.
•Route antenna cables with existing cables or
harnesses.
CED,TX13067,2552 –19–27OCT99–1/6
Assembling Antennas Using Mounting Bracket
T128019B –UN–02FEB00
1—VCU10034 Cellular Antenna 2—VCA10005 Antenna 3—Nut 5—Rubber Washer
Cable Mounting Bracket 4—O-ring 6—Cellular Antenna
Continued on next page
DeereTrax (13APR00)
28
Installation Instructions
041300
PN=30
P R O O F P R O O F

Installation Instructions
CED,TX13067,2552 –19–27OCT99–2/6
T128081B –UN–03FEB00
1—VCU10034 Cellular Antenna Cable
2—Tie Band
3—VCA10005 Antenna Mounting Bracket
4—O-ring
5—Nut
6—Rubber Washer
7—VCU10035 Cellular Antenna
Assembling Cellular Antenna
1. Insert cable end (1) through small hole in bracket (3).
2. Use tie bands (2) to attach cable to bracket.
Cable can run any direction from bracket.
CED,TX13067,2552 –19–27OCT99–3/6
T128212B –UN–09FEB00
1—VCU10034 Cellular Antenna Cable
2—VCA10005 Antenna Mounting Bracket
3—Nut
4—VCU10035 Cellular Antenna
5—Rubber Washer
3. Screw nut (4) over cable end. Apply petroleum jelly to
O-ring to ensure it stays in groove.
4. Apply petroleum jelly to rubber washer to prevent it
from rolling. Install rubber washer (5) over nut (4).
Screw antenna (6) onto nut. Hand tighten only.
Continued on next page
DeereTrax (13APR00)
29
Installation Instructions
041300
PN=31
P R O O F P R O O F

Installation Instructions
CED,TX13067,2552 –19–27OCT99–4/6
T128213B –UN–09FEB00
1—Cable
2—Nut
3—VCU10005 Antenna Mounting Bracket
4—O-Ring
5—GPS Antenna
Assembling GPS Antenna
1. Apply petroleum jelly to O-Ring (4).
2. Install O-ring (4) on antenna.
3. Insert antenna through large hole in bracket (3).
4. Install nut (2) on antenna and tighten hand tight.
Ensure O-Ring stays in place.
5. Connect cable (1) to antenna.
6. Route cables from GPS and CELL antennas together
and secure to bracket (3) with tie bands as needed.
7. Secure antenna cables to machine as needed.
8. Install additional tie bands on cables as needed to
keep them neatly together.
Continued on next page
DeereTrax (13APR00)
30
Installation Instructions
041300
PN=32
P R O O F P R O O F

Installation Instructions
CED,TX13067,2552 –19–27OCT99–5/6
T128443B –UN–17FEB00
Typical Bracket Mount
1—VCU10005 Antenna 2—Drip Loop in Antenna 3—VCU10037 GPS Antenna 5—Tie Band
Mounting Bracket Cables 4—VCU10035 Cellular Antenna
9. Attach bracket and antennas to hand hold or other
suitable location using U-bolts.
Mount cellular antenna (4) at least at least 300 mm
(12 in.) from upright structures like mirrors.
FCC Antenna Warning Label
While the device is in operation, a separation of at least 500 mm
(20 in.) must be maintained between antennae and the body of
the user or nearby persons in order to meet the FCC RF
exposure guidelines.
Mount antenna at least 500 mm (20 in.) from
operators body.
10. Make a drip loop (2) to prevent water from running
along the cables into the cab.
Continued on next page
DeereTrax (13APR00)
31
Installation Instructions
041300
PN=33
P R O O F P R O O F

Installation Instructions
CED,TX13067,2552 –19–27OCT99–6/6
T127600B –UN–22JAN00
1—Communications Controller
2—VCU10038 GPS Antenna Cable
3—VCU10034 Cellular Antenna Cable
11. Route both the cellular and GPS antenna cables to
the communication controller.
Connect cables to controller. Cable ends are different
to prevent connecting them incorrectly.
CED,TX13067,2598 –19–22NOV99–1/3
Installing Antennas Through Machine Roof
or Metal Panel
T126133B –UN–22NOV99
CAUTION: Never modify a Roll Over Protection
Structure (ROPS) by drilling or welding.
Structure may fail during a roll over accident.
The Falling Objects Protection Structure (FOPS)
may be modified by drilling holes up to 25 mm
(1.0 in.) diameter.
1. Choose a place on the machine roof or other suitable
panel where the antennas are protected and the cables
will reach the communications controller.
For proper operation, the antenna must be mounted on
a metal surface (like a steel roof ).
DeereTrax (13APR00)
32
Installation Instructions
041300
PN=34
P R O O F P R O O F
Continued on next page

Installation Instructions
CED,TX13067,2598 –19–22NOV99–2/3
T128304B –UN–11FEB00T128445B –UN–17FEB00
1—VCU10036 Ground Plate
2—VCU10036 Cellular Antenna Cable
3—Serated Edge of Cable End
If the machine has a plastic or fiberglass roof panel,
install VCU10036 Ground Plate on bottom side of roof
or panel.
Connect antenna cable making sure serated edges
make good contact with ground plate.
Continued on next page
DeereTrax (13APR00)
33
Installation Instructions
041300
PN=35
P R O O F P R O O F

Installation Instructions
CED,TX13067,2598 –19–22NOV99–3/3
T128065B –UN–22FEB00
Cellular Antenna Ground Plane
At least 76 mm (3.0 in.) around the cellular antenna
in every direction must be free of other metal items
like hand holds, beacons or other antennas. The
area must be flat to ensure a good ground plane.
2. Mark the roof or panel so the holes will be at least
76 mm (3 in.) apart. (The GPS antenna mounting
hole location is OK).
3. Drill one hole 3/8 in. for the cellular antenna.
4. Drill the other hole 7/8 in. for the GPS antenna.
5. Assemble antennas through roof following
guidelines in Assembling Antennas Using Mounting
Bracket.
CED,TX13067,2460 –19–03AUG99–1/3
System Testing
To determine if unit is functioning properly, move machine
outdoors with no overhead obstructions or power lines.
1. Engine OFF.
DeereTrax (13APR00)
34
Installation Instructions
041300
PN=36
P R O O F P R O O F
Continued on next page

Installation Instructions
CED,TX13067,2460 –19–03AUG99–2/3
T129751B –UN–30MAR00
1—Fuse
2—Cover
2. Remove the cover (2) and W+/R+ Engine Running
Fuse (1) from the Power Harness. This fuse has
Purple wires going to it.
3. Key ON.
4. Observe CELL and GPS/ENG RUN LED Light as
ignition key is turned ON. Both LED lights must be ON
for 1—5 seconds indicating power to the
communications controller. LED lights may go OFF
indicating no cellular service or GPS lock.
5. The system will now test CELL and GPS functionality.
Both LED lights will come ON indicating successful
completion of this test. This may take 10 minutes.
CED,TX13067,2460 –19–03AUG99–3/3
T127603B –UN–22JAN00
1—Communications Controller
2—GPS Antenna Cable
3—GPS/ENG RUN LED Light
6. Carefully remove GPS antenna cable (2) from
communications controller (1). The GPS/ENG RUN
LED Light (3) should go OFF to indicate No GPS lock.
7. Replace W+/R+ Engine Running Fuse and cover.
8. With GPS antenna cable disconnected, start engine.
Within 10 seconds GPS/ENG RUN LED light must
come ON and stay ON indicating the engine is running.
9. Stop engine. Connect GPS antenna cable.
System is OK.
DeereTrax (13APR00)
35
Installation Instructions
041300
PN=37
P R O O F P R O O F

Installation Instructions
CED,TX13067,2595 –19–18NOV99–1/5
Vehicle Hours Synchronization
When installation is complete, vehicle hours must be
synchronized with communications controller.
A copy of the DeereTrax Installation Record is included in
the installation kit.
Continued on next page
DeereTrax (13APR00)
36
Installation Instructions
041300
PN=38
P R O O F P R O O F

Installation Instructions
CED,TX13067,2595 –19–18NOV99–2/5
T128442 –19–23FEB00
DeereTrax (13APR00)
37
Installation Instructions
041300
PN=39
P R O O F P R O O F
Continued on next page

Installation Instructions
CED,TX13067,2595 –19–18NOV99–3/5
Record vehicle hours, date and time of synchronization
on DeereTrax
Installation Record.
When DeereTraxInstallation Record is complete Fax
it to the number on the record.
To synchronize the communications controller:
1. Move the machine outdoors with no electrical wires
or metal structures directly overhead.
2. Key switch ON. Engine OFF.
CED,TX13067,2595 –19–18NOV99–4/5
T125457B –UN–23NOV99
1—GPS/ENG RUN LED Light
2—CELL LED Light
3. Both LED lights (1 and 2) will come ON for 1—5
seconds, indicating power is present at the
communications controller.
LED lights may go OFF indicating no cellular service or
GPS lock.
CED,TX13067,2595 –19–18NOV99–5/5
T128066B –UN–03FEB00
LED Lights and Diagnostic Connector
1—GPS/ENG RUN LED Light and CELL Light
2—Diagnostic Connector
4. Wait up to ten minutes for both LED lights to come
ON.
If lights fail to come ON after ten minutes, see Problem
Diagnosis.
5. After both lights come ON, disconnect diagnostic
connector (2), wait more than six seconds.
6. Connect diagnostic connector.
7. Watch CELL LED light (1).
It must go OFF within one minute, then back ON.
8. When CELL LED light comes back ON, system is OK.
9. If CELL LED light does NOT come back ON, go to
Problem Diagnosis.
10. Complete the DeereTrax Installation Record and Fax
to the number listed on the sheet.
DeereTrax (13APR00)
38
Installation Instructions
041300
PN=40
P R O O F P R O O F

Installation Instructions
CED,TX13067,2532 –19–05OCT99–1/3
Problem Diagnosis
Symptom Problem Solution
LED Lights Do Not Come ON Blown fuses Check fuses in power harness
When Key Is Turned ON
Connection to alternator incorrect Check harness connections to
terminals on alternator.
B+ unswitched power (Red Wire)
must be connected to positive (+)
power source.
GND (Black wire) must be
connected to clean frame ground.
D+ switched power (Brown Wire)
must be connected to positive (+)
power source. Voltage with key ON.
Power harness failure Check Brown wire in four-pin power
harness connector. It must have
voltage only when the key is ON.
Check Red wire in four-pin power
harness connector. It must have
voltage all the time.
Check Black wire in four-pin power
harness connector. It must have a
good connection to frame ground.
Communications controller harness Check pin 1A (Red wire) in
failure connector to communications
controller. It must have battery
voltage at all times.
Check pin A3 (Brown wire) for
battery voltage only when key is ON.
Check pin 2A (Black wire) for
continuity to frame ground.
DeereTrax (13APR00)
39
Installation Instructions
041300
PN=41
P R O O F P R O O F
Continued on next page

Installation Instructions
CED,TX13067,2532 –19–05OCT99–2/3
Symptom Problem Solution
LED harness failure Check for battery voltage on both
Yellow wires in six-pin connector on
communications controller harness
as key is turned ON (Use the Black
wire in that connector as a ground
reference).
Voltage may fluctuate for five
seconds, but should remain constant
after that.
If voltage is present on yellow wires,
but LED lights aren’t ON, harness
has failed. replace harness.
Communications controller failure If voltages in previous checks are
correct, communications controller
has failed.
Cellular Connection LED Does Cellular antenna cable connection Check cellular cable connection at
Not Come ON antenna and communications
controller.
Cellular antenna failure Check general antenna condition.
Replace if damage is seen.
Lack of cellular service Assure cellular service is available,
call with a hand-held cellular phone
to be sure. Perform procedure to
activate cellular service. If service is
still not activated, call Customer
Support Center at 1-800-939-0805
Communications controller failure Replace antenna and cable. Verify
cellular phones will work in that
location. If LEDs do not come ON
and voltage checks are OK, replace
communications controller.
GPS/ENG RUN LED Light Does Obstructed view of sky Move machine to an open location
Not Come ON (Engine OFF) away from buildings and overhead
power lines.
GPS antenna failure Check general antenna condition,
replace if damage is seen.
DeereTrax (13APR00)
40
Installation Instructions
041300
PN=42
P R O O F P R O O F
Continued on next page

Installation Instructions
CED,TX13067,2532 –19–05OCT99–3/3
Symptom Problem Solution
GPS antenna cable connection Check GPS antenna cable
connections at antenna and
communications controller.
Communications controller failure Replace antenna and cable. If LEDs
do not come ON and voltage checks
are OK, replace communications
controller.
GPS/ENG RUN LED Light Does Blown fuse Check W+/R+ Engine Running Fuse
Not Come ON (Engine Running) in Power Harness
Incorrect voltage or poor connection With engine running a minimum of 6
at engine running signal source volts must be present at W+/R+
Engine Running connection to
engine (Purple wire).
Power harness failure With engine running, check for a
minimum of 6 volts on Purple wire in
4-pin connector of power harness.
Communications controller harness With engine running, check for a
failure minimum of 6 volts on pin B-1
(Purple wire) in connector of
communications controller harness.
Communications controller failure If voltages are correct,
communications controller has failed.
DeereTrax (13APR00)
41
Installation Instructions
041300
PN=43
P R O O F P R O O F

Installation Instructions
DeereTrax (13APR00)
42
Installation Instructions
041300
PN=44
P R O O F P R O O F