Elster Solutions RX9A AUTOMATIC METER READING SYSTEM TRANSCEIVER User Manual REX Meter Technical Manual
Elster Solutions, LLC AUTOMATIC METER READING SYSTEM TRANSCEIVER REX Meter Technical Manual
Contents
- 1. Installation Instructions
- 2. User Manual
User Manual

3UHOLPLQDU\
Contact Elster Electricity for information
REX™ Meter
Technical Manual
TM42-2210C

3UHOLPLQDU\
Contact Elster Electricity for information
© 2006 by Elster Electricity, LLC. All rights are reserved.
No part of this software or documentation may be reproduced, transmitted, processed or recorded by any means or form,
electronic, mechanical, photographic or otherwise, translated to another language, or be released to any third party without the
express written consent of Elster Electricity, LLC.
Printed in the United States of America.
ALPHA, ALPHA Plus, and EnergyAxis are registered trademarks, and REX, Metercat, and AlphaPlus are trademarks of Elster
Electricity, LLC.
Other product and company names mentioned herein may be the trademarks and/or registered trademarks of their respective
owners.
DISCLAIMER OF WARRANTIES AND LIMITATIONS OF LIABILITY
There are no understandings, agreements, representations, or warranties either express or implied, including warranties of mer-
chantability or fitness for a particular purpose, other than those specifically set out by any existing contract between the parties.
Any such contract states the entire obligation of the seller. The contents of this document shall not become part of or modify any
prior existing agreement, commitment, or relationship.
The information, recommendations, descriptions, and safety notices in this document are based on Elster Electricity, LLC expe-
rience and judgment with respect to operation and maintenance of the described product. This information should not be con-
sidered as all-inclusive or covering all contingencies. If further information is required, Elster Electricity, LLC should be consulted.
No warranties, either expressed or implied, including warranties of fitness for a particular purpose or merchantability, or warran-
ties arising from the course of dealing or usage of trade, are made regarding the information, recommendations, descriptions,
warnings, and cautions contained herein.
In no event will Elster Electricity, LLC be responsible to the user in contract, in tort (including negligence), strict liability or other-
wise for any special, indirect, incidental, or consequential damage or loss whatsoever, including but not limited to: damage or
loss of use of equipment, cost of capital, loss of profits or revenues, or claims against the user by its customers resulting from
the use of the information, recommendations, descriptions, and safety notices contained herein.

3UHOLPLQDU\
Contact Elster Electricity for information
REX Meter
Technical Manual Contents
30 November 2006 i
Contents
FCC and Industry Canada Compliance . . . . . . . . . . . . . . . . . . . . . . . . . . .v
Compliance Statement (Part 15.19) . . . . . . . . . . . . . . . . . . . . . . . . . . .v
Warning (Part 15.21) . . . . . . . . . . . . . . . . . . . . . . . . . . . . . . . . . . . . . .v
RF Radiation Safety Guidelines per Part 2 of FCC Rules and
Regulations . . . . . . . . . . . . . . . . . . . . . . . . . . . . . . . . . . . . . . . . . . . . .v
User Information . . . . . . . . . . . . . . . . . . . . . . . . . . . . . . . . . . . . . . . . .v
Industry Canada Statement . . . . . . . . . . . . . . . . . . . . . . . . . . . . . . . . .v
Disclaimer of Warranties and Limitation of Liability . . . . . . . . . . . . . . . . . . vi
Safety Information . . . . . . . . . . . . . . . . . . . . . . . . . . . . . . . . . . . . . . . . . . vii
Revisions to This Document . . . . . . . . . . . . . . . . . . . . . . . . . . . . . . . . . .viii
1. Introduction . . . . . . . . . . . . . . . . . . . . . . . . . . . . . . . . . . . . . . . . . . . . 1-1
The REX Meter . . . . . . . . . . . . . . . . . . . . . . . . . . . . . . . . . . . . . . . . . . . 1-1
Standards Compliance . . . . . . . . . . . . . . . . . . . . . . . . . . . . . . . . . 1-2
Benefits . . . . . . . . . . . . . . . . . . . . . . . . . . . . . . . . . . . . . . . . . . . . . 1-3
Reliability . . . . . . . . . . . . . . . . . . . . . . . . . . . . . . . . . . . . . . . . . 1-3
Maintainability . . . . . . . . . . . . . . . . . . . . . . . . . . . . . . . . . . . . . 1-3
Adaptability . . . . . . . . . . . . . . . . . . . . . . . . . . . . . . . . . . . . . . . 1-3
Economy. . . . . . . . . . . . . . . . . . . . . . . . . . . . . . . . . . . . . . . . . 1-3
Security . . . . . . . . . . . . . . . . . . . . . . . . . . . . . . . . . . . . . . . . . . 1-3
Accuracy . . . . . . . . . . . . . . . . . . . . . . . . . . . . . . . . . . . . . . . . . 1-3
Features . . . . . . . . . . . . . . . . . . . . . . . . . . . . . . . . . . . . . . . . . . . . . . . . 1-4
Meter Forms. . . . . . . . . . . . . . . . . . . . . . . . . . . . . . . . . . . . . . . . . . . . . 1-4
2. Product Description . . . . . . . . . . . . . . . . . . . . . . . . . . . . . . . . . . . . . . 2-1
System Overview . . . . . . . . . . . . . . . . . . . . . . . . . . . . . . . . . . . . . . . . . 2-1
System Architecture. . . . . . . . . . . . . . . . . . . . . . . . . . . . . . . . . . . . 2-1
General Theory of Operation . . . . . . . . . . . . . . . . . . . . . . . . . . . . . 2-2
Power Supply . . . . . . . . . . . . . . . . . . . . . . . . . . . . . . . . . . . . . 2-2
Current and Voltage Sensing . . . . . . . . . . . . . . . . . . . . . . . . . . 2-2
Meter Engine. . . . . . . . . . . . . . . . . . . . . . . . . . . . . . . . . . . . . . 2-3
Microcontroller . . . . . . . . . . . . . . . . . . . . . . . . . . . . . . . . . . . . 2-3
EEPROM. . . . . . . . . . . . . . . . . . . . . . . . . . . . . . . . . . . . . . . . . 2-3
Billing Data. . . . . . . . . . . . . . . . . . . . . . . . . . . . . . . . . . . . . . . . . . . 2-3
Metered Energy. . . . . . . . . . . . . . . . . . . . . . . . . . . . . . . . . . . . 2-3
Demand Calculation . . . . . . . . . . . . . . . . . . . . . . . . . . . . . . . . 2-4
Maximum Demand . . . . . . . . . . . . . . . . . . . . . . . . . . . . . . . . . 2-4
Demand Forgiveness. . . . . . . . . . . . . . . . . . . . . . . . . . . . . . . . 2-4
TOU Data . . . . . . . . . . . . . . . . . . . . . . . . . . . . . . . . . . . . . . . . 2-5
Load Profiling. . . . . . . . . . . . . . . . . . . . . . . . . . . . . . . . . . . . . . . . . 2-5
Kh pulse divisor . . . . . . . . . . . . . . . . . . . . . . . . . . . . . . . . . . . . 2-6
Physical Description . . . . . . . . . . . . . . . . . . . . . . . . . . . . . . . . . . . . . . . 2-6
Meter Cover. . . . . . . . . . . . . . . . . . . . . . . . . . . . . . . . . . . . . . . . . . 2-7
Technical
Manual
REX
Meter

3UHOLPLQDU\
Contact Elster Electricity for information
REX Meter
Contents Technical Manual
ii 30 November 2006
Nameplate . . . . . . . . . . . . . . . . . . . . . . . . . . . . . . . . . . . . . . . . . . . 2-7
Inner Housing . . . . . . . . . . . . . . . . . . . . . . . . . . . . . . . . . . . . . . . . 2-7
Main Circuit Board . . . . . . . . . . . . . . . . . . . . . . . . . . . . . . . . . . . . . 2-8
Circuit Board Support Frame . . . . . . . . . . . . . . . . . . . . . . . . . . . . . 2-8
Meter Base . . . . . . . . . . . . . . . . . . . . . . . . . . . . . . . . . . . . . . . . . . 2-8
Physical Dimensions . . . . . . . . . . . . . . . . . . . . . . . . . . . . . . . . . . 2-10
3. Operating Instructions . . . . . . . . . . . . . . . . . . . . . . . . . . . . . . . . . . . . 3-1
Indicators and Controls . . . . . . . . . . . . . . . . . . . . . . . . . . . . . . . . . . . . 3-1
LCD. . . . . . . . . . . . . . . . . . . . . . . . . . . . . . . . . . . . . . . . . . . . . . . . 3-1
Display Quantity . . . . . . . . . . . . . . . . . . . . . . . . . . . . . . . . . . . 3-2
Real Energy Indicators. . . . . . . . . . . . . . . . . . . . . . . . . . . . . . . 3-2
Power/Energy Unit Identifier . . . . . . . . . . . . . . . . . . . . . . . . . . 3-3
Operating Mode . . . . . . . . . . . . . . . . . . . . . . . . . . . . . . . . . . . . . . . . . . 3-3
Resetting the REX Meter . . . . . . . . . . . . . . . . . . . . . . . . . . . . . . . . . . . 3-4
Demand Reset. . . . . . . . . . . . . . . . . . . . . . . . . . . . . . . . . . . . . . . . 3-4
Demand reset data area . . . . . . . . . . . . . . . . . . . . . . . . . . . . . 3-4
Clear Billing Data . . . . . . . . . . . . . . . . . . . . . . . . . . . . . . . . . . . . . . 3-5
Clear Data . . . . . . . . . . . . . . . . . . . . . . . . . . . . . . . . . . . . . . . . . . . 3-5
Reading the REX Meter . . . . . . . . . . . . . . . . . . . . . . . . . . . . . . . . . . . . 3-6
4. Outputs . . . . . . . . . . . . . . . . . . . . . . . . . . . . . . . . . . . . . . . . . . . . . . . . 4-1
Optical Pulse Outputs. . . . . . . . . . . . . . . . . . . . . . . . . . . . . . . . . . . . . . 4-1
5. Testing . . . . . . . . . . . . . . . . . . . . . . . . . . . . . . . . . . . . . . . . . . . . . . . . 5-1
Meter Self Test . . . . . . . . . . . . . . . . . . . . . . . . . . . . . . . . . . . . . . . . . . . 5-1
Error and Status Codes . . . . . . . . . . . . . . . . . . . . . . . . . . . . . . . . . 5-1
Error codes . . . . . . . . . . . . . . . . . . . . . . . . . . . . . . . . . . . . . . . 5-1
Status codes . . . . . . . . . . . . . . . . . . . . . . . . . . . . . . . . . . . . . . 5-3
Meter Shop Testing . . . . . . . . . . . . . . . . . . . . . . . . . . . . . . . . . . . . . . . 5-5
Test Equipment . . . . . . . . . . . . . . . . . . . . . . . . . . . . . . . . . . . . . . . 5-5
Test Setup . . . . . . . . . . . . . . . . . . . . . . . . . . . . . . . . . . . . . . . . . . . 5-6
General test setup . . . . . . . . . . . . . . . . . . . . . . . . . . . . . . . . . . 5-6
Formulas Used in Testing . . . . . . . . . . . . . . . . . . . . . . . . . . . . . . . . 5-7
Watthour constant. . . . . . . . . . . . . . . . . . . . . . . . . . . . . . . . . . 5-8
Calculating meter accuracy . . . . . . . . . . . . . . . . . . . . . . . . . . . 5-8
Determining the power . . . . . . . . . . . . . . . . . . . . . . . . . . . . . . 5-8
Meter Testing . . . . . . . . . . . . . . . . . . . . . . . . . . . . . . . . . . . . . . . . . 5-8
Watthour Testing . . . . . . . . . . . . . . . . . . . . . . . . . . . . . . . . . . . . . . 5-9
Installation Site Testing . . . . . . . . . . . . . . . . . . . . . . . . . . . . . . . . . . . . 5-10
Accuracy Tests . . . . . . . . . . . . . . . . . . . . . . . . . . . . . . . . . . . . . . 5-10
6. Installation and Removal . . . . . . . . . . . . . . . . . . . . . . . . . . . . . . . . . . 6-1
Preliminary Inspection. . . . . . . . . . . . . . . . . . . . . . . . . . . . . . . . . . . . . . 6-1
Placing the Meter into Service . . . . . . . . . . . . . . . . . . . . . . . . . . . . . . . 6-2
Installing the REX Meter . . . . . . . . . . . . . . . . . . . . . . . . . . . . . . . . . 6-2
Initial Setup . . . . . . . . . . . . . . . . . . . . . . . . . . . . . . . . . . . . . . . . . . . . . 6-3
Removing the Meter from Service. . . . . . . . . . . . . . . . . . . . . . . . . . . . . 6-4
Removing the REX Meter. . . . . . . . . . . . . . . . . . . . . . . . . . . . . . . . 6-4
Disassembling and Reassembling the Meter . . . . . . . . . . . . . . . . . . . . 6-5
Removing the Meter Cover . . . . . . . . . . . . . . . . . . . . . . . . . . . . . . 6-5
Removing the Inner Housing . . . . . . . . . . . . . . . . . . . . . . . . . . . . . 6-5
Removing the Electronic Components . . . . . . . . . . . . . . . . . . . . . . 6-6
Removing the Main Circuit Board . . . . . . . . . . . . . . . . . . . . . . 6-7

3UHOLPLQDU\
Contact Elster Electricity for information
REX Meter
Technical Manual Contents
30 November 2006 iii
Reassembling the Meter . . . . . . . . . . . . . . . . . . . . . . . . . . . . . . . . 6-7
A. Glossary . . . . . . . . . . . . . . . . . . . . . . . . . . . . . . . . . . . . . . . . . . . . . . . A-1
B. Display . . . . . . . . . . . . . . . . . . . . . . . . . . . . . . . . . . . . . . . . . . . . . . . . B-1
Display Format . . . . . . . . . . . . . . . . . . . . . . . . . . . . . . . . . . . . . . . . . . . B-1
Display Items . . . . . . . . . . . . . . . . . . . . . . . . . . . . . . . . . . . . . . . . . . . . B-2
LCD Test . . . . . . . . . . . . . . . . . . . . . . . . . . . . . . . . . . . . . . . . . . . . B-2
Error Codes and Status Codes . . . . . . . . . . . . . . . . . . . . . . . . . . . B-2
Current Time and Rate. . . . . . . . . . . . . . . . . . . . . . . . . . . . . . . . . . B-3
Metered Quantities. . . . . . . . . . . . . . . . . . . . . . . . . . . . . . . . . . . . . B-3
Energy Quantities . . . . . . . . . . . . . . . . . . . . . . . . . . . . . . . . . . B-3
Demand Quantities . . . . . . . . . . . . . . . . . . . . . . . . . . . . . . . . . B-4
Received Energy Quantity . . . . . . . . . . . . . . . . . . . . . . . . . . . . . . . B-4
Per Phase Voltage Present Indicators. . . . . . . . . . . . . . . . . . . . . . . B-5
Network Registration Status . . . . . . . . . . . . . . . . . . . . . . . . . . . . . B-6
C. Nameplate Information . . . . . . . . . . . . . . . . . . . . . . . . . . . . . . . . . . . C-1
REX Meter Nameplate . . . . . . . . . . . . . . . . . . . . . . . . . . . . . . . . . . . . . C-1
Transformer Rated Meter Information. . . . . . . . . . . . . . . . . . . . . . . C-1
Lower Portion . . . . . . . . . . . . . . . . . . . . . . . . . . . . . . . . . . . . . . . . C-2
D. Wiring Diagrams. . . . . . . . . . . . . . . . . . . . . . . . . . . . . . . . . . . . . . . . . D-1
Internal Wiring Diagrams . . . . . . . . . . . . . . . . . . . . . . . . . . . . . . . . . . . D-1
Installation Wiring Diagrams . . . . . . . . . . . . . . . . . . . . . . . . . . . . . . . . . D-2
E. Technical Specifications . . . . . . . . . . . . . . . . . . . . . . . . . . . . . . . . . . E-1
Absolute Maximums. . . . . . . . . . . . . . . . . . . . . . . . . . . . . . . . . . . . . . . E-1
Operating Ranges . . . . . . . . . . . . . . . . . . . . . . . . . . . . . . . . . . . . . . . . E-1
Operating Characteristics . . . . . . . . . . . . . . . . . . . . . . . . . . . . . . . . . . . E-2
General Performance Characteristics . . . . . . . . . . . . . . . . . . . . . . . . . . E-2

3UHOLPLQDU\
Contact Elster Electricity for information
REX Meter
Contents Technical Manual
iv 30 November 2006

3UHOLPLQDU\
Contact Elster Electricity for information
07 April 2006 v
REX Meter
Technical Manual Contents
FCC and
Industry Canada
Compliance
Compliance Statement (Part 15.19)
The REX meter complies with Part 15 of the FCC Rules and with RSS-210 of
Industry Canada. Operation is subject to the following two conditions:
1. This device may not cause harmful interference, and
2. This device must accept any interference received, including
interference that may cause undesired operation
Warning (Part 15.21)
Changes or modifications not expressly approved by Elster Electricity, LLC could
void the user’s authority to operate the equipment.
RF Radiation Safety Guidelines per Part 2 of FCC Rules
and Regulations
The meter should be installed in a location where there will be a separation
greater than 20 cm from locations occupied by humans on other than an
incidental or transitory basis.
User Information
The REX meter has been tested and found to comply with the limits for a
Class B digital device, pursuant to Part 15 of the FCC Rules. These limits are
designed to provide reasonable protection against harmful interference in a
residential installation. This equipment generates, uses and can radiate radio
frequency energy and, if not installed and used in accordance with the
instructions, may cause harmful interference to radio communications. However,
there is no guarantee that interference will not occur in a particular installation. If
this equipment does cause harmful interference to radio or television reception,
the user is encouraged to try to correct the interference by one or more of the
following measures:
■Reorient or relocate the receiving antenna.
■Move the receiving equipment farther away from the REX meter.
■Consult the dealer or an experienced radio/TV technician for help.
Industry Canada Statement
The term “IC” before the certification/registration number only signifies that the
Industry Canada technical specification were met.
Technical
Manual
REX
Meter

3UHOLPLQDU\
Contact Elster Electricity for information
REX Meter
Contents Technical Manual
vi 07 April 2006
Disclaimer of
Warranties and
Limitation of
Liability
There are no understandings, agreements, representations, or warranties either
expressed or implied, including warranties of merchantability or fitness for a
particular purpose, other than those specifically set out by any existing contract
between the parties. Any such contract states the entire obligation of the seller.
The contents of this technical manual shall not become part of or modify any
prior or existing agreement, commitment, or relationship.
The information, recommendations, descriptions, and safety notices in this
technical manual are based on Elster Electricity, LLC experience and judgment
with respect to the operation and maintenance of the described product. This
information should not be considered as all–inclusive or covering all
contingencies. If further information is required, Elster Electricity, LLC should be
consulted.
No warranties, either expressed or implied, including warranties of fitness for a
particular purpose or merchantability, or warranties arising from the course of
dealing or usage of trade, are made regarding the information,
recommendations, descriptions, warnings, and cautions contained herein.
In no event will Elster Electricity, LLC be held responsible to the user in contract,
in tort (including negligence), strict liability, or otherwise for any special, indirect,
incidental, or consequential damage or loss whatsoever, including but not
limited to: damage or loss of use of equipment, cost of capital, loss of profits or
revenues, or claims against the user by its customers from the use of the
information, recommendations, descriptions, and safety notices contained
herein.

3UHOLPLQDU\
Contact Elster Electricity for information
07 April 2006 vii
REX Meter
Technical Manual Contents
Safety Information Installation, operation, and maintenance of this product can present potentially
hazardous conditions (for example, high voltages) if safety procedures are not
followed. To ensure that this product is used safely, it is important that you:
■Review, understand, and observe all safety notices and
recommendations within this manual.
■Do not remove or copy individual pages from this manual, as this
manual is intended for use in its entirety. If you were to remove or copy
individual pages, cross references and safety notices may be
overlooked, possibly resulting in damage to the equipment, personal
injury, or even death.
■Inform personnel involved in the installation, operation, and
maintenance of the product about the safety notices and
recommendations contained in this manual.
Within this manual, safety notices appear preceding the text or step to which
they apply. Safety notices are divided into the following 4 classifications:
Notice is used to alert personnel to installation, operation, or maintenance
information that is important but not hazard related.
Caution is used to alert personnel to the presence of a hazard that will or can
cause minor personal injury, equipment damage, or property damage if the
notice is ignored.
Warning is used to alert personnel to the presence of a hazard that can cause
severe personal injury, death, equipment damage, or property damage if notice
is ignored.
Danger is used to alert personnel to the presence of a hazard that will cause
severe personal injury, death, equipment damage, or property damage if the
notice is ignored.

3UHOLPLQDU\
Contact Elster Electricity for information
REX Meter
Contents Technical Manual
viii 07 April 2006
Revisions to This
Document
The REX Meter Technical Manual can be referred to by its document number:
TM42–2210. Each revision of this manual is designated with a letter, with the
first revision being “A,” the second being “B,” and so forth. The document
number and its revision are located at the bottom of each page.
The following table lists the revisions to this document, the date of the release,
and any notes about the changes made.
Revision Date Brief Description
A 12 August 2003 First release of the document.
B 30 July 2004 Changed layout of the document. Changed name of “service disconnect
switch” to “service control switch” in Chapter 1. Added information about
firmware release 2.0 & 3.0 in “Load Profiling” (Chapter 2), Table 2-2, Table 3-
1, and Appendix B. Corrected the number of load profiling pulses REX meter
can store in Chapter 2. Corrected entries in Table 2-2. Expanded “Demand
Reset” section in Chapter 3. Added “Clear Billing Data” to Chapter 3.
Corrected Chapter 4. Corrected caption in Figure C-3. Other minor edits were
made to clarify the text already in the manual.
C Added information regarding Form 12S meters.

3UHOLPLQDU\
Contact Elster Electricity for information
30 November 2006 1-1
REX Meter
Technical Manual 1 Introduction
1Introduction
The REX Meter The REX meter, manufactured by Elster Electricity, is an all-electronic meter
focused exclusively on residential electricity revenue metering applications. This
meter meets or exceeds ANSI C12.1, C12.10, C12.20, and other appropriate
industry standards.
While capable of operating as a stand-alone meter for certain functions, the REX
meter is primarily designed to provide a flexible metering platform that can
operate with a variety of communications technologies to provide remote or
automated meter data collection, also referred to as automated meter reading
(AMR).
The meter consists of a socket-mounted meter enclosure with current and
voltage sensors connected to a powerful microprocessor-based metering
calculation engine. The unit measures, processes, stores, and locally displays
energy (kWh) and other related metering data via an integral liquid crystal
display. Metering data is also made available to AMR communications modules
that can either be mounted onto the main metering circuit board or added as
optional separate circuit boards for which space is provided under the meter
cover.
The REX meter can include an integral Elster Electricity-designed radio
frequency (RF) transmitter and receiver module that operates in the 900 MHz
unlicensed spectrum. The 900 MHz module allows the REX meter to support
two-way communications with other meters in an Elster Electricity-designed RF-
based local area network (LAN) for automated meter reading. The Elster
Electricity RF LAN technology includes such functions as automatic registration
upon installation, network time synchronization, downloading of time-of-use
(TOU) metering schedules, scheduled demand reset, reprogramming of REX
functions, and numerous other features.
The REX meter and its 900 MHz LAN module are part of the Elster Electricity
EnergyAxis® System for meter data collection and management, which is
designed to support full two-way AMR capability to every REX meter.
By using the full capabilities of its meter engine and the Elster Electricity 900
MHz RF LAN, the REX meter offers a highly flexible metering platform, allowing
implementation of metering functions such as basic energy measurement (kWh),
power (kW demand), TOU metering, load profile interval recording, and critical
tier pricing. With the Elster Electricity EnergyAxis System, any of these features
can be engaged or disengaged remotely at any time, thus offering operational
flexibility without the costs of manual meter reading, equipment change-outs,
site visits, meter reprogramming, and other expenses.
Technical
Manual
REX
Meter

3UHOLPLQDU\
Contact Elster Electricity for information
REX Meter
1 Introduction Technical Manual
1-2 30 November 2006
This manual is a guide to the features and operating characteristics of the REX
meter. Other technical manuals or operator guides provide additional information
on other EnergyAxis System components, including the Elster Electricity
Metering Automation Server (MAS), the A3 ALPHA® meter/collector, and the
Elster Electricity 900 MHz RF LAN.
See Figure 1-1 for an illustration of a REX meter.
Figure 1-1. REX meter
Standards Compliance
The REX meter meets or exceeds the American National Standards Institute
(ANSI) standards for electricity metering, and it is intended for use by single
phase utility customers.
Number Date Title
ANSI C12.1 2001 American National Standard for Electric Meters –
Code for Electricity Metering
ANSI C12.10 1997 Electromechanical Watthour Meters
ANSI C12.20 1998 American National Standard for Electricity Meters 0.2
and 0.5 Accuracy Classes
LAN ID: 255-1970110102
CL20, 120 TO 240V, 3W, 60Hz
FM 4S Watthour Meter
Kh 1.0 TA 2.5
ZCC22000000
REX METER NAMEPLATE
*G012345678 *
SERIAL # 12 345 678
Pkh Mult. By :1
VTR :5
CTR
FCC ID: QZC-RX9A TYPE R1S

3UHOLPLQDU\
Contact Elster Electricity for information
30 November 2006 1-3
REX Meter
Technical Manual 1 Introduction
Benefits
Reliability. The REX meter design is patterned after the ALPHA meter
technology which has established a reputation as a reliable and accurate meter
for electrical energy measurement. The highly selective choice of meter
components provides for a very reliable meter. The REX meter uses nonvolatile
electrically erasable programmable read only memory (EEPROM) to store its
customer-specific configuration parameters and all meter data. If power is
interrupted, the data will be preserved.
Maintainability. The design provides easy access to the meter circuit board
and all option boards. Circuit boards may be added or exchanged without
special tools or rewiring.
Adaptability. The REX meter is designed so that it may be easily upgraded to
support additional option boards. The REX meter has also been designed to
support an internal service control switch that can connect and disconnect
electrical service to a consumer. The service control switch must be specified at
the time of ordering.
Economy. The REX meter saves both time and money. It can increase
personnel productivity due to the following features:
■no user calibration required (factory-calibrated)
■reduced test time
■LED test pulse output through the front of the meter
■light weight for easy handling
Security. The REX meter is tamper-resistant. Since there are no moving parts,
traditional tampering techniques on the REX meter will be less successful than
on electromechanical meters. The REX meter is also a bidirectional meter. It
always measures kWh received as well as the selected energy quantity. A
polycarbonate cover resists cracking and breakage due to physical abuse. The
meter counts and stores the number of power failures, which can be used to
help detect tampering with the meter service.
Accuracy. The REX meter is a 0.5 % accuracy class meter (as defined by ANSI
C12.20) and meets or exceeds ANSI and IEEE requirements. The meter
precisely measures and displays energy usage consistently with the meter class
purchased and through a range of the following variations:
■current
■temperature
■voltage
■power factor
■frequency
The low current sensor burden may also improve the accuracy of external
current transformers when measuring light loads.

3UHOLPLQDU\
Contact Elster Electricity for information
REX Meter
1 Introduction Technical Manual
1-4 30 November 2006
Features The REX meter comes with many features, such as:
■kWh energy measurement of the selected metered quantity
■kWh received energy measurement
■TOU kWh energy measurement
■kW demand measurement
■test LED and Kh = 1.0 Wh/pulse period
■load profile recording
■6-digit liquid crystal display (LCD)
■inner housing
■polycarbonate meter cover
■versatile packaging allowing for future options
■two-way, 900 MHz radio communications module
Meter Forms The REX meter is available in the following ANSI form factors:
■Form 1S
■Form 2S
■Form 3S
■Form 4S
■Form 12S
A-base (bottom-connected) meter requirements can be met using one of the
above meters with an appropriate socket adapter.

3UHOLPLQDU\
Contact Elster Electricity for information
30 November 2006 2-1
REX Meter
Technical Manual 2 Product Description
2Product Description
System Overview System Architecture
The REX meter main circuit board contains all the electronics that make up the
meter and integral registers. See Figure 2-1 for the single phase REX meter
block diagram (including the integral 900 MHz radio). See Figure 2-2 for the
Form 12S REX meter block diagram (including the integral 900 MHz radio).
Figure 2-1. REX meter block diagram (single phase meters)
Meter engine
EEPROM
Microcontroller
LCD
900 MHz radio
6.4 V power supply
3.3 V power supply 3.3 V
16-pin
header
Optical port
20.48 MHz
CT
Current
Resistive
divider
Voltage
6.4 V
SPI bus #1
Wh rec
Wh del
fref = 20.48 MHz
fref = 20.48 MHz
SPI bus #2
Tx data
Rx data
Technical
Manual
REX
Meter

3UHOLPLQDU\
Contact Elster Electricity for information
REX Meter
2 Product Description Technical Manual
2-2 30 November 2006
Figure 2-2. REX meter block diagram (Form 12S meters)
General Theory of Operation
Power Supply. The single phase (Forms 1S, 2S, 3S, and 4S) REX meter can
accept a line voltage of 120 VAC to 240 VAC ± 20 % (96 VAC to 288 VAC). The
Form 12S meter can accept a line voltage of 120 VAC ± 20 % (96 VAC to
144 VAC). Using this input voltage, a power supply generates a 6.4 V and 3.3 V
supply. On Form 12S meters, phase A voltage must be present to power the
meter circuitry.
Current and Voltage Sensing. Power line currents and voltages are sensed
using specialized current sensors and resistive dividers, respectively.
Multiplication and other calculations are performed using an integrated circuit
(called the meter engine).
The meter receives the current through a precision-wound current transformer
that reduces the line current proportionally. The meter engine samples the phase
current to provide accurate current measurements.
The meter receives the voltage through resistive dividers to ensure that a linear
logic level voltage is maintained. This also serves to minimize phase shift over a
wide dynamic range. The meter engine samples the scaled inputs provided by
the resistive dividers to provide accurate voltage measurements.
Meter engine
EEPROM
Microcontroller
LCD
900 MHz radio
6.4 V power supply
3.3 V power supply 3.3 V
16-pin
header
Optical port
20.48 MHz
CT
Phase A
current
Resistive
divider
Phase C
voltage
6.4 V
SPI bus #1
Wh rec
Wh del
fref = 20.48 MHz
fref = 20.48 MHz
SPI bus #2
Tx data
Rx data
CT
Phase C
current
Resistive
divider
Phase A
voltage

3UHOLPLQDU\
Contact Elster Electricity for information
30 November 2006 2-3
REX Meter
Technical Manual 2 Product Description
Meter Engine. Multiplication and other calculations are performed using the
meter engine. The meter engine contains the digital signal processor (DSP) with
built-in analog-to-digital (A/D) converters capable of sampling each current and
voltage input. The DSP multiplies the signals appropriately, using the factory-
programmed calibration constants.
Microcontroller. The microcontroller performs many different functions, for
example:
■communicates with the meter engine and EEPROM
■accumulates energy usage data and computes kWh, kW, TOU kW, and
load profiling data
■sends output pulses
■controls the LCD
■controls the optical port
■provides an option board interface
The microcontroller and the meter engine communicate with each other
constantly to process and accumulate energy measurements. When the
microcontroller detects a power failure, it initiates a shutdown. A shutdown is the
process that stores billing and status information in EEPROM.
EEPROM. The REX meter uses EEPROM for nonvolatile storage of
manufacturing data, meter configuration data, and energy measurement data.
During a power failure, the EEPROM provides storage of all the information
needed to ensure the integrity of the energy calculations, including the following:
■configuration data
■billing data
■meter status
■constants
■energy usage
Billing Data
Metered Energy. The meter engine samples the voltage and current inputs,
computes energy, and sends these measurements to the microcontroller. In the
meter engine, each pulse is equal to one Ke defined as secondary-rated Wh per
pulse. The Ke is specific for each meter form factor, as defined in Table 2-1.
Table 2-1. Ke for each REX meter form factor
The REX meter can measure any one of the following quantities:
■kWh delivered
Form KeKh
1S 0.1 1.0
2S 0.1 1.0
3S 0.01 1.0
4S 0.01 1.0
12S 0.1 1.0

3UHOLPLQDU\
Contact Elster Electricity for information
REX Meter
2 Product Description Technical Manual
2-4 30 November 2006
■kWh received
■kWh sum (kWh delivered + kWh received)
■kWh net (kWh delivered - kWh received)
The metered quantity is used to calculate total energy, energy on a TOU basis,
demand, and load profiling data.
Note: When the selected metered quantity is kWh net, the meter
calculates demand from kWh-delivered and stores kWh-
delivered pulses for load profiling.
Demand Calculation. Demand is the average value of power over a specified
interval of time. The REX meter supports the block interval method for demand
calculation. The demand interval is specified in minutes and must be 15, 30, or
60 minutes.
The block interval calculates demand using the following equation:
For example, if the demand interval is 15 minutes and the total accumulated
energy is 50 kWh, then the demand is 200 kW.
Maximum Demand. Maximum demand (also referred to as indicating
demand) is the highest demand value that occurs in a billing period. The
demand for each demand interval is calculated and compared to an earlier
maximum demand value. If the new interval value exceeds the previous
maximum demand, then the new demand is stored as the maximum demand
(see Figure 2-3). When a demand reset occurs, the maximum demand is reset
to zero. The demand for the first full interval after the demand reset becomes the
maximum demand.
Figure 2-3. Maximum demand
Demand Forgiveness. Demand forgiveness is the time during which demand
is not calculated or stored after a power failure. The demand forgiveness may be
set to a number between zero (disabled) and 255 minutes.
hours
t
energy daccumulatetotal
D=
kW200
h0.25
kWh50
D==
Interval 6
demand
(9.2 kW)
Interval 8
demand
(9.5 kW)
Interval 7
demand
(9.9 kW)
New maximum
demand (9.9 kW)
Earlier maximum
demand (9.9 kW)
Earlier maximum
demand (9.7 kW)

3UHOLPLQDU\
Contact Elster Electricity for information
30 November 2006 2-5
REX Meter
Technical Manual 2 Product Description
TOU Data. The REX meter stores the energy data for up to 4 rates. The meter
stores demand data for 2 quantities where each quantity is configured to be one
of the following:
■total demand
■demand for a specific rate
The REX meter receives the TOU switch point information from the collector, and
stores this information for each of the following day types:
■weekday
■weekend
■special day type #1 (that is, holiday #1)
■special day type #2 (that is, holiday #2)
The switch point information received from the collector is associated with a
specific season, and once received, the information is stored in nonvolatile
memory in the REX meter and is valid until a season change occurs. When a
season change occurs, the REX meter invalidates the switch point information
until new switch points are downloaded from the collector. The REX meter
stores energy in the default tier (rate C) if the switch points are invalid or if the
REX meter does not know the real time.
Without the collector, the REX meter does not know day type information. The
collector downloads calendar information to the REX meter to specify the day
type for the next 32 days. This 32-day calendar is stored in the REX meter and
allows the REX meter to set the day type correctly at each midnight crossing.
In addition to the switch points for the 4 day types, the REX meter has a
separate table that allows for tier overrides or critical tier pricing. In conjunction
with the MAS, the collector may be told a start time and a stop time for a tier
override. When in a tier override condition, the collector writes the tier override
table in the REX meter forcing the REX meter to use the override switch points
for a specific period of time. At the end of the override period, the REX meter will
revert to the standard switch points that are stored in the REX meter’s
nonvolatile memory.
Load Profiling
The REX meter supports load profiling.
■REX meter firmware releases 1.0 and 2.0 support 104 load profiling
records.
■REX meter firmware releases 3.0 and higher support 480 load profiling
records.
Each load profiling record stores one of the following:
■Kh pulses of the metered quantity (scaled by a Kh pulse divisor) with
status flags to indicate if a power failure or time change has occurred
during the interval
■date and time

3UHOLPLQDU\
Contact Elster Electricity for information
REX Meter
2 Product Description Technical Manual
2-6 30 November 2006
The load profiling interval is specified in minutes and must be 15, 30, or 60
minutes. The load profiling interval length can be different from the demand
interval length.
Note: If the metered quantity is kWh net, load profiling stores the
number of kWh delivered pulses.
Kh pulse divisor. A pulse divisor is used to scale down the number of Kh
pulses recorded in each load profiling interval. This allows recording of data that
may exceed the maximum number of pulses that can be stored in each load
profiling interval (each interval can store 4095 pulses before overflowing).
The standard value of Kh for all REX meters is 1.0. If the divisor is set to 10, then
each load profiling pulse count represents 10 Wh.
Physical Description The physical components of the REX meter consist of the following:
■meter cover
■nameplate
■inner housing
■main circuit board
■circuit board support frame
■meter base
See Figure 2-4 for an illustration of the REX meter physical components.
Interval length1
1An A3 ALPHA meter/collector is required to read the REX meter and accumulate larger
load profiling records.
Maximum storage capacity
Release 1.0 & 2.0 Release 3.0 and higher
15 minutes 26 hours 120 hours
30 minutes 52 hours 240 hours
60 minutes 104 hours 480 hours

3UHOLPLQDU\
Contact Elster Electricity for information
30 November 2006 2-7
REX Meter
Technical Manual 2 Product Description
Figure 2-4. Exploded view of the REX meter
Meter Cover
The meter cover of the REX meter is a polycarbonate housing designed to
protect the inner assemblies of the meter. The ultraviolet (UV) stabilized
polycarbonate cover reflects solar radiation, resulting in minimized discoloration
and reduced internal heating. The gray polycarbonate side walls of the meter
cover reduce the internal temperature rise caused by sun loading, which may
extend the life of the electronic components. The cover has a clear plastic
window that allows the meter LCD to be viewed.
Removing the cover reveals the inner housing.
Nameplate
The nameplate is mounted on the inner housing. The nameplate identifies
important information about the meter. For more information on the nameplate,
see Appendix C, “Nameplate Information.”
Inner Housing
The polycarbonate inner housing is designed to provide extra protection to the
electronic components and to allow the REX meter to be safely handled when
the meter cover is removed.
Removing the inner housing reveals the main circuit board, option boards, circuit
board support frame, and meter base.
Meter cover
Nameplate
Inner housing
Main circuit
board with
RF module
Meter base
Circuit board
support frame

3UHOLPLQDU\
Contact Elster Electricity for information
REX Meter
2 Product Description Technical Manual
2-8 30 November 2006
Main Circuit Board
The main circuit board consists of the following components:
■LCD
■power supply
■EEPROM
■meter engine
■microcontroller
■900 MHz radio
■supporting electronics
See “General Theory of Operation” on page 2-2 for an explanation of the general
operation of the REX meter.
Circuit Board Support Frame
The REX meter circuit board support frame is designed to house the main circuit
board and up to three option boards efficiently and conveniently. Two option
boards can be installed above the main circuit board and one below the main
circuit board using the circuit board support frame.
Meter Base
The meter base contains the following components:
■base housing
■current and voltage blades
■either 1 or 2 current sensing transformers (depending on form)
■disconnect link (Form 2S meters only)
■hanger
Table 2-2 shows the available ANSI compatible configurations for a socket-
connected (S-base) REX meter according to the type of service being metered.
Table 2-2. REX meter available wiring forms
Meter style1Form Test
Amps
Class Elements KhType of service
ZCA3xxxxxxx 1S 30 200 1 1.0 2-wire single phase
ZCA4xxxxxxx 1S 50 320 1 1.0 2-wire single phase
ZCC3xxxxxxx 2S 30 200 1 1.0 3-wire single phase
ZCCWxxxxxxx 2S 30 200 1 1.0 3-wire single phase (without voltage disconnect
link)
ZCC4xxxxxxx 2S 50 320 1 1.0 3-wire single phase
ZCA2xxxxxxx 3S 2.5 20 1 1.0 2- or 3-wire single phase
ZCC2xxxxxxx 4S 2.5 20 1 1.0 3-wire single phase
ZC5Wxxxxxxx 12S 30 200 2 1.0 3-wire wye, network meter (without voltage
disconnect link)

3UHOLPLQDU\
Contact Elster Electricity for information
30 November 2006 2-9
REX Meter
Technical Manual 2 Product Description
ZC53xxxxxxx 12S 30 200 2 1.0 3-wire wye, network meter
ZC54xxxxxxx 12S 50 320 2 1.0 3-wire why, network meter
1The fifth character in the style number identifies the amount of storage in EEPROM available.
2 = 1 KB of storage; 9 = 2 KB of storage.
Meter style1Form Test
Amps
Class Elements KhType of service

3UHOLPLQDU\
Contact Elster Electricity for information
REX Meter
2 Product Description Technical Manual
2-10 30 November 2006
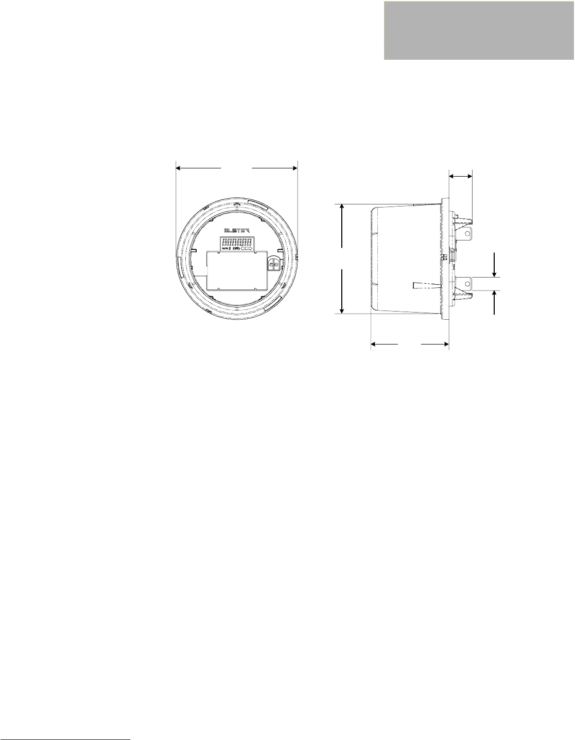
Physical Dimensions
The REX meter fits Forms 1S, 2S, 3S, 4S, and 12S. See Figure 2-5 for an
illustration of a 2S meter and its dimensions.
Figure 2-5. Form 2S meter and dimensions in inches [millimeters], front and side view1
1Dimensions are provided for reference only. Do not use for construction. If exact dimensions are required, contact Elster Electricity.
6.27
[159]
4.45
[113]
0.75
[19]
1.33
[34]
6.95
[177]
Meter nameplate

3UHOLPLQDU\
Contact Elster Electricity for information
30 November 2006 3-1
REX Meter
Technical Manual 3 Operating Instructions
3Operating Instructions
Indicators and
Controls
LCD
The REX meter liquid crystal display (LCD) displays meter data and status
information. Figure 3-1 shows the dimensions of the LCD.
Figure 3-1. LCD dimensions in inches [millimeters]
As shown in Figure 3-2, the LCD is divided into different display regions.
0.39
[9.9] 0.69
[17.5]
0.85
[21.5]
1.97
[50]
0.2
[5.2]
0.08
[1.9]
Viewing area
1.81
[46]
Technical
Manual
REX
Meter

3UHOLPLQDU\
Contact Elster Electricity for information
REX Meter
3 Operating Instructions Technical Manual
3-2 30 November 2006
Figure 3-2. LCD regions
Display Quantity. This 6-digit display quantity on the LCD shows either
metered quantities or other displayable information, depending upon how the
REX meter was programmed either at the factory or using MAS. See Appendix
B, “Display,” for more information.
The display quantity digits are used to display the following:
■LCD segment test (all display segments turned on)
■operational errors and status
■kWh and kW values
When displaying energy values, the LCD can be configured to display 4, 5, or 6
digits. The REX meter displays leading zeros if the measured energy value has
fewer digits than the number for which it is programmed.
Real Energy Indicators. The real energy indicators pulse at a rate
proportional to kWh consumption. The center square indicator pulses to
indicate pulses of Kh. Each square indicator pulse (turns on and off) indicates 1
Kh. A single transition (on-to-off or off-to-on) indicates ½ Kh.
The arrows toggle for each Ke. This means that a single transition of an arrow
pulse (off-to-on or on-to-off) represents Ke (see Table 2-1 for a list of Ke based
on meter form). The left arrow indicates energy being received, and the right
arrow indicates energy being delivered.
Display quantity
Real energy
indicators
Power/energy
unit identifier
Rate
identifier

3UHOLPLQDU\
Contact Elster Electricity for information
30 November 2006 3-3
REX Meter
Technical Manual 3 Operating Instructions
Figure 3-3. Real energy indicators
Power/Energy Unit Identifier. The power/energy unit identifier is used to
indicate that the number displayed on the meter’s LCD is either a demand or an
energy value. When the value in the display quantity is a demand quantity, kW is
displayed on the LCD, as shown in Figure 3-4. When the value in the display
quantity is an energy quantity, kWh is displayed on the LCD, as shown in
Figure 3-5.
Figure 3-4. LCD displaying a sample demand value for TOU rate D
Figure 3-5. LCD displaying a sample 5-digit energy value for TOU rate C
Operating Mode The normal operation of the REX meter is to process and store metering data
while the LCD scrolls through its display list. While operating, the test LED (see
Figure 4-1) transmits test pulses proportional to metered energy. Each pulse
represents one Kh of energy. See “Optical Pulse Outputs” on page 4-1 for more
information.
Received
energy arrow
Delivered
energy arrow
Kh pulse indicator

3UHOLPLQDU\
Contact Elster Electricity for information
REX Meter
3 Operating Instructions Technical Manual
3-4 30 November 2006
The LCD test (all 8s) will always display for 2 seconds immediately after power is
connected to the REX meter or after a power restoration from a power failure.
After the initial LCD test, the display will then scroll through all programmed
displayable items before beginning the display cycle again with the first
displayable item.
The meter performs a self test at power restoration and once every 24 hours to
make sure it is operating correctly. The self test ensures that the REX meter is
functioning properly and that its displayed quantities are accurate. See “Meter
Self Test” on page 5-1 for more information on self tests, errors, and statuses.
Resetting the REX
Meter
When using the optical port to issue commands to the REX meter, the optical
password must be used. The optical password can be specified when the REX
meter is ordered. Additionally, the optical password can be changed using Elster
Electricity meter support software.
Using the optical port requires removing the meter cover and placing an optical
probe onto the optical port that is molded onto the face of the meter’s inner
housing.
Demand Reset
A demand reset can be performed in one of two ways:
■issuing a command over the optical port
■issuing a command over the network
When received over the network, the command is typically received before the
demand reset date and schedules the demand reset to occur at the next
midnight crossing. The meter can also be instructed to perform the demand
reset immediately.
Regardless of how the demand was reset, the meter does the following when
resetting the demand:
■copies the current billing data to the demand reset data area
■increments the demand reset count
■clears the status flag indicating the demand threshold was exceeded
■resets the maximum demand to zero
Demand reset data area. In all demand reset occurrences, the meter copies
the present billing data and stores it in the demand reset data area. This data is
referred to as previous billing data because its general purpose is to preserve
the data as one billing period ends and the next billing period begins. The meter
stores only one copy of the previous billing data. The next demand reset
overwrites whatever is currently stored as the previous billing data.

3UHOLPLQDU\
Contact Elster Electricity for information
30 November 2006 3-5
REX Meter
Technical Manual 3 Operating Instructions
Clear Billing Data
This procedure copies the current billing data to the demand reset data area and
then zeros the REX meter’s current billing register. The demand reset data area
copy can be read by MAS. The clear current billing data is performed
immediately when the REX meter receives the command over the 900 MHz
network.
Clear Data
This procedure is used in the meter shop before installing the meter in the field.
Using Metercat support software and an optical probe placed on the optical
port, the command does the following:
■clears current and previous billing data
■clears rates and rate overrides
■clears the 32-day calendar
■clears node scan responses
■clears LAN registration and status information
■clears load profiling data
■clears the power fail data save area
■resets kWh DEL and kWh REC lines on the option header
■resets the demand threshold relay
■closes the service control switch, if installed

3UHOLPLQDU\
Contact Elster Electricity for information
REX Meter
3 Operating Instructions Technical Manual
3-6 30 November 2006
Reading the REX
Meter
The REX meter can be read two ways:
■visually using the LCD
■remotely using the 900 MHz radio and the Elster Electricity AMR system
For more details on the information that can be read on the LCD, see Appendix
B, “Display.”
Table 3-1 shows the information that can be obtained from the REX meter using
the 900 MHz radio.
Table 3-1. Information read from the REX meter using the radio
Category Items
Energy • kWh energy for up to 4 rates of the selected metered quantity
• Total kWh received
• Total kWh energy of the selected metered quantity (for REX
meter firmware releases 2.0 and higher)
Demand Demand for up to 2 quantities where each quantity may be one
of the following:
• Total kW
• kW for a specific rate
In firmware release 1.0, demand data is read in the format of
4.2 (xxxx.xx). In firmware release 2.0 and higher, demand data
is read in the format of 3.3 (xxx.xxx).
Counters • Number of demand resets
• Number of power outages
Each counter rolls over after 255 events have occurred.
Status flags • Demand threshold exceeded since last demand reset
• Meter is scheduled to perform a demand reset at the next
midnight crossing
Error flags • ROM checksum error
• Power fail data save error
• General configuration error
• Table CRC error
• Improper meter engine operation error
Line voltage per phase rms voltage at the time of the meter read

3UHOLPLQDU\
Contact Elster Electricity for information
30 November 2006 4-1
REX Meter
Technical Manual 4 Outputs
4Outputs
Optical Pulse
Outputs
The REX meter contains a light emitting diode (called the test LED) on the face of
the meter, as shown in Figure 4-1. The test LED emits a pulse output that can
be used to test the REX meter in the shop or in the field without removing the
meter from service or breaking the seal. The source for the optical pulse output
is kWh of the metered quantity (see “Metered Energy” on page 2-3). The Kh is
equal to 1.0 Wh per pulse.
Note: If the metered quantity is kWh net, the test LED output is kWh
delivered.
Figure 4-1. Test LED location
Test
LED
Meter nameplate
Technical
Manual
REX
Meter

3UHOLPLQDU\
Contact Elster Electricity for information
REX Meter
4 Outputs Technical Manual
4-2 30 November 2006

3UHOLPLQDU\
Contact Elster Electricity for information
30 November 2006 5-1
REX Meter
Technical Manual 5 Testing
5Testing
Meter Self Test REX meters are factory calibrated and tested to provide years of trouble-free
service. No field calibrations or adjustments are required to ensure accurate
operation of the meter. It is normal, however, to test installed REX meters
periodically to ensure accurate billing. Testing procedures are the same
regardless of the type of meter being tested.
Additionally, the REX meter performs a self test every 24 hours and after any
power restoration to determine if it is operating properly. The self test ensures
that the REX meter is functioning properly and its displayed quantities are
accurate. Any errors encountered will be displayed on the LCD.
The self test incorporates a series of electronic analyses verifying many aspects
of the REX meter. After any power restoration, all of the LCD segments will be
turned on briefly before beginning the display sequence. The following is a listing
of the specific tests performed during a self test:
■verification of the configuration data and checksums
■verification of normal microcontroller function
Error and Status Codes
Error codes indicate a problem exists with the meter that may be affecting billing
data. Elster Electricity does not recommend operating the REX meter when it is
displaying an error code.
Status codes indicate the present operating conditions; status codes do not
indicate a problem.
Error codes. Error codes are displayed on the LCD by an E and a 5-digit code.
The code indicates the specific condition affecting the meter operation. See
Figure 5-1 for a sample error code displayed on the meter LCD. Table 5-1
describes the different error conditions and their associated codes.
Error codes are appended to the display list automatically when the condition
causing the error code exists. Error codes can be displayed in combination
(E00101, for example), indicating that more than one error condition has been
detected. In most cases, the meter will need to be returned to the factory for
repair or replacement.
Technical
Manual
REX
Meter

3UHOLPLQDU\
Contact Elster Electricity for information
REX Meter
5 Testing Technical Manual
5-2 30 November 2006
Figure 5-1. Sample error code displayed on the LCD
Table 5-1. Error conditions and codes
E00000: ROM checksum error. This code indicates a problem with the meter’s
program. If this code is displayed on the LCD, the REX meter should be returned
to the factory for repair or replacement.
E00001: improper meter engine error. This code indicates that the meter
engine program may be corrupt or is not executing correctly. This error condition
is typically triggered when the microcontroller fails to reinitialize the meter engine.
If the code is displayed on the LCD, the REX meter should be returned to the
factory for repair or replacement.
E00010: EEPROM write error. This code indicates the meter had a problem
storing meter data in its nonvolatile EEPROM. The REX meter should be
returned to the factory for repair or replacement.
E00100: table CRC error. This code indicates a possible error in the REX
meter’s programming. Depending on which area of the meter is affected, billing
data may not be reliably accumulated while this error condition exists. The REX
meter should be returned to the factory for repair or replacement.
E01000: configuration error. This code indicates a problem with the meter’s
configuration. If the error continues after reprogramming, the meter should be
returned to the factory for repair or replacement.
E10000: power fail data save error. This code indicates that the data saved in
nonvolatile EEPROM during a power failure may be invalid. This error will be
displayed when power is restored to the meter, and a self check has discovered
an error with the EEPROM data after a power fail data save. The REX meter
should be returned to the factory for repair or replacement.
Condition Code
ROM checksum error E 0 0 0 0 0
Improper meter engine operation error E 0 0 0 0 1
EEPROM write error E 0 0 0 1 0
Table CRC error E00100
Configuration error E01000
Power fail data save error E10000

3UHOLPLQDU\
Contact Elster Electricity for information
30 November 2006 5-3
REX Meter
Technical Manual 5 Testing
Status codes. The REX meter displays status codes as an indication of the
operational status of the meter. Unlike error codes, the status code does not
indicate a problem with the REX meter. See Figure 5-2 for a sample status code
displayed on the meter LCD. Table 5-2 describes the different conditions and
their codes.
Status codes are appended to the display list if both of the following items are
valid:
■the condition causing the status code exists
■status codes have been selected as a display item
Status codes are indicated on the LCD by an F followed by a 5-digit numerical
code indicating the specific condition that has occurred. Status codes can be
displayed in combination (F01010, for example), indicating that one or more
status conditions have been detected.
Figure 5-2. Sample status code displayed on the LCD
Table 5-2. Status conditions and codes
F10000: No load side voltage when service control switch is closed. This
code indicates that there is no load side voltage present when the service
control switch is supposedly closed. This code can indicate a malfunction with
the service control switch. If this status code is displayed, contact Elster
Electricity.
F01000: Demand threshold exceeded. This code indicates that the demand
has exceeded the programmed demand threshold. It is displayed once the
demand threshold has been exceeded and is cleared by a demand reset, clear
billing data, or clear data command.
Condition Code
No load side voltage when service control
switch is closed1
1For more information, see the REX Meter Service Control Switch
product guide (PG42-1007A or later).
F10000
Demand threshold exceeded F01000
Load side voltage present when service control
switch is open1
F00100
Demand reset scheduled F00010
Service control switch open1F00001

3UHOLPLQDU\
Contact Elster Electricity for information
REX Meter
5 Testing Technical Manual
5-4 30 November 2006
F00100: Load side voltage present when service control switch is open.
This code indicates that there is load side voltage present when the service
control switch is open. This code can indicate that one of the following
conditions exist:
■a malfunction occurred in the service control switch
■the load side is receiving voltage from a different power supply (for
example, a gas-powered generator)
If this status code is displayed, follow your utility’s procedures for restoring
power when power is being supplied to the load side by a different source.
Additionally, the meter can send an exception message to the EnergyAxis
System service (MAS) when this condition occurs.
The code remains on the display for as long as the condition exists. When the
load side voltage is removed, the code is cleared from the display. The REX
meter records that the event occurred since the demand reset, and this latched
record can be read from the meter but cannot be displayed on the LCD.
F00010: Demand reset scheduled. This code indicates that the meter has
been scheduled to perform a demand reset at the next midnight crossing. This
code is displayed when it receives a command to perform a demand reset from
the network. The code remains in the display list until the next midnight crossing
(the time at which the meter performs a demand reset). See “Demand Reset” on
page 3-4 for more information on demand resets.
F00001: Service control switch open
This code indicates that the service control switch is open. The service control
switch can be opened when one of the following conditions exist:
■the REX meter has received a command to disconnect power
■the demand threshold was exceeded and the meter is configured to
open the switch when demand threshold is exceeded
This code is displayed when the service control switch is opens and is cleared
when the service control switch is closed.

3UHOLPLQDU\
Contact Elster Electricity for information
30 November 2006 5-5
REX Meter
Technical Manual 5 Testing
Meter Shop Testing Test Equipment
Meter shops develop testing configurations specific to their own needs. The
following is a list of standard test equipment that can be useful when testing a
REX meter:
■stable mounting assembly for the REX meter to be temporarily installed
to ensure proper orientation and allow the necessary voltage and
current connections to be made
■reliable power supply with at least the following characteristics:
■provides voltage source for energizing the meter at its rated voltage
■provides unity power factor
■supplies lagging power factor of 60 ° for 0.5 PF testing
■reference Wh standard
■phantom load device or other loading circuit that has the current
capacity ranges suitable for the desired test amperes
■control equipment for counting and timing the pulse output
■precision voltage and current transformers
■voltmeters, ammeters, phase angle meters, power factor meters, and
any other measuring equipment
■at least one of the following:
■an infrared pick-up head for detecting the Kh pulses of the test LED
(recommended)
■a reflective pick-up assembly for detecting the pulse indicators on
the meter LCD

3UHOLPLQDU\
Contact Elster Electricity for information
REX Meter
5 Testing Technical Manual
5-6 30 November 2006
Te s t Set u p
Before testing the REX meter, check the nameplate for the following:
■test amperes
■appropriate operating voltage range
■meter Kh
General test setup.
Use only authorized utility procedures and proper test procedures to test
metering equipment. Dangerous voltages are present. Equipment damage,
personal injury, or death can result if safety precautions are not followed.
The following general procedure should be used to create a test location for the
REX meter:
1. Temporarily install the meter in a mounting device that will hold it in the
proper operating position.
2. Place the test standard measuring device and precision voltage and
current transformers (as required) in series with the meter being tested.
If voltage transformers are not required, then the voltages of the meter
and the standard should be in parallel.
3. Connect the control equipment used for switching the voltage to the
test standard device and for counting the standard’s output pulses.
4. Apply the rated current and voltage to the terminals of the meter.
After applying the voltages and currents, one of the following should be
performed:
■Align the reflective pick-up assembly over the appropriate pulse
indicator on the meter LCD, just slightly off of perpendicular with the
meter cover. This will minimize reflections from the cover face.
■Position the infrared pick-up head over the test LED to detect the pulse
output. Alternatively, the infrared pick-up head could be connected to a
test pulse adapter, and that adapter can be positioned over the test
LED on the meter (recommended). See Figure 5-3 for the location of the
test LED on the REX meter.

3UHOLPLQDU\
Contact Elster Electricity for information
30 November 2006 5-7
REX Meter
Technical Manual 5 Testing
Figure 5-3. Location of the test LED pulse output
Formulas Used in Testing
When testing the REX meter, manual calculations may be necessary to verify
meter quantities. Table 5-3 shows the naming conventions used to indicate
variable quantities in these calculations.
Table 5-3. Variables used in manual calculations
Test
LED
Meter nameplate
Variable Represents
CTR Current transformer ratio
Khmeter Wh test constant of the meter (watthours per pulse-period)
Khstd Wh constant of reference standard (watthours per pulse-period)
kW Power in kilowatts
P Number of pulses of the square indicator on the LCD or pulses
from the test LED, where each flash or pulse is 1 Khmeter.
p Number of pulses of the reference standard
t Time (in minutes)
VTR Voltage transformer ratio

3UHOLPLQDU\
Contact Elster Electricity for information
REX Meter
5 Testing Technical Manual
5-8 30 November 2006
Watthour constant. For transformer rated meters, the Kh value is called the
secondary Kh (Khsec) since the transformer ratios are not included. When
instrument transformers are included, then Kh is called the primary Kh (Khpri) and
is calculated with the following formula:
A REX meter that is being used with 400:5 current transformers would yield the
following Khpri value:
Calculating meter accuracy. Meter accuracy (percentage registration) can
be calculated by comparing the meter pulse rate to the standard pulse rate and
by using the following formula:
Determining the power. The approximate power of the meter load in
kilowatts during a time period can be obtained by measuring the time it takes to
receive multiple test pulses (P). The test pulses can be counted from the test
LED or the Kh pulse indicator on the meter LCD. The approximate power may
then be calculated using the following formula:
Note: If the primary load on a transformer rated meter is to be
calculated, the kW value obtained from the equation shown
above must be multiplied by the CTR and VTR.
Meter Testing
Since no field adjustments are required for the REX meter, meter testing is
primarily done to ensure operation within factory specifications. This is normally
done by simply checking the meter calibration. For precise test results, meters
should be tested at the same temperature as the testing equipment. Ideally, this
will be at 72 °F (22 °C).
Using the standard Kh of 1.0 Wh/pulse, the number of pulses per minute that
the REX meter produces at rated voltage and test current depends on the meter
form, as shown in Table 5-4.
Table 5-4. Kh pulses per minute based on meter form
VTRCTRKhKh secpri ××=
pulseWh80
5
400
pulseWh1.0 Khpri =×=
)Khp(
)KhP(
100Accuracy
std
meter
×
×
×=
1000t
60KP
kW h
×
××
=
Form Test voltage Test current Kh pulses per minute
1S 120 V 30 A 60 Wh/minute
2S, 200 A 240 V 30 A 120 Wh/minute
2S, 320 A 240 V 50 A 200 Wh/minute
3S and 4S 120 V 2.5 A 5 Wh/minute
3S and 4S 240 V 2.5 A 10 Wh/minute

3UHOLPLQDU\
Contact Elster Electricity for information
30 November 2006 5-9
REX Meter
Technical Manual 5 Testing
Voltage should be applied to the meter for at least 10 seconds before
measuring, allowing the power supply circuitry to stabilize.
Watthour Testing
To maintain compatibility between procedures for testing electronic and
electromechanical meters, it is recommended that the REX meter be tested at
the standard test points. These test points are described in Table 5-5.
Table 5-5. Watthour test points
Whereas electromechanical meters have adjustments to calibrate the meter at
all three test points, the REX meter is calibrated in the factory.
Elster Electricity provides the factory calibration data in a report.
To test the REX meter at the standard test points, the following procedure
should be used:
1. Verify the meter calibration at full load using the formula for calculating
meter accuracy. See “Calculating meter accuracy” on page 5-8 to
determine the percent accuracy.
2. Verify the meter calibration at light load using the same formula in step
1.
3. Verify the calibration of the meter at full load with lagging power factor
using the same formula in step 1.
4. Check for creeping at the rated voltage level with no current. The meter
must produce one full Kh pulse within 10 minutes to be considered
creeping, with creep being defined as continuous output pulses from
the meter with normal operating voltage but the load terminals open
circuited.
12S, 200 A 120 V 30 A 120 Wh/minute
12S, 320 A 120 V 50 A 200 Wh/minute
Form Test voltage Test current Kh pulses per minute
Test point Definition
Full load 100% of the nameplate test amperes, test voltage, and
rated frequency at unity power factor
Light load 10% of the nameplate test amperes, test voltage, and rated
frequency at unity power factory
Lagging power
factor
100% of the nameplate test amperes, test voltage, and
rated frequency at 0.5 lagging power factor (current lagging
voltage by 60 ° phase angle)

3UHOLPLQDU\
Contact Elster Electricity for information
REX Meter
5 Testing Technical Manual
5-10 30 November 2006
Installation Site
Te s t in g
Since no adjustments are required for the REX meter, the main reason to test a
meter is to make sure it is operating within factory specifications. Typically, all
that needs to be done is to check the meter calibration.
Accuracy Tests
Accuracy tests confirm that the kWh readings meet calibration standards. The
method of manually counting pulses requires a stopwatch.
To count pulses manually, the following procedure should be used:
1. Place a known load on the meter.
2. Start the stopwatch when the LCD Kh pulse indicator turns off and start
counting the number of pulses made by the indicator. Be sure to count
each time the Kh pulse indicator (square indicator) turns off.
3. After a sufficient time to account for various response times, stop the
stopwatch when the LCD Kh pulse indicator turns off. Record both the
time on the stopwatch and the number of pulses counted.
4. Remove the load from the meter.
5. Calculate the expected number of pulses using the following formula:
Note: Time is measured in minutes.
6. Verify that the calculated pulse value matches the observed pulse
count. This indicates that the meter is performing accurately.
7. Calculate the kWh using this formula:
The calculated kWh may not be exactly equal to the observed kWh. The time
the meter was energized with the load applied and the time between starting
and stopping the stopwatch can vary the calculations. This is normal and does
not necessarily reflect inaccurate measurements.
8. Verify that the calculated kWh is equal to the change in kWh reported
on the REX LCD. This indicates that the meter is calculating kWh
accurately.
60
1000
K
tkW
value pulse calculated
h
×
×
=
1000
value pulse calculatedK
kWh calculated h×
=

3UHOLPLQDU\
Contact Elster Electricity for information
30 November 2006 6-1
REX Meter
Technical Manual 6 Installation and Removal
6Installation and Removal
Preliminary
Inspection
Circuit-closing devices must be used on current transformer secondaries. This
applies to Form 3S and 4S meters. Dangerous currents and voltages are
present if secondaries are open-circuited. Equipment damage, personal injury,
or death can result if circuit-closing devices are not used.
The REX meter is calibrated and tested at the factory and is ready for
installation. Follow proper installation and removal procedures for personal
safety and protection of the meter.
Before installing and applying power to the REX meter, Elster Electricity
recommends a quick inspection of the meter. Check for any of the following
items:
■missing or broken parts
■missing or broken wiring
■bent or cracked components
■evidence of overheating
Also, check the nameplate to make sure the meter is appropriate for the service.
Physical damage to the outside of the REX meter could indicate potential
electronic damage to the inside of the meter. Do not connect power to a meter
that is suspected of having internal damage. Contact your local Elster Electricity
representative if you suspect your meter may be damaged.
Technical
Manual
REX
Meter

3UHOLPLQDU\
Contact Elster Electricity for information
REX Meter
6 Installation and Removal Technical Manual
6-2 30 November 2006
Placing the Meter
into Service
See Appendix D, “Wiring Diagrams,” for illustrations of both internal and
connection wiring diagrams.
Make sure to install the correct meter for the service type, maximum current,
and capacity required. Installing mismatched meters can damage equipment.
Always verify that the maximum meter voltage and current ratings are equal to or
greater than the maximum service voltage and current.
If a REX meter is installed in a meter shop and a collector is powered at the
same time, the REX meter may have registered to the collector. Before removing
the REX meter from the meter shop, unregister the REX meter from the collector
(see “Clear Data” on page 3-5).
Installing the REX Meter
Use authorized utility procedures to install and service metering equipment.
Dangerous voltages are present. Equipment damage, personal injury, or death
can result if safety precautions are not followed.
To install the REX meter effectively and safely, follow this procedure:
1. Align the meter blades and meter base socket jaws to the service
socket.
2. Grasp each meter side and push it into the socket until the meter is
firmly in place. If the meter resists sliding into place, rock the meter up
and down while pushing forward.
3. Once firmly in place, power can be applied to the meter.

3UHOLPLQDU\
Contact Elster Electricity for information
30 November 2006 6-3
REX Meter
Technical Manual 6 Installation and Removal
Initial Setup After installing and powering the REX meter, verify the following:
■If there is a load, the Kh pulse indicator on the LCD is flashing, and the
arrows indicate the correct energy flow direction.
■Required meter seals are in place.
■Any information (such as location of the meter) has been recorded.
If the meter is not working correctly after it has been installed, then check for
improper installation or wiring. If the installation and wiring are correct, then
check these other areas:
■the meter installation matches the meter nameplate
■the correct type of REX meter is installed in the existing service
■no evidence of mechanical or electrical damage to either the meter or
the installation location
■the service voltage falls within the operating range as indicated on the
nameplate
■the seals are not broken
A broken seal could be an indication of tampering with the REX meter
installation.

3UHOLPLQDU\
Contact Elster Electricity for information
REX Meter
6 Installation and Removal Technical Manual
6-4 30 November 2006
Removing the Meter
from Service
Use caution when removing the REX meter from service.
Use authorized utility procedures to remove metering equipment. Dangerous
voltages are present, equipment damage, personal injury, or death can result if
safety procedures are not followed.
When the meter is removed from the field, the meter registration status should
be cleared before installing the meter in a new location (see “Clear Data” on
page 3-5).
Removing the REX Meter
Circuit-closing devices must be used on current transformer secondaries. This
applies to Form 3S and 4S meters. Dangerous currents and voltages are
present if secondaries are open-circuited. Equipment damage, personal injury,
or death can result if circuit-closing devices are not used.
If it becomes necessary to remove a REX meter from service, use the following
procedure:
1. Before disconnecting the meter, make sure that the existing meter data
has been read from the display.
2. Remove the voltage and disconnect the current circuits.
3. Break the seal holding the REX meter in place.
4. Remove the seal and collar (or other security device).
5. Grasp each side of the meter and gently pull it from the socket. If the
meter resists removal, gently rock the meter up and down while pulling
back.

3UHOLPLQDU\
Contact Elster Electricity for information
30 November 2006 6-5
REX Meter
Technical Manual 6 Installation and Removal
Disassembling and
Reassembling the
Meter
The REX meter can be disassembled. Figure 6-1 shows a disassembled meter
and the various components.
Do not disassemble the meter or remove the electronic components with power
present. Doing so could result in exposure to dangerous voltages resulting in
equipment damage, personal injury, or death.
Figure 6-1. Disassembled REX meter
Removing the Meter Cover
To disassemble the REX meter, first remove the meter cover. To remove the
meter cover:
1. Remove the T-seal or wire seal from the back of the meter.
2. While holding the bottom of the meter base, grasp the front of the meter
cover and turn counterclockwise until it stops.
3. Pull the meter cover to reveal the inner housing.
Removing the Inner Housing
The meter cover must be off before the inner housing can be removed. To
remove the inner housing:
1. Place the meter on a stable, flat surface.
2. While pressing the four release tabs simultaneously (see Figure 6-2), lift
the inner housing to reveal the electronic components and circuit board
support frame.
Meter cover
Nameplate
Inner housing
Main circuit board
with RF module
Meter base

3UHOLPLQDU\
Contact Elster Electricity for information
REX Meter
6 Installation and Removal Technical Manual
6-6 30 November 2006
Figure 6-2. Release tabs
Removing the Electronic Components
The electronic components consist of the following parts:
■main circuit board
■any installed option boards
Figure 6-3. Electronic components and connectors
Release tab Release tab
(hidden)
Release tab
Release tab
(hidden)
Top option board slot
Middle option
board slot
Lower option
board slot
Main circuit board
Radio
antenna
900 MHz radio
LCD support

3UHOLPLQDU\
Contact Elster Electricity for information
30 November 2006 6-7
REX Meter
Technical Manual 6 Installation and Removal
Removing the Main Circuit Board.
Care must be taken to prevent electrostatic discharge damage when handling
any of the electronic assemblies.
The inner housing must be removed to reach the main circuit board. To remove
the electronic assembly:
1. Disconnect the current sensor cable (not shown in Figure 6-3) from the
main circuit board.
2. If an option board is installed, disconnect the ribbon connector from the
main circuit board (not shown in Figure 6-3).
3. Facing the meter LCD, pull the main circuit board towards you and
away from the circuit board support frame.
Reassembling the Meter
The REX meter contains sensitive electronic equipment. Use caution when
applying pressure on the main circuit board or any option boards that may be
installed. If the main circuit board or option board does not easily snap into
place, remove the main circuit board or option board and try again. Applying the
incorrect amount of pressure can result in a damaged or broken main circuit
board or option board.
The REX meter can be reassembled by reversing the instructions for
disassembling the meter as described above.
When reassembling the main circuit board, be sure to push on the LCD support
(see Figure 6-3). Pushing on the main circuit board in other locations may result
in damage to the electronic equipment on the main circuit board.

3UHOLPLQDU\
Contact Elster Electricity for information
REX Meter
6 Installation and Removal Technical Manual
6-8 30 November 2006

3UHOLPLQDU\
Contact Elster Electricity for information
07 April 2006 A-1
REX Meter
Technical Manual A Glossary
AGlossary
billing data The measured quantities recorded and stored by the meter for use
in billing the consumer. May also be referred to as tariff data.
del see delivered.
delivered Used to specify the energy delivered (provided) to an electric service.
demand The average power computed over a specific time.
demand interval The time period over which demand is calculated. In the REX
meter, the demand interval must be 15, 30, or 60 minutes.
demand reset The act of resetting the present maximum demand to zero.
demand threshold The present value of demand that, when reached, sets a
warning flag.
display quantity Any value available for display on the LCD.
EEPROM Acronym for electrically erasable programmable read only memory.
This memory retains all information even when electric power is removed from
the circuit.
energy Power measured over time.
error code display The method by which the meter displays an error
message which consists of E and numeric codes. Error codes indicate that a
condition exists or has occurred that may be affecting billing data.
IC see integrated circuit.
integrated circuit Generally used to reference the meter circuit used in the
REX meter for per phase voltage and current sampling plus energy
measurements.
Ke The smallest discrete amount of energy available within the meter. It is the
value of a single pulse used between the meter engine and the microcontroller.
Kh A meter constant representing the watthours per output pulse on the optical
port or one flash of the LCD Kh indicator. Historically, Kh represents the energy
equivalent to one revolution of an electromechanical meter.
LCD see liquid crystal display.
LCD test A display showing 8 in all the display areas and all identifiers on the
LCD turned on. This confirms that all LCD segments are operating properly.
LP see load profiling.
line frequency The frequency of the AC voltage. Depending upon the country
or region, the line frequency is either 50 Hz or 60 Hz.
liquid crystal display The LCD displays metered quantities and other
information about the REX meter. Display quantities are factory programmable.
Technical
Manual
REX
Meter

3UHOLPLQDU\
Contact Elster Electricity for information
REX Meter
A Glossary Technical Manual
A-2 07 April 2006
load profiling Load profiling records energy usage per a specific time interval
while the meter is energized.
maximum demand The highest demand calculated during any demand
interval over a billing period.
meter base The part of the meter containing all of the following components:
■base housing
■current sensing transformer
■current and voltage blades
■hanger
microcontroller A single IC that contains the following components:
■main processor
■RAM
■ROM
■clock
■I/O control unit
optical port A photo-transistor and an test LED on the face of the meter that is
used to transfer data between a computer and the meter via pulses of light.
previous billing data A copy of the billing data stored at the time of the most
recent demand reset.
rec see received.
received Used to specify the energy received by the utility at an electric
service.
tariff data See billing data.
TOU see time-of-use.
timekeeping The ability of the meter to keep a real time clock, including date
and time. The REX meter obtains time from the network.
time-of-use A billing rate that records energy usage and demand data in
separate registers to indicate the time of day that the energy was consumed.

3UHOLPLQDU\
Contact Elster Electricity for information
30 November 2006 B-1
REX Meter
Technical Manual B Display
BDisplay
Display Format The REX meter uses a 6-digit LCD located on the front of the meter. As shown in
Figure B-1, the LCD is divided into different display regions. See “LCD” on
page 3-1 for more detailed descriptions of the LCD and its display regions.
Figure B-1. LCD regions
Table B-1. LCD regions
Display quantity
Real energy
indicators
Power/energy
unit identifier
Rate
identifier
Item Description
Display quantity Shows the metered quantity or other displayable
information. Four to six digits can be used to display kWh
data. These digits are also used to report the following:
• energy
• demand
• per phase voltage present indicators (Form 12S only)
• error codes
• status codes
• time
• network registration status
Rate identifier When lit, indicates the appropriate TOU rate for the quantity
displayed on the LCD or the current rate in conjunction with
the current time.
Power/energy
unit identifier
When lit, indicates the unit of measurement for the quantity
displayed on the LCD.
Technical
Manual
REX
Meter

3UHOLPLQDU\
Contact Elster Electricity for information
REX Meter
B Display Technical Manual
B-2 30 November 2006
Display Items The same hold time is used for all items in the display list.
Displayable items can be grouped into the following categories:
■LCD test
■error codes and status codes
■current time and rate
■metered quantities
■received energy quantity
■per phase voltage present indication (Form 12S only)
■network registration status
LCD Test
When selected as a display item, the REX meter tests the display segments by
lighting all the segments on the LCD as shown in Figure B-2. During the LCD
test, the real energy arrows and the Kh pulse indicator operate normally and are
not affected by the LCD test.
Figure B-2. LCD test
Note: After power restoration, the LCD test always displays all
segments (including the real energy arrows and square
indicator) even if the LCD test is not selected as a displayable
item.
Error Codes and Status Codes
Error codes are appended to the display list automatically when the condition
exists. Status codes are appended to the display list if both of the following
items are valid:
■the condition causing the status code exists
■status codes have been selected as a display item
Real energy
indicators
Arrows indicate the direction of energy flow; square (Kh
pulse indicator) indicates the proportional rate of
consumption.
Item Description

3UHOLPLQDU\
Contact Elster Electricity for information
30 November 2006 B-3
REX Meter
Technical Manual B Display
Error and status codes are removed from the display list automatically when the
condition clears. See “Error and Status Codes” on page 5-1 for more
information.
Current Time and Rate
When selected as a display item, the REX meter displays the current time and
the current rate as shown in Figure B-3. Note that the time is displayed in 24-
hour format For example, 8:26 AM is displayed as 08.26, and 8:26 PM is
displayed as 20.26.
Figure B-3. Sample display of the REX meter’s current time and rate
Metered Quantities
The REX meter can display both energy and demand values.
Energy Quantities. Energy values may be displayed with 4, 5, or 6 digits. If
the quantity requires fewer digits, leading zeros are used (see Figure B-4). If TOU
metering is being used, the meter can display the energy quantity for each rate.
The rate identifier shows the appropriate rate for each quantity.
Figure B-4. Sample 5-digit energy value for TOU rate C
In addition, the REX meter can display the total energy value (see Figure B-5).

3UHOLPLQDU\
Contact Elster Electricity for information
REX Meter
B Display Technical Manual
B-4 30 November 2006
Figure B-5. Sample 5-digit total energy value
Demand Quantities. The REX meter can display two demand values; where
each demand can be total kW or kW for a specific rate. The following are valid
demand configurations:
■1 total demand value and the demand for 1 rate (for example, total
demand and Rate C demand).
■2 rates (for example, Rate A demand and Rate C demand). The rate
identifier shows the appropriate rate for each quantity.
Demand values are always displayed in the format of nnn.nn (see Figure B-6)
regardless of how many numbers are used to display energy values.
Figure B-6. Sample demand quantity for TOU rate D
Received Energy Quantity
In addition to displaying the selected metered quantity, the REX meter can also
display the total received energy value. The received energy quantity can use up
to 5 digits. The received energy quantity is always preceded by a minus sign, as
shown in Figure B-7.

3UHOLPLQDU\
Contact Elster Electricity for information
30 November 2006 B-5
REX Meter
Technical Manual B Display
Figure B-7. Sample 5-digit received energy quantity
Per Phase Voltage Present Indicators
For Form 12S meters, the display can indicate the status of phase A and
phase C voltages.
■If phase A and phase C voltages are at or above 50 V, the display will
indicate that both voltages are present (see Figure B-8).
■If the phase C voltage is not present (phase C is less than 50 V), the
display will indicate that only phase A voltage is present (see
Figure B-9).
■If phase A and phase C voltages are below 50 V, the display will indicate
that neither voltage is present (see Figure B-10).

3UHOLPLQDU\
Contact Elster Electricity for information
REX Meter
B Display Technical Manual
B-6 30 November 2006
Figure B-8. Both phase A and phase C voltages are present
Figure B-9. Phase C voltage is not present (phase C < 50 V)
Figure B-10. Neither phase A nor phase C voltages are present (phase A and phase C < 50 V)
Network Registration Status
When selected as a display item, the REX meter displays the following
information about its network registration:
■the REX meter is registered with a collector
■the number of communication hops between the REX meter and the
collector
■the four least significant digits of the collector’s LAN ID
See Figure B-11 for an example of the network registration status display.
Note: If the network registration status is selected as a display item
but the REX meter is not registered with the collector, then the
network registration status display item is skipped and is not
shown on the LCD.

3UHOLPLQDU\
Contact Elster Electricity for information
30 November 2006 B-7
REX Meter
Technical Manual B Display
Figure B-11. Sample network registration status sample display
Table B-2. Network registration status sample display description
Code Description
2 The number of communication “hops” between the REX meter and
the collector. In the example, the 2 indicates that the REX meter
communicates with the collector through one other REX meter.
r Indicates that the REX meter is registered with a collector.
2049 The last 4 digits of the collector’s LAN ID.
• In REX meter release 1.0, the last 4 digits are in hexadecimal
format.
• In REX meter releases 2.0 and higner, the last 4 digits are in
decimal format.

3UHOLPLQDU\
Contact Elster Electricity for information
REX Meter
B Display Technical Manual
B-8 30 November 2006

3UHOLPLQDU\
Contact Elster Electricity for information
30 November 2006 C-1
REX Meter
Technical Manual C Nameplate Information
CNameplate Information
REX Meter
Nameplate
The REX meter nameplate provides important information about the meter.
Figure C-1 is an illustration of the standard REX meter nameplate for transformer
rated meters.
Figure C-1. Sample standard nameplate (transformer rated)
The following figures identify the different areas of the nameplate along with the
information they convey.
Transformer Rated Meter Information
Figure C-2 shows the information application to transformer rated meters. The
nameplate displays the multipliers for the meter.
Note: This section of the nameplate is not present for self-contained
meters.
LAN ID: 255-1970110102
CL20, 120 TO 240V, 3W, 60Hz
FM 4S Watthour Meter
Kh 1.0 TA 2.5
ZCC22000000
REX METER NAMEPLATE
*G012345678 *
SERIAL # 12 345 678
Pkh Mult. By :1
VTR :5
CTR
FCC ID: QZC-RX9A TYPE R1S
Technical
Manual
REX
Meter

3UHOLPLQDU\
Contact Elster Electricity for information
REX Meter
C Nameplate Information Technical Manual
C-2 30 November 2006
Figure C-2. Nameplate information for transformer rated meters
Lower Portion
The lower portion of the nameplate displays the serial number, barcode, form
factor, and meter constants for the meter along with other information as shown
in Figure C-3.
Figure C-3. Sample lower portion of standard transformer rated nameplate (self contained is similar)
The utility ID is the same for all meters that are part of the same network. The
LAN ID is unique for each meter.
Pkh Mult. By :1
VTR :5
CTR
Primary Kh
External display
multiplier
Voltage
transformer ratio
Current
transformer ratio
LAN ID: 255-1970110102
CL20, 120 TO 240V, 3W, 60Hz
FM 4S Watthour Meter
Kh 1.0 TA 2.5
ZCC22000000
REX METER NAMEPLATE
*G012345678 *
SERIAL # 12 345 678
FCC ID: QZC-RX9A TY PE R 1S
Serial number FCC ID number
Class rating
Voltage range
Service
ANSI form
designation
Test
amperes
Style number
Watthours per
test LED pulse Utility ID and
LAN ID
Manufacturer
bar code
Meter type
Utility ID LAN ID
LAN ID: 255-1970110102

3UHOLPLQDU\
Contact Elster Electricity for information
07 April 2006 D-1
REX Meter
Technical Manual D Wiring Diagrams
DWiring Diagrams
Internal Wiring
Diagrams
PS
3-wire
Transformer-rated
PS
09F05
2-wire
Self contained
2- or 3-wire
Transformer-rated
PS PS
Alternate positions of movable
potential terminal
Form 1S Form 2S
3-wire
Self contained
Form 3S Form 4S
PS
Form 12S
2-wire
Self contained
Alternate positions of movable
potential terminal
Technical
Manual
REX
Meter

3UHOLPLQDU\
Contact Elster Electricity for information
REX Meter
D Wiring Diagrams Technical Manual
D-2 07 April 2006
Installation Wiring
Diagrams
Form 3S
1 phase, 3 wire
1 CT, no VTs
11G03
1
2
N
N
2
1
CIRCUIT
CLOSING
DEVICE
Form 4S
1 Phase, 3 Wire
2 CTs, no VTs
11G03
1
2
N
N
2
1
CIRCUIT
CLOSING
DEVICE
N
1
L
O
A
D
1
N
1
N
Form 1S
1 phase, 2 wire
self–contained
20E01
1
2
N
L
O
A
D
2
N
1
N
2
1
Form 2S
1 phase, 3 wire
self–contained
20E01
Form 3S
1 phase, 2 wire
1 CT, no VTs
11G03
1
N
N
1
CIRCUIT
CLOSING
DEVICE
L
O
A
D
2
N
1
1
2
N
N
2
1
Form 12S
2 phase, 3 wire wye
self–contained
20E01

3UHOLPLQDU\
Contact Elster Electricity for information
07 April 2006 E-1
REX Meter
Technical Manual E Technical Specifications
ETechnical Specifications
Absolute Maximums
Operating Ranges
Voltage 288 VAC (Forms 1S, 2S, 3S, 4S) 144 VAC (Form 12S)
Surge voltage withstand Test Performed Results
ANSI C37.90.1 Oscillatory 2.5 kV, 2500 strikes
Fast transient 5 kV, 2500 strikes
ANSI 62.41 6 kV @ 1.2/50 µs, 10 strikes
IEC 61000-4-4 4 kV, 2.5 kHz repetitive burst for 1
minute
ANSI C12.16 dielectric 2.5 kV, 60 Hz for 1 minute
Current Continuous at 100 % of the meter maximum current
Temporary (1 second) at 200 % of meter maximum current
Voltage Nameplate nominal range Operating range
Form 1S and Form 12S 120 V 96 V to 144 V
Form 2S 240 V 192 V to 288 V
Form 3S and Form 4S 120 V to 240 V 96 V to 288 V
Current 0 to maximum amperes
Frequency Nominal 60 Hz ± 5 %
Temperature range -40 °C to +85 °C inside meter cover
Humidity range 0 % to 100 % noncondensing
Technical
Manual
REX
Meter

3UHOLPLQDU\
Contact Elster Electricity for information
REX Meter
E Technical Specifications Technical Manual
E-2 07 April 2006
Operating
Characteristics
General
Performance
Characteristics
Power supply burden Less than 4 W
Current burden 0.1 milliohms typical at +25 °C
Voltage burden 0.907 W at 120 V
1.138 W at 240 V
Accuracy The REX meter meets ANSI C12.20 0.5 % accuracy class.
Starting current Class 20 Class 200 Class 320
Form 1S and Form 3S 10 mA 100 mA 160 mA
Form 2S and Form 4S 5mA 50mA 80mA
Form 12S N/A 50 mA 50 mA
Startup delay Less than 2 seconds from power application to pulse accumulation
Creep 0.000 A (no current) No more than 1 pulse measured per quantity, conforming to ANSI C12.1
requirements.
Primary time base Relative time is maintained by a crystal; real time is provided via the 900 MHz
network.

3UHOLPLQDU\
Contact Elster Electricity for information
REX Meter
Technical Manual Index
30 November 2006 Index-1
Index
A
ANSI standards. see
standards:ANSI
C
calibration constants. see EEPROM
critical tier pricing. see TOU
data:critical tier
current sensors. see sensors:current
D
demand
calculation: 2-4
interval: 2-4
maximum: 2-4
demand forgiveness: 2-4
dimensions. see REX
meter:dimensions
DSP. see meter engine
E
EEPROM
and power failure: 2-3
calibration constants: 2-3
stored values: 2-3
theory of operation: 2-3
error codes: 5-1
E00000: 5-2
E00001: 5-2
E00010: 5-2
E00100: 5-2
E01000: 5-2
E10000: 5-2
I
inner housing: 2-7
installation
calibration: 6-1
preliminary inspection: 6-1
S–base procedure: 6-2
verifying: 6-3
L
LCD. see liquid crystal display
LED. see test LED
liquid crystal display: 3-1
display quantity: 3-2
power⁄energy unit identifier: 3-3
real energy indicators: 3-2
load profiling: 2-5
interval: 2-6
M
main circuit board: 2-8
meter accuracy: 5-8
meter base: 2-8
meter cover: 2-7
meter engine
theory of operation: 2-3
metered quantities: 2-3
and load profiling: 2-6
microcontroller
and meter engine pulses: 2-3
detecting power failure: 2-3
theory of operation: 2-3
N
nameplate
in verifying installation: 6-3
location of: 2-7
use in testing: 5-6
O
option boards
location of: 2-8
P
physical components. see REX
meter:physical components
power fail: 2-3, 2-5
power supply
theory of operation: 2-2
power⁄energy unit identifier. see
liquid crystal
display:power⁄energy unit
identifer
R
real energy indicators. see liquid
crystal display:real energy
indicators
removal
S–base procedure: 6-4
resistive dividers. see
sensors:voltage
REX meter
accuracy: 1-3
adaptability: 1-3
Technical
Manual
REX
Meter

3UHOLPLQDU\
Contact Elster Electricity for information
REX Meter
Index Technical Manual
benefits: 1-3
dimensions: 2-10
disassembled: 6-5
meter forms: 1-4
overview: 1-1
physical components: 2-6
reliability: 1-3
security: 1-3
S
safety
notices: 2-vii
procedures: 2-vii
S-base: 2-8
self test: 5-1
sensors
current: 2-2
theory of operation: 2-2
voltage: 2-2
signal conversion: 2-3
socket connected. see S-base
standards
ANSI: 1-2
status codes: 5-3
F00010: 5-4
F01000: 5-3
T
test equipment: 5-5
test LED: 3-3
location of: 4-1
pulse output: 4-1
testing
accuracy: 5-10
calculations used in: 5-7
in–service meters: 5-10
setup: 5-6 to 5-8
watthour testing: 5-9
theory of operation: 2-2 to 2-3
EEPROM: 2-3
meter engine: 2-3
microcontroller: 2-3
power supply: 2-2
sensors: 2-2
TOU data
critical tier: 2-5
switch point: 2-5
V
voltage sensors. see sensors:voltage
W
warranty: 2-vi

3UHOLPLQDU\
Contact Elster Electricity for information

3UHOLPLQDU\
Contact Elster Electricity for information
Elster Electricity, LLC
Raleigh, North Carolina USA
+ 1800 338 5251 (US Technical Support)
+ 1800 257 9754 (US Sales Support)
+ 1 919 212 4800 (US Main)
+ 1 905 634 4895 (Canada Main)
support@us.elster.com
www.elsterelectricity.com