Omron 6CYSIDV6800308 RFID System User Manual Z262 E1 04

Omron Corporation RFID System Z262 E1 04

Contents

Manual 1

RFID SystemV680 SeriesCat. No.: Z262-E1-04Amplifier and AntennasV680-HA63AV680-HS51V680-HS52 ID TagsV680-D1KP52MTV680-D1KP66TV680-D1KP66MTUser's Manual for Amplifiers, Antennas, and ID Tags (EEPROM)V680-HS63V680-D1KP66T-SPV680-HS65V680-H01-V2V680-D1KP58HT
IntroductionThank you for purchasing a V680-series RFID System. This manual describes the functions, performance, and application methods needed for optimum use of the V680-series RFID System.Please observe the following items when using the RFID System.• Allow the RFID System to be installed and operated only by qualified specialist with a sufficientknowledge of electrical systems.• Read and understand this manual before attempting to use the RFID System and use the RFID Sys-tem correctly.• Keep this manual in a safe and accessible location so that it is available for reference when required.
Introduction Section 1 Section 2 Section 3 Section 4 Section 5IntroductionSection 1Section 2Section 3Section 4Section 5READ AND UNDERSTAND THIS DOCUMENTProduct OverviewSpecifications and PerformanceCommunications SpecificationsInstallationChemical ResistanceRFID SystemV680-HA63A AmplifierV680-HS51 AntennaV680-HS52 AntennaV680-HS63 AntennaV680-HS65 AntennaV680-H01-V2 AntennaV680-D1KP52MT ID TagV680-D1KP66T ID TagV680-D1KP66MT ID TagV680-D1KP66T-SP ID TagV680-D1KP58HT ID TagUser's Manual
2IntroductionRFID SystemUser's ManualIntroductionREAD AND UNDERSTAND THIS DOCUMENTPlease read and understand this document before using the products. Please consult your OMRON representative if you have any questions or comments.WARRANTYOMRON’s exclusive warranty is that the products are free from defects in materials and workmanship for a period of one year (or other period if specified)from date of sale by OMRON.OMRON MAKES NO WARRANTY OR REPRESENTATION, EXPRESS OR IMPLIED, REGARDING NON-INFRINGEMENT, MERCHANTABILITY, OR FIT-NESS FOR PARTICULAR PURPOSE OF THE PRODUCTS. ANY BUYER OR USER ACKNOWLEDGES THAT THE BUYER OR USER ALONE HAS DETERMINED THAT THE PRODUCTS WILL SUITABLY MEET THE REQUIREMENTS OF THEIR INTENDED USE. OMRON DISCLAIMS ALL OTHER WARRANTIES, EXPRESS OR IMPLIED.LIMITATIONS OF LIABILITYOMRON SHALL NOT BE RESPONSIBLE FOR SPECIAL, INDIRECT, OR CONSEQUENTIAL DAMAGES, LOSS OF PROFITS OR COMMERCIAL LOSS IN ANY WAY CONNECTED WITH THE PRODUCTS, WHETHER SUCH CLAIM IS BASED ON CONTRACT, WARRANTY, NEGLIGENCE, OR STRICT LIABIL-ITY.In no event shall responsibility of OMRON for any act exceed the individual price of the product on which liability is asserted.IN NO EVENT SHALL OMRON BE RESPONSIBLE FOR WARRANTY, REPAIR, OR OTHER CLAIMS REGARDING THE PRODUCTS UNLESS OMRON’S ANALYSIS CONFIRMS THAT THE PRODUCTS WERE PROPERLY HANDLED, STORED, INSTALLED, AND MAINTAINED AND NOT SUBJECT TO CON-TAMINATION, ABUSE, MISUSE, OR INAPPROPRIATE MODIFICATION OR REPAIR.SUITABILITY FOR USETHE PRODUCTS CONTAINED IN THIS DOCUMENT ARE NOT SAFETY RATED. THEY ARE NOT DESIGNED OR RATED FOR ENSURING SAFETY OF PERSONS, AND SHOULD NOT BE RELIED UPON AS A SAFETY COMPONENT OR PROTECTIVE DEVICE FOR SUCH PURPOSES. Please refer to separate catalogs for OMRON's safety rated products.OMRON shall not be responsible for conformity with any standards, codes, or regulations that apply to the combination of products in the customer’s applica-tion or use of the product.At the customer’s request, OMRON will provide applicable third party certification documents identifying ratings and limitations of use that apply to the prod-ucts. This information by itself is not sufficient for a complete determination of the suitability of the products in combination with the end product, machine, system, or other application or use.The following are some examples of applications for which particular attention must be given. This is not intended to be an exhaustive list of all possible uses of the products, nor is it intended to imply that the uses listed may be suitable for the products:• Outdoor use, uses involving potential chemical contamination or electrical interference, or conditions or uses not described in this document.• Nuclear energy control systems, combustion systems, railroad systems, aviation systems, medical equipment, amusement machines, vehicles, safety equipment, and installations subject to separate industry or government regulations.• Systems, machines, and equipment that could present a risk to life or property.Please know and observe all prohibitions of use applicable to the products.NEVER USE THE PRODUCTS FOR AN APPLICATION INVOLVING SERIOUS RISK TO LIFE OR PROPERTY WITHOUT ENSURING THAT THE SYSTEM AS A WHOLE HAS BEEN DESIGNED TO ADDRESS THE RISKS, AND THAT THE OMRON PRODUCT IS PROPERLY RATED AND INSTALLED FOR THE INTENDED USE WITHIN THE OVERALL EQUIPMENT OR SYSTEM.PERFORMANCE DATAPerformance data given in this document is provided as a guide for the user in determining suitability and does not constitute a warranty. It may represent the result of OMRON’s test conditions, and the users must correlate it to actual application requirements. Actual performance is subject to the OMRON Warranty and Limitations of Liability.CHANGE IN SPECIFICATIONSProduct specifications and accessories may be changed at any time based on improvements and other reasons.It is our practice to change model numbers when published ratings or features are changed, or when significant construction changes are made. However, some specifications of the product may be changed without any notice. When in doubt, special model numbers may be assigned to fix or establish key spec-ifications for your application on your request. Please consult with your OMRON representative at any time to confirm actual specifications of purchased products.DIMENSIONS AND WEIGHTSDimensions and weights are nominal and are not to be used for manufacturing purposes, even when tolerances are shown.ERRORS AND OMISSIONSThe information in this document has been carefully checked and is believed to be accurate; however, no responsibility is assumed for clerical, typographical, or proofreading errors, or omissions.PROGRAMMABLE PRODUCTSOMRON shall not be responsible for the user’s programming of a programmable product, or any consequence thereof.COPYRIGHT AND COPY PERMISSIONThis document shall not be copied for sales or promotions without permission. This document is protected by copyright and is intended solely for use in con-junction with the product. Please notify us before copying or reproducing this document in any manner, for any other purpose. If copying or transmitting this document to another, please copy or transmit it in its entirety.
3RFID SystemUser's ManualIntroductionIntroductionAlert Symbols for Safe UseThe following symbols are used in this manual to indicate precautions that must be observed to ensure safeuse of the V680-HS51, V680-HS52, V680-HS63, V680-HS65, V680-H01-V2, V680-HA63A, V680-D1KP52MT, V680-D1KP66T, V680-D1KP66MT, V680-D1KP66T-SP, and V680-D1KP58HT. The precautions provided here contain important safety information. Be sure to observe these precautions.The following signal words are used in this manual.Meanings of Alert SymbolsWarningThe Products conform to the following overseas regulations and standards.1.The United StatesFCC NOTICEThis device complies with part 15 of the FCC Rules. Operation is subject to the following two conditions:(1) This device may not cause harmful interference.(2) This device must accept any interference received, including interference that may cause undesired operation.FCC WARNINGChanges or modifications not expressly approved by the party responsible for compliance could void the user's author-ity to operate the equipment.Do not remove the ferrite core (TDK Type ZCAT1730-0730A:V680-HS52/-HS63/-HS65, TDK Type ZCAT1525-0430AP:V680-HS51, TDK Type ZCAT2035-0930:V680-H01-V2) installed on the cables to suppress RF interference.Safety PrecautionsIndicates a potentially hazardous situation which, if not avoided, will result in minor or mod-erate injury, or may result in serious injury or death. Additionally, there may be significant property damage.Indicates general prohibitions for which there is no specific symbol.These Products are not designed to be used either directly or indirectly in applications that detect human presence for the purpose of maintaining safety. Do not use these Products as a sensing means for protect-ing human lives.Regulations and StandardsAmplifier AntennaThis product complies with Part 15 Subpart C of the FCC Rules.FCC ID: E4E6CYSIDV6800406V680-HA63A V680-HS51V680-HS52V680-HS63V680-HS65This product complies with Part 15 Subpart C of the FCC Rules.FCC ID: E4E6CYSIDV6800308--- V680-H01-V2WARNINGWARNING
4IntroductionRFID SystemUser's ManualIntroduction2. Europe3. Japan4. CanadaThis device complies with RSS-Gen of IC Rules.Operation is subject to the following two conditions:(1) this device may not cause harmful interference, and (2) thisdevice must accept any interference received, including interference that may cause undesired operation.Amplifier Antenna(Radio and Telecommunication Terminal Equipment Directive 1999/5/EC) V680-HA63A V680-HS51V680-HS52V680-HS63V680-HS65Radio:EMC:Safety:EN 300 330-2EN 301 489-1EN 301 489-3EN 61010 --- V680-H01-V2English Hereby, Omron, declares that the RFID System, V680-HS51 Series, V680-HS52 Series, V680-HS63 Series, V680-HS65 Series, V680-H01-V2 Series andV680-HA63A Series are in compliance with the essential requirements and other relevant provisions of Directive 1999/5/EC.Finnish Omron vakuuttaa täten että RFID Säännös, V680-HS51 Series, V680-HS52 Series, V680-HS63 Series, V680-HS65 Series, V680-H01-V2 Series, V680-HA63A Series tyyppinen laite on direktiivin 1999/5/EY oleellisten vaatimusten ja sitä koskevien direktiivin muiden ehtojen mukainen.Dutch Hierbij verklaart Omron dat het toestel de RFID Systeem, V680-HS51 ´Serie, V680-HS52 ´Serie, V680-HS63 ´Serie, V680-HS65 ´Serie, V680-H01-V2´Serie, V680-HA63A ´Serie in overeenstemming is met de essentiële eisen en de andere relevante bepalingen van richtlijh 1999/5/EG.French Par la présente Omron déclare que la RFID Système, V680-HS51 Série, V680-HS52 Série, V680-HS63 Série, V680-HS65 Série, V680-H01-V2 Série,V680-HA63A Série sont conforme aux exigences essentielles et aux autres dispositions pertinentes de la directive 1999/5/CE.Swedish Härmed intygar Omron att den RFID System, V680-HS51 Serie, V680-HS52 Serie, V680-HS63 Serie, V680-HS65 Serie, V680-H01-V2 Serie, V680-HA63A Serie stär l överensstämmelse med de väsentliga egenskapskrav och övriga relevanta bestämmelser som framgår av direktiv 1999/5/EG.Danish Undertegnede Omron erklærer herved, at følgende den RFID System, V680-HS51 Serie, V680-HS52 Serie, V680-HS63 Serie, V680-H01-V2 Serie,V680-HS65 Serie, 680-HA63A Serie overholder de væsentlige krav og øvrige relevante krav i direktiv 1999/5/EF.German Hiermit erklärt Omron, die RFID System, V680-HS51 Serie, V680-HS52 Serie, V680-HS63 Serie, V680-HS65 Serie, V680-H01-V2 Serie, V680-HA63ASerie in Übereinstimmung mit den grundlegenden Anforderungen und den anderen relevanten Vorschriften der Richtlinie 1999/5/EG befindet. (BMWi)Greek ME THN ΠAPOYSA Omron ΔHΛONEI RFID O’YO’ΓΗΜΑ, V680-HS51 O’EIPA, V680-HS52 O’EIPA, V680-HS63 O’EIPA, V680-HS65 O’EIPA, V680-H01-V2 O’EIPA, V680-HA63A O’EIPA SYMMOPF ONETAI ΠPOS TIS OYSIOΔEIS AΠAITHSEIS KAI TIS ΛOIΠES SXETIKES ΔIATAΞEIS THSOΔHΓIAS 1999/5/EK.Italian Con la presente Omron dichiara che la RFID Sistema, V680-HS51Serie, V680-HS52Serie, V680-HS63 Serie,V680-HS65 Serie,V680-H01-V2 Serie,V680-HA63A Serie sono conforme ai requisiti essenziali ed alle altre disposizioni pertinenti stabilite dalla direttiva 1999/5/CE.Spanish Por medio de la presente Omron declara que el RFID Sistema, V680-HS51 Serie, V680-HS52 Serie, V680-HS63 Serie, V680-HS65 Serie, V680-H01-V2Serie, V680-HA63A Serie esta conforme a los requisitos esenciales y cualesquiera otras disposiciones aplicables o exigibles de la Directiva 1999/5/CE.Portuguese Omron declara que a RFID Sistema, V680-HS51 Série, V680-HS52 Série, V680-HS63 Série, V680-HS65 Série, V680-H01-V2 Série, V680-HA63ASérie ser conforme com os tequisitos essenciais e outras disposições da Directiva 1999/5/CE.Romanian Prin prezenta, Omron declar  c  acest V680-HS51, V680-HS52, V680-HS63, V680-HS65, V680-H01-V2, V680-HA63A este conform cu cerin ele prin-cipale çi cu celelalte prevederi relevanate ale Directivei 1999/5/EC.Amplifier AntennaEquipment using high frequencies: Inductive Reading/Writing Communications EquipmentConforming standards: Inductive Reading/Writing Communications Equipment; Standard: ARIB STD-T82EC-06019V680-HA63A V680-HS51V680-HS52V680-HS63V680-HS65Equipment using high frequencies: Inductive Reading/Writing Communications EquipmentConforming standards: Inductive Reading/Writing Communications Equipment; Standard: ARIB STD-T82EC-@@@@@--- V680-H01-V2Amplifier AntennaIC ID:850J-V68HA63A V680-HA63A V680-HS51V680-HS52V680-HS63V680-HS65IC ID:850J-V6800308 --- V680-H01-V2
5RFID SystemUser's ManualIntroductionIntroduction5. China6. Korea7. TaiwanAmplifier AntennaCMII ID:2008DJ0884 V680-HA63A V680-HS51CMII ID:2007DJ0577 V680-HA63A V680-HS52-RCMII ID:2007DJ0575 V680-HA63A V680-HS52-WCMII ID:2007DJ0571 V680-HA63A V680-HS63-RCMII ID:2007DJ0573 V680-HA63A V680-HS63-WCMII ID:2008DJ0141 V680-HA63A V680-HS65-RCMII ID:2008DJ0142 V680-HA63A V680-HS65-WAmplifier AntennaOMR-V680-HA63A V680-HA63A V680-HS51V680-HS52V680-HS63V680-HS65Amplifier AntennaCCAB07LP1220T4 V680-HA63A V680-HS51V680-HS52V680-HS63V680-HS65
6IntroductionRFID SystemUser's ManualIntroduction8. Hong Kong9. Singapore10.MalaysiaIf the product is used in Malaysia, a label must be attached on-site to the side of the V680-HA63A.Please consult your OMRON sales representative for details.11.Philippine12.MexicoEste equipo opera a titulo secundario, consecuentemente, debe aceptar interferencias perjudiciales incluyendoequipos de la misma clase y puede no causar interferencias a sistemas operando a titulo primario.13.ThailandThe certification is unnecessary, so the product can be used.Changes or modifications not expressly approved by the party responsible for compliance could void the user's author-ity to operate the equipment.Do not remove the ferrite core (TDK Type ZCAT1730-0730A:V680-HS52/-HS63/-HS65, TDK Type ZCAT1525-0430AP:V680-HS51, TDK Type ZCAT2035-0930:V680-H01-V2) installed on the cables to suppress RF interference.Amplifier AntennaLP407043 V680-HA63A V680-HS52V680-HS63Amplifier AntennaS0294-07 V680-HA63A V680-HS51V680-HS52V680-HS63V680-HS65Amplifier AntennaA011578 V680-HA63A V680-HS51V680-HS52V680-HS63V680-HS65Amplifier AntennaESD-0702971C V680-HA63A V680-HS51V680-HS52V680-HS63V680-HS65Amplifier AntennaCOFETEL:RLVOMV607-622-A2 V680-HA63A V680-HS51V680-HS52V680-HS63V680-HS65
7RFID SystemUser's ManualIntroductionIntroductionBe sure to observe the following precautions to ensure safe use of the Products.1. Do not use the Products in environments with flammable, explosive, or corrosive gasses.2. Do not attempt to disassemble, repair, or modify any Product.3. Tighten mounting screws securely.4. Because a cable has a locking mechanism, make sure that it has been locked before using the cable.5. Do not allow water or pieces of wire to enter from openings in the case. Doing so may cause fire orelectric shock.6. Turn OFF the Controller power supply before mounting or removing an Antenna or Amplifier.7. Turn OFF the power supply to the Controller before changing settings.Attach a Setting switch protection Cover after setting Switch.8. If an error is detected in any Product, immediately stop operation and turn OFF the power supply. Consultwith an OMRON representative.9. Dispose of the Products as industrial waste.10. Observe all warnings and precautions given in the body of this manual.11. Do not touch the product immediately after usage at high temperatures. Doing so may occasionally resultin burning.12. Do not open the back cover of the V680-H01-V2 antenna. 13. Do not install the Products near equipment that generates a large amount of heat, such as a heater,transformer, or high-capacity resistor. Precautions for Safe Use
8IntroductionRFID SystemUser's ManualIntroductionAlways observe the following precautions to prevent operation failures, malfunctions, and adverse effects on performance and equipment.1. Installation EnvironmentDo not use the Products in the following locations.• Locations exposed to direct sunlight• Locations exposed to corrosive gases, dust, metallic powder, or salts• Locations not within the specified operating temperature range• Locations subject to rapid changes in temperature or condensation• Locations not within the specified humidity range• Locations subject to direct vibration or shock outside the specified ranges• Locations subject to spray of water, oil, or chemicals2. InstallationThe Products communicate with Tags using the 13.56-MHz frequency band. Some motors, inverters,and switching power supplies generate noise that can affect communications with the Tags and causeerrors. If such devices are located near the Tags, always test operation in advance to confirm whetherthe system will be affected.• Observe the following precautions to minimize the effects of normal noise.(1) Ground all metal objects in the vicinity of the Products to 100 Ω or less.(2) Do not use the Products near high-voltage or high-current lines.• Do not use non-waterproof Products in an environment where mist is present.• Do not expose the Products to chemicals that adversely affect the Product materials.• When mounting the Products, tighten the screws to the following torques.V680-HS51: 6 N⋅mV680-HS52: 40 N⋅mV680-HS63: 1.2 N⋅mV680-HS65: 1.2 N⋅mV680-H01-V2: 1.2 N⋅m• Do not pull the Antenna connector over the power of 30 N.The Antenna connector may be broken.• Transmission will not be possible if the front and back panels are mistakenly reversed and the Unit ismounted to a metallic surface.V680-D1KP66MT• The transmission distance will be reduced when the Unit is not mounted to a metallic surface.V680-D1KP66MT• If multiple Antennas are mounted near each other, communications performance may decrease dueto mutual interference. Refer to Installing Antennas on page 56 and check to make sure there is nomutual interference. • Depending on the operating environment, the case surface may become fogged, but basic perfor-mance will not be affected. Precautions for Correct Use
9RFID SystemUser's ManualIntroductionIntroduction3. StorageDo not store the Products in the following locations.• Locations exposed to direct sunlight• Locations exposed to corrosive gases, dust, metallic powder, or salts• Locations not within the specified storage temperature range• Locations subject to rapid changes in temperature or condensation• Locations not within the specified storage humidity range • Locations subject to direct vibration or shock outside the specified ranges• Locations subject to spray of water, oil, or chemicals4. Cleaning• Do not clean the Products with paint thinner or the equivalent. Paint thinner, benzene, acetone, andkerosene or the equivalent will dissolve the resin materials and case coating.5. Combination of the Amplifier• Use the V680-D1KP52MT, V680-D1KP66T, V680-D1KP66MT, and V680-D1KP66T-SP ID Tags incombination with only the V680-HA63A Amplifier. Do not use these ID Tags together with the V680-HA63B Amplifier.
10Introduction Meanings of SymbolsRFID SystemUser's ManualIntroductionMeanings of SymbolsIndicates particularly important points related to a function, including precautions and application advice.Indicates page numbers containing relevant information.
11RFID SystemUser's ManualIntroductionIntroductionTable of ContentsSafety Precautions 3Regulations and Standards 3Precautions for Safe Use 7Precautions for Correct Use 8Meanings of Symbols 10Table of Contents 11Section 1  Product Overview 13Features 14Product Configuration 15Section 2  Specifications and Performance 17Antennas with Separate Amplifier 18Antennas with Built-in Amplifier 25Amplifier 30Tags 33Section 3  Communications Specifications 43Communications Distances 44Communication Time (Reference) 53Section 4  Installation 55Installing Antennas 56Mounting Amplifiers 65Installing Tags 67Section 5  Chemical Resistance 79Chemical Resistance of the Antennas 80Chemical Resistance of Tags 81Degree of Protection 85Revision History 88
12 RFID SystemUser's ManualIntroductionIntroductionMEMO
Section 1 Product Overview13RFID SystemUser's ManualSection 1Product OverviewFeatures 14 Product Configuration 15
14Section 1 FeaturesRFID SystemUser's ManualSection 1Product OverviewFeaturesThe V680-series RFID System actively supports many different types of system, such as distributed-controlsystems and many-product, small-lot production systems, with non-contact data communications usingelectromagnetic induction. Non-contact Data CommunicationsThe V680 Series uses electromagnetic induction to enable non-contact, bi-directional data communi-cations between Antennas and Tags.EEPROM MemoryEEPROM (non-volatile memory) is used for Tag memory. No battery is required, so there is no need tobe concerned about battery service life.CRC Used for Transmission Error DetectionA bi-directional 16-bit CRC (Cyclic Redundancy Check) has been added as the error detection methodfor wire transmissions between ID Controllers and Antennas, and for wireless transmissions betweenAntennas and Tags. This method maintains superior communications reliability even where problemssuch as noise occur.1,000byte of MemoryTags have 1,000byte of memory. In addition to the ID data required on-site, data such as model num-bers and inspection information can be input.Long Service Life of 100,000 Data Rewrites at Normal TemperaturesWhen the Tag is used at temperatures of up to 25°C, each block of EEPROM data can be rewritten upto 100,000 times (in units of single block, 8-bytes). Superior Environmental Resistance and High ReliabilityAntennas and Tags now have greater environmental resistance and are not affected by vibration, oil, orwater.
15RFID SystemUser's ManualSection 1 Product ConfigurationSection 1Product OverviewProduct ConfigurationA V680-series RFID System consists of an ID Controller, one or more Amplifiers, one or two Antennas, andTags. Select the models suitable for the application.Using Antennas with Separate Amplifiers When embedding the V680-D1KP52MT into a metal surface, use the V680-HS51, V680-HS52 Antenna.Transmission will not be possible if the V680-HS63 Antenna is used.Use the V680-D1KP52MT, V680-D1KP66T, V680-D1KP66MT, and V680-D1KP66T-SP ID Tags in combination with only theV680-HA63A Amplifier, Do not use these ID Tags together with the V680-HA63B Amplifier.V680-HA63APersonal computerV680-D1KP52MTRS-232CV680-D1KP66T V680-D1KP66MTV680-HS63V680-HS51 V680-HS65V680-HS52CS1W-V680C11/12V680C11RUNERCT/RNORM/ERRERPERHTESTONHEAD1V680C12RUNERCHEAD1T/RNORM/ERRERPERHHEAD2T/RNORM/ERRTESTONHEAD1HEAD2DC24VINPUT+-CJ1W-V680C11/12RS-422 RS-485Programmable Controller (SYSMAC CS/CJ Series)V680-D1KP66T-SPHost deviceID ControllerAmplifiersAntennas with Separate AmplifierTagsID Sensor UnitsV680-CA5D01-VV680-CA5D02-V
16Section 1 Product ConfigurationRFID SystemUser's ManualSection 1Product OverviewUsing a V680-H01-V2 Antenna with Built-in AmplifierRS-232CCS1W-V680C11V680C11RUNERCT/RNORM/ERRERPERHTESTONHEAD1CJ1W-V680C11RS-422 RS-485V680-H01-V2V680-D1KP58HT* Always use the specified Cable to connect a V680-H01-V2 Antenna. The V680-H01-V2 Antenna cannot be connected without using the specified Cable.Host deviceProgrammable Controller(SYSMAC CS/CJ Series)ID ControllerID Sensor UnitsCableAntennas with Built-inAmplifierTagsV700-A40-WMV680-CA5D01-VPersonal computer
Section 2 Specifications and Performance17RFID SystemUser's ManualSection 2Specifications and PerformanceAntennas with Separate Amplifier 18Antennas with Built-in Amplifier 25Amplifier 30Tags 33
18Section 2 Antennas with Separate AmplifierRFID SystemUser's ManualSection 2Specifications and PerformanceAntennas with Separate AmplifierV680-HS51General SpecificationsDimensions• V680-HS51Item Model V680-HS51Ambient operating temperature−10 to 60°C (with no icing)Ambient storage temperature−25 to 75°C (with no icing)Ambient operatinghumidity35% to 95% (with no condensation)Insulation resistance 20 MΩ min. (at 500 VDC) between connector terminals and caseDielectric strength 1,000 VAC, 50/60 Hz for 1 min between connector terminals and caseDegree of protection IP67.(IEC60529)In-house standard for antenna oil resistance (former JEM standard equivalent to IP67g)Note: The connectors are not waterproof.Dielectric strength 10 to 2,000 Hz, 1.5-mm double amplitude, acceleration: 150 m/s2, 10 sweeps in each of 3 axis direc-tions (up/down, left/right, and forward/backward) for 15 minutes eachShock resistance 1,000 m/s2, 3 times each in 6 directions (Total: 18 times)Dimensions M12 × 35 mmMaterial ABS resin, brass, and epoxy resin fillerWeight Approx. 55 gCable length Standard lengths of 2 m21 dia.1712.5 dia.Mounting Hole Dimensions(16.8 dia.)(14.5 dia.)72433351225 5026.29.6 dia.M12 × 1Toothed washerTwo lock nuts Ferrite coreInsulation coverConnectorCoaxial cable, 2.9 dia., standard length: 2 m15(Unit : mm)Case material BrassCommunicationssurfaceABS resinFill resin Epoxy resinCable PVC (black)
19RFID SystemUser's ManualSection 2 Antennas with Separate AmplifierSection 2Specifications and PerformanceV680-HS52General SpecificationsDimensions• V680-HS52-WItem Model V680-HS52-W(Standard cable, waterproof connector)V680-HS52-R(Flexible cable, non-waterproof connector)Ambient operating temperature−10 to 60°C (with no icing)Ambient storage temperature−25 to 75°C (with no icing)Ambient operatinghumidity35% to 95% (with no condensation)Insulation resistance 20 MΩ min. (at 500 VDC) between connector terminals and caseDielectric strength 1,000 VAC, 50/60 Hz for 1 min between connector terminals and caseDegree of protection IP67.(IEC60529)In-house standard for antenna oil resistance (former JEM standard equivalent to IP67g)Note: The connector specifications are IP67 and IP65.(IEC60529)IP67.(IEC60529)In-house standard for antenna oil resistance (former JEM standard equivalent to IP67g)Note: The connectors are not waterproof.Dielectric strength 10 to 500 Hz, 1.5-mm double amplitude, acceleration: 100 m/s2, 10 sweeps in each of 3 axis directions (up/down, left/right, and forward/backward) for 8 minutes eachShock resistance 500 m/s2, 3 times each in 6 directions (Total: 18 times)Dimensions M22 × 65 mmMaterial ABS resin, brass, and epoxy resin fillerWeight Approx. 850 g (with 12.5 m cable)Cable length Standard lengths of 2 and 12.5 m6547.6575073019.8 dia.35 dia.22.5 dia.Mounting Hole DimensionsTwo toothed washersTwo lock nutsM22 × 1Operation indicator37503016.5 dia.Coaxial cable, 5.5 dia.,  standard length: 2 mConnectorFerrite coreInsulation cover16.5 dia.14.5 dia.AntennaCase material BrassCommunicationssurfaceABS resinFill resin Epoxy resinCable PVC (gray)
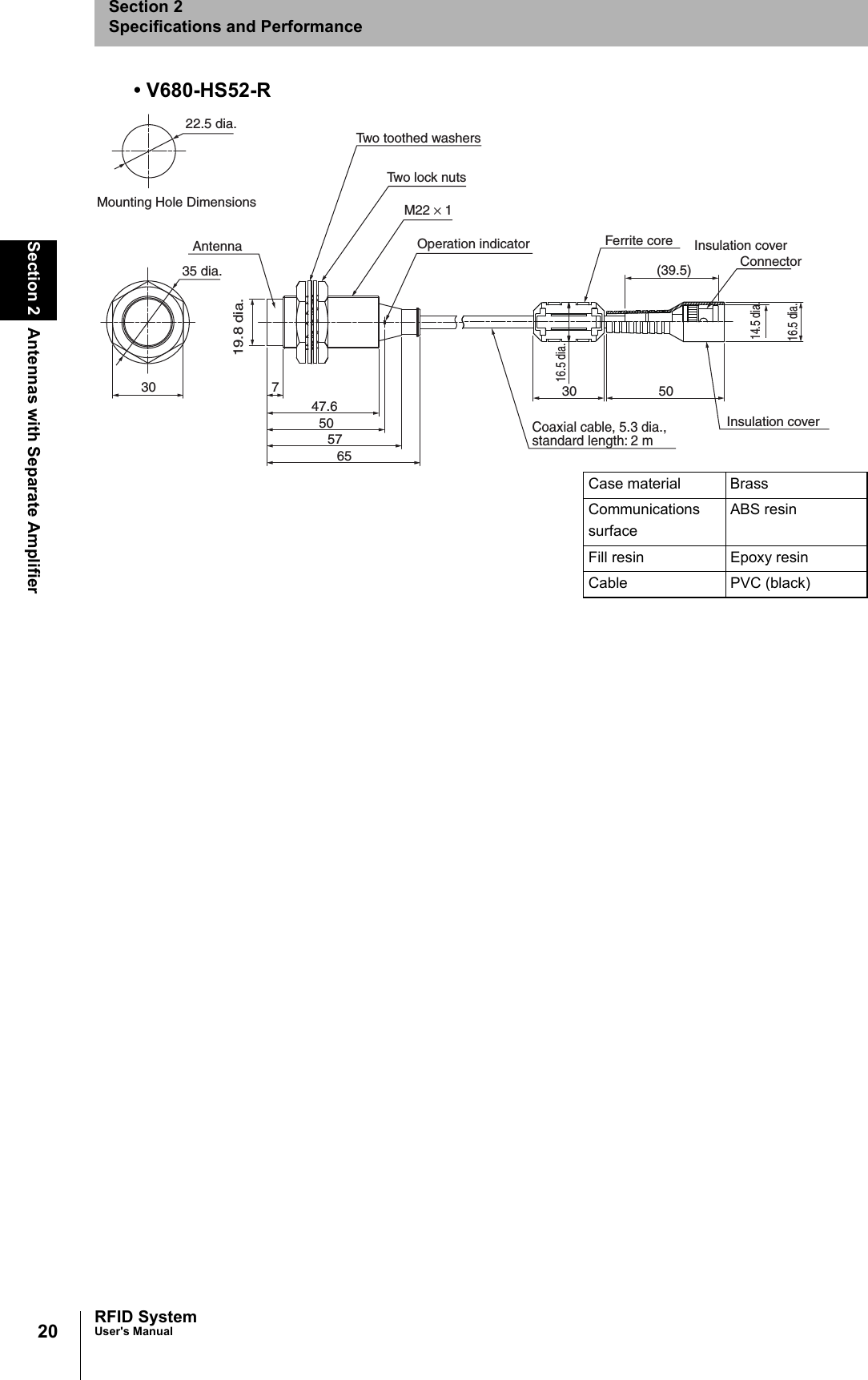
20Section 2 Antennas with Separate AmplifierRFID SystemUser's ManualSection 2Specifications and Performance• V680-HS52-R6547.6575073019.8 dia.35 dia.22.5 dia.Mounting Hole DimensionsTwo toothed washersTwo lock nutsM22 × 1Operation indicator Insulation cover503016.5 dia.Coaxial cable, 5.3 dia.,  standard length: 2 mInsulation cover(39.5) ConnectorFerrite core16.5 dia.14.5 dia.AntennaCase material BrassCommunicationssurfaceABS resinFill resin Epoxy resinCable PVC (black)
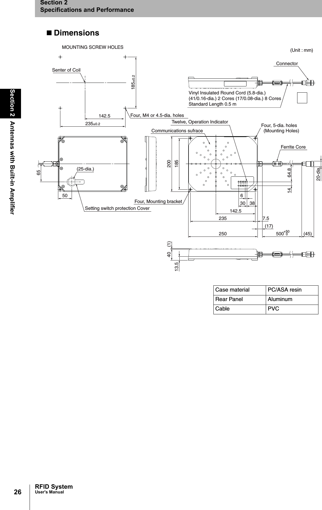
21RFID SystemUser's ManualSection 2 Antennas with Separate AmplifierSection 2Specifications and PerformanceV680-HS63General SpecificationsDimensions• V680-HS63-WItem Model V680-HS63-W(Standard cable, waterproof connector)V680-HS63-R(Flexible cable, non-waterproof connector)Ambient operating temperature−10 to 60°C (with no icing)Ambient storage temperature−25 to 75°C (with no icing)Ambient operating humidity35% to 95% (with no condensation)Insulation resistance  20 MΩ min. (at 500 VDC) between cable terminals and caseDielectric strength 1,000 VAC, 50/60Hz for 1 min between cable terminals and caseDegree of protection IP67.(IEC60529)In-house standard for antenna oil resistance (former JEM standard equivalent to IP67g)Note: The connector specifications are IP67 and IP65.(IEC60529)IP67.(IEC60529)In-house standard for antenna oil resistance (former JEM standard equivalent to IP67g)Note: The connectors are not waterproof.Vibration resistance 10 to 500 Hz, 1.5-mm double amplitude, acceleration: 100 m/s2, 10 sweeps in each of 3 axis directions (up/down, left/right, and forward/backward) for 11 minutes eachShock resistance 500 m/s2, 3 times each in 6 directions (Total: 18 times) Dimensions 40 × 53 × 23 mmMaterial ABS resin case, epoxy resin fillerWeight Approx. 850 g (with 12.5 m cable)Cable length Standard lengths of 2 and 12.5 m(Unit: mm)2355Operation indicator4028±0.15327 611Note: Mounting Hole DimensionsCoil centerTwo, M4 or 4.5 dia. holes37503016.5 dia.Coaxial cable, 5.5 dia.,  standard length: 2 mConnectorFerrite coreInsulation cover16.5 dia.14.5 dia.AntennaCase material ABS resinFill resin Epoxy resinCable PVC (gray)
22Section 2 Antennas with Separate AmplifierRFID SystemUser's ManualSection 2Specifications and PerformanceV680-HS63-RAntenna23554028±0.15327 611(Unit: mm)Operation indicatorNote: Mounting Hole DimensionsCoil centerTwo, M4 or 4.5 dia. holes503016.5 dia.Coaxial cable, 5.3 dia.,  standard length: 2 mInsulation cover(39.5) ConnectorFerrite core16.5 dia.14.5 dia.Case material ABS resinFill resin Epoxy resinCable PVC (black)
23RFID SystemUser's ManualSection 2 Antennas with Separate AmplifierSection 2Specifications and PerformanceV680-HS65General SpecificationsDimensions• V680-HS65-WItem Model V680-HS65-W(Standard cable, waterproof connector)V680-HS65-R(Flexible cable, non-waterproof connector)Ambient operating temperature−25 to 70°C (with no icing)Ambient storage temperature−40 to 85°C (with no icing)Ambient operatinghumidity35% to 95% (with no condensation)Insulation resistance 20 MΩ min. (at 500 VDC) between connector terminals and caseDielectric strength 1,000 VAC, 50/60 Hz for 1 min between connector terminals and caseDegree of protection IP67 (IEC60529)In-house standard for antenna oil resistance (former JEM standard equivalent to IP67g)Note: The connector specifications are IP67 and IP65 (IEC 60529).IP67 (IEC60529)In-house standard for antenna oil resistance (former JEM standard equivalent to IP67g)Note: The connectors are not waterproof.Dielectric strength 10 to 500 Hz, 1.5-mm double amplitude, acceleration: 100 m/s2, 10 sweeps in each of 3 axis directions (up/down, left/right, and forward/backward) for 11 minutes eachShock resistance 500 m/s2, 3 times each in 6 directions (Total: 18 times)Dimensions 100 × 100 × 30 mmMaterial ABS resin case, epoxy resin fillerWeight Approx. 1100 g (with 12.5 m cable)Cable length Standard lengths of 2 and 12.5 mOperation indicator302011(Unit: mm)16.5 dia.14.5 dia.37503016.5 dia.Coaxial cable, 5.5 dia.,  standard length: 2 mConnectorFerrite coreInsulation cover14 1010Bushing502510090±0.255010090±0.2 54-4.5 dia.(Mounting holes)Case material ABS resinFill resin Epoxy resinCable PVC (gray)
24Section 2 Antennas with Separate AmplifierRFID SystemUser's ManualSection 2Specifications and PerformanceV680-HS65-R(39.5)16.5 dia.14.5 dia.(Unit: mm)503016.5 dia.Coaxial cable, 5.3 dia.,  standard length: 2 mInsulation coverConnectorFerrite coreOperation indicator30201114 1010Bushing502510090±0.255010090±0.2 54-4.5 dia.(Mounting holes)Case material ABS resinFill resin Epoxy resinCable PVC (black)
25RFID SystemUser's ManualSection 2 Antennas with Built-in AmplifierSection 2Specifications and PerformanceAntennas with Built-in AmplifierV680-H01-V2General SpecificationsCommunications SpecificationsItem Model V680-H01-V2Ambient operating temperature−10 to 55°C (with no icing)Ambient storage temperature−35 to 65°C (with no icing)Ambient operatinghumidity35% to 85% (with no condensation)Insulation resistance 20 MΩ min. (at 100 VDC) between connector terminals and the rear plateDielectric strength 1,000 VAC, 50/60 Hz for 1 min between connector terminals and the rear plateDegree of protection IP63.(IEC60529); Mounting direction: Communications surface facing upDielectric strength 10 to 150 Hz, 0.35-mm single amplitude, acceleration: 50 m/s2, 10 sweeps in each of 3 axis directions (up/down, left/right, and forward/backward) for 8 minutes eachShock resistance 150 m/s2, 3 times each in 6 directions (Total: 18 times)Cable length 0.5 m (use an extension cable to connect to the Controller up to 30.5 m)LED indicators RUN, COMM, NORM, ERR, CNT-TYPE, TAG-TYPE, Error Code, LevelWeight Approx. 900 gItem Model V680-H01-V2Communications method Electromagnetic inductionOperating frequency 13.56 MHz ± 7KHzModulation ASK
26Section 2 Antennas with Built-in AmplifierRFID SystemUser's ManualSection 2Specifications and PerformanceDimensionsSenter of Coil185±0.2Four, M4 or 4.5-dia. holes142.5235±0.265(25-dia.)Setting switch protection Cover50 630 38142.52352507.5500  0 (45)+50(17)14 64.820-dia.200185Four, 5-dia. holes(Mounting Holes)Ferrite CoreConnectorVinyl Insulated Round Cord (5.8-dia.) (41/0.16-dia.) 2 Cores (17/0.08-dia.) 8 Cores Standard Length 0.5 mTwelve, Operation Indicator13.5(1)40(Unit : mm)Four, Mounting bracketMOUNTING SCREW HOLESCommunications sufraceCase material PC/ASA resinRear Panel AluminumCable PVC
27RFID SystemUser's ManualSection 2 Antennas with Built-in AmplifierSection 2Specifications and PerformanceOperation Indicator The distance level will vary greatly depending on the surrounding environment. The setting position will serve as aguide, but use RUN mode to conduct a sufficient number of tests in the actual operating environment.Values of distance level 4 or above may not be displayed, but this will not affect the RUN mode performance and doesnot indicate a malfunction. Differences between the V680-H01 and the V680-H01-V2As shown in the following table, the V680-H01-V2 provides additional indicators. Turn ON SW1-1(Antenna) when using the V680-CA1D/CA2D. name Color MeaningRUN Green Lit when the power is ON.COMM Yellow Lit when a command is being sent.NORM Green Lit when communications with a Tag are normal in Normal Communications Mode.ERR Red Lit when an error occurs in communications with a Tag in Normal Communications Mode.CNT-TYPE Yellow Lit when in V680-CA@D Controller connection mode (SW1-1 setting: ON).TAG-TYPE Yellow For expansion (not used): Always OFF.LV6/7D Yellow Maintenance Mode: Lit at distance or speed level 6.Normal Communications Mode: Lit when a write protection error occurs.LV5/7A Yellow Maintenance Mode: Lit at distance or speed level 5 or higher.Normal Communications Mode: Lit when an address error occurs.LV4/76 Yellow Maintenance Mode: Lit at distance or speed level 4 or higher.Normal Communications Mode: Lit when a Tag memory error occurs.LV3/72 Yellow Maintenance Mode: Lit at distance or speed level 3 or higher.Normal Communications Mode: Lit when a no Tag error occurs.LV2/71 Yellow Maintenance Mode: Lit at distance or speed level 2 or higher.Normal Communications Mode: Lit when a verification error occurs.LV1/70 Yellow Maintenance Mode: Lit at distance or speed level 1 or higher.Normal Communications Mode: Lit when a Tag communications error occurs.display functions V680-H01-V2 V680-H01SW1-1: OFF SW1-1: ON no switchRUN (POWER/COMM) OK OK OKCOMM (POWER/COMM) OK OK OKNORM OK NO NOERR OK NO NOCNT-TYPE OK OK NOTAG-TYPE --- --- ---LV6/7D OK NO NOLV5/7A OK NO NOLV4/76 OK NO NOLV3/72 OK NO NOLV2/71 OK NO NOLV1/70 OK NO NO
28Section 2 Antennas with Built-in AmplifierRFID SystemUser's ManualSection 2Specifications and PerformanceSetting SwitchSet SW1-1 on the V680-H01-V2 Antenna and the Controller as shown in the following table. Differences between the V680-H01 and the V680-H01-V2As shown in the following table, the V680-H01-V2 supports additional maintenance functions. Turn ON SW1-1(Antenna) when using the V680-CA1D/CA2D.Setting Function Default settingSW1-1 Controller selectionOFF:V680-CA5D01-V@, CS1W-V680C11, or CJ1W-V680C11ON: V680-CA1D/-CA2DOFFSW1-2 Reserved by System (Always set this Switch to OFF.) ---SW1-3 Reserved by System (Always set this Switch to OFF.) ---SW1-4 Reserved by System (Always set this Switch to OFF.) ---Antenna setting Controller settingV680-H01-V2 V680-CA5D01-V@CS1W-V680C11CJ1W-V680C11V680-CA1DV680-CA2DSW1-1: OFF SW4-8: OFF DM20000 + 100 × m+3=0000SW1-1: ON SW4-8: ON See Note. DM20000 + 100 × m+3=0001 See Note.  See Note.: Cannot be used.: Can be used.(Controller setting not required.)Note: The high-speed mode cannot be used by the controller's setting. display functions V680-H01-V2 V680-H01SW1-1: OFF SW1-1: ON no switchCommunication Test Mode OK OK OKNoise Level Measurement ModeOK NO NODistance Level Measurement ModeOK NO NOSpeed Level Measurement ModeOK NO NOCommunications Success Rate Measurement ModeOK NO NOSetting switch protection coverNote: Please attach a setting switch protection cover after setting switch.
29RFID SystemUser's ManualSection 2 Antennas with Built-in AmplifierSection 2Specifications and PerformanceCables (V680-H01-V2 exclusive use)SpecificationsDimensionsItem Model V700-A40-WNumber of conductors 10Insulation resistance 5 MΩ min. (at 500 VDC) between terminals and sheathDielectric strength 500 VAC, 1 minItem Model V700-A40-W 2M V700-A40-W 5M V700-A40-W 10M V700-A40-W 20M V700-A40-W 30MLength (L1) Approx.2m Approx. 5 m Approx.10m Approx. 20 m Approx. 30 mWeight Approx. 150 g Approx.360 g Approx. 700 g Approx.1,350 g Approx.2,000 gL1 2,000 5,000 10,000 20,000 30,000Connector (Antenna end)) Connector (Controller end))Connection labelVinyl Insulated Round Cord6 dia.20 dia.41.8L1±10049(Unit: mm)15 dia.Cable PVC
30Section 2 AmplifierRFID SystemUser's ManualSection 2Specifications and PerformanceAmplifierV680-HA63AGeneral SpecificationsDimensionsItem Model V680-HA63AAmbient operating temperature−10 to 55°C (with no icing)Ambient storage temperature−25 to 65°C (with no icing)Ambient operatinghumidity35% to 85% (with no condensation)Insulation resistance 20 MΩ min. (at 500 VDC) between cable terminals and caseDielectric strength 1,000 VAC, 50/60 Hz for 1 minute between cable terminals and case.Degree of protection IP67, IP65 (IEC 60529)Note: Not including connector at Controller end.(When V680-HS52-W, V680-HS63-W, and V680-HS65-W is connected)IP40 (IEC 60529)(When V680-HS51, V680-HS52-R, V680-HS63-R, and V680-HS65-R is connected)Dielectric strength 10 to 500 Hz, 1.5-mm double amplitude, acceleration:100 m/s2, 10 sweeps in each of 3 axis directions (up/down, left/right, and forward/backward) for 11 minutes eachShock resistance 500 m/s2, 3 times each in 6 directions (Total: 18 times)Dimensions 25 × 40 × 65 mm (Not including protrusions.)Materials PCWeight Approx. 650 g (with 10 m cable)Cable length Standard lengths of 5 and 10 mNote: The maximum total cable extension is 50 m (including the Amplifier cable). A maximum of two extension cables can be connected.Operation indicator13.7 65 18513615 dia.40259.5 dia.253.512.8 dia.15 35.625Round, vinyl-insulated cable (5.8 dia.), standard length: 5 m, (41/0.16 dia) 2 conductors, (17/0.08 dia.) 8 conductorsConnectorConnectorCase material PC resinCable PVC
31RFID SystemUser's ManualSection 2 AmplifierSection 2Specifications and Performance NomenclatureAntenna Connection PortThe Antenna connection port is connected a V680-series Antenna.Controller ConnectorThe Controller connector is connected to Antenna connection port on the Controller.Operation Indicators (LEDs) The distance level will vary greatly depending on the surrounding environment. The setting position will serve as aguide, but use RUN mode to conduct a sufficient number of tests in the actual operating environment.Values of distance level 4 or above may not be displayed, but this will not affect the RUN mode performance and doesnot indicate a malfunction.Name Color MeaningRUN Green Lit when the power is ON.COMM Yel-lowLit when a command is being sent.NORM Green Lit when communications with a Tag are normal in Normal Communications Mode.ERR Red Lit when an error occurs in communications with a Tag in Normal Communications Mode.LV6/7D Yel-lowMaintenance Mode: Lit at distance or speed level 6.Normal Communications Mode: Lit when a write protection error occurs.LV5/7A Yel-lowMaintenance Mode: Lit at distance or speed level 5 or higher.Normal Communications Mode: Lit when an address error occurs.LV4/76 Yel-lowMaintenance Mode: Lit at distance or speed level 4 or higher.Normal Communications Mode: Lit when a Tag memory error occurs.LV3/72 Yel-lowMaintenance Mode: Lit at distance or speed level 3 or higher.Normal Communications Mode: Lit when a no Tag error occurs.LV2/71 Yel-lowMaintenance Mode: Lit at distance or speed level 2 or higher.Normal Communications Mode: Lit when a verification error occurs.LV1/70 Yel-lowMaintenance Mode: Lit at distance or speed level 1 or higher.Normal Communications Mode: Lit when a Tag communications error occurs.Operation indicatorsRUNCOMMNORMERRLV6/7DLV5/7ALV4/76LV3/72LV2/71LV1/70Antenna with Separate Amplifier connection portController connector
32Section 2 AmplifierRFID SystemUser's ManualSection 2Specifications and PerformanceCables (V680-HA63 exclusive use)SpecificationsDimensionsItem Model V700-A43/V700-A44Number of conductors 10Insulation resistance 5 MΩ min. (at 500 VDC) between terminals and sheathDielectric strength 500 VAC, 1 minItem Model V700-A43 V700-A44Length (L1) Approx.10m Approx. 20 mWeight Approx. 700 g Approx.1,350 g51 L1±1004915.5 dia.Connector (Controller end))Connection labelConnector (Amplifier end)6 dia.15 dia.(Unit: mm)Cable PVC
33RFID SystemUser's ManualSection 2 TagsSection 2Specifications and PerformanceTagsSpecifications and DimensionsV680-D1KP52MT• General SpecificationsNote: After string data at high temperatures, rewrite the data even if changes are not required, In this manual, hightemperatures are those exceeding 125°C up to 180°C.• Dimensions When embedding the V680-D1KP52MT into a metal surface, use the V680-HS51, V680-HS52 Antenna.Transmission will not be possible if the V680-HS63 Antenna is used. The side with the markings is the communications surface. Mount the Tag with this side facing the Antenna. The ID code is written in the memory of the Tag and may be affected by data retention characteristics at high tempera-tures. Take suitable precautions when using the READ ID command for Tags operating at high temperatures.Item Model V680-D1KP52MTMemory capacity 1,000 bytes (user area)Memory type EEPROMData backup time 10 years after writing (85°C or less), 0.5 years after writing (85°C to 125°C)Total data backup time at high temperatures exceeding 125°C is 10 houres (See note.)Memory longevity 100,000 times per block (25°C)Ambient operating temperature−25 to 85°C (with no icing)Ambient storage temperature−40 to 125°C (with no icing)Ambient operating humidity35% to 95%Degree of protection IP68 (IEC 60529)In-house standard for antenna oil resistance (former JEM standard equivalent to IP67g)Vibration resistance 10 to 2,000 Hz, 1.5-mm double amplitude, acceleration: 150 m/s2, 10 sweeps each in X, Y, and Z directions for 15 minutes eachShock resistance 500 m/s2, 3 times each in X, Y, and Z directions (Total: 18 times)Dimensions 8 dia. × 5 mmMaterials Case: PPS resin, Fill resin: Epoxy resinWeight Approx. 0.5 gMetal countermeasures Yes8 0−0.1R0.25 0−0.1dia.(Unit : mm)Case material PPS resinFill resin Epoxy resin
34Section 2 TagsRFID SystemUser's ManualSection 2Specifications and PerformanceV680-D1KP66T/66MT• General SpecificationsNote: After string data at high temperatures, rewrite the data even if changes are not required, In this manual, hightemperatures are those exceeding 125°C up to 180°C.The V680-D1KP66MT is designed to be mounted directly to metal. The V680-D1KP66T and V680-D1KP66MT markings are shown in the following diagrams.  The side with the markings is the communications surface. Mount the Tag with this side facing the Antenna. The ID code is written in the memory of the Tag and may be affected by data retention characteristics at high tempera-tures. Take suitable precautions when using the READ ID command for Tags operating at high temperatures.Item Model V680-D1KP66T V680-D1KP66MTMemory capacity 1,000 bytes (user area)Memory type EEPROMData backup time 10 years after writing (85°C or less), 0.5 years after writing (85°C to 125°C)Total data backup time at high temperatures exceeding 125°C is 10 houres (See note.)Memory longevity 100,000 times per block (25°C)Ambient operating temperature−25 to 85°C (with no icing)Ambient storage temperature−40 to 125°C (with no icing)Ambient operating humidity35% to 95%Degree of protection IP68 (IEC 60529)In-house standard for antenna oil resistance (former JEM standard equivalent to IP67g)Vibration resistance 10 to 2,000 Hz, 1.5-mm double amplitude, acceleration: 150 m/s2,10 sweeps each in X, Y, and Z directions for 15 minutes eachShock resistance 500 m/s2, 3 times each in X, Y, and Z directions (Total: 18 times)Dimensions 34 × 34 × 3.5 mmMaterials Case: PPS resin Weight Approx. 6 g Approx. 7.5 gMetal countermeasures None YesV680-D1KP66MT V680-D1KP66TMADE IN JAPANXXXXXXV680-D1KP66MTMADE IN JAPANXXXXXXV680-D1KP66T
35RFID SystemUser's ManualSection 2 TagsSection 2Specifications and Performance• DimensionsV680-D1KP66T/66MTV600-A86 AttachmentTag Heat Resistivity• Storing Tags under high temperatures will adversely affect the performance of the internal parts andthe service life of the Tags.• An LTPD of 10% was determined during the evaluation for Tags that reached the end of their life aftertesting under the following test conditions.LTPD: Lot tolerance percent defectiveThe lower limit of the malfunction rate for lots to be considered unacceptable during reliability testing.Heat cycle −10°C/+150°C, 30 minutes each for 1,000 cycles−100°C/+180°C,30 minutes each for 200 cyclesHigh temperatures +150°C, 1,000 hours+180°C, 200 hours25+0.225+0.225+0.225+0.23.5+0.1Two, M3Four, R3Four, R432323434Mounting Hole DimensionsTwo, 3.5 dia.Two, 6 dia.Case material PPS resin25+0.225+0.225+0.225+0.2 164103.5373734341515Two, M3Two, 4 dia.Four, R5.5Case material PPS resin
36Section 2 TagsRFID SystemUser's ManualSection 2Specifications and PerformanceV680-D1KP66T-SP• General Specifications• Dimensions The side with the markings is the communications surface. Mount the Tag with this side facing the Antenna.Item Model V680-D1KP66T-SPMemory capacity 1,000 bytes (user area)Memory type EEPROMData backup time 10 years after writing (85°C or less)Memory longevity 100,000 times per block (25°C)Ambient operating temperature when communicating−25 to 70°C (with no icing)Ambient operating temperature when not communicating−40 to110°C (with no icing)Ambient storage temperature−40 to 110°C (with no icing)Ambient operating humidity35% to 95%Degree of protection IP67Vibration resistance 10 to 2,000 Hz, 1.5-mm double amplitude, acceleration: 150 m/s2,10 sweeps each in X, Y, and Z directions for 15 minutes eachShock resistance 500 m/s2, 3 times each in X, Y, and Z directions (Total: 18 times)Dimensions 95 × 36.5 × 6.5 mm (excluding protruding parts)Materials External coatiog: Fluororesin (PFA)Tag body: PPS resinWeight Approx. 20 gMounting method Two M5 screwsMetal countermeasures NoneTwo, 5.5 dia. (Mounting hole) Four, R61.36.5 2.5 max.Two, M580±0.280±0.234953436.5Mounting Hole DimensionsPFA resinCase material(Unit: mm)
37RFID SystemUser's ManualSection 2 TagsSection 2Specifications and PerformanceV680-D1KP58HT• General SpecificationsNote: After string data at high temperatures, rewrite the data even if changes are not required, In this manual, hightemperatures are those exceeding 110°C up to 200°C.The maximum operating temperature during communication is 85°C. The temperature of the actual Tag must not behigher than 85°C when the Tag enters the Antenna's communications area. When using a Tag after storage at high tem-perature, perform tests before use, and make sure that the temperature of the Tag does not exceed 85°C during opera-tion.Item Model V680-D1KP58HTMemory capacity 1,000 bytes (user area)Memory type EEPROMData backup time 10 years after writing (85°C or less), 2 years after writing (85°C to 110°C)Total data backup time at high temperatures exceeding 110°C is 10 houres (See note.)Memory longevity 100,000 times per block (25°C)Ambient operating temperature−10 to 85°C (with no icing)Ambient storage temperature−40 to 110°C (with no icing)Degree of protection IP67 (IEC 60529)Vibration resistance 10 to 2,000 Hz, 1.5-mm double amplitude, acceleration: 150 m/s2,10 sweeps each in X, Y, and Z directions for 15 minutes eachShock resistance 500 m/s2, 3 times each in X, Y, and Z directions (Total: 18 times)Materials Coatiog: PPS resinWeight Approx. 90 g
38Section 2 TagsRFID SystemUser's ManualSection 2Specifications and Performance• Tag Heat Resistivity• Storing Tags under high temperatures will adversely affect the performance of the internal parts andthe service life of the Tags.• An LTPD of 10% was determined during the evaluation for Tags that reached the end of their life aftertesting under the following test conditions• Heat cycle: Room temperature/200ÅãC, 30 minutes each for 2,000 cycles. • Normal operation has been confirmed after performing the above tests, although minor cracks mayoccur.LTPD: Lot tolerance percent defectiveThe lower limit of the malfunction rate for lots to be considered unacceptable during reliability testing.• Reference Data (Evaluation Test Results)Room temp. / 1800 500 1000 1500 2000 2500 3000 3500 400010%9%8%7%6%5%4%3%2%1%0%Number of cyclesDefective rate(%)Heat Resistance Evaluation ResultsDefective Operation, 30min eachRoom temp. / 200 , 30min eachRoom temp. / 220 , 30min each
39RFID SystemUser's ManualSection 2 TagsSection 2Specifications and Performance• DimensionsV680-D1KP58HT The side with the markings is the communications surface. Mount the Tag with this side facing the Antenna.V680-A80 (Attachment)This Attachment is specifically designed to secure V680-D1KP58HT Tags to the workpiece.Applicable Tag model: V680-D1KP58HT10±0.25°14 dia60 dia.80 diaTwo, R25°(Unit: mm)Case material PPS resinMounting Hole Dimensions20 dia. M12M12405011.5151103.2 dia.12 dia.1721Nuts (M12):Provided PartsSplit pin (3.2 × 20 mm):(Unit: mm)
40Section 2 TagsRFID SystemUser's ManualSection 2Specifications and PerformanceMemory MapEEPROM is used as memory in the Tags.The memory capacity available to the user is 1,000 bytes, including 0000H to 0003H (the Write Protec-tion Setting Area).The access to the memory is executed at every block.1 block is 8 bytes (8 addresses).Address Data0000 H0001 H0002 H0003 H1 byte03E6 H03E7 HUser area
41RFID SystemUser's ManualSection 2 TagsSection 2Specifications and PerformanceWrite Protection FunctionThe write protection function prevents important data, such as product information, stored in memory ina Tag from being inadvertently overwritten.After important data has been written to memory, it can be write-protected using the following method.The write protection function can be switched with SW4-7 (Write Protection Function Setting) of the V680-CA5D@@-V@Controller or with word (Write Protection Function Setting) in the DM(m+2)CH Area words allocated to the C@1W-V680C@@ ID Sensor Unit.Setting the Write Protection FunctionWrite protection is set in Tag addresses 0000H to 0003H.The setting for the most significant bit of address 0000H specifies whether or not write protection is enabled.• Write-protect Bit (Most significant bit of address 0000H)1: Write-protected (Yes)0: Not write-protected (No)• Write Protection Setting AreaStart address: 0000H to 7FFFHEnd address: 0000H to FFFFHWrite Protection Setting Examples• Settings to write-protect addresses 0008H through 03E7H:• Settings to not write-protect any addresses:The write protection function is a function of the V680-CA5D@@-V@ Controller and the C@1W-V680C@@ ID SensorUnit. It is not supported by reader/writer units from other manufacturers.Address Bit 765432100000HYES/NO Upper two digits of start address (00H to 7FH)0001HLower two digits of start address (00H to FFH)0002HUpper two digits of end address (00H to FFH)0003HLower two digits of end address (00H to FFH)Address Bit 765432100000H10000000800001H00001000080002H00000011030003H11100111E7Address Bit 765432100000H00000000000001H00000000000002H00000000000003H0000000000
42Section 2 TagsRFID SystemUser's ManualSection 2Specifications and PerformanceMEMO

Navigation menu