dormakaba Canada LPR10M Proximity Reader User Manual LEGIC Installation Manual Part 1
Kaba Ilco Inc. Proximity Reader LEGIC Installation Manual Part 1
Contents
- 1. LEGIC Installation Manual Part 2
- 2. LEGIC Installation Manual Part 1
- 3. LEGIC Installation manual Front Cover
LEGIC Installation Manual Part 1

PK2963 02/03 Issue 1 2 of 4
Installation Sheet: LEGIC Proximity Reader (LPR-10M)
Introduction & Preparation
Requirements
• Millenium DCD circuit board with an EPROM issue level “Y” or
higher (a paper label on the DCD EPROM chip identifies the
issue level).
• Millenium software release 3.0 or higher.
Mullion Mount
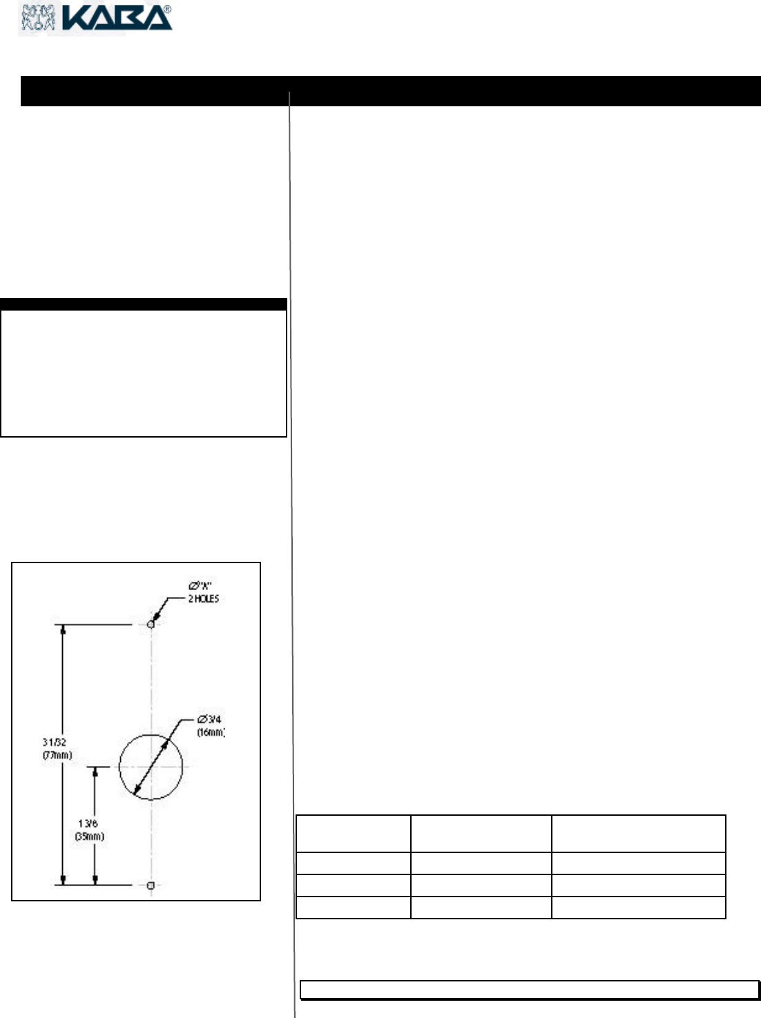
• Mullion having a minimum width of 1.80”.
• External dimensions:
Height: 3 _ ” (90 mm)
Width: 1 _ ” (46 mm)
Projection: _ ” (21 mm)
• 3/4” hole drilled in the mullion front face for passing the reader
cable.
• Two other holes must also be drilled – see Table 1 below for
dimensions of holes according to material to be drilled.
• Two # 4 – 1 _” (32 mm) Phillips pan zinc plated screws supplied with
the reader kit.
• Millenium DCD circuit board with an EPROM issue level “Y” or
higher. (A paper label on the DCD EPROM chip identifies the issue
level)
• Millenium software release 3.0 or higher.
Installation
1. Drill one _” (21 mm) hole for passing the reader cable through.
1. Drill two holes for fixing the reader to the surface (see Table below
for dimensions of hole appropriate for type of surface material).
1. Affix the reader using the two # 4 – 1 _” (32 mm) Phillips pan zinc
plated screws supplied with the reader kit.
1. An installation diagram (Figure 1) is in the left-hand column of this
sheet.
Table 1
Surface Material
Diameter of “A”
Holes
Plugs
Metal
5/64” (2 mm)
N/A
Concrete
3/16” (4 mm)
concrete screw anchors
Drywall
3/16” (4 mm)
drywall nylon grip plugs
LPR-10M Price List
120-510520 Mullion Mount Reader unit Kit with:
009-510655-2 1 spacer
890-510752 2 screws for steel, concrete or drywall
999-510754 2 concrete screw anchors (white)
999-510753 2 drywall nylon grip plugs
009-510655-3 Self-adhesive fascia with foil LED
009-510655-4 Self-adhesive fascia with foil logo
Figure 1: Installation Diagram