Chamberlain Group The 8389 Overhead Door and Gate Operator User Manual 01 37718 indd
Chamberlain Group Inc, The Overhead Door and Gate Operator 01 37718 indd
Contents
- 1. User Manual_20160711_v1 - User Manual pt1 HCTDCU
 - 2. User Manual_20160711_v1 - User Manual pt2 HCTDCU
 - 3. User Manual_20160711_v1 - User Manual pt3 HCTDCU
 - 4. User Manual_20160711_v1 - User Manual pt4 HCTDCU
 - 5. User Manual_20160711_v1 - User Manual pt5 HCTDCU
 - 6. User Manual_20160711_v1 - User Manual pt6 HCTDCU
 - 7. User Manual_20160711_v1 - User Manual pt7 HCTDCU
 - 8. User Manual_20160711_v1 - User Manual pt8 HCTDCU
 
User Manual_20160711_v1 - User Manual pt7 HCTDCU

29
TABLEAU D'EXTENSION
PRÉSENTATION DU TABLEAU D'EXTENSION
SBC
OPN
CLS
STP
COM
EYE
ONLY
EYE/
EDGE
EYE/
EDGE
COM
1
2
3
OPEN
CLOSE
TO MAIN
BOARD
POWER
10
1 2 3 4
5 6 7
9
8
Pour ÉVITER d'endommager la carte de circuit, les relais ou les accessoirs, NE PAS connecter plus que 42 Vcc (32 Vca) aux contacts relais AUX 
des borniers.
ATTENTION
ATTENTION
AVERTISSEMENT
AVERTISSEMENT
AVERTISSEMENT
1    Interrupteur QUICK CLOSE (à fermeture rapide) :
 ARRÊT : Aucun changement au fonctionnement normal de la barrière/porte.
MARCHE : Lorsque la CELLULE PHOTOÉLECTRIQUE/boucle d’interruption de 
fermeture est désactivée, il cause la fermeture d’une barrière/porte en cours 
d’ouverture ou arrêtée (ignore la minuterie de fermeture). 
2  Commutateur D’INTERRUPTION D’ALIMENTATION:
   OPEN (ouverture) : La perte d’alimentation c. a. causera l’ouverture de la 
barrière/porte environ 15 secondes après la panne et celle-ci restera ouverte 
jusqu’à ce que l’alimentation c. a. soit rétablie (activant la minuterie de 
fermeture).
BATT (pile) : Lors de la perte d’alimentation c. a., la barrière/porte reste dans sa 
position actuelle et l’actionneur est alimenté par batteries.
3  Commutateur DÉFAILLANCE DE BOUCLE DE SORTIE :
   Si le détecteur à boucle de SORTIE enfichable (modèle LOOPDETLM) détecte 
une anomalie alors qu’il est réglé en position d’ouverture, la barrière/porte 
s’ouvrira et restera ouverte jusqu’à ce que le code de défaut soit effacé. 
Lorsque réglé sur FERMER, alors les défauts de détecteur de boucle enfichable 
SORTIE sont ignorés (la boucle de SORTIE est en défaut et inopérante).
4  Commutateur d’ANTI-TALONNAGE:
 ARRÊT : Lorsque la CELLULE PHOTOÉLECTRIQUE DE FERMETURE/boucle 
d’interruption est activée, il cause l’arrêt et la course en direction inverse d’une 
barrière/porte en cours de fermeture.
MARCHE : Lorsque la CELLULE PHOTOÉLECTRIQUE DE FERMETURE/boucle 
d’interruption est activée, il cause l’interruption de la fermeture de la barrière/
porte. Une fois que le véhicule a passé la barrière/porte, celle-ci continue de se 
fermer.
5   Commutateurs de RELAIS AUXILIAIRE : Régler les commutateurs de RELAIS 
AUXILIAIRE au besoin pour obtenir la fonction désirée comme montré à la 
page suivante.
6   Commutateurs de CAPTEUR/CHANT: Régler les commutateurs de CAPTEUR/
CHANT au besoin pour obtenir la fonctionnalité d’OUVERTURE ou de 
FERMETURE désirée.
7    Diodes 1, 2 et 3: Diodes indiquant le statut des entrées de CAPTEUR/CHANT.  
Servent également à vérifier la version matérielle du tableau d’extension:
  1.  Localiser les diodes 1, 2 et 3 sur le tableau d’extension.
  2.   Déconnecter l’alimentation en c.a./c.c. au tableau de commande principal 
pendant 15secondes.
  3.   Connecter l’alimentation. Les diodes 1, 2 et 3 clignoteront en séquence 
jusqu’à ce que la révision matérielle du tableau de commande s’affiche. 
Lorsque le diode d’ALIMENTATION verte s’allume, la DIODE 1 indiquera en 
clignotant le numéro de version, puis s’arrêtera; puis la DIODE2 indiquera 
en clignotant le numéro de révision (par exemple: pour la version 5.1, 
lorsque la DIODE D’ALIMENTATION s’allume en vert, la DIODE1 clignotera 
cinq fois, puis s’arrêtera et la DIODE2 clignotera une seule fois).
8   Entrée du TABLEAU PRINCIPAL: Connexion d’entrée pour le connecteur du 
tableau principal.
9  DIODES d’entrée: DIODES indiquant les entrées SBC (commande à un seul 
bouton), OPN (ouverture), CLS (fermeture) et STP (arrêt). 
10   Entrée de détecteur à boucle: Entrées pour les détecteurs à boucle 
enfichables (modèles LOOPDETLM)

30
NOMBRE DE CYCLE
*  En premier, prendre note des positions actuelles des commutateurs de relais auxiliaire. 
Pour déterminer les cycles réels de fonctionnement de l’actionneur de barrière/porte (en 
milliers), régler les trois commutateurs de relais auxiliaire à la position en fonction (ON) 
pour le relais auxiliaire 1. Les diodes1, 2 et 3 du tableau d’extension clignoteront le 
nombre de cycles, le clignotement de la diode1 indiquant les milliers, celui de la diode2, 
les dizaines de milliers et celui de la diode 3, les centaines de milliers. Les trois diodes 
clignotant en même temps indiqueront les millions (p. ex. la diode1 clignote trois fois, la 
diode2 6fois et la diode3 clignote une fois. Le compte de cycles est de 163000.) Le 
compte de cycles affiché se situe entre 1000et 9999000cycles. Après une intervention 
d’entretien, régler les commutateurs de relais auxiliaire à leurs positions appropriées 
d’origine. Le compte de cycles ne peut pas être réinitialisé ni modifié. S’il est inférieur à 
1000cycles, les diodes1, 2 et 3 s’allumeront pendant 10secondes, puis s’éteindront.
REMARQUE : La carte d’extension clignotera le compte de cycles 3 fois puis toutes les 
DEL s’allumeront durant 10 secondes puis s’éteindront.
TABLEAU D'EXTENSION
AUX RELAY WIRING EXAMPLE
RELAIS AUXILIAIRES
CONFIGURATION 
RELAIS AUX CONFIGURATION 
D'INTERRUPTEURS RELAIS AUX 1 RELAIS AUX 2
123
Arrêt (aucune fonction 
sélectionnée) ARRÊT ARRÊT ARRÊT Relais toujours arrêté. Utiliser cette configuration de relais aux pour conserver les piles.
Interrupteur limite 
d'ouverture ARRÊT ARRÊT MARCHE Alimenté à la limite d'ouverture. Utiliser avec SAMS (Système de gestion d'accès par séquence, conjointement avec barrière de 
régulation).
Interrupteur limite de 
fermeture ARRÊT MARCHE ARRÊT Alimenté lorsque pas à la limite de fermeture. Pour un affichage audible ou visuel supplémentaire, connecter un éclairage externe (bas 
voltage).
Mouvement de 
barrière/porte ARRÊT MARCHE MARCHE Est alimenté lorsque le moteur est en fonction (barrière/porte en mouvement). Pour un affichage audible ou visuel supplémentaire, 
connecter un éclairage externe (bas voltage).
Délai pré-mouvement MARCHE ARRÊT ARRÊT Est alimenté trois secondes avant que la barrière/porte se mette 
en mouvement et reste alimenté pendant la course de la barrière/
porte. The onboard alarm will sound. L'alarme intégrée sonnera. 
Pour un affichage audible ou visuel supplémentaire, connecter un 
avertisseur ou un éclairage externe (bas voltage).
Est alimenté trois secondes avant que la barrière/porte se mette 
en mouvement et reste alimenté pendant la course de la barrière/
porte. Pour un affichage audible ou visuel supplémentaire, 
connecter un avertisseur ou un éclairage externe (bas voltage).
Alimentation MARCHE MARCHE ARRÊT Alimenté lorsque l'alimentation CA ou l'alimentation solaire est 
présente. Il y a un délai d'environ 10 à 12 secondes avant la 
coupure du relais, après l'interruption du CA.
Alimenté lorsque sur alimentation par pile. Il y a un délai 
d'environ 10 à 12 secondes avant la coupure du relais, après 
l'interruption du CA.
Effraction MARCHE ARRÊT MARCHE Est alimenté si la barrière/porte subit une tentative de sabotage 
manuel en étant poussée au-delà de sa limite de fermeture. Pour 
un affichage audible ou visuel supplémentaire, connecter un 
avertisseur ou un éclairage externe (bas voltage).
Est alimenté si la barrière/porte subit une tentative de sabotage 
manuel en étant poussée au-delà de sa limite de fermeture. Pour un 
affichage audible ou visuel supplémentaire, connecter un avertisseur 
ou un éclairage externe (bas voltage).
Rétroaction de 
quantité de cycles* MARCHE MARCHE MARCHE Les diodes 1, 2 et 3 clignoteront le compte de cycles (le compte 
de cycles est stocké sur le tableau de commande). Voir 
ci-dessous.
Fonctionnalité de feu rouge/vert, voir ci-dessous.
Relais aux
Source d’alimentation 
de classe 2
(42 V c. c. [34 V c. a.], 
5 A max.)
Témoin 
d’avertissement
COM
Normalement 
fermé (N.C.)
Normalement 
ouvert (N.O.)
+_
SHADOW   INTERUPT      EXIT
SBC
OPN
CLS
STP
COM
EYE
ONLY
EYE/
EDGE
EYE/
EDGE
COM
1
2
3
OPEN
CLOSE
TO MAIN
BOARD
POWER
 SHADOW   
INTERRUPT      
EXIT
RELAIS AUX 1 RELAIS AUX 2
Relais AUX 2 N.F.
Com
Relais AUX 2 N.O.
Relais AUX 1 N.F.
Com
Relais AUX 1 N.O.
EXEMPLE DE CÂBLAGE DE 
RELAIS AUXILIAIRE
RELAIS AUX 1 ET 2
Contacts à relais normalement ouverts (N.O.) et normalement fermés (N.F.) pour commander les dispositifs extérieurs, pour une connexion de classe 2, 
sources d’alimentation à faible tension uniquement [42 V en c.c. (34V c.a.), max 5A. La fonction d’activation du contact de relais est déterminée par les 
réglages des commutateurs.
FONCTIONNALITÉ DU TÉMOIN ROUGE/VERT
Témoin rouge câblé à AUX RELAY 1. Témoin vert câblé à AUX RELAY 2.
ÉTAT DE
LA BARRIÈRE/PORTE
COMMUTATEURS DE RELAIS 
AUX 1 COMMUTATEURS DE RELAIS 
AUX 2
1 ARRÊT 2 ARRÊT 3 ARRÊT 1 MARCHE 2 MARCHE 3 MARCHE
Fermé Témoin rouge HORS 
FONCTION* Témoin vert HORS FONCTION
S’ouvre Témoin rouge EN FONCTION/
CLIGNOTANT Témoin vert HORS FONCTION
Ouvert Témoin rouge HORS FONCTION Témoin vert EN FONCTION
Se ferme Témoin rouge EN FONCTION/
CLIGNOTANT Témoin vert HORS FONCTION
Arrêt défini à mi-course s/o s/o
Arrêt indéfini à 
mi-course Témoin rouge EN FONCTION Témoin vert HORS FONCTION
Minuterie de plus
de 5 secondes Témoin rouge HORS FONCTION Témoin vert EN FONCTION
Minuterie de moins
de 5 secondes Témoin rouge EN FONCTION/
CLIGNOTANT Témoin vert HORS FONCTION
*  Pour que le témoin rouge soit en fonction lorsque la barrière/porte est fermée, régler le 
commutateur 1 sur AUX RELAY 1 à EN FONCTION (ON)

31
TABLEAU D'EXTENSION
CÂBLAGE DES ACCESSOIRES AU TABLEAU D'EXTENSION
AEntrées de dispositif de protection contre le 
piégeage (4bornes au total), direction 
d’ouverture ou de fermeture basée sur le 
réglage du commutateur en regard des 
entrées
Entrée CAPTEURS SEULEMENT : Cellules photoélectriques de direction d’ouverture ou de fermeture : inverse sa 
course complètement, Ouverture : stoppe la course de la barrière/porte
Entrée(s) CAPTEURS/CHANT : Cellules photoélectriques de direction d’ouverture ou de fermeture, détecteur 
infrarouge câblé ou bordure de détection, Fermeture : inverse sa course complètement, Ouverture : stoppe la course 
de la barrière/porte
BContrôle à bouton unique, SBC (2 bornes) Séquence de commande de barrière/porte - Ouvrir, Arrêter, Fermer, Arrêter, ...
Ouverture programmée, Fermeture programmée, Arrêt programmé (l'interrupteur maintenu ne surpasse pas les 
sécurités externes et ne réinitialise pas la condition d'alarme)
CEntrée ouvert (et commun) 
(Station de contrôle à 3 boutons, 4 bornes 
total)
Commande d’ouverture – ouvre une barrière/porte fermée.
Ouverture programmée (l'interrupteur maintenu ne surpasse pas les sécurités externes et ne réinitialise pas la 
condition d'alarme)
Si maintenu, met la minuterie de fermeture en pause à la limite D'OUVERTURE.
Ouvre une barrière/porte en cours de fermeture et maintient la position ouverte d’une barrière/porte ouverte.
DEntrée fermé (et commun) 
(Station de contrôle à 3 boutons, 4 bornes 
total)
Commande de fermeture – ferme une barrière/porte ouverte.
Fermeture douce (l'interrupteur maintenu ne surpasse pas les sécurités externes et ne réinitialise pas la condition 
d'alarme)
EEntrée arrêt (et commun)
(Station à 3 boutons-poussoirs, 4 bornes 
total)
Commande d’arrêt - arrête une barrière/porte en mouvement.
Arrêt forcé (l'interrupteur maintenu surpasse les commandes Ouvrir et Fermer et réinitialise la condition d'alarme)
Si maintenu, met la minuterie de fermeture en pause à la limite d'ouverture.
Surpasse une commande Ouvrir ou Fermer.
FEntrée de boucle de sortie (2 bornes) Connexion de fil de boucle pour le détecteur à boucle enfichable lorsque la boucle se trouve à l’intérieur de la zone 
sécurisée à proximité de la barrière/porte. 
Commande d’ouverture – ouvre une barrière/porte fermée.
Ouverture douce (l'interrupteur maintenu ne surpasse pas les sécurités externes et ne réinitialise pas la condition 
d'alarme)
Si maintenu, met la minuterie de fermeture en pause à la limite D'OUVERTURE.
Ouvre une barrière/porte en cours de fermeture et maintient la position ouverte d’une barrière/porte ouverte.
GEntrée de boucle dissimulée
(2 bornes) Connexion de fil de boucle pour le détecteur à boucle enfichable lorsque la boucle est positionnée sous la barrière/
porte.
  - Maintient la barrière/porte ouverte à la limite de fin de course d’ouverture.
  - Ignorée pendant le mouvement de la barrière/porte 
  - Met la minuterie de fermeture en pause à la limite d'ouverture
HEntrée de boucle d'interruption
(2 bornes) Connexion de fil de boucle pour le détecteur à boucle enfichable lorsque la boucle est située le long du côté de la 
barrière/porte.
  - Maintient la barrière/porte ouverte à la limite de fin de course d’ouverture.
  - Arrête et inverse la course d’une barrière/porte en cours de fermeture.
  - Met la minuterie de fermeture en pause à la limite d'ouverture
  - Active la fermeture rapide et les fonctions d’anti-talonnage si activée.
Consulter le tableau ci-dessous et l’illustration correspondant pour une description des entrées du tableau d’extension.
SBC
OPN
CLS
STP
COM
EYE
ONLY
EYE/
EDGE
EYE/
EDGE
COM
1
2
3
OPEN
CLOSE
TO MAIN
BOARD
POWER
GF
H
E
C
D
B
A
Capteur photoélectrique
Capteur 
photoélectrique 
ou de chant
Capteur 
photoélectrique 
ou de chant
Boucle de sortie
Boucle d'interruption
Boucle dissimulée 
(shadow)
N.C.

32
ENTRETIEN
Pour réduire le risque de BLESSURES GRAVES, voire MORTELLES :
•  LIRE ET OBSERVER TOUTES LES INSTRUCTIONS.
•  TOUT l'entretien DOIT être effectué par un professionnel LiftMaster.
•   AUCUNE maintenance sur le dispositif de fermeture ou à proximité 
NE DOIT être réalisée avant d'avoir déconnecté l'alimentation 
électrique (CA ou solaire et pile) et de l'avoir verrouillée en utilisant 
le disjoncteur de ce dispositif. Après avoir terminé la maintenance, la 
zone DOIT être dégagée et sécurisée, c'est seulement à ce moment 
que l'unité peut être remise en service.
•   Ne JAMAIS laisser un enfant faire fonctionner ou jouer avec les 
commandes de barrière/porte. Garder la télécommande hors de 
portée des enfants.
•   TOUJOURS garder les personnes et les objets loin de la barrière/
porte. NE LAISSEZ PERSONNE TRAVERSER LA TRAJECTOIRE DE LA 
BARRIÈRE/PORTE EN MOUVEMENT.
•   L’accès est réservé aux véhicules UNIQUEMENT. Les piétons 
DOIVENT emprunter l’accès séparé.
•   Tester l’actionneur de barrière/porte tous les mois. La barrière/porte 
DOIT s'inverser au contact d'un objet rigide ou s'inverser lorsqu'un 
objet active les capteurs sans contact. Après avoir ajusté la 
résistance ou la limite de la course, tester de nouveau l'actionneur de 
barrière/porte. Le manquement à régler et tester de nouveau 
l’actionneur correctement peut augmenter le risque de BLESSURES 
GRAVES ou MORTELLES.
•   Utiliser la poignée de déclenchement manuel SEULEMENT quand la 
barrière/porte n’est pas en mouvement.
•   GARDER LES BARRIÈRES/PORTES EN BON ÉTAT. Lire le manuel du 
propriétaire. Demander à un préposé au service qualifié de faire les 
réparations au porte matériel de la barrière/porte.
•   Activer la barrière/porte UNIQUEMENT lorsqu’elle est clairement 
visible, correctement réglée et qu’aucun obstacle n’entrave sa 
course.
•   Pour réduire le risque d'INCENDIE ou de BLESSURE aux personnes, 
utiliser UNIQUEMENT la pièce LiftMaster 29-NP712 comme piles de 
rechange.
•  CONSERVER CES INSTRUCTIONS.
•   PORTEZ TOUJOURS des gants de protection et des lunettes de sécurité lorsque vous changez la pile ou travaillez aux alentours du compartiment 
de pile.
IMPORTANTES INFORMATIONS DE SÉCURITÉ
TABLEAU D'ENTRETIEN
Débrancher toute alimentation (CA, solaire, pile) de l'actionneur avant de faire l'entretien. L'interrupteur d'alimentation CA de l'actionneur 
désactive SEULEMENT l'alimentation CA à la carte de contrôle et ne désactive pas l'alimentation par pile. TOUJOURS déconnecter les piles pour faire 
l'entretien de l'actionneur.
ATTENTION
AVERTISSEMENT
AVERTISSEMENT
AVERTISSEMENT
AVERTISSEMENT
PILES
Les piles se dégraderont avec le temps selon la température et l'utilisation. L'alarme de l'actionneur émettra un bip 3 fois lors d'une commande si la 
pile est faible. Les piles ne fonctionnent pas bien dans des températures extrêmement froides. Pour une meilleure performance, les piles devraient être 
remplacées tous les 3 ans. Utiliser uniquement la pièce LiftMaster 29-NP712 comme pile de remplacement. L’actionneur est livré avec une pile 7AH. 
Les piles contiennent du plomb et peuvent devoir être jetées correctement.
DESCRIPTION TÂCHE VÉRIFIER AU MOINS UNE FOIS TOUS LES
MOIS 6 MOIS 3 ANS
Dispositifs de protection contre 
le piégeage Vérifier et tester le bon fonctionnement X
Panneaux d‘avertissement S‘assurer qu‘ils sont présents X
Débranchement manuel Vérifier et tester le bon fonctionnement X
Barrière/porte S’assurer que la barrière/porte fonctionne bien sans l’actionneur. X
Rail de la barrière/porte S’assurer que le rail de la barrière/porte fonctionne bien. X
Accessoires Vérifier le bon fonctionnement de tous X
Électrique Inspecter toutes les connexions de fils X
Actionneur Inspecter pour usure ou dommage X
Chaîne Pour assurer l’entretien de la chaîne, régler la vis du tendeur. X
Piles Remplacer X
ATTENTION
ATTENTION
AVERTISSEMENT
AVERTISSEMENT
AVERTISSEMENT

33
DÉPANNAGE
AFFICHAGE DE 
DIAGNOSTIC
BOUTONS D’OUVERTURE, DE 
FERMETURE ET D’ARRÊT
Pour protéger contre l'incendie ou l'électrocution :
•   DÉBRANCHER le courant (CA ou solaire et pile) AVANT 
d'installer ou de faire l'entretien de l'actionneur.
Pour une protection continue contre l'incendie :
•   Remplacer UNIQUEMENT avec un fusible du même type et de 
même capacité.
Enfoncer le 
bouton 
d’arrêt 
(STOP) 
et 
le maintenir 
enfoncé...
... puis enfoncer 
et tenir ensuite 
le bouton de 
fermeture 
(CLOSE) ...
POUR VOIR LES CODES
Les codes s’afficheront à l’écran de diagnostic.
POUR DÉFILER JUSQU’AUX CODES ENREGISTRÉS
Appuyer sur le bouton 
d’ouverture pour 
passer au code le plus 
récent (« 01 »). Appuyer sur le bouton 
de fermeture pour 
passer au code le plus 
ancien (jusqu’à « 20 »).
UNE 
SECONDE 
PLUS 
TARD…
L’actionneur assurera un suivi jusqu’à 20 codes, après quoi, il 
recommencera à enregistrer par-dessus les codes les plus anciens à 
mesure que de nouveaux codes se produisent. 
L’actionneur montrera le numéro de séquence d’erreur suivi du numéro 
de code d’erreur:
REMARQUE: Lors d’un cycle ou de la déconnexion de l’alimentation (c.a./c.c.) au tableau de commande, il est conseillé de débrancher la fiche J15.
NUMÉRO DE CODE
Le deuxième numéro montré après le 
numéro de séquence d’erreur est le 
code lui-même (31-99, par exemple « 
31 »). Se reporter au tableau de la page 
suivante pour une explication de 
chaque code.
NUMÉRO DE SÉQUENCE DE CODE
Le premier numéro montré est le code 
le plus récent (par exemple : « 01 »). 
L’écran affiche la séquence de codes 
qui s’est produite en commençant par 
« 01 » jusqu’au code « 20 ».
POUR QUITTER
Enfoncer et relâcher le bouton d’arrêt pour quitter. L’affichage du code 
s’éteindra après deux minutes d’inactivité.
POUR RÉINITIALISER L’HISTORIQUE DES CODES
1.   Enfoncer et tenir le bouton d’arrêt pendant 6secondes. L’écran 
affichera «Er», puis «CL» en alternance pendant six secondes.
2.   Relâcher le bouton d’arrêt. L’historique des codes a désormais été 
réinitialisé et l’affichage indiquera « - - » jusqu’à ce qu’un nouveau 
code se produise.
3.  Enfoncer et relâcher le bouton d’arrêt pour quitter.
ATTENTION
AVERTISSEMENT
AVERTISSEMENT
AVERTISSEMENT
AVERTISSEMENT
CODES DE DIAGNOSTIC
…puis 
enfoncer sans 
le relâcher le 
bouton OPEN 
(OUVERTURE) 
jusqu’à ce que 
la mention 
« Er » 
s’affiche.

34
DÉPANNAGE
CODES DE DIAGNOSTIC
Code Signification Solution Enregistré
31 Le tableau de commande principal a subi une 
défaillance interne. Déconnecter toute alimentation, attendre 15secondes, puis reconnecter l’alimentation 
(redémarrer). Si le problème continue, remplacer le tableau de commande. NON
34 Erreur d’encodeur de position absolue, n’obtient 
pas l’information de position de l’encodeur. Vérifier l’ensemble EPA et le câblage. Remplacer l’ensemble EPA au besoin. OUI
35 Erreur de dépassement de durée maximale Vérifier s’il existe une obstruction, puis reprogrammer les limites. OUI
36 Erreur d’identification de produit Le tableau de commande vient-il d’être remplacé? Si tel est le cas, effacer les limites, 
régler le mode et les limites. Sinon, déconnecter toute alimentation, attendre 15secondes, 
puis reconnecter l’alimentation avant de changer le faisceau d’identification de produit. OUI
37 Échec d’identification de produit Déconnecter le faisceau d’identification du produit, puis le rebrancher. Déconnecter toute 
alimentation, attendre 15secondes, puis reconnecter l’alimentation avant de remplacer le 
faisceau d’identification de produit. OUI
38 Limite de butée La limite peut avoir été réglée de manière trop serrée contre une butée non résiliente 
(régler de nouveau la limite). Il est possible que l’actionneur soit à la fin de sa course 
(régler de nouveau le montage) NON
40 Surtension de la pile Trop grande tension appliquée à la pile. Vérifier le faisceau. S’assurer qu’une pile de 24V 
n’est PAS installée sur un système de 12V. OUI
41 Surintensité de la pile Court-circuit possible du faisceau de charge de la pile. Vérifier le faisceau. S’assurer 
qu’une pile de 12V n’est PAS installée sur un système de 24V. OUI
42 Aucune pile au démarrage
Vérifi er les connexions et l’installation de la pile. Remplacer les batteries si elles se sont 
appauvries à moins de 20 V sur un système de 24 V ou à moins de 10 V sur un système 
de 12 V. S’assurer qu’une seule batterie de 12 V n’est PAS installée sur un système de 
24V.
OUI
43 Erreur de boucle de sortie Défaillance ou absence d’une boucle (court-circuit ou circuit ouvert – détecteur à boucle 
enfi chable LiftMaster uniquement) Vérifi er le câblage de la boucle sur toute la connexion. 
Il pourrait y avoir un court-circuit ou une connexion ouverte dans la boucle. OUI44 Erreur de boucle d’ombre
45 Erreur de boucle d’interruption
46 Pile faible du chant sans fil Remplacer les piles du chant sans fil. OUI
50 Déséquilibre détecté de la porte Vérifi er l’état et le réglage des ressorts de contrepoids OUI
53 Une baisse de tension s’est produite L’alimentation en c.a./c.c. du tableau a chuté sous le niveau permis. Examiner 
l’alimentation et le câblage. Dans le cas d’un redémarrage, laisser suffisamment de temps 
pour assurer une décharge de l’alimentation afin de forcer un démarrage à neuf. OUI
Certains codes sont enregistrés dans l’historique des codes alors que d’autres ne le sont pas. Si un code n’a pas été enregistré, il s’affichera 
brièvement sur l’écran lorsqu’il se produit, puis disparaîtra.
Système LiftMaster Système installé Information Protection externe 
contre le piégeage
Protection inhérente 
contre le piégeage

35
DÉPANNAGE
CODES DE DIAGNOSTIC
Certains codes sont enregistrés dans l’historique des codes alors que d’autres ne le sont pas. Si un code n’a pas été enregistré, il s’affichera 
brièvement sur l’écran lorsqu’il se produit, puis disparaîtra.
Code Signification Solution Enregistré
60 Nombre minimal de dispositifs surveillés de protection 
contre le piégeage (un) non installés
Examiner les connexions du dispositif surveillé de protection contre le 
piégeage. Au moins un dispositif surveillé de protection contre le piégeage en 
direction de fermeture doit être installé pour permettre le fonctionnement. NON
61 COMMUTATEUR DE CAPTEUR/INTERRUPTION DE 
FERMETURE  tenu pendant plus de 3minutes
Vérifier l’entrée câblée sur le tableau principal; vérifier l’alignement ou la 
présence d’une obstruction. OUI62 COMMUTATEUR DE CHANT DE FERMETURE tenu 
pendant plus de 3minutes
63 COMMUTATEUR DE CAPTEUR/CHANT D’OUVERTURE 
tenu pendant plus de 3minutes
64 COMMUTATEUR DE CAPTEUR/INTERRUPTION DE 
FERMETURE tenu pendant plus de 3minutes
Vérifier l’entrée câblée sur le tableau d’extension; vérifier l’alignement ou la 
présence d’une obstruction. OUI65 COMMUTATEUR DE CAPTEUR/CHANT  DE FERMETURE 
tenu pendant plus de 3minutes
66 COMMUTATEUR DE CAPTEUR PHOTOÉLECTRIQUE/DE 
CHANT D’OUVERTURE tenu pendant plus de 3 minutes
67 Chant sans fil déclenché pendant plus de 3minutes Vérifier l’entrée câblée pour tout problème de câblage ou obstruction. OUI
68 Perte de surveillance du chant sans fil Vérifier les entrées du chant sans fil. OUI
69 Chant sans fil déclenché Si une obstruction s’est produite, aucune action n’est requise. Si une 
obstruction ne s’est PAS produite, vérifier les entrées et le câblage. NON
70
CAPTEUR/INTERRUPTION DE FERMETURE 
déclenché(e), causant une course en sens inverse, 
empêchant la fermeture du portail ou réinitialisant la 
temporisation de fermeture
Si une obstruction s’est produite, aucune action n’est requise. Si une 
obstruction ne s’est PAS produite, vérifier les entrées et le câblage. NON
71 CAPTEUR DE CHANT DE FERMETURE déclenché, 
inversant la course du portail, empêchant la fermeture 
du portail ou réinitialisant la temporisation de fermeture
72 CAPTEUR/CHANT D’OUVERTURE déclenché, inversant la 
course du portail, empêchant l’ouverture du portail ou 
réinitialisant la temporisation de fermeture
73
CAPTEUR/INTERRUPTION DE FERMETURE 
déclenché(e), inversant la course du portail, empêchant 
la fermeture du portail ou réinitialisant la temporisation 
de fermeture Si une obstruction s’est produite, aucune action n’est requise. Si une 
obstruction ne s’est PAS produite, vérifier l’alignement, les entrées et le 
câblage sur le tableau d’extension. NON
74 CAPTEUR PHOTOÉLECTRIQUE/CHANT DE FERMETURE 
déclenché, inversant la course de la barrière, empêchant 
sa fermeture ou annulant la minuterie de fermeture
75 CAPTEUR PHOTOÉLECTRIQUE/CHANT D’OUVERTURE 
déclenché, inversant la course de la barrière empêchant 
son ouverture
82 Anomalie de communication de l’entrée de fermeture 
(capteur photoélectrique/chant) (tableau d’extension) Vérifier les connexions entre le tableau principal et le tableau d’extension. OUI
83 Anomalie de communication de l’entrée d’ouverture 
(capteur photoélectrique/chant) (tableau d’extension)
91 Résistance d’inversion Vérifier s’il y a une obstruction quelconque. En l’absence d’obstruction, 
vérifier que l’ensemble mécanique est engagé et bouge librement. Se reporter 
aux sections Réglage de fin de course et de résistance et Test d’obstruction. OUI
93 Régime/décrochage d’inversion
Vérifier s’il y a une obstruction quelconque. En l’absence d’obstruction, 
vérifier le câblage de l’actionneur et s’assurer que l’ensemble mécanique est 
engagé et bouge librement. Remplacer l’ensemble d’encodeur de 
positionnement automatique (EPA).
OUI
99 Fonctionnement normal Aucune action requise OUI
Système LiftMaster Système installé Information Protection externe 
contre le piégeage
Protection inhérente 
contre le piégeage

36
DÉPANNAGE
DEL DE LA CARTE DE CONTRÔLE
DEL D’ÉTAT DEL D’ENTRÉE
DEL D'ENTRÉE
«OPEN, CLOSE, 
& STOP INPUT» ARRÊT Entrée inactive
MARCHE Entrée active
CLIGNOTANT Entrée active sur l'autre actionneur
«FIRE DEPT 
INPUT» ARRÊT Entrée inactive
MARCHE Entrée active
CLIGNOTANT Entrée active sur l'autre actionneur
«EXIT» ARRÊT Entrée inactive
MARCHE Entrée active
CLIGNOTANT Entrée active sur l'autre actionneur
«SHADOW» ARRÊT Entrée inactive
MARCHE Entrée active
CLIGNOTANT Entrée active sur l'autre actionneur
«CLOSE EYES/
INTERRUPT» ARRÊT Entrée inactive
MARCHE Entrée active
CLIGNOTANT Entrée active sur l'autre actionneur
«CLOSE EDGE» ARRÊT Entrée inactive
MARCHE Entrée active
CLIGNOTANT Entrée active sur l'autre actionneur
«OPEN EYES/
EDGE» ARRÊT Entrée inactive
MARCHE Entrée active
CLIGNOTANT Entrée active sur l'autre actionneur
«LOCK» ARRÊT Entrée inactive
MARCHE Entrée active
DEL D'ÉTAT
«INPUT 
POWER» ARRÊT État arrêté
MARCHE Chargeur CA ou alimentation solaire 
disponible
«BATT 
CHARGING» ARRÊT Ne charge pas
MARCHE Chargement e la pile en trois stades
«TIMER» ARRÊT La minuterie est désactivée
MARCHE La minuterie est activée
CLIGNOTEMENT MOYEN 
(1 clignotement par 
seconde)
La minuterie fonctionne
CLIGNOTEMENT RAPIDE 
(2 clignotements par 
seconde)
La minuterie est en pause
CLIGNOTEMENT PLUS 
RAPIDE (8 clignotements 
par seconde)
La minuterie est annulée
«GATE/DOOR 
MOVING» ARRÊT La barrière/porte s’est arrêtée
MARCHE La barrière/porte s’ouvre ou se ferme
CLIGNOTEMENT MOYEN 
(1 clignotement par 
seconde)
L'actionneur est en E1 (piégeage 
simple)
CLIGNOTEMENT PLUS 
RAPIDE (8 clignotements 
par seconde)
L'actionneur est en E2 (piégeage 
double)
«BATT LOW» ARRÊT Aucune erreur de pile
MARCHE Pile faible
CLIGNOTEMENT (1 
clignotement par 
seconde)
Pile extrêmement faible
«ACC PWR 
OVLD» ARRÊT État arrêté
MARCHE Protecteur de surcharge d'accessoire 
ouvert

37
SYMPTÔME CAUSE POSSIBLE SOLUTIONS
L’actionneur ne 
fonctionne pas et le 
code de diagnostic 
n’est pas affiché
a)  Pas d’alimentation à la carte de contrôle
b) Fusible ouvert
c)   Si sur alimentation par pile seulement, piles 
faibles ou mortes
d) Carte de contrôle défectueuse
a)  Vérifier l’alimentation CA et par pile
b) Vérifier les fusibles
c)  Charger ou remplacer les batteries.
d) Remplacez la carte de contrôle défectueuse
La carte de contrôle 
s’allume, mais le 
moteur ne fonctionne 
pas
a)  L’interrupteur de réinitialisation est coincé 
b)  Le bouton d’arrêt actif ou une liaison n’est pas 
en place pour le circuit de fermeture
c)   Si le système fonctionne uniquement à pile, 
piles faibles ou épuisées
d) Entrée d’ouverture ou de fermeture active
e)   Dispositif de protection contre le piégeage actif
f)   Détecteur à boucle de véhicule ou sonde actif/
active
g) Tableau de commande défectueux
a) Vérifiez l’interrupteur de réinitialisation
b)  Vérifier que le bouton d’arrêt n’est pas grippé ou qu’il est sur un circuit normalement 
fermé, ou installer une liaison sur le circuit de fermeture
c)  Charger ou remplacer les batteries.
d)  Vérifier toutes les entrées d’ouverture et de fermeture pour détecter une entrée 
«collée»
e)   Vérifier toutes les entrées du dispositif de protection contre le piégeage pour 
détecter un capteur «collé»
f)   Vérifier toutes les entrées de détecteur de véhicule pour constater si un détecteur est 
«collé»
g) Remplacer le tableau de commande défectueux
La barrière/porte se 
déplace, mais il est 
impossible de régler 
les bonnes limites
a)   La barrière/porte ne se déplace pas jusqu’à une 
position de fin de course.
b)  La barrière/porte est trop difficile à déplacer.
c)  Les limites sont réglées trop près l’une de 
l’autre.
a)   Utiliser la poignée de déverrouillage manuel, déplacer la barrière/porte manuellement 
et s’assurer que la barrière/porte se déplace facilement d’une limite à l’autre. Réparer 
la barrière/porte au besoin.
b)  La barrière/porte doit pouvoir se déplacer facilement et librement sur toute sa 
course, d’une limite à l’autre. Réparez la barrière, au besoin.
c)   S’assurer que la barrière/porte se déplace d’au moins 30,5 cm (1 pi) entre la limite 
de fin de course d’OUVERTURE et la limite de fin de course de FERMETURE.
La barrière/porte ne 
s’ouvre ou ne se 
ferme pas 
complètement lors 
du réglage des 
limites
a)   La barrière/porte ne se déplace pas jusqu’à une 
position de fin de course.
b)  La barrière/porte est trop difficile à déplacer.
a)   Utiliser la poignée de déverrouillage manuel, déplacer la barrière/porte manuellement 
et s’assurer que la barrière/porte se déplace facilement d’une limite à l’autre. Réparer 
la barrière/porte au besoin.
b)  La barrière/porte doit pouvoir se déplacer facilement et librement sur toute sa 
course, d’une limite à l’autre. Réparez la barrière/porte, au besoin.
L‘actionneur ne 
répond pas à un 
contrôle/une 
commande câblé 
(exemple: Ouvrir, 
Fermer, SBC, etc.)
a)   Vérifier les diodes d’entrée d’ouverture et de 
fermeture
b) Le bouton d’arrêt est actif
c)  Le bouton de réinitialisation est coincé.
d)  Si le système fonctionne uniquement à pile, 
piles faibles ou épuisées
e)   Dispositif de protection contre le piégeage actif
f)   Détecteur à boucle de véhicule ou sonde de 
véhicule actif/active
a)   Vérifier toutes les entrées d’ouverture et de fermeture pour détecter une entrée 
«collée» 
b) Vérifier que le bouton d’arrêt n’est pas «collé»
c) Vérifier le bouton de réinitialisation
d) Charger ou remplacer les batteries.
e)   Vérifier toutes les entrées du dispositif de protection contre le piégeage pour 
détecter un capteur «collé»
f)   Vérifier toutes les entrées de détecteur de véhicule pour constater si un détecteur est 
«collé»
L‘actionneur ne 
répond pas à un 
contrôle ou un 
transmetteur sans fil
a)   Vérifier la diode de l’émetteur lorsque la 
commande sans fil est active
b) Le bouton d’arrêt est actif
c)  Le bouton de réinitialisation est coincé
d) Réception radio médiocre
a)   Activer la commande sans fil et vérifier que la diode de l’émetteur est allumée. 
Reprogrammer la commande sans fil/l’émetteur au tableau de commande. 
Remplacer la commande sans fil au besoin.
b) Vérifier que le bouton d’arrêt n’est pas «collé»
c) Vérifier le bouton de réinitialisation
d)  Vérifier si une commande câblée similaire fonctionne correctement. Vérifier si les 
commandes sans fil fonctionnent correctement lorsqu’elles se trouvent à quelques 
pieds/cm de l’actionneur. Vérifier l’antenne de l’actionneur et le fil de l’actionneur. 
Vérifier les autres commandes ou dispositifs sans fil.
La barrière/porte 
s’arrête et inverse sa 
course 
immédiatement
a)  Contrôle (Ouvrir, Fermer) devenant actif
b) Détecteur de boucle de véhicule activé
c)  Faible tension de pile
a)   Vérifier toutes les entrées Ouvert et Fermé pour détecter la présence d‘une entrée 
activée.
b)  Vérifier toutes les entrées de détecteur de véhicule pour détecter la présence d‘un 
détecteur activé.
c)   La tension de pile doit être de 23,0 Vcc ou plus. Charger ou remplacer les batteries.
La barrière/porte 
s’ouvre, mais ne se 
ferme pas à l’aide de 
l’émetteur ou de la 
minuterie de 
fermeture.
a) Commande d’ouverture active
b) Détecteur à boucle de véhicule actif
c)   Perte d’alimentation en c.a. avec réglage 
d’interruption d’alimentation en c.a. réglé sur 
ouverture
d)  Pile faible avec réglage PILE FAIBLE réglé sur 
ouverture
e) Entrée du service d’incendie active
f) Temporisation de fermeture non réglée
g)  Dispositif de protection contre le piégeage sur 
fermeture actif
a)  Vérifier toutes les entrées d’ouverture pour détecter une entrée active 
b)   Vérifier toutes les entrées de détecteur de véhicule pour la présence d’un détecteur actif
c)   Vérifier l’alimentation en c.a. et le réglage de l’option d’interruption d’alimentation en c.a.
d)  Vérifier si l’alimentation en c.a. est disponible. En l’absence d’une alimentation en 
c.a., le fonctionnement par piles doit être assuré par une tension de pile de 23,0V 
en c.c. ou plus. Charger ou remplacer les batteries.
e)  Vérifier l’entrée du service d’incendie
f)  Vérifier le réglage de la temporisation de fermeture (TTC)
g)  Vérifier tous les entrées du dispositif de protection contre le piégeage pour détecter 
un capteur actif
La barrière/porte se 
ferme, mais ne 
s’ouvre pas.
a)  Détecteur à boucle de véhicule actif
b)  Pile faible avec option PILE FAIBLE réglée sur 
FERMETURE
a)   Vérifier toutes les entrées de détecteur de véhicule pour la présence d’un détecteur 
actif
b)  
Vérifier si l’alimentation en c.a. est disponible. En l’absence d’une alimentation en 
c.a., le fonctionnement par piles doit être assuré par une tension de pile de 23,0V 
en c.c. ou plus. Charger ou remplacer les batteries.
TABLEAU DE DÉPANNAGE
DÉPANNAGE

38
SYMPTÔME CAUSE POSSIBLE SOLUTIONS
L’activation de la 
boucle de sortie 
n’active pas 
l’ouverture de la 
barrière/porte
a)   Configuration inadéquate du détecteur de 
véhicule de sortie
b) Détecteur à boucle de sortie défectueux
c)   Pile faible avec option PILE FAIBLE réglée sur 
FERMETURE
a)   Examiner les réglages du détecteur à boucle de sortie. Régler les paramètres au 
besoin.
b) Remplacer le détecteur à boucle de sortie défectueux
c)   Vérifier si l’alimentation en c.a. est disponible. En l’absence d’une alimentation en c.a., 
le fonctionnement par piles doit être assuré par une tension de pile de 23,0V en c.c. 
ou plus. Charger ou remplacer les batteries.
La boucle 
d’interruption ne 
cause pas l’arrêt de la 
barrière/porte et 
l’inversion de sa 
course
a)   Configuration incorrecte du détecteur de 
véhicule
b) Détecteur à boucle de véhicule défectueux
c)   Anti-poursuite réglé à En fonction
a)   Examiner les réglages du détecteur à boucle d’interruption. Régler les paramètres au 
besoin.
b) Remplacer le détecteur à boucle d’interruption défectueux
c)  Réglez l’anti-poursuite à Hors fonction.
La boucle d’ombre ne 
maintient pas la 
barrière/porte à sa 
limite de fin de course 
d’ouverture
a)   Configuration incorrecte du détecteur de 
véhicule
b) Détecteur à boucle de véhicule défectueux
a)   Examiner les réglages du détecteur à boucle d’ombre. Régler les paramètres au 
besoin.
b) Remplacer le détecteur à boucle d’ombre défectueux.
L’obstacle dans la 
trajectoire de course 
de la barrière/porte ne 
cause pas son arrêt et 
l’inversion de sa 
course
a)  Réglage de résistance nécessaire a)   Se reporter à la section du réglage pour réaliser un test d’obstruction et le bon réglage 
de la résistance nécessaire
Le capteur 
photoélectrique 
n’arrête pas ou 
n’inverse pas la 
course de la barrière/
porte
a) Câblage incorrect du capteur photoélectrique 
b) Capteur photoélectrique défectueux
a)   Vérifier le câblage du capteur photoélectrique. S’assurer par un nouvel essai que le 
capteur photoélectrique d’obstruction cause l’arrêt et l’inversion de la course de la 
barrière/porte.
b)  Remplacer le capteur photoélectrique défectueux. S’assurer par un nouvel essai que le 
capteur photoélectrique d’obstruction cause l’arrêt et l’inversion de la course de la 
barrière/porte.
La bordure de 
détection n’arrête pas 
ou n’inverse pas la 
course de la barrière/
porte
a) Câblage incorrect du capteur de chant 
b) Capteur de chant défectueux
a)   Vérifier le câblage du capteur de chant. S’assurer par un nouvel essai que la bordure 
de détection d’activation cause l’arrêt et l’inversion de la course de la barrière/porte.
b)  Remplacer le capteur de chant défectueux. S’assurer par un nouvel essai que la 
bordure de détection d’activation cause l’arrêt et l’inversion de la course de la barrière/
porte.
L’alarme sonne durant 
5 minutes ou l’alarme 
sonne avec une 
commande.
a)   Un double piégeage s’est produit (deux 
obstructions en une simple activation) a)   Vérifier la cause de la détection du piégeage (obstruction) et corriger. Basculer 
l’interrupteur de réinitialisation pour arrêter l’alarme et réinitialiser l’actionneur.
L’alarme émet trois 
bips avec une 
commande.
a)  Pile faible a)   Vérifier si l’alimentation CA est disponible. S’il n’y a pas d’alimentation CA, le dispositif 
fonctionne sur piles et la tension de pile doit être de 23,0 VCC ou plus. Charger ou 
remplacer les batteries.
L’alarme retentit lors 
du fonctionnement. a) Réglage du tableau d’extension
b)  Une pression constante pour ouvrir ou 
fermer le portail est exercée
a)  Le pré-avertissement est réglé sur En fonction
b) Une pression constante pour ouvrir ou fermer le portail est exercée
La fonction du tableau 
d’extension ne 
commande pas la 
barrière/porte
a)   Câblage de la carte principale à la carte 
d’extension défectueux
b)  Câblate d’entrée incorrect vers la carte 
d’extension
c)   Carte d’extension défectueuse ou carte 
principale défectueuse
a)   Vérifier le câblage de la carte principale à la carte d’extension. Si nécessaire, 
remmplacer le câble.
b) Vérifier le câblage à toutes les entrées sur la carte d’extension
c)  Remplacer la carte d’extension défectueuse ou la carte principale défectueuse
DÉPANNAGE
TABLEAU DE DÉPANNAGE (suite)

39
SYMPTÔME CAUSE POSSIBLE SOLUTIONS
L’alimentation auxiliaire 
commutée (SW) demeure en 
fonction
a)  En mode de configuration de limite a)  Apprendre les limites
Les accessoires connectés à 
l’alimentation auxiliaire 
commutée (SW) ne fonctionnent 
pas correctement, s’éteignent 
ou se réinitialisent
a)  Comportement normal a)   Déplacer accessoire à alimentation accessoire «EN FONCTION»
Les accessoires connectés à 
l’alimentation auxiliaire ne 
fonctionnent pas correctement, 
s’éteignent ou se réinitialisent
a)   Protecteur d’alimentation auxiliaire activé
b) Carte de contrôle défectueuse
a)   Déconnecter tous les dispositifs sur alimentation auxiliaiare et mesurer la 
tension de l’alimentation auxiliaire (devrait être entre 23 et 30 Vcc). Si la 
tension est correcte, connecter les accessoires un à la fois, mesurant la 
tension auxiliaire après chaque nouvelle connexion.
b)  Remplacez la carte de contrôle défectueuse
Quick Close ne fonctionne pas 
correctement a) Réglage Quick Close incorrect
b)  Détecteur ou fil de la boucle d’interruption 
défectueux
c) Carte d’extension défectueuse
a)  Vérifier que le réglage Quick Close est à ON (en fonction)
b) Vérifier le fonctionnement du détecteur de la boucle d’interruption
c) Remplacez la carte d’extension défectueuse
Anti-talonnage ne fonctionne 
pas correctement a) Réglage anti-talonnage incorrect
b)  Détecteur ou fil de la boucle d’interruption 
défectueux
c) Carte d’extension défectueuse
a)  Vérifier que le réglage anti-talonnage est à ON (en fonction)
b) Vérifier le fonctionnement du détecteur de la boucle d’interruption
c) Remplacez la carte d’extension défectueuse
Relais AUX ne fonctionne pas 
correctement a) Réglage du relais AUX incorrect
b)  Câblage du relais AUX incorrect
c) Carte d’extension défectueuse
a)  Vérifier les réglage d’interrupteurs du relais AUX
b) Vérifier que le câblage est connecté soit à N.O. et COM ou soit à N.F. et COM
c)   Régler le relais AUX à une autre valeur et tester. Remplacez la carte 
d’extension défectueuse
DÉPANNAGE
TABLEAU DE DÉPANNAGE (suite)

40
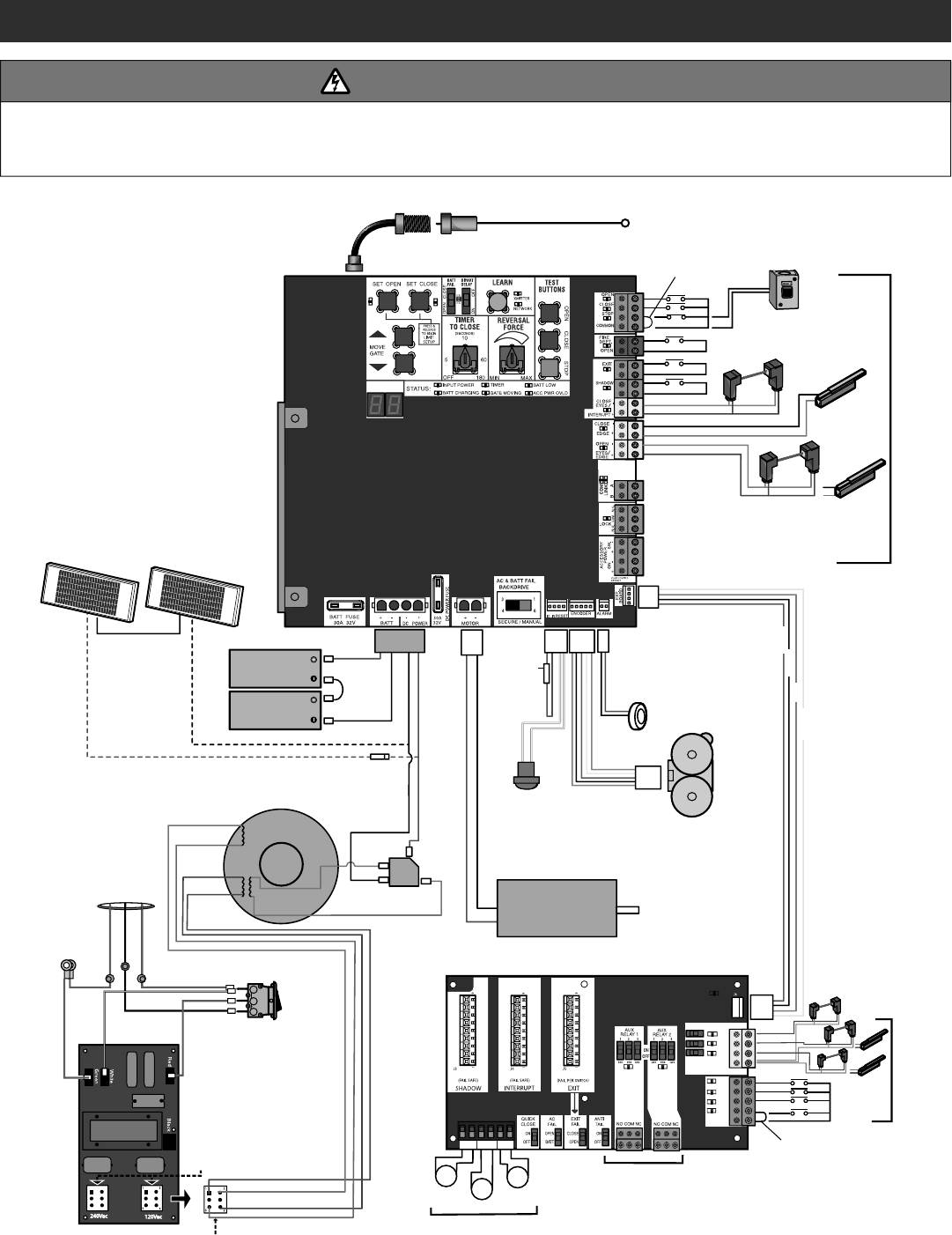
SCHÉMA DE CÂBLAGE
DIAGNOSTICS
+
-
+
-
+
+
-
+
-
+
-
+
-
+
-
+
+
-
+
-
+
-
-
-
SHADOW   INTERUPT      EXIT
SBC
OPN
CLS
STP
COM
EYE
ONLY
EYE/
EDGE
EYE/
EDGE
COM
1
2
3
OPEN
CLOSE
TO MAIN
BOARD
POWER
4321
4321
321
+
-
+
+
Câblage sur place
Câble coaxial d'antenne 
N.F.
CARTE DE COMMANDE
Antenne
Alarme Piézo
Encodeur APS
Moteur 1/2 HP
24 V cc
Noir
Rouge
Rouge
Interrupteur de 
réinitialisation
Câblage sur place
Câblage sur place
N.F.
boucle de fil
boucle de fil
boucle de fil
Câblage sur place
Pile 12 V 7 AH
Pile 12 V 7 AH
Transformateur 375 VA, 24 V, 120 V
Redresseur en pont
Noir
Noir
Mauve
Marron
Bleu
Gris
Orange
Orange
Rouge
Rouge
Noir
Rouge
Noir
Rouge
Diode d'arrêt
Vert
Blanc
Blanc
Blanc
Blanc
Rouge
Deux panneaux solaires 12 V en série (en option)
CARTE D'EXTENSION
ID de 
produit
Liaison
Liaison
Connexion
combinée
Connecteur de câblage
d’alimentation
Connexion 
d'alimentation
Juane
Bleu
Noir
Rouge
TENSION
NEUTRE
TERRE
Noir
Douilles terminales
conductrices
(120 Vca défaut d'usine)  
Interrupteur
d'alimentation CA
CARTE DE 
FILTRE EMI
Capteurs photoélectriques 
et capteurs de chant
Bouton de 
réinitialisation 
externe
Vert
Pour protéger contre l’incendie ou l’électrocution :
•   DÉBRANCHER le courant (CA ou solaire et pile) AVANT d’installer ou 
de faire l’entretien de l’actionneur.
Pour une protection continue contre l’incendie :
•   Remplacer UNIQUEMENT avec un fusible du même type et de même 
capacité.
ATTENTION
AVERTISSEMENT
AVERTISSEMENT
AVERTISSEMENT
AVERTISSEMENT